Mathieu Dranguet - Architecture & Projects - Portfolio 2021

Page 1

MATHIEU
Portfolio 2021
Architecture & Projects
DRANGUET

06.

08.

10.

12.

18.

20.

22.

SHORT BIO
PROJETS D’ARCHITECTURE - ARCHITECTURAL PROJECTS
CONTENTS 04.
05.
Halle ouverte dans un parc // Open-air Hall in a park
Galerie d’exposition
espaces de lecture
Exhibition
Reading
&
//
gallery &
spaces
Maison familiale // Family house
Triptyque // Triptych
Rencontrez vos voisins ! // “Meet your neighbors!”
Un nouveau cadre pour Ráckeve // A New frame for Ráckeve
Un centre communautaire dédié à la musique // A Community center for music

24. DESSINS, EXPÉRIMENTATIONS, MODÉLISATIONS

DRAWINGS, EXPERIMENTS, MODELINGS

25. Variations de couleurs // Color variations

26. Dessin - Crayon & encre de chine // Drawing - Pencil & Chinese ink

27. Lumière // Light

28. Creuser la masse - Matière & lumière // Digging into the mass - Matter & light

29. Modélisation 3D (ArchiCAD) // 3D modeling (ArchiCAD)

Cover & Contents: A Community center for music // Budapest (Hungary)

MATHIEU DRANGUET, né le 3 septembre 1985 à Rouen (Seine-Maritime) born on September 3, 1985 in Rouen (Seine-Maritime)

2017-2020 // ÉCOLE NATIONALE SUPÉRIEURE

D’ARCHITECTURE DE NORMANDIE

2020-2021 // BUDAPEST UNIVERSITY OF TECHNOLOGY AND ECONOMICS - FACULTY OF ARCHITECTURE

Étudiant en architecture depuis septembre 2017, je suis heureux de présenter trois années de projets architecturaux ainsi qu’une sélection de travaux d’étude et personnels. Historien de formation, photographe passionné et amoureux de la musique, je nourris mon travail de mes expériences, de ma connaissance du chantier mais aussi de l’histoire des arts, de mes voyages, de mes lectures et de mes rêves.

L’architecture est une matière vivante. En tant que processus et réalité physique palpable, elle nous permet d’habiter et nous habite au plus profond de nous-mêmes. En révélant le monde, elle nous révèle, elle sublime le grand paysage tout en nous offrant une invitation à l’introspection infinie. Pureté, évidence et génie du lieu si cher à Christian Norberg-Schulz sont mes boussoles depuis que j’ai appris à noircir du papier de lignes et de formes, et à appréhender de mes propres mains cette matière qui réunit tous les paradoxes : évanescence ou présence perpétuelle, rigidité des modes mais aussi imagination sans limites, geste qui affirme fièrement sa présence ou disparition dans une nature magnifiée.

Depuis la petite intervention micro-architecturale jusqu’à la grande échelle urbaine, ce qui suit révèle l’évolution de ma technique, de cette main qui pense et qui construit, qui se questionne, qui doute et qui ose. Le travail d’une vie, celui d’une quête d’émerveillement et de sensations architecturales, et la volonté farouche de bâtir pour les gens.

ArchitecturestudentsinceSeptember2017,Iampleased to present three years of Architectural projects as well as a selection of study and personal work. Historian by education, passionate photographer and music lover, I feed my work with my experiences, my knowledge of the building site but also history of the Arts, my travels, my readings and my dreams.

Architecture is a Living matter. As a process and a palpable physical reality, it enables us to inhabit and is in us deep within. By revealing the world, it tells us who we are, it sublimates the Great Landscape while inviting us to endless introspection. Purity, obviousness and the ‘Genius Loci’ so dear to Christian NorbergSchulz have been my compasses ever since I learned to blacken paper with lines and shapes, and to grasp with my own hands this material which unites all paradoxes: evanescence or permanent presence, rigidity of fashions but also limitless imagination, gesture which proudly projects its presence or disappearance in a magnified nature.

From the small micro-architectural intervention to the large urban scale what follows reveals the evolution of my technique, of this ‘Thinking hand’ which questions itself, which doubts and dares. A lifetime of work, that of a quest for architectural wonder and thrill and the fierce determination to build for people.

4

PROJETS D’ARCHITECTURE

ARCHITECTURAL PROJECTS

5

HALLE OUVERTE DANS UN PARC

OPEN-AIR HALL IN A PARK

Location: Darnétal, parc Lucien Fromage (France)

Total surface area: 300m2

Final project - Semester 1 (2018)

Principe : structure autoportante en bois reposant sur deux appuis en béton et stabilisée par deux tirants. Le projet joue avec la topographie en pente douce du terrain et propose une solution à la création d’un espace à la fois intérieur et extérieur, dédié aux étudiants de l’école d’architecture.

Principle: self-supporting wooden structure resting on two concrete supports and stabilized by two tie rods. The project plays with the gently sloping topography of the land and offers a solution to the creation of a both indoor and outdoor space dedicated to students of the school of architecture.

1
6
Model 1:33
7
Model 1:200

GALERIE D’EXPOSITION & ESPACES DE LECTURE EXHIBITION GALLERY & READING SPACES

Location: Rouen, quartier Martainville (France)

Total surface area: 700m2

Final project - Semester 2 (2018)

Situé au coeur d’un quartier historique, sur une parcelle longue et étroite, ce projet possède une écriture en panneaux verticaux qui s’agencent pour créer des espaces et des failles questionnant le rapport intérieur-extérieur. Mies van der Rohe, en particulier le pavillon de Barcelone, a inspiré la grammaire de ce projet depuis les premières esquisses : il en garde les grandes parois verticales, les portes sur pivot et le croisement des lignes. L’espace du rez-de-chaussée est consacré à la galerie, avec une lumière volontairement limitée. La cage d’escalier, épine dorsale du projet - éclairée par une large ouverture zénithale - amène aux salles de lecture très hautes de plafond, baignées de lumière et ouvertes sur le paysage urbain.

Located in the heart of a historic district, on a long and narrow plot, this project has a writing in vertical panels which combine to create spaces and flaws questioning the interior-exterior relationship. Mies van der Rohe, in particular the Barcelona pavilion, has inspired the grammar of this project since the earliest sketches: it keeps the large vertical walls, the pivot-hung doors and the crossing lines. The space on the ground floor is devoted to the gallery, with deliberately limited light. The stairwell, backbone of the project - lit by a large zenithal opening - leads to the reading rooms with very high ceilings, bathed in light and open to the urban landscape.

2 8
Model 1:200
9
Plans, sections & model 1:100

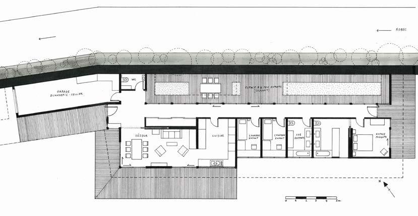
MAISON FAMILIALE FAMILY HOUSE

Location: Darnétal (France)

Total surface area: +/- 100m2 + garage & outdoor spaces

Final project - Semester 3 (2020)

Sur une parcelle située entre deux ruisseaux affluents de la Seine, le projet prend parti de s’appuyer contre un mur de soutènement qui contient le lit du Robec afin de s’inscrire totalement dans cet élément bâti existant du site et de permettre un camouflage relatif de la maison depuis la rue. Ce principe de base a déterminé la forme du projet, dans la longueur, avec une longue distribution linéaire qui dessert les différents espaces. Dans cette configuration « en enfilade », trois espaces distincts se succèdent depuis l’entrée : un espace collectif et deux espaces privés, enfants (deux chambres et une salle de bain) puis parents (un même espace comprenant chambre, dressing et salle de bain). Chaque zone se voit prolongée par un ou plusieurs espaces extérieurs en terrasse. Largement ouvert au sud par des portes fenêtres ou des baies coulissantes pleine hauteur, le projet propose également une ouverture visuelle maximale sur le mur, au nord, qui en constitue l’épine dorsale.

On a plot located between two tributary streams of the ‘Seine’, the project chooses to lean against a retaining wall which contains the ‘Robec’ in order to fit entirely into this existing element of the site and to allow relative camouflage of the house from the street. This basic principle determined the shape of the project, in the length, with a long linear distribution which serves the different spaces. In this ’in a row’ configuration, three distinct spaces follow one another from the entrance: a collective space and two private spaces, for children (two bedrooms and one bathroom) and for parents (the same space including bedroom, dressing room and bathroom). Each area is extended by one or more outdoor terraced spaces. Widely opened to the south by full-height French doors or sliding windows, the project also offers maximum visual opening on the northern wall which constitutes its backbone.

3
10 Perspective cross section
11
Project model 1:100 & Site model 1:500

TRIPTYQUE TRIPTYCH

Location: Dieppe (France)

Total surface area: +/- 1800m2 on 3 sites

Final project - Semester 4 (2020)

‘Triptyque’ est un projet culturel implanté sur trois sites différents, sur la falaise du Pollet à Dieppe. Il met en scène trois « tableaux architecturaux » visant à sensibiliser au riche patrimoine de la ville et à offrir aux visiteurs des qualités d’espace et des programmes différents : un centre d’interprétation du patrimoine, une galerie - salle de lecture sous-terraine et une médiathèque - espace de coworking tiers-lieu. ‘Triptyque’ s’inscrit également dans une démarche plus large de redynamisation d’un quartier délaissé mais riche de son histoire et de son patrimoine naturel et historique.

‘Triptyque’ is a cultural project located on three different sites, on the cliff of Pollet in Dieppe. It consists of three “architectural paintings” aimed at raising awareness of the city’s rich heritage and offering visitors different qualities of space and programs: a heritage interpretation center, an underground gallery-reading room and a media library - third-place co-working space. ‘Triptyque’ is also part of a broader approach to revitalize a neglected district but rich of its history and its natural and historical heritage.

Model 1:200 12 4

LE PETIT FORT THE “PETIT FORT”

Le Petit Fort est un projet de centre d’interprétation du patrimoine visant à mettre en valeur le quartier du Pollet. Ancien lotissement de pêcheurs, le Pollet a vu son activité décroître au fil du temps. Ce projet, qui est accroché à la rampe, est une façon de rendre hommage à ce quartier « phare » de Dieppe. Situé place du Petit Fort - d’où son nom, ce mini-projet travaille la verticalité avec une cage d’ascenseur vitrée offrant aux usagers une vue sur le bassin - rappelant celles du peintre Eugène Boudin - et de la transparence pour souligner l’impact visuel de la matérialité du quartier, en particulier la brique. L’ascenseur dessert trois niveaux : le RDC où se trouve un centre d’expositions patrimoniales, un niveau intermédiaire et une plateforme haute à laquelle on peut accéder depuis la rampe et qui offre un magnifique panorama.

The “Petit Fort” is a heritage interpretation center project aimed at highlighting the Pollet district. A former fishermen’s subdivision, the Pollet has seen its activity decrease over time. This project which hangs on the ramp is a way of paying tribute to this “flagship” district of Dieppe. Located on the “Petit Fort” square - hence its name, this mini-project works on verticality with a glazed elevator shaft offering users a view towards the basin - reminiscent of those of the painter Eugene Boudin - and transparency to emphasize the visual impact of the neighborhood’s materiality, especially the brick. The elevator serves three levels: the ground floor where stands a heritage exhibition center, an intermediate level and a high platform which can be accessed from the ramp and which offers a magnificent panorama.

13
Model 1:50, section & Perspective sketch

GALERIE TROGLODYTE TROGLODYTE GALLERY

En haut de la falaise, face à l’un des plus beaux points de vue sur Dieppe et la mer, ce second micro-projet a été conçu comme une suite logique du Petit Fort et comme un ajout à la médiathèque - coworking. Il s’agit d’une salle de lecture sous-terraine en forme de longue galerie donnant à vivre l’expérience des habitations troglodytiques qui étaient jadis situées au pied de la falaise. Depuis la rue, un escalier emmène le visiteur sous terre, dans une première galerie éclairée par des failles latérales et qui se déploie de manière rectiligne jusqu’à atteindre le bord de la falaise. Cette première galerie, qui contient des bibliothèques encastrées, débouche sur un deuxième espace taillé dans la roche. Ce projet offre la quiétude d’une salle de lecture isolée ainsi que l’expérience de la vie dans les profondeurs et les interstices de la falaise - élément vernaculaire important du patrimoine local.

At the top of the cliff, facing one of the most beautiful views of Dieppe and the sea, this second micro-project was designed as a logical continuation of the “Petit Fort” and as an addition to the media library-coworking. This is an underground reading room with a long gallery’s shape giving the experience of cave dwellings that were once located at the foot of the cliff. From the street, a staircase leads the visitor under the earth, in a first gallery lit by side flaws and which unfolds in a rectilinear manner until reaching the cliff’s edge. This first gallery which contains built-in bookcases leads to a second space carved into the rock. This project offers the quietude of an isolated reading room as well as the experience of life in the depths and interstices of the cliff - an important vernacular element of the local heritage.

14
R-1 A’ A B’ B Longitudinal section

ESPACE TIERS-LIEU & MÉDIATHÈQUE THIRD PLACE SPACE & MEDIATHEQUE

Le projet principal est amené par les deux micro-projets qui, symboliquement, poussent les usagers et habitants à « monter » vers la culture et la connaissance. Il s’agit d’un double espace unifié par une toiture commune et un passage qui cadre une vue panoramique sur le bord de la falaise et l’océan. Avec 54m dans sa grande longueur pour une hauteur de 4,20m toiture comprise, le projet souligne les horizontales naturelles du paysage, la crête de la falaise et la ligne d’horizon. L’espace majeur est un espace co-working tiers-lieu. Basé sur une trame carrée de 4,20m, il dispose d’un système de cloisons coulissantes qui permettent une multitude de configurations et d’agencements. Le second espace est une médiathèque offrant différentes ambiances, du travail individuel au lounge collectif et semi-fermé. Les sanitaires sont traités comme un îlot libre autour duquel on peut tourner, au centre d’un vaste espace ouvert qu’une terrasse prolonge vers la falaise.

The main project is brought about by the two micro-projects which symbolically push users and inhabitants to “climb” towards Culture and Knowledge. It is a double space unified by a common roof and a passage that frames a panoramic view towards the ocean. With 54 meters in its longest length and a 4.20 meters height including the roof, the project emphasizes the natural horizontals of the landscape, the crest of the cliff and the skyline. The major space is a third-place co-working space. Based on a 4.20 meters square grid, it features a system of sliding partitions which allows a multitude of configurations and arrangements. The second space is a media library offering different atmospheres from individual work to collective and semi-closed lounge. The sanitary facilities are treated as a free island around which one can turn, in the center of a large open space extended by a terrace towards the cliff.

15
16 Model 1:200
17

RENCONTREZ VOS VOISINS ! “MEET YOUR NEIGHBORS!”

Location: Budapest (Hungary)

Total surface area: +/- 800m2

Final project - Semester 5 (2020)

Le projet part du constat que la majeure partie des combles des anciens immeubles résidentiels de Budapest ne sont pas utilisés. Dès lors, dans un contexte de raréfaction de la surface constructible mais aussi à une époque où le besoin de trouver de nouvelles manières de vivre ensemble se fait plus que jamais ressentir, ce projet à vocation sociale propose des espaces dans lesquels les publics, les usagers et les générations peuvent se croiser, se rencontrer et passer du temps ensemble. S’étendant sur la surface de combles de deux immeubles, plusieurs espaces connectés entre eux sont mis à la disposition des habitants : des zones de coworking, une cuisine et un jardin participatifs, des ateliers et workshops, une vaste terrasse extérieure et une « boite d’exposition » suspendue offrant une vue panoramique sur la ville. La physionomie typique des cours budapestoises est mise en valeur par la réutilisation des axes de communication existants et par la proposition de nouvelles possibilités d’usages dont les habitants sont invités à s’emparer.

The project starts from the observation that most of old residential buildings’ attics of Budapest are not used. Consequently, in a context of scarcity of the buildable surface areas but also at a time when the need to find new ways of living together is more than ever felt, this social project proposes spaces in which the public, users and generations can cross paths, meet and spend time together. Extending over the roof area of two buildings, several interconnected spaces are made available to residents: coworking areas, a participatory kitchen and garden, studios and workshops, a large outdoor terrace and a suspended“exhibitionbox”offeringapanoramicviewoverthecity.The typical physiognomy of Budapest courtyards is enhanced by reusing the existing communication shafts and by proposing new usage possibilities which residents are invited to take advantage of.

18
5

G E N E R A L P L A N S U S E

G E N E R A L P L A N S U S E S

GENERAL PLANS USES

COWORKING KITCHEN & SOCIAL AREA GARDENING WORKSHOP TERRACE SKYBAR & EXHIBITION BOX ATTIC LEVEL ROOF LEVEL SCALE 1/200
COWORKING KITCHEN & SOCIAL AREA GARDENING WORKSHOP TERRACE SKYBAR & EXHIBITION BOX ATTIC LEVEL ROOF LEVEL SCALE 1/200 19 Scale 1/200 Attic level Roof level Coworking Gardening Terrace Kitchen & Social area Workshop Skybar & Exhibition box

UN NOUVEAU CADRE POUR RÁCKEVE A NEW FRAME FOR RÁCKEVE

Location: Ráckeve (Hungary)

Total surface area: +/- 30 hectares

Interdisciplinary Project Design - Semester 5 (2020)

Ráckeve est une petite ville hongroise de 8 500 habitants située à 40 km au sud de Budapest, dans l’île de Csepel, entourée par deux bras du Danube. Après un diagnostic de terrain exhaustif dressant l’état actuel et les potentiels du site, ce projet de revitalisation propose des solutions de développement envisageables pour attirer de nouveaux habitants ainsi que les infrastructures propices à un tourisme culturel et vert. Le Masterplan se compose d’une nouvelle gare avec son quartier de commerces et de services, un plan de circulation favorisant les transports doux, des logements individuels et semi-collectifs, un quartier de bureaux profitant d’une situation idéale au bord d’un lac et une refonte des bords du fleuve avec de nouveaux services et hôtels. Le château baroque - au sud du site et actuellement vide - est réintégré au projet en mettant en valeur son grand axe : pour cela, la proposition réintroduit la géométrie des jardins baroques et projette virtuellement cet axe jusqu’à l’autre rive du Danube par des pontons-restaurants et une fontaine au milieu de l’eau, nouveau repère visuel de ce quartier redessiné qui conserve néanmoins son échelle et son essence.

Ráckeve is a small Hungarian town of 8,500 inhabitants located 40 km south of Budapest on the Csepel island surrounded by two branches of the river Danube. After an exhaustive survey establishing the current state and potential of the site, this revitalization project offers possible development solutions to attract new inhabitants as well as the infrastructure suitable for Cultural and ‘Green’ tourism. The Masterplan contains a new station with its shopping and service district, a traffic plan fostering soft transports, individual and semi-collective housing, an office district enjoying an ideal location to a lake’s edges and a redesign of the riverbanks with new services and hotels. The baroque castle - to the south of the site and currently empty - is reintegrated into the project by highlighting its large axis: for this, the proposal reintroduces the baroque gardens’ geometry and virtually projects this axis to the other bank of the Danube by restaurant-piers and a fountain in the middle of the water, a new visual landmark of this redesigned district which nevertheless retains its scale and its essence.

6 20
New railway station & Main square
21 Masterplan Riverside Residential development

7

UN CENTRE COMMUNAUTAIRE DÉDIÉ À LA MUSIQUE A COMMUNITY CENTER FOR MUSIC

Location: Budapest (Hungary)

Total surface area: +/- 2000m2

Interdisciplinary Project Design - Semester 6 (2021)

Au coeur du 8ème arrondissement de Budapest (Józsefváros), ce centre communautaire dédié à la pratique musicale a pour vocation de fournir intimité et beaux espaces permettant aux usagers de créer, d’apprendre, de passer du bon temps et de s’exprimer. Dans une parcelle étroite située dans un environnement urbain historique et dense, le projet respecte l’esthétique et les qualités architecturales du quartier. Il comporte un auditorium - salle de concert, une cafétéria, des espaces sociaux, une cantine, une grande terrasse extérieure – qui rappelle la configuration des cours d’immeubles hongroises, des studios, bureaux, salles de classes et ateliers. La façade reflète, comme l’ensemble du complexe, le rythme et la composition que produisent les sons et la musique avec une peau à multiples couches : surfaces vitrées, système de volets (fixes ou coulissants), ossature métallique, végétation suspendue qui fournit un filtre naturel pour la lumière. La forme générale du projet – telle une cascade – renvoie également à cette idée de mouvement qu’elle fait converger vers la cour, lieu de rencontre central.

In the heart of the 8th district of Budapest (Józsefváros), this community center dedicated to the music practice aims to bring intimacy and nice spaces that allow the users to create, learn, spend good time and express themselves. In a narrow plot located in a historical and dense urban environment, the project respects the district’saestheticsandarchitecturalqualities.Itfeaturesanauditorium-concerthall,acafeteria,socialspaces, a canteen, a large outdoor courtyard terrace - reminiscent of the Hungarian building courtyards’ configuration, studios, offices, classes and workshops. The facade reflects, as the whole complex, the rhythm and composition sounds and music produce with a multi-layered skin: glazed surfaces, shutters system (fixed or sliding), metal frame, suspended vegetation that provides a natural filter for the light. The general shape of the project – like a cascade – also refers to this idea of movement that it converges towards the courtyard, a central meeting place.

22
23 A PROJECT LOCATED IN A NARROW AND LONG PLOT 6m FACADE - Respecting the surrounding buildings’ lines Terrace Terrace Terrace Terrace Canteen Kitchen Outdoor courtyard Rehearsal studio Studio Studio Cafeteria Control room Backstage Stage B B A A Concert-hall Auditorium Main entrance Office Main communication shaft Cloakroom Technical & electrical room Instruments & fragile material storage Auditorium storage Secondary communication shaft A A Cross section B-B Ground & R-1 R+1 R+2 R+3 R+4 A PROJECT LOCATED IN A NARROW AND LONG PLOT 12,5m 55m 6m

DESSINS, EXPÉRIMENTATIONS, MODÉLISATIONS

COULEURS, ESPACES, LUMIÈRES, AMBIANCES

DRAWINGS, EXPERIMENTS, MODELINGS

COLORS, SPACES, LIGHTS, ATMOSPHERES

Color composition (gouache) 24

VARIATIONS DE COULEURS COLOR VARIATIONS

Digital color variations on an existing elevation (Photoshop) 25

DESSIN - CRAYON & ENCRE DE CHINE

DRAWING - PENCIL & CHINESE INK

26

CREUSER LA MASSE - MATIÈRE & LUMIÈRE DIGGING INTO THE MASS - MATTER & LIGHT

Synthetic plaster & cardboard 28

HOMEWORK #5 - STAIR&RAILING

HOMEWORK #5 - STAIR&RAILING

HOMEWORK #5 - STAIR&RAILING

MODÉLISATION 3D (ARCHICAD)

Mathieu Dranguet (YL98QB)

Mathieu Dranguet (YL98QB)

Mathieu Dranguet (YL98QB)

3D MODELING (ARCHICAD)

3 - ROOF&SHELL (YL98QB)
Shell structure
Modern house - variations of light
29
Stair & railing
(YL98QB) RAILING MATHIEU DRANGUET mathieu.dranguet@strasbourg.archi.fr mdranguet.normandie@gmail.com +33.7.86.97.57.87 CONCEPTION ©KOSEPT

Turn static files into dynamic content formats.

Create a flipbook
Issuu converts static files into: digital portfolios, online yearbooks, online catalogs, digital photo albums and more. Sign up and create your flipbook.