Mayra Palacios_Portafolio 2023

Page 1

PORTA FOLIO

MAYRA PALACIOS RIVERA

UNIVERSIDAD DE LIMA
2023
DE DISEÑO ARQUITECTÓNICO E
PORTAFOLIO
INTERIORES

C ONTENID O

PROYECTO INMOBILIARIO RESIDENCIAL MIANA

COWORKING REGATAS - DISEÑO DE INTERIORES

CENTRO DE ATENCION RESIDENCIAL PARA ANCIANOS EN PACHACAMAC - PROYECTO FINAL DE CARRERA

CASA VIVA - DISEÑO DE INTERIORES

LAS FLORES 105 - DISEÑO DE INTERIORES

ZONAS SOCIALES UPEU

0 1 0 2 0 3 0 4 0 5
0 6

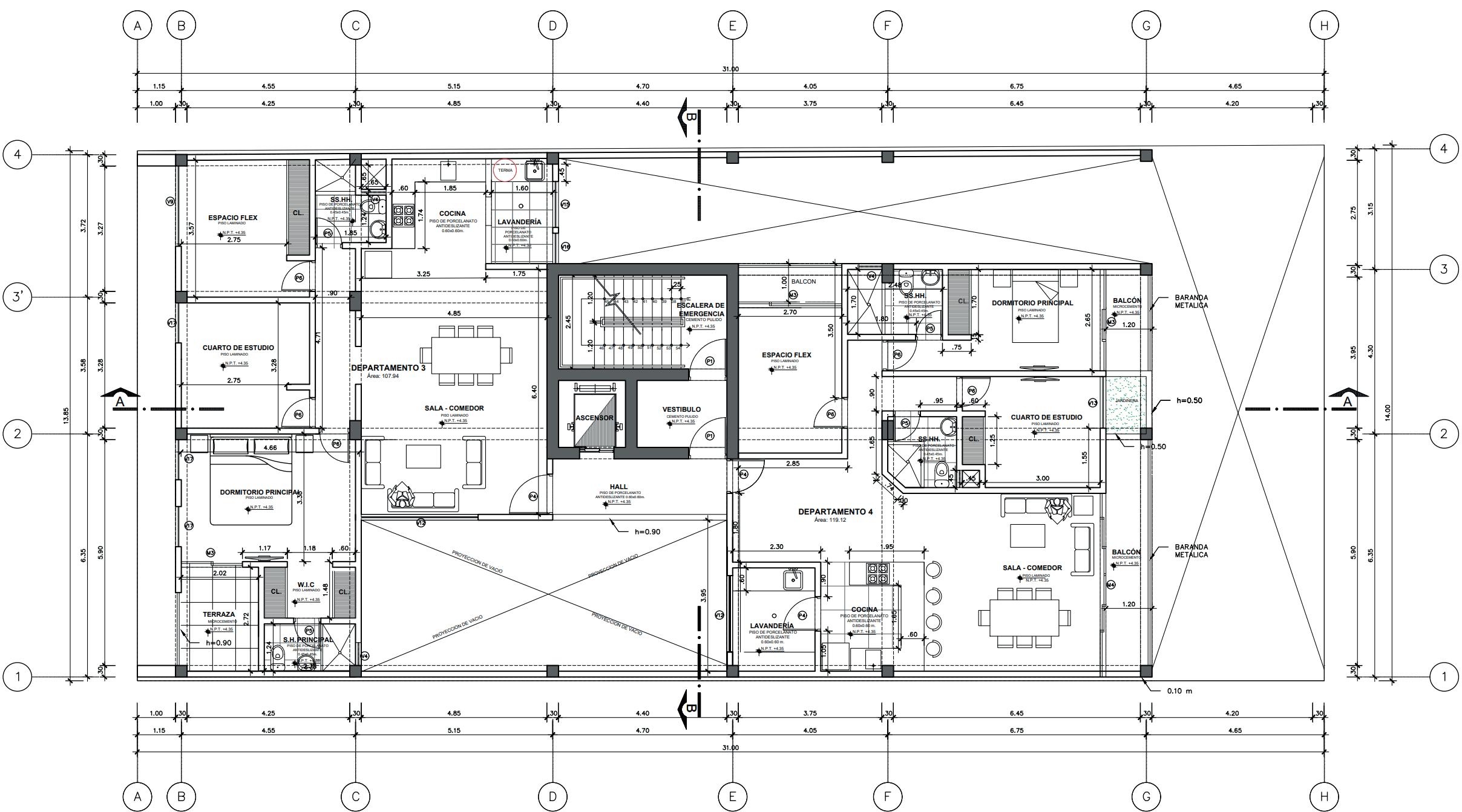
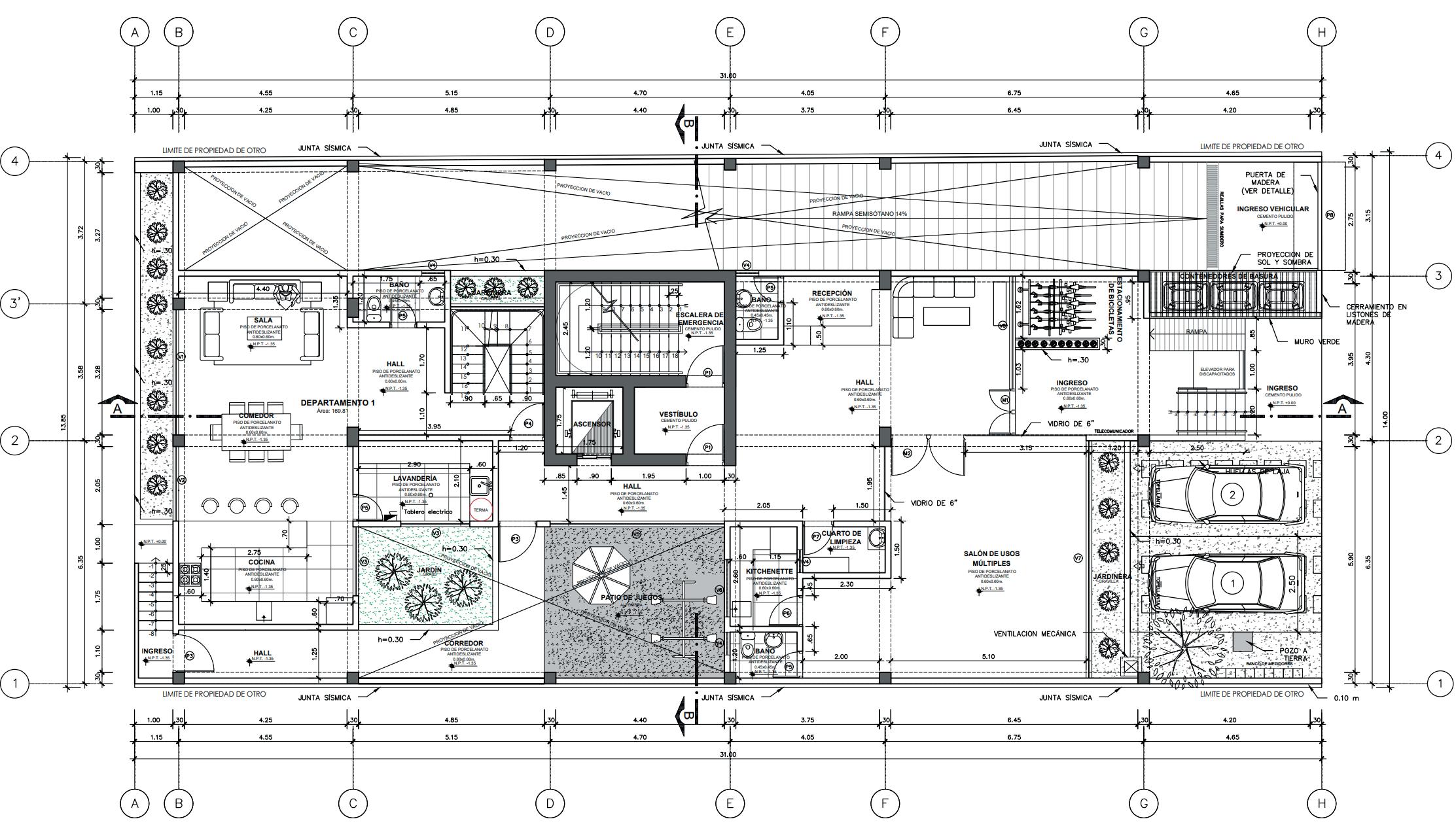
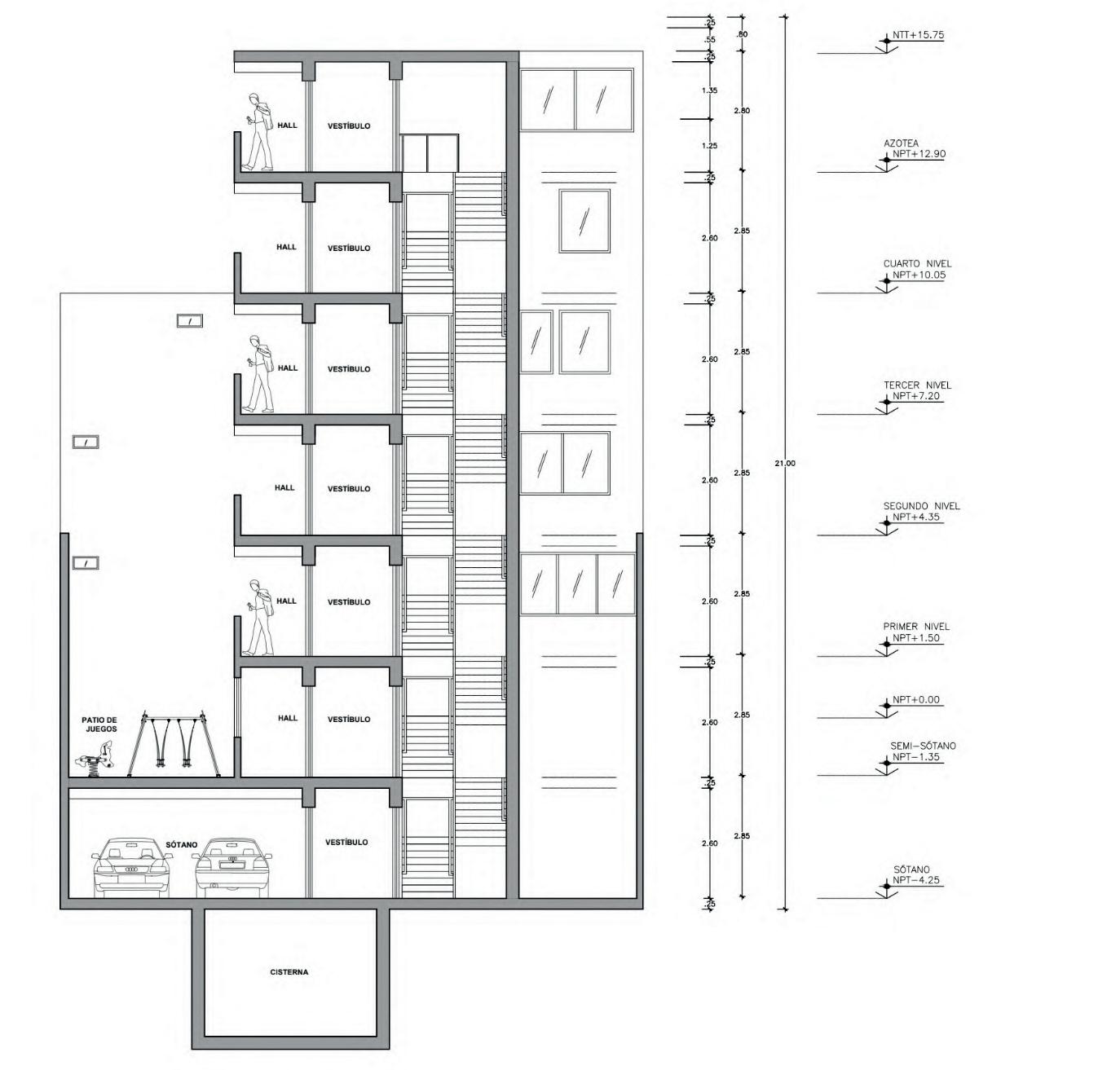
P r oy e c t o m u lti f a m ilia r de 2 f r e n t e s . F r e n t e po s t er io r hacia pa r q u e. Cue n ta c on un t o ta l de 7 depa r ta m e n t o s: 3 d u pl e x y 4 fl a t s .

R ealizado e m pleando M E T O D O L O G Í A B I M en e l p r og r ama REV I T. Se e s tu v o a ca r go de pa r t e de l dis e ño a r q u i t e c t oni c o, di s eño de i n t e rio r es , m odelado y r ende r i z ado. A de m á s de la cabida a r q u i t ec t ónica ini c ial .

01 EDIFICIO MULTIFAMILIAR MIANA Proyecto Multifamiliar Inmobiliario
ARE A TER RE NO : 1 773.33 m 2 A. C ON S TRUI D A : 434.00 m 2 DIR E C CIÓN : C A L LE MANUE L DE FE R YRE S AN TANDER 224 / 221 .
FACHADA POSTERIOR
PRINCIPAL
FACHADA

CORTE A-A

CORTE B-B

RECEPCIÓN SALA

SEMISOTANO-INGRESO

INGRESO
PLANTA 3
02 COWORKING
Proyecto Coworking ITP SAC UBI C A CIÓN : CHOR R IL L O S A. INTE R VENI D A : 6 69.00 m 2 NUE V O EDIFIC I O E N C L UB R E G ATA S ( 5T O PIS O ) P r oy e c t o pa r a Cl u b R eg a ta s r eali z ado e n I T P S A C. R eali z ado e mpleando M E T O D O L O G Í A BI M en e l p r og r ama REVI T. Se e st u v o a ca r go d e par t e de l dis e ño d e i n t e rio r es y dis e ño d e mobiliario .
REGATAS

COCINA COMEDOR BIBLIOTECA

SALA DE REUNIONES

LÚDICA SALA DE AUDIOVISUALES

SALA DE AUDIOVISUALES SALA LÚDICA
SALA SSHH SSHH

SALA DE LECTURA 01

SALA DE LECTURA 02

SALA DE LECTURA 03

SALA DE LECTURA

CABINAS DE REUNIONES

SALA DE REUNIONES

SALA DE LECTURA 3
OPENWORK

ARE A TER RE NO : 5000 m 2

A C ON S TRUI D A : 3500.00 m 2

DIR E C CIÓN : P A CH A C AM A C, LIMA, PER Ú

C.A.R.

PARA ANCIANOS

EN PACHACAMAC Proyecto Final de Carrera

P r oy ec t o de dos ni v ele s en e l distri t o de P achacamac. B u sca m odi fic a r la a r q u i t e ct u r a pa r a ada p tarse a l usuario y ha c e r pa r a és t e la t r an s ición a la institucionalización mu c ho mas ll e v ade r a y ha c e r de l p r oy ec t o, no solo un nu e v o hoga r , sino u na nu e v a dinami c a de vida

E l espacio c o m ún e x t erio r de l p r oy ec t o bu s ca f u nciona r c omo una e x t ención de cada una de las habita c iones y gene r a r especios i n t e r m e dios en t odo e l

p r oy ec t o.

03

ESPACIO INTERMEDIO

El proyecto propone el estacio intermedio como un area de transcision entre lo interior y exterior, para asi generar la sensación de estar entre naturaleza, dejando que esta invada el proyecto y al mismo tiempo sea una extensión de la residencia.

Para esto, se generan jardines internos, que exaltan la experiencia del recorrido del proyecto, de las areas sociales hacia las areas privadas, las habitaciones.

JARDÍN INTERNO
HUERTO

CORTE B-B

INGRESO

CASA VIVA

Diseño de interiores

Diseño de interiores a un departamento ocupado por una familia de 4 personas, se utilizó una paleta calida de naranjas, verdes y neutros con un diseño nordico con toques boho.

Ellos están conformados por cuatro integrantes: David, Elian, Yazmín y Cristian. Son alegres, llenos de mucha energía y buenas vibras. Les encanta los

que les encanta compartir tiempo con sus familias y amigos. A pesar de sus diferentes profesiones les une el mismo negocio ¨ diseño de muebles ¨ por lo cual consideran necesario tener un espacio de trabajo donde puedan recibir clientes y trabajar fuera del taller.

04
SALA COMEDOR
PRINCIPAL
COCINA BAÑO
DORMITORIO 1 DORMITORIO 01

ESTUDIO

BAÑO DE VISITAS

DORMITORIO 2

SALA-COMEDOR

05 LAS FLORES 105

Diseño de interiores

Proyecto de diseño de interiores para una familia de 4 integrantes en un diseño arquitectonico poco convencional. Se realizó el diseño de 4 espacios: tres habitaciones y una sala-comedor. La paleta de colores es cálida, principalmente con colores tierra.

DORMITORIO 1
DORMITORIO PRINCIPAL

UBI C A CIÓN : ÑAÑ A

A. INTE R VENI D A : -

C AMPUS UNIVERS I TARIO U P e U

El diseño sigue el concepto de la santísima trinidad. Se eligió emplear un lenguaje arquitec tónico orgánico verdes sin ser invasivo con ellas.

06 ZONAS SOCIALES UPEU Proyecto de exteriores

ITP SAC

P r oy e c t o pa r a la Up e r eali z ado e n I T P S A C.

P r oy e c t o de di s eño d mobiliario y e s pa c io e x t e rio r e s pa r a la Uni v e r s idad P e ru ana Unión. Soli c ita r on un di se ño g e n e r a l pa r a la e x t e n s a s a r ea s lib r e s qu po se e la u ni v er sidad en donde lo s alu m no s podían r eali z a r su s labo r a c adé m i c as y s o c iali z a r .

VISTA AÉREA

e U d e io s idad un la s qu e en podían e s

Turn static files into dynamic content formats.

Create a flipbook
Issuu converts static files into: digital portfolios, online yearbooks, online catalogs, digital photo albums and more. Sign up and create your flipbook.