East River | The Largest Mixed-Use Development in Houston

Page 1

OFFICE Guidebook The Largest Mixed-Use Development in Houston eastriveRhtx.com
Total Project Discover // Houston’s Largest Mixed-use Development 150 AC PHASE 1 office retail + Restaurant multifamily 21 AC 200K SF + 100K BUILD-TO-SUIT 100K SF 360 UNITS
DOWNTOWN I-69
BUFFALO BAYOU
1 - now open future phases I-10 2
Phase

East River’s amenity rich waterfront location, less than a mile from Houston’s urban core, sits conveniently along Clinton Drive providing direct access to the Port of Houston.

10 10 59 59 port of houston DOWNTOWN BUFFALO BAYOU NAVIGATIONBLVD HIRSCH RD CLINTON DR Adjacent to the ship channel + Downtown <1mi 5 mi LOCATION // 10 < 1 MILE George Bush Intl. Airport 59 < 1 MILE Minute Maid Park 3 mins 25 mins 45 < 1 MILE < 1 MILE DOWNTOWN
Port of Houston The Galleria 13 mins 21 mins 4
10 59 45 DOWNTOWN
1 MILE
1 MILE
1 MILE
MILE 6
right where you need to be <
<
<
< 1
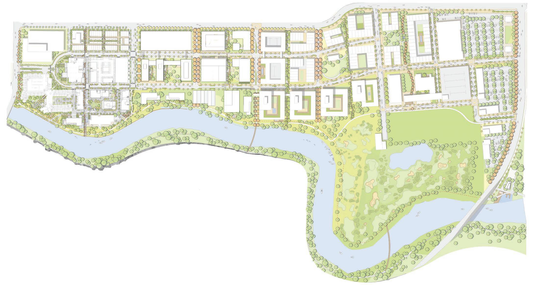
6,000 FT BUFFALO BAYOU jensen DRIVE FUTURE PHASES HIRSCH road CLINTON DRIVE downtown port of houston Navigation blvd + I-45 10 59 10 10 11,704 SF 42,000 SF FLOOR PLATE 9,750 SF FLOOR PLATE 15,000 SF FLOOR PLATE 6,185 SF 5,051 SF 22,000 SF FLOOR PLATE MU TIFAMILY 360 NITS TOTAL PROJECT 150 AC houston’s next big thing RETAIL (GROUND FLOOR) MULTIFAMILY OFFICE PHASE 1 26 AC GREENSPACE 3 AC 8
Subject to change RIVER PAVILIONS 12,000 SF RETAIL E M PARKING GARAGE 5 LEVELS 11,000 SF RETAIL G
M G E S THE LAURA 360 UNIT MULTIFAMILY 10,000 SF RETAIL M THE STUDIOS 10,000 SF OFFICE S 64,000 SF OFFICE 10,000 SF RETAIL 2 2 1 3 1 72,000 SF OFFICE 29,000 SF RETAIL 105,000 SF OFFICE 30,000 SF RETAIL 3 10
phase 1

PHASE 1 // COnstruction

PHOTOS AS Of september 2023 12

urban by nature

Buffalo Bayou Park hike + bike trail connection

Bordered by an impressive mile of waterfront

Connected to 500 miles of city bike lanes

3 acres of activated green space

14

Spend the Day At East River //

40
41 MORNING COMMUTE 6 AM Run or bike along Buffalo Bayou GET TO WORK 8 AM At the offices at East River COFFEE MEETING 9 AM Over lattes at a nearby coffee shop TEE TIME 5 PM Golf, Pickleball & skyline views at East River 9 DINNER 7 pM At one of East River’s signature restaurants LIVE MUSIC 8 pM Live music with friends – let the good times roll LUNCH NOON Grab a bite at Riverhouse Houston HEAD HOME 11 pM To your personal retreat at The Laura 16
lick honest ice creams LE TESSERAE BY the astorian tomi jewelry
RETAIL // tenant mix
broham fine soul food & groceries EADO EYE STUDIO
18
URBN DENTAL

east river 9 + riverhouse houston

East River 9 is Houston’s premier destination for recreation, dining, and entertainment, all within minutes from Phase 1. East River 9 is the only public, nine-hole, par-three golf course inside the 610 Loop, complete with stadium lights for evening play.

Anchoring the golf course is Riverhouse, a family-friendly restaurant and patio bar serving a scratch kitchen menu coupled with a well-rounded beer, wine, and spirits selection.

20

east river 1 // 1

With direct access to Buffalo Bayou Park trail system and unobstructed downtown views, this iconic building offers an experience unlike any other in Houston.

72K OFFICE RSF 29k RETAIL SF floor plan // 3 - 4 5 STORIES 24k FLOOR PLATE SF 22

With a front door address on the Central Plaza and direct garage access, these office spaces offer maximum convenience and a truly urban experience at the heart of Phase 1.

EAST RIVER 2 // 2 64K OFFICE RSF 10k RETAIL SF 5 STORIES 16k FLOOR PLATE SF
plan // 2 - 5 24
floor

east river 3 // 3

This modern interpretation of a turn of the century factory features one-of-a-kind truss pitched ceilings, plenty of daylight and downtown views.

105K OFFICE RSF 30k RETAIL SF
plan (2)
plan // 2 4 STORIES 35k FLOOR PLATE SF 26
floor
floor

the studios // s

The Studios at East River were created for businesses to own their own building and benefit from a Qualified Opportunity Zone.

floor plan // 1 2 STORIES 10k FLOOR PLATE SF MATERIAL ADA RESTRM 8'x8.5' ADA RESTRM 10'x8.5' UTILITY 5'-6"x8' STORAGE 5'-6"x8' KITCHEN ADA RESTRM ADA RESTRM 10'x8.5' UTILITY 6'x8'-8" STOR. 6'x8'-6" A 6.2 N E S W 6.1 N S W UP 5.1 5.1 SUITE A101 LEVEL 1 SUITE A201 LEVEL 1 OPEN OFFICE OPEN OFFICE UP KITCHEN OPEN OFFICE OPEN OFFICE 101 102 103 104 108 107 105 106 UP UP 4524 SQ. FT. 4524 SQ. FT. 28

forward focus

Supporting sustainability and wellness is at the core of our development strategy, and we're proud to partner with LEED Leadership in Energy and Environmental Design, WiredScore, the International WELL Building Institute, Teal’s iPlant, and more at East River.

iPlant
30
32
We create communities, not commodities.

MIXED USE

Integrated, comprehensive experience

EXPERIENCE

Unique, urban, natural, authentic public place

INNOVATION

Healthy, sustainable, flexible product

DIFFERENTIATION

Thoughtful, unique branded services

CONNECTIVITY

Multimodal, walkable, social community

DESIGN

Timeless quality

34

EastRiverHTX.com

Eric

Office Leasing
Siegrist 713.255.7847 |
Nebel 713.255.7828 |
ANOTHER SIDE OF HOUSTON
Amanda
EXPLORE

Turn static files into dynamic content formats.

Create a flipbook
Issuu converts static files into: digital portfolios, online yearbooks, online catalogs, digital photo albums and more. Sign up and create your flipbook.