Munson March/April 2024

Page 1

MAR | APR 2024 1 MUNSON BULLETIN BULLETIN MAR | APR 2024 GENESEE STREET LANDSCAPE PROJECT

Dear Munson Community,

BOARD OF TRUSTEES

F. X. Matt III, Chair

Christian Heilmann, Vice-Chair

Dietra Harvey, Secretary

Vige Barrie

Rev. Sharon Baugh

Dr. Steven J. Brown

William C. Craine

Emma Golden

David T. Griffith

Robert Knight

Betty Krulik

Mark Levitt

C. Sonia Martinez

Laura Tansey Wetzel

Richard Griffith, Trustee Emeritus

John B. Stetson, Trustee Emeritus

Anna T. D’Ambrosio, President and CEO

COVER

In this column, I often reflect on progress towards Munson’s Strategic Plan. Launching the plan in 2019 was the culmination of our centennial year. That summer, Utica solicited project proposals for the $10 million Downtown Revitalization Initiative (DRI) the city had been awarded by then-Governor Cuomo. The goal for the city was to transform spaces along the downtown Genesee Street corridor. The DRI request fit hand-in-glove with the community engagement goals established in Munson's Strategic Plan.

Standing on the Museum’s front steps, looking over our Genesee Street landscape and talking it through with my colleague Jill Maney, I saw an opportunity that was sparked by earlier conversations with community focus groups and Munson’s aspiration to help revitalize our neighborhood. Our “front lawn,” stretching from 324 Genesee Street to Cottage Place, could offer a vibrant, park-like setting, transforming what is now a tree-less, concrete-heavy, unwelcoming area to an inviting park-like landscape that is a welcoming southern entreé to downtown Utica. By beautifying Munson's front landscape, we hope to create an active location to be used by community organizations for festivals and for Munson public events and art installations, enlivening the neighborhood and enhancing the quality of life.

Over the last four years, and through the pandemic, Munson kept this vision moving forward. Working closely with landscape architects Sue and Zak Steele, our team has assisted with research, brainstorming, design reviews, materials and plant selection, and additional fundraising. It has been a thoughtful, creative, and rewarding process.

In the following pages, we share our vision and larger plans and along with you, I can’t wait to watch the project unfold this summer.

FILM SERIES

Enjoy new foreign, independent, and award-winning films each week.

Wednesdays and Fridays | 2 p.m. and 7:30 p.m.

Museum of Art | Sinnott Family – Bank of Utica Auditorium

$7 Members | $9 General Public

Discounted multi-film passes are available

The Film Series is generously sponsored by

Performing Arts Spring Weekend Sponsor Spotlight: 2 6 12
Architectural rendering of Genesee Street landscape project, courtesy of Sue Steele, Landscape Architecture LLC.

CALENDAR OF EVENTS

Artist-in-Residence Felipe López: Autopoiesis

Opening Reception

Friday, March 1, 3 to 5 p.m.

Museum of Art, Pratt Munson Gallery

Free

Art Story with Utica Public Library

Thursday, March 7, 10:30 a.m.

Museum of Art, Art Odyssey

Free

Quest for Light Collective

Pratt Munson Exhibition Opening

Thursday, March 7, 4 to 7 p.m.

The Westwood Gallery, 167 Genesee St., Utica, N.Y.

Free

The Met: Live in HD: La Forza del Destino by Giuseppe Verdi

Saturday, March 9, noon

Museum of Art, Sinnott Family – Bank of Utica Auditorium

$24 Members | $28 General Public | $15 Students

Concert in the Court: Socks in the Frying Pan Traditional Irish Music

Saturday, March 9, 7:30 p.m.

Museum of Art, Root Court

$23 Members | $28 General Public | $15 Students

Food and Art Unite

Sunday, March 10, noon to 3 p.m.

Museum of Art, Root Court

$20 Members | $25 General Public | $10 Children ages 6 to 12

Free for 5 and younger

Keyboard Conversations® with Jeffrey Siegel: Chopin and Liszt, Gorgeous Melodies and Exhilarating Virtuosity

Saturday, March 16, 2 p.m.

Museum of Art, Sinnott Family – Bank of Utica Auditorium

$23 Members | $28 General Public | $15 Students

Elizabeth R. Lemieux Faculty Lecture Series featuring Daniel Buckingham

Thursday, March 21, 11 a.m.

Museum of Art, Sinnott Family – Bank of Utica Auditorium

Free

The Met: Live in HD: Roméo et Juliette by Charles Gounod

Saturday, March 23, 12:55 p.m.

Museum of Art, Sinnott Family – Bank of Utica Auditorium

$24 Members | $28 General Public | $15 Students

Munson After Dark

Saturday, March 23, 9 p.m.

Museum of Art, Root Court

$15 Admission

Art Story with Utica Public Library

Thursday, April 4, 10:30 a.m.

Museum of Art, Art Odyssey

Free

Spring Weekend and Art in Bloom

Friday, April 5 to Sunday, April 7

Free for Members | $5 General Public

Pratt Munson First-Year Exhibition Opening Reception

Friday, April 5, 3 to 5 p.m.

Museum of Art, Pratt Munson Gallery

Free

Spring Weekend Special Performance: Tami Lee Hughes, The Legacy Show: Celebrating African-American Composers

Saturday, April 6, 7:30 p.m.

Museum of Art, Sinnott Family – Bank of Utica Auditorium $24 Members | $28 General Public | $15 Students

Pratt Munson Sophomore Exhibition Opening Reception

Saturday, April 12 , 1 to 4 p.m.

Museum of Art

Free

The Met: Live in HD: La Rondine by Giacomo Puccini

Saturday, April 20, 12:55 p.m.

Museum of Art, Sinnott Family – Bank of Utica Auditorium

$24 Members | $28 General Public | $15 Students

Art Alive! Family Days with The Secret Agency

Thursday, April 25, 10 a.m. to 2 p.m.

Hip Hop Performance, 11 a.m. | Hip Hop Workshop, 1 p.m.

Museum of Art

Free

Ongoing: Art and Yoga

Saturdays | 10:30 a.m. | Museum of Art

Drop-in Fee per Class: $10 Members | $ 15 General Public

MAR | APR 2024 1 MUNSON BULLETIN
Art in Bloom, Friday, April 5 to Sunday, April 7

PERFORMING ARTS

COMING UP

KEYBOARD CONVERSATIONS ®

WITH JEFFREY SIEGEL: THREE GREAT ROMANTICS: TCHAIKOVSKY, BRAHMS, AND GRIEG

Saturday, May 4, 7:30 p.m.

Funding for Keyboard Conversations is provided by Dr. Lorna Grant, Dr. Douglas Hurd, and Dr. Cynthia Parlato-Hurd.

The Met: Live in HD La Forza by Giuseppe Verdi

Saturday, March 9 | noon

The Met: Live in HD Roméo et Juliette by Charles Gounod

Saturday, March 23 | 12:55 p.m.

The Met: Live in HD La Rondine by Giacomo Puccini

Saturday, April 20 | 12:55 p.m.

Museum of Art | Sinnott Family – Bank of Utica Auditorium

$24 Members | $28 General Public | $15 Students

The Met: Live in HD is sponsored at Munson by Elizabeth R. Lemieux, Ph.D.

Concert in the Court: Socks in the Frying Pan

Saturday, March 9 | 7:30 p.m.

Museum of Art | Root Court

Traditional Irish melodies inbued with a modern flair arrive in time for St. Patrick's Day at the Concert in the Court. Hailing from County Clare, the group's dynamic vocal harmonies, virtuosic musical ability and their onstage wit has captivated audiences around the world.

$23 Members | $28 General Public | $15 Students

Concerts in the Court series is sponsored by PJ Green, Inc.

Art Alive! Family Day with The Secret Agency

Thursday, April 25

10 a.m. to 2 p.m. – Crafts | Root Court

11 a.m. – Performance | Sinnott Family – Bank of Utica Auditorium

1 p.m. – Songwriting Workshop | Sinnott Family – Bank of Utica Auditorium

Secret Agent 23 Skidoo is a Grammy-winning, internationally touring, purple-velvet-tuxedo-wearing family funk phenomenon. Combining the positive, primal power of hip-hop with the surreal storytelling of science fiction. If you can imagine if Dr. Seuss and Dr. Dre had a baby, it would be the music of Secret Agent 23 Skidoo Nuff said.

Free

Funding for Art Alive! is provided by the MetLife Foundation, and by Rona Lucas, in memory of Roslyn and Irving Levine.

THE MET: LIVE IN HD MADAME BUTTERFLY

Saturday, May 11, 12:55 p.m.

The Met: Live in HD is sponsored at Munson by Elizabeth R. Lemieux, Ph.D.

CONCERT IN THE COURT: DIRTY DOZEN BRASS BAND

Saturday, May 18, 7:30 p.m.

Concerts in the Court Series is sponsored by PJ Green, Inc.

2
Roméo et Juliette

EXHIBITIONS ON VIEW

MUSEUM OF ART

Between Worlds: Stories of Artists and Migration Through May 5

Powerful artworks offer new perspectives on migration stories from artists working in the United States who have immigrated from other countries, experienced the Great Migration, or whose African or Indigenous ancestors were forced to move from their homelands.

Sponsored by Christian and Cheryl Heilmann, Elizabeth R. Lemieux, Ph.D., and the Family of F. X. Matt II

Jaune Quick-to-See Smith (Cree/Shoshone, born 1940). Black Rock Mesa, 1989. Color lithograph on paper. 30 x 22 1/8 in. Museum purchase. 92.20

Last Chance to See Rothko Through early April

On view in the Cardamone Gallery is a monumental early painting, Untitled, 1954, by Mark Rothko, one of the most influential and renowned artists of the 20th century, on loan from the artist’s son, Christopher Rothko.

Untitled, 1954. Mark Rothko (American,born Latvia, 1903- 1970). Oil on canvas. 91 1/8 x 59 1/2 inches. Collection of Christopher Rothko. Copyright © 1998 by Kate Rothko Prizel and Christopher Rothko.

Pratt Munson Sophomore Exhibition

April 12 to May 8

Opening Reception: Saturday, April 13, 1 to 4 p.m.

Museum of Art | Free

This curated multimedia showcase at the Museum of Art highlights the culmination of two years on the Utica campus before Pratt Munson students move to the main campus in Brooklyn in the fall.

American Landscapes from the New-York Historical Society

June 14 to Sept. 22

The resplendent vistas of the Hudson River and Catskill, Adirondack, and White mountains come alive in this summer's blockbuster exhibition, featuring the artists who were known as the Hudson River School for their shared exploration of our region’s natural spaces.

Sponsored by Christian and Cheryl Heilmann, Elizabeth R. Lemieux, Ph.D., the Family of F. X. Matt II, Beverly Tobin, in memory of Edwin J. Tobin, Joseph A. Abraham, John Brown, Coldwell Banker Faith Properties, Ricky and Leiter Doolittle, M.J. and Colleen Gaetano, Cheryl and Fred Haritatos, Laura and Todd Wetzel M.D.

MAR | APR 2024 1 MUNSON BULLETIN 3
COMING UP Albert Bierstadt (1830-1902). Autumn Woods, 1886. Oil on linen. 54 x 84 in. New-York Historical Society, Gift of Mrs. Albert Bierstadt, 1910.11

ON VIEW

Artist-in-Residence Felipe López: Autopoiesis

March 1 to 28

Opening Reception: Friday, March 1, 3 to 5 p.m.

Open to the public and wheelchair accessible.

Trained as a traditional painter and draftsman, López explores subjects such as the nostalgia of images and everyday life, depicting scenarios and human figures as well as the structures of power around us through the images of monuments.

Pratt Munson First-Year Student Exhibition

April 5 to 28

Opening Reception: Friday, April 5, 3 to 5 p.m. (during Spring Weekend)

Open to the public and wheelchair accessible.

Celebrate the outstanding accomplishments of Pratt Munson’s first-year students in a curated, multimedia exhibition of their work.

Pratt Munson

COLLECTION REINSTALLED

Galleries throughout Munson will soon highlight American landscapes from our 19th-century collections. This summer, an extraordinary group of landscape paintings will come to us from the New-York Historical Society, including Louisa Davis Minot’s spectacular Niagara Falls (1818) and Robert Duncanson’s enchanting views of the Italian countryside (1861).

Mary Murray and I plan to complement these old friends and new guests with paintings, sculpture, drawings, and prints of New York landscapes from Munson’s collection. While the other exhibitions draw almost exclusively from the 19th-century, our joint exhibition in 1 West Gallery will include art made up to the present day.

At first, it may seem unusual to look at David Johnson’s Brook Study at Warwick, New York (1873) and Richard Long’s Half Moon (2015) together, but I think the works gain meaning from each other. Helen Munson Williams bought Johnson’s painting when critics considered realistic depictions of “untouched” nature both characteristically American and the height of artistic achievement. In contrast, Long’s Half Moon doesn’t pretend to be nature, but rather is nature—actual rock quarried in New York State. Many artists working from the 1970s have thought it more exciting to use the landscape rather than to copy a view on paper or canvas.

Johnson’s attention to detail and Long’s careful stone geometry come into focus better when displayed together. The earthy reds of the painting feel truer, and Long’s sculpture feels more sculptural, taking up space and making you step around it, just as Johnson’s rocky outcrop would have required effort to climb.

One of Munson’s greatest strengths is its ability to encompass American art made in such distinct times, styles, and mediums that nonetheless fit together.

of American Art

4
Gallery in Fountain Elms and the Museum of Art are wheelchair-accessible. Felipe López. Consagrado a la memoria. 150 handmade bleached hemp paper pedestals, bronze cast pedestals, red clay slip on a wooden platform, Dimensions variable. 2023. Richard Long (British, born 1945) Half Moon, 2015. Red slate quarried in Granville, New York. 21 1/2 × 196 7/8 × 98 1/2 in. Museum Purchase 2018.12 Gelina Liu, Pratt Munson First-Year student

CURATOR'S CORNER

ART BRIDGES FOUNDATION

Between Worlds: Stories of Artists and Migration is the final collectionsharing exhibition sponsored by Art Bridges Foundation in partnership with the Museum of Fine Arts, Boston (MFA). Munson is one of only four institutitions selected for this program that pairs the MFA with smaller museums in the northeast. Important benefits have been the introduction of artists who have not been shown at the Munson Museum of Art before and the collaboration of colleagues from other institutions.

A previous Art Bridges exhibition in 2022 featured paintings and works on paper by Allan Rohan Crite (American, 1910–2007), a Bostonbased, African American artist who expressed the spiritual values of his community through religious subjects as well as scenes of everyday life. Munson’s African American Community Partners (AACP), an advisory committee of engaged local residents who share invaluable insights with Munson staff on important issues, was established to advise on the Crite show and remains an important legacy of the Art Bridges collaboration.

For Between Worlds, Munson has partnered with the Mattatuck Museum in Waterbury, Conn., as well as the MFA in Boston. The curatorial team decided on a theme of migration, a pressing issue in contemporary art and life for both Utica and Waterbury, two cities which have been home to generations of immigrants and continue to welcome new families from abroad. Munson is especially pleased to present Between Worlds to Utica’s refugee population, for whom the exhibition’s themes of displacement and new beginnings may resonate. This convergence of art and life will be particularly evident when English as a second language classes from The Center, Utica’s refugee organization, meet in the Museum of Art to practice speaking English.

Murray, Curator of Modern and Contemporary Art

PAST ART BRIDGES EXHIBITIONS AT MUNSON

Mysterious, Marvelous, Malevolent: The Art of Elihu Vedder April 5 to Dec. 29, 2019

Elihu Vedder, The Questioner of the Sphinx, 1863. Oil on canvas, 36 x 42 in. Bequest of Mrs. Martin Brimmer, 06.2430 Courtesy, Museum Fine Arts, Boston Reproduced with permission.© 2019 Museum of Fine Arts, Boston. All rights reserved

Unchained Allan Rohan Crite: Spirituality and Black Activism Feb. 20 to May 8, 2022

Rohan

MAR | APR 2024 1 MUNSON BULLETIN
Melvin Edwards (American, born 1937). Premonitions, 2007. Screenprint on paper. 23 3/4 x 17 3/4 in. Museum purchase, Mattatuck Museum. 2021.32. Allan Crite, (1910–2007), Cambridge, Sunday Morning, 1939. Boston Athenaum, Gift of the Artist.
5

CELEBRATING SPRING WEEKEND

Munson is celebrating spring with a weekend full of activities, including the popular Art in Bloom exhibition showcasing local floral designers’ creations inspired by works in the Museum of Art.

Art in Bloom

April 5 to 7, Museum of Art

Free to Members | $5 General Public

Art in Bloom presents vibrant, locally-produced floral creations inspired by works of art in the Museum of Art’s collection in a juried exhibition—including People’s Choice—of designs by regional florists, design professionals, artists, and garden club members.

Guided Tours: 1 p.m. Friday, Saturday, and Sunday

Pop-up Shop: All weekend

Closing Reception and Awards Presentation: 3 p.m. Sunday

Hours: Friday, April 5, from 10 a.m. to 7 p.m.; Saturday, 10 a.m. to 5 p.m.; Sunday, noon to 5 p.m.

APRIL 5 TO 7

The weekend includes floral workshops, demonstrations, high tea at the Terrace Café, a closing reception, and a multimedia celebration of African American history and culture through the arts, featuring music by prolific African American composers, poetry, and visual media with classical violinist Tami Lee Hughes.

6

Workshops and Demos

Free with Art in Bloom admission, unless otherwise noted.

Imperfectly Perfect: How to Garden in Impossible Places

Friday, April 5, 11 a.m.

Garden Designer and Consultant Christine Froehlich will share the process of identifying the limitations of a site, working with it, and choosing the appropriate plants.

Floral Design with Art in Bloom Designer Nat Levin

Friday, April 5, 2 p.m.

Nat Levin will teach students to make a lush and layered centerpiece-style arrangement to take home, using a wide variety of available early spring flowers from a local wholesaler.

$66 Members | $76 General Public (price includes Art in Bloom admission and materials)

Embroidered Floral Cup Cozy

Saturday, April 6, 1 to 3 p.m.

In this class for all skill levels, Lauren Weber of Garden Girl Studio will teach students three versatile stitches to embellish their floral cup cozy.

$40 Members | $50 General Public (price includes Art in Bloom admission and materials)

Needle Felted Spring Wildflower Meadow

Saturday, April 6, 1 to 3 p.m.

Create a felted wildflower meadow out of wool framed in an embroidery hoop with Erin Gardner of Grey Fox Felting. In this beginner-friendly workshop, learn the basics of needle felting onto a two-dimensional surface. For ages 10 and older.

$50 Members | $60 General Public (price includes Art in Bloom admission and materials)

Visible Studio Workshops

Saturday, April 6, 1 to 3 p.m.

Visitors are invited to observe two studio art workshops.

Floral Arranging Demonstration

Sunday, April 7, 2:30 p.m.

Art in Bloom Designer Tracy Wilkinson will create a floral piece to be given away during the closing reception.

Performances

Tami Lee Hughes, The Legacy Show: Celebrating African-American Composers

Saturday, April 6, 7:30 p.m.

Museum of Art | Sinnott Family – Bank of Utica Auditorium

The Legacy Show is a multimedia celebration of African American history and culture through the arts. The program features violinist Tami Lee Hughes performing classical music infused with blues, jazz, gospel, spirituals, and hiphop alongside a stellar cast of classical and jazz artists. Portraying musical and cultural themes of the Antebellum Period, the Harlem Renaissance, the Civil Rights era, and modern times, The Legacy Show also includes poetry by such writers as Langston Hughes and Maya Angelou as well as visual media representing significant facets of African American culture.

$20 Members | $25 General Public | $10 Student

Sponsored by Natalie L. Brown, LLC

Other Highlights

High Tea at the Terrace Café

Friday, April 5, and Saturday, April 6, 2 to 4 p.m.

Sunday, April 7, noon to 3 p.m.

Reservations can be made by calling (315) 768-7037. Terrace Café will also open for lunch Friday and Saturday.

Pratt Munson First-Year Exhibition Opening Reception

Friday, April 5, 3 to 5 p.m.

Museum of Art | Pratt Munson Gallery

Celebrate the outstanding accomplishments of Pratt Munson’s first-year students in a curated, multimedia exhibition of their work.

MAR | APR 2024 1 MUNSON BULLETIN 7

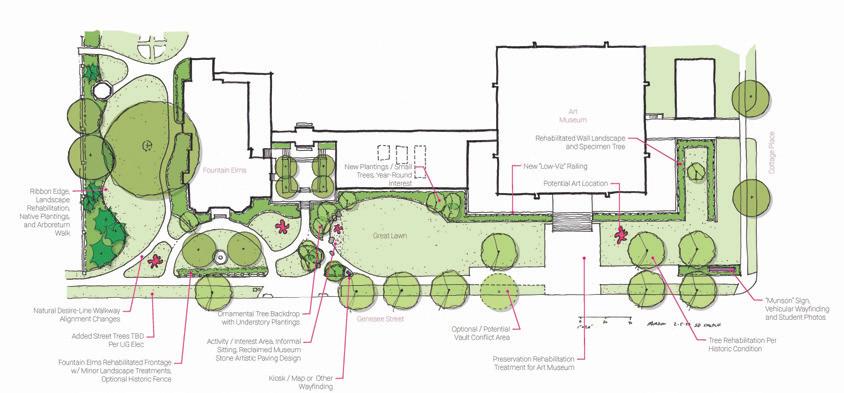
TRANSFORMING MUNSON’S GENESEE STREET LANDSCAPE

This spring, Munson will break ground on the Genesee Street Green Space and Accessibility Project to create an inviting update to Munson’s stretch of Utica’s unofficial Main Street from 324 Genesee Street to Cottage Place.

“We have the largest expanse of green space along Genesee Street and saw an opportunity to create a welcoming, garden-like location near Oneida Square as well as future opportunities to enliven it for the community,” said President and CEO Anna D’Ambrosio.

This year’s construction is the culmination of years of planning that began with the project receiving one of the largest distributions from Utica’s Downtown Revitalization Initiative (DRI) grant from New York State.

Munson’s DRI grant of more than $800,000 supports the creation of a 49,000-square-foot public-access contemporary park and community space as well as essential work on Munson’s landmark buildings that anchor the green space – Fountain Elms (1850) and the Philip Johnson-designed Museum of Art (1960), both on the State and National Registers of Historic Places.

Sue Steele Landscape Architecture LLC has designed a stunning, functional plan that emphasizes a positive impact on the natural environment and personal wellness. The

Rochester-based design firm has added features such as a curving granite bench for visitors to rest and a variety of native trees and plants to build resistance to natural calamities like Dutch Elm Disease, which wiped out the elm trees that once lined Genesee Street.

CREATING AN ACCESSIBLE ENTRANCE

With additional support from private donors and foundations, Munson will also bring to fruition its vision for a fully accessible Genesee Street entrance to the Museum. The steps to an underused plaza at the Genesee Street entrance adjacent to Fountain Elms will be transformed into a beautiful paved, fully ADA accessible garden path leading to a welcoming plaza with tables and chairs for public use and private events.

“Right now you have to journey around the block for an accessible entrance. Transforming the sunken garden across from Kaepernick Park into an attractive, inviting, and level entrance will not only allow easy access to the Museum and amenities but also help forge even more connections with the community and events like the Levitt Amp summer concerts and Munson’s annual Arts Festival,” D’Ambrosio observed.

RETURN TO ORIGINAL DESIGN

Another aspect of the Genesee Street Project is recapturing an important original visual aspect of the Museum of Art. The Museum’s ground floor exterior wall is floor-to-ceiling glass. Architect Philip Johnson’s vision was for the granite building to appear almost as though it is floating above the ground. That effect was lost decades ago when a chain-link fence and hedge row were installed at the Museum’s front facade as a security precaution around the 10-foot “dry moat” that wraps the building at the Genesee Street entrance.

With advances in technology and design, and thanks to the generosity of The Gilbert and Ildiko Butler Family Foundation, the current fence and hedge will be replaced with a clear, lowvisibility railing that will serve the same security function while allowing viewers to experience the full vision of the Museum building’s renowned architect.

The new landscape will also welcome the reinstallation of the Museum’s important sculpture Three Arches (1963) by Alexander Calder, the celebrated modern artist whose work is in permanent collections around the world, including the Whitney, the Guggenheim, MoMA, the Centre Pompidou in Paris, and nearby in Albany’s Rockefeller Empire State Plaza Art Collection.

WHAT TO EXPECT

Construction on the Genesee Street Green Space and Accessibility Project will begin this spring with an estimated completion in late fall.

One of the biggest shifts while the project is underway will be the relocation of the Arts Festival Sidewalk Art Show (July 13 to 21), which will move inside to the Museum of Art Root Court, with artwork from local artists rubbing shoulders with Hudson River masterpieces represented in our summer exhibition, American Landscapes. Other Arts Festival favorites, such as the Munson Car Show and Big Prints Steamrollin’ Invitational, will continue to be held on the State Street side of Munson.

While the Genesee Street Project has earned a considerable amount of funding from grants and donations, additional major sponsors are being sought for naming opportunities and other aspects of the project.

WHAT THESE UPDATES MEAN

Munson anticipates that the Genesee Street Project will increase safety and walkability and create an inviting gateway to downtown Utica with programming in collaboration with local partners like festivals, block parties, light shows, art demonstrations and installations, pop-up events, and free public performances.

“The Genesee Street Project is another way Munson can continue to be a welcoming, inspiring space for residents and visitors to Utica,” D’Ambrosio said. “We’re excited to enhance a green space that will encourage even more experiences that bring our community together.”

1 MUNSON BULLETIN
Images: Renderings of landscape project courtesy of Sue Steele, Landscape Architecture LLC.

SPONSOR SPOTLIGHT

METLIFE FOUNDATION

Finding the right program partners can make a world of difference. For Munson, one important partner in recent years has been the MetLife Foundation. MetLife shares Munson’s commitment to our upstate community, and their underwriting support has enabled some excellent programs and physical enhancements, including:

Funding to make summer studio art instruction for kids free of charge for summers of 2023 and 2024

Sponsorship of Munson’s summer Arts Festival in 2022 and 2023

Funding to create a new Sidewalk Art Show display that can be adapted to a number of situations, including more artwork into a smaller footprint, under the protection of a tent

Munson is dedicated to making everyone in our community feel welcome and to removing barriers to participating in programs. Partners like MetLife are vital to accomplishing those objectives.

ACCESSIBILITY UPGRADES AT MUNSON

With financial support from MetLife Foundation, Munson has made some significant improvements that make access to our facilities easier, particularly for visitors in wheelchairs:

Automatic door openers have been installed at our Museum of Art parking lot entrance. Just press the blue button and roll through!

A wheelchair lift is in place in the Pratt Munson gallery, allowing access for the first time to visitors with mobility issues. Try it out when you come to Artistin-Residence Felipe López’s exhibition opening March 1.

More improvements are planned:

Upgrades to restrooms in the Museum of Art building, with new hands-free fixtures, improved layout, and updated lighting and ventilation

Part of the Genesee Street Green Space and Accessibility Project, a new universally accessible point of entry will be created to the Milton Bloch Museum Education Wing corridor from Genesee Street. The project includes beautiful landscaping, a plaza in our “sunken garden,” and a ramp leading from Genesee Street to the Museum entry near Fountain Elms.

8 10

COMMUNITY ARTS

CALL FOR APPLICATIONS

ARTIST-IN-RESIDENCE PROGRAM 2024–25

Munson is accepting applicants for the 2024–25 Artist-in-Residence in drawing/ painting with a deadline of March 25.

Munson’s Artist-in-Residence (AIR) program is an education-based residency that allows one artist to live, work, and teach on the Munson and Pratt Munson College of Art and Design campus for one academic year.

The AIR program is designed for emerging artists or recent visual arts MFA graduates interested in working in art education in community arts and college curricula while receiving support to develop a vibrant, self-directed studio practice.

Programming includes presenting a public lecture, teaching Community Arts education classes, holding a public open studio event, and designing and implementing accessible community projects with various departments on campus. Artists receive financial support, housing, meals, studio space, and an exhibition in the Museum of Art.

Munson’s Artist-in-Residence Program is made possible with the generous support of Sunithi S. Bajekal. For more information, visit munson.art or contact Community Arts and Residency Director Audrey Taylor at ataylor@munson.art.

SECOND SESSION SPRING COMMUNITY ARTS CLASS HIGHLIGHTS

Munson is starting the second session of Spring Community Arts classes in March, with options ranging from one-day workshops to multi-week courses. For full descriptions of offerings, visit munson.art.

WORKSHOPS

WEEKEND WORKSHOP: WE WELD!

Saturdays and Sundays, March 16 to 24 9 a.m. to 4 p.m.

LIFE-SIZE FIGURE DRAWING

Sunday, March 31 10 a.m. to 4 p.m.

ECO-DYEING FABRIC

Saturday, April 20 9 a.m. to 3 p.m.

WEEKLY CLASSES

CERAMICS

March 20 to April 24

to 9 p.m. FIGURE DRAWING Wednesdays, March 20 to April 10

to 9 p.m.

THE STAGE IS YOURS: INTRO TO STAGED ENVIRONMENT

Thursdays, March 21 to April 25

REGISTRATION OPEN

munson.art/communityarts 315-797-8260

communityclasses@munson.art

INTRO TO RELIEF PRINTMAKING

Thursdays, March 21 to April 25 6 to 9 p.m.

HANDMADE PAPER

Tuesdays, March 26 to April 16 5:30 to 8:30 p.m.

Need-based scholarships covering partial or full tuition are available for all ages.

1 MUNSON BULLETIN
9
11
SALT-FIRED
Wednesdays,
6
6
PHOTOGRAPHY
6 to 9 p.m.
Top to bottom: Current and past artists-in-residence, Felipe López, Dehmie Dehmlow, and Amy Bruning

PRATT MUNSON SPOTLIGHT

JARED DIAZ

Jared Diaz (he/they, Pratt Munson ’14) didn’t start their artistic career with a focus on murals but found their way to it during the Black Lives Matter protests.

“During the 2020 protests, I saw it as a way to really have a civic contribution,” Diaz said. “And it felt like a civic duty to utilize that medium at a time when people were trying to make statements all around the country.”

Diaz feels passionatly that mural art is attractive and engaging, and a way to put stories out for people to interact with in their daily lives. To him, murals can exist in spaces that aren’t private or privatized.

“[I] have just since found new places and occasions and causes where mural art becomes a really helpful vehicle to either make a statement or send a message by, to, or for a group of people and to represent ideas or stories that might not otherwise have a platform or a platform at scale,” they said.

While at Pratt Munson (then PrattMWP), Diaz learned about fundamental ideas at a larger scale. Much of their time in Utica was spent in the formal training of their skills; while at the Pratt Institute in Brooklyn, they were able to delve more into the meaning behind their work.

NEW PRATT MUNSON MURAL ONE WORLD GARDEN

Jared Diaz has been comissioned to create a new mural on Munson's campus reflecting the theme "One World Garden". They have been meeting with community leaders, neighborshood partners, Pratt Munson students, and Munson members for open discussions about concepts and design. Work on the mural will begin in the spring.

“With the understanding that Utica represents a vast range of people from diverse and multicultural backgrounds, this project does not aim to create a broad or simplified vision of the community. Instead, this large format mural has room for individual contributions to shine,” Diaz says.

The mural is made possible by Munson and Rust2Green, a Utica-based community-university partnership focused on placemaking projects. The location of the mural is 324 Genesee Street.

Diaz is the president and founder of Open Air Projects, a nonprofit organization focused on public art, which will result in a mural on the Pratt Munson campus.

“Being able to work back at this institution is a really exciting opportunity to show some folks what you can do with this medium and potentially demonstrate some ways of working collaboratively that might inspire folks,” Diaz said.

When they were a student, Diaz said they didn’t see many examples of civically engaging work informed by community participation or addressed communal needs and social issues. The mural at Munson will inspire the next generation of artists.

“I never really aspired to be a muralist until years after I graduated and I saw a time I had something to say then realized that I had something to say it with,” Diaz said. “So given this representation early on, there might be somebody who realizes sooner than I did that this might be a medium through which they want to speak.”

I am Speaking , photo by Quajay Donnell
12

QUEST FOR LIGHT COLLECTIVE AT THE WESTWOOD

March 7–28

The Westwood Gallery 167 Genesee St., Utica, NY

PRATT MUNSON STUDENTS EARN GRAPHIC DESIGN RECOGNITION

Pratt Munson College of Art and Design is proud to announce the outstanding achievements of its students in the 2023 GDUSA American Graphic Design Awards. Under the mentorship of Professors Cindy Buckley Koren and Leah McDonald, the following students from Pratt Munson (‘23) clinched prestigious awards in typographic and brand design: Xiyona Gosain, Xinaro Perez, Renata Dominguez, Lydia Allende, Jonathan Lin, and Isabela Tellez. These students are now in their junior year on Pratt Institute’s main campus in Brooklyn, NY.

1 MUNSON BULLETIN
13
Pratt Munson students and alumni to present light art at downtown Utica gallery. Quest for Light Collective is funded by the Munson Board of Trustees Staff Innovation Fund. GEO Typeface Designer, Jonathan Lin
Aleko Art Toy Designer, Lydia Allende partnership with 4 Elements Studios
In
Meet the Comets Night School Tours
MUNSON WINTER EVENTS AT A GLANCE
Half Moon Orchestra: Classical Holiday Concert February First Friday Utica Chamber Canvas and Commerce Business after Hours hosted at Munson Art Alive! Family Day with Jack Frost: Snow Kidding
14
Art Educators Night at Pratt Munson Pratt Munson Gallery: Riisa Gundesen

FOOD + ART UNITE

Celebrate the rich global palette and cultural cuisine enjoyed in Utica at a food tasting and multicultural event at Munson. Sample dishes from area restaurants and enjoy music and live performances at this event for all ages.

Food and Art Unite complements the thought-provoking exhibition Between Worlds: Stories of Artists and Migration (on view through May 5).

Sponsored by partners:

PARTICIPATING RESTAURANTS

Los Amigos (Mexican)

Five Points Public House (Irish)

Stathis (Greek)

Mr. Buzz Bakery (Jamaican)

Paco’s Empanadas (Puerto Rican)

Ecuamex (Ecuadorian)

Angie Ferguson (Haudenosaunee)

Karma (Asian Fusion)

Anthony Amodio Catering (Italian)

Zeina’s Cafe and Catering (Lebanese)

Marib’s Restaurant (Yemen)

Joey’s @307 (Italian)

Mi Casa (Dominican)

Vivid Café (Bosnian)

Where: Munson Museum of Art 310 Genesee St., Utica, NY

Admission: $20 Members

$25 General Public

$10 Children ages 6 to 12

FREE under 5

Tickets available on munson.art

MAR | APR 2024
TERRACE CAFÉ BY O'CONNOR'S Lunch Tues. to Sat., 11
to 3 p.m. Sandwiches
Desserts Reservations
a.m.
| Salads |
are welcome 315-797-0000 ext. 2212
SUNDAY,
AT MUNSON
MARCH 10 | NOON TO 3PM
Reopening mid-March!

AMERICAN LANDSCAPES

FROM THE NEW-YORK HISTORICAL SOCIETY

June 14 to Sept. 22 | Museum of Art

The resplendent vistas of the Hudson River and Catskill, Adirondack, and White mountains come alive in American Landscapes from the New-York Historical Society. Investigate the ties that bound the 19th-century artists who came to be known as the Hudson River School for their shared exploration of our region’s natural spaces.

Sponsored by Christian and Cheryl Heilmann, Elizabeth R. Lemieux, Ph.D., the Family of F. X. Matt II, Beverly Tobin, in memory of Edwin J. Tobin, Joseph A. Abraham, John Brown, Coldwell Banker Faith Properties, Ricky and Leiter Doolittle, M.J. and Colleen Gaetano, Cheryl and Fred Haritatos, Laura and Todd Wetzel M.D.

SATURDAY, JULY 13, TO SUNDAY, JULY 21

Car Show and Fountain Elms

Invitational: Saturday, July 13

WE’RE BRINGING IT INSIDE!

The upcoming Genesee Street Green Space and Accessibility Project will temporarily impact the use of outdoor space along Genesee Street. Therefore, this year the Sidewalk Art Show will be on view inside the Museum of Art in the Root Court. All activities will take place inside the Museum, outside in the Sculpture Grove, or in the State Street parking lot.

(Read more about the project on p. 8-9.)

16
Walter M. Oddie, Erie Canal and Covered Bridge, 1847. Oil on canvas, 31 x 45 x 1 in. Collection of the New-York Historical Society, Purchase, Thomas Jefferson Bryan Fund, 1981.10.

MUNSON AFTER DARK

Music | Dancing | Drinks

$15 General Admission | munson.art/afterdark

INFORMATION AND HOURS

Museum of Art including Fountain Elms

Tuesday to Saturday, 10 a.m. to 5 p.m.

Sunday, noon to 5 p.m.

Performing Arts Ticket Office

Monday to Friday, 10 a.m. to 5 p.m.

Doors open one hour before performances and 30 minutes before films.

Tickets: 315-797-0055, 1-800-754-0797 or munson.art

Pratt Munson and Community Arts Offices

Monday to Friday, 8:45 a.m. to 4:45 p.m.

Art Research Library

Monday to Thursday, 9 a.m. to 9 p.m., Friday 9 a.m. to 5 p.m.

Saturday, Noon to 5 p.m. , Sunday 3 to 5 p.m.

The following areas are accessible to the physically challenged:

Museum of Art Galleries, Fountain Elms, Sinnnott Family – Bank of Utica Auditorium, and Root Court, Art Odyssey: Interactive Gallery, Museum Shop, Art Library, Performing Arts Office, School of Art Gallery, Studio D, and the Pottery Studio, the Academic Center, and Student Center.

MAR | APR 2024
MARCH 23 | 9PM TO MIDNIGHT
MAR | APR 2024 310 Genesee Street Utica, NY 13502 315-797-0000 munson.art MUNSON KEYBOARD CONVERSATIONS ® WITH JEFFREY SIEGEL Chopin and Liszt, Gorgeous Melodies and Exhilarating Virtuosity Saturday, March 16, 2 p.m. Museum of Art, Sinnott Family – Bank of Utica Auditorium $23 Members | $28 General Public | $15 Students FOR TICKETS Funding for Keyboard Conversations is provided by Dr. Lorna Grant, Dr. Douglas Hurd, and Dr. Cynthia Parlato-Hurd.

Turn static files into dynamic content formats.

Create a flipbook
Issuu converts static files into: digital portfolios, online yearbooks, online catalogs, digital photo albums and more. Sign up and create your flipbook.