

For 120 years, millions have gathered on Johnny Cake Hill for education and inspiration. Now, the New Bedford Whaling Museum is poised to create a premier Welcome and Exhibition Center for future generations that extends our mission to ignite learning through explorations of art, history, science, and culture, rooted in the stories of people, the region, and an international seaport.
By expanding galleries, community spaces, and program areas, we will spark curiosity and connect community.
The new 20,000-square-foot Welcome and Exhibition Center includes a 6,000-square-foot gallery level able to display rotating rolls of the Panorama and other major exhibits from our own collection and exhibitions from major institutions. These partner shows could have a spectacular opening in New Bedford, coupled with travel to other venues, extending our reputation, collection, and regional narratives to audiences across the country, and in turn, advancing New Bedford and our region as a creative capital of New England.
The Museum has always been a dynamic center of engagement for visitors, students, and scholars. An essential destination and an economic driver for the region, the Museum is the largest cultural organization south of Boston and an anchor of New England’s SouthCoast. Our special exhibitions over the last five years demonstrate our potential in spite of significant gallery limitations. A Wild Note of Longing: Albert Pinkham Ryder and a century of American Art, Re/Framing the View: Nineteenth-Century American Landscapes, and A Singularly Marine & Fabulous Produce: The Cultures of Seaweed have all been critical knockouts and attracted new visitors, members, and public attention. Each illustrate our ability to open new doors to learning and understanding.
Early support is strong, including a $3M investment from the City of New Bedford and a $5M commitment—the largest gift in the Museum’s history—from generous benefactors inspired by the transformational potential.
Just like the 100 founding members
who unlocked our potential in 1903, you have the power to open doors.
moves have always been in our fiber.
In 1903, 100 community leaders came together to establish the Museum as the Old Dartmouth Historical Society, and envisioned a forever institution dedicated to preserving and sharing our vibrant past, and providing a space to convene the community and think deeply about our region.
In 1916, the new Jonathan Bourne Whaling Museum at the Old Dartmouth Historical Society opens with a half-size model of the Lagoda honoring the whaling families and traditions of New Bedford, and was one of the first interactive displays in an American museum.
In 1999, the opening of the Jacobs Family Gallery expanded our work in natural history and science, drawing visitors, students, and scholars to our work examining humans’ impact on marine mammals, ocean health, and coastal erosion.
In 2010, the Museum launches our High School Apprenticeship program, a pioneering model for youth engagement. In over a decade, more than 100 New Bedford students have participated, with our Apprentices achieving 100% High School graduation, 76% graduating or currently enrolled in college, and 39% of Alums have been employed at the Museum.
In 2010, the Wattles Family Gallery enabled rotating presentations of fine art, highlighting our emerging strength in interdisciplinary storytelling that weaves art, science, and history.
In 2018, all four rolls of the Panorama, perhaps our premier possession, were exhibited for the first time in decades, increasing museum attendance by one third. Unable to mount this extraordinary exhibition within our current walls, the “Grand Panorama” was installed on the top floor of Kilburn Mill in the South End of New Bedford. Imagine opening doors to new galleries to see the Panorama in its home again!
Because of you, we will open the new Welcome and Exhibition Center.
Our existing campus includes ten interconnected buildings, five of which are of historic significance dating back to the 1800s. Several of our buildings contain non-movable and structural historical elements. While beautiful, they result in limited flexibility and poor efficiency.
The largest gallery space is roughly 2,000 square feet, significantly less than the minimum required for major traveling exhibitions. Thanks to several close friends of the Museum, we acquired a vacant property (11 William Street) adjacent to our current front entrance in 2021. The Museum engaged Machado Silvetti Architects in campus planning and began by seeking public and member feedback through broad surveys and community conversations. Comprehensive campus master planning allowed for a deep exploration of programmatic needs and potential physical improvements. This process identified shared goals and concluded with a detailed campus master plan. While the first step is the Welcome and Exhibition Center, we documented additional facility improvements for consideration over several decades. The campus master plan is readily available upon request.
New Strategic Plan and mission approved by Museum Board of Trustees
Museum acquires 11 William Street
Museum engages Machado Silvetti Architects and launches 11-month Campus
Master Planning Campus Master Plan presented to the Museum Board of Trustees
Museum Board of Trustees votes to pursue expansion project at 11 William Street (first phase of Campus Master Plan)
Museum engages Machado Silvetti Architects and CSL project management and launches Schematic Design
Capital Campaign Committee formed and Museum celebrates $3M commitment from the City of New Bedford and a $5M commitment by generous benefactors
Museum Board of Trustees unanimously approve to advance Welcome and Exhibition Center expansion to Design Development
Advancing our strategic priorities to Welcome, Engage, Steward, and Thrive, the new Center will be a hub of New Bedford culture, education, and life. A city experiencing a renaissance fueled by a vibrant creative sector, burgeoning offshore wind industry, and new commuter rail link to Boston, New Bedford, and the SouthCoast region are ready for this transformation.
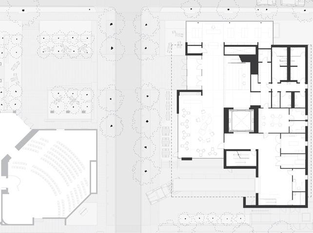
The building will be ground-up new construction on a long-underutilized site that will expand the Museum’s campus by adding roughly 20,000 square feet of new interior space. As visitors approach our campus from historic William Street, a common outdoor space with a fully accessible pedestrian walkway unites our new and existing buildings. State-of-the-art climate control, a top level loading dock, and additional galleries of significant size and sophisticated design will allow us to co-curate projects with leading museums and host companion learning programs.
Providing a warm and accessible entry point, the new Welcome and Exhibition Center will be a springboard for learning, discovery, and connection. The street-level floor will feature clear sightlines, natural light, and intuitive navigation. This dynamic new space will alleviate existing lobby challenges including entry disorientation and, too often, frustration when larger tours or student groups arrive. By creating a new arrival point and improving the admission experience, we achieve a space that invites exploration and encourages relaxation for all guests.
This main floor will enhance the shopping experience for museum- and exhibition-related offerings, while highlighting our creative community through commissioned sales of local artists’ works. The new lobby will flex to serve as an additional venue for museum events, education programs, and exhibition openings. A grab-and-go café will invite visitors to refuel and reflect, and neighbors to stop by regularly to enjoy views on three sides of the downtown streetscape. As an added benefit, moving our shop across the street opens a prominent space in our existing campus for an accessible educational zone for young learners, students, and families.
Visitors will be drawn up to the second-floor gallery level by a beautifully articulated and bright central staircase encircling ceiling- and wallmounted works from our collection. An accommodating elevator capable of holding 20+ passengers will rise nearby. A cleverly designed and secure tractor-trailer loading zone on the ground level solves a significant deficit of our existing campus.
The Museum’s existing buildings are home to roughly 35,000 square feet of exhibition space. However, no single gallery for special exhibitions is over 2,200 square feet and our existing historic campus does not have the infrastructure needed for physically handling the contents of large temporary exhibitions. This new space offers a breathtaking and sizable second-floor temporary exhibition space, supported by state-of-the art below-grade collections handling spaces.
Stepping onto the show-stopping second floor, visitors will enter the most sizable and sophisticated special exhibition space south of Boston. This custom-designed, flexible level of over 6,000 square feet will unleash the power of our curatorial team by tripling our current rotating exhibition space. Through custom climate control, state-of-the-art lighting, and enhanced security, this gallery floor will facilitate loans from, and partnerships with, major institutions to bring exceptional and world-renowned art, scientific and historic artifacts to New Bedford. A spectacular North-facing single gallery will run the length of the entire building, offering 3,000 square feet of fully unobstructed exhibition space. The design accounts for ample hanging space with reinforced walls capable of managing intricate and sizable installations. This gallery alone will surpass our largest existing special exhibition room.
Guests also will discover four distinct additional galleries as they move to the floor’s South side. Two corner spaces each will have a footprint greater than 1,000 square feet. An interior gallery could serve as an entry space to orient guests to one large show, be a space for experimentation with digital elements, or showcase delicate materials sensitive to light. Finally, a long gallery will run adjacent to William Street, with ample windows allowing guests to view the existing Museum campus as well as all of New Bedford’s historic city views. Together, all five galleries could exhibit one massive show, or function as individual spaces with exhibitions rotating asynchronously.
In addition to hosting our Panorama and traveling shows from major institutions like the Smithsonian and the American Museum of Natural History, the new Center will make it possible to curate our exhibition ‘wish list’ — projects that are only a dream because we do not yet have adequate space or conditions. Imagine an exhibition highlighting our historic creative community in conversation with work by Jacob Lawrence and the Boston Expressionists, all of whom visited the region. This project would explore our region’s connection to Boston, New York City, modern Jewish identity, Black activism, and radical politics between 1910-1960. We could dive deep with our extraordinary collection of William Bradford paintings, studies, and sketches, staging a consideration of the career of this incredible 19th-century artist, but set into conversation with science-based presentations on coastal erosion and climate change and paired with contemporary art. Or consider an exhibition that would focus on the Portuguese global Baroque aesthetic, and chart the influence of Jesuit architecture, Catholicism, and Portuguese language and culture on the maritime world of the 1500s between Portugal, the Azores, Brazil, and Goa.
With over a million artworks, artifacts, and volumes in our collections, there are myriad ways to place our history and collections in context with other communities, movements, and institutions around the world. The new Welcome and Exhibition Center will do all of this, and so much more — and we need your help to make it possible.
The building is estimated to be a $31M project, which includes the property acquisition, construction, and all owner’s costs. The Museum purchased this site thanks to supportive donors who made it possible to acquire the property without debt. The schematic design process began in August 2023 and concluded with a refined scope within budget in February 2024. The Board of Trustees voted unanimously to move the project forward to Design Development in March 2024.
Additionally, the Museum is seeking $3M in endowment support to provide for the operations of the new Center. Exciting naming opportunities are available for the interior and exterior spaces as well as for endowment positions and funds.
BY THE NUMBERS
$31,233,804
Founded as the Old Dartmouth Historical Society and centered in ‘the city that lit the world,’ the New Bedford Whaling Museum will forever collect, preserve, and exhibit the region’s artifacts and stories of the whaling industry and the people who powered it. Within our fourteen permanent galleries, we interpret the critical stories of the region’s diverse communities, well beyond whaling. Permanent exhibitions continue evolving to unearth the undertold—or all too often, untold—stories highlighting contributions by women, immigrant, and Native communities, and the impact of industries such as textiles and manufacturing on the area.
Mission: To ignite learning through explorations of art, history, science, and culture, rooted in the stories of people, the region, and an international seaport.
Vision: The Museum seeks to advance understanding related to the influence of the whaling industry and the port of New Bedford on the history, economy, ecology, arts, and cultures of the region, the nation, and the world. The Museum aims to expand its capacity to tell these stories through a lens of art, history, science, and culture, and to highlight the many diverse communities that have shared in the creation of this history. The Museum strives for excellence in collections, scholarship, education, and engagement.
Students engaged annually
8,000
Objects in collection 1M+
Permanent galleries
14
Rotating galleries 4
Existing galleries’ total square footage
34,804
Existing largest gallery square footage
2,200
Governed by an engaged Board of Trustees and guided by an active Finance Committee, the New Bedford Whaling Museum maintains strong fiscal operations. An experienced leadership team directs operations, responsible for performance of an annual operating budget of $6M, which represents significant recent growth. We have returned positive operating results every year for 14 years, less 2022 when the Board approved an intentional deficit. Our endowment, valued at $18.5M as of December 31, 2023, is managed by Alliance Bernstein and is overseen by the Board of Trustees’ standing Investment Committee.
The Welcome and Exhibition Center is a pathway to continued growth, and the Museum’s analysis supports increased visitation and membership. Our estimates indicate an expected 10% increase in visitors and member households in the first year of opening the new space, followed by sustained growth of 5% in subsequent years. Our analysis further indicates increased revenue opportunity in the form of traveling exhibition fees, special events, corporate sponsorships, and symposia/convening grants. The total year 1 operating revenue growth is expected to be between 55-60%.
In 2023, we welcomed more than 81,000 guests and marked the largest growth post-pandemic in the key category of paid adults and senior visitation, which increased 23% over 2019.
This expansion will increase tourism activity for the City of New Bedford and for the SouthCoast of Massachusetts. The Museum received the results of an independent economic contribution report conducted in 2022 by Springline Research Group. The study concluded that, driven by bigger temporary exhibitions housed in a new Welcome and Exhibition Center, the Museum’s capacity for additional economic activity is conservatively estimated to result in additional annual revenue between $1,340,490 and $2,151,449 annually.
This full report is available upon request, but quick highlights from the analysis show that the Whaling Museum:
• Stimulates more than $10 million in economic growth to the region annually.
• Employs 70 full- and part-time workers annually, most of whom reside in southeastern Massachusetts.
• Purchased over $1.25 million in goods and services, over half from New Bedford vendors.
• Attracts visitors to the region, who spend nearly $3 million annually outside of the Museum, primarily in small businesses such as restaurants, shops, and galleries.
• Indirectly generates at least $140,000 annually in payments to the City of New Bedford (parking revenue and meals and sales taxes).
Anthony R. Sapienza, Chair
Paulina Arruda
Ricardo Bermudez
Susan Costa
Douglas Crocker II
Betsy Fallon
David Gomes
Edward M. Howland, II
Douglas Crocker II, Co-Chair
Hardwick Simmons, Co-Chair
Paulina Arruda
Christina Bascom
Meg Howland
James Hughes
Michael Keating
D. Lloyd Macdonald
Ralph Martin
Eugene Monteiro
Michael Moore
Gilbert Perry
Victoria Pope
Dana Rebeiro
Maria Rosario
Lucy Rose-Correia
Tricia Schade
Mark L. Schmid
Nancy Shanik
Hardwick Simmons
Bernadette Souza
Ellen Stone
Carol M. Taylor, Ph.D.
R. Davis Webb, Ph.D.
Lisa Whitney
Susan M. Wolkoff
Jewelle & Nathaniel Bickford
Betsy Fallon
James S. Hughes
Betts Howes Murray & F. Wisner Murray
Carol M. Taylor, Ph.D., Chair
Lisa Schmid Alvord
Christina Bascom
Nathaniel J. Bickford
Mary Jean Blasdale
Joanne Cameron
Paula Cordeiro
Carl J. Cruz
Roy Enoksen
Armand Fernandes
Barbara Ferri
John N. Garfield, Jr.
Vanessa Gralton
Lucille Hicks
Maryellen Sullivan Hughes
Patricia A. Jayson
William N. Keene
David N. Kelley II
Elizabeth T. Kellogg
Frances F. Levin
Anthony R. Sapienza
Tricia & Chris Schade
Bernadette Souza
Carol M. Taylor, Ph.D.
R. Davis Webb, Ph.D.
Wistar Wood
Joaquim Livramento
Joseph E. McDonough
George B. Mock III
Faith Morningstar
Barbara Moss
Barbara Mulville
Celeste Penney
Alice Rice Perkins
John C. Pinheiro
Carlos Ribeiro
Donald S. Rice
Cathy Roberts
Brian Rothschild, Ph.D.
Anthony R. Sapienza
Christine Schmid
Gilbert L. Shapiro
Janet P. Whitla
David Wyss
Amanda McMullen
Michael Lapides
Emily Mead
Naomi Slipp
Michelle Taylor
Jennifer Zanolli
The Museum engaged Machado Silvetti, a leading architecture and urban design firm recognized for creating, revitalizing, and expanding distinctive buildings and spaces in the United States and around the world. MSA’s work is diverse in location, scale, and type, and merges contemporary agendas and aesthetics with complex cultural and historic contexts. Founding partners Rodolfo Machado and Jorge Silvetti began working together in 1974, before starting Machado and Silvetti Associates in 1985. In 2015, they appointed Jeffry Burchard and Stephanie Randazzo Dwyer as partners. Stephanie Randazzo Dwyer, AIA and S. Austin Ward, AIA LEED AP lead the design team. Recently completed museum projects include the Denver Art Museum, Provincetown Art Association and Museum, and Benton Museum of Art at Pomona College.
The Museum has retained CSL as its Owner’s Project Management firm. CSL provides construction consulting services and is assisting the Museum in managing the complexity of this effort. CSL has overseen numerous cultural projects including the renovation and expansion of the Harvard Art Museums; consolidation of the Fogg Art Museum, the Busch-Reisinger Museum and the Arthur M. Sackler Museum into one building totaling 204,000 GSF; Dartmouth College Hood Museum of Art; and the Lindemann Performing Arts Center at Brown University. Edward LeFlore, Peer principal; Matt Cate, Project Executive; and Sean Donnelly, Senior Project Manager lead the team.
As the New Bedford Whaling Museum embarks on a transformative journey with our new Welcome and Exhibition Center, we stand at the doorway to an unprecedented chapter in our shared history. This endeavor is more than an expansion; it is a portal to a future brimming with educational innovation and cultural richness, honoring our maritime heritage while charting new courses of discovery and community engagement. It embodies our collective aspirations and the spirit of exploration that is the hallmark of New Bedford and the SouthCoast.
The groundswell of support from our initial benefactors has been inspiring, laying the cornerstone for this ambitious project. Now, the opportunity to join this momentous venture extends to you. Your participation, whether through donations, volunteering, or advocacy, is crucial in unlocking the full potential of this pivotal initiative. Your involvement unlocks a lasting legacy of learning, connection, and community. Step forward with us as we open doors to endless possibilities for our region.
to new memories to collaboration to growth to creativity to imagination to discovery to new perspectives to learning to community to art & culture to making history to connection to conversation to wonder to partnerships to exploration to opportunity
whalingmuseum.org