work sample 2016-2024 updated

Page 1


PROLOGUE

Architecture is actually the creator of a relationship , which occurs between human and architecture, and between architecture and surrounding environment. The interweaving of various complex relationships constitutes the current diverse urban ecology. My portfolio shows the different roles of architecture as such a medium in social and natural environments. The original constraints will also face challenges. For example, the arrival of the epidemic, because of the emergence of social distance, our lifestyle and the attributes of the original space will also change. Residence becomes an office, and private space becomes semi-private. Le Corbusier said that architectural culture should be under the new social form. Combine, produce a new system, so as to achieve the purpose of using design to create a better society.

Incorporate natural elements into the high altitude of urban civilization

01 Memory of Siheyuan

Studio Work

Individual Work

Autumn 2020

Instructor: Yiqi Song

The protection measures of historical buildings can be roughly divided into two categories, "repair the old as the old" and "combine the old with the new". The former aims to imitate the characteristics of historical buildings and restore and reconstruct them. The latter is suitable for historical buildings with reusable value, and requires a clear distinction between new and old functions after reconstruction, so as to avoid destroying the original style of historical buildings. I believe that these two types of protection measures have frozen history to some extent. What I am discussing is a brand-new view of the protection of historical buildings. A series of space design mechanisms are extracted from historical buildings and developed in new buildings. New buildings are born out of history but serve the contemporary era, becoming "living" artworks .

Formation Process
Physical Modell

During the Spring Festival, people will hold parties in the first courtyard, watch shows, and play card games in the second and third courtyards. Fireworks can be set in the courtyard on the first floor.

During the Mid-Autumn Festival, everyone will gather together to admire the moon. A sweet-scented osmanthus tree will be planted in the middle of the second entrance to the courtyard.

View the Ridgeline of the Entire Roof from the East
During the Dragon Boat Festival, people will make rice dumplings in the courtyard, hang Chinese mugwort leaves at home, dance Zhongkui indoors, and fly kites around the courtyard.
On the winter solstice, people make dumplings and build snowmen in the yard. The beauty of snow is brought into the interior of the building, adding some vitality to the originally cold winter.
Spring Festival
Mid-Autumn Festival
Dragon Boat Festival Winter Solstice
Detailed drawing of wall structure
Detailed drawing of roof structure

Studio Work

Group Work

Spring 2022

Instructor: Dr. Masoud Akbarzadeh

The significance of this studio is to use an old construction method to make a building. The language of the entire construction is completely unified and cannot be mixed with any other redundant design languages. We use the logic of Inca's interlock to make a building logic, and we extract its folding form from an origami folding method and combine it with our interlock logic to make a student activity center.

The location of this activity center is in a violent neighborhood in Chile. This area is often in turmoil due to ethnic and cultural conflicts and economic imbalances. We hope to build an activity center here to provide a place for young people to communicate and make friends independently, so as to try to solve the phenomenon of cultural conflicts in the next generation.

Ancient Precedent Interlocking Logic

Reduced-Waste Design for (Dis-)Assembly Team: Your Names

Design Matrix 2D images

Instructor: Dr. Masoud Akbarzadeh

Teaching Assistant: Yuxuan Wang

Ancient Precedent Design Matrix

Construction Precedent Folding system

Panel Matrix
Prefabricated
Drawing Ground Floor Plan

Drawing 1st Floor Plan Drawing 2nd Floor Plan

Drawing Axon view without facade
PATIOS
Public exhibition
Skating place
Spacial development
Drawing Close up section
Drawing Close up section

02 Truss and stone

Studio Research Group Work

Spring 2022

Instructor: Dr. Masoud Akbarzadeh

The significance of this studio is to use an old construction method to make a building. The language of the entire construction is completely unified and cannot be mixed with any other redundant design languages. We use the logic of Inca's interlock to make a building logic, and we extract its folding form from an origami folding method and combine it with our interlock logic to make a student activity center.

The approah is to do research based on the stone as the supporting system and truss system as the compression system, and explore the possibility of the space quality.

the Future of the NY Stock Exchange

Studio Work

Group Work

Autumn 2021

Instructor: Ali Rahim

Group Members: Kejing Li

Contribution: Concept 、 Modeling 、 Technical Graphics、3D printing

Our project focuses on creating a volumetric thick poche filled by the servers wrapping around the building and treating the computer servers’ areas as a showcase that the main circulation can shoot through these areas. By going through the server areas people can reach the inhabitable spaces, which are inside of these dynamic figures, also the central heart of the building. The mechanic and cooling systems are hidden inbetween the gap between servers area and inhabitable space (point( the rooftop)) across the entire building.

Interier Perspective

05 Social Maze

Studio Work

Individual Work

Summer 2020

With the development of the current epidemic situation becoming more and more serious, it will inevitably have an impact on traditional social methods. People will have an extra barrier in the way of socializing, or add a program, such as social distancing Satisfying the sense of social distance is a social etiquette. But now because of the impact of the epidemic, social distancing has become a thing that must be satisfied, from an unnecessary thing to a necessary thing. In this plan, based on the social distance, I created a social Maze in the original South China Seafood Market in a single streamline manner to explore the different possibilities of people meeting in the space The emotional changes that people continue to explore in the maze are actually a translation of people’s emotional changes from a state of fear to a stable state of mind after gradually mastering more information, from a seemingly interesting and commercial perspective, to achieve a monumental effect.

3D-Printed Model

Course Design

Individual Work

Spring 2019

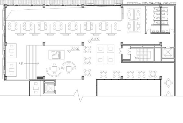
The functional type of the entire high-rise is the publishing house, so the real highrise looks like several books of different thickness stacked on top of each other. On the one hand, it implies the functional attributes of the building itself, and on the other hand, the superposition of different blocks can be active. The skyline of the lot has become a beautiful urban landscape. While satisfying the office space, the entire high-rise also arranges some plantings up and down on the main façade, integrating natural information into the temperament of the entire high-rise, and creating a good office environment. The functions of the podium on the ground floor are mainly the publisher's own bookstore and some social spaces for simple meals. While meeting the reading needs of customers, it also actively plays a hot role in cultural communication.

06 Vertical Forest Office

07 Production Alternatives

Studio Work

Group Work

Summer 2022

Group Members: Hui Mi

Instructor: Viola Ago (From UCLA)

Initial Form Searching

The Fabrication studio is focuns on using the modern technology to mimic the real life projects. And we try to do research on how to improve the design method about the facade of a construction. Through using the robotic arms to spray the flocking materials and create new inspirations for facade design

Then we print all the selected version, and find the suitable 3 switches model to keep developing the form

Use the geometry from the red lines combined with thr color scheme of the 2nd switch.

Prototyping before the mid-review.

08 the 'Black Box'

Studio Work Group Work Autumn 2020

Instructor: Yu Yan

Group member: Zeheng Wu、Zhe Zhang

Contribution: Concept、Modeling、Technical Graphics

In our world view, the algorithm originally presupposes a completely fair society without racial discrimination. It can realize utopia by allocating the houses needed by different ethnic groups, such as some security houses and some private small houses, etc. Ideal, but when an error occurs in the algorithm for a certain period of time, the printer prints out an incorrect house, which is inadvertently assigned to a black individual by the algorithm. After the butterfly effect, this black man was gradually labeled as a low-end crowd. At the same time, because he is a disadvantaged individual, a large number of disadvantaged groups are labelled as a low-end group, which will unfairly stigmatize the black race, and over time, social conflicts will become more and more obvious. The juxtaposition of a utopian ideal and a stigmatization label ended up producing a dystopian world, in which there will also be civil rights leaders, some illegal gangs, etc. They will use some forms of declarations and social struggles to attack this social structure constituted by algorithms, attempting to modify the algorithms and claim justice for themselves. When they entered the core room, they found that there were only large printing sand tables and monitoring screens in the room, and even they themselves were under monitoring. So is this discrimination learned in the process of interaction and then imposed on people, or is there someone behind the control algorithm?

09 Tree House

YAC Comptition

Individual Work

Spring 2020

This project designed two different tree house modules, which were located in the French countryside. The design is to satisfy a tree house that adapts to different environments What want to express in this design is to use the tree house as a medium for spiritual communication with nature, through people living in the tree house, and the surrounding environment Perform material exchange and information exchange

Hypertrophied Maelstrom

Form & Algorithm

10 Hypertrohphied Maelstorm

Elective course

Group Work

Autumn 2021

Instructor: Ezio Blasetti

Group Members: Zhen Lei、Tian Tian

Contribution: Concept 、 Modeling 、 Technical

Graphics、3D printing

A curve is divided by an input spacing and get a series of points at equal intervals. Move them along the direction of normal and length of curvature of the adjacent points to obtain a new curve. Iterate this process continuously to get the final result. In this case, curves will always end in a shape of growing spiral like mushroom cloud after explosion. The same works among surfaces: uv points move along the distance of medium curvature and direction of normal of the adjacent points to get a new surface. Iterate this process continuously to get the final configuration. The surfaces look more complicated and chaos than curves, yet still generate interesting and beautiful patterns.

Hypertrophied Maelstrom

Curvature Iteration

Spacing is used to control the number of points. The smaller the spacing, the more spirals will be generated. max is used to control the height of the entire body Factor is used to limit the maxium range that the point cannot move beyond. The smaller the curvature radius, the higher the height generated by the next point

Hypertrophied Maelstrom Surface

Iteration

The next series of diagrams is 3d based iterative geometry of different classic surfaces, the generation logic is basically the same as the curve logic, which is depend on point curvature. The only difference is that the curve part uses the radius of curvature at each point as the variation parameter, offset by the absolute value of the normal means they are rising upwards. But for the surface, the average curvature is the variation parameter, so it finally affect normals, which have positive and negative the direction adn distance of movement.

Design Innovation

Elective Course Group Work

Autumn 2021

Instructor: Ali Rahim

Group Members: Xiaohan Zhao

Contribution: Concept、

Modeling、Technical

Graphics、3D printing

The whole project is consisted of different kinds of scaled circles and straight lines. We decide the ways when the two different geometries come together. There are several ways for them to meet together. The straight lines canrotate along with the curves and the circles can break the lines apart and one can develop into a solid form, the other one can become a grid form. Several different conditions linked together which produce several layers to the whole system and makes theproject more 3 dimentional.

Firm Jilin Jianzhu University Institute of Architecture and Planning.

The Tongtian Village Bed and Breakfast Villa is an architectural endeavor that aims to provide a unique and immersive experience for guests seeking tranquility and a touch of the rural charm of Ji'an City. Nestled in the serene environment of Tongtian Village, this project seeks to blend traditional architectural elements with modern amenities, offering a harmonious balance between comfort and authenticity.

Tongtian Village Bed and Breakfast Villa, Ji'an City

Construction Drawing Design for Multistory Residential Community in Nanguan District, Changchun City

The Harmony Towers Residential Complex is a visionary development aimed at enhancing urban living in Changchun, Jilin. Situated in a prime area of the city, this project is designed to offer a blend of modern luxury and sustainable living. The complex encompasses several high-rise towers, designed to cater to a diverse range of residents, from singles and young professionals to families.

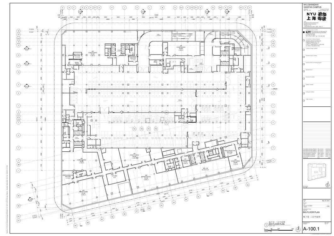
New York University (Shanghai campus) Construction Drawing Design

The New York University Shanghai Campus construction drawing design project involves detailed planning and development of NYU’s first degree-granting campus in China. Located in the heart of Shanghai, this project is a collaboration between New York University and East China Normal University, reflecting a global partnership in higher education. The campus is designed to support a full range of activities including teaching, research, housing, and administration, catering to both local and international students.

Modern Architectural Design Co., Ltd

The West Bund Media Port project is a monumental development that encapsulates a blend of office spaces and commercial zones. Located in the bustling heart of Shanghai, this project covers a land area of 190,000 square meters with a total building area of 970,000 square meters, including 530,000 square meters above ground and 440,000 square meters underground. Initiated in 2013, this project is currently under construction and promises to be a beacon of modern architecture and urban planning.

The West Bund Media Port
Shanghai Modern Architectural Design Co., Ltd

Certifications

Museum Design during my undergraduate school year
Cabin design during my undergraduate school year
kindergarten design during my undergraduate school year
Cabin design during my undergraduate school year 11
revit rendering grahics

Turn static files into dynamic content formats.

Create a flipbook
Issuu converts static files into: digital portfolios, online yearbooks, online catalogs, digital photo albums and more. Sign up and create your flipbook.