All rights reserved. No part of this book may be reproduced in any form without written permission from Architectural Technology Department at City Tech, CUNY.
TABLE OF CONTENTS
B.ARCH THESIS STUDIO
5112_Architectural Design IX
5212_Architectural Design X
INTRO
1101_Intro to Architecture
1101_College Now Summer 2024
DESIGN STUDIO
1112_Architectural Design I
1212_Architectural Design II
1121_Architecture History to 1900
2312_Architectural Design III
2412_Architectural Design IV
2321_Architecture History: 1900 to present
3512_Architectural Design V
3612_Architectural Design VI
3522_Architecture of New York City
4712_Architectural Design VII
4812_Architectural Design VIII
BUILDING TECHNOLOGY
1231_Building Technology I
2331_Building Technology II
2431_Building Technology III
3531_Building Technology IV
ELECTIVES
3590_Parametric Computation
3609_Integrated Software
3592_Intro to Rendering
4709_Advanced Modeling Rendering
3622_Japanese Architeture
4781_Structures III
STUDENT
EDITOR’S NOTE
This second edition of TECHNE, following last year’s relaunch as an archive of student work, reflects a growing commitment to showcasing projects across all architectural sub-disciplines. In this edition, featuring work from the 2023-24 academic year, readers will find student-written explorations of architectural history—an opportunity to pause and reflect.
We hope this publication serves as a catalyst for dialogue between past and present as students shape the built environment of the future. A deep understanding of where we come from will help guide the department’s trajectory as it engages with the world at large.
This book remains an archive of architectural stories, ideas, and experiments. We look forward to TECHNE continuing to capture the work of students and recent graduates with immediacy, responding to the evolving challenges and discourse of architecture today.
Jieun Yang Assistant Professor Department of Architecture
March 2025
FOREWORD
For economic productivity and growth, our country needs as much talent as we can find, and we certainly can’t afford to waste it. The opportunity gap imposes on all of us both real costs and what economists term “opportunity costs.”
- Robert D. Putnam, Our Kids: The American Dream in Crisis
This issue of TECHNE has the distinction of being released during a NAAB accreditation visit which culminates a multi-year process of grueling work and meticulous organization by the B.Arch. Co-Directors, Professor Jieun Yang and Professor Claudia Hernandez, in conjunction with faculty and staff members. The accreditation spotlights the three-degree programs simultaneously as they operate in synch to expand student access to the proliferating demands of the building industry.
TECHNE reaches across these programs to showcase student work that is comparable to national standards. The competition and expectation that comes with this recognition has been embraced by students in the department. Enrollment numbers remain strong, graduation rates steady, and employment within the AEC industry increasing. The department is establishing a reputation for its hardworking and talented students, eager to flex their technical and design skills.
The remarkable story of achievement by an underfunded group of underdogs has only just begun. Students in our department are singular in their experience and ambition. Unencumbered by the historical reach of a formal architectural pedagogy, the department is capitalizing on its vocational roots to create unexpected alliances and opportunities for an increasing range of talent.
Each issue of TECHNE challenges successive generations of students to expand their imagination. It inspires risk taking and action. Programs like: ARC Scholars, The PreInternship Program, ULI’s Urban Plan, The Architectural League’s After Hours, Student Day and The Mentorship Program fuel this momentum. TECHNE illustrates the resolve and collaborative spirit between faculty and students. Thanks to Professor Jieun Yang and Professor Elena M’Bouroukounda for their leadership of this publication effort and exhibition. Thanks to the student clubs that provide a model for camaraderie and engagement. This is not an era for inhibition or isolation. We need more student leaders. Get involved, take the initiative and ensure that no student is left behind.
Sanjive Vaidya, RA Chair, Department of Architecture
City
Tech
March 2025
ARCHITECTURAL DESIGN IX+X
ARCHITECTURAL DESIGN IX+X
Design IX and X are yearlong thesis studio working closely with a faculty advisor. Students assemble comprehensive research on a preapproved topic. Research includes user needs, precedent studies, site analysis, along with social, cultural, historical and technical implications of a proposed architectural intervention. Thesis research clearly focuses on the selected area of study presenting well-formed arguments to advance student approaches to architectural design and methodology. Students prepare a comprehensive document that includes their research and analysis, a written project statement along with all design methodology as part of their final presentation.
SELECTED WORKS BY:
PROF. PHILLIP ANZALONE
PROF. JILL BOURATOGLOU
PROF. MICHAEL DUDDY
Ariela Abreu
Sara Fares
Vanessa Gallego
Michelle Guzman
Muhammadmurod Ibragimov
Yammaly Martinez-Plascencia
Mohammd Mostafa
Nurridin Nazirov
Anthony Ortega
Milena Peralta
Cristian Rodriguez
Treeyapat Srichan
Renard Wagstaff
Cheriyah Wilmot
Janan Yu
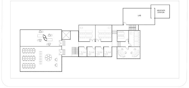
Seeds of Empowerment: A home to Harvest Hope for Street Children
The project aims to create an architecturally designed center in the Dominican Republic to support street children by providing shelter, education, and empowerment. Beyond serving as a refuge, the center will foster resilience and self-sufficiency through innovative spaces, skill-building programs, and agricultural integration. By addressing the root causes of poverty and delinquency, the initiative seeks to break the cycle of hardship and equip children with the tools to become confident, self-reliant adults.
ARIELA ABREU
NYC SkyHarvest
The proposed vertical farming building in New York City addresses urbanization challenges by maximizing space efficiency, enhancing aesthetics, and promoting sustainable, locally sourced food. It fosters community engagement, education, and environmental resilience, creating a model for urban agriculture and food security.
CLASSES
ELEVATORS/ EGRESS
CONFERENCE ROOMS
LOUNGE
Harbor Haven Learning Center: Empower ing Migrant s Minds
The Harbor Haven Learning Center is situated on Rickers Island in Queens, New York. The island was redesigned to cater to the needs of the migrant population, providing a temporary six-month stay. The learning center aims to help migrant adults acquire job skills and support migrant children with additional educational resources. This includes after-school assistance to help them cope with the trauma of their journey and adjust academically.
Since April 2022, 113,000 migrants have arrived in New York City, with 80,724 currently residing there. The Harbor Haven Learning Center plays a crucial role in aiding these individuals, ensuring they have the necessary support to integrate into life in America.
MENTAL HEALTH CENTER
ADULT LEARNING CENTER
This community wellness center is dedicated to enriching the lives of the residents in a small town in the Dominican Republic. It is designed to cater to diverse needs emphasizing the importance of mental health well-being. The complex maximizes its natural surroundings to create an immersive environment utilizing the site to its fullest extent.
Offering programs such as sport activities, workshops, therapy & counseling, nature walks, theater, green spaces & garden, aquatic recreation & a library. Through these initiatives the vision is to provide the residents with a sate and theraputic enviornment while also fulfiling a happier and healthier life.
Raices Comunes: Centro Communitario
Nomad City
The thesis introduces “Nomad City,” a mobile and adaptable urban structure designed to provide fast, scalable, and sustainable shelter solutions for disaster-affected populations. Addressing global challenges such as wars, earthquakes, and flooding, it aims to overcome the high costs and slow response times of traditional evacuation and shelter strategies.
Nomad City can be temporarily constructed anywhere based on location conditions and people’s needs, offering a flexible architectural approach to disaster relief without disrupting existing communities.
In regions prone to river overflow without adequate emergency resources, architecture plays a pivotal role in providing shelter.
This thesis advocates for adaptive design principles, emphasizing collaboration with communities to create resilient, low-cost solutions. Integrating sustainability and community engagement ensures culturally sensitive responses.
By embracing water and promoting eco-friendly systems, this approach enhances resilience in areas with limited emergency resources.
Aqua Nest
Modular Cabins
Wood Slabs
Structure Fixed Piers
Raft
Bounyancy
The Nubian Folk Art Center
This project is a cultural preservation initiative designed to counter the effects of forced displacement and socio-economic struggles faced by the Nubian community after the construction of the Aswan High Dam.
Serving as a sanctuary for Nubian heritage, the center offers workshops in traditional arts, local cuisine, and culturally inspired accommodations. It fosters intergenerational connections, supports economic growth through tourism, and reinforces Nubian identity. Architecturally, it blends traditional Nubian motifs with modern elements, symbolizing resilience and serving as a global model for preserving endangered cultural identities.
Boardwalk Lounge
Dry Horizon
Throughout history, proximity to water has been crucial for urbanization, economic prosperity, and trade. Coastal cities like New York, London, and Istanbul have thrived due to their access to oceans, fostering commerce and job opportunities.
However, landlocked countries face significant challenges in global trade. Of the 32 landlocked nations, some utilize rivers for access to oceans, but doublelandlocked countries like Uzbekistan and Liechtenstein must cross two borders to reach a coastline, complicating trade and logistics.
Despite these challenges, Uzbekistan is working to overcome its geographical limitations by establishing strategic trade routes through partnerships with China and other nations. These efforts highlight the potential for landlocked countries to reshape their economic landscapes and drive sustainable growth.
Freight Train
Truck Road
Conveyor
Freight Train to Truck
Freight Train to Freight Train
Vehicular Road
Passenger Train
Walkway and Village
El
Nuevo Pueblo
While major cities thrive with abundant resources, many small communities survive through adaptation and cooperation. However, there is always room to enhance their quality of life.
This thesis explores the potential of architectural intervention in creating a local market tailored to the unique needs of a small village in Puebla, Mexico. By integrating local materials, traditional design, and sustainable practices, the market aims to preserve cultural identity while fostering economic and social growth.
Through community engagement, the market will become more than just a transactional space—it will serve as a cultural and social hub, supporting local businesses and strengthening the village’s sense of place. By reimagining market typologies and analyzing the built environment, this research highlights architecture’s role in community development, demonstrating how a welldesigned marketplace can act as a catalyst for resilience and progress.
Bellavista Women’s Rehabilitation Center
This project aims to address the lack of a dedicated women’s rehabilitation center in Guayaquil, Ecuador, where gender-specific support for addiction recovery is currently absent. The architectural proposal explores the relationship between design and recovery, emphasizing a compassionate and supportive environment tailored to women’s unique challenges, including addiction, trauma, and mental health issues.
The design will integrate security, privacy, community, comfort, and empowerment to create a safe, welcoming space that promotes healing and personal growth. Sustainable design principles will also be incorporated to enhance well-being while respecting the environment. Ensuring residents’ safety and privacy is a key priority, balancing openness with discretion.
The Eco-Academy
In a time known for rapid technological advancements and changing educational approaches, the design of educational spaces must evolve to meet the needs of learners and promote further development while considering fire safety. The project begins with a comprehensive analysis of the wildfire patterns of the site as well as climate, geography and circulatory related elements.
It proposes a forward-thinking architectural design that transforms the school into an inclusive learning community. Key design elements include flexible and outdoor learning spaces, wildfire preparation and the incorporation of fireresistant materials. Fire resistant cladding, roofing, and structural components will be strategically integrated to enhance its safety and resilience.
Hopes Museum & Memorial
Following the May 2014 military coup in Thailand, pro-democracy protests emerged in opposition to the junta’s rule. Clashes between protesters and security forces underscored deep political divisions and the ongoing struggle for democratic reforms. The unrest reflected the broader tensions between those advocating for civilian rule and the militarybacked government.
This thesis explores how phenomenal architecture can shape a memorial dedicated to hope. Rooted in event-driven architecture, the design seeks to engage the senses, evoke emotion, and transform space into an interactive experience. Through light, materiality, and spatial sequencing, the memorial will foster reflection, resilience, and collective memory, serving as both a tribute and a symbol of hope for the future.
The Flow
This thesis proposes designing hospitable rainwater harvesting and treatment complexes in tropical climates facing drought and water crises due to climate change, with a focus on Jamaica. These complexes would serve as community parks, meeting both water and social needs year-round. Jamaica experiences frequent meteorological droughts, especially during the dry season, and has a two-season climate.
The proposed complex would function in both the dry and wet seasons by offering multifunctional spaces that adapt to seasonal changes. It includes a 3-stage water treatment process for safe human interaction and water collection structures designed as sculptures to engage users while harvesting rainwater.
Section
focus of the site section is to the catchment zone in relation to Venue space island. It also show slope of the water catchment with the max water level (Blue line). One can also understand change in the topography across site.
Rethinking existing patterns on the architectural language of confinement in domesticity: a critique
This thesis explores the role of architecture in addressing human trafficking, focusing on migrant domestic workers forced into servitude. It is divided into two parts: analysis and proposal(s). The analysis follows the worker’s journey from the airport to the employer’s home, identifying key points for intervention, such as an airport booth to inform workers of their rights.
Drawing on Tschumi’s concepts of violent bodies in space, the employer’s home is analyzed to highlight control and abuse, using historical references like the Georgian House plan. The resulting design creates awareness of current conditions and proposes temporary housing and rehabilitation for workers who escape.
Harbor of Tranquility
The demand for mental health care facilities has risen in the post-COVID world, with one in five New Yorkers experiencing anxiety, depression, or PTSD—many unable to seek care due to social and economic barriers.
This thesis explores how architecture can support mental well-being by creating spaces that promote psychological, emotional, and physical healing. Through strategic spatial layouts, lighting, materials, and landscaping, the design aims to foster calm, security, and connection to nature.
By reimagining mental wellness centers, this proposal seeks to reduce stigma, inspire architects to prioritize well-being, and improve the quality of life in New York City.
Eastern Approach to Site: (Fig. 42)
Path To The Mobile
People approaching on the Eastern side views of Queens, users can sit on the edge of present rather than a strong uninviting railing would have. It creates a more open feeling which anxiety.
Users would first be greeted by the Mental building follows an organic style of architecture, the building. The roof of the building slopes towards The main entrance of this building faces the pathway divided into one large building and one smaller circulation cuts straight through this building leading Fenestration of this building varies around the The fenestration facing the western part windows while eastern side windows are more lighting and views of the site. The lighting on the vary with the changes in the suns position during throughout the 4 seasons that we experience
Crossing Land Bridge to Site: (Fig. 43)
This view shows users crossing the land the left of the users is the tide pool that will flood it allows the users to further connect with the water of their sides when crossing the bridge. At the performance area, the performance area is used presentations, and performances but can also for group therapy, where users can speak about
The pathway the users take changes from pathway to a gravel pathway, it creates another would feel the crunch of the gravel underneath bridge onto the grass area for seating, or to enjoy
FIG. 42
FIG. 43
INTRODUCTION TO ARCHITECTURE
INTRODUCTION TO ARCHITECTURE
Understanding architecture is achieved by developing a visual literacy of New York City’s built environment. Using the city as a living laboratory, students explore concepts of design, composition, and construction by sketching and writing about their direct experience of buildings. Focus workshops on freehand drawing techniques, basic drafting skills, graphic standards, 2D and 3D composition, writing about buildings and their construction, and reading architectural drawings are central to this course. Students develop graphic skills and the basic foundation to talk, write, and graphically express architecture and its construction.
“The element of greenery and scenes that are seen in this memorial bringing that cottage coponent into this memorial. It has a base of glass and fossilized Irish limestone, and has a text of quotes and poems arounf the surrounding wall.”
“Its main transit hall is 365’ long and 115’ wide, soaring 160’ to a steel and glass canopy above that opens on the anniversary of the September 11th attacks.”
“Using water on this structure and the sounds of it gives me the feeling of healing. As, if you are almost at an ocean hearing water is always peaceful to the mind and the heart. It seems to me the builder was trying to provide a place for those who have lost family members (for healing) on 9/11...”
1. John Jaimes, Jose Toshua (Kaufmann)
2. Izabela Keqaj, Anna Sanchez (Kaufmann)
3. Angel Mirabal (Kaufmann)
4. Najwan Kased (Kaufmann)
5. Jason Sherchan (Kaufmann)
6. Nouha Lekhzoumy (Gernet)
7. Priyanka Komal, Jerselyn Guerrero, Fernando Fernandez, Thais Garcia (Romeo)
1. Tiffany Campos, Issac Baez, Tyrel Sandy, Luis Nina (Kidd)
2. Anita Kovaci (Salomon)
3. Ognen Hristovski (Salomon)
Clockwise from top left:
COLLEGE NOW SUMMER ARCHITECTURE & URBAN DESIGN IMMERSION PROGRAM 2024
PROF. NAOMI LANGER-VOSS
PROF. JIEUN YANG
College Now at City Tech guides well-qualified high school students interested in pursuing architecture degrees. The program uses New York City as a living laboratory to contextualize and comprehend forms and experiences of different neighborhoods and communities through the cultural lens – of architecture being influenced by cultural complexity and how it can shape our environments. The course frames these issues through multiple layers of documentation and representation learned from lectures, workshops with guest lecturers, laboratory work, and hands-on fieldwork/ weekly trips.
ARCHITECTURAL
DESIGN
I ARCHITECTURAL DESIGN I
A first-year foundational course that increases students’ ability to perceive visual cues, create visual design, formulate concepts, and render ideas in two or three dimensions. Students use a combination of hand and digital skills to aid in the creation and interpretation of three-dimensional objects and space, and the delineation of the same using standard projection systems. The Visual Studies component of the course equips students to make aesthetic evaluations and translate information into graphic representations and visual designs.
SELECTED WORKS BY:
PROF. CHRISTIAN CAMACHO
PRO. RENATA GOMES
Adan Flores
Lisvelibania Nunez
Santiago Gonzalez
PROF. COLIN CARPENTER
PROF. ANN LEE
Issac Baez
Jonathan Green
PROF. DWAYNE DANCY
Ashlyn Portoviejo
Kevin Gulavita
Tiffany Campos Morales
PROF. DEENA DARBY
Jackie Wu
Elda Llalloshi
Natalie Santacruz
PROF. TIMOTHY KHALIFA
Amaya Tupacyupanqui
Emilia Cando
Micaiah Chang
Vladislav Molchanov
PROF. ELENA M’BOUROUKOUNDA
Vicente Barrera
Vanessa Bautista
Anita Kovaci
Diego Lopez
Brian Pietrzak
PROF. IOANNIS OIKONOMOU
PROF. EIRINI TSACHRELIA
Danisha Couloute
Samanta Lopez Gil
Juan Luna
Falehah Omar
Gladys Vigil
PROF. MARY-JO SCHLACHTER
Anjum Ahmmed
Mari Kiguradze
Steven Marquez
PROF. AMMR VANDAL
Caetana Megre
Allison Alvarado
1. Caetana Megre (Vandal)
2.
3.
4.
5.
Allison Alvarado (Vandal)
Issac Baez (Carpenter/Lee)
Elda Llalloshi (Darby)
Jonathan Green (Carpenter/Lee)
4.
1. Adan Flores (Camacho/Gomes)
2. Natalie Santacruz (Darby)
3. Santiago Gonzalez (Camacho/Gomes)
Jake Wu (Darby)
5. Lizvelibania Nunez (Camacho/Gomes)
East Interior View
1. Juan Luna (Oikonomou/Tsachrelia)
2. Samanta Lopez Gil (Oikonomou/Tsachrelia)
3. Gladys Vigil (Oikonomou/Tsachrelia)
4. Danisha Couloute (Oikonomou/Tsachrelia)
5. Falehah Omar (Oikonomou/Tsachrelia)
1. Anita Kovaci (M’Bouroukounda)
2. Vicente Barrera (M’Bouroukounda)
3. Diego Lopez (M’Bouroukounda)
4. Vanessa Bautista(M’Bouroukounda)
5. Brian Pietrzak (M’Bouroukounda)
1. Anjum Ahmmed (Schlachter)
4.
5.
2. Ashlyn Portoviejo (Dancy)
3. Steven Marquez (Schlachter)
Vladislav Molchanov (Khalifa)
Mariam Kiguradze (Schlachter)
1. Kevin Gulavita (Dancy)
2. Tiffany Campos Morales (Dancy)
3. Micaiah Chang (Khalifa)
4. Amaya Tupacyupanqui (Khalifa)
5. Emilia Cando (Khalifa)
ARCHITECTURAL DESIGN Ii ARCHITECTURAL DESIGN Ii
A first-year foundational course that advances students’ ability to perceive visual cues, create visual design, formulate concepts and render ideas in two or three dimensions. Students use a combination of hand and digital skills to aid in the creation and interpretation of three dimensional objects and space, and the delineation of the same using standard projection systems. The Visual Studies component of the course builds on the student’s knowledge of architectural representation and visualization and focuses particularly on: precise crafting of physical and analogue models, architectural presentations, analogue and digital rendering techniques.
SELECTED WORKS BY:
PROF. CHRISTIAN CAMACHO
PROF. LI LIAN TAN
Mumtaheena Chowdhury
Avril Garcia
Leslie Munoz
PROF. CLAUDIA HERNANDEZ-FEIKS
Jack Alhalabi
Adonis Marte
Sherlyne Sibri
PROF. IOANNIS OIKONOMOU
PROF. EIRINI TSACHRELIA
Kelvin Jarama
Stacy Mendoza
Rachell Pena
Gladys Vigil
PROF. JASON O’KOREN
Sofia Bilbao
Washington Daquilema
Jonathan Green
Maram Kaid
Daniel Rendon-Cano
Nicholas Vellone
PROF. AMMR VANDAL
Marjorie Cullqui
Thais Garcia
Vladislav Molchanov
PROF. SHAAD ZAIDI
Scarlet Nunez
1. Gladys Vigil (Oikonomou/Tsachrelia)
2. Rachell Pena (Oikonomou/Tsachrelia)
3. Stacy Mendoza (Oikonomou/Tsachrelia)
4. Kelvin Jarama (Oikonomou/Tsachrelia)
5. Scarlet Nunez (Zaidi)
Clockwise from top left:
1. Washington Daquilema (O’koren)
2. Sofia Bilbao (O’koren)
3. Nicholas Vellone (O’koren)
4. Daniel Rendon-Cano (O’koren)
5. Mariam Kaid (O’koren)
6. Jonathan Green (O’koren)
1. Sherlyne Sibri (Hernandez)
2. Vladislav Molchanov (Vandal)
3.
4.
5.
6.
Thais Garcia (Vandal)
Jack Alhalabi (Hernandez)
Marjorie Cullqui (Vandal)
Adonis Marte (Hernandez)
1. Avril Garcia (Camacho/Tan)
2. Leslie Munoz (Camacho/Tan)
3. Mumtaheena Chowdhurry (Camacho/Tan)
ARCHITECTURE HISTORY TO 1900 ARCHITECTURE HISTORY TO 1900
In the first of a three course sequence, students study the history of architecture from early civilizations to the start of the Industrial Revolution. Architecture is examined as an expression of the culture and life of a society; studying architecture from around the world within its social, temporal, and spatial contexts prepared students to engage with the diversity of the built environment. . While the history of Western architecture is covered from ancient Egypt to the Enlightenment, a special focus is directed to the architectures of the Far East, South Asia, Africa, pre-Columbian Latin America, the Islamic World, and elsewhere to provide a comprehensive overview of the richness and diversity of architecture as a cultural artifact.
SELECTED WORKS BY:
Jazmin Alvarez
Diego Lopez
Vladislav Molchanov
Emerson Say Garcia
St.Charles Church The Karlskirche (1737)
Johann Bernhard Fischer Von Erlach
By Jazmin Alvarez
The Karlskirche (Church of St.Charles) is baroque-style. The Karlskirche is approximately 72 meters tall, and the dome is expected to be around 70 meters tall. This church was designed by Johann Bernhard Fischer Von Erlach The Karlskirche was influenced by various cultures, religions, construction techniques, and materials. The Karlskirche mainly used the Baroque architectural style. The Baroque architectural style originated in Italy and spread throughout Europe. The Baroque style shows grandeur, drama, and ornate decorations. The Karlskirche incorporated elements of Greek and Roman architecture. The ones shown are the columns and the dome; both columns and the dome were significant use in the Baroque period. The Karlskirche was constructed using a combination of stone, marble, and frescoes that create an intricate and elaborate design. There was a plague epidemic in 1713 that had a significant impact on the construction of the Karlskirche. The plague outbreak heavily impacted Vienna. The plague hit central Europe. The black plague hit it. Emperor Charles VI (left) constructed the Karlskirche church as a promise when Vienne was free from illness. The church was to dedicate St.Charles Borromeo because the patron saint against the plague and it was a way to honor him and as a way to seek his intercession in protecting the city from future outbreaks.
The Karlskirche was a place that served as a worship place, where people gathered for Mass, prayer, and other religious ceremonies. The Karlskirche church symbolizes the emperor’s devotion; it played a vital role in the spiritual and religious community. Sant’ Agnese inspired the Karlskirche in Agone because both churches showcase the beauty of baroque styles and are characterized by intricate details and elaborate decorations. The Karlskirche was also inspired by a significant influence, which was Gina Lorenzo Bernini and Francesco Borromini. They both played a part in the development of baroque architecture. Both didn’t have any involvement with constructing the Karlskirche; they did have innovative ideas and architectural styles that greatly influenced the architect Johann Bernhard Fischer Von Erlach.
(left) Fischer von Erlach, Johann Bernhard (Austrian architect, 1656-1723). Book 4, Ta. XII: Karlskirche. 1721. Rare Books; Division of Rare and Manuscript Collections, Cornell University Library
(above) Kaiser Charles Vi by Johann-gottfried Auerbach
The Karlskirche floor plan is very unusual; it follows a central plan and has a symmetrical layout with a central axis (above). The Floor plan incorporated various architectural elements such as the oval-shaped sanctuary and two flanking columns that make the aesthetic of the church. The Karlskirche floor plan serves a purpose but shows the atmosphere of the space. Entering the Karlskirche church, you notice it is spacious and admire the opulent frescoes in the cupola painted by Johannes Micheal Rottmayr. Also, notice the windows bringing natural light to the high altar, as seen in. Lorenzo Mattielli created the high altar. The whole Karlskirche inspired Saint Charles Borromeo; this was a magnificent piece of artwork that depicted the scenes of Saint Charles Borromeo. Mattielli interacted with craftmade and paid attention to details that make the high altar a focal stunning point for the Karlskirche interior.
The Karlskirche shows both a blend of architectural influences and religious devotion. For example, in inclusion of columns that are inspired by the bas relief on Trajan’s Column in Rome. The columns at the church entrance show scenes from the life of St.Charles Borromeo. The columns are called the “ Column of the Virtues”; the statues are called this because it is a way to represent different virtues such as faith, hope, and charity. The column is not only for decorative elements but carries a symbolic meaning, reminding visitors of the importance of these virtues in their lives.
(left) Fischer von Erlach, Johann Bernhard. A plan of civil and historical architecture. London : Published at the expense of the translator, 1737.
(left) This image shows the interior of the Karlskirche,it shows the main altar and is detailed. The interior is very bright and there are decorations of white stucco and gold. Their angels and clouds surround in triangle form in the apse area.
Villa Madama (1510)
Raphael
and Antonio da Sangallo
By Diego Lopez
Just outside the city limits of Rome, Pope Leo X had acquired land on Monte Mario. In the mid-1510s, the pope and his cousin, Cardinal Guilio de’de’ Medici (left), and future Pope Clement VII, commissioned Raffaello Sanzio de Urbino to design a villa on the mountain slope. Officially, cardinal Guilio was in charge of financing the project. Therefore, the villa belonged to the Medici dynasty. Villas situated in rural areas were constructed so that the aristocracy could have a place of leisure and escape the compact feeling of urban regions. Raphael was exceptionally accomplished in designing a villa and redefining a villa rustica into a sophisticated, engaging, and glorious mini palace. The original design of the Villa Madama featured an atrium, cortile, and parterres at multiple levels. At the elevation the villa was situated, the views over the untouched nature would have provided a sanctuary for the Medicis away from their administrative work. The villa was meant to extend down the mountain slope into the Tiber River. However, historical events prevented the complete construction of the villa. Raphael and Antonio da Sangallo oversaw the villa’svilla’s construction for a few years until the death of Raphael in 1520, slowing the progress of the building. A year later, Pope Leo X’s death halted the villa’s construction. Two years later, Cardinal Guilio ascended into the papacy, allowing for the construction of the villa to continue.
The villa was meant to extend down the mountain slope into the Tiber River. However, historical events prevented the complete construction of the villa. Raphael and Antonio da Sangallo were overseeing the construction of the villa for a few years until Raphael’s death in 1520 slowed the progress of the construction. A year later, Pope Leo X’s death halted the construction of the villa. Two years later, Cardinal Guilio ascended into the papacy, allowing the construction of the villa to continue.
(above) Raphael, Italian, 1483-1520, (draftsman), et al. Villa Madama. 1925.
(right) Raphael, 1483-1520. Pope Leo X with Cardinals Giulio de’Medici and Luigi de’Rossi. oil on wood, 1517-8. Galleria degli Uffizi.
(right) John C. Shepherd (British,-1978), and Geoffrey Alan Jellicoe (British, 1900-1996 ). Villa Madama (Plate 10). creation date: 1925. Elizabeth Barlow Rogers Collection (New York, New York, USA)
In 1527, the soldiers of the Holy Roman Empire attacked Rome. Under the Sack of Rome, the villa was disturbed and moderately damaged. Pope Clement VII shifted his worries from the villa to protect his power and control over his territories as a pope and the Medici inheritance.
(above) Anonymous, French, 19th century, Former Attribution: Formerly attributed to Charles Percier (French, Paris 1764-1838 Paris). Ceiling, Cove, and Wall Decorations of the “Guilio Romano” Room, Villa Madama. 1824.
After the death of Raphael, Giulio Romano and Giovanni da Udine, apprentices of Raphael had taken more artistic liberty to decorate the villa. Romano had incorporated frescoes on the ceilings. Ancient Romans and Greeks used this practice. In a portion of the depictions of the frescoes, Romano incorporated the coat of arms of the Medici (left). Additionally, the frescoes contained depictions of humans with mystical combinations of animals, a style commonly known as grotesque.
The current entrance of the villa was meant to be the courtyard of the original villa. This feature from the Romans allowed for the fluidity of air and an open connection to nature. Raphael continued with the theme; the loggias also provided a tall and appropriate channel between the interior of the villa and the vibrant natural gardens. In the loggia, people would have a designated space to admire the exterior from a sheltered area. Furthermore, incorporating parterres provides domestication of the natural world into the hands of humans. The garden also provides a calm sensation to the inhabitants. The well-maintained gardens at the villa symbolized wealth to maintain land not used for agriculture. Still, instead for the pleasure of strolling through trimmed vegetation, water was an element that demonstrated luxury, especially having clean water over the polluted Tiber River. In the parterre, Romano sculpted the head of Pope Leo X’s pet elephant. The sculpted head functioned as a fountain. The water flowed under the garden and over the terrace into a pool. The pool was commonly known as the fish pond. The pond was another example of how aristocrats commissioned villas to demonstrate the patrons’ wealth. The villa’s location on the slope of Monte Mario allowed Raphael to use the views and include areas for viewing, such as the terrace and balcony on the garden and from the villa.
The New Assumption Cathedral (1687 and 1692) Osip Startsev.
By Vladislav Molchonov
The New Assumption Cathedral is the most significant and majestic building of the Naryshkin style in the Ryazan Kremlin. At the end of the 17th century, the small old Assumption Cathedral no longer suited the Ryazan Metropolitan due to the city’s growth. Moreover, the old Cathedral was in very poor condition. There was a need to build a new one. The location was chosen south of the ancient Assumption Cathedral. The site was cleared for construction: the old Zeleinaya (powder) Chamber was dismantled, and the remains are still preserved in the ground between the Assumption and Nativity Cathedrals. Construction of the new Cathedral began in 1684 by apprentices Sharypin, Kalinin, and Susanin. But in 1687 and 1692, the Ryazan Metropolitan had to refuse their services and hired a Moscow architect, Osip Startsev. In 1692, the Cathedral, already built to the very top, suddenly collapsed due to weak soils and, at the same time, destroyed the neighboring church. Following this, tenders were announced for the construction of the Assumption Cathedral.
From the digital publication of Federal Agency for Culture and Cinematography of the Russian Federation Federal State Institution “Ryazan Historical and Architectural MuseumReserve”
“Museum reserve. Ryazan Kremlin” Ryazan 2005
(left) Ryazan Kremlin, northwest view. From left: Archbishop’s Palace, Cathedral of Nativity of Christ, Dormition Cathedral, Epiphany Church, Transfiguration Cathedral, bell tower. Summer 1912.
Photo by Sergei Prokudin-Gorsky
Famous architects of the late 17th century participated in them: Osip Startsev, Yakhov Bukhvostov, and Grigory Mazukhin. Yakhov Bukhostov won the auction. In 1693, he began to build the Cathedral on the model of the Assumption Cathedral of the Moscow Kremlin, but it was larger in size. Bukhvostov’s Cathedral is also six-loped, with round pillars. The Assumption Cathedral and its bell tower are built to be seen from anywhere in the city and about 20 kilometers from Ryazan. Previously, these buildings were a natural visual landmark when navigating the Oka. This is the first time such a grandiose volume has been raised so high. Three lowered apses further emphasize its grandeur. The Cathedral dominates the surrounding area, organizes the city’s spaces, and points to its ancient center from afar. What the Cathedral initially looked like can be seen in the reconstruction drawing authored by the architect Mikhailovsky. The original carved iconostasis made by master Khristoforov has been preserved.
(above) Surviving map of the Ryazan Kremlin from 1786.
Both images from the digital publication of Federal Agency for Culture and Cinematography of the Russian Federation Federal State Institution “Ryazan Historical and Architectural Museum-Reserve” “Museum reserve. Ryazan Kremlin” Ryazan 2005
All icons are painted by the artist Nikolai Solomonov, a follower and student of Simona Ushakova. The carving of the iconostasis, executed by Sergei Khristoforov, is distinguished by exceptional artistic merit. The openwork trunks of its columns, made from one piece of wood, are fantastic. The artist Shumov made a watercolor drawing in the second half of the 19th century of the iconostasis of the Assumption Cathedral, which gives an idea of its composition as a whole and later was used as a blueprint for restoration works in the 20th century. The interior walls of the building were not originally painted. The painting appeared only in the 19th century. Moscow artist Stepanov painted the inside of the Cathedral in 1855. The apse was painted in 1857. In 1891, the Cathedral was painted a second time. A fragment of a 19th-century painting has been preserved in the vaults. After 1917, church services in the Cathedral were discontinued. The interior paintings on the columns and walls have been damaged by whitewash. The new government requisitioned icons and all church property.
In the 1950s, emergency work was carried out on the monument because of the appearance of large cracks in the walls and vaults due to the poor condition of the foundations. In 1952-53, restoration and reconstruction work took place, which began at the entrance and went up to the cornice. The Assumption Cathedral was inevitably split in half; the crack expanded daily. A delay in restoration work could lead to the destruction of the main structure of the Ryazan Kremlin. The Ryazan Regional Committee of the CPSU set the restorers a task: to save an architectural monument by strengthening its foundation. In 1963, the restoration of the iconostasis carvings made by Russian masters at the turn of the 17th and 18th centuries was completed. In 1963, a planetarium was opened in the building of the Assumption Cathedral, which operated back in the 70s of the last century. The planetarium was created on the initiative of the Ryazan branch of the All-Union Astronomical and Geodetic Society and the Ryazan Pedagogical Institute. The city planetarium in the Assumption Cathedral will be the central part of the Department of Scientific and Atheistic Propaganda of the Ryazan Regional Museum of Local Lore. Later, museum exhibitions were held in the Assumption Cathedral. 1992, the Cathedral was returned to the Ryazan diocese and reconsecrated on June 13, 1992. On this day, His Grace Simon (Novikov), Archbishop of Ryazan and Kasimov, celebrated an all-night vigil. The next day, June 14, on the feast of the Holy Trinity, the Divine Liturgy was celebrated in the church. For the 900th anniversary of Ryazan in 1995, the ancient iconostasis was restored in the temple.
(left) The Cathedral of the Assumption during restoration works on limestone carvings. 1950.
(right) The Cathedral of the Assumption during restoration works. 1950.
Royal College of Our Lady and Saint Nicholas (1441) [Commissioned by] King Francis I
By Emerson Say Garcia
At 19, Henry VI began the construction of the ‘College Royal of Our Lady and Saint Nicholas’ in Cambridge on Passion Sunday, 1441. This marsh town, which was still a port then, required Henry to exercise a form of compulsory purchase to make space for his College. He demolished houses, shops, lanes, wharves, and a church between the river and the high street (now King’s Parade). This endeavor took three years to complete. He went to great lengths to ensure that King’s College Chapel would be unparalleled in size and beauty. On St James’ feast day, which fell on July 25, 1446, the king laid the Chapel’s foundation stone. This marked the initial phase of his grand vision for a magnificent court, with the Chapel serving as the northern side of the complex. Two years later, in 1448, Henry detailed his intentions and desires in his ‘will and extent.’ However, despite his elaborate plans, only the Chapel was ultimately finished, leaving the rest of the court unfinished.
The Wars of the Roses erupted in 1455 when Richard Duke of York challenged Henry’s claim to the throne, and this event became linked with the construction of the Chapel. Despite the unrest that lasted for 11 years, the building work continued under Henry’s support. However, the annual grant of £1000 from the Duchy of Lancaster, the king’s family estates, became irregular and eventually stopped altogether. Then, in 1461, Henry was captured and taken as a prisoner. It is said that a partially carved stone was left behind and later used as a foundation stone for the neighboring Gibbs building in 1724. Over 15 years, the Chapel’s foundations were laid. The walls gradually rose from east to west. Henry was assassinated in the Tower of London on May 21, 1471, and despite losing England and France, the kingdoms inherited from his father, Henry’s legacy included establishing two of England’s most esteemed colleges. Richard III, known for his infamous portrayal as a hunchback, generously initiated the resumption of work. He urged for rapid progress, instructing the workers to be diligent and imprisoning those who hindered or delayed the construction. By the end of his reign, the Chapel had completed six bays at their full height, with the first five bays already furnished with oak and lead roofs.
Smart, R. W., and Harraden, Richard Bankes, 1778-1862. King’s College Chapel, Cambridge. Line Engraving by R.W. Smart, 1826, after R.B. Harraden
(left) Gardiner, W. N. 1766-1814, (William Nelson), et al. King Henry VI, from Painted Glass in King’s College Chapel, Cambridge S. Harding, Del. ; W. N. Gardiner. 1790. Folger Shakespeare Library.
Richard III was defeated and killed by Henry VII at the Battle of Bosworth in 1485. Despite the College’s plea for the king’s attention, the construction of the Chapel was halted for two more years. However, in 1506, Henry VII visited Cambridge, where a service for the Knights of the Garter was held in the Chapel. The first five bays of the Chapel had a timber roof and were adorned with the coats of arms of the Knights of the Garter. Lady Margaret Beaufort, Henry VII’s mother, played a significant role in inspiring him to complete the Chapel, as she was committed to continuing the pious projects initiated by Henry VI. To fund the construction, Henry VII contributed money stored in the chest, which is still present in the Chapel.
(right) The War of the Roses - Edward IV and Lancastrian Fugitives at Tewkesbury Abbey” (aka “Sanctuary”) by Richard Burchett (1815 – 1875 CE)
The shell of King’s College Chapel was fully constructed and covered with timber and lead by 1512. Henry VII’s executors provided additional funds to vault the Chapel, and by 1515, the main structure was finished. The majority of the glazing and woodwork, including the screen, was completed during the reign of Henry VIII. When Henry VIII passed away in 1547, King’s College Chapel was acknowledged as a remarkable late medieval building and considered one of the finest in Europe.
(right) Cambridge. King’s College Chapel (Interior). albumen prints, ca. 1865-ca. 1885. Division of Rare and Manuscript Collections, Cornell University Library; Andrew Dickson White architectural photograph collection
ARCHITECTURAL DESIGN Iii ARCHITECTURAL DESIGN Iii
An exploration of abstract architectural design theory in the expression of three-dimensional space. The creation of comprehensive architectural design projects are developed following a building program and incorporating elements of site, enclosure, structure, material and technology. Design concepts and vocabulary are introduced and strengthened through design projects. A juried presentation takes place at the completion of each project.
SELECTED WORKS BY:
PROF. PAUL COUGHLIN
Nick Antonie
Sofia Bilbao
Noelia Lazo
Abigail Paul
Anthony Ramos
PROF. WILLIAM FRYER
Abeni Chen
Haneen Eid
Abdulbaset Elfgeeh
Avril Garcia
Leslie Munoz
PROF. EUGENE PARK
Willeiris Difo Guzman
Ashton Estevez
Lorenzo Jeremie
Michael Morales
Pamela Panushi
Monisha Sooklall
PROF. JOSEPH VIDICH
Andrew Aucazhala
Dayana Navarro
Raymundo Gomez
PROF. YAN WANG
Priya Babu
David Bailey
Mildred Miranda
Michael Ray Malonjao
Kiamfan Tang Liang
Elijah Walker
1. Monisha Sooklall (Park)
2. Michael Morales (Park)
3. Pamela Panushi (Park)
1. Willeiris Difo Guzman (Park)
2. Ashton Estevez (Park)
3. Lorenzo Jeremie (Park)
1. Abigail Paul (Coughlin)
2. Anthony Ramos (Coughlin)
3. Nick Antoine (Coughlin)
1. Andrew Aucazhala (Vidich)
2. Dayana Navarro (Vidich)
3. Raymundo Gomez (Vidich)
Clockwise
1. Sofia Bilbao (Coughlin)
2. Haneen Eid (Fryer)
3. Abeni Chen (Fryer)
1. Avril Garcia (Fryer)
2. Leslie Munoz (Fryer)
3. Abdulbaset Elfgeeh (Fryer)
1. Michael Ray Malonjao (Wang)
2. Elijah Walker (Wang)
3. Kiamfan Tang Liang (Wang)
1. Noelia Lazo (Coughlin)
2. Priya Babu (Wang)
3. Miranda Mildred (Wang)
4. David Bailey (Wang)
ARCHITECTURAL DESIGN IV ARCHITECTURAL DESIGN IV
The course emphasizes the architectural process involved in designing small to medium size projects for specific building types. The process includes initial research and analysis, program development, flow diagrams, schematic design, and massing studies, the development of schematic 3D models, plans and sections, through final presentation.
Students propose a specific theme and content for “A Museum of Culture”, imagining the new museum as an exciting destination for local, regional, national, and international visitors. The curatorial theme draws from a particular culture or cultural phenomena, ranging from a topic directly related to the student’s own identity to a particular area of interest shared by a group of people.
SELECTED WORKS BY:
PROF. CLAUDIA HERNANDEZ-FEIKS
Nick Antoine
Daniell Gibson
Jeremyah Herrera
Anthony Ramos
PROF. ELISABETH MARTIN
PROF. MARS PODVORICA
Haneen Eid
Elvio Gimenez
Brandon Martinez
Steven Romero
Kiamfan Tang Liang
Pierre Theodat
PROF. ELIZABETH PARKS
Andrew Aucanzhala
Lamar Charles
Nayely Chimborazo
Raymundo Gomez
Julia Kolpak
PROF. JIEUN YANG
Gana Elhanafy
Mohamed Hassan
Michael Ray Malonjao
Nasir McIntosh
Monisha Sooklall
Elisabet Tolentino
Aaron Verdugo
from top left:
Clockwise
1. Jeremyah Herrera (Hernandez)
2. Danielle Gibson (Hernandez)
3. Nick Antoine (Hernandez)
1. Brandon Martinez (Martin/Podvorica)
2. Pierre Theodat (Martin/Podvorica)
3. Steven Romero (Martin/Podvorica)
Clockwise
1. Kiamfan Tang Liang (Martin/Podvorica)
2. Elvio Gimenez (Martin/Podvorica)
3. Haneen Eid (Martin/Podvorica)
1. Nayley Chimborazo (Parks)
2. Lamar Charles (Parks)
1. Julia Kolpak (Parks)
2. Andrew Aucanzhala (Parks)
3. Raymundo Gomez (Parks)
1. Aaron Verdugo (Yang)
2. Mohamed Hassan (Yang)
3. Nasir McIntosh (Yang)
Clockwise from top left:
1. Michael Ray Malonjao (Yang)
2. Monisha Sooklall (Yang)
3. Elisabeth Tolentino (Yang)
4. Gana Elhanafy (Yang)
ARCHITECTURE
The second of a three course in the hisotry sequence, students engage in a comprehensive study of modern architectural movements from the 1900’s to present day. They are asked to consider architects and their buildings in relationship to their cultural, artistic, philosophical, historical, and technological contexts.
SELECTED WORKS BY:
Michelle Riddick
Villa Mairea, Finland --------------------------
Little Island, New York
Michelle Riddick
The Villa Mairea was built in Noormarrku, Finland, a secluded wooded land mass approximately 162 miles from Helsinki. The architects of record were Hugo Alvar Henrik Aalto (1898 – 1976) and Aino Maria MarsioAalto (1894 – 1949). The design phase of this building took place in 1937. Construction commencement Little Island is located on at West 13th Street between Pier 54 and Pier 56 in New York City. The architects of record were ARUP and Matthew Nielsen Landscape. The design phase took place in November 2014, construction began in April 2018 and opened to the public in May 2021. One of the notable methods of design that stood out immensely, of both the Villa Mairea and Little Island, is the application of humanizing architecture, a principle that bridges a connection between the function of the structure and humans’ unconscious synergy with the space. Often at times, there is a disconnection with the built environment and human interaction with said environment. This is not evident within these two (2) cases studied, rather the complete opposite.
The Villa Mairea and Little Island both share a program focusing on amenities and activities for families. The Villa’s program is for private use designated for a smaller audience, while Little Island is geared for a larger audience.
The form of the Villa Mairea is a combination of rectilinear and non-rectilinear segments. The rectilinear components are shown in the overall L-Shaped floor plan with its use of horizontality on the first and second floor. Further observation of the nonrectilinear elements is shown in the curvature of the irregularly shaped pool, the cantilever canopy at the entrance and the curvilinear shaped studio abutting the vertical wall of Mrs. Gullichsen’s bedroom and family hall. The house itself rests atop of a hill in the middle of the forest, emulating the topography of the landscape, replicating the textures of the surrounding trees, and mimicking the color palette of the earth. Sections of the façade are enveloped with vines and brushes. The interior, all of which was rendered by Mrs. Aalto, experiments with combining different textures and patterns administering a personal touch to the space depending on the function and hierarchy of the area. The natural beauty of the wood posts surrounding the main staircase, and the natural stone flooring of the exterior staircase, coupled with the flower room laced with luscious plants usher an additional layer of organicism to the Villa. One should take note in the design of the interior columns. Some of the columns are situated in a singular fashion or combined as one, either painted white or black to provide a softer, humanistic display of a material deemed cold, fixed, and solid. These examples further identify the Aalto’s methodology in providing a soul to inanimate objects, a soul that can connect with its human occupants.
(above) Exterior of Villa Mairea, Alvar and Aino Aalto
(below) Living room with Aino Aalto and Maire Gullichsen, Noormarkku, Finland, 1939.
(right) Plan of Villa Mairea, Alvar and Aino Aalto. 1939.
nitial view of Little Island at a distance incorporates organicism and non-rectilinear forms that are similar in type and kind to the Villa. This is exhibited by way of the supporting structure itself. When approaching the site, the various heights, and depths of the “pots” atop of the concrete pilings give the appearance of a wave, which is suitable given the fact the Island is situated on the Hudson River. The pipe wall aligning the perimeter of the park ebbs and flows along the undulating “pots” like the tide of the Hudson River. This is a stark contrast to the conventional layout of NYC parks which are rectangular and flush to grade. The impression of Little Island is a static object floating above water.
The form for both the Villa Mairea and Little Island further exemplifies humanizing architecture by bridging the organic elements of nature with human activity of its occupants.
The Villa Mairea and Little Island share one profound component which is humanizing architecture. Albeit, both projects have different programs, of which one is a recreational park, and the other is a residence, each centered their program planning around the human experience with their work. In relation to structure, each study utilizes its load bearing/non-load bearing elements with consideration of the audience’s responsiveness with these elements. With respect to form, the rectilinear and non-rectilinear ingredients imitate the visual presence of organicism and its correlation of the human interconnection with nature.
As for organization, each project is deliberately designed to engage with the environment and that, in return, builds a bond with humans on an organic level. An interesting viewpoint that was discovered while preparing this composition is the characterization of the Villa Mairea in sections of “summer living” and “winter living.” This position is consistent as the summer living on the first floor, with its thinner walls and larger glazing, represents inherent qualities and human activities performed in the summer. The first floor contains the music room and living room and the second floor contains the bedrooms. For example, the large glazing represents the increase in sunlight and longer hours of daylight and the thinner walls represent the lightness of clothes worn in the summer. One can assume the first floor absorbs more heat than the second floor. The same analogy can be made for the thick heavy walls on the second floor, or “winter living.” This represents the increase in attire worn in the winter, or the activity of hibernation. Additionally, the smaller windows illustrate the shorter hours of daylight, all factors that occur in the winter. In contrast, with respect to Little Island, this analogy is not applicable. Little Island is an open facility directly exposed to the summer and winter seasons. Therefore, the design of the Villa is a metaphor of the occupant’s interaction with the seasons, while visitors of Little Island encounter the seasons directly.
One can surmise Alvar Aalto, being the father of humanizing architecture, was ahead of his time, or the designers of Little Island sought inspiration in humanizing architecture from pioneers of the past.
(above right) Industrial Pier 54 before little island
(below right) Little Island 2023.
(left) Plan of Little Island. Thomas Heatherwick Studio
ARCHITECTURAL DESIGN V ARCHITECTURAL DESIGN V
An investigation of the adaptive reuse of buildings with a focus on projects involving the redesign and expansion of existing structures. Research, documentation and redesign of an existing structure from concept to design development are integral to the course. Addresses the integration of structure, lighting, interior materials, finishes, space programming and furniture layout. Students are required to meet current design and functional needs of the design problem’s program as well as code requirements.
SELECTED WORKS BY:
PROF. LIA DIKIGOROPOULOU
Saida Akbarova
Erik Asatryan
Fareda Elsherif
Christopher Gonzalez
Jeremy Ozoria
Steven Romero
PROF. MIGUEL MALDONADO-TORRES
Auhtumn Archibald
Nouman Arshad
Ludje Henry
Pablo Herrera
Lamar Charles
Nasir McIntosh
Clockwise from top left:
1. Saida Akbarova (Dikigoropoulou)
2.
RENDERS
Jeremy Ozoria (Dikigoropoulou)
3. Christopher Gonzalez (Dikigoropoulou)
1. Erik Asatryan (Dikigoropoulou
2. Steven Romero (Dikigoropoulou)
3. Fareda Elsherif (Dikigoropoulou
1. Pablo Herrera (Maldonado)
2. Lamar Charles (Maldonado)
1- PRIVATE ROOMS
2- 4-BED ROOMS
3- 6-BED ROOMS
4- 8 BED ROOMS
5- WOMEN’S RESTROOM
6- MEN’S BATHROOM
7- GENERAL STORAGE
8- JANITORS CLOSET
9- TRASH ROOM
10- INDOOR SKATE PARK
3. Nasir McIntosh (Maldonado)
SINGULATIRY HOSTEL | NASIR MCINTOSH | PROF. MIGUEL MALDONADO
SPRING
SINGULATIRY HOSTEL | NASIR MCINTOSH | PROF. MIGUEL MALDONADO | SPRING 2024
SINGULATIRY HOSTEL | NASIR MCINTOSH | PROF. MIGUEL MALDONADO
ARCHITECTURAL DESIGN VI ARCHITECTURAL DESIGN VI
This is an advanced design studio where the significance of public housing will be examined. The studio will research, evaluate analyze and investigate multi-family housing and urban redevelopment, and propose an exploratory approach to the planning and delivery of housing. The final project will consist of designing high density mixed –use housing and public space with community amenities.
SELECTED WORKS BY:
PROF. JILL BOURATOGLOU
Alyssa Duran
Brandon Hernandez
Jeremy Ozoria
Adam Pepere
Lindsey Tlahuextl
PROF. FREDERIC LEVRAT
Auhtumn Archibald
Noel Garcia-Vasquez
Ravendra Ramnarace
Emmanuel Tejada
1. Alyssa Duran (Bouratoglou)
2. Lindsey Tlahuextl (Bouratoglou)
3. Brandon Hernandez (Bouratoglou)
1. Noel Garcia-Vasquez (Levrat)
2. Auhtumn Archibald (Levrat))
3. Ravendra Ramnarace (Levrat)
4. Emmanuel Tejada (Levrat)
FRANKLIN AVE SECTION (CROSS SECTION)
PHYSICAL FACADE STUDY MODEL
developed, and I went back to my initial collage to start my process. As a seed is planted, it eventually develops into a fullygrown tree. This is the concept I developed to create a language for my facade which reinforces my biophilic design and ties into my orginal collage and physical models.
Eastern Redbud (Cercis canadensis)
Sweetgum (Liquidambar styraciflua)
Northern Bayberry
Winterberry (Ilex verticillata)
ALUMINUM FRAMED WINDOW
STEEL FRAME FOR CONCRETE PANEL
CONCRETE PANEL SKIN
ANCHOR FOR CONCRETE PANEL
CONCRETE SLAB
1. Adam Pepere (Bouratoglou)
2. Jeremy Ozoria (Bouratoglou)
ARCH 3612 | Design VI | Jeremy Ozoria
| Jill Bouratoglou
ARCHITECTURE OF NEW YORK CITY ARCHITECTURE OF NEW YORK CITY
All students at CityTech are challenged to engage deeply with the school’s context - New York City. How does a megalopolis develop? Student explore this question by tracing the course of Architectural History from the village to the present role of the city as the commercial and cultural hub of the nation.
In the third course of the history sequence, students engage in the historical analysis of the city’s infra-structure, real estate development, municipal planning and ordinances and key buildings using the comparative method.
This course stresses the dynamic socio-economic determinants emerging as a result of improvements and growth in technology, transportation, infrastructure, real estate, commerce, housing and recreation.
SELECTED WORKS BY:
Jefferey
Anissa Ramadini
Shannon
The Loss of San Juan Hill and the Gain of Lincoln Center
Shannon Jeffrey
San Juan Hill was destroyed in order to make way for what we now know as Lincoln Centre. San Juan Hill was a community that was of predominately black and Puerto Rican. San Juan Hill is the name of the space before Lincoln center was made. The area was mostly made up of African Americans who weren’t very well off. The space was filled with tenements, the space was vibrant and there was a very dominant jazz scene. The area was in constant racial conflict with the east side of Amsterdam. After World War II ended several blocks were taken down to make room for the Amsterdam houses. During April 1955 the concept of Lincoln center was being conceived. During this month on the 21st Mayor Robert F. Wagner Jr and his slum clearance committee was given the go ahead by the New York City Board of Estimate to use Lincoln square for urban renewal. The Lincoln Centers three main buildings the David Geffen Hall, David H. Koch Theater, Metropolitan Opera House were the first buildings that were opened. David Geffen Hall building opened in 1962 and was the first building of the three to open the other two opened in 1964 and 1966 respectively. Alice Tully hall opened its doors in 1969 alongside the Juilliard school. The last building to open was the Lincoln center theater which opened its doors in 1985. After the doors opened for the first time the buildings went under many reconstructions to get to where they are now.
San Juan Hill Before Lincoln Center became one of the world’s foremost destinations for the performing arts, the land at one time was known as the heart of a thriving Black and Latino Upper West Side neighborhood. San Juan Hill, which was bounded by Columbus and West End avenues, between about 58th and 70th streets, was known for its musical richness. San Juan Hill was once home to the largest Black community in NYC and later a sizable Puerto Rican population. It fostered top jazz musicians, Broadway talent and other Black icons — and now its memory is largely lost and displaced. The area was mostly made up of African Americans who weren’t very well off. The space was filled with tenements, the space was vibrant and there was a very dominant jazz scene.
San Juan Hill was demolished and destroyed by the real estate developer Robert Moses. The Metropolitan Opera, the New York Philharmonic Orchestra, and the New York City Ballet all moved into the former San Juan Hill neighborhood creating one of the earliest examples of what is now generally known as gentrification. A real neighborhood was destroyed and cleared out to make way for Lincoln Center.
Black residents and Caribbean immigrants started to move to San Juan Hill. It is uncertain if the neighborhood was named after the Buffalo soldiers, the 2,000 Black troops who fought under Theodore Roosevelt in Cuba during the Spanish American War. Many of them are said to have relocated there. San Juan Hill soon became a neighborhood of bustling creativity. As the popularity grew so did the culture of jazz and art. San Juan Hill had many tenement basement clubs ranging from dives to higher-level clubs. And that there were also poolrooms, saloons, dance halls, and bordellos. The neighborhood had a jazz club called “Jungle Cafe,” nicknamed the jungle by the members of the neighborhood. San Juan Hill was known as the birthplace of the Charleston and Bebop. Pianist James P. Johnson, one of the pioneers of the Stride (music) style of piano playing family, moved to San Juan Hill in 1908. Johnson composed the Roaring Twenties popular song “Charleston.” Many of Johnson’s compositions have been used as film scores and movies dating from 1929 to 2007. It’s also where the musical “Shuffle Along” debuted in 1921. It was an all-Black show with an all- Black creative team. It introduced jazz Broadway when it was transferred there, becoming a sensation among the mixed-race audiences who came to see it. There is a 2016 version about the making of the musical that starred Audra McDonald, Brian Stokes Mitchell and Billy Porter.
Residential housing and commercial establishments on 63rd Street in San Juan Hill, Manhattan, New York City, 1956
Construction of Lincoln Centre
Critics noted that it was designed to separate itself from the Black and Latino people who still lived in the area, particularly in the New York City Housing Authority’s Amsterdam Houses, which were built in 1948 as part of an earlier eminent domain project. While Lincoln Center’s east side opens out onto a wide plaza with its iconic fountain, its western edge is blocked by an uninviting, blank wall that runs along Amsterdam Avenue. A consortium of civic leaders and others, led by and under the initiative of philanthropist John D. Rockefeller III, built Lincoln Center as part of the “Lincoln Square Renewal Project” during Robert Moses’s program of New York’s urban renewal in the 1950s and 1960s. Respected architects were contracted to design the major buildings on the site.
Lincoln Center was the crown-jewel project of the Mayor’s Committee on Slum Clearance, which was overseen by Robert Moses who was known as the man who reshaped the city in the mid-20th century. The “urban renewal” plan, which leveled 18 city blocks on the Upper West Side, also included educational, commercial and residential facilities. However, when violence and poverty in the neighborhood caught the attention of Robert Moses, it was quite literally wiped off the map.
The project displaced more than 7,000 lower-class f amilies and 800 businesses. Few, if any, of the 4,400 new housing units were intended for the area’s previous residents, who were almost exclusively black and Hispanic. Even worse, the relocation assistance promised by the committee never materialized. Many of these evicted New Yorkers instead crammed into other low-income areas like Harlem and parts of the Bronx, deepening the rift of segregation and, ironically, creating new slums in a different part of the city.
Robert Moses leader of renewal in New York and Long Island . . .
Today, the musical history continues at Lincoln Center. The anticipated reopening of David Geffen Hall kicks off with a pair of concerts featuring Etienne Charles’ new work, San Juan Hill: A New York Story—performed by Etienne Charles & Creole Soul, and the New York Philharmonic, conducted by Music Director Jaap van Zweden. Etienne Charles is a composer, trumpet player, percussionist. Charles, who is originally from Trinidad, had never heard of San Juan Hill until he moved to New York to study for a master’s degree at Juilliard, which is part of the Lincoln Center campus. Charles had to think deeply about that complicated past and create a piece of music that would acknowledge that hidden history.
Charles eventually realized, however, that the razed neighborhood had significant Caribbean connections — and to jazz. Initially, Charles learned that pianist Herbie Nichols (whose roots were also in Trinidad) was from San Juan Hill. Not long after, the Jamaican pianist Monty Alexander told Charles that composer and pianist Thelonious Monk had also grown up in San Juan Hill.
The setting of “West Side Story” is San Juan Hill, the nickname of the Lincoln Square area of the Upper West Side of Manhattan. It bulldozed and redeveloped into the Lincoln Center performing arts complex in the early 1960s. The U.S. Housing Act of 1949 allowed and wanted the destruction of the San Juan Hill neighborhood, afflicted by poverty and urban decay. The act provided for the revitalization of slums as part of a wider vision promoting public housing
Was the destruction of San Juan Hill necessary? Only to displace thousands of families? It is even sadder that those who were displaced were mixed-income black population and Hispanic communities and middle and working-class families. It’s very hard to see that a community of such artistic abilities, that brought so much to the world and could have brought so much more got wiped away. San Juan Hill is a neighborhood that almost no one knows about, being almost wiped off completely. It is good to see that Lincoln Centre is trying to teach us about San Juan Hill in their own way. Lincoln Centre is one of the world’s most famous and important performing facilities in the world. But the fact that Lincoln Center is taking this opportunity to readdress the narrative of its founding shows Lincoln Centre did to remind us of San Juan Hill in their own way.
Bibliography
Tsioulcas, Anastasia. “Revisiting San Juan Hill, the Neighborhood Destroyed to Make Way for Lincoln Center.” Health News Florida, HEALTHNEWSFL, 7 Oct. 2022, https://health.wusf.usf.edu/2022-10-07/ revisiting-san-juan-hill-the-neighborhooddestroyedto-make-way-for-lincoln-center.
Williams, Keith. “How Lincoln Center Was Built (It Wasn’t Pretty).” The New York Times, The New York Times, 21 Dec. 2017, https://www.nytimes. com/2017/12/21/nyregion/howlincoln-center-wasbuilt-it-wasnt-pretty.html.
Boys, By Bowery, et al. “West Side Story: The Making of Lincoln Center.” The Bowery Boys: New York City History, 16 Feb. 2022, https://www. boweryboyshistory.com/2021/12/west-sidestorymaking-lincoln-center.html.
Kittredge , Neil. “Stories: History of Lincoln Square, 1700 – 2000 - Lincoln Square.” Lincoln Square BID, https://www.lincolnsquarebid.org/lincoln-square/ stories/history-of-lincolnsquare-1700-2000.
Moynihan Train Hall: Re-invent the Beauty of Pennsylvania Station
By Anissa Ramadini
The original Pennsylvania Station in New York, designed by McKim, Mead & White, was eight acres of American splendor from the Gilded Age. The idea to build a rail terminal in Manhattan originated with Alexander Cassatt, the owner of the Pennsylvania Railroad. At the time, from the Jersey City terminus of the train, passengers had to take a ferry across the Hudson River. The station’s enormous waiting area, which stands 150 feet tall and was constructed with Milford pink granite, honeycomb-coffered ceilings, mighty marble columns, and towering windows letting in light, was inspired by the Baths of Caracalla in Rome. Architecture historian Vincent Scully famously said that entering New York City through Penn Station was like entering it as a god. After being demolished in 1963, the transit hub came to represent the grandeur of public space and rail travel that had been lost in the United States.
In order to build the original Penn Station and the rail tunnels under the Hudson River, the Pennsylvania Railroad acquired the land where the Farley Building now stands. The USPS purchased the property above the railway shed after the rail infrastructure was finished, and this decision led to the USPS moving its mail sorting operations for New York across the street to Eighth Avenue. To connect the two buildings and create a new civic district, McKim, Mead & White built the new United States General Post Office. The 1914-built, 1.4 million-square-foot structure was eventually renamed the James A. Farley Post Office Building in honor of the Postmaster General.
The senator bemoaned the loss of a Midtown Manhattan Beaux-Arts landmark station that was demolished. It was a marvel of pink granite, marble columns, arched glass windows, and soaring public space that occupied an eight-acre plot between the 31st and 33rd streets and 7th and 8th avenues. The original Penn Station, created by McKim, Mead, and White and built-in 1910, is arguably the city’s most well-known vanished structure. It was demolished in 1963 amid a public outcry. Due to the building’s excessive upkeep costs, city officials decided to create the modernist Penn Plaza in its place, which incorporates the current Madison Square Garden sports stadium above street level.
The rumored underutilized postal building was among the first suggestions made by Moynihan as a viable replacement for the disastrous Penn Station. Where else, the senator is alleged to have asked, “could you knock down a gorgeous Beaux Arts edifice and find another one directly across the street?” Moynihan, a social scientist who previously worked as President Richard Nixon’s assistant for urban affairs, counselor, and ambassador to India, assumed his position in the upper house of Congress in 1976 and remained there for 24 years before retiring in 2001. In order to restore lost grandeur for rail travelers and serve as a deserving entrance to one of the most recognized cities in the
(left) Penn Station McKim, Mead & White train station (1914)
world, Moynihan has fought for decades to renovate an outdated post office across the street into a new Pennsylvania Station.
After Moynihan pushed for it for more than 20 years, the project was actually finished. The late Democratic senator from New York was hailed by Cuomo for his foresight and tenacity, and it was highlighted that public-private cooperation enabled the $1.6 billion project to be completed on schedule and within budget despite the difficulties posed by the coronavirus pandemic. According to Cuomo, “We created this as a statement of who we are and whom we aim to be.”
Long in the making, the remarkable civic endeavor to transform the 1913 BeauxArts Farley Building into a 21st-century train station was led by Skidmore, Owings & Merrill, who oversaw the architectural makeover as the project developed. Concourses and platforms are the only parts of the original Penn Station that remain. These belowgrade areas, which were formerly lit by a large skylight, were lowered in the 1960s to only be able to hold 200,000 people and were then covered with low ceilings. The number of persons traveling through the station every day increased to over 700,000 five decades later, while The Farley Building, which was constructed atop Penn Station’s tracks, was the ideal location for a new train hall.
Moynihan Train Hall was built using the insights learned from the current historic preservation movement, which was sparked by the demolition of the original Penn Station. SOM created a contemporary design for the Farley Building’s interior rather than treating it as a blank canvas to honor the iconic building’s history. The design brings in sunlight, exudes a sense of warmth, and incorporates aesthetic aspects into a civic environment that visitors haven’t experienced in decades, concluding an amazing metamorphosis of a hitherto reclusive workplace.
Three massive original steel trusses that were hidden from the postal workers a century ago have now been discovered and have become the design’s main focus. The bolted trusses, which serve as the framework for the new skylight, increase the perception of light in the Train Hall by effortlessly fusing a modern architectural element with the craftsmanship of the old building. Beyond simple preservation, the skylight at Moynihan is a revitalization and a wonderful example of how to rethink old structures.
It is essential to take the environmental effects of demolition into account given the challenge of climate change. An enormous amount of energy is expended during the construction of a building, including the extraction and processing of the raw materials needed for the project as well as the transportation and disposal of trash. The “embodied energy” of the structure is this. This initial investment is lost by demolishing a building. Add the tangible debris from demolition to this as well: Approximately 4,000 tons of material are headed for disposal when a typical 50,000square-foot commercial structure is demolished.
(left) The demolished Beaux-Arts landmark of the station in Midtown Manhattan
(right) Beaux-Arts interior of McKim, Mead & White train station
Only a structure that is used long enough to justify the resources used to construct it can be said to be really sustainable. Simply encouraging the construction of additional buildings, given the massively large building stock that already exists, a straightforward, sustainable approach to development falls short of only encouraging the construction of new, energy-efficient structures. Adaptive reuse is a crucial component.
Bibliography
1.Moynihan train hall : https:// moynihantrainhall.nyc/discover/history/ CES 2.Skidmore Owings & Merril: https://www. som.com/projects/moynihan-train-hall/ 3.The Christian Science Monitor: https:// www.csmonitor.com/
ARCHITECTURAL DESIGN VII ARCHITECTURAL DESIGN VII
This design course covers a range of urban and architectural design issues and the cultural aspects in the development of cites. As an advanced design class, this course incorporates previous studio and lecture coursework to tie together topics of urban planning, architectural design, environmental sustainability, urban infrastructure and historic preservation.
SELECTED WORKS BY:
PROF. MICHAEL DUDDY
Alyssa Duran
Lindsey Tlahuextl
Yiyi Zhong
PROF. VESSELIN MILEV
Mayy Abdelrahim
Mohammed Ahmed
Stacy Amaya
Noel Garcia Vasquez
Irina Mikhalik
Kira Vasquez
PROF. KEVIN HOM
Jennifer Camas
Vicent Cheung
Kevin Grion
Kawall Jagmohan
Alvin Kalicharan
Gustavo Madrigal
Javon Morgan
Luis Rendon-Vazquez
Tylee Rivera
PROF. CHRISTOPHER STEINON
Christopher Deonarine
Erick Guaman
Yousif Nasr
Paloma Nunciato
Giulana Romero
Cody Smith
1. Vincent Cheung, Gustavo Madrigal, Javon Morgan (Hom)
2. Kevin Grion,Kawall Jagmohan, Alvin Kalicharan (Hom)
3. Jennifer Camas, Luis RendonVazquez, Tylee Rivera (Hom)
4. Lindsey Tlahuextl (Duddy)
Opportunities and Constraints
with future expansion of residential with commercial,
Clockwise from top left:
1. Nasr Yousif (Steinon)
FLOOD WALL
FLOOD WALL
2. Erick Guaman (Steinon)
3. Paloma Nunciato (Steinon)
PROF CHRISTOPHER STEINON ERICK GUAMAN
1. Christopher Deonarine (Steinon)
2. Cody Smith (Steinon)
3. Giuliana Romero (Steinon)
LANDSCAPE PLAN:
BROOKLYN INSTITUTE OF TECHNOLOGY
ARCH 4712 / D490 | PROFESSOR CHRISTOPHER STIENON |CHRISTOPHER DEONARINE
1. Mayy Abdelrahim (Milev)
2. Kira Vasquez (Milev)
3. Irina Mikhaiik (Milev)
4. Noel Garcia-Vasquez (Milev)
1. Stacy Amaya (Milev)
2. Alyssa Duran, Yiyi Zhong (Duddy)
3. Mohammed Ahmed (Milev)
ARCH 4712 - URBAN DESIGN - PROF. MICHAEL D. - ALYSSA DURAN & YIYI ZHONG TECHNOLOGY
GOWANUS INSTITUTE OF TECHNOLOGY
ARCH 4712 - URBAN DESIGN - PROF. MICHAEL D. - ALYSSA
& YIYI
ARCHITECTURAL DESIGN VIII ARCHITECTURAL DESIGN VIII
Environmental sustainability is explored as the focus of the studio to benefit both occupants and the environment while investigating material consumption, thermal comfort, and energy practices. A bioclimatic design approach is assumed to tie how we interact with the microclimate and pursue thermal comfort and delight with lowcarbon solutions. To determine the bioclimatic performance, the studio incorporates quantitative methods throughout the design process, especially concerning the site, building form, spatial organization, and façade system. Students, as a team, work through a series of design reviews and workshops to develop a project that addresses performance criteria. Students integrate their full knowledge of life safety systems, structural systems, environmental control systems, and envelope systems and assemblies, while adopting the measurable outcomes of building performance in the course.
An introduction to basic materials of construction and the fundamental principals of hand drafting and system analysis. The coursework includes surveying existing conditions, development of plans, elevations, and sections, and basic details as well as the study of material properties and applications.
SELECTED WORKS BY:
PROF. BARDIER BONFIGLIO
Fardeen Ahmed
PROF. RAMSEY DABBY
PROF. ESTEBAN BEITA SOLANO
Michael Ray Malonjao
Thin Yadanar Su
Gladys Vigil
PROF. LYNN GERNERT
Saira Bano
Maja Shaqiri
PROF. BENJAMIN KAUFMANN
Huda Gharama
Mildred Miranda
Natalie Salinas
PROF. MICHAEL LOO
Areli Ariza
Daria Tourkova
PROF. ROBERT ZAGAROLI
Arely Delgado
Christian Guaman
Kelvin Jarama
Juan Luna
Amanda Rodriguez
Clockwise from top left:
1. Gladys Vigil (Beita/Dabby)
2. Michael Ray Malonjao (Beita/Dabby)
3. Thin Yadanar Su (Beita/Dabby)
4. Areli Ariza (Loo)
Clockwise from top left:
5.
1. Daria Tourkova (Loo)
2. Maja Shaqiri (Gernet)
3. Juan Luna (Zagaroli)
4. Kelvin Jarama (Zagaroli)
Cristian Guaman (Zagaroli)
6. Alreli Delgado (Zagaroli)
1. Mildred Miranada (Kaufmann)
2. Fardeen Ahmed (Bonfiglio)
3. Saira Bano (Gernet)
4. Huda Gharama (Kaufmann)
5. Amanda Rodriguez (Zagaroli)
6. Natalie Salinas (Kaufmann)
BUILDING TECHNOLOGY iI BUILDING TECHNOLOGY iI
A study of the basic materials of construction as well as the theory and practice of building technology. The course includes investigation of the assembly of building components and methods of construction while developing proficiency in both analog and digital drawing techniques, and professional level construction drawing.
SELECTED WORKS BY:
PROF. ALEXANDER APTEKAR
Gana Elhanafy
Kevin Hernandez
Jeremyah Herrera
Alimary Mejia
PROF. JOHN CHU
Abeni Chen
Karen Yascaribay
1. Jeremiah Herrera (Aptekar)
2. Gana Elhanafy (Aptekar)
3. Kevin Hernandez (Aptekar)
4. Gana Elhanafy (Aptekar)
1. Alimary Mejia (Aptekar)
2. Karen Yascaribay (Chu)
3. Veronica Sanchez (Aptekar)
4. Abeni Chen (Chu)
BUILDING TECHNOLOGY Iii BUILDING TECHNOLOGY iiI
This is the third in the required sequence of four building technology courses. This course studies the development of building systems & their assembly as they occur during the design development phase of architecture with a focus will be on steel construction. A series of studio lab assignments will develop an understanding of steel building assembly while introducing the students to the use of Building Information Modeling (BIM) software. Using case study research methods students develop a comprehensive drawing set and using materials and assembly research, students will develop façade studies.
SELECTED WORKS BY:
PROF. PAUL KING
Saul Ariziga
Steven Calsaguano
Nayely Chimborazo
Jeffrey Feng
Jean Flores
Jeremyah Herrera
Lamar Charles
Vladislav Molchanov
Anthony Ramos Nabor
Pierre Theodat
PROF. JUSTIN SHERMAN
Imane Chyat
Kezang Dorji
Gloriveht Ortiz
PROF. NICHOLAS SONIPRASAD
Jerson Salazar
Monisha Sooklall
SMOKE SEAL & FIRE SAFING
OUTSIDE CORNER MULLION INSULATING GLASS UNIT COVER PLATE
ROD
1. Steven Calsaguano (King)
2. Nayely Chimborazo (King)
3. Imane Chyat (Sherman)
4. Jerson Salazar (Soniprasad)
HSS SQUARE COLUMN 10" x 10" x .5"
STEEL I-BEAM
STEEL NUT AND BOLT FASTENERS
STEEL I-BEAM
W 24 x 162 COLUMN
W 24 x 162 COLUMN
W21 x 162
STEEL I-BEAM
SPLICE PLATE
W21 x 162 STEEL I-BEAM SPLICE PLATE
STEEL NUT AND BOLT FASTENERS
BRACING ENDPLATE
STEEL W18x50
STEEL W18x50 DIAGNOAL BRACING
D 1-1/4" NUT (TYP.) WASHER (TYP.)
CONC.
3'-10"x 3'-10"x 1'-0" REINFORCED CONC. FOOTING
W 24 x 162 COLUMN
STEEL I-BEAM FIN PLATE
W 24 x 162 COLUMN
W21 x 162
W21 x 162
W21 x 162 STEEL I-BEAM
BRACING ENDPLATE
STEEL W18X50 DIAGNOAL BRACING
BRACING ENDPLATE
STEEL W18X50 DIAGNOAL BRACING
STEEL I-BEAM
PLATE SPLICE PLATE
SPLICE PLATE
STEEL NUT AND BOLT FASTENERS
STEEL NUT AND BOLT FASTENERS
NOTCHED BEAM WITH STEEL FINE PLATE
STEEL NUT AND BOLT FASTENERS 1'-6"x1'-6"x1" BASEPLATE
The final course in a four-part sequence. Using digital technologies, the student explores the mechanics of building enclosures and structures and creates a set of working drawings. Emphasis is on communication and collaboration skills necessary in the professional office. Building information modeling (BIM) techniques and tools emphasized this course.
SELECTED WORKS BY:
PROF. PAUL GURDAK-WARCHOL
Ishrat Iqbal
Tarra Nelson
Monisha Sooklall
Emmanuel Tejada
PROF. BLAKE KURASEK
Chris Tellez Luna
PROF. TOMÁS QUIJADA
Briana Carrasco
Kezang Dorji
Alejandra Torres
1. Kezang Dorji (Quijada)
2. Briana Carrasco (Quijada)
3. Alejandra Torres (Quijada)
PARAPET CAP
TAPERED RIGID INSULATION
PLYWOOD SHEATHING COVER
WATERPROOFING MEMBRANE
2" x 4" WOOD BLOCK
5" PRECAST CONCRETE PANEL PROVIDED BY WILLIS CONSTRUCTION
WATERPROOFING MEMBRANE
1/2" PLYWOOD SHEATHING
4" BATT INSULATION
FULLY ADHERED ROOF MEMBRANE
4" RIGID INSULATION
RIGID INSULATION
1' CONCRETE FLOOR SLAB
SMOKE SEAL AND FIRE STOP
HB ANCHOR BOLT
FALSE REVEAL
5/8" GYPSUM BOARD
3-5/8" METAL STUD
2" RIGID INSULATION
WEATHER-RESISTIVE BARRIER
5" PRECAST CONCRETE PANEL PROVIDED BY WILLIS CONSTRUCTION
Computational design has revolutionized the design of buildings and structures. It has enabled us not only to design complex forms, but to build them. This course is an introduction to parametric computational design and digital fabrication. Grasshopper, a Rhino plug-in, is used as a primary digital modeling tool. Students learn how to use the tools and software to execute their architectural design projects. The course also explores qualities of basic materials such as paper, wood, concrete, and plastics in the context of computational design and digital fabrication thinking and techniques. The projects provide students with opportunities to explore and learn the concept and techniques of parametric rule-based design, digital fabrication tools, assembly of fabricated parts.
3609
The course is designed to introduce the student to the variety of software that is being used in a design firm. The students are provided with the guidelines for a better understanding of the integration of specialized software into all aspects of the architectural profession. The course focuses on managing a computerized office and understanding and using the latest technologies in a design firm.
+ 3609
SELECTED WORKS BY:
3590
PROF. YEVGENIY KORAMBLYUM
Reham Khalil
Ying Ren
3609
PROF. JOEL CARDENAS
Keti Xhaferi
Hilary Yang
1.
Hilary Yang (Cardenas)
2. Keti Xhaferi (Cardenas)
3. Reham Khalil (Koramblyum)
4. Ying Ren (Koramblyum)
3D MODELING AND RENDERING
3D MODELING AND RENDERING
3592
Space visualization using a combination of photo-realistic renderings, animations, and interactive 360-degree panoramic renderings. Creation of computer-generated scenes that can be viewed and explored as virtual and augmented reality.
4709
This elective course focuses on 3D modeling, rendering, lighting and animation techniques. Most advanced aspects of the rendering software are explored through a series of exercises designed to acquaint the student with the various commands found within the program used. 3592 + 4709
SELECTED WORKS BY:
PROF.
ESTEBAN BEITA SOLANO
3592
Mei Chen Lei
Hugo Cueva
Jeremyah Herrera
Anadeli Lora
Aia Mahmoud
Steven Romero
4709
Sara Fares
Shirley Garcia
Fatima Ikhmais
Clockwise
1. Aia Mahmoud (Beita Solano)
2. Fatima Ikhmais (Beita Solano)
3. Mei Chen Lei (Beita Solano)
4. Steven Romero (Beita Solano)
5. Anadeli Lora (Beita Solano)
6. Hugo Cueva (Beita Solano)
7. Jeremyah Herrera (Beita Solano)
8. Sara Fares (Beita Solano)
9. Shirley Garcia (Beita Solano)
JAPANESE ARCHITECTURE
JAPANESE ARCHITECTURE
The course explores traditional and contemporary Japanese architecture from tea houses to the latest architecture works by renowned Japanese architects. The elements and principles that make up traditional architecture are examined in relation to culture, materials, light, shadow, and nature.
SELECTED WORKS BY:
PROF. ESTEBAN BEITA SOLANO
Carlo Enriquez
Isaac Mendez
Yousif Nasr
Jeremy Ozoria
Janan Yu
1. Janan Yu (Beita Solano)
2. Yousif Nasr (Beita Solano)
3. Jeremy Ozoria (Beita Solano)
4. Carlo Enriquez (Beita Solano)
5. Isaac Mendez (Beita Solano)
STRUCTURES III
STRUCTURES III
The course focuses on the student’s mastering of the structures curriculum through an integrated design problem incorporating the fundamental materials of wood, steel and concrete into a single building structural package. The package includes all drawings, details and calculations to resolve a simple building with a long-span structure.
Students utilize Building Code based performance criteria such as live and dead loads, wind load, snow load and seismic load to develop accurate structural components, connections and systems.
The assignments during the course of the class are designed such that they build upon each other, progressing from simple sketches and rule-of-thumb calculations to the complete structural package. During the first half of the semester, each week students attend a lecture and demonstration of the drawing and calculations by the professor, and the students complete a similar exercise as assigned homework. During the second half of the class the students design a simple building and incorporate the material learned in the first half of class into the components of the design, culminating in the development of a structural package that describes and calculates all of the necessary components of the building footings and foundations, columns, beams, frame, roof structures and any other necessary elements.