Beautiful House Earth

Page 1


ทำ�ไมควรเลือกสร้�งบ้�น

กับพีดีเฮ้าส์

บ้�นของแต่ละคนก็มีคว�มหม�ยและมีคำ�นิย�มแตกต่�งกันไป ดังนั้น

บ้�นสักหลังหนึ่ง แต่ละคนจึงพิถีพิถันและใส่ใจในร�ยละเอียด

ถ้�คุณมีผู้ที่ไว้ใจและมั่นใจได้ว่�จะสร้�งบ้�นในฝันของคุณ ให้เป็นจริงเพื่อให้คุ้มค่�กับเงินที่เก็บหอมรอมริบม�น�น...ศูนย์รับสร้�งบ้�น พีดีเฮ้�ส์ ขอเป็นส่วนเติมเต็มในก�รสร้�งบ้�นของคุณ ด้วยเหตุผลที่สำ�คัญ ม�นำ�เสนอ เพื่อให้คุณได้มั่นใจและใช้ประกอบก�รพิจ�รณ�ตัดสินใจ

1.สาขาให้บริการ ทำาเลที่ตั้ง : พีดีเฮ้�ส์มีส�ข�ให้บริก�รเกือบ

เงิน-ประหยัดเวล� ก�รรับประกันผลง�นและดูแลซ่อมบำ�รุงภ�ย

4.ความหลากหลายของผลิตภัณฑ์ :

ของผู้เป็นเจ้�ของบ้�น ตอบโจทย์ทุกคว�มต้องก�ร

ห�กแบบบ้�นของเร�ยังไม่ตรงกับคว�มต้องก�รของคุณ เร�ยินดี

ทำ�ก�รปรับ-เปลี่ยน-เพิ่ม-ลด ต�มคว�มต้องก�รของคุณ

ที่คุณต้องก�รให้ออกแบบบ้�นใหม่โดยเฉพ�ะ เร�ยินดีและพร้อม

บริก�รออกแบบโดยสถ�ปนิกผู้เชี่ยวช�ญ

ที่เย็นสบ�ยและประหยัดเงินในกระเป๋�อีกด้วย

เราคือผู้ให้บริการสร้างบ้านมาตรฐานเดียวกัน ที่ลูกค้าสัมผัสได้ด้วยความสบายใจ

10.การให้บริการก่อนและหลังการขาย : เร�พร้อมให้บริก�รก่อนและหลังก�รข�ย

สำ�หรับวัสดุม�ตรฐ�นรุ่น Smart II Series

บ้�นอนุรักษ์พลังง�น

Home energy conservation

โครงการ“ประกวดบ้านจัดสรรอนุรักษ์พลังงาน” โดยกรมพัฒนาพลังงานทดแทนและอนุรักษ์พลัง งานกระทรวงพลังงานมีวัตถุประสงค์เพื่อเป็นการ ส่งเสริมและสนับสนุนให้ผู้ประกอบการบ้านจัดสรร และธุรกิจรับสร้างบ้าน ให้ความสำาคัญกับการออก

แบบบ้านประหยัดพลังงาน และเพื่อให้ความรู้แก่ ประชาชนในการเลือกซื้อบ้านตลอดจนการเลือก

คำ�ยืนยันจ�กลูกค้�

ไซน คุณภาพ วสีดุโดยเฉพาะในเร่�องของหลัังคาทั้�เราช้อบมากัเป็นพิเศษ เพราะหลัายคนมกัพูดถึึงเร่�องหลัังคาเป็นสี่วนสีาคญ่ของ บ้านซึ�งทัางพด้เฮ้้าสีกั็ให้รายลัะเอ้ยดไดช้ัดเจนด้มากัจนเรา เช้ื�อมั�นซึ�งสีุดทั้ายกั็ได้แบบทั้�ตรงกัับใจมากัทั้สีุด”

เป็นอีกหนึ่งความภูมิใจและเป็นเครื่องยืนยันได้ถึงหัวใจสำาคัญที่เรายึดมั่นมาตลอด”

Home Element

เอกลักษณ์์ที่่�โด้ด้เด้่น คำือก�รันำ�คำว�มเหมือนข้องธรัรัมช�ติเข้��ม�เป็็นสำ่วนหนึ�งข้องบ��นเน�นใช�วสำด้

ม่แรังบันด้�ลใจึในก�รัใช�ช่วิต ชื�นชอบก�รัพักผู้่อนที่�มกล�งหม้่ไม�และคำว�มรั่มรั่�นข้องธรัรัมช�ต

PORTFOLIO

PORTFOLIO

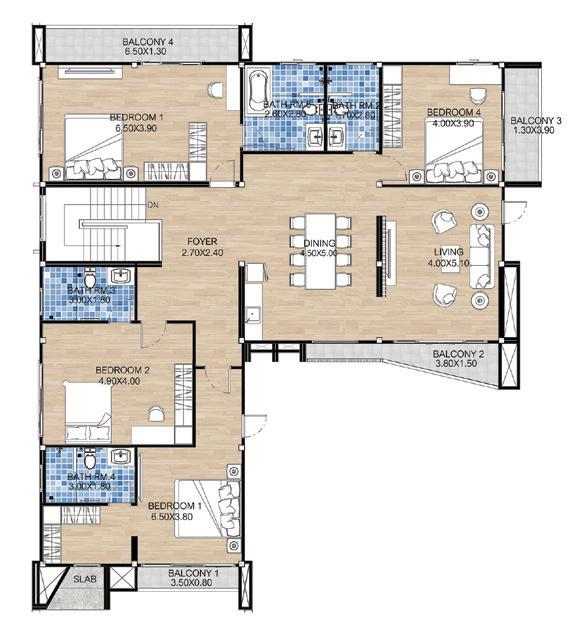
EARTH HOME SERIES

EARTH HOME SERIES

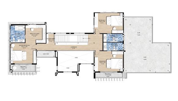
EARTH HOME SERIES

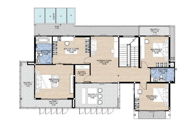
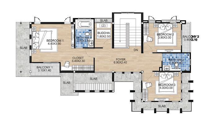
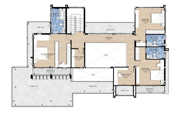
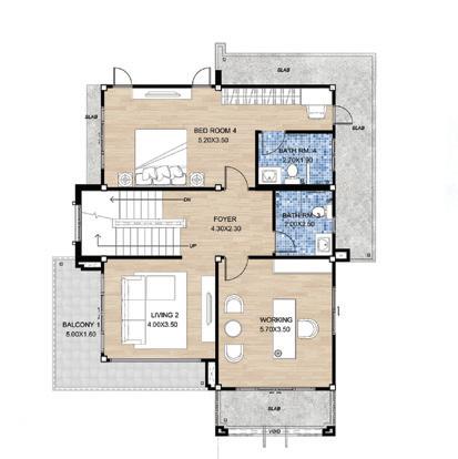
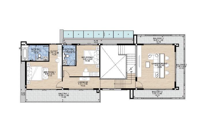
THIRD FLOOR PLAN

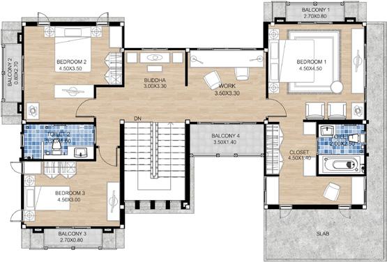
EARTH HOME SERIES

THIRD FLOOR PLAN

Home service

ส์ าห้ร้้บขั้้�นต็อนในการ้ปร้ะส์านงานก้บห้น่วยงานร้าชการ้และห้น่วยงานต็่าง ๆ

1.ทุีดีินขั้องทุ่านต็้องส์ะดีวกในการ้ขั้นส์่งว้ส์ดีก่อส์ร้้างโดียร้ถึบร้ร้ทุุกเขั้้าถึึงทุีดีิน

คณ์ภาพีในการ้ก่อส์ร้้างบ้าน

3.กร้ณ์ีไมมทุ่อร้ะบายนาส์าธาร้ณ์ะ บร้ษ้ทุฯ จะดีาเนินการ้จ้ดีทุาบ่อนาซึึมต็่อเชื�อมก้บทุ่อนาทุิ�ง ขั้องบ้าน (ร้้บนาเส์ียห้ร้่อนาใช้แล้วจากต็้วบ้าน)

(การประปาภูมิิภาค่) บริษััทฯ เป็นผิู้รับผิิดัชอบค่่าใช้จ่่าย (ไมิ่รวมิค่่าขยายเขต)

ขอตดัตั�งมิิเตอร์ไฟฟ้าชั�วค่ราว (การไฟฟ้านค่รห้ลูวง)

ขอตดัตั�งมิิเตอร์ไฟฟ้าชั�วค่ราว (การไฟฟ้าภูมิิภาค่)

บริษััทฯ เป็นผิู้รับผิิดัชอบค่่าใช้จ่่าย (ไมิ่รวมิค่่าขยายเขต)

ขอตดัตั�งมิิเตอร์ประปาถาวร ขนาดั 1/2

ขอตดัตั�งมิิเตอร์ประปาถาวร ขนาดั 1/2 นิ�ว (การประปาภูมิิภาค่)

ขอขยายเขตเประปา (ถ้ามิ่)

บริษััทฯ เป็นผิู้ตดัต่อย่�นขอฯ / ลููกค่้ารับผิิดัชอบค่่าใช้จ่่าย(ตามิใบเสรจ่

ของการประปา)

ยกเว้น วัสดัรุ่น Exclusive ll, Luxury ll Series บริษััทฯ เป็นผิู้รับ

ผิิดัชอบค่่าใช้จ่่ายตดัตั�งมิิเตอร์ฯ (ไมิ่รวมิค่่าขยายเขตประปา)

ขอตดัตั�งมิิเตอร์ไฟฟ้าถาวร (การไฟฟ้านค่รห้ลูวง)

ขนาดั 15 แอมิป / วัสดัรุ่น Smart ll Series

ขนาดั 15 แอมิป 3 เฟส/ วัสดัรุ่น Exclusive ll Series

ขนาดั 30 แอมิป 3 เฟส /วัสดัรุ่น Luxury ll Series

ขอขยายเขตไฟไฟ้า (ถ้ามิ่) บริษััทฯ เป็นผิู้ตดัต่อย่�นขอฯ / ลููกค่้ารับผิิดัชอบค่่าใช้จ่่าย (ตามิใบเสรจ่ของการไฟฟ้า)

ยกเว้น วัสดัรุ่น Exclusive ll, Luxury ll Series บริษััทฯ เป็นผิู้รับผิิดั

ชอบค่่าใช้จ่่ายตดัตั�งมิิเตอร์ฯ (ไมิ่รวมิค่่าขยายเขตไฟฟ้า)

ขอตดัตั�งมิิเตอร์ไฟฟ้าถาวร (การไฟฟ้าภูมิิภาค่)

ขนาดั 15 แอมิป 1 เฟส/ วัสดัรุ่น Smart ll Series

ขนาดั 15 แอมิป 3 เฟส/ วัสดัรุ่น Exclusive ll Series

ขนาดั 30 แอมิป 3 เฟส /วัสดัรุ่น Luxury ll Series

Exclusive ll, Luxury ll Series

10,000 10,0005,350

การบริการสินเชื่�อเพื้้�อที่่�อย่�อาศััย ห้ากทุ่านมีความปร้ะส์งคทุี�จะใชส์ินเชื�อเพี่�อทุี�จะปลูกส์ร้้างบ้าน

พีร้้อมบร้ิการ้และให้้การ้ส์น้บส์นุนส์ินเชื�อ เพี่�อปลูกส์ร้้างบ้านบนทุีดีินขั้องทุ่านไดี้แก

1.ธนาคาร้ไทุยพีาณ์ิชย (www.scb.co.th)

2.ธนาคาร้อาคาร้ส์งเคร้าะห้ (www.ghbank.co.th)

3.ธนาคาร้กรุ้งศัร้ (www.krungsri.com)

โดยม่หัลักเกณฑพื้ิจารณาเบื�องต้น ดังต�อไปน่

1.ทุีดีินต็้องไมต็ดีภาร้ะผูู้กพี้นใดี ๆ กร้ณ์ทุีมีผูู้้ถึือกร้ร้มส์ทุธิร้่วมจะต็้องยินยอม

2.ทุีดีินและส์ิ�งปลูกส์ร้้างจะต็้องจานองไวก้บธนาคาร้ และทุ่านจะต็้องทุาปร้ะก้น

การยื�นคืาขอว�าจ้างสร้างบ้าน

ห้ล้งจากทุีทุ่านพีิจาร้ณ์าและต็้ดีส์ินใจใช้บร้ิการ้ส์ร้้างบ้านก้บบร้ษ้ทุฯ ทุ่านจะต็้องทุาการ้ยื�นคาขั้อว่าจ้างส์ร้้างบ้าน โดียมร้ายละเอียดีดี้งนี

1.อาคาร้ทุี�เป็นโคร้งส์ร้้างห้ล้กขั้องบ้าน ร้้บปร้ะก้น

และพี่�นทุีถึ่ายนาห้น้กลงบนดีินโดียต็ร้ง แต็่ไมมผู้ลและเป็นอ้นต็ร้ายต็่อความ

Smart, Luxury Series

ใช้งานห้ร้่อการ้ใช้งานผู้ดีปร้ะเภทุ

3.ร้้บปร้ะก้นการ้มุงกร้ะเบื�องห้ล้งคา 5 ป (โดียผูู้้ผู้ลต็และต็ดีต็้�ง)

4.ร้้บปร้ะก้นการ้เกดีส์นิมโคร้งห้ล้งคา 10 ป (โดียผูู้้ผู้ลต็และต็ดีต็้�ง)

5.ร้้บปร้ะก้นพี่�นลามิเนต็ 10 ป (โดียผูู้้ผู้ลต็และต็ดีต็้�ง)

จะส์่งเจ้าห้น้าทุี�ไปส์าร้วจทุีดีินทุี�จะทุาการ้ปลูกส์ร้้างและถึนนทุางเขั้้า เพี่�อจะกาห้นดีการ้จ้ดีวางอาคาร้ในทุีดีินร้่วมก้บทุ่าน ห้ากบร้ษ้ทุไมส์ามาร้ถึเขั้้า ไปก่อส์ร้้างไดี้เนื�องจากต็ดีปัญห้าทุางเขั้้า – ออก บร้ษ้ทุฯ

6

10

4

6

10 ล้านบาทุขั้ึ�นไป

20 ล้านบาทุ

20 ล้านบาทุขั้ึ�นไป แต็่ไม่เกิน 30 ล้านบาทุ ร้าคาบ้านต็้�งแต็ 30 ล้านบาทุขั้ึ�นไป

40 ล้านบาทุ

40 ล้านบาทุขั้ึ�นไป

50 ล้านบาทุ

ระยะเวลาการก�อสร้างสาหัรับโคืรงสร้างคือนกรีตหัล�อในที่่� (นับตั�งแต�วันที่าสัญญาฯ)

4

6

10

20

2

4

6

10

กรุงเทพฯและปริมณฑล

598 ถ.สขุมวทุ ต.เนินพระ อ.เมือง จ.ระยอง 21000

62/33 ม. 9 ถ.เลี่ยงเมืองกาญจนบร ต.ปากแพรก อ.เมือง จ.กาญจนบร 71000

ปทุุมดีไซน ดีเวลลอป

0-2447-9026

09-8271-8083

0-2988-9216-7

06-1410-5914

0-3427-1745-7

06-3978-5248

@pdhouse.kanchana -

@pdhouse.ramintra

@pd-nakornpathom

0-3595-0966

09-0197-6422

0-3621-3160

09-1739-7065

0-3668-0842 09-1739-7065

0-3734-9990 09-1739-7065

0-3874-5652-3 08-6844-9888

0-3862-4249 08-6844-9888

0-3460-0237 08-1918-0378

0-3291-3230 06-3978-5248

0-3262-3585-6 08-5488-5316

@pdhouse.ayutthaya@pdhouse.saraburi@pdhouse.lopburi@pdhousenakhonnayok@pdhouse.chonburi@pdhouse.rayong@pdhouse.kan@pdhouse.ratchaburi@pdhouse.pranburi

0-5622-6954

08-5489-4295

0-5525-9944

08-5489-4295

0-5341-2459

06-2310-1089

0-5371-1551

09-0197-6422

@pdhousenakhonsawan@pdhouse.phitlok@pdhouse.chiangmai@pdhouse.chiangrai -

ภาคตะวันออกเฉียงเหนือ

ศููนยรับสร้างบ้านพดีเฮ้้าส

2019 (นครราชืสีมา)

ปทุุมดีไซน ดีเวลอป 2019 (นครราชืสีมา)

40000

0-4400-1827

09-8280-2737

0-4410-0688

09-8280-2737

0-4346-8494

06-5717-3404

0-4211-0997

06-5717-3404

0-4460-1007

08-5480-0251

0-4451-2909

08-5480-0251

0-4531-4747

09-8257-0283

@pdhouse.korat

@pdhouse.chaiyaphum

@pd.house.khonkaen

@pdhouse.udon

@pdhouse.buriram

@pdhouse.surin

@pdhouse.ubon

0-7761-3671-2

08-5489-4239

0-7731-0791

08-3977-8199

0-7580-0790

08-3977-8199 @pdhouse.chumphon@pdhouse.surat@pdnakorn -

ThE CONTRIBUTION

House Owner : คุณสิิรรัตน

Model : EA-120

Builder : ศูนยรับสิร้างบ้านพีดีีเฮ้้าสิ

เวลาต็ร้วจงานแต็่ละงวดีก็จะใชวธวิดีีโอคอลต็ร้วจดีูความคืบห้น้าขั้องงานห้ร้่อถึ้ามีแก้ไขั้ต็ร้งไห้นก็แจ้งให้้ทุร้าบต็ลอดี

ThE CONTRIBUTION

House Owner : คุณโรเจอร

Model : EA-104

Builder : ศูนยรับสิร้างบ้านพีดีีเฮ้้าสิ

ThE CONTRIBUTION

House Owner : คุณเหลี่ยม

Model : EA-103

Builder : ศูนยรับสิร้างบ้านพีดีีเฮ้้าสิ

แถึมย้งส์ามาร้ถึปร้้บเปลี�ยนแบบไดีอีกดี้วย

ThE CONTRIBUTION

House Owner : คุณเสิาวภา-คุณทัศน

Model : EA-109

Builder : ศูนยรับสิร้างบ้านพีดีีเฮ้้าสิ

Turn static files into dynamic content formats.

Create a flipbook
Issuu converts static files into: digital portfolios, online yearbooks, online catalogs, digital photo albums and more. Sign up and create your flipbook.
Beautiful House Earth by PD House - Issuu