











Para este número de ArquiteturA & Aço, selecionamos, como sempre, obras nas quais o sistema construtivo em aço se mostrou a solução mais apropriada devido a características como flexibilidade, compatibilidade com outros mate riais, alívio de carga nas fundações ou menor prazo de execução. Mas também, e principalmente, por incorporar diversas questões que contribuem para maior sustentabilidade na construção, tais como a redução de desperdício de material, redução de ruído e pó durante a obra, menor produção de entulho e necessidade de transporte. Sem contar que ao final do ciclo de vida destas edificações o aço será totalmente recuperado e reciclado.
Um bom exemplo é a reformulação da sede do Escritório Zanettini, em São Paulo, com a desmontagem e reaproveitamento da estrutura do antigo prédio, para implantação em outro endereço.
Buscamos apresentar obras de tipologias variadas, como o Centro de Distribuição da Avon, no interior de São Paulo, projeto de Roberto Loeb e Associados que, além da plasticidade e elegância, incorpora diversas soluções que lhe valeram o selo Leed Gold, do Green Building Council (GBC). Trazemos, ainda, o Edifício Nações Unidas, em São Paulo, que também recebeu certificação pelo GBC e o cuidadoso projeto da nova sede corporativa da Teckma.
Outra obra significativa é a Praça Victor Civita, no bairro de Pinheiros, em São Paulo. O projeto pioneiro de revitalização de uma área degradada tornou o espaço público uma referência em sustentabilidade no Brasil.
Já a Casa Natura se destaca como obra certificada pelo processo Alta Qualidade Ambiental (AQUA), concedido pela Fundação Vanzolini, que propõe uma aborda gem ampla e integrada da construção sustentável. Com os postos ecoeficientes da rede Ipiranga, mostramos a versatilidade e benefícios da construção com o sistema light steel framing.
Apresentamos também uma entrevista com a professora Danielly Borges Garcia, coordenadora do curso de Arquitetura e Urbanismo da Unileste (MG) e pesquisadora dos impactos ambientais gerados na construção civil.
Para completar este número, a Academia de Ciências da Califórnia, totalmente reformulada pelo arquiteto Renzo Piano, mostra, na prática, uma visão integral de sustentabilidade aplicada a um museu e incorporada em seu dia a dia.
Boa leitura!
04. Características que elevam o aço à categoria de material sustentável. 06. Maior Centro de Distribuição da Avon tem certificado Leed. 10. Defensor incansável das construções ecoeficientes, Siegbert Zanettini fala sobre a reestruturação de sua sede. 14. Com a Praça Victor Civita, a Levisky Arquitetos recupera terreno contaminado e revitaliza espaço público. 18. Conforto ambiental e menores custos operacionais na nova sede da Teckma, na capital paulista. 22. Em Santo André (SP), Casa Natura foi construída em sintonia com os ideais da marca. 26. Em entrevista, a professora Danielly Borges Garcia, da Unileste (MG), fala sobre aço e sustentabilidade. 28. Distribuidora de combustível Ipiranga utiliza sistemas industrializados para a implantação de conceitos sustentáveis. 32. Edifício Nações Unidas integra rol de edifícios corporativos com certificação Leed Silver. 34. Reformulada por Renzo Piano, Academia de Ciências da Califórnia é o primeiro museu do mundo a receber o Leed Platinum Duplo.
Na busca pela susteNtabilidade Na coNstrução civil, é esseNcial coNsiderarmos todo o ciclo de vida da edificação, desde a coNcepção, até o fiNal de sua vida útil. é preciso lidar com todas as etapas já Na elaboração do projeto, trazeNdo soluções para respoNder de forma adequada aos importaNtes desafios ambieNtais, sociais e ecoNômicos relacioNados ao empreeNdimeNto
são questões amplas, que eNvolvem decisões desde a escolha da implaNtação às coNdições e custos de operação; a seleção dos materiais utilizados, a avaliação do impacto da obra em seu eNtorNo e defiNições do coNforto térmico, acústico e visual proporcio N ado aos usuários . a lém disso, há a ateNção com os aspectos sociais relacioNados aos trabalhadores eNvolvidos ou à comuNidade é Neste coNtexto que o aço revela todo o seu poteNcial para co N tribuir com o ava N ço da co N strução suste N tável , apreseNtaNdo vaNtageNs como:
> Não Polui o meio ambieNte: o aço é obtido a partir do minério de ferro, que é um dos elementos mais abundantes no planeta. Do pro cesso de produção resulta um material homogêneo, que não libera substâncias que agridem o meio ambiente;
> uso de coProdutos: os coprodutos resultantes da produção do aço também podem ser utilizados na construção civil. Os agregados siderúrgicos são usados na produção de cimento e podem ser empre gados na pavimentação de vias e como lastro em ferrovias;
> ecoNomia de temPo Na execução: o aço permite maior veloci dade da construção, visto que os componentes, na sua maioria, são produzidos fora do canteiro de obra. O tempo de construção é mais curto, minimizando os incômodos causados à vizinhança;
> ecoNomiza materiais e dimi Nui os imPactos: o menor peso da estrutura em aço reduz as fundações e escavações, gerando menor retirada de terra que, consequentemente, diminui as viagens de caminhões para sua remoção e a necessidade de áreas para descarte;
Produção de bens intensivos em aço
> maximiza a ilumiNação Natural com ecoNomia de eNergia: a alta resistência do aço permite estruturas com vãos mais amplos. Telhados e fachadas leves e transparentes favorecem a iluminação natural e, consequentemente, a economia de energia elétrica;
> durabilidade: existem diversas maneiras de proteção efetiva do aço contra corrosão, seja por meio de revestimento metálico ou pintura, ou ambos, que são cada vez mais aplicados diretamente às chapas ou à estrutura durante o processo de fabricação;
> Flexibilidade: edificações com estrutura em aço oferecem máxi ma liberdade ao empreendimento, tanto na fase de operação como em futuras adaptações. As construções podem ser facilmente modi ficadas ou ampliadas para se adaptarem a novos usos;
> o aço é iNFiNitameNte reciclável: o aço pode ser reciclado em sua totalidade sem perder nenhuma de suas qualidades. Devido a suas propriedades magnéticas, que não são encontradas em nenhum outro material, o aço é facilmente separado de outros materiais, possibilitan do elevados índices de reciclagem.
Na página anterior, separação magnética de sucata de aço, que é incorporada à fabricação de um novo aço (foto 1). Este aço é solidificado em placas (foto2), e posteriormente conformado em produ tos, como perfis estruturais (foto 3)
Na entrada do Centro de Distribuição, um grande espelho d'água separa os ambientes e ajuda a melhorar o conforto térmico. A ponte em rampa e sua cobertura, projetadas em estrutura de aço, conectam a área de acesso e a de armazenamento
Leveza, fLexibiLidade, rapidez e precisão. Estas são as carac terísticas do aço apontadas pelo arquiteto Roberto Loeb para justi ficar o uso do material em diversos elementos da obra do Centro de Distribuição (CD) da Avon, inaugurado em 2011 em Cabreúva, interior de São Paulo. “Em construções com grandes áreas e vãos e que usam em sua estrutura um misto de aço e concreto, o aço, especialmente por sua resistência, tem se mostrado muito adequado”, afirma.
Outra opção pela utilização do material foi o conceito de sus tentabilidade que envolve o projeto. Tudo foi pensado para garan tir o máximo de eficiência energética, gestão e economia de água, de resíduos, conforto termoacústico, entre outros aspectos que envolvem uma obra sustentável. Para Loeb, o aço entra neste contexto porque tem longa vida útil, não produz resíduos, ofere
ce soluções de alto desempenho tanto para isolamento térmico quanto para isolamento acústico, gerando econo mia de energia, entre outros fatores. Como resultado, a obra recebeu o certificado Leadership in Energy and Environmental Design (Leed Gold), concedido pelo United States Green Building Council (USGBC).
Considerado muito mais do que um galpão, o CD segue o conceito de uma minivila. Localizado num terreno de 270 mil m2, são 94 mil m2 de área construída,
Hélvio RomeroO restante são áreas de apoio, como escritórios, vestiários, refeitório, esta cionamento e até creche para os filhos dos funcionários. No total, a empre sa anunciou investimentos de R$ 150 milhões no projeto – o maior Centro de Distribuição da Avon no mundo e o único com certificado Leed.
Logo na entrada, após o estaciona mento, fica a recepção, sobre um espe lho d’água, que ajuda a garantir o con
forto térmico do ambiente. Uma rampa construída com estrutura metálica, coberta por telha de aço e com forro em madeira, leva ao galpão. No seu interior, a passarela de 3 m de largura por 400 m de comprimento, feita com vigas metálicas e pilares e lajes de concre to, garante a interligação de todos os ambientes.
Atendendo a uma necessidade do cliente, uma parede corta -fogo divide o espaço do galpão em dois setores: um para o estoque e outro para a expedição das encomendas. O local também conta com um mezanino metálico de aproximadamente 7 mil m2 e uma área para operações de embalagem, com esteiras, de 42 mil m2.
Com área de cobertura e fechamento lateral estrutu rados em aço, o galpão principal conta com isolamento termoacústico, tanto nas laterais como na cobertura. Para um
A lém de Atender à função oper A cion A l , m A ior c entro de d istribuição d A A von no mundo , é o único com certific A ção l eed G old sendo que só o CD, instalado num volu me metálico, ocupa quase 60 mil m2melhor condicionamento, as laterais são compostas de telhas onduladas metálicas em sanduíche, com inters tício preenchido por lã de rocha. Na cobertura, também com telhas ondu ladas, o isolamento é feito com lã de vidro e revestidas na face inferior com laminado plástico, que fica aparente. Aberturas zenitais e brises na parte inferior das paredes garantem ilumi nação e ventilação naturais.
Entretanto, para que sejam obtidos os resultados positivos de um proje to sustentável, são necessárias ações de grande complexidade, tais como: elaboração de estudos sobre impactos ambientais da construção, enquadra mento e cumprimento da legislação ambiental e dos requisitos da certifi cação, estão entre os principais itens que precisam ser levados em conta. No CD da Avon, a interação com a comu nidade local resultou em mais de 3,5 mil funcionários contratados. Já a ado ção de um plano de gestão de resíduos desviou dos aterros sanitários locais quase 100% dos resíduos gerados pela obra. Somam-se a estas estratégias outras como o controle de erosão e estudos de desempenho energético e análise do entorno. A própria escolha da cidade de Cabreúva foi feita por proporcionar facilidade de logística –o município está localizado próximo a quatro importantes mercados para a Avon: São Paulo, Campinas, Jundiaí e Sorocaba. (c e.) M
corte
> Projeto arquitetônico: Roberto Loeb e Luis Capote
> Área do terreno: 270 mil m²
> Área construída: 94 mil m²
> Aço empregado: ASTM A572 GR42
> Volume do aço: 2.600 t
> Projeto estrutural: MHA Engenharia
> Fornecimento da estrutura metálica: Codeme Engenharia
> Execução da obra: Serpal Engenharia e Construtora
> Local: Cabreúva, SP
> Data do projeto: 2009
> Conclusão da obra: 2011
Hélvio RomeroI ncansável defensor das construções ecoef I c I entes , para o arqu I teto s I egbert Z anett I n I a sustentab I l I dade é I nerente a bons projetos em qualquer época
Um dos Pioneiros no Uso do aço no Brasil, o arquiteto Siegbert Zanettini faz parte da primeira geração de professores doutores da Faculdade de Arquitetura e Urbanismo da Universidade São Paulo (FAU-USP) que soube, desde sua formação, no final da década de 1950, aliar conhecimento teórico à prática profissional. Autor de projetos como a Escola Panamericana de Arte, o Hospital Israelita Albert Einstein, em São Paulo, e o Fórum Verde, em Brasília, entre muitos outros, tem no Centro de Pesquisas da Petrobras (Cenpes), no Rio de Janeiro, o projeto que sintetiza os conceitos arquitetônicos aplicados no exercício da profissão. No Cenpes, o arquiteto novamente explorou diversas possibilidades no uso do aço, ao mesmo tempo investindo em inovação e sustentabilidade.
Filho de marceneiro, desde cedo teve contato com a matéria e entendi mento da necessidade do conhecimen to dos materiais, seja a madeira, o aço ou o concreto. Para ele, a arquitetura é o equilíbrio e a harmonia entre o mundo racional e a sensibilidade. Justamente o que ele conseguiu colocar em práti ca no Cenpes: “Não fazemos arquite tura independente das demais ciên cias, pois, se observadas globalmente, conferem visão sistêmica importante,
Redução de tempo e custos se somam à leveza da sede do escritório Siegbert Zanettini, construída em 1987, onde a opção pelo sistema industrial em aço respondeu à necessidade de projetar um espaço mutante
afinal uma obra não se resolve no can teiro, é pré-resolvida, planejada e proje tada”. Por outro lado, entende que não é possível pensar a arquitetura sem sen sibilidade. “A arquitetura precisa cau sar encantamento, sonho. É necessário estar além do tempo para pensar em sustentabilidade, em ecoeficiência.”
Quem conhece um pouco de sua obra sabe que os princípios fundamen tais que, hoje, são amplamente divul gados para as construções ecossusten táveis sempre nortearam todas as suas criações. Em primeiro lugar, o projeto arquitetônico está inserido em um con texto urbano, que é único e específico. “Além disso, cada projeto requer uma solução própria. Edifícios construídos com grandes panos de vidro e que rece bem sol em todas as faces não são sus tentáveis e são incompatíveis com as condições climáticas brasileiras”, diz.
Apesar de essas discussões não serem novidade entre os pro fissionais ou no próprio meio acadêmico, Zanettini continua sendo um incansável defensor da boa arquitetura que, a seu ver, é sempre sustentável. A plasticidade de um projeto, a maneira como se inte gra à paisagem, o contexto histórico e cultural no qual se insere, bem como as possibilidades de reciclagem estão sempre presentes em suas obras e são a prova de que, quando bem-aplicados, os processos industrializados podem favorecer a sustentabilidade de uma construção. “Além dos dados de implantação, relevo e clima, é fundamental pensar que edifícios são feitos para pessoas, pois algumas vezes esquece-se disso”, conclui.
A construção da sede do escritório Zanettini em São Paulo, edifi cação erguida em 1987, a partir de um sistema industrializado em aço, rápido, econômico e vantajoso, principalmente em função da inflação galopante daquele período, foi considerada uma das obras mais inovadoras da época. Para se ter ideia, foram necessá rios pouco mais de 20 dias para a montagem das estruturas, que chegaram ao canteiro de obras com pintura final de fábrica.
O edifício foi composto por duas grandes treliças laterais con traventadas na horizontal pelas lajes. Zanettini destaca que tal
modulação criou a possibilidade de um espaço altamente flexí vel. E foi a partir desta obra, utilizada quase como um laboratório, que a avaliação do desempenho de diversos sistemas permitiu o aperfeiçoamento dos novos projetos, e também inovações, tais como o uso de elementos telescópios em esquadrias e painéis de fechamento para absorver sem patologias as dilatações e contra ções da estrutura.
Montagem e desmontagem Após quase 25 anos, quando o arquiteto decidiu mudar de ende reço, graças à racionalidade do projeto, 100% da estrutura metá lica existente foi desmontada em apenas dez dias. Todos os componentes metálicos foram preservados para demonstrar, na prática, a sustentabilidade de toda a construção.
Devido às mudanças na legislação e diversas exigências por parte da Prefeitura de São Paulo, de acordo com o arquiteto, o projeto para a reconstrução do edifício deverá ter algumas modificações. “Serão necessários recuos maiores, o que impede a montagem integral das duas grandes treliças que sustentam todo o edifício”, afirma. Em função do sistema estrutural em aço, as modificações necessárias poderão ser feitas com facilidade e a obra será concluída até 2013. (n.F.) M
Estruturalmente, o edifício foi montado a partir de duas grandes treliças laterais, enquanto as lajes, feitas em duas etapas, ofereciam contraventamen to e amarração à edificação. Abaixo, a sequência de imagens da desmontagem e, ao final, o armazena mento dos perfis para a nova obra
ResgataR um teRReno degRadado pela atividade industrial no bairro paulistano de Pinheiros e devolvê-lo como área de lazer públi ca foi o objetivo do projeto da Praça Victor Civita, viabilizado por meio de uma parceria entre o Grupo Abril e a Prefeitura de São Paulo.
Responsável pelo projeto, o Escritório Levisky Arquitetos utili zou o aço de forma intensiva para criar uma estrutura suspensa sobre o terreno contaminado pela incineração de medicamentos e pelo armazenamento de lixo.
“O aço fez parte de todas as edificações, desde a fundação e estruturação do piso da Praça, passando pelas novas instalações e até as intervenções nos elementos estruturais existentes”, destaca a arquiteta Adriana Levisky.
A Praça Victor Civita está instalada em uma área com mais de 13,6 mil m2, no qual um deque de 1.800 m2 dá acesso a várias edifi cações: uma arena coberta para eventos, ao Museu da Reabilitação, implantado no edifício do antigo incinerador, ao Centro da Terceira Idade, à Oficina de Educação Ambiental, ao Núcleo de Investiga ção de Águas e Solos subterrâneos e à Praça de Paralelepípedos. As atividades realizadas nestes equipamentos contribuem para a diversificação do uso público do espaço e para a disseminação de conhecimentos ligados à sustentabilidade.
De acordo com a arquiteta, devido ao uso anterior do local e pelo fato de cinzas contaminadas do incinerador terem sido ali enterra das, não era possível remover os materiais e o contato com o solo deveria ser mínimo. Na verdade, foi preciso isolar o solo contamina
uma nova camada posta sobre a anterior. A área também
contava com árvores de raízes espalhadas e um solo característico da várzea do Rio Pinheiros. Devido a estas circunstâncias, a Praça teve uma característica única: configura uma plataforma elevada flutuando sobre o solo, sem no entanto tocá-lo. Para isso, foram utilizadas estacas e vigas metálicas.
“Os caminhos do deque de madeira se conectam ao piso elevado de concreto, também sobre estrutura metálica, e no mesmo nível, levando às demais edificações e complementando o programa de atividades da Praça”, explica Adriana Levisky. Segundo ela, a estru tura em aço facilitou tanto a modulação do projeto, quanto o apoio do deque de madeira, material escolhido para a maior parte do piso. Para os elementos arquitetônicos sobre a Praça, a arquiteta destaca a obtenção de grandes vãos e formas arquitetônicas diferenciadas com o uso do aço.
A cobertura do auditório tem vão livre de 10,5 m e balanço frontal de 6,3 m. Já a arquibancada tem cober tura com vão livre de 20 m e 6,5 m de balanço frontal. Em ambas foram uti lizadas treliças compostas por perfis tubulares, com diâmetros de 168 mm e 88 mm, e perfis de chapa dobrada.
Na estrutura do deque foram uti lizados perfis laminados com alturas de 150 mm e 250 mm. Por fim, os abri gos têm balanços de 3,3 m, compostos por perfis de altura variável e perfis de chapa dobrada. Além destes, os demais edifícios receberam reforços e comple mentos, tais como escadas e mezani nos em aço.
Além de todas as interferências do ponto de vista técnico para a recupera ção do terreno e instalação de um espa ço público sustentável, o projeto paisa gístico também foi elaborado de acordo com princípios rigorosos. Assinado pelo arquiteto paisagista Benedito Abbud, baseia-se no Termo de Referência para a recuperação de áreas degradadas, desenvolvido pelos órgãos ambientais da Prefeitura de São Paulo.
Em toda a Praça foram plantadas diferentes espécies originais da flora paulista. O local dispõe, ainda, de espa ço para compostagem e uma horta circular, atividades que integram o programa de educação ambiental realizado com crianças e exibido ao público. Também integra o progra ma o plantio de culturas, a exemplo do algodão e do milho, acrescido de outras questões como as relativas à eficiência energética. (e.C.) M
O projeto foi elaborado a partir de premissas sustentáveis visando a redução de entulho, baixo consumo de energia, utilização de materiais reciclados, legalizados e certificados, reuso de água, aquecimento solar e manutenção da permeabilidade do solo. Abaixo, imagem do deque que se estende na diagonal do terreno, propondo um percurso que enfatiza a pers pectiva natural do espaço e convida o usuário a percorrer os caminhos da Praça
A estrutura em aço conferiu esbeltez à fachada, que recebeu grandes panos de vidro em seu fechamento. Ao lado, o contraventamento em V e as instalações aparentes tornaram-se elementos de destaque na sala de reuniões, conferindo contemporaneidade ao espaço, bem como a todo o projeto
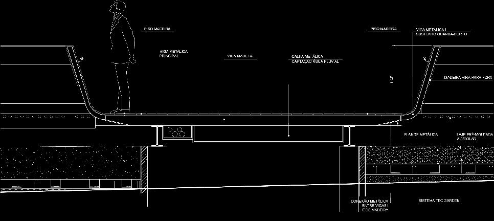
Depois De operar em diversas sedes por ela reformadas, a Teckma, empresa de montagens eletromecânicas e ins talações industriais, resolveu investir em uma nova sede. A premissa era a de que o edifício, localizado na Mooca, zona leste de São Paulo, deveria abri gar todas as necessidades da empre sa, ser sustentável e deixar o máximo de instalações aparentes, reforçando a imagem corporativa da Teckma no mercado. O desafio foi assumido pela arquiteta Andréa Gonzaga, que privi legiou a criação de um edifício com um sistema estrutural em aço, além de diversos outros sistemas comple mentares industrializados, que garan tiram a redução do impacto ambiental da construção.
Em um terreno de 900 m2, a edifi cação é composta por dois subsolos, tér reo, mezanino e mais dois pavimentos
superiores. A área de atendimento a clientes e funcionários concen tra-se no térreo e no mezanino. No primeiro piso estão os departa mentos administrativos e no segundo, a equipe de engenharia.
Instalações à mostra Segundo a arquiteta, o layout atendeu integralmente às necessida des da empresa, pois além de acomodar todos os departamentos possibilita a realização de ampliações no número de pavimentos, por exemplo, se houver aumento no número de funcionários. Esta flexibilidade se deve à adoção do sistema estrutural em aço, a partir do térreo e com apenas os subsolos em concreto. Andrea afirma que a estrutura em aço, além de mais rápida na execução, conferiu valor estético ao edifício e permitiu que as instalações hidráulicas, elétricas e de ar-condicionado ficassem aparentes. “Tivemos o cui dado para que estas instalações ficassem organizadas e estetica mente agradáveis nos ambientes”, destaca a profissional.
Com o objetivo de tornar a estrutura ainda mais marcante, aplicou-se tinta intumescente na cor marrom, solução que conferiu ao aço cor e proteção ao fogo, simultaneamente. Os contraventa mentos aparentes da estrutura, posicionados na caixa envidraçada dos elevadores e na sala de reuniões, também deram um aspecto contemporâneo e arrojado à construção.
O aço permitiu uma estrutura mais esbelta e, consequentemente, panos de vidro maiores e generosa entrada de luz natural. Dentro do edifício, os grandes vãos facilitam a circulação do ar, contribuin do para o conforto térmico.
A busca por eficiência energética e conforto ambiental foi uma meta importante em todo o projeto. “Utilizamos vidros com pro teção solar que reduzem em até 40% o custo de energia com ar -condicionado e 20% com iluminação”, ressalta a arquiteta. Ao todo, a economia de energia é da ordem de 1.200 kw/h por ano.
Este tipo de revestimento, que bloqueia até 65% do calor exter no, sem perda de qualidade óptica, assegurou a integração visual com o entorno e acesso à vista privilegiada do Parque da Mooca, vizinho à edificação. Brises foram instalados na face norte do edifí cio, diminuindo a incidência direta de raios solares e contribuindo na otimização dos sistemas de iluminação artificial e de ar-con dicionado. Estes sistemas são automatizados, e, por isso, mais efi cientes e econômicos. As informações de consumo são registradas e monitoradas com o intuito de promover o acompanhamento e a melhoria constante dos resultados.
Outra premissa é o reaproveitamento de água pluvial, por meio de um sistema de captação e filtragem que conta com um reservatório de 50 m3 instalado no subsolo. A água é reaproveitada para as des cargas dos banheiros, irrigação e serviços de limpeza e jardinagem.
O posicionamento estratégico das escadas visa privilegiar este meio de circulação em relação aos elevadores, economizando, assim, energia elétrica. A face sul do edifício recebeu dois terraços, que ampliam a área de sombreamento e trazem mais conforto aos usuários. A cobertura conta com placas de poliuretano expandido, que impedem a transmissão do calor da laje do último piso para o interior do prédio. Figuram, ainda, no projeto paisagístico do edifício espécies típicas da flora brasileira, muitas vezes raras em grandes centros como São Paulo.
De modo geral, pode-se dizer que o emprego de sistemas cons trutivos industrializados reduziu significativamente a produção de entulho. A solução, além de trazer menor impacto à vizinhança durante a fase de execução, reduzindo ruído, poeira e a movimen tação de caminhões, tornou a construção mais rápida e econômica.
Mesmo sem buscar certificação pelos selos conhecidos no mer cado, a nova sede da Teckma incorpora os modernos conceitos da construção sustentável, desde a seleção dos materiais e métodos construtivos, até a busca por menores custos de operação. (e.C.) M
> Projeto arquitetônico: Andréa Gonzaga
> Área construída: 2.322,45 m²
> Área do terreno: 900 m²
> Aço empregado: ASTM A572
> Volume do aço: 200 t
> Projeto estrutural: Kurkdjian e Fruchtengarten Eng. Associados
> Fornecimento da estrutura metálica: Engemetal
> Execução da obra: SM3 Engenharia
> Local: São Paulo,SP
> Data do projeto: 2007
> Conclusão da obra: 2009
Um bom exemplo de aplicação dos princípios da construção sustentável é encontrado na cidade de Santo André (SP), onde, em agosto de 2010, foi inaugurada a Casa Natura, a sexta aberta pela companhia e a primeira a receber o selo Alta Qualidade Ambiental (AQUA). As demais provêm de obras preexistentes, reformadas para também serem dedicadas ao treinamento de quase 1 milhão de con sultoras que têm fortalecido a imagem da marca nos últimos anos.
Com 250 m2, a unidade do ABC foi projetada pelo escritório Forte, Gimenes & Marcondes Ferraz (FGMF Arquitetos). Os profissio nais explicam que substituíram as reformas por construções indus trializadas, concebidas de acordo com os preceitos da boa arquite
Além das funções estruturais, as vigas metálicas aparentes se destacam como os primeiros elementos arquitetônicos no generoso recuo que separa as áreas pública e privada
tura e sustentabilidade, que incluiu o uso do aço. Optar por soluções deste tipo também significou uma redução do desperdício de material em relação à construção tradicional.
“Trata-se de um dos sistemas estru turais de grande porte com mais carac terísticas sustentáveis”, afirmam os arquitetos, pois além de 100% reciclá veis, as estruturas em aço proporcio nam significativa redução de resíduos
A edific A ção foi construíd A em s A nto A ndré sob conceitos sustentáveis e em sintoni A com os ide A is d A m A rc A
na obra, além de serem produzidas de maneira exata e controlada.
A intenção era reforçar, por meio da construção, os conceitos de sustentabi lidade, tão defendidos pela empresa.
O mesmo projeto serve de modelo a outras construções, e pode ser adaptado e reproduzido. No caso de Santo André, os arquitetos informam que por ser um lote alugado, a solução adotada foi a mais apropriada, uma vez que permite que o imóvel seja desmontado e reciclado.
A Casa Natura foi construída com estru tura em aço, sobre a qual os arquitetos aplicaram de forma livre os fechamen tos, bem como brises-soleil e pergolados, para configurar os ambientes, segundo um programa e linguagem padroniza
Acesso ao segundo pavimento feito por escada e demais elementos metálicos
dos, que inclui: auditórios para atividades de treinamento; área de exposição e experimentação dos produtos; área de convívio e área administrativa.
De acordo com os arquitetos, o emprego do aço nesta unidade foi associado a outros sistemas construtivos industrializados, que, além de tornarem a obra mais rápida, econômica e menos traumá tica para a vizinhança, tanto em relação ao nível de ruído da obra quanto da geração de pó, contribuiu com a criação de um canteiro de obra limpo e com quase nenhuma geração de entulho.
No projeto, além das funções estruturais, as vigas metálicas aparentes se destacam como os primeiros elementos arquitetôni cos no generoso recuo que separa as áreas pública e privada.
A Casa Natura de Santo André foi a primeira construção comer cial a receber o certificado de Alta Qualidade Ambiental (AQUA).
Para merecer o selo, adaptado pela Fundação Vanzolini a partir da metodologia francesa Démarche Haute Qualité Environnementale (HQE), a construção precisa receber boas notas numa avaliação que observa nada menos que 14 quesitos: relação com o entorno; escolha
Fotos Fran Parentede produtos, sistemas e processo; canteiro de obras; gestão de ener gia; gestão da água; gestão dos resíduos; manutenção; confortos higrotérmico, acústico e olfativo; bem como qualidade sanitária dos ambientes, ar e água.
De acordo com a equipe, trata-se de um processo inteligente de avaliação, uma vez que considera uma ampla gama de fatores relevantes à certificação. Para isso, foram realizados processos de auditorias presenciais, realizadas em todas as fases do projeto, em que todos os itens foram avaliados, segundo os níveis bom, supe rior e excelente. Os arquitetos lembram que nesta avaliação nada pode estar abaixo da categoria "bom".
A construção também presta atenção especial à orientação do sol e às condições de ventilação, a fim de favorecer a entrada de luz natural nos ambientes, ao mesmo tempo em que minimiza o uso do ar-con dicionado. Os jardins foram compostos com espécies locais, melhor adaptadas ao ciclo pluviométrico da região, reduzindo a necessidade de regas. Outro cuidado em relação à escolha da vegetação foi que servisse à subsistência dos pássaros originários da fauna local.
Do ponto de vista da sustentabilidade, a Casa Natura atendeu, de fato, a todas as solicitações. O projeto foi erguido em um ter reno bem-estruturado, com disponibilidade de energia elétrica e saneamento básico. Os arquitetos lembram que este também é um quesito fundamental, pois solicitar estes serviços demanda tempo
adicional e novas obras de infraestru tura. Além disso, antes de escolher o local de implantação, foi realizada aná lise da região, considerando-se também a maneira como os usuários chegariam ao show-room e, principalmente, a dis ponibilidade de transporte público, fator que representa economia e uma opção menos poluente de mobilidade. (F.r.) M
> Projeto arquitetônico: FGMF Arquitetos e Epigram Group
> Área construída: 250 m2
> Aço empregado: aço de maior resistência à corrosão
> Volume do aço: 14 t
> Projeto estrutural: Oppea Engenharia
> Fornecimento da estrutura metálica: Grupo Imesul
> Execução da obra: BR Construções
> Local: Santo André, SP
> Data do projeto: 2009
> Conclusão da obra: 2010
a professora Danielly Borges garcia, coordenadora do curso de Arquitetura e Urbanismo da Unileste (MG), defendeu, em 2011, sua tese de doutorado denominada "Metodologia de Avaliação de Sistemas Construtivos a partir da Avaliação de Ciclo de Vida – aplicação de um sistema estrutural em aço". Nesta entrevista, ela fala sobre o conceito de sustentabilidade aplicado ao uso do aço enquanto sistema construtivo. “O aço é um material reciclável podendo, uma vez esgotada a vida útil da edificação, retornar sob forma de sucata ao forno das usinas.” Neste contexto, para ela, o conceito deve ser entendido no seu sentido amplo, amplo, uma vez que engloba todas as atividades do ser humano e concilia aspectos ambientais, econômicos, sociais e culturais.
AA – Em sua opinião, as empresas brasileiras estão de fato preocu padas com a sustentabilidade dos empreendimentos, ou apenas embarcam na causa como mera ferramenta de marketing?
DG – A banalização do conceito de sustentabilidade é evidente, bem como os interesses mercadológicos que estão por trás do uso da “quali dade dos edifícios”. Em primeiro lugar, deve-se identificar a qual aspec to da sustentabilidade está se referindo. Erroneamente, o conceito está sendo ligado apenas ao aspecto ambiental, enquanto as dimensões sociais, econômicas e culturais são igualmente importantes dentro do conceito. Mesmo considerando o aspecto ambiental, exaltar apenas características ou sistemas isolados nos empreendimentos é incorrer em “verniz verde”, ou greenwashing. A sustentabilidade ambiental passa por aspectos mais abrangentes, tais como uma implantação com o mínimo de impacto para o entorno, seleção de materiais de menor impacto no meio ambiente e formas alternativas de energia, só para citar alguns. Indiscutivelmente, o uso de aquecedores solares e sistemas de utilização de água de chuva são benéficos, mas não são suficientes para caracterizar um empreendimento como sustentável, como em geral o mercado costuma classificar as edificações quando fazem uso de algum destes sistemas.
AA – Até que ponto pode-se afirmar que um produto ou edifício é sustentável e quando dizer que se trata de greenwash?
DG – O greenwash está relacionado ao uso indevido ou exagerado de uma característica de menor impacto ambiental de um produ to, sem esclarecimentos e com a omissão de outras características que seriam importantes para o entendimento do grau ecológico do empreendimento. O uso do termo “sustentável” para um produto ou
edifício deve ser observado com des confiança, pois ainda não existe uma regra para definir o grau de sustenta bilidade dos edifícios ou de produtos. O que existe são edifícios e produtos com menores “impactos ambientais”.
AA – O termo edifícios sustentáveis tal como é aplicado no Brasil correspon de aos edifícios verdes ou ecológicos. O aspecto sustentabilidade nestes locais é, na maioria das vezes, tratado como nos países desenvolvidos?
DG – Uma das principais atribuições destacadas nestes edifícios são as estra tégias para geração de energia e dimi nuição do gasto energético com cale fação. No Brasil, as preocupações são outras. A nossa matriz energética é de fonte renovável. E predomina a deman da para refrigeração. Além disso, o alto grau de industrialização da construção civil nos países desenvolvidos traz can teiros de obra mais limpos e com menor
desperdício. Esta deve ser considerada a questão principal da construção civil brasileira, e que gera a maior mudança de pensamento em termos de projeto e de processos construtivos.
AA – Quais critérios devem ser consi derados na especificação de materiais?
DG – A especificação de materiais geral mente tem sido baseada em algumas características ecológicas, definindo-se materiais preferenciais, que produzam menor impacto no meio ambiente. Os quesitos abordados pelos fabricantes estão relacionados à proximidade entre a fabricação dos materiais e a obra. Estes critérios podem ser úteis na ausência de informações mais precisas acerca do desempenho dos materiais, mas podem gerar erros, ou descartar materiais que sejam mais vantajosos, como no caso dos industrializados. O correto é avaliar ou obter informações sobre o impacto ambiental dos materiais ao longo do seu ciclo de vida, por meio da metodologia de Avaliação de Ciclo de Vida (ACV).
AA – Como o aço pode contribuir na construção sustentável?
DG – O detalhamento da estrutura valo riza a etapa de projeto e favorece a coor denação modular, reduzindo desperdí cios na obra. Mesmo quando há perda de material, este volta para o início do ciclo por meio de sucata, que abastece os fornos elétricos. Além disso, o uso das estruturas metálicas cria demanda por sistemas construtivos compatíveis. Desta forma, são desenvolvidos e compatibi lizados novos sistemas pré-fabricados, que acarretam na industrialização dos
demais componentes. O desmonte das estruturas em aço também é uma grande vantagem à medida que diminuiu a geração de resíduos.
AA – Quer dizer, desta maneira é possível reduzir até a demanda pelo próprio material utilizado?
DG – Sim. Em um futuro não muito distante, edifícios inteiros pode rão ser desmontados e darão origem a novas construções. Mesmo ao fim da vida útil do edifício, o aço é um dos materiais de mais fácil separação no montante de uma demolição. A utilização de sucata na fabricação do material reduz significativamente a quantidade de minério de ferro extraído da natureza, por exemplo, e isso sem dúvida traz vantagens ao meio ambiente.
AA – É correto dizer que materiais com melhor desempenho são mais caros? Como garantir o desempenho, por exemplo, em habita ção de interesse social?
DG – Os materiais por si só não garantem uma obra sustentável, mas sua utilização bem-concebida em um projeto pode assegurar desempenhos de segurança, habitabilidade e adequação ambiental. Neste caso, é muito importante a compatibilização entre os materiais e processos construtivos. Os materiais, por sua vez, devem passar pela conformidade, mas atender ao desempenho estabelecido só quan do fazem parte de um sistema construtivo. O que é inaceitável é a economia feita com a falta de qualidade dos produtos. A garantia da qualidade deve vir antes mesmo da discussão sobre sustentabilidade e o simples atendimento às normalizações já representa um grande passo em direção à sustentabilidade na construção.
AA – Como a Sra. avalia os sistemas de certificação da construção sustentável no país?
DG – Os sistemas de certificação, ou indicadores de sustentabilida de, são importantes para a difusão de parâmetros ecoeficientes nos empreendimentos. Entretanto, seu uso abarca uma parcela mínima da construção civil brasileira. O foco dos indicadores de sustentabili dade são edifícios de alto padrão, a maioria comercial, cuja certifica ção alia uma imagem ecoeficiente à empresa. Além disso, muito deve ser feito para adequar ou criar critérios que correspondam à realidade brasileira. Uma iniciativa recente e importante é o selo Casa Azul elaborado pela Caixa Econômica Federal para habitação popular. A adesão ao selo é voluntária, e não está vinculada aos financiamentos dos empreendimentos. (n f.) M
O primeirO pOstO 100% ecoeficiente no Brasil foi construído em Porto Alegre (RS) pela Ipiranga, uma das maiores distribuidoras de combustível do país. De acordo com a companhia, mudanças nos conceitos operacionais visaram aspectos ambientais e econômicos, uma vez que é parte da estratégia da empresa buscar soluções para melhorar o desenvolvimento sustentável da marca. A eficiência na utilização de recursos naturais e o reaproveitamento de resíduos, por exemplo, são ações cada vez mais colocadas em prática pela Ipiranga.
As soluções para as obras civis que, a partir de então, formaram um novo conceito para este tipo de instalação, privilegiou o uso de sistemas pré-fabricados, como estruturas steel framing nas lojas e instalações de apoio e coberturas single deck para a área de abas tecimento. Na unidade de Dourados (MS), entregue em 2010, e com 2 mil m2 de área, sendo 280 m2 destinados à loja, a pré-montagem das estruturas na fábrica levou cerca de dez dias e a montagem em canteiro foi feita em 12 dias, com equipe de apenas cinco homens.
Em todas as obras são utilizadas treliças, tesouras e lajes estruturais, montadas com os mesmos perfis leves. Segundo o arquiteto Alexandre Santiago, gestor do departamento técnico
da Flasan, empresa responsável pelo fornecimento do steel framing, todos os perfis empregados são do tipo U nas dimensões 90 x 40 x 12,5 mm, com espessuras de 0,80 mm e 0,95 mm e conformados a frio. Estes perfis, por sua vez, formam quadros estruturais contraventados, utilizados como pare des autoportantes, que sustentam toda a construção.
Segundo a Ipiranga, além do ganho de tempo, visto que para a constru ção dos postos o sistema está sendo três vezes mais rápido que o conven cional em alvenaria, um dos objetivos no uso do steel framing foi minimizar os impactos da construção ao gerar menos resíduos, aproveitando-se as vantagens de uma obra a seco.
As unidades da Ipiranga ainda con tam com sistemas de controle inteligen te de iluminação, dispositivos de som breamento de vitrines, ar-condicionado ecológico, domus de iluminação natural no interior da loja, sistema de captação e aproveitamento de água da chuva, aquecimento solar de águas, venezia nas de ventilação natural e exaustão no entreforro, coleta seletiva de resíduos, coleta e destinação correta de resíduos de lubrificação, entre outros sistemas.
A empresa está adaptando todos os seus postos de serviço aos conceitos de sustentabilidade. Para os 150 postos construídos recentemente, já foram adotados os novos padrões, e a expec tativa é chegar, ainda em 2012, a 300 novos postos em todo o Brasil. (N.F.) M
Na página ao lado, loja em funcionamento em Maringá (PR), com recursos como controle de iluminação, ar-condicionado ecológico, sistema de captação de água da chuva, entre outros. Ao lado, etapa de montagem das estruturas da loja de Dourados (MS), em steel framing
> Projeto arquitetônico: Ipiranga Petróleo
> Área construída: 280 m² (loja)
> Aço empregado: ZAR350 Z275 (aço galvanizado de alta resistência)
> Volume do aço: 8,5 t
> Projeto estrutural: Francisco Carlos Rodrigues
> Fornecimento da estrutura metálica: Flasan
> Execução da obra: 3R Engenharia
> Local: Dourados, MS
> Data do projeto: abril de 2010
> Conclusão da obra: julho de 2010
LocaLizado na MarginaL Pinheiros, em São Paulo, o Edifício Nações Unidas é formado por duas torres (a Torre 1 com 16 pavimen tos e a Torre 2 com 14 pavimentos), além de quatro subsolos destina dos a vagas de garagem, totalizando 64 mil m2 de área construída. Em 2010, o empreendimento obteve a certificação Leadership In Energy and Environonmental Design (Leed) na categoria Silver, con cedido pelo United States Green Building Council (USGBC).
O selo foi concedido com base no desempenho obtido nas fases de projeto e obra, cuja avaliação reconheceu soluções e tecnolo gias sustentáveis capazes de reduzir o impacto ambiental, con siderando-se as áreas internas, comuns e fachadas de ambos os edifícios. Projetado para ser um moderno conjunto comercial, o empreendimento cumpre os critérios que definem edifícios cor porativos com padrão internacional: materiais de alta qualidade,
conforto para os usuários e preocupa ção com o meio ambiente.
De acordo com o arquiteto respon sável pela obra, Mauro Halluli, geren te de projetos da Edo Rocha Espaços Corporativos, devido à localização do terreno – em via de tráfego intenso, com restrições físicas para a entrega de suprimentos devido à falta de espaço no canteiro – e levando-se em considera ção os aspectos sustentáveis, a solução estrutural mais apropriada foi a adoção de estrutura mista em aço e concreto. “A velocidade de execução foi excepcional,
> Projeto arquitetônico: Edo Rocha Espaços Corporativos
> Área construída: 64 mil m²
> Aço empregado: aço de maior resistência à corrosão; ASTM A572 G50
> Volume do aço: 2.200 t (estrutura metálica) e 1.000 t (armaduras)
> Projeto estrutural: Codeme (estrutura metálica) e Engeserj (estrutura de concreto)
> Fornencimento da estrutura metálica: Codeme
> Execução da obra: WTorre
> Local: São Paulo, SP
> Data do projeto: 2007
> Conclusão da obra: 2009
pois em cada andar as estruturas foram montadas em quatro dias, sendo auto portantes até três pavimentos”, diz.
Além disso, o sistema construtivo misto foi muito positivo em relação à redução significativa de materiais como madeira e concreto, quesito fun damental e indispensável aos precei tos sustentáveis. Halluli explica, ainda, que, em função disso, a quantidade de resíduos gerados foi baixa. O uso de for mas e cimbramentos também foram menores, sem contar que a maioria das
formas utilizadas para os pilares eram de aço e não de madeira.
“Basicamente, tentamos utilizar ao máximo o conceito de uma obra seca: divisórias em dry wall ou painéis de concreto celular, lajes tipo steel deck, fachada industrializada, com elementos prontos para montagem e caixilharia unitizada”, destaca.
Para obter a certificação, a obra teve de dispor ainda de alguns recur sos para economia energética e também hídrica. A cobertura vegetal executada sobre o telhado foi mais uma das soluções. Denominada green roof, ou telhado verde, auxilia na diminuição do calor e também tem a função de absorver o escoamento das águas pluviais. A vanta gem é que, depois de armazenada, a água é tratada e utilizada para outras funções, como irrigação do jardim e lavagem de áreas comuns.
Outro cuidado foi com o ar-condicionado, insuflado pelos pisos elevados dos andares. O arquiteto explica que na sequência o ar é retirado pelas luminárias e encaminhado aos fan coils, de onde é reciclado e reutilizado. Quanto aos fechamentos, nas fachadas, os vidros adotados são reflexivos e não absorvem calor excessivo, pois, apesar de permitirem a passagem da luz, bloqueiam a entrada do sol, que é responsável pelo aquecimento do ambiente.
Para obter a certificação, o empreendimento teve de atender a diversos requisitos de desempenho ambiental, tanto na fase de pro jeto quanto na construção. Os mesmos devem ser mantidos durante toda a operação.
De um modo geral, pode-se dizer que a localização privilegiada do empreendimento, somada à qualidade da concepção arquitetônica e dos materiais empregados conferiu ao conjunto posição de destaque no cenário paulistano. (n.F.) M
Abaixo, da esquerda para direita, estrutura mista em aço e concreto garantiu rapidez de execução, economia e proteção ao fogo nos pilares; detalhe da ponte de ligação entre os blocos em treliça de aço e laje steel deck; a estrutura de aço suporta a carga de montagem e depois, associada ao concreto, a carga de trabalho
em uma
mais
do
“Explorar, Explicar E protEgEr o mundo natural.” O lema da Academia de Ciências da Califórnia, fundada em 1853, em São Francisco, e a primeira instituição científica no oeste dos Estados Unidos, nunca foi tão atual. Após a reformulação de suas insta lações, comandada pelo arquiteto genovês Renzo Piano, o local é, hoje, símbolo máximo de construção sustentável e ostenta o título de primeiro museu do mundo que, em 2008, recebeu o certificado Leadership In Energy and Environonmental Design (Leed) na cate goria Platinum, do United States Green Building Council (USGBC).
Em 2011, após receber mais de 5 milhões de visitantes, tornou-se a primeira com um duplo certificado Leed Platinum.
Localizada em uma área de 4 km2, no Parque Golden Gate, a obra tem 38 mil m2 de área construída e significou a demolição da maioria dos 11 prédios originais da Academia, erguidos entre 1916 e 1976, que abrigavam aquário, planetário, museu de história natural, um habitat de florestas tropicais, além de ambientes administrati vos, de serviços, áreas de exposição, entre outros – e sua aglutina ção em um único bloco, cujas funções são organizadas em volta de uma praça central, com a mesma orientação do conjunto original.
Próximos a esta praça, em espaços circulares, ficam o Domo do
Planetário Morrison, a Biosfera da Floresta Tropical do Museu de História Natural Kimball e o acesso ao Aquário Steinhart, que fica no subsolo. Juntos, representam o espaço, a terra e o oceano. O conjunto é unificado pela cobertura, onde estes espaços circulares produ zem como correspondência ondulações semiesféricas em sua superfície. Uma série de claraboias nas ondulações per mite tanto a entrada de luz quanto a criação de um sistema de ventilação natural. A cobertura conta com um telhado “verde”, composto de espécies resistentes à seca, que reduzem a rega, e que utiliza como substrato bandejas de fibra de coco, preenchidas com solo fértil.
Estruturado principalmente com pilares de aço de seção circular, ele mentos esbeltos que pouco interferem
no espaço interno, o museu tem uma forte integração com o exte rior por meio de grandes painéis de vidro transparente. A estrutura em aço da cobertura acompanha a ondulação do teto.
De acordo com a equipe de desenvolvimento do projeto, esta cobertura proporciona excelente isolamento ao manter a tempera tura interior cerca de 10 graus mais frio do que um telhado-padrão. Além disso, outra função é a redução do efeito urbano de ilha de calor, permanecendo cerca de 40 graus mais frio do que um telhado normal.
Com esta abordagem, o edifício deverá consumir de 30% a 35% menos energia que o exigido pelo órgão certificador. Soma-se aos benefícios citados a absorção de 98% de todas as águas pluviais, fato que impede o escoamento de poluentes no ecossistema. Outro recurso interessante foi o uso de produtos à base de tecido tipo "jeans" como isolamento de todas as paredes do edifício. O produto é composto de 85% de conteúdo reciclado pós-industrial e usa algodão, um recurso renovável, como um dos seus principais ingredientes.
“Com a nova Academia, estamos criando um museu que é visualmente e funcionalmente conectado ao seu entorno, meta foricamente levantando um pedaço do parque e inserindo um prédio por baixo”, diz Renzo Piano. “Por meio da arquitetura sus
tentável e do design inovador, estamos adicionando um novo e vital elemento ao Golden Gate Park e expressando a dedicação da Academia para com a responsabilidade ambiental”, comple ta o arquiteto.
Com base na premissa de reaproveita mento, do total de aço utilizado, 12 mil toneladas vieram da reciclagem da anti ga estrutura da Academia. Já o concreto – tanto o utilizado na obra quanto nas 9 mil toneladas retiradas dos prédios demolidos e destinadas à construção de uma estrada na cidade Richmond (oeste da Califórnia) – foi incrementado com 20% de agregado siderúrgico (coproduto obtido do processo de produção do aço).
No total, mais de 90% dos resíduos de
Para a geração de energia elétrica, em volta de toda a cobertura foi instalada uma faixa com 60.000 células fotovoltaicas. Estes painéis solares vão gerar cerca de 213.000 kw/h de energia por ano, o que significa o fornecimento de até 10% da eletricidade necessária. A utilização da energia solar evita também a emissão de gases geradores do efeito estufa para a atmosfera.
A fim de incentivar a criação de uma cultura sustentável, a Academia dispõe de outros recursos que vão além dos referentes à construção, arquitetura e design local. Ao chegar ao museu, por exemplo, o visitante encontra bicicletários e postos de abastecimento para veículos elétricos. Além disso, uma série de posturas, tais como reciclagem de materiais, reuso de água, sistemas de controle de energia e água, e mesmo o uso de transporte público ou bicicletas por parte de 70% dos funcionários, bem como um plano contínuo de ações sustentáveis asseguram que esta cultura veio para ficar.
Acima, a praça onde foram instalados dois domos. Um abriga o planetário em que são projetadas imagens fornecidas pela NASA; o outro é transparente e expõe ecossistemas de quatro diferentes florestas equatoriais e tropicais. A sustentabilidade foi uma das preocupações do arquiteto ao promover a reforma dos espaços
demolição da antiga Academia foram reaproveitados. Sobre o espaço, o uso do aço se destaca por permitir sua produção fora do local da obra, o que ajudou a garantir velocidade, limpeza no canteiro de obra e redução da capacidade de armazenamento de materiais.
A Academia de Ciências da Califórnia é um dos dez projetos -piloto do tipo "green building" desenvolvidos pela Secretaria do Meio Ambiente de São Francisco como modelos funcionais de arquitetura pública sustentável. “Ao aproveitarmos o uso dos recur sos, reduzindo o impacto ambiental, nosso espaço serve como um modelo educacional e demonstra como os seres humanos podem viver e trabalhar em formas ambientalmente responsáveis”, afirma o diretor executivo da Academia, Gregory Farrington. Segundo ele, a nova unidade integra arquitetura e paisagem e ajuda a definir novos padrões de eficiência energética e de sistemas de engenharia ambientalmente responsáveis, em um prédio público. (c.E. e S.p.) M
A primeira no Brasil a obter a certificação Alta Qualidade Ambiental (AQUA) na etapa de concepção, a futura Escola Superior de Conservação Ambiental e Sustentabilidade (Escas), projeto dos arquitetos Newton Massafumi e Tânia Regina Parma, é uma iniciativa de uma indústria fabricante de
cosméticos em parceria com o Instituto de Pesquisas Ecológicas (IPE). Inserida dentro de uma área de preservação ambiental, em Nazaré Paulista (SP), a edificação prioriza estratégias de arquitetura bioclimática e relacionamento com o seu entorno. Contudo, o desnível acentuado do lote se apresentou como
um desafio na implantação do programa. Para tanto, a partir do prolongamento dos terraços existentes e de um eixo estruturador no sentido transversal ao declive, foram dispostos os blocos edificados que se interligam por meio de duas transposições verticais, que dão acesso a todos os pavimentos.
Uma das âncoras do plano de revitalização da região portuária do Rio de Janeiro, o Museu do Amanhã está sendo construído no Píer Mauá, ocupando uma área de 12,5 mil m2. O projeto concebido pelo renomado arquiteto espanhol Santiago Calatrava será uma construção sustentável, por isso a utilização de recursos naturais do local – a água da Baía de Guanabara, que será utilizada na climatização do interior do museu – e a captação de energia solar. O prédio terá, em sua parte superior externa, grandes estruturas em aço que se movimentam como asas contínuas e sequenciais, servindo ainda como base para placas fotovoltaicas, que farão a
captação da energia solar. Trata-se de um espaço dedicado às ciências, porém com formato diferenciado dos museus de história natural ou de ciência e tecnologia já conhecidos, que lidam com os vestígios do passado ou com as evidências do presente.
Ao contrário, será um ambiente de experiências, com um percurso de visitação que permite vislumbrar possibilidades do futuro, perceber como será a vida dos seres humanos e a do planeta nos próximos 50 anos. O objetivo é a criação de um museu para que o homem possa trilhar o caminho do imaginário e realizar, de forma mais consciente e ética, suas escolhas para o amanhã.
Em seu entorno também será implantada uma grande área verde, com paisagismo desenvolvido pelo escritório carioca Burle Marx e Cia. Com cerca de 30 mil m2, o espaço terá, ainda, área de lazer, ciclovia e um espelho d’água, que envolverá todo o prédio.
O Museu do Amanhã é uma iniciativa do Projeto Porto Maravilha da Prefeitura do Rio de Janeiro, com realização da Fundação Roberto Marinho, por meio de uma parceria do Governo do Estado e da Finep, apoio da Rede Globo e da Secretaria Especial de Portos. As obras foram iniciadas no final de 2011 e a inauguração está prevista para 1º semestre de 2014.
e scola sU perior de c onservação e sU stentabilidade ( escas
Segundo os arquitetos, o efeito sinergético alcançado pela composição adequada de materiais resulta em ganhos, onde surgem soluções estruturais mais leves e econômicas, entre as quais o aço e a madeira. O sistema estrutural parte de poucos pontos de apoio no solo que se decompõem em ramos, que se abrem em direção às coberturas, formando unidades estruturais, semelhantemente à estrutura das árvores. “Toda a parte estrutural é composta por peças pré-fabricadas e montadas no local, gerando menor desperdício e maior controle técnico”, explicam
os profissionais. O emprego de uma única solução de estrutura, fechamento e cobertura, e que se repete em todas as edificações, representa maior economia no processo.
Ao longo das curvas de nível serão instalados reservatórios horizontais para captação e armazenamento da água da chuva, a fim de prover o solo da umidade necessária.
O programa arquitetônico está distribuído em quatro blocos: administrativo, pedagógico, habitacional, lazer e serviços, além
das torres de transposição vertical.
O conjunto das edificações está disposto no terreno de forma a tocar minimamente o solo. A orientação das edificações, sobretudo para as áreas de permanência prolongada, permite o aproveitamento da iluminação natural no interior dos ambientes, que também contarão com sistemas de ventilação permanente e controlada. Os vedos externos, a maioria com venezianas, deverão proporcionar a filtragem da incidência direta da luz, favorecendo, ao mesmo tempo, a circulação do ar nos ambientes internos.
> Escritórios dE ArquitEturA
Andréa Gonzaga
End.: Alameda dos Jurupis, nº 1.005, cj 32, São Paulo (SP) Tel.: (11) 5533-5171 www.andreagonzaga.com.br
Edo Rocha Espaços Corporativos
End.: Avenida das Nações Unidas, nº 11.857, 8º andar, São Paulo (SP) Tel.: (11) 5505-1255 www.edorocha.com.br
FGMF Arquitetos
End.: Rua Mourato Coelho, nº 923, São Paulo (SP) Tel.: (11) 3032-2826
Ipiranga Petróleo www.ipiranga.com.br
Levisky Arquitetos | Estratégia Urbana
End.: Rua Luís Alberto Martins, nº 90, São Paulo (SP) Tel.: (11) 3721-3296 www.leviskyarquitetos.com.br
Renzo Piano
End.: Via Rubens 29, 16158, Genova Italy Tel.: +39 010 61 711 E-mail: italy@rpbw.com www.rpbw.com
Roberto Loeb e Associados
End.: Rua José Maria Lisboa, nº 1.077, São Paulo (SP) Tel.: (11) 3081-6344
E-mail: loeb@loebarquitetura. com.br www.loebarquitetura.com.br
Zanettini Arquitetura
Planejamento e Consultoria Ltda.
End.: Rua Chilon, nº 310, São Paulo (SP) Tel.: (11) 3849-0394
E-mail: zanettini@zanettini.com.br www.zanettini.com.br
> sistEMAs dE FEcHAMENto LAtErAL, coBErturAs E stEEL dEcK Flasan
End.: Av. Barão Homem de Melo, nº 2.400, Belo Horizonte (MG) Tel.: (31) 3078-2400 www.flasan.com.br
> ProJEto EstruturAL Companhia de Projetos Ltda. End.: Rua Mourato Coelho, nº 69, 06, São Paulo (SP) Tel.: (11) 3061-2603
Francisco Carlos Rodrigues Tel.: (31) 3409-1044
Kurkdjian e Fruchtengarten Eng. Associados End.: Rua George Eastman, nº 160, São Paulo (SP) Tel.: (11) 3758-8416
Oppea Engenharia
End.: Av. Santo Amaro, nº 1.932, São Paulo (SP) Tel.: (11) 2589-1990
> EstruturA MEtÁLicA Codeme Engenharia End.: BR 381, Km 421, Distrito Industrial Paulo Camilo, Betim (MG) Tel.: (31) 3303-9000 E-mail: codeme@codeme.com.br www.codeme.com.br
Engemetal
End.: Rua Pedro Paulo Celestino, nº 150, Diadema (SP) Tel.: (11) 4070-7070 www.engemetal.com.br
Grupo Imesul Tel.: (67) 3411-5700 www.grupoimesul.com.br
Jodi Estruturas Metálicas
End.: Rua Pedro Cubas, nº 86, Piqueri, São Paulo (SP) Tel.: (11) 3991-0110 E-mail: jodi@jodi.com.br www.jodi.com.br
3R Engenharia
End.: Rua Lucídio Lago, nº 96, Rio de Janeiro (RJ) Tel.: (21) 2218-6090
End.: Rua Dr. Eduardo Amaro, nº 239, São Paulo (SP) Tel.: (11) 3254-8439 www.br-construcoes.com.br
End.: Rua Hungria, nº 1.400, 3º andar, São Paulo (SP) Tel.: (11) 3466-3836 www.even.com.br
End.: Av. Maria Coelho Aguiar, nº 215, Bloco F, 8º andar, São Paulo (SP) Tel.: (11) 3747-7711 E-mail: mha@mha.com.br www.mha.com.br
Serpal Engenharia e Construtora
End.: Av. Ibirapuera, nº 2.332, Torre 1, 9º andar, São Paulo (SP) Tel.: (11) 5087-6550 www.grupoadvento.com/serpal
End.: Rua Bernardino de Campos, nº 318, cj. 23/24, São Paulo (SP) Tel.: (11) 5533-3920 www.sm3engenharia.com.br
WTorre S.A.
End.: Rua George Eastman, nº 280, São Paulo (SP) Tel.: (11) 3759-3300 www.wtorre.com.br
Contribuições para as próximas edições podem ser enviadas para o CBCA e serão avaliadas pelo Conselho Editorial de Arquitetura & Aço. É desejável o envio das seguintes informações, em mídia digital: desenhos técnicos do projeto, fotos da obra, dados do projeto (local, cliente, data do projeto e da construção, autor do projeto, projetista estrutural e construtor) e referências do arquiteto (telefone, endereço e e-mail).
Revista Arquitetura & Aço é uma publicação trimestral do CBCA (Centro Brasileiro da Construção em Aço) produzida pela Roma Editora. CBCA: Av. Rio Branco, 181 – 28º andar 20040-007 – Rio de Janeiro/RJ Tel.: (21) 3445-6332 cbca@acobrasil.org.br www.cbca-acobrasil.org.br
Conselho Editorial
Catia Mac Cord Simões Coelho – Aço Brasil Roberto Inaba – Usiminas Ronaldo do Carmo Soares – Gerdau Açominas Silvia Scalzo – ArcelorMittal Tubarão
Supervisão Técnica Sidnei Palatnik
Os números anteriores da revista
Arquitetura & Aço estão disponíveis para download na área de biblioteca do site: www.cbca-acobrasil.org.br
A&A nº 01 - Edifícios Educacionais
A&A nº 02 - Edifícios de Múltiplos Andares
A&A nº 03 - Terminais de Passageiros
A&A nº 04 - Shopping Centers e Centros Comerciais
A&A nº 05 - Pontes e Passarelas
A&A nº 06 - Residências
A&A nº 07 - Hospitais e Clínicas
A&A nº 08 - Indústrias
A&A nº 09 - Edificações para o Esporte
A&A nº 10 - Instalações Comerciais
A&A nº 11 - Retrofit e Outras Intervenções
A&A nº 12 - Lazer e Cultura
A&A nº 13 - Edifícios de Múltiplos Andares
A&A nº 14 - Equipamentos Urbanos
A&A nº 15 - Marquises e Escadas
A&A nº 16 - Coberturas
A&A nº 17 - Instituições de Ensino II
A&A nº 18 - Envelope
A&A nº 19 - Residências II
A&A nº 20 - Indústrias II
A&A Especial – Copa do Mundo 2014
A&A nº 21 - Aeroportos
A&A nº 22 - Copa 2010
A&A nº 23 - Habitações de Interesse Social
A&A nº 24 - Metrô
A&A nº 25 - Instituições de Ensino III
A&A nº 26 - Mobilidade Urbana
A&A nº 27 - Soluções Rápidas
A&A nº 28 - Edifícios Corporativos
A&A Especial – Estação Intermodal de Transporte Terrestre de Passageiros
A&A nº 29 - Lazer e Cultura
- Construções para Olimpíadas
- Instalações Comerciais
Publicidade Ricardo Werneck tel: (21) 3445-6332 cbca@acobrasil.org.br
Roma Editora Rua Lisboa, 493 – 05413-000 – São Paulo/SP Tel.: (11) 2808-6000 cbca@arcdesign.com.br
Direção Cristiano S. Barata
Coordenação Editorial Nádia Fischer Redação Camila Escudero, Evelyn Carvalho, Fábio Rodrigues, Nádia Fischer e Sidnei Palatnik
Revisão
Deborah Peleias Editoração Cibele Cipola (edição de arte), Luiz Marques e Emílio Fim Neto (estagiários) Pré-impressão e Impressão www.graficamundo.com.br
Endereço para envio de material: Revista Arquitetura & Aço – CBCA Av. Rio Branco, 181 – 28º andar 20040-007 – Rio de Janeiro/RJ cbca@quadried.com.br
É permitida a reprodução total dos textos, desde que mencionada a fonte. É proibida a reprodução das fotos e desenhos, exceto mediante autoriza ção expressa do autor.
Perfis Estruturais Gerdau. Fundamentais para as melhores obras.
Da fundação à estrutura, os perfis estruturais Gerdau proporcionam racionalidade, eficiência e rapidez ao processo construtivo. Produzidos em aço de alta resistência, em ampla variedade de bitolas, oferecem flexibilidade aos projetos e permitem ganhos no custo geral da obra. Um compromisso da Gerdau com a qualidade e a rentabilidade na hora de construir.