
Beam Switch & Crossing Panel System
Beam Switch & Crossing Panel System
• 19,840lbs/9000 kg lifting capability per machine.
• A fully loaded Lifting System can turn in any direction while in motion.
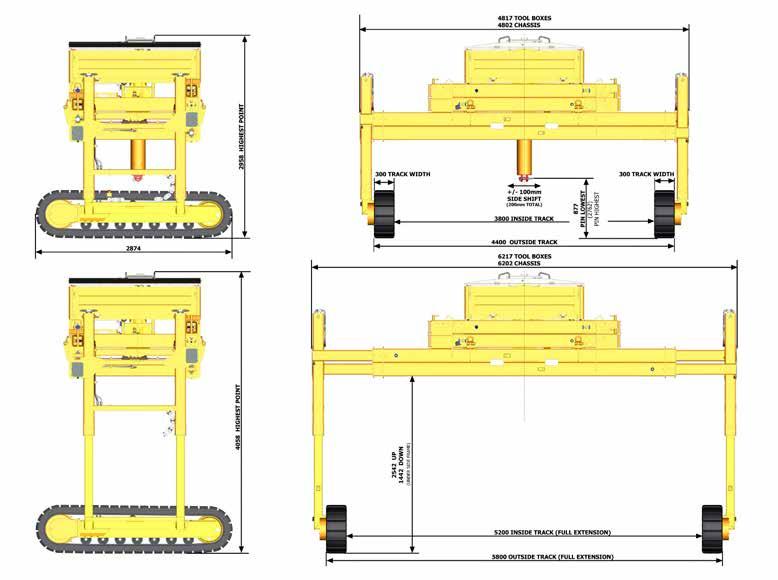
• Variable track width allows access and use in narrow environments like bridges, tunnels, and below grade.
• Ideal for removing and installing turnouts and panels on both single line and multiple line systems.
• Can easily cross multiple tracks.
• Compact size and maneuverability enables easy transportation, and rapid deployment to and from site.
• Fully adjustable lifting beam setup.
• Designed to work in multiples to handle any gauge, or composition of track panel.
• Can safely perform work at gradients of up to 11°
• Self recovery in the event of engine failure.
• 12,566lbs base weight per machine.
• 26 Gallons Typical for 2 typical 10 hour shifts.
• Lift Plan provided.