20-23ポートフォリオ

Page 1

PORTFOLIO CHEN JOU YUN

2020-

2021-

CONTENT
靜-空間劇本與名作改建 穿越-山佳閱覽室與綜合咖啡廳

2022WATERLILY-高層建築 多寶格-新店重劃區B單元

2023-

EXISTENTIALISM-UNCANNY

2020-

空間劇本與名作改建

本次的設計為分析名著的同時營造一位虛構人物並根據他的性 格與背景故事為她打造一棟住宅;而我分析的案例為安藤忠雄 的芝加哥住宅。

「......我的家裡算是有小康,爸媽是開公司的,他們想培養我 成為公司的接班人,但好像從來沒有顧慮我的感受。還好當時 我的朋友發現我不對勁,力勸我去看精神科,也還好我遇到了 很好的醫生,引導我找出自己的興趣(繪畫),讓我漸漸好轉 起來......。」

「我覺得我的性格算是比較內向吧,不太善於表達自己的想 法,也不是很喜歡人群,蠻喜歡獨處的,外人看起來蠻有距離 感的吧,我覺得。」

根據以上的文本,我將主題訂為「靜」,希望在這棟房子裡可

以不用顧慮多餘的社交,並在自宅內有畫室,可以享受一個人 的安靜時光。

2021-

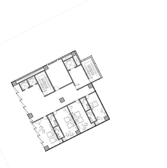
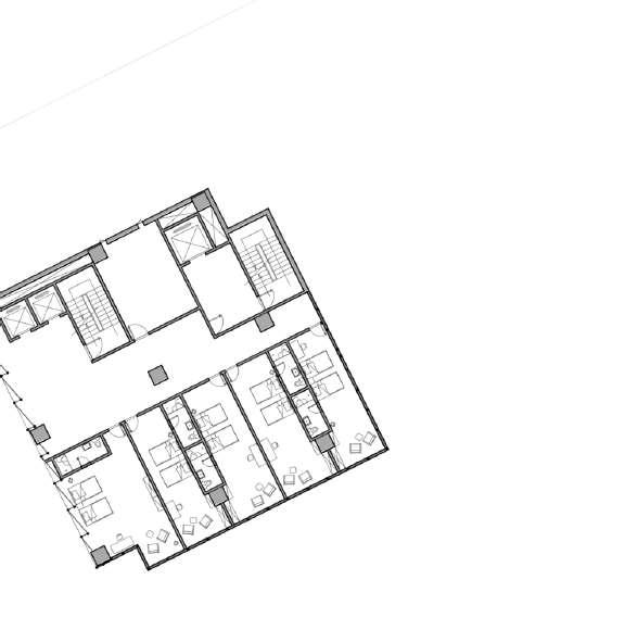
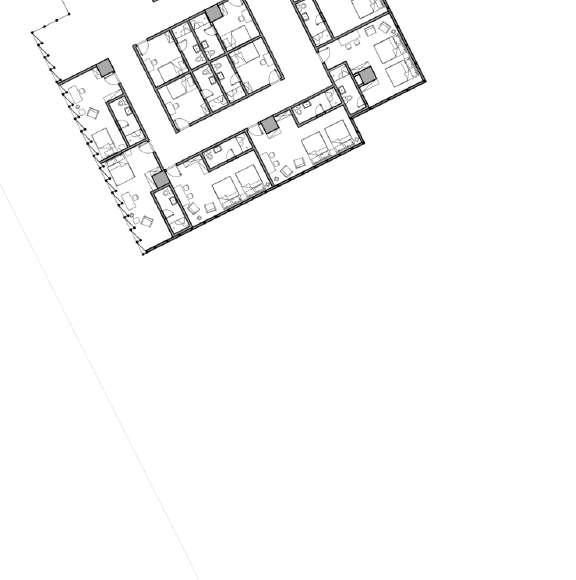
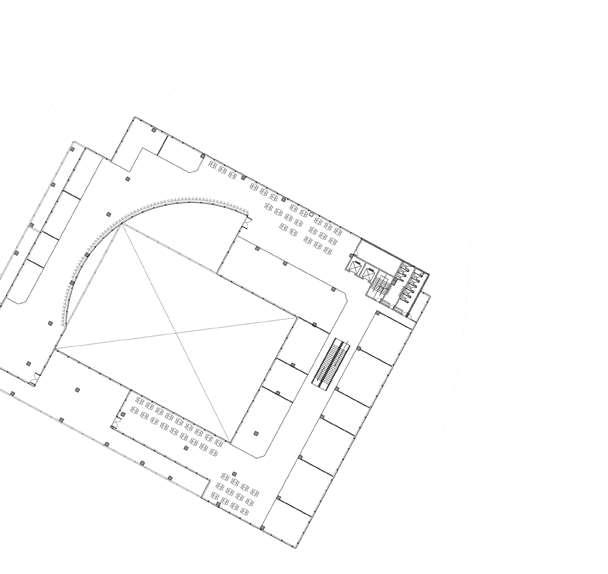
穿越 山佳閱覽室與綜合咖啡廳

半月形的階梯步道跟隨著原本的地形,在最後與基地後方的小小的信仰中心串聯, 也跟隨著上一輩老居民的腳步,一同穿越山佳的古今,了解山佳的前世今生。

山佳上世紀的榮景與歷史已經跟隨著煤礦資源耗竭與上一輩人的離開一同消逝,近年來由於周邊 工業區的發展,使山佳成為了工業區的附屬,即便是新來的居民對於山佳的了解也非常有限。

我希望閱覽室成為串起居民交流的契機,在此維持了原本的閱覽室功能,常態的展示山佳的歷史;

而在旁邊增加了啡廳與可預約式的共享廚房,以共同料理熱絡鄰里的互動,透過相互交流,補足

新舊世代對於山佳認知的斷層;而貫穿基地的半月形走道象徵著,在漫步基地的同時,跟隨著居 民的回憶一起回朔,最後彷彿突破時空、穿越時間,來到數十年如一日一直守護此地的小小廟宇。 全區配置圖

一層平面圖二層平面圖 東北-西南向剖面西北-東南向剖面

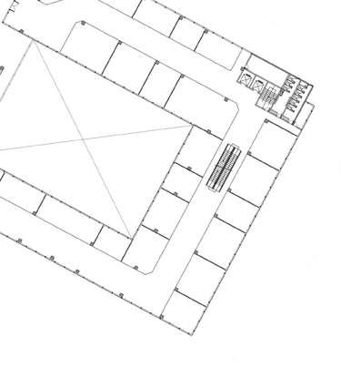
WATERLILY 高層建築

都市就像一個巨大的池塘,人們則在水中不停歇地游著; 而建築就像一株株的睡蓮,成為了生物休息喘息的空間......。

題目一開始設定了角色,有市長、開發商、建築師、地主可以 選擇,從不同視角審視此基地;再三思考後,我選擇了市長。

台北市政府在這裡放置了庫哈斯(RemKoolhaas)的表演藝術 中心,加上鄰近捷運站,地理位置極佳,以表演藝術帶動士林

觀光發展的意圖不在話下,此地發展與轉型可說是台北市政府

未來的的下一步,加上因為疫情的催化,夜市外國觀光客的銳 減更顯著了;是否可以以疫情為切入點,以表藝中心為助力,

促進士林轉型?

而我決定順著這個態勢,以及從整體城市的利益、在地發展的 角度思考,以推動士林發展與轉型為目標。

全區配置圖

時代潮流與商家、人流同時影響著一個地方的興衰,以中山捷 運站為例,因為做了些整治,加上線性公園的加成,吸引商家

群聚;而士林,政府把北藝投資在這裡,我認為台北市府對士 林是有下一個10年(或20年)的期許。

我將此設計定義為表藝中心與士林的配套措施,藉由藝術中心 帶來的遊客,導入百貨公司的機能為此地區留住人潮,以及整

治有潛力的老建築、古蹟(士林紙廠、市場),增加遊客在此 地停留的意願,增加與基地周邊的互動,而不是看完表演逛完 街就走了;並且設有飯店,讓遊客得以以基地為節點,深入探 索士林周邊之美。

2022-

多寶格

新店重劃區B單元

「多寶格」是古代皇帝收藏心愛玩具的盒子, 而這裡,將會小心翼翼的珍藏十四張先民曾經的生活痕跡與回憶。

本次的基地位於新店十四張的重劃區,這個區域規劃為重劃區後,原先的住民逐漸遷出, 剩下先祖留下來的三合院孤零零地佇立著。

開發VS.保留

這個問題原本對我來說並不是問題,就讀建築系本身應該設計新的東西或蓋新的房子這 個想法本身並沒有錯;直到我去實習後,或者說觀看越來越多再利用的案例之後,除了 發現新舊的碰撞可以帶來許多不一樣的火花之外,也產生了人類總是為了「未來」;為 了開發而大興土木,就為了所謂的「發展」,放眼望去均質化嚴重,全成了後現代主義 的樣子,不惜抹平過去的歷史痕跡,那程度就像這裡從來沒有人居住過一般。

以局外人的角度來說,重劃區並沒有什麼,就只是普通的「開發」與「進步」,但基地 導覽時居民的表情給我了莫大的震撼。

我們應該在文明進步的同時保留過去的資產,並在這之中之間取得一個平衡並且有效利 用,我認為這是所有人都應取得的共識。

批判性地域主義(criticalregionalism)

批判性地域主義不特指任何一種具體或固定風格,也不專指地域文化的重現,它強調地 域特質,反對全球文明的侵蝕及完全取代;它雖對現代化有所批判,但仍不放棄現代建 築所具之解放性及進步性。

在開發與保留的矛盾感中,也找到了可以支持我想法的理論,正因為這種矛盾感產生了 這次設計的想法。我認為:

住宅與商店建築並不像寺廟一樣具有固定活動功能,會隨著商業與人流的變遷而改變用 途。

住在這邊的人會搬走,會死亡,房子也會隨著遺忘,無人管理而凋零,但如果能讓更多 人知道,這棟房子就還是活著的。

承上提及的「如果能讓更多人知道,這棟房子就還是活著的」,要如何讓更多人認知 成為了我的課題;透過分析,我的客群(受眾)為附近住宅區的住戶以及由捷運站來到 十四張的人,而機能的選擇則由下至上隱私性逐漸提高,功能性也逐漸單一。

出租辦公室、辦公層

美食街

商品販售、零售業、文創商品

書店、展示空間、休閒飲食

下層選擇開放性及公共性極高的零售賣場為主,讓人流可以自由流動,提高接觸到古宅 的機會,到上面避免人流流失降低使用效率,改為放置辦公機能。

機能單一、公共性低 機能多元、公共性高

人流動向及公共空間示意圖

幹道與車道出入口示意圖

淺談設備

動線(垂直運輸)

電梯*1 管道間*1 電梯*2 樓梯*1 管道間*1 附設排煙器具 無障礙動線 主要動線 動線
水箱、電氣室與消防 (約需42.9+65.7+90m2) 空調機房(約需237.3m2) 中央式全水空調 個別分離式 機房 空調設備 245.3m2 389.3m2 書店 再利用輕食咖啡廳 百貨零售
給水設備(廁所) 排水設備(廁所) 蓄水池與泵浦 汙水池 電器設備 消防設備(供水) 配電室 台電外線 消防水池 消防設備
右立面圖 正立面圖
AA剖面圖 BB剖面圖

EXISTENTIALISM

UNCANNY

從一個關鍵字做起始,並透過電影情節來進行讀解, 加上數位工具將事件抽象化與轉譯。

攻殼機動隊1995

我在期初選擇的電影為:攻殼機動隊1995

高科技的未來中,聚焦主角在舊城區,在混雜擁擠的背景下更凸現了人物本身的存在。

攻殼機動隊女主角在劇情的推進下漸漸開始思考自身存在,也就是在不斷重複且尋常的 日常中出現了不尋常(UNCANNY)的突破口。

「正如要有許多部份才能組成一個完整的人,而其中的每一個部分都要有所差別,才能 組成各個不同的人。」

如女主角所說,每個人的存在,由各式各樣的細節堆疊出來,並解與現實交織切割,成 為了現在的「我」,而女主角思考自身存在的行為,我認為正是「存在主義」。

以下為期初的發展手法,我將電影畫面截圖之後,放入Rhino用以下指令做變化:

接續期初的發展手法,我使用了「薛西弗斯的神話」當作底圖,是在存在主義中相當有 名的故事。

存在主義興盛的年代裡,人們處於一個庸碌冷漠的時代、戰爭頻發;生產線帶來更快速 有效率的生產,而人們的生活也漸漸變得像流水線上的產品,日復一日;而在這種枯燥

且可能沒有明天的大環境下,有些人轉求宗教慰藉,也有些人開始思考自身存在的意義, 試圖突破這荒謬的人生。

在手法的呈現,上述提到的「生產線般的生活」用方體表現,就像被禁錮一般;而存在 主義就猶如枯燥生活的救贖(我認為人大多數信仰都將光奉為神聖、具有靈性的象徵, 並且將「向上」、「上方」這個動作與神聯想在一起)在此,我認為用天井來呈現再適 合不過。

這次的設計是小組作業,我與其他兩位組員選擇同一塊基地,在上面分別做3種不同的 設計,而這是最後的全區配置。

我們的基地選在南港台北流行音樂中心隔壁,附近還有南港捷運站及其商圈,我們的機 能希望能將這兩個地點的空間性質(藝文-商業)延伸並且串連;由左至右的為青創辦公 室、商業軸帶及美術館。

材料計畫 平面圖
PORTFOLIO 2023

Turn static files into dynamic content formats.

Create a flipbook
Issuu converts static files into: digital portfolios, online yearbooks, online catalogs, digital photo albums and more. Sign up and create your flipbook.