







a collaboration overview
reillydesign is an architectural and interior design consulting studio focused on the inventive conception of built environments. We utilize the right blend of architectural and interior design with graphics and technology to convey the branding and positioning of financial institutions. We provide compelling spaces that sell.
We specialize in providing innovative design solutions to financial institutions of all types striving to accommodate a chosen demographic. We help institutions leverage the retail branch to engage the customer experience on a more personal level. Reilly Design brings together, through strategic partnerships, the right talent at the right time to fulfill each clients’ needs.
We strive to provide the most efficient way possible for large, small or de novo institutions to benefit from our experience, and that of our partners, to bring them the
exceptional creativity and service one might expect of a much larger studio.
•environmental brand translation
•protomodel concepts
•branch design
•customer experiences
•retrofit concepts
•signature elements
•millwork design
•interior design
•fixture / retail element design
great environments should create a deeper, richer experience for your customer must clearly communicate tangible features and intangible benefits that will attract customers’ attention and draw them into interaction
environments
since your brand really is the promise you make to your customers, shouldn’t your environment reinforce that promise with a great customer experience? and employees by creating memorable and tangible experiences
The following is a collection of work done in collaboration with Adrenaline.
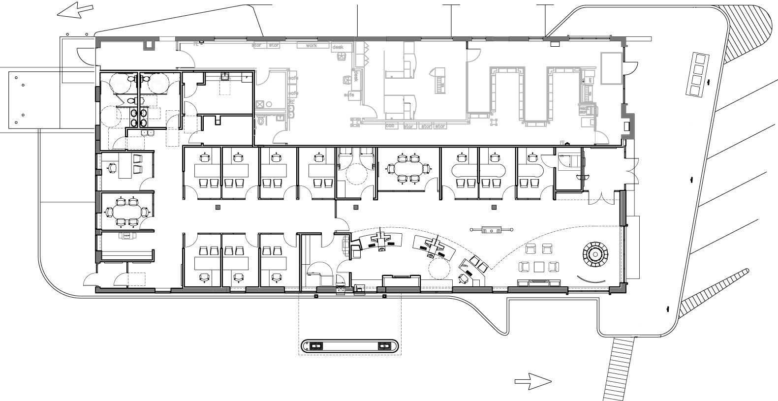
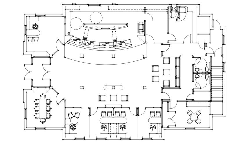
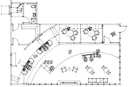
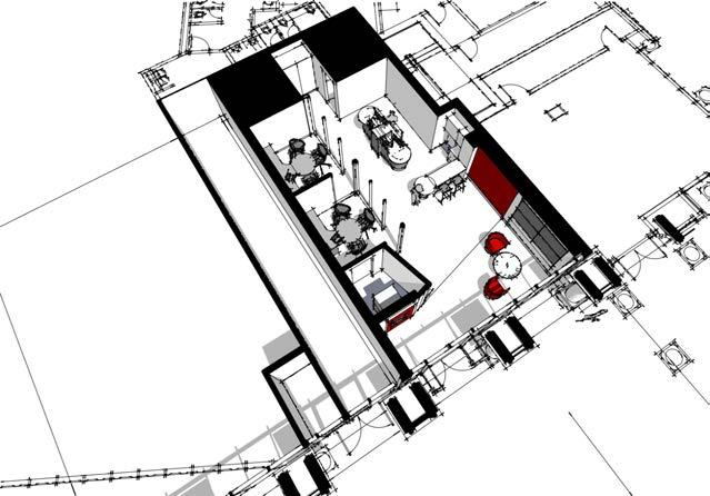
Reilly Design collabrated with Adrenaline on the design on Old National Bank’s newest branch in the IPL Building on Monument Circle in Downtown Indianapolis. The goal was to create a new brand billboard with an all new fresh look that would create a new dynamic customer experience.
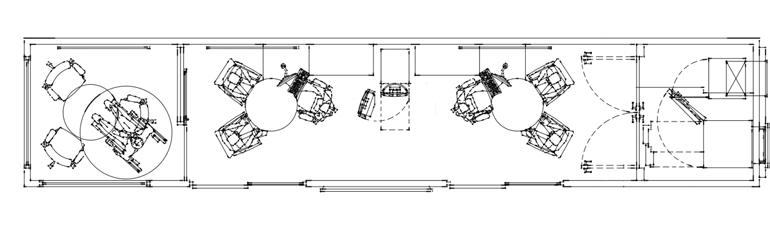
Reilly Design collaborated again with Adrenaline on design concepts for a new student focused branch to be built adjacent to the campus of Penn State University. The goal is to create a vibrant brand space with a special focus on the financial needs of the student demographic. The environment should also appeal to and be able to serve the local consumer and small business client as well.
Reilly Design collaborated again with Adrenaline on design concepts for a new student focused branch to be built adjacent to the campus of Penn State University. The goal is to create a vibrant brand space with a special focus on the financial needs of the student demographic. The environment should also appeal to and be able to serve the local consumer and small business client as well.
Reilly Design collaborated with Adrenaline on the design of Eastern Bank’s newest branch in the heart of the high tech neighborhood near Kendall Square.. The goal was to create a new brand billboard with an all new fresh look that would create a new dynamic customer experience.
Reilly Design collaborated with Adrenaline on the design of Eastern Bank’s newest branch in a crowded retail shopping center pad site in Revere. The goal was to create a new brand billboard with an all new fresh look that would create a new dynamic customer experience.
Reilly Design collaborated again with Adrenaline on design concepts for the new Falmouth MA branch. The design utilizes the new brand palette and kit-of-parts in a full service branch that is a consolidation of two local branches.
Reilly Design collaborated again with Adrenaline on design concepts for the new Westford MA branch. The design utilizes the new brand palette and kit-of-parts in a full service branch that will occupy hafl the building it currently resides in. The organizational model was recreated to utlize the universal banker model and the cooresponding teller pods.
Reilly Design collaborated again with Adrenaline on design concepts for the new Quncy MA branch. The design utilizes the new brand palette and kit-of-parts in a full service branch that is a enovation of another former community bank.
Reilly Design collaborated again with Adrenaline on design concepts for the new Roxbury MA branch. The design utilizes the new brand palette and kit-of-parts in a full service branch that will occupy high profile street level corner unit in a formerly underserved Boston neighborhood.
Reilly Design collaborated again with Adrenaline on design concepts for a line of new branch formats for Eastern Bank’s planned growth strategy for applying the proper branch size tailored to the markets they will serve.
Reilly Design collaborated again with Adrenaline on design concepts for a line of new branch formats for Eastern Bank’s planned growth strategy for applying the proper branch size tailored to the markets they will serve.
Reilly Design collaborated again with Adrenaline on design concepts for a line of new branch formats for Eastern Bank’s planned growth strategy for applying the proper branch size tailored to the markets they will serve.
CERTAINTEED LANDMARK COLONIAL SLATE
Reilly Design collaborated again with Adrenaline on design concepts for the new America First Protomodel branch. The first stand-alone branch to leverage to the new universal banker / assisted self service model and new brand palette creates a new fresh member experience.
Reilly Design collaborated again with Adrenaline on design concepts for the new America First Ranbow Las Vegas branch. A former community bank branch was aquired in a high profile locaction and will be reconfigured to accomodate a new branch utilizing the new staff-assisted self service operating model in a highly branded experience. We helped AFCU through a series of scenarios to test various member experiences as they grow into the market
Reilly Design collaborated again with Adrenaline on design concepts new America First alternate small branch footprints that may be utlized throughout the AFCU footprint. Various member experiences were tested utlizing different technologies and pod designs in order to show the flexibility the plans have. These may be tailored easily to any market they serve depedning on the types of service and experience the market demands.
Reilly Design collaborated again with Adrenaline on design concepts for the new America First In-Store branch. The first in-store branch to leverage to the new universal banker model and new brand palette creates a new fresh member experience.
Reilly Design collaborated again with Adrenaline on design concepts for the new America First In-Store branch. The second in-store branch to leverage to the new universal banker model and new brand palette creates a new fresh member experience.
Reilly Design collaborated again with Adrenaline on design concepts for the new Flagstar Bank Protomodel. The first branch to leverage to the new universal banker model and new brand palette creates a new fresh customer experience. More efficient, while still allowing for the personal interactions their customers have grown accustomed.
Reilly Design collaborated again with Adrenaline on design concepts for the renovation of the Long Lake branch. The second branch to leverage to the new universal banker model and new brand palette creates a new fresh customer experience.
Reilly Design collaborated again with Adrenaline on design concepts for the new Flagstar Bank Cashless Branch. The first branch to leverage to the new brand palette and creates a new fresh customer experience. This branch will be under 1000 SF and will allow Flagstar to extend their footprint nationwide and a low cost of entry.
Reilly Design collaborated again with Adrenaline on design concepts for the new Flagstar Bank Cashless Branch. The first branch to leverage to the new brand palette and creates a new fresh customer experience. This branch will be under 1000 SF and will allow Flagstar to extend their footprint nationwide and a low cost of entry.
Reilly Design collaborated again with Adrenaline on design concepts for the new Flagstar Bank Cashless Branch. The first branch to leverage to the new brand palette and creates a new fresh customer experience. This branch will be under 1000 SF and will allow Flagstar to extend their footprint nationwide and a low cost of entry.
Reilly Design worked with Newground on various design concepts in response to an RFP for a new branch prototype initiative for a midwest bank.
Reilly Design collaborated again with Adrenaline on design concepts for the new Monrone Bank & Trust branch. The first branch to leverage to the new universal banker model and new brand palette creates a new fresh customer experience. This particular branch will cater to customers utilizining MB&T’s lines of business realted to investment products and business banking.
Reilly Design collaborated again with Adrenaline on design concepts for the new Monrone Bank & Trust branch. The first branch to leverage to the new universal banker model and new brand palette creates a new fresh customer experience. This particular branch will cater to customers utilizining MB&T’s lines of business realted to investment products and business banking.
Reilly Design collaborated again with Adrenaline on design concepts for the new First Tennessee Bank branch located in a high profile Nashville location tailored primarily to student population at the Universtiy of Tennessee and local small businesses.
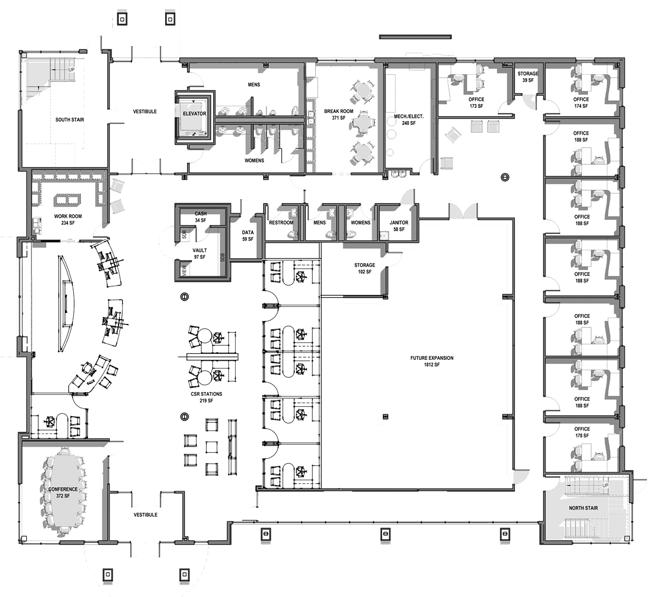
Reilly Design collaborated with Adrenaline on design concepts for the new First Tennessee Bank branch network to reconfigure a large portion of the network utilizing the new kit-of-parts strategy developed to create a more effcient operating model and inspired customer experience.
Reilly Design collaborated again with Adrenaline on design concepts for the new Mutual Bank branch. The second branch to leverage to the new universal banker model and new brand palette creates a new fresh customer experience.
Reilly Design collaborated again with Adrenaline on design concepts for the enovation of the Mutual Bank Hanson branch. The first branch to leverage to the new universal banker model and new brand palette creates a new fresh customer experience.
Reilly Design collaborated on the proposed design concepts for the new Capital One Cafe brand spaces. The desire was to rebrand an existing network of cafes obtained through the acquisition of another large financial isntiution’s online banking line of business.
Reilly Design collaborated on the proposed design concepts for the new Capital One Cafe brand spaces. The desire was to rebrand an existing network of cafes obtained through the acquisition of another large financial isntiution’s online banking line of business.
Reilly Design collaborated again with Adrenaline on design concepts for a new micro branch in a lease space in a downtown mixed use development. The goal is to create a vibrant brand space with a the ability to provide full services.
Reilly Design collaborated with another firm as well as Capital One’s in-house design lead on Capital One’s Rapid Refresh program to update the environment of up to 400 branches nationwide.
Reilly Design collaborated again with Adrenaline on design concepts to redesign a branch that had begun construction. The goal was to re-work not only the floor plan, but to reimagine the entire customer experience. Special efforts were made to showcase the bank’s 159 year history and represent their lines of business and various product offerings. The look and feel was to be a new updated fresh, less ‘traditional’ look.
Reilly Design collaborated again with Adrenaline on design concepts for a new student focused branch to be built adjacent to the campus of the University of New Hampshire. The goal is to create a vibrant brand space with a special focus on the financial needs of the student demographic. The environment should also appeal to and be able to serve the local consumer and small business client as well.
Reilly Design collaborated again with Adrenaline on design f Kennebunks Savings Bank’s Eliot Maine branch. The goal was to create a new more effcient environment utlizing the newly established univesal banker model. New teller pods were utilized as well as the new branded environmental palette was used to create a far more dynamic experience.
Reilly Design collaborated with Adrenaline on design of Wood & Huston Bank’s newest branch. The goal was to create a larger branch that would provide not only retail banking but their robust lending line of business as well. This branch would replace an odler highlyy successful location on the same site.
Reilly Design collaborated with Adrenaline on design of Wood & Huston Bank’s newest branch. The goal was to create a small branch that leveraged lessons learned in the Higginsville branch. The goal was to create another regional branch that could be expanded in size when the market needs warrant.
Reilly Design collaborated with Adrenaline on design of Wood & Huston Bank’s newest branch. The goal was to create a small branch that was reminiscent of local vernacular architecture with a slightly more contemporary feel. The goal was also to utilize durable materials in a creative way to create a maintenance free facility.
Reilly Design collaborated again with Adrenaline on design concepts for a new micro branch inside a standard shipping container. The goal is to create a vibrant brand space with a the ability to provide full services.
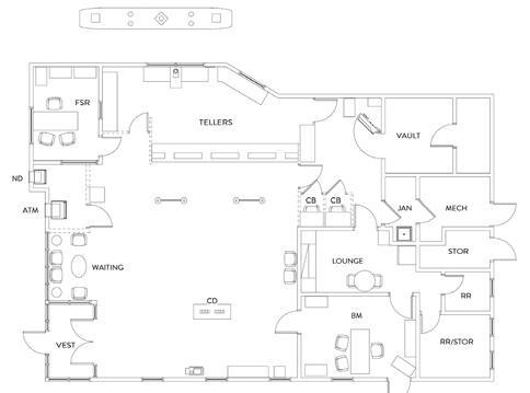
24 hr itm vestibule windows windows
welcome office nd atm
entry door sidelight display doors consult
led display wall
Reilly Design collaborated again with Adrenaline on design concepts for a new micro branch inside a standard shipping container. The goal is to create a vibrant brand space with a the ability to provide full services.
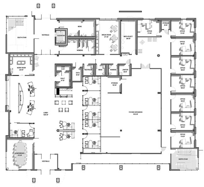
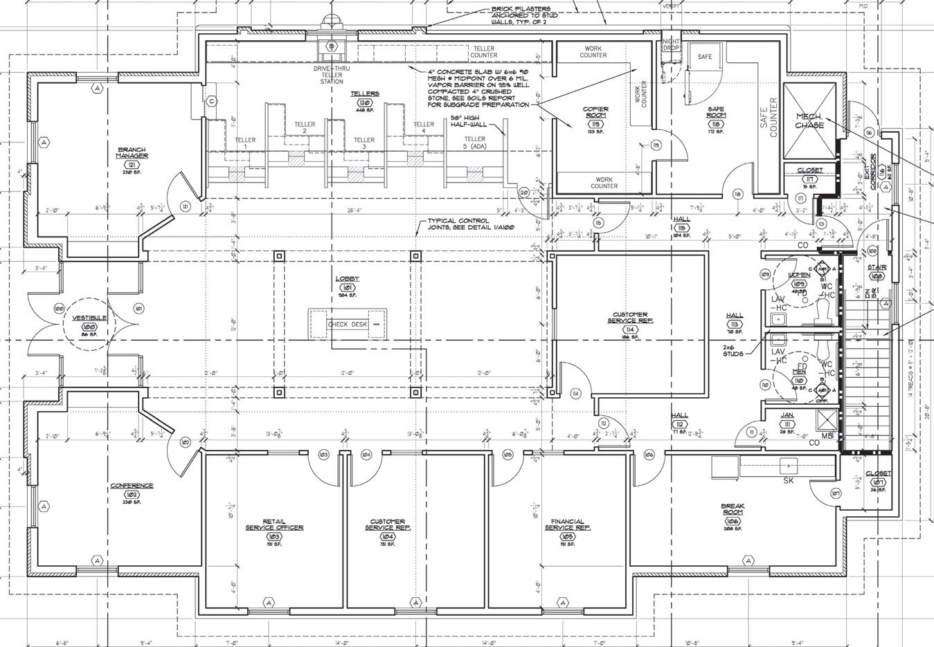
Reilly Design collaborated with Adrenaline on design implementation of BankPlus’ newest branch. Once conceptual design was complete we developed the design to the Design Development level for the preparation of construction documents.
Reilly Design collaborated with Adrenaline on design concepts for a series of elements to be installed within the branch to better enable Advantis to showcase and leverage their technology offerings for their members.
Reilly Design collaborated again with Adrenaline on design concepts to redesign an existing branch. Once again the goal was to re-work not only the floor plan, but to reimagine the entire customer experience. The goal was to create a new brand appropriate environment that was more efficient, leveraged technology, and created space for line-of-business awareness.
Reilly Design is currently working on designs for Town & Country’s main office branch and administrative office space. The goal is to completely renovate the facility utilizing new technology and the new brand palette executed previously by Newground at the Forest Avenue Portland branch.
Reilly Design is currently working on designs for GTE’s new downtown Tampa branch. The goal is to completely renovate an existing small brank branch into an engaging new brandspace to attract new members and a test space for new brand elements and palette to be rolled out to a new student branch at a local community college and the rest of the newtwork.
Reilly Design collaborated with Newground on design concept to create a new small branch for GTE Financial to replace an existing downtown branch. The objective was to create a unique and eye-catching space to serve as a “Brand Billboard.” This prominant location in Tampa’s downtown arts district would also leverage its day and nightime presence to peek curiousity promote channel migration as well as attract a new audience.
Reilly Design collaborated with Adrenaline on design concept to create a new small branch for GTE Financial in a high traffic retail center in the Centro Ybor section of Tampa. The objective was to create a unique and eye-catching space to serve as a “Brand Billboard.” This location with close proximity to a university environment was geared to this particular student and young professional demographic.
A series of Signature Design Components and Graphic Elements were developed to be utilized in other locations in various formats and sizes to create a consistent look and message throught the GTE footprint
Reilly Design collaborated with Newground|Adrenaline on design concept to create a new refreshed branch for their current large South Tampa branch. The goal was to create a fresh new environment utilizing the new brand palette and signature elements to better reflect the new member experience.
A series of Signature Design Components and Graphic Elements were developed to be utilized in other locations in various formats and sizes to create a consistent look and message throught the GTE footprint.
“think outside the branch”
Reilly Design has been developiong concepts for extending the customer experience by thinking outside the branch on engagement opportunities at branch driveups. The goal was to create a more a better branded experience outside the branch thru a scalable kit of parts
bank
exterior renovation
The goal of the project was to quickly develop various concepts to refresh the exterior of the branch utilizing a light touch approach. The schemes represented an opportunity to simply reclad the exterior in order to create a more appealing facade and become a more attractive neighbor to the surrounding community
Reilly Design worked with Ryan Drasher and Bill Bily on many design iterations for various schemes to renovate BOTW branches througout the San Francisco market as well as Portland and Seattle.
Observations:
* Vestibule
* Vestibule
* Vestibule
* Neutral and
* Waiting area
* Waiting area
* No hospitality
* 2-S check
* Check desk
* Minimal branding
* No greeting
* Minimal wayfinding
* Office equipment
* Multiple opportunities
Recommendations:
* Leverage communications
* Introduce
* Introduce
* Explore leveraging
* Consider colors
* Remove/relocate
* Update/refresh
Reilly Design is currently working with Adrenaline on design concepts to renovate the Petal, MS branch for Trustmark. The goal is to convince the client to retain Adrenaline over their current firm Gilmore Group
Feature element
Digital/Collatoral lounge side
Line of Business on queue side
Merchandising element
Wall card holder, take ones
Feature element
Branded digital LED bezel/surround
Line of business displays and collateral
Rework teller queue and possible repurpose existing check desk and online kiosk
consult desks dialog tellers solutions centers consult desks check queue resource center
solutions center (flagship)
solutions center (budget)
large format digital changeable brand product grid
merchandising frame with paper based collateral
large format digital changeable brand product grid
merchandising frame with paper based collateral line of business/ resource center
small format digital changeable brand / product graphic paper based collateral self serve technology
message display “thank you” equipment surrounds island displays window surrounds window vinyl displays
Reilly Design collaborated with Adrenaline on very early design concepts to reposition a Manhattan lobby experience through the use of hig-impact brand visuals and new large format digital components. The goal was to create a brand billboard that would be highly visable to passing pedestrian traffic.
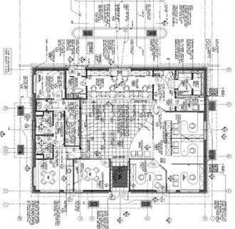
manager’s office seems large and inefficient with little visibility to the branch and platform area
inefficent space that doesn’t present an ideal view for customer. no opportunity for merchandising of brand projection
teller station returns are large and stagger requires more square footage
does branch traffic require 5 teller stations
copier room seems large and inaccesible from office users
safe room seems oversized for the size branch
indicates potential square footage reductions
columns for monitor roof create rigid architecture and pathway
pathway doesn’t allow for customer engagement or exposure to lines of business or retail communication
csr office seems large and inefficient with little visibility to the branch and platform area
windows at perimeter are small and don’t create opportunities for daylight, branch projection or security
offices are large (oversized) smaller offices would create opportunities for more program. office walls could be constructed to allow for more transparency
breakroom and rear corridor layout seems inefficient
Reilly Design worked with Greg McCabe on various design concepts to give a couple of Community Financial’s facilities a more updated look.
Reilly Design worked with he Adrenaline team on the design of a series of elements and the building for the new Pittston branch.
Reilly Design designed this new branch to replace a former former post office. The goal was to create a new branded environment for Rockville to introduce themselves to a brand new market. The goal was to create and environment to cater to small business, wealth management customers as well as feature Rockville’s technology offerings
www.adrenalineshot.com www.reillydesign.net