

ARQ. INTERNACIONAL
Fundación Santa Fe de Bogotá - Colombia
El Equipo de Mazzanti
ARQ. INTERNACIONAL
Fundación Santa Fe de Bogotá - Colombia
El Equipo de Mazzanti
MERAKI
ARQ. VIOLETA PEREZ & ASOCIADOS
ARQUITECTURA NACIONAL
Durabilidad de estructuras de hormigón armado
Ing. Roberto Rojas
Mi pasión y fuente de inspiración son las plantas de nuestros entornos Yuki Hayashi
CONOCÉ EL SERVICIO TÉCNICO DE 10 PUNTOS QUE NOS DIFERENCIA Y CARACTERIZA
• Estanques para agua.
• Geomembranas.
• Productos para el campo
Desde nuestra llegada a Paraguay en 2012, en TBDL S.A. nos hemos consolidado como uno de los líderes en la industria, gracias a nuestro firme compromiso con la vocación de servicio y la constante innovación en nuestros productos.
Nos enorgullece ser un actor clave en el desarrollo de las obras más ambiciosas del país, suministrando generadores diésel de la más alta calidad para acompañar el crecimiento de la infraestructura nacional.
Paraguay ha demostrado ser un país en constante crecimiento, con reglas claras que favorecen el desarrollo y la inversión. La evolución sostenida de eventos clave como
Construtecnia es un reflejo de este dinamismo, consolidándose como una plataforma esencial para el sector de la construcción. En TBDL S.A. nos sentimos orgullosos de ser parte de esta trayectoria de crecimiento y confiamos plenamente en el futuro del país, donde el desarrollo sostenible abre nuevas oportunidades para la industria y la infraestructura.
Uno de los pilares fundamentales de nuestro éxito ha sido nuestra asociación con Donaldson, marca líder en filtración, de la cual somos representantes.
Donaldson es el fabricante original de muchos de los filtros utilizados por las principales máquinas del sector, incluyendo marcas reconocidas como CAT y John Deere, permitiéndonos brindar a las constructoras soluciones de filtración eficientes y confiables para cada necesidad específica.
La Pala Cargadora SINOMACH 937, disponible únicamente durante la duración de la expo. Con esta propuesta, reafirmamos nuestro compromiso de ofrecer soluciones innovadoras y accesibles que impulsen el desarrollo del sector.
Diseño
Operación silenciosa
www.hitachiaircon-la.com
La joya suiza del diseño en baños, ahora en
DIRECCIÓN GENERAL
Lic. Edgar Robinson
DIRECCIÓN EJECUTIVA
Sr. Felipe Velázquez Alén
ADMINISTRACIÓN
Sra. María René Dongo
Sr. Manuel Paniagua
Arq. Blas Amarilla | Arq. Ricardo Meyer | Arq. William Paats | Arq. Félix Toranzos | Arq. Carlos Jimenez | Arq. Maria Luz Cubilla | Arq. Margita Kliewer | Arq. Curt Tippach |Arq. Pablo Ruggero | Arq. Aldo Cristaldo Kegler | Arq. Violeta Pérez |Arq. Paola Moure|Arq. Carlos Cabo de Vila| Ing. Paulo Yugovich | Ing. Miguel Stanischeski|Ing. Sergio E. Gavilán | Ing. César López Bosio | Instituto Superior de Arte.
PRODUCCIÓN GENERAL
Grupo Paraguay Eventos & Emprendimientos
Contactos: info@aia.com.py | info@paraguayeventos.com.py | revistaaiapy@gmail.com
Web: www.aia.com.py | Telefax: (595-981) 183 062 | Lambaré - Paraguay
La Revista AIA (Arquitectura, Ingeniería y Artes) es un producto registrado, con 12 ediciones anuales. Los Textos y Artículos publicados son de exclusiva responsabilidad de sus autores.
Arquitectura | Ingeniería | Artes | Seguínos en redes revistaaia Revista Arquitectura, Ingeniería y Artes - AIA
Cuando recibimos el encargo de la realización del Foro de la Federación Panamericana de Asociaciones de Arquitectos (FPAA), y su meta de lograr consensuar un dialogo sobre los 500 años de Asunción, jamás pensamos encontrar un sentimiento tan arraigado con todos los profesionales, gremialistas y autoridades en relación a la problemática de Asunción.
Existe el deseo de colaboración más que de crítica.
Existe el deseo de involucramiento más que la distancia indiferente. Y es por ello que a horas de este importante encuentro podemos augurar el éxito del mismo a través de la participación de grandes líderes de opinión y que nos estimula a saber que tenemos equipo. Esperamos que el corolario de estos diálogos sea el establecimiento de una hoja de ruta a seguir por quienes tienen la responsabilidad de llevar a cabo los festejos, las reconversiones necesarias y el manejo de la ciudad de Asunción.
Párrafo aparte, nos lleva la nueva edición de la Revista AIA cuya circulación desde hace 32 años nos anima a pensar que ha llegado el momento de darle un “refresh”, nuevo diseño, nueva forma pero siempre con el firme propósito de seguir liderando el segmento de revistas especificas del sector, a través de la información variada, valida y sobretodo información destinada a darle la preponderancia a lo nacional, a lo realizado por nuestros profesionales y las empresas que indudablemente vienen trabajando con estándares de altísima calidad.
Nos animamos a seguir hablando de eventos cuya significancia a nivel país e internacional siguen haciendo posible que la industria sin chimenea se ha instalado en el país y con muy buenos resultados en el contexto económico, turístico, gastronómico, hotelero, etc. Miramos con esperanza, pero sobretodo miramos con Fe que este año 2025, está lleno de trabajo y records de ejecución que ayudarán a disminuir los déficits que como País tenemos. Pero mantengamos siempre la idea que toda tarea será muchos más fácil si la hacemos en equipo. No existe más los liderazgos mesiánicos como solución. Dos valen siempre más que uno.
Arquitectura
Nacional
Casa Atalaya
Arte Yuki
Hayashi
Especiales
CONSTRUCTECNIA
Se inicia el operativo 2025
Se inicia el operativo 2025 Entrevistas CILA
EARQ.
MERAKI
n el año 2022, recibimos un proyecto que, aunque había quedado inconcluso durante algún tiempo, volvió a nuestras manos con la misión de reactivarlo, completarlo y transformarlo en lo que hoy conocemos como Casa Atalaya. Ubicado en Surubi’i, Mariano Roque Alonso, Paraguay, este hogar fue concebido originalmente como un refugio de fin de semana. Su propósito era ofrecer una escapatoria tranquila, alejada del ajetreo y la agitación de la vida urbana, un lugar perfecto para relajarse y reconectar con la naturaleza.
Un diseño que refleja serenidad y conexión con el
entorno. El nombre de la casa, Atalaya, que significa “torre de vigilancia”, no es solo un juego de palabras, sino también una representación del diseño del proyecto. El concepto de crear un espacio de observación y calma, conectado con su entorno, fue el principio rector de todo el proceso. El uso del ladrillo se convirtió en un símbolo central de la visión de este hogar. Elegimos este material por su resistencia, su capacidad de resistir el paso del tiempo y, sobre todo, por la calidez y textura que aporta a la estética general del proyecto. El ladrillo no solo se utilizó para las paredes y muros expuestos, sino que se extendió también a las terrazas, donde fue elegido para pavimentar el suelo. Este elemento se convirtió en el hilo conductor entre los diferentes espacios de la casa, creando una armoniosa integración entre lo exterior e interior. De esta ma-
nera, los materiales utilizados no solo cumplen una función práctica, sino que también establecen un lenguaje visual coherente y lleno de encanto.
La torre: el corazón del diseño arquitectónico
Uno de los aspectos más destacados del proyecto es la torre. Este componente, que hace alusión al nombre de la casa, no es solo un punto focal arquitectónico, sino que también se convierte en un símbolo de la conexión con la naturaleza circundante. En esta torre, un marco de acero sostiene un patrón de ladrillos que, a lo largo del día, crea un fascinante juego de luces y sombras, cambiando la atmósfera del lugar de acuerdo a la hora y el clima. Este efecto visual no solo embellece la estructura, sino que también le otorga una sensación de dinamismo, haciendo que cada rincón de la casa
se sienta vivo. Una cuidadosa integración de lo nuevo con lo existente.
A pesar de que respetamos el diseño original de la casa, el proyecto exigió una integración armoniosa de nuevos elementos con la obra ya construida. La estructura inicial requería ser cuidadosamente considerada para mantener la coherencia estética y funcional del diseño. Incorporamos varios elementos que mejoraron tanto la funcionalidad como la comodidad de los espacios, sin perder la esencia del concepto original.
Uno de estos elementos fue la piscina, diseñada específicamente con una forma alargada y estrecha, ideal para quienes disfrutan nadar de manera relajada. Además, se añadió un portón de acceso que, junto a la torre, completó la composición
visual y escaló adecuadamente la magnitud del proyecto. El desafío más grande fue integrar estos nuevos componentes con la edificación ya existente, creando un balance perfecto entre lo antiguo y lo nuevo.
El resultado final fue un hogar que combina la rusticidad del ladrillo con la comodidad de la modernidad. Casa Atalaya no solo cumple con las expectativas de un refugio de fin de semana, sino que ha logrado superar los desafíos arquitectónicos, logrando una integración perfecta entre funcionalidad, estética y confort. En cada rincón de la casa se refleja una conexión profunda con la naturaleza, el diseño y el
bienestar.
Este proyecto es un testimonio del poder del diseño consciente y detallado, donde el respeto por el pasado se fusiona con las necesidades contemporáneas, creando un espacio único y atemporal. Cada visita a Casa Atalaya es una experiencia de serenidad, conexión y belleza, donde la luz, los materiales y los elementos arquitectónicos se entrelazan perfectamente para ofrecer el refugio soñado.
Nombre de la Obra: Casa Atalaya
Ubicación:
Surubi’i, Mariano Roque Alonso, Paraguay
Proyecto y Construcción:
MERAKI Arq. Violeta
Perez & Asociados, Eloisa Barriocanal, Matías Barrios, Facundo Troche, Paula
León Ciotti, Gali Krut, Costanza Silvestri, Andrés Riera, Macarenna Marinoni
Fotografía: Leonardo Méndez
Año: 2022
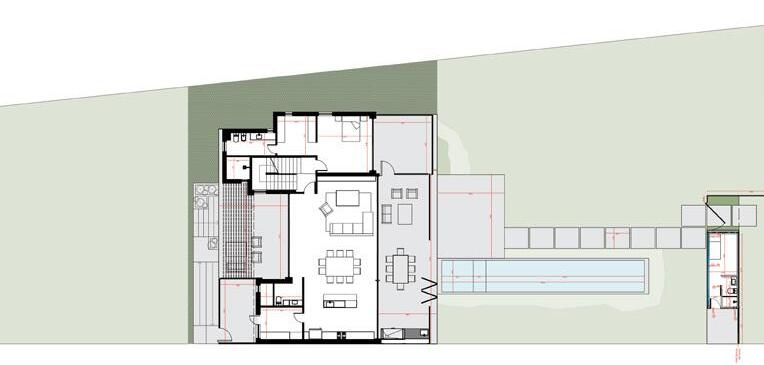
La ampliación de la Fundación Santa Fe de Bogotá representa un desafío arquitectónico y urbano único. Además de ser un edificio funcional, debe integrarse armónicamente con el entorno urbano y con las instalaciones ya existentes, mientras se proyecta hacia las necesidades del futuro.
Ubicado estratégicamente entre la Avenida 9ª y la 7ª, el nuevo complejo se convierte en un conector vital en la ciudad, creando una plazoleta que conecta a los transeúntes con un corredor urbano. Esta intervención añade al paisaje de Bogotá valiosos espacios públicos, que incluyen amplias zonas verdes, una cafetería, locales comerciales y un auditorio multipropósito. Estos elementos no solo mejoran la calidad de vida en la zona, sino que favorecen la interacción de la comunidad y promueven la confluencia de personas en el sector.
El proyecto nace de un concurso organizado por la Fundación en 2012. Uno de los aspectos distintivos del complejo hospitalario ha sido el uso del ladrillo, un material que se mantiene como un elemento esencial en la nueva estructura. Siguiendo los lineamientos del concurso, el ladrillo se utiliza
de manera innovadora, respetando los principios de la Fundación. En lugar de emplear el ladrillo en compresión, como es tradicional, se incorpora en extensión, utilizando cables y platinas que lo sujetan de manera similar a un tejido. Esta técnica permite crear una fachada que juega con diferentes texturas y tamices de luz, ajustándose a las necesidades específicas de cada espacio. Gracias a esta solución, el edificio aprovecha al máximo la luz natural, favoreciendo la recuperación de los pacientes al proporcionar un entorno más saludable y menos estresante.
En términos de organización, el nuevo edificio también redefine la distribución de los espacios. La torre de unidades de cuidado intensivo (UCI) se sitúa estratégicamente cerca del corazón operativo del hospital: el servicio de Cirugía.
El edificio se compone de 12 niveles, donde el primer piso ofrece un gran lobby que conecta tanto con la Carrera 9ª como con las cons-
trucciones adyacentes. El segundo nivel alberga el basamento y la plazoleta, mientras que el cubo de 10 pisos que lo acompaña alberga áreas críticas como las UCI para adultos, niños y neonatos, así como servicios de cardiología, ginecología y psiquiatría.
El séptimo piso ofrece un auditorio y un lounge médico, mientras que el noveno cuenta con un solario. Este espacio recupera el concepto de “hospital jardín”, permitiendo a los pacientes tener contacto directo con la naturaleza. El solario está diseñado para que los pacientes en recuperación puedan disfrutar de un ambiente relajante, bien sea dentro de cabinas protegidas o en el patio al aire libre. Esta conexión con la naturaleza no solo mejora el bienestar de los pacientes, sino
que también reduce los niveles de estrés y les proporciona un sentido de libertad.
Los primeros seis meses del funcionamiento del nuevo edificio han mostrado resultados notables: según las estadísticas del hospital, se ha reducido significativamente el tiempo de recuperación de los pacientes, así como los índices de infecciones y complicaciones médicas.
Los Principios Filosóficos de la Fundación en el Proyecto
Orientación al pacien-
te: El diseño pone énfasis en las necesidades del paciente y su círculo cercano, buscando minimizar los factores ambientales generadores de estrés y garantizando la privacidad y dignidad en todo momento. Los espacios están pensados para ofrecer confort, creando ambientes positivos y acogedores bajo un enfoque de hospitalidad.
Seguridad: El espacio asegura la máxima seguridad tanto para los pacientes como para
el personal médico.
Bienestar: Se promueve el bienestar integral, con espacios que favorecen tanto la salud física como emocional de los pacientes.
Innovación: La incorporación de tecnología y métodos de tratamiento modernos, permitiendo adaptaciones rápidas a nuevas necesidades.
Respeto por el medio ambiente: El diseño está orientado a la sos-
tenibilidad, integrando prácticas que respetan el entorno natural.
Flexibilidad: El edificio está diseñado para adaptarse a futuros cambios en los servicios y necesidades del hospital.
Integridad urbana: El proyecto refuerza su conexión con el entorno urbano, creando un espacio que no solo se adapta al contexto, sino que también lo enriquece.
Nombre de la Obra:
Fundación Santa Fe de Bogotá
Ubicación: Bogotá, Colombia
Equipo de arquitectura: El Equipo de Mazzanti.
Fotografía: Alejandro Arango, Andrés Valbuena.
Superficie: 32.000 m²
Área Construida: 480 m2
Equipo de diseño: Giancarlo Mazzanti, Sebastián Negret, Fredy Fortich, Alberto Aranda, Felipe Pombo, Rocío Lamprea, César Grisales, Juan Sebastián Muñoz, Lorenza Baroncelli.
Año: 2016
Fuente: www.archdaily.cl
Prof. Dr. Ing. Roberto A. Rojas Holden
Durabilidad del hormigón: Se define como la capacidad de mantener en servicio y con seguridad, una estructura o un elemento de hormigón durante el período determinado como vida útil. La buena durabilidad del hormigón depende de su fabricación con materiales no expansivos y de su capacidad de resistir agresiones del medio externo (físicos o químicos). La presencia de mecanismos de transporte de elementos externos por los poros y fisuras del hormigón, dan existencia a dos factores primordiales: la disponibilidad de agua en el interior de la masa del hormigón y la disponibilidad de oxígeno en el aire. Las agresiones físicas más importantes son: la erosión por abrasión, erosión por cavitación (tratados anteriormente) y fracturas por congelamiento del agua.
Los mecanismos más importantes y frecuentes del envejecimiento y El deterioro de las estructuras de hormigón se describe en ABNT NBR. 6118: 2007 y ABNT NBR 12655: 2006 y se enumeran a continuación:
Mecanismos de deterioro predominantes relacionados con el hormigón:
• Lixiviación (aguas puras y ácidas); • expansión (sulfatos, magnesio);
• Expansión (reacción álcali-agregado); • reacciones deletéreas (eflorescencias superficiales).
Mecanismos predominantes de deterioro relacionados con el refuerzo:
• Corrosión por carbonatación;
• Corrosión por alto contenido de Cl- (cloruro).
Mecanismos de deterioro de la propia estructura:
• Acciones mecánicas, movimientos térmicos, impactos, acciones cíclicas (fatiga), deformación lenta (fluencia), relajación y otros considerados en cualquier norma o código regional, nacional o internacional, pero que no forman parte de un análisis tradicional de vida y durabilidad.
Causas externas que inciden para destruir el hormigón:
Las fracturas por congelamiento del agua, son debido a un aumento aproximado del 9% del volumen al transformarse el agua en hielo si la porosidad del hormigón no es capaz de acomodar ese aumento de volumen. Las reacciones químicas más importantes son: solubilización de elementos de hormigón por aguas ácidas, acción de aguas sulfatadas, reactividad de los agregados con los álcalis del cemento. Ade-
más la acción del gas carbónico y de los iones de cloruros agreden las armaduras del hormigón armado.
La acción de aguas ácidas forma sales solubles en aguas, que permiten la renovación del ataque hasta la destrucción total del hormigón. Si las sales formadas en el primer ataque fueran insolubles, la misma acción agresiva se interrumpe, por la impermeabilización propiciada por las sales que ya se formaron. Cuando está atacada la estructura de hormigón por agua ácidas paradas, la solubilización de los compuestos de calcio presentes en el cemento solamente puede ocurrir si hubiera una exagerada porosidad resultante de una ejecución defectuosa. Los agentes agresivos no actúan normalmente cuando están enterrados o sumergidos, si cuando están expuestos al aire atmosférico, expuestos a lluvias que lavan la superficie de las estructuras, constituyendo mecanismos eficientes de destrucción del hormigón, especialmente de hormigón visto.
El ataque por sulfatos actúa solo sobre el C3A. Las moléculas de H2O de cristalización del sulfoaluminato de calcio producen un efecto expansivo enorme, que destruye la estructura interna del hormigón; lo mismo el sulfato de magnesio. Para defenderse contra esta agresión en el cemente se disminuye el contenido de C3A, por la adición de óxido férrico produciéndose C4AF que es mucho más resistente al ataque químico. El C3A no debe eliminarse totalmente, ya que tiene un efecto amortiguador sobre el ataque de iones de cloruros a las armaduras embutidas en el hormigón. En obras marinas se observa ambos ataques, el ataque por sulfato y el de los cloruros a la armadura. Se realiza con 350 g de sulfato de sodio anhidro hasta completar un litro de agua, se mezcla y se deja reposar por 48 horas,
luego se sumerge allí por 17±1 horas la cantidad de agregados de determinada granulometría normalizada a ser analizada en una bolsa de tela, se extrae luego del líquido se lo deja secar por 15 minutos y se mete al horno a 105°C hasta peso constante, luego se introduce de nuevo en la solución repitiéndose así el ciclo 5 veces. Se pesa el contenido de las bolsas luego de tamizado en el tamiz respectivo a su tamaño. La diferencia de peso entre el inicial y el final de los retenidos, dividido por el peso inicial y todo por 100, tenemos en porcentaje la pérdida por ataque por sulfato, que según la ASTM debe ser menor al 10%, 12% según la IRAM. Ataque por sulfatos en estructuras expuestas a aguas residuales, industriales o suelos sulfatados, aguas de mar o lluvias ácidas por polución urbana, fundaciones. Producen fisuras aleatorias en la superficie, exfoliación superficial, disminución de la dureza y resistencia superficial, reducción del ph, corrosión de la armadura, pérdida de cohesión de la pasta de cemento, pérdida de adherencia entre pasta y agregados, pérdida de resistencia a compresión.
Alternativas para corrección: remover el hormigón con sulfatos mayores a 5%, reparación superficial localizada o generalizada, o profunda según el caso, protección superficial del hormigón. Prevención con cementos de bajo calor de hidratación, poco consumo de cemento, bajas relaciones a/c, utilizar cemento puzolánico.
El ataque biológico más frecuente se presenta en las redes de desagües cloacales. En condiciones anaeróbicas (sin oxígeno) aparece el sulfuro de hidrógeno, que solo no es muy agresivo para el hormigón, pero puede llegar a oxidarse por la acción bacteriológica hasta formar ácido sulfúrico, esto produce el ataque por ácidos al hormigón ubicado por encima del nivel de agua. Las fisuras que llegan hasta la superficie del hormigón son excelentes vías de ingreso de agentes agresivos para el
acero, convirtiendo zonas de la armadura próximas a las fisuras en ánodos, favoreciendo así la aparición de los procesos de corrosión.
El origen de las fisuras puede provenir de distintas fuentes: acciones externas no previstas y retracciones de fragüe. La normativa internacional prescribe que en ambientes no agresivos, el ancho máximo de fisuras puede estar entre 0,3 y 0,4 mm, mientras que, si el ambiente es agresivo, no es recomendable anchos mayores de 0,1 mm. Desintegración por acción biológica: como ataque por hongos, bacterias debido a presencia próxima de ácidos orgánicos, gas sulfhídrico (H2S), ácido sulfúrico, actuando disolviendo la portlandita y silicatos hidratados. Desagregación del hormigón, pérdida de masa y resistencia, corrosión de la armadura. Terapéutica: se remueve el hormigón desagregado y contaminado, se descontamina de los microorganismos, reparación superficial generalizada y protección superficial del hormigón. Bajo ciertas condiciones ambientales puede haber un contacto de soluciones de algún tipo de sal con un hormigón permeable, que con pérdida de humedad por evaporación puede causar tensiones por cristalización de sales en los poros. El acero en estructuras de hormigón es protegido del ambiente atmosférico debido a la alcalinidad de la solución del poro (pH>12.5). Pero el acero puede corroerse si la protección se pierde, debido al ingreso de iones agresivos de cloruros de mar o a la carbonatación.
RAS. Reacción álcali-arido: Los deterioros que puede llevar a las estructuras de hormigón a su destrucción tienen su origen en la reacción química que ocurre entre los óxidos alcalinos y algunos tipos de minera-
les presentes en los agregados. Esta reacción origina la formación de un gel que en contacto con el agua produce una expansión importante con la consecuente fisuración, pérdida de resistencia y durabilidad de la estructura. Daños ocurridos en obras por la reacción álcali-agregado pueden citarse por ejemplo en la Represa de Moxotó, Brasil, donde la reacción expansiva provocó cambio en la geometría original de la estructura de la casa de máquinas. En la Represa de Furnas, Brasil, fueron observados fisuras en forma de mapas en el vertedero, en cuyos ensayos en probetas testigos confirmaron la reacción tipo álcali-sílice (Hormigones, 1997). Ocasionan fragmentación del hormigón. Se puede reducir la reacción inhibiendo así la expansión del hormigón usando adiciones como la puzolana, cenizas volantes (fly ash), cenizas de cáscara de arroz y escoria granulada de altos hornos. El mapeo de fisuras debido al RAS siguen diferentes formas, no uniformes. Métodos normalizados para el estudio de la potencia-
“El ataque biológico más frecuente se presenta en las redes de desagües cloacales.”
lidad de los agregados frente a la RAS: Otros ensayos como Examen petrográfico (ASTM c-295) del agregado, pasta e interfase pasta - agregado: Se observan los microfisuramientos, la interfase pasta- agregado, el estado de la pasta. Se hace DRX. Si la interfase agregado – pasta es neta, no presenta reactividad. Si es que reaccionó se ven los bordes de reacción, o bordes de disolución por un cambio de color notorio y presenta
un contacto no neto entre pasta y agregado. Se observa si se carbonató (lo cual no implica RAS), pero al carbonatarse, puede fisurarse, presentar alta permeabilidad, va entrando el carbonato de calcio, con el hidróxido de calcio(portlandita) y estringita y reaciona al RAS. Petrografía del hormigón con RAS. Se realiza el muestreo en obra. Diagnóstico: Macroscopía, Estereomicroscopio, microscopía de polarización sobre secciones delgadas. Estudio sobre imágenes digitalizadas. Programas específicos para captura, medición de tamaño de partícula, porosidad, estado general del mortero, fracturas. Relación clasto – pasta. Coronas de reacción especies de neoformación. Técnicas analíticas específicas (DRX difractometría de rayos X, Microscopía electrónica de barrido (SEM)- Análisis químicos, análisis térmicos, EDAX (hace una composición química cualitativa no cuantitativa). Observación macroscópica del hormigón: Estado general del hormigón, grado de deterioro, fisuras, presencia de exudados (pueden ser blanquecinos, color negro, color caramelo, y presenta un contacto no neto entre agregado y pasta endurecida), cambios de volumen, estrangulamiento de juntas, desprendimiento de determinados sectores y la relación con su emplazamiento, datos de diseño, específicaciones y condiciones de ejecución de la obra, materiales empleados, etc.
Determinación visual de características del mortero, interfase, pasta-agregado, estado de conservación de la pasta, desarrollo de productos de neoformaciones. Se deben registrar la longitud de la muestra testigo, el lugar de donde se extrajo(parte inferior, superior, costado,etc), edad, se deben tener secciones delgadas de cada testigo. Se ha visto que las sales de litio son inhibidores de la RAS. Ceolita: es un gel blancuzco, o de color diferente al resto (al raspar el gel con navaja es duro, si cristaliza es Anisótropo; isótropo)
Los agregados reactivos son generalmente vidrios. (El agua cloacal presenta un ph muy bajo es ácido, la reactividad se produce para un ph 13 por lo menos. Se usa ácido para separar el agregado de la pasta y para estudiarlo separadamente del hormigón. Se ha estudiado con cemento blanco CP40 y CP50 (estructurales) tiene
alcalis 0,53% Na2O equivalente. Con la difractometría de Rayos X, muestra algo cristalizado con gel o bien solo cristalizado. Con el SEM. obtenemos la morfología de la superficie de los materiales. EDAX. Composición química cualitativa.
Se muestra S, O, Al y Ca. Estringita: se presenta en formas de cristales fibrosos asociados frecuentemente a cristales hexagonales de portlandita (Ca(OH)2). Ceolita: desde muy pobremente cristalizada, o en forma masiva de gel hasta con hábito cristalino. Presenta composición química variable debido a la capacidad de intercambio aniónico que posee. Son aluminatos silicatados hidratados de Ca, K y/o Na. Reacción álcali árido, ya desarrollado en el capítulo de durabilidad. Se producen expansiones generando tensiones internas y microfisuras internas y fisuras superficiales en forma de red. Aumento de volumen de elementos del hormigón, pérdida de resistencia por desagregación.
Medidas: control de penetración del agua al interior del hormigón, uso de sales de litio, confinar la reacción, evitar contacto con fuentes externas de humedad, uso de cementos con álcalis menor a 0,6%, uso de escoria de algo horno en un 50% o 25% de cenizas volantes. Evaluar la reactividad potencial de agregados con el cemento.
Acción del agua pura: aumento de la porosidad, disminución de la resistencia, disminución de alcalinidad del hormigón y corrosión de armadura, exposición de agregados en la superficie del hormigón. Medidas a tomar: escarificación mecánica del hormigón desagregado, reparación superficial localizada o generalizada se-
gún el caso, reparación profunda, protección superficial del hormigón.
Ataque por ácidos: aumento de la porosidad del hormigón, disminución de resistencia, desagregación de agregados, disminución del ph y corrosión de la armadura.
Medidas: escarificación mecánica para remover el hormigón desagregado, reparación superficial o profunda, localizada o generalizada según el caso, protección superficial del hormigón.
Ataque por solución alcalina: lixiviación de la pasta, fisuración superficial, pérdida de adherencia entre pasta y agregado, exposición de agregados, corrosión de armadura.
Medidas: escarificación mecánica para remover hormigón desagregado, reparación superficial, profunda, localizada o generalizada según el caso, protección superficial del hormigón.
Ataque por cloruros: se produce un aumento en la humedad interna y conductividad eléctrica ante corrosión en armaduras, aumenta la disolución del acero, formación de productos de corrosión, tensiones internas, fisuración del hormigón, desplazamiento del recubrimiento. Alternativas de intervención: reparación superficial o profunda, localizada o generalizada según el caso, refuerzo, extracción electroquímica de cloruros, protección catódica de materiales y sistemas, protección superficial del hormigón.
Eflorescencia: formación de manchas blancas por carbonatación en la superficie del hormigón, formación de estalactitas en zonas de mayor porosidad, disminución del ph del hormigón, corrosión de la armadura. Medidas: no intervenir en caso de cicatrización autógena de la fisura, eliminar la fuente de agua que penetra en el hormigón, impermeabilizar la superficie en contacto con la fuente de agua, limpieza superficial del hormigón, reparación profunda localizada.
Impacto: por cargas externas, reparación superficial localizada, o profunda localizada, refuerzo estructural. Abrasión, erosión, y/o cavitación: desagregación del agregado y de la pasta, formación de fallas que pueden llegar a ser grandes, exposición de armaduras. Terapéutica recomendada: remoción del hormigón desagregado, reparación localizada o generalizada para reconstruir la sección perdida, endurecimiento superficial. Uso de hormigones de baja relación a/c (menor a 0,3).
Protección superficial lisa.
Cargas externas: compresión, flexión, cortante, torsor, adherencia y anclaje: fisuración, transporte de agentes agresivos, carbonatación, corrosión de armaduras, colapso de estructura.
Terapéutica: se elimina la sobrecarga, refuerzo con hormigón convencional o proyectado y aumento de sección, refuerzo con chapa, fibras de carbono, armaduras, según las zonas afectadas y el esfuerzo a soportar, eventualmente demoler y reconstruir. Ante momento torsor reforzar los cantos con armadura a 45°. Eventualmente demoler y reconstruir.
Fallas constructivas: agregados gruesos sin cohesión y expuestos, armaduras expuestas, hormigón poroso, disminución de la resistencia del hormigón, carbonatación, corrosión de armaduras por hormigón mal dosificado, dimensión máxima no compatible con el espaciado de armaduras, hormigón vertido de alturas mayores a 2,50 m, compactación inadecuada, excesiva o deficiente.
Terapéutica: reparación superficial localizada con mortero polimérico o de base epoxi u otro tipo, reparación profunda localizada con mortero u hormigón a base de cemento, aplicando un revestimiento de protección.
Errores de proyecto por mal detallamiento o colocación de armadura: se pierde el monolitismo de la sección por falta de continuidad de la masa de hormigón y adherencia. Se forman juntas frias que pueden
dar lugar a penetración fácil de agentes corrosivos del acero.
Medidas: Corregir el poco recubrimiento, la fisuración se produce paralela a las armaduras, pérdida de cobertura, carbonatación, corrosión, eliminar el hormigón segregado, limpiar bien las superficies, reparación localizada con mortero polimérico o de base epoxi o de otro tipo, reparación profunda con mortero de cemento u hormigón, revestimiento de protección.
Errores en colocación de estribos: aparecen fisuras de los estribos con poco recubrimiento, ocurre falla por cortante en ausencia de estribo, produciendo fisuras muy finas que pueden ser peligrosas. Medidas colocar los estribos de longitud suficiente, anclaje suficiente, calcular bien la sobrecarga prevista, resistencia adecuada del hormigón, buena adherencia del refuerzo al hormigón. La armadura debe estar protegida para no corroerse, analizar adecuadamente el elemento estructural y el medio ambiente en que este se encuentra para si fuera conveniente reforzar la viga, aumentando su rigidez o eventualmente demoler y reconstruir.
Dosificación inadecuada del hormigón: retracción plástica, por excesiva vibración, alta relación a/c, hormigonado defectuoso, posibilitando corrosión de la armadura.
Alternativa de corrección: inyección de resina epoxi, calafateado de fisuras con sellantes elastoméricos base de uretano o polisulfatos.
Yuki Hayashi es una artista de origen japonés, nacida en 1971 en la colonia Pirapó, departamento de Itapúa. Tras culminar sus estudios en el Instituto Superior de Bellas Artes, impulsada por un profundo deseo de conocer y experimentar la vida en el país de sus ancestros, solicitó una beca de estudios en Japón, la cual obtuvo después de tres años de perseverancia en 2007.
Yuki completó una maestría en Bellas Artes en la Universidad de Tsukuba, especializándose en
la técnica de la pintura japonesa. Su formación en Japón no solo enriqueció su conocimiento técnico y su visión artística, sino que también fortaleció su conexión con sus raíces culturales.
En 2002, regresó a Asunción y, en julio de ese mismo año, inició un taller de pintura en el Centro de Intercambio Paraguay Hokkaido. Durante 22 años, este taller ha florecido, convirtiéndose en un espacio donde los participantes no solo mejoran sus habilidades artísticas, sino que también enriquecen su vida diaria a través
del arte.
Desde 2003,Yuki Hayashi ha desempeñado el cargo de catedrática en el Instituto Superior de Bellas Artes, donde es responsable del taller de dibujo y pintura. Según Hayashi, encuentra un especial encanto al relacionarse con los jóvenes, la nueva generación de futuros artistas.
Desde 2007 hasta la actualidad, realiza anualmente una exposición de pinturas en Fabrica Galeria/Club de Arte, bajo la curaduría del Arq. Osvaldo Salerno.
Mi pasión y fuente de inspiración son las plantas cotidianas de nuestros entornos. Uno de los motivos que más me llama la atención son los yuyos del tereré. Las canastas que llevaban las yuyeras por las calles formaban parte del paisaje asunceno. Quiero recuperar la memoria de esas cosas que antes existían y me gustaban, pero que hoy ya no vemos. Por otro lado, esas canastas con diferentes tipos de yuyos me parecen bellas y estéticamente me atraen, además de representar un desafío técnico que elijo como mi tema.
Las técnicas son medios para construir la obra. Primero tengo un motivo y luego pienso en cuál técnica utilizar. Cada técnica tiene su propio encanto, exigencia y limitaciones. Por ejemplo, la aguada de tinta y las acuarelas ofrecen una versatilidad y libertad que me gusta, mientras que el grafito es accesible y puede ser trabajado sobre diversos soportes. Para mí, la técnica es un medio que me permite trabajar con el motivo seleccionado hasta convertirlo en una obra.
Mi proceso de trabajo comienza con una imagen, tal vez de lo que encuentro con las yuyeras del mercado 4, en la vereda de las calles, plantas de mi jardín, una foto que tomé o una foto de las redes sociales (con permiso para usarla). En el primer encuentro con el motivo, empiezo con el dibujo, pienso en la composición, en el formato y en cómo introducir mi motivo, así como en la relación con el fondo. Muchas veces, mi fondo es blanco. La idea es que no sea un simple vacío, sino un blanco activo y significativo que ocupe importancia en la obra.
Al inicio, me pongo a trabajar sin pensar en demasiadas cosas: llenar con los colores, buscar las texturas, los filos, la pulcritud y la limpieza, atendiendo las necesidades que siento para que la obra sea satisfactoria. En algún momento, siento que ¡ya está! Que ya hice todo lo que sentí que debía hacer, y entonces viene la firma. Me gusta pensar en la firma: ¿dónde firmar? ¿Cómo? ¿De qué tamaño? ¿Qué color? Y así concluyo la obra.
Me gustan las exposiciones porque son la presentación de mis trabajos,
mi propuesta de obras, un conjunto del trabajo del año. Para mí, una exposición es un momento de debut. Pienso que una obra se concreta en una exposición. Me pone contenta cuando siento que comparto con alguien ese gusto que yo seleccioné y que le guste a otras personas. Ser aceptada por medio de mis obras no siempre sucede, pero cuando ocurre es maravilloso.
¿Por qué las plantas y no otra cosa como motivo de mi trabajo?
Tal vez no todas las cosas sean claras y explicables. Pero, por ejemplo, una vez
el galerista Osvaldo Salerno me dijo que no pintara más macetas ni piedras en mis obras. Le pregunté por qué, y me dijo que no sentía el mismo entusiasmo o el peso de mi interés como en las raíces, tallos o espinas.
Me comentó que era evidente que algunas cosas me gustan y otras no. Fue en ese momento cuando dejé de hacer algunas cosas y me enfoqué solo en lo que me interesaba. Cuando hay algún objeto que no me entusiasma, dejo el espacio en blanco.
Son decisiones que he tomado con el tiempo. Tenemos motivos que nos gustan más y otros menos. En mi caso, las plantas son mi fuerte, me salen bien, me encantan y son abundantes en nuestros entornos. Todas las condiciones están dadas para que yo siga trabajando con las plantas, y es mi proyecto continuar.
Espero que mi obra sirva para sentir esa frescura en nuestro día a día dentro de un ambiente. Me gusta la idea de que pueda crear ese espacio con mis obras.
Constructecnia, la feria del rubro de la construcción más importante del país, celebrará su 25 aniversario en una edición muy especial y llena de novedades, que se llevará a cabo del 21 al 25 de mayo próximo en la sede del Comité Olímpico Paraguayo (COP). Empresas de, Europa, Asia y Latinoamérica confirmaron su presencia, afirmando que la megaferia resalta en la agenda internacional.
Constructecnia es definida como una vidriera internacional tanto para los expositores como para representantes de instituciones
que brindan su apoyo a la feria de la construcción. “Constructecnia nos sirve como un portal hacia el segmento de la construcción, y es para nosotros una muy buena vidriera para mostrar nuestro trabajo a nivel internacional”, coinciden los expositores.
En ese contexto, expositores que llevan participando de Constructecnia desde sus inicios, y quienes acompañan más de 20 años, coinciden en que la megaferia de la construcción es parte de su agenda anual, mientras que expositores extranjeros afirman que Constructecnia también se consolida
como un evento marcado en su agenda al que no pueden faltar.
Asimismo Constructecnia contribuye al aumento de la inversión extranjera, brinda apoyo a la producción nacional y sirve como escenario para que artesanos y artistas también puedan demostrar su trabajo y talento en los días de exposición. La juventud, los niños y toda la familia en general, también disfrutan de los días de exposición, gracias a los espacios que las empresas y marcas les brindan en sus stands.
Constructecnia es una tradición anual, el evento ligado al sector de la construcción más importante. Da gusto ir a ver cómo la feria es cada vez mejor, hay cosas más interesantes, equipamientos novedosos, productos que se importan o se construyen acá y por sobre todo un lindo ambiente para encontrarnos entre amigos. Le invitamos a todos a ser parte de esta edición 25 aniversario”
Ing. Paul Sarubbi Presidente de la Cavialpa
“Es una tradición anual” “Una fiesta de la construcción”
Constructecnia, como estamos acostumbrados, va a ser una fiesta de la construcción. Arquitectos, ingenieros, urbanistas, empresas que nos acompañan en el día a día van a estar presentes en Constructecnia. Este año vamos a tener muchas sorpresas y varias innovaciones para presentar. Les esperamos a todos del 21 al 25 de mayo en la megaferia de la construcción
Arq.
María Luz Cubilla Vicepresidenta FPAA
“Vidriera para Paraguay”
Constructecnia va creciendo en progresión geométrica. Estoy seguro de que vamos a superar ampliamente las ediciones anteriores y vamos a tener una participación récord de empresas expositoras y de visitantes, por ello estamos muy expectantes a que llegue la fecha de inicio del evento
Ing. Amilcar Troche Presidente del Centro Paraguayo de Ingenieros (CPI)
“Impulsa nuestra imagen país”
Constructecnia es un evento que esperamos todos los años. Ya esta´instalado en el sector de la construcción, y no solo en la parte de infraestructura vial. Tal vez seamos un porcentaje ínfimo de lo que es Constructecnia, pero consideramos que es una vidriera muy importante para todos los constructores, proveedores de equipos, de materiales, etc. Constructecnia para nosotros hoy en día es uno de los eventos más importantes del sector y que realmente impulsa nuestra imagen como país
Ing. Hugo Florentín Presidente de la Asociación Paraguaya de Carreteras (APC)
“Importante para el crecimiento del país”
Para el COP, Constructecnia es parte de su día a día, al ser sede. Es para nosotros una manera de demostrar que el COP está apoyando todas las actividades necesarias e importantes para el crecimiento de nuestro país. Sin lugar a duda, la Constructecnia y la construcción es uno de los ítems más importantes para el crecimiento de nuestro país
Camilo Pérez López Moreira Presidente del Comité Olímpico Paraguayo (COP)
Constructecnia se caracteriza además por ofrecer un abanico de actividades simultáneas que enriquecen las jornadas de expositores y visitantes.
Conferencias magistrales: en la que líderes compartirán sus experiencias, conocimientos, tendencias, innovaciones, proyectos y resultados exitosos con los presentes.
Feria de empleos: especializada en el área de la construcción, es otro de los eventos esperados por la ciudadanía, mediante la cual, podrán tener la oportunidad de acceder a un trabajo fijo.
Lanzamientos: en los que las empresas y expositores se lucen presentando lo más novedoso del mercado.
Expovivienda en la que empresas inmobiliarias acercarán al público sus más recientes construcciones, todas pensadas principal-
mente en el sueño de la primera vivienda, con montos accesibles y facilidades de pago.
Así también, se prevé la Galería de Arte-Exposición de artistas y artesanos, con la participación de artistas visuales, escultores y artesanos de diferentes puntos del país que presentarán sus obras.
Entre las actividades más destacadas se encuentra la Rueda de Negocios, un espacio donde expositores presentan sus productos y servicios a empresas constructoras interesadas en formar
nuevas alianzas. En su última edición, esta actividad reunió a 13 constructoras y 51 empresas oferentes, logrando concretar 490 reuniones en apenas cuatro horas. Este intercambio no solo impulsa el crecimiento del sector, sino que también fomenta la innovación y la creación de sinergias.
Informes:
+595 981 183 062
www.constructecnia.com.py
Paraguay será sede del XXIII Congreso Ibero Latinoamericano del Asfalto (CILA) y Expo Vial del XXIIICILA, y en el marco de las primeras actividades entorno al importante evento, el pasado jueves 29 de enero, se llevó a cabo la firma oficial del convenio con el Grupo Paraguay Eventos y Emprendimientos (GPEE) y Cedial, empresas encargadas del gerenciamiento del encuentro internacional que reunirá a unos 300 profesionales de 20 países, y que tendrá lugar del 17 al 21 de noviembre del corriente en el Centro de Convenciones de la Conmebol.
En el acto de firma de convenio estuvieron presentes, el presidente del Congreso XXIII CILA-Paraguay
2025, Ing. Paul Sarubbi Balansa el presidente del Comité Organizador XXIII CILA 2025, Ing. Hugo Florentín, presidente de la Asociación Paraguaya de Carreteras; el Lic. Julio Mendoza, Presidente de la Cámara Paraguaya de Consultores; el Ing. Amilcar Troche, presidente del Centro Paraguayo de Ingenieros (CPI); la Lic. Andrea Peris Yegros, Coordinadora comunicacional Congreso CILA y APC; el Lic. Edgar Robinson, director del Grupo Paraguay Eventos y Emprendimientos (GPEE), Ing. Carlos Beltramino (TOCSA); la Arq, Ana Luci Porro (Cedial); Ing. Hernán Ramírez (Cedial) y el Ing. Julio Rios, del Ministerio de Obras Públicas y Comunicaciones (MOPC).
Las autoridades recordaron que este Congreso se concretará en nuestro país nuevamente luego de 28 años y destacaron que, como en aquel entonces, Paraguay volverá a marcar hitos. Algunos de los temas destacados del Congreso son: Materiales Asfálticos, Agregados, Proyecto Estructural de Pavimentos, Conservación de Pavimentos Flexibles, Técnicas de Pavimentación Ecológicas, Gerenciamiento
El CILA se llevará a cabo en nuestro país nuevamente luego de 28 años
de Pavimentos y Formación de Recursos Humanos.
Durante el Congreso, también se realizará la convocatoria para la sexta edición del Premio “Fundadores Dr. Jorge O. Agnusdei e Ing. Hélio Farah”, reconociendo las contribuciones significativas en el campo, según señalaron desde la organización.
Desde la organización y con el apoyo de gremios e instituciones del sector, profesionales afirmaron que ofrecerán una destacada agenda para el congreso, y que la misma ratificará que el país está a la altura de organizar exitosamente importantes eventos, redoblando esfuerzos para seguir destacándose como en la edición anterior de 1997, cumpliendo con las expectativas de todos los asistentes.
Para el ingeniero Hugo Florentín, presidente de la Asociación Paraguaya de Carreteras (APC), el Congreso Ibero Latinoamericano del Asfalto (CILA) significa un salto protagónico para el país, en cuanto a organización de eventos de gran magnitud. El mismo puntualizó que “este congreso es algo que va a marcar un hito en el desarrollo de eventos en Paraguay, por ser el más grande -a nivel de carreterasque tenemos en la región”.
“La incidencia que va a tener en nuestro país va a ser altísima. Esto va a movilizar muchísimo el turismo, los hoteles y todas las demás áreas. El CILA tiene varios aspectos importantes”, resaltó.
Según el ingeniero Florentín, muchos especialistas quieren venir a Paraguay para colaborar con conocimientos y los últimos avances tecnológicos. “Los mejores especialistas del mundo van a exponer las innovaciones y tecnologías avanzadas, para que aquí lo tratemos de particularizar y aplicar. Es uno de los beneficios más importantes de este congreso. Notamos que la gente quiere venir a Paraguay, los especialistas quieren venir a colaborar con Paraguay y eso se debe a la imagen país que tenemos, eso por las inversiones en infraestructura vial, que son muy importantes”,apuntó. El ingeniero destacó que llama la atención de nuestro país, obras como los puentes atirantados y la ruta bioceánica.
Un sueño largamente acariciado por fin se materializa para ubicar una vez más a Paraguay en el mapa de países sedes para eventos de jerarquía. Sin dudas, el XXIII Congreso Ibero Latinoamericano del Asfalto (CILA) y Expo Vial del XXIIICILA es un ambicioso proyecto que involucra a todo el sector de vialidad y tránsito nacional, cuya planificación reforzó los lazos de comunicación y apoyo. “Aquí estamos unidos todos los gremios que tenemos que ver con las rutas, los puentes, aeropuertos, ferrocarriles, así como todas las empresas consultoras y contratistas, CAVIALPA, CAPA-
CO, Ministerio de Obras Públicas, el Centro Paraguayo de Ingenieros, por citar algunos. Fue una ardua gestión de toda la organización”, destacó el ingeniero Paul Sarubbi Balansa, presidente del Comité Organizador XXIII CILA 2025. Durante la anterior convención realizada hace dos años en Granada (España), se eligió a Paraguay como próxima sede para la edición 2025.
Según el profesional, estiman la vi sita de 300 profesionales extranje ros, entre técnicos e ingenieros que vendrán al evento, y a nivel local,
se espera la participación de 1500 personas, ya que también han invitado a estudiantes de los últimos años de la carrera de ingeniería.
“Hemos realizado cuatro congresos de vialidad y tránsito -cada dos años- aquí en Paraguay, teniendo la confianza de mis colegas que me eligieron como presidente de los comités organizativos y donde hemos tenido mucho éxito. Esto nos habilita a potenciarnos con este congreso, a un nivel más importante que todo lo realizado anteriormente”, resaltó el mismo.
El respaldo de entidades públicas y autoridades ha sido crucial en todo el proceso. “Tenemos el respaldo de la ministra de Obras Públicas, que nos acompaña en toda la organización. Así también, nos acompaña la ministra de Turismo y el presidente de la República, quien ya realizó una invitación formal a los diferentes congresos a realizarse en el Paraguay”.
Estiman la visita de 300 profesionales extranjeros
Sarubbi explicó que cuentan con un Comité Técnico que gestiona la recepción de materiales que cada disertante quiere exponer, y un Comité Evaluador Internacional que selecciona dichos trabajos, con el acompañamiento de técnicos paraguayos.
Para el ingeniero Amilcar Troche, presidente del Centro Paraguayo de Ingenieros (CPI), el Congreso Ibero Latinoamericano del Asfalto (CILA) se ha convertido en una institución que marca tendencias en el actual mercado vial.
El XXIII Congreso Ibero Latinoamericano del Asfalto (CILA) y Expo Vial del XXIIICILA es ya una realidad, teniendo a Paraguay como sede de la edición 2025, por segunda vez en 28 años. “Es un altísimo honor que se realice en nuestro país, y un compromiso para nosotros, los organizadores, de preparar un excelente congreso técnico, participativo y donde los visitantes puedan sentir nuestro cariño, amabilidad y puedan conocer un Paraguay que está en constante proceso de desarrollo”, sostuvo el ingeniero Troche.
Según el profesional, el evento se ha convertido en el congreso más importante sobre asfalto, a nivel mundial, marcando así, un hito para el sector.
“Los Congresos Iberoamericanos
del Asfalto son ya una tradición en América y en los países de Europa, España y Portugal. Aunque, cabe agregar, que en las últimas ediciones se han sumado expositores de Inglaterra, Francia e Italia”, remarcó el mismo.
Entre los objetivos del CILA se encuentran la promoción del intercambio tecnológico y el fortalecimiento de redes profesionales.
El presidente del CPI subrayó el gran compromiso sociocultural que tienen hoy, como organizadores. “Es importante que vengan a aprender y a transmitir lo mucho que saben; y así también, que nuestra gente participe activamente, a fin de salir gananciosos en conocimientos y experiencias profesionales y de vida”.
El XXIICILA se llevó a cabo el año pasado, del 21 al 26 de mayo en Granada, España. En la ocasión, ademas de reafirmarse a Paraguay como la sede del XXIIICILA, también se anunció como la Coordinadora Comunicacional de todos los CILAs, a la Lic. Andrea Peris, nuestra compatriota, quien se destaca como coordinadora comunicacional de la Asociación Paraguaya de Carreteras (APC).
“Representar a Paraguay en este foro internacional fue un privilegio enorme. Desde la ponencia que ofrecí sobre el impacto de las comunicaciones en la ingeniería de pavimentos, hasta mi participación en el inspirador taller “Mujeres Pavimentando el Futuro”, cada instante fue una valiosa oportunidad de aprender muchísimo, intercambiar conocimientos y crecer al lado de profesionales de diversos rincones del mundo”, manifestó Peris.
Asimismo, destacó la importancia de ser anfitriones del XXII CILA: “Invitamos a todos los profesionales de la ingeniería vial, a todos los interesados en la tecnología del asfalto, a las demás profesiones interesadas en la infraestructura nacional e internacional a participar del XXIII Congreso iberoamericano del Asfalto, que se realizará en Paraguay, del 17 al 21 de noviembre de este año. Es una oportunidad de experimentar la hospitalidad paraguaya, de disfrutar de una rica agenda cultural que va a acompañar a las sesiones técnicas de primer nivel que vamos a tener”, sostuvo.
Paraguay vestirá sus mejores galas para ser sede del foro de la Federación Panamericana de Asociaciones de Arquitectos (FPAA) “ Asunción 500 años”, a realizarse del 26 al 28 de marzo próximo en nuestra capital. El evento, cuyo tema central será los 500 Años de Asunción, reunirá a profesionales nacionales e internacionales que debatirán sobre arquitectura, urbanismo y construcción. La arquitecta María Luz Cubilla, vice presidenta de la Federación Panamericana de Asociaciones de Arquitectos - Región Cono Sur, hizo un adelanto acerca de todo lo que prepara este importante foro.
Desde la Federación señalaron que el evento busca el intercambio de opiniones y ser una experiencia enriquecedora en la que, profesionales de toda América puedan compartir conceptos sobre la Arquitectura, el urbanismo, el trabajo
de los profesionales y el Sector de la construcción en la ciudad de Asunción.
“Este año estamos presidiendo la región del Cono Sur. Invitamos a la nueva comisión directiva de la Federación Panamericana de Arquitectos, a que nos visiten en marzo próximo de tal forma a inaugurar un foro de arquitectura y urbanismo que tenemos pensado realizar para un debate interno y externo de lo que es la ciudad de Asunción y con miras a los 500 años de fundación de nuestra querida capital”, manifestó la Arq. María Luz Cubilla.
“Invitamos a los profesionales nacionales e internacionales a intercambiar experiencias y ver una hoja de ruta para los festejos que nos esperan en el año 2037 a conmemorar los 500 años de la ciudad de Asunción”, apuntó.
La Arq. Cubilla adelantó también que en el marco del Foro, una de las invitadas especiales es la Primera Dama, Arq. Leticia Ocampos, a quien, junto a su equipo esperan compartir experiencias y conocimientos, así como los trabajos a realizarse en Asunción.
“Dentro de este contexto del foro, invitamos a la Primera Dama, Arq. Leticia
Ocampos, a incorporar los trabajos que ellos vienen realizando en el centro histórico y en distintas partes de la ciudad de Asunción, de tal formas que nos escuche y vea lo que estamos planteando y a trabajar en conjunto. También invitaremos a la ministra de Obras, Claudia Centurión; la ministra de Turismo Angie Duarte; y a la Ministra de Cultura, Adriana Ortiz”, adelantó la profesional.
En cuanto a los temas a ser desarrollados en el Foro, la Arq. Cubilla mencionó: “Dentro del foro hablaremos de varios temas. Asunción merece nuestro respeto y reconocimiento. Merece continuar con sus tradiciones y también aumentar la tecnología y la innovación que se utiliza en todas las ciudades del mundo. Tocaremos temas como los museos, reuniones y bienales de arquitectura que se dan en el mundo, transporte, obras públicas, urbanismo, entre otros”.
La arquitecta Cubilla hizo extensiva la invitación a profesionales de la arquitectura, urbanismo y la construcción a ser parte de este importante evento. “Queremos las mejores ideas para Asunción”, apuntó.
“Estamos
de conocer más de
Desde Ecuador, la Arq. María Samaniego, Presidenta de la Federación Panamericana de Asociaciones de Arquitectos (FPAA), brindó detalles sobre los preparativos entorno al desarrollo del Foro de la Federación Panamericana de Asociaciones de Arquitectos (FPAA) “Asunción 500 años”, a realizarse del 26 al 28 de marzo próximo en nuestra capital. Sostuvo que están expectantes de conocer más de Asunción y de colaborar con ideas en proyectos que consoliden al centro histórico de Asunción como un hito dentro de la ciudad.
“Estamos muy entusiasmados de que en esta ocasión, en el mes de marzo, el Foro se va a desarrollar en Asunción, Paraguay. Hay muchas expectativas de estar en la ciudad, más aún en esta coyuntura actual de que se están iniciando los preparativos para la conmemoración de los 500 años de Asunción y que la Arq. María Luz Cubilla, expresidenta de la Asociación Paraguaya de Arquitectos y actual vicepresidenta de la Región Cono Sur de la Federación Paraguaya de Asociaciones de Arquitectos ha tenido la amabilidad de proponer a Asunción como sede de este nuevo Foro”.
“Todos los países que conforman la Federación Panamericana intentamos y tratamos de estar siempre pendientes de todo lo que sucede en cada una de las ciudades y países en relación a la arquitectura, el desarrollo urbano, a temas patrimoniales y por supuesto que hay mucho interés de acercarse más y a adentrase a la cultura, a la arquitectura y al desarrollo urbano de estas ciudades. La Región del Cono Sur tiene mucha presencia en la Federación Panamericana, siempre ha habido mucho interés de compartir lo que se realiza en la Región y es por eso que hay mucho entusiasmo de acercarnos a Asunción, Paraguay”.
Consolidar al centro histórico de Asunción
“En esta ocasión vamos a tener lazos con la Primera Dama de Paraguay, que es colega nuestra, y con otras autoridades del Ministerio de Vivienda y Urbanismo, de Obras Públicas, que tienen una relación muy concreta con nuestra profesión. Es una ocasión especial en el que vamos a tener contacto directo con estas
Arq.
autoridades y ese es uno de los objetivos de la Federación, de ofrecer siempre nuestro respaldo, conocimiento técnico que podemos ofrecer como arquitectos y arquitectas, para apoyar en la conceptualización, formación de proyectos que en este caso tengan una relación directa con el desarrollo de la ciudad, patrimonio y consolidar al centro histórico de Asunción como un hito dentro de la ciudad”, afirmó.
Por otro lado, la presidenta de la FPAA, destacó las características de nuestra capital. “Asunción es una ciudad que tiene una vista a un puerto, lo que le da unas características muy especiales, y que está en un nodo muy importante regional, junto con los países fronterizo con las represas y condiciones naturales que tienen las ciudades de frontera. Estamos muy expectantes de conocer más de Asunción”.
El Arq. Jorge Bosch, afirmó que ya están en marcha los trabajos con miras a la reconversión y desarrollo del centro histórico de Asunción, destacando la importancia del papel de la ciudadanía en el objetivo de devolverle la vida a la zona. El profesional será panelista del Foro de la Federación Panamericana de Asociaciones de Arquitectos “Asunción 500 Años”, a realizarse en nuestro país del 26 al 28 de marzo próximo.
Las secuelas de la pandemia profundizaron el estado de abandono que sufría el centro histórico de Asunción. Actualmente, el Gobierno Central lle
“El problema del Centro Histórico de Asunción no es el único en el mundo. Son procesos que se desarrollan en todas las ciudades de todo el mundo. Son etapas de cada ciudad, poco a poco los centros históricos se van despoblando pero tienen sus atractivos como centros históricos y por lo general se destinan a centros turísticos. Allí está el atractivo de cada ciudad”, señaló.
“Una Asunción renovada, con mucha vida”
“Desde el Ministerio de Urbanismo, Vivienda y Hábitat (MUVH) es
ayudar a Asunción a revitalizar el centro. Tratando de repoblarlo, generando propuestas para atraer a las personas, crear viviendas accesibles, puestos de trabajo, seguridad, diferentes acciones que se están llevando a cabo con apoyo de otras instituciones públicas del departamento Central”, indicó.
En cuanto a los trabajos que ya están en marcha, sostuvo: “La Ande por ejemplo ya empezó a trabajar en el cablerío, eliminando toda esa maraña de cables para darle una cara más limpia a las calles. También estamos trabajando en ordenanzas para apoyar con incentivos a los propietarios de casonas consideradas como patrimonio históri-
co, para que ellos puedan tener opciones de restaurarlas y recuperarlas para darles otros usos”.
El profesional destacó también la importancia de la seguridad, para lo cual están trabajando con el Ministerio del Interior. En cuanto a iluminación, comentó que se están colocando luminarias led en toda la zona. “Ya comenzaron las obras para una nueva Asunción, una Asunción renovada con mucha vida”, adelantó.
“Es importante que la ciudadanía proteja las obras, que cuide la ciudad y que participe de las actividades que se organizan con el objetivo de devolverle la vida al centro”, señaló.
Del 26 al 28 de marzo se llevará a cabo el Foro de la Federación Panamericana de Asociaciones de Arquitectos “Asunción 500 Años”, de la que participarán profesionales arquitectos de toda América.
Para el Arq. Víctor González Acosta, la reconversión de la ciudad de Asunción va más allá de arreglar fachadas, y afirma que se debe empezar por definir qué es lo que realmente se quiere como sociedad para devolverle la vida a la capital y recuperar su identidad como madre de ciudades. Del 26 al 28 de marzo próximo se llevará acabo en nuestro país el Foro de la Federación Panamericana de Asociaciones de Arquitectos (FPAA) “ Asunción 500 años” y González Acosta será uno de los panelistas.
“Lo más importante para recuperar el centro histórico es consensuar una revisión de qué queremos los ciudadanos, el sector privado, el sector público, la sociedad civil, de ese lugar histórico. Es necesario que todos participemos de todo este proceso, involucrarles a todos los comerciantes, organizaciones de la sociedad civil, a desarrolladores, instituciones del sector público, etc. Esta tiene que ser una tarea conjunta a partir de una visión consensuada de lo que queremos para el centro”, manifestó el Arq. Víctor González Acosta.
“Hay que tener un propósito claro de para qué lo estamos haciendo. Una
vez que tengamos claro el para qué, el cómo vamos a ir haciendo esta generación y las que vengan. Asunción es una ciudad de 500 años que hoy necesita ser revitalizada, puesta en valor y adquirir su lugar, su rol como madre de ciudades”, indicó.
“Es necesario que todos participemos en este proceso”
“Inmediatamente definida esta visión, diseñar un modelo de ordenanza que pueda llevar a la práctica esta visión, que no será a corto plazo, por eso hay que pensar que con una política de Estado, ir desarrollando esto a través de sucesivos gobiernos municipales y locales para poder llevar a delante el proceso. Las condiciones están dadas, pero nosotros como ciudadanos debemos organizarnos para llevar a cabo esto, como lo hicieron en Medellín o Barcelona, que hoy son lugares turísticos a nivel mundial”, señaló.
Asunción, madre de ciudades
fortalecer dicha identidad y el valor del trabajo en conjunto.
“La infraestructura es una tarea inevitable y urgente, eso va a servir para cualquier proyecto y modelo de lo que queremos, pero lo que tenemos que ver con arquitectura, no es solo arreglar unas cuantas fachadas, lo que hay que hacer es darle un sentido, un propósito, contenido, un rol y va mucho más allá de arreglar una fachada”, reiteró.
“Es fundamental la instalación distintos distritos temáticos, sobre todo en aquellos en los que están involucrados los jóvenes, de manera a dar-
le una tendencia de uso con actividades como la moda, diseño, la tecnología, el mundo audiovisual, la cultura, la gastronomía, a lo que hay que agregarle espacios verdes, recuperar cauces, reservas naturales, descanso de aves, etc”, explicó.
El profesional afirmó que en este contexto, el Foro de la FPAA, “Asunción 500 Años”, va a “ayudar mucho” porque se puede convocar a todos los sectores de la sociedad para llevar a cabo el proyecto de reconversión de Asunción. “Un lugar adquiere vida cuando se le llena de vida”, apuntó.
El arquitecto González Acosta hizo hincapié en el rol de Asunción como madre de ciudades dentro de la historia y destacó la importancia de Arq. Víctor González Acosta
La Arq. María Luisa Blanes, presidenta de la Asociación Paraguaya de Arquitectos (APAR), afirmó que para la revitalización del centro histórico de Asunción es necesaria una visión con un enfoque integral, que involucre a todos los actores. Destacó que el centro está “vivo” y que para recuperar esa vida, es necesario un plan de trabajo. Este y otros puntos se van a tratar en el Foro de la Federación Panamericana de la Asociación de Arquitectos (FPAA) “Asunción 500 Años” a desarrollarse del 26 al 28 de marzo en nuestro país.
“Hablar de patrimonio sigue siendo un tema pendiente, en una visión de conjunto. Sí creo que se están haciendo y se hicieron muchas cosas, de hecho, tenemos una legislación nueva muy interesante, que involucra la participación de muchos
actores”, señaló la Arquitecta María Luisa Blanes.
En cuanto a las acciones que se deben llevar a acabo en el Centro Histórico de Asunción, señaló:
“Creo que hay que mirar desde un enfoque integral. Hay que pensar que el centro de Asunción es un centro histórico, está vivo, tiene una comunidad, un arraigo y debería tener un sentido de pertenencia para todos los que viven allí.
“Creo que tenemos que pensar en buenas prácticas, involucrar a varios actores, aprovechar que tenemos una legislación vigente actualizada que abarca el concepto desde el tema de un sistema que proteja el patrimonio a nivel nacional, involucra a actores locales, técnicos, creo que hasta ahí ese paso está en lo correcto.
“Otro de los factores que debemos considerar como si tuviéramos un plan de trabajo es la articulación de los procesos socioculturales y el imaginario patrimonial, que no es otra cosa que poner sobre el tapete el imaginario patrimonial con sus habitantes. Así tendríamos valores, significados, prácticas, que inciden en la conservación y preservación y el patrimonio permanece. No dejarlo como un telón de fondo, sino como una parte activa”.
Foro de la FPAA “Asunción 500 Años”
La arquitecta destacó la importancia de eventos como el Foro de la FPAA, señalando que abren debates. “Este es un foro que apunta a los 500 Años, entonces es
una trayectoria de mucho tiempo. Este foro nos visibiliza. Vamos a ver presentaciones exitosas de un montón de propuestas que se han hecho al exterior de nuestro medio y es nuestra oportunidad de sentarnos a dialogar, discutir y a mostrar virtudes y defectos”.
Para el Arq. Aldo Cristaldo, propietario de Bauen Arquitectura, si bien el centro histórico de Asunción no está pasando por un buen momento, es “lo mejor que tenemos” en Asunción. Afirmó que espacios de debate como el Foro Panamericano de Asociaciones de Arquitectos (FPAA), Asunción 500 Años, es el primer paso para hablar de la problemática y a partir de allí, plantear soluciones.
“El estado del centro histórico de Asunción no es alentador. No está pasando por un buen momento, pero yo creo que, haciendo una analogía con la salud, a nuestro centro solo le falta ‘vitaminas y nutrientes’, la base está. Considero que la zona de la ciudad con mejor infraestructura es la del centro, porque cuenta básicamente con todos los servicios”, manifestó el Arq. Aldo Cristaldo.
“Lo que hace que el centro hoy esté prácticamente con todo el potencial para recibir todas las ‘vitaminas’ que necesita para
destacar es que se han terminado las dos franjas costeras, tanto la Norte como la Sur y eso significa accesibilidad. Todos esos factores van siendo aceleradores de un proceso, que naturalmente se va a dar”, afirmó.
“Lo mejor que tenemos”
“El foro de la FPAA va a hacer que se haga visible lo invisible. Para que empecemos a tomar acciones, empezar a plantear soluciones a la problemática, hay que hablar del tema. Actualmente no hay un lugar de debate en el que se pueda hablar del tema”, finalizó.
“El primer paso para la rehabilitación del centro es hablar del tema, no cansar -
nos y desmitificar el centro como algo feo, sino entender que el centro es lo mejor que tenemos y el mejor negocio al que podemos acceder”, sostuvo el profesional.
El Foro de la Federación Panamericana de Asocia-
ciones de Arquitectos (FPAA) “ Asunción 500 años”, se llevará a cabo del 26 al 28 de marzo próximo en nuestra capital. El evento, cuyo tema central será los 500 Años de Asunción, reunirá a profesionales nacionales e internacionales que debatirán sobre arquitectura, urbanismo y construcción.
El Ing. Paul Sarubbi, presidente de la Cámara Vial Paraguaya (Cavialpa) celebró las modificaciones de la Ley de Alianza Público-Privada (APP) y afirmó que es una “clave para compensar el déficit que existe en nuestro país en cuanto a inversión en construcción”. Afirmo que la ley ayudó a flexibilizar puntos que permiten que más proyectos sean viables económicamente.
En el marco de la promulgación de la Ley N°7452 “De Modernización del régimen de promoción de la inversión en infraestructura pública y ampliación y mejoramiento de los bienes y servicios a cargo del Estado”, Ley de Reforma de la Ley de Alianza Público-Privada (APP), el Ing. Paul Sarubbi, presidente de la Cámara Vial Paraguaya (Cavialpa), dio su opinión al respecto, en una amena entrevista
“Estamos contentos con las modificaciones de la Ley Asociación Público Privada. La Ley es clave para poder compensar ese déficit que muchas veces el Estado no puede invertir por falta de presupuesto. Lastimosamente Paraguay todavía es un país con un presupuesto elevado en lo que son gastos corrientes. Tenemos que tratar de a poco de poder hacer más eficiente el gasto público y que ese margen que queda para la inversión sea lo mayor posible, porque a
fin de cuentas, todo sale del mismo bolsillo y tenemos nuestras limitantes macroeconómicas, fiscales, y demás, que hacen que no se pueda invertir lo que necesitamos”, sostuvo Sarubbi.
“Paraguay tiene un déficit enorme en infraestructura. Se habla de que son casi US$ 30.000 millones es lo que nos falta invertir para ponernos a tono a lo que necesitamos, y hoy no estamos llegando a US$ 1.000 millones por año. A ese ritmo no vamos a poder nunca ponernos como para poder ser competitivos den-
tro de este lugar que nos toca acá en el mundo, en esta situación de mediterraneidad, que hace que nuestros costos logísticos sean más caros, o esta falta de hacer transmisión de energía y que podamos tener energía eléctrica en cantidad y calidad en toda la república para que se puedan instalar las industrias. Por más de que tenemos generación de energía suficiente, muchas veces no hay energía en diferentes lugares por falta de inversión en lo que es la transmisión y distribución de la energía”, afirmó.
“Es un orgullo para Paraguay ser sede del Congreso Ibero Latinoamericano del Asfalto (CILA). Personalmente tuve la suerte de participar ya de varias ediciones del CILA en diferentes lugares del mundo, y creo que es el congreso en español más reconocido en el mundo. Es un congreso en el que se reúnen personalidades, técnicos, académicos de prácticamente todo el mundo, a analizar cuáles son las nuevas tecnolo-
gías que se utilizan en el mundo del pavimento, del asfalto, de la carretera. Cuando uno va viendo las diferentes evoluciones que hay en los diferentes tipos de contratos, siempre se ven primero en el CILA, cómo van surgiendo esas investigaciones. Son eventos que suelen reunir 1.000 a 1.200 personas, muchísimas publicaciones, científicos, investigadores que demuestran sus trabajos. Para Paraguay es un
De acuerdo a lo expresado por el Ing. Sarubbi, estas modificaciones en la Ley, permitirán que más proyectos sean viables. “Es así que esta ley puede compensar eso porque desde allí empiezan a surgir los proyectos desde lo que es la inversión privada, con iniciativas privadas, con proyectos que genera el sector privado, y por ende, gasto al sector privado. Después el Estado puede elegir qué proyecto llevar adelante y que no”, dijo.
“Estos proyectos se van pagando con la utilización de la infraestructura. En caso de que sea una carretera, se paga con el peaje, si fuera un aeropuerto se paga con las tasas, entonces también
honor, porque estamos siendo reconocidos como país dentro del mundo de la infraestructura, como uno de los países de mayor desarrollo económico en la región, con grado de inversión, con inversiones del exterior, eso hace que nos ubiquen en el mapa.”
“Este evento le va a dar también a una gran cantidad de profesionales paraguayos, jóvenes, investigadores, la posibilidad de mejorar sus conocimientos. Estas son cosas que quedan para el país, ese conocimiento no se pierde y a corto, mediano y largo plazo, uno va viendo como este tipo de congreso va generando
eso hace que sea justo, porque hace que el que utiliza esa infraestructura sea el que pague por ella y con estas nuevas modificaciones lo que se hizo fue flexibilizar algunos puntos como para que más proyectos sean viables económicamente”, apuntó.
Finalmente, el ingeniero insistió en lo positivo de las modificaciones y auguró aún mayores beneficios para el sector. “Creo que hay mucho por mejorar en la Ley pero creo que es un gran paso el que se dio. Seguramente el tiempo va a ir mostrando qué nuevas modificaciones se pueden ir haciendo para ir perfeccionando la ley y que cada vez sea más práctica y utilizable”, afirmó.
una mejora en la calidad de todos los servicios que se generan acá. Desde Cavialpa, estamos encantados de participar de la organización de este evento y creo que va a ser todo un éxito.”
“Paraguay va a mostrar lo que hacemos y los materiales con los que cuentan. Podremos ver qué hay de nuevo en el mundo, porque se van a exponer las nuevas técnicas que se están utilizando en otros países, nuevos equipamientos y por otro lado, poder adecuar eso a nuestra realidad nacional, con nuestras características propias.”
Arq. Andrea Leguizamón - Amanecer Deco
La decoración en 2025 sigue una evolución hacia lo sensorial y lo emocional. Se priorizan espacios acogedores y equilibrados, donde los materiales naturales, las texturas orgánicas y una paleta de colores cálidos y envolventes juegan un papel clave. En Paraguay, el diseño busca integrar la frescura del entorno con interiores que transmitan bienestar, combinando tonos terrosos con acentos vibrantes para dar personalidad sin perder armonía, explica la Arq. Andrea Leguizamón, de Amanecer Deco. En cuanto a los colores que serán tendencia en el 2025. la profesional
anunció: “El protagonista de 2025 es el Mocha Mousse, un marrón suave con matices dorados y terrosos que aporta calidez, confort y sofisticación. Es un tono versátil que se adapta tanto a interiores modernos como clásicos”.
“Junto a él, vemos una tendencia hacia los colores naturales y envolventes, como los verdes oliva, los tonos arena y los ocres, que evocan tranquilidad y conexión con la tierra. En espacios de trabajo, los grises suaves y los azules profundos siguen siendo opciones acertadas por su capacidad de generar ambientes equilibrados y elegantes”.
Por otro lado, en lo que respecta a Paraguay, sus características como el clima, la arquitecta indicó “Nuestro clima cálido y húmedo demanda una paleta que aporte frescura y confort. Los tonos claros como nuestros tonos white, frost, antique, ayudan a reflejar la luz y mantener los espacios más frescos. Para quienes buscan profundidad sin recargar, el Mocha Mousse es una excelente opción, ya que su calidez no oscurece los ambientes y combina bien con maderas naturales y textiles ligeros”.
“El color tiene un impacto directo en la percepción y la funcionalidad de los espacios. Desde Amanecer Pinturas, con nuestra línea DECO, buscamos ofrecer opciones que sigan tendencias globales, pero adaptadas a nuestro contexto y clima. La clave está en encontrar el balance entre tendencia y personalidad, creando ambientes que no solo sean estéticamente agradables, sino que también generen bienestar”, apuntó.
La iluminación enfocada en ‘Human Centric Lighting (Iluminación centrada en el bienestar)’, es la tendencia de este 2025, y el tono que acompaña la idea es el Mocha Mousse. Los colores que van con el beige, tierra y vino, en la búsqueda de volver a conectar la naturaleza son los recomendados a la hora de iluminar un espacio, según explicó Mara Granada, jefa de productos de iluminación de Luminotecnia, desde donde ofrecen toda una gama de productos para responder a la necesidad del usuario.
Además de las tendencias de iluminación, Mara Granada explicó acerca de los conceptos básicos, necesarios a la hora de iluminar del hogar.
“La iluminación tiene muchos fines, existe la iluminación general, funcional, puntual, ambiental y la iluminación decorativa. Es muy importante mencionar que hoy en día cuando hablamos de tendencia, la iluminación funcional, es decir, la iluminación que se utiliza para iluminar ciertas zonas de trabajo, se está alineando mucho con la estética. Hoy en día, el Grupo luminotecnia cuenta con una variedad de productos que logran acercar esa funcionalidad con una estética, que tenga impacto visual aparte de lograr el confort que uno desea para determinar la función”, explicó Mara.
“Cuando hablamos de tendencias, en lo que va en la tendencia del 2025, el tipo de iluminación está
enfocada en algo que se llama ‘Human Centric Lighting (Iluminación centrada en el bienestar)’, básicamente es una iluminación centrada en el usuario, es decir, que no es iluminar nada más, sino adaptarla al confort del usuario. Se está hablando mucho de neuroiluminación, de cómo el cerebro reacciona de acuerdo al tipo de iluminación que uno recibe; también de la temperatura de la luz que uno debe utilizar de acuerdo a lo que uno quiere hacer, etc”, señaló.
“En Luminotecnia ya estamos buscando adaptarnos a este tipo de tecnología, desarrollando los productos y trayendo los que buscan realzar ese tipo de tecnología para que nos acerquemos más a lo que está en tendencia”
“Todos los años, Pantone lanza el color del año, es el color que va a definir el color del interiorismo, reflejado en pinturas, ropas, el color del 2025, según Panton es el Mocha Mousse, y es el color que vamos a ver mucho este año. Es un tono que va hacia el marroncito claro, colores tierra, colores que va al beige, a los marrones, al vino, etc”, indicó.
“Como Luminotecnia nosotros nos adaptamos a esas tendencias y desarrollamos toda una gama de productos y un portafolio que esté relacionado con ese tipo de interiorismo. Vamos a ver mucho esos colores en veladores, espacios, colgantes, mucho más modernos, geométricos, saliendo de lo rústico que era la tendencia anterior, entrando a una mezcla de lo que es confort y minimalismo. Es muy importante para nosotros darle énfasis a lo funcional, a lo puntual acompañado de lo estético. Lo que buscamos finalmente es el confort del usuario”.
La iluminación funcional es la que asegura visibilidad y seguridad, como la luz en oficinas, cocinas o espacios de trabajo. Se enfoca en la eficiencia lumínica y el confort visual. Por otro lado, la iluminación decorativa es la que aporta personalidad y ambiente. Se apoya en formas, materiales y efectos lumínicos para destacar elementos arquitectónicos o generar emociones en el espacio. La clave es combinar ambas para lograr un equilibrio entre utilidad y diseño.
La iluminación no solo cumple un propósito técnico, sino que también define la experiencia en un espacio. Hoy, la tendencia es combinar funcionalidad y estética para lograr ambientes confortables y eficientes. Se busca que la luz no solo ilumine, sino que transforme.
Human Centric Lighting (Iluminación centrada en el bienestar) Sistemas que imitan la luz natural para mejorar el ritmo circadiano.
Iluminación que se ajusta automáticamente para mejorar la concentración o relajación.
En un artículo publicado por la web laderasur. com se mencionan interesantes consejos útiles a la hora de arborizar entornos urbanos. Si bien el artículo tiene como escenario a Chile, cabe mencionar que en varios aspectos guarda relación con nuestro país. La ciudad de Asunción, principalmente, se destaca por tener varios “pulmones” e interesantes áreas verdes incluso en avenidas.
El artículo escrito por Tamara Núñez, menciona a profesionales en el área, quienes brindan su conocimiento: “Vale señalar que los árboles en la ciudad deben resistir una gran cantidad de estrés al que no están acostumbrados de forma natural, por lo que una correcta planificación y un buen manejo de áreas verdes es fundamental para mantener la salud de nuestro arbolado urbano y evitarnos todo tipo de problemas, tales como daños a la infraestructura pública o privada, obstrucción de la vialidad, interferencias de la red eléctrica y diversas situaciones, como la caída de ramas, troncos y frutos, que ponen en riesgo la salud de las personas”, indica.
“Actualmente, uno de los grandes desafíos de toda ciudad es lograr la adecuada convivencia entre el desarrollo urbano y la naturaleza. Ello implica planificar el crecimiento de las urbes de tal modo que las especies vegetales cuenten con las condiciones adecuadas para establecerse y lograr un correcto desarrollo”, menciona la autora.
“En ese sentido, la elección de especies que se adecuen correctamente a los espacios urbanos es uno de los puntos fundamentales. Si elegimos correctamente las especies que plantaremos y realizamos una buena planificación sobre el paisaje, no solo generaremos espacios bellos y agradables para la comunidad, sino que nos ahorraremos un montón de problemas a futuro”, añade.
“Por ello, es importante realizar una buena selección de la especie, que se adapte al entorno urbano y sea adecuada para las condiciones específicas del lugar, como el clima, el calor que irradia el pavimento, el tipo de suelo, la excesiva compactación y la disponibilidad de agua. Esto, para asegurar su supervivencia y crecimiento saludable”, indica Núñez.
“No existe un árbol perfecto, pero si se puede trabajar con las mejores alternativas. En la ciudad los árboles se someten a mucho estrés y a mucha exigencia, deben aguantar compactación, contaminación, el calor, mantenerse verdes durante el verano, entre otras cosas, entonces para cada lugar existe un árbol que puede acomodarse mejor según lo que uno necesite”, indica Verónica Blackburn, ingeniera agrónoma de la Pontificia Universidad Católica y paisajista.
“Es vital seleccionar especies que sean adecuadas para el clima local, incluyendo las temperaturas máximas y mínimas, la humedad, y las condiciones de viento, así como también las condiciones que impone la ciudad, como la irradiación de calor del pavimento y el frío”, indica Alejandra Vargas, ingeniera agrónoma y paisajista, experta en jardinería, construcción y manejo de áreas verdes.
“Es vital seleccionar especies que sean adecuadas para el clima local” (llamada)
En lo que refiere al problema entre las raíces y las veredas, el artículo señala: “La solución de Estocolmo es una forma perfecta para que convivan las raíces con la vereda. Consiste en darle el espacio necesario a las raíces de los árboles, con gravilla suelta, para que el suelo no se compacte”.
Nuestro país, y especialmente su capital Asunción, llama la atención de locales y extranjeros por mantener aún en paseos centrales, plazas y hasta veredas, árboles de diferentes especies, que “decoran” estos espacios que lograr lucirse en medio del tráfico, el asfalto y la vorágine jornada citadina.
Fuente: www.laderasur.com