Sophie My Hanh Nguyentran Selected Architecture Works

Page 1


my hanh nguyentran | selected works | œuvres sélectionnées|

first studies and final assemblies relied on the use of a spot-welding machine, complying to parameters of the body and the equipment. stacking was further explored by the buildings. to accompany the paneling, sheet piles could be used to create walls containing amassed terrain to elevate the complex. in the vast industrial landscape, mechanized environment. in action, the garment challenges industrial boundaries and interdiction. long-term community resilience for corktown, detroit means offering varying the site. on a site with much potential but (literally) setbacks and currently little to no density (but projected explosion, how do we improve living conditions not only with but is three-fold: exploiting the interstitial seams of the urban fabric by reclaiming the street at the human scale, supporting secondary commercial program through collective robust commercial program, but also in the alleys of the adjacent blocks with lower-density housing. populating the alleys with scattered plazas and park elements such as living, playing, and sharing. east of 14th, off of elm street, the first typology of high-density housing is situated. containing an arcade of commercial lease space for local businesses, to promote businesses that can advance out of the home. by including crucial amenities and service, intergenerational and shared living is much more manageable and was prototyped by a first draft toile out of thinner blue tarp. we wanted the silhouette to recall the domesticity and coquette of women’s coats, but also give a sense of armor integrity of the garment

icelandic institutions cultural and material assembly

femzo-mari a manifesto for vanity

rules and thirds corktown collectives detroit

industrial camouflage tarps of conceit and conceal

would be informed by a strip morphology, categorized into strip widths of two, four, and six inches, mapped onto the larger pattern pieces for mobility optimization. by choosing self-supporting structure where garment became envelope. oftentimes, the ramifications of the market inform the domestic workspace even more than the occupational influence over how women should behave in the domestic workspace is asserted at a global level, adjusting to each culture through hyper-accurate consumerist technologies the 2020s woman doomed to fall into a continuous paycheck–homegood feedback loop? it seems resistance is futile. what would it look like if we broke the homestead–industrial are not swayed by the image of trendy clothing, products, gadgets, and mass-produced home goods as a form of resistance. i would like to brainstorm an economic alternative for themselves rather than devoting unpaid time to intensive labor. these skills are not just about pure decorating nor complete utilitarianism in the home. as bearers of identity well-being, ethically continuing urbanity, and what to do with the current infrastructure, given some of its negative consequences on the city and its inhabitants. the looming, infrastructure to host sports events, media, and athletes, et cetera. many zacs and major development proposals revolve around the clear issues of sustainable growth and social disparity for the paris metropolis, especially exemplified by the aggressive boulevard périphérique that ‘cuts off circulation’ soften the périphérique ring road and brace for change to the city once more. marché, marchant, martial arts! synthesizes the current and predicted scenarios for three adjacent sports to generate a site-specific epilogue for the edge of paris. following the potomac river shoreline from georgetown, approaching users would view the west-facing facade vital organs of the same embassy. while the consulate is equipped to handle the discreet needs of its constituency, the event space becomes a way for the icelandic entity strategic entry point, toggling between water and land levels, for either event-goer or ambassador guest. the ambassador’s residence looks out to the water, jutting from stacking methods for water-tight hulls. this became the first cue for material, as well as a reference to iceland’s well-known lack of abundant building material. during its landscape. first studies to generate interesting is a standalone complex consisting of glorified warehouses to host exhibitions and experiences. while utilitarian and occupied, it remains completely introverted as an architecture, a recently-proposed zac plan forecasts this as social housing for ratp employees. secondly, the square forceval, an unfortunate consequence of the boulevard périphérique been an afterthought in urban planning until even today—current proposals give nondescript, ambiguous roles to the park which indicate hesitance to regrow the site from but yet with no distinct identity, nor trajectory, nor function, particularly because of the blockage but also because of its inherent nature as leftover space in the urban fabric. proper, reaps negative consequences for (and backlash by) the inhabitants on the ‘other side of the tracks’ in quatre-chemins, pantin. the terminus of the tunnel opens up as it opens to a different vignette—one of pantin. while potentially pleasant, it is currently not occupiable; the lack of gathering is not only due to the forceval blockage but and retain its own constituents, despite immense potential to be a prime node of public space and service. worse, the current forecast of demolition of the old market is disappointing. to pantin, less than what previously existed. by providing an explicit boundary for market vendors mixed with this typology of commercial space, it seems the future of this social provision. they should be comfortable and durable. successful prototypes can be turned into goods that are traded with others in the neighborhood/city/bio-region for other goods and services if applicable and useful. by sharing versions of each others’ fabrication and even design individual, are able to provide themselves and others with a wide range of hard and soft infrastructure through furniture. first studies and final assemblies relied on the use spaces, visualized in a scale-less way. the final and large-scale steel model was then used to implicate an assembly for the buildings. to accompany the paneling, sheet piles a cloak of invisibility—a sartorial statement that emboldens the wearer to move discreetly within the synthetic and mechanized environment. in action, the garment challenges gradient levels of infrastructure, amenities, commercial, and institutional support to bolster program and usage across the site. on a site with much potential but (literally) to receive a huge working population influx. how do we occupy a site that is livable, workable, and durable? the solution is three-fold: exploiting the interstitial seams of varying density. the urban scheme works not only along the north to south axis of 14th street with high-density housing and robust commercial program, but also in the alleys activity from remaining thoroughfare, as pedestrians would also move between housing units in the alleys for more intimate living, playing, and sharing. east of 14th, off community by offering varying unit types as well as collective space for shared domestic labor, management, and maker spaces to promote businesses that can advance destination for corktown silhouette to recall landscape are more often found crumpled and creased, the construction and integrity of the garment would be informed by a strip morphology, categorized into strip widths tectonic flexibility, much like medieval armor or hose tube ribbing. the final product resulted in a near self-supporting structure where garment became envelope. oftentimes, customization of product presentation. through this, it could be said that quite a top-down model of influence over how women should behave in the domestic workspace is amazon storefront influencers). like a fever dream re-hashing of the 1950s american housewife, is the 2020s woman doomed to fall into a continuous paycheck–homegood of modern (or is it postmodern?) economies can exist; women can, as well. i want to imagine a future where women are not swayed by the image of trendy clothing, products, return to a state of resilience through fabrication knowledge (homecraft) but in turn can use these skills to generate wealth for themselves rather than devoting unpaid time can return us to a state of post-design? as paris continues to demolish, create, and evolve, there are new questions of societal well-being, ethically issue is of paris and its banlieues, highlighted by the approaching 2024 olympic games and thus the need for rapidly-implemented architecture and infrastructure to host sports events, media, and athletes, et cetera. many zacs and major development proposals revolve around the clear issues of sustainable growth and social disparity for the paris metropolis, especially exemplified by the aggressive boulevard périphérique that ‘cuts off circulation’ to the banlieues. there is a growing

industrial organ_ (+isms, +izations) ad-hoc armatures, architecture parlante, and

collage to generate interesting forms and ideas of spaces, visualized in a scale-less way. the final and large-scale steel model was then used to implicate an assembly for the ubiquitous and unassuming silver tarp becomes a cloak of invisibility—a sartorial statement that emboldens the wearer to move discreetly within the synthetic and varying levels of not only housing for occupants but also gradient levels of infrastructure, amenities, commercial, and institutional support to bolster program and usage across but also outside of the housing? detroit is projected to receive a huge working population influx. how do we occupy a site that is livable, workable, and durable? the solution collective space, and offering typologies of housing of varying density. the urban scheme works not only along the north to south axis of 14th street with high-density housing and as play equipment would keep the 14th street activity from remaining thoroughfare, as pedestrians would also move between housing units in the alleys for more intimate businesses, this building complex roots the community by offering varying unit types as well as collective space for shared domestic labor, management, and maker spaces and enjoyable. it also becomes a distinct destination for corktown by providing a second scale of interaction for social and economic growth. the design armor through form. taking cue from the fact that (naturally-)occuring tarps in the synthetic landscape are more often found crumpled and creased, the construction and

choosing to expose and display the seams, the raised ridges also provided tectonic flexibility, much like medieval armor or hose tube ribbing. the final product resulted in a near workplace through marketing, rampant advertisement, and real-time customization of product presentation. through this, it could be said that quite a top-down model of technologies (instagram/facebook targeted ads, tiktok, amazon, haul youtubers, amazon storefront influencers). like a fever dream re-hashing of the 1950s american housewife, is homestead–industrial complex? in the same way that multitudes of modern (or is it postmodern?) economies can exist; women can, as well. i want to imagine a future where women alternative where women in the household are able to return to a state of resilience through fabrication knowledge (homecraft) but in turn can use these skills to generate wealth identity and memory, can the objects we create can return us to a state of post-design? as paris continues to demolish, create, and evolve, there are new questions of societal looming, contemporary issue is of paris and its banlieues, highlighted by the approaching 2024 olympic games and thus the need for rapidly-implemented architecture and

circulation’ to the banlieues. there is a growing need to form smart solutions against these major issues that fit within the frameworks of current development forecasts to adjacent areas—the paris event center, square forceval, and marché magenta—while leveraging the strong locality of quatre-chemins and the transformative power of urban facade of the consulate. an elevated plaza places the entrance of the secure, enclosed consulate in direct dialogue with the public-facing event space, both entity to engage with any passing individual or collective body. it is able to be additionally entered onto a lower level via ramps from the jetty. a service elevator becomes a the peninsula to create secluded dwelling. the initial inspiration for form-finding was found in iceland’s history of shipbuilding with clinker construction, essentially using its relatively late industrialization, steel became such a commonly acquired material to the island country that it became the most recognizable material backbone in the studies and final assemblies relied on the use of a spot-welding machine, complying to parameters of the body and the equipment. stacking was further explored by collage interesting forms and ideas of spaces, visualized in a scale-less way. the site presents a mix of many urban ailments. firstly, the paris event center in the south of the outlined site architecture, due to the fenced walls to the complex’s west, extensive rail tracks south, and, north, a singular, 4.6 meter (15 feet) earthen wall on which an old rail track runs. périphérique in the 1960s, is now reaching the end of its life cycle as a park due to blockage of the underpass, north-center of the park. a controversial and difficult site, it has always a squatting territory of crack users to a safer place of gathering and transit between paris and pantin. the result: square forceval as a space of considerable square footage fabric. to further damage, its ambiguous location has made it susceptible to controversial proposals such as becoming a crematorium that, while beneficial for paris up to a large swath of paved area, almost a square that diffuses the once-flowing traffic of rue forceval/rue berthier. this portal holds a different air of tranquility and beauty but additionally the downtrodden state of the once-important halle/marché magenta. this portal to pantin currently is devoid of character and therefore incentive to gather disappointing. the issue is furthered by proposed (and approved) construction of a new, more official market with a hotel put forth, which has no determinate civic benefit this area will lead to gentrification by effecting this reductive version of a once-bustling site of marché and guinguette. generic self-furnishings, hard and soft, should be a

design changes, variety and improvement can be bred through cross-pollinating. eventually, this could lead to specialization from furnishers who, as a collective rather than use of a spot-welding machine, complying to parameters of the body and the equipment. stacking was further explored by collage to generate interesting forms and ideas of piles could be used to create walls containing amassed terrain to elevate the complex. in the vast industrial landscape, the ubiquitous and unassuming silver tarp becomes challenges industrial boundaries and interdiction. long-term community resilience for corktown, detroit means offering varying levels of not only housing for occupants but also setbacks and currently little to no density (but projected explosion, how do we improve living conditions not only with but also outside of the housing? detroit is projected seams of the urban fabric by reclaiming the street at the human scale, supporting secondary commercial program through collective space, and offering typologies of housing alleys of the adjacent blocks with lower-density housing. populating the alleys with scattered plazas and park elements such as play equipment would keep the 14th street of elm street, the first typology of high-density housing is situated. containing an arcade of commercial lease space for local businesses, this building complex roots the advance out of the home. by including crucial amenities and service, intergenerational and shared living is much more manageable and enjoyable. it also becomes a distinct corktown by providing a second scale of interaction for social and economic growth. the design was prototyped by a first draft toile out of thinner blue tarp. we wanted the the domesticity and coquette of women’s coats, but also give a sense of armor through form. taking cue from the fact that (naturally-)occuring tarps in the synthetic widths of two, four, and six inches, mapped onto the larger pattern pieces for mobility optimization. by choosing to expose and display the seams, the raised ridges also provided oftentimes, the ramifications of the market inform the domestic workspace even more than the occupational workplace through marketing, rampant advertisement, and real-time is asserted at a global level, adjusting to each culture through hyper-accurate consumerist technologies (instagram/facebook targeted ads, tiktok, amazon, haul youtubers, feedback loop? it seems resistance is futile. what would it look like if we broke the homestead–industrial complex? in the same way that multitudes products, gadgets, and mass-produced home goods as a form of resistance. i would like to brainstorm an economic alternative where women in the household are able to time to intensive labor. these skills are not just about pure decorating nor complete utilitarianism in the home. as bearers of identity and memory, can the objects we create ethically continuing urbanity, and what to do with the current infrastructure, given some of its negative consequences on the city and its inhabitants. the looming, contemporary

Georgetown, Washington D.C. Six Feet Under | Fall 2022

Professor: Steven Mankouche

icelandic institutions. cultural and material assembly

The Icelandic Institution proposes a multi-building complex that anticipates the infrastructural and environmental changes projected on a tumultuous site. On a slowly selfsubmerging peninsula at the edge of Corktown, recent climate disasters, such as the 2010 flooding of the Washington Harbor (neighboring the site), have charged questions of design failures and lessons. With increasing water levels, how will the embassy react to real-time changes, while also reflecting the attitudes of its cultural counterpart, Iceland, which is also expected to witness drastic sea level rise? How will the embassy address diplomatic spaces, rather than solely bureaucratic aspects? How will the embassy draw on the hydrological infrastructure at the site, such as precedent canals, locks, floodgates,

wharfs, water traffic, boat centers, and mills? What can we translate from connections and transportation into building systems? Apart from the enclosed envelope required, public space must be vitally connective, transversing the topography, while also allowing water from the neighboring creek to empty across the site during flood crises. The area’s problematic history of oncerobust but now-struggling infrastructural attempts begs the question of antifragility as a model for the design systems at play.

What does civic architecture operating at the tertiary scale look like? The project’s inquiry into metallic materiality was a generative design process as much as the program and planning. Steel assemblies through soldering, welding, and stacking studies evolved to the building outfit.

steel study model 1, elevations
view of consulate, event space, and ambassador residence from Potomac River
generative collage from steel study models
steel study model 2, elevation

Following the Potomac River shoreline from Georgetown, approaching users would view the west-facing facade of the consulate. An elevated plaza places the entrance of the secure, enclosed consulate in direct dialogue with the public-facing event space, both vital organs of the same embassy. While the consulate is equipped to handle the discreet needs of its constituency, the event space becomes a way for the Icelandic entity to engage with any passing individual or collective body. It is able to be additionally entered onto a lower level via ramps from the jetty.

A service elevator becomes a strategic entry point, toggling between water and land levels, for either event-goer or ambassador guest. The ambassador’s residence looks out to the water, jutting from the peninsula to create secluded dwelling.

view approaching northwest of consulate

early concept sketch, thinking about connectivity

consulate

event space

ambassador residence

The initial inspiration for form-finding was found in Iceland’s history of shipbuilding with clinker construction, essentially using stacking methods for water-tight hulls. This became the first cue for material, as well as a reference to Iceland’s well-known lack of abundant building material. During its relatively late industrialization, steel became such a commonly acquired material to the island country that it became the most recognizable material backbone in the landscape.

First studies and final assemblies relied on the use of a spot-welding machine, complying to parameters of the body and the equipment. Stacking was further explored by collage to generate interesting forms and ideas of spaces, visualized in a scale-less way.

The final and large-scale steel model was then used to implicate an assembly for the buildings. To accompany the paneling, sheet piles could be used to create walls containing amassed terrain to elevate the complex.

large-scale steel model, spot-welded, 6 feet tall
generative collage from steel study models
early sketch, thinking about jointery

steel panels

2x4 stud

0.25 in. vapor barrier

3.5 in. rigid insulation

0.6 in. sheathing

2.5 in. batting insulation

0.5 in. cement board

0.5 in. lime plaster finish

0.5 in. cement board

steel
view of entrance to consulate looking towards Potomac River, elevation at 18 feet

Quoi? What?

un geste qui peut réparer puis réinventer le tissu urbain a gesture that repairs then reinvents the urban tissue

A permeable, crossprogrammed civic-sport center, a salle de sport, that becomes an identitymarker and destination for a Parisian banlieue, which anchors the fragmented passerelle—an accessible, constructed itinerary for inner and outer Paris inhabitants in order to replant safe pedestrian, biker, and skater mobility. Thus, the project addresses issues of infrastructure plus social grievances

Pantin, Seine-Saint-Denis, Île-de-France

Sport and the City | Summer 2023

Professor: Clément Blanchet

marché, marchant,

martial

s/halles de sport of

of the locality, then proposes a new architectural approach to civic space by introducing primary concepts of informality and sport space.

Qui? Who?

pour les Pantinois et les Parisiens for the people of Pantin and Paris alike

The inhabitants of both Paris proper and the quartier Pantin, Seine-Saint-Denis would benefit from increased connectivity between their respective territories as well as a designated establishment of formal and informal gatherings through public, adaptable space.

brick brise-soleil of demolished Halle Magenta (site)
view of match areas in salle de sport

Île-de-France

martial arts! urban activation

Où? Where?

entre La Porte de la Villette et QuatreChemins between Porte de La Villette and Quatre-Chemins The proposal acts at the interstitial spaces of Pantin and La Villette. Using Rue Forceval’s directionality as an axis for the urban gesture, the project stitches a complex site starting from the introverted Paris Event Center (the edges of the Parc de la Villette), through the polemic yet unoccupied Square Forceval, and terminates in the chantier of the soon-to-be-demolished Halle Magenta. The project is dually

concerned with traversing the old chemin de fer that creates a northern wall to the Paris Event Center (which will eventually become RATP housing), as well as the (currently blocked) underpass of the Boulevard Périphérique after which Rue Forceval of Paris proper becomes Rue Berthier of Seine-Saint-Denis.

Pourquoi? Why?

un tournant pour le socio-paysage Parisien a watershed moment for the Parisian social landscape As Paris continues to demolish, create, and evolve, there are new

questions of societal well-being, ethically continuing urbanity, and what to do with the current infrastructure, given some of its negative consequences on the city and its inhabitants. The looming, contemporary issue is of Paris and its banlieues, highlighted by the approaching 2024 Olympic Games and thus the need for rapidly-implemented architecture and infrastructure to host sports events, media, and athletes, et cetera. Many ZACs and major development proposals revolve around the clear issues of sustainable growth and social disparity for the Paris metropolis, especially exemplified by

zine: poster side
zine: poster side opening
zine: manifesto writing revealing poster on reverse

the aggressive Boulevard Périphérique that ‘cuts off circulation’ to the banlieues. There is a growing need to form smart solutions against these major issues that fit within the frameworks of current development forecasts to soften the Périphérique ring road and brace for change to the city once more. Marché, Marchant, Martial Arts! synthesizes the current and predicted scenarios for three adjacent areas—the Paris Event Center, Square Forceval, and Marché Magenta— while leveraging the strong locality of Quatre-Chemins and the transformative power of urban sports to generate a sitespecific epilogue for the edge of Paris.

The site presents a mix of many urban ailments. Firstly, the Paris Event Center in the south of the outlined site is a standalone complex consisting of glorified warehouses to host exhibitions and experiences. While utilitarian and occupied, it remains completely introverted as an architecture, due to the fenced walls to the complex’s west, extensive rail tracks south, and, north, a singular, 4.6 meter (15 feet) earthen wall on which an old rail track runs. A recently-proposed ZAC plan forecasts this as social housing for RATP employees. Secondly, the Square Forceval, an unfortunate

consequence of the Boulevard Périphérique in the 1960s, is now reaching the end of its life cycle as a park due to blockage of the underpass, north-center of the park. A controversial and difficult site, it has always been an afterthought in urban planning until even today—current proposals give nondescript, ambiguous roles to the park which indicate hesitance to regrow the site from a squatting territory of crack users to a safer place of gathering and transit between Paris and Pantin. The result: Square Forceval as a space of considerable square footage but yet with no distinct identity, nor trajectory, nor function, particularly because of the blockage but also because of its inherent nature as leftover space in the urban fabric. To further damage, its ambiguous location has made it susceptible to controversial proposals such as becoming a crematorium that, while beneficial for Paris proper, reaps negative consequences for (and backlash by) the inhabitants on the ‘other side of

*underpass (currently

RATP train
perspective of passerelle looking toward Square Forceval and S/Halle de Sport
currently blocked underpass
Square

the tracks’ in Quatre-Chemins, Pantin. The terminus of the tunnel opens up to a large swath of paved area, almost a square that diffuses the once-flowing traffic of Rue Forceval/Rue Berthier. This portal holds a different air of tranquility and beauty as it opens to a different vignette—one of Pantin. While potentially pleasant, it is currently not occupiable; the lack of gathering is not only due to the Forceval blockage but additionally the downtrodden state of the once-important Halle/Marché Magenta This portal to Pantin currently is devoid of character and therefore incentive to gather and retain its own constituents, despite immense potential to be a prime node of public space and service. Worse, the current forecast of demolition of the old market is disappointing. The issue is furthered by proposed (and approved) construction of a new, more official market with a hotel put forth, which has no determinate civic benefit to Pantin, less than what previously existed. By providing an explicit boundary for market vendors mixed with this typology of commercial space, it seems the future of this area will lead to gentrification by effecting this reductive version of a once-bustling site of marché and guinguette

Square Forceval
proposed H/Salle de Sport (over demolished Halle Magenta chantier)
Boulevard Périphérique
zine: manifesto flip-through
view of S/Halle de Sport from Boulevard Périphérique
satellite image of site, including Paris Event Center, Square Forceval, and Halle Magenta

connective halle between upper and lower levels of the city, and also between east and west

remedy to the metropolitan issue of social and infrastructural disconnect.

Quand? When?

l’adaptabilité pour l’avenir adaptability for the future

By arguing for adaptable public spaces of different scales (small, medium, large), the building can age well into the future with the ability to be evolved with the needs of the changing social paysage of Paris.

salles that would facilitate fighting matches, words or physical

stairwell cores: brick brise-soleil

Ann Arbor, Michigan Solarpunk | Fall 2023

Professor: Matthew Wizinsky

femzo-mari. a manifesto for vanity

prototyping the vanity, vlog still 01:31:53

We can speculate a world and framework around which multitudes of economies can exist. From the micro-economy to the macroeconomy, from pure privatization to complete communization, there are many in-between scenarios for economic systems of a more discreet scale to coincide and even begin to dismantle the economic paradigm of feminine, double-shift labor.

For many women, professional/occupational labor is only one face of the coin. In the home, whether it be the typical single-family pavilion or a collective housing unit, the paradigm of working a day job then subsequently a house job of a caretaker, feeder, housekeeper exhausts the eligible labor force without an established system of compensation and reparations for women.

In the same way that multitudes of modern (or is it postmodern?) economies can exist; women can, as well. I want to imagine a future where women are not swayed by the image of trendy clothing, products, gadgets, and mass-produced home goods as a form of resistance. I propose an economic alternative where women in the household are able to return to a state of resilience through fabrication knowledge (homecraft) but in turn can use these skills to generate wealth for themselves rather than devoting unpaid time to intensive labor. These skills are not just about pure decorating nor complete utilitarianism in the home. As bearers of identity and memory, can the objects we create can return us to a state of post-design?

This solarpunk design should be incubated at the household scale. Arming women with the knowledge and ability to resist influencer-heavy markets and opt out of trends to make furniture that is both functional, beautiful, and sensible for the home is a way to begin a new language of furnishing but also skill-building through making. This skill also expands on the idea of feminine home craft. Commonly thought of as a more masculine craft, there is no reason why home furnishing and space customization and curation should not be extended to wood and metalworking abilities. Clothing as a form of expression inherently guarantees that this skill, once achieved, can contribute to the synergy of societal needs and benefits.

01:31:54

Generic self-furnishings, hard and soft, should be a social provision. They should be comfortable and durable. Successful prototypes can be turned into goods that are traded with others in the neighborhood/ city/bio-region for other goods and services if applicable and useful. By sharing versions of each others’ fabrication and even design changes, variety and improvement can be bred through cross-pollinating. Eventually, this could lead to specialization from furnishers who, as a collective rather than individual, are able to provide themselves and others with a wide range of hard and soft infrastructure through furniture.

a 41 in. b 41 in.

c 16 in. e 31.75 in.

f 16.5 in.

d 30.75 in.

g 28 in.

h 28 in.

i 28 in.

j 28 in.

l 16 in. m 12 in. n 12 in. o 12 in.

r 12 in. s 12 in. t 12 in.

k 22.25 in.

p 12 in. q 12 in.

q, r , s 12 in.

p 12 in.

o 12 in.

c, l 16 in.

d 30.75 in.

instructional diagrams step-by-step

e 31.75 in.

m 12 in.

g, i, j 28 in.

a 41 in.

n 12 in.

b 41 in.

k 22.25 in.

t 12 in.

f 16.5 in.

h 28 in.

enzamare verb, Italian 1. to make furniture or object for feminine use referencing the structural, formal, and material logic of Enzo Mari’s Autoprogettazione

With an emphasis on speed, accessibility, and ease of fabrication, the parameters were set to encourage all phases of the concept and project in as little time as possible.

The prototype shown was designed in under two hours. The clear reference to Enzo Mari’s Autoprogettazione served as not only the conceptual framework inspiration, but the tangible one, as well. The design optimizes material according to comfortability, structure, and price. The material (2x4’) cost would be $18 USD from the hardware store.

The prototype was assembled in under two hours, as well. Excluding milling (optional), the assembly was rapidly troubleshot in the vlog, meaning that after repeated assemblies, users would complete the process at a faster rate with each experience.

01:02:38

add seat add tabletop 0:17:30

rules & thirds. corktown collectives

Corktown, Detroit, Michigan

Kit-of-Parts Housing | Spring 2023

Professors: Sharon Haar, Adam Smith

Partners: Osama Sukkar, Sabrina Ramsay

This proposal essentially portrays a highest-density outcome given the zoning and code, while also petitioning for specific rezoning of a proposed Elm Street Arcade. While the occupation of the site is dense, the mass prototyping and deployment of typologies has been fitted to North Corktown as a study in maximization of density, modular spaces, architectural expression, and co-living for socioeconomic longevity. This project’s material objective focused on the most updated CLT specifications for structural and sustainability parameters, as well as designing an adjustable facade.

view of proposed arcade through primary building (Type I: Provider) Sophie Nguyentran

Long-term community resilience for Corktown, Detroit means offering varying levels of not only housing for occupants but also gradient levels of infrastructure, amenities, commercial, and institutional support to bolster program and usage across the site. On a site with much potential but (literally) setbacks and currently little to no density (but projected explosion, how do we improve living conditions not only with but also outside of the housing? Detroit is projected to receive a huge working population influx. How do we occupy a site that is livable, workable, and durable?

The solution is three-fold: exploiting the interstitial seams of the urban fabric by reclaiming the street at the human scale, supporting secondary commercial program through collective space, and offering typologies of housing of varying density.

The urban scheme works not only along the north to south axis of 14th street with high-density housing and robust commercial program, but also in the alleys of the adjacent blocks with lower-density housing. Populating the alleys with scattered plazas and park elements such as play equipment would keep the

Osama Sukkar

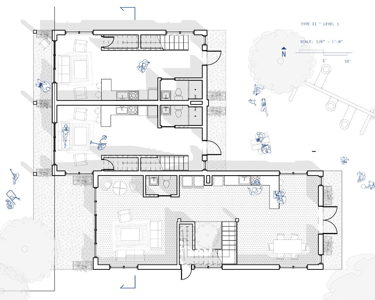
Type I (Provider) plan: Level 1 cutting through arcade and residential units

14th street activity from remaining thoroughfare, as pedestrians would also move between housing units in the alleys for more intimate living, playing, and sharing. East of 14th, off of Elm Street, the first typology of high-density housing is situated. Containing an arcade of commercial lease space for local businesses, this building complex roots the community by offering varying unit types as well as collective space for shared domestic labor, management, and maker spaces to promote businesses that can advance out of the home. By including crucial amenities and

Type I (Provider) plan: Level 2 cutting through mezzanines ovedrlooking arcade and residential units

service, intergenerational and shared living is much more manageable and enjoyable. It also becomes a distinct destination for Corktown by providing a second scale of interaction for social and economic growth.

Type I buildings are distinguished by their characteristic high-density assembly, but also by their modular adaptability at the scale of the living unit (studio, 1br, 2br). Based on their configuration and available land plot, the resulting building can become more blocklike or stretch to a linear form. Each facade features movable aluminum panels on rails for customization.

Whether taking after one form or the other, each provides a proportion of high-density living periodically throughout the site to ensure community engagement with the surrounding amenities. Less amenity-robust options (more linear) become Supporters, whereas buildings such as the plans shown, including the proposed Elm Street Arcade, become Providers

The Type I structural grid was calculated to receive the most standard CLT paneling for material optimization, while also maintaining a compact, square living unit plan for well-illuminated dwellings

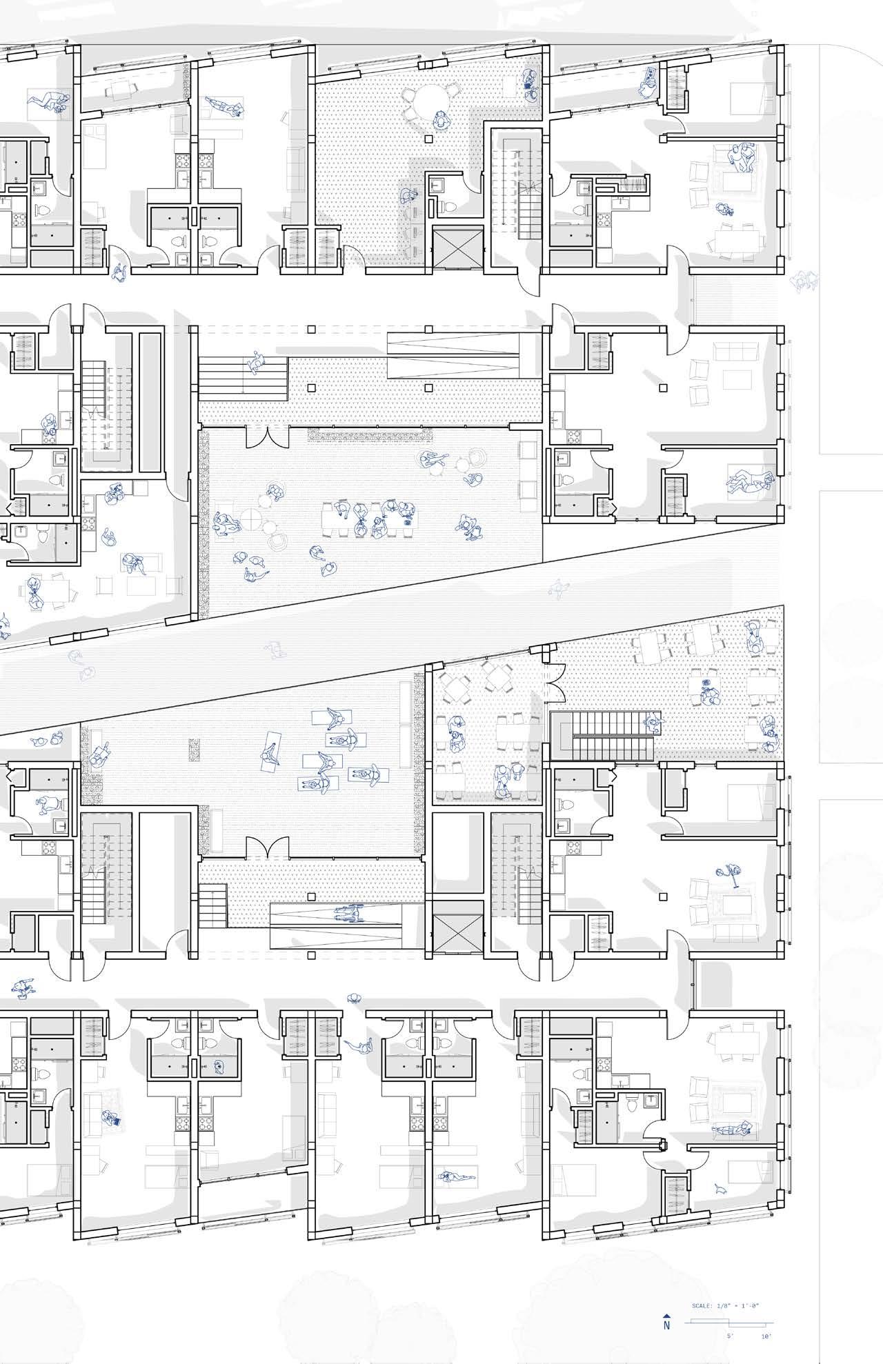
The third typology, the Multiplex, various combinations of low F.A.R., lofted housing units can be arranged to form two distinguished communities away from 14th street. The first type relies on a collective ground floor of living and cooking, while the second floor splits into fully separated, private lofts. The second type hosts two fully separated, private lofts located on their ground floor. By configuring different arrangements of types A and B, collective courtyards allow for a communal observance and reliance between neighbors.

Type II (Multiplexes) diagram of modular typology variation
Type II (Multiplex AB) plan: Level 1
Type II (Multiplex AB) plan: Level 2
Type II (Multiplex AB) plan: Level 3

In the second typology, Residencies are offered for local artists/ researchers, institutionally funded, and would be used for studio live/work spaces with a distinct separation between living and working, yet an emphasis on the studio capacity to allow for work and low-density living.

The typology is variable with each addition of living unit, expanding the form with the trapezoidal protrusions shown. Each building is designed to be fitted with a roller door for accessibility of large objects, such as fabrication projects. By offering a permanent space for waves of temporary stays of artists, the typology plugs into the growing art scene nearby the selected Corktown site while also bringing outside, even international, attention to the neighborhood.

Type III (Creative Residencies) diagram of modular typology variation
view of common space inside Residency Sophie Nguyentran
Type III (Residency) plan: Level 2 Sabrina Ramsay
Type III (Residency) plan: Level 1
Sabrina Ramsay

industrial camouflage.

tarps of conceit and conceal

Undisclosed Location, Zug Island, Michigan

Sartorial Architecture | Spring 2024

Professor: Tsz Yan Ng

Partner: Valeria Velázquez-Domínguez

In the vast industrial landscape, the ubiquitous and unassuming silver tarp becomes a cloak of invisibility—a sartorial statement that emboldens the wearer to move discreetly within the synthetic and mechanized environment. In action, the garment challenges industrial boundaries and interdiction

The design was prototyped by a first draft toile out of thinner blue tarp. We wanted the silhouette to recall the domesticity and coquette of women’s coats, but also give a sense of armor through form. Taking cue from the fact that (naturally-)occuring tarps in the synthetic landscape are more often found crumpled and creased, the construction and integrity of the garment would be informed by a strip morphology, categorized into strip widths of 2, 4, and 6 inches, mapped onto the larger pattern

pieces for mobility optimization. By choosing to expose and display the seams, the raised ridges also provided tectonic flexibility, much like medieval armor or hose tube ribbing. The final product resulted in a near self-supporting structure where garment became envelope Other details include visual appopriation of the pierced rims seen on tarps, where grommets and bows engaged at different points on the garment to allow for multiple styling configurations. Accompanying hood and skirt also were attached like this.

sketches of jointery, paneling, stitching
final jacket sans hood
fastening and adjusting via grommet and tie
transfer of blue tarp pattern to silver tarp strips
flash reflexes, flash reflectivity
blue tarp toile: pattern pieces in flatlay showing hood, shoulder, sleeve, body, and skirt
in truck snowshovel
final ensemble elevations
hanging from tractor
silver tarp final garment: sleeve

M. Arch Thesis | Fall 2023 - Spring 2024

Thesis Advisor: Steven Mankouche

industrial organ_ +isms +izations ad-hoc armatures, architecture parlante, and the sexy-industrial sublime

Honorable Mention

Burton L. Kampner Best Thesis Award and currently on display at the Liberty Research Annex, Ann Arbor, Michigan.

If you leave the coast of what is known as Detroit by boat at first light, where the lake turns into the river, head in the direction of the other side for about fifteen minutes. Then, when you reach halfway to the land, stop the boat. On a calm morning, you can peer through the glass-like water to the trash fish, debris, and weed beds below, which hold matter of unknown provenance yet promise unprecedented potential in their tendrils. This is the primordial and soft architecture of what will become Ridge Island. . . .

You are located at 42 degrees 23 minutes 34.8 seconds North, 82 degrees 49 minutes 06.0 seconds West—the center of a new world. This is the origin point of the miraculous yet monstrous island formation of the so-called

“dumping grounds of Lake St. Clair’’ and its transformation into the Ridges, a presumably undesirable and yet alluring locus solus of industrial waste that, at this moment, is an aquatic zone only local fishers and occasional buoys occupy. On a U.S. government map, it is simply a box of three square miles denoted by trivial dashed lines and indiscriminate hairline squiggles. But it is destined to metamorphose into fluid, artificial, and unknown territory for ad-hoc infrastructure, celebratory architecture, productivity, ornament, and identity. In the precarious piscatorial present of the Great Lakes ecosystem, the human population has ballooned, while that of fish has plummeted—the result of megascale overfishing, dredging, construction, and dumping. The fishers of now must become stewards of the fish through farming, production, and replication, where a re-emergent aquaculture industry drives survival then culture. So there lies the dilemma of the Ridges—the last unexplored, unclaimed, and unexploited frontier of the Detroit Island Archipelago. And though robust destruction seems to have laid the Lake St. Clair bare with nothing but muck and mire, it is a chora pregnant with cyborganic sludge from which an anomalous organization will form. Its organisms will learn from existing architecture parlante precedents, subsuming and synthesizing

an agro-industrial neobaroque in the anthropocene. By this, a new sexyindustrial sublime emerges. Unfailingly, the fabrication of the island surpasses objective material or resource needs; it also requires the propagandistic fabrication of a story, with architecture as the vessel by which the nation machine powers through.

toile: garment-device for fish-catching

Lake St. Clair dumping grounds on nautical survey

So perhaps these neo-citizens will claim to own the Ridges because they build it, through hijacking buoys, sinking freighters, and chaotically repurposing aggregated industrial trash to expand their territory. These are the dirty and discarded objectitems preordained to become the metaphysical talismans of New (Ridge) World. Thus, Ridge Island, like all islands, becomes the untameable and undulating mirrored surface on which we, simultaneous colonizer and subaltern, ultimately project our dogmatic desires.

architectural detail: ornamental bas-relief close up
composite drawing of Ridge Island combining various scales based on the 1000 foot freighter ship

How do industrial organisms behave? The classic notion of a toile is a wallpaper-esque pastoral scene depicting labor, but it is also the fabrication study of a garment-device. The toile is a garment for fish gathering, often a difficult female labor, that marks the beginning and end of the agro-industrial cycle, in which the dressing and undressing of the female industrial organism is simultaneously a productive labor and celebratory ritual. The garment-device is fashioned from abundant plastic modules of zip-ties which, once externalized on the body, serve as both structure and ornament. The panniers, once wrapped with tulle, become the trappings for fish, while recalling the silhouettes of the Enlightenment.

Fish-gathering in Ridge World 2.0 becomes a ceremonial act of preparation for the harvest with the toile. The toile consists of an under-dress, panniers (also known as a crinolette), and tulle.

The underdress is corseted with found objects such as scrap fabric. The boning structure along contours of the corset, made of zip ties inserted into elastic channels, ensures the security of the garment. The panniers are fabricated from zip-ties, an anthropocentric and commonly-found object on Ridge Island. The interlocked zip ties create modules that, once arrayed into a structure, become a cage for luring and trapping fish. The layer of tulle not only effects a beautiful silhouette but also wraps the crinolette like a skin. The fisher is now able to move and harvest hands-free.

Source unknown, Female Fish-Pedlar from Fish in Art by Christine E. Jackson, 2012
1. scouting area for catch
4. wrapping crinolette in tulle skin
2. tightening footwear for water entry
3. donning the crinolette
5. wading for fish collection
6. harvesting fish in crinolette
7. rinsing crinolette cage after use
8. hanging crinolette to dry

Based upon Willem van Mieris’ stilllife typology of a cosmogonic bas-relief present in the painting, the plaster collage prefaces the world-building of Ridge Island while providing a sample of ornament for architecture parlante. The still-life is an essential graphic that describes the relationship between organism and tool, which indicates the larger framework of how organisms participate in industry and productivity on Ridge Island.

ornamental bas-relief depicting story of Ridge World fabricated through clay impression and plaster pour structured to wall through a French cleat system bows, buoys, fish, nails, fabric, orchids, zip-ties, tools

Willem van Mieris, A Woman and a Fish-Pedlar in a Kitchen, 1713

Parallel to the Enlightenment, narratives of a supposedly ‘New World’ were being written and drawn over long-existing lands, waters, and peoples by colonial explorers. Through re-contextualizing and understanding the sexy-industrial devices of the Enlightenment and Futurism and their respective relationships to Detroit, we will speculate the future of the Ridges and challenge design and construction for an organic/synthetic settlement in a pre-/postcolonial epoch, aligning Ledoux’s function, Lequeu’s folly, Futurist fantasy, and Albert Kahn’s aquarium and factories in the sexyindustrial paradigm.

It is these intermingled happenings and complex relationships that complicate the narrative of New World progress and the disjunctive image of grim industry that characterizes Detroit’s skyline today, inadvertently producing a fetishization of the mechanical, a mystification of the function of industry along Lake St. Clair and the river, and a fortuitous prophecy of a novel society on the nearby offshore Ridge Island. Thus, Industrial Organisms and Organizations is a reaction by design intervention—simultaneous prologue and epilogue to the perils of utopic ambitions and territorial transgressions.

thesis presentation referencing narrative and spatial details of left image, May 2024

Turn static files into dynamic content formats.

Create a flipbook
Issuu converts static files into: digital portfolios, online yearbooks, online catalogs, digital photo albums and more. Sign up and create your flipbook.
Sophie My Hanh Nguyentran Selected Architecture Works by sophie my hanh nguyentran - Issuu