GRADUATE PORTFOLIO FULL

Page 1

M.Arch Texas A&M University (USA) 2020 - 2022

B.Arch

Biju Patnaik University of Technology (India) 2010 - 2015

Industry Experience

Office + Internhsip 2022 -Present 2021

Industry Experience

Interhsip (6 mo) 2014 Office ( 4+ yrs) 2015 - 2019 +

Sanchali

Class

Skills & Technical expertise

Autocad Rhino Revit Photoshop Illustrator Indesign

Sketchup

Grasshopper MS Office

Lumion

expert expert advanced expert expert advanced advanced advanced

somewhat know somewhat know

Scholarship & Certificates

Edward J. Romieniec Graduate Award

College of Architecture Department (Spring 2022)

Beth and Joe Denman’46 scholarship

College of Architecture Department (2021-2022)

Center for Health System & Design Ulrich scholarship

- CHSD department (2021-2022)

Center for Health System & Design Certificate

- Healthcare major AIA Health Horizon SES student Charrette

- Houston 2022

Epidemic Urbanism Initiative Design competition

Dutta M.Arch Texas A&M University
- Summer 2021 of 2022
sanchalidutta@tamu.edu sanchalidtt81@gmail.com +1(979)739-6016 www.linkedin.com/in/sanchali-dutta-b448b5a6/
SYMBIOSIS MODERN FARM& RODEO MARKET COMPLEX& ENTERTAINMENT PLAZA PEDIATRIC AMBULATORY SpringCENTERSURGERY ‘21 Fall‘21, Spring’22 Spring’15, Summer‘15 Fall ‘20 PALAZZO BORGHESE EUI DESIGN COMPETITION BUS TERMINUS GROUP PROJECTS Fall ‘20 Summer ’21 Fall ’14 Fall ’14 & ‘15

Happiness for Community ... Community for Happiness

The Goal is to designing a space by establishing the synergy between the Aged Community and the Young Orphan Community through a Symbiotic process. The design is about building an ecosystem following the intergenerational concept, where both the communities find their joy by living in harmony. The design focused on both the mental and physical health of the residents with the help of integrated indoor and outdoor activity, educational facilities with the living facility, allowing them to experience social inclusivity and acceptance through the interaction with the local community.

The site is located in India at Saltlake, Kolkata, WestBengal, which is one of the metro cities at the eastern part of India, having the population of almost 15.13 million and population density of 22,000 persons per sqm. Saltlake is a satelite city of Kolkata.

Among them around 0.023% (350000 person) are elderly population. In general all over India 139.6 million people are elderly population, among which almost 20-25% people are either staying alone, or abused, or extremely poor to lead their lives. Likewise, orphan children are also suffer from illiteracy, malnutrition, and poverty.

According to UNICEF 29.6 million children allover India are orphans. Moreover, considering post-pandemic situation this demographics has been raised significantly.

In this site there is already one SOS children village which is falling apart, especially during COVID a lot of staffs died and children were suffered, and currently its mostly nonoperational. So, this site has been utilized for this design project.

Physical support

Boost mental strength

Reduce psychological pain

Gives them reason to stay engaged

PHYSIOLOGICALCHANGES

Provide guidance

Builds social, cultural values

Provide love & care

OHCYSP L O G I CAL CHANGES S O C I LA SEGNAHC
INTERGENERATIONAL CONCEPT ACTIVE HEALTHY LIVING CONCEPT
ADMIN, SERVICE CULTURAL ENTERTAINMENT LEARN NG RECREATION HEALTH INDOOR GAME SENIORS SENIORS CHILDREN ADMIN STAFF SERVICE Children Activity HOUSING Senior Activity Public Activity Social gathering space Housing ACTIVITY CENTER Activity Center Terrace Garden

PEDESTRIAN ENTRY

SERVICE ENTRY SERVICE EXIT

ACTIVITY CENTER

PUBLIC PARKING

VEHICULAR ENTRANCE

STAFF PARKING

PUBLIC ENTRY

SOCIAL GATHERING SPACE

HOUSING

CHILDREN OUTDOOR ACTIVITY

SENIOR OUTDOOR ACTIVITY

West- Bengal Kolkata Saltlake

Salt lake – It is one of the satellite city of Kolkata, which is capital of West Bengal and also one of the Metro city of India.

Sun path Water
Wind flow Vegetation
body Road network
Connectivity
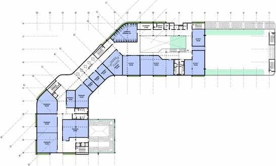
India CHILDREN ROOM SENIOR ROOM INTERNAL GREEN SPACE SHARED GARDEN SPACE TERRACE GARDEN LARGE ATRIUM WITH ETFE SKYLIGHT
FIRST FLOOR
CAM-2 CAM-2 CAM-1
EXPLODED STRUCTURE SECOND FLOOR THIRD FLOOR SENIOR BEDROOM CHILDREN BEDROOM STAFF SUPPORT ADMIN DINING HALL SERIVCE FRONT ELEVATION BACK ELEVATION RIGHT ELEVATION LEFT ELEVATION FRONT BACK LEFT RIGHT
CAM-1

SECTION AA

A A

PLANTED ROOF DETAIL

Clear laminated glass infill

S.S glass clamps (4 per panel)

50mm dia S.S pipe post (Surface mounted)

S.S snap cover

50mm dia S.S. pipe top rail

Vinyl flooring

BALCONY RAILING

Vinyl decking

Epoxy Terrazzo tile

Bonding agent

Water proofing membrane (over two layers of adhesive)

Flexible membrane

Bonding agent

INTERIOR FLOORING

Thermal Insulation

Aluminum frame for cladding

Terracota Rainscreen Cladding

WALL DETAIL

Concrete slab

BALCONY FLOORING

Concrete slab Waterproofing membrane

Concrete slab Reflective insulation material

Interior wall paster

Moisture barrier

Plaster board C.M.U

Unventilated air space Suspension cable Aluminium frame Insulation layer

FALSE CEILING DETAIL

Soil bed

Drainage layer

Water proofing layer

Thermal Insulation

Moisture barrier

Concrete slab

Top layer and beam joint Wood post and beam joint column and beam joint

WOOD PARGOLA DETAIL

FIRST FLOOR PART PLAN
FLOOR PART PLAN
FLOOR PART PLAN ELEVATION SECTION VIEW
SECOND
THIRD
LOWER GROUND FIRST FLOOR SECOND FLOOR THIRD FLOOR LONG SECTION THROUGH AUDITORIUM LONG SECTION THROUGH RECREATION Cultural, Public Recreational Healthy Activity Learning Activity Admin Service Supply

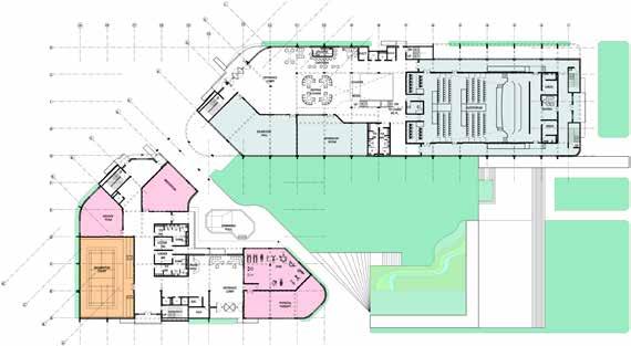
The design is about Ambulatory surgery center at College Station, Texas as a part of Baylor Scott White Medical Center at College Sattion. The design focused on skilled and efficient ambulatory service concentration on children. They will have cost-efficient, convenient, comfortable, specialized skilled service. the primary idea for the design is to ehancing patient’s health, keeping their safety and security, and also design will help to advance user and family comfortability.

EXAM AREA
SURGERY
THERAPY
ROOF GARDEN
ZONE DIAGNOSTIC AREA SITE AERIAL VIEW
FIRST FLOOR PLAN
SECOND FLOOR PLAN
FRONT ELEVATION BACK ELEVATION SECTION AA SECTION BB

RAINSCREEN PANEL

RAINSCREEN SUPPORT SYSTEM

INSULATION

AIR BARRIER

BUILDING SUBSTRATE

RAINSCREEN

WALL DETAIL

VEGETATION BARRIER

DARINAGE MAT

PROTECTION BARRIER INSULATION

AIR VAPOR BARRIER

ROOF DECKING

CONCRETE SLAB

PLANTED ROOF DETAIL

RECEPTION WAITING AREA
PLAY ROOM
VIEW FROM ENTRANCE

Present research focuses on agroecology, agrarian change and food politics. That clearly shows the need for system-wide shift in agriculture in order to reduce carbon emisson and threat to environment. Eventually unproductivie scenario declining the vision of modern agricultural industry, moreover it predominantly contributing into climate change and exacerbating rural problems, aggravates deforestation and biodiversity loss. In order to mitigate the issues it is crucial to rethink farming technology and procedur that can make the agriculture and industry productive and lucrative along with the prospective of water-soil-waste management and green house gas reduction.

FARM HOUSE LABORATORY & VERTICAL GARDENING AGRICULTURAL LAND FARMLAND RODEO OFFICE & CONFERENCE BUILDING RESEARCH & INFORMATION CENTER
B.Arch Thesis 2015

BREATHING IN BRUT- RECREATION AND COMMERCIAL COMPLEX AMIDST OF HARDCORE URBAN SPACE

The Goal is to design multifunctional spaces for commercial and entertainment purpose, marking as an important landmark of the locality.

New Town is a neighbourhood of Kolkata, a fast-growing planned satellite city. Developed as the second IT and residential hub of Kolkata.

The city is planned for a population of 10 lakhs, however, as of December 2016, the residential population of New Town is estimated to be around 30,000.

DLF IT PARK ECO SPACE HIG APARTMETS UNITECH CITY UNIWORLD CITY WEST BENGAL
INDIA
KOLKATA NEWTOWN, KOLKATA
SITE
TOPOGRAPHY & VEGETATION are PLAIN and MEDIUM
ZONING & CONNECTIVITY NODE 1 NODE 2 ADJACENT ROADS MAJOR ARTERIAL ROAD STREET 878
SUNPATH DIAGRAM WIND FLOW

ACTIVITY CIRCULATION

NOISE ZONE VISIBILITY THROUGH AXIS

CIRCULATION

SITE PLAN

SOCIAL HUB

CORRIDOR SPACES USE OF CUT-OUTS VIEWS & VISIBILITY

SITE SECTION

MAIN ENTRY
WHEELER PARKING
MAIN GATE GOOMTI
SECURITY CHECK & ENQUIRY
MARKET BUILDING BLOCK
SERVICE PARKING
PEDESTRIAN ENTRY
MAIN VEHICULAR EXIT
BASEMENT ENTRY
VEHICULAR CHECK IN
BASEMENT EXIT
VEHICULAR
OUT
CLUB HOUSE MAIN ENTRY
MEMBERS SECURITY CHECK IN
FOUR WHEELER PARKING
CLUB HOUSE BUILDING
INFORMAL SEATING CAFETERIA
BASKET BALL COURT
TENNIS COURT
CHILDRENS’ PLAYING AREA
SWIMMING POOL
OPEN AIR FOOD COURT
MULTIPURPOSE LAWN
OPEN AIR SEATING
WATER BODY
1.
2. TWO
3.
4.
5.
6.
7.
8.
9.
10.
11.
12.
CHECK
13.
14.
15.
16.
17.
18.
19.
20.
21.
22.
23.
24.
25.
26. FOUNTAIN

KEY PLAN

FOURTH FLOOR PLAN

THIRD FLOOR PLAN

SECOND FLOOR PART PLAN

FIRST FLOOR PLAN

GROUND FLOOR PLAN

SECTION ‘BB’
SECTION ‘AA’
SECTION ‘DD’
SECTION ‘CC’

GROUND FLOOR

KEY PLAN
SECTION
FIRST FLOOR CLUB HOUSE VIEW MARKET COMPLEX VIEW

ABODE SENIOR HOUSING

PARK EUI Design Competition
GREEN HOUSE MODEL LINKED TO ELEMENTARY SCHOOL BY LINEAR

The COVID-19 pandemic exposed significant problems in the design and structure of facilities designed for older adults such as Senior Housing, Housing for Aging communities, Assisted living facilities. The elderly population was among the communities most significantly impacted by the pandemic. There is an urgent need for a new paradigm in Senior care.

The Goal is to design Senior Housing for adults regardless of diffrent backgrounds and income levels. Also to designing more just and affordable senior housing to promote healthy life-style and encourage intergenerational relations.

Introducing the housing following GREEN HOUSE MODEL concept.

Introducing INTERGENERATIONAL concept.

Introducing ACTIVE HEALTHY LIVING concept.

HEALTH

SUSTAINABLE

ZONING

SOCIAL COST-EFFICIENT

SITE PLAN

JONES ELEMENTARY SCHOOL
1 CAM 1 ACTIVITY CENTER
2
CAM
EXHIBITION CENTER CAM
CAM 2

AXIS

The most common organizing principle of Architecture in which the building is organized along.

SOLID & VOID

This diagram showing basically the relationship of the mass of the building and the mass that cut out from the building. It is pupose of showing the built and unbuilt spaces.

CORNER CONDITION

In the Architectural discourse Corner has been one of the important feature considered as a design element. In this diagram it shows how this element produces the profile of the building while some parts are acting as hinged points of the building.

EDGE (PERIMETER)

This condition of the building’s design prinple provides the articulation to the shape and profile of the building.

REGULATING LINE

This concept of Architecture houses the process of orientation of the building and provides the Geometry to the shape.

The demarkated parts showing some portions of the building which are acting as hinge to the building system.

Another hinge operation of the building system which initiates the direction of the formation process of the building.

DIGITAL OPERATION

This new form is evolved from the previous closed system of the building plan to an Open Linear Organization.

Now, the fragments are arranged in a thread of system on the basis of Hinges of the building.

OBLIQUE VIEW 1

OBLIQUE VIEW 2

The operation with one of the hinge of the building system.
MODEL
MODEL VIEW 1
MODEL VIEW 2

ELEVATION OF BUS BAY WITH CONCOURSE

SECTION THROUGH CONCOURSE

PLAN

MASTER PLAN
OF BUS BAY WITH CONCOURSE

FIFTH FLOOR

SECOND FLOOR

SECOND FLOOR

FOURTH FLOOR

GROUND FLOOR

FIRST FLOOR

DEMOGRAPHY :-

- OLDEST CITY OF ODISHA

- BUSINESS CAPITAL OF THE STATE.

- GEOGRAPHICAL AREA OF 3932 SQM.

- FLANKED BY THE RIVER MAHANADI AT NORTH & KATHJODI AT SOUTH.

CLIMATE:-

- TROPICAL CLIMATE

- HOT SUMMER & COOL WINTER

- TEMP ABOVE 40 deg AT SUMMER & NEAR 10 deg DURING WINTER.

OCCUPATION:

- -FAMOUS FOR SILVER FILLIGREE ELSE HORN WORKS, PATTA CHITRA, DOKRA CASTING, TERRA COTA, WOOD CARVING, ART ON LATHER, METAL WORKS .

POPULATION:

- ACCORDING TO 2011 CENSUS THE POPULATION IS 2618708 IN WHICH 1339153 ( MALE) AND 1279555 (FEMALE)

MAJOR LANDMARKS : TEMPLES, HIGHCOURT, COLLEGE

Cuttack criminal bar association Encroachment in front of Notary Cuttack bar Association District Judge court & Ravenshaw college Cuttack bar council
high court
Odisha

RESIDENTIAL BUILDING

JUDICIAL BUILDING

LANDMARK BUILDING

COMMERCIAL BUILDING

OFFICE BUILDING

LANDUSE

TRAFFIC & TEMPORAL USE OF SPACE

Flow of traffic: changes with time

Parking: 4 wheelers - 100 nos, designated

Business timing: 10am - 8pm (Mon-Sat)

Type of Vehicles: 2 wheeler, 4 wheeler, auto rickshaw, rickshaw

DENSE CROWD

PARKING VENDING OPERATION

BUILT STRUCTURE VOID SPACES

OFFICE BUILDING
MAP
MAP OF TEMPORARY STRUCTURE FIGURE GROUND MAP MAP OF JUDICIAL BUILDINGS

CANAL FRONT DEVELOPMENT

... FOR PUBLIC SPACES

REIMAGING OF BAGJOLA CANAL

THE GOAL IS TO DEVELOP THE UNDERMAINTAINED CANAL FRONT AT THE HEART OF A HUB OF NEW TOWNSHIP AS A ECO-FRIENDLY, HEALTHY AND AESTHETICALLY APPEALLING WATER FRONT EXPERIENCE FOR COMMUNITY AND USERS.

CONCEPTUALS EXISTING CONDITION

ROCKS AS A BIOLOGICAL FILTER

WATER MOVES THROUGH ROCKS AND ENHANCES THE DEPOSITION & SEDIMENTATION OF CONTAMINATED WATER AND MAKES THE WATER FILTERED.

METHODS OF PURIFYING THE WATER

THE CURVATURE CLEANSING AND POLLUTANTS ABSORPING FLOATING PLANTS ENSURES THE

SEDIMENT TRAP ACCELERATES THE DEPOSITION. SUCH TRAPS CAN BE USED IN CANAL STRETCH.

BANK PROTECTION

SEDIMENT ACCRETION IN THE RIVERBED SUNPATH ZONING

DEVELOPED CONDITION

PRESENT CONDITION
VIEW FROM CONVENTION CENTER VIEW OF CANAL FRONT
... Thank You...

Turn static files into dynamic content formats.

Create a flipbook
Issuu converts static files into: digital portfolios, online yearbooks, online catalogs, digital photo albums and more. Sign up and create your flipbook.