Signature Plus

A series of contemporary pre-designed house plans with standout architectural features
A series of contemporary pre-designed house plans with standout architectural features
Signature Plus offers a contemporary range of plans with standout architectural features.
Signature Plus offers an exclusive collection of pre-designed house plans that seamlessly blend architectural elements with premium specifications. Each design harmonises aesthetics with functionality, featuring striking exteriors and well-thought-out interiors. Customise any Signature Plus plan to suit your preferences.
On
top of aesthetics, it’s good to consider how a roof enhances your home’s living conditions.
Significant attention is given to the roof shape and structure throughout the entire Signature Homes design process to ensure the roof not only looks the part but protects the complete arrangement inside of the home. Our Signature Plus plans showcases three different roof types, gable, mono and hip.
A gable roof is a popular choice due to its simple triangular shape. Architects love it for its flexibility in design. It's cost-effective to install, with lightweight materials like steel or wood. Plus, it's great for adding storage like an attic and improving ventilation in your home.
A mono roof, also known as a monopitch or shed roof, is a roofing design characterised by a single, sloping surface that slopes in one direction, usually away from a building. This type of roof is often employed in modern and minimalist architectural designs to create a sleek and contemporary look.
A hip roof slopes downward on all sides and has overhangs on each side, serving as a protective shell against the elements. It's a popular choice for windy areas. Hip roofs direct water away from the home's foundation, making them highly effective for drainage. Their unique shape offers flexibility in design for homeowners.
Introducing the Sumner - a sleek and stylish haven boasting two double bedrooms. This compact yet inviting home is designed with modern living in mind for those seeking a stylish and low-maintenance solution. Step into the Sumner and discover a world of contemporary elegance.
A compact home with big house features. The Dunstan's wide frontage gives it great street presence, while the modern kitchen creates a focal point in the open-plan living area, which is extended by the integrated outdoor area. 2 2 1 1
Designed for easy living, the Rotoiti offers well designed living spaces to cater to couples and families alike. Featuring two double bedrooms, one large family bathroom, spacious open-plan living and dining along with internal access to a double garage.
Offering great comfort and a practical floorplan, the Hauroko combines a traditional layout paired with a thoughtful use of space. The plan includes a spacious open-plan living and dining area. 3 1 1 1
This design offers a great layout for those seeking space and comfort. Bright and airy the main living area is complemented by all-day sun through expansive sliding doors, creating great indoor-outdoor flow.
1 1 2
Space and style are well balanced in the practical yet contemporary Nautilus design. The design features an open-plan living and dining area designed to optimise indoor-outdoor flow so you can enjoy all day sun.
The Whenuapai floorplan seamlessly connects the kitchen, dining, and living areas, integrating them with the outdoor space. Upstairs, a central landing leads to the main bathroom, a large study, and three double bedrooms, including the front-facing master suite with a walk-in wardrobe and a luxuriously spacious ensuite.
1.5 1 1
The Coleridge is a spacious concept plan offering modern living at its best. The design features an inviting open-plan living and dining area with large sliders that optimise indoor/outdoor flow - perfect for at home entertaining.
Enjoy comfort and value with the Kai Iwi build, a design that is sure to impress. Clear definition between the social and sleeping spaces, makes living easy in the Kai Iwi. 3 1.5 1 1
The Tarawera, an urban oasis, boasts a stunning two-storey design. Upon entry, discover cleverly zoned lounge/home office spaces leading to an expansive open-plan living area. Upstairs, indulge in three generous bedrooms, including a main suite with his and hers wardrobes and an ensuite featuring an oversized shower.
Experience the seamless blend of style and functionality with the Waimanu plan. The open-plan ground floor fosters togetherness amidst various spaces. Upstairs, discover four spacious bedrooms, including a master retreat with ensuite and ample wardrobe space.
The Benmore design features modern must-haves paired with a practical layout. The designer kitchen carries through to the dining and living areas creating a seamless entertaining space.
Discover the Ohakuri: a blend of contemporary style and practicality. Three double bedrooms form a private wing connected to the spacious living areas. The open-plan kitchen looks out to the living spaces, which are ideal for entertaining, while the outdoor living area fosters a balanced indoor-outdoor flow.
2 1 2
The stunning McKerrow design features considered positioning of open-plan living areas, overflowing through large sliders onto outdoor living spaces, making it a great place to entertain and relax with friends and family.
2.5 2 2
As you walk into the Austral plan, you are greeted by a light-filled home that flows effortlessly between spaces. A walk-in pantry makes for a spacious kitchen with ample room for entertaining friends. Each of the three bedrooms are generous in size.
Experience ultimate comfort with the Wai plan. Its design optimises space, offering three carefully arranged double bedrooms along with a study, an inviting open-plan living area, and a spacious double garage for your storage needs.
4 2 1 2
Making great use of space, the Toto is a crowd favourite. It features four well-positioned double bedrooms, a family bathroom, an ensuite, and an open-plan living and dining area to optimise indoor-outdoor flow.
- 180
A practical layout with modern must-haves, the Wakatipu is sure to impress. Enjoy your own personal retreat at the end of the day with the master bedroom occupying one whole end of the home.
Designed with modern living in mind, the Hawea features considerate spaces for everyone to relax or entertain in. The centrally located kitchen forms the hub of this immaculate home, ideal for bringing family together.
A beautifully proportioned family home to suit your style of living, the Seacrest features thoughtfully designed spaces for everyone to relax or entertain in. The centralised modern kitchen forms the focal point separating the two open-plan living areas.
The Hobsonville floorplan offers spacious living with a study, walk-in laundry, open-plan social spaces, and two master suites with walk-in wardrobes and ensuites. Upstairs features a large bathroom and two double bedrooms.
3 2 1 2
Simple, elegant and modern, the Manapouri was thoughtfully designed for family living with a stylish twist. The large sliders optimise an indoor-outdoor flow leading out to a stunning covered outdoor dining area - an entertainer's delight!
Introducing the Clipperton: a stylish, convenient four-bed, twobath haven. Downstairs boasts a large kitchen, dining area, and spacious living space flowing to outdoor areas. Upstairs features a study nook and three double bedrooms, including a luxurious master with a walk-in wardrobe and ensuite, plus a flexi room.
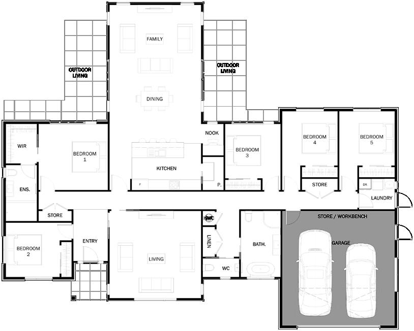
A sun-drenched entryway combines the two separate wings of this pavilion-style home. Living is made easy with three double bedrooms, two bathrooms including an ensuite and two living areas. The open-plan family wing opens onto private outdoor living.
Discover the perfect blend of style and functionality with the Monowai. This family-friendly design boasts three double bedrooms, two bathrooms, including an ensuite, and harmonious living spaces for balanced living.
The Ellemere plan offers a grand entrance and instant appeal. The entry opens into a vast family and dining area with a second living room tucked away. The designer kitchen, complete with a butler's pantry, is the hub of this thoughtfully planned home.
The Cobb's wide frontage creates a warm welcome, and gives this four-bedroom home charming street presence. The modern kitchen forms the hub of the home, while large sliding doors embrace alfresco living.
Elevate your entertaining experience with the Solomon, your ideal host for all occasions. This single-floor haven combines chic design with practicality, making it the perfect venue for any event. As you enter, you'll extend a warm invitation to your guests, guiding them into the vast open-plan living space.
Discover the Beachwood, a two-level oasis boasting an architecturally inspired design. Enjoy a spacious lounge and an open-plan kitchen, dining, and family area seamlessly connecting to the outdoors. Upstairs, find a family bathroom and three double bedrooms, including a master suite with a walk-in wardrobe and ensuite.
The Explorer design features four innovatively placed double bedrooms, including the master which features an ensuite bathroom and walk-in wardrobe. An integrated outdoor living area cleverly extends the main living space, perfect for entertaining family and friends.
Focused on comfort and character, the Futuna is designed to suit a range of different lifestyles and life stages. Four double bedrooms including a well-appointed master are positioned to form the bedroom zone, giving you the flexiblity to organise your home to best suit your family.
The Torquay plan offers clean, modern lines and impeccable proportions, making it the ideal family home. Its inviting entryway seamlessly leads to an open-plan living space with a modern kitchen. The master bedroom, with an ensuite and walk-in wardrobe, is a standout feature in the bedroom zone.
The Traveller offers a liveable and relaxed environment with its flexible design and efficient use of space. It features four bedrooms, including a master, separated from the main living space to create a natural flow. Divided living and family areas, along with expansive sliding doors, ensure well-lit and spacious living.
As you enter the Gambier plan, you'll be greeted by a spacious open concept living area. A cosy second living space is tucked away for those rainy movie nights, creating the perfect retreat. The Gambier plan features four generously sized bedrooms, each offering ample comfortable space.
As soon as you step foot in the Tomarata you are greeted by a light and bright home. The entryway opens to a view of the stunning outdoor living area which is cocooned by all rooms in the house. The Tomarata offers two distinct zones with the open-plan social areas.
The modern Tavai house plan offers an optimal living setup with an expansive open-plan living and dining area seamlessly linked to a well-appointed kitchen. Additionally, a separate living area provides ample space for the whole family. Each of the four bedrooms are generously sized, with a walk-thru wardrobe in the master bedroom and an ensuite for added comfort.
The four-bedroom Mercury Bay plan boasts a central kitchen connecting the family room to the living and dining areas. The well-organised layout caters to the demands of today's modern and active families, offering ample storage, a separate toilet for added convenience, and a dedicated laundry room.
A serene bedroom oasis seamlessly separates from Caroline's vibrant social living areas. The layout encourages natural movement flow, with convenient access to the utility zone, which houses the bathroom, linen closet, and laundry.
The Medlands plan prioritises practicality, with bedrooms nestled away from the lively social areas. Sliding doors
seamlessly connect to an outdoor living space, expanding the living area for a versatile and comfortable living experience.
Discover the abundant offerings of the Tangaroa plan, designed to cater to the needs of your entire family. With generous space and various living options, you'll find ample room for both indoor and outdoor living. This thoughtfully designed layout maximises functionality, ensuring your home has all the essential modern conveniences.
Introducing the Fernbrook: your ultimate designer family home, where ample space and harmonious living await. Inside, discover two distinct wings tailored for social gatherings and relaxation. In one wing, find cosy bedrooms, including a master bedroom with an impressive walk-in wardrobe and ensuite bathroom, ensuring luxurious comfort for the head of the household.
The Caloundra's flexible design adapts to your family's unique needs. A spacious second living area at the entrance easily converts to a playroom or home office. The clever kitchen bench is a convenient breakfast bar or a stylish serving station, enhancing your home's functionality.
Moke seamlessly blends classic privacy and modern flexibility, offering both open-plan and secluded living spaces. Four bedrooms, including a spacious master suite with a walk-in robe and ensuite, provide private sanctuaries. The kitchen boasts a large walk-in pantry and island bench, while the outdoor living area and portico offer ample relaxation.
Experience the captivating exterior of the Mairangi, exuding serious street appeal. Step inside to discover three spacious double bedrooms, an office, a cosy media room, and a family bathroom. Additionally, enjoy the convenience of a separate toilet. The communal areas are highlighted by a generously sized open-plan kitchen, living, and dining space.
The Adventure offers a versatile floorplan with a master retreat, guest suite, formal living room, open kitchen, and three additional bedrooms. Enjoy ample storage and outdoor living options.
Signature Homes is proud to offer New Zealand’s best building guarantees. We take great pride in our commitment to delivering exceptional guarantees that give our clients peace of mind during their build and well into the future.
We understand that building a new home is a significant investment. That’s why we assure you that when you sign a contract to build with Signature Homes, you will have peace of mind knowing that the price specified in your building agreement will remain fixed with no hidden extras.
Our Home Completion Guarantee provides 100% protection. In the unlikely scenario that our local Signature Homes franchise cannot complete your home, our Home Completion Guarantee will ensure your home is finished per the terms and conditions outlined in your Signature Homes Building Agreement.
Relaxing in your new home is even more comforting knowing you’re covered for non-structural defects for two years. You can rest assured that such defects are unlikely, thanks to our quality assurance programme that we carry out throughout the construction process.
After pouring your concrete slab, we will provide you with a completion date. Having a set move-in date makes it easier for you to plan the sale of your current home or the final date of your rental agreement, arrange for moving trucks and the all-important housewarming celebration.
Our commitment to delivering quality homes is reflected in our Ten-Year Structural Guarantee. In the unlikely event of structural defects, our guarantee provides 100% coverage, ensuring your investment is fully protected.
We have absolute confidence in both our builders and the quality of materials we use. In fact, we are so confident that we offer a Ten-Year Weathertightness Guarantee that all our homes will provide a comfortable, dry and healthy living environment well into the future.
All guarantees are subject to the Residential Indemnity Guarantee (RIL) terms and conditions.
* Our Fixed Price and No Hidden Extras guarantees are subject to the terms and conditions outlined in your Signature Homes Building Agreement.
National Support Office
West & North-West Auckland
Botany & Manukau
Papakura & Franklin
Northland
Rodney & North Shore
Christchurch North
Christchurch South
Queenstown Lakes & Central Otago
Bay of Plenty & Coromandel