Build your new lifestyle with Signature Homes Papakura & Franklin

Page 1

SIGNATURE HOMES
1
Build your new lifestyle in Franklin
2 SIGNATURE HOMES BUILD YOUR NEW LIFESTYLE IN FRANKLIN

Welcome

Signature Homes has a range of land opportunities available in sought-after subdivisions throughout Franklin.

Purchase your section now and build later, or purchase as a House & Land package choosing a Signature Homes house design that’s best suited to the site, your budget and lifestyle.

No matter how you choose to build with Signature Homes, we offer NZ’s most comprehensive Building Guarantees, including our Fixed Price Guarantee – a must-have in today’s market.

Signature Homes Papakura & Franklin 3

experts

Signature Homes Papakura & Franklin and their in-house team of experts will be by your side throughout the entire build of your new home, and well beyond handing over the keys.

About us

Signature Homes Papakura & Franklin is one of the most sought-after and respected builders in Auckland and Pukekohe, where no new build project is too big or too small.

Owned by lifelong Pukekohe residents Murray and Debbie Garland, this husband and wife duo brings unrivalled new home experience to the region.

The unique combination of Murray’s decades of experience as a builder with Debbie’s corporate expertise enables them to provide a full-service building solution that is second to none.

If you are looking to build in Papakura or Franklin, give Murray & Debbie a call or drop by their showroom for an obligation free chat about your new home.

New Home Consultants

Our New Home Consultants (NHCs) ask a lot of questions because their job is to find the perfect build package for you, at the right price for your budget. Ask them questions too, our NHCs will always find you an answer and they are with you every step of the way.

Design Team

Our experienced architects, designers and estimators turn your dream into conceptual drawings and 3D images. They’ll show you a range of plans from our collections that could work on your site or if you’re after something a little different, talk you through the process of designing your new home from scratch.

Colour Consultants & Interior Designers

Don’t worry if you don’t have an eye for interior design – when you build with us you have access to your own design team, including a colour consultant who will help guide you through these key decisions.

Building Project Managers

Once your build is locked down and signed off, your Building Project Manager (BPM) will manage the tradespeople on your site and all the requirements for the remainder of your build, keeping it on time and on budget, right up until you move in.

A TEAM OF
4 SIGNATURE HOMES BUILD YOUR NEW LIFESTYLE IN FRANKLIN

Office location: 13 Massey Avenue, Pukekohe

Open: Monday to Friday 8:30am - 5pm

New home enquiries: 0800 828 822

Other enquiries: 09 238 9590

START YOUR NEW HOME JOURNEY in Franklin
5
8 14 20 KARAKA 90 Kahui Parade • Auranga • 463m2 Lot 77 • Stage 2A, Park Green • 364m2 Pararekau Island PAERATA RISE Lot 139 & 140 Duplex Sites • 300m2 Lot 30 • Stage 7 • 473m2 Lot 29 • 16 Te Rata Blvd • 555m2 Lot 47 • 17 Kenehi Rd • 482m2 POKENO VILLAGE ESTATE Lot 876 • Stage 16 • 526m2 Lot 886 • Stage 16 • 555m2 Lot 822 • Stage 15 • 893m2 Explore our current opportunities 6 SIGNATURE HOMES BUILD YOUR NEW LIFESTYLE IN TARANAKI
24 28 PUKEKOHE Lot 2 • Stage 1 • Belgium Road • 547m2 Lot 82 • Stage 2 • Belgium Road • 600m2 KAHAWAI POINT, GLENBROOK Lot 2 • 10-14 Mclarin Road • 537m2 30 PATUMAHOE Lot 52 • 25 Kerr Cres • 847m2 7

HOUSE & LAND PACKAGES IN

90 Kahui Parade • Auranga • 463m2 • Title out now Lot 77 • Stage 2A • Park Green • 364m2 • Title out now Pararekau Island • Title expected mid-2023
KARAKA 8 SIGNATURE HOMES BUILD YOUR NEW LIFESTYLE IN TARANAKI
9

Fixed Price

$1,694,000

90 Kahui Parade, Auranga, Karaka

Title out now

Section size: 463m2

Here is your chance to secure a 463m2 north-facing section in the sought-after area of Auranga, enjoy water views and all that the outside world has to offer with this amazing location. Auranga is a welcoming new community that reflects the values of Auckland’s traditional neighbourhoods with all the modern conveniences of urban living. Celebrating its water’s edge location, Auranga provides residents with a connection to the outdoors and a range of amenities including a village centre, central park, playground, a dog-park, jetty, 5kms of coastal walkways & cycleways plus minutes from the southern motorway for an easy commute!

Custom Design & Build

House size: 193m2

UNDER CONSTRUCTION GUARANTEED COMPLETION

APRIL 2023

10% DEPOSIT PLUS TURNKEY PACKAGE

This House & Land package gives you the opportunity to secure a modern, 193m2 open-plan four-bedroom family home, on a generous yet low-maintenance section.

4 3.5 2 1
IDEAL PLAN
View listing
10 SIGNATURE HOMES BUILD YOUR NEW LIFESTYLE IN FRANKLIN

Pararekau Island, Karaka

Title expected mid-2023

Pararēkau Island is truly a unique location and an offering that Auckland has yet to see.

Living on the island will be peaceful and secluded, thanks to the 6-hectares of bush-covered reserve and water separating you from everyday life. It’s hard to believe you’re just a 3-minute drive to the motorway and 33 kilometres from Auckland’s CBD.

This new and exclusive gated community will be home to only a few, with beautiful homes and stunning views.

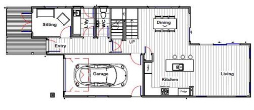
Greville Plan House size: 273m2

The layout of this impressive four-bedroom home is centred around a tunnel view from the entrance right through to the ocean at the other end of the home.

Everything is thoughtfully designed to bring the outside in, from the choice of cedar cladding right through to the engineered timber floors in antique oak. This design is an entertainer’s delight, with spacious indoor and outdoor living areas including a luxurious firepit with sweeping views across

4 3 2 2 View
11
IDEAL PLAN
listing

Pararekau Island, Karaka

Title expected mid-2023

Pararēkau Island is truly a unique location and an offering that Auckland has yet to see.

Living on the island will be peaceful and secluded, thanks to the 6-hectares of bush-covered reserve and water separating you from everyday life. It’s hard to believe you’re just a 3-minute drive to the motorway and 33 kilometres from Auckland’s CBD.

This new and exclusive gated community will be home to only a few, with beautiful homes and stunning views.

Wellesley Plan House size: 252m2

Designed to provide the family with abundant entertainment options, whatever the weather.

This home features a spacious open-plan living dining, and kitchen area that open out onto two different outdoor spaces.

Four incredibly spacious bedrooms provide each occupant with all the personal space they could want. The master bedroom features a large walk-in wardrobe with a laundry chute, as well as a generous ensuite bathroom.

4 3 2 1 2 View listing 12 SIGNATURE HOMES BUILD YOUR NEW LIFESTYLE IN FRANKLIN
IDEAL PLAN

Pararekau Island, Karaka

Title expected mid-2023

Pararēkau Island is truly a unique location and an offering that Auckland has yet to see.

Living on the island will be peaceful and secluded, thanks to the 6-hectares of bush-covered reserve and water separating you from everyday life. It’s hard to believe you’re just a 3-minute drive to the motorway and 33 kilometres from Auckland’s CBD.

This new and exclusive gated community will be home to only a few, with beautiful homes and stunning views.

IDEAL PLAN

Tasman Plan House size: 228m2

Inspired by modular living, our Tasman plan features two separate wings for living and bedroom areas. The openplan living area spills onto extensive decking with two alfresco areas.

Simple, elegant and modern at its core, this three-bedroom home is full of surprises. Generous corridors and high ceilings provide a fantastic feeling of space and flow.

3 2 2 2 View listing 13

LEARN MORE ABOUT PAERATA RISE HERE.

SIGNATURE HOMES HOUSE & LAND TARANAKI Lot 139 & 140 • Duplex sites • 300m2 Lot 30 • Stage 7 • 473m2 • Title out now Lot 47 • 17 Kenehi Rd • 482m2 • Title out now Lot 29 • 16 Te Rata Blvd • 555m2 • Title out now
HOUSE & LAND PACKAGES IN
RISE 14
PAERATA

$919,699

Lots 139 & 140, Paerata Rise

Title out now

Section size: 300m2

On a flat, north-facing section located in a quiet, elegant neighbourhood - this is your new dream home.

Paerata Rise is a new build lifestyle community developed between Karaka and Pukekohe, approximately 40 minutes from Central Auckland, comprising 4,500 new houses intertwined with green spaces, cycle paths and walkways. It includes 5ha of neighbourhood reserves, schools, a retail precinct, and a transport hub with a railway station.

Kowhai Plan

House size: 107m2

The Kowhai plan from our Urban Collection is designed to maximise the value of a larger section, allowing for the development of two new homes in one easy process. Perfect for easy family living, this cosy two bedroom, twobathroom single-storey duplex design results in two highquality homes that are stylish and liveable, as well as cost effective and quick to build.

2 2 1 1 View listing
IDEAL PLAN Fixed Price
15

Fixed Price

$1,079,419

Lot 30, Stage 7, Paerata Rise

Title out now

Section size: 473m2

On a flat, north-facing section located in a quiet, elegant neighbourhood - this is an ideal home for families or investors.

Paerata Rise is a new build lifestyle community developed between Karaka and Pukekohe, approximately 40 minutes from Central Auckland, comprising 4,500 new houses intertwined with green spaces, cycle paths and walkways. It includes 5ha of neighbourhood reserves, schools, a retail precinct, and a transport hub with a railway station.

IDEAL PLAN

Rifleman Plan

House size: 141m2

The three-bedroom Rifleman plan makes great use of space at every turn. Open plan living helps to create more space throughout the home, allowing for bonus areas such as a study nook. Extra features include a generous family bathroom and a large master bedroom.

3 2 1 2 View listing
16 SIGNATURE HOMES BUILD YOUR NEW LIFESTYLE IN FRANKLIN

Fixed Price

$1,149,424

Lot 30, Stage 7, Paerata Rise

Title out now

Section size: 473m2

On a flat, north-facing section located in a quiet, elegant neighbourhood - this is an ideal home for families or investors.

Paerata Rise is a new build lifestyle community developed between Karaka and Pukekohe, approximately 40 minutes from Central Auckland, comprising 4,500 new houses intertwined with green spaces, cycle paths and walkways. It includes 5ha of neighbourhood reserves, schools, a retail precinct, and a transport hub with a railway station.

IDEAL PLAN

Waxeye Plan

House size: 165m2

The Waxeye plan offers an affordable build with all must-haves in a family home.

The open-plan living areas provide ample spaces for families to connect and relax. Featuring three generous bedrooms, including a master with ensuite, there’s plenty of room for all to enjoy.

3 2 1 2
listing
View
17

Fixed Price

$1,290,000

Lot 47, 17 Kenehi Rd, Paerata Rise

Title out now

Section size: 482m2

Here is your chance to secure a Fixed Price, 10% Deposit Turnkey Package - only pay on completion!

Paerata Rise is a new build lifestyle community developed between Karaka and Pukekohe, approximately 40 minutes from Central Auckland, comprising 4,500 new houses intertwined with green spaces, cycle paths and walkways. It includes 5ha of neighbourhood reserves, schools, a retail precinct, and a transport hub with a railway station.

Wakatipu Plan

House size: 179m2

A practical layout with modern must haves, the Wakatipu is sure to impress.

Enjoy your own personal retreat at the end of the day with the master occupying the whole end of the home.

The plan also features two more double bedrooms, two bathrooms including an ensuite and a spacious openplan living area accessed direct from the entryway.

3 2 1 2 View
IDEAL PLAN
listing
18 SIGNATURE HOMES BUILD YOUR NEW LIFESTYLE IN FRANKLIN
CONSTRUCTION COMPLETED READY TO MOVE IN

Fixed Price

$1,340,000

Lot 29, 16 Te Rata Blvd, Paerata Rise

Title out now

Section size: 555m2

Here is your chance to secure a Fixed Price, 10% Deposit Turnkey Package - only pay on completion!

Paerata Rise is a new build lifestyle community developed between Karaka and Pukekohe, approximately 40 minutes from Central Auckland, comprising 4,500 new houses intertwined with green spaces, cycle paths and walkways. It includes 5ha of neighbourhood reserves, schools, a retail precinct, and a transport hub with a railway station.

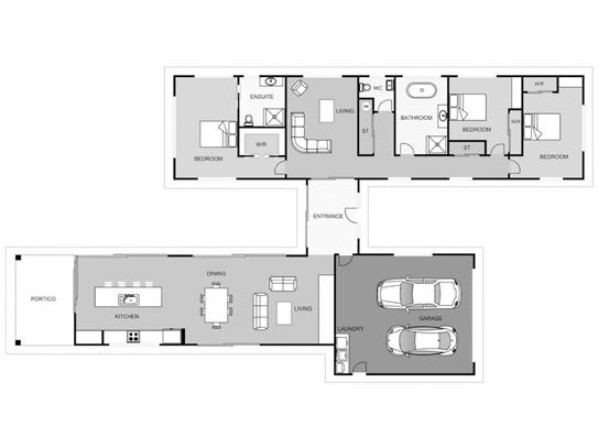
Torea Plan

House size: 177m2

JULY 2023

The Torea plan offers an affordable build with all of the must-haves in a family home.

The spacious open-plan living, dining and kitchen complete with butlers pantry provides space for families to connect and relax. Featuring four generous bedrooms, including a master with ensuite there’s plenty of room for all to enjoy.

4 2 1 2 View
IDEAL PLAN
listing
CONSTRUCTION GUARANTEED COMPLETION
UNDER
19
HOUSE & LAND TARANAKI
MORE ABOUT POKENO VILLAGE ESTATE HERE. Lot 822 • Stage 15 • Pokeno Village Estate • 893m2 • Title out now Lot 876 • Stage 16 • Pokeno Village Estate • 526m2 • Title out now Lot 886 • Stage 16 • Pokeno Village Estate • 555m2 • Title out now HOUSE & LAND PACKAGES IN POKENO VILLAGE 20 SIGNATURE HOMES
LEARN

Fixed Price

$997,625

Lot 822, Stage 16, Pokeno Village Estate

Title out now

Section size: 893m2

The 893m2 flat north-facing section is located in a quiet, elegant neighbourhood.

Pokeno Village is less than an hour from Hamilton and Auckland CBDs, enjoy all the benefits of a country lifestyle without sacrificing the convenience of the nearby cities.

All the amenities you need are here, including recreational parks, schools, neighbourhood walkways, plus a reinstated Market Square that will become a focal point for the community.

Fernbird Plan

House size: 160m2

Our Fernbird plan offers an ideal family home or investment build. Thanks to the open-plan layout, the kitchen, living and dining spaces invite families to connect.

Ample windows and doors invite daylight into your home all year round.

4 2 1 2 View listing
IDEAL PLAN
21

Fixed Price

$1,047,713

Lot 876, Stage 16, Pokeno Village Estate

Title out now

Section size: 526m2

Here is your chance to secure a modern home, on a low-maintenance section.

The 526m2 flat north-facing section is located in a quiet, elegant neighbourhood.

Pokeno Village is less than an hour from Hamilton and Auckland CBDs, enjoy all the benefits of a country lifestyle without sacrificing the convenience of the nearby cities. All the amenities you need are here, including recreational parks, schools, neighbourhood walkways, plus a reinstated Market Square that will become a focal point for the community.

IDEAL PLAN

Kakapo Plan

House size: 163m2

Our four-bedroom Kakapo plan offers a light-filled home with four generous bedrooms and an open plan kitchen and living space.

Make this home uniquely yours by working with our interior design team.

4 2 1 2 View listing
22 SIGNATURE HOMES BUILD YOUR NEW LIFESTYLE IN FRANKLIN

Fixed Price

$1,140,237

Lot 886, Stage 16, Pokeno Village Estate

Title out now

Section size: 555m2

The 555m2 flat north-facing section is located in a quiet, elegant neighbourhood.

Pokeno Village is less than an hour from Hamilton and Auckland CBDs, enjoy all the benefits of a country lifestyle without sacrificing the convenience of the nearby cities. All the amenities you need are here, including recreational parks, schools, neighbourhood walkways, plus a reinstated Market Square that will become a focal point for the community.

Heron Plan

House size: 203m2

A standout feature of our four-bedroom Heron plan is the master bedroom which comes complete with a walk-in wardrobe, ensuite and ample bedroom space. Furthermore, families will love the two living areas and open plan kitchen, living and dining.

4 2 2 2 View listing
IDEAL PLAN
23

HOUSE & LAND PACKAGES IN PUKEKOHE

Lot 2 • Stage 1 • Belgium Road • 547m2 • Title out now Lot 82 • Stage 2 • Belgium Road • 600m2 • Title expected mid-2023
24 SIGNATURE HOMES BUILD YOUR NEW LIFESTYLE IN FRANKLIN TARANAKI HOUSE & LAND TARANAKI
25

Fixed Price

$1,106,584

Lot 2, Stage 1, Belgium Road

Title out now

Section size: 547m2

This flat, large, north-facing 547m² section in Pukekohe has enough space for everyone!

Belgium Road is a new build lifestyle community developed in Pukekohe, approximately 45 minutes from central Auckland, comprising of 127 lots. Strict covenants on design and layout protects your investment.

This area is seen to be an extension of Anselmi Ridge with entries into the development available from both Belgium Road and Anslemi Ridge Road.

Kakariki Plan

House size: 168m2

Fusing style and functionality, there is a lot on offer with the four-bedroom Kakariki plan.

The open plan layout welcomes light into your home, with multiple areas to access the outdoors. The modern kitchen comes complete with a large pantry and a study nook just around the corner. This plan has all of the attributes that make for a great family home.

4 2 1 2 View listing
IDEAL PLAN
26 SIGNATURE HOMES BUILD YOUR NEW LIFESTYLE IN FRANKLIN

Fixed Price

$1,325,906

Lot 82, Stage 2, Belgium Road

Title expected mid-2023

Section size: 600m2

Located in the new, stunning, sought - after area of Belgium Road in Pukekohe, enjoy all that the outside world has to offer with this amazing location.

Belgium Road is a new build lifestyle community developed in Pukekohe, approximately 45 minutes from Central Auckland, comprising of 127 lots. Strict covenants on design and layout protects your investment.

On a large north-facing section located in a quiet and elegant neighbourhood - this is your new dream home! Minutes from the motorway for an easy commute - walking distance to Pukekohe town centre, Valley School, Pukekohe high school plus supermarkets, dairy’s, kindergartens and so much more!

IDEAL PLAN

Torea Plan

House size: 184m2

The Torea plan offers an affordable build with all of the must-haves in a family home.

The spacious open-plan living, dining and kitchen complete with butlers pantry provides space for families to connect and relax. Featuring four generous bedrooms, including a master with ensuite there’s plenty of room for all to enjoy.

4 2 1 2 View listing
27

HOUSE & LAND PACKAGES IN

LEARN MORE ABOUT KAHAWAI POINT HERE.

SIGNATURE HOMES HOUSE & LAND TARANAKI Lot 2 • 10-14 McLarin Road • Glenbrook • 537m2 • Title out
now
KAHAWAI POINT
28

Fixed Price

$982,777

Lot 2, 10-14 McLarin Road, Glenbrook

Title out now

Section size: 537m2

This Signature Homes House & Land package offers a modern home on a north-facing, flat 537m² section. Your new lifestyle awaits at Kahawai Point, an exciting new subdivision in Franklin.

Located close to primary and secondary schools, medical, banking facilities, and everyday shopping needs in the village of Waiuku – only 15 minutes away.

Oystercatcher

House size: 134m2

There’s a lot on offer in this compact yet cleverly designed three-bedroom plan. Featuring three wellappointed bedrooms and open plan living - if you’ve to build on a smaller site and want to maximise the land and your budget.

3 2 1 1 View
IDEAL PLAN
listing
29
SIGNATURE HOMES HOUSE & LAND TARANAKI Lot 52 • 25 Kerr Cres • Patumahoe • 847m2 • Title out now HOUSE & LAND PACKAGES IN PATUMAHOE 30

Fixed Price

$1,141,116

Lot 52, 25 Kerr Cres, Patumahoe

Title out now

Section size: 847m2

This flat, large, north-facing 847m² section in Patumahoe is perfect for those who want a rural lifestyle, while still being close enough to all the local amenities. It is perfect for families, couples or retirees.

Patumahoe has lots to offer, with great local schools, daycare, shops and other amenities, while being 10 minutes away from Pukekohe and only 50-minutes from Auckland’s CBD. Start your new lifestyle in the beautiful rural town of Patumahoe.

Title has been issued! Get in quick to secure Lot 52 at Patumahoe Hill subdivision.

IDEAL PLAN

Weka Plan

House size: 176m2

Growing families will find flexibility and space in the Weka plan.

Four well appointed bedrooms including a master suite, complete with walk-in wardrobe and ensuite and two living areas provide options for entertaining and relaxation.

4 2 2 2 View listing
31

Why Build with Signature Homes

40-years in the making

Signature Homes is one of New Zealand’s longest serving home building companies with a focus on building quality and healthy homes while looking after our people and the environment. With Signature Homes, you are partnering with experts that you can trust, creating a home you’ll be proud of, with price-certainty.When people tell us why they choose Signature Homes, they tell us it’s our team.

You’re in safe hands

Our reliability sets us apart. When you build with Signature Homes, we offer the most extensive building guarantees in the country. Meaning you, and your home, are protected throughout your build journey and into the future.

World class customer satisfaction

A house is a big-ticket item, so it’s important that when you partner with us, the experience is seamless, enjoyable and satisfying. At Signature, we have your back every step of the way. Using gold standard feedback metrics that we constantly assess, analyse and seek to improve our ways of working to create the best possible experience for our customers. Our aim is to exceed our customer expectations, always.

Build for the future

When you build with Signature Homes your constriction emissions are mitigated by planting native trees for future generations to enjoy. Together we also raise vital fund to help save the kiwi.

Your Home Your Way

New Zealand owned and operated since our beginnings more than three decades ago, our dedication and commitment towards innovation, quality, and exceptional service spans generations. In addition to our extensive range of home designs, Signature Homes also provide New Zealand’s leading design and build service, with the ability to create your forever home starting from scratch.

32 SIGNATURE
BUILD YOUR NEW LIFESTYLE IN FRANKLIN
HOMES

This is your home, built your way, with all your aspirations, expectations, needs and budget at the forefront of everything we do.

33
We’re with you every step of the way

Comprehensive Guarantee Programme

No other building company in New Zealand can offer the same level of protection

NEW ZEALAND’S MOST
34 SIGNATURE HOMES BUILD YOUR NEW LIFESTYLE IN FRANKLIN

Since 2007, Signature Homes has offered its clients the most extensive and meaningful residential building guarantees in New Zealand.

Home Completion Guarantee

Your payments to us are 100% secure, ensuring that you receive Your Home, Your Way, on budget, in accordance with the specification in your Building Agreement.

Two Year Maintenance Guarantee

One of the best things about moving into a brand new home is the fact that you don’t have to fix up anything. You’ll receive a maintenance guarantee for two years, giving you more time to enjoy living in your home, rather than fixing it.

Ten Year Structural Guarantee

Your new home will stand the test of time.

Ten Year Weathertightness Guarantee

We have great faith in our builders and the products we use, so much so that we guarantee all our homes will be warm, dry and healthy to live in for years to come.

No Hidden Extras Guarantee

We believe the price we give you up front should be the same price you pay. We guarantee that we won’t sneak anything else into your price, meaning there are no nasty surprises when it comes to building your dream home.

Guaranteed Completion Date

When we tell you when you can move into your new home, we mean it – otherwise we pay! Knowing exactly which date you will be moving in makes it easier to organise the sale of your existing home, or the final date of your rental agreement as well as moving vehicles and the all-important house warming.

Total Price Guarantee

At Signature Homes, we guarantee that the price we give you when you sign your Building Agreement is the same price you will pay for your new home, excluding any authorised variations. No nasty budget blow-outs, no surprise costs and no scary extra fees.

35
36 SIGNATURE HOMES BUILD YOUR NEW LIFESTYLE IN FRANKLIN 0800 828 822 | signature.co.nz

Turn static files into dynamic content formats.

Create a flipbook
Issuu converts static files into: digital portfolios, online yearbooks, online catalogs, digital photo albums and more. Sign up and create your flipbook.