Signature Plus

Explore our most popular pre-designed plans from the Signature Plus collection
Explore our most popular pre-designed plans from the Signature Plus collection
Signature Homes is proud to offer New Zealand’s best building guarantees. We take great pride in our commitment to delivering exceptional guarantees that give our clients peace of mind during their build and well into the future.
Customer feedback is of utmost importance to us, that’s why we utilise a globally-recognised survey tool to gather invaluable client feedback. We’re proud to consistently surpass our industry’s average rating score, putting Signature Homes in the excellence category for customer satisfaction.
Through our partnership with Save the Kiwi, we are actively working to reduce the population of predators, thus creating a safer natural environment for kiwi and other native fauna to flourish.
In addition, we are committed to mitigating the carbon emissions produced during our construction process. For every new home we build, we gift 45 native trees to our partner, Trees That Count. We also encourage our clients to join us in safeguarding New Zealand’s future by gifting 24 native trees to mitigate their expected home maintenance emissions over 50 years.
We’re proud to be the largest Kiwi-owned home building brand. Achieving such a remarkable milestone requires an unwavering commitment to excellence. As time progresses, one thing remains constant: our relentless efforts to build homes that our clients can truly be proud to call their own.
Signature Homes has a proven track record for accurate pricing. With our expertise and the support of advanced technology, we offer fast and accurate pricing, providing our clients with complete confidence.
Signature Plus offers a contemporary range of plans with standout architectural features.
Signature Plus offers an exclusive collection of pre-designed house plans that seamlessly blend architectural elements with premium specifications. Each design harmonises aesthetics with functionality, featuring striking exteriors and well-thought-out interiors. Customise any Signature Plus plan to suit your preferences.
Signature Homes has partnered with leading suppliers to select materials and fixtures that offer innovative designs and showcase premium quality.
When you choose the Signature Plus range, you not only gain access to top-quality materials, but you also have the advantage of sourcing them from your local area or benefiting from our nationwide partnerships.
This dual-sourcing approach ensures that you have the convenience of selecting materials that are readily available near you while also enjoying the benefits of competitive pricing, and a broader selection from our national network of suppliers.
Signature Plus provides a diverse selection of high-quality exterior materials to cater to your unique preferences.
Whether you're drawn to the allure of authentic Mediterranean bricks or the timeless charm of weatherboard, our Signature Plus range of pre-designed plans empowers you to customise your home's exterior to reflect your style perfectly.
Brilliant brick
Clay bricks require no additional treatments for aesthetics or durability, as their colour is fired in, ensuring lifelong vibrancy and minimal maintenance. Their sustainable composition, derived from organic minerals found abundantly in clay, makes them an environmentally friendly and economically sound choice for your home’s exterior.
Choose from a variety of cladding options such as Cedar Cladding, Vulcan Cladding by Abodo, Linea Oblique by James Hardie, and plank weatherboard.
Elevate your home's charm by combining different cladding profiles using timber and brick, creating a distinctive exterior that effortlessly enhances its street appeal.
The kitchen is where the heart of your home truly resides, and it's an exciting part of the home design journey.
Our local kitchen design team and interior designer are eager to chat with you about the latest trends and, more importantly, your "must-haves". We'll work together to craft a kitchen that perfectly matches your style and preferences. So, what are you envisioning for your dream kitchen?
Enhance your space with Engineered Stone Benchtops, seamlessly combining luxury and durability. These countertops provide striking aesthetics and simple maintenance for a refined home.
Laminate material has become an increasingly popular choice. Its design mimics stone, wood, and stainless steel benchtop finishes, offering a graceful look at a lower price. Plus, laminate is eco-friendly, ensuring a responsible choice for your home and the environment.
Explore wood-inspired cabinetry with Melteca low-pressure melamine - a sustainable material that offers various colours and finishes. Achieve a classic look at a fraction of the cost of real timber.
The Signature Plus bathroom range offers flexibility with options such as a freestanding bath or a built-in bath.
Enjoy choosing from our diverse range of statement tiles, premium tapware, elegant basins, and stylish vanities.
Experience the Signature Plus range, where modern fittings and appliances enhance your daily life.
Our curated selection features cutting-edge designs from top suppliers that simplify your routine and enhance comfort. Embrace innovative solutions for a more effortless and enjoyable living experience.
Many clients opt for our Signature Plus range because of its flexibility.
Customisation is at the core of our Signature Plus range, empowering you to add special touches like feature tiles with different textures and colours, creating lively and personalised spaces.
Choose from high-quality real timber-look laminate floors, easy-to-maintain tiling, elegant polished concrete, and innovative synthetic blend carpets.
Synthetic carpets are the ideal choice for active households and pet owners, thanks to their effortless maintenance and exceptional durability.
All the beauty of a real timber-look floor, without the maintenance and at a fraction of the cost. With today’s technology, a good laminate floor can even fool the professionals.
Tile floors make a practical and appealing choice for kitchens, seamlessly complementing various decor styles. Tiles are tough, resilient, and naturally resistant to water and stains. Plus, they're pet and child-friendly.
Polished concrete floors are an excellent option for kitchen, living and bathroom areas offering durability, sleek aesthetics, and easy maintenance. Their resistance to stains, spills, and wear, coupled with their natural thermal mass, make them a cost-effective and stylish choice.
Create an inviting entrance that welcomes you each day.
A well-designed home entrance sets the tone for the entire living space, welcoming residents and guests alike with a sense of warmth and hospitality. It serves as a crucial first impression, reflecting the overall style and personality of the household.
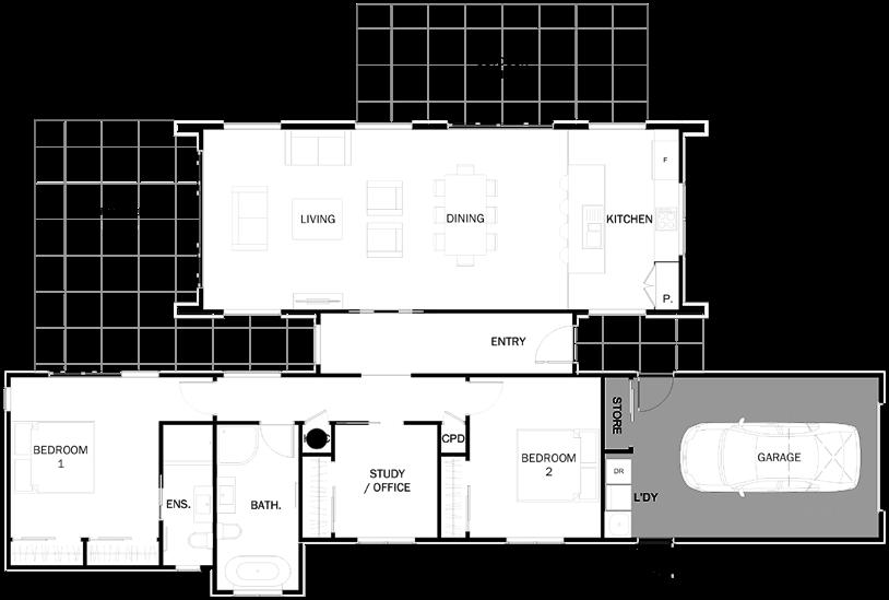
The Whenuapai floorplan seamlessly connects the kitchen, dining, and living areas, integrating them with the outdoor space. Upstairs, a central landing leads to the main bathroom, a large study, and three double bedrooms, including the front-facing master suite with a walk-in wardrobe and a luxuriously spacious ensuite.
Enjoy comfort and value with the Kai Iwi build, a design that is sure to impress. Clear definition between the social and sleeping spaces, makes living easy in the Kai Iwi.
The Benmore design features modern must-haves paired with a practical layout. The designer kitchen carries through to the dining and living areas creating a seamless entertaining space.
Designed with modern living in mind, the Hawea features considerate spaces for everyone to relax or entertain in. The centrally located kitchen forms the hub of this immaculate home, ideal for bringing family together.
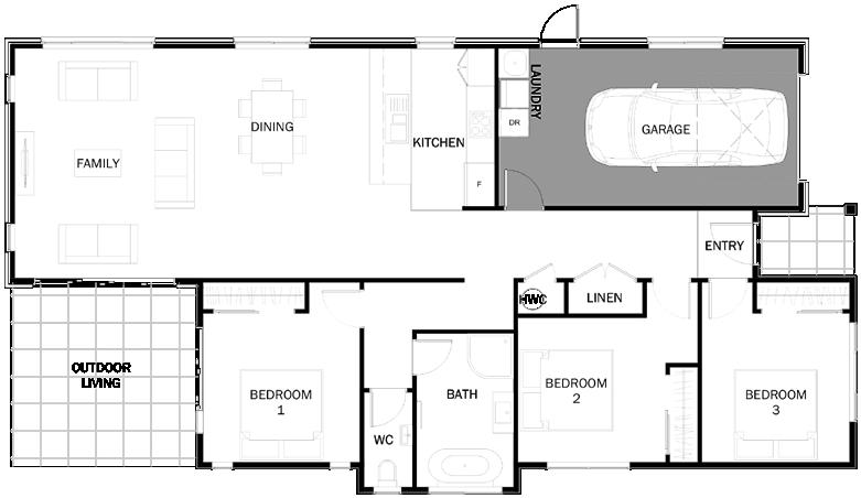
The Hobsonville floorplan offers spacious living with a study, walk-in laundry, open-plan social spaces, and two master suites with walk-in wardrobes and ensuites. Upstairs features a large bathroom and two double bedrooms.
Simple, elegant and modern, the Manapouri was thoughtfully designed for family living with a stylish twist. The large sliders optimise an indoor-outdoor flow leading out to a stunning covered outdoor dining area - an entertainer's delight!
The Ellemere plan offers a grand entrance and instant appeal. The entry opens into a vast family and dining area with a second living room tucked away. The designer kitchen, complete with a butler's pantry, is the hub of this thoughtfully planned home.
The Explorer design features four innovatively placed double bedrooms, including the master which features an ensuite bathroom and walk-in wardrobe. An integrated outdoor living area cleverly extends the main living space, perfect for entertaining family and friends.
As soon as you step foot in the Tomarata you are greeted by a light and bright home. The entryway opens to a view of the stunning outdoor living area which is cocooned by all rooms in the house. The Tomarata offers two distinct zones with the open-plan social areas.
Signature Homes is proud to offer New Zealand’s best building guarantees. We take great pride in our commitment to delivering exceptional guarantees that give our clients peace of mind during their build and well into the future.
We understand that building a new home is a significant investment. That’s why we assure you that when you sign a contract to build with Signature Homes, you will have peace of mind knowing that the price specified in your building agreement will remain fixed with no hidden extras.
Our Home Completion Guarantee provides 100% protection. In the unlikely scenario that our local Signature Homes franchise cannot complete your home, our Home Completion Guarantee will ensure your home is finished per the terms and conditions outlined in your Signature Homes Building Agreement.
Relaxing in your new home is even more comforting knowing you’re covered for non-structural defects for two years. You can rest assured that such defects are unlikely, thanks to our quality assurance programme that we carry out throughout the construction process.
After pouring your concrete slab, we will provide you with a completion date. Having a set move-in date makes it easier for you to plan the sale of your current home or the final date of your rental agreement, arrange for moving trucks and the all-important housewarming celebration.
Our commitment to delivering quality homes is reflected in our Ten-Year Structural Guarantee. In the unlikely event of structural defects, our guarantee provides 100% coverage, ensuring your investment is fully protected.
We have absolute confidence in both our builders and the quality of materials we use. In fact, we are so confident that we offer a Ten-Year Weathertightness Guarantee that all our homes will provide a comfortable, dry and healthy living environment well into the future.
All guarantees are subject to the Residential Indemnity Guarantee (RIL) terms and conditions.
* Our Fixed Price and No Hidden Extras guarantees are subject to the terms and conditions outlined in your Signature Homes Building Agreement.
National Support Office
West & North-West Auckland
Botany & Manukau
Papakura & Franklin
Waikato
Northland
Rodney & North Shore
Nelson & Tasman
Taranaki
Bay of Plenty & Coromandel
Christchurch North
Christchurch South
Queenstown Lakes & Central Otago
Palmerston North & Manawatu
Greater Wellington