Popular House Plans Rodney & North Shore

The first ever Signature Homes franchise, this business is now run by Ryan Yearsley, whose breadth of professional experience in construction unites the team to provide unparalleled service to clients building a new home in Rodney & North Shore.
Whether you’re looking for a House and Land Package in Rodney & North Shore or you’re a landowner seeking a design and build solution, Ryan’s expert team will take you through the new home building process step by step. With Signature Homes, it’s all taken care of under one roof.
Our New Home Consultants (NHCs) ask a lot of questions because their job is to find the perfect build solution for you, at the right price for your budget. Ask them questions too, our NHCs will always find you an answer and they are with you every step of the way.
Our experienced architects, designers and estimators turn your dream into conceptual drawings and 3D images. They’ll show you a range of plans from our collections that could work on your site or if you’re after something a little different, talk you through the process of designing your new home from scratch.
Don’t worry if you don’t have an eye for interior design – when you build with us you have access to your own design team, including a colour consultant who will help guide you through these key decisions.
Once your build is locked down and signed off, your Building Project Manager (BPM) will manage the tradespeople on your site and all the requirements for the remainder of your build, keeping it on time and on budget, right up until you move in.
The hard work is done for you with our Value range of plans, designed with simplicity and cost-efficiency in mind.
All Signature Homes' pre-designed plans can be customised, allowing you to inject your personality and style through colour, furnishings and styling.
Built using only quality materials from leading NZ suppliers, these modern, warm and low- maintenance homes promise everything you are looking for in a new build.
Build this plan from $505,000
House size: 122m2
The Rimu house plan is ideal for families, the perfect fusion of style and functionality. Providing three generously sized bedrooms, the master bedroom features a large walk in robe and ensuite.
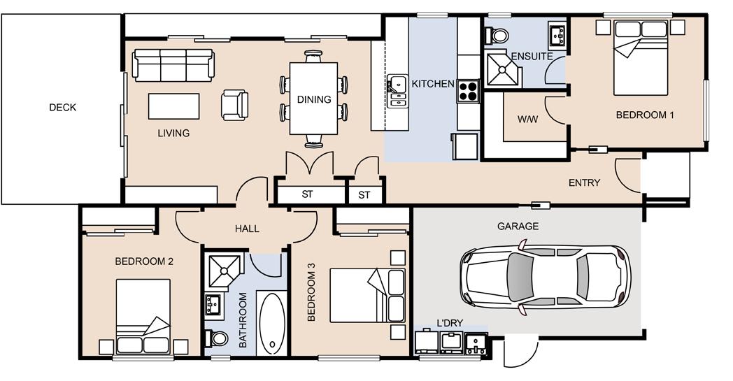
Build this plan from $515,000
House size: 128m2
The Karaka house plan presents exceptional value and will appeal to those downsizing, but still want the extra space for friends and family to visit. Open-plan living sets the tone for this home, with a natural flow from the kitchen to the outdoor living space.
Build this plan from $520,000
House size: 133m2
Offering great comfort and a practical floorplan, the Milldale combines a traditional layout paired with a thoughtful use of space. The design includes three double bedrooms, two bathroom and a spacious open-plan living area which opens onto generous outdoor living.
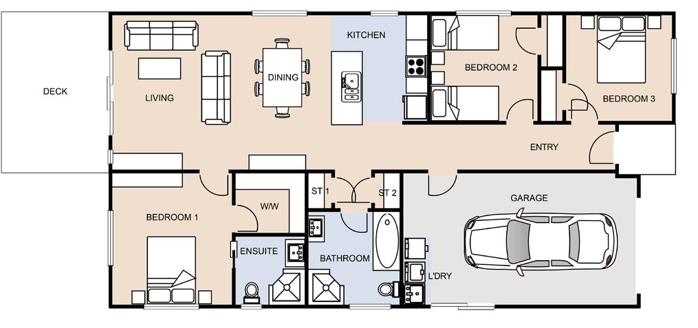
Build this plan from $613,000
House size: 185m2
Enjoy relaxed living with the Tane plan, featuring four spacious bedrooms thoughtfully layed out. The modern open plan kitchen, dining and living area perfectly embraces indoor-outdoor flow.
Build this plan from $865,000
House size: 234m2
Maximise your section with our four-bedroom, two-storey Okura plan. Downstairs you'll find open plan living and four generous bedrooms upstairs, and a family sized bathroom.
Signature Homes' architectural range is a design-led offering with many specification options. Our expert design teams regularly update our material choices to keep in touch with the latest trends and product innovations.
All plans can be customised to suit your budget and lifestyle and are the perfect starting point to create your dream home.
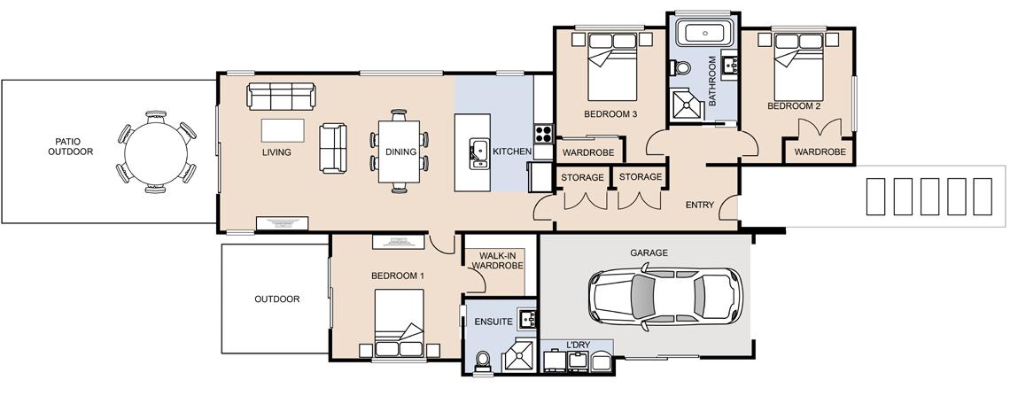
Build this plan from $672,000
House size: 199m2
This dual pavilion home provides 199sqm of effortlessly light, bright, and beautifully sun-soaked living spaces. Enjoy three thoughtfully placed bedrooms, separate media room, a spacious open-plan kitchen, dining, and living room that flows out onto a stunning louvered pergola and deck area – perfect for entertaining with friends and family.
Build this plan from $945,000
House size: 250m2
The four bedroom Pyrus plan is the perfect entertainers home, ideal for a modern family lifestyle. Featuring a thoughtfully designed layout and all of life's modern must haves.
Build
House size: 255m2
Picture windows and full-height glazing create both a stunning exterior and interior. In addition, the extended wings create several outdoor spaces for the family to choose from depending on the direction of the wind and sun.
House size: 265m2
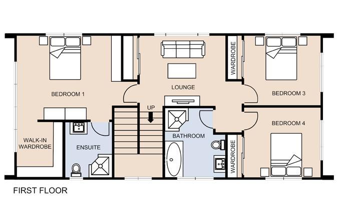
Our Papamoa Design & Build plan embraces outdoor living, where spaces flow with ease to the outdoors. This architecturally inspired, two-level oasis features four bedrooms and 2.5 bathrooms; the functional floorplan makes clever use of space with two living areas and multiple access points to the outdoors.
Gardner
House size: 284m2
Spread over two wings, this barn-inspired 283.7m2 home features four double bedrooms, two living spaces, a study nook and a double internal access garage.
The modern barn look is achieved through soaring cathedral style ceilings, open plan living spaces, an abundance of sliding doors and large windows to welcome the outdoors inside.
Our Robinson plan is the epitome of a modern farmhouse, and those looking for a premium lifestyle build will love the design features of this plan. The timeless design is defined by two wings, with open plan spaces and a seamless connection to the outdoors. An abundance of windows invites the outdoors in each day. The soft white interiors with subtle shades of greens create a calming effect throughout the home, enhancing the semi-rural lifestyle.
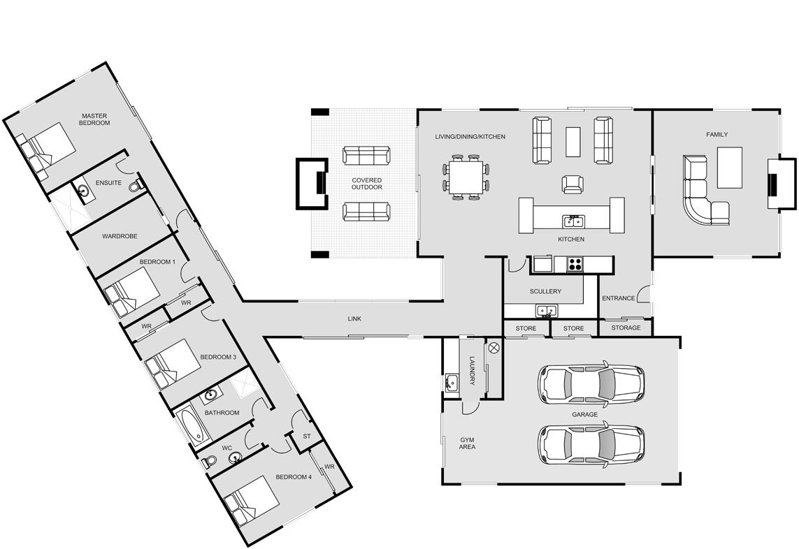
Our Karere plan is ideal for those wanting a standout family home with all of life's luxuries. Large windows with multiple skylights create a gorgeous light-filled home. Interior details include a bold stairwell with a feature wall, a designer kitchen with impressive scullery, a master bedroom covering the entire upstairs area. The home feautures four bedrooms, two bathrooms, a designer kitchen with large scullery, two living spaces, open planning kitchen and living and a gym.
Signature Homes is one of New Zealand’s longest serving home building companies with a focus on building quality and healthy homes while looking after our people and the environment.
With Signature Homes, you are partnering with experts that you can trust, creating a home you’ll be proud of, with price-certainty.When people tell us why they choose Signature Homes, they tell us it’s our team.
Our reliability sets us apart. When you build with Signature Homes, we offer the most extensive building guarantees in the country. Meaning you, and your home, are protected throughout your build journey and into the future.
A house is a big-ticket item, so it’s important that when you partner with us, the experience is seamless, enjoyable and satisfying. At Signature, we have your back every step of the way.
Using gold standard feedback metrics that we constantly assess, analyse and seek to improve our ways of working to create the best possible experience for our customers. Our aim is to exceed our customer expectations, always.
When you build with Signature Homes your construction emissions are mitigated by planting native trees for future generations to enjoy. Together we also raise vital fund to help save the kiwi.
New Zealand owned and operated since our beginnings more than three decades ago, our dedication and commitment towards innovation, quality, and exceptional service spans generations.
In addition to our extensive range of home designs, Signature Homes also provide New Zealand’s leading design and build service, with the ability to create your forever home starting from scratch.
This is your home, built your way, with all your aspirations, expectations, needs and budget at the forefront of everything we do.
No other building company in New Zealand can offer the same level of protection
Since 2007, Signature Homes has offered its clients the most extensive and meaningful residential building guarantees in New Zealand.
Home Completion Guarantee
Your payments to us are 100% secure, ensuring that you receive Your Home, Your Way, on budget, in accordance with the specification in your Building Agreement.
Two Year Maintenance Guarantee
One of the best things about moving into a brand new home is the fact that you don’t have to fix up anything. You’ll receive a maintenance guarantee for two years, giving you more time to enjoy living in your home, rather than fixing it.
Ten Year Structural Guarantee
Your new home will stand the test of time.
Ten Year Weathertightness Guarantee
We have great faith in our builders and the products we use, so much so that we guarantee all our homes will be warm, dry and healthy to live in for years to come.
No Hidden Extras Guarantee
We believe the price we give you up front should be the same price you pay. We guarantee that we won’t sneak anything else into your price, meaning there are no nasty surprises when it comes to building your dream home.
Guaranteed Completion Date
When we tell you when you can move into your new home, we mean it – otherwise we pay! Knowing exactly which date you will be moving in makes it easier to organise the sale of your existing home, or the final date of your rental agreement as well as moving vehicles and the all-important house warming.
Total Price Guarantee
At Signature Homes, we guarantee that the price we give you when you sign your Building Agreement is the same price you will pay for your new home, excluding any authorised variations. No nasty budget blow-outs, no surprise costs and no scary extra fees.