Popular House Plans Christchurch South

Signature Homes Christchurch South is one of the most sought-after and respected builders in Christchurch, where no new build project is too big or too small.
Owners Rhys Gould and Kathryn Mitchell bring decades of new home experience to the region. As lifelong Christchurch residents, the duo utilise their varied business backgrounds to offer a full-service building solution that is second to none.
Whether you’re looking for a House and Land Package in Christchurch or you’re a landowner seeking a Design and Build solution, Rhys and Kathryn’s expert team will take you through the new home building process step by step. At Signature Homes, it’s all taken care of under one roof.
Our New Home Consultants (NHCs) ask a lot of questions because their job is to find the perfect build solution for you, at the right price for your budget. Ask them questions too, our NHCs will always find you an answer and they are with you every step of the way.
Our experienced architects, designers and estimators turn your dream into conceptual drawings and 3D images. They’ll show you a range of plans from our collections that could work on your site or if you’re after something a little different, talk you through the process of designing your new home from scratch.
Don’t worry if you don’t have an eye for interior design – when you build with us you have access to your own design team, including a colour consultant who will help guide you through these key decisions.
Once your build is locked down and signed off, your Building Project Manager (BPM) will manage the tradespeople on your site and all the requirements for the remainder of your build, keeping it on time and on budget, right up until you move in.
The hard work is done for you with our Value range of plans, designed with simplicity and cost-efficiency in mind.
All Signature Homes' pre-designed plans can be customised, allowing you to inject your personality and style through colour, furnishings and styling.
Built using only quality materials from leading NZ suppliers, these modern, warm and lowmaintenance homes promise everything you are looking for in a new build.
Build this plan from $265,351
House size: 116m2
Good things come in small packages, and the Tui does not disappoint. This plan features two spacious double bedrooms, an open-plan kitchen, living and dining area and a single internal access garage, all in 116m2.
Build this plan from $277,148
House size: 125m2
There's so much on offer with our cleverly designed three-bedroom Rifleman plan. Designed to maximise space, the plan features three well-proportioned bedrooms, with the added benefit of an ensuite in the master bedroom. You'll also find a study nook in the open plan kitchen living and dining space, making working from home a breeze.
Build this plan from $277,955
House size: 130m2
The three-bedroom Kingfisher plan offers low maintenance living and easy to navigate layout where the open plan living creates a lovely lightfilled home that connects to the outdoors. The master bedroom features an ensuite and walk-in wardrobe. Each bedroom is generous in size, making the Kingfisher an ideal family home.
Build this plan from $297,977
Rifleman
House size: 141m2
The three-bedroom Rifleman plan makes great use of space at every turn. Open plan living helps to create more space throughout the home, allowing for bonus areas such as a study nook. Extra features include a generous family bathroom and a large master bedroom.
Build this plan from $305,639
House size: 143m2
The three-bedroom Snipe plan makes great use of space at every turn. Open plan living helps to create more space throughout the home, allowing for bonus areas such as a study nook. Extra features include a generous family bathroom and a large master bedroom.
Build this plan from $308,577
House size: 145m2
Our three-bedroom Hummingbird plan is a compact home with all the modern features. The cleverly designed floorplan allows for generously proportioned bedrooms and living spaces.
Build this plan from $321,970
Wren
House size: 152m2
Our Wren three-bedroom plan offers a functional layout ideal for growing families with a separate living area, study nook, and large family bathroom.
Positioned at the back of the home, the master bedroom promises a tranquil retreat separated from the rest of the home.
Build this plan from $334,354
House size: 162m2
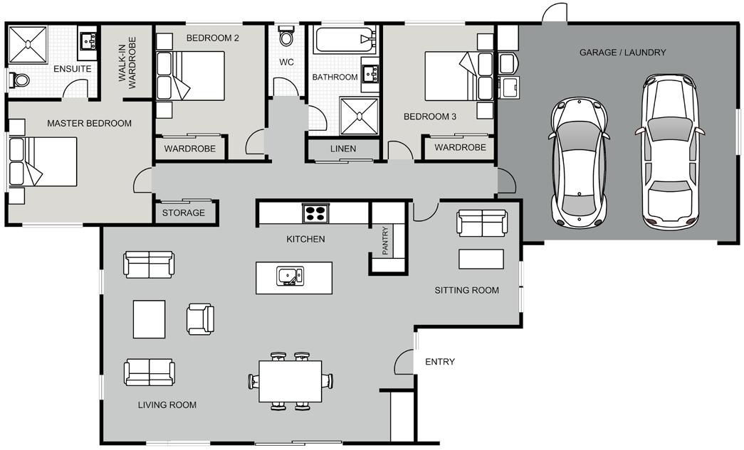
The standout design feature of our Bellbird fourbedroom house plan is the spacious kitchen, living and dining spaces that are framed by ample windows, and a seamless connection to the outdoors.
The fourth bedroom is tucked away from the other three main bedrooms, making it an ideal guest bedroom or study.
Mel and Jay’s section is slightly evelated which allowed for a bit of a view, their new build needed to make the most of this opportunity, and allow for ample space to enjoy the outdoors.
The low maintenance lifestyle is further enhanced with polished concrete floors. Mel and Jay worked with Signature Homes's colour consultant to introduce a neutral palette that wouldn't go out of trend, making the property attractive for resale.
House size: 184m2
The Taranaki pair knew they wanted to keep things simple to stick to their budget but also ensure the home had room to grow. They settled on the popular Rosella after experiencing it in person at a showhome, with some added personal touches.
Design flair was added to Hayden & Amanda’s new build with a stunning dark kitchen and bright orange front door, plus sections of James Hardie Linea weatherboard to break up the home’s brick exterior.
When it came to the floorplan, Carl knew he loved the aesthetic and feel of an H-shape layout, he opted for a modified-Tomorata plan from Signature Homes Pacific Collection.
The plan offered a clever design with all the bells and whistles, including two-living spaces, a study and three generous bedrooms.
Their plan
Shell and Lee worked with their Signature Homes design team to tweak the plan adding in a separate laundry and extending the open plan living space. The addition of extended sliding doors and full-length windows captures the indoor-outdoor flow even more so.
Shell and Lee made adaptations to their plan, such as tilting the position of the house, ensuring their outdoor living was centred around the view.
Signature Homes is one of New Zealand’s longest serving home building companies with a focus on building quality and healthy homes while looking after our people and the environment.
With Signature Homes, you are partnering with experts that you can trust, creating a home you’ll be proud of, with price-certainty.When people tell us why they choose Signature Homes, they tell us it’s our team.
Our reliability sets us apart. When you build with Signature Homes, we offer the most extensive building guarantees in the country. Meaning you, and your home, are protected throughout your build journey and into the future.
A house is a big-ticket item, so it’s important that when you partner with us, the experience is seamless, enjoyable and satisfying. At Signature, we have your back every step of the way.
Using gold standard feedback metrics that we constantly assess, analyse and seek to improve our ways of working to create the best possible experience for our customers. Our aim is to exceed our customer expectations, always.
When you build with Signature Homes your construction emissions are mitigated by planting native trees for future generations to enjoy. Together we also raise vital fund to help save the kiwi.
New Zealand owned and operated since our beginnings more than three decades ago, our dedication and commitment towards innovation, quality, and exceptional service spans generations.
In addition to our extensive range of home designs, Signature Homes also provide New Zealand’s leading design and build service, with the ability to create your forever home starting from scratch.
This is your home, built your way, with all your aspirations, expectations, needs and budget at the forefront of everything we do.
No other building company in New Zealand can offer the same level of protection
Since 2007, Signature Homes has offered its clients the most extensive and meaningful residential building guarantees in New Zealand.
Home Completion Guarantee
Your payments to us are 100% secure, ensuring that you receive Your Home, Your Way, on budget, in accordance with the specification in your Building Agreement.
Two Year Maintenance Guarantee
One of the best things about moving into a brand new home is the fact that you don’t have to fix up anything. You’ll receive a maintenance guarantee for two years, giving you more time to enjoy living in your home, rather than fixing it.
Ten Year Structural Guarantee
Your new home will stand the test of time.
Ten Year Weathertightness Guarantee
We have great faith in our builders and the products we use, so much so that we guarantee all our homes will be warm, dry and healthy to live in for years to come.
No Hidden Extras Guarantee
We believe the price we give you up front should be the same price you pay. We guarantee that we won’t sneak anything else into your price, meaning there are no nasty surprises when it comes to building your dream home.
Guaranteed Completion Date
When we tell you when you can move into your new home, we mean it – otherwise we pay! Knowing exactly which date you will be moving in makes it easier to organise the sale of your existing home, or the final date of your rental agreement as well as moving vehicles and the all-important house warming.
Total Price Guarantee
At Signature Homes, we guarantee that the price we give you when you sign your Building Agreement is the same price you will pay for your new home, excluding any authorised variations. No nasty budget blow-outs, no surprise costs and no scary extra fees.