1-9 Cultural W TOC

Page 1


Marketing Support Program – FY 2025-26

Table of Contents- click on an item below to be redirected to the first page in the packet for that item.

Cultural events

Space Coast Super Boats/Thunder on CB

National Air Sea Space/CB Air Show

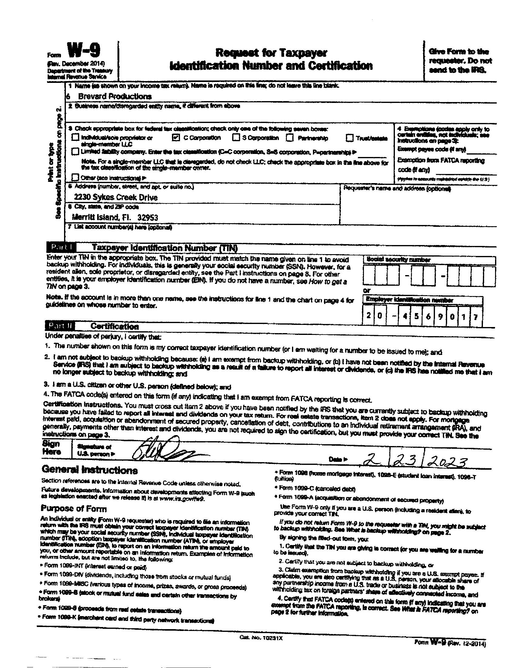
Brevard Productions/Space Coast State Fair

Merritt Island Wildlife Refuge

Brevard Regional Arts Group/HenegarCenter

Museum of Dinosaurs and Ancient Cultures

Valiant Air Command

Titusville Playhouse

Melbourne Main Street

Space Coast Super Boats/Thunder on Cocoa Beach

Return to Table of Contents

Tourism Development Office

FY 2025-2026 Marketing Support Program

Application Packet checklist

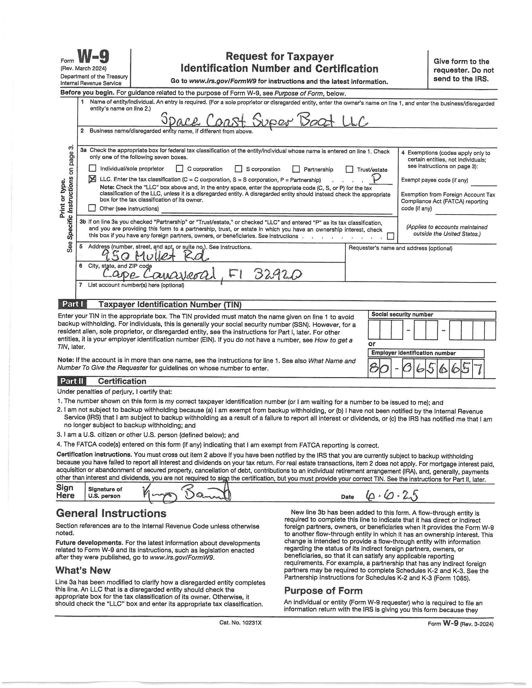
Applicant Organization Name: Space Coast Super Boats

Applicant Event Name: Thunder on Cocoa Beach

Yes No Comment

1. Completed application X

2. Copyof IRSArticlesof X Incorporation- (if applicable)

3. Copy of IRS Determination letter X NIA - (ifapplicable)

4. Copyof SunBiz.org (ifapplicable) X

5. Copyof 990 (if applicable) X N/A

6. CopyofcompletedW-9 (March X 2024)

7. Income/Expenseworksheet X (required for allapplicants)

8. Copy of theApplicantchecklist X

This application meets theminimum requirement of 5,001 out-of-countyattendees (Cultural)or 250 room nights (Sports).

NO

All documents have been submitted, reviewedand/or addressedin the comments.

FY 2025-2026 Marketing Support Program application

Response ID:70 Data

2.(untitled)

1. I have read and understand the policies/procedures within the FY 2025-2026 Marketing Support Program Criteria.

Signature of: Kerry Bartlett

3.(untitled)

2. Which best describes your event/year-round programming? Cultural 4.(untitled)

3. ORGANIZATION INFORMATION

Name of organization hosting event/year-round programming Space Coast Super boat LLC

Organization address 950 Mullet rd State FL City Cape Canaveral Zip 32920

Primary contact name Kerry Bartlett

Primary contact phone number 3218635228

Primary contact email kerry.beachline@gmail.com

Secondary contact name Michael Schwarz

Secondary contact phone number 3217844533

Secondary contact email fishlipsbar@aol.com

Organization website address 610 Glen Cheek Dr

5.(untitled)

4. Which best describes your organization? For profit, LLC, Inc., etc.

6.(untitled)

5. What is your Federal Employee ID number? 80-0656657

7.(untitled)

6. Are you completing this application for an event or year-round programming?

Event - single or multi-day festival, surfing contest, running race, Main Street organizations, etc.

8.(untitled)

7. EVENT INFORMATION - #1

Name of event Thunder on Cocoa Beach

Event website address (if different from organization website) thunderoncocoabeach.com

Event location Port Canaveral/Cocoa Beach

8. What is the first date of your event? 05/14/2026 10.(untitled)

9. In total, how many days will your event be held? 4 11.(untitled)

10. Do you have a second event? No 12.(untitled)

1. EVENT INFORMATION - #2 Name of event

website address (if different from organization website)

13.(untitled)

What is the first date of your event?

14.(untitled)

In total, how many days will your event be held?

15.(untitled)

Do you have a third event?

16.(untitled)

5. EVENT INFORMATION - #3 Name of event

Event website address (if different from organization website)

Event location

17 (untitled)

What is the first date of your event?

18. (untitled)

In total, how many days will your event be held?

19. (untitled)

11. What types of marketing do you plan to do for this event?

Billboards

Digital advertising (banner ads, etc.)

Radio

Social media (Facebook, Instagram, YouTube, etc )

TV/Video

20 (untitled)

What types of marketing do you plan to do for your year-round programming?

21 (untitled)

12 What are your social media handles?

Facebook : Thunder on Cocoa Beach offshore race

Instagram : Thunder on Cocoa Beach

YouTube : Thunder on Cocoa Beach

22. (untitled)

13. What hashtags do you currently use?

#thunderoncocoabeach

23 (untitled)

Upload a copy of your organization's IRS Determination letter.

24.(untitled)

Upload a copy of your organization's 990 form.

25.(untitled)

14. Upload a copy of your organization's Articles of Incorporation.

2025_Sunbiz_TOCB.pdf

26.(untitled)

15. If you are a Florida organization, please upload a copy of your SunBiz.com account associated with your organization.

2025_Sunbiz_TOCB.pdf

27.(untitled)

16. Upload your completed W-9 form. W9_TOCB.pdf

28.(untitled)

17. Upload your completed Event Income/Expense report. 2025_Thunder_Final_.pdf

29.(untitled)

18. Upload your completed Checklist.

2025_TDC_Checklist.pdf

30.(untitled)

19. ATTESTATION

I attest that all information in this questionnaire is true and correct. I further attest that will comply with the requirements set forth, if awarded support.

Signature of: Kerry Bartlett

31.Thank You!

New Send Email

Jun 07, 2025 13:52:46 Success: Email Sent to: Deborah.Webster@VisitSpaceCoast.com; Terrence.Parks@VisitSpaceCoast.com

Income/Expense Report

Marine Launch

$400.00 but we are still settling things from our May 2025 event which will raise the Island craft beach chair LWP $2,640.00 $2,400.00 $240.00 expenses but not increase the income. 6.30.2025.

barricades/tents/chairs $27,288.80 $24,808.00 $2,480.80

Media/sound beach chalet

Fishlips break down staff

CCB Basefall, Lacrosse, etc.

Right Coast merch

commission Explorer spons

commission Explorer bonus

banners, print programs

Pat Kaury labor

$10,555.60 $9,596.00 $959.60

$3,428.70 $3,117.00 $311.70

$2,200.00 $2,000.00 $200.00

$7,648.48 $6,953.16 $695.32

$34,333.75

$1,100.00 $1,000.00 $100.00

$6,669.30 $6,063.00 $606.30

$550.00

shirts $1,805.82

$164.17 wristbands/ tap and go $4,092.00

G Daddy Domain renewals $33.18 $30.16

National Air Sea Space/CB Air Show

Return to Table of Contents

Tourism Development Office

FY 2025-2026 Marketing Support Program

Application Packet checklist

Applicant Organization Name: National Air Sea Space Foundation

Applicant Event Name: Cocoa Beach Air Show

Yes No Comment

1. Completed application X

2. Copyof IRSArticlesof X N/A Incorporation- (if applicable)

3. Copyof IRS Determinationletter X - (ifapplicable)

4. Copyof SunBiz.org (ifapplicable) X

5. Copyof 990 (if applicable) X

6. Copyof completed W-9 (March X 2024)

7. Income/Expenseworksheet X (required forallapplicants)

8. Copyof theApplicantchecklist X

This application meets theminimumrequirement of 5,001 out-of-countyattendees (Cultural} or 250roomnights (Sports}.

NO

All documents have been submitted, reviewed and/or addressed in the comments.

FY 2025-2026 Marketing Support Program application

Response ID:51 Data

2.(untitled)

1. I have read and understand the policies/procedures within the FY 2025-2026 Marketing Support Program Criteria.

Signature of: Dawson Pritchett

3.(untitled)

2. Which best describes your event/year-round programming? Cultural 4.(untitled)

3. ORGANIZATION INFORMATION

Name of organization hosting event/year-round programming National Air Sea and Space Foundation

Primary contact name Dawson Pritchett

Primary contact phone number

Primary contact email Dawson@air.show

Secondary contact name Bryan Lilley

Secondary contact phone number 321-368-3808

Secondary contact email Bryan@air.show

Organization website address www.air.show

5.(untitled)

4. Which best describes your organization? 501(C)(3)

6.(untitled)

5. What is your Federal Employee ID number? 27-3459716

7.(untitled)

6. Are you completing this application for an event or year-round programming?

Event - single or multi-day festival, surfing contest, running race, Main Street organizations, etc.

8.(untitled)

7. EVENT INFORMATION - #1

Name of event Air Dot Show Cocoa Beach

Event website address (if different from organization website) air.show/cocoabeach

Event location Cocoa Beach, show center at Lori Wilson Park

8. What is the first date of your event? 04/11/2026

10.(untitled)

9. In total, how many days will your event be held? 2 11.(untitled)

10. Do you have a second event? No

12.(untitled)

1. EVENT INFORMATION - #2 Name of event Event website address (if different from organization website) Event location

13.(untitled)

What is the first date of your event?

14.(untitled)

In total, how many days will your event be held?

15.(untitled)

Do you have a third event?

16.(untitled)

5. EVENT INFORMATION - #3 Name of event

Event website address (if different from organization website)

Event location

17.(untitled)

What is the first date of your event?

18.(untitled)

In total, how many days will your event be held?

19.(untitled)

11. What types of marketing do you plan to do for this event?

Digital advertising (banner ads, etc.)

Search advertising (pay-per-click, etc.)

Social hashtags

Social media (Facebook, Instagram, YouTube, etc.)

TV/Video

Other - Please be specific.....: Email Marketing

20.(untitled)

What types of marketing do you plan to do for your year-round programming?

21.(untitled)

12. What are your social media handles?

Facebook : @cocoaBeachAirShow & @AirDotShow

Instagram : @cocoaBeachAirShow & @AirDotShow

YouTube : @AirDotShow

22.(untitled)

13. What hashtags do you currently use?

#SpaceCoast, #CocoaBeach, #CocoaBeachAirShow, #AirDotShow

23.(untitled)

14. Upload a copy of your organization's IRS Determination letter.

NASSF-IRS_Cert_of_Status.pdf

24.(untitled)

15. Upload a copy of your organization's 990 form.

NASSFI_US_2023_990_Tax_Return.pdf

25.(untitled)

Upload a copy of your organization's Articles of Incorporation.

26.(untitled)

16. If you are a Florida organization, please upload a copy of your SunBiz.com account associated with your organization.

Sunbiz_National_Air_Sea_Space_Foundation.pdf

27.(untitled)

17. Upload your completed W-9 form.

NASSF_Signed_W-9.pdf

28.(untitled)

18. Upload your completed Event Income/Expense report. Event_Income_Expense_Report_template_FY25-26.pdf

29.(untitled)

19. Upload your completed Checklist. Cocoa_Grant_applicant_checklist_4.30.2025.pdf

30.(untitled)

20. ATTESTATION

I attest that all information in this questionnaire is true and correct. I further attest that will comply with the requirements set forth, if awarded support.

Signature of: Dawson Pritchett

31.Thank You!

New Send Email

Jun 05, 2025 12:41:35 Success: Email Sent to: Deborah.Webster@VisitSpaceCoast.com; Terrence.Parks@VisitSpaceCoast.com

DepartmentofState / DivisionofCorporations / SearchRecords / SearchbyEntityName /

DetailbyEntityName

FloridaNotForProfitCorporation NATIONALAIR,SEAANDSPACEFOUNDATION,INC.

DocumentNumber

FEI/EINNumber

DateFiled State Status

FilingInformation N10000007708 27-3459716 08/13/2010 FL ACTIVE

PrincipalAddress

5700NorthHarborCityBlvd Suite280 Melbourne,FL32940

Changed:03/22/2022

MailingAddress

POBox360857 Melbourne,FL32936

Changed:01/08/2017

RegisteredAgentName&Address

NASH,CHARLESI 440SouthBabcockStreet Melbourne,FL32901

NameChanged:02/23/2025

AddressChanged:02/23/2025

Officer/DirectorDetail

Name&Address

TitleDIR LILLEY,BRYANS POBox360857 Melbourne,FL32936

TitleDIR

HEARD,MARSHALL POBox360857

Melbourne,FL32936

TitleDirector Griffin,Gwen POBox360857

Melbourne,FL32936

TitleDirector Plans,Barry POBox360857

Melbourne,FL32936

AnnualReports

ReportYear FiledDate 2023 01/23/2023 2024 04/02/2024 2025 02/23/2025

DocumentImages

02/23/2025--ANNUALREPORT ViewimageinPDFformat

04/02/2024--ANNUALREPORT ViewimageinPDFformat

01/23/2023--ANNUALREPORT ViewimageinPDFformat

03/22/2022--ANNUALREPORT ViewimageinPDFformat

01/14/2021--ANNUALREPORT ViewimageinPDFformat

01/12/2020--ANNUALREPORT ViewimageinPDFformat

03/18/2019--ANNUALREPORT ViewimageinPDFformat

01/24/2018--ANNUALREPORT ViewimageinPDFformat

01/08/2017--ANNUALREPORT ViewimageinPDFformat

03/25/2016--ANNUALREPORT ViewimageinPDFformat

01/06/2015--ANNUALREPORT ViewimageinPDFformat

01/26/2014--ANNUALREPORT ViewimageinPDFformat

01/20/2013--ANNUALREPORT ViewimageinPDFformat

07/25/2012--ANNUALREPORT ViewimageinPDFformat

09/22/2011--ANNUALREPORT ViewimageinPDFformat

08/13/2010--DomesticNon-Profit ViewimageinPDFformat

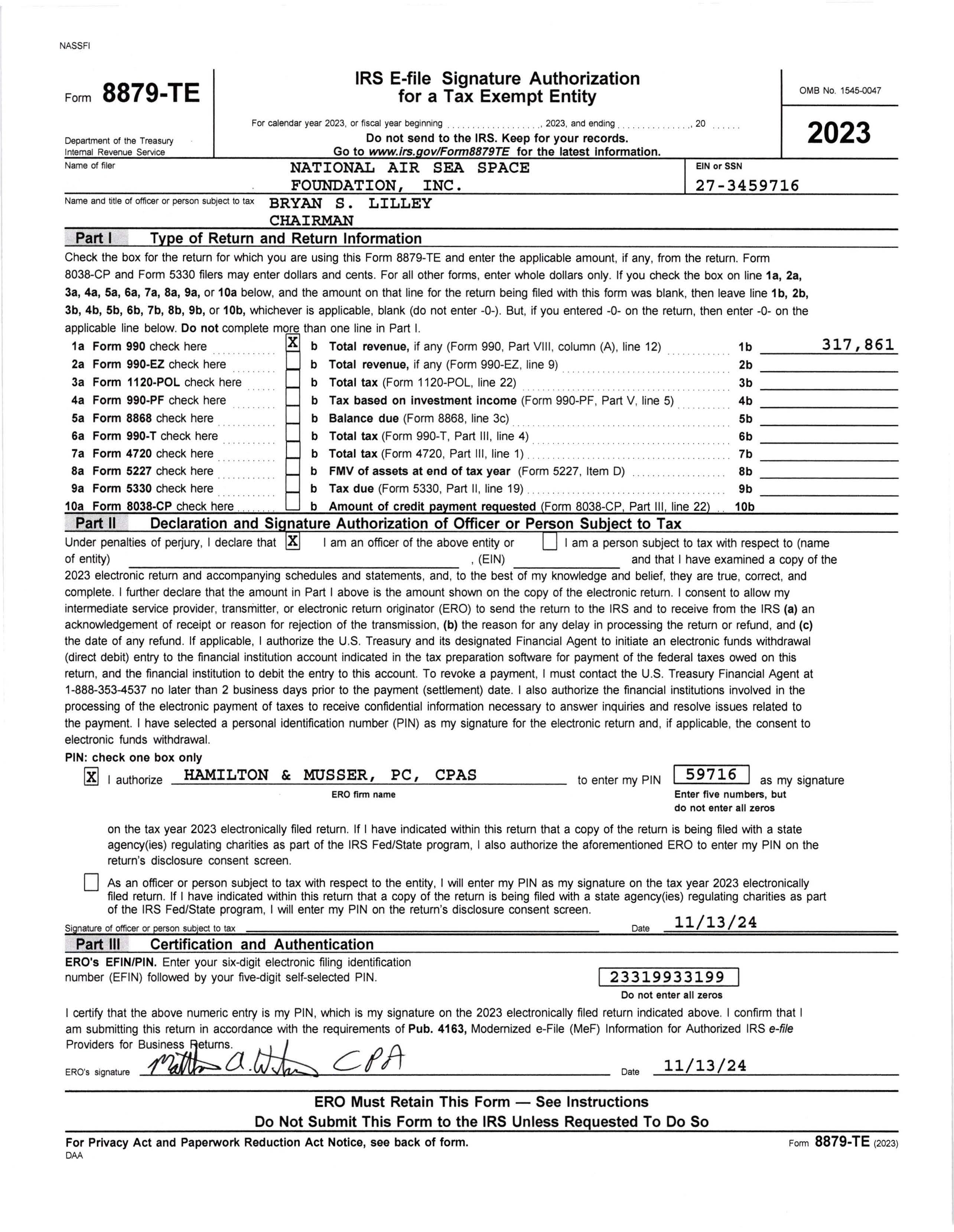
Na me and title of officer or perso n subject to tax BRYAN S . LILLEY

Part I Type of Return and Return Information

Check the box for the return for which you are using this Form 8879-TE and enter the applicable amount , if any , from the return Form

8038-CP and Form 5330 filers may enter dollars and cents For all other forms , ente r whole dollars on ly If you check the box on line 1a, 2a, 3a, 4a, 5a, 6a, 7a, Sa, 9a, or 10a below , and the amount on that line for the return being filed with this form was blank , then leave line 1b, 2b, 3b, 4b, 5b, 6b, 7b , Sb, 9b, or 10b, whichever is applicable , blank (do not enter -0-) But , if you entered -0- on the return, then enter -0- on the applicable line below Do not complete more than one line in Part I.

1a Form 990 check here X

2a Form 990-EZ check here

3a Form 1120-POL check here

4a Form 990-PF check here

5a Form 8868 check here

6a Form 990-T check here

7a Form 4720 check here

Sa Form 5227 check here

9a Form 5330 check here

10a Form 8038-CP check here

b Total revenue , if any (Form 990 , Part VI II, column (A), line 12)

b Total revenue, if any (Form 990-EZ , line 9)

b Total tax (Form 1120-POL, line 22)

b Tax based on investment income (Form 990-PF , Part V , line 5)

b Balance due (Form 8868 , line 3c)

b Total tax (Form 990-T , Part 111 , line 4 )

b Total tax (Form 4720 , Part 111 , line 1)

b FMV of assets at end of tax year (Form 5227 , Item D)

b Tax due (Form 5330 , Part 11 , line 19)

b Amount of credit payment requested (Form 8038-CP , Part Ill, line 22) Part II Declaration and Si nature Authorization of Officer or Person Sub'ect to Tax

317,861

Under penalties of pe~ury , I decla re that X I am an officer of the above ent ity or I am a person subject to tax with respect to (name of entity ) _____________________ , (EIN ) _______ and that I have examined a copy of the 2023 electronic return and accompanying schedules and statements , and , to the best of my knowledge and belief, they are true , correct , and co m plete I further declare that the amount in Part I above is the amount shown on the copy of the electron ic return I consent to allow my intermed iate service provider , transmitter , or electron ic retu rn originator (ERO ) to send the return to the IRS and to receive from the IRS (a) an acknowledgement of rece ipt or reason for rejection of the transm ission , (b) the reason for any delay in processing the return or refund , and (c) the date of any refund If applicable , I authorize the U S. Treasury and its des ignated Financial Agent to initiate an electronic funds withdrawal (direct deb it) entry to the financial institution accoun t indicated in the t ax preparation software for payment of the federal taxes owed on this ret u rn , and the fina n cial institution to deb it t he entry to th is accoun t. T o revoke a payment , I must contact the U.S. Treasury Financial Agent at 1-888-353-4537 no later than 2 business days pri or to the payment (settlement) date I also authorize the financia l institutions involved in the processing of the electron ic payment of taxes to receive confidential information necessary to answer inquiries and reso lve issues rela ted to the paymen t. I have selected a personal identification number (PIN ) as my signature fo r the e lectronic return and , if ap p licable , the consent to electron ic funds withd rawal.

PIN : check one box only

1 authorize HAMILTON & MUSSER, PC, CPAS to enter my PIN 59716 as my signature ERO 11nm name Enter five numbers , but do not enter all zeros

on the ta x year 2023 el ectronically filed return If I have ind icated within this return that a copy of the return is being filed with a state agency (i es ) regulat ing charities as part of the IRS Fed/State program , I also authorize the aforement ioned ERO to enter my PIN on the return ' s disclosure consent screen.

DAs an officer or person subject to tax w ith respect to the entity , I will enter my P IN as my signature on the ta x year 2023 electronically filed return If I have indicated within this return that a copy of the return is be ing filed with a state agency (i es ) regu lat ing charities as part of the IRS Fed / State program , I wi ll enter my PIN on the return 's disclosure consent screen.

Si gnature of officer or person subject to tax

Part Ill Certification and Authentication

ERO 's EFIN/PIN. Enter your six- digit electron ic filing identificat ion numbe r (EFIN ) followed by your five -digit self-selected PIN

Date 11/13/24

23319933199

Do not enter all zeros

I cert ify that the above numeric entry is my PIN , which is my signatu re on the 2023 electronically filed return indicated above I confirm that I am submitting th is return in acco rdance with the requirements of Pub. 4163, Modernized e- File (MeF) Information for Autho ri zed IRS e-fi/e Providers for B~s

ERO 's s gnature

ERO Must Retain This Form - See Instructions

Do Not Submit This Form to the IRS Unless Requested To Do So

III

1 Briefly describe the organization's mission:

THE NATIONAL AIR, SEA AND SPACE FOUNDATION IS AN EDUCATIONAL, NONPROFIT ORGANIZATION DEDICATED TO THE ADVANCEMENT OF MILITARY, COMMERCIAL, AND CIVIL ENTERPRISES IN AIR, SEA, AND SPACE.

Did the organization undertake any significant program services during the year which were not listed on the

prior Form 990 or 990-EZ?

If "Yes," describe these new services on Schedule O.

Did the organization cease conducting, or make significant changes in how it conducts, any program services?

If "Yes," describe these changes on Schedule O.

Describe the organization's program service accomplishments for each of its three largest program services, as measured by expenses. Section 501(c)(3) and 501(c)(4) organizations are required to report the amount of grants and allocations to others, the total expenses, and revenue, if any, for each program service reported.

329,100 196,792 THE FOUNDATION ACHIEVED ITS PROGRAM SERVICE OBJECTIVES THIS YEAR THROUGH ONE SIGNATURE PROGRAM. THE FOUNDATION CONDUCTED THE COCOA BEACH AIR SHOW, APRIL 15-16, 2023, AN AVIATION EXPEDITION OPEN TO THE PUBLIC WITH A DIVERSE REPRESENTATION OF MILITARY AND CIVILIAN AIRCRAFT, EDUCATING OVER 175,000 SPECTATORS ABOUT THE OPPORTUNITIES IN THE GROWING INDUSTRY ON "FLORIDA'S SPACE COAST".

3,400

MAJOR STEPHEN "CAJUN" DEL BANGO, THUNDERBIRD #4, WAS KILLED WHEN HIS F-16 CRASHED JUST 10 DAYS AFTER PERFORMING IN THE 2018 MELBOURNE AIR SHOW. IN HONOR OF CAJUN, THE NATIONAL AIR SEA AND SPACE FOUNDATION IS PARTNERING WITH THE FLORIDA INSTITUTE OF TECHNOLOGY AND BROWARD COLLEGE TO CREATE THE STEPHEN "CAJUN" DEL BANGO MEMORIAL SCHOLARSHIP. EVERY YEAR THE CAJUN SCHOLARSHIP WILL GO TO HELP STUDENTS IN NEED TO GET THEIR WINGS AND PURSUE A FUTURE IN AVIATION. N/A

Is the organization described in section 501(c)(3) or 4947(a)(1) (other than a private foundation)? If “Yes,” complete Schedule A

Is the organization required to complete Schedule B, Schedule of Contributors? See instructions

Did the organization engage in direct or indirect political campaign activities on behalf of or in opposition to candidates for public office? If “Yes,” complete Schedule C, Part I

Section 501(c)(3) organizations. Did the organization engage in lobbying activities, or have a section 501(h) election in effect during the tax year? If "Yes," complete Schedule C, Part II

Is the organization a section 501(c)(4), 501(c)(5), or 501(c)(6) organization that receives membership dues, assessments, or similar amounts as defined in Rev. Proc. 98-19? If "Yes," complete Schedule C, Part III

Did the organization maintain any donor advised funds or any similar funds or accounts for which donors have the right to provide advice on the distribution or investment of amounts in such funds or accounts? If “Yes,” complete Schedule D, Part I

Did the organization receive or hold a conservation easement, including easements to preserve open space, the environment, historic land areas, or historic structures? If “Yes,” complete Schedule D, Part II

Did the organization maintain collections of works of art, historical treasures, or other similar assets? If “Yes,” complete Schedule D, Part III

Did the organization report an amount in Part X, line 21, for escrow or custodial account liability; serve as a custodian for amounts not listed in Part X; or provide credit counseling, debt management, credit repair, or debt negotiation services? If “Yes,” complete Schedule D, Part IV

Did the organization, directly or through a related organization, hold assets in donor-restricted endowments

or in quasi-endowments? If “Yes,” complete Schedule D, Part V

If the organization's answer to any of the following questions is “Yes,” then complete Schedule D, Parts VI, VII, VIII, IX, or X, as applicable.

Did the organization report an amount for land, buildings, and equipment in Part X, line 10? If "Yes," complete Schedule D, Part VI of its total assets reported in Part X, line 16? If "Yes," complete Schedule D, Part VII

Did the organization report an amount for investments—other securities in Part X, line 12, that is 5% or more

Did the organization report an amount for investments—program related in Part X, line 13, that is 5% or more of its total assets reported in Part X, line 16? If "Yes," complete Schedule D, Part VIII reported in Part X, line 16? If "Yes," complete Schedule D, Part IX

Did the organization report an amount for other assets in Part X, line 15, that is 5% or more of its total assets

Did the organization report an amount for other liabilities in Part X, line 25? If "Yes," complete Schedule D, Part X

Did the organization's separate or consolidated financial statements for the tax year include a footnote that addresses the organization's liability for uncertain tax positions under FIN 48 (ASC 740)? If "Yes," complete Schedule D, Part X

Did the organization obtain separate, independent audited financial statements for the tax year? If “Yes,” complete Schedule D, Parts XI and XII

Was the organization included in consolidated, independent audited financial statements for the tax year? If

"Yes," and if the organization answered "No" to line 12a, then completing Schedule D, Parts XI and XII is optional

Is the organization a school described in section 170(b)(1)(A)(ii)? If “Yes,” complete Schedule E

Did the organization maintain an office, employees, or agents outside of the United States?

Did the organization have aggregate revenues or expenses of more than $10,000 from grantmaking, fundraising, business, investment, and program service activities outside the United States, or aggregate

foreign investments valued at $100,000 or more? If “Yes,” complete Schedule F, Parts I and IV

Did the organization report on Part IX, column (A), line 3, more than $5,000 of grants or other assistance to or for any foreign organization? If “Yes,” complete Schedule F, Parts II and IV

Did the organization report on Part IX, column (A), line 3, more than $5,000 of aggregate grants or other assistance to or for foreign individuals? If “Yes,” complete Schedule F, Parts III and IV

Did the organization report a total of more than $15,000 of expenses for professional fundraising services on

Part IX, column (A), lines 6 and 11e? If “Yes,” complete Schedule G, Part I. See instructions

Did the organization report more than $15,000 total of fundraising event gross income and contributions on

Part VIII, lines 1c and 8a? If "Yes," complete Schedule G, Part II

Did the organization report more than $15,000 of gross income from gaming activities on Part VIII, line 9a?

If "Yes," complete Schedule G, Part III

20a Did the organization operate one or more hospital facilities? If “Yes,” complete Schedule H b If “Yes” to line 20a, did the organization attach a copy of its audited financial statements to this return?

21 Did the organization report more than $5,000 of grants or other assistance to any domestic organization or 21

domestic government on Part IX, column (A), line 1? If “Yes,” complete Schedule I, Parts I and II

Did the organization report more than $5,000 of grants or other assistance to or for domestic individuals on

Part IX, column (A), line 2? If “Yes,” complete Schedule I, Parts I and III

Did the organization answer “Yes” to Part VII, Section A, line 3, 4, or 5 about compensation of the

employees? If "Yes," complete Schedule J

Did the organization have a tax-exempt bond issue with an outstanding principal amount of more than organization's current and former officers, directors, trustees, key employees, and highest compensated

$100,000 as of the last day of the year, that was issued after December 31, 2002? If “Yes,” answer lines 24b

through 24d and complete Schedule K. If “No,” go to line 25a

Did the organization invest any proceeds of tax-exempt bonds beyond a temporary period exception?

Did the organization maintain an escrow account other than a refunding escrow at any time during the year

Did the organization act as an “on behalf of” issuer for bonds outstanding at any time during the year? to defease any tax-exempt bonds?

Section 501(c)(3), 501(c)(4), and 501(c)(29) organizations. Did the organization engage in an excess benefit

Is the organization aware that it engaged in an excess benefit transaction with a disqualified person in a prior transaction with a disqualified person during the year? If “Yes,” complete Schedule L, Part I

If "Yes," complete Schedule L, Part I

Did the organization report any amount on Part X, line 5 or 22, for receivables from or payables to any current year, and that the transaction has not been reported on any of the organization's prior Forms 990 or 990-EZ?

controlled entity or family member of any of these persons? If “Yes,” complete Schedule L, Part II

Did the organization provide a grant or other assistance to any current or former officer, director, trustee, key or former officer, director, trustee, key employee, creator or founder, substantial contributor, or 35%

employee, creator or founder, substantial contributor or employee thereof, a grant selection committee

persons? If “Yes,” complete Schedule L, Part III L, Part IV, instructions for applicable filing thresholds, conditions, and exceptions).

Was the organization a party to a business transaction with one of the following parties? (See the Schedule

A current or former officer, director, trustee, key employee, creator or founder, or substantial contributor? If "Yes,” complete Schedule L, Part IV

A family member of any individual described in line 28a? If “Yes,” complete Schedule L, Part IV

A 35% controlled entity of one or more individuals and/or organizations described in line 28a or 28b? If “Yes,” complete Schedule L, Part IV

Did the organization receive more than $25,000 in noncash contributions? If “Yes,” complete Schedule M

Did the organization receive contributions of art, historical treasures, or other similar assets, or qualified conservation contributions? If “Yes,” complete Schedule M

Did the organization liquidate, terminate, or dissolve and cease operations? If “Yes,” complete Schedule N, Part I

Did the organization sell, exchange, dispose of, or transfer more than 25% of its net assets? If "Yes," complete Schedule N, Part II

Did the organization own 100% of an entity disregarded as separate from the organization under Regulations sections 301.7701-2 and 301.7701-3? If “Yes,” complete Schedule R, Part I

Was the organization related to any tax-exempt or taxable entity? If “Yes,” complete Schedule R, Part II, III, or IV, and Part V, line 1

Did the organization have a controlled entity within the meaning of section 512(b)(13)?

If "Yes" to line 35a, did the organization receive any payment from or engage in any transaction with a

controlled entity within the meaning of section 512(b)(13)? If “Yes,” complete Schedule R, Part V, line 2

Section 501(c)(3) organizations. Did the organization make any transfers to an exempt non-charitable related organization? If “Yes,” complete Schedule R, Part V, line 2

Did the organization conduct more than 5% of its activities through an entity that is not a related organization and that is treated as a partnership for federal income tax purposes? If “Yes,” complete Schedule R, Part VI

38 Did the organization complete Schedule O and provide explanations on Schedule O for Part VI, lines 11b and 38 19? Note: All Form 990 filers are required to complete Schedule O.

Part V Statements Regarding Other IRS Filings and Tax Compliance member, or to a 35% controlled entity (including an employee thereof) or family member of any of these

Check if Schedule O contains a response or note to any line in this Part V

c b 1a

Enter the number reported in box 3 of Form 1096. Enter -0- if not applicable

Enter the number of Forms W-2G included on line 1a. Enter -0- if not applicable

Did the organization comply with backup withholding rules for reportable payments to vendors and

reportable gaming (gambling) winnings to prize winners?

13

Enter the number of employees reported on Form W-3, Transmittal of Wage and Tax

Statements, filed for the calendar year ending with or within the year covered by this return

If at least one is reported on line 2a, did the organization file all required federal employment tax returns?

Did the organization have unrelated business gross income of $1,000 or more during the year?

If “Yes,” has it filed a Form 990-T for this year? If “No” to line 3b, provide an explanation on Schedule O

At any time during the calendar year, did the organization have an interest in, or a signature or other authority over, a financial account in a foreign country (such as a bank account, securities account, or other financial account)?

If “Yes,” enter the name of the foreign country

See instructions for filing requirements for FinCEN Form 114, Report of Foreign Bank and Financial Accounts (FBAR).

Was the organization a party to a prohibited tax shelter transaction at any time during the tax year?

Did any taxable party notify the organization that it was or is a party to a prohibited tax shelter transaction?

If “Yes” to line 5a or 5b, did the organization file Form 8886-T?

Does the organization have annual gross receipts that are normally greater than $100,000, and did the

organization solicit any contributions that were not tax deductible as charitable contributions?

If “Yes,” did the organization include with every solicitation an express statement that such contributions or gifts were not tax deductible?

Organizations that may receive deductible contributions under section 170(c).

Did the organization receive a payment in excess of $75 made partly as a contribution and partly for goods

and services provided to the payor?

If “Yes,” did the organization notify the donor of the value of the goods or services provided?

Did the organization sell, exchange, or otherwise dispose of tangible personal property for which it was required to file Form 8282?

If “Yes,” indicate the number of Forms 8282 filed during the year

Did the organization receive any funds, directly or indirectly, to pay premiums on a personal benefit contract?

Did the organization, during the year, pay premiums, directly or indirectly, on a personal benefit contract?

If the organization received a contribution of qualified intellectual property, did the organization file Form 8899 as required?

If the organization received a contribution of cars, boats, airplanes, or other vehicles, did the organization file a Form 1098-C?

Sponsoring organizations maintaining donor advised funds. Did a donor advised fund maintained by the sponsoring organization have excess business holdings at any time during the year?

Sponsoring organizations maintaining donor advised funds.

Did the sponsoring organization make any taxable distributions under section 4966?

Did the sponsoring organization make a distribution to a donor, donor advisor, or related person?

Section 501(c)(7) organizations. Enter:

Initiation fees and capital contributions included on Part VIII, line 12

Gross receipts, included on Form 990, Part VIII, line 12, for public use of club facilities

Section 501(c)(12) organizations. Enter:

Gross income from members or shareholders

Gross income from other sources. (Do not net amounts due or paid to other sources against amounts due or received from them.)

Section 4947(a)(1) non-exempt charitable trusts. Is the organization filing Form 990 in lieu of Form 1041?

If “Yes,” enter the amount of tax-exempt interest received or accrued during the year

Section 501(c)(29) qualified nonprofit health insurance issuers.

b Is the organization licensed to issue qualified health plans in more than one state?

Note: See the instructions for additional information the organization must report on Schedule O. Enter the amount of reserves the organization is required to maintain by the states in which the organization is licensed to issue qualified health plans

Enter the amount of reserves on hand

Did the organization receive any payments for indoor tanning services during the tax year?

If “Yes,” has it filed a Form 720 to report these payments? If "No," provide an explanation on Schedule O

15 Is the organization subject to the section 4960 tax on payment(s) of more than $1,000,000 in remuneration or excess parachute payment(s) during the year?

If “Yes,” see instructions and file Form 4720, Schedule N.

16 Is the organization an educational institution subject to the section 4968 excise tax on net investment income?

17

If “Yes,” complete Form 4720, Schedule O.

Section 501(c)(21) organizations. Did the trust, any disqualified or other person engage in any activities that would result in the imposition of an excise tax under section 4951, 4952 or 4953?

If “Yes,” complete Form 6069.

Part VI Governance, Management, and Disclosure For each "Yes" response to lines 2 through 7b below, and for a "No" response to line 8a, 8b, or 10b below, describe the circumstances, processes, or changes on Schedule O. See instructions.

Check if Schedule O contains a response or note to any line in this Part VI

Section A. Governing Body and Management

Enter the number of voting members of the governing body at the end of the tax year

If there are material differences in voting rights among members of the governing body, or if the governing body delegated broad authority to an executive committee or similar committee, explain on Schedule O.

Enter the number of voting members included on line 1a, above, who are independent

Did any officer, director, trustee, or key employee have a family relationship or a business relationship with any other officer, director, trustee, or key employee?

Did the organization delegate control over management duties customarily performed by or under the direct supervision of officers, directors, trustees, or key employees to a management company or other person?

Did the organization make any significant changes to its governing documents since the prior Form 990 was filed?

Did the organization become aware during the year of a significant diversion of the organization’s assets?

Did the organization have members or stockholders?

Did the organization have members, stockholders, or other persons who had the power to elect or appoint one or more members of the governing body?

Are any governance decisions of the organization reserved to (or subject to approval by) members,

stockholders, or persons other than the governing body?

Did the organization contemporaneously document the meetings held or written actions undertaken during the year by the following:

The governing body?

Each committee with authority to act on behalf of the governing body?

Is there any officer, director, trustee, or key employee listed in Part VII, Section A, who cannot be reached at the organization’s mailing address? If “Yes,” provide the names and addresses on Schedule O

Section B. Policies (This Section B requests information about policies not required by the Internal Revenue Code.)

Did the organization have local chapters, branches, or affiliates?

If “Yes,” did the organization have written policies and procedures governing the activities of such chapters, affiliates, and branches to ensure their operations are consistent with the organization's exempt purposes?

Has the organization provided a complete copy of this Form 990 to all members of its governing body before filing the form?

b Describe on Schedule O the process, if any, used by the organization to review this Form 990.

Did the organization have a written conflict of interest policy? If “No,” go to line 13

Were officers, directors, or trustees, and key employees required to disclose annually interests that could give rise to conflicts?

Did the organization regularly and consistently monitor and enforce compliance with the policy? If “Yes,” describe on Schedule O how this was done

Did the organization have a written whistleblower policy?

Did the organization have a written document retention and destruction policy?

Did the process for determining compensation of the following persons include a review and approval by independent persons, comparability data, and contemporaneous substantiation of the deliberation and decision?

The organization’s CEO, Executive Director, or top management official

Other officers or key employees of the organization

If “Yes” to line 15a or 15b, describe the process on Schedule O. See instructions.

Did the organization invest in, contribute assets to, or participate in a joint venture or similar arrangement with a taxable entity during the year?

If “Yes,” did the organization follow a written policy or procedure requiring the organization to evaluate its participation in joint venture arrangements under applicable federal tax law, and take steps to safeguard the organization’s exempt status with respect to such arrangements?

List the states with which a copy of this Form 990 is required to be filed

Section 6104 requires an organization to make its Forms 1023 (1024 or 1024-A, if applicable), 990, and 990-T (section 501(c) (3)s only) available for public inspection. Indicate how you made these available. Check all that apply.

X

Own website Another's website Upon request

Other (explain on Schedule O)

Describe on Schedule O whether (and if so, how) the organization made its governing documents, conflict of interest policy, and financial statements available to the public during the tax year.

State the name, address, and telephone number of the person who possesses the organization's books and records.

Section A.

Independent Contractors

Officers, Directors, Trustees, Key Employees, and Highest Compensated Employees

Complete this table for all persons required to be listed. Report compensation for the calendar year ending with or within the 1a

List all of the organization's current officers, directors, trustees (whether individuals or organizations), regardless of amount of compensation. Enter -0- in columns (D), (E), and (F) if no compensation was paid.

List all of the organization's current key employees, if any. See instructions for definition of "key employee."

organization's tax year. List the organization's five current highest compensated employees (other than an officer, director, trustee, or key employee)

who received reportable compensation (box 5 of Form W-2, box 6 of Form 1099-MISC, and/or box 1 of Form 1099-NEC) of more than $100,000 from the organization and any related organizations.

List all of the organization's former officers, key employees, and highest compensated employees who received more than $100,000 of reportable compensation from the organization and any related organizations.

List all of the organization’s former directors or trustees that received, in the capacity as a former director or trustee of the organization, more than $10,000 of reportable compensation from the organization and any related organizations. See the instructions for the order in which to list the persons above.

Check this box if neither the organization nor any related organization compensated any current officer, director, or trustee.

from the related organizations

not check more than one box, unless person is both an officer and a

amount of other Reportable 1099-MISC/ organizations (W-2/

organization (W-2/ from the compensation organization and

Did the organization list any former officer, director, trustee, key employee, or highest compensated employee on line 1a? If “Yes,” complete Schedule J for such individual

For any individual listed on line 1a, is the sum of reportable compensation and other compensation from the organization and related organizations greater than $150,000? If “Yes,” complete Schedule J for such individual

Did any person listed on line 1a receive or accrue compensation from any unrelated organization or individual for services rendered to the organization? If “Yes,” complete Schedule J for such person

1 Complete this table for your five highest compensated independent contractors that received more than $100,000 of compensation from the organization. Report compensation for the calendar year ending with or within the organization's tax year.

(contributions)

All other contributions, gifts, grants, and similar amounts not included above Noncash contributions included in

Add lines 1a–1f

income (including dividends, interest, and other similar amounts)

Income from investment of tax-exempt bond proceeds

Less: rental expenses

Rental inc. or (loss)

Net rental income or (loss)

Gross income from fundraising events (not including of contributions reported on line 1c). See Part IV, line 18

Less: direct expenses

Net income or (loss) from fundraising events

Gross income from gaming activities. See Part IV, line 19

Less: direct expenses

Net income or (loss) from gaming activities

Gross sales of inventory, less returns and allowances Less:

Section 501(c)(3) and 501(c)(4) organizations must complete all columns. All other organizations must complete column (A).

Do not include amounts reported on lines 6b, 7b, 8b, 9b, and 10b of Part VIII.

Grants and other assistance to domestic organizations and domestic governments. See Part IV, line 21

Grants and other assistance to domestic individuals. See Part IV, line 22

Grants and other assistance to foreign organizations, foreign governments, and foreign individuals. See Part IV, lines 15 and 16

Benefits paid to or for members

Compensation of current officers, directors, trustees, and key employees

Compensation not included above to disqualified persons (as defined under section 4958(f)(1)) and persons described in section 4958(c)(3)(B)

Other salaries and wages

Pension plan accruals and contributions (include section 401(k) and 403(b) employer contributions)

Other employee benefits

Payroll taxes

Fees for services (nonemployees):

Management

Legal

Accounting

Lobbying

Professional fundraising services. See Part IV, line 17

Investment management fees

Other. (If line 11g amount exceeds 10% of line 25, column

(A) amount, list line 11g expenses on Schedule O.)

Advertising and promotion

Office expenses

Information technology

Royalties

Occupancy

Travel

Payments of travel or entertainment expenses for any federal, state, or local public officials

Conferences, conventions, and meetings

Interest

Payments to affiliates

Depreciation, depletion, and amortization

Insurance

Other expenses. Itemize expenses not covered above. (List miscellaneous expenses on line 24e. If line 24e amount exceeds 10% of line 25, column (A) amount, list line 24e expenses on Schedule O.)

All other expenses

Total functional expenses. Add lines 1 through 24e

Joint costs. Complete this line only if the

fundraising solicitation. Check here if organization reported in column (B) joint costs from a combined educational campaign and following SOP 98-2 (ASC 958-720)

Check if Schedule O contains a response or note to any line in this Part X

Cash—non-interest-bearing

Savings and temporary cash investments

Pledges and grants receivable, net

Accounts receivable, net

Loans and other receivables from any current or former officer, director, trustee, key employee, creator or founder, substantial contributor, or 35%

controlled entity or family member of any of these persons

Loans and other receivables from other disqualified persons (as defined under section 4958(f)(1)), and persons described in section 4958(c)(3)(B)

Notes and loans receivable, net

Inventories for sale or use

Prepaid expenses and deferred charges

Land, buildings, and equipment: cost or other

Less: accumulated depreciation

Investments—publicly traded securities

Investments—other securities. See Part IV, line 11

Investments—program-related. See Part IV, line 11

Intangible assets

Other assets. See Part IV, line 11

Total assets. Add lines 1 through 15 (must equal line 33)

Accounts payable and accrued expenses

Grants payable

Deferred revenue

Tax-exempt bond liabilities

Escrow or custodial account liability. Complete Part IV of Schedule D

Loans and other payables to any current or former officer, director, trustee, key employee, creator or founder, substantial contributor, or 35%

controlled entity or family member of any of these persons

Secured mortgages and notes payable to unrelated third parties

Unsecured notes and loans payable to unrelated third parties

Other liabilities (including federal income tax, payables to related third

parties, and other liabilities not included on lines 17-24). Complete Part X

basis. Complete Part VI of Schedule D of Schedule D

Total liabilities. Add lines 17 through 25

Organizations that follow FASB ASC 958, check here and complete lines 27, 28, 32, and 33.

Net assets without donor restrictions

X

Organizations that do not follow FASB ASC 958, check here

Net assets with donor restrictions and complete lines 29 through 33.

Capital stock or trust principal, or current funds

Paid-in or capital surplus, or land, building, or equipment fund

Retained earnings, endowment, accumulated income, or other funds

Total net assets or fund balances

Total liabilities and net assets/fund balances

Part XI

Total

Reconciliation of Net Assets

Check if Schedule O contains a response or note to any line in this Part XI

3 Revenue less expenses. Subtract line 2 from line 1

Net assets or fund balances at beginning of year (must equal Part X, line 32, column (A))

Other changes in net assets or fund balances (explain on Schedule O)

Net assets or fund balances at end of year. Combine lines 3 through 9 (must equal Part X, line 32, column (B))

Part XII Financial Statements and Reporting

Check if Schedule O contains a response or note to any line in this Part XII

Accounting method used to prepare the Form 990:

If the organization changed its method of accounting from a prior year or checked “Other,” explain on Schedule O.

Were the organization's financial statements compiled or reviewed by an independent accountant?

If "Yes," check a box below to indicate whether the financial statements for the year were compiled or reviewed on a separate basis, consolidated basis, or both.

Separate basis Consolidated basis Both consolidated and separate basis

Were the organization's financial statements audited by an independent accountant?

If "Yes," check a box below to indicate whether the financial statements for the year were audited on a

separate basis, consolidated basis, or both.

Separate basis

Consolidated basis

Both consolidated and separate basis

If “Yes” to line 2a or 2b, does the organization have a committee that assumes responsibility for oversight of

the audit, review, or compilation of its financial statements and selection of an independent accountant?

If the organization changed either its oversight process or selection process during the tax year, explain on Schedule O.

As a result of a federal award, was the organization required to undergo an audit or audits as set forth in the

Uniform Guidance, 2 C.F.R. Part 200, Subpart F?

If “Yes,” did the organization undergo the required audit or audits? If the organization did not undergo the

required audit or audits, explain why on Schedule O and describe any steps taken to undergo such audits

317,861 336,688 -18,827 50,098 31,271

SCHEDULE A Public Charity Status and Public Support

Attach to Form 990 or Form 990-EZ.

NATIONAL

Reason for Public Charity Status. (All organizations

is not a

because it is: (For lines 1 through 12, check only one box.)

A church, convention of churches, or association of churches described in section 170(b)(1)(A)(i).

A school described in section 170(b)(1)(A)(ii). (Attach Schedule E (Form 990).)

A hospital or a cooperative hospital service organization described in section 170(b)(1)(A)(iii).

A medical research organization operated in conjunction with a hospital described in section 170(b)(1)(A)(iii). Enter the hospital's name, city, and state:

An organization operated for the benefit of a college or university owned or operated by a governmental unit described in section 170(b)(1)(A)(iv). (Complete Part II.)

A federal, state, or local government or governmental unit described in section 170(b)(1)(A)(v).

An organization that normally receives a substantial part of its support from a governmental unit or from the general public described in section 170(b)(1)(A)(vi). (Complete Part II.)

A community trust described in section 170(b)(1)(A)(vi). (Complete Part II.)

9 An agricultural research organization described in section 170(b)(1)(A)(ix) operated in conjunction with a land-grant college or university or a non-land-grant college of agriculture (see instructions). Enter the name, city, and state of the college or university:

a

b

An organization that normally receives (1) more than 33 1/3% of its support from contributions, membership fees, and gross receipts from activities related to its exempt functions, subject to certain exceptions; and (2) no more than 33 1/3% of its support from gross investment income and unrelated business taxable income (less section 511 tax) from businesses acquired by the organization after June 30, 1975. See section 509(a)(2). (Complete Part III.)

An organization organized and operated exclusively to test for public safety. See section 509(a)(4).

An organization organized and operated exclusively for the benefit of, to perform the functions of, or to carry out the purposes of one or more publicly supported organizations described in section 509(a)(1) or section 509(a)(2). See section 509(a)(3). Check the box on lines 12a through 12d that describes the type of supporting organization and complete lines 12e, 12f, and 12g.

Type II. A supporting organization supervised or controlled in connection with its supported organization(s), by having control or management of the supporting organization vested in the same persons that control or manage the supported the supported organization(s) the power to regularly appoint or elect a majority of the directors or trustees of the

Type III functionally integrated. A supporting organization operated in connection with, and functionally integrated with, organization(s). You must complete Part IV, Sections A and C.

c that is not functionally integrated. The organization generally must satisfy a distribution requirement and an attentiveness

d e f Enter the number of supported organizations

Type III non-functionally integrated. A supporting organization operated in connection with its supported organization(s) requirement (see instructions). You must complete Part IV, Sections A and D, and Part V. its supported organization(s) (see instructions). You must complete Part IV, Sections A, D, and E.

Check this box if the organization received a written determination from the IRS that it is a Type I, Type II, Type III functionally integrated, or Type III non-functionally integrated supporting organization.

Provide the following information about the supported organization(s). g organization

(ii) EIN

Type I. A supporting organization operated, supervised, or controlled by its supported organization(s), typically by giving supporting organization. You must complete Part IV, Sections A and B. instructions) instructions) other support (see (vi) Amount of

Go to www.irs.gov/Form990 for instructions and the latest information. above (see instructions))

(iv) Is the organization

(iii) Type of organization (described on lines 1–10 document? listed in your governing

Yes No

(v) Amount of monetary support (see

(Complete only if you checked the box on line 5, 7, or 8 of Part I or if the organization failed

Part III. If the organization fails to qualify under the tests listed below, please complete Part III.)

Section A. Public Support

membership fees received. (Do not

Tax revenues levied for the

The value of services or facilities to or expended on its behalf organization's benefit and either paid

Total. Add lines 1 through 3

The portion of total contributions by

governmental unit or publicly

Public support. Subtract line 5 from line 4 include any “unusual grants.”)

Amounts from line 4

Net income from unrelated business rents, royalties, and income from payments received on securities loans, Gross income from interest, dividends, line 1 that exceeds 2% of the amount supported organization) included on each person (other than a

Other income. Do not include gain or is regularly carried on activities, whether or not the business

loss from the sale of capital assets

(Explain in Part VI.)

Total support. Add lines 7 through 10

Gross receipts from related activities, etc. (see instructions)

2020 (c) 2021 (d) 2022 (e) 2023

First 5 years. If the Form 990 is for the organization’s first, second, third, fourth, or fifth tax year as a section 501(c)(3)

test — 2023. If the organization did not check the box on line 13, and line 14 is 33 1/3% or more, check this box and stop here. The organization qualifies as a publicly supported organization b 33 1/3% support test — 2022. If the organization did not check a box on line 13 or 16a, and line 15 is 33 1/3% or more, check this box and stop here. The organization qualifies as a publicly supported organization

— 2023. If the organization did not check a box on line 13, 16a, or 16b, and line 14 is

10% or more, and if the organization meets the facts-and-circumstances test, check this box and stop here. Explain in Part VI how the organization meets the facts-and-circumstances test. The organization qualifies as a publicly supported

b 10%-facts-and-circumstances test — 2022. If the organization did not check a box on line 13, 16a, 16b, or 17a, and line in Part VI how the organization meets the facts-and-circumstances test. The organization qualifies as a publicly supported 15 is 10% or more, and if the organization meets the facts-and-circumstances test, check this box and stop here. Explain 18 Private foundation. If the organization did not check a box on line 13, 16a, 16b, 17a, or 17b, check this box and see

2019 shown on line 11, column (f) organization organization instructions

Schedule for Organizations Described in Section 509(a)(2) (Complete only if you checked the box on line 10 of Part I or if the organization failed to qualify under Part II.

Total. Add lines 1 through 5 Section A. Public Support organization’s tax-exempt purpose

Gifts, grants, contributions, and membership

(Do not include any “unusual grants.”)

Gross receipts from admissions, merchandise sold or services performed, or facilities furnished in any activity that is related to the

Gross receipts from activities that are not an

for the

organization's benefit and either paid to or expended on its behalf organization without charge furnished by a governmental unit to the

Amounts included on lines 1, 2, and 3

received from disqualified persons

Amounts included on lines 2 and 3

line 6.) Calendar year (or fiscal year beginning in)

received from other than disqualified persons that exceed the greater of $5,000 or 1% of the amount on line 13 for the year c Add lines 7a and 7b Amounts from line 6

Public support. (Subtract line 7c from

Calendar year (or fiscal year beginning in) and 12.) If the organization fails to qualify under the tests listed below, please complete Part II.)

(less

section 511 taxes) from businesses acquired after June 30, 1975 c Add lines 10a and 10b

not included on line 10b, whether or not the business is regularly carried on

in Part VI.)

If

not

14 or line 19a, and line 16 is more than 33 1/3%, and line 18 is not more than 33 1/3%, check this box and stop here. The organization qualifies as a publicly supported organization

Private foundation. If the organization did not check a box on line 14, 19a,

(Complete only if you checked a box on line 12 on Part I. If you checked box 12a, Part I, complete Sections A and B. If you checked box 12b, Part I, complete Sections A and C. If you checked box 12c, Part I, complete

Sections A, D, and E. If you checked box 12d, Part I, complete Sections A and D, and complete Part V.)

Section A. All Supporting Organizations

Are all of the organization’s supported organizations listed by name in the organization’s governing documents? If “No,” describe in Part VI how the supported organizations are designated. If designated by class or purpose, describe the designation. If historic and continuing relationship, explain.

Did the organization have any supported organization that does not have an IRS determination of status under section 509(a)(1) or (2)? If “Yes,” explain in Part VI how the organization determined that the supported organization was described in section 509(a)(1) or (2).

Did the organization have a supported organization described in section 501(c)(4), (5), or (6)? If “Yes,” answer lines 3b and 3c below.

Did the organization confirm that each supported organization qualified under section 501(c)(4), (5), or (6) and satisfied the public support tests under section 509(a)(2)? If “Yes,” describe in Part VI when and how the organization made the determination.

Did the organization ensure that all support to such organizations was used exclusively for section 170(c)(2)(B) purposes? If “Yes,” explain in Part VI what controls the organization put in place to ensure such use. Was any supported organization not organized in the United States (“foreign supported organization”)? If “Yes,” and if you checked box 12a or 12b in Part I, answer lines 4b and 4c below.

Did the organization have ultimate control and discretion in deciding whether to make grants to the foreign supported organization? If “Yes,” describe in Part VI how the organization had such control and discretion despite being controlled or supervised by or in connection with its supported organizations.

Did the organization support any foreign supported organization that does not have an IRS determination under sections 501(c)(3) and 509(a)(1) or (2)? If “Yes,” explain in Part VI what controls the organization used to ensure that all support to the foreign supported organization was used exclusively for section 170(c)(2)(B) purposes.

Did the organization add, substitute, or remove any supported organizations during the tax year? If “Yes,” answer lines 5b and 5c below (if applicable). Also, provide detail in Part VI, including (i) the names and EIN numbers of the supported organizations added, substituted, or removed; (ii) the reasons for each such action; (iii) the authority under the organization's organizing document authorizing such action; and (iv) how the action was accomplished (such as by amendment to the organizing document).

Type I or Type II only. Was any added or substituted supported organization part of a class already designated in the organization's organizing document?

Substitutions only. Was the substitution the result of an event beyond the organization's control?

Did the organization provide support (whether in the form of grants or the provision of services or facilities) to anyone other than (i) its supported organizations, (ii) individuals that are part of the charitable class benefited by one or more of its supported organizations, or (iii) other supporting organizations that also support or benefit one or more of the filing organization’s supported organizations? If “Yes,” provide detail in Part VI.

Did the organization provide a grant, loan, compensation, or other similar payment to a substantial contributor (as defined in section 4958(c)(3)(C)), a family member of a substantial contributor, or a 35% controlled entity with regard to a substantial contributor? If “Yes,” complete Part I of Schedule L (Form 990).

Did the organization make a loan to a disqualified person (as defined in section 4958) not described on line 7? If “Yes,” complete Part I of Schedule L (Form 990).

Was the organization controlled directly or indirectly at any time during the tax year by one or more disqualified persons, as defined in section 4946 (other than foundation managers and organizations described in section 509(a)(1) or (2))? If “Yes,” provide detail in Part VI.

Did one or more disqualified persons (as defined on line 9a) hold a controlling interest in any entity in which the supporting organization had an interest? If “Yes,” provide detail in Part VI.

Did a disqualified person (as defined on line 9a) have an ownership interest in, or derive any personal benefit from, assets in which the supporting organization also had an interest? If “Yes,” provide detail in Part VI. Was the organization subject to the excess business holdings rules of section 4943 because of section 4943(f) (regarding certain Type II supporting organizations, and all Type III non-functionally integrated supporting organizations)? If “Yes,” answer line 10b below.

Did the organization have any excess business holdings in the tax year? (Use Schedule C, Form 4720, to determine whether the organization had excess business holdings.)

11 c b a

Has the organization accepted a gift or contribution from any of the following persons?

A person who directly or indirectly controls, either alone or together with persons described on lines 11b and 11c below, the governing body of a supported organization?

A family member of a person described on line 11a above?

A 35% controlled entity of a person described on line 11a or 11b above? If “Yes” to line 11a, 11b, or 11c,

provide detail in Part VI.

Section B. Type I Supporting Organizations

Did the governing body, members of the governing body, officers acting in their official capacity, or membership of one or

more supported organizations have the power to regularly appoint or elect at least a majority of the organization’s officers,

effectively operated, supervised, or controlled the organization’s activities. If the organization had more than one supported directors, or trustees at all times during the tax year? If “No,” describe in Part VI how the supported organization(s)

organization, describe how the powers to appoint and/or remove officers, directors, or trustees were allocated among the

supported organizations and what conditions or restrictions, if any, applied to such powers during the tax year.

Did the organization operate for the benefit of any supported organization other than the supported organization(s) that operated, supervised, or controlled the supporting organization? If “Yes,” explain in Part VI how providing such benefit carried out the purposes of the supported organization(s) that operated, supervised, or controlled the supporting organization.

Section C. Type II Supporting Organizations

Were a majority of the organization’s directors or trustees during the tax year also a majority of the directors or trustees of each of the organization’s supported organization(s)? If “No,” describe in Part VI how control

or management of the supporting organization was vested in the same persons that controlled or managed the supported organization(s).

Section D. All Type III Supporting Organizations

Did the organization provide to each of its supported organizations, by the last day of the fifth month of the organization’s tax year, (i) a written notice describing the type and amount of support provided during the prior tax 1 year, (ii) a copy of the Form 990 that was most recently filed as of the date of notification, and (iii) copies of the organization’s governing documents in effect on the date of notification, to the extent not previously provided? Were any of the organization’s officers, directors, or trustees either (i) appointed or elected by the supported

By reason of the relationship described on line 2, above, did the organization’s supported organizations have

a significant voice in the organization’s investment policies and in directing the use of the organization’s

income or assets at all times during the tax year? If “Yes,” describe in Part VI the role the organization’s

how the organization maintained a close and continuous working relationship with the supported organization(s). organization(s) or (ii) serving on the governing body of a supported organization? If “No,” explain in Part VI supported organizations played in this regard.

Section E. Type III Functionally Integrated Supporting Organizations

1

Check the box next to the method that the organization used to satisfy the Integral Part Test during the year (see instructions).

The organization satisfied the Activities Test. Complete line 2 below.

The organization is the parent of each of its supported organizations. Complete line 3 below. The organization supported a governmental entity. Describe in Part VI how you supported a governmental entity (see instructions). Activities Test. Answer lines 2a and 2b below.

Did substantially all of the organization’s activities during the tax year directly further the exempt purposes of the supported organization(s) to which the organization was responsive? If “Yes,” then in Part VI identify those supported organizations and explain how these activities directly furthered their exempt purposes, how the organization was responsive to those supported organizations, and how the organization determined that these activities constituted substantially all of its activities.

Did the activities described on line 2a, above, constitute activities that, but for the organization’s involvement, one or more of the organization’s supported organization(s) would have been engaged in? If “Yes,” explain in Part VI the reasons for the organization’s position that its supported organization(s) would have engaged in these activities but for the organization’s involvement. Parent of Supported Organizations. Answer lines 3a and 3b below.

Did the organization have the power to regularly appoint or elect a majority of the officers, directors, or trustees of each of the supported organizations? If “Yes” or “No,” provide details in Part VI.

Did the organization exercise a substantial degree of direction over the policies, programs, and activities of each of its supported organizations? If “Yes,” describe in Part VI the role played by the organization in this regard.

1

Check here if the organization satisfied the Integral Part Test as a qualifying trust on Nov. 20, 1970 (explain in Part VI). See instructions. All other Type III non-functionally integrated supporting organizations must complete Sections A through E.

Section A – Adjusted Net Income

Net short-term capital gain

Recoveries of prior-year distributions

Other gross income (see instructions)

Add lines 1 through 3.

Depreciation and depletion

Portion of operating expenses paid or incurred for production or collection of gross income or for management, conservation, or maintenance of property held for production of income (see instructions)

Other expenses (see instructions)

Adjusted Net Income (subtract lines 5, 6, and 7 from line 4)

Section B – Minimum Asset Amount

Aggregate fair market value of all non-exempt-use assets (see instructions for short tax year or assets held for part of year):

a

b

c d

e

Average monthly value of securities

Average monthly cash balances

Fair market value of other non-exempt-use assets

Total (add lines 1a, 1b, and 1c)

Discount claimed for blockage or other factors

(explain in detail in Part VI):

Acquisition indebtedness applicable to non-exempt-use assets

Subtract line 2 from line 1d.

Cash deemed held for exempt use. Enter 0.015 of line 3 (for greater amount, see instructions).

Net value of non-exempt-use assets (subtract line 4 from line 3)

Multiply line 5 by 0.035.

Recoveries of prior-year distributions

Minimum Asset Amount (add line 7 to line 6)

Adjusted net income for prior year (from Section A, line 8, column A)

Enter 0.85 of line 1.

Minimum asset amount for prior year (from Section B, line 8, column A)

Enter greater of line 2 or line 3.

Income tax imposed in prior year

Distributable Amount. Subtract line 5 from line 4, unless subject to emergency temporary reduction (see instructions).

Check here if the current year is the organization's first as a non-functionally integrated Type III supporting organization

(see instructions).

Amounts paid to supported organizations to accomplish exempt purposes

Amounts paid to perform activity that directly furthers exempt purposes of supported organizations, in excess of income from activity

Administrative expenses paid to accomplish exempt purposes of supported organizations

Amounts paid to acquire exempt-use assets

Qualified set-aside amounts (prior IRS approval required—provide details in Part VI)

Other distributions (describe in Part VI). See instructions.

Total annual distributions. Add lines 1 through 6.

Distributions to attentive supported organizations to which the organization is responsive (provide details in Part VI). See instructions.

Distributable amount for 2022 from Section C, line 6

Line 8 amount divided by line 9 amount

Distributable amount for 2023 from Section C, line 6

Underdistributions, if any, for years prior to 2023 (reasonable cause required–explain in Part VI). See

Excess distributions carryover, if any, to 2023

From

From 2019

From 2020

From 2021

Total of lines 3a through 3e

Applied to underdistributions of prior years

Applied to 2023 distributable amount

Carryover from 2018 not applied (see instructions)

Remainder. Subtract lines 3g, 3h, and 3i from line 3f.

Distributions for 2023 from

Section D, line 7: $

Applied to underdistributions of prior years

Applied to 2023 distributable amount

Remainder. Subtract lines 4a and 4b from line 4.

Remaining underdistributions for years prior to 2023, if any. Subtract lines 3g and 4a from line 2. For result greater than zero, explain in Part VI. See instructions. Remaining underdistributions for 2023. Subtract lines 3h and 4b from line 1. For result greater than zero, explain in Part VI. See instructions.

Excess distributions carryover to 2024. Add lines 3j and 4c.

Breakdown of line 7:

Excess from 2019

Excess from 2020

Excess from 2021 instructions.

Excess from 2023

Supplemental Information. Provide the explanations required by Part II, line 10; Part II, line 17a or 17b; Part Part VI

III, line 12; Part IV, Section A, lines 1, 2, 3b, 3c, 4b, 4c, 5a, 6, 9a, 9b, 9c, 11a, 11b, and 11c; Part IV, Section

B, lines 1 and 2; Part IV, Section C, line 1; Part IV, Section D, lines 2 and 3; Part IV, Section E, lines 1c, 2a, 2b, 3a, and 3b; Part V, line 1; Part V, Section B, line 1e; Part V, Section D, lines 5, 6, and 8; and Part V, Section E, lines 2, 5, and 6. Also complete this part for any additional information. (See instructions.)

Department of the Treasury

Internal Revenue Service

Name of the organization

Organization type (check one):

Filers of:

Form 990 or 990-EZ

Schedule of Contributors

Attach to Form 990, 990-EZ, or 990-PF.

Employer identification number

Form 990-PF

Section:

X 3

501(c)( ) (enter number) organization

4947(a)(1) nonexempt charitable trust not treated as a private foundation

527 political organization

501(c)(3) exempt private foundation

4947(a)(1) nonexempt charitable trust treated as a private foundation

501(c)(3) taxable private foundation

Check if your organization is covered by the General Rule or a Special Rule.

Note: Only a section 501(c)(7), (8), or (10) organization can check boxes for both the General Rule and a Special Rule. See

instructions.

General Rule

For an organization filing Form 990, 990-EZ, or 990-PF that received, during the year, contributions totaling $5,000 or more (in money or property) from any one contributor. Complete Parts I and II. See instructions for determining a

contributor's total contributions.

Special Rules

“N/A” in column (b) instead of the contributor name and address), II, and III. NATIONAL

For an organization described in section 501(c)(3) filing Form 990 or 990-EZ that met the 331/3% support test of the regulations under sections 509(a)(1) and 170(b)(1)(A)(vi), that checked Schedule A (Form 990), Part II, line 13, 16a, or 16b, and that received from any one contributor, during the year, total contributions of the greater of (1) $5,000; or

For an organization described in section 501(c)(7), (8), or (10) filing Form 990 or 990-EZ that received from any one contributor, during the year, total contributions of more than $1,000 exclusively for religious, charitable, scientific, (2) 2% of the amount on (i) Form 990, Part VIII, line 1h; or (ii) Form 990-EZ, line 1. Complete Parts I and II.

literary, or educational purposes, or for the prevention of cruelty to children or animals. Complete Parts I (entering

For an organization described in section 501(c)(7), (8), or (10) filing Form 990 or 990-EZ that received from any one contributor, during the year, contributions exclusively for religious, charitable, etc., purposes, but no such contributions totaled more than $1,000. If this box is checked, enter here the total contributions that were received during the year for an exclusively religious, charitable, etc., purpose. Don’t complete any of the parts unless the General Rule applies to this organization because it received nonexclusively religious, charitable, etc., contributions totaling $5,000 or more during the year $

Caution: An organization that isn't covered by the General Rule and/or the Special Rules doesn't file Schedule B (Form 990), but it

must answer “No” on Part IV, line 2, of its Form 990; or check the box on line H of its Form 990-EZ or on its Form 990-PF, Part I, line 2, to certify that it doesn't meet the filing requirements of Schedule B (Form 990).

For Paperwork Reduction Act Notice, see the instructions for Form 990, 990-EZ, or 990-PF.

(Complete Part II for noncash contributions.)

(Complete Part II for noncash contributions.)

(Complete Part II for noncash contributions.)

(Complete Part II for noncash contributions.)

(Complete Part II for noncash contributions.)

Part II for noncash contributions.)

(Complete Part II for noncash contributions.)

(Complete Part II for noncash contributions.)

(Complete Part II for noncash contributions.)

(Complete Part II for noncash contributions.)

(Complete Part II for noncash contributions.)

(Complete Part II for noncash contributions.)

Name of the organization

Supplemental Financial Statements

Complete if the organization answered “Yes” on Form 990,

Part IV, line 6, 7, 8, 9, 10, 11a, 11b, 11c, 11d, 11e, 11f, 12a, or 12b.

Attach to Form 990.

Go to www.irs.gov/Form990 for instructions and the latest information.

Part I Organizations Maintaining Donor Advised Funds or Other Similar Funds or Accounts (Form 990)

Complete if the organization answered “Yes” on Form 990, Part IV, line 6.

Total number at end of year

Aggregate value of contributions to (during year)

Aggregate value of grants from (during year)

Aggregate value at end of year

Complete if the organization answered “Yes” on Form 990, Part IV, line 7. NATIONAL AIR SEA SPACE

Did the organization inform all donors and donor advisors in writing that the assets held in donor advised funds are the organization’s property, subject to the organization’s exclusive legal control?

Did the organization inform all grantees, donors, and donor advisors in writing that grant funds can be used only for charitable purposes and not for the benefit of the donor or donor advisor, or for any other purpose

conferring impermissible private benefit?

Conservation Easements

Purpose(s) of conservation easements held by the organization (check all that apply).

Preservation of land for public use (for example, recreation or education)

Protection of natural habitat

Preservation of open space

Preservation of a historically important land area

Preservation of a certified historic structure

Complete lines 2a through 2d if the organization held a qualified conservation contribution in the form of a conservation

easement on the last day of the tax year.

Total number of conservation easements

Total acreage restricted by conservation easements

Number of conservation easements on a certified historic structure included on line 2a

Number of conservation easements included on line 2c acquired after July 25, 2006, and not

on a historic structure listed in the National Register

3 Number of conservation easements modified, transferred, released, extinguished, or terminated by the organization during the

tax year

Number of states where property subject to conservation easement is located

5 Does the organization have a written policy regarding the periodic monitoring, inspection, handling of violations, and enforcement of the conservation easements it holds?

Staff and volunteer hours devoted to monitoring, inspecting, handling of violations, and enforcing conservation easements during the year

7 Amount of expenses incurred in monitoring, inspecting, handling of violations, and enforcing conservation easements during the year

Does each conservation easement reported on line 2d above satisfy the requirements of section 170(h)(4)(B)(i)

and section 170(h)(4)(B)(ii)?

9 In Part XIII, describe how the organization reports conservation easements in its revenue and expense statement and balance organization’s accounting for conservation easements.

sheet, and include, if applicable, the text of the footnote to the organization’s financial statements that describes the

Part III

Organizations Maintaining Collections of Art, Historical Treasures, or Other Similar Assets

Complete if the organization answered “Yes” on Form 990, Part IV, line 8.

If the organization elected, as permitted under FASB ASC 958, not to report in its revenue statement and balance sheet works

of art, historical treasures, or other similar assets held for public exhibition, education, or research in furtherance of public service, provide in Part XIII the text of the footnote to its financial statements that describes these items. If the organization elected, as permitted under FASB ASC 958, to report in its revenue statement and balance sheet works of art, historical treasures, or other similar assets held for public exhibition, education, or research in furtherance of public service, provide the following amounts relating to these items. (i) (ii)

Assets included in Form 990, Part X

If the organization received or held works of art, historical treasures, or other similar assets for financial gain, provide the

following amounts required to be reported under FASB ASC 958 relating to these items.

Revenue included on Form 990, Part VIII, line 1

Assets included in Form 990, Part X Held at

Schedule D (Form 990) 2023

Using the organization’s acquisition, accession, and other records, check any of the following that make significant use of its

a collection items (check all that apply).

Public exhibition

Scholarly research Preservation for future generations

4 Provide a description of the organization’s collections and explain how they further the organization’s exempt purpose in Part

b c e Other d Loan or exchange program XIII.

During the year, did the organization solicit or receive donations of art, historical treasures, or other similar 5 assets to be sold to raise funds rather than to be maintained as part of the organization’s collection? No

Part IV Escrow and Custodial Arrangements

1a Is the organization an agent, trustee, custodian or other intermediary for contributions or other assets not

included on Form 990, Part X?

b If “Yes,” explain the arrangement in Part XIII and complete the following table.

c

Complete if the organization answered "Yes" on Form 990, Part IV, line 9, or reported an amount on Form Amount Organizations Maintaining Collections of Art, Historical Treasures, or Other Similar Assets (continued)

Beginning balance

d Additions during the year

Distributions during the year e

f Ending balance

2a

Did the organization include an amount on Form 990, Part X, line 21, for escrow or custodial account liability?

If “Yes,” explain the arrangement in Part XIII. Check here if the explanation has been provided on Part XIII b

Complete if the organization answered “Yes” on Form 990, Part IV, line 10. 990, Part X, line 21.

(a) Current year

c Net investment earnings, gains, and Grants or scholarships

e Other expenditures for facilities and Administrative expenses f g End of year balance programs

Provide the estimated percentage of the current year end balance (line 1g, column (a)) held as:

a Board designated or quasi-endowment

The percentages on lines 2a, 2b, and 2c should equal 100%.

Are there endowment funds not in the possession of the organization that are held and administered for the

organization by: (i) (ii) Unrelated organizations? Related organizations?

If “Yes” on line 3a(ii), are the related organizations listed as required on Schedule R?

4 Describe in Part XIII the intended uses of the organization’s endowment funds.

Part VI Land, Buildings, and Equipment 1a

Complete if the organization answered “Yes” on Form 990, Part IV, line 11a. See Form 990, Part X, line 10.

Total. Add lines 1a through 1e. (Column (d) must equal Form 990, Part X, line 10c, column (B))

Complete if the organization answered “Yes” on Form 990, Part IV, line 11b. See Form 990, Part X, line 12.

Complete if the organization answered “Yes” on Form 990, Part IV, line 11c. See Form 990, Part X, line 13.

Complete if the organization answered “Yes” on Form 990, Part IV, line 11d. See Form 990, Part X, line 15.

Complete if the organization answered "Yes" on Form 990, Part IV, line 11e or 11f. See Form 990, Part X, line 25.

1

Complete if the organization answered “Yes” on Form 990, Part IV, line 12a.

Total revenue, gains, and other support per audited financial statements

Amounts included on line 1 but not on Form 990, Part VIII, line 12:

Net unrealized gains (losses) on investments

Donated services and use of facilities

Recoveries of prior year grants

Other (Describe in Part XIII.)

Add lines 2a through 2d

Subtract line 2e from line 1

Amounts included on Form 990, Part VIII, line 12, but not on line 1:

Investment expenses not included on Form 990, Part VIII, line 7b

Other (Describe in Part XIII.)

Add lines 4a and 4b

Total revenue. Add lines 3 and 4c. (This must equal Form 990, Part I, line 12.)

Complete if the organization answered “Yes” on Form 990, Part IV, line 12a.

Amounts included on line 1 but not on Form 990, Part IX, line 25:

Donated services and use of facilities

Other losses

Other (Describe in Part XIII.)

Add lines 2a through 2d

Subtract line 2e from line 1

Amounts included on Form 990, Part IX, line 25, but not on line 1:

Investment expenses not included on Form 990, Part VIII, line 7b

Other (Describe in Part XIII.)

Add lines 4a and 4b

Part XIII

Total expenses. Add lines 3 and 4c. (This must equal Form 990, Part I, line 18.) Supplemental Information

Provide the descriptions required for Part II, lines 3, 5, and 9; Part III, lines 1a and 4; Part IV, lines 1b and 2b; Part V, line 4; Part X, line 2; Part XI, lines 2d and 4b; and Part XII, lines 2d and 4b. Also complete this part to provide any additional information.

PART X - FIN 48 FOOTNOTE MANAGEMENT EVALUATED THE TAX POSITIONS TAKEN AND CONCLUDED THAT THE ORGANIZATION HAD TAKEN NO UNCERTAIN TAX POSITIONS THAT REQUIRE RECOGNITION OR DISCLOSURE. WITH FEW EXCEPTIONS, THE ORGANIZATION IS NO LONGER SUBJECT TO INCOME TAX EXAMINATIONS BY THE U.S FEDERAL, STATE OR LOCAL TAX AUTHORITIES FOR YEARS BEFORE DECEMBER 31, 2020.

Schedule D (Form 990) 2023

to provide information for responses to specific questions on

Form 990 or 990-EZ or to provide any additional information.

Attach to Form 990 or Form 990-EZ. Go to www.irs.gov/Form990 for the latest information.

FORM 990, PART VI, LINE 11B - ORGANIZATION'S PROCESS TO REVIEW FORM 990

BOARD OF DIRECTORS IS PROVIDED WITH A COPY OF THE RETURN PRIOR TO SUBMISSION.

FORM 990, PART VI, LINE 19 - GOVERNING DOCUMENTS DISCLOSURE EXPLANATION

ARTICLES OF INCORPORATION ARE AVAILABLE UNDER SUNBIZ.ORG, THE STATE OF

FLORIDA'S WEBSITE FOR CORPORATE REGISTRATION.

Two Year Comparison Report

gifts, grants

Membership dues and assessments

Investment income

Net gain or (loss) from sale of assets other than inventory

Net income or (loss) from fundraising events

Net gain or (loss) on sales of inventory

Other revenue

revenue. Add lines 1 through 11

Grants and similar amounts paid

Benefits paid to or for members

Salaries, other compensation, and employee benefits

Professional fundraising fees

Occupancy, rent, utilities, and maintenance

Depreciation and Depletion

Other expenses

expenses. Add lines 13 through 21

Excess or (Deficit). Subtract line 22 from line 12

exempt revenue

unrelated revenue

assets

Net income or (loss) from gaming Total liabilities

earnings

Membership

Other

Total

Grants

Benefits

Other

Professional

Occupancy

Depreciation

Other

Total

FYE: 12/31/2023

Form 990, Part IX, Line 11g - Other Fees for Service (Non-employee)

Form 990, Part IX, Line 24e - All Other Expenses

HAMILTON & MUSSER, PC

Certified Public Accountants · Consultants to Management

DAVID A. HAMILTON, CPA · BARRY E. MUSSER, CPA, CFP® (1959 - 2020)

JAMES A. KRIMMEL, MBA, CPA, CFE, CFF · ROBERT D. MAST, CPA · WILLIAM P. ASHMAN, CPA

NICHOLAS L. SHEARER, CPA, CGFM, CFE · LISA M. STATLER, CPA · MATTHEW A. WITMER, CPA

November 13, 2024

National Air Sea Space Foundation, Inc.

5700 N US Hwy 1, Suite 280 Melbourne, FL 32935

For professional services rendered in connection with the preparation of the annual regulatory filings for the year ended 12/31/23:

Financial Policy of Hamilton & Musser, PC

All fees are due upon receipt of invoice.

We accept: cash, check, money order or credit card. (Visa, MasterCard, American Express & Discover)

Returned Check Fee:

There will be a $25.00 fee for all returned checks.

Overdue Accounts:

If fees are not received within 30 days, a finance charge will be added to your account balance at a standard monthly rate of 1.5% (Annual Percentage Rate of 18%).

If payment of service is not received within 90 days, your account will be turned over to a collection agency. If your account is turned over to our collection agency, collection fees will be added to your account. These fees are up to 100% of your account balance plus $100. If your account has been turned over to a collection agency, services will be suspended and your credit score may be affected.

INVOICE PAYMENT OPTIONS:

If you choose to pay by check, please detach this slip at the dotted line above and return it with your payment. Your cancelled check will be your receipt of payment unless you specifically request a separate receipt.

If you choose to pay by credit card, complete the information below. A receipt will be mailed to you at the address you provide, when your credit card payment has been successfully processed.

Client ID: NASSFI Name: National Air Sea Space

Payment by Check #:__________ Send Receipt for Check Payment:____Y ____N

Credit Card Type: ___Visa ___MasterCard ___American Express ___Discover

Credit Card #:___________________________________ Exp. Date:___________

Card Id Number: (3 digits on back of card) ____________ Zip Code:____________

Amount to Charge $______________

Address to send receipt:

05/29/2025

Brevard

Productions/Space Coast State Fair

Return to Table of Contents

Tourism Development Office

FY 2025-2026 Marketing Support Program

Application Packet checklist

Applicant Organization Name: Brevard Productions, Inc

Applicant Event Name: Space Coast State Fair, Space Coast Strawberry, Space Coast Key Lime

Yes No Comment

1. Completed application X

2. Copyof IRSArticlesof X Incorporation- (ifapplicable)

3. Copyof IRS Determination letter X NIA - (ifapplicable)

4. Copy of SunBiz.org(if applicable) X

5. Copyof 990 (ifapplicable) X NIA

6. Copyof completedW-9 (March X 2024)

7. Income/Expenseworksheet X (required for all applicants)

8. Copyof theApplicantchecklist X

Thisapplication meets the minimumrequirement of 5,001 out-of-countyattendees (Cultural) or 250 room nights (Sports).

NO

All documents have beensubmitted, reviewedand/or addressed in the comments.

FY 2025-2026 Marketing Support Program application

Response ID:39 Data

2.(untitled)

1. I have read and understand the policies/procedures within the FY 2025-2026 Marketing Support Program Criteria.

Signature of: Giles Malone

3.(untitled)

2. Which best describes your event/year-round programming? Cultural 4.(untitled)

3. ORGANIZATION INFORMATION

Name of organization hosting event/year-round programming

Brevard Production Inc.

Organization address 2230 Sykes Creek Drive State FL City

Merritt Island Zip 32953

Primary contact name Giles Malone

Primary contact phone number 3213026565

Primary contact email gilesmalone@gmail.com

Secondary contact name Tom Palermo

Secondary contact phone number 3216158111

Secondary contact email palermo.tom@gmail.com

Organization website address 750 Avocado Drive

5.(untitled)

4. Which best describes your organization? For profit, LLC, Inc., etc.

6.(untitled)

5. What is your Federal Employee ID number? 204569017

7.(untitled)

6. Are you completing this application for an event or year-round programming?

Event - single or multi-day festival, surfing contest, running race, Main Street organizations, etc.

8.(untitled)

7. EVENT INFORMATION - #1

Name of event

40th Annual Space Coast State Fair

Event website address (if different from organization website) www.SpaceCoastStateFair.com

Event location

Space Coast Daily Park, 5775 Stadium Parkway, Viera, Fl 32940

15. EVENT INFORMATION - #3

Name of event

Space Coast Strawberry Festival

Event website address (if different from organization website) www.SpaceCoastStrawberryFestival.com

Event location

Space Coast Daily Park, 5775 Stadium Parkway, Viera, Fl 32940

17.(untitled)

16. What is the first date of your event? 03/14/2026

18.(untitled)

17. In total, how many days will your event be held?

2

19.(untitled)

18. What types of marketing do you plan to do for this event?

Billboards

Digital advertising (banner ads, etc.)

Direct mail

Radio

Search advertising (pay-per-click, etc.)

Social hashtags

Social media (Facebook, Instagram, YouTube, etc.)

TV/Video

Other - Please be specific.....: Posters, fliers, banners, Orlando hotel front desks with discount coupons, fliers etc.

20.(untitled)

What types of marketing do you plan to do for your year-round programming?

21.(untitled)

19. What are your social media handles?

Facebook : https://www.facebook.com/spacecoastfair

Instagram : https://www.instagram.com/spacecoaststatefair?igsh=MXJhaTh2ZHd5OHV3Yw==

YouTube : https://www.youtube.com/results?search_query=space+coast+state+fair

22.(untitled)

20. What hashtags do you currently use? #spacecoaststatefair

23.(untitled)

Upload a copy of your organization's IRS Determination letter.

24.(untitled)

Upload a copy of your organization's 990 form.

25.(untitled)

21. Upload a copy of your organization's Articles of Incorporation. BPI_Articles_of_Incorporation.pdf

26.(untitled)

22. If you are a Florida organization, please upload a copy of your SunBiz.com account associated with your organization. SunBiz_Annual_Report.pdf

27.(untitled)

23. Upload your completed W-9 form. Brevard_Productions_W9.pdf

28.(untitled)

24. Upload your completed Event Income/Expense report. TDC_Grant_request_Income_and_Expenses_-_Sheet1.pdf

29.(untitled)

25. Upload your completed Checklist.

30.(untitled)

26.

ATTESTATION

I attest that all information in this questionnaire is true and correct. I further attest that will comply with the requirements set forth, if awarded support.

Signature of: Giles Malone

31.Thank You!

New Send Email Jun 01, 2025 21:33:03 Success: Email Sent to: Deborah.Webster@VisitSpaceCoast.com; Terrence.Parks@VisitSpaceCoast.com

Current Principal Place of Business:

750 AVOCADO DR.

ISLAND, FL 32953

Current Mailing Address: 750 AVOCADO DR. MERRITT ISLAND, FL 32953 Entity Name:

FEI Number: 20-4569017

Name and Address of

PALERMO,

ISLAND,

The

SIGNATURE:

Merritt Island Wildlife Refuge

Return to Table of Contents

Tourism Development Office

FY 2025-2026 Marketing Support Program Application

Packet checklist

Applicant Organization Name: Merritt Island Wildlife Association

Applicant Event Name: Year-round programming

Yes No Comment

1. Completed application X

2. Copy of IRS Articles of X N/A Incorporation- (ifapplicable)

3. Copyof IRS Determination letter X - (if applicable)

4. Copyof SunBiz.org (if applicable) X

5. Copyof 990 (ifapplicable) X

6. Copyof completedW-9 (March X 2024)

7. Income/Expenseworksheet X (required for allapplicants)

8. Copy of the Applicant checklist X

This applicationmeets theminimumrequirementof 5,001 out-of-countyattendees (Cultural)or 250 roomnights (Sports).

NO

All documents have been submitted, reviewedand/or addressed in thecomments.

FY 2025-2026 Marketing Support Program application

Response ID:83 Data

2.(untitled)

1. I have read and understand the policies/procedures within the FY 2025-2026 Marketing Support Program Criteria.

Signature of: Rochelle A. Hood

3.(untitled)

2. Which best describes your event/year-round programming? Cultural 4.(untitled)

3. ORGANIZATION INFORMATION

Name of organization hosting event/year-round programming Merritt Island Wildlife Association

Organization address PO Box 2683

State FL City

Titusville Zip 32781

Primary contact name Rochelle Hood

Primary contact phone number 321-861-2377

Primary contact email miwascrubjay@gmail.com

Secondary contact name Nancy Bray (MIWA Board President)

Secondary contact phone number 321-268-1181

Secondary contact email nsbray@bellsouth.net

Organization website address https://miwarefuge.org/

5.(untitled)

4. Which best describes your organization?

501(C)(3)

6.(untitled)

5. What is your Federal Employee ID number? 59-3289841

7.(untitled)

6. Are you completing this application for an event or year-round programming? Year-round programming - theater, symphony, concerts, museum, etc.

8.(untitled)

1. EVENT INFORMATION - #1

Name of event

Event website address (if different from organization website)

Event location

9.(untitled)

What is the first date of your event?

In total, how many days will your event be held?

11.(untitled)

7. Do you have a second event? No

12.(untitled)

4. EVENT INFORMATION - #2

Name of event

Event website address (if different from organization website) Event location

13.(untitled)

What is the first date of your event?

14.(untitled)

In total, how many days will your event be held?

15.(untitled)

Do you have a third event?

16.(untitled)

8. EVENT INFORMATION - #3

Name of event

Event website address (if different from organization website) Event location

17.(untitled)

What is the first date of your event?

18 (untitled)

In total, how many days will your event be held?

19. (untitled)

What types of marketing do you plan to do for this event?

20. (untitled)

8. What types of marketing do you plan to do for your year-round programming?

Digital advertising (banner ads, etc )

Radio

Search advertising (pay-per-click, etc )

Social hashtags

Social media (Facebook, Instagram, YouTube, etc )

Other - Please be specific : Newsletter (printed and digital)

21. (untitled)

9. What are your social media handles?

Facebook : @merrittislandwildlifeassociation

Instagram : @merrittislandwildlife

22. (untitled)

10. What hashtags do you currently use?

NA

23 (untitled)

11. Upload a copy of your organization's IRS Determination letter.

FinalLetter 59-3289841 MERRITTISLANDWILDLIFEASSOCIATION 07062023 00 Determination Letter IRS pdf

24. (untitled)

12. Upload a copy of your organization's 990 form.

FY Oct 2023 to Sept 2024 eFiled Signed Form 990 pdf

25.(untitled)

Upload a copy of your organization's Articles of Incorporation.

26.(untitled)

13. If you are a Florida organization, please upload a copy of your SunBiz.com account associated with your organization.

Florida_Not_For_Profit_Corporation_Sunbiz_Document_number_and_filing_details.pdf

27.(untitled)

14. Upload your completed W-9 form. Merritt_Island_Wildlife_Association_W9_MIWA.pdf

28.(untitled)

15. Upload your completed Event Income/Expense report. MIWA_Event_Income_Expense_Report_FY25-26_Rochelle_Hood_Merritt_Island_Wildlife_Association_completed.pdf

29.(untitled)

16. Upload your completed Checklist. MSP_applicant_checklist_4.30.2025_Rochelle_Hood_MIWA_completed.pdf

30.(untitled)

I attest that all information in this questionnaire is true and correct. I further attest that will comply with the requirements set forth, if awarded support.

P.O. Box 2508

Cincinnati,OH45201

MERRITT ISLAND WILDLIFE ASSOCIATION

PO BOX 2683

TITUSVILLE,FL32781-2683

Date: 07/20/2023

Employer ID number: 59-3289841

Person to contact:

Name:Customer Service ID number:31954 Telephone:877-829-5500

Accounting period ending: September 30

Public charity status: 170(b)(1)(A)(vi)

Form 990 / 990-EZ / 990-N required: Yes

Effective date of exemption: February 15, 2022

Contribution deductibility: Yes

Addendum applies: No

DLN: 26053591004673

DearApplicant:

We're pleased to tell you we determined you're exempt from federal income tax under Internal Revenue Code (IRC) Section 501(c)(3). Donors can deduct contributions they make to you under IRC Section 170. You're also qualified to receive tax deductible bequests, devises, transfers or gifts under Section 2055, 2106, or 2522. This letter could help resolve questions on your exempt status. Please keep it for your records.

Organizations exempt under IRC Section 501(c)(3) are further classified as either public charities or private foundations. We determined you're a public charity under the IRC Section listed at the top of this letter.

Based on the information you submitted with your application, we approved your request for reinstatement under Revenue Procedure 2014-11. Your effective date of exemption, as listed at the top of this letter, is retroactive to your date of revocation.

If we indicated at the top of this letter that you're required to file Form 990/990-EZ/990-N, our records show you're required to file an annual information return (Form 990 or Form 990-EZ) or electronic notice (Form 990-N, the e-Postcard). If you don't file a required return or notice for three consecutive years, your exempt status will be automatically revoked.

If we indicated at the top of this letter that an addendum applies, the enclosed addendum is an integral part of this letter.

For important information about your responsibilities as a tax-exempt organization, go to www.irs.gov/charities. Enter "4221-PC" in the search bar to view Publication 4221-PC, Compliance Guide for 501(c)(3) Public Charities, which describes your recordkeeping, reporting, and disclosure requirements.

We sent a copy of this letter to your representative as indicated in your power of attorney.

Sincerely,

Florida

Not For Profit Corporation (Sunbiz)

MERRITT ISLAND WILDLIFE ASSOCIATION, INC.

Filing Information

Document NumberN94000005425 FEI/EIN Number59-3289841 Date Filed10/31/1994 StateFL StatusACTIVE

Last EventREINSTATEMENT Event Date Filed01/19/2023

Principal Address

MERRITT ISLAND WILDLIFE REFUGE VIC

3.5 MILES EAST TITUSVILLE, STATE ROAD 402 TITUSVILLE, FL 32796

Changed: 02/17/2010

Mailing Address

P.O. BOX 2683

TITUSVILLE, FL 32781

Changed: 02/17/2010

Registered Agent Name & Address Thomspson, Laurilee

MERRIT ISLAND NWR VIC

3.5 MILES EAST, SR 402 TITUSVILLE, FL 32796

Name Changed: 02/11/2021

Address Changed: 04/06/2009

Officer/Director Detail Name & Address

Title VP

Thompson, Laurilee

P.O. Box 307

Mims, FL 32754

Title Treasurer

Dunn, Steve

3445 S. Washington Ave Titusville, FL 32780

Title Secretary

Stees, Diane

21 Bougainvillea Drive

Cocoa Beach, FL 32931

Title President

Venuto, Charlie

195 Montecito Dr Satellite Beach, FL 32937

Report Year Filed Date

2021 02/11/2021

2022 01/19/2023

2023 01/19/2023

3960

Taylor & Lockard, PA.

321-784-4515

February 19, 2025

CONFIDENTIAL

Merritt Island Wildlife Association PO Box 2683

TITUSVILLE, FL 32781

Dear Cheryl:

We have prepared the following returns from information provided by you without verification or audit.

Return of Organization Exempt From Income Tax (Form 990)

We suggest that you examine these returns carefully to fully acquaint yourself with all items contained therein to ensure that there are no omissions or misstatements. Attached are instructions for signing and filing each return. Please follow those instructions carefully.

Enclosed is any material you furnished for use in preparing the returns. If the returns are examined, requests may be made for supporting documentation. Therefore, we recommend that you retain all pertinent records for at least seven years.

In order that we may properly advise you of tax considerations, please keep us informed of any significant changes in your financial affairs or of any correspondence received from taxing authorities.

If you have any questions, or if we can be of assistance in any way, please call.

Sincerely,

Taylor & Lockard, PA.

Filing Instructions

Merritt Island Wildlife Association

Exempt Organization Tax Return

Taxable Year Ended September 30, 2024

Date Due: August 15, 2025

Remittance: None is required. Your Form 990 for the tax year ended 9/30/24 shows no balance due.

Signature: You are using a Personal Identification Number (PIN) for signing your return electronically. Form 8879-TE, IRS e-file Signature Authorization for an Exempt Organization should be signed and dated by an authorized officer of the organization and returned to:

Taylor & Lockard, PA. 3960 South Banana River Blvd. Cocoa Beach, FL 32931

Important: Your return will not be filed with the IRS until the signed Form 8879-TE has been received by this office.

Other: Your return is being filed electronically with the IRS and is not required to be mailed. If you Mail a papercopy of your return to the IRS it will delay the processing of your return.

Name and title of officer or person subject to tax

For calendar year 2023, or fiscal year beginning 10/01 , 2023, and ending 9/30 , 20 24 Do not send to the IRS. Keep for your records. Go to www.irs.gov/Form8879TE for the latest information.

CHERYL FORD TREASURER

Part I Type of Return and Return Information

Check the box for the return for which you are using this Form 8879-TE and enter the applicable amount, if any, from the return. Form 8038-CP and Form 5330 filers may enter dollars and cents. For all other forms, enter whole dollars only. If you check the box on line 1a, 2a, 3a, 4a, 5a, 6a, 7a, 8a, 9a, or 10a below, and the amount on that line for the return being filed with this form was blank, then leave line 1b, 2b, 3b, 4b, 5b, 6b, 7b, 8b, 9b, or 10b, whichever is applicable, blank (do not enter -0-). But, if you entered -0- on the return, then enter -0- on the applicable line below. Do not complete more than one line in Part I.

1a Form 990 check here X

2a Form 990-EZ check here

3a Form 1120-POL check here

4a Form 990-PF check here

5a Form 8868 check here

6a Form 990-T check here

7a Form 4720 check here

8a Form 5227 check here

9a Form 5330 check here

10a Form 8038-CP check here

b Total revenue, if any (Form 990, Part VIII, column (A), line 12)

b Total revenue, if any (Form 990-EZ, line 9)

b Total tax (Form 1120-POL, line 22)

b Tax based on investment income (Form 990-PF, Part V, line 5)

b Balance due (Form 8868, line 3c)

b Total tax (Form 990-T, Part III, line 4)

b Total tax (Form 4720, Part III, line 1)

b FMV of assets at end of tax year (Form 5227, Item D)

b Tax due (Form 5330, Part II, line 19)

Part II Declaration and Signature Authorization of Officer or Person Subject to Tax

b Amount of credit payment requested (Form 8038-CP, Part III, line 22)

Under penalties of perjury, I declare that X I am an officer of the above entity or I am a person subject to tax with respect to (name

of entity) , (EIN) and that I have examined a copy of the 2023 electronic return and accompanying schedules and statements, and, to the best of my knowledge and belief, they are true, correct, and complete. I further declare that the amount in Part I above is the amount shown on the copy of the electronic return. I consent to allow my intermediate service provider, transmitter, or electronic return originator (ERO) to send the return to the IRS and to receive from the IRS (a) an acknowledgement of receipt or reason for rejection of the transmission, (b) the reason for any delay in processing the return or refund, and (c) the date of any refund. If applicable, I authorize the U.S. Treasury and its designated Financial Agent to initiate an electronic funds withdrawal (direct debit) entry to the financial institution account indicated in the tax preparation software for payment of the federal taxes owed on this return, and the financial institution to debit the entry to this account. To revoke a payment, I must contact the U.S. Treasury Financial Agent at 1-888-3534537 no later than 2 business days prior to the payment (settlement) date. I also authorize the financial institutions involved in the processing of the electronic payment of taxes to receive confidential information necessary to answer inquiries and resolve issues related to the payment. I have selected a personal identification number (PIN) as my signature for the electronic return and, if applicable, the consent to electronic funds withdrawal PIN: check one box only

I authorize TAYLOR & LOCKARD, PA.

to enter my PIN as my signature ERO firm name

Enterfive numbers, but do not enter all zeros

on the tax year 2023 electronically filed return. If I have indicated within this return that a copy of the return is being filed with a state agency(ies) regulating charities as part of the IRS Fed/State program, I also authorize the aforementioned ERO to enter my PIN on the return’s disclosure consent screen.

As an officer or person subject to tax with respect to the entity, I will enter my PIN as my signature on the tax year 2023 electronically filed return. If I have indicated within this return that a copy of the return is being filed with a state agency(ies) regulating charities as part of the IRS Fed/State program, I will enter my PIN on the return’s disclosure consent screen.

Date 02/05/25

Signature of officer or person subject to tax

Part III Certification and Authentication

ERO's EFIN/PIN. Enter your six-digit electronic filing identification number (EFIN) followed by your five-digit self-selected PIN.

Do not enter all zeros

I certify that the above numeric entry is my PIN, which is my signature on the 2023 electronically filed return indicated above. I confirm that I am submitting this return in accordance with the requirements of Pub. 4163, Modernized e-File (MeF) Information for Authorized IRS e-file

Providers for Business Returns.

ERO's signature ERROL BANNISTER Date 02/05/25

1 Briefly describe the organization's mission or most significant activities: TO PROMOTE CONSERVATION AWARENESS AND APPRECIATION OF THE MERRITT ISLAND NATIONAL WILDLIFE REFUGE AND TO PROVIDE ASSISTANCE TO REFUGE PROGRAMS

2 Check this box if the organization discontinued its operations or disposed of more than 25% of its net assets.

3 Number of voting members of the governing body (Part VI, line 1a)

4 Number of independent voting members of the governing body (Part VI, line 1b)

5 Total number of individuals employed in calendar year 2023 (Part V, line 2a)

Total number of volunteers (estimate if necessary)

Total unrelated business revenue from Part VIII, column (C), line 12

unrelated business taxable income from Form 990-T, Part I, line 11

8 Contributions and grants (Part VIII, line 1h)

9 Program service revenue (Part VIII, line 2g)

10 Investment income (Part VIII, column (A), lines 3, 4, and 7d)

11 Other revenue (Part VIII, column (A), lines 5, 6d, 8c, 9c, 10c, and 11e)

12 Total revenue – add lines 8 through 11 (must equal Part VIII, column (A), line 12)

13 Grants and similar amounts paid (Part IX, column (A), lines 1–3)

14 Benefits paid to or for members (Part IX, column (A), line 4)

15 Salaries, other compensation, employee benefits (Part IX, column (A), lines 5–10)

16a Professional fundraising fees (Part IX, column (A), line 11e)

b Total fundraising expenses (Part IX, column (D), line 25) 1,420

17 Other expenses (Part IX, column (A), lines 11a–11d, 11f–24e)

18 Total expenses. Add lines 13–17 (must equal Part IX, column (A), line 25)

407,139 90,195 3,998 5,714 142 7,194 79,167 111,050 490,446 214,153

19 Revenue less expenses. Subtract line 18 from line 12 358,023 1,449 314 46,653 153,507 0 120,221 56,330 524,897 211,600 -34,451 2,553

20 Total assets (Part X, line 16)

21 Total liabilities (Part X, line 26)

22 Net assets or fund balances. Subtract line 21 from line 20

489,912

425 222,507 489,487

Part III Statement of Program Service

Check if Schedule O contains a response or note to any line in this Part III

1 Briefly describe the organization's mission: TO PROMOTE CONSERVATION AWARENESS AND APPRECIATION OF THE MERRITT ISLAND NATIONAL WILDLIFE REFUGE AND TO PROVIDE ASSISTANCE TO REFUGE PROGRAMS

2 Did the organization undertake any significant program services during the year which were not listed on the prior Form 990 or 990-EZ?

If "Yes," describe these new services on Schedule O.

3 Did the organization cease conducting, or make significant changes in how it conducts, any program services?

If "Yes," describe these changes on Schedule O.

4 Describe the organization's program service accomplishments for each of its three largest program services, as measured by expenses. Section 501(c)(3) and 501(c)(4) organizations are required to report the amount of grants and allocations to others, the total expenses, and revenue, if any, for each program service reported.

4a (Code: ) (Expenses $ 11,900 including grants of $ 11,900 ) (Revenue $ ) MERRITT ISLAND WILDLIFE ASSOCIATION IS ASSISTING THE MERRITT ISLAND NATIONAL WILDLIFE REFUGE WITH THE CONSTRUCTION OF THE NEW COMMUNITY CONSERVATION AND EDUCATION CENTER BY PROVIDING FUNDING FOR THE INDOOR AND OUTDOOR EDUCATION EXHIBITS. MERRITT ISLAND WILDLIFE ASSOCIATION IS RECEIVING GRANT FUNDS FROM THE BREVARD COUNTY TOURIST DEVELOPMENT COMMISSION TO SUPPORT THE FUNDING OF THESE EXHIBITS. MERRITT ISLAND WILDLIFE ASSOCIATION HAS BEGUN RECEIVING THE OUTDOOR EXHIBITS AND IS STORING THOSE ON MERRITT ISLAND NWR PREMISES UNTIL THE CONSTRUCTION OF THE COMMUNITY CONSERVATION AND EDUCATION CENTER CONSTRUCTION IS READY FOR THE OUTDOOR INSTALLATION. THE INDOOR EXHIBITS HAVE BEEN DESIGNED AND ORDERED AND ARE AWAITING INSTALLATION.

4b (Code: ) (Expenses $ 8,390 including grants of $ 950 ) (Revenue $ 17,747 )

MERRITT ISLAND WILDLIFE ASSOCIATION PROVIDES THE FUNDING FOR SELECT YOUTH AND GUEST PROGRAMS MERRITT ISLAND NWR. THESE PROGRAMS ASSIST MERRITT ISLAND NWR STAFF PROVIDE MATERIALS AND SNACKS TO YOUTH AND ADULT PROGRAMS. IN FISCAL YEAR (FY) 2024, MERRITT ISLAND WILDLIFE ASSOCIATION RAISED FUNDS FOR THE REPAIR AND UPGRADE OF OUR SENDLER EDUCATION OUTPOST EDUCATION PAVILION. THE OUTPOST IS UTILIZED FOR SCOUTING TROOP CAMP OUTS, COMMUNITY WILDLIFE & CONSERVATION EDUCATION PROGRAMS, ARCHERY TRAINING, AND HOME SCHOOL LEARNING ACTIVITES. THE CONSTRUCTION PROJECT WILL BE COMPLETED IN FISCAL YEAR 2025. THE FUNDS RAISED WILL BE UTILIZED TO COMPLETE STRUCTURAL DAMAGE REPAIRS, STRENGTHEN SITE SAFETY, AND ENHANCE THE PAVILION FUNCTIONALITY TO CREATE AN OUTDOOR DISCOVERY HUB.

4c (Code: ) (Expenses $ 3,000 including grants of $ ) (Revenue $ 1,390 ) MERRITT ISLAND WILDLIFE ASSOCIATION PROVIDES THE FUNDING FOR AN INTERN TO LEAD SEA TURTLE WALKS FOR THE MERRITT ISLAND NWR AT THE CANAVERAL NATIONAL SEASHORE. 296 PARTICIPANTS ATTENDED THESE WALKS OVER THE SEASON AND LEARNED ABOUT OUR ENDANGERED SEA TURTLES AND THE IMPORTANCE OF PROTECTING THEIR HABITAT.

4d Other program services (Describe on Schedule O.) (Expenses $ 99,220 including grants of $ ) (Revenue $ )

1 Is the organization described in section 501(c)(3) or 4947(a)(1) (other than a private foundation)? If “Yes,” complete Schedule A

2 Is the organization required to complete Schedule B, Schedule of Contributors? See instructions

3 Did the organization engage in direct or indirect political campaign activities on behalf of or in opposition to candidates for public office? If “Yes,” complete Schedule C, Part I

4 Section 501(c)(3) organizations. Did the organization engage in lobbying activities, or have a section 501(h) election in effect during the tax year? If "Yes," complete Schedule C, Part II

5 Is the organization a section 501(c)(4), 501(c)(5), or 501(c)(6) organization that receives membership dues, assessments, or similar amounts as defined in Rev. Proc. 98-19? If "Yes," complete Schedule C, Part III

6 Did the organization maintain any donor advised funds or any similar funds or accounts for which donors have the right to provide advice on the distribution or investment of amounts in such funds or accounts? If “Yes,” complete Schedule D, Part I

7 Did the organization receive or hold a conservation easement, including easements to preserve open space, the environment, historic land areas, or historic structures? If “Yes,” complete Schedule D, Part II

8 Did the organization maintain collections of works of art, historical treasures, or other similar assets? If “Yes,” complete Schedule D, Part III

9 Did the organization report an amount in Part X, line 21, for escrow or custodial account liability; serve as a custodian for amounts not listed in Part X; or provide credit counseling, debt management, credit repair, or debt negotiation services? If “Yes,” complete Schedule D, Part IV

10 Did the organization, directly or through a related organization, hold assets in donor-restricted endowments or in quasi-endowments? If “Yes,” complete Schedule D, Part V

11 If the organization's answer to any of the following questions is “Yes,” then complete Schedule D, Parts VI, VII, VIII, IX, or X, as applicable.

a Did the organization report an amount for land, buildings, and equipment in Part X, line 10? If "Yes," complete Schedule D, Part VI

b Did the organization report an amount for investments other securities in Part X, line 12, that is 5% or more of its total assets reported in Part X, line 16? If "Yes," complete Schedule D, Part VII

c Did the organization report an amount for investments program related in Part X, line 13, that is 5% or more of its total assets reported in Part X, line 16? If "Yes," complete Schedule D, Part VIII

d Did the organization report an amount for other assets in Part X, line 15, that is 5% or more of its total assets reported in Part X, line 16? If "Yes," complete Schedule D, Part IX e

Did the organization report an amount for other liabilities in Part X, line 25? If "Yes," complete Schedule D, Part X f

Did the organization's separate or consolidated financial statements for the tax year include a footnote that addresses the organization's liability for uncertain tax positions under FIN 48 (ASC 740)? If "Yes," complete Schedule D, Part X

12a Did the organization obtain separate, independent audited financial statements for the tax year? If “Yes,” complete Schedule D, Parts XI and XII

b Was the organization included in consolidated, independent audited financial statements for the tax year? If "Yes," and if the organization answered "No" to line 12a, then completing Schedule D, Parts XI and XII is optional

13 Is the organization a school described in section 170(b)(1)(A)(ii)? If “Yes,” complete Schedule E 14a Did the organization maintain an office, employees, or agents outside of the United States?

b Did the organization have aggregate revenues or expenses of more than $10,000 from grantmaking, fundraising, business, investment, and program service activities outside the United States, or aggregate foreign investments valued at $100,000 or more? If “Yes,” complete Schedule F, Parts I and IV

15 Did the organization report on Part IX, column (A), line 3, more than $5,000 of grants or other assistance to or for any foreign organization? If “Yes,” complete Schedule F, Parts II and IV

16 Did the organization report on Part IX, column (A), line 3, more than $5,000 of aggregate grants or other assistance to or for foreign individuals? If “Yes,” complete Schedule F, Parts III and IV

17 Did the organization report a total of more than $15,000 of expenses for professional fundraising services on Part IX, column (A), lines 6 and 11e? If “Yes,” complete Schedule G, Part I. See instructions

18 Did the organization report more than $15,000 total of fundraising event gross income and contributions on Part VIII, lines 1c and 8a? If "Yes," complete Schedule G, Part II

19 Did the organization report more than $15,000 of gross income from gaming activities on Part VIII, line 9a? If "Yes," complete Schedule G, Part III

20a Did the organization operate one or more hospital facilities? If “Yes,” complete Schedule H

b If “Yes” to line 20a, did the organization attach a copy of its audited financial statements to this return?

21 Did the organization report more than $5,000 of grants or other assistance to any domestic organization or domestic government on Part IX, column (A), line 1? If “Yes,” complete Schedule I, Parts I and II

22 Did the organization report more than $5,000 of grants or other assistance to or for domestic individuals on Part IX, column (A), line 2? If “Yes,” complete Schedule I, Parts I and III

23 Did the organization answer “Yes” to Part VII, Section A, line 3, 4, or 5 about compensation of the organization's current and former officers, directors, trustees, key employees, and highest compensated employees? If "Yes," complete Schedule J

24a Did the organization have a tax-exempt bond issue with an outstanding principal amount of more than $100,000 as of the last day of the year, that was issued after December 31, 2002? If “Yes,” answer lines 24b through 24d and complete Schedule K. If “No,” go to line 25a

b Did the organization invest any proceeds of tax-exempt bonds beyond a temporary period exception?

c Did the organization maintain an escrow account other than a refunding escrow at any time during the year to defease any tax-exempt bonds?

d Did the organization act as an “on behalf of” issuer for bonds outstanding at any time during the year?

25a Section 501(c)(3), 501(c)(4), and 501(c)(29) organizations. Did the organization engage in an excess benefit transaction with a disqualified person during the year? If “Yes,” complete Schedule L, Part I

b Is the organization aware that it engaged in an excess benefit transaction with a disqualified person in a prior year, and that the transaction has not been reported on any of the organization's prior Forms 990 or 990-EZ? If "Yes," complete Schedule L, Part I

26 Did the organization report any amount on Part X, line 5 or 22, for receivables from or payables to any current or former officer, director, trustee, key employee, creator or founder, substantial contributor, or 35% controlled entity or family member of any of these persons? If “Yes,” complete Schedule L, Part II

27 Did the organization provide a grant or other assistance to any current or former officer, director, trustee, key employee, creator or founder, substantial contributor or employee thereof, a grant selection committee member, or to a 35% controlled entity (including an employee thereof) or family member of any of these persons? If “Yes,” complete Schedule L, Part III

28 Was the organization a party to a business transaction with one of the following parties? (See the Schedule L, Part IV, instructions for applicable filing thresholds, conditions, and exceptions).

a A current or former officer, director, trustee, key employee, creator or founder, or substantial contributor? If "Yes,” complete Schedule L, Part IV

b A family member of any individual described in line 28a? If “Yes,” complete Schedule L, Part IV

c A 35% controlled entity of one or more individuals and/or organizations described in line 28a or 28b? If “Yes,” complete Schedule L, Part IV

29 Did the organization receive more than $25,000 in noncash contributions? If “Yes,” complete Schedule M

30 Did the organization receive contributions of art, historical treasures, or other similar assets, or qualified conservation contributions? If “Yes,” complete Schedule M

31 Did the organization liquidate, terminate, or dissolve and cease operations? If “Yes,” complete Schedule N, Part I

32 Did the organization sell, exchange, dispose of, or transfer more than 25% of its net assets? If "Yes," complete Schedule N, Part II

33 Did the organization own 100% of an entity disregarded as separate from the organization under Regulations sections 301.7701-2 and 301.7701-3? If “Yes,” complete Schedule R, Part I

34 Was the organization related to any tax-exempt or taxable entity? If “Yes,” complete Schedule R, Part II, III, or IV, and Part V, line 1

35a Did the organization have a controlled entity within the meaning of section 512(b)(13)?

b If "Yes" to line 35a, did the organization receive any payment from or engage in any transaction with a controlled entity within the meaning of section 512(b)(13)? If “Yes,” complete Schedule R, Part V, line 2

36 Section 501(c)(3) organizations. Did the organization make any transfers to an exempt non-charitable related organization? If “Yes,” complete Schedule R, Part V, line 2

37 Did the organization conduct more than 5% of its activities through an entity that is not a related organization and that is treated as a partnership for federal income tax purposes? If “Yes,” complete Schedule R, Part VI

38 Did the organization complete Schedule O and provide explanations on Schedule O for Part VI, lines 11b and 19? Note: All Form 990 filers are required to complete Schedule O.

reportable gaming (gambling) winnings to prize winners? Part V

Check if Schedule O contains a response or note to any line in this Part V

1a b c Enter the number reported in box 3 of Form 1096. Enter -0- if not applicable Enter the number of Forms W-2G included on line 1a. Enter -0- if not applicable Did the organization comply with backup withholding rules for reportable payments to vendors and

2a Enter the number of employees reported on Form W-3, Transmittal of Wage and Tax Statements, filed for the calendar year ending with or within the year covered by this return 2a 3

b If at least one is reported on line 2a, did the organization file all required federal employment tax returns?

3a Did the organization have unrelated business gross income of $1,000 or more during the year?

b If “Yes,” has it filed a Form 990-T for this year? If “No” to line 3b, provide an explanation on Schedule O 4a At any time during the calendar year, did the organization have an interest in, or a signature or other authority over, a financial account in a foreign country (such as a bank account, securities account, or other financial account)?

b If “Yes,” enter the name of the foreign country

See instructions for filing requirements for FinCEN Form 114, Report of Foreign Bank and Financial Accounts (FBAR).

5a Was the organization a party to a prohibited tax shelter transaction at any time during the tax year?

Did any taxable party notify the organization that it was or is a party to a prohibited tax shelter transaction?

b

c If “Yes” to line 5a or 5b, did the organization file Form 8886-T?

6a Does the organization have annual gross receipts that are normally greater than $100,000, and did the organization solicit any contributions that were not tax deductible as charitable contributions?

b If “Yes,” did the organization include with every solicitation an express statement that such contributions or gifts were not tax deductible?

7 Organizations that may receive deductible contributions under section 170(c).

a Did the organization receive a payment in excess of $75 made partly as a contribution and partly for goods and services provided to the payor?

b If “Yes,” did the organization notify the donor of the value of the goods or services provided?

c Did the organization sell, exchange, or otherwise dispose of tangible personal property for which it was required to file Form 8282?

d If “Yes,” indicate the number of Forms 8282 filed during the year

e Did the organization receive any funds, directly or indirectly, to pay premiums on a personal benefit contract?

Did the organization, during the year, pay premiums, directly or indirectly, on a personal benefit contract?

If the organization received a contribution of qualified intellectual property, did the organization file Form 8899 as required?

If the organization received a contribution of cars, boats, airplanes, or other vehicles, did the organization file a Form 1098-C?

8 Sponsoring organizations maintaining donor advised funds. Did a donor advised fund maintained by the sponsoring organization have excess business holdings at any time during the year?

9 Sponsoring organizations maintaining donor advised funds.

a Did the sponsoring organization make any taxable distributions under section 4966?

b Did the sponsoring organization make a distribution to a donor, donor advisor, or related person?

10 Section 501(c)(7) organizations. Enter:

a Initiation fees and capital contributions included on Part VIII, line 12

b Gross receipts, included on Form 990, Part VIII, line 12, for public use of club facilities

11 Section 501(c)(12) organizations. Enter:

a Gross income from members or shareholders

b Gross income from other sources. (Do not net amounts due or paid to other sources against amounts due or received from them.)

b If “Yes,” enter the amount of tax-exempt interest received or accrued during the year

13 Section 501(c)(29) qualified nonprofit health insuranceissuers.

a Is the organization licensed to issue qualified health plans in more than one state?

Note: See the instructions for additional information the organization must report on Schedule O.

b Enter the amount of reserves the organization is required to maintain by the states in which

c Enter the amount of reserves on hand

14a Did the organization receive any payments for indoor tanning services during the tax year?

b If “Yes,” has it filed a Form 720 to report these payments? If "No," provide an explanation on Schedule O

15 Is the organization subject to the section 4960 tax on payment(s) of more than $1,000,000 in remuneration or excess parachute payment(s) during the year?

If “Yes,” see instructions and file Form 4720, Schedule N.

16 Is the organization an educational institution subject to the section 4968 excise tax on net investment income?

X If “Yes,” complete Form 4720, Schedule O.

Section 501(c)(21) organizations. Did the trust, any disqualified or other person engage in any activities that would result in the imposition of an excise tax under section 4951, 4952 or 4953? If “Yes,” complete Form 6069.

Part VI

Governance, Management, and Disclosure For each "Yes" response to lines 2 through 7b below, and for a "No" response to line 8a, 8b, or 10b below, describe the circumstances, processes, or changes on Schedule O. See instructions.

Section A. Governing Body and Management

1a Enter the number of voting members of the governing body at the end of the tax year If there are material differences in voting rights among members of the governing body, or if the governing body delegated broad authority to an executive committee or similar committee, explain on Schedule O.

b Enter the number of voting members included on line 1a, above, who are independent

2 Did any officer, director, trustee, or key employee have a family relationship or a business relationship with any other officer, director, trustee, or key employee?

3 Did the organization delegate control over management duties customarily performed by or under the direct supervision of officers, directors, trustees, or key employees to a management company or other person?

4 Did the organization make any significant changes to its governing documents since the prior Form 990 was filed?

5 Did the organization become aware during the year of a significant diversion of the organization’s assets?

6 Did the organization have members or stockholders?

the organization have members,stockholders, or other persons who had the power to elect or appoint one or more members of the governing body?

b Are any governance decisions of the organization reserved to (or subject to approval by) members, stockholders, or persons other than the governing body?

8 Did the organization contemporaneously document the meetings held or written actions undertaken during the year by the following:

a The governing body?

b Each committee with authority to act on behalf of the governing body?

9 Is there any officer, director, trustee, or key employee listed in Part VII, Section A, who cannot be reached at the organization’s mailing address? If “Yes,” provide the names and addresses on Schedule O

Section B. Policies (This

Section B requests information about policies not required by the Internal Revenue Code.)

10a Did the organization have local chapters, branches, or affiliates?

b If “Yes,” did the organization have written policies and procedures governing the activities of such chapters, affiliates, and branches to ensure their operations are consistent with the organization's exempt purposes?

11a Has the organization provided a complete copy of this Form 990 to all members of its governing body before filing the form?

b Describe on Schedule O the process, if any, used by the organization to review this Form 990.

12a Did the organization have a written conflict of interest policy? If “No,” go to line 13

Were officers, directors, or trustees, and key employees required to disclose annually interests that could give rise to conflicts?

Did the organization regularly and consistently monitor and enforce compliance with the policy? If “Yes,” describe on Schedule O how this was done

13 Did the organization have a written whistleblower policy?

14 Did the organization have a written document retention and destruction policy?

15 Did the process for determining compensation of the following persons include a review and approval by independent persons, comparability data, and contemporaneous substantiation of the deliberation and decision?

a The organization’s CEO, Executive Director, or top management official

b Other officers or key employees of the organization If “Yes” to line 15a or 15b, describe the process on Schedule O. See instructions.

16a Did the organization invest in, contribute assets to, or participate in a joint venture or similar arrangement with a taxable entity during the year?

b If “Yes,” did the organization follow a written policy or procedure requiring the organization to evaluate its participation in joint venture arrangements under applicable federal tax law, and take steps to safeguard the organization’s exempt status with respect to such arrangements?

Section C. Disclosure

17 List the states with which a copy of this Form 990 is required to be filed NONE

18 Section 6104 requires an organization to make its Forms 1023 (1024 or 1024-A, if applicable), 990, and 990-T (section 501(c) (3)s only) available for public inspection. Indicate how you made these available. Check all that apply. Own website Another's website Upon request Other (explain on Schedule O)

19 Describe on Schedule O whether (and if so, how) the organization made its governing documents, conflict of interest policy, and financial statements available to the public during the tax year.

20 State the name, address, and telephone number of the person who possesses the organization's books and records.

ROCHELLE HOOD PO BOX 2683

Compensation of Officers, Directors, Trustees, Key Employees, Highest Compensated Employees, and Independent Contractors

Check if Schedule O contains a response or note to any line in this Part VII Section A. Officers, Directors, Trustees, Key Employees, and Highest Compensated Employees 1a Complete this table for all persons required to be listed. Report compensation for the calendar year ending with or within the organization's tax year.

List all of the organization's current officers, directors, trustees (whether individuals or organizations), regardless of amount of compensation. Enter -0- in columns (D), (E), and (F) if no compensation was paid.

• List all of the organization's current key employees, if any. See instructions for definition of "key employee."

List the organization's five current highest compensated employees (other than an officer, director, trustee, or key employee) who received reportable compensation (box 5 of Form W-2, box 6 of Form 1099-MISC, and/or box 1 of Form 1099-NEC) of more than $100,000 from the organization and any related organizations.

List all of the organization's former officers, key employees, and highest compensated employees who received more than $100,000 of reportable compensation from the organization and any related organizations.

List all of the organization’s former directors or trustees that received, in the capacity as a former director or trustee of the organization, more than $10,000 of reportable compensation from the organization and any related organizations. See the instructions for the order in which to list the persons above.

Check this box if neither the organization nor any related organization compensated any current officer, director, or trustee. (A) Name and title (B) Average hours per week (list any hours for related organizations below dotted line)

Position (do not check more

1099-MISC/

2 Total number of individuals (including but not limited to those listed above) who

Check if Schedule O contains a response or note to any line in this Part VIII

1a Federated campaigns

b Membership dues

c Fundraising events

d Related organizations

e Government grants (contributions)

f All other contributions, gifts, grants, and similar amounts not included above

g Noncash contributions included in lines 1a-1f

h Total. Add lines 1a–1f

2a BUS TOURS

b LUMINARIA

c ARCHBOD BIOLOGICAL RESEARCH

d KRISTEN HINES PHOTO WORKSHOP

e NATURAL HISTORY ADVENTURE

f

g

3 Investment income (including dividends, interest,and other similar amounts)

4

5 Royalties

6a Gross rents

b Less: rental expenses

c Rental inc. or (loss)

d Net rental income or (loss)

7a Gross amount from sales of assets other than inventory

b Less: cost or other basis and sales exps.

c Gain or (loss)

d Net gain or (loss)

8a Gross income from fundraising events (not including $ of contributions reported on line 1c). See Part IV, line 18

b Less: direct expenses

c Net income or (loss) from fundraising events

9a Gross income from gaming activities. See Part IV, line 19

b Less: direct expenses

c Net income or (loss) from gaming activities

10a Gross sales of inventory, less returns and allowances

b Less: cost of goods

c Net income or (loss) from sales of

11a SALES TAX COLLECTION ALLOW b c d All other revenue

e Total. Add lines 11a–11d

12 Total revenue. See instructions

Section 501(c)(3) and 501(c)(4) organizations must complete all columns. All other organizations must complete column (A).

Check if Schedule O contains a response or note to any line in this Part IX

Do not include amounts reported on lines 6b, 7b, 8b, 9b, and 10b of Part VIII.

Grants and other assistance to domestic organizations and domestic governments. See Part IV, line 21

Grants and other assistance to domestic individuals. See Part IV, line 22

Grants and other assistance to foreign organizations, foreign governments, and foreign individuals. See Part IV, lines 15 and 16

Benefits paid to or for members

Compensation of current officers, directors, trustees, and key employees

Compensation not included above to disqualified persons (as defined under section 4958(f)(1)) and persons described in section 4958(c)(3)(B)

Other salaries and wages

Pension plan accruals and contributions (include section 401(k) and 403(b) employer contributions)

Other employee benefits

Payroll taxes

Fees for services (nonemployees):

Management

Legal

Accounting

Lobbying

Professional fundraising services. See Part IV, line 17

Investment management fees

Other. (If line 11g amount exceeds 10% of line 25, column (A) amount, list line 11g expenses on Schedule O.)

Advertising and promotion

Office expenses

Information technology

Royalties

Occupancy

Travel

Payments of travel or entertainment expenses for any federal, state, or local public officials

Conferences, conventions, and meetings

Interest

Payments to affiliates

Depreciation, depletion, and amortization

Insurance

Other expenses. Itemize expenses not covered above. (List miscellaneous expenses on line 24e. If line 24e amount exceeds 10% of line 25, column (A) amount, list line 24e expenses on Schedule O.)

PROGRAM EXPENSE SERVICE CHARGES

AND LICENSES COGS

All other expenses

Total functional expenses. Add lines 1 through 24e

26 Joint costs. Complete this line only if the organization reported in column (B) joint costs from a combined educational campaign and fundraising solicitation. Check here if following SOP 98-2 (ASC 958-720)

Check if Schedule O contains a response or note to any line in this Part X

1 Cash non-interest-bearing

2

3

4 Accounts receivable, net

5 Loans and other receivables from any current or former officer, director, trustee, key employee, creator or founder, substantial contributor, or 35% controlled entity or family member of any of these persons

6 Loans and other receivables from other disqualified persons (as defined under section 4958(f)(1)), and persons described in section 4958(c)(3)(B)

7 Notes and loans receivable, net

8 Inventories for sale or use

9 Prepaid expenses and deferred charges

10a Land, buildings, and equipment: cost or other basis. Complete Part VI of Schedule D

b

12

other securities. See Part IV, line 11 13 Investments program-related. See Part IV, line 11 14 Intangible assets

15 Other assets. See Part IV,

21 Escrow or custodial account liability. Complete Part IV of Schedule D

22 Loans and other payables to any current or former officer, director, trustee, key employee, creator or founder, substantial contributor, or 35% controlled entity or family member of any of these persons

23 Secured mortgages and notes payable to unrelated third parties

24 Unsecured notes and loans payable to unrelated third parties

25 Other liabilities (including federal income tax, payables to related third parties, and other liabilities not included on lines 17-24). Complete Part X of Schedule D

26

Organizations that follow FASB ASC 958, check here and complete lines 27, 28, 32, and 33.

27 Net assets without donor restrictions

28 Net assets with donor restrictions

Organizations that do not follow FASB ASC 958, check here X and complete lines 29 through 33.

29 Capital stock or trust principal, or current funds

30 Paid-in or capital surplus, or land, building, or equipment fund

31 Retained

“Other,” explain on Schedule O.

2a Were the organization's financial statements compiled or reviewed by an independent accountant?

If "Yes," check a box below to indicate whether the financial statements for the year were compiled or reviewed on a separate basis, consolidated basis, or both.

Separate basis Consolidated basis Both consolidated and separate basis

b Were the organization's financial statements audited by an independent accountant? If "Yes," check a box below to indicate whether the financial statements for the year were audited on a separate basis, consolidated basis, or both.

Separate basis Consolidated basis Both consolidated and separate basis

c If “Yes” to line 2a or 2b, does the organization have a committee that assumes responsibility for oversight of the audit, review, or compilation of its financial statements and selection of an independent accountant? If the organization changed either its oversight process or selection process during the tax year, explain on Schedule O.

3a As a result of a federal award, was the organization required to undergo an audit or audits as set forth in the Uniform Guidance, 2 C.F.R. Part 200, Subpart F?

b If “Yes,” did the organization undergo the required audit or audits? If the organization did not undergo the required audit or audits, explain why on Schedule O and describe any steps taken to undergo such audits

Public Charity Status and Public Support

Complete if the organization is a section 501(c)(3) organization or a section 4947(a)(1) nonexempt charitable trust. Attach to Form 990 or Form 990-EZ.

Go to www.irs.gov/Form990 for instructions and the latest information.

Part I Reason for Public Charity Status. (All organizations must complete this part.) See instructions. The organization is not a private foundation because it is: (For lines 1 through 12, check only one box.)

1 A church, convention of churches, or association of churches described in section 170(b)(1)(A)(i).

2 A school described in section 170(b)(1)(A)(ii). (Attach Schedule E (Form 990).)

3 A hospital or a cooperative hospital service organization described in section 170(b)(1)(A)(iii).

4 A medical research organization operated in conjunction with a hospital described in section 170(b)(1)(A)(iii). Enter the hospital's name, city, and state:

5 An organization operated for the benefit of a college or university owned or operated by a governmental unit described in section 170(b)(1)(A)(iv). (Complete Part II.)

6 A federal, state, or local government or governmental unit described in section 170(b)(1)(A)(v).

7 An organization that normally receives a substantial part of its support from a governmental unit or from the general public described in section 170(b)(1)(A)(vi). (Complete Part II.)

8 A community trust described in section 170(b)(1)(A)(vi). (Complete Part II.)

9 An agricultural research organization described in section 170(b)(1)(A)(ix) operated in conjunction with a land-grant college or university or a non-land-grant college of agriculture (see instructions). Enter the name, city, and state of the college or university:

10 An organization that normally receives (1) more than 33 1/3% of its support from contributions, membership fees, and gross receipts from activities related to its exempt functions, subject to certain exceptions; and (2) no more than 33 1/3% of its support from gross investment income and unrelated business taxable income (less section 511 tax) from businesses acquired by the organization after June 30, 1975. See section 509(a)(2). (Complete Part III.)

11 An organization organized and operated exclusively to test for public safety. See section 509(a)(4).

12 An organization organized and operated exclusively for the benefit of, to perform the functions of, or to carry out the purposes of one or more publicly supported organizations described in section 509(a)(1) or section 509(a)(2). See section 509(a)(3). Check the box on lines 12a through 12d that describes the type of supporting organization and complete lines 12e, 12f, and 12g.

a Type I. A supporting organization operated, supervised, or controlled by its supported organization(s), typically by giving the supported organization(s) the power to regularly appoint or elect a majority of the directors or trustees of the supporting organization. You must complete Part IV, Sections A and B.

b Type II. A supporting organization supervised or controlled in connection with its supported organization(s), by having control or management of the supporting organization vested in the same persons that control or manage the supported organization(s). You must complete Part IV, Sections A and C.

c Type III functionally integrated. A supporting organization operated in connection with, and functionally integrated with, its supported organization(s) (see instructions). You must complete Part IV, Sections A, D, and E.

d Type III non-functionally integrated. A supporting organization operated in connection with its supported organization(s) that is not functionally integrated. The organization generally must satisfy a distribution requirement and an attentiveness requirement (see instructions). You must complete Part IV, Sections A and D, and Part V.

e Check this box if the organization received a written determination from the IRS that it is a Type I, Type II, Type III functionally integrated, or Type III non-functionally integrated supporting organization.

f Enter the number of supported organizations

g Provide the following information about the supported organization(s).

(i) Name of supported organization (ii) EIN

(iii) Type of organization (described on lines 1–10 above (see instructions))

(iv) Is the organization listed in your governing document?

Yes No

(v) Amount of monetary support (see instructions) (vi) Amount of other support (see instructions)

Schedule A (Form 990) 2023

Part II Support Schedule for Organizations Described in Sections 170(b)(1)(A)(iv) and 170(b)(1)(A)(vi)

(Complete only if you checked the box on line 5, 7, or 8 of Part I or if the organization failed to qualify under Part III. If the organization fails to qualify under the tests listed below, please complete Part III.)

Section A. Public Support

Calendar year (or fiscal year beginning in)

1 Gifts, grants, contributions, and membership fees received. (Do not include any “unusual grants.”)

2 Tax revenues levied for the organization's benefit and either paid to or expended on its behalf

3 The value of services or facilities furnished by a governmental unit to the organization without charge

4 Total. Add lines 1 through 3

5 The portion of total contributions by each person (other than a governmental unit or publicly supported organization) included on line 1 that exceeds 2% of the amount shown on line 11, column (f)

6 Public support. Subtract line 5 from line 4

Section

B. Total Support Calendar year (or fiscal year beginning in)

7 Amounts from line 4

9 Net income from unrelated business activities, whether or not the business is regularly carried on

income. Do not include gain or loss from the sale of

(Explain in Part VI.)

organization, check this box and stop here

publicly supported organization b 33 1/3% support test 2022. If the organization did not check a box on line 13 or 16a, and line 15 is 33 1/3% or more, check this box and stop here. The organization qualifies as a publicly supported organization 17a 10%-facts-and-circumstances test — 2023. If the organization did not check a box on line 13, 16a, or 16b, and line 14 is 10% or more, and if the organization meets the facts-and-circumstances test, check this box and stop here. Explain in Part VI how the organization meets the facts-and-circumstances test. The organization qualifies as a publicly supported organization b 10%-facts-and-circumstances test 2022. If the organization did not check a box on line 13, 16a, 16b, or 17a, and line 15 is 10% or more, and if the organization meets the facts-and-circumstances test, check this box and stop here. Explain in Part VI how the organization meets the facts-and-circumstances test. The organization qualifies as a publicly supported organization

18 Private foundation. If the organization did not check a box on line 13, 16a, 16b, 17a, or 17b, check this box and see instructions

Schedule

Support Schedule for Organizations Described in Section 509(a)(2)

(Complete only if you checked the box on line 10 of Part I or if the organization failed to qualify under Part II. If the organization fails to qualify under the tests listed below, please complete Part II.)

Section A. Public Support

Calendar year (or fiscal year beginning in)

1 Gifts, grants, contributions, and membership fees received. (Do not include any “unusual grants.”)

2 Gross receipts from admissions, merchandise sold or services performed, or facilities furnished in any activity that is related to the organization’s tax-exempt purpose

3 Gross receipts from activities that are not an unrelated trade or business under section 513

4 Tax revenues levied for the organization's benefit and either paid to or expended on its behalf

5 The value of services or facilities furnished by a governmental unit to the organization without charge

6 Total. Add lines 1 through 5

7a Amounts included on lines 1, 2, and 3 received from disqualified persons

b Amounts included on lines 2 and 3 received from other than disqualified persons that exceed the greater of $5,000 or 1% of the amount on line 13 for the year

c Add lines 7a and 7b

8 Public support. (Subtract line 7c from line 6.)

Section B. Total Support

Calendar year (or fiscal year beginning in)

9 Amounts from line 6

10a Gross income from interest, dividends, payments received on securities loans, rents, royalties, and income from similar sources

b Unrelated business taxable income (less section 511 taxes) from businesses acquired after June 30, 1975

c Add lines 10a and 10b

Net income from unrelated business activities not included on line 10b,

2023 organization, check this box and stop here

1,500,327

organization b 33 1/3% support tests

If the organization did not check a box on line 14 or line 19a, and line 16 is more than 33 1/3%, and line 18 is not more than 33 1/3%, check this box and stop here. The organization qualifies as a publicly supported organization 20 Private foundation. If the organization did not check a box on line 14, 19a, or 19b, check this box and see instructions

Supporting Organizations

(Complete only if you checked a box on line 12 on Part I. If you checked box 12a, Part I, complete Sections A and B. If you checked box 12b, Part I, complete Sections A and C. If you checked box 12c, Part I, complete Sections A, D, and E. If you checked box 12d, Part I, complete Sections A and D, and complete Part V.)

Section A. All Supporting Organizations

1 Are all of the organization’s supported organizations listed by name in the organization’s governing documents? If “No,” describe in Part VI how the supported organizations are designated. If designated by class or purpose, describe the designation. If historic and continuing relationship, explain.

2 Did the organization have any supported organization that does not have an IRS determination of status under section 509(a)(1) or (2)? If “Yes,” explain in Part VI how the organization determined that the supported organization was described in section 509(a)(1) or (2).

3a Did the organization have a supported organization described in section 501(c)(4), (5), or (6)? If “Yes,” answer lines 3b and 3c below.

b Did the organization confirm that each supported organization qualified under section 501(c)(4), (5), or (6) and satisfied the public support tests under section 509(a)(2)? If “Yes,” describe in Part VI when and how the organization made the determination.

c Did the organization ensure that all support to such organizations was used exclusively for section 170(c)(2)(B) purposes? If “Yes,” explain in Part VI what controls the organization put in place to ensure such use.

4a Was any supported organization not organized in the United States (“foreign supported organization”)? If “Yes,” and if you checked box 12a or 12b in Part I, answer lines 4b and 4c below.

b Didthe organizationhave ultimate controland discretion in decidingwhetherto makegrants totheforeignsupported organization? If “Yes,” describe in Part VI how the organization had such control and discretion despite being controlled or supervised by or in connection with its supported organizations.

c Did the organization support any foreign supported organization that does not have an IRS determination under sections 501(c)(3) and 509(a)(1) or (2)? If “Yes,” explain in Part VI what controls the organization used to ensure that all support to the foreign supported organization was used exclusively for section 170(c)(2)(B) purposes.

5a Did the organization add, substitute, or remove any supported organizations during the tax year? If “Yes,” answer lines 5b and 5c below (if applicable). Also, provide detail in Part VI, including (i) the names and EIN numbers of the supported organizations added, substituted, or removed; (ii) the reasons for each such action; (iii) the authority under the organization's organizing document authorizing such action; and (iv) how the action was accomplished (such as by amendment to the organizing document).

b Type I or Type II only. Was any added or substituted supported organization part of a class already designated in the organization's organizing document?

c Substitutions only. Was the substitution the result of an event beyond the organization's control?

6 Did the organization provide support (whether in the form of grants or the provision of services or facilities) to anyone other than (i) its supported organizations, (ii) individuals that are part of the charitable class benefited by one or more of its supported organizations, or (iii) other supporting organizations that also support or benefit one or more of the filing organization’s supported organizations? If “Yes,” provide detail in Part VI.

7 Did the organization provide a grant, loan, compensation, or other similar payment to a substantial contributor (as defined in section 4958(c)(3)(C)), a family member of a substantial contributor, or a 35% controlled entity with regard to a substantial contributor? If “Yes,” complete Part I of Schedule L (Form 990).

8 Did the organization make a loan to a disqualified person (as defined in section 4958) not described on line 7? If “Yes,” complete Part I of Schedule L (Form 990).

9a Was the organization controlled directly or indirectly at any time during the tax year by one or more disqualified persons, as defined in section 4946 (other than foundation managers and organizations described in section 509(a)(1) or (2))? If “Yes,” provide detail in Part VI.

b Did one or more disqualified persons (as defined on line 9a) hold a controlling interest in any entity in which the supporting organization had an interest? If “Yes,” provide detail in Part VI.

c Did a disqualified person (as defined on line 9a) have an ownership interest in, or derive any personal benefit from, assets in which the supporting organization also had an interest? If “Yes,” provide detail in Part VI.

10a Was the organization subject to the excess business holdings rules of section 4943 because of section 4943(f) (regarding certain Type II supporting organizations, and all Type III non-functionally integrated supporting organizations)? If “Yes,” answer line 10b below.

b Did the organization have any excess business holdings in the tax year? (Use Schedule C, Form 4720, to determine whether the organization had excess business holdings.)

Part IV Supporting Organizations (continued)

11 Has the organization accepted a gift or contribution from any of the following persons?

a A person who directly or indirectly controls, either alone or together with persons described on lines 11b and 11c below, the governing body of a supported organization?

b A family member of a person described on line 11a above?

c A 35% controlled entity of a person described on line 11a or 11b above? If “Yes” to line 11a, 11b, or 11c, provide detail in PartVI.

Section B. Type I Supporting Organizations

1 Did the governing body, members of the governing body, officers acting in their official capacity, or membership of one or more supported organizations have the power to regularly appoint or elect at least a majority of the organization’s officers, directors, or trustees at all times during the tax year? If “No,” describe in Part VI how the supported organization(s) effectively operated, supervised, or controlled the organization’s activities. If the organization had more than one supported organization, describe how the powers to appoint and/or remove officers, directors, or trustees were allocated among the supported organizations and what conditions or restrictions, if any, applied to such powers during the tax year.

2 Did the organization operate for the benefit of any supported organization other than the supported organization(s) that operated, supervised, or controlled the supporting organization? If “Yes,” explain in Part VI how providing such benefit carried out the purposes of the supported organization(s) that operated, supervised, or controlled the supporting organization.

Section C. Type II Supporting Organizations

1 Were a majority of the organization’s directors or trustees during the tax year also a majority of the directors or trustees of each of the organization’s supported organization(s)? If “No,” describe in Part VI how control or management of the supporting organization was vested in the same persons that controlled or managed the supported organization(s).

Section D. All Type III Supporting Organizations

1 Did the organization provide to each of its supported organizations, by the last day of the fifth month of the organization’s tax year, (i) a written notice describing the type and amount of support provided during the prior tax year, (ii) a copy of the Form 990 that was most recentlyfiled as of the date of notification, and (iii) copies of the organization’s governing documents in effect on the date of notification, to the extent not previously provided?

2 Were any of the organization’s officers, directors, or trustees either (i) appointed or elected by the supported organization(s) or (ii) serving on the governing body of a supported organization? If “No,” explain in Part VI how the organization maintained a close and continuous working relationship with the supported organization(s).

3 By reason of the relationship described on line 2, above, did the organization’s supported organizations have a significant voice in the organization’s investment policies and in directing the use of the organization’s income or assets at all times during the tax year? If “Yes,” describe in Part VI the role the organization’s supported organizations played in thisregard.

Section E. Type III Functionally Integrated Supporting Organizations

1 Check the box next to the method that the organization used to satisfy the Integral Part Test during the year (see instructions).

a The organization satisfied the Activities Test. Complete line 2 below.

b The organization is the parent of each of its supported organizations. Complete line 3 below.

c The organization supported a governmental entity. Describe in Part VI how you supported a governmental entity (see instructions).

2 Activities Test. Answer lines 2a and 2b below. Yes No

a Did substantially all of the organization’s activities during the tax year directly further the exempt purposes of the supported organization(s) to which the organization was responsive? If “Yes,” then in Part VI identify those supported organizations and explain how these activities directly furthered their exempt purposes, how the organization was responsive to those supported organizations, and how the organization determined that these activities constituted substantially all of its activities.

b Did the activities described on line 2a, above, constitute activities that, but for the organization’s involvement, one or more of the organization’s supported organization(s) would have been engaged in? If “Yes,” explain in Part VI the reasons for the organization’s position that its supported organization(s) would have engaged in these activities but for the organization’s involvement.

3 Parent of Supported Organizations. Answer lines 3a and 3b below.

a Did the organization have the power to regularly appoint or elect a majority of the officers, directors, or trustees of each of the supported organizations? If “Yes” or “No,” provide details in Part VI.

b Did the organization exercise a substantial degree of direction over the policies, programs, and activities of each of its supported organizations? If “Yes,” describe in Part VI the role played by the organization in this regard.

1 Check here if the organization satisfied the Integral Part Test as a qualifying trust on Nov. 20, 1970 (explain in Part VI). See instructions. All other Type III non-functionally integrated supporting organizations must complete Sections A through E.

1

4

5 Net

Enter 0.015 of line 3 (for greater

7 Check here if the current year is the organization's first as a non-functionally integrated Type III supporting organization (see instructions).

(

9 Distributable amount for 2022 from Section C, line 6

1 Distributable amount for 2023 from Section C, line 6

2 Underdistributions, if any, for years prior to 2023 (reasonable cause required–explain in Part VI). See instructions.

3 Excess distributions carryover, if any, to 2023

a From 2018

b From 2019

c From 2020

d From 2021

e From 2022

f Total of lines 3a through 3e

g Applied to underdistributions of prior years

h Applied to 2023 distributable amount

i Carryover from 2018 not applied (see instructions)

j Remainder. Subtract lines 3g, 3h, and 3i from line 3f.

4 Distributions for 2023 from Section D, line 7: $

a Applied to underdistributions of prior years

b Applied to 2023 distributable amount

c Remainder. Subtract lines 4a and 4b from line 4.

5 Remaining underdistributions for years prior to 2023, if any. Subtract lines 3g and 4a from line 2. For result greater than zero, explain in Part VI. See instructions.

6 Remaining underdistributions for 2023. Subtract lines 3h and 4b from line 1. For result greater than zero, explain in Part VI. See instructions.

7 Excess distributions carryover to 2024. Addlines 3j and 4c.

8 Breakdown of line 7:

a Excess from 2019

b Excess from 2020

c Excess from 2021

d Excess from 2022

e Excess from 2023

Part VI Supplemental Information. Provide the explanations required by Part II, line 10; Part II, line 17a or 17b; Part III, line 12; Part IV, Section A, lines 1, 2, 3b, 3c, 4b, 4c, 5a, 6, 9a, 9b, 9c, 11a, 11b, and 11c; Part IV, Section B, lines 1 and 2; Part IV, Section C, line 1; Part IV, Section D, lines 2 and 3; Part IV, Section E, lines 1c, 2a, 2b, 3a, and 3b; Part V, line 1; Part V, Section B, line 1e; Part V, Section D, lines 5, 6, and 8; and Part V, Section E, lines 2, 5, and 6. Also complete this part for any additional information. (See instructions.)

Department of the Treasury

Name of the organization MERRITT ISLAND WILDLIFE ASSOCIATION

Organization type (check one):

Filers of: Section:

Form 990 or 990-EZ

Schedule of Contributors

Attach to Form 990, 990-EZ, or 990-PF. Go to www.irs.gov/Form990 for the latest information.

501(c)( 3 ) (enter number) organization

4947(a)(1) nonexempt charitable trust not treated as a private foundation

527 political organization

Form 990-PF

Employer

501(c)(3) exempt private foundation

4947(a)(1) nonexempt charitable trust treated as a private foundation

501(c)(3) taxable private foundation

Check if your organization is covered by the General Rule or a Special Rule.

Note: Only a section 501(c)(7), (8), or (10) organization can check boxes for both the General Rule and a Special Rule. See instructions.

General Rule

For an organization filing Form 990, 990-EZ, or 990-PF that received, during the year, contributions totaling $5,000 or more(inmoneyor property)fromany onecontributor.CompleteParts I and II. See instructionsfor determining acontributor's total contributions.

Special Rules

For an organization described in section 501(c)(3) filing Form 990 or 990-EZ that met the 331/3% support test of the regulations under sections 509(a)(1) and 170(b)(1)(A)(vi), that checked Schedule A (Form 990), Part II, line 13, 16a, or 16b, and that received from any one contributor, during the year, total contributions of the greater of (1) $5,000; or (2) 2% of the amount on (i) Form 990, Part VIII, line 1h; or (ii) Form 990-EZ, line 1. Complete Parts I and II.

For an organization described in section 501(c)(7), (8), or (10) filing Form 990 or 990-EZ that received from any one contributor, during the year, total contributions of more than $1,000 exclusively for religious, charitable, scientific, literary, or educational purposes, or for the prevention of cruelty to children or animals. Complete Parts I (entering “N/A” in column (b) instead of the contributor name and address), II, and III.

For an organization described in section 501(c)(7), (8), or (10) filing Form 990 or 990-EZ that received from any one contributor, during the year, contributions exclusively for religious, charitable, etc., purposes, but no such contributions totaled more than $1,000. If this box is checked, enter here the total contributions that were received during the year for an exclusively religious, charitable, etc., purpose. Don’t complete any of the parts unless the General Rule applies to this organization because it received nonexclusively religious, charitable, etc., contributions totaling $5,000 or more during the year $

Caution: An organization that isn't covered by the General Rule and/or the Special Rules doesn't file Schedule B (Form 990), but it must answer “No” on Part IV, line 2, of its Form 990; or check the box on line H of its Form 990-EZ or on its Form 990-PF, Part I, line 2, to certify that it doesn't meet the filing requirements of Schedule B (Form 990).

For Paperwork Reduction Act Notice, see the instructions for Form 990, 990-EZ, or 990-PF.

Schedule B (Form 990) (2023)

Department of the Treasury

Supplemental Financial Statements

Complete if the organization answered “Yes” on Form 990, Part IV, line 6, 7, 8, 9, 10, 11a, 11b, 11c, 11d, 11e, 11f, 12a, or 12b. Attach to Form 990.

Go to www.irs.gov/Form990 for instructions and the latest information.

Part I Organizations Maintaining Donor Advised Funds or Other Similar Funds or Accounts

Complete if the organization answered “Yes” on Form 990, Part IV, line 6.

1 Total number at end of year

2 Aggregate value of contributions to (during year)

3 Aggregate value of grants from (during year)

4 Aggregate value at end of year

5 Did the organization inform all donors and donor advisors in writing that the assets held in donor advised funds are the organization’s property, subject to the organization’s exclusive legal control?

6 Did the organization inform all grantees, donors, and donor advisors in writing that grant funds can be used only for charitable purposes and not for the benefit of the donor or donor advisor, or for any other purpose

conferring impermissible private benefit?

Part II

Conservation

Easements

Complete if the organization answered “Yes” on Form 990, Part IV, line 7.

1 Purpose(s) of conservation easements held by the organization (check all that apply).

Preservation of land for public use (for example, recreation or education)

Protection of natural habitat

Preservation of open space

Yes No

Preservation of a historically important land area

Preservation of a certified historic structure

2 Complete lines 2a through 2d if the organization held a qualified conservation contribution in the form of a conservation easement on the last day of the tax year.

a Total number of conservation easements

b Total acreage restricted by conservation easements c

Number of conservation easements on a certified historic structure included on line 2a d

Number of conservation easements included on line 2c acquired after July 25, 2006, and not on a historic structure listed in the National Register

3 Number of conservation easements modified, transferred, released, extinguished, or terminated by the organization during the tax year

4 Number of states where property subject to conservation easement is located

5 Does the organization have a written policy regarding the periodic monitoring, inspection, handling of violations, and enforcement of the conservation easements it holds? Yes No

6 Staff and volunteer hours devoted to monitoring, inspecting, handling of violations, and enforcing conservation easements during the year

7 Amount of expenses incurred in monitoring, inspecting, handling of violations, and enforcing conservation easements during the year

8 Does each conservation easement reported on line 2d above satisfy the requirements of section 170(h)(4)(B)(i) and section 170(h)(4)(B)(ii)?

9 In Part XIII, describe how the organization reports conservation easements in its revenue and expense statement and balance sheet, and include, if applicable, the text of the footnote to the organization’s financial statements that describes the organization’s accounting for conservation easements.

Part III Organizations Maintaining Collections of Art, Historical Treasures, or Other Similar Assets

Complete if the organization answered “Yes”

on Form 990, Part IV, line 8.

1a If the organization elected, as permitted under FASB ASC 958, not to report in its revenue statement and balance sheet works of art, historical treasures, or other similar assets held for public exhibition, education, or research in furtherance of public service, provide in Part XIII the text of the footnote to its financial statements that describes these items.

b If the organization elected, as permitted under FASB ASC 958, to report in its revenue statement and balance sheet works of art, historical treasures, or other similar assets held for public exhibition, education, or research in furtherance of public service, provide the following amounts relating to these items.

(i) Revenue included on Form 990, Part VIII, line 1

(ii) Assets included in Form 990, Part X

2 If the organization received or held works of art, historical treasures, or other similar assets for financial gain, provide the following amounts required to be reported under FASB ASC 958 relating to these items.

Yes No

a Revenue included on Form 990, Part VIII, line 1

3 Using the organization’s acquisition, accession, and other records,check any of the following that make significant use of its collection items (check all that apply).

a Public exhibition

b Scholarly research

c Preservation for future generations

d Loan or exchange program

e Other

4 Provide a description of the organization’s collections and explain how they further the organization’s exempt purpose in Part XIII.

5 During the year, did the organization solicit or receive donations of art, historical treasures, or other similar assets to be sold to raise funds rather than to be maintained as part of the organization’s collection? Escrow and Custodial Arrangements

Part IV

Complete if the organization answered "Yes" on Form 990, Part IV, line 9, or reported an amount on Form 990, Part X, line 21.

1a Is the organization an agent, trustee, custodian or other intermediary for contributions or other assets not included on Form 990, Part X?

b If “Yes,” explain the arrangement in Part XIII and complete the following table.

c Beginning balance

d Additions during the year

e Distributions during the year

f Ending balance

2a Did the organization include an amount on Form 990, Part X, line 21, for escrow or custodial account liability? Yes No

b If “Yes,” explain the arrangement in Part XIII. Check here if the explanation has been provided on Part XIII Endowment Funds

Complete if the organization answered “Yes” on Form 990, Part IV, line 10.

1a Beginning of year balance b Contributions c Net investment earnings, gains, and losses

d Grants or scholarships

e Other expenditures for facilities and programs

f Administrative expenses

g End of year balance (a) Current year (b) Prior year (c) Two years back

2 Provide the estimated percentage of the current year end balance (line 1g, column (a)) held as:

a Board designated or quasi-endowment %

b Permanent endowment %

c Term endowment %

The percentages on lines 2a, 2b, and 2c should equal 100%.

3a Are there endowment funds not in the possession of the organization that are held and administered for the organization by:

(i) Unrelated organizations?

(ii) Related organizations?

b If “Yes” on line 3a(ii), are the related organizations listed as required on Schedule R?

4 Describe in Part XIII the intended uses of the organization’s endowment funds. Land, Buildings, and Equipment

Complete if the organization answered “Yes” on Form 990, Part IV, line 11a. See Form 990, Part X, line 10.

1a Land

b Buildings

c Leasehold improvements

d Equipment

e Other

Total. Add lines 1a through 1e. (Column (d) must equal Form 990, Part X, line 10c, column (B))

Part VII

(Form 990) 2023

Investments – Other Securities

Complete if the organization answered “Yes” on Form 990, Part IV, line 11b. See Form 990, Part X, line 12.

(including

Total. (Column (b) must equal Form 990, Part X, line 12, col. (B))

Part VIII

Investments – Program Related

Complete if the organization answered “Yes” on Form 990, Part IV, line 11c. See Form 990, Part X, line 13.

Part IX

(Column (b) must equal Form 990, Part X, line 13, col. (B)) Other Assets

Complete if the organization answered “Yes” on Form 990, Part IV, line 11d. See Form 990, Part X, line 15.

(Column (b) must equal Form 990, Part X, line 15, col. (B))

Complete if the organization answered "Yes" on Form 990, Part IV, line 11e or 11f. See Form 990, Part X, line 25.

(b)

Schedule D (Form 990) 2023

Part XI

Reconciliation of Revenue per Audited Financial Statements With Revenue per Return

Complete if the organization answered “Yes” on Form 990, Part IV, line 12a.

Total revenue, gains, and other support per audited financial statements

Amounts included on line 1 but not on Form 990, Part VIII, line 12:

Net unrealized gains (losses) on investments

Donated services and use of facilities

Recoveries of prior year grants

Other (Describe in Part XIII.)

Add lines 2a through 2d

Subtract line 2e from line 1

Amounts included on Form 990, Part VIII, line 12, but not on line 1:

Investment expenses not included on Form 990, Part VIII, line 7b

Other (Describe in Part XIII.)

Add lines 4a and 4b

Total revenue. Add lines 3 and 4c. (This must equal Form 990, Part I, line 12.)

Part XII

Reconciliation of Expenses per Audited Financial Statements With Expenses per Return

Complete if the organization answered “Yes” on Form 990, Part IV, line 12a.

Total expenses and losses per audited financial statements

Amounts included on line 1 but not on Form 990, Part IX, line 25:

Donated services and use of facilities

Prior year adjustments

Other losses

Other (Describe in Part XIII.)

Add lines 2a through 2d

Subtract line 2e from line 1

Amounts included on Form 990, Part IX, line 25, but not on line 1:

Investment expenses not included on Form 990, Part VIII, line 7b 4a

Other (Describe in Part XIII.)

Add lines 4a and 4b

Total expenses. Add lines 3 and 4c. (This must equal Form 990, Part I, line 18.)

Supplemental Information

Provide the descriptions required for Part II, lines 3, 5, and 9; Part III, lines 1a and 4; Part IV, lines 1b and 2b; Part V, line 4; Part X, line 2; Part XI, lines 2d and 4b; and Part XII, lines 2d and 4b. Also complete this part to provide any additional information.

Schedule

Supplemental Information Regarding Fundraising or Gaming Activities

Complete if the organization answered “Yes” on Form 990, Part IV, line 17, 18, or 19, or if the organization entered more than $15,000 on Form 990-EZ, line 6a. Attach to Form 990 or Form 990-EZ.

Go to www.irs.gov/Form990 for instructions and the latest information.

Fundraising Activities. Complete if the organization answered “Yes” on Form 990, Part IV, line 17. Form 990-EZ filers are not required to complete this part.

1 Indicate whether the organization raised funds through any of the following activities. Check all that apply.

a Mail solicitations

b Internet and email solicitations

c Phone solicitations

d In-person solicitations

e Solicitation of non-government grants

f Solicitation of government grants

g Special fundraising events

2a Did the organization have a written or oral agreement with any individual (including officers, directors, trustees, or key employees listed in Form 990, Part VII) or entity in connection with professional fundraising services? Yes No

b If “Yes,” list the 10 highest paid individuals or entities (fundraisers) pursuant to agreements under which the fundraiser is to be compensated at least $5,000 by the organization.

(i) Name and address of individual or entity (fundraiser)

(ii) Activity

(iii) Did fundraiser have custody or control of contributions?

(iv) Gross receipts from activity

3 List all states in which the organization is registered or licensed to solicit contributions or has been notified it is exempt from registration or licensing.

Fundraising Events. Complete if the organization answered “Yes” on Form 990, Part IV, line 18, or reported more than $15,000 of fundraising event contributions and gross income on Form 990-EZ, lines 1 and 6b. List events with gross receipts greater than $5,000.

9,292

the

No b If “No,” explain:

b If “Yes,” explain:

Does the organization conduct gaming activities with nonmembers?

Is the organization a grantor, beneficiary or trustee of a trust, or a member of a partnership or other entity formed to administer charitable gaming?

13 Indicate the percentage of gaming activity conducted in:

a The organization’s facility

b An outside facility 14 Enter the name and address of the person who prepares the organization’s gaming/special events books and records:

15a Does the organization have a contract with a third party from whom the organization receives gaming revenue?

b If “Yes,” enter the amount of gaming revenue received by the organization $ and the amount of gaming revenue retained by the third party

c If “Yes,” enter name and address of the third party:

Mandatory distributions:

a Is the organization required under state law to make charitable distributions from the gaming proceeds to retain the state gaming license?

b Enter the amount of distributions required under state law to be distributed to other exempt organizations or

spent in the organization’s own exempt activities during the tax year $ Part IV Supplemental Information. Provide the explanations required by Part I, line 2b, columns (iii) and (v); and Part III, lines 9, 9b, 10b, 15b, 15c, 16, and 17b, as applicable. Also provide any additional information. See instructions.

Schedule G (Form 990) 2023

SCHEDULE O Supplemental Information to Form 990 or 990-EZ

(Form 990)

Department of the Treasury

Complete to provide information for responses to specific questions on Form 990 or 990-EZ or to provide any additional information. Attach to Form 990 or Form 990-EZ. Go to www.irs.gov/Form990 for the latest information.

Open to Public Inspection Name of the organization MERRITT ISLAND WILDLIFE ASSOCIATION

Employer identification number 59-3289841

FORM 990, PART III, LINE 4D - ALL OTHER ACCOMPLISHMENTS

PROMOTED CONSERVATION AWARENESS AND APPRECIATION OF THE MERRITT ISLAND NATIONAL WILDLIFE REFUGE AND PROVIDED ASSISTANCE TO REFUGE PROGRAMS

FORM 990, PART VI, LINE 11B - ORGANIZATION'S PROCESS TO REVIEW FORM 990

THE TREASURER OF MERRITT ISLAND WILDLIFE ASSOCIATION REVIEWS THE 990 WITH THE FINANCE COMITTEE AND THE OFFICERS PRIOR TO THE RETURN BEING FILED.

FORM 990 IS REVIEWED WITH THE GOVERNING BODY BY THE PRESIDENT.

FORM 990, PART VI, LINE 12C - ENFORCEMENT OF CONFLICTS POLICY

ONCE A YEAR ALL OF THE BOARD OF DIRECTORS REVIEW THE CONFLICT OF INTEREST POLICY AND MAKE ANY UPDATES TO CONFLICTS AS NECESSARY. THE BOD ARE PERIODICALLY REMINDED THROUGHOUT THE YEAR TO MAKE ANY COI UPDATES AS NECESSARY.

FORM 990, PART VI, LINE 19 - GOVERNING DOCUMENTS DISCLOSURE EXPLANATION MERRITT ISLAND WILDLIFE ASSOCIATION MAKES ITS GOVERNING DOCUMENTS AND FINANCIALS AVAILABLE TO THE PUBLIC UPON REQUEST.

Taylor & Lockard, PA.

3960 South Banana River Blvd.

Cocoa Beach, FL 32931

Island Wildlife Association

PO Box 2683

TITUSVILLE , FL32781

Merritt

(Rev. March 2024)

Request for Taxpayer Identification Number and Certification

Department of the Treasury Internal Revenue Service Go to www.irs.gov/FormW9 for instructions and the latest information.

Before you begin. For guidance related to the purpose of Form W-9, see Purpose of Form, below. Print or type.

3.

Give form to the requester. Do not send to the IRS.

1 Name of entity/individual. An entry is required. (For a sole proprietor or disregarded entity, enter the owner’s name on line 1, and enter the business/disregarded entity’s name on line 2.)

2 Business name/disregarded entity name, if different from above.

3a Check the appropriate box for federal tax classification of the entity/individual whose name is entered on line 1. Check only one of the following seven boxes.

Individual/sole proprietor C corporation S corporation Partnership Trust/estate

LLC. Enter the tax classification (C = C corporation, S = S corporation, P = Partnership)

Note: Check the “LLC” box above and, in the entry space, enter the appropriate code (C, S, or P) for the tax classification of the LLC, unless it is a disregarded entity. A disregarded entity should instead check the appropriate box for the tax classification of its owner.

Other (see instructions)

3b If on line 3a you checked “Partnership” or “Trust/estate,” or checked “LLC” and entered “P” as its tax classification, and you are providing this form to a partnership, trust, or estate in which you have an ownership interest, check this box if you have any foreign partners, owners, or beneficiaries. See instructions

5 Address (number, street, and apt. or suite no.). See instructions.

6 City, state, and ZIP code

7 List account number(s) here (optional)

Part I Taxpayer Identification Number (TIN)

4 Exemptions (codes apply only to certain entities, not individuals; see instructions on page 3):

Exempt payee code (if any)

Exemption from Foreign Account Tax Compliance Act (FATCA) reporting code (if any)

(Applies to accounts maintained outside the United States.)

Requester’s name and address (optional)

Enter your TIN in the appropriate box. The TIN provided must match the name given on line 1 to avoid backup withholding. For individuals, this is generally your social security number (SSN). However, for a resident alien, sole proprietor, or disregarded entity, see the instructions for Part I, later. For other entities, it is your employer identification number (EIN). If you do not have a number, see How to get a TIN, later.

Note: If the account is in more than one name, see the instructions for line 1. See also What Name and Number To Give the Requester for guidelines on whose number to enter.

Part II Certification

Under penalties of perjury, I certify that:

Social security number or Employer identification number –

1.The number shown on this form is my correct taxpayer identification number (or I am waiting for a number to be issued to me); and

2.I am not subject to backup withholding because (a) I am exempt from backup withholding, or (b) I have not been notified by the Internal Revenue Service (IRS) that I am subject to backup withholding as a result of a failure to report all interest or dividends, or (c) the IRS has notified me that I am no longer subject to backup withholding; and

3.I am a U.S. citizen or other U.S. person (defined below); and

4.The FATCA code(s) entered on this form (if any) indicating that I am exempt from FATCA reporting is correct.

Certification instructions. You must cross out item 2 above if you have been notified by the IRS that you are currently subject to backupwithholding because you have failed to report all interest and dividends on your tax return. For real estate transactions, item 2 does not apply.For mortgage interest paid, acquisition or abandonment of secured property, cancellation of debt, contributions to an individual retirementarrangement (IRA), and, generally, payments other than interest and dividends, you are not required to sign the certification, but you mustprovide your correct TIN. See the instructions for Part II, later.

Sign Here Signature of U.S. person

General Instructions

Section references are to the Internal Revenue Code unless otherwise noted.

Future developments. For the latest information about developments related to Form W-9 and its instructions, such as legislation enacted after they were published, go to www.irs.gov/FormW9

What’s New

Line 3a has been modified to clarify how a disregarded entity completes this line. An LLC that is a disregarded entity should check the appropriate box for the tax classification of its owner. Otherwise, it should check the “LLC” box and enter its appropriate tax classification.

Date

New line 3b has been added to this form. A flow-through entity is required to complete this line to indicate that it has direct or indirect foreign partners, owners, or beneficiaries when it provides the Form W-9 to another flow-through entity in which it has an ownership interest. This change is intended to provide a flow-through entity with information regarding the status of its indirect foreign partners, owners, or beneficiaries, so that it can satisfy any applicable reporting requirements. For example, a partnership that has any indirect foreign partners may be required to complete Schedules K-2 and K-3. See the Partnership Instructions for Schedules K-2 and K-3 (Form 1065).

Purpose of Form

An individual or entity (Form W-9 requester) who is required to file an information return with the IRS is giving you this form because they

W-9 (Rev. 3-2024) you are to the ce 03/19/2025

Brevard Regional Arts Group/Henegar Center

Return to Table of Contents

Tourism Development Office

FY 2025-2026 Marketing Support Program

Application Packet checklist

Applicant Organization Name: Henegar Center

Applicant Event Name: Year-round programming

Yes No

1. Completed application X

2. Copy of IRS Articles of X Incorporation - (if applicable)

3. Copy of IRS Determination letter X - (if applicable)

4. Copy of SunBiz.org (if applicable) X

5. Copy of 990 (if applicable) X

6. Copy of completed W-9 (March X 2024)

7. Income/Expense worksheet X (required for allapplicants)

8. Copy of the Applicant checklist X

This application meets the minimumrequirement of 5,001 out-of-county attendees (Cultural) or 250 room nights (Sports).

All documents have beensubmitted, reviewed and/or addressed in the comments.

FY

Response ID:12 Data

2.(untitled)

1. I have read and understand the policies/procedures within the FY 2025-2026 Marketing Support Program Criteria.

Signature of: Melinda Benya

3.(untitled)

2. Which best describes your event/year-round programming? Cultural 4.(untitled)

3. ORGANIZATION INFORMATION

Name of organization hosting event/year-round programming The Henegar Center

Organization

Primary contact name Melinda Benya

Primary contact phone number 3217238698

Primary contact email melinda@henegar org

Secondary contact name Douglas Lebo

Secondary contact phone number 3217238698

Secondary contact email doug@henegar.org

Organization website address www henegarcenter com

5 (untitled)

4. Which best describes your organization? 501(C)(3)

6. (untitled)

5. What is your Federal Employee ID number? 59-2306612

7 (untitled)

6. Are you completing this application for an event or year-round programming? Year-round programming - theater, symphony, concerts, museum, etc

8. (untitled) 1. EVENT INFORMATION - #1 Name of event Event website address (if different from organization website) Event location 9 (untitled)

What is the first date of your event?

In total, how many days will your event be held?

11.(untitled)

7. Do you have a second event? No

12.(untitled)

4. EVENT INFORMATION - #2

Name of event

Event website address (if different from organization website) Event location

13.(untitled)

What is the first date of your event?

14.(untitled)

In total, how many days will your event be held?

15.(untitled)

Do you have a third event?

16.(untitled)

8. EVENT INFORMATION - #3

Name of event

Event website address (if different from organization website) Event location

17.(untitled)

What is the first date of your event?

18.(untitled)

In total, how many days will your event be held?

19.(untitled)

What types of marketing do you plan to do for this event?

20.(untitled)

8. What types of marketing do you plan to do for your year-round programming?

Direct mail

Social media (Facebook, Instagram, YouTube, etc.)

21.(untitled)

9. What are your social media handles?

Facebook : The Henegar

Instagram : @henegarcenter

22.(untitled)

10. What hashtags do you currently use?

n/a

23.(untitled)

11. Upload a copy of your organization's IRS Determination letter. BRAG_IRS_Determination_Letter.pdf

24.(untitled)

12. Upload a copy of your organization's 990 form. 2023_Federal_Tax_Return_Documents_(BREVARD_REGIONAL_ARTS).pdf

25.(untitled)

Upload a copy of your organization's Articles of Incorporation.

13. If you are a Florida organization, please upload a copy of your SunBiz.com account associated with your organization.

Detail_by_Entity_Name.pdf

27.(untitled)

14. Upload your completed W-9 form. Henegar_Performing_Arts_Center_Inc_W9.pdf

28.(untitled)

15. Upload your completed Event Income/Expense report.

Event_Income_Expense_Report_template_FY25-26.pdf

29.(untitled)

16. Upload your completed Checklist. Grant_Check_List.pdf

30.(untitled) 17.

I attest that all information in this questionnaire is true and correct. I further attest that will comply with the requirements set forth, if awarded support.

of:

31.Thank You!

New Send Email May 16, 2025 14:15:50 Success: Email Sent to: Deborah.Webster@VisitSpaceCoast.com;

DepartmentofState / DivisionofCorporations / SearchRecords / SearchbyEntityName /

DetailbyEntityName

FloridaNotForProfitCorporation HENEGARPERFORMINGARTSCENTER,INC

Filing

DocumentNumber

FEI/EINNumber

DateFiled

PrincipalAddress

625E.NEWHAVENAVE. MELBOURNE,FL32901

Changed:02/25/1994

MailingAddress

625E NEWHAVENAVE MELBOURNE,FL32901

Changed:04/22/2011

RegisteredAgentName&Address

DelBrocco,DominicA 625E NEWHAVENAVE MELBOURNE,FL32901

NameChanged:07/30/2021

AddressChanged:12/08/2016

Officer/DirectorDetail

Name&Address

TitleSecretary

HUFF,STEVE

625E NEWHAVENAVE

MELBOURNE,FL32901

TitleVP

DeRoche,Mike

625E NEWHAVENAVE MELBOURNE,FL32901

TitlePresident

Lebo,Doug

625E NEWHAVENAVE MELBOURNE,FL32901

TitleTreasurer

Riippa,Nick

625E.NEWHAVENAVE. MELBOURNE,FL32901

AnnualReports

ReportYear FiledDate

2023 01/21/2023 2024 02/10/2024 2025 02/06/2025

DocumentImages

02/06/2025--ANNUALREPORT ViewimageinPDFformat

08/16/2024--NameChange ViewimageinPDFformat

02/10/2024--ANNUALREPORT ViewimageinPDFformat

01/21/2023--ANNUALREPORT ViewimageinPDFformat

01/23/2022--ANNUALREPORT ViewimageinPDFformat

07/30/2021--ANNUALREPORT ViewimageinPDFformat

03/18/2020--ANNUALREPORT ViewimageinPDFformat

06/25/2019--AMENDEDANNUALREPORT ViewimageinPDFformat

02/04/2019--ANNUALREPORT ViewimageinPDFformat

02/08/2018--ANNUALREPORT ViewimageinPDFformat

01/11/2017--ANNUALREPORT ViewimageinPDFformat

12/12/2016--Amendment ViewimageinPDFformat

12/08/2016--AMENDEDANNUALREPORT ViewimageinPDFformat

04/27/2016--ANNUALREPORT ViewimageinPDFformat

04/27/2015--ANNUALREPORT ViewimageinPDFformat

01/28/2014--ANNUALREPORT ViewimageinPDFformat

04/12/2013--ANNUALREPORT ViewimageinPDFformat

03/16/2012--ANNUALREPORT ViewimageinPDFformat

05/05/2011--ANNUALREPORT ViewimageinPDFformat

04/22/2011--ANNUALREPORT ViewimageinPDFformat

07/13/2010--ANNUALREPORT ViewimageinPDFformat

08/04/2009--ANNUALREPORT ViewimageinPDFformat

07/02/2008--ANNUALREPORT ViewimageinPDFformat

05/05/2007--ANNUALREPORT ViewimageinPDFformat

04/18/2006--ANNUALREPORT ViewimageinPDFformat

04/29/2005--ANNUALREPORT ViewimageinPDFformat

04/17/2004--ANNUALREPORT ViewimageinPDFformat

08/01/2003--ANNUALREPORT ViewimageinPDFformat

06/25/2002--ANNUALREPORT ViewimageinPDFformat

07/24/2001--ANNUALREPORT ViewimageinPDFformat

08/28/2000--ANNUALREPORT ViewimageinPDFformat

05/05/1999--ANNUALREPORT ViewimageinPDFformat

02/03/1998--ANNUALREPORT ViewimageinPDFformat

05/30/1997--ANNUALREPORT ViewimageinPDFformat

05/15/1996--ANNUALREPORT ViewimageinPDFformat

04/25/1995--ANNUALREPORT ViewimageinPDFformat

Florida Department of State, Division of Corporations

2023 Filing Instructions BREVARD REGIONAL ARTS GROUP INC Tax year ending 05-31-2024

Form filed:

Form 990 and supplemental forms and schedules

Filing method:

The return will be e-filed once the signed and dated Form 8879-TE has been received by this office. Do not mail the return to the IRS.

Due date: 10-15-2024

The return reflects neither a refund nor a balance due.

Please note:

The Taxpayer First Act requires tax-exempt organizations to electronically file all information returns in the 990 series and related forms for tax years beginning after July 1, 2019. Mailing these returns is no longer allowed.

Return of Organization Exempt From Income Tax

Under section 501(c), 527, or 4947(a)(1) of the Internal Revenue Code (except private foundations) Do not enter social security numbers on this form as it may be made public.

Check if applicable: Name of organization

Address change Doing business as

Name change Number and street (or P.O. box if mail is not delivered to street address)

Initial return

Final return/terminated City or town, state or province, country,

Briefly describe the organization's mission or most significant activities:

Is this a group return for subordinates?

Check this box if the organization discontinued its operations or disposed of more than 25% of its net assets.

Number of voting members of the governing body (Part VI, line 1a)

Number of independent voting members of the governing body (Part VI, line 1b)

Total number of individuals employed in calendar year 2023 (Part V, line 2a)

Total number of volunteers (estimate if necessary)

Total unrelated business revenue from Part VIII, column (C), line 12

Net unrelated business taxable income from Form 990-T, Part I, line 11

Contributions and grants (Part VIII, line 1h)

Program service revenue (Part VIII, line 2g)

Investment income (Part VIII, column (A), lines 3, 4, and 7d)

Other revenue (Part VIII, column (A), lines 5, 6d, 8c, 9c, 10c, and 11e)

Total revenue - add lines 8 through 11 (must equal Part VIII, column (A), line 12)

Grants and similar amounts paid (Part IX, column (A), lines 1-3)

Benefits paid to or for members (Part IX, column (A), line 4)

Salaries, other compensation, employee benefits (Part IX, column (A), lines 5-10)

Professional fundraising fees (Part IX, column (A), line 11e)

Total fundraising expenses (Part IX, column (D), line 25)

Other expenses (Part IX, column (A), lines 11a-11d, 11f-24e)

Total expenses. Add lines 13-17 (must equal Part IX, column (A), line 25)

Revenue less expenses. Subtract line 18 from line 12

Total assets (Part X, line 16)

Total liabilities (Part X, line 26)

Net assets or fund balances. Subtract line 21 from line 20

DOUG LEBO

DOUG LEBO, PRESIDENT

4 4 16 3 0 0 602,530 609,027 1,271,113 1,208,272 114 5,724 405 2,295 1,874,162 1,825,318 1,321,185 0 91,465 0 287,750 557,560 0

38,416 1,238,070 1,738,816 1,795,630 135,346 29,688 3,618,918 3,850,364 1,318,021 1,507,574 2,300,897 2,342,790

Check if Schedule O contains a response or note to any line in this Part III

Briefly describe the organization's mission:

THE HENEGAR CENTER ENTERTAINS, EDUCATES, AND ENRICHES BY PRODUCING THE HIGHEST QUALITY PERFORMING ARTS EXPERIENCES.

Did the organization undertake any significant program services during the year which were not listed on the prior Form 990 or 990-EZ?

If "Yes," describe these new services on Schedule O.

Did the organization cease conducting, or make significant changes in how it conducts, any program services?

If "Yes," describe these changes on Schedule O.

Describe the organization's program service accomplishments for each of its three largest program services, as measured by expenses. Section 501(c)(3) and 501(c)(4) organizations are required to report the amount of grants and allocations to others, the total expenses, and revenue, if any, for each program service reported.

1,625,338 1,107,204

THE HENEGAR CENTER PUT ON 15 PRODUCTIONS (6 MAINSTAGE SHOWS, 3 SPECIAL EVENTS, 1 FELLER SUMMER CAMP, AND 5 SCHOOL YEAR SHOWS) FOR A TOTAL OF 126 PERFORMANCES. 35,000 TICKETS WERE PURCHASED FOR THESE PERFORMANCES, 259 STUDENTS ENROLLED IN FELLER ACADEMY AND ABOUT 26,116 VOLUNTEER HOURS.

(Code: ) (Expenses $ including grants of $ ) (Revenue $ ) (Code: ) (Expenses $ including grants of $

) (Expenses

Other program services (Describe on Schedule O.) (Expenses $ including grants of $ ) (Revenue $ ) Total program service expenses

1,625,338

Is the organization described in section 501(c)(3) or 4947(a)(1) (other than a private foundation)? If "Yes," complete Schedule A

Is the organization required to complete Schedule B, Schedule of Contributors? See instructions

Did the organization engage in direct or indirect political campaign activities on behalf of or in opposition to candidates for public office? If "Yes," complete Schedule C, Part I

Section 501(c)(3) organizations. Did the organization engage in lobbying activities, or have a section 501(h) election in effect during the tax year? If "Yes," complete Schedule C, Part II

Is the organization a section 501(c)(4), 501(c)(5), or 501(c)(6) organization that receives membership dues, assessments, or similar amounts as defined in Rev. Proc. 98-19? If "Yes," complete Schedule C, Part III

Did the organization maintain any donor advised funds or any similar funds or accounts for which donors have the right to provide advice on the distribution or investment of amounts in such funds or accounts? If "Yes," complete Schedule D, Part I

Did the organization receive or hold a conservation easement, including easements to preserve open space, the environment, historic land areas, or historic structures? If "Yes," complete Schedule D, Part II

Did the organization maintain collections of works of art, historical treasures, or other similar assets? If "Yes," complete Schedule D, Part III

Did the organization report an amount in Part X, line 21, for escrow or custodial account liability, serve as a custodian for amounts not listed in Part X; or provide credit counseling, debt management, credit repair, or debt negotiation services? If "Yes," complete Schedule D, Part IV

Did the organization, directly or through a related organization, hold assets in donor-restricted endowments or in quasi-endowments? If "Yes," complete Schedule D, Part V

If the organization's answer to any of the following questions is "Yes," then complete Schedule D, Parts VI, VII, VIII, IX, or X, as applicable.

Did the organization report an amount for land, buildings, and equipment in Part X, line 10? If "Yes," complete Schedule D, Part VI

Did the organization report an amount for investments - other securities in Part X, line 12, that is 5% or more of its total assets reported in Part X, line 16? If "Yes," complete Schedule D, Part VII

Did the organization report an amount for investments - program related in Part X, line 13, that is 5% or more of its total assets reported in Part X, line 16? If "Yes," complete Schedule D, Part VIII

Did the organization report an amount for other assets in Part X, line 15, that is 5% or more of its total assets reported in Part X, line 16? If "Yes," complete Schedule D, Part IX

Did the organization report an amount for other liabilities in Part X, line 25? If "Yes," complete Schedule D, Part X

Did the organization's separate or consolidated financial statements for the tax year include a footnote that addresses the organization's liability for uncertain tax positions under FIN 48 (ASC 740)? If "Yes," complete Schedule D, Part X

Did the organization obtain separate, independent audited financial statements for the tax year? If "Yes," complete Schedule D, Parts XI and XII

Was the organization included in consolidated, independent audited financial statements for the tax year? If "Yes," and if the organization answered "No" to line 12a, then completing Schedule D, Parts XI and XII is optional

Is the organization a school described in section 170(b)(1)(A)(ii)? If "Yes," complete Schedule E

Did the organization maintain an office, employees, or agents outside of the United States?

Did the organization have aggregate revenues or expenses of more than $10,000 from grantmaking, fundraising, business, investment, and program service activities outside the United States, or aggregate foreign investments valued at $100,000 or more? If "Yes," complete Schedule F, Parts I and IV

Did the organization report on Part IX, column (A), line 3, more than $5,000 of grants or other assistance to or for any foreign organization? If "Yes," complete Schedule F, Parts II and IV

Did the organization report on Part IX, column (A), line 3, more than $5,000 of aggregate grants or other assistance to or for foreign individuals? If "Yes," complete Schedule F, Parts III and IV

Did the organization report a total of more than $15,000 of expenses for professional fundraising services on Part IX, column (A), lines 6 and 11e? If "Yes," complete Schedule G, Part I. See instructions

Did the organization report more than $15,000 total of fundraising event gross income and contributions on Part VIII, lines 1c and 8a? If "Yes," complete Schedule G, Part II

Did the organization report more than $15,000 of gross income from gaming activities on Part VIII, line 9a?

If "Yes," complete Schedule G, Part III

Did the organization operate one or more hospital facilities? If "Yes," complete Schedule H If "Yes" to line 20a, did the organization attach a copy of its audited financial statements to this return?

Did the organization report more than $5,000 of grants or other assistance to any domestic organization or domestic government on Part IX, column (A), line 1? If "Yes," complete Schedule I, Parts I and II

Did the organization report more than $5,000 of grants or other assistance to or for domestic individuals on Part IX, column (A), line 2? If "Yes," complete Schedule I, Parts I and III

Did the organization answer "Yes" to Part VII, Section A, line 3, 4, or 5, about compensation of the organization's current and former officers, directors, trustees, key employees, and highest compensated employees? If "Yes," complete Schedule J

Did the organization have a tax-exempt bond issue with an outstanding principal amount of more than $100,000 as of the last day of the year, that was issued after December 31, 2002? If "Yes," answer lines 24b through 24d and complete Schedule K. If "No," go to line 25a

Did the organization invest any proceeds of tax-exempt bonds beyond a temporary period exception?

Did the organization maintain an escrow account other than a refunding escrow at any time during the year to defease any tax-exempt bonds?

Did the organization act as an "on behalf of" issuer for bonds outstanding at any time during the year?

Section 501(c)(3), 501(c)(4), and 501(c)(29) organizations. Did the organization engage in an excess benefit transaction with a disqualified person during the year? If "Yes," complete Schedule L, Part I

Is the organization aware that it engaged in an excess benefit transaction with a disqualified person in a prior year, and that the transaction has not been reported on any of the organization's prior Forms 990 or 990-EZ? If "Yes," complete Schedule L, Part I

Did the organization report any amount on Part X, line 5 or 22, for receivables from or payables to any current or former officer, director, trustee, key employee, creator or founder, substantial contributor, or 35% controlled entity or family member of any of these persons? If "Yes," complete Schedule L, Part II

Did the organization provide a grant or other assistance to any current or former officer, director, trustee, key employee, creator or founder, substantial contributor or employee thereof, a grant selection committee member, or to a 35% controlled entity (including an employee thereof) or family member of any of these persons? If “Yes,” complete Schedule L, Part III

Was the organization a party to a business transaction with one of the following parties (See the Schedule L, Part IV, instructions for applicable filing thresholds, conditions, and exceptions).

A current or former officer, director, trustee, key employee, creator or founder, or substantial contributor? If “Yes,” complete Schedule L, Part IV

A family member of any individual described in line 28a? If “Yes,” complete Schedule L, Part IV

A 35% controlled entity of one or more individuals and/or organizations described in line 28a or 28b? If “Yes,” complete Schedule L, Part IV

Did the organization receive more than $25,000 in noncash contributions? If "Yes," complete Schedule M

Did the organization receive contributions of art, historical treasures, or other similar assets, or qualified conservation contributions? If "Yes," complete Schedule M

Did the organization liquidate, terminate, or dissolve and cease operations? If "Yes," complete Schedule N, Part I

Did the organization sell, exchange, dispose of, or transfer more than 25% of its net assets? If "Yes," complete Schedule N, Part II

Did the organization own 100% of an entity disregarded as separate from the organization under Regulations sections 301.7701-2 and 301.7701-3? If "Yes," complete Schedule R, Part I

Was the organization related to any tax-exempt or taxable entity? If "Yes," complete Schedule R, Part II, III, or IV, and Part V, line 1

Did the organization have a controlled entity within the meaning of section 512(b)(13)?

If "Yes" to line 35a, did the organization receive any payment from or engage in any transaction with a controlled entity within the meaning of section 512(b)(13)? If "Yes," complete Schedule R, Part V, line 2 Section 501(c)(3) organizations. Did the organization make any transfers to an exempt non-charitable related organization? If "Yes," complete Schedule R, Part V, line 2

Did the organization conduct more than 5% of its activities through an entity that is not a related organization and that is treated as a partnership for federal income tax purposes? If "Yes," complete Schedule R, Part VI

Did the organization complete Schedule O and provide explanations on Schedule O for Part VI, lines 11b and 19? Note: All Form 990 filers are required to complete Schedule O

Enter the number reported in box 3 of Form 1096. Enter -0- if not applicable

Enter the number of Forms W-2G included in line 1a. Enter -0- if not applicable

Did the organization comply with backup withholding rules for reportable payments to vendors and reportable gaming (gambling) winnings to prize winners?

Enter the number of employees reported on Form W-3, Transmittal of Wage and Tax Statements, filed for the calendar year ending with or within the year covered by this return

If at least one is reported on line 2a, did the organization file all required federal employment tax returns?

Did the organization have unrelated business gross income of $1,000 or more during the year?

If "Yes," has it filed a Form 990-T for this year? If "No" to line 3b, provide an explanation on Schedule O

At any time during the calendar year, did the organization have an interest in, or a signature or other authority over, a financial account in a foreign country (such as a bank account, securities account, or other financial account)?

If "Yes," enter the name of the foreign country

See instructions for filing requirements for FinCEN Form 114, Report of Foreign Bank and Financial Accounts (FBAR).

Was the organization a party to a prohibited tax shelter transaction at any time during the tax year?

Did any taxable party notify the organization that it was or is a party to a prohibited tax shelter transaction?

If "Yes" to line 5a or 5b, did the organization file Form 8886-T?

Does the organization have annual gross receipts that are normally greater than $100,000, and did the organization solicit any contributions that were not tax deductible as charitable contributions?

If "Yes," did the organization include with every solicitation an express statement that such contributions or gifts were not tax deductible?

under section 170(c).

Did the organization receive a payment in excess of $75 made partly as a contribution and partly for goods and services provided to the payor?

If "Yes," did the organization notify the donor of the value of the goods or services provided?

Did the organization sell, exchange, or otherwise dispose of tangible personal property for which it was required to file Form 8282?

If "Yes," indicate the number of Forms 8282 filed during the year

Did the organization receive any funds, directly or indirectly, to pay premiums on a personal benefit contract?

Did the organization, during the year, pay premiums, directly or indirectly, on a personal benefit contract?

If the organization received a contribution of qualified intellectual property, did the organization file Form 8899 as required?

If the organization received a contribution of cars, boats, airplanes, or other vehicles, did the organization file a Form 1098-C?

Sponsoring organizations maintaining donor advised funds. Did a donor advised fund maintained by the sponsoring organization have excess business holdings at any time during the year?

Did the sponsoring organization make any taxable distributions under section 4966?

Did the sponsoring organization make a distribution to a donor, donor advisor, or related person?

Section 501(c)(7) organizations. Enter:

Initiation fees and capital contributions included on Part VIII, line 12

Gross receipts, included on Form 990, Part VIII, line 12, for public use of club facilities

Section 501(c)(12) organizations. Enter:

Gross income from members or shareholders

Gross income from other sources. (Do not net amounts due or paid to other sources against amounts due or received from them.)

Section 4947(a)(1) non-exempt charitable trusts. Is the organization filing Form 990 in lieu of Form 1041?

If "Yes," enter the amount of tax-exempt interest received or accrued during the year

Is the organization licensed to issue qualified health plans in more than one state?

Note: See the instructions for additional information the organization must report on Schedule O. Enter the amount of reserves the organization is required to maintain by the states in which the organization is licensed to issue qualified health plans

Enter the amount of reserves on hand

Did the organization receive any payments for indoor tanning services during the tax year?

If "Yes," has it filed a Form 720 to report these payments? If "No," provide an explanation on Schedule O

Is the organization subject to the section 4960 tax on payment(s) of more than $1,000,000 in remuneration or excess parachute payment(s) during the year?

If "Yes," see the instructions and file Form 4720, Schedule N.

Is the organization an educational institution subject to the section 4968 excise tax on net investment income?

If "Yes," complete Form 4720, Schedule O.

Section 501(c)(21) organizations. Did the trust, or any disqualified or other person, engage in any activities that would result in the imposition of an excise tax under section 4951, 4952, or 4953?

If "Yes," complete Form 6069.

For each "Yes" response to lines 2 through 7b below, and for a "No" response to line 8a, 8b, or 10b below, describe the circumstances, processes, or changes on Schedule O. See instructions.

Check if Schedule O contains a response or note to any line in this Part VI

Section A. Governing Body and Management

Enter the number of voting members of the governing body at the end of the tax year

If there are material differences in voting rights among members of the governing body, or if the governing body delegated broad authority to an executive committee or similar committee, explain on Schedule O.

Enter the number of voting members included in line 1a, above, who are independent

Did any officer, director, trustee, or key employee have a family relationship or a business relationship with any other officer, director, trustee, or key employee?

Did the organization delegate control over management duties customarily performed by or under the direct supervision of officers, directors, trustees, or key employees to a management company or other person?

Did the organization make any significant changes to its governing documents since the prior Form 990 was filed?

Did the organization become aware during the year of a significant diversion of the organization's assets?

Did the organization have members or stockholders?

Did the organization have members, stockholders, or other persons who had the power to elect or appoint one or more members of the governing body?

Are any governance decisions of the organization reserved to (or subject to approval by) members, stockholders, or persons other than the governing body?

Did the organization contemporaneously document the meetings held or written actions undertaken during the year by the following:

The governing body?

Each committee with authority to act on behalf of the governing body?

Is there any officer, director, trustee, or key employee listed in Part VII, Section A, who cannot be reached at the organization's mailing address? If "Yes," provide the names and addresses on Schedule O

B.

(This Section B requests information about policies not required by the Internal Revenue Code.)

Did the organization have local chapters, branches, or affiliates?

If "Yes," did the organization have written policies and procedures governing the activities of such chapters, affiliates, and branches to ensure their operations are consistent with the organization's exempt purposes?

Has the organization provided a complete copy of this Form 990 to all members of its governing body before filing the form?

Describe on Schedule O the process, if any, used by the organization to review this Form 990.

Did the organization have a written conflict of interest policy? If "No," go to line 13

Were officers, directors, or trustees, and key employees required to disclose annually interests that could give rise to conflicts?

Did the organization regularly and consistently monitor and enforce compliance with the policy? If "Yes," describe on Schedule O how this was done

Did the organization have a written whistleblower policy?

Did the organization have a written document retention and destruction policy?

Did the process for determining compensation of the following persons include a review and approval by independent persons, comparability data, and contemporaneous substantiation of the deliberation and decision?

The organization's CEO, Executive Director, or top management official

Other officers or key employees of the organization

If "Yes" to line 15a or 15b, describe the process on Schedule O. See instructions.

Did the organization invest in, contribute assets to, or participate in a joint venture or similar arrangement with a taxable entity during the year?

If "Yes," did the organization follow a written policy or procedure requiring the organization to evaluate its participation in joint venture arrangements under applicable federal tax law, and take steps to safeguard the organization's exempt status with respect to such arrangements?

C.

List the states with which a copy of this Form 990 is required to be filed

Section 6104 requires an organization to make its Forms 1023 (1024 or 1024-A, if applicable), 990, and 990-T (section 501(c) (3)s only) available for public inspection. Indicate how you made these available. Check all that apply.

Own website Another's website Upon request Other (explain on Schedule O)

Describe on Schedule O whether (and if so, how) the organization made its governing documents, conflict of interest policy, and financial statements available to the public during the tax year.

State the name, address, and telephone number of the person who possesses the organization's books and records.

A. Officers, Directors, Trustees, Key Employees, and Highest Compensated Employees

1a Complete this table for all persons required to be listed. Report compensation for the calendar year ending with or within the organization's tax year.

• List all of the organization's current officers, directors, trustees (whether individuals or organizations), regardless of amount of compensation. Enter -0- in columns (D), (E), and (F) if no compensation was paid.

• List all of the organization's current key employees, if any. See the instructions for definition of "key employee."

• List the organization's five current highest compensated employees (other than an officer, director, trustee, or key employee) who received reportable compensation (box 5 of Form W-2, box 6 of Form 1099-MISC, and/or box 1 of Form 1099-NEC) of more than $100,000 from the organization and any related organizations.

• List all of the organization's former officers, key employees, and highest compensated employees who received more than $100,000 of reportable compensation from the organization and any related organizations.

• List all of the organization's former directors or trustees that received, in the capacity as a former director or trustee of the organization, more than $10,000 of reportable compensation from the organization and any related organizations. See instructions for the order in which to list the persons above.

Check this box if neither the organization nor any related organization compensated any current officer, director, or trustee

(list any

1099-MISC/ organization and hours for 1099-NEC) 1099-NEC)

organizations

Total from continuation sheets to Part VII, Section A

Total (add lines 1b and 1c)

Total number of individuals (including but not limited to those listed above) who received more than $100,000 of reportable compensation from the organization

Did the organization list any former officer, director, trustee, key employee, or highest compensated employee on line 1a? If "Yes," complete Schedule J for such individual For any individual listed on line 1a, is the sum of reportable compensation and other compensation from the organization and related organizations greater than $150,000? If "Yes," complete Schedule J for such individual

Did any person listed on line 1a receive or accrue compensation from any unrelated organization or individual for services rendered to the organization? If "Yes," complete Schedule J for such person

Complete this table for your five highest compensated independent contractors that received more than $100,000 of compensation from the organization. Report compensation for the calendar year ending with or within the organization's tax year.

Total number of independent contractors (including but not limited to those listed above) who received more than $100,000 of compensation from the organization

Part VIIIStatement of Revenue

Check if Schedule O contains a response or note to any line in this Part VIII

Related organizations

Government grants (contributions)

All other contributions, gifts, grants, and similar amounts not included above

Noncash contributions included in lines 1a-1f

Total. Add lines 1a-1f

All other program service revenue

Total. Add lines 2a-2f

Investment income (including dividends, interest, and other similar amounts)

Income from investment of tax-exempt

Royalties

Gross rents

Less: rental expenses

Rental income or (loss)

Net rental income or (loss)

Gross amount from sales of assets other than inventory

Less: cost or other basis and sales expenses

Gain or (loss)

Net gain or (loss)

Gross income from fundraising events (not including$ of contributions reported on line 1c). See Part IV, line 18

Less: direct expenses

Net income or (loss) from fundraising events

Gross income from gaming activities. See Part IV, line 19

Less: direct expenses

Net income or (loss) from gaming activities

Gross sales of inventory, less returns and allowances

Less: cost of goods sold

Net income or (loss) from sales of inventory

All other revenue

Total. Add lines 11a-11d

Total revenue. See instructions

Section 501(c)(3) and 501(c)(4) organizations must complete all columns. All other organizations must complete column (A).

Check if Schedule O contains a response or note to any line in this Part IX

Do not include amounts reported on lines 6b, 7b, 8b, 9b, and 10b of Part VIII.

Grants and other assistance to domestic organizations and domestic governments. See Part IV, line 21

Grants and other assistance to domestic individuals. See Part IV, line 22

Grants and other assistance to foreign organizations, foreign governments, and foreign individuals. See Part IV, lines 15 and 16

Benefits paid to or for members

Compensation of current officers, directors, trustees, and key employees

Compensation not included above to disqualified persons (as defined under section 4958(f)(1)) and persons described in section 4958(c)(3)(B)

Other salaries and wages

Pension plan accruals and contributions (include section 401(k) and 403(b) employer contributions)

Other employee benefits

Payroll taxes

Fees for services (nonemployees):

Management

Legal

Accounting

Lobbying

Professional fundraising services. See Part IV, line 17

Investment management fees

Other. (If line 11g amount exceeds 10% of line 25, column (A), amount, list line 11g expenses on Schedule O.)

Advertising and promotion

Office expenses

Information technology

Royalties

Occupancy

Travel

Payments of travel or entertainment expenses for any federal, state, or local public officials

Conferences, conventions, and meetings

Interest

Payments to affiliates

Depreciation, depletion, and amortization

Insurance

Other expenses. Itemize expenses not covered above (List miscellaneous expenses on line 24e. If line 24e amount exceeds 10% of line 25, column (A), amount, list line 24e expenses on Schedule O.)

All other expenses

Total functional expenses. Add lines 1 through 24e

Joint costs. Complete this line only if the organization reported in column (B) joint costs from a combined educational campaign and fundraising solicitation. Check here if following SOP 98-2 (ASC 958-720)

- non-interest-bearing Savings and temporary cash

Pledges and grants receivable, net

Accounts receivable, net

Loans and other receivables from any current or former officer, director, trustee, key employee, creator or founder, substantial contributor, or 35%

controlled entity or family member of any of these persons

Loans and other receivables from other disqualified persons (as defined under section 4958(f)(1)), and persons described in section 4958(c)(3)(B)

Notes and loans receivable, net

Inventories for sale or use

Prepaid expenses and deferred charges

Land, buildings, and equipment: cost or other basis. Complete Part VI of Schedule D

Less: accumulated depreciation

Investments - publicly traded securities

Investments - other securities. See Part IV, line 11

Investments - program-related. See Part IV, line 11

Intangible assets

Other assets. See Part IV, line 11

Total assets. Add lines 1 through 15 (must equal line 33)

Accounts payable and accrued expenses

Grants payable

Deferred revenue

Tax-exempt bond liabilities

Escrow or custodial account liability. Complete Part IV of Schedule D

Loans and other payables to any current or former officer, director, trustee, key employee, creator or founder, substantial contributor, or 35% controlled entity or family member of any of these persons

Secured mortgages and notes payable to unrelated third parties

Unsecured notes and loans payable to unrelated third parties

Other liabilities (including federal income tax, payables to related third parties, and other liabilities not included on lines 17-24). Complete Part X of Schedule D

Total liabilities. Add lines 17 through 25

Net assets without donor restrictions

Net assets with donor restrictions

Capital stock or trust principal, or current funds

Paid-in or capital surplus, or land, building, or equipment fund

Retained earnings, endowment, accumulated income, or other funds

Total net assets or fund balances

405,688 338,980 43,391 52,817 7,059,949 3,675,353 2,863,724 3,384,596 225,777 3,618,918 3,850,364 430,425 639,605 887,596 567,769 300,200 1,318,021 1,507,574

2,342,790 3,618,918 3,850,364

Total liabilities and net assets/fund balances Form 990 (2023)

Check if Schedule O contains a response or note to any line in this Part XI

Total revenue (must equal Part VIII, column (A), line 12)

Total expenses (must equal Part IX, column (A), line 25)

Revenue less expenses. Subtract line 2 from line 1

Net assets or fund balances at beginning of year (must equal Part X, line 32, column (A))

Net unrealized gains (losses) on investments

Donated services and use of facilities

Investment expenses

Prior period adjustments

Other changes in net assets or fund balances (explain on Schedule O)

Net assets or fund balances at end of year. Combine lines 3 through 9 (must equal Part X, line 32, column (B))

if Schedule O contains a response or note to any line in this Part XII

Accounting method used to prepare the Form 990: Cash Accrual Other

If the organization changed its method of accounting from a prior year or checked "Other," explain on Schedule O.

Were the organization's financial statements compiled or reviewed by an independent accountant?

If "Yes," check a box below to indicate whether the financial statements for the year were compiled or reviewed on a separate basis, consolidated basis, or both Separate basis Consolidated basis Both consolidated and separate basis

Were the organization's financial statements audited by an independent accountant?

1,825,318 1,795,630 29,688 2,300,897 12,205 0 2,342,790 X X X

If "Yes," check a box below to indicate whether the financial statements for the year were audited on a separate basis, consolidated basis, or both

Separate basis Consolidated basis Both consolidated and separate basis

If "Yes" to line 2a or 2b, does the organization have a committee that assumes responsibility for oversight of the audit, review, or compilation of its financial statements and selection of an independent accountant? If the organization changed either its oversight process or selection process during the tax year, explain on Schedule O.

As a result of a federal award, was the organization required to undergo an audit or audits as set forth in the Uniform Guidance, 2 C.F.R. Part 200, Subpart F?

If "Yes," did the organization undergo the required audit or audits? If the organization did not undergo the required audit or audits, explain why on Schedule O and describe any steps taken to undergo such audits

Form 990 (2023)

Public Charity Status and Public Support

Go to www.irs.gov/Form990 for instructions and the latest information.

(All organizations must complete this part.) See instructions. Attach to Form 990 or Form 990-EZ.

The organization is not a private foundation because it is: (For lines 1 through 12, check only one box.)

A church, convention of churches, or association of churches described in section 170(b)(1)(A)(i).

A school described in section 170(b)(1)(A)(ii). (Attach Schedule E (Form 990).)

A hospital or a cooperative hospital service organization described in section 170(b)(1)(A)(iii).

A medical research organization operated in conjunction with a hospital described in section 170(b)(1)(A)(iii). Enter the hospital's name, city, and state:

An organization operated for the benefit of a college or university owned or operated by a governmental unit described in section 170(b)(1)(A)(iv). (Complete Part II.)

A federal, state, or local government or governmental unit described in section 170(b)(1)(A)(v).

An organization that normally receives a substantial part of its support from a governmental unit or from the general public described in section 170(b)(1)(A)(vi). (Complete Part II.)

A community trust described in section 170(b)(1)(A)(vi). (Complete Part II.)

An agricultural research organization described in section 170(b)(1)(A)(ix) operated in conjunction with a land-grant college or university or a non-land-grant college of agriculture (see instructions). Enter the name, city, and state of the college or university:

An organization that normally receives (1) more than 33 1/3% of its support from contributions, membership fees, and gross receipts from activities related to its exempt functions, subject to certain exceptions; and (2) no more than 33 1/3% of its support from gross investment income and unrelated business taxable income (less section 511 tax) from businesses acquired by the organization after June 30, 1975. See section 509(a)(2). (Complete Part III.)

An organization organized and operated exclusively to test for public safety. See section 509(a)(4).

An organization organized and operated exclusively for the benefit of, to perform the functions of, or to carry out the purposes of one or more publicly supported organizations described in section 509(a)(1) or section 509(a)(2). See section 509(a)(3). Check the box on lines 12a through 12d that describes the type of supporting organization and complete lines 12e, 12f, and 12g.

Type I. A supporting organization operated, supervised, or controlled by its supported organization(s), typically by giving the supported organization(s) the power to regularly appoint or elect a majority of the directors or trustees of the supporting organization. You must complete Part IV, Sections A and B.

Type II. A supporting organization supervised or controlled in connection with its supported organization(s), by having control or management of the supporting organization vested in the same persons that control or manage the supported organization(s). You must complete Part IV, Sections A and C.

Type III functionally integrated. A supporting organization operated in connection with, and functionally integrated with, its supported organization(s) (see instructions). You must complete Part IV, Sections A, D, and E.

Type III non-functionally integrated. A supporting organization operated in connection with its supported organization(s) that is not functionally integrated. The organization generally must satisfy a distribution requirement and an attentiveness requirement (see instructions). You must complete Part IV, Sections A and D, and Part V.

Check this box if the organization received a written determination from the IRS that it is a Type I, Type II, Type III functionally integrated, or Type III non-functionally integrated supporting organization. Enter the number of supported organizations

Provide the following information about the supported organization(s).

(i) Name of supported organization (ii) EIN (iii) Type of organization (iv) Is the organization (v) Amount of monetary (vi) Amount of (described on lines 1-10 listed in your governing support (see other support (see above (see instructions)) document? instructions) instructions)

Part II Support Schedule for Organizations Described in Sections 170(b)(1)(A)(iv) and 170(b)(1)(A)(vi)

(Complete only if you checked the box on line 5, 7, or 8 of Part I or if the organization failed to qualify under Part III. If the organization fails to qualify under the tests listed below, please complete Part III.)

Section A. Public Support

Gifts, grants, contributions, and membership fees received. (Do not include any "unusual grants.")

Tax revenues levied for the organization's benefit and either paid to or expended on its behalf

The value of services or facilities furnished by a governmental unit to the organization without charge Total. Add lines 1 through 3

The portion of total contributions by each person (other than a governmental unit or publicly supported organization) included on line 1 that exceeds 2% of the amount shown on line 11, column (f)

Section B. Total Support

Amounts from line 4

Gross income from interest, dividends, payments received on securities loans, rents, royalties, and income from similar sources

Net income from unrelated business activities, whether or not the business is regularly carried on Other income. Do not include gain or loss from the sale of capital assets (Explain in Part VI.)

Total support. Add lines 7 through 10

9,345 2,676,531

Gross receipts from related activities, etc. (see instructions) First 5 years. If the Form 990 is for the organization's first, second, third, fourth, or fifth tax year as a section 501(c)(3) organization, check this box and stop here

Section C. Computation of Public Support Percentage

2,685,876 2,685,876 99.65 X

Public support percentage for 2023 (line 6, column (f), divided by line 11, column (f)) % Public support percentage from 2022 Schedule A, Part II, line 14 % 33 1/3% support test - 2023. If the organization did not check the box on line 13, and line 14 is 33 1/3% or more, check this box and stop here. The organization qualifies as a publicly supported organization 33 1/3% support test - 2022. If the organization did not check a box on line 13 or 16a, and line 15 is 33 1/3% or more, check this box and stop here. The organization qualifies as a publicly supported organization 10%-facts-and-circumstances test - 2023. If the organization did not check a box on line 13, 16a, or 16b, and line 14 is 10% or more, and if the organization meets the facts-and-circumstances test, check this box and stop here. Explain in Part VI how the organization meets the facts-and-circumstances test. The organization qualifies as a publicly supported organization

10%-facts-and-circumstances test - 2022. If the organization did not check a box on line 13, 16a, 16b, or 17a, and line 15 is 10% or more, and if the organization meets the facts-and-circumstances test, check this box and stop here. Explain in Part VI how the organization meets the facts-and-circumstances test. The organization qualifies as a publicly supported organization

Private foundation. If the organization did not check a box on line 13, 16a, 16b, 17a, or 17b, check this box and see instructions

Part IIISupport Schedule for Organizations Described in Section 509(a)(2)

(Complete only if you checked the box on line 10 of Part I or if the organization failed to qualify under Part II. If the organization fails to qualify under the tests listed below, please complete Part II.)

Section A. Public Support

and

(Do not include any "unusual grants.")

Gross receipts from admissions, merchandise sold or services performed, or facilities furnished in any activity that is related to the organization's tax-exempt purpose

Gross receipts from activities that are not an unrelated trade or business under section 513

Tax revenues levied for the organization's benefit and either paid to or expended on its behalf

The value of services or facilities furnished by a governmental unit to the organization without charge

Total. Add lines 1 through 5

Amounts included on lines 1, 2, and 3 received from disqualified persons

Amounts included on lines 2 and 3 received from other than disqualified persons that exceed the greater of $5,000 or 1% of the amount on line 13 for the year

Add lines 7a and 7b

Public support. (Subtract line 7c from line 6.)

Section B. Total Support

Amounts from line 6

Gross income from interest, dividends, payments received on securities loans, rents, royalties, and income from similar sources

Unrelated business taxable income (less section 511 taxes) from businesses acquired after June 30, 1975

Add lines 10a and 10b

Net income from unrelated business activities not included on line 10b, whether or not the business is regularly carried on

Other income. Do not include gain or loss from the sale of capital assets (Explain in Part VI.)

Total support. (Add lines 9, 10c, 11, and 12.)

First 5 years. If the Form 990 is for the organization's first, second, third, fourth, or fifth tax year as a section 501(c)(3) organization, check this box and stop here

Section C. Computation of Public Support Percentage

Public support percentage for 2023 (line 8, column (f), divided by line 13, column (f))

from 2022 Schedule A, Part III, line 15

Section D. Computation of Investment Income Percentage

for 2023 (line 10c, column (f), divided by line 13, column (f))

income percentage from 2022 Schedule A, Part III, line 17

33 1/3% support tests - 2023. If the organization did not check the box on line 14, and line 15 is more than 33 1/3%, and line 17 is not more than 33 1/3%, check this box and stop here. The organization qualifies as a publicly supported organization

33 1/3% support tests - 2022. If the organization did not check a box on line 14 or line 19a, and line 16 is more than 33 1/3%, and line 18 is not more than 33 1/3%, check this box and stop here. The organization qualifies as a publicly supported organization

Private foundation. If the organization did not check a box on line 14, 19a, or 19b, check this box and see instructions

Part IV Supporting Organizations

(Complete only if you checked a box on line 12 of Part I. If you checked box 12a, Part I, complete Sections A and B. If you checked box 12b, Part I, complete Sections A and C. If you checked box 12c, Part I, complete Sections A, D, and E. If you checked box 12d, Part I, complete Sections A and D, and complete Part V.)

Section A. All Supporting Organizations

Are all of the organization's supported organizations listed by name in the organization's governing documents? If "No," describe in Part VI how the supported organizations are designated. If designated by class or purpose, describe the designation. If historic and continuing relationship, explain.

Did the organization have any supported organization that does not have an IRS determination of status under section 509(a)(1) or (2)? If "Yes," explain in Part VI how the organization determined that the supported organization was described in section 509(a)(1) or (2).

Did the organization have a supported organization described in section 501(c)(4), (5), or (6)? If "Yes," answer lines 3b and 3c below.

Did the organization confirm that each supported organization qualified under section 501(c)(4), (5), or (6) and satisfied the public support tests under section 509(a)(2)? If "Yes," describe in Part VI when and how the organization made the determination.

Did the organization ensure that all support to such organizations was used exclusively for section 170(c)(2)(B) purposes? If "Yes," explain in Part VI what controls the organization put in place to ensure such use. Was any supported organization not organized in the United States ("foreign supported organization")? If "Yes," and if you checked 12a or 12b in Part I, answer lines 4b and 4c below.

Did the organization have ultimate control and discretion in deciding whether to make grants to the foreign supported organization? If "Yes," describe in Part VI how the organization had such control and discretion despite being controlled or supervised by or in connection with its supported organizations.

Did the organization support any foreign supported organization that does not have an IRS determination under sections 501(c)(3) and 509(a)(1) or (2)? If "Yes," explain in Part VI what controls the organization used to ensure that all support to the foreign supported organization was used exclusively for section 170(c)(2)(B) purposes.

Did the organization add, substitute, or remove any supported organizations during the tax year? If "Yes," answer lines 5b and 5c below (if applicable). Also, provide detail in Part VI, including (i) the names and EIN numbers of the supported organizations added, substituted, or removed; (ii) the reasons for each such action; (iii) the authority under the organization's organizing document authorizing such action; and (iv) how the action was accomplished (such as by amendment to the organizing document).

Type I or Type II only. Was any added or substituted supported organization part of a class already designated in the organization's organizing document?

Substitutions only. Was the substitution the result of an event beyond the organization's control?

Did the organization provide support (whether in the form of grants or the provision of services or facilities) to anyone other than (i) its supported organizations, (ii) individuals that are part of the charitable class benefited by one or more of its supported organizations, or (iii) other supporting organizations that also support or benefit one or more of the filing organization's supported organizations? If "Yes," provide detail in Part VI.

Did the organization provide a grant, loan, compensation, or other similar payment to a substantial contributor (as defined in section 4958(c)(3)(C)), a family member of a substantial contributor, or a 35% controlled entity with regard to a substantial contributor? If "Yes," complete Part I of Schedule L (Form 990).

Did the organization make a loan to a disqualified person (as defined in section 4958) not described on line 7? If "Yes," complete Part I of Schedule L (Form 990).

Was the organization controlled directly or indirectly at any time during the tax year by one or more disqualified persons, as defined in section 4946 (other than foundation managers and organizations described in section 509(a)(1) or (2))? If "Yes," provide detail in Part VI.

Did one or more disqualified persons (as defined on line 9a) hold a controlling interest in any entity in which the supporting organization had an interest? If "Yes," provide detail in Part VI

Did a disqualified person (as defined on line 9a) have an ownership interest in, or derive any personal benefit from, assets in which the supporting organization also had an interest? If "Yes," provide detail in Part VI

Was the organization subject to the excess business holdings rules of section 4943 because of section 4943(f) (regarding certain Type II supporting organizations, and all Type III non-functionally integrated supporting organizations)? If "Yes," answer line 10b below.

Did the organization have any excess business holdings in the tax year? (Use Schedule C, Form 4720, to determine whether the organization had excess business holdings.)

Supporting Organizations (continued)

Has the organization accepted a gift or contribution from any of the following persons?

A person who directly or indirectly controls, either alone or together with persons described on lines 11b and 11c below, the governing body of a supported organization?

A family member of a person described on line 11a above?

A 35% controlled entity of a person described on 11a or 11b above? If "Yes" to line 11a, 11b, or 11c, provide detail in Part VI.

Section B. Type I Supporting Organizations

Did the governing body, members of the governing body, officers acting in their official capacity, or membership of one or more supported organizations have the power to regularly appoint or elect at least a majority of the organization's officers, directors, or trustees at all times during the tax year? If "No," describe in Part VI how the supported organization(s) effectively operated, supervised, or controlled the organization's activities. If the organization had more than one supported organization, describe how the powers to appoint and/or remove officers, directors, or trustees were allocated among the supported organizations and what conditions or restrictions, if any, applied to such powers during the tax year.

Did the organization operate for the benefit of any supported organization other than the supported organization(s) that operated, supervised, or controlled the supporting organization? If "Yes," explain in Part VI how providing such benefit carried out the purposes of the supported organization(s) that operated, supervised, or controlled the supporting organization.

Section C. Type II Supporting Organizations

Were a majority of the organization's directors or trustees during the tax year also a majority of the directors or trustees of each of the organization's supported organization(s)? If "No," describe in Part VI how control or management of the supporting organization was vested in the same persons that controlled or managed the supported organization(s).

Section D. All Type III Supporting Organizations

Did the organization provide to each of its supported organizations, by the last day of the fifth month of the organization's tax year, (i) a written notice describing the type and amount of support provided during the prior tax year, (ii) a copy of the Form 990 that was most recently filed as of the date of notification, and (iii) copies of the organization's governing documents in effect on the date of notification, to the extent not previously provided?

Were any of the organization's officers, directors, or trustees either (i) appointed or elected by the supported organization(s) or (ii) serving on the governing body of a supported organization? If "No," explain in Part VI how the organization maintained a close and continuous working relationship with the supported organization(s). By reason of the relationship described in line 2, above, did the organization's supported organizations have a significant voice in the organization's investment policies and in directing the use of the organization's income or assets at all times during the tax year? If "Yes," describe in Part VI the role the organization's supported organizations played in this regard.

Section E. Type III Functionally Integrated Supporting Organizations

Check the box next to the method that the organization used to satisfy the Integral Part Test during the year (see instructions).

The organization satisfied the Activities Test. Complete line 2 below.

The organization is the parent of each of its supported organizations. Complete line 3 below.

The organization supported a governmental entity. Describe in Part VI how you supported a government entity (see instructions).

Activities Test. Answer lines 2a and 2b below.

Did substantially all of the organization's activities during the tax year directly further the exempt purposes of the supported organization(s) to which the organization was responsive? If "Yes," then in Part VI identify those supported organizations and explain how these activities directly furthered their exempt purposes, how the organization was responsive to those supported organizations, and how the organization determined that these activities constituted substantially all of its activities.

Did the activities described on line 2a, above, constitute activities that, but for the organization's involvement, one or more of the organization's supported organization(s) would have been engaged in? If "Yes," explain in Part VI the reasons for the organization's position that its supported organization(s) would have engaged in these activities but for the organization's involvement.

Parent of Supported Organizations. Answer lines 3a and 3b below.

Did the organization have the power to regularly appoint or elect a majority of the officers, directors, or trustees of each of the supported organizations? If "Yes" or "No," provide details in Part VI.

Did the organization exercise a substantial degree of direction over the policies, programs, and activities of each of its supported organizations? If "Yes," describe in Part VI the role played by the organization in this regard.

Check here if the organization satisfied the Integral Part Test as a qualifying trust on Nov. 20, 1970 (explain in Part VI). See instructions. All other Type III non-functionally integrated supporting organizations must complete Sections A through E. (B)Current Year (A)Prior Year (optional) Net short-term capital gain

Recoveries of prior-year distributions

Other gross income (see instructions)

Add lines 1 through 3.

Depreciation and depletion

Portion of operating expenses paid or incurred for production or collection of gross income or for management, conservation, or maintenance of property held for production of income (see instructions)

Other expenses (see instructions)

Adjusted Net Income (subtract lines 5, 6, and 7 from line 4)

Aggregate fair market value of all non-exempt-use assets (see instructions for short tax year or assets held for part of year):

Average monthly value of securities

Average monthly cash balances

Fair market value of other non-exempt-use assets

Total (add lines 1a, 1b, and 1c)

Discount claimed for blockage or other factors

(explain in detail in Part VI):

Acquisition indebtedness applicable to non-exempt-use assets

Subtract line 2 from line 1d.

Cash deemed held for exempt use. Enter 0.015 of line 3 (for greater amount, see instructions).

Net value of non-exempt-use assets (subtract line 4 from line 3)

Multiply line 5 by 0.035.

Recoveries of prior-year distributions

Minimum Asset Amount (add line 7 to line 6)

Adjusted net income for prior year (from Section A, line 8, column A)

Enter 0.85 of line 1.

Minimum asset amount for prior year (from Section B, line 8, column A)

Enter greater of line 2 or line 3.

Income tax imposed in prior year

Distributable Amount. Subtract line 5 from line 4, unless subject to emergency temporary reduction (see instructions).

(B)Current Year (A)Prior Year (optional)

Check here if the current year is the organization's first as a non-functionally integrated Type III supporting organization (see instructions).

Amounts paid to supported organizations to accomplish exempt purposes

Amounts paid to perform activity that directly furthers exempt purposes of supported organizations, in excess of income from activity

Administrative expenses paid to accomplish exempt purposes of supported organizations

Amounts paid to acquire exempt-use assets

Qualified set-aside amounts (prior IRS approval required) - provide details in Part VI)

Other distributions (describe in Part VI). See instructions.

Total annual distributions. Add lines 1 through 6.

Distributions to attentive supported organizations to which the organization is responsive (provide details in Part VI). See instructions.

Distributable amount for 2023 from Section C, line 6 Line 8 amount divided by line 9 amount

Section E - Distribution Allocations (see instructions)

Distributable amount for 2023 from Section C, line 6

Underdistributions, if any, for years prior to 2023 (reasonable cause required - explain in Part VI). See instructions.

Excess distributions carryover, if any, to 2023 From 2018 From 2019 From 2020 From 2021 From 2022

Total of lines 3a through 3e

Applied to underdistributions of prior years

Applied to 2023 distributable amount

Carryover from 2018 not applied (see instructions)

Remainder. Subtract lines 3g, 3h, and 3i from line 3f.

Distributions for 2023 from Section D, line 7: $

Applied to underdistributions of prior years

Applied to 2023 distributable amount

Remainder. Subtract lines 4a and 4b from line 4.

Remaining underdistributions for years prior to 2023, if any. Subtract lines 3g and 4a from line 2. For result greater than zero, explain in Part VI. See instructions.

Remaining underdistributions for 2023. Subtract lines 3h and 4b from line 1. For result greater than zero, explain in Part VI See instructions.

Excess distributions carryover to 2024. Add lines 3j and 4c.

Breakdown of line 7:

Excess from 2019

Excess from 2020

Excess from 2021

Excess from 2022

Excess from 2023

Schedule A (Form 990) 2023

Part VI Supplemental Information. Provide the explanations required by Part II, line 10; Part II, line 17a or 17b; Part III, line 12; Part IV, Section A, lines 1, 2, 3b, 3c, 4b, 4c, 5a, 6, 9a, 9b, 9c, 11a, 11b, and 11c; Part IV, Section B, lines 1 and 2; Part IV, Section C, line 1; Part IV, Section D, lines 2 and 3; Part IV, Section E, lines 1c, 2a, 2b, 3a, and 3b; Part V, line 1; Part V, Section B, line 1e; Part V, Section D, lines 5, 6, and 8; and Part V, Section E, lines 2, 5, and 6. Also complete this part for any additional information. (See instructions.)

Department of the Treasury Internal Revenue Service (Form 990)

Name of the organization

Organization type (check one):

Filers of: Section:

Form 990 or 990-EZ

Schedule of Contributors

Attach to Form 990, 990-EZ, or Form 990-PF.

Go to www.irs.gov/Form990 for the latest information.

501(c)( ) (enter number) organization

4947(a)(1) nonexempt charitable trust not treated as a private foundation

527 political organization

Form 990-PF

Employer identification number

501(c)(3) exempt private foundation

4947(a)(1) nonexempt charitable trust treated as a private foundation

501(c)(3) taxable private foundation

Check if your organization is covered by the General Rule or a Special Rule.

Note: Only a section 501(c)(7), (8), or (10) organization can check boxes for both the General Rule and a Special Rule. See instructions.

General Rule

For an organization filing Form 990, 990-EZ, or 990-PF that received, during the year, contributions totaling $5,000 or more (in money or property) from any one contributor. Complete Parts I and II. See instructions for determining a contributor's total contributions.

Special Rules

For an organization described in section 501(c)(3) filing Form 990 or 990-EZ that met the 33 1/3% support test of the regulations under sections 509(a)(1) and 170(b)(1)(A)(vi), that checked Schedule A (Form 990), Part II, line 13, 16a, or 16b, and that received from any one contributor, during the year, total contributions of the greater of (1) $5,000; or (2) 2% of the amount on (i) Form 990, Part VIII, line 1h; or (ii) Form 990-EZ, line 1. Complete Parts I and II.

For an organization described in section 501(c)(7), (8), or (10) filing Form 990 or 990-EZ that received from any one contributor, during the year, total contributions of more than $1,000 exclusively for religious, charitable, scientific, literary, or educational purposes, or for the prevention of cruelty to children or animals. Complete Parts I (entering "N/A" in column (b) instead of the contributor name and address), II, and III.

For an organization described in section 501(c)(7), (8), or (10) filing Form 990 or 990-EZ that received from any one contributor, during the year, contributions exclusively for religious, charitable, etc., purposes, but no such contributions totaled more than $1,000. If this box is checked, enter here the total contributions that were received during the year for an exclusively religious, charitable, etc., purpose. Don't complete any of the parts unless the General Rule applies to this organization because it received nonexclusively religious, charitable, etc., contributions totaling $5,000 or more during the year $

Caution: An organization that isn't covered by the General Rule and/or the Special Rules doesn't file Schedule B (Form 990), but it must answer "No" on Part IV, line 2, of its Form 990; or check the box on line H of its Form 990-EZ or on its Form 990-PF, Part I, line 2, to certify that it doesn't meet the filing requirements of Schedule B (Form 990).

For Paperwork Reduction Act Notice, see the Instructions for Form 990, 990-EZ, or 990-PF.

Schedule B (Form 990) (2023)

Part II for noncash contributions.)

Department of the Treasury Internal Revenue Service

Name of the organization

Supplemental Financial Statements

Complete if the organization answered "Yes" on Form 990, Part IV, line 6, 7, 8, 9, 10, 11a, 11b, 11c, 11d, 11e, 11f, 12a, or 12b. Attach to Form 990.

Go to www.irs.gov/Form990

Organizations Maintaining Donor Advised Funds or Other Similar Funds or Accounts

Complete if the organization answered "Yes" on Form 990, Part IV, line 6.

Total number at end of year

Aggregate value of contributions to (during year)

Aggregate value of grants from (during year)

Aggregate value at end of year

Did the organization inform all donors and donor advisors in writing that the assets held in donor advised funds are the organization's property, subject to the organization's exclusive legal control?

Did the organization inform all grantees, donors, and donor advisors in writing that grant funds can be used only for charitable purposes and not for the benefit of the donor or donor advisor, or for any other purpose conferring impermissible private benefit?

Part II Conservation Easements

Complete if the organization answered "Yes" on Form 990, Part IV, line 7.

Purpose(s) of conservation easements held by the organization (check all that apply).

Preservation of land for public use (for example, recreation or education)

Protection of natural habitat

Preservation of open space

Preservation of a historically important land area

Preservation of a certified historic structure

Complete lines 2a through 2d if the organization held a qualified conservation contribution in the form of a conservation easement on the last day of the tax year.

Total number of conservation easements

Total acreage restricted by conservation easements

Number of conservation easements on a certified historic structure included on line 2a

Number of conservation easements included on line 2c, acquired after July 25, 2006, and not on a historic structure listed in the National Register

at the End of the Tax Year

Number of conservation easements modified, transferred, released, extinguished, or terminated by the organization during the tax year

Number of states where property subject to conservation easement is located

Does the organization have a written policy regarding the periodic monitoring, inspection, handling of violations, and enforcement of the conservation easements it holds?

Staff and volunteer hours devoted to monitoring, inspecting, handling of violations, and enforcing conservation easements during the year

Amount of expenses incurred in monitoring, inspecting, handling of violations, and enforcing conservation easements during the year

Does each conservation easement reported on line 2d above satisfy the requirements of section 170(h)(4)(B)(i) and section 170(h)(4)(B)(ii)?

In Part XIII, describe how the organization reports conservation easements in its revenue and expense statement and balance sheet, and include, if applicable, the text of the footnote to the organization’s financial statements that describes the organization’s accounting for conservation easements

Part III Organizations Maintaining Collections of Art, Historical Treasures, or Other Similar Assets

Complete if the organization answered "Yes" on Form 990, Part IV, line 8.

If the organization elected, as permitted under FASB ASC 958, not to report in its revenue statement and balance sheet works of art, historical treasures, or other similar assets held for public exhibition, education, or research in furtherance of public service, provide in Part XIII the text of the footnote to its financial statements that describes these items.

If the organization elected, as permitted under FASB ASC 958, to report in its revenue statement and balance sheet works of art, historical treasures, or other similar assets held for public exhibition, education, or research in furtherance of public service, provide the following amounts relating to these items:

Revenue included on Form 990, Part VIII, line 1

Assets included in Form 990, Part X

If the organization received or held works of art, historical treasures, or other similar assets for financial gain, provide the following amounts required to be reported under FASB ASC 958 relating to these items:

Revenue included on Form 990, Part VIII, line 1 $

Assets included in Form 990, Part X $

Using the organization's acquisition, accession, and other records, check any of the following that make significant use of its collection items (check all that apply):

Public exhibition Loan or exchange program

Scholarly research Other

Preservation for future generations

Provide a description of the organization's collections and explain how they further the organization's exempt purpose in Part XIII.

During the year, did the organization solicit or receive donations of art, historical treasures, or other similar assets to be sold to raise funds rather than to be maintained as part of the organization's collection?

Part IV Escrow and Custodial Arrangements

Complete if the organization answered "Yes" on Form 990, Part IV, line 9, or reported an amount on Form 990, Part X, line 21.

Is the organization an agent, trustee, custodian or other intermediary for contributions or other assets not included on Form 990, Part X?

If "Yes," explain the arrangement in Part XIII and complete the following table.

Beginning balance

Additions during the year

Distributions during the year

Ending balance

Did the organization include an amount on Form 990, Part X, line 21, for escrow or custodial account liability?

If "Yes," explain the arrangement in Part XIII. Check here if the explanation has been provided on Part XIII

Part V Endowment Funds

Complete if the organization answered "Yes" on Form 990, Part IV, line 10.

Beginning of year balance

Contributions

Net investment earnings, gains, and losses

Grants or scholarships

Other expenditures for facilities and programs

Administrative expenses

End of year balance

Provide the estimated percentage of the current year end balance (line 1g, column (a)) held as:

Board designated or quasi-endowment %

Permanent endowment %

Term endowment %

The percentages on lines 2a, 2b, and 2c should equal 100%.

Are there endowment funds not in the possession of the organization that are held and administered for the organization by:

Unrelated organizations?

Related organizations?

If "Yes" on line 3a(ii), are the related organizations listed as required on Schedule R?

Describe in Part XIII the intended uses of the organization's endowment funds.

Part VI Land, Buildings, and Equipment

Complete if the organization answered "Yes" on Form 990, Part IV, line 11a. See Form 990, Part X, line 10.

Land Buildings

Leasehold improvements

Equipment

Other

Total. Add lines 1a through 1e. (Column (d) must equal Form 990, Part X, line 10c, column (B)

246,000 3,471,701 (3,471,701) 6,813,949 203,652 6,610,297 3,384,596

Part VIIInvestments - Other Securities

Complete if the organization answered "Yes" on Form 990, Part IV, line 11b. See Form 990, Part X, line 12.

Total. (Column (b) must equal Form 990, Part X, line 12, col.(B))

Part VIIIInvestments - Program Related

Complete if the organization answered "Yes" on Form 990, Part IV, line 11c. See Form 990, Part X, line 13.

Total. (Column (b) must equal Form 990, Part X, line 13, col. (B)) Total. (Column (b) must equal Form 990, Part X, line 15 col. (B))

Part IXOther Assets

Complete if the organization answered "Yes" on Form 990, Part IV, line 11d. See Form 990, Part X, line 15.

Part XOther Liabilities

Complete if the organization answered "Yes" on Form 990, Part IV, line 11e or 11f. See Form 990, Part X, line 25.

income taxes

Total. (Column (b) must equal Form 990, Part X, line 25 col. (B))

Complete if the organization answered "Yes" on Form 990, Part IV, line 12a.

Total revenue, gains, and other support per audited financial statements

Amounts included on line 1 but not on Form 990, Part VIII, line 12:

Net unrealized gains (losses) on investments

Donated services and use of facilities

Recoveries of prior year grants

Other (Describe in Part XIII.)

Add lines 2a through 2d

Subtract line 2e from line 1

Amounts included on Form 990, Part VIII, line 12, but not on line 1:

Investment expenses not included on Form 990, Part VIII, line 7b

Other (Describe in Part XIII.)

Add lines 4a and 4b

Total revenue. Add lines 3 and 4c. (This must equal Form 990, Part I, line 12.)

of

Complete if the organization answered "Yes" on Form 990, Part IV, line 12a.

Total expenses and losses per audited financial statements

Amounts included on line 1 but not on Form 990, Part IX, line 25:

Donated services and use of facilities

Prior year adjustments

Other losses

Other (Describe in Part XIII.)

Add lines 2a through 2d

Subtract line 2e from line 1

Amounts included on Form 990, Part IX, line 25, but not on line 1:

Investment expenses not included on Form 990, Part VIII, line 7b

Other (Describe in Part XIII.)

Add lines 4a and 4b

Total expenses. Add lines 3 and 4c. (This must equal Form 990, Part I, line 18.)

Part XIII Supplemental Information

Provide the descriptions required for Part II, lines 3, 5, and 9; Part III, lines 1a and 4; Part IV, lines 1b and 2b; Part V, line 4; Part X, line 2; Part XI, lines 2d and 4b; and Part XII, lines 2d and 4b. Also complete this part to provide any additional information

SCHEDULE O (Form 990)

Department of the Treasury Internal Revenue Service

Name of the organization

Supplemental Information to Form 990 or 990-EZ

Complete to provide information for responses to specific questions on Form 990 or 990-EZ or to provide any additional information Attach to Form 990 or Form 990-EZ.

Employer identification number

BREVARD REGIONAL ARTS GROUP INC 59-2306612

01.Form 990 governing body review (Part VI, line 11)

THE BOARD AND EXECUTIVE DIRECTOR REVIEW THE 990 PRIOR TO FILING AND APPROVE THE FILING IN ADVANCE.

02.Conflict of interest policy compliance (Part VI, line 12c)

THE BOARD MONITORS AND ENFORCES POLICY ON CONFLICTS OF INTEREST THROUGHOUT THE YEAR.

03.CEO, executive director, top management comp (Part VI, line 15a)

EXECUTIVE COMPENSATION FOR THE ARTISTIC DIRECTOR IS REVIEWED BY A COMPENSATION COMMITTEE AS PART OF THE ANNUAL BUDGET PROCESS.

04.Governing documents, etc, available to public (Part VI, line 19) DOCUMENTS ARE AVAILABLE UPON REQUEST.

05.List of other expenses (Part IX, line 24e)

THESES ARE DIRECT PROGRAM EXPENSES LISTED IN OTHER: SUMMER PROGRAM EXPENSES, SUMMER PROGRAM LABOR, WINER&SPRING PROGRAM EXPENSES, WINTER SPING LABOR, FELLOW SCHOLARSHIP, MOTIVATIONAL MATERIALS & SALES TAXES PAID,WORKER'S COMPENSATION.

For Paperwork Reduction Act Notice, see the Instructions for Form 990 or 990-EZ.

Go to www.irs.gov/Form990 for the latest information. EEA

Attach to your tax return.

Note: If you have any listed property, complete Part V before you complete Part I.

Maximum amount (see instructions)

Total cost of section 179 property placed in service (see instructions)

Threshold cost of section 179 property before reduction in limitation (see instructions)

Reduction in limitation. Subtract line 3 from line 2. If zero or less, enter -0-

Dollar limitation for tax year. Subtract line 4 from line 1. If zero or less, enter -0-. If married filing separately, see instructions

Listed property. Enter the amount from line 29

Total elected cost of section 179 property. Add amounts in column (c), lines 6 and 7

Tentative deduction. Enter the smaller of line 5 or line 8

Carryover of disallowed deduction from line 13 of your 2022 Form 4562

Business income limitation. Enter the smaller of business income (not less than zero) or line 5. See instructions

Section 179 expense deduction. Add lines 9 and 10, but don't enter more than line 11

Carryover of disallowed deduction to 2024. Add lines 9 and 10, less line 12

Note: Don't use Part II or Part III below for listed property. Instead, use Part V. (Don't include listed property. See instructions.)

Part II Special Depreciation Allowance and Other Depreciation

Special depreciation allowance for qualified property (other than listed property) placed in service during the tax year. See instructions

Property subject to section 168(f)(1) election

Part III MACRS Depreciation

Other depreciation (including ACRS) (Don't include listed property. See instructions.)

MACRS deductions for assets placed in service in tax years beginning before 2023

If you are electing to group any assets placed in service during the tax year into one or more general asset accounts, check here

3-year property

5-year property

7-year property

10-year property

15-year property

20-year property

Summary (See instructions.)

Listed property. Enter amount from line 28

Total. Add amounts from line 12, lines 14 through 17, lines 19 and 20 in column (g), and line 21. Enter here and on the appropriate lines of your return. Partnerships and S corporations - see instructions

For assets shown above and placed in service during the current year, enter the portion of the basis attributable to section 263A costs

(Include automobiles, certain other vehicles, certain aircraft, and property used for

or amusement.)

Note: For any vehicle for which you are using the standard mileage rate or deducting lease expense, complete only 24a, 24b, columns (a) through (c) of Section A, all of Section B, and Section C if applicable.

Section A - Depreciation and Other Information (Caution: See the instructions for limits for passenger automobiles.)

Do you have evidence to support the business/investment use claimed?

Special depreciation allowance for qualified listed property placed in service during the tax year and used more than 50% in a qualified business use. See instructions

Property used more than 50% in a qualified business use:

Property used 50% or less in a qualified business use:

Add amounts in column (h), lines 25 through 27. Enter here and on line 21, page 1

Add amounts in column (i), line 26. Enter here and on line 7, page 1

B - Information on Use of

Complete this section for vehicles used by a sole proprietor, partner, or other "more than 5% owner," or related person. If you provided vehicles to your employees, first answer the questions in Section C to see if you meet an exception to completing this section for those vehicles.

Total business/investment miles driven during the year (don't include commuting miles)

Total commuting miles driven during the year

Total other personal (noncommuting) miles driven

Total miles driven during the year. Add lines 30 through 32

Was the vehicle available for personal use during off-duty hours?

Was the vehicle used primarily by a more than 5% owner or related person?

Answer these questions to determine if you meet an exception to completing Section B for vehicles used by employees who aren't more than 5% owners or related persons. See instructions.

Do you maintain a written policy statement that prohibits all personal use of vehicles, including commuting, by your employees?

Do you maintain a written policy statement that prohibits personal use of vehicles, except commuting, by your employees? See the instructions for vehicles used by corporate officers, directors, or 1% or more owners

Do you treat all use of vehicles by employees as personal use?

Do you provide more than five vehicles to your employees, obtain information from your employees about the use of the vehicles, and retain the information received?

Do you meet the requirements concerning qualified automobile demonstration use? See instructions

Note: If your answer to 37, 38, 39, 40, or 41 is "Yes," don't complete Section B for the covered vehicles.

Amortization of costs that begins during your 2023 tax year (see instructions):

Amortization of costs that began before your 2023 tax year

Total. Add amounts in column (f). See the instructions for where to report

Federal Supporting Statements

Federal Supporting Statements

(Rev. March 2024)

Request for Taxpayer Identification Number and Certification

Department of the Treasury Internal Revenue Service Go to www.irs.gov/FormW9 for instructions and the latest information.

3.

2 Business name/disregarded entity name, if different from above.

3a Check the appropriate box for federal tax classification of the entity/individual whose name is entered on line 1. Check only one of the following seven boxes.

Individual/sole proprietor C corporation S corporation Partnership Trust/estate LLC. Enter the tax classification (C = C corporation, S = S corporation, P = Partnership) .... Note: Check the “LLC” box above and, in the entry space, enter the appropriate code (C, S, or P) for the tax classification of the LLC, unless it is a disregarded entity. A disregarded entity should instead check the appropriate box for the tax classification of its owner.

Other (see instructions)

3b If on line 3a you checked “Partnership” or “Trust/estate,” or checked “LLC” and entered “P” as its tax classification, and you are providing this form to a partnership, trust, or estate in which you have an ownership interest, check this box if you have any foreign partners, owners, or beneficiaries. See instructions .........

4 Exemptions (codes apply only to certain entities, not individuals; see instructions on page 3):

Exempt payee code (if any)

1 Name of entity/individual. An entry is required. (For a sole proprietor or disregarded entity, enter the owner’s name on line 1, and enter the business/disregarded entity’s name on line 2.)

Exemption from Foreign Account Tax Compliance Act (FATCA) reporting code (if any)

(Applies to accounts maintained outside the United States.)

Give form to the requester. Do not send to the IRS. Before you begin. For guidance related to the purpose of Form W-9, see Purpose of Form, below. Print or type. See Specific Instructions on page

5 Address (number, street, and apt. or suite no.). See instructions.

6 City, state, and ZIP code Requester’s name and address (optional)

7 List account number(s) here (optional)

Part I Taxpayer Identification Number (TIN)

Enter your TIN in the appropriate box. The TIN provided must match the name given on line 1 to avoid backup withholding. For individuals, this is generally your social security number (SSN). However, for a resident alien, sole proprietor, or disregarded entity, see the instructions for Part I, later. For other entities, it is your employer identification number (EIN). If you do not have a number, see How to get a TIN, later.

Note: If the account is in more than one name, see the instructions for line 1. See also What Name and Number To Give the Requester for guidelines on whose number to enter.

Part II Certification

Under penalties of perjury, I certify that:

1.The number shown on this form is my correct taxpayer identification number (or I am waiting for a number to be issued to me); and

2.I am not subject to backup withholding because (a) I am exempt from backup withholding, or (b) I have not been notified by the Internal Revenue Service (IRS) that I am subject to backup withholding as a result of a failure to report all interest or dividends, or (c) the IRS has notified me that I am no longer subject to backup withholding; and

3.I am a U.S. citizen or other U.S. person (defined below); and

4.The FATCA code(s) entered on this form (if any) indicating that I am exempt from FATCA reporting is correct.

Certification instructions. You must cross out item 2 above if you have been notified by the IRS that you are currently subject to backup withholding because you have failed to report all interest and dividends on your tax return. For real estate transactions, item 2 does not apply. For mortgage interest paid, acquisition or abandonment of secured property, cancellation of debt, contributions to an individual retirement arrangement (IRA), and, generally, payments other than interest and dividends, you are not required to sign the certification, but you must provide your correct TIN. See the instructions for Part II, later.

Sign Here Signature of U.S. person

General Instructions

Section references are to the Internal Revenue Code unless otherwise noted.

Future developments. For the latest information about developments related to Form W-9 and its instructions, such as legislation enacted after they were published, go to www.irs.gov/FormW9

What’s New

Line 3a has been modified to clarify how a disregarded entity completes this line. An LLC that is a disregarded entity should check the appropriate box for the tax classification of its owner. Otherwise, it should check the “LLC” box and enter its appropriate tax classification.

Date

New line 3b has been added to this form. A flow-through entity is required to complete this line to indicate that it has direct or indirect foreign partners, owners, or beneficiaries when it provides the Form W-9 to another flow-through entity in which it has an ownership interest. This change is intended to provide a flow-through entity with information regarding the status of its indirect foreign partners, owners, or beneficiaries, so that it can satisfy any applicable reporting requirements. For example, a partnership that has any indirect foreign partners may be required to complete Schedules K-2 and K-3. See the Partnership Instructions for Schedules K-2 and K-3 (Form 1065).

Purpose of Form

An individual or entity (Form W-9 requester) who is required to file an information return with the IRS is giving you this form because they

Museum of Dinosaurs and Ancient Cultures

Return to Table of Contents

Tourism Development Office

FY 2025-2026 Marketing Support Program

Application Packet checklist

Applicant Organization Name: Museum of Dinosaurs and Ancient Cultures

Applicant Event Name: Year-round programming

Yes No Comment

1. Completed application X

2. Copy of IRSArticles of X N/A Incorporation- (ifapplicable)

3. Copy of IRS Determination letter X - (ifapplicable)

4. Copy of SunBiz.org (if applicable) X

5. Copy of 990 (if applicable) X

6. Copy of completedW-9 (March X 2024)

7. Income/Expense worksheet X (required for all applicants)

8. Copy of the Applicant checklist X

This application meets the minimum requirement of 5,001 out-of-countyattendees (Cultural) or 250 room nights (Sports).

NO

All documentshave been submitted, reviewed and/or addressedin the comments.

�A� -le !-c<Ylr

FY 2025-2026 Marketing Support Program application

Response ID:54 Data

2.(untitled)

1. I have read and understand the policies/procedures within the FY 2025-2026 Marketing Support Program Criteria.

Signature of: Donna Cayer

3.(untitled)

2. Which best describes your event/year-round programming? Cultural 4.(untitled)

3. ORGANIZATION INFORMATION

Name of organization hosting event/year-round programming Museum of Dinosaurs and Ancient Cultures

Organization address 250 W COCOA BEACH CSWY State FL City

COCOA BEACH Zip 32931

Primary contact name

Primary contact phone number 3217837300

Primary contact email donna@dinosaurstore.com

Secondary contact name STEVEN CAYER

Secondary contact phone number 321-543-9018

Secondary contact email Steve@MuseumofDinosaurs.org

Organization website address MuseumofDinosaurs.org

5.(untitled)

4. Which best describes your organization?

501(C)(3)

6.(untitled)

5. What is your Federal Employee ID number? 27-3564062

7.(untitled)

6. Are you completing this application for an event or year-round programming? Year-round programming - theater, symphony, concerts, museum, etc.

8.(untitled)

1. EVENT INFORMATION - #1

Name of event

Event website address (if different from organization website)

Event location

9.(untitled)

What is the first date of your event?

In total, how many days will your event be held?

11.(untitled)

7. Do you have a second event? No

12.(untitled)

4. EVENT INFORMATION - #2

Name of event

Event website address (if different from organization website) Event location

13.(untitled)

What is the first date of your event?

14.(untitled)

In total, how many days will your event be held?

15.(untitled)

Do you have a third event?

16.(untitled)

8. EVENT INFORMATION - #3

Name of event

Event website address (if different from organization website) Event location

17.(untitled)

What is the first date of your event?

18.(untitled)

In total, how many days will your event be held?

19.(untitled)

What types of marketing do you plan to do for this event?

20.(untitled)

8. What types of marketing do you plan to do for your year-round programming?

Digital advertising (banner ads, etc.)

Search advertising (pay-per-click, etc.)

Social hashtags

Social media (Facebook, Instagram, YouTube, etc.)

21.(untitled)

9. What are your social media handles?

Facebook : TheDinosaurStoreandMuseum

Instagram : museumofdinosaurs

YouTube : @museumofdinosaurs2544

22.(untitled)

10. What hashtags do you currently use?

NA

23.(untitled)

11. Upload a copy of your organization's IRS Determination letter. 501c3-MDAC_IRS.pdf

24.(untitled)

12. Upload a copy of your organization's 990 form. 2024-Museum_of_Dinosaurs_and_Ancient_Cultures_990.pdf

25.(untitled)

13. If you are a Florida organization, please upload a copy of your SunBiz.com account associated with your organization. CorporateReportSunbiz pdf

(untitled)

14. Upload your completed W-9 form. W-9 2024-MuseumDAC pdf

15 Upload your completed Event Income/Expense report. Event Income Expense Report FY25-26 pdf 29. (untitled) 16. Upload your completed Checklist. MSP MuseumDinosaurs checklist 4 30 2025 pdf

I attest that all information in this questionnaire is true and correct. I further attest that will comply with the requirements set forth, if awarded support.

Signature of: Donna Cayer

Thank You!

Entity Name: MUSEUM OF DINOSAURS AND ANCIENT CULTURES, INC.

Current Principal Place of Business:

250 W. COCOA BEACH CSWY

COCOA BEACH, FL 32931

Current Mailing Address:

250 W. COCOA BEACH CSWY COCOA BEACH, FL 32931

FEI Number: 27-3564062 Certificate of Status Desired:

Name and Address of Current Registered Agent:

CAYER, DONNA L

250 W. COCOA BEACH CSWY

COCOA BEACH, FL 32931 US

The above named entity submits this statement for the purpose of changing its registered office or registered agent, or both, in the State of Florida.

SIGNATURE:

Officer/Director Detail :

Title CHAIRMAN, DIRECTOR

Name CAYER, STEVEN L

Address 250 W. COCOA BEACH CSWY.

City-State-Zip: COCOA BEACH FL 32931

Title DIR

Name TURCOTTE, CAROL

Address 250 W. COCOA BEACH CSWY.

City-State-Zip: COCOA BEACH FL 32931

Title DIR

Name HERNANDEZ, TONY III

Address 503 N ORLANDO AVE STE 106

City-State-Zip: COCOA BEACH FL 32931

Title SECRETARY, DIRECTOR

Name CAYER, DONNA L

Address 250 W. COCOA BEACH CSWY.

City-State-Zip: COCOA BEACH FL 32931

Title DIRECTOR

Name PRUETT, KEVIN

Address 250 W. COCOA BEACH CSWY

City-State-Zip: COCOA BEACH FL 32931

I

SIGNATURE:

May 7, 2025

Rhonda L Hinds & Associates CPA PA

160 McLeod St

Merritt Island, FL 32953 (321)454-2266

rhinds@hindscpa.com

Museum of Dinosaurs and Ancient Cultures

250 W Cocoa Beach Cswy

Cocoa Beach, FL 32931

Dear Client,

Enclosed is the 2024 U.S. Form 990, Return of Organization Exempt from Income Tax, for Museum of Dinosaurs and Ancient Cultures for the tax year ending December 31, 2024.

Your 2024 U.S. Form 990, Return of Organization Exempt from Income Tax, return will be electronically filed.

We very much appreciate the opportunity to serve you. If you have any questions regarding this return, please do not hesitate to call.

Sincerely,

160 McLeod St Merritt Island, FL 32953

May 7, 2025

Museum of Dinosaurs and Ancient Cultures

250 W Cocoa Beach Cswy Cocoa Beach, FL 32931

RE: Our Privacy Policy, Compliance with the Gramm-Leach-Bliley Act, Public Law 106-102 (FTC 16 CFR Part 313)

Dear Client,

The privacy of your client information has always been important to us, and we have always been bound by professional standards of confidentiality. However, we are now required by law to formally inform you of our privacy policy.

We collect nonpublic personal information about you that is provided by you or obtained by us with your authorization. This information may come from various sources, including information we receive from personal interviews, tax organizers, worksheets and other documents necessary to provide professional services to you.

We do not disclose any nonpublic personal information about our clients or former clients to anyone, except as permitted or required by law, or when necessary to process transactions requested by a client.

We restrict access to nonpublic personal information about you to members of our firm who need to know that information in order to provide you professional services. We retain records relating to the professional services that we provide you in accordance with accounting and government standards.

We employ physical, electronic, and procedural security safeguards to protect your nonpublic personal information.

Your confidence and trust are important to us. If you have any questions or concerns regarding the privacy of your nonpublic personal information, please contact us.

Sincerely,

Department of the Treasury Internal Revenue Service

Return of Organization Exempt From Income Tax

Under section 501(c), 527, or 4947(a)(1) of the Internal Revenue Code (except private foundations)

Do not enter social security numbers on this form as it may be made public. Go to www.irs.gov/Form990 for instructions and the latest information.

AFor the 2024 calendar year, or tax year beginning , 2024, and ending , 20

B Check if applicable:

Address change

Name change

Initial return

Final return/terminated

Amended return Application pending C Name of organization

Doing business as Number and street (or P.O.

or

250 W Cocoa Beach Cswy 27-3564062

Cocoa Beach, FL 32931

Donna Cayer, 250 W Cocoa Beach Cswy, Cocoa Beach, FL 32931

1 Briefly describe the organization’s mission or most significant activities:

H(a) Is this a group return for subordinates? Yes No

H(b) Are all subordinates included? Yes No If “No,” attach a list. See instructions.

H(c) Group exemption number

To expand the awareness and appreciation of prehistoric life and the magnificent accomplishments of the ancient peoples through the integration of exhibits, educational programs, and collections.

2 Check this box if the organization discontinued its operations or disposed of more than 25% of its net assets. 3 Number of voting

7a Total unrelated business revenue from Part VIII, column (C), line 12

b Net unrelated business taxable income from Form 990-T, Part I, line 11

8 Contributions and grants (Part VIII, line 1h)

9 Program service revenue (Part VIII, line 2g) ...........

10 Investment income (Part VIII, column (A), lines 3, 4, and 7d)

11 Other revenue (Part VIII, column (A), lines 5, 6d, 8c, 9c, 10c, and 11e) ...

12 Total revenue—add lines 8 through 11 (must equal Part VIII, column (A), line 12)

13 Grants and similar amounts paid (Part IX, column (A), lines 1–3)

14 Benefits paid to or for members (Part IX, column (A), line 4)

15 Salaries, other compensation, employee benefits (Part IX, column (A), lines 5–10)

16a Professional fundraising fees (Part IX, column (A), line 11e)

b Total fundraising expenses (Part IX, column (D), line 25)

17 Other expenses (Part IX, column (A), lines 11a–11d, 11f–24e)

20,793. 503,163. 578. 104,848. 452,368. Museum of Dinosaurs and Ancient Cultures

18 Total expenses. Add lines 13–17 (must equal Part IX, column (A), line 25) .

19 Revenue less expenses. Subtract line 18 from line 12

20 Total assets (Part X, line 16)

21 Total liabilities (Part X, line 26)

22 Net assets or fund balances. Subtract line 21 from line 20 Part II Signature Block

726,196. 164,078. 562,118. 5 5 0. 524,534. 05/07/2025 520,752. 0. 0. 462,968. 571,256. 557,216. -53,804. -32,682. 05/07/2025 Rhonda L Hinds & Associates CPA PA (321)454-2266 Rhonda Hinds Rhonda Hinds P00038396 59-3460369 0 26,151. 517,452. 489,681. 1,620. 108,288. 637,392. 508,314. 129,078.

Under penalties of perjury, I declare that I have examined this return, including accompanying schedules and statements, and to the best of my knowledge and belief, it is true, correct, and complete. Declaration of preparer (other than officer) is based on all information of which preparer has any knowledge.

Donna Cayer, Treasurer 160 McLeod St, Merritt Island, FL 32953

Check if Schedule O contains a response or note to any line in this Part III .............

1 Briefly describe the organization’s mission:

To expand the awareness and appreciation of prehistoric life and the magnificent accomplishments of the ancient peoples through the integration of exhibits, educational programs, and collections.

2 Did the organization undertake any significant program services during the year which were not listed on the prior Form 990 or 990-EZ? Yes No If “Yes,” describe these new services on Schedule O.

3 Did the organization cease conducting, or make significant changes in how it conducts, any program services?

If “Yes,” describe these changes on Schedule O.

Yes No

4 Describe the organization’s program service accomplishments for each of its three largest program services, as measured by expenses. Section 501(c)(3) and 501(c)(4) organizations are required to report the amount of grants and allocations to others, the total expenses, and revenue, if any, for each program service reported.

4a (Code: ) (Expenses $ including grants of $ ) (Revenue $)

The museum is open to the public and is 100% complete.

4b (Code: ) (Expenses $ including grants of $ ) (Revenue $)

4c (Code: ) (Expenses $ including grants of $ ) (Revenue $)

4d Other program services (Describe on Schedule O.) (Expenses $including grants of $) (Revenue $ )

4e Total program service expenses

569,397. 0. 517,452. 569,397.

1 Is the organization described in section 501(c)(3) or 4947(a)(1) (other than a private foundation)? If “Yes,” complete Schedule A 1

2 Is the organization required to complete Schedule B, Schedule of Contributors? See instructions .... 2

3 Did the organization engage in direct or indirect political campaign activities on behalf of or in opposition to candidates for public office? If “Yes,” complete Schedule C, Part I .............. 3

4 Section 501(c)(3) organizations. Did the organization engage in lobbying activities, or have a section 501(h) election in effect during the tax year? If “Yes,” complete Schedule C, Part II 4

5 Is the organization a section 501(c)(4), 501(c)(5), or 501(c)(6) organization that receives membership dues, assessments, or similar amounts as defined in Rev. Proc. 98-19? If “Yes,” complete Schedule C, Part III .. 5

6 Did the organization maintain any donor advised funds or any similar funds or accounts for which donors have the right to provide advice on the distribution or investment of amounts in such funds or accounts? If “Yes,” complete Schedule D, Part I 6

7 Did the organization receive or hold a conservation easement, including easements to preserve open space, the environment, historic land areas, or historic structures? If “Yes,” complete Schedule D, Part II ... 7

8 Did the organization maintain collections of works of art, historical treasures, or other similar assets? If “Yes,” complete Schedule D, Part III 8

9 Did the organization report an amount in Part X, line 21, for escrow or custodial account liability; serve as a custodian for amounts not listed in Part X; or provide credit counseling, debt management, credit repair, or debt negotiation services? If “Yes,” complete Schedule D, Part IV .............. 9

10 Did the organization, directly or through a related organization, hold assets in donor-restricted endowments or in quasi-endowments? If “Yes,” complete Schedule D, Part V 10

11 If the organization’s answer to any of the following questions is “Yes,” then complete Schedule D, Parts VI, VII, VIII, IX, or X, as applicable.

a Did the organization report an amount for land, buildings, and equipment in Part X, line 10? If “Yes,” complete Schedule D, Part VI .......................... 11a

b Did the organization report an amount for investments—other securities in Part X, line 12, that is 5% or more of its total assets reported in Part X, line 16? If “Yes,” complete Schedule D, Part VII 11b

c Did the organization report an amount for investments—program related in Part X, line 13, that is 5% or more of its total assets reported in Part X, line 16? If “Yes,” complete Schedule D, Part VIII 11c

d Did the organization report an amount for other assets in Part X, line 15, that is 5% or more of its total assets reported in Part X, line 16? If “Yes,” complete Schedule D, Part IX .............. 11d

e Did the organization report an amount for other liabilities in Part X, line 25? If “Yes,” complete Schedule D, Part X 11e

f Did the organization’s separate or consolidated financial statements for the tax year include a footnote that addresses the organization’s liability for uncertain tax positions under FIN 48 (ASC 740)? If “Yes,” complete Schedule D, Part X 11f

12a Did the organization obtain separate, independent audited financial statements for the tax year? If “Yes,” complete Schedule D, Parts XI and XII ........................... 12a

b Was the organization included in consolidated, independent audited financial statements for the tax year? If “Yes,” and if the organization answered “No” to line 12a, then completing Schedule D, Parts XI and XII is optional 12b

13 Is the organization a school described in section 170(b)(1)(A)(ii)? If “Yes,” complete Schedule E 13

14a Did the organization maintain an office, employees, or agents outside of the United States? 14a

b Did the organization have aggregate revenues or expenses of more than $10,000 from grantmaking, fundraising, business, investment, and program service activities outside the United States, or aggregate foreign investments valued at $100,000 or more? If “Yes,” complete Schedule F, Parts I and IV 14b

15 Did the organization report on Part IX, column (A), line 3, more than $5,000 of grants or other assistance to or for any foreign organization? If “Yes,” complete Schedule F, Parts II and IV ...........

15

16 Did the organization report on Part IX, column (A), line 3, more than $5,000 of aggregate grants or other assistance to or for foreign individuals? If “Yes,” complete Schedule F, Parts III and IV 16

17 Did the organization report a total of more than $15,000 of expenses for professional fundraising services on Part IX, column (A), lines 6 and 11e? If “Yes,” complete Schedule G, Part I. See instructions 17

18 Did the organization report more than $15,000 total of fundraising event gross income and contributions on Part VIII, lines 1c and 8a? If “Yes,” complete Schedule G, Part II ............... 18

19 Did the organization report more than $15,000 of gross income from gaming activities on Part VIII, line 9a? If “Yes,” complete Schedule G, Part III

19

20a Did the organization operate one or more hospital facilities? If “Yes,” complete Schedule H 20a

b If “Yes” to line 20a, did the organization attach a copy of its audited financial statements to this return? . 20b

21 Did the organization report more than $5,000 of grants or other assistance to any domestic organization or domestic government on Part IX, column (A), line 1? If “Yes,” complete Schedule I, Parts I and II

22 Did the organization report more than $5,000 of grants or other assistance to or for domestic individuals on Part IX, column (A), line 2? If “Yes,” complete Schedule I, Parts I and III

23 Did the organization answer “Yes” to Part VII, Section A, line 3, 4, or 5, about compensation of the organization’s current and former officers, directors, trustees, key employees, and highest compensated employees? If “Yes,” complete Schedule J

22

23

24a Did the organization have a tax-exempt bond issue with an outstanding principal amount of more than $100,000 as of the last day of the year, that was issued after December 31, 2002? If “Yes,” answer lines 24b through 24d and complete Schedule K. If “No,” go to line 25a 24a

b Did the organization invest any proceeds of tax-exempt bonds beyond a temporary period exception? .. 24b

c Did the organization maintain an escrow account other than a refunding escrow at any time during the year to defease any tax-exempt bonds? ........................ 24c

d Did the organization act as an “on behalf of” issuer for bonds outstanding at any time during the year? .. 24d

25a Section 501(c)(3), 501(c)(4), and 501(c)(29) organizations. Did the organization engage in an excess benefit transaction with a disqualified person during the year? If “Yes,” complete Schedule L, Part I

25a

b Is the organization aware that it engaged in an excess benefit transaction with a disqualified person in a prior year, and that the transaction has not been reported on any of the organization’s prior Forms 990 or 990-EZ? If “Yes,” complete Schedule L, Part I 25b

26 Did the organization report any amount on Part X, line 5 or 22, for receivables from or payables to any current or former officer, director, trustee, key employee, creator or founder, substantial contributor, or 35% controlled entity or family member of any of these persons? If “Yes,” complete Schedule L, Part II ... 26

27 Did the organization provide a grant or other assistance to any current or former officer, director, trustee, key employee, creator or founder, substantial contributor or employee thereof, a grant selection committee member, or to a 35% controlled entity (including an employee thereof) or family member of any of these persons? If “Yes,” complete Schedule L, Part III 27

28 Was the organization a party to a business transaction with one of the following parties? (See the Schedule L, Part IV, instructions for applicable filing thresholds, conditions, and exceptions).

a A current or former officer, director, trustee, key employee, creator or founder, or substantial contributor? If “Yes,” complete Schedule L, Part IV 28a

b A family member of any individual described in line 28a? If “Yes,” complete Schedule L, Part IV .... 28b

c A 35% controlled entity of one or more individuals and/or organizations described in line 28a or 28b? If “Yes,” complete Schedule L, Part IV ........................ 28c

29 Did the organization receive more than $25,000 in noncash contributions? If “Yes,” complete Schedule M 29

30 Did the organization receive contributions of art, historical treasures, or other similar assets, or qualified conservation contributions? If “Yes,” complete Schedule M 30

31 Did the organization liquidate, terminate, or dissolve and cease operations? If “Yes,” complete Schedule N, Part I 31

32 Did the organization sell, exchange, dispose of, or transfer more than 25% of its net assets? If “Yes,” complete Schedule N, Part II ..........................

32

33 Did the organization own 100% of an entity disregarded as separate from the organization under Regulations sections 301.7701-2 and 301.7701-3? If “Yes,” complete Schedule R, Part I 33

34 Was the organization related to any tax-exempt or taxable entity? If “Yes,” complete Schedule R, Part II, III, or IV, and Part V, line 1

35a Did the organization have a controlled entity within the meaning of section 512(b)(13)? .......

34

35a

b If “Yes” to line 35a, did the organization receive any payment from or engage in any transaction with a controlled entity within the meaning of section 512(b)(13)? If “Yes,” complete Schedule R, Part V, line 2 .. 35b

36 Section 501(c)(3) organizations. Did the organization make any transfers to an exempt non-charitable related organization? If “Yes,” complete Schedule R, Part V, line 2

36

37 Did the organization conduct more than 5% of its activities through an entity that is not a related organization and that is treated as a partnership for federal income tax purposes? If “Yes,” complete Schedule R, Part VI 37

38 Did the organization complete Schedule O and provide explanations on Schedule O for Part VI, lines 11b and 19? Note: All Form 990 filers are required to complete Schedule O

38 Part V Statements Regarding Other IRS Filings and Tax Compliance

Check if Schedule O contains a response or note to any line in this Part V ............. Yes

1a Enter the number reported in box 3 of Form 1096. Enter -0- if not applicable 1a

b Enter the number of Forms W-2G included on line 1a. Enter -0- if not applicable ... 1b

c Did the organization comply with backup withholding rules for reportable payments to vendors and reportable gaming

prize winners?

Part V Statements Regarding Other IRS Filings and Tax Compliance (continued)

2a Enter the number of employees reported on Form W-3, Transmittal of Wage and Tax Statements, filed for the calendar year ending with or within the year covered by this return 2a

b If at least one is reported on line 2a, did the organization file all required federal employment tax returns? . 2b

3a Did the organization have unrelated business gross income of $1,000 or more during the year? .... 3a

b If “Yes,” has it filed a Form 990-T for this year? If “No” to line 3b, provide an explanation on Schedule O 3b

4a At any time during the calendar year, did the organization have an interest in, or a signature or other authority over, a financial account in a foreign country (such as a bank account, securities account, or other financial account)? 4a

b If “Yes,” enter the name of the foreign country See instructions for filing requirements for FinCEN Form 114, Report of Foreign Bank and Financial Accounts (FBAR).

5a Was the organization a party to a prohibited tax shelter transaction at any time during the tax year? ... 5a

b Did any taxable party notify the organization that it was or is a party to a prohibited tax shelter transaction? 5b

c If “Yes” to line 5a or 5b, did the organization file Form 8886-T? 5c

6a Does the organization have annual gross receipts that are normally greater than $100,000, and did the organization solicit any contributions that were not tax deductible as charitable contributions? 6a

b If “Yes,” did the organization include with every solicitation an express statement that such contributions or gifts were not tax deductible? 6b

7Organizations that may receive deductible contributions under section 170(c).

a Did the organization receive a payment in excess of $75 made partly as a contribution and partly for goods and services provided to the payor? ........................ 7a

b If “Yes,” did the organization notify the donor of the value of the goods or services provided? 7b

c Did the organization sell, exchange, or otherwise dispose of tangible personal property for which it was required to file Form 8282? 7c

d If “Yes,” indicate the number of Forms 8282 filed during the year ........ 7d

e Did the organization receive any funds, directly or indirectly, to pay premiums on a personal benefit contract? 7e

f Did the organization, during the year, pay premiums, directly or indirectly, on a personal benefit contract? . 7f

g If the organization received a contribution of qualified intellectual property, did the organization file Form 8899 as required? 7g

h If the organization received a contribution of cars, boats, airplanes, or other vehicles, did the organization file a Form 1098-C? 7h

8 Sponsoring organizations maintaining donor advised funds. Did a donor advised fund maintained by the sponsoring organization have excess business holdings at any time during the year? 8

9Sponsoring organizations maintaining donor advised funds.

a Did the sponsoring organization make any taxable distributions under section 4966? ........ 9a

b Did the sponsoring organization make a distribution to a donor, donor advisor, or related person? ... 9b

10Section 501(c)(7) organizations. Enter:

a Initiation fees and capital contributions included on Part VIII, line 12 10a

b Gross receipts, included on Form 990, Part VIII, line 12, for public use of club facilities . 10b

11Section 501(c)(12) organizations. Enter:

a Gross income from members or shareholders ............... 11a

b Gross income from other sources. (Do not net amounts due or paid to other sources against amounts due or received from them.) ............... 11b

12aSection 4947(a)(1) non-exempt charitable trusts. Is the organization filing Form 990 in lieu of Form 1041? 12a

b If “Yes,” enter the amount of tax-exempt interest received or accrued during the year .. 12b

13Section 501(c)(29) qualified nonprofit health insurance issuers.

a Is the organization licensed to issue qualified health plans in more than one state? ........ 13a

Note: See the instructions for additional information the organization must report on Schedule O.

b Enter the amount of reserves the organization is required to maintain by the states in which the organization is licensed to issue qualified health plans .......... 13b

c Enter the amount of reserves on hand 13c

14a Did the organization receive any payments for indoor tanning services during the tax year? 14a

b If “Yes,” has it filed a Form 720 to report these payments? If “No,” provide an explanation on Schedule O 14b

15 Is the organization subject to the section 4960 tax on payment(s) of more than $1,000,000 in remuneration or excess parachute payment(s) during the year? 15

If “Yes,” see the instructions and file Form 4720, Schedule N.

16 Is the organization an educational institution subject to the section 4968 excise tax on net investment income? 16 If “Yes,” complete Form 4720, Schedule O.

17 Section 501(c)(21) organizations. Did the trust, or any disqualified or other person, engage in any activities that would result in the imposition of an excise tax under section 4951, 4952, or 4953? ... 17

If “Yes,” complete Form 6069.

Part VI Governance, Management, and Disclosure. For each “Yes” response to lines 2 through 7b below, and for a “No” response to line 8a, 8b, or 10b below, describe the circumstances, processes, or changes on Schedule O. See instructions. Check if Schedule O contains a response or note to any line in this Part VI .............

Section A. Governing Body and Management

1a Enter the number of voting members of the governing body at the end of the tax year.. 1a If there are material differences in voting rights among members of the governing body, or if the governing body delegated broad authority to an executive committee or similar committee, explain on Schedule O.

b Enter the number of voting members included on line 1a, above, who are independent . 1b

2 Did any officer, director, trustee, or key employee have a family relationship or a business relationship with any other officer, director, trustee, or key employee? 2

3 Did the organization delegate control over management duties customarily performed by or under the direct supervision of officers, directors, trustees, or key employees to a management company or other person? . 3

4 Did the organization make any significant changes to its governing documents since the prior Form 990 was filed? 4

5 Did the organization become aware during the year of a significant diversion of the organization’s assets? . 5

6 Did the organization have members or stockholders? 6

7a Did the organization have members, stockholders, or other persons who had the power to elect or appoint one or more members of the governing body? 7a

b Are any governance decisions of the organization reserved to (or subject to approval by) members, stockholders, or persons other than the governing body?

8 Did the organization contemporaneously document the meetings held or written actions undertaken during the year by the following:

a The governing body? .............................

b Each committee with authority to act on behalf of the governing body? ............

9 Is there any officer, director, trustee, or key employee listed in Part VII, Section A, who cannot be reached at the organization’s mailing address? If “Yes,” provide the names and addresses on Schedule O

Section B. Policies (This Section B requests information about policies not required by the Internal Revenue Code.)

10a Did the organization have local chapters, branches, or affiliates?

b If “Yes,” did the organization have written policies and procedures governing the activities of such chapters, affiliates, and branches to ensure their operations are consistent with the organization’s exempt purposes? 10b

11a Has the organization provided a complete copy of this Form 990 to all members of its governing body before filing the form? 11a

b Describe on Schedule O the process, if any, used by the organization to review this Form 990.

12a Did the organization have a written conflict of interest policy? If “No,” go to line 13 12a

b Were officers, directors, or trustees, and key employees required to disclose annually interests that could give rise to conflicts? 12b

c Did the organization regularly and consistently monitor and enforce compliance with the policy? If “Yes,” describe on Schedule O how this was done 12c

13 Did the organization have a written whistleblower policy? 13

14 Did the organization have a written document retention and destruction policy? 14

15 Did the process for determining compensation of the following persons include a review and approval by independent persons, comparability data, and contemporaneous substantiation of the deliberation and decision?

a The organization’s CEO, Executive Director, or top management official 15a

b Other officers or key employees of the organization ................... 15b If “Yes” to line 15a or 15b, describe the process on Schedule O. See instructions.

16a Did the organization invest in, contribute assets to, or participate in a joint venture or similar arrangement with a taxable entity during the year? ........................ 16a

b If “Yes,” did the organization follow a written policy or procedure requiring the organization to evaluate its participation in joint venture arrangements under applicable federal tax law, and take steps to safeguard the organization’s exempt status with respect to such arrangements? 16b

Section C. Disclosure

17 List the states with which a copy of this Form 990 is required to be filed

18 Section 6104 requires an organization to make its Forms 1023 (1024 or 1024-A, if applicable), 990, and 990-T (section 501(c) (3)s only) available for public inspection. Indicate how you made these available. Check all that apply.

Own website Another’s website Upon request Other (explain on Schedule O)

19 Describe on Schedule O whether (and if so, how) the organization made its governing documents, conflict of interest policy, and financial statements available to the public during the tax year.

20 State the name, address, and telephone number of the person who possesses the organization’s books and records.

Part VII Compensation of Officers, Directors, Trustees, Key Employees, Highest Compensated Employees, and Independent Contractors

Check if Schedule O contains a response or note to any line in this Part VII .............

Section A. Officers, Directors, Trustees, Key Employees, and Highest Compensated Employees 1a Complete this table for all persons required to be listed. Report compensation for the calendar year ending with or within the organization’s tax year.

• List all of the organization’s current officers, directors, trustees (whether individuals or organizations), regardless of amount of compensation. Enter -0- in columns (D), (E), and (F) if no compensation was paid.

• List all of the organization’s current key employees, if any. See the instructions for definition of “key employee.”

• List the organization’s five current highest compensated employees (other than an officer, director, trustee, or key employee) who received reportable compensation (box 5 of Form W-2, box 6 of Form 1099-MISC, and/or box 1 of Form 1099-NEC) of more than $100,000 from the organization and any related organizations.

• List all of the organization’s former officers, key employees, and highest compensated employees who received more than $100,000 of reportable compensation from the organization and any related organizations.

• List all of the organization’s former directors or trustees that received, in the capacity as a former director or trustee of the organization, more than $10,000 of reportable compensation from the organization and any related organizations. See the instructions for the order in which to list the persons above.

Check this box if neither the organization nor any related organization compensated any current officer, director, or trustee.

and title (B) Average hours per week (list any hours for related organizations below dotted line)

Position (do not check more than one box, unless person is both an officer and a director/trustee)

Reportable compensation from the organization (W-2/ 1099-MISC/ 1099-NEC) (E)

Reportable compensation from related organizations (W-2/ 1099-MISC/ 1099-NEC) (F)

Estimated amount of other compensation from the organization and related organizations

Name and title (B) Average hours per week (list any hours for related organizations below dotted line) (C) Position (do not check more than one box, unless person is both an officer and a director/trustee) Individual trustee or director Institutional trustee Officer Key employee Highest compensated employee Former (D)

Reportable compensation from the organization (W-2/ 1099-MISC/ 1099-NEC) (E)

Reportable compensation from related organizations (W-2/ 1099-MISC/ 1099-NEC) (F)

Estimated amount of other compensation from the organization and related organizations

1bSubtotal

cTotal from continuation sheets to Part VII, Section A dTotal (add lines 1b and 1c)

2 Total number of individuals (including but not limited to those listed above) who received more than $100,000 of reportable compensation from the organization

3 Did the organization list any former officer, director, trustee, key employee, or highest compensated employee on line 1a? If “Yes,” complete Schedule J for such individual 3

4 For any individual listed on line 1a, is the sum of reportable compensation and other compensation from the organization and related organizations greater than $150,000? If “Yes,” complete Schedule J for such individual 4

5 Did any person listed on line 1a receive or accrue compensation from any unrelated organization or individual for services rendered to the organization? If “Yes,” complete Schedule J for such person ...... 5

Section B. Independent Contractors

1 Complete this table for your five highest compensated independent contractors that received more than $100,000 of compensation from the organization. Report compensation for the calendar year ending with or within the organization’s tax year

2 Total number of independent contractors (including but not limited to those listed above) who received more than $100,000 of compensation from the organization

Check if Schedule O contains a response or note to any line in this Part VIII.............

d Related organizations

e Government grants (contributions) 1e

f All other contributions, gifts, grants, and similar amounts not included above 1f

g Noncash contributions included in lines 1a–1f 1g $

h Total. Add lines 1a–1f

f All other program service revenue ..

g Total. Add lines 2a–2f

3 Investment income (including dividends, interest, and other similar amounts)

4 Income from investment of tax-exempt bond proceeds

5 Royalties

6a Gross rents .. 6a (i) Real (ii) Personal

b Less: rental expenses 6b

c Rental income or (loss) 6c

d Net rental income or (loss) .........

7a Gross amount from sales of assets other than inventory 7a (i) Securities (ii) Other

b Less: cost or other basis and sales expenses . 7b

c Gain or (loss) .. 7c

d Net gain or (loss)

8a Gross income from fundraising events (not including $ of contributions reported on line 1c). See Part IV, line 18 ... 8a

b Less: direct expenses .... 8b

c Net income or (loss) from fundraising events ... 9a Gross income from gaming activities. See Part IV, line 19 . 9a

b Less: direct expenses 9b

c Net income or (loss) from gaming activities

10a Gross sales of inventory, less returns and allowances ... 10a

b Less: cost of goods sold... 10b

c Net income or (loss) from sales of inventory

d All other revenue .......

e Total. Add lines 11a–11d

12Total revenue. See instructions

25,000. 26,151. 517,452. 1,151. 489,681. 491,301.

3,300.

4,920. 1,620. 1,620. 0.

Part IX Statement of Functional Expenses

Section 501(c)(3) and 501(c)(4) organizations must complete all columns. All other organizations must complete column (A). Check if Schedule O contains a response or note to any line in this Part IX

Do not include amounts reported on lines 6b, 7b, 8b, 9b, and 10b of Part VIII.

1 Grants and other assistance to domestic organizations and domestic governments. See Part IV, line 21 .

2 Grants and other assistance to domestic individuals. See Part IV, line 22 .....

3 Grants and other assistance to foreign organizations, foreign governments, and foreign individuals. See Part IV, lines 15 and 16

4 Benefits paid to or for members

5 Compensation of current officers, directors, trustees, and key employees .....

6 Compensation not included above to disqualified persons (as defined under section 4958(f)(1)) and persons described in section 4958(c)(3)(B) ..

7 Other salaries and wages ......

8 Pension plan accruals and contributions (include section 401(k) and 403(b) employer contributions)

9 Other employee benefits

10 Payroll taxes

11 Fees for services (nonemployees):

a Management ..........

b Legal

c Accounting

d Lobbying

e Professional fundraising services. See Part IV, line 17

f Investment management fees

g Other. (If line 11g amount exceeds 10% of line 25, column (A), amount, list line 11g expenses on Schedule O.) .

12 Advertising and promotion

13 Office expenses

14 Information technology 15 Royalties

16 Occupancy

18 Payments of travel or entertainment expenses for any federal, state, or local public officials

19 Conferences, conventions, and meetings .

20 Interest

21 Payments to affiliates

22 Depreciation, depletion, and amortization .

23 Insurance ............

24 Other expenses. Itemize expenses not covered above. (List miscellaneous expenses on line 24e. If line 24e amount exceeds 10% of line 25, column (A), amount, list line 24e expenses on Schedule O.)

a b c d

108,288. 108,288.

1,917. 1,209. 0. 2,572. 2,572. 0. 0.

Licenses & Permits 262. 262. 0.

e All other expenses

25 Total functional expenses. Add lines 1 through 24e

26 Joint costs. Complete this line only if the organization reported in column (B) joint costs from a combined educational campaign and fundraising solicitation. Check here if following SOP 98-2 (ASC 958-720) ...

3,126. 571,256.

990 (2024) 172,722. 4,670. 548,804. 164,078. 562,118. 726,196. 164,078. 562,118. 726,196. 79,468. 637,392. 36,549. 1,620. 34,929. 556,304. 129,078. 129,078. 637,392. 508,314. 508,314.

Part XII Financial Statements and Reporting

1 Accounting method used to prepare the Form 990: Cash Accrual Other If the organization changed its method of accounting from a prior year or checked “Other,” explain on Schedule O.

2a Were the organization’s financial statements compiled or reviewed by an independent accountant?

If “Yes,” check a box below to indicate whether the financial statements for the year were compiled or reviewed on a separate basis, consolidated basis, or both.

Separate basis Consolidated basis Both consolidated and separate basis

b Were the organization’s financial statements audited by an independent accountant?

If “Yes,” check a box below to indicate whether the financial statements for the year were audited on a separate basis, consolidated basis, or both.

Separate basis Consolidated basis Both consolidated and separate basis

c If “Yes” to line 2a or 2b, does the organization have a committee that assumes responsibility for oversight of the audit, review, or compilation of its financial statements and selection of an independent accountant? . 2c If the organization changed either its oversight process or selection process during the tax year, explain on Schedule O.

3a As a result of a federal award, was the organization required to undergo an audit or audits as set forth in the Uniform Guidance, 2 C.F.R. Part 200, Subpart F? ................... 3a

b If “Yes,” did the organization undergo the required audit or audits? If the organization did not undergo the required audit or audits, explain why on Schedule O and describe any steps taken to undergo such audits

3b Form 990 (2024) 571,256. -53,804. 562,118. 508,314. 517,452.

SCHEDULE A (Form 990)

Department of the Treasury Internal Revenue Service

Name of the organization

Public Charity Status and Public Support

Complete if the organization is a section 501(c)(3) organization or a section 4947(a)(1) nonexempt charitable trust. Attach to Form 990 or Form 990-EZ. Go to www.irs.gov/Form990 for instructions and the latest information.

Part I Reason for Public Charity Status. (All organizations must complete this part.) See instructions. The organization is not a private foundation because it is: (For lines 1 through 12, check only one box.)

1 A church, convention of churches, or association of churches described in section 170(b)(1)(A)(i)

2 A school described in section 170(b)(1)(A)(ii) (Attach Schedule E (Form 990).)

3 A hospital or a cooperative hospital service organization described in section 170(b)(1)(A)(iii).

4 A medical research organization operated in conjunction with a hospital described in section 170(b)(1)(A)(iii). Enter the hospital’s name, city, and state:

5 An organization operated for the benefit of a college or university owned or operated by a governmental unit described in section 170(b)(1)(A)(iv). (Complete Part II.)

6 A federal, state, or local government or governmental unit described in section 170(b)(1)(A)(v)

7 An organization that normally receives a substantial part of its support from a governmental unit or from the general public described in section 170(b)(1)(A)(vi) (Complete Part II.)

8 A community trust described in section 170(b)(1)(A)(vi). (Complete Part II.)

9 An agricultural research organization described in section 170(b)(1)(A)(ix) operated in conjunction with a land-grant college or university or a non-land-grant college of agriculture (see instructions). Enter the name, city, and state of the college or university:

10 An organization that normally receives (1) more than 331/3% of its support from contributions, membership fees, and gross receipts from activities related to its exempt functions, subject to certain exceptions; and (2) no more than 331/3% of its support from gross investment income and unrelated business taxable income (less section 511 tax) from businesses acquired by the organization after June 30, 1975. See section 509(a)(2). (Complete Part III.)

11 An organization organized and operated exclusively to test for public safety. See section 509(a)(4)

12 An organization organized and operated exclusively for the benefit of, to perform the functions of, or to carry out the purposes of one or more publicly supported organizations described in section 509(a)(1) or section 509(a)(2). See section 509(a)(3). Check the box on lines 12a through 12d that describes the type of supporting organization and complete lines 12e, 12f, and 12g.

a Type I. A supporting organization operated, supervised, or controlled by its supported organization(s), typically by giving the supported organization(s) the power to regularly appoint or elect a majority of the directors or trustees of the supporting organization. You must complete Part IV, Sections A and B.

b Type II. A supporting organization supervised or controlled in connection with its supported organization(s), by having control or management of the supporting organization vested in the same persons that control or manage the supported organization(s). You must complete Part IV, Sections A and C.

c Type III functionally integrated. A supporting organization operated in connection with, and functionally integrated with, its supported organization(s) (see instructions). You must complete Part IV, Sections A, D, and E.

d Type III non-functionally integrated. A supporting organization operated in connection with its supported organization(s) that is not functionally integrated. The organization generally must satisfy a distribution requirement and an attentiveness requirement (see instructions). You must complete Part IV, Sections A and D, and Part V.

e Check this box if the organization received a written determination from the IRS that it is a Type I, Type II, Type III functionally integrated, or Type III non-functionally integrated supporting organization.

f Enter the number of supported organizations

g Provide the following information about the supported organization(s).

(i) Name of supported organization (ii) EIN (iii) Type of organization (described on lines 1–10 above (see instructions)) (iv) Is the organization listed in your governing document? (v) Amount of monetary support (see instructions) (vi) Amount of other support (see instructions)

Yes No

Part II Support Schedule for Organizations Described in Sections 170(b)(1)(A)(iv) and 170(b)(1)(A)(vi)

(Complete only if you checked the box on line 5, 7, or 8 of Part I or if the organization failed to qualify under Part III. If the organization fails to qualify under the tests listed below, please complete Part III.)

Section A. Public Support

Calendar year (or fiscal year beginning in) (a)

1 Gifts, grants, contributions, and membership fees received. (Do not include any “unusual grants.”)

2 Tax revenues levied for the organization’s benefit and either paid to or expended on its behalf ...

3 The value of services or facilities furnished by a governmental unit to the organization without charge ....

4Total. Add lines 1 through 3 ...

5 The portion of total contributions by each person (other than a governmental unit or publicly supported organization) included on line 1 that exceeds 2% of the amount shown on line 11, column (f)

6 Public support. Subtract line 5 from line 4

Section B. Total Support Calendar year (or fiscal year beginning in) (a)

7 Amounts from line 4 ......

8 Gross income from interest, dividends, payments received on securities loans, rents, royalties, and income from similar sources

9 Net income from unrelated business activities, whether or not the business is regularly carried on

10 Other income. Do not include gain or loss from the sale of capital assets (Explain in Part VI.)

11Total support. Add lines 7 through 10

12 Gross receipts from related activities, etc. (see instructions) 12

13 First 5 years. If the Form 990 is for the organization’s first, second, third, fourth, or fifth tax year as a section 501(c)(3) organization, check this box and stop here ..........................

Section C. Computation of Public Support Percentage

14 Public support percentage for 2024 (line 6, column (f), divided by line 11, column (f))

15 Public support percentage from 2023 Schedule A, Part II, line 14

16a 331/3% support test—2024. If the organization did not check the box on line 13, and line 14 is 331/3% or more, check this box and stop here The organization qualifies as a publicly supported organization b 331/3% support test—2023. If the organization did not check a box on line 13 or 16a, and line 15 is 331/3% or more, check this box and stop here. The organization qualifies as a publicly supported organization ............

17a 10%-facts-and-circumstances test—2024. If the organization did not check a box on line 13, 16a, or 16b, and line 14 is 10% or more, and if the organization meets the facts-and-circumstances test, check this box and stop here Explain in Part VI how the organization meets the facts-and-circumstances test. The organization qualifies as a publicly supported organization

b 10%-facts-and-circumstances test—2023. If the organization did not check a box on line 13, 16a, 16b, or 17a, and line 15 is 10% or more, and if the organization meets the facts-and-circumstances test, check this box and stop here. Explain in Part VI how the organization meets the facts-and-circumstances test. The organization qualifies as a publicly supported organization

18 Private foundation. If the organization did not check a box on line 13, 16a, 16b, 17a, or 17b, check this box and see instructions

Schedule A (Form 990) 2024 99.97 2,257,575. 2,257,575. 2,257,575. 2,257,575. 578. 2,258,153. 99.97 202,272.477,107.536,789.523,955.517,452. 202,272.477,107.536,789.523,955.517,452. 202,272.477,107.536,789.523,955.517,452. 578.

Part III Support Schedule for Organizations Described in Section 509(a)(2)

(Complete only if you checked the box on line 10 of Part I or if the organization failed to qualify under Part II. If the organization fails to qualify under the tests listed below, please complete Part II.)

Section A. Public Support

Calendar year (or fiscal year beginning in) (a)

1 Gifts, grants, contributions, and membership fees received. (Do not include any “unusual grants.”)

2 Gross receipts from admissions, merchandise sold or services performed, or facilities furnished in any activity that is related to the organization’s tax-exempt purpose ...

3 Gross receipts from activities that are not an unrelated trade or business under section 513

4 Tax revenues levied for the organization’s benefit and either paid to or expended on its behalf ...

5 The value of services or facilities furnished by a governmental unit to the organization without charge

6Total. Add lines 1 through 5 ....

7a Amounts included on lines 1, 2, and 3 received from disqualified persons .

b Amounts included on lines 2 and 3 received from other than disqualified persons that exceed the greater of $5,000 or 1% of the amount on line 13 for the year

c Add lines 7a and 7b

8 Public support. (Subtract line 7c from line 6.)

Section B. Total Support

9 Amounts from line 6 ......

10a Gross income from interest, dividends, payments received on securities loans, rents, royalties, and income from similar sources

b Unrelated business taxable income (less section 511 taxes) from businesses acquired after June 30, 1975 ....

c Add lines 10a and 10b .....

11 Net income from unrelated business activities not included on line 10b, whether or not the business is regularly carried on

12 Other income. Do not include gain or loss from the sale of capital assets (Explain in Part VI.)

13 Total support. (Add lines 9, 10c, 11, and 12.) ..........

14 First 5 years. If the Form 990 is for the organization’s first, second, third, fourth, or fifth tax year as a section 501(c)(3) organization, check this box and stop here

Section C. Computation of Public Support Percentage

15 Public support percentage for 2024 (line

18 Investment income percentage from 2023 Schedule A, Part III, line 17

19a 331/3% support tests—2024. If the organization did not check the box on line 14, and line 15 is more than 331/3%, and line 17 is not more than 331/3%, check this box and stop here. The organization qualifies as a publicly supported organization .. b 331/3% support tests—2023. If the organization did not check a box on line 14 or line 19a, and line 16 is more than 331/3%, and line 18 is not more than 331/3%, check this box and stop here. The organization qualifies as a publicly supported organization .

20Private foundation. If the organization did not check a box on line 14, 19a, or 19b, check this box and see instructions .

Part IV Supporting Organizations

(Complete only if you checked a box on line 12 of Part I. If you checked box 12a, Part I, complete Sections A and B. If you checked box 12b, Part I, complete Sections A and C. If you checked box 12c, Part I, complete Sections A, D, and E. If you checked box 12d, Part I, complete Sections A and D, and complete Part V.) Section A. All Supporting Organizations

1 Are all of the organization’s supported organizations listed by name in the organization’s governing documents? If “No,” describe in Part VI how the supported organizations are designated. If designated by class or purpose, describe the designation. If historic and continuing relationship, explain. 1

2 Did the organization have any supported organization that does not have an IRS determination of status under section 509(a)(1) or (2)? If “Yes,” explain in Part VI how the organization determined that the supported organization was described in section 509(a)(1) or (2). 2

3a Did the organization have a supported organization described in section 501(c)(4), (5), or (6)? If “Yes,” answer lines 3b and 3c below. 3a

b Did the organization confirm that each supported organization qualified under section 501(c)(4), (5), or (6) and satisfied the public support tests under section 509(a)(2)? If “Yes,” describe in Part VI when and how the organization made the determination. 3b

c Did the organization ensure that all support to such organizations was used exclusively for section 170(c)(2)(B) purposes? If “Yes,” explain in Part VI what controls the organization put in place to ensure such use. 3c

4a Was any supported organization not organized in the United States (“foreign supported organization”)? If “Yes,” and if you checked box 12a or 12b in Part I, answer lines 4b and 4c below. 4a

b Did the organization have ultimate control and discretion in deciding whether to make grants to the foreign supported organization? If “Yes,” describe in Part VI how the organization had such control and discretion despite being controlled or supervised by or in connection with its supported organizations.

c Did the organization support any foreign supported organization that does not have an IRS determination under sections 501(c)(3) and 509(a)(1) or (2)? If “Yes,” explain in Part VI what controls the organization used to ensure that all support to the foreign supported organization was used exclusively for section 170(c)(2)(B) purposes.

5a Did the organization add, substitute, or remove any supported organizations during the tax year? If “Yes,” answer lines 5b and 5c below (if applicable). Also, provide detail in Part VI, including (i) the names and EIN numbers of the supported organizations added, substituted, or removed; (ii) the reasons for each such action; (iii) the authority under the organization’s organizing document authorizing such action; and (iv) how the action was accomplished (such as by amendment to the organizing document).

4b

4c

5a

b Type I or Type II only. Was any added or substituted supported organization part of a class already designated in the organization’s organizing document? 5b

c Substitutions only. Was the substitution the result of an event beyond the organization’s control? 5c

6 Did the organization provide support (whether in the form of grants or the provision of services or facilities) to anyone other than (i) its supported organizations, (ii) individuals that are part of the charitable class benefited by one or more of its supported organizations, or (iii) other supporting organizations that also support or benefit one or more of the filing organization’s supported organizations? If “Yes,” provide detail in Part VI 6

COPY

7 Did the organization provide a grant, loan, compensation, or other similar payment to a substantial contributor (as defined in section 4958(c)(3)(C)), a family member of a substantial contributor, or a 35% controlled entity with regard to a substantial contributor? If “Yes,” complete Part I of Schedule L (Form 990). 7

8 Did the organization make a loan to a disqualified person (as defined in section 4958) not described on line 7? If “Yes,” complete Part I of Schedule L (Form 990). 8

9a Was the organization controlled directly or indirectly at any time during the tax year by one or more disqualified persons, as defined in section 4946 (other than foundation managers and organizations described in section 509(a)(1) or (2))? If “Yes,” provide detail in Part VI 9a

b Did one or more disqualified persons (as defined on line 9a) hold a controlling interest in any entity in which the supporting organization had an interest? If “Yes,” provide detail in Part VI 9b

c Did a disqualified person (as defined on line 9a) have an ownership interest in, or derive any personal benefit from, assets in which the supporting organization also had an interest? If “Yes,” provide detail in Part VI 9c

10a Was the organization subject to the excess business holdings rules of section 4943 because of section 4943(f) (regarding certain Type II supporting organizations, and all Type III non-functionally integrated supporting organizations)? If “Yes,” answer line 10b below. 10a

b Did the organization have any excess business holdings in the tax year? (Use Schedule C, Form 4720, to determine whether the organization had excess business holdings.) 10b

11 Has the organization accepted a gift or contribution from any of the following persons?

a A person who directly or indirectly controls, either alone or together with persons described on lines 11b and 11c below, the governing body of a supported organization?

Yes No

11a

b A family member of a person described on line 11a above? 11b

c A 35% controlled entity of a person described on line 11a or 11b above? If “Yes” to line 11a, 11b, or 11c, provide detail in Part VI 11c

Section B. Type I Supporting Organizations

1 Did the governing body, members of the governing body, officers acting in their official capacity, or membership of one or more supported organizations have the power to regularly appoint or elect at least a majority of the organization’s officers, directors, or trustees at all times during the tax year? If “No,” describe in Part VI how the supported organization(s) effectively operated, supervised, or controlled the organization’s activities. If the organization had more than one supported organization, describe how the powers to appoint and/or remove officers, directors, or trustees were allocated among the supported organizations and what conditions or restrictions, if any, applied to such powers during the tax year.

2 Did the organization operate for the benefit of any supported organization other than the supported organization(s) that operated, supervised, or controlled the supporting organization? If “Yes,” explain in Part VI how providing such benefit carried out the purposes of the supported organization(s) that operated, supervised, or controlled the supporting organization.

Section C. Type II Supporting Organizations

1

Yes No

2

1 Were a majority of the organization’s directors or trustees during the tax year also a majority of the directors or trustees of each of the organization’s supported organization(s)? If “No,” describe in Part VI how control or management of the supporting organization was vested in the same persons that controlled or managed the supported organization(s). 1

Section D. All Type III Supporting Organizations

1 Did the organization provide to each of its supported organizations, by the last day of the fifth month of the organization’s tax year, (i) a written notice describing the type and amount of support provided during the prior tax year, (ii) a copy of the Form 990 that was most recently filed as of the date of notification, and (iii) copies of the organization’s governing documents in effect on the date of notification, to the extent not previously provided? 1

2 Were any of the organization’s officers, directors, or trustees either (i) appointed or elected by the supported organization(s), or (ii) serving on the governing body of a supported organization? If “No,” explain in Part VI how the organization maintained a close and continuous working relationship with the supported organization(s). 2

3 By reason of the relationship described on line 2, above, did the organization’s supported organizations have a significant voice in the organization’s investment policies and in directing the use of the organization’s income or assets at all times during the tax year? If “Yes,” describe in Part VI the role the organization’s supported organizations played in this regard. 3

Section E. Type III Functionally Integrated Supporting Organizations

COPY

Yes No

Yes No

1 Check the box next to the method that the organization used to satisfy the Integral Part Test during the year (see instructions).

a The organization satisfied the Activities Test. Complete line 2 below.

b The organization is the parent of each of its supported organizations. Complete line 3 below.

2 Activities Test. Answer lines 2a and 2b below.

c The organization supported a governmental entity. Describe in Part VI how you supported a governmental entity (see instructions). Yes No

a Did substantially all of the organization’s activities during the tax year directly further the exempt purposes of the supported organization(s) to which the organization was responsive? If “Yes,” then in Part VI identify those supported organizations and explain how these activities directly furthered their exempt purposes, how the organization was responsive to those supported organizations, and how the organization determined that these activities constituted substantially all of its activities.

2a

b Did the activities described on line 2a, above, constitute activities that, but for the organization’s involvement, one or more of the organization’s supported organization(s) would have been engaged in? If “Yes,” explain in Part VI the reasons for the organization’s position that its supported organization(s) would have engaged in these activities but for the organization’s involvement. 2b

3 Parent of Supported Organizations. Answer lines 3a and 3b below.

a Did the organization have the power to regularly appoint or elect a majority of the officers, directors, or trustees of each of the supported organizations? If “Yes” or “No,” provide details in Part VI

b Did the organization exercise a substantial degree of direction over the policies, programs, and activities of each of its supported organizations? If “Yes,” describe in Part VI the role played by the organization in this regard.

3a

3b

1 Check here if the organization satisfied the Integral Part Test as a qualifying trust on Nov. 20, 1970 (explain in Part VI). See instructions. All other Type III non-functionally integrated supporting organizations must complete Sections A through E.

8

1 Aggregate fair market value of all non-exempt-use assets (see instructions for short tax year or assets held for part of year): a

d

e

4

5

6 Distributable Amount. Subtract line 5 from line 4, unless

(see instructions).

7 Check here if the current year is the organization’s first as a

(see instructions).

1

2

5

7 Total annual distributions. Add lines 1 through 6.

8 Distributions to attentive supported organizations to which the organization is responsive (provide details in Part VI). See instructions.

9 Distributable amount for 2024 from Section C, line 6

10 Line 8 amount divided by line 9 amount

Section E—Distribution Allocations (see instructions)

1 Distributable amount for 2024 from Section C, line 6

2 Underdistributions, if any, for years prior to 2024 (reasonable cause required—explain in Part VI). See instructions.

3 Excess distributions carryover, if any, to 2024

a From2019.....

b From2020.....

c From 2021

d From 2022

e From 2023

f Total of lines 3a through 3e

g Applied to underdistributions of prior years

h Applied to 2024 distributable amount

i Carryover from 2019 not applied (see instructions)

j Remainder. Subtract lines 3g, 3h, and 3i from line 3f.

4 Distributions for 2024 from Section D, line 7: $

a Applied to underdistributions of prior years

b Applied to 2024 distributable amount

c Remainder. Subtract lines 4a and 4b from line 4.

5 Remaining underdistributions for years prior to 2024, if any. Subtract lines 3g and 4a from line 2. For result greater than zero, explain in Part VI See instructions.

6 Remaining underdistributions for 2024. Subtract lines 3h and 4b from line 1. For result greater than zero, explain in Part VI See instructions.

7 Excess distributions carryover to 2025. Add lines 3j and 4c.

8 Breakdown of line 7:

a Excessfrom2020

b Excess from 2021...

c Excess from 2022...

d Excess from 2023 ...

e Excess from 2024 ...

Part VI Supplemental Information. Provide the explanations required by Part II, line 10; Part II, line 17a or 17b; Part III, line 12; Part IV, Section A, lines 1, 2, 3b, 3c, 4b, 4c, 5a, 6, 9a, 9b, 9c, 11a, 11b, and 11c; Part IV, Section B, lines 1 and 2; Part IV, Section C, line 1; Part IV, Section D, lines 2 and 3; Part IV, Section E, lines 1c, 2a, 2b, 3a, and 3b; Part V, line 1; Part V, Section B, line 1e; Part V, Section D, lines 5, 6, and 8; and Part V, Section E, lines 2, 5, and 6. Also complete this part for any additional information. (See instructions.)

0. 1,016. 1,620. 0. 604. 13,540. 12,936. 23,009. 21,993.

Exhibit Components

556,304. Cost

556,304.

SCHEDULE O (Form 990)

(Rev. December 2024)

Department of the Treasury Internal Revenue Service

Name of the organization

Supplemental Information to Form 990 or 990-EZ

Complete to provide information for responses to specific questions on Form 990 or 990-EZ or to provide any additional information. Attach to Form 990 or Form 990-EZ. Go to www.irs.gov/Form990 for instructions and the latest information.

Museum of Dinosaurs and Ancient Cultures

Pt VI, Line 11b: The board reviews the return before it is filed. Pt IX, Line 11g:

Description: Leased Labor

Total: $66,966

Program services: $66,966

Open to Public Inspection

Employer identification number

27-3564062

Museum of Dinosaurs and Ancient Cultures 27-3564062

Total to Form 990, Part IX, line 11g

(Rev. March 2024)

Department of the Treasury Internal Revenue Service

Request

for Taxpayer Identification Number and Certification

Go to www.irs.gov/FormW9 for instructions and the latest information. Before you begin. For guidance related to the purpose of Form W-9, see Purpose of Form, below.

Give form to the requester. Do not send to the IRS.

1 Name of entity/individual. An entry is required. (For a sole proprietor or disregarded entity, enter the owner's name on line 1, and enter the business/disregarded entity's name on line 2.)

MUSEUM OF DINOSAURS AND ANCIENT CULTURES, INC

2 Business name/disregarded entity name, if different from above.

C') (I) 3a Check the appropriate box for federal tax classification of the entity/individual whose name is entered on line 1. Check 4 Exemptions (codes apply only to g, only one of the following seven boxes. certain entities, not individuals; 0. 0 C corporation 0 S corporation 0 Partnership 0 Trust/estate see instructions on page 3): C Individual/sole proprietor

0 • II) LLC. Enter the tax classification (C = C corporation, S = S corporation, P = Partnership) Exempt payee code (if any) Q) C:

Note: Check the "LLC " box above and, in the entry space, enter the appropriate code (C, S, or P) for the tax ___

s 2 classificat ion of lhe LLC, unless it is a disregarded entity. A disregarded entity should instead check the appropriate Exemption from Foreign Account Tax box for the tax classification of Its owner. Compliance Act (FATCA) reporting 1: 1,, Other (see instructions) code (if any)

X Non-profit corporation

.5 c.. I.) !t: 3b If on line 3a you checked "Partnership" or "Trust/estate," or checked "LLC" and entered "P" as its tax classification, (Applies to accounts maintained and you are providing this form to a partnership, trust , or estate in which you have an ownership interest, check outside the United States.) this box if you have any foreign partners, owners, or beneficiaries. See instructions

5 Address (number, street, and apt. or suite no.). See instructions.

6 City, state, and ZIP code

250 W COCOA BEACH CSWY COCOA BEACH, FL 32931

7 List account number(s) here (optional)

•• Taxpayer Identification Number (TIN)

Requester's name and address (optional)

Enter your TIN in the appropriate box. The TIN provided must match the name given on line 1 to avoid I Social security number I

backup withholding. For individuals, this is generally your social security number (SSN). However, for a resident alien, sole proprietor, or disregarded entity, see the instructions for Part I, later. For other entities, it is your employer identification number (EIN). If you do not have a number, see How to get a TIN , later or I Employer identification number

Note: If the account is in more than one name, see the instructions for line 1. See also What Name and Number To Give the Requester for guidelines on whose number to enter

Certification

Under penalties of perjury, I certify that:

1. The number shown on this form is my correct taxpayer identification number (or I am waiting for a number to be issued to me); and

2. I am not subje ct to backup withholding because (a) I am exempt from backup withholding, or (b) I have not been notified by the Internal Revenue Service (IRS) that I am sub)ect to backup withholding as a result of a failu re to report all interest or dividends, or (c) the IRS has notified me that I am no longer subject to backup withholding; and

3. I am a U S. citizen or other U.S. person (defined below); and

4. The FATCA code(s) entered on this form (if any) indicating that I am exempt from FATCA reporting is correct.

Certification instructions. You must cross out item 2 above if you have been notified by the IRS that you are currently subject to backup withholding because you have failed to report all interest and dividends on your tax return. For real estate transactions , item 2 does not apply. For mortgage interest paid, acquisition or abandonment of secured property, cancellation of debt, contributions to an individual retirement arrangement (IRA), and, generally, payments other than interest and dividends, sign the certification, but you must provide your correct TIN. See the instructions for Part II, later

ISignature of Here . U.S. person

General Instructions

Section references are to the Internal Revenue Code unless otherwise noted.

Future developments. For the latest informati on about developments related to Form W-9 and its instructions, such as legislation enacted after they were published, go to www.lrs.gov/FormW9.

What's New

Line 3a has been modified to clarify how a disregarded entity completes this line. An LLC that is a disregarded entity should check the appropriate box for the tax classificat io n of its owner Otherw ise, it should check the "LLC" box and enter its appropriate tax classification.

Cat. No. 10231X

5/30/2024

Date

New line 3b has been add ed to th is form. A flow-through entity is required to complete this li ne to indicate that it has direct or indirect foreign partners, owners, or beneficiaries when it provides the Form W-9 to another flow -through ent ity !n which it has an ownership interest. Th is change is intended to provide a flow-through entity with information regarding the status of its indi rect foreign partners, owners , or beneficiaries, so that it can satisfy any applicable reportlhg requirements. For example, a partnership that has any indirect foreign partners may be required to complete Schedules K-2 and K-3. See the Partnership Instructions for Schedules K-2 and K-3 (Form 1065).

Purpose of Form

An individual or entity (Form W-9 requester) who is required to file an info rmation return with the IRS is giving you this form because they Form W-9 (Rev. 3-2024)

Valiant Air Command

Return to Table of Contents

Tourism Development Office

FY 2025-2026 Marketing Support Program

Application Packet checklist

Applicant Organization Name: Valiant Air Command

Applicant Event Name: Year-round programming

Yes No

1. Completed application X

2. Copy of IRS Articles of X Incorporation- (if applicable)

3. Copy of IRS Determination letter X - (if applicable)

4. Copyof SunBiz.org (if applicable) X

5. Copy of 990 (if applicable) X

6. Copyof completedW-9 (March X 2024)

7. Income/Expense worksheet X (required for all applicants)

8. Copy of theApplicant checklist X

This applicationmeets theminimumrequirementof 5,001 out-of-countyattendees (Cultural)or 250 room nights (Sports).

NO

All documents have beensubmitted, reviewedand/or addressedin thecomments.

FY 2025-2026 Marketing Support Program application

Response ID:58 Data

2.(untitled)

1. I have read and understand the policies/procedures within the FY 2025-2026 Marketing Support Program Criteria.

Signature of: J Ron Davis

3.(untitled)

2. Which best describes your event/year-round programming? Cultural 4.(untitled)

3. ORGANIZATION INFORMATION

Name of organization hosting event/year-round programming Valiant Air Command, Inc.

Organization

Primary contact name Ron Davis

Primary contact phone number 321 536 4337

Primary contact email ron davis@valiantaicommand com

Secondary contact name Tracy Bohrmann

Secondary contact phone number 321 268 1941, ext 4103

Secondary contact email tracy.bohrmann@valiantaircommand.com

Organization website address www valiantaircommand com

5 (untitled)

4. Which best describes your organization? 501(C)(3)

6. (untitled)

5. What is your Federal Employee ID number? 59-1773787

7 (untitled)

6. Are you completing this application for an event or year-round programming? Year-round programming - theater, symphony, concerts, museum, etc

8. (untitled)

1. EVENT INFORMATION - #1

Name of event

Event website address (if different from organization website)

Event location

9 (untitled)

What is the first date of your event?

What is the first date of your event?

18 (untitled)

In total, how many days will your event be held?

19. (untitled)

What types of marketing do you plan to do for this event?

20. (untitled)

8. What types of marketing do you plan to do for your year-round programming?

Billboards

Digital advertising (banner ads, etc.)

Social hashtags

Social media (Facebook, Instagram, YouTube, etc )

Other - Please be specific : International aviation pubs

21 (untitled)

9. What are your social media handles?

Facebook : /Valiant Air Command Inc

Instagram : vac inc

YouTube : @valiantaircommand inc

22. (untitled)

10. What hashtags do you currently use?

#valiantaircommand

23 (untitled)

11. Upload a copy of your organization's IRS Determination letter. IRS acknowledge 1977 pdf

24. (untitled)

12. Upload a copy of your organization's 990 form. Warbird museum IRS 990 pdf

25.(untitled)

Upload a copy of your organization's Articles of Incorporation.

26.(untitled)

13. If you are a Florida organization, please upload a copy of your SunBiz.com account associated with your organization.

Detail_by_Entity_Name_Warbird_Museum.pdf

27.(untitled)

14. Upload your completed W-9 form.

New_W_9_2025.pdf

28.(untitled)

15. Upload your completed Event Income/Expense report. Income&expense_VAC_for_TDC_2025.pdf

29.(untitled)

16. Upload your completed Checklist. VAC_Checklist_complete_06052025.pdf

30.(untitled)

17.

I attest that all information in this questionnaire is true and correct. I further attest that will comply with the requirements set forth, if awarded support.

Department of State / Division of Corporations / Search Records / Search by Entity Name /

Detail by Entity Name

Florida Not For Profit Corporation VALIANT AIR COMMAND, INC.

Document Number

FEI/EIN Number

Date Filed State Status

Filing Information 740489 59-1773787 10/21/1977 FL ACTIVE

Principal Address

6600 TICO RD

TITUSVILLE, FL 32780

Changed: 06/25/1986

Mailing Address

6600 TICO RD

TITUSVILLE, FL 32780

Changed: 06/25/1986

Registered Agent Name & Address

BROSS TRACHTMAN HENDERSON & CHILDRESS PA

1990 WEST NEW HAVEN AVE

SUITE 201

MELBOURNE, FL 32904

Name Changed: 03/25/1993

Address Changed: 03/25/1993

Officer/Director Detail

Name & Address

Title Finance Officer

Schoenewolf-Bohrmann, Tracy 6600 Tico Road

Titusville, FL 32780

Title Executive Officer

Juhl, Marvin 6600 TICO RD

TITUSVILLE, FL 32780

Title Commander

Boswell, Irving Ward

6600 TICO RD

TITUSVILLE, FL 32780

Title Operations Officer

Varney, Robert

6600 Tico Rd

Titusville, FL 32780

Annual Reports

Report YearFiled Date

202403/07/2024

202408/15/2024

202502/18/2025

Document Images

02/18/2025 -- ANNUAL REPORT

12/19/2024 -- AMENDED ANNUAL REPORT

12/17/2024 -- AMENDED ANNUAL REPORT

08/17/2024 -- AMENDED ANNUAL REPORT

08/15/2024 -- AMENDED ANNUAL REPORT

03/07/2024 -- ANNUAL REPORT

01/24/2023 -- ANNUAL REPORT

03/04/2022 -- ANNUAL REPORT

03/13/2021 -- ANNUAL REPORT

View image in PDF format

View image in PDF format

View image in PDF format

View image in PDF format

View image in PDF format

View image in PDF format

View image in PDF format

View image in PDF format

View image in PDF format

03/23/2020 -- ANNUAL REPORT

03/18/2019 -- ANNUAL REPORT

01/04/2018 -- ANNUAL REPORT

04/21/2017 -- ANNUAL REPORT

10/11/2016 -- AMENDED ANNUAL REPORT

09/09/2016 -- Off/Dir Resignation

09/08/2016 -- AMENDED ANNUAL REPORT

03/29/2016 -- ANNUAL REPORT

04/15/2015 -- ANNUAL REPORT

03/25/2014 -- ANNUAL REPORT

05/20/2013 -- ANNUAL REPORT

02/02/2012 -- ANNUAL REPORT

04/26/2011 -- ANNUAL REPORT

05/04/2010 -- ANNUAL REPORT

04/23/2009 -- ANNUAL REPORT

05/01/2008 -- ANNUAL REPORT

02/12/2007 -- ANNUAL REPORT

01/19/2006 -- ANNUAL REPORT

04/28/2005 -- ANNUAL REPORT

07/30/2004 -- ANNUAL REPORT

01/21/2003 -- ANNUAL REPORT

09/22/2002 -- ANNUAL REPORT

05/03/2001 -- ANNUAL REPORT

05/15/2000 -- ANNUAL REPORT

01/28/1999 -- ANNUAL REPORT

05/06/1998 -- ANNUAL REPORT

View image in PDF format

View image in PDF format

View image in PDF format

View image in PDF format

View image in PDF format

View image in PDF format

View image in PDF format

View image in PDF format

View image in PDF format

View image in PDF format

View image in PDF format

View image in PDF format

View image in PDF format

View image in PDF format

View image in PDF format

View image in PDF format

View image in PDF format

View image in PDF format

View image in PDF format

View image in PDF format

View image in PDF format

View image in PDF format

View image in PDF format

View image in PDF format

View image in PDF format

View image in PDF format

05/07/1997 -- ANNUAL REPORT

04/29/1996 -- ANNUAL REPORT

04/13/1995 -- ANNUAL REPORT

View image in PDF format

View image in PDF format

View image in PDF format

Florida Department of State, Division of Corporations

Titusville Playhouse

Return to Table of Contents

Tourism Development Office

FY 2025-2026 Marketing Support Program

Application Packet checklist

Applicant Organization Name: Titusville Playhouse

Applicant Event Name: Year-round programming

Yes No

1. Completed application X

2. Copyof IRS Articlesof X Incorporation- (if applicable)

3. Copyof IRS Determination letter X - (if applicable)

4. Copyof SunBiz.org {if applicable) X

5. Copyof 990 (if applicable) X

6. Copyof completed W-9 (March X 2024)

7. Income/Expenseworksheet X (required for all applicants)

8. Copyof theApplicantchecklist X

This application meets the minimumrequirementof 5,001 out-of-countyattendees (Cultural) or250 roomnights (Sports).

NO

All documents have been submitted, reviewed and/or addressed in thecomments.

FY 2025-2026 Marketing Support Program application

Response ID:24 Data

2.(untitled)

1. I have read and understand the policies/procedures within the FY 2025-2026 Marketing Support Program Criteria.

Signature of: Marcia Gaedcke

3.(untitled)

2. Which best describes your event/year-round programming? Cultural 4.(untitled)

3. ORGANIZATION INFORMATION

Name of organization hosting event/year-round programming Titusville Playhouse

Primary contact name Marcia Gaedcke

Primary contact phone number 3212681125 x104

Primary contact email marcia@titusvilleplayhouse com

Secondary contact name Steven Heron

Secondary contact phone number 3212681125 x101

Secondary contact email steven@titusvilleplayhouse.com

Organization website address titusvilleplayhouse com

5 (untitled)

4. Which best describes your organization? 501(C)(3)

6. (untitled)

5. What is your Federal Employee ID number? 59-6177447

7 (untitled)

6. Are you completing this application for an event or year-round programming? Year-round programming - theater, symphony, concerts, museum, etc

8. (untitled) 1. EVENT INFORMATION - #1

Name of event

Event website address (if different from organization website) Event location 9 (untitled)

What is the first date of your event?

What is the first date of your event?

18 (untitled)

In total, how many days will your event be held?

19. (untitled)

What types of marketing do you plan to do for this event?

20. (untitled)

8. What types of marketing do you plan to do for your year-round programming?

Billboards

Direct mail

Social media (Facebook, Instagram, YouTube, etc )

Social hashtags

21. (untitled)

9. What are your social media handles?

Facebook : titusvilleplayhouse301

Instagram : titusville playhouse

YouTube : titusvilleplayhouse5606

22 (untitled)

10. What hashtags do you currently use?

#playhouse61

23. (untitled)

11. Upload a copy of your organization's IRS Determination letter. IRSDeterminationLetter pdf

24 (untitled)

12. Upload a copy of your organization's 990 form. TITUSPLAY US 2023 ArchiveTaxReturn pdf

25. (untitled)

26 (untitled)

13. If you are a Florida organization, please upload a copy of your SunBiz.com account associated with your organization.

SunBiz2025 pdf 27. (untitled)

14. Upload your completed W-9 form. TPI W9 2024 pdf 28 (untitled)

15 Upload your completed Event Income/Expense report. Event Income Expense Report template FY25-26 pdf

29. (untitled)

16. Upload your completed Checklist. 25-26Checklist pdf

I attest that all information in this questionnaire is true and correct. I further attest that will comply with the requirements set forth, if awarded support.

Signature of:

31. Thank You!

Marcia Gaedcke

Entity Name: TITUSVILLE PLAYHOUSE, INC.

Current Principal Place of Business:

301 JULIA STREET

TITUSVILLE, FL 32796

Current Mailing Address:

301 JULIA STREET

TITUSVILLE, FL 32796 US

FEI Number: 59-6177447

Name and Address of Current Registered Agent:

HERON, STEVEN

TITUSVILLE PLAYHOUSE, INC.

301 JULIA STREET

TITUSVILLE, FL 32796 US

The above named entity submits this statement for the purpose of changing its registered office or registered agent, or both, in the State of Florida.

SIGNATURE:

Name LUGO, MELISSA

Address 301 JULIA STREET

City-State-Zip: TITUSVILLE FL 32796

Title S

Name BALL, JIM

Address 301 JULIA STREET

City-State-Zip: TITUSVILLE FL 32796

Officer/Director Detail : I

Name MACDONALD, KAREN Address 301 JULIA STREET

City-State-Zip: TITUSVILLE FL 32796

Title P

Name BALL, KATY

Address 301 JULIA STREET

City-State-Zip: TITUSVILLE FL 32796

2,487,830

1,535,358

2,346,797 141,033 -670 1,675,721 2,487,830 2,346,797 4,473,191 4,537,221 2,937,833 2,861,500 1,535,358 1,675,721 140,363 10/15/24

For calendar year 2023, or fiscal year beginning , 2023, and ending , 20

Do not send to the IRS. Keep for your records.

Part I Type of Return and Return Information

Check the box for the return for which you are using this Form 8879-TE and enter the applicable amount, if any, from the return. Form

8038-CP and Form 5330 filers may enter dollars and cents. For all other forms, enter whole dollars only. If you check the box on line 1a, 2a, 3a, 4a, 5a, 6a, 7a, 8a, 9a, or 10a below, and the amount on that line for the return being filed with this form was blank, then leave line 1b, 2b, 3b, 4b, 5b, 6b, 7b, 8b, 9b, or 10b, whichever is applicable, blank (do not enter -0-). But, if you entered -0- on the return, then enter -0- on the

1a Form 990 check here

2a Form 990-EZ check here

3a Form 1120-POL check here

4a 5a Form 990-PF check here Form 8868 check here

FMV of assets at end of tax year (Form 5227, Item D) applicable line below. Do not complete more than one line in Part I.

Form 5227 check

Form 8038-CP check here

b Total revenue, if any (Form 990, Part VIII, column (A), line 12)

b Total revenue, if any (Form 990-EZ, line 9)

b Total tax (Form 1120-POL, line 22)

b b Tax based on investment income (Form 990-PF, Part V, line 5) Balance due (Form 8868, line 3c)

tax (Form 990-T, Part III, line 4)

Total tax (Form 4720, Part III, line 1)

due (Form 5330, Part II, line 19)

Amount of credit payment requested (Form 8038-CP, Part III, line 22)

Part II Declaration and Signature Authorization of Officer or Person Subject to Tax

Under penalties of perjury, I declare that

2,487,830

I am an officer of the above entity or I am a person subject to tax with respect to (name and that I have examined a copy of the of entity) , (EIN)

2023 electronic return and accompanying schedules and statements, and, to the best of my knowledge and belief, they are true, correct, and complete. I further declare that the amount in Part I above is the amount shown on the copy of the electronic return. I consent to allow my intermediate service provider, transmitter, or electronic return originator (ERO) to send the return to the IRS and to receive from the IRS (a) an

acknowledgement of receipt or reason for rejection of the transmission, (b) the reason for any delay in processing the return or refund, and (c)

the date of any refund. If applicable, I authorize the U.S. Treasury and its designated Financial Agent to initiate an electronic funds withdrawal

(direct debit) entry to the financial institution account indicated in the tax preparation software for payment of the federal taxes owed on this return, and the financial institution to debit the entry to this account. To revoke a payment, I must contact the U.S. Treasury Financial Agent at 1-888-353-4537 no later than 2 business days prior to the payment (settlement) date. I also authorize the financial institutions involved in the processing of the electronic payment of taxes to receive confidential information necessary to answer inquiries and resolve issues related to the payment. I have selected a personal identification number (PIN) as my signature for the electronic return and, if applicable, the consent to electronic funds withdrawal. Go to www.irs.gov/Form8879TE for the

PIN: check one box only

I authorize to enter my PIN as my signature

do not enter all zeros number (EFIN) followed by your five-digit self-selected PIN.

on the tax year 2023 electronically filed return. If I have indicated within this return that a copy of the return is being filed with a state

agency(ies) regulating charities as part of the IRS Fed/State program, I also authorize the aforementioned ERO to enter my PIN on the return’s disclosure consent screen. of the IRS Fed/State program, I will enter my PIN on the return’s disclosure consent screen.

As an officer or person subject to tax with respect to the entity, I will enter my PIN as my signature on the tax year 2023 electronically filed return. If I have indicated within this return that a copy of the return is being filed with a state agency(ies) regulating charities as part

Part III Certification and Authentication

ERO's EFIN/PIN. Enter your six-digit electronic filing identification

I certify that the above numeric entry is my PIN, which is my signature on the 2023 electronically filed return indicated above. I confirm that I am submitting this return in accordance with the requirements of Pub. 4163, Modernized e-File (MeF) Information for Authorized IRS e-file

ERO Must Retain This Form — See Instructions Do Not Submit This Form to the IRS Unless Requested To Do So

For Privacy Act and Paperwork Reduction Act Notice, see back of form.

Return of Organization Exempt From Income Tax

Check if applicable: For the 2023 calendar year, or tax year beginning

Number of voting members of the governing body (Part VI, line 1a)

Number of independent voting members of the governing body (Part VI, line 1b)

Total number of individuals employed in calendar year 2023 (Part V, line 2a)

Total number of volunteers (estimate if necessary)

Total unrelated business revenue from Part VIII, column (C), line 12

Net unrelated business taxable income from Form 990-T, Part I, line 11

Contributions and grants (Part VIII, line 1h)

Program service revenue (Part VIII, line 2g)

Investment income (Part VIII, column (A), lines 3, 4, and 7d)

Other revenue (Part VIII, column (A), lines 5, 6d, 8c, 9c, 10c, and 11e)

Total revenue – add lines 8 through 11 (must equal Part VIII, column (A), line 12)

(Part IX, column (A), lines 1–3)

to or for members (Part IX, column (A), line 4)

Salaries, other compensation, employee benefits (Part IX, column (A), lines 5–10)

Professional fundraising fees (Part IX, column (A), line 11e)

668,669 632,502 1,357,966 1,733,109 -6,317 13,110 105,440 109,109 2,125,758 2,487,830

876,822 892,545

Other expenses (Part IX, column (A), lines 11a–11d, 11f–24e)

Total expenses. Add lines 13–17 (must equal Part IX, column (A), line 25)

Total fundraising expenses (Part IX, column (D), line 25) Revenue less expenses. Subtract line 18 from line 12

1,098,506 1,454,252 1,975,328 2,346,797 150,430 141,033 4,473,191 4,537,221 2,937,833 2,861,500 1,535,358 1,675,721 KATY BALL PRESIDENT

if Schedule O contains a response or note to any line in this Part

1 Briefly describe the organization's mission:

Did the organization undertake any significant program services during the year which were not listed on the

prior Form 990 or 990-EZ?

If "Yes," describe these new services on Schedule O.

Did the organization cease conducting, or make significant changes in how it conducts, any program services?

If "Yes," describe these changes on Schedule O.

Describe the organization's program service accomplishments for each of its three largest program services, as measured by expenses. Section 501(c)(3) and 501(c)(4) organizations are required to report the amount of grants and allocations to others, the total expenses, and revenue, if any, for each program service reported.

1,636,298 1,429,849

OF LIVE THEATRE PRODUCTIONS FOR A TOTAL OF 207 UNIQUE SHOWS WITH 42,547 ATTENDEES AND 2,277 PARTICIPANTS AND VOLUNTEERS 17,043

91,929 CLASSES, WORKSHOPS AND OTHER ACTIVITIES CONSTRUCTED TO EDUCATE ADULTS AND CHILDREN ABOUT ARTISTIC AND TECHINCAL THEATRE. THERE WERE 8 WORKSHOPS, CAMPS AND YOUTH EVENTS. THERE WERE 11 SHOWS WITH 1,568 ATTENDEES, PARTICIPANTS AND VOLUNTEERS. 87,983 211,331 SALE OF BEVERAGES AND SNACKS DURING LIVE PERFORMANCES FOR THE BEENFIT AND COMFORT OF PATRONS. PROCEEDS ARE USED TO OFFSET PRODUCTION COSTS WHICH BENEFIT THE EXEMPT PURPOSE OF THE ORGANIZATION 1,741,324

Is the organization described in section 501(c)(3) or 4947(a)(1) (other than a private foundation)? If “Yes,” complete Schedule A

Is the organization required to complete Schedule B, Schedule of Contributors? See instructions

Did the organization engage in direct or indirect political campaign activities on behalf of or in opposition to candidates for public office? If “Yes,” complete Schedule C, Part I

Section 501(c)(3) organizations. Did the organization engage in lobbying activities, or have a section 501(h) election in effect during the tax year? If "Yes," complete Schedule C, Part II

Is the organization a section 501(c)(4), 501(c)(5), or 501(c)(6) organization that receives membership dues, assessments, or similar amounts as defined in Rev. Proc. 98-19? If "Yes," complete Schedule C, Part III

Did the organization maintain any donor advised funds or any similar funds or accounts for which donors have the right to provide advice on the distribution or investment of amounts in such funds or accounts? If “Yes,” complete Schedule D, Part I

Did the organization receive or hold a conservation easement, including easements to preserve open space, the environment, historic land areas, or historic structures? If “Yes,” complete Schedule D, Part II

Did the organization maintain collections of works of art, historical treasures, or other similar assets? If “Yes,” complete Schedule D, Part III

Did the organization report an amount in Part X, line 21, for escrow or custodial account liability; serve as a custodian for amounts not listed in Part X; or provide credit counseling, debt management, credit repair, or debt negotiation services? If “Yes,” complete Schedule D, Part IV

Did the organization, directly or through a related organization, hold assets in donor-restricted endowments

or in quasi-endowments? If “Yes,” complete Schedule D, Part V

If the organization's answer to any of the following questions is “Yes,” then complete Schedule D, Parts VI, VII, VIII, IX, or X, as applicable.

Did the organization report an amount for land, buildings, and equipment in Part X, line 10? If "Yes," complete Schedule D, Part VI of its total assets reported in Part X, line 16? If "Yes," complete Schedule D, Part VII

Did the organization report an amount for investments—other securities in Part X, line 12, that is 5% or more

Did the organization report an amount for investments—program related in Part X, line 13, that is 5% or more of its total assets reported in Part X, line 16? If "Yes," complete Schedule D, Part VIII reported in Part X, line 16? If "Yes," complete Schedule D, Part IX

Did the organization report an amount for other assets in Part X, line 15, that is 5% or more of its total assets

Did the organization report an amount for other liabilities in Part X, line 25? If "Yes," complete Schedule D, Part X Did the organization's separate or consolidated financial statements for the tax year include a footnote that addresses the organization's liability for uncertain tax positions under FIN 48 (ASC 740)? If "Yes," complete Schedule D, Part X

Did the organization obtain separate, independent audited financial statements for the tax year? If “Yes,” complete Schedule D, Parts XI and XII

Was the organization included in consolidated, independent audited financial statements for the tax year? If

"Yes," and if the organization answered "No" to line 12a, then completing Schedule D, Parts XI and XII is optional

Is the organization a school described in section 170(b)(1)(A)(ii)? If “Yes,” complete Schedule E

Did the organization maintain an office, employees, or agents outside of the United States?

Did the organization have aggregate revenues or expenses of more than $10,000 from grantmaking, fundraising, business, investment, and program service activities outside the United States, or aggregate

foreign investments valued at $100,000 or more? If “Yes,” complete Schedule F, Parts I and IV

Did the organization report on Part IX, column (A), line 3, more than $5,000 of grants or other assistance to or for any foreign organization? If “Yes,” complete Schedule F, Parts II and IV

Did the organization report on Part IX, column (A), line 3, more than $5,000 of aggregate grants or other assistance to or for foreign individuals? If “Yes,” complete Schedule F, Parts III and IV

Did the organization report a total of more than $15,000 of expenses for professional fundraising services on

Part IX, column (A), lines 6 and 11e? If “Yes,” complete Schedule G, Part I. See instructions

Did the organization report more than $15,000 total of fundraising event gross income and contributions on

Part VIII, lines 1c and 8a? If "Yes," complete Schedule G, Part II

Did the

If "Yes," complete Schedule G, Part III

20a Did the organization operate one or more hospital facilities? If “Yes,” complete Schedule H b If “Yes” to line 20a, did the organization attach a copy of its audited financial statements to this return?

21 Did the organization report more than $5,000 of grants or other assistance to any domestic organization or

domestic government on Part IX, column (A), line 1? If “Yes,” complete Schedule I, Parts I and II

Did the organization report more than $5,000 of grants or other assistance to or for domestic individuals on

Part IX, column (A), line 2? If “Yes,” complete Schedule I, Parts I and III

Did the organization answer “Yes” to Part VII, Section A, line 3, 4, or 5 about compensation of the

employees? If "Yes," complete Schedule J

Did the organization have a tax-exempt bond issue with an outstanding principal amount of more than organization's current and former officers, directors, trustees, key employees, and highest compensated

$100,000 as of the last day of the year, that was issued after December 31, 2002? If “Yes,” answer lines 24b

through 24d and complete Schedule K. If “No,” go to line 25a

Did the organization invest any proceeds of tax-exempt bonds beyond a temporary period exception?

Did the organization maintain an escrow account other than a refunding escrow at any time during the year

Did the organization act as an “on behalf of” issuer for bonds outstanding at any time during the year? to defease any tax-exempt bonds?

Section 501(c)(3), 501(c)(4), and 501(c)(29) organizations. Did the organization engage in an excess benefit

Is the organization aware that it engaged in an excess benefit transaction with a disqualified person in a prior transaction with a disqualified person during the year? If “Yes,” complete Schedule L, Part I

If "Yes," complete Schedule L, Part I

Did the organization report any amount on Part X, line 5 or 22, for receivables from or payables to any current year, and that the transaction has not been reported on any of the organization's prior Forms 990 or 990-EZ?

controlled entity or family member of any of these persons? If “Yes,” complete Schedule L, Part II

Did the organization provide a grant or other assistance to any current or former officer, director, trustee, key or former officer, director, trustee, key employee, creator or founder, substantial contributor, or 35%

employee, creator or founder, substantial contributor or employee thereof, a grant selection committee

persons? If “Yes,” complete Schedule L, Part III L, Part IV, instructions for applicable filing thresholds, conditions, and exceptions).

Was the organization a party to a business transaction with one of the following parties? (See the Schedule

A current or former officer, director, trustee, key employee, creator or founder, or substantial contributor? If "Yes,” complete Schedule L, Part IV

A family member of any individual described in line 28a? If “Yes,” complete Schedule L, Part IV

A 35% controlled entity of one or more individuals and/or organizations described in line 28a or 28b? If “Yes,” complete Schedule L, Part IV

Did the organization receive more than $25,000 in noncash contributions? If “Yes,” complete Schedule M

Did the organization receive contributions of art, historical treasures, or other similar assets, or qualified conservation contributions? If “Yes,” complete Schedule M

Did the organization liquidate, terminate, or dissolve and cease operations? If “Yes,” complete Schedule N, Part I

Did the organization sell, exchange, dispose of, or transfer more than 25% of its net assets? If "Yes," complete Schedule N, Part II

Did the organization own 100% of an entity disregarded as separate from the organization under Regulations sections 301.7701-2 and 301.7701-3? If “Yes,” complete Schedule R, Part I

Was the organization related to any tax-exempt or taxable entity? If “Yes,” complete Schedule R, Part II, III, or IV, and Part V, line 1

Did the organization have a controlled entity within the meaning of section 512(b)(13)?

If "Yes" to line 35a, did the organization receive any payment from or engage in any transaction with a

controlled entity within the meaning of section 512(b)(13)? If “Yes,” complete Schedule R, Part V, line 2

Section 501(c)(3) organizations. Did the organization make any transfers to an exempt non-charitable related organization? If “Yes,” complete Schedule R, Part V, line 2

Did the organization conduct more than 5% of its activities through an entity that is not a related organization and that is treated as a partnership for federal income tax purposes? If “Yes,” complete Schedule R, Part VI

38 Did the organization complete Schedule O and provide explanations on Schedule O for Part VI, lines 11b and 38 19? Note: All Form 990 filers are required to complete Schedule O.

Part V Statements Regarding Other IRS Filings and Tax Compliance member, or to a 35% controlled entity (including an employee thereof) or family member of any of these

Check if Schedule O contains a response or note to any line in this Part V

c b 1a

Enter the number reported in box 3 of Form 1096. Enter -0- if not applicable

Enter the number of Forms W-2G included on line 1a. Enter -0- if not applicable

Did the organization comply with backup withholding rules for reportable payments to vendors and

reportable gaming (gambling) winnings to prize winners?

13

Enter the number of employees reported on Form W-3, Transmittal of Wage and Tax

Statements, filed for the calendar year ending with or within the year covered by this return

If at least one is reported on line 2a, did the organization file all required federal employment tax returns?

Did the organization have unrelated business gross income of $1,000 or more during the year?

If “Yes,” has it filed a Form 990-T for this year? If “No” to line 3b, provide an explanation on Schedule O

At any time during the calendar year, did the organization have an interest in, or a signature or other authority over, a financial account in a foreign country (such as a bank account, securities account, or other financial account)?

If “Yes,” enter the name of the foreign country

See instructions for filing requirements for FinCEN Form 114, Report of Foreign Bank and Financial Accounts (FBAR).

Was the organization a party to a prohibited tax shelter transaction at any time during the tax year?

Did any taxable party notify the organization that it was or is a party to a prohibited tax shelter transaction?

If “Yes” to line 5a or 5b, did the organization file Form 8886-T?

Does the organization have annual gross receipts that are normally greater than $100,000, and did the

organization solicit any contributions that were not tax deductible as charitable contributions?

If “Yes,” did the organization include with every solicitation an express statement that such contributions or gifts were not tax deductible?

Organizations that may receive deductible contributions under section 170(c).

Did the organization receive a payment in excess of $75 made partly as a contribution and partly for goods

and services provided to the payor?

If “Yes,” did the organization notify the donor of the value of the goods or services provided?

Did the organization sell, exchange, or otherwise dispose of tangible personal property for which it was required to file Form 8282?

If “Yes,” indicate the number of Forms 8282 filed during the year

Did the organization receive any funds, directly or indirectly, to pay premiums on a personal benefit contract?

Did the organization, during the year, pay premiums, directly or indirectly, on a personal benefit contract?

If the organization received a contribution of qualified intellectual property, did the organization file Form 8899 as required?

If the organization received a contribution of cars, boats, airplanes, or other vehicles, did the organization file a Form 1098-C?

Sponsoring organizations maintaining donor advised funds. Did a donor advised fund maintained by the sponsoring organization have excess business holdings at any time during the year?

Sponsoring organizations maintaining donor advised funds.

Did the sponsoring organization make any taxable distributions under section 4966?

Did the sponsoring organization make a distribution to a donor, donor advisor, or related person?

Section 501(c)(7) organizations. Enter:

Initiation fees and capital contributions included on Part VIII, line 12

Gross receipts, included on Form 990, Part VIII, line 12, for public use of club facilities

Section 501(c)(12) organizations. Enter:

Gross income from members or shareholders

Gross income from other sources. (Do not net amounts due or paid to other sources against amounts due or received from them.)

Section 4947(a)(1) non-exempt charitable trusts. Is the organization filing Form 990 in lieu of Form 1041?

If “Yes,” enter the amount of tax-exempt interest received or accrued during the year

Section 501(c)(29) qualified nonprofit health insurance issuers.

b Is the organization licensed to issue qualified health plans in more than one state?

Note: See the instructions for additional information the organization must report on Schedule O. Enter the amount of reserves the organization is required to maintain by the states in which the organization is licensed to issue qualified health plans

Enter the amount of reserves on hand

Did the organization receive any payments for indoor tanning services during the tax year?

If “Yes,” has it filed a Form 720 to report these payments? If "No," provide an explanation on Schedule O

15 Is the organization subject to the section 4960 tax on payment(s) of more than $1,000,000 in remuneration or excess parachute payment(s) during the year?

If “Yes,” see instructions and file Form 4720, Schedule N.

16 Is the organization an educational institution subject to the section 4968 excise tax on net investment income?

17

If “Yes,” complete Form 4720, Schedule O.

Section 501(c)(21) organizations. Did the trust, any disqualified or other person engage in any activities that would result in the imposition of an excise tax under section 4951, 4952 or 4953?

If “Yes,” complete Form 6069.

Part VI Governance, Management, and Disclosure For each "Yes" response to lines 2 through 7b below, and for a "No" response to line 8a, 8b, or 10b below, describe the circumstances, processes, or changes on Schedule O. See instructions.

Section A. Governing Body and Management

Enter the number of voting members of the governing body at the end of the tax year

If there are material differences in voting rights among members of the governing body, or if the governing body delegated broad authority to an executive committee or similar committee, explain on Schedule O.

Enter the number of voting members included on line 1a, above, who are independent

Did any officer, director, trustee, or key employee have a family relationship or a business relationship with any other officer, director, trustee, or key employee?

Did the organization delegate control over management duties customarily performed by or under the direct supervision of officers, directors, trustees, or key employees to a management company or other person?

Did the organization make any significant changes to its governing documents since the prior Form 990 was filed?

Did the organization become aware during the year of a significant diversion of the organization’s assets?

Did the organization have members or stockholders?

Did the organization have members, stockholders, or other persons who had the power to elect or appoint one or more members of the governing body?

Are any governance decisions of the organization reserved to (or subject to approval by) members,

stockholders, or persons other than the governing body?

Did the organization contemporaneously document the meetings held or written actions undertaken during the year by the following:

The governing body?

Each committee with authority to act on behalf of the governing body?

Is there any officer, director, trustee, or key employee listed in Part VII, Section A, who cannot be reached at the organization’s mailing address? If “Yes,” provide the names and addresses on Schedule O

Section B. Policies (This Section B requests information about policies not required by the Internal Revenue Code.)

Did the organization have local chapters, branches, or affiliates?

If “Yes,” did the organization have written policies and procedures governing the activities of such chapters, affiliates, and branches to ensure their operations are consistent with the organization's exempt purposes?

Has the organization provided a complete copy of this Form 990 to all members of its governing body before filing the form?

b Describe on Schedule O the process, if any, used by the organization to review this Form 990.

Did the organization have a written conflict of interest policy? If “No,” go to line 13

Were officers, directors, or trustees, and key employees required to disclose annually interests that could give rise to conflicts?

Did the organization regularly and consistently monitor and enforce compliance with the policy? If “Yes,” describe on Schedule O how this was done

Did the organization have a written whistleblower policy?

Did the organization have a written document retention and destruction policy?

Did the process for determining compensation of the following persons include a review and approval by independent persons, comparability data, and contemporaneous substantiation of the deliberation and decision?

The organization’s CEO, Executive Director, or top management official

Other officers or key employees of the organization

If “Yes” to line 15a or 15b, describe the process on Schedule O. See instructions.

Did the organization invest in, contribute assets to, or participate in a joint venture or similar arrangement with a taxable entity during the year?

If “Yes,” did the organization follow a written policy or procedure requiring the organization to evaluate its participation in joint venture arrangements under applicable federal tax law, and take steps to safeguard the organization’s exempt status with respect to such arrangements?

List the states with which a copy of this Form 990 is required to be filed

Section 6104 requires an organization to make its Forms 1023 (1024 or 1024-A, if applicable), 990, and 990-T (section 501(c) (3)s only) available for public inspection. Indicate how you made these available. Check all that apply.

Own website Another's website Upon request Check if Schedule O contains a response or note to any line in this Part VI

Other (explain on Schedule O)

Describe on Schedule O whether (and if so, how) the organization made its governing documents, conflict of interest policy, and financial statements available to the public during the tax year.

State the name, address, and telephone number of the person who possesses the organization's books and records.

Section A.

Independent Contractors

Officers, Directors, Trustees, Key Employees, and Highest Compensated Employees

Complete this table for all persons required to be listed. Report compensation for the calendar year ending with or within the 1a

organization's

List all of the organization's current officers, directors, trustees (whether individuals or organizations), regardless of amount of compensation. Enter -0- in columns (D), (E), and (F) if no compensation was paid.

List all of the organization's current key employees, if any. See instructions for definition of "key employee."

List the organization's five current highest compensated employees (other than an officer, director, trustee, or key employee)

who received reportable compensation (box 5 of Form W-2, box 6 of Form 1099-MISC, and/or box 1 of Form 1099-NEC) of more than $100,000 from the organization and any related organizations.

List all of the organization's former officers, key employees, and highest compensated employees who received more than $100,000 of reportable compensation from the organization and any related organizations.

List all of the organization’s former directors or trustees that received, in the capacity as a former director or trustee of the organization, more than $10,000 of reportable compensation from the organization and any related organizations. See the instructions for the order in which to list the persons above.

Check this box if neither the organization nor any related organization compensated any current officer, director, or trustee.

from the related organizations

not check more than one box, unless person is both an officer and a

Did the organization list any former officer, director, trustee, key employee, or highest compensated employee on line 1a? If “Yes,” complete Schedule J for such individual

For any individual listed on line 1a, is the sum of reportable compensation and other compensation from the organization and related organizations greater than $150,000? If “Yes,” complete Schedule J for such individual

Did any person listed on line 1a receive or accrue compensation from any unrelated organization or individual for services rendered to the organization? If “Yes,” complete Schedule J for such person

1 Complete this table for your five highest compensated independent contractors that received more than $100,000 of compensation from the organization. Report compensation for the calendar year ending with or within the organization's tax year.

Check if Schedule O contains a response or note to any line in this Part VIII

Related organizations Government grants (contributions)

All other contributions, gifts, grants, and similar amounts not included above Noncash contributions included in

Investment income (including dividends, interest, and other similar amounts)

Income from investment of tax-exempt bond proceeds Royalties

Less: rental expenses

Rental inc. or (loss)

Net rental income or (loss)

Gross income from fundraising events (not including of contributions reported on line 1c). See Part IV, line 18 $

Less: direct expenses

Net income or (loss) from fundraising events

Gross income from gaming activities. See Part IV, line 19 Less: direct expenses

Net income or (loss) from gaming activities

Gross sales of inventory, less returns and allowances

Less: cost of goods sold

Net income or (loss)

Section 501(c)(3) and 501(c)(4) organizations must complete all columns. All other organizations must complete column (A).

Do not include amounts reported on lines 6b, 7b, 8b, 9b, and 10b of Part VIII.

Grants and other assistance to domestic organizations and domestic governments. See Part IV, line 21

Grants and other assistance to domestic individuals. See Part IV, line 22

Grants and other assistance to foreign organizations, foreign governments, and foreign individuals. See Part IV, lines 15 and 16

Benefits paid to or for members

Compensation of current officers, directors, trustees, and key employees

Compensation not included above to disqualified persons (as defined under section 4958(f)(1)) and persons described in section 4958(c)(3)(B)

Other salaries and wages

Pension plan accruals and contributions (include section 401(k) and 403(b) employer contributions)

Other employee benefits

Payroll taxes

Fees for services (nonemployees):

Management

Legal

Accounting

Lobbying

Professional fundraising services. See Part IV, line 17

Investment management fees

Other. (If line 11g amount exceeds 10% of line 25, column

Schedule O.)

Advertising and promotion

Office expenses

Information technology

Royalties

Occupancy

Travel

Payments of travel or entertainment expenses for any federal, state, or local public officials

Conferences, conventions, and meetings

Interest

Payments to affiliates

Depreciation, depletion, and amortization

Insurance

Other expenses. Itemize expenses not covered above. (List miscellaneous expenses on line 24e. If line 24e amount exceeds 10% of line 25, column (A) amount, list line 24e expenses on Schedule O.)

All other expenses

Total functional expenses. Add lines 1 through 24e

fundraising solicitation. Check

Check if Schedule O contains a response or note to any line in this Part X

Cash—non-interest-bearing

Savings and temporary cash investments

Pledges and grants receivable, net

Accounts receivable, net

Loans and other receivables from any current or former officer, director, trustee, key employee, creator or founder, substantial contributor, or 35%

controlled entity or family member of any of these persons

Loans and other receivables from other disqualified persons (as defined under section 4958(f)(1)), and persons described in section 4958(c)(3)(B)

Notes and loans receivable, net

Inventories for sale or use

Prepaid expenses and deferred charges

Land, buildings, and equipment: cost or other

Less: accumulated depreciation

Investments—publicly traded securities

Investments—other securities. See Part IV, line 11

Investments—program-related. See Part IV, line 11

Intangible assets

Other assets. See Part IV, line 11

Total assets. Add lines 1 through 15 (must equal line 33)

Accounts payable and accrued expenses

Grants payable

Deferred revenue

Tax-exempt bond liabilities

Escrow or custodial account liability. Complete Part IV of Schedule D

Loans and other payables to any current or former officer, director, trustee, key employee, creator or founder, substantial contributor, or 35%

controlled entity or family member of any of these persons

Secured mortgages and notes payable to unrelated third parties

Unsecured notes and loans payable to unrelated third parties

Other liabilities (including federal income tax, payables to related third

parties, and other liabilities not included on lines 17-24). Complete Part X

basis. Complete Part VI of Schedule D of Schedule D

Total liabilities. Add lines 17 through 25

Organizations that follow FASB ASC 958, check here and complete lines 27, 28, 32, and 33.

Net assets without donor restrictions

Net assets with donor restrictions and complete lines 29 through 33.

Organizations that do not follow FASB ASC 958, check here

Capital stock or trust principal, or current funds

Paid-in or capital surplus, or land, building, or equipment fund

Retained earnings, endowment, accumulated income, or other funds

Total net assets or fund balances

Total liabilities and net assets/fund balances

5,523,867 1,491,050 3,454,418 4,032,817 60,169 71,986 4,473,191 4,537,221 15,267 5,168 172,982 212,671 2,659,584 2,523,661 90,000 120,000 2,937,833 2,861,500 X 1,535,358 1,675,721 1,535,358 1,675,721 4,473,191 4,537,221

Part XI

Total

Reconciliation of Net Assets

Check if Schedule O contains a response or note to any line in this Part XI

(must equal Part VIII, column (A), line 12)

3 Revenue less expenses. Subtract line 2 from line 1

Net assets or fund balances at beginning of year (must equal Part X, line 32, column (A))

Net unrealized gains (losses) on investments

Donated services and use of facilities

Investment expenses

Prior period adjustments

Other changes in net assets or fund balances (explain on Schedule O)

Net assets or fund balances at end of year. Combine lines 3 through 9 (must equal Part X, line 32, column (B))

Part XII Financial Statements and Reporting

Check if Schedule O contains a response or note to any line in this Part XII

Accounting method used to prepare the Form 990:

If the organization changed its method of accounting from a prior year or checked “Other,” explain on Schedule O.

Were the organization's financial statements compiled or reviewed by an independent accountant?

If "Yes," check a box below to indicate whether the financial statements for the year were compiled or reviewed on a separate basis, consolidated basis, or both.

Separate basis

Consolidated basis

Both consolidated and separate basis

Were the organization's financial statements audited by an independent accountant?

If "Yes," check a box below to indicate whether the financial statements for the year were audited on a

separate basis, consolidated basis, or both.

Separate basis

Consolidated basis

Both consolidated and separate basis

If “Yes” to line 2a or 2b, does the organization have a committee that assumes responsibility for oversight of

the audit, review, or compilation of its financial statements and selection of an independent accountant?

If the organization changed either its oversight process or selection process during the tax year, explain on Schedule O.

As a result of a federal award, was the organization required to undergo an audit or audits as set forth in the

Uniform Guidance, 2 C.F.R. Part 200, Subpart F?

If “Yes,” did the organization undergo the required audit or audits? If the organization did not undergo the

required audit or audits, explain why on Schedule O and describe any steps taken to undergo such audits

X 2,487,830 2,346,797 141,033 1,535,358 -632 -38 1,675,721

X X

Public Charity Status and Public Support

Attach to Form 990 or Form 990-EZ. Complete if the organization is a section 501(c)(3) organization or a section

A church, convention of churches, or association of churches described in section 170(b)(1)(A)(i).

A school described in section 170(b)(1)(A)(ii). (Attach Schedule E (Form 990).)

A hospital or a cooperative hospital service organization described in section 170(b)(1)(A)(iii).

A medical research organization operated in conjunction with a hospital described in section 170(b)(1)(A)(iii). Enter the hospital's name, city, and state:

An organization operated for the benefit of a college or university owned or operated by a governmental unit described in section 170(b)(1)(A)(iv). (Complete Part II.)

A federal, state, or local government or governmental unit described in section 170(b)(1)(A)(v).

An organization that normally receives a substantial part of its support from a governmental unit or from the general public described in section 170(b)(1)(A)(vi). (Complete Part II.)

A community trust described in section 170(b)(1)(A)(vi). (Complete Part II.)

9 An agricultural research organization described in section 170(b)(1)(A)(ix) operated in conjunction with a land-grant college or university or a non-land-grant college of agriculture (see instructions). Enter the name, city, and state of the college or university:

An organization that normally receives (1) more than 33 1/3% of its support from contributions, membership fees, and gross receipts from activities related to its exempt functions, subject to certain exceptions; and (2) no more than 33 1/3% of its support from gross investment income and unrelated business taxable income (less section 511 tax) from businesses acquired by the organization after June 30, 1975. See section 509(a)(2). (Complete Part III.)

An organization organized and operated exclusively to test for public safety. See section 509(a)(4).

An organization organized and operated exclusively for the benefit of, to perform the functions of, or to carry out the purposes of one or more publicly supported organizations described in section 509(a)(1) or section 509(a)(2). See section 509(a)(3). Check the box on lines 12a through 12d that describes the type of supporting organization and complete lines 12e, 12f, and 12g. a

b

Type II. A supporting organization supervised or controlled in connection with its supported organization(s), by having control or management of the supporting organization vested in the same persons that control or manage the supported the supported organization(s) the power to regularly appoint or elect a majority of the directors or trustees of the

Type III functionally integrated. A supporting organization operated in connection with, and functionally integrated with, organization(s). You must complete Part IV, Sections A and C.

c that is not functionally integrated. The organization generally must satisfy a distribution requirement and an attentiveness

d e f Enter the number of supported organizations

Type III non-functionally integrated. A supporting organization operated in connection with its supported organization(s) requirement (see instructions). You must complete Part IV, Sections A and D, and Part V. its supported organization(s) (see instructions). You must complete Part IV, Sections A, D, and E.

Check this box if the organization received a written determination from the IRS that it is a Type I, Type II, Type III functionally integrated, or Type III non-functionally integrated supporting organization.

Provide the following information about the supported organization(s). g organization

(ii) EIN

Type I. A supporting organization operated, supervised, or controlled by its supported organization(s), typically by giving supporting organization. You must complete Part IV, Sections A and B. instructions) instructions) other support (see (vi) Amount of

Go to www.irs.gov/Form990 for instructions and the latest information. above (see instructions))

(iii) Type of organization (described on lines 1–10 document? listed in your governing

(iv) Is the organization Yes No

(v) Amount of monetary support (see

(Complete only if you checked the box on line 5, 7, or 8 of Part I or if the organization failed

Part III. If the organization fails to qualify under the tests listed below, please complete Part III.)

Section A. Public Support

membership fees received. (Do not

Tax revenues levied for the

The value of services or facilities to or expended on its behalf organization's benefit and either paid

Total. Add lines 1 through 3

governmental unit or publicly

Public support. Subtract line 5 from line 4 include any “unusual grants.”)

Amounts from line 4

Gross income from interest, dividends, line 1 that exceeds 2% of the amount supported organization) included on each person (other than a The portion of total contributions by

Net income from unrelated business rents, royalties, and income from payments received on securities loans,

Other income. Do not include gain or is regularly carried on activities, whether or not the business

loss from the sale of capital assets

(Explain in Part VI.)

Total support. Add lines 7 through 10

Gross receipts from related activities, etc. (see instructions)

2020 (c) 2021 (d) 2022 (e) 2023

First 5 years. If the Form 990 is for the organization’s first, second, third, fourth, or fifth tax year as a section 501(c)(3)

test — 2023. If the organization did not check the box on line 13, and line 14 is 33 1/3% or more, check this box and stop here. The organization qualifies as a publicly supported organization b 33 1/3% support test — 2022. If the organization did not check a box on line 13 or 16a, and line 15 is 33 1/3% or more, check this box and stop here. The organization qualifies as a publicly supported organization 10%-facts-and-circumstances

— 2023. If the organization did not check a box on line 13, 16a, or 16b, and line 14 is

10% or more, and if the organization meets the facts-and-circumstances test, check this box and stop here. Explain in Part VI how the organization meets the facts-and-circumstances test. The organization qualifies as a publicly supported

b 10%-facts-and-circumstances test — 2022. If the organization did not check a box on line 13, 16a, 16b, or 17a, and line in Part VI how the organization meets the facts-and-circumstances test. The organization qualifies as a publicly supported 15 is 10% or more, and if the organization meets the facts-and-circumstances test, check this box and stop here. Explain 18 Private foundation. If the organization did not check a box on line 13, 16a, 16b, 17a, or 17b, check this box and see

2019 shown on line 11, column (f) organization organization instructions

Support Schedule for Organizations Described in Section 509(a)(2) (Complete only if you checked the box on line 10 of Part I or if the organization failed to qualify under Part II.

If the organization fails to qualify under the tests listed below, please complete Part II.)

Calendar year (or fiscal year beginning in)

Gifts, grants, contributions, and membership fees received. (Do not include any “unusual grants.”)

Gross receipts from activities that are not an

A. Public Support organization’s tax-exempt purpose Tax revenues levied for the 4 organization's benefit and either paid to or expended on its behalf organization without charge furnished by a governmental unit to the

Total. Add lines 1 through 5

Amounts included on lines 1, 2, and 3

received from disqualified persons

Amounts included on lines 2 and 3 b received from other than disqualified persons that exceed the greater of $5,000 or 1% of the amount on line 13 for the year

Gross receipts from admissions, merchandise sold or services performed, or facilities furnished in any activity that is related to the

c Add lines 7a and 7b Amounts from line 6

Public support. (Subtract line 7c from

line 6.)

B. Total Support unrelated trade or business under section 513 Part

and

Unrelated business taxable income (less

section 511 taxes) from businesses acquired after June 30, 1975

c Add lines 10a and 10b

Calendar year (or fiscal year beginning in) and 12.)

not included on line 10b, whether or not the business is regularly carried on (Explain in Part VI.)

If the

did not

a

14 or line 19a, and line 16 is more than 33 1/3%, and line 18 is not more than 33 1/3%, check this box and stop here. The organization qualifies as a publicly supported organization

Private foundation. If the organization did not check a box on line 14, 19a,

(Complete only if you checked a box on line 12 on Part I. If you checked box 12a, Part I, complete Sections A and B. If you checked box 12b, Part I, complete Sections A and C. If you checked box 12c, Part I, complete

Sections A, D, and E. If you checked box 12d, Part I, complete Sections A and D, and complete Part V.)

Section A. All Supporting Organizations

Are all of the organization’s supported organizations listed by name in the organization’s governing documents? If “No,” describe in Part VI how the supported organizations are designated. If designated by class or purpose, describe the designation. If historic and continuing relationship, explain.

Did the organization have any supported organization that does not have an IRS determination of status under section 509(a)(1) or (2)? If “Yes,” explain in Part VI how the organization determined that the supported organization was described in section 509(a)(1) or (2).

Did the organization have a supported organization described in section 501(c)(4), (5), or (6)? If “Yes,” answer lines 3b and 3c below.

Did the organization confirm that each supported organization qualified under section 501(c)(4), (5), or (6) and satisfied the public support tests under section 509(a)(2)? If “Yes,” describe in Part VI when and how the organization made the determination.

Did the organization ensure that all support to such organizations was used exclusively for section 170(c)(2)(B) purposes? If “Yes,” explain in Part VI what controls the organization put in place to ensure such use. Was any supported organization not organized in the United States (“foreign supported organization”)? If “Yes,” and if you checked box 12a or 12b in Part I, answer lines 4b and 4c below.

Did the organization have ultimate control and discretion in deciding whether to make grants to the foreign supported organization? If “Yes,” describe in Part VI how the organization had such control and discretion despite being controlled or supervised by or in connection with its supported organizations.

Did the organization support any foreign supported organization that does not have an IRS determination under sections 501(c)(3) and 509(a)(1) or (2)? If “Yes,” explain in Part VI what controls the organization used to ensure that all support to the foreign supported organization was used exclusively for section 170(c)(2)(B) purposes.

Did the organization add, substitute, or remove any supported organizations during the tax year? If “Yes,” answer lines 5b and 5c below (if applicable). Also, provide detail in Part VI, including (i) the names and EIN numbers of the supported organizations added, substituted, or removed; (ii) the reasons for each such action; (iii) the authority under the organization's organizing document authorizing such action; and (iv) how the action was accomplished (such as by amendment to the organizing document).

Type I or Type II only. Was any added or substituted supported organization part of a class already designated in the organization's organizing document?

Substitutions only. Was the substitution the result of an event beyond the organization's control?

Did the organization provide support (whether in the form of grants or the provision of services or facilities) to anyone other than (i) its supported organizations, (ii) individuals that are part of the charitable class benefited by one or more of its supported organizations, or (iii) other supporting organizations that also support or benefit one or more of the filing organization’s supported organizations? If “Yes,” provide detail in Part VI.

Did the organization provide a grant, loan, compensation, or other similar payment to a substantial contributor (as defined in section 4958(c)(3)(C)), a family member of a substantial contributor, or a 35% controlled entity with regard to a substantial contributor? If “Yes,” complete Part I of Schedule L (Form 990).

Did the organization make a loan to a disqualified person (as defined in section 4958) not described on line 7? If “Yes,” complete Part I of Schedule L (Form 990).

Was the organization controlled directly or indirectly at any time during the tax year by one or more disqualified persons, as defined in section 4946 (other than foundation managers and organizations described in section 509(a)(1) or (2))? If “Yes,” provide detail in Part VI.

Did one or more disqualified persons (as defined on line 9a) hold a controlling interest in any entity in which the supporting organization had an interest? If “Yes,” provide detail in Part VI.

Did a disqualified person (as defined on line 9a) have an ownership interest in, or derive any personal benefit from, assets in which the supporting organization also had an interest? If “Yes,” provide detail in Part VI. Was the organization subject to the excess business holdings rules of section 4943 because of section 4943(f) (regarding certain Type II supporting organizations, and all Type III non-functionally integrated supporting organizations)? If “Yes,” answer line 10b below.

Did the organization have any excess business holdings in the tax year? (Use Schedule C, Form 4720, to determine whether the organization had excess business holdings.)

11 c b a

Has the organization accepted a gift or contribution from any of the following persons?

A person who directly or indirectly controls, either alone or together with persons described on lines 11b and 11c below, the governing body of a supported organization?

A family member of a person described on line 11a above?

A 35% controlled entity of a person described on line 11a or 11b above? If “Yes” to line 11a, 11b, or 11c,

provide detail in Part VI.

Section B. Type I Supporting Organizations

Did the governing body, members of the governing body, officers acting in their official capacity, or membership of one or

more supported organizations have the power to regularly appoint or elect at least a majority of the organization’s officers,

effectively operated, supervised, or controlled the organization’s activities. If the organization had more than one supported directors, or trustees at all times during the tax year? If “No,” describe in Part VI how the supported organization(s)

organization, describe how the powers to appoint and/or remove officers, directors, or trustees were allocated among the

supported organizations and what conditions or restrictions, if any, applied to such powers during the tax year.

Did the organization operate for the benefit of any supported organization other than the supported organization(s) that operated, supervised, or controlled the supporting organization? If “Yes,” explain in Part VI how providing such benefit carried out the purposes of the supported organization(s) that operated, supervised, or controlled the supporting organization.

Section C. Type II Supporting Organizations

Were a majority of the organization’s directors or trustees during the tax year also a majority of the directors or trustees of each of the organization’s supported organization(s)? If “No,” describe in Part VI how control

or management of the supporting organization was vested in the same persons that controlled or managed the supported organization(s).

Section D. All Type III Supporting Organizations

Did the organization provide to each of its supported organizations, by the last day of the fifth month of the organization’s tax year, (i) a written notice describing the type and amount of support provided during the prior tax

year, (ii) a copy of the Form 990 that was most recently filed as of the date of notification, and (iii) copies of the organization’s governing documents in effect on the date of notification, to the extent not previously provided? Were any of the organization’s officers, directors, or trustees either (i) appointed or elected by the supported

By reason of the relationship described on line 2, above, did the organization’s supported organizations have

a significant voice in the organization’s investment policies and in directing the use of the organization’s

income or assets at all times during the tax year? If “Yes,” describe in Part VI the role the organization’s

how the organization maintained a close and continuous working relationship with the supported organization(s). organization(s) or (ii) serving on the governing body of a supported organization? If “No,” explain in Part VI supported organizations played in this regard.

Section E. Type III Functionally Integrated Supporting Organizations

1

Check the box next to the method that the organization used to satisfy the Integral Part Test during the year (see instructions).

The organization satisfied the Activities Test. Complete line 2 below.

The organization is the parent of each of its supported organizations. Complete line 3 below. The organization supported a governmental entity. Describe in Part VI how you supported a governmental entity (see instructions). Activities Test. Answer lines 2a and 2b below.

Did substantially all of the organization’s activities during the tax year directly further the exempt purposes of the supported organization(s) to which the organization was responsive? If “Yes,” then in Part VI identify those supported organizations and explain how these activities directly furthered their exempt purposes, how the organization was responsive to those supported organizations, and how the organization determined that these activities constituted substantially all of its activities.

Did the activities described on line 2a, above, constitute activities that, but for the organization’s involvement, one or more of the organization’s supported organization(s) would have been engaged in? If “Yes,” explain in Part VI the reasons for the organization’s position that its supported organization(s) would have engaged in these activities but for the organization’s involvement. Parent of Supported Organizations. Answer lines 3a and 3b below.

Did the organization have the power to regularly appoint or elect a majority of the officers, directors, or trustees of each of the supported organizations? If “Yes” or “No,” provide details in Part VI.

Did the organization exercise a substantial degree of direction over the policies, programs, and activities of each of its supported organizations? If “Yes,” describe in Part VI the role played by the organization in this regard.

Check here if the organization satisfied the Integral Part Test as a qualifying trust on Nov. 20, 1970 (explain in Part VI). See instructions. All other Type III non-functionally integrated supporting organizations must complete Sections A through E.

Net short-term capital gain

Recoveries of prior-year distributions

Other gross income (see instructions)

Add lines 1 through 3.

Depreciation and depletion

Portion of operating expenses paid or incurred for production or collection of gross income or for management, conservation, or maintenance of property held for production of income (see instructions)

Other expenses (see instructions)

Adjusted Net Income (subtract lines 5, 6, and 7 from line 4) Section B – Minimum Asset Amount

Aggregate fair market value of all non-exempt-use assets (see instructions for short tax year or assets held for part of year):

a

b

c

d

e

Average monthly value of securities

Average monthly cash balances

Fair market value of other non-exempt-use assets

Total (add lines 1a, 1b, and 1c)

Discount claimed for blockage or other factors

(explain in detail in Part VI):

Acquisition indebtedness applicable to non-exempt-use assets

Subtract line 2 from line 1d.

Cash deemed held for exempt use. Enter 0.015 of line 3 (for greater amount, see instructions).

Net value of non-exempt-use assets (subtract line 4 from line 3)

Multiply line 5 by 0.035.

Recoveries of prior-year distributions

Minimum Asset Amount (add line 7 to line 6)

C

1 Adjusted net income for prior year (from Section A, line 8, column A)

Enter 0.85 of line 1.

Minimum asset amount for prior year (from Section B, line 8, column A)

Enter greater of line 2 or line 3.

Income tax imposed in prior year

Distributable Amount. Subtract line 5 from line 4, unless subject to emergency temporary reduction (see instructions).

Check here if the current year is the organization's first as a non-functionally

(see instructions).

Amounts paid to supported organizations to accomplish exempt purposes

Amounts paid to perform activity that directly furthers exempt purposes of supported organizations, in excess of income from activity

Administrative expenses paid to accomplish exempt purposes of supported organizations

Amounts paid to acquire exempt-use assets

Qualified set-aside amounts (prior IRS approval required—provide details in Part VI)

Other distributions (describe in Part VI). See instructions.

Total annual distributions. Add lines 1 through 6.

Distributions to attentive supported organizations to which the organization is responsive (provide details in Part VI). See instructions.

Distributable amount for 2022 from Section C, line 6

Line 8 amount divided by line 9 amount

Distributable amount for 2023 from Section C, line 6

Underdistributions, if any, for years prior to 2023 (reasonable cause required–explain in Part VI). See

Excess distributions carryover, if any, to 2023

From 2018

From 2019

From 2020

From 2021

From 2022

Total of lines 3a through 3e

Applied to underdistributions of prior years

Applied to 2023 distributable amount

Carryover from 2018 not applied (see instructions)

Remainder. Subtract lines 3g, 3h, and 3i from line 3f.

Distributions for 2023 from Section D, line 7: $

Applied to underdistributions of prior years

Applied to 2023 distributable amount

Remainder. Subtract lines 4a and 4b from line 4.

Remaining underdistributions for years prior to 2023, if any. Subtract lines 3g and 4a from line 2. For result greater than zero, explain in Part VI. See instructions. Remaining underdistributions for 2023. Subtract lines 3h and 4b from line 1. For result greater than zero, explain in Part VI. See instructions.

Excess distributions carryover to 2024. Add lines 3j and 4c.

Breakdown of line 7:

Excess from 2019

Excess from 2020

Excess from 2021 instructions.

Excess from 2022

Excess from 2023

Supplemental Information. Provide the explanations required by Part II, line 10; Part II, line 17a or 17b; Part Part VI

III, line 12; Part IV, Section A, lines 1, 2, 3b, 3c, 4b, 4c, 5a, 6, 9a, 9b, 9c, 11a, 11b, and 11c; Part IV, Section

B, lines 1 and 2; Part IV, Section C, line 1; Part IV, Section D, lines 2 and 3; Part IV, Section E, lines 1c, 2a, 2b, 3a, and 3b; Part V, line 1; Part V, Section B, line 1e; Part V, Section D, lines 5, 6, and 8; and Part V, Section E, lines 2, 5, and 6. Also complete this part for any additional information. (See instructions.)

Schedule B (Form 990)

Department of the Treasury

Internal Revenue Service

Name of the organization

Organization type (check one):

Filers of: Section:

Form 990 or 990-EZ

X 3

Schedule of Contributors

Attach to Form 990, 990-EZ, or 990-PF.

501(c)( ) (enter number) organization

4947(a)(1) nonexempt charitable trust not treated as a private foundation

527 political organization

Form 990-PF

Employer identification number

501(c)(3) exempt private foundation

4947(a)(1) nonexempt charitable trust treated as a private foundation

501(c)(3) taxable private foundation

Check if your organization is covered by the General Rule or a Special Rule.

Note: Only a section 501(c)(7), (8), or (10) organization can check boxes for both the General Rule and a Special Rule. See

instructions.

General Rule

For an organization filing Form 990, 990-EZ, or 990-PF that received, during the year, contributions totaling $5,000 or more (in money or property) from any one contributor. Complete Parts I and II. See instructions for determining a

contributor's total contributions.

Special Rules

For an organization described in section 501(c)(3) filing Form 990 or 990-EZ that met the 331/3% support test of the regulations under sections 509(a)(1) and 170(b)(1)(A)(vi), that checked Schedule A (Form 990), Part II, line 13, 16a, or 16b, and that received from any one contributor, during the year, total contributions of the greater of (1) $5,000; or

For an organization described in section 501(c)(7), (8), or (10) filing Form 990 or 990-EZ that received from any one contributor, during the year, total contributions of more than $1,000 exclusively for religious, charitable, scientific, (2) 2% of the amount on (i) Form 990, Part VIII, line 1h; or (ii) Form 990-EZ, line 1. Complete Parts I and II.

literary, or educational purposes, or for the prevention of cruelty to children or animals. Complete Parts I (entering

“N/A” in column (b) instead of the contributor name and address), II, and III.

For an organization described in section 501(c)(7), (8), or (10) filing Form 990 or 990-EZ that received from any one contributor, during the year, contributions exclusively for religious, charitable, etc., purposes, but no such contributions totaled more than $1,000. If this box is checked, enter here the total contributions that were received during the year for an exclusively religious, charitable, etc., purpose. Don’t complete any of the parts unless the General Rule applies to this organization because it received nonexclusively religious, charitable, etc., contributions totaling $5,000 or more during the year $

Caution: An organization that isn't covered by the General Rule and/or the Special Rules doesn't file Schedule B (Form 990), but it

must answer “No” on Part IV, line 2, of its Form 990; or check the box on line H of its Form 990-EZ or on its Form 990-PF, Part I, line 2, to certify that it doesn't meet the filing requirements of Schedule B (Form 990).

For Paperwork Reduction Act Notice, see the instructions for Form 990, 990-EZ, or 990-PF.

(Complete Part II for noncash contributions.)

(Complete Part II for noncash contributions.)

(Complete Part II for noncash contributions.)

(Complete Part II for noncash contributions.)

Part II for noncash contributions.)

Part II for noncash contributions.)

(Complete Part II for noncash contributions.)

(Complete Part II for noncash contributions.)

(Complete Part II for noncash contributions.)

(Complete Part II for noncash contributions.)

(Complete Part II for noncash contributions.)

Part II for noncash contributions.)

(Complete Part II for noncash contributions.)

(Complete Part II for noncash contributions.)

(Complete Part II for noncash contributions.)

(Complete Part II for noncash contributions.)

(Complete Part II for noncash contributions.)

(Complete Part II for noncash contributions.)

Name of the organization

Supplemental Financial Statements

Complete if the organization answered “Yes” on Form 990,

Part IV, line 6, 7, 8, 9, 10, 11a, 11b, 11c, 11d, 11e, 11f, 12a, or 12b.

Attach to Form 990.

Go to www.irs.gov/Form990 for instructions and the latest information.

Part I Organizations Maintaining Donor Advised Funds or Other Similar Funds or Accounts (Form 990)

Complete if the organization answered “Yes” on Form 990, Part IV, line 6.

Total number at end of year

Aggregate value of contributions to (during year)

Aggregate value of grants from (during year)

Aggregate value at end of year

Did the organization inform all donors and donor advisors in writing that the assets held in donor advised funds are the organization’s property, subject to the organization’s exclusive legal control?

Did the organization inform all grantees, donors, and donor advisors in writing that grant funds can be used only for charitable purposes and not for the benefit of the donor or donor advisor, or for any other purpose

conferring impermissible private benefit?

Conservation Easements

Complete if the organization answered “Yes” on Form 990, Part IV, line 7.

Purpose(s) of conservation easements held by the organization (check all that apply).

Preservation of land for public use (for example, recreation or education)

Protection of natural habitat

Preservation of open space

2023

Preservation of a historically important land area

Preservation of a certified historic structure

Complete lines 2a through 2d if the organization held a qualified conservation contribution in the form of a conservation

easement on the last day of the tax year.

Total number of conservation easements

Total acreage restricted by conservation easements

Number of conservation easements on a certified historic structure included on line 2a

Number of conservation easements included on line 2c acquired after July 25, 2006, and not

on a historic structure listed in the National Register

3 Number of conservation easements modified, transferred, released, extinguished, or terminated by the organization during the

tax year

Number of states where property subject to conservation easement is located

5 Does the organization have a written policy regarding the periodic monitoring, inspection, handling of violations, and enforcement of the conservation easements it holds?

Staff and volunteer hours devoted to monitoring, inspecting, handling of violations, and enforcing conservation easements during the year

7 Amount of expenses incurred in monitoring, inspecting, handling of violations, and enforcing conservation easements during the year

Does each conservation easement reported on line 2d above satisfy the requirements of section 170(h)(4)(B)(i)

and section 170(h)(4)(B)(ii)?

9 In Part XIII, describe how the organization reports conservation easements in its revenue and expense statement and balance organization’s accounting for conservation easements.

sheet, and include, if applicable, the text of the footnote to the organization’s financial statements that describes the

Part III

Organizations Maintaining Collections of Art, Historical Treasures,

or

Complete if the organization answered “Yes” on Form 990, Part IV, line 8.

Other Similar Assets

If the organization elected, as permitted under FASB ASC 958, not to report in its revenue statement and balance sheet works

of art, historical treasures, or other similar assets held for public exhibition, education, or research in furtherance of public service, provide in Part XIII the text of the footnote to its financial statements that describes these items. If the organization elected, as permitted under FASB ASC 958, to report in its revenue statement and balance sheet works of art, historical treasures, or other similar assets held for public exhibition, education, or research in furtherance of public service, provide the following amounts relating to these items. (i) (ii)

Assets included in Form 990, Part X

If the organization received or held works of art, historical treasures, or other similar assets for financial gain, provide the

following amounts required to be reported under FASB ASC 958 relating to these items.

Revenue included on Form 990, Part VIII, line 1

Assets included in Form 990, Part X Held at

Schedule D (Form 990) 2023

Organizations Maintaining Collections of Art, Historical Treasures, or Other Similar Assets (continued)

Using the organization’s acquisition, accession, and other records, check any of the following that make significant use of its

a collection items (check all that apply).

Public exhibition

b c e Other d Loan or exchange program

Scholarly research Preservation for future generations

4 Provide a description of the organization’s collections and explain how they further the organization’s exempt purpose in Part

XIII.

During the year, did the organization solicit or receive donations of art, historical treasures, or other similar 5 assets to be sold to raise funds rather than to be maintained as part of the organization’s collection? No

Part IV Escrow and Custodial Arrangements

1a Is the organization an agent, trustee, custodian or other intermediary for contributions or other assets not

included on Form 990, Part X?

b If “Yes,” explain the arrangement in Part XIII and complete the following table.

c

Complete if the organization answered "Yes" on Form 990, Part IV, line 9, or reported an amount on Form Amount

Beginning balance

d Additions during the year

e

Distributions during the year

f Ending balance

2a

Did the organization include an amount on Form 990, Part X, line 21, for escrow or custodial account liability?

If “Yes,” explain the arrangement in Part XIII. Check here if the explanation has been provided on Part XIII

(a) Current year

1a c Net investment earnings, gains, and Grants or scholarships

e Other expenditures for facilities and Administrative expenses f g End of year balance

Provide the estimated percentage of the current year end balance (line 1g, column (a)) held as:

The percentages on lines 2a, 2b, and 2c should equal 100%.

Are there endowment funds not in the possession of the organization that are held and administered for the

organization by: (i) (ii) Unrelated organizations? Related organizations?

If “Yes” on line 3a(ii), are the related organizations listed as required on Schedule R?

4 Describe in Part XIII the intended uses of the organization’s endowment funds.

Complete if the organization answered “Yes” on Form 990, Part IV, line 11a. See Form 990, Part X, line 10. Complete if the organization answered “Yes” on Form 990, Part IV, line 10. 990, Part X, line 21.

255,362 5,268,505 1,491,050 3,777,455 4,032,817

Complete if the organization answered “Yes” on Form 990, Part IV, line 11b. See Form 990, Part X, line 12.

Complete if the organization answered “Yes” on Form 990, Part IV, line 11c. See Form 990, Part X, line 13.

Complete if the organization answered “Yes” on Form 990, Part IV, line 11d. See Form 990, Part X, line 15.

Complete if the organization answered "Yes" on Form 990, Part IV, line 11e or 11f. See Form 990, Part X, line 25.

1

Complete if the organization answered “Yes” on Form 990, Part IV, line 12a.

Total revenue, gains, and other support per audited financial statements

Amounts included on line 1 but not on Form 990, Part VIII, line 12:

Net unrealized gains (losses) on investments

Donated services and use of facilities

Recoveries of prior year grants

Other (Describe in Part XIII.)

Add lines 2a through 2d

Subtract line 2e from line 1

Amounts included on Form 990, Part VIII, line 12, but not on line 1:

Investment expenses not included on Form 990, Part VIII, line 7b

Other (Describe in Part XIII.)

Add lines 4a and 4b

Total revenue. Add lines 3 and 4c. (This must equal Form 990, Part I, line 12.)

Part XII

Complete if the organization answered “Yes” on Form 990, Part IV, line 12a.

Amounts included on line 1 but not on Form 990, Part IX, line 25:

Donated services and use of facilities

Other losses

Other (Describe in Part XIII.)

Add lines 2a through 2d

Subtract line 2e from line 1

Amounts included on Form 990, Part IX, line 25, but not on line 1:

Investment expenses not included on Form 990, Part VIII, line 7b

Other (Describe in Part XIII.)

Add lines 4a and 4b

Part XIII

Total expenses. Add lines 3 and 4c. (This must equal Form 990, Part I, line 18.) Supplemental Information

Provide the descriptions required for Part II, lines 3, 5, and 9; Part III, lines 1a and 4; Part IV, lines 1b and 2b; Part V, line 4; Part X, line 2; Part XI, lines 2d and 4b; and Part XII, lines 2d and 4b. Also complete this part to provide any additional information.

PART V, LINE 4 - INTENDED USES FOR ENDOWMENT FUNDS

TO SUPPORT THE ORGINZATION'S MISSION STATEMENT

Schedule D (Form 990) 2023

Name

organization entered more than $15,000 on Form 990-EZ, line 6a.

Attach to Form 990 or Form 990-EZ.

1 Indicate whether the organization raised funds through any of the following activities. Check all that apply.

Mail solicitations

Internet and email solicitations

Phone solicitations

In-person solicitations

Solicitation of non-government grants

Solicitation of government grants

Special fundraising events

2a Did the organization have a written or oral agreement with any individual (including officers, directors, trustees, or key employees listed in Form 990, Part VII) or entity in connection with professional fundraising services?

If “Yes,” list the 10 highest paid individuals or entities (fundraisers) pursuant to agreements under which the fundraiser is to be

No compensated at least $5,000 by the organization.

Fundraising Events. Complete if the organization answered “Yes” on Form 990, Part IV, line 18, or reported more

gross receipts greater than $5,000.

Does the organization conduct

nonmembers?

Is the organization a grantor, beneficiary or trustee of a trust, or a member of a partnership or other entity

formed to administer charitable gaming?

Indicate the percentage of gaming activity conducted in:

The organization’s facility

An outside facility

Enter the name and address of the person who prepares the organization’s gaming/special events books and records:

Name

Address

Does the organization have a contract with a third party from whom the organization receives gaming revenue?

If “Yes,” enter the amount of gaming revenue received by the organization amount of gaming revenue retained by the third party

If “Yes,” enter name and address of the third party:

Gaming manager information:

Gaming manager compensation

Description of services provided

Director/officer Employee Independent contractor

Mandatory distributions:

Is the organization required under state law to make charitable distributions from the gaming proceeds to retain the state gaming license?

Enter the amount of distributions required under state law to be distributed to other exempt organizations or spent in the organization’s own exempt activities during the tax year

Part IV Supplemental Information. Provide the explanations required by Part I, line 2b, columns (iii) and (v); and See instructions.

Part III, lines 9, 9b, 10b, 15b, 15c, 16, and 17b, as applicable. Also provide any additional information.

SCHEDULE O Supplemental Information to Form 990 or 990-EZ

Complete to provide information for responses to specific questions on

Form 990 or 990-EZ or to provide any additional information.

Attach to Form 990 or Form 990-EZ. Go to www.irs.gov/Form990 for the latest information.

FORM 990, PART VI, LINE 11B - ORGANIZATION'S PROCESS TO REVIEW FORM 990

FORM 990 HAS BEEN PRESENTED TO BOARD OF DIRECTORS AND PRESIDENT.

FORM 990, PART VI, LINE 12C - ENFORCEMENT OF CONFLICTS POLICY

BOARD OF DIRECTORS MONITORS AND ENFORCES POLICY ON CONFLICTS OF INTEREST.

FORM 990, PART VI, LINE 19 - GOVERNING DOCUMENTS DISCLOSURE EXPLANATION

DOCUMENTS ARE AVAILABLE UPON REQUEST.

FORM 990, PART XI, LINE 9 - OTHER CHANGES IN NET ASSETS EXPLANATION

(Including Information on Listed Property)

Attach to your tax return. Go to www.irs.gov/Form4562 for instructions and the latest information.

Maximum amount (see instructions)

Total cost of section 179 property placed in service (see instructions)

Threshold cost of section 179 property before reduction in limitation (see instructions)

Reduction in limitation. Subtract line 3 from line 2. If zero or less, enter -0-

Dollar limitation for tax year. Subtract line 4 from line 1. If zero or less, enter -0-. If married filing separately, see instructions

Listed property. Enter the amount from line 29

Total elected cost of section 179 property. Add amounts in column (c), lines 6 and 7

Tentative deduction. Enter the smaller of line 5 or line 8

Carryover of disallowed deduction from line 13 of your 2022 Form 4562

Business income limitation. Enter the smaller of business income (not less than zero) or line 5. See instructions

Section 179 expense deduction. Add lines 9 and 10, but don't enter more than line 11

Carryover of disallowed deduction to 2024. Add lines 9 and 10, less line 12

during the tax year. See instructions

Property subject to section 168(f)(1) election

Other depreciation (including ACRS)

MACRS deductions for assets placed in service in tax years beginning before 2023

If you are electing to group any assets placed in service during the tax year into one or more general asset accounts, check here

3-year property

5-year property

7-year property

10-year property

15-year property

20-year property

1,160,000 2,890,000 8,891 133,865

entertainment, recreation, or amusement.)

Note: For any vehicle for which you are using the standard mileage rate or deducting lease expense, complete only 24a,

24b, columns (a) through (c) of Section A, all of Section B, and Section C if applicable.

Do you have evidence to support the business/investment use claimed?

Special depreciation allowance for qualified listed property placed in service during the tax year and used more than 50% in a qualified business use. See instructions Property used more than 50% in a qualified business use:

Add amounts in column (h), lines 25 through 27. Enter here and on line 21, page 1

Add amounts in column (i), line 26. Enter here and on line 7, page 1

Complete this section for vehicles used by a sole proprietor, partner, or other “more than 5% owner,” or related person. If you provided vehicles

to your employees, first answer the questions in Section C to see if you meet an exception to completing this section for those vehicles.

Total business/investment miles driven during the year (don't include commuting miles)

Total commuting miles driven during the year

Total other personal (noncommuting)

miles driven

Total miles driven during the year. Add lines 30 through 32

Was the vehicle available for personal use during off-duty hours?

Was the vehicle used primarily by a more than 5% owner or related person?

Is another vehicle available for personal use?

Answer these questions to determine if you meet an exception to completing Section B for vehicles used by employees who aren't

Do you maintain a written policy statement that prohibits all personal use of vehicles, including commuting, by

your employees?

Do you maintain a written policy statement that prohibits personal use of vehicles, except commuting, by your employees? See the instructions for vehicles used by corporate officers, directors, or 1% or more owners

Do you treat all use of vehicles by employees as personal use?

Do you provide more than five vehicles to your employees, obtain information from your employees about the use of the vehicles, and retain the information received?

Do you meet the requirements concerning qualified automobile demonstration use? See instructions

Amortization of costs that begins during your 2023 tax year (see instructions):

Amortization of costs that began before your 2023 tax year

5/31/2024

5/31/2024

5/31/2024

AMT Asset Report

5/31/2024

5/31/2024 Form 990, Page 1

5/31/2024

Future Depreciation Report

Form 990, Page 1

Two Year Comparison Report

gifts, grants

Membership dues and assessments

Investment income

Net gain or (loss) from sale of assets other than inventory

Net income or (loss) from fundraising events

Net income or (loss) from gaming

Net gain or (loss) on sales of inventory

Other revenue

Add lines 1 through 11

Grants and similar amounts paid

Benefits paid to or for members

Salaries, other compensation, and employee benefits

Professional fundraising fees

Occupancy, rent, utilities, and maintenance

Depreciation and Depletion

Other expenses

Excess or (Deficit). Subtract line 22 from line 12

exempt revenue

unrelated revenue

assets

Net gain or (loss) from sale of assets other than inventory

income or (loss) from fundraising events

Net gain or (loss) on sales of inventory

Other revenue

Grants and similar amounts paid

Benefits paid to or for members

Salaries, other compensation, and employee benefits

Professional fundraising fees

Occupancy, rent, utilities, and maintenance

Depreciation and Depletion

Other expenses

Excess or (Deficit). Subtract line 22 from line 12

18,073 18,073 197,252 197,252 146,209 146,209 1,092,718 1,092,718 2,346,797 2,346,797 141,033 141,033 2,487,830 2,487,830 1,813,266 1,813,266 4,537,221 4,537,221 2,861,500 2,861,500 1,675,721 1,675,721

of

Membership dues

Fundraising revenue (income/loss) Gaming revenue (income/loss)

Other revenue

Total revenue

Grants and similar amounts paid

Benefits paid to or for members

Other compensation

Professional fees

Occupancy costs

Depreciation and depletion

Other expenses

Total expenses

Excess or (Deficit)

105,440 2,125,758 876,822 25,934 169,465 117,281 785,826 1,975,328 150,430 2,125,758 1,457,089 4,473,191 2,937,833 1,535,358 534,402 98,100 1,733,109 10,570 2,540 42,062 67,047 2,487,830 892,545 18,073 197,252 146,209 1,092,718 2,346,797 141,033 2,487,830 1,813,266 4,537,221 2,861,500 1,675,721 534,402 98,100 1,733,109 10,570 2,540 42,062 67,047 2,487,830 892,545 18,073 197,252 146,209 1,092,718 2,346,797 141,033 2,487,830 1,813,266 4,537,221 2,861,500 1,675,721

FYE: 5/31/2024

Form 990, Part IX, Line 24e - All Other Expenses

$0.00

$0.00

$0.00

Return to Table of Contents

Tourism Development Office

FY 2025-2026 Marketing Support Program

Application Packet checklist

Applicant Organization Name: Melbourne Main Street

ApplicantEvent Name: Candlelight Shopping, Food &Wine Fest, Botanical Festival

Yes No Comment

1. Completed application X

2. Copyof IRS Articlesof X N/A Incorporation- (if applicable)

3. Copyof IRS Determinationletter X - (ifapplicable)

4. Copyof SunBiz.org (if applicable) X

5. Copyof990 (ifapplicable) X

6. Copyof completed W-9 (March X 2024)

7. Income/Expenseworksheet X (requiredfor all applicants)

8. Copy of the Applicantchecklist X

Thisapplicationmeets the minimumrequirement of 5,001 out-of-county attendees (Cultural) or250 room nights (Sports).

Lll�_N_O__.

All documents havebeen submitted, reviewed and/or addressedin the comments.

FY 2025-2026 Marketing Support Program application

Response ID:64 Data

2.(untitled)

1. I have read and understand the policies/procedures within the FY 2025-2026 Marketing Support Program Criteria.

Signature of: Kimberly Meehan Agee

3.(untitled)

2. Which best describes your event/year-round programming? Cultural 4.(untitled)

3. ORGANIZATION INFORMATION

Name of organization hosting event/year-round programming Melbourne Main Street

Organization address 2004 Vernon Place, Melbourne, FL, USA

State Florida City Melbourne

Zip 32901

Primary contact name Kimberly Agee

Primary contact phone number 3218069144

Primary contact email kim@downtownmelbourne com

Secondary contact name Tara Weigner

Secondary contact phone number 330-990-0148

Secondary contact email events@downtownmelbourne.com

Organization website address www DowntownMelbourne com

5 (untitled)

4. Which best describes your organization? 501(C)(3)

6. (untitled)

5. What is your Federal Employee ID number? 59-1977660

7 (untitled)

6. Are you completing this application for an event or year-round programming? Event - single or multi-day festival, surfing contest, running race, Main Street organizations, etc 8. (untitled) 7. EVENT INFORMATION -

of event Candlelight Shopping

Event website address (if different from organization website) www DowntownMelbourne com

Event location Melbourne, FL

#1 Name

8. What is the first date of your event?

Name of event

Event website address (if different from organization website) www DowntownMelbourne com

Event location

(untitled)

16 What is the first date of your event? 04/11/2026

18. (untitled) 17. In total, how many days will your event be held?

(untitled)

18 What types of marketing do you plan to do for this event?

Billboards

Social hashtags

Social media (Facebook, Instagram, YouTube, etc.)

Other - Please be specific : Print Ads, Constant Contact Direct Email, Website Event Listings (various sites, including DowntownMelbourne com, Space Coast Office of Tourism, BCA, Destination Brevard, etc

20. (untitled)

What types of marketing do you plan to do for your year-round programming?

21. (untitled)

19. What are your social media handles?

Facebook : melbournemainstreet & downtownmelborunemelbournemainstreet

Instagram : melbournemainstreet

(untitled)

20 What hashtags do you currently use?

#melbournemainstreet, #downtownmelbourne

23. (untitled)

21. Upload a copy of your organization's IRS Determination letter.

3 MMS IRS Determination Ltr pdf

24 (untitled)

22 Upload a copy of your organization's 990 form.

5. MMS 2023 Tax Return Documents 990.pdf

25. (untitled)

Upload a copy of your organization's Articles of Incorporation.

26. (untitled)

23. If you are a Florida organization, please upload a copy of your SunBiz.com account associated with your organization.

4. MMS SunBiz 2024-2025.pdf

27. (untitled)

24. Upload your completed W-9 form.

6 MMS W9 2024 Form pdf

28 (untitled)

25 Upload your completed Event Income/Expense report.

7. MMS Income Expense Report FY25-26.pdf

29. (untitled)

26. Upload your completed Checklist.

8 MMS MSP Checklist 2025-2026 pdf

27. ATTESTATION

I attest that all information in this questionnaire is true and correct. I further attest that will comply with the requirements set forth, if awarded support.

Signature of: Kimberly Meehan Agee

31.Thank You!

New Send Email Jun 06, 2025 15:14:22 Success: Email Sent to: Deborah.Webster@VisitSpaceCoast.com; Terrence.Parks@VisitSpaceCoast.com

INTERNAL REVENUE SERVICE

P. 0. BOX 2508

CINCINNATI, OH 45201

Date: MAY 2 1 2004

MELBOURNE MAIN STREET INC

1908 MUNICIPAL LN

MELBOURNE, FL 32902-0754

DEPARTMENT OF THE TREASURY

Employer Identification Number: 34-1977660

DLN: 17053118051044

Contact Person: ZENIA LUK

Contact Telephone Number: (877) 829-5500

Accounting Period Ending: December 31

ID# 31522

Foundation Status Classification: 509(a)(1)

Advance Ruling Period Begins: Octobe:::- 31, 2003

Advance Ruling Period Ends: December 31, 2007

Addendum Applies: No

Dear Applicant:

Based on information you supplied, and assuming your operations will be as stated in your application for recognition of exemption, we have determined you are exempt from federal income tax under section 50l(a) of the Internal Revenue Code as an organization described in section 50l(c)(3).

Because you are a newly created organization, we are not now making a final determination of your foundation status under section 509(a) of the Code. However, we have determined that you can reasonably expect to be a publicly supported organization described in sections 509(a)(1) and 170(b)(1)(A)(vi)

Accordingly, during an advance ruling period you will be treated as a publicly supported organizati�n, and not as a private foundation. This advance ruling period begins and ends on the dates shown above.

Within 90 days after the end of your advance ruling period, you must send us the information needed to determine whether you have met the requirements of the applicable support test during the advance ruling period. If you establish that you :1ave been a publicly st:.pported orgar,ization, we will classify you as a section 509(a)(1) or 509(a)(2) organization as long as you continue to meet the requirements of the applicable support test. If you do not meet the public support requirements during the advance ruling period, we will classify you as a private foundation for future periods. Also, if we classify you as a private foundation, we will treat you as a private foundation from your beginning date for purposes of section 507(d) and 4940.

Grantors and contributors may rely on our determination that you are not a private foundation until 90 days after the end of your advance ruling period. If you send us the required information within the 90 days, grantors and contributors may continue to rely on the advance determination until we make Letter 1045 (DO/CG)

DepartmentofState / DivisionofCorporations / SearchRecords / SearchbyEntityName /

DetailbyEntityName

FloridaNotForProfitCorporation MELBOURNEMAINSTREET,INC

DocumentNumber

FEI/EINNumber

DateFiled

State

Status

FilingInformation N03000009650 34-1977660 10/31/2003 FL ACTIVE

PrincipalAddress

2004VernonPlace Melbourne,FL32901

Changed:02/20/2018

MailingAddress POBOX754

Melbourne,FL32902

Changed:01/20/2021

RegisteredAgentName&Address

Agee,Kimberly 2004VernonPlace Melbourne,FL32901

NameChanged:03/11/2024

AddressChanged:04/25/2019

Officer/DirectorDetail

Name&Address

TitleViceChair

McGuire,Alexis POBOX754 Melbourne,FL32902

TitlePastChair

Runte,Corey POBOX754

Melbourne,FL32902

TitleDirector

Cable,David POBOX754

Melbourne,FL32902

TitleImmediatePastChair

Luer,Albert POBOX754

Melbourne,FL32902

TitleBoardChair

Hartford,Cassandra POBOX754

Melbourne,FL32902

TitleDirector

Williams,Jason POBOX754

Melbourne,FL32902

TitleDirector

Frazier,Jr,John POBOX754

Melbourne,FL32902

TitleDirector

Trauger,Erin POBox754

Melbourne,FL32902

TitleTreasurer

Milton,Lory POBOX754

Melbourne,FL32902

TitleSecretary

Williams,Jordan POBox754

Melbourne,FL32902

TitleDirector

Butler,Kat POBox754

Melbourne,FL32902

TitleDirector

Flores,Matthew POBox754

Melbourne,FL32902

TitleDirector

Hemmenway,Don POBox754

Melbourne,FL32902

TitleDirector

Hill,Mike POBox754

Melbourne,FL32902

TitleDirectorEx-Officio

Agee,Kimberly 2004VernonPlace

Melbourne,FL32901

AnnualReports

ReportYear FiledDate 2023 01/09/2023 2024 03/11/2024 2025 02/07/2025

DocumentImages

02/07/2025--ANNUALREPORT ViewimageinPDFformat

03/11/2024--ANNUALREPORT ViewimageinPDFformat

01/09/2023--ANNUALREPORT ViewimageinPDFformat

04/29/2022--ANNUALREPORT ViewimageinPDFformat

01/20/2021--ANNUALREPORT ViewimageinPDFformat

06/02/2020--ANNUALREPORT ViewimageinPDFformat

04/25/2019--ANNUALREPORT ViewimageinPDFformat

02/20/2018--ANNUALREPORT ViewimageinPDFformat

02/08/2017--ANNUALREPORT ViewimageinPDFformat

03/28/2016--ANNUALREPORT ViewimageinPDFformat

04/09/2015--ANNUALREPORT ViewimageinPDFformat

04/23/2014--ANNUALREPORT ViewimageinPDFformat

04/22/2013--ANNUALREPORT ViewimageinPDFformat

04/05/2012--ANNUALREPORT ViewimageinPDFformat

01/13/2011--ANNUALREPORT ViewimageinPDFformat

04/02/2010--ANNUALREPORT ViewimageinPDFformat

04/21/2009--ANNUALREPORT ViewimageinPDFformat

07/23/2008--ANNUALREPORT ViewimageinPDFformat

08/24/2007--ANNUALREPORT ViewimageinPDFformat

04/28/2006--ANNUALREPORT ViewimageinPDFformat

07/25/2005--ANNUALREPORT ViewimageinPDFformat

04/13/2004--ANNUALREPORT ViewimageinPDFformat

10/31/2003--DomesticNon-Profit ViewimageinPDFformat

Under section 501(c), 527, or 4947(a)(1) of the Internal Revenue Code (except private foundations) Do not enter social security numbers on this form as it may be made public.

Address change Doing business as

Name change Number and street (or P.O. box if mail is not delivered to street address)

Initial return

Final return/terminated City or town, state or province,

Amended

Briefly describe the organization's mission or most significant activities:

Check this box if the organization discontinued its operations or disposed of more than 25% of its net assets.

Number of voting members of the governing body (Part VI, line 1a)

Number of independent voting members of the governing body (Part VI, line 1b)

Total number of individuals employed in calendar year 2023 (Part V, line 2a)

Total number of volunteers (estimate if necessary)

Total unrelated business revenue from Part VIII, column (C), line 12

Net unrelated business taxable income from Form 990-T, Part I, line 11

Contributions and grants (Part VIII, line 1h)

Program service revenue (Part VIII, line 2g)

Investment income (Part VIII, column (A), lines 3, 4, and 7d)

Other revenue (Part VIII, column (A), lines 5, 6d, 8c, 9c, 10c, and 11e)

Total revenue - add lines 8 through 11 (must equal Part VIII, column (A), line 12)

Grants and similar amounts paid (Part IX, column (A), lines 1-3)

Benefits paid to or for members (Part IX, column (A), line 4)

Salaries, other compensation, employee benefits (Part IX, column (A), lines 5-10)

Professional fundraising fees (Part IX, column (A), line 11e)

Total fundraising expenses (Part IX, column (D), line 25)

Other expenses (Part IX, column (A), lines 11a-11d, 11f-24e)

Total expenses. Add lines 13-17 (must equal Part IX, column (A), line 25)

Revenue less expenses. Subtract line 18 from line 12

Total assets (Part X, line 16)

Total liabilities (Part X, line 26)

Net assets or fund balances. Subtract line 21 from line 20

MAIN

Check if Schedule O contains a response or note to any line in this Part III

Briefly describe the organization's mission:

Did the organization undertake any significant program services during the year which were not listed on the prior Form 990 or 990-EZ?

If "Yes," describe these new services on Schedule O.

Did the organization cease conducting, or make significant changes in how it conducts, any program services?

If "Yes," describe these changes on Schedule O.

Describe the organization's program service accomplishments for each of its three largest program services, as measured by expenses. Section 501(c)(3) and 501(c)(4) organizations are required to report the amount of grants and allocations to others, the total expenses, and revenue, if any, for each program service reported.

261,911

294,366 MELBOURNE MAIN STREET IS A 501(C)3 NON-PROFIT THAT WORKS TO BUILD PUBLIC AND PRIVATE PARTNERSHIPS TO REVITALIZE HISTORIC DOWNTOWN MELBOURNE, AN ACCREDITED MAIN STREET, PART OF THE NATIONAL TRUST FOR HISTORIC PRESERVATION. OUR MISSION IS TO FUEL ECONOMIC GROWTH BY CAPITALIZING ON THE COMMUNITY'S ASSETS AND PAYING PARTICULAR ATTENTION TO THE PHYSICAL, CULTURAL, AND SOCIAL IDENTITY OF DOWNTOWN MELBOURNE.

(Code: ) (Expenses $ including grants of $ ) (Revenue $ ) (Code: ) (Expenses $ including grants of $ ) (Revenue $ )

(Code: ) (Expenses $ including grants of $ ) (Revenue $ )

Other program services (Describe on Schedule O.) (Expenses $ including grants of $ ) (Revenue $ ) Total program service expenses

261,911

Is the organization described in section 501(c)(3) or 4947(a)(1) (other than a private foundation)? If "Yes," complete Schedule A

Is the organization required to complete Schedule B, Schedule of Contributors? See instructions

Did the organization engage in direct or indirect political campaign activities on behalf of or in opposition to candidates for public office? If "Yes," complete Schedule C, Part I

Section 501(c)(3) organizations. Did the organization engage in lobbying activities, or have a section 501(h) election in effect during the tax year? If "Yes," complete Schedule C, Part II

Is the organization a section 501(c)(4), 501(c)(5), or 501(c)(6) organization that receives membership dues, assessments, or similar amounts as defined in Rev. Proc. 98-19? If "Yes," complete Schedule C, Part III

Did the organization maintain any donor advised funds or any similar funds or accounts for which donors have the right to provide advice on the distribution or investment of amounts in such funds or accounts? If "Yes," complete Schedule D, Part I

Did the organization receive or hold a conservation easement, including easements to preserve open space, the environment, historic land areas, or historic structures? If "Yes," complete Schedule D, Part II

Did the organization maintain collections of works of art, historical treasures, or other similar assets? If "Yes," complete Schedule D, Part III

Did the organization report an amount in Part X, line 21, for escrow or custodial account liability, serve as a custodian for amounts not listed in Part X; or provide credit counseling, debt management, credit repair, or debt negotiation services? If "Yes," complete Schedule D, Part IV

Did the organization, directly or through a related organization, hold assets in donor-restricted endowments or in quasi-endowments? If "Yes," complete Schedule D, Part V

If the organization's answer to any of the following questions is "Yes," then complete Schedule D, Parts VI, VII, VIII, IX, or X, as applicable.

Did the organization report an amount for land, buildings, and equipment in Part X, line 10? If "Yes," complete Schedule D, Part VI

Did the organization report an amount for investments - other securities in Part X, line 12, that is 5% or more of its total assets reported in Part X, line 16? If "Yes," complete Schedule D, Part VII

Did the organization report an amount for investments - program related in Part X, line 13, that is 5% or more of its total assets reported in Part X, line 16? If "Yes," complete Schedule D, Part VIII

Did the organization report an amount for other assets in Part X, line 15, that is 5% or more of its total assets reported in Part X, line 16? If "Yes," complete Schedule D, Part IX

Did the organization report an amount for other liabilities in Part X, line 25? If "Yes," complete Schedule D, Part X

Did the organization's separate or consolidated financial statements for the tax year include a footnote that addresses the organization's liability for uncertain tax positions under FIN 48 (ASC 740)? If "Yes," complete Schedule D, Part X

Did the organization obtain separate, independent audited financial statements for the tax year? If "Yes," complete Schedule D, Parts XI and XII

Was the organization included in consolidated, independent audited financial statements for the tax year? If "Yes," and if the organization answered "No" to line 12a, then completing Schedule D, Parts XI and XII is optional

Is the organization a school described in section 170(b)(1)(A)(ii)? If "Yes," complete Schedule E

Did the organization maintain an office, employees, or agents outside of the United States?

Did the organization have aggregate revenues or expenses of more than $10,000 from grantmaking, fundraising, business, investment, and program service activities outside the United States, or aggregate foreign investments valued at $100,000 or more? If "Yes," complete Schedule F, Parts I and IV

Did the organization report on Part IX, column (A), line 3, more than $5,000 of grants or other assistance to or for any foreign organization? If "Yes," complete Schedule F, Parts II and IV

Did the organization report on Part IX, column (A), line 3, more than $5,000 of aggregate grants or other assistance to or for foreign individuals? If "Yes," complete Schedule F, Parts III and IV

Did the organization report a total of more than $15,000 of expenses for professional fundraising services on Part IX, column (A), lines 6 and 11e? If "Yes," complete Schedule G, Part I. See instructions

Did the organization report more than $15,000 total of fundraising event gross income and contributions on Part VIII, lines 1c and 8a? If "Yes," complete Schedule G, Part II

Did the organization report more than $15,000 of gross income from gaming activities on Part VIII, line 9a? If "Yes," complete Schedule G, Part III

Did the organization operate one or more hospital facilities? If "Yes," complete Schedule H If "Yes" to line 20a, did the organization attach a copy of its audited financial statements to this return?

Did the organization report more than $5,000 of grants or other assistance to any domestic organization or domestic government on Part IX, column (A), line 1? If "Yes," complete Schedule I, Parts I and II

Did the organization report more than $5,000 of grants or other assistance to or for domestic individuals on Part IX, column (A), line 2? If "Yes," complete Schedule I, Parts I and III

Did the organization answer "Yes" to Part VII, Section A, line 3, 4, or 5, about compensation of the organization's current and former officers, directors, trustees, key employees, and highest compensated employees? If "Yes," complete Schedule J

Did the organization have a tax-exempt bond issue with an outstanding principal amount of more than $100,000 as of the last day of the year, that was issued after December 31, 2002? If "Yes," answer lines 24b through 24d and complete Schedule K. If "No," go to line 25a

Did the organization invest any proceeds of tax-exempt bonds beyond a temporary period exception?

Did the organization maintain an escrow account other than a refunding escrow at any time during the year to defease any tax-exempt bonds?

Did the organization act as an "on behalf of" issuer for bonds outstanding at any time during the year?

Section 501(c)(3), 501(c)(4), and 501(c)(29) organizations. Did the organization engage in an excess benefit transaction with a disqualified person during the year? If "Yes," complete Schedule L, Part I

Is the organization aware that it engaged in an excess benefit transaction with a disqualified person in a prior year, and that the transaction has not been reported on any of the organization's prior Forms 990 or 990-EZ? If "Yes," complete Schedule L, Part I

Did the organization report any amount on Part X, line 5 or 22, for receivables from or payables to any current or former officer, director, trustee, key employee, creator or founder, substantial contributor, or 35% controlled entity or family member of any of these persons? If "Yes," complete Schedule L, Part II

Did the organization provide a grant or other assistance to any current or former officer, director, trustee, key employee, creator or founder, substantial contributor or employee thereof, a grant selection committee member, or to a 35% controlled entity (including an employee thereof) or family member of any of these persons? If “Yes,” complete Schedule L, Part III

Was the organization a party to a business transaction with one of the following parties (See the Schedule L, Part IV, instructions for applicable filing thresholds, conditions, and exceptions).

A current or former officer, director, trustee, key employee, creator or founder, or substantial contributor? If “Yes,” complete Schedule L, Part IV

A family member of any individual described in line 28a? If “Yes,” complete Schedule L, Part IV

A 35% controlled entity of one or more individuals and/or organizations described in line 28a or 28b? If “Yes,” complete Schedule L, Part IV

Did the organization receive more than $25,000 in noncash contributions? If "Yes," complete Schedule M

Did the organization receive contributions of art, historical treasures, or other similar assets, or qualified conservation contributions? If "Yes," complete Schedule M

Did the organization liquidate, terminate, or dissolve and cease operations? If "Yes," complete Schedule N, Part I

Did the organization sell, exchange, dispose of, or transfer more than 25% of its net assets? If "Yes," complete Schedule N, Part II

Did the organization own 100% of an entity disregarded as separate from the organization under Regulations sections 301.7701-2 and 301.7701-3? If "Yes," complete Schedule R, Part I

Was the organization related to any tax-exempt or taxable entity? If "Yes," complete Schedule R, Part II, III, or IV, and Part V, line 1

Did the organization have a controlled entity within the meaning of section 512(b)(13)?

If "Yes" to line 35a, did the organization receive any payment from or engage in any transaction with a controlled entity within the meaning of section 512(b)(13)? If "Yes," complete Schedule R, Part V, line 2

Section 501(c)(3) organizations. Did the organization make any transfers to an exempt non-charitable related organization? If "Yes," complete Schedule R, Part V, line 2

Did the organization conduct more than 5% of its activities through an entity that is not a related organization and that is treated as a partnership for federal income tax purposes? If "Yes," complete Schedule R, Part VI

Did the organization complete Schedule O and provide explanations on Schedule O for Part VI, lines 11b and 19?

Note: All Form 990 filers are required to complete Schedule O

Enter the number reported in box 3 of Form 1096. Enter -0- if not applicable

Enter the number of Forms W-2G included in line 1a. Enter -0- if not applicable

Did the organization comply with backup withholding rules for reportable payments to vendors and reportable gaming (gambling) winnings to prize winners?

Enter the number of employees reported on Form W-3, Transmittal of Wage and Tax Statements, filed for the calendar year ending with or within the year covered by this return

If at least one is reported on line 2a, did the organization file all required federal employment tax returns?

Did the organization have unrelated business gross income of $1,000 or more during the year?

If "Yes," has it filed a Form 990-T for this year? If "No" to line 3b, provide an explanation on Schedule O

At any time during the calendar year, did the organization have an interest in, or a signature or other authority over, a financial account in a foreign country (such as a bank account, securities account, or other financial account)?

If "Yes," enter the name of the foreign country

See instructions for filing requirements for FinCEN Form 114, Report of Foreign Bank and Financial Accounts (FBAR).

Was the organization a party to a prohibited tax shelter transaction at any time during the tax year?

Did any taxable party notify the organization that it was or is a party to a prohibited tax shelter transaction?

If "Yes" to line 5a or 5b, did the organization file Form 8886-T?

Does the organization have annual gross receipts that are normally greater than $100,000, and did the organization solicit any contributions that were not tax deductible as charitable contributions?

If "Yes," did the organization include with every solicitation an express statement that such contributions or gifts were not tax deductible?

Did the organization receive a payment in excess of $75 made partly as a contribution and partly for goods and services provided to the payor?

If "Yes," did the organization notify the donor of the value of the goods or services provided?

Did the organization sell, exchange, or otherwise dispose of tangible personal property for which it was required to file Form 8282?

If "Yes," indicate the number of Forms 8282 filed during the year

Did the organization receive any funds, directly or indirectly, to pay premiums on a personal benefit contract?

Did the organization, during the year, pay premiums, directly or indirectly, on a personal benefit contract?

If the organization received a contribution of qualified intellectual property, did the organization file Form 8899 as required?

If the organization received a contribution of cars, boats, airplanes, or other vehicles, did the organization file a Form 1098-C?

Sponsoring organizations maintaining donor advised funds. Did a donor advised fund maintained by the sponsoring organization have excess business holdings at any time during the year?

Did the sponsoring organization make any taxable distributions under section 4966?

Did the sponsoring organization make a distribution to a donor, donor advisor, or related person?

Section 501(c)(7) organizations. Enter:

Initiation fees and capital contributions included on Part VIII, line 12

Gross receipts, included on Form 990, Part VIII, line 12, for public use of club facilities

Section 501(c)(12) organizations. Enter:

Gross income from members or shareholders

Gross income from other sources. (Do not net amounts due or paid to other sources against amounts due or received from them.)

Section 4947(a)(1) non-exempt charitable trusts. Is the organization filing Form 990 in lieu of Form 1041?

If "Yes," enter the amount of tax-exempt interest received or accrued during the year

Is the organization licensed to issue qualified health plans in more than one state?

Note: See the instructions for additional information the organization must report on Schedule O. Enter the amount of reserves the organization is required to maintain by the states in which the organization is licensed to issue qualified health plans

Enter the amount of reserves on hand

Did the organization receive any payments for indoor tanning services during the tax year?

If "Yes," has it filed a Form 720 to report these payments? If "No," provide an explanation on Schedule O

Is the organization subject to the section 4960 tax on payment(s) of more than $1,000,000 in remuneration or excess parachute payment(s) during the year?

If "Yes," see the instructions and file Form 4720, Schedule N.

Is the organization an educational institution subject to the section 4968 excise tax on net investment income?

If "Yes," complete Form 4720, Schedule O.

Section 501(c)(21) organizations. Did the trust, or any disqualified or other person, engage in any activities that would result in the imposition of an excise tax under section 4951, 4952, or 4953?

If "Yes," complete Form 6069.

For each "Yes" response to lines 2 through 7b below, and for a "No" response to line 8a, 8b, or 10b below, describe the circumstances, processes, or changes on Schedule O. See instructions.

Check if Schedule O contains a response or note to any line in this Part VI

Section A. Governing Body and Management

Enter the number of voting members of the governing body at the end of the tax year

If there are material differences in voting rights among members of the governing body, or if the governing body delegated broad authority to an executive committee or similar committee, explain on Schedule O.

Enter the number of voting members included in line 1a, above, who are independent

Did any officer, director, trustee, or key employee have a family relationship or a business relationship with any other officer, director, trustee, or key employee?

Did the organization delegate control over management duties customarily performed by or under the direct supervision of officers, directors, trustees, or key employees to a management company or other person?

Did the organization make any significant changes to its governing documents since the prior Form 990 was filed?

Did the organization become aware during the year of a significant diversion of the organization's assets?

Did the organization have members or stockholders?

Did the organization have members, stockholders, or other persons who had the power to elect or appoint one or more members of the governing body?

Are any governance decisions of the organization reserved to (or subject to approval by) members, stockholders, or persons other than the governing body?

Did the organization contemporaneously document the meetings held or written actions undertaken during the year by the following:

The governing body?

Each committee with authority to act on behalf of the governing body?

Is there any officer, director, trustee, or key employee listed in Part VII, Section A, who cannot be reached at the organization's mailing address? If "Yes," provide the names and addresses on Schedule O

B.

(This Section B requests information about policies not required by the Internal Revenue Code.)

Did the organization have local chapters, branches, or affiliates?

If "Yes," did the organization have written policies and procedures governing the activities of such chapters, affiliates, and branches to ensure their operations are consistent with the organization's exempt purposes?

Has the organization provided a complete copy of this Form 990 to all members of its governing body before filing the form?

Describe on Schedule O the process, if any, used by the organization to review this Form 990.

Did the organization have a written conflict of interest policy? If "No," go to line 13

Were officers, directors, or trustees, and key employees required to disclose annually interests that could give rise to conflicts?

Did the organization regularly and consistently monitor and enforce compliance with the policy? If "Yes," describe on Schedule O how this was done

Did the organization have a written whistleblower policy?

Did the organization have a written document retention and destruction policy?

Did the process for determining compensation of the following persons include a review and approval by independent persons, comparability data, and contemporaneous substantiation of the deliberation and decision?

The organization's CEO, Executive Director, or top management official

Other officers or key employees of the organization

If "Yes" to line 15a or 15b, describe the process on Schedule O. See instructions.

Did the organization invest in, contribute assets to, or participate in a joint venture or similar arrangement with a taxable entity during the year?

If "Yes," did the organization follow a written policy or procedure requiring the organization to evaluate its participation in joint venture arrangements under applicable federal tax law, and take steps to safeguard the organization's exempt status with respect to such arrangements?

C.

List the states with which a copy of this Form 990 is required to be filed

Section 6104 requires an organization to make its Forms 1023 (1024 or 1024-A, if applicable), 990, and 990-T (section 501(c) (3)s only) available for public inspection. Indicate how you made these available. Check all that apply.

Own website Another's website Upon request Other (explain on Schedule O)

Describe on Schedule O whether (and if so, how) the organization made its governing documents, conflict of interest policy, and financial statements available to the public during the tax year.

State the name, address, and telephone number of the person who possesses the organization's books and records.

Section A. Officers, Directors, Trustees, Key Employees, and Highest Compensated Employees

1a Complete this table for all persons required to be listed. Report compensation for the calendar year ending with or within the organization's tax year.

• List all of the organization's current officers, directors, trustees (whether individuals or organizations), regardless of amount of compensation. Enter -0- in columns (D), (E), and (F) if no compensation was paid.

• List all of the organization's current key employees, if any. See the instructions for definition of "key employee."

• List the organization's five current highest compensated employees (other than an officer, director, trustee, or key employee) who received reportable compensation (box 5 of Form W-2, box 6 of Form 1099-MISC, and/or box 1 of Form 1099-NEC) of more than $100,000 from the organization and any related organizations.

• List all of the organization's former officers, key employees, and highest compensated employees who received more than $100,000 of reportable compensation from the organization and any related organizations.

• List all of the organization's former directors or trustees that received, in the capacity as a former director or trustee of the organization, more than $10,000 of reportable compensation from the organization and any related organizations.

See instructions for the order in which to list the persons above.

Check this box if neither the organization nor any related organization compensated any current officer, director, or trustee

(list any

organizations

from continuation sheets to Part VII, Section A

(add lines 1b and 1c)

Total number of individuals (including but not limited to those listed above) who received more than $100,000 of reportable compensation from the organization

Did the organization list any former officer, director, trustee, key employee, or highest compensated employee on line 1a? If "Yes," complete Schedule J for such individual For any individual listed on line 1a, is the sum of reportable compensation and other compensation from the organization and related organizations greater than $150,000? If "Yes," complete Schedule J for such individual

Did any person listed on line 1a receive or accrue compensation from any unrelated organization or individual for services rendered to the organization? If "Yes," complete Schedule J for such person

Complete this table for your five highest compensated independent contractors that received more than $100,000 of compensation from the organization. Report compensation for the calendar year ending with or within the organization's tax year.

Total number of independent contractors (including but not limited to those listed above) who received more than $100,000 of compensation from the organization

Part VIII Statement of Revenue

Check if Schedule O contains a response or note to any line in this Part VIII

Related organizations

Government grants (contributions)

All other contributions, gifts, grants, and similar amounts not included above

Noncash contributions included in lines 1a-1f

Total. Add lines 1a-1f

All other program service revenue

Total. Add lines 2a-2f Investment income (including dividends, interest, and other similar amounts)

Income from investment of tax-exempt bond

Gross rents

Less: rental expenses

Rental income or (loss)

Net rental income or (loss)

Gross amount from sales of assets other than inventory

Less: cost or other basis and sales expenses

Gain or (loss)

Net gain or (loss)

Gross income from fundraising events (not including $ of contributions reported on line 1c). See Part IV, line 18

Less: direct expenses

Net income or (loss) from fundraising events

Gross income from gaming activities. See Part IV, line 19

Less: direct expenses

Net income or (loss) from gaming activities

Gross sales of inventory, less returns and allowances

Less: cost of goods sold

Net income or (loss) from sales of inventory

All other revenue

Total. Add lines 11a-11d

Total revenue. See instructions

Section 501(c)(3) and 501(c)(4) organizations must complete all columns. All other organizations must complete column (A).

Check if Schedule O contains a response or note to any line in this Part IX

Do not include amounts reported on lines 6b, 7b, 8b, 9b, and 10b of Part VIII.

Grants and other assistance to domestic organizations and domestic governments. See Part IV, line 21

Grants and other assistance to domestic individuals. See Part IV, line 22

Grants and other assistance to foreign organizations, foreign governments, and foreign individuals. See Part IV, lines 15 and 16

Benefits paid to or for members

Compensation of current officers, directors, trustees, and key employees

Compensation not included above to disqualified persons (as defined under section 4958(f)(1)) and persons described in section 4958(c)(3)(B)

Other salaries and wages

Pension plan accruals and contributions (include section 401(k) and 403(b) employer contributions)

Other employee benefits

Payroll taxes

Fees for services (nonemployees):

Management

Legal

Accounting

Lobbying

Professional fundraising services. See Part IV, line 17

Investment management fees

Other. (If line 11g amount exceeds 10% of line 25, column (A), amount, list line 11g expenses on Schedule O.)

Advertising and promotion

Office expenses

Information technology

Royalties

Occupancy

Travel

Payments of travel or entertainment expenses for any federal, state, or local public officials

Conferences, conventions, and meetings

Interest

Payments to affiliates

Depreciation, depletion, and amortization

Insurance

Other expenses. Itemize expenses not covered above (List miscellaneous expenses on line 24e. If line 24e amount exceeds 10% of line 25, column (A), amount, list line 24e expenses on Schedule O.)

All other expenses

Total functional expenses. Add lines 1 through 24e

Joint costs. Complete this line only if the organization reported in column (B) joint costs from a combined educational campaign and fundraising solicitation. Check hereif following SOP 98-2 (ASC 958-720)

- non-interest-bearing

Savings and temporary

Pledges and grants receivable, net

Accounts receivable, net

Loans and other receivables from any current or former officer, director, trustee, key employee, creator or founder, substantial contributor, or 35%

controlled entity or family member of any of these persons

Loans and other receivables from other disqualified persons (as defined under section 4958(f)(1)), and persons described in section 4958(c)(3)(B)

Notes and loans receivable, net

Inventories for sale or use

Prepaid expenses and deferred charges

Land, buildings, and equipment: cost or other basis. Complete Part VI of Schedule D

Less: accumulated depreciation

Investments - publicly traded securities

Investments - other securities. See Part IV, line 11

Investments - program-related. See Part IV, line 11

Intangible assets

Other assets. See Part IV, line 11

Total assets. Add lines 1 through 15 (must equal line 33)

Accounts payable and accrued expenses

Grants payable

Deferred revenue

Tax-exempt bond liabilities

Escrow or custodial account liability. Complete Part IV of Schedule D

Loans and other payables to any current or former officer, director, trustee, key employee, creator or founder, substantial contributor, or 35% controlled entity or family member of any of these persons

Secured mortgages and notes payable to unrelated third parties

Unsecured notes and loans payable to unrelated third parties

Other liabilities (including federal income tax, payables to related third parties, and other liabilities not included on lines 17-24). Complete Part X of Schedule D

Total liabilities. Add lines 17 through 25

Net assets without donor restrictions

Net assets with donor restrictions

Capital stock or trust principal, or current funds

Paid-in or capital surplus, or land, building, or equipment fund

1,055 1,055 84,609 104,953 330 10,720 9,215 330 19,935 X 75,903 76,642 8,376 8,376

Retained earnings, endowment, accumulated income, or other funds

Total net assets or fund balances

Total liabilities and net assets/fund balances

85,018

104,953

(2023)

Check if Schedule O contains a response or note to any line in this Part XI

Total revenue (must equal Part VIII, column (A), line 12)

Total expenses (must equal Part IX, column (A), line 25)

Revenue less expenses. Subtract line 2 from line 1

Net assets or fund balances at beginning of year (must equal Part X, line 32, column (A))

Net unrealized gains (losses) on investments

Donated services and use of facilities

Investment expenses

Prior period adjustments

Other changes in net assets or fund balances (explain on Schedule O)

Net assets or fund balances at end of year. Combine lines 3 through 9 (must equal Part X, line 32, column (B))

Check if Schedule O contains a response or note to any line in this Part XII

Accounting method used to prepare the Form 990: Cash Accrual Other

If the organization changed its method of accounting from a prior year or checked "Other," explain on Schedule O.

Were the organization's financial statements compiled or reviewed by an independent accountant?

If "Yes," check a box below to indicate whether the financial statements for the year were compiled or reviewed on a separate basis, consolidated basis, or both Separate basis Consolidated basis Both consolidated and separate basis

Were the organization's financial statements audited by an independent accountant?

If "Yes," check a box below to indicate whether the financial statements for the year were audited on a separate basis, consolidated basis, or both

Separate basis Consolidated basis Both consolidated and separate basis

If "Yes" to line 2a or 2b, does the organization have a committee that assumes responsibility for oversight of the audit, review, or compilation of its financial statements and selection of an independent accountant? If the organization changed either its oversight process or selection process during the tax year, explain on Schedule O.

As a result of a federal award, was the organization required to undergo an audit or audits as set forth in the Uniform Guidance, 2 C.F.R. Part 200, Subpart F?

If "Yes," did the organization undergo the required audit or audits? If the organization did not undergo the required audit or audits, explain why on Schedule O and describe any steps taken to undergo such audits

Form 990 (2023)

Public Charity Status and Public Support

Go to www.irs.gov/Form990 for instructions and the latest information.

The organization is not a private foundation because it is: (For lines 1 through 12, check only one box.)

A church, convention of churches, or association of churches described in section 170(b)(1)(A)(i).

A school described in section 170(b)(1)(A)(ii). (Attach Schedule E (Form 990).)

A hospital or a cooperative hospital service organization described in section 170(b)(1)(A)(iii).

A medical research organization operated in conjunction with a hospital described in section 170(b)(1)(A)(iii). Enter the hospital's name, city, and state:

An organization operated for the benefit of a college or university owned or operated by a governmental unit described in section 170(b)(1)(A)(iv). (Complete Part II.)

A federal, state, or local government or governmental unit described in section 170(b)(1)(A)(v).

An organization that normally receives a substantial part of its support from a governmental unit or from the general public described in section 170(b)(1)(A)(vi). (Complete Part II.)

A community trust described in section 170(b)(1)(A)(vi). (Complete Part II.)

An agricultural research organization described in section 170(b)(1)(A)(ix) operated in conjunction with a land-grant college or university or a non-land-grant college of agriculture (see instructions). Enter the name, city, and state of the college or university:

An organization that normally receives (1) more than 33 1/3% of its support from contributions, membership fees, and gross receipts from activities related to its exempt functions, subject to certain exceptions; and (2) no more than 33 1/3% of its support from gross investment income and unrelated business taxable income (less section 511 tax) from businesses acquired by the organization after June 30, 1975. See section 509(a)(2). (Complete Part III.)

An organization organized and operated exclusively to test for public safety. See section 509(a)(4).

An organization organized and operated exclusively for the benefit of, to perform the functions of, or to carry out the purposes of one or more publicly supported organizations described in section 509(a)(1) or section 509(a)(2). See section 509(a)(3). Check the box on lines 12a through 12d that describes the type of supporting organization and complete lines 12e, 12f, and 12g.

Type I. A supporting organization operated, supervised, or controlled by its supported organization(s), typically by giving the supported organization(s) the power to regularly appoint or elect a majority of the directors or trustees of the supporting organization. You must complete Part IV, Sections A and B.

Type II. A supporting organization supervised or controlled in connection with its supported organization(s), by having control or management of the supporting organization vested in the same persons that control or manage the supported organization(s). You must complete Part IV, Sections A and C.

Type III functionally integrated. A supporting organization operated in connection with, and functionally integrated with, its supported organization(s) (see instructions). You must complete Part IV, Sections A, D, and E.

Type III non-functionally integrated. A supporting organization operated in connection with its supported organization(s) that is not functionally integrated. The organization generally must satisfy a distribution requirement and an attentiveness requirement (see instructions). You must complete Part IV, Sections A and D, and Part V.

Check this box if the organization received a written determination from the IRS that it is a Type I, Type II, Type III functionally integrated, or Type III non-functionally integrated supporting organization. Enter the number of supported organizations

Provide the following information about the supported organization(s).

(i) Name of supported organization (ii) EIN (iii) Type of organization (iv) Is the organization (v) Amount of monetary (vi) Amount of (described on lines 1-10 listed in your governing support (see other support (see above (see instructions)) document? instructions) instructions)

(Complete only if you checked the box on line 5, 7, or 8 of Part I or if the organization failed to qualify under Part III. If the organization fails to qualify under the tests listed below, please complete Part III.)

Section A. Public Support

Gifts, grants, contributions, and membership fees received. (Do not include any "unusual grants.")

Tax revenues levied for the organization's benefit and either paid to or expended on its behalf

The value of services or facilities furnished by a governmental unit to the organization without charge

Total. Add lines 1 through 3

The portion of total contributions by each person (other than a governmental unit or publicly supported organization) included on line 1 that exceeds 2% of the amount shown on line 11, column (f)

Public support. Subtract line 5 from line 4

Section B. Total Support

Amounts from line 4

Gross income from interest, dividends, payments received on securities loans, rents, royalties, and income from similar sources

Net income from unrelated business activities, whether or not the business is regularly carried on

Other income. Do not include gain or loss from the sale of capital assets (Explain in Part VI.)

Total support. Add lines 7 through 10

Gross receipts from related activities, etc. (see instructions) First 5 years. If the Form 990 is for the organization's first, second, third, fourth, or fifth tax year as a section 501(c)(3) organization, check this box and stop here

Section C. Computation of Public Support Percentage

Public support percentage for 2023 (line 6, column (f), divided by line 11, column (f)) % Public support percentage from 2022 Schedule A, Part II, line 14 % 33 1/3% support test - 2023. If the organization did not check the box on line 13, and line 14 is 33 1/3% or more, check this box and stop here. The organization qualifies as a publicly supported organization 33 1/3% support test - 2022. If the organization did not check a box on line 13 or 16a, and line 15 is 33 1/3% or more, check this box and stop here. The organization qualifies as a publicly supported organization 10%-facts-and-circumstances test - 2023. If the organization did not check a box on line 13, 16a, or 16b, and line 14 is 10% or more, and if the organization meets the facts-and-circumstances test, check this box and stop here. Explain in Part VI how the organization meets the facts-and-circumstances test. The organization qualifies as a publicly supported organization

10%-facts-and-circumstances test - 2022. If the organization did not check a box on line 13, 16a, 16b, or 17a, and line 15 is 10% or more, and if the organization meets the facts-and-circumstances test, check this box and stop here. Explain in Part VI how the organization meets the facts-and-circumstances test. The organization qualifies as a publicly supported organization

Private foundation. If the organization did not check a box on line 13, 16a, 16b, 17a, or 17b, check this box and see instructions

Part III Support Schedule for Organizations Described in Section 509(a)(2)

(Complete only if you checked the box on line 10 of Part I or if the organization failed to qualify under Part II. If the organization fails to qualify under the tests listed below, please complete Part II.)

Section A. Public Support

and membership

received. (Do not include any "unusual grants.")

Gross receipts from admissions, merchandise sold or services performed, or facilities furnished in any activity that is related to the organization's tax-exempt purpose

Gross receipts from activities that are not an unrelated trade or business under section 513

Tax revenues levied for the organization's benefit and either paid to or expended on its behalf

The value of services or facilities furnished by a governmental unit to the organization without charge

Total. Add lines 1 through 5

Amounts included on lines 1, 2, and 3 received from disqualified persons

Amounts included on lines 2 and 3 received from other than disqualified persons that exceed the greater of $5,000 or 1% of the amount on line 13 for the year

Add lines 7a and 7b

Public support. (Subtract line 7c from line 6.)

Section B. Total Support

Amounts from line 6

Gross income from interest, dividends, payments received on securities loans, rents, royalties, and income from similar sources

Unrelated business taxable income (less section 511 taxes) from businesses acquired after June 30, 1975

Add lines 10a and 10b

Net income from unrelated business activities not included on line 10b, whether or not the business is regularly carried on

Other income. Do not include gain or loss from the sale of capital assets (Explain in Part VI.)

Total support. (Add lines 9, 10c, 11, and 12.)

First 5 years. If the Form 990 is for the organization's first, second, third, fourth, or fifth tax year as a section 501(c)(3) organization, check this box and stop here

Section C. Computation of Public Support Percentage

Public support percentage for 2023 (line 8, column (f), divided by line 13, column (f))

Section D. Computation of Investment Income Percentage

33 1/3% support tests - 2023. If the organization did not check the box on line 14, and line 15 is more than 33 1/3%, and line 17 is not more than 33 1/3%, check this box and stop here. The organization qualifies as a publicly supported organization

33 1/3% support tests - 2022. If the organization did not check a box on line 14 or line 19a, and line 16 is more than 33 1/3%, and line 18 is not more than 33 1/3%, check this box and stop here. The

Private foundation. If the organization did not check a box on line 14, 19a, or 19b, check this box and see instructions

X

Part IV Supporting Organizations

(Complete only if you checked a box on line 12 of Part I. If you checked box 12a, Part I, complete Sections A and B. If you checked box 12b, Part I, complete Sections A and C. If you checked box 12c, Part I, complete Sections A, D, and E. If you checked box 12d, Part I, complete Sections A and D, and complete Part V.)

Section A. All Supporting Organizations

Are all of the organization's supported organizations listed by name in the organization's governing documents? If "No," describe in Part VI how the supported organizations are designated. If designated by class or purpose, describe the designation. If historic and continuing relationship, explain.

Did the organization have any supported organization that does not have an IRS determination of status under section 509(a)(1) or (2)? If "Yes," explain in Part VI how the organization determined that the supported organization was described in section 509(a)(1) or (2).

Did the organization have a supported organization described in section 501(c)(4), (5), or (6)? If "Yes," answer lines 3b and 3c below.

Did the organization confirm that each supported organization qualified under section 501(c)(4), (5), or (6) and satisfied the public support tests under section 509(a)(2)? If "Yes," describe in Part VI when and how the organization made the determination.

Did the organization ensure that all support to such organizations was used exclusively for section 170(c)(2)(B) purposes? If "Yes," explain in Part VI what controls the organization put in place to ensure such use. Was any supported organization not organized in the United States ("foreign supported organization")? If "Yes," and if you checked 12a or 12b in Part I, answer lines 4b and 4c below.

Did the organization have ultimate control and discretion in deciding whether to make grants to the foreign supported organization? If "Yes," describe in Part VI how the organization had such control and discretion despite being controlled or supervised by or in connection with its supported organizations.

Did the organization support any foreign supported organization that does not have an IRS determination under sections 501(c)(3) and 509(a)(1) or (2)? If "Yes," explain in Part VI what controls the organization used to ensure that all support to the foreign supported organization was used exclusively for section 170(c)(2)(B) purposes.

Did the organization add, substitute, or remove any supported organizations during the tax year? If "Yes," answer lines 5b and 5c below (if applicable). Also, provide detail in Part VI, including (i) the names and EIN numbers of the supported organizations added, substituted, or removed; (ii) the reasons for each such action; (iii) the authority under the organization's organizing document authorizing such action; and (iv) how the action was accomplished (such as by amendment to the organizing document).

Type I or Type II only. Was any added or substituted supported organization part of a class already designated in the organization's organizing document?

Substitutions only. Was the substitution the result of an event beyond the organization's control?

Did the organization provide support (whether in the form of grants or the provision of services or facilities) to anyone other than (i) its supported organizations, (ii) individuals that are part of the charitable class benefited by one or more of its supported organizations, or (iii) other supporting organizations that also support or benefit one or more of the filing organization's supported organizations? If "Yes," provide detail in Part VI. Did the organization provide a grant, loan, compensation, or other similar payment to a substantial contributor (as defined in section 4958(c)(3)(C)), a family member of a substantial contributor, or a 35% controlled entity with regard to a substantial contributor? If "Yes," complete Part I of Schedule L (Form 990).

Did the organization make a loan to a disqualified person (as defined in section 4958) not described on line 7? If "Yes," complete Part I of Schedule L (Form 990).

Was the organization controlled directly or indirectly at any time during the tax year by one or more disqualified persons, as defined in section 4946 (other than foundation managers and organizations described in section 509(a)(1) or (2))? If "Yes," provide detail in Part VI.

Did one or more disqualified persons (as defined on line 9a) hold a controlling interest in any entity in which the supporting organization had an interest? If "Yes," provide detail in Part VI

Did a disqualified person (as defined on line 9a) have an ownership interest in, or derive any personal benefit from, assets in which the supporting organization also had an interest? If "Yes," provide detail in Part VI

Was the organization subject to the excess business holdings rules of section 4943 because of section 4943(f) (regarding certain Type II supporting organizations, and all Type III non-functionally integrated supporting organizations)? If "Yes," answer line 10b below.

Did the organization have any excess business holdings in the tax year? (Use Schedule C, Form 4720, to determine whether the organization had excess business holdings.)

Supporting Organizations (continued)

Has the organization accepted a gift or contribution from any of the following persons?

A person who directly or indirectly controls, either alone or together with persons described on lines 11b and 11c below, the governing body of a supported organization?

A family member of a person described on line 11a above?

A 35% controlled entity of a person described on 11a or 11b above? If "Yes" to line 11a, 11b, or 11c, provide detail in Part VI.

Section B. Type I Supporting Organizations

Did the governing body, members of the governing body, officers acting in their official capacity, or membership of one or more supported organizations have the power to regularly appoint or elect at least a majority of the organization's officers, directors, or trustees at all times during the tax year? If "No," describe in Part VI how the supported organization(s) effectively operated, supervised, or controlled the organization's activities. If the organization had more than one supported organization, describe how the powers to appoint and/or remove officers, directors, or trustees were allocated among the supported organizations and what conditions or restrictions, if any, applied to such powers during the tax year.

Did the organization operate for the benefit of any supported organization other than the supported organization(s) that operated, supervised, or controlled the supporting organization? If "Yes," explain in Part VI how providing such benefit carried out the purposes of the supported organization(s) that operated, supervised, or controlled the supporting organization.

Section C. Type II Supporting Organizations

Were a majority of the organization's directors or trustees during the tax year also a majority of the directors or trustees of each of the organization's supported organization(s)? If "No," describe in Part VI how control or management of the supporting organization was vested in the same persons that controlled or managed the supported organization(s).

Section D. All Type III Supporting Organizations

Did the organization provide to each of its supported organizations, by the last day of the fifth month of the organization's tax year, (i) a written notice describing the type and amount of support provided during the prior tax year, (ii) a copy of the Form 990 that was most recently filed as of the date of notification, and (iii) copies of the organization's governing documents in effect on the date of notification, to the extent not previously provided?

Were any of the organization's officers, directors, or trustees either (i) appointed or elected by the supported organization(s) or (ii) serving on the governing body of a supported organization? If "No," explain in Part VI how the organization maintained a close and continuous working relationship with the supported organization(s). By reason of the relationship described in line 2, above, did the organization's supported organizations have a significant voice in the organization's investment policies and in directing the use of the organization's income or assets at all times during the tax year? If "Yes," describe in Part VI the role the organization's supported organizations played in this regard.

Section E. Type III Functionally Integrated Supporting Organizations

Check the box next to the method that the organization used to satisfy the Integral Part Test during the year (see instructions). The organization satisfied the Activities Test. Complete line 2 below.

The organization is the parent of each of its supported organizations. Complete line 3 below.

The organization supported a governmental entity. Describe in Part VI how you supported a government entity (see instructions).

Activities Test. Answer lines 2a and 2b below.

Did substantially all of the organization's activities during the tax year directly further the exempt purposes of the supported organization(s) to which the organization was responsive? If "Yes," then in Part VI identify those supported organizations and explain how these activities directly furthered their exempt purposes, how the organization was responsive to those supported organizations, and how the organization determined that these activities constituted substantially all of its activities.

Did the activities described on line 2a, above, constitute activities that, but for the organization's involvement, one or more of the organization's supported organization(s) would have been engaged in? If "Yes," explain in Part VI the reasons for the organization's position that its supported organization(s) would have engaged in these activities but for the organization's involvement. Parent of Supported Organizations. Answer lines 3a and 3b below.

Did the organization have the power to regularly appoint or elect a majority of the officers, directors, or trustees of each of the supported organizations? If "Yes" or "No," provide details in Part VI.

Did the organization exercise a substantial degree of direction over the policies, programs, and activities of each of its supported organizations? If "Yes," describe in Part VI the role played by the organization in this regard.

Check here if the organization satisfied the Integral Part Test as a qualifying trust on Nov. 20, 1970 (explain in Part VI). See instructions. All other Type III non-functionally integrated supporting organizations must complete Sections A through E. (B) Current Year (A) Prior Year (optional)

short-term capital gain

Recoveries of prior-year distributions

Other gross income (see instructions)

Add lines 1 through 3.

Depreciation and depletion

Portion of operating expenses paid or incurred for production or collection of gross income or for management, conservation, or maintenance of property held for production of income (see instructions)

Other expenses (see instructions)

Adjusted Net Income (subtract lines 5, 6, and 7 from line 4) (B) Current Year (A) Prior Year (optional)

Aggregate fair market value of all non-exempt-use assets (see instructions for short tax year or assets held for part of year):

Average monthly value of securities

Average monthly cash balances

Fair market value of other non-exempt-use assets

Total (add lines 1a, 1b, and 1c)

Discount claimed for blockage or other factors

(explain in detail in Part VI):

Acquisition indebtedness applicable to non-exempt-use assets

Subtract line 2 from line 1d.

Cash deemed held for exempt use. Enter 0.015 of line 3 (for greater amount, see instructions).

Net value of non-exempt-use assets (subtract line 4 from line 3)

Multiply line 5 by 0.035.

Recoveries of prior-year distributions

Minimum Asset Amount (add line 7 to line 6)

Adjusted net income for prior year (from Section A, line 8, column A)

Enter 0.85 of line 1.

Minimum asset amount for prior year (from Section B, line 8, column A)

Enter greater of line 2 or line 3.

Income tax imposed in prior year

Distributable Amount. Subtract line 5 from line 4, unless subject to emergency temporary reduction (see instructions).

Check here if the current year is the organization's first as a non-functionally integrated Type III supporting organization (see instructions).

Amounts paid to supported organizations to accomplish exempt purposes

Amounts paid to perform activity that directly furthers exempt purposes of supported organizations, in excess of income from activity

Administrative expenses paid to accomplish exempt purposes of supported organizations

Amounts paid to acquire exempt-use assets

Qualified set-aside amounts (prior IRS approval required) - provide details in Part VI)

Other distributions (describe in Part VI). See instructions.

Total annual distributions. Add lines 1 through 6.

Distributions to attentive supported organizations to which the organization is responsive (provide details in Part VI). See instructions.

Distributable amount for 2023 from Section C, line 6 Line 8 amount divided by line 9 amount

Section E - Distribution Allocations (see instructions)

Distributable amount for 2023 from Section C, line 6

Underdistributions, if any, for years prior to 2023 (reasonable cause required - explain in Part VI). See instructions.

Excess distributions carryover, if any, to 2023 From 2018 From 2019 From 2020 From 2021 From 2022

Total of lines 3a through 3e

Applied to underdistributions of prior years

Applied to 2023 distributable amount

Carryover from 2018 not applied (see instructions)

Remainder. Subtract lines 3g, 3h, and 3i from line 3f.

Distributions for 2023 from Section D, line 7: $

Applied to underdistributions of prior years

Applied to 2023 distributable amount

Remainder. Subtract lines 4a and 4b from line 4.

Remaining underdistributions for years prior to 2023, if any. Subtract lines 3g and 4a from line 2. For result greater than zero, explain in Part VI. See instructions.

Remaining underdistributions for 2023. Subtract lines 3h and 4b from line 1. For result greater than zero, explain in Part VI See instructions.

Excess distributions carryover to 2024. Add lines 3j and 4c.

Breakdown of line 7:

Excess from 2019

Excess from 2020

Excess from 2021

Excess from 2022

Excess from 2023

Schedule A (Form 990) 2023

Part VI Supplemental Information. Provide the explanations required by Part II, line 10; Part II, line 17a or 17b; Part III, line 12; Part IV, Section A, lines 1, 2, 3b, 3c, 4b, 4c, 5a, 6, 9a, 9b, 9c, 11a, 11b, and 11c; Part IV, Section B, lines 1 and 2; Part IV, Section C, line 1; Part IV, Section D, lines 2 and 3; Part IV, Section E, lines 1c, 2a, 2b, 3a, and 3b; Part V, line 1; Part V, Section B, line 1e; Part V, Section D, lines 5, 6, and 8; and Part V, Section E, lines 2, 5, and 6. Also complete this part for any additional information. (See instructions.)

COPY

Department of the Treasury Internal Revenue Service

Name of the organization

Supplemental Financial Statements

Complete if the organization answered "Yes" on Form 990, Part IV, line 6, 7, 8, 9, 10, 11a, 11b, 11c, 11d, 11e, 11f, 12a, or 12b. Attach to Form 990.

Go to www.irs.gov/Form990

Organizations Maintaining Donor Advised Funds or Other Similar Funds or Accounts

Complete if the organization answered "Yes" on Form 990, Part IV, line 6.

Total number at end of year

Aggregate value of contributions to (during year)

Aggregate value of grants from (during year)

Aggregate value at end of year

Did the organization inform all donors and donor advisors in writing that the assets held in donor advised funds are the organization's property, subject to the organization's exclusive legal control?

Did the organization inform all grantees, donors, and donor advisors in writing that grant funds can be used only for charitable purposes and not for the benefit of the donor or donor advisor, or for any other purpose conferring impermissible private benefit?

Part II Conservation Easements

Complete if the organization answered "Yes" on Form 990, Part IV, line 7.

Purpose(s) of conservation easements held by the organization (check all that apply).

Preservation of land for public use (for example, recreation or education)

Protection of natural habitat

Preservation of open space

Part

Total number of conservation easements

Total acreage restricted by conservation easements

Number of conservation easements on a certified historic structure included on line 2a

Preservation of a historically important land area

Preservation of a certified historic structure

Complete lines 2a through 2d if the organization held a qualified conservation contribution in the form of a conservation easement on the last day of the tax year.

Number of conservation easements included on line 2c, acquired after July 25, 2006, and not on a historic structure listed in the National Register

Number of states where property subject to conservation easement is located

Does the organization have a written policy regarding the periodic monitoring, inspection, handling of violations, and enforcement of the conservation easements it holds?

Held at the End of the Tax Year

Number of conservation easements modified, transferred, released, extinguished, or terminated by the organization during the tax year

Staff and volunteer hours devoted to monitoring, inspecting, handling of violations, and enforcing conservation easements during the year

COPY

Amount of expenses incurred in monitoring, inspecting, handling of violations, and enforcing conservation easements during the year

Does each conservation easement reported on line 2d above satisfy the requirements of section 170(h)(4)(B)(i) and section 170(h)(4)(B)(ii)?

In Part XIII, describe how the organization reports conservation easements in its revenue and expense statement and balance sheet, and include, if applicable, the text of the footnote to the organization’s financial statements that describes the organization’s accounting for conservation easements

III

Organizations Maintaining Collections of Art, Historical Treasures, or Other Similar Assets

Complete if the organization answered "Yes" on Form 990, Part IV, line 8.

If the organization elected, as permitted under FASB ASC 958, not to report in its revenue statement and balance sheet works of art, historical treasures, or other similar assets held for public exhibition, education, or research in furtherance of public service, provide in Part XIII the text of the footnote to its financial statements that describes these items.

If the organization elected, as permitted under FASB ASC 958, to report in its revenue statement and balance sheet works of art, historical treasures, or other similar assets held for public exhibition, education, or research in furtherance of public service, provide the following amounts relating to these items:

Revenue included on Form 990, Part VIII, line 1

Assets included in Form 990, Part X

If the organization received or held works of art, historical treasures, or other similar assets for financial gain, provide the following amounts required to be reported under FASB ASC 958 relating to these items:

Revenue included on Form 990, Part VIII, line 1 $

Assets included in Form 990, Part X $

Using the organization's acquisition, accession, and other records, check any of the following that make significant use of its collection items (check all that apply):

Public exhibition Loan or exchange program

Scholarly research Other

Preservation for future generations

Provide a description of the organization's collections and explain how they further the organization's exempt purpose in Part XIII.

During the year, did the organization solicit or receive donations of art, historical treasures, or other similar assets to be sold to raise funds rather than to be maintained as part of the organization's collection?

Part IV Escrow and Custodial Arrangements

Complete if the organization answered "Yes" on Form 990, Part IV, line 9, or reported an amount on Form 990, Part X, line 21.

Is the organization an agent, trustee, custodian or other intermediary for contributions or other assets not included on Form 990, Part X?

If "Yes," explain the arrangement in Part XIII and complete the following table.

Beginning balance

Additions during the year

Distributions during the year

Ending balance

Did the organization include an amount on Form 990, Part X, line 21, for escrow or custodial account liability?

If "Yes," explain the arrangement in Part XIII. Check here if the explanation has been provided on Part XIII

Part V Endowment Funds

Complete if the organization answered "Yes" on Form 990, Part IV, line 10.

Beginning of year balance

Contributions

Net investment earnings, gains, and losses

Grants or scholarships

Other expenditures for facilities and programs

Administrative expenses

End of year balance

Provide the estimated percentage of the current year end balance (line 1g, column (a)) held as:

Board designated or quasi-endowment %

Permanent endowment %

Term endowment %

The percentages on lines 2a, 2b, and 2c should equal 100%.

Are there endowment funds not in the possession of the organization that are held and administered for the organization by:

Unrelated organizations?

Related organizations?

If "Yes" on line 3a(ii), are the related organizations listed as required on Schedule R?

Describe in Part XIII the intended uses of the organization's endowment funds.

Part VI Land, Buildings, and Equipment

Complete if the organization answered "Yes" on Form 990, Part IV, line 11a. See Form 990, Part X, line 10.

Land

Buildings

Leasehold improvements

Equipment

Other

Total. Add lines 1a through 1e. (Column (d) must equal Form 990, Part X, line 10c, column (B)

Schedule D (Form 990) 2023

Part VIIInvestments - Other Securities

Complete if the organization answered "Yes" on Form 990, Part IV, line 11b. See Form 990, Part X, line 12.

Total. (Column (b) must equal Form 990, Part X, line 12, col.(B))

Part VIIIInvestments - Program Related

Complete if the organization answered "Yes" on Form 990, Part IV, line 11c. See Form 990, Part X, line 13.

Total. (Column (b) must equal Form 990, Part X, line 13, col. (B)) Total. (Column (b) must equal Form 990, Part X, line 15 col. (B))

Part IXOther Assets Part XOther Liabilities

Complete if the organization answered "Yes" on Form 990, Part IV, line 11d. See Form 990, Part X, line 15.

Complete if the organization answered "Yes" on Form 990, Part IV, line 11e or 11f. See Form 990, Part X, line 25.

income taxes

Total. (Column (b) must equal Form 990, Part X, line 25 col. (B))

Complete if the organization answered "Yes" on Form 990, Part IV, line 12a.

Total revenue, gains, and other support per audited financial statements

Amounts included on line 1 but not on Form 990, Part VIII, line 12:

Net unrealized gains (losses) on investments

Donated services and use of facilities

Recoveries of prior year grants

Other (Describe in Part XIII.)

Add lines 2a through 2d

Subtract line 2e from line 1

Amounts included on Form 990, Part VIII, line 12, but not on line 1:

Investment expenses not included on Form 990, Part VIII, line 7b

Other (Describe in Part XIII.)

Add lines 4a and 4b

Total revenue. Add lines 3 and 4c. (This must equal Form 990, Part I, line 12.)

Complete if the organization answered "Yes" on Form 990, Part IV, line 12a.

Total expenses and losses per audited financial statements

Amounts included on line 1 but not on Form 990, Part IX, line 25:

Donated services and use of facilities

Prior year adjustments

Other losses

Other (Describe in Part XIII.)

Add lines 2a through 2d

Subtract line 2e from line 1

Amounts included on Form 990, Part IX, line 25, but not on line 1:

Investment expenses not included on Form 990, Part VIII, line 7b

Other (Describe in Part XIII.)

Add lines 4a and 4b

Total expenses. Add lines 3 and 4c. (This must equal Form 990, Part I, line 18.)

Part XIII Supplemental Information

Provide the descriptions required for Part II, lines 3, 5, and 9; Part III, lines 1a and 4; Part IV, lines 1b and 2b; Part V, line 4; Part X, line 2; Part XI, lines 2d and 4b; and Part XII, lines 2d and 4b. Also complete this part to provide any additional information

Department of the Treasury

Supplemental Information Regarding Fundraising or Gaming Activities

Complete if the organization answered "Yes" on Form 990, Part IV, line 17, 18, or 19, or if the organization entered more than $15,000 on Form 990-EZ, line 6a.

Attach to Form 990 or Form 990-EZ.

Go to www.irs.gov/Form990 for instructions and the latest information. Internal Revenue Service

Part I Fundraising Activities. Complete if the organization answered "Yes" on Form 990, Part IV, line 17. Form 990-EZ filers are not required to complete this part.

Indicate whether the organization raised funds through any of the following activities. Check all that apply.

Mail solicitations

Internet and email solicitations

Phone solicitations

In-person solicitations

Solicitation of non-government grants

Solicitation of government grants

Special fundraising events

Did the organization have a written or oral agreement with any individual (including officers, directors, trustees, or key employees listed in Form 990, Part VII) or entity in connection with professional fundraising services? If "Yes," list the 10 highest paid individuals or entities (fundraisers) pursuant to agreements under which the fundraiser is to be compensated at least $5,000 by the organization List all states

or

Fundraising Events. Complete if the organization answered "Yes" on Form 990, Part IV, line 18, or reported more than $15,000 of fundraising event contributions and gross income on Form 990-EZ, lines 1 and 6b. List events with gross receipts greater than $5,000.

Direct expense summary. Add lines 4 through 9 in column (d)

income summary. Subtract line 10 from line 3, column (d)

Gaming. Complete if the organization answered "Yes" on Form 990, Part IV, line 19, or reported more than $15,000 on Form 990-EZ, line 6a.

summary. Add lines 2 through 5 in column (d)

gaming income summary. Subtract line 7 from line 1, column (d)

Enter the state(s) in which the organization conducts gaming activities: Is the organization licensed to conduct gaming activities in each of these states? If "No," explain:

Were any of the organization's gaming licenses revoked, suspended, or terminated during the tax year? If "Yes," explain:

SCHEDULE O (Form 990)

Department of the Treasury Internal Revenue Service

Name of the organization

Supplemental Information to Form 990 or 990-EZ

Complete to provide information for responses to specific questions on Form 990 or 990-EZ or to provide any additional information Attach to Form 990 or Form 990-EZ.

Go to www.irs.gov/Form990 for the latest information.

MELBOURNE MAIN STREET INC 34-1977660

01. Form 990 governing body review (Part VI, line 11)

NO REVIEW WAS OR WILL BE CONDUCTED

02. Governing documents, etc, available to public (Part VI, line 19)

COPIES ARE AVAILABLE IN THE ADMINISTRATIVE OFFICE FOR REVIEW DURING NORMAL BUSINESS HOURS WITH APPROPRIATE ADVANCE NOTICE

03. General explanation attachment

FORM 990 - ORGANIZATION'S MISSION OR MOST SIGNIFICAN ACTIVITIES

MELBOURNE MAIN STREET IS RESPONSIBLE FOR THE REVITALIZATION EFFORTS IN HISTORIC DOWNTOWN

MELBOURNE THROUGH THE 4-POINT APPROACH. THIS INCLUDES, BUT IS NOT LIMITED TO, HOSTING

LARGE SCALE EVENTS, BUSINESS DEVELOPMENT, AND ADVOCACY ON BEHALF OF DOWNTOWN; CARRYING OUT

THE MELBOURNE MURAL PROJECT, ADDRESSING ISSUES SUCH AS CHRONIC HOMELESSNESS, PARKING

MANAGEMENT, AND OTHERS; WORKING TO IMPROVE DOWNTOWN THROUGH DESIGN AND AESTHETICS AND

WORKING TO INFORM THE PUBLIC ON ALL THINGS DOWNTOWN, AND WORKING WITH THE BUSISNESSES TO BUILD A VIBRANT DOWNTOWN DISRICT.

For Paperwork Reduction Act Notice, see the Instructions for Form 990 or 990-EZ.

* Item is included in UBIA for Section 199A calculations. See "UBIA" in lower right corner.

Name(s) as shown on return

Detail Listing

(This page is not filed with the return. It is for your records only.)

Turn static files into dynamic content formats.

Create a flipbook
Issuu converts static files into: digital portfolios, online yearbooks, online catalogs, digital photo albums and more. Sign up and create your flipbook.