Списание "ГРАДЪТ" - брой 4, 2018 г.

Page 1


БРОЙ

ISSN 2367-8054

Списание ГРАДЪТ излиза шест пъти в годината

КОРИЦА

RU House, София

ГРАДЪТ МЕДИА ГРУП

ЦЕНТРАЛЕН ОФИС София 1612, бул. „Акад. Ив. Ев. Гешов“ 104, ет.1, тел. 02 958 88 55 office@thecitymedia.bg www.gradat.media.bg

РЕГИОНАЛНИ ОФИСИ

ПЛОВДИВ ул. „Г.М. Димитров“ №5, ет.1, офис 1 тел./факс 032 968 030

СЪДЪРЖАНИЕ 14

Управляващ партньор vkrasteva@thecitymedia.bg

kkrastev@thecitymedia.bg

МАРИЯ НАЙДЕНОВА Изпълнителен директор 0897 84 62 80 mnaydenova@thecitymedia.bg

АБОНАМЕНТ 02 93 76 349 abonament@economedia.bg

ПЕЧАТ "Спектър" АД София, жк „Дружба“, ул. "Хайделберг" 7 14

82

ТРАДИЦИОННИ МОТИВИ И

СЪВРЕМЕННО

КИНОВА

КРАЙ АХЕЛОЙ

ВЕНЦИСЛАВ ТАНЧЕВ ПО БЪЛГАРСКОТО ЧЕРНОМОРИЕ ЩЕ СЕ ПОЯВИ ПЕТЗВЕЗДЕН ХОТЕЛ, ПОДОБЕН НА ТЕЗИ В АНТАЛИЯ

АРХ. МАРТИН ХРИСТОВ И АРХ. ГАЛИНА

112

РЕКОНСТРУКЦИЯ НА ХОТЕЛ КЪМ МУЗЕЙ "ЕТЪР" АРХИТЕКТУРЕН

ДОЦ. Д-Р

СГРАДА

ВИСОКАТА

НЕПРЕКЪСНАТИЯ ПРОИЗВОДСТВЕН

ПРОЦЕС

ИНЖ. ВАСИЛ ЧАЛЪКОВ

ВИСОКОКАЧЕСТВЕНИ ОСВЕТИТЕЛНИ ТЕЛА И ТЕХНОЛОГИИ

162

ПЪРВА НАГРАДА

АНДРЕЙ АНДРЕЕВ, АРХ.

ПЕТЯ НИКОЛОВА, АРХ. МИЛЕНА ФЕТВАДЖИЕВА

122

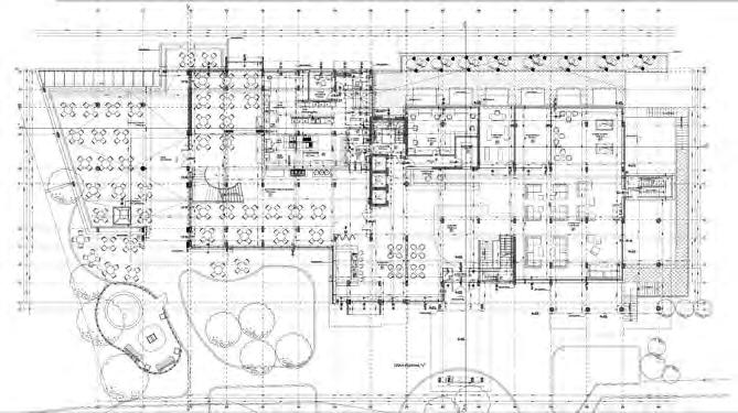
RU HOUSE

130 "ПОЛИГРАФИЯ ОФИС ЦЕНТЪР", ФАЗА 2

АРХ. РАДОМИР СЕРАФИМОВ СГРАДАТА СЕ ВПИСВА В ЕМБЛЕМАТИЧЕН КОМПЛЕКС

АРХ. ВИКТОРИЯ ИЛИЕВА ПРЕДИЗВИКАТЕЛСТВО БЕШЕ ПРЕОБРАЗЯВАНЕТО НА

166

180

ПЪРВА НАГРАДА ДЕМОКРАТОС / DEMOKRATOS

186 ЗЛАТЕН VIZAR В

СОФИЯ", И WHAT’S UP ARCHITECTURE

188 ЗЛАТЕН VIZAR ЗА "А И А АРХИТЕКТИ" В КОНКУРСА "ВТОРИЧЕН ГРАДСКИ ЦЕНТЪР - ЦЕНТРАЛНА ГАРА СОФИЯ"

АРХ. АНГЕЛ ЗАХАРИЕВ ВОДЕЩИ СА ПЕШЕХОДЦИТЕ И ОТВОРЕНИТЕ ГРАДСКИ ПРОСТРАНСТВА, ГРАДЪТ ПОЛУЧАВА ПЕРСПЕКТИВА НА СЕВЕР

АРХ. ЗДРАВКО ЗДРАВКОВ ЦЕЛТА НА КОНКУРСА БЕШЕ РАЗУМНО И МОДЕРНО ГРАДОУСТРОЙСТВО, КОЕТО ДА ПОВИШИ ИНТЕРЕСА КЪМ ЗОНАТА

МОДЕРНИТЕ ХОТЕЛСКИ

ПРОСТРАНСТВА

ПЕТЪР КАЛОЯНОВ БЪЛГАРСКАТА КОМПАНИЯ "ТЕХНОГИПС ПРО" ПРОИЗВЕЖДА СТРОИТЕЛНИ МАТЕРИАЛИ ЗА ВОДЕЩИ ХОТЕЛИ В ЕВРОПА

СУХО СТРОИТЕЛСТВО НЕОГРАНИЧЕНИ

ВЪЗМОЖНОСТИ ЗА ДИЗАЙН

ПЛАМЕН МАРТИНОВ

ВСИЧКИ ТЕНДЕНЦИИ СЛЕДВАТ НАЧИНА НИ НА ЖИВОТ, ИЛИ ПО-СКОРО ПРОМЯНАТА МУ

ARCHVIEW GRADINARSKА FROM DESIGN TO REALITY

АРХ. ГАЛИН ВАСИЛЕВ ПРОСТРАНСТВАТА В НОВИТЕ ВАКАНЦИОННИ ХОТЕЛИ - ВСЕ ПОМНОГОФУНКЦИОНАЛНИ

"ТЕХНОДЖИМ" ПРЕДСТАВЯ WELLCOME WELLNESS

ПРЕМИУМ УЕЛНЕС

ИНОВАТИВНИ

МОДЕРНИ РЕШЕНИЯ ЗА СЪВРЕМЕННИ ХОТЕЛСКИ СПА ПРОСТРАНСТВА

ОБЕКТХОТЕЛ "ПАРАДАЙС БЛУ"

ИНЖ. НИКОЛАЙ ЧОМАКОВСКИ

ПЪЛНАТА ИНЖЕНЕРИНГОВА УСЛУГА ВЪВ ВИК РЕШЕНИЯТА Е ИЗЦЯЛО ОТ ПОЛЗА НА ИНВЕСТИТОРИТЕ

БИЛЯНА ПОПОВА

НЯМА ТОЛКОВА

ВИСОКОТЕХНОЛОГИЧЕН ХОТЕЛ В БЪЛГАРИЯ КАТО НОВИЯ "ХАЯТ РИДЖЪНСИ" В СОФИЯ

SCHNEIDER ELECTRIC CONNECTED PRODUCTS

КОМФОРТ, ЕНЕРГИЙНА

ЕФЕКТИВНОСТ, СИГУРНОСТ И БЕЗОПАСНОСТ В СЪВРЕМЕННИТЕ ХОТЕЛСКИ СГРАДИ

РЕАЛИЗИРАНИ ХОТЕЛСКИ КОМПЛЕКСИ СЪС СИСТЕМИТЕ НА "АЛУКЬОНИГЩАЛ" ЕНЕРГИЙНАТА ЕФЕКТИВНОСТ В ХОТЕЛИ И КУРОРТИ - ВАЖНА ЧАСТ ОТ ПОРТФОЛИОТО С УСЛУГИ НА VEOLIA

СИВИ ОБЛАЦИ

ХОТЕЛСКИЯТ

ТАКУЯ

ДА СТАНЕ ЛУКСОЗНА ДЕСТИНАЦИЯ НА МЕЖДУНАРОДНО НИВО

ВАЛЕНТИН КАНАЗИРЕВ БЪЛГАРИЯ СЛЕДВА СВЕТОВНИТЕ ТЕНДЕНЦИИ В ТУРИЗМА, ОБИЧАЙНИТЕ ТРЕНДОВЕ НЕ НИ ПОДМИНАВАТ

ЙОРДАН КУВАНДЖИЕВ

БЕЗ ДА БЪДАТ ЯСНИ ПАРАМЕТРИТЕ НА УСТОЙЧИВО РАЗВИТИЕ НА КОМПЛЕКСИТЕ, НЯМА КАК ДА

IN ENGLISH

24

STEPHEN GEORGE INTERNATIONAL

SUSTAINABILITY OF BULGARIA'S HOTEL SECTOR

АРХ. ИНЖ. КЛИМЕНТИН ЧЕРНЕВ

ИЗГРАЖДАНЕТО НА ДОБЪР ПРОФЕСИОНАЛИСТ ТРАЕ МЕЖДУ ПЕТ И ДЕСЕТ ГОДИНИ

ИНЖ. ХРИСТО ДИМИТРОВ

МЛАДИТЕ ХОРА ТРЯБВА ДА СА ГОТОВИ ЕЖЕДНЕВНО ДА ДОКАЗВАТ ТАЛАНТА И КАЧЕСТВАТА СИ

ЙОАНА ХРИСТОВА

В ОРТ ВИНАГИ ПРИВЕТСТВАМЕ

ДРЪЗКИТЕ И ИНОВАТИВНИ

КОНЦЕПЦИИ НА МЛАДИТЕ

268

TAKUYA AOYAMA

VICEPRESIDENT "DEVELOPMENT AND ACQUISITIONS - EUROPE, AFRICA AND MIDDLE EAST" AT HYATT INTERNATIONAL

272

HENNING KRIPPENDORFF

COO OF ROSSLYN HOTELS GROUP, PRESIDENT OF SKAL INTERNATIONAL SOFIA

280

ANGELO ZUCCALA

GENERAL MANAGER INTERCONTINENTAL SOFIA

в архитектурата? Най-важно е обучението и развитието. Ако не се развиваш, ти не можеш да бъдеш архитект. Практиката се осъществява всеки ден, но е необходимо непрекъснато учене. Трябва да се задълбочава нашето знание за материалите,

не е задължително архитект - да изпроектираш един обект не е достатъчно. Архитектът знае как да предложи най-доброто решение - просто и ефективно, с най-подходящите материали, съобразно спецификациите и най-добрите практики.

Казахте, че вашият метод на работа е - всичко започва от сърцето? Да, ако не започвате от сърцето, всичко става прекалено "разумно", а разумът - това не е душата. Душата тръгва от сърцето.

Как избрахте професията на архитекта?

Комплекс със смесено предназначение Ex Sieroterapico, Милано

не просто занаят.

Кои са най-впечатляващите имена, с които сте работили? Най-големите са сред тяхРичард Майер, Даниел Либескинд, Франк Гери, Норман Фостър.

Някои от вашите любими архитектурни творби? Много са - отделни специални проекти като "Къщата с водопада" на Франк Лойд Райт и други знакови проекти, които променят живота на хората - например музеят "Гугенхайм" в Билбао. До реализацията на този проект градчето е на практика незначително. Построяването на тази забележителност изведнъж води до 10 петзвездни хотела, собствено летище, милиони посетители. P ashinovo Art Towers

Корпоративен офис на Prelios, Милано

© DANTE O. BENINI & PARTNERS
© DANTE O. BENINI & PARTNERS ARCHITECTS
© DANTE O. BENINI & PARTNERS ARCHITECTS

трябва да се докосва до вашата душа и да предава послание.

Пространството

СГРАДИ BUILDINGS

по различни начини може да помогне на

техния бизнес. Ние сме архитекти и урбанисти по професия, така че нашият фокус е до голяма степен върху

дизайна и строителната част на бизнеса, но

по подразбиране ние трябва да сме наясно и с

оперативната страна. При проектирането и

строителството на хотел или хотелски комплекс

трите стълба на устойчивостта - икономика, социална среда и околна среда, играят важна роля за успешното развитие на бизнеса в дългосрочен

план.

Опитът в прилагането на устойчиви

практики в нашата компания започва през 1977 г., когато идеята за интегриране на

слънчеви системи в сградите за подобряване на енергийната ефективност беше в начален

стадий. Четири десетилетия по-късно

необходимостта да променим начина, по който

проектираме сградите, взаимодействаме със

съществуващата среда и изграждаме нашите

бизнес модели, е по-голяма от всякога. Ежедневно

получаваме предупреждения и прогнози, заливащи

ни през това, което четем и гледаме в медиите, за въздействието на човешката дейност върху

планетата. Хотелският сектор е отговорен за 1% от глобалните въглеродни емисии и въпреки че

това може да изглежда малко, растежът в сектора

означава, че ще се увеличи отрицателното му

въздействие върху околната среда, ако не започне

да измерва и намалява въглеродните си емисии.

Секторите строителство и недвижими имоти

заедно съставляват около 50% от общите

въглеродни емисии в световен мащаб.

Предупреждения за изменения в климата

съществуват от 80-те години. Всяка година

слушаме за глобално затопляне, забелязваме

малки промени в метеорологичните

SUSTAINABILITY IN THE HOTEL SECTOR IN BULGARIA

What comes to mind when thinking of the Hotel sector in Bulgaria? For me it is the Black Sea coast and Bansko, neither of which are renowned for an exemplar approach to environmentalism, but are things changing? As the market has become more competitive some hoteliers in Bulgaria are finding that applying sustainable principals in differing ways can help their business.

We are Architects and master planners by trade so our focus is largely on the design and construction side of the business, but by default we have to be aware of the operational side as well. When designing and constructing a hotel building or a hotel complex, the three pillars of Sustainability, economic, social and environmental all play a significant role in how a project can develop and inevitably on the success of the business long term.

Our experience in the application of sustainability of our company goes back to 1977 when the idea of integrating solar systems into buildings to improve energy efficiency was in its infancy. Four decades later the urgency to reform the way we construct buildings, how we interact with our built environment and how we design our business models is more acute than ever, there are dire warnings and predictions bombarding us daily through what we read and what we watch in our media diet about the effects of human activity on our planet. The hotel sector accounts for around 1% of global carbon emissions and though this may seem small, growth in the sector means that the sector will increase its negative environmental impacts if it does not start to measure and reduce its carbon emissions. The construction and real estate sector as a whole account for around 50% of total global carbon emissions.

The warnings over Global warming have been around since the 80’s. We hear all about it, we notice year on year small changes in weather patterns, but because of the gradual nature of change and the inability to fully grasp the impact, little has been done to slow the inevitable effects by changing the way we live. It is however hard not to be exposed to the latest and very visual emergency of the current damage being done to our oceans and our environment at large by plastics, maybe we are now on the cusp of real change as public revulsion to the horrific imagery of suffering wildlife, vast areas of plastic waste floating around our oceans and populations of people living in foothills of plastic waste mountains brings home the immediacy of the problems we face and the damage our modern way of living is bringing to the planet. So how as Architects can we take on these issues within the design process to try to help make better Hotel buildings?

ECONOMIC SUSTAINABILITY DOES NOT MEAN MORE COST.

In fact, implementing sustainable principals into a hotel project should improve the bottom line if implemented correctly – In the Hotel industry all three pillars of

STEPHEN

sustainability are important and are interlinked. To design a hotel is to design a business and the first task, as with any venture is to establish the economic viability of any particular project. In our company we argue that it is vital that the Architects are familiar with how the business works and what the aspirations of the client are. If we know this, we can design a hotel or any building for that matter that responds correctly to Environmental constraints and adds additional value to the business plan through the various tools we have available to us with the application of technical and practical decisions. We can help the client look at the lifecycle costs of the project and help them make key decisions about the performance of the business long term. For example, when we specify certain systems or products, do they need changing or maintaining? What is the cost of servicing specific items vs replacing? What approach offers better value? And does the business case allow for these costs and if so can we improve the financial performance of the building through a more innovative approach?

план. Например

дали дадени системи или продукти се нуждаят от подмяна или поддръжка? Дали цената за обслужването на конкретни продукти е по-добра, или цената за замяната им ще бъде по-ниска? Кой

подход е по-адекватен?

Оправдани ли са за бизнеса подобни разходи и

ако да, как могат да се оптимизират разходите за поддържане на сградата чрез по-иновативен подход?

В заключение, изходната информация от

To this end the initial business data is the backstop of the project brief and the governing reference point as the design develops through the various stages to ensure the economic sustainability of the project is still intact at the end of the design period.

Using sustainability certification methodologies such as BREEAM, LEED amongst others to grade and measure the performance of all the technical and practical issues in a new or newly refurbished hotel building is integral to calling a hotel business sustainable. Not only do these methodologies aid in benchmarking a sustainable strategy for the delivery of a building, but they feed back into the economic sustainability of the project through marketing of the achieved certification, through the ability to attract frame work contracts for corporate clientele who have sustainable requirements in their corporate responsibility mandate that could preclude your operation without meeting certain sustainable standards.

СТРОИТЕЛСТВО КАТО BREEAM И LEED

за оценка и измерване на техническите качества и оперативното представяне на

нова или наскоро ремонтирана хотелска сграда

е абсолютно задължително, за да бъде един

хотелски бизнес устойчив. Тези методи не

само помагат за изграждане на устойчива

стратегия за изграждане на сградата, но и

допринасят за икономическата устойчивост

на проекта благодарение на сертифицирането

чрез предимството да привлича рамкови

договори с корпоративни клиенти, притежаващи

фирмени стандарти за устойчивост. Липсата

на сертификат за устойчивост би могла да

затвори вратите на определен пазарен дял, тъй като даден хотел може да не отговаря или да не

може да докаже, че отговаря на корпоративните

стандарти за устойчивост на даден клиент.

SOCIAL SUSTAINABILITY IN HOTELS is the least defined and the least understood of the different ways of approaching sustainability and has considerably less attention in the public dialogue.

Social Sustainability is “a process for creating sustainable successful places that promote wellbeing, by understanding what people need from the places they live and work. Social sustainability combines design of the physical realm with design of the social world – infrastructure to support social and cultural life, social amenities, systems for citizen engagement, and space for people and places to evolve.” – Social Life, a UK based social enterprise specializing in place based innovation

Social Sustainability can often get weighed down with severe subjects such as human rights and social justice, although worthy of significant consideration it is difficult to force issues like this into a hotel design brief with any real consequence. We can however look at improving health and wellbeing of the clientele and make it large part of both the building design and the identity of the business, consideration of the wider environment and “place making” by bringing cultural competence and responsiveness to specific cultural environments all play a real definitive role in shaping a hotel project.

от различните методи за постигане на

устойчивост и получава значително по-малко

внимание в обществения диалог.

„Социалната устойчивост“ е процес за

създаване на устойчиви пространства, които

насърчават просперитета на хората, като

разбират техните изисквания към местата, в които живеят и работят. „Социалната

устойчивост“ съчетава дизайна на физическото

пространство с дизайна на социалния свят

- създава инфраструктура за подпомагане на социалния и културния живот, социални

удобства, системи за ангажиране на гражданите, пространство за хората и места за развитие.

„Социалната устойчивост“ често може да

пропусне сериозни теми като човешките права и социалната справедливост и въпреки

Our office would generally focus mostly on the health and wellbeing vein of social sustainability. Sustainable certification methodologies such as BREEAM and LEED enable a formulaic way of applying Wellbeing principals into a building. We measure the Visual comfort which looks at daylight levels as a lack of daylight can have a physiological psychological effect on human health. Thermal comfort includes the obvious sufficient temperature control, but also humidity and the proliferation of mould that can lead to respiratory illness. Acoustic comfort and the potential effects of noise include hearing impairment, disturbance of sleep and rest, anxiety, stress, and general annoyance. We also review air quality, water quality and indoor pollutants from materials. We can encourage the use of physical exercise through the promotion of convenient bicycle rental and appropriate facilities and incentives for using sustainable transport to and from the hotel or around the complex. Access to sport facilities and outdoor space, even having views to green space from a window of a hotel room can have a measurable positive effect on the wellbeing.

When we look at the materials and specification of the actual physical makeup of a hotel building from the building blocks we use to create the structure to the soft furnishings and fabrics that are installed at the end, the social aspect of sustainability is ever present. The use of non-polluting natural materials and avoidance of oil-based products by specifying renewable materials means we are also, simultaneously engaged in the environmental aspect of sustainability.

ENVIRONMENTAL SUSTAINABILITY

During the design process we look at the origin of materials, the impact of the building and business

on the ecosystem it is located, the energy efficiency and the overall carbon footprint (the amount of C02 that is produced) from embedded carbon from the transportation of materials to the carbon emissions that are generated through the lifecycle of the hotel.

In Environmental sustainability perhaps, the biggest issue is energy efficiency. There are generally two approaches to implementing energy efficiency in the design of a Hotel building. Passive design utilises the fabric of the building itself. The thermal performance, the use of natural daylight through the orientation of the building. Sometimes we will utilise solar gain and use the mass of the building to store heat in the day and release it during the night or maybe the building

комфорт

предвид потенциалните вреди от шума като

увреждане на слуха, смущения в съня и почивката, тревожност, стрес и общо раздразнение. При

проектирането също така оценяваме качеството на въздуха, качеството на водата и вътрешните замърсители от използваните материали.

Допълнително можем да насърчим физическите упражнения чрез промотиране на велосипеди,

които

uses natural air flow of air to help with ventilation in public spaces. The other approach is the active system approach where we use systems and technology to help monitor and deliver efficient energy resources. Using CHP (combined heat and power) where waste energy is used to heat swimming pools at night and cool buildings during the day. Waste management is also tackled at the design stage. We would look at ways of encouraging recycling. Hotels in use can be incredibly wasteful so having a clear strategy for waste in use is again something that can be measured and certified.

HOW DOES ALL THIS RELATE TO THE HOTEL SECTOR IN BULGARIA?

Bulgaria generally takes a lead from other more developed countries, however although not a hotel, in May, Stephen George international achieved the first BREEAM communities Certificate worldwide outside the UK for Garitage Park which is now being marketed globally by BRE. Thanks to the aspirations of the client and the Greenworks the assessment team, this helps put Bulgaria on the map as a responsible and professional destination to invest.

One of the challenges that Stephen George International were asked to look at fairly recently was how to build a successful holiday operation in Bulgaria in an area zoned under Natura 2000. Under

Kamenitsa Residences - Пловдив

УСТОЙЧИВОСТ НА ОКОЛНАТА СРЕДА

По време на процеса на проектиране обръщаме внимание на произхода на материалите, въздействието на сградата и бизнеса върху екосистемата, в която се намира, енергийната ефективност и общия въглероден отпечатък (произведеното количество СО 2)

от отделения въглерод при транспортирането на материалите, до въглеродните емисии, генерирани през жизнения цикъл на хотела. При екологичната устойчивост може би найголямото предизвикателство е енергийната ефективност. В общи линии съществуват два подхода за прилагане на енергийната ефективност при проектирането

requirement from the EU, the Bulgarian government is currently developing legislation to allow some level of development into these areas, but under very strict guide lines. There are arguments both sides as to whether any such development should be allowed, but the situation currently is untenable. Beaches are utilised for camping as they are deemed public land, but without facilities and maintenance they are being littered and polluted leading to health and safety, ease of access and suitable water sourcing issues and lack of access to medical facilities should things go wrong.

The only viable way to deal with these problems in Bulgaria where municipal budgets are tight is to bring in viable commercial interests that can take responsibility for maintaining these areas to an appropriate level.

During our research we looked at various different approaches for development in environmentally sensitive regions. Concrete structures are a nonstarter as they create seriously invasive scars into the sensitive eco systems as well as noise and air pollution during instillation. The other major challenge is the creation of access. Roads create solid barriers through pristine landscapes and cut off micro level fauna and wildlife from accessing existing areas of their habitats which in turn affect the eco system as a whole. We did find solutions and examples of prefabricated natural buildings, using sand-based foundations and semi raised road structure with electric vehicle access, all of

Вече функциониращите

хотели могат да отделят изключително големи

количества отпадъци, така че наличието на ясна стратегия за оползотворяване на отпадъци е

нещо важно, което също може да бъде измерено и

сертифицирано.

КАК ВСИЧКО ТОВА РЕФЛЕКТИРА ВЪРХУ

ХОТЕЛСКИЯ СЕКТОР В БЪЛГАРИЯ?

България като цяло пое щафетата от други по-

развити страни и през май т.г. "Стивън Джордж

Интернешънъл" получи първия си сертификат

BREEAM извън Великобритания за проекта

"Гаритидж парк" (макар и да не е хотел), който сега се предлага на световно ниво от BRE.

Благодарение на стремежите на клиента и на

оценяващия екип на Greenworks това помогна България да бъде позиционирана

which mitigate the major issues and are economically viable.

This particular project has not yet moved forward, it is a huge undertaking over a large area of land and probably fell short of being economically sustainable.

THERE ARE AFFORDABLE AND DELIVERABLE SOLUTIONS

to all these issues for both large and small hospitality ventures, but interestingly we recently won a competition in partnership with William Matthews Architects for the redesign of the centre of Borovets. Our approach was to base our design on many of these principals, our design was simple and un-inhibiting, but very sustainable in it’s approach to the environment, it was great to see that the judge’s and the local authorities understood the subtleties of what we were proposing and were in tune with what we are trying to achieve.

There are some examples in the remoter parts of the country.

"Натура 2000". Съгласно изискване на ЕС българското

правителство в момента разработва

законодателство, което да позволи повишаване

нивото на застрояване в тези области, но с

много стриктни насоки. Съществуват аргументи и от двете страни дали това трябва да бъде

разрешено, но засега ситуацията е законово нерегламентирана. Замърсяването на плажовете

без съоръжения и поддръжка, които се използват за къмпингуване като държавна собственост, води до проблеми със здравето и безопасността, замърсяване на водата и липса на необходимите

Omaya Eco village is a specific example, although a romantic destination in terms of sustainable design rather than an example of the slightly more challenging issues that arise through implementing sustainability it shows how a sustainable approach can work. In the more commercial sector of the hotel industry at present, especially on the coast the market is made up predominantly of small to medium size private owner-operators who are generally not exposed to innovative approaches, are very cost sensitive and risk adverse. One of the leading lights that we are aware of (and I am sure there are others) are the owners of the Albena hotels. They have seen the practical value in both the implementation long term of manging their site in a sustainable way and the Economic. They have implemented farm to table food, a large part of their energy requirements is generated through on site renewable energy sources and they are starting to see the benefits of marketing these attributes as part of their corporate identity.

Our opinion for what it is worth is that if operators and developers in Bulgaria could embrace an approach of ultra-environmentally conscious tourism it would ultimately be respond naturally to the countries’ own cultural heritage and to its unique ecological diversity. It would help the local tourism sector by delivering commercially viable projects and businesses in areas that are sensitive and need limited commercial activity to afford the protection and provision of basic amenities. Equally where hotels are being developed in commercial areas embracing an environmental approach would benefit both the businesses themselves and the image of the country at large.

и

полуповдигнати пътни съоръжения с достъп за електрически превозни средства, всички от които подобряват основните проблеми и са икономически приложими. Ваканционното екологично селище "Омая" е характерен пример, въпреки че по-скоро показва романтичната страна на устойчивия дизайн, а не толкова предизвикателствата, които възникват при прилагането му, и доказва ефикасността на

устойчивия подход. Понастоящем в сегмента

на масовия туризъм по Черноморието на пазара

доминират малките и средните хотелиери, които не са предразположени към иновативни подходи и са особено чувствителни по отношение на

разходите и риска. Съществуват обаче и случаи

и започват да усещат ползите от промотирането на този подход като част от корпоративната идентичност. В крайна сметка нашето мнение е, че ако хотелиерите и строителните предприемачи в България възприемат този подход на екологичен туризъм, това в крайна сметка ще доведе до запазване на националното културно наследство

и на уникалното му екологично разнообразие. Това ще помогне на местния туризъм с жизнеспособни и икономически рентабилни проекти в региони, които имат нужда от такива, за да задоволят основните нужди на жителите си. В крайна сметка устойчивото развитие

InterContinental

InterContinental Sofia

METEX Design Group

IDEA International

сграда, в което на последния етаж се помещава президентски апартамент. Обществените пространства са просторни и взаимно свързани, с удобни места за срещи и събития, както и за уединение и работа. С

влизането в сградата ще бъдете впечатлени от скулптурна инсталация от осветителни тела, която се разгръща в двойния обем на фоайето и

носи своето скрито послание в пространството.

В края на светлинната пътека е разположена

красива и внушителна камина, а около нея се намира елегантен кът с мека мебел, което създава по-скоро приятното усещане за уютен дом, отколкото за хотелско лоби.

шикозни аксесоари. На това ниво е разположен и

концептуалният бар Floret, очарователно място за срещи, чието име е вдъхновено от елементите

в скулптурната инсталация. На мецанина е поместен центърът за

мероприятия, състоящ се от 4 конферентни зали

и бална зала. Комбинация от светли просторни

помещения, удобства и модерни технологии може да посрещне нуждите на различни събития.

На същия етаж е разположен ресторант

Studio, до който се стига през артистично

пространство, преливащо в обема на фоайето. В концепцията при

към детайла във всеки аспект на строителството,

довършителните работи и обзавеждането, защото всяка задача има ясно дефинирано отношение към крайния резултат. В процеса

взеха участие утвърдени специалисти, проектанти,

КОНСТРУКТИВНИ РЕШЕНИЯ

Вложените в строителството материали

и системи изцяло покриват европейските стандарти за качество, сигурност и шумоизолация, като някои от тях са приложени в този проект за пръв път в България. Новото крило е изградено от метална конструкция

ефективност и тяхната

възвращаемост.

МАТЕРИАЛИ И ОБЗАВЕЖДАНЕ

При изпълнението на довършителните работи и обзавеждането стандартите на оператора

много конкретно дефинират всички видове

настилки, облицовки, както и категорията на

износоустойчивост на материалите според

зоните, в които се използват. Всички мокети са

тъкани по индивидуален дизайн, с преобладаващо

съдържание на вълна и положени върху

полиуретанова подложка. В баните е използван италиански

от индивидуални осветителни тела и скрито осветление, независимо в коя част на денонощието са.

СИГУРНОСТ Голямо внимание е обърнато на сигурността, международните оператори са изключително стриктни в изискванията си и в този аспект

и

електрически клапи, които се затварят, за да

ограничат потенциалното разпространение на

огън и дим. Освен техническата обезпеченост

целият персонал е преминал серия от обучения за

реакция в случай на авария, така че да осигурят

безопасността на хората в сградата, което

прави този тип хотели възможно най-сигурни. InterContinental Sofia донесе както модерния

лукс, така и безкомпромисно качество на

хотелската услуга в България, а като част от

глобалния лидер в хотелиерството InterContinental

Hotels Group, с присъствие в над 100 страни, той

дава сериозна заявка да се превърне в лидер на

пазара на луксозни хотели в страната.

Г-н Бояджиев, какво е състоянието на хотелиерския

сектор в момента и как го оценявате в перспектива? В

последните

климат в страната, както

съюз. Добрите резултати се виждат най-отчетливо от данните на БНБ, според които само за първите три месеца на годината приходите от международен туризъм са достигнали

стойност на услугата. Нашата компания има дългогодишен

Друга ваша интересна инвестиция - "Хаят Риджънси" в центъра на София, се забави във времето поради

археологически находки. Това добавя ли стойност към проекта? Да, "Хаят Риджънси София" се забави поради

необходимостта да предоставим достатъчно време на

специалистите да се запознаят и да оценят намерените

останки. За съжаление се оказа, че археологическите находки

при нас не представляват особена историческа и културна

ценност и бяха предадени за съхранение на Районния

исторически музей в София. Все още тече уточняването на всички детайли от

интериора на хотела, включително и оформлението на

стаите. С радост ще ги споделим, когато те са вече

окончателни и приети от нас като инвеститор

Как ще се развива проектът във времето? След реализираното

и тенденцията за увеличаване на заетостта и на средната

които посещават София, са различни – от млади хора,

да реализират потенциала на България за развитие,

който е все още голям и в известна степен – неоткрит.

Нямам съмнение, че проектът за "Хаят Риджънси София" е правилно съобразен с

на столицата

между българи и чужденци? Основната част от

Преди година разговаряхме за петзвезден градски хотел в София, по който работи архитектурно студио "Вамос" - новият "Хаят Риджънси". Може ли да се направи

съвременен многофункционален високотехнологичен комплекс, който да посреща широк кръг клиенти – хора, пътуващи по работа, уикенд туристи, конференции, празнични събития като сватби и др. Надявам се хотелът да остане отворен към града, какъвто е замисълът ни, чрез възможностите за

хотел с 330 стаи.

Следващите етапи предвиждат комплекс от вили и

обществена част - амфитеатър, спорт и аквапарк.

Генпланът е дело на испанския архитект Франсиско Хернанс - изключителен професионалист в проектирането на хотели, с когото работим от над 10 години. В този

проект

и активните мерки, които се предвиждат по проект, включително например планове, инфраструктура и

оборудване за действие при природно бедствие Free Wi-Fi вече не се коментира, телевизорите задължително са смарт.

Световни браншови туристически организации непрекъснато увеличават изискванията, което гарантира по-висок комфорт на клиентите и съответно оскъпява инвестицията.

уредени на правилните места, без пресичания и „задръствания“. Най-добре

на етап концепция да се направят симулации, включително на автомобилния и вертикалния транспорт. В противен случай колкото и да е вълнуваща архитектурата, експлоатацията е мъчителна за обитателите.

Какво е мястото на допълнителните съоръжениябасейни, СПА, фитнес, площи за анимация, разнообразие от ресторанти? Веригата РИУ имат планова схема на ваканционните хотели, която

При "РИУ Палас" имаме басейн бар, конферентен блок

с максимален капацитет 500 души, бар салон, 24-часов lounge, основен ресторант, тематичен ресторант, дневно хранене в снек бар към басейна, който вечер се превръща в аржентински стекхаус, във фоайето има лоби бар и висок клас гурме сладкарница. СПА центърът включва вътрешен басейн. Гостите на петзвездния хотел

право

ползват всички съоръжения на четиризвездния. Как ще коментирате

които създават усещане за лукс. Работим с бял мрамор, светло дърво, гранитогрес имитация на дърво, в общите части големи плочи гранитогрес имитация на бял мрамор.

Какво е мястото в проекта на изискванията за сигурност при такъв тип сгради за обществено ползване? Зависи каква е степента

ПРОЕКТ

РЗП 40 000 кв.м

ИНВЕСТИТОР

"Терра Тур Сервиз"

ПРОЕКТАНТ "Вамос"

ИЗПЪЛНИТЕЛ "Джи Пи Груп"

ПРОЕКТ МЕНИДЖМЪНТ "А-Три - архитектура и изпълнения"

WAVE RESORT

на над 1200 гости. Водата в повечето басейни е предвидено

страни на остъклението шахматно са разположени кашпи с цветя, които повтарят мотива на вълна от хотелските етажи. Освен чувството за празничност и посрещане, което цветята носят със себе си, с помощта на кашпите постигаме още две цели - смаляване на мащаба на фасадата и подобряване на гледката отвътре навън. Първото впечатление на гостите от входното фоайе се определя от три неща: директната визуална връзка с морето и градината, осъществена чрез богато остъкление, атриума през шест нива, който дава необичаен простор във височина на цялата входна зона, и усещането за широта и оживление на фоайето като цяло, което

пределите на комплекса. Проектът на двора и градините се разработва от турската ландшафтна фирма "ПалмАрт", която има

Външните преградни стени са от тухли 25см и топлоизолация от EPS-12 см.

ПРОЕКТ

WAVE resort

емирства, Гърция, Италия и други. Фокус на компанията е проектирането и изграждането на проекти

от голям мащаб, както и на луксозни и иновативни частни решения. Екипът към момента надвишава 100 души с офиси

във Варна, София, Пловдив, Бургас и Букурещ. Структурата

включва проектантски отдел, отдел химическа поддръжка, външнотърговски отдел, отдел монтажи и отдел продажби.

Проектиране в числа:

Най-голям единичен басейн - Royal Beach Barcelo Sunny Beach, 1480 кв.м водна площ

Най-голям реализиран проект с басейни - RIU Helios Paradise, 3874 кв.м водна площ

Най-голям настоящ проект - WAVE hotel - Ахелой, с водна площ приблизително 6500 кв.м

Най-голям СПА център – "Мидалидаре Хотел и

следят тенденциите и техните обекти са

наистина на световно ниво. Като основна разлика

обаче мога да посоча, че в чужбина не мислят само за размера на първоначалната инвестиция и как да

я минимализират, а за това какво би им струвал

проектът в дългосрочен план. Използването

на качествени материали от самото начало

удължава живота на продукта и намалява много разходите за поддръжка. За щастие и у нас все повече клиентите ни узряват за тази идея, което е добре

впише в него, в предвидения стил и дизайн и дори в природните дадености. Опитваме се и все по често успяваме да

убедим клиентите да заложат на по-високо

качество на оборудване и облицовъчни

материали. Бяхме пионери и успяхме да наложим

на нашия пазар редица съвременни строителни технологии за басейни – например използването на епоксидни фугиращи смеси и комплексни системи за облицовки за басейни в дългогодишно сътрудничество с лидера в областта Mapei Italy.

масово се използват евтини стъклокерамики, докато при луксозните басейни се залага основно на специализирана порцеланова керамика с широки възможности за

дизайн. Системите за филтрация и дезинфекция

също могат да варират в широк диапазон.

Малко за тенденциите, какви са те при басейните и аквапарковете? Що се отнася до

дизайна, смея да твърдя, че далеч по-важно от

модата е той да бъде адаптиран и специално

създаден за инвестиционния проект. Класически, римски или ултрасъвременен – в днешно време всичко е възможно, стига да не е самоцелно.

с вълни, сърф басейни и др.

Какво да очакваме в развитието на СПА центровете? Близо до природата във всяко едно отношение! Все повече се използват соларна енергия и геотермални източници на топлина за сауна, парна баня и минерални басейни. Налице е ориентация към естествени оздравителни процедури - използване на минерални извори или морска вода, помещения с

Action Aquapark Sunny Beach, Aquapolis Golden Sands

и новоизграденият AquaMania, Албена V GYM Fitness & SPA - "Сан Стефано Плаза"

Р еновиране на басейните в 5* хотел President в Abano Terme Italy

А кватоничен басейн в Eforie Nord, Romania, в комплекс Steaua de Mare

О лимпийският басейн към един от найлуксозните комплекси в Букурещ – Stejari Country Club

3 и зпълнени басейна в Абу Даби

Най-сложният и съвременен музикален танцуващ фонтан в България към "Арена Асарел" - Панагюрище

В последните години се наблюдава рязка промяна

в цялостната концепция за структурирането на

един

самата

продължи да налага сериозни нововъведения.

ДИЗАЙН, УДОБСТВА И СТАНДАРТ НА

ПРЕДЛАГАНИТЕ УСЛУГИ

За този нов сегмент клиенти, които представляват 30% от пазара в момента, а до

2040 г. ще бъде над 50% от него, очакванията от

една хотелска стая, без значение дали в ниския

или високия клас, се различават коренно от

наложените досега стереотипи.

Водещото изискване при избора на хотел за

почивка или бизнес е преживяването. Дизайнът, удобствата и стандартът на предлаганите услуги трябва да се вписват много добре в мястото, където се намира хотелът,

и растения, включително водопади, са

което прави впечатление на гостите на хотелите от ново поколение. Проучване показва, че този тип дизайн

привлича и други клиенти освен гостите на

хотела, които искат да прекарат време в такава

среда, което спомага за по-бърза възвращаемост на инвестицията, както и за допълнителна доходност за хотелиерите.

INSTAGRAMABLE MOMENTS - ОТ

ПЪРВОСТЕПЕННО ЗНАЧЕНИЕ ЗА ДИЗАЙНА НА

ЛОБИ ЗОНА ИЛИ ХОТЕЛСКА СТАЯ Изброените тенденции са пряко свързани с

един неоспорим световен феномен и това са социалните мрежи. Милениум поколението е онлайн 24 часа в денонощието. За него

– залеза, което е любимо време за снимки на гостите и споделяне на снимки от там.

НОВИТЕ ТЕХНОЛОГИИ Определящо за хотелите от ново поколение са новите технологии. Високоскоростният интернет в стаята отдавна е стандарт, а не изключение. За пример ще дам 5* хотел в

Дубай, върху който работим

физическата форма, през здравни и разкрасителни процедури.

Дизайнът на фоайето е съобразен с нуждата на клиентите

да прекарват повече време извън стаята си в удобно и уютно място, където могат да работят или да общуват с другите

гости.

Модерната визия е постигната с

тази посока, като също се вижда, че моделът „копи-пейст“

нестандартен, понякога дори с чувство за хумор. Такъв тип

дизайн сме използвали в стаята на "Рамии Гранд", Дубай, където мебелите са сведени до минимум и е наблегнато на простора и гледката.

ЗДРАВОСЛОВНИ УДОБСТВА

Световните тенденции за хранене в посока органични храни са пренесени и в очакванията на гостите от хотелите и СПА

на ток.

големите СПА центрове, с множество процедури, насочени към

от малки помещения в

неблагоприятна част на хотела сега са

към спорт.

Хотелът, върху който работим в Павел баня, ще е един от първите от този тип в България,

изцяло изграден около здравословния начин на

живот, включващ спорт, чисто и здравословно

хранене, наблягането на зелената среда в почивката и ежедневието ни.

Като заключение може да се каже, че за да бъде

успешен дизайнът на един модерен хотел, трябва

да се излезе от стереотипите и наложените

норми и да се обследва отблизо поведението на

потенциалния клиент в много направления – от начин на забавление и почивка, до начин на работа, за да напаснем средата към един

целогодишна натовареност. Във втория етап на мащабния проект

участват различни дизайнери, с които са

с

обсъждани много варианти и идеи на стаи, бани и коридори, но всички са подчинени на интериорния

дизайн на лобито и общите части, за да са в

унисон с тяхната суперуспешна визия, наложила

през последните три години хотел „Рила“ като

новото лице - символ на курорта Боровец.

Едновременно с това особено внимание

е отделено и на обзавеждането на стаите и

баните – с максимална трайност като за ски хотел и удобство за гостите. То отговаря

напълно на съвременните изисквания: да има

достатъчно контакти за многобройните таблети, смартфони,

му качества. Закачалките с металните елементи и кошници/етажерки с

борчета, мокетът с уникален рисунък, вдъхновен

от самоковските шевици, са неща, които грабват, но едновременно с това гостите се радват как са си сушили ръкавиците и шапките, как е имало място за цялата им екипировка и същевременно са си пили кафето с изглед към пистите в уютна стая с удобно зареждащ се таблет до тях. Интериорният проект на стаи superior е дело на целия екип на студио Archview Gradinarska. Корпусната мебел е изпълнена от „Булдекор“, меката мебел – от „Руди Ан“, мокетът по индивидуален дизайн – от белгийската фабрика Commodore, осветителнитe тела са от фирма „Поларис“, а матраците са ТЕД, модел Holiday Inn. В баните санитарията е на италианската фабрика „Каталано“, а смесителите и аксесоарите са на фирма „Грое“.

Праматаров,

Ясена Попова, Стоян Дечев и други съвременни

български художници, скулптори и фотографи е д-р Мария Василева от Софийската галерия

за съвременно изкуство „Структура“.

Произведенията на изкуството в стаите и асансьорните фоайета на всеки етаж са

специално създадени за хотел „Рила“ и представят животни от фауната на Рила планина. АПАРТАМЕНТИ

Ремонтът на 10-ия етаж e акцентът, който екипът на хотел „Рила“ и гостите заслужават. Авторът на дизайна арх. Андрей Велинов

от арх. студио Vista Point е създател и на емблематичния интериорен дизайн на новото лоби на хотел „Рила“, конферентния център, ресторантите и "Терас Лаундж". „В смисъла на все по-забързаното ни ежедневие се опитахме

да създадем среда, която да предразполага към

почивка, спокойствие и хармония. Заложени са само естествени материали, които внасят

духа на планината в интериора. Текстурираните повърхности и семплата цветова гама предразполагат към откъсване от ежедневието и вглъбяване“, споделя арх. Велинов. Всички интериорни решения са изцяло в духа на мястото – дизайнерите са се възползвали максимално от даденостите на хотела и

беше

създадем не

а преживяване“, посочва арх. Велинов. В този смисъл прозорците между баните и стаите с

контрол на гледката са съвременна технология, която допълва занаятчийската изработка на

мебелите и създава нови сценарии на обитаване и

интерактивност на интериора.

Интериорното обзавеждане на

апартаментите и мезонетите е изпълнено с

корпусна мебел на CDD, мека мебел и текстил

от Kate International, мокет по уникален дизайн,

доставен от Carpet Max oт Commodore - Белгия, осветителни тела Light Factor, матраци ТЕД -

луксозен модел CYDONIA.

е оборудвана със следните системи за

и пожарна безопасност: Пожароизвестителна система UTC Fire&security, отговаряща на EN-54 и Наредба №Із1971

Система за гласово оповестяване Bosch, отговаряща на EN-54 и Наредба №Із-1971

евакуационно осветление

№Із-1971, БДС EN 12464-1 и EN 1838

И ПРОДАЖБИ“ НА BT HOTELS COLLECTION

ДЕСИСЛАВА КИНОВА

„УПРАВЛЕНИЕ НА ПРИХОДИТЕ И ПРОДАЖБИ“ НА BT HOTELS COLLECTION

Как прогнозирате развитието на бизнеса в планинските курорти в България? Д. Кинова: За да можеш да прогнозираш, е много важно да познаваш

туроператори. Не на последно място, полагаме и усилия за внедряване на иновативни технологии, които да осигурят всичко това, което днешните туристи търсят.

Какво е съотношението между българи и чужденци, които посещават хотела ви? Д. Кинова: На годишна

база съотношението е 35% българи и 65% чужденци, като процентът на чуждестранни туристи се е увеличил спрямо предходната година. Вероятно се дължи на тенденция към откриване на нови дестинации, по-малко познати на света и не толкова пренаселени.

Какви са предизвикателствата пред хотелиерите в морските курорти у нас? А. Ангелова: Основното предизвикателство пред бизнеса на хотелите в морските курорти е поддържането

(като СПА център, конферентни зали и допълнителни забавления)

рентабилност при целогодишна заетост. Предизвикателствата пред казино-хотелите са релевантни на останалия туристически сектор, а конкуренцията в региона е сериозна. Близки до нас страни

сериозна. Имиджът на една дестинация се изгражда от колективното цяло, ясната визия

усилия на държавни и местни институции, хотелиери, туроператори, ресторантьори, търговци и доставчици на

услуги.

В нашата реалност липсва визия за качеството на

туристическата инфраструктура, където нещата се случват по-скоро стихийно. Проблемът с безконтролните нива на шум носи изключително големи негативи, свързани с оплаквания от гости, негативни онлайн коментари

се намират предимно на изток от България. Гостите, които посещават този тип хотели, са хора над средния и високия клас, които пътуват често в различни дестинации, обичат шопинга и хубавата храна, търсят луксозно настаняване и индивидуално обслужване, адаптирано към техните предпочитания и навици.

предвидени

ще

символи на Боровец на следващите страници на списание ГРАДЪТ.

Главният подход към Боровец е маркиран от мост, свързващ Златния триъгълник и кабинковия лифт. Търсена е

©
©

директор на отдел "Планиране и архитектура" в Копенхаген. Победителите в конкурса бяха оповестени на 28 януари 2018 г. На първо място бе класиран

проектът на архитектурното студио William Matthews Associates Ltd от Великобритания, което работи в партньорство със Stephen George International Bulgaria. Проектантите получиха награда от 20 000 лв. и право за

директно договаряне на работната фаза на

инвестиционния проект.

Архитектурното студио William Matthews Associates e основано през 2013 г. в Лондон. Преди това арх. Уилям Матюс е старши архитект в офиса на Ренцо Пиано в Париж. Работи по множество международни проекти, сред които най-високата сграда в Лондон - Shard, централата на Beyeler Foundation в Базел, Поцдамер плац в

на Боровец бе

приет през месец май от общинския съвет

поетапно, като по време на

първата фаза ще бъдат изградени търговската

зона и паркингите. Предстои общинският съвет

да реши какъв ще бъде моделът на финансиране и

да гласува средства за изпълнението на първата

фаза от проекта.

Следващата стъпка е възлагане на работната

фаза на инвестиционния проект и обявяване на обществена поръчка за избор на главен изпълнител. Предстои и изработването

бъдат изпълнени от дърво, а вълнообразен дървен покрив

паркинг под новите сгради по цялата дължина на главната улица. Самата тя ще отвежда пешеходците до нов

площад с площ от около 1800 кв. метра. В северната част на територията е проектиран нов посетителски и културен център с галерийно

БАНЯ - БАНКЯ

сграда в България, а през годините се превръща в символ на курорта. За съжаление понастоящем

РЕШЕНИЕ И ЦЕННОСТНИ ХАРАКТЕРИСТИКИ

е разделена на две крила - мъжко и женско. Сградата впечатлява с богатата си пластична фасадна декорация. Покривът е със сложна форма, като освен основното покритие с керемиди има и

АНАЛОГИЧНИ

По проект на К. Хохедер са изградени още две обществени бани - в Мюнхен и в Сибиу, Румъния. За разлика от

чуждестранните примери, където отделението за мъже е по-голямо и с по-голям басейн от женското, в банята в Банкя двете отделения са симетрични и еднакви.

Мюнхенската баня и банята в Сибиу понастоящем са реставрирани и се използват с оригиналното си

предназначение - като съвременни балнеоложки центрове с басейни и СПА процедури.

ПРОЕКТНО РЕШЕНИЕ Предвижда

му на приемна зона и свързваща зона, осигуряваща функционалната връзка

между двете крила. В приемната зона посетителите ще бъдат разпределени – към балнеокомплекса или към кафесладкарница в северното крило.

Вертикалната комуникация се осъществява посредством асансьор в южното и две

СОБСТВЕНОСТ публична общинска собственост, предоставена за управление на Столична община - район Банкя КОНЦЕСИОНЕР "Консорциум Банкя 2020" ДЗЗД

ПЛОЩ НА ИМОТА 18 915 кв.м ЗАСТРОЕНА ПЛОЩ 1626 кв.м РЗП 4835 кв.м

ЕТАЖ 2

НОВ ХОТЕЛ ПРЕВРЪЩА САПАРЕВА БАНЯ В ЖЕЛАНО МЯСТО ЗА ОТДИХ И ПОЧИВКА

ЗАСТРОЕНА ПЛОЩ 1028 кв.м

НАЧАЛО НА СТРОЕЖА 1.06.2018 г.

ПРОГНОЗНА ДАТА ЗА ПРИКЛЮЧВАНЕ 1.12.2019 г.

на камина, планина или преминаващите пешеходци и посетители, детски кът, дневен бар, магазин. Интериорна стълба непосредствено до входа свързва партерния етаж с първи надземен и първи подземен. В пробитото пространство над входа са разположени помещения, допълващи разнообразието на предлаганите дейности на централното фоайе на хотела. На тези две нива е разположен и основният ресторант, побиращ 140 посетители. Интериорът му е впечатляващ чрез височината, заемаща два етажа, и възможността едновременно за сепариране, степенуване и обединение на пространствата. Предвидени са покрита

танци

СПА зоната е на две нива, с квадратура над 1000 кв.м, с което

първенството

са разделени отделните зони – приемна, сухи процедури, мокри процедури, басейни. Зоната за сухи процедури е сепарирана на второ сутеренно ниво. Водните процедури съдържат

шест различни по характер сауни, две парни бани, студен басейн, контрастни душове и ведра, ледогенератор, зона

за релакс. Зоната с басейните съдържа основен минерален

басейн, джакузи, горещ и детски басейн, басейни с хималайска

и морска сол, шезлонги за релакс. Зоната за водни процедури и басейните имат непосредствен

КОНКУРС

Архитектурният

бяха оценявани от жури с участието на арх. Йорданка Кандулкова, арх. Христо Станкушев, арх. Делчо Делчев, арх. Мартин Христов, арх. Мария Хлебарова, Теодора Узунова

управител

хотела, и адвокат Детелин Цонев. На 21 януари т.г. бяха обявени победителите – арх. Андрей Андреев, арх. Петя Николова и арх. Милена Фетваджиева, които получават парична награда на стойност 10 000 лв. и договор за директно

ПОКОЛЕНИЯ

не само от културното

наследство, представено в ЕМО „Етър”, но и от интересните балкански села, природата на Габровския регион, от манастирите и

крепостите, които се намират тук. Потапянето в миналото провокира човешката

фантазия. В „Етър” пред нас се разкрива светът

на българите от ХVІІІ и ХІХ век. Разположеният

наблизо Соколски манастир ни поднася едно

невероятно съчетание на духовност и

бунтарство. Когато някой отседне в хотел „Странноприемница”, говорим след неговото

обновяване, няма закъде да бърза. Може да отдели ден за разходка из старо Габрово, да се качи до местността Градище, за да се убеди колко старо селище е столицата на смеха. И като говорим за усмивки - всеки се сеща за Дома на хумора и сатирата.

Наистина много места в региона биха накарали туристите да останат. В Габрово

посетителят попада в един съвременен град. Без да омаловажаваме постиженията на другите градове, можем да кажем, че тук чрез европейско финансиране е изградена една от най-добрите инфраструктури в страната. Това е удобство, с което бързо се свиква. Един модерен хотел „Странноприемница” към музей „Етър” ще

предостави на туристите комфорт, изпълнени с

тишина нощи и зареждащи душата утрини. Но да

се върнем в реалността. Ние сме единственият

музей, който предпочете конкурсния начин за

избор на архитектурен проект. Направихме

нещата по най-прозрачния начин, заложихме на

професионализма на организаторите на конкурса

и на журито и това още повече ни удовлетворява.

По време на цялата процедура изградихме нови

ще кандидатства, защото тя е собственик на сградата.

Каква е визията ви за бъдещото развитие на Етнографски музей на открито „Етър”?

Етнографският музей на открито „Етър”

има големи възможности за развитие. С тази философия започва изграждането му през 60те години на миналия век. Създателите на

музея са прогледнали, че действителността, която познават, си отива и след време ще бъде само история. Така са съхранили архитектура, съоръжения, занаяти. Изглежда простичко, когато го кажеш. Трудното е да осъзнаеш кое от настоящето ще е ценна история след 50 години, да намериш начин да го съхраниш, и то така, че да бъде устойчиво. Сега работим активно, за да се утвърдим като дестинация за креативен туризъм. Включването на Габрово в групата на творческите градове към ЮНЕСКО в категория „занаяти и народно изкуство” предлага нови

контакти и форми на сътрудничество. Ще се

възползваме по най-добрия начин.

Музеят има не само интересни архитектурни

образци от доиндустриалното и индустриалното

общество, но той притежава най-богата сбирка

от съоръжения, задвижвани с вода, и представя

над 15 действащи занаята. Експозиционните

площи ще бъдат разширявани и обогатявани

през следващите години. В тях предстои да се

обособят няколко тематични кръга, които да разказват за занаятчийския инструментариум, за забравени занаяти и домашни занятия, за невидимите механизми на водните съоръжения. Имаме готов проект за преустройство на една от най-големите музейни сгради, която в

момента се ползва от администрацията. След ремонта

Хотелските стаи заемат трети, четвърти и пети етаж, които са най-благоприятни като

60 000 лв.

ОБЗАВЕЖДАНЕ 1 007 000 лв.

ОБЩО 2917000 лв. без ДДС

Срещнахме се в професионалните среди и установихме, че вижданията и разбирания ни за

архитектурата са споделени. Идеята да работим

заедно по конкурса дойде едновременно от двете страни, тъй като преценихме, че разбиранията ни са сходни и се допълваме като екип.

Конкурсът за преустройство на хотел „Странноприемнца“ ни заинтригува с

възможността да се приведе в съвременен вид и да се активира една сграда с безспорни архитектурни качества и стойност, която обаче

към момента не функционира оптимално, не е

привлекателна за посетители и не отговаря на

критериите и високите цели, които си поставя ръководството на комплекса ЕМО „Етър“. Оттук

идва и името на проекта „Жива традиция: активиране”.

Посещението на хотела ни убеди в качествата

на сградата, която разполага с богат набор от

разнообразни пространства, които следва да

бъдат осмислени функционално и да получат

един съвременен облик, привлекателен както

за посетителите на хотела и гостуващите

артисти, така и за администрацията на

комплекса, която ще се премести в сградата. Проектът се разви съвсем естествено, не

нещата в съвременния свят. От премирания в конкурса за визуална идентичност проект разбрахме също, че ръководството на ЕМО „Етър“

отворено за един съвременен поглед и интерпретация на даденостите на средата, разбира се, с уважение и разбиране на традицията и архитектурните качества на сградата. Тази готовност допълнително ни мотивира в работата ни по конкурса. Надяваме се и смятаме, че сътрудничеството ни в бъдеще ще доведе до качествен и устойчив резултат.

планиране.

Жилищната част е съставена от 3 секции и

4 входа с общо 107 жилищни единици от четири

типа: 13 мезонета/къщи, 12 апартамента с 3

спални, 55 апартамента с 2 и 27 апартамента с

една спалня. Секция 1 има един вход и разполага

със седем надземни нива и едно подземно и

включва 13 жилища и един магазин. Секция 2

има осем надземни нива и едно подземно, два

входа – единият включва 31

ДИЗАЙН

Обемно-пространственото решение

представлява композиция от няколко обема, свързани посредством плътните форми на

терасните парапети. Допълнителни акценти в

композицията са обеми, изпълнени с Etalbond в

оранжев цвят, обвързани и цветово с оранжевите

ламели по тавана на терасните козирки на

последния етаж. Решението е да бъдат покрити

всички тераси, както и тези на последния етаж.

Плътните парапети и дъната са с Trespa обшивка с

Главните фоайета имат специално разработен

интериорен дизайн, който включва вертикално

озеленяване, елементи в типичния за RUHouse

оранжев цвят и комбинация от скрито LED

осветление и вградени луни с LED крушки.

Асансьорите са висококачествени от Schindler.

Интериорните и входните врати на жилищата също са специално избрани. Входните врати са блиндирани (140 кг), с включен обков, тристранно

композитните фасадни плоскости.

Топлоизолацията по фасади и под еркери е с

дебелина 10 см - минерална вата и XPS, а по плоски покриви и върху топли тераси - 16 см XPS.

Жилищата разполагат с индивидуални

отоплителни инсталации с газови котли от

най-ново поколение. Те не изгарят кислорода в

помещението, а получават такъв

С обновена концепция и облик ще бъдат някои от

специализираните изложби в рамките на Международния

технически панаир, който ще се проведе от 24 до 29

септември в Пловдив. Промените ще дадат възможност за

по-ярка изява на участниците и се очаква да привлекат с 30%

повече посетители.

Голяма част от тях ще дойдат заради „Стройтех”,

която е сред изложбите - фаворити за специалистите. Тя

отново ще представи технологии, техника, оборудване и материали за изграждане на промишлени, инфраструктурни, търговски, обществени и жилищни обекти, за реализиране на

функционални архитектурни проекти и дизайнерски решения. „Стройтех” стана най-голямото изложение за бранша на

Балканите и тази година отново ще защити своята водеща

позиция с нови акценти.

Най-съществено е преобразуването на изложението за

автомобилната индустрия, което вече е и с ново име - „Auto City Пловдив“. Неговата визия ще пресъздаде градската среда с улици, маркировка и пътни знаци, а в сектори ще

бъдат разположени експонатите на отделните дилъри, предлагащи автомобили за бизнес, туризъм, свободно

време и хоби. В тест драйв зоната ще може да се видят „на живо” техническите характеристики на машините. Ще бъдат обособени пунктове за партньорите на „Auto City Пловдив 2018“ - лизингови и застрахователни компании, бензиностанции и други. По този начин се създава цялостен комплекс

панаир, затова се очаква неговото 74-о издание да бъде по-голямо и с по-силно чуждестранно присъствие. В него ще участват водещи компании от областта на електрониката и електротехниката, енергетиката и екологията, водния сектор, информационните технологии, роботиката и автоматизацията, транспорта и автосервизното оборудване, машиностроенето, строителството, химическата и минната промишленост, автомобилната индустрия.

Организаторът на мащабното икономическо събитиеМеждународен панаир Пловдив, продължава своята програма „Партньори“ в подкрепа на бизнеса, като предоставя атрактивни преференции на изложителите. Така по-широк кръг

на един от най-авторитетните делови форуми за инвестиционни стоки и технологии в Югоизточна Европа. Той отново ще представи панорама от авангардни решения за Индустрия 4.0, хайтех разработки и съвременни бизнес модели.

Най-новата офис сграда в центъра на София беше

открита на 15 май 2018 г. на специална церемония.

Лентата прерязаха Христо Илиев, изпълнителен

директор и член на борда на директорите

на Lion’s Head Investments, председател на

борда на директорите на AG Capital, Сергей

Койнов, изпълнителен директор на Lion’s Head Management, и Хайн Смит, член на борда на

директорите на Lion’s Head Investments. Това е

първият проект на джойнт венчър компанията Lion’s Head. Бизнec ĸoмплeĸcът пpeдлaгa 35 000 ĸв. м oфиc плoщи, ĸoитo вeчe изцялo ca oтдaдeни пoд нaeм нa гoлeми мeждyнapoдни ĸoмпaнии. Дpyги гoлеми пpeдимcтва са ĸлючoвaтa мy лoĸaция, дoбpaтa oĸoлнa инфpacтpyĸтypa и cвъpзaнocттa c paзлични видoвe тpaнcпopт. Ocвeн oфиc пpocтpaнcтвoтo "Полиграфия Офис Център" paзпoлaгa c тъpгoвcĸи плoщи, бaнĸи, зaвeдeния зa xpaнeнe и oтдиx. Cгpaдaтa пpeдлaгa и ĸoнфepeнтeн цeнтъp зa 150 дyши, cъздaдeн c идeятa дa пpиeмa нe caмo бизнec cъбития, нo и oбщecтвeни и ĸyлтypни мepoпpиятия, ĸaĸтo и гaлepийнo пpocтpaнcтвo, пoдxoдящo зa излoжби.

Cгpaдaтa e coбcтвeнocт нa Lіоn'ѕ Неаd Іnvеѕtmеntѕ, нoвocъздaдeнo cъвмecтнo дpyжecтвo нa бългapcĸaтa АG Саріtаl и южнoaфpиĸaнcĸaтa Оld Мutuаl Рrореrtу, ĸoетo зaлaгa нa дългocpoчни инвecтиции нa пaзapa нa бизнec имoти в

Югoизтoчнa Eвpoпa. Оld Мutuаl Рrореrtу e чacт oт

Оld Мutuаl Grоuр - южнoaфpиĸaнcĸa бизнec гpyпa cъc 170-гoдишнa иcтopия и пaзapнa ĸaпитaлизaция oт 13 млpд. дoлapa, ĸoятo oпepиpa в 35 дъpжaви. AG Capital е водеща група от компании за

инвестиции в недвижими имоти и управление на активи. Холдингът има 25-годишна история в изграждане, управление и консултиране в сферата.

достъп на автомобилите към съществуващия подземен паркинг, който има автомобилна

връзка с подземния паркинг на новата сграда.

Всички офиси са с осигурено странично естествено осветление. Двойният под позволява вариантност на

обзавеждането. Ясно проведената „модуларност” позволява

безконфликтно решаване на всички инфраструктурни връзки. Етажната височина на офисните нива е 3.50 м, a светлата височина в офисните площи е 2.80 м. Новата сграда предлага един

ПРОЕКТАНТ "Ателие Серафимов Архитекти"

РАЗПОЛОЖЕНИЕ бул. "Цариградско шосе"

общуване, почивка и нетрадиционни работни места. Интериорът

Елит"), стъклени

Novoferm, в т.ч. пожароустойчиви, Baumit топлизполационна

със силикатна мазилка, Knauf системи за сухо строителство, AMF окачени тавани, SmartStruxure система за автоматизация

сграда, производство на Schneider Electric.

ПРЕДИЗВИКАТЕЛСТВО

БЕШЕ ПРЕОБРАЗЯВАНЕТО

СЪВРЕМЕННИ ПРОВОКАТИВНИ ПРОСТРАНСТВА

Проектът на „Полиграфия Офис Център“

представлява нова, модерна намеса в сградата

на съществуващия Полиграфически комбинат.

Идеята ни бе не само да запазим автентичната

структура на старата сграда, да съхраним

нейните отличаващи я колони и детайли, но също и да подчертаем тези елементи с помощта на възприятията на интериорните пространства. Така ние създаваме нова, силна връзка между старата и новата сграда, между вътрешното и

интериорния ни проект сме

заложили монохромни тонове, които да

препращат към усещането за страница на

вестник от 60-те години. По този начин ние

създадохме и по-големи обеми, които да разширят

възприятията за арт пространствата, излагащи

контрастно модерно изкуство - цветно и

въздействащо. От друга страна, ние вдъхнахме

живот и на изключително функционалния

вътрешен двор, приветстващ различни събития,

подходящ за вечерни постановки и performance art. Интериорният проект на "Полиграфия Офис

Център" има за цел да предложи възможност на хората от различните компании, обитаващи пространствата, да се идентифицират и разпознаят в една нова, модерна и динамична среда.

Момент от официалното откриване на сградата

I/O АРХИТЕКТИ СТАРА КЪЩА С БЯЛ БЕТОН

решения за автоматизация и цялостни производствени линии.

работят над 5300 служители в цял свят, а над 1900

тях са базирани в централата в гр. Волфертшвенден, Германия. „МУЛТИВАК България“ ЕООД е доставчик на опаковъчни решения

промишленост, произведени от

MULTIVAC - вакуум опаковъчни и етикетиращи машини, системи за контрол и инспекция, роботизирани опаковъчни линии, както и продукти, произведени от партньорите на МУЛТИВАК - машини за нарязване, системи за дозиране на продукти, Sous Vide оборудване и пр. КПрез 2015 г. „МУЛТИВАК България“ стартира

ЛОКАЦИЯ Индустриална зона Божурище

ИНВЕСТИТОР "МУЛТИВАК България Продакшън" ЕООД

ПРОЕКТАНТ "Ай Пи Ес България" ООД

ПРОДЖЕКТ МЕНИДЖЪР "Ай Пи Ес България" ООД

ГЛАВЕН ИЗПЪЛНИТЕЛ "Планекс Билд" ООД, "Микс-Кънстръкшън" ООД

ПЕРИОД НА ИЗПЪЛНЕНИЕ IX.2016 - VI.2018 г.

ОБЩА РЗП СГРАДИ И ПРИЛЕЖАЩИ ПЛОЩИ 12 000 кв.м

РЗП СГРАДИ 7000 кв.м

БЮДЖЕТ 18.8 млн. евро

ПРОЕКТАНТСКИ ЕКИП:

Арх. Августина Велева, част

"Архитектура"

Инж. Добри Гатев, част

"Конструкции"

Инж. Илка Симиджиева, част "Технология"/ПБ

Инж. Райна Терзиева, част ВиК

Инж. Мартин Александров, част "Електро"

Инж. Любомир Ташков, част ОВК

Инж. Светлана Михова, част "Газификация"

ЗАСТРОЕНА ПЛОЩ 5427.92 кв.м

РЗП 7000 кв.м РЗП

4436.8 кв.м

РЗП

1966.25 кв.м РЗП

тип за временно настаняване на специалисти в процеса на обучение

гостлектори от чужбина.

Е КОМПАКТЕН ОБЕМ В предната й част е разположена администрацията, ориентирана към главната улица, а непосредствено зад нея са производството, складовите и технически

вентилационните

С амбиция, упорит труд и професионализъм, екипът на "Планекс Билд" ООД осъществи изграждането на производствения комплекс за изработка на детайли и компоненти за опаковъчни машини MULTIVAC. Използваните от нас висококачествени материали и оборудване, произведени по най-нови технологии, допринесоха за модерната визия на целия проект.

Строителството беше извършено в два етапа: изграждане на производствена сграда с офисна част, включваща „обвивка“ със зелен покрив, и втори етапсоциално-битова и охранителна сграда, както и всички

довършителни работи с прилежащите вертикална планировка и паркоустройство.

Фасадните решения за производствената сграда са

изградени със сандвич-панели, а останалите със структурни фасади с тройни стъклопакети и интегрирани врати „хармоники“, обвити в непрозрачната си част с “двойна кожа“. Внедреното в покрива иновативно решение – система за дневна светлина,

– индустриална безфугова настилка, гранит, гранитогрес, мокет, спортна каучукова настилка за фитнес залата, декинг

Това препятствие бе преминато успешно благодарение на безупречния

който

направиха, и на отличния продукт - „Соларспот“, който приложихме, ползвайки експертизата на д-р Дженаро Бракале (основател на компанията), с огромен опит и инсталации

ГАРАНТИРА

Екипът на "Инженеринг" ЕАД (част от група "Филкаб") с

гордост взе участие в отборното предизвикателство по процеса на изграждане на новата сграда на МУЛТИВАК.

Този проект се отличава с изключителна взискателност към детайлите

МУЛТИВАК

ВИСОКОКАЧЕСТВЕНИ

ОСВЕТИТЕЛНИ

следваше да се съобразим.

Какви бяха предизвикателствата при реализиране

на този обект? Участието в индустриални проекти

не е новост за "Бронлайт", тъй като специализираме до

голяма степен в административно, ритейл и промишлено

осветление. Не беше новост и интегрирането на

системата за контрол и управление на осветлението Philips

Dynalite, както и персонализацията й (като VAP партньор на

Philips ние сме специализирани и в това). Зад гърба си имаме

десетките търговски обекти, в които тази система работи

безупречно и с доказан ефект върху потребителското

изживяване и експлоатационните разходи.

Голямото предизвикателство за нас беше да въведем

в експлоатация Philips Dynalite в производствена сграда.

Притесняваше ни не толкова обема на пространството, колкото особеностите на ползването му и липсата на ясно разграничени зони. Опитът обаче си каза думата и

имплементирането на системата мина без

проекти

е постигането на висока рентабилност, намаляване на

експлоатационните и производствените разходи. Всяка инвестиция, включително в осветлението, се съобразява

именно с това. Системите за контрол и управление са

създадени със същата цел. Те оптимизират максимално

процесите, следят за комфорта и продуктивността на

средата и хората, като в същото време не позволяват

излишен разход на ресурси.

Защо се спряхте на интегрираната система

Philips Dynalite? Какви са основните й задачи? В

производственото хале на "МУЛТИВАК

на пода 5 т/кв.м.

Сградата е със стоманобетонова конструкция и ще разполага със собствена фотоволтаична

инсталация. Складовите площи са 11 650 кв.м, офис площите - 1150 кв.м. Сградите ще бъдат

сертифицирани по BREEAM.

Предвижда се обектът да бъде готов за

експлоатация в средата на 2019 г. Инвестицията

е в размер на над 12 млн. лева без ДДС. Сградата е част от цялостния проект "Логистичен парк Ист

21 млн. лв. без

ДДС. Консултант е австрийската архитектурна

компания Econsult.

Развитието на парка започва през 2011 г.

Към момента на територията му вече успешно функционират две сгради - сухи складове с

РЗП 12 800 кв.м, сертифицирани по BREEAM и

отдадени под наем на международния доставчик на логистични услуги „Карго партнерс“ и на "Евро 07" - водещ дистрибутор на авточасти. Първата

сграда получи през 2016 г. отличието „Сграда с

елементи на зелена архитектура“ на Националния

конкурс „Сграда на годината“.

В последните 5 години в България бяха изградени 3 големи

спортни зали: "Арена Армеец“ в София за 108 млн. лева с 12 500

зрителски места, зала „Колодрума“ в Пловдив за 49 млн. лева с 6200 зрителски места, "Арена Русе" за 37 млн. лева. Според водещи български треньори в момента родният ни спорт не се нуждае от подобни мегазали, чиято издръжка и наеми са прекалено скъпи за българските отбори, а от по-малки, но функционални закрити спортни съоръжения.

"Арена Шумен", на обща стойност около 8.5 млн. лв., със своите 2300 места и възможности да се провеждат почти

всички видове спортни и развлекателни мероприятия е

логичен отговор на тази тенденция от страна на община Шумен.

ТЕРЕНЪТ

В голяма част от градовете в България след

Формира се нов

здравословен, атрактивен, вторичен градски център тя преструктурира комуникационните потоци –автомобилни, пешеходни, променя градския транспорт, изисква значими площи за паркиране превръща се в градски символ и е призвана да отправя

важни послания към бъдещето.

Всичко това наложи внимателен и задълбочен анализ както на архитектурно-градоустройствения контекст на територията, така и на съвременните световни тенденции при изграждане на подобни съоръжения.

ЗАДАНИЕТО

Основен въпрос при проектирането на такъв спортен обект, който ще обслужва

икономическа целесъобразност при строителството и експлоатацията, заложени във всички проектни части.

ВИЗИЯТА Въпросът за визията на сградата за нас беше от изключителна важност. Търсен бе органичен образ, отразяващ „искрено“ функционалната гъвкавост и целесъобразност на пространствата. Същевременно с това образът трябваше да бъде нехарактерен и отличаващ се от изградените у нас обекти от този тип, емблематичен, знаков, запомнящ се, образ, който да се превърне в един от символите на града. Благодарни сме на община Шумен за

– спортисти, зрители, журналисти, ВИП гости. Важен момент е разграничаването на техните пътища. Подходът на двете основни групи, тези на спортистите и зрителите, е обвързан пряко с игралното поле и съответно със зрителните трибуни. За целта е използвана денивелацията и са обособени

отделни етажи за тях.

Спортната зона е разположена на полуподземния етаж в близост до игралното поле. Подходът е осигурен чрез 2 рампи, водещи до открит подземен гараж, от който се осигуряват и

техническото, и медицинското обслужване на игралното поле.

Зрителното фоайе е разположено на първи надземен етаж и основната му функция е да разпределя зрителния поток към трибуните. Осигурени са срещуположни

достъпните маршрути до съответните нива. Осигурени са самостоятелни входове за останалите 2 групи –журналисти и ВИП, гости от север и юг. Те водят до

обособени частични нива над основния надземен етаж, на

които са разположени фоайета, ВИП ложи, коментаторки

кабини. Също така осигуряват независимия им достъп до зрителните трибуни.

На нивото на терена от югозапад са разположени магазин за спортни стоки и кафе, които допълват функциите на

залата. Чрез подсигуряването им със самостоятелен вход се създава възможността за отдаването им под наем.

Друга такава зона е фитнес центърът, намиращ се в

непосредствена близост до спортната зона, но към него са отделени отделен вход и самостоятелни съблекални, осигуряващи постоянното му независимо функциониране. Обособен е подпокривен инсталационен етаж, който обслужва цялата сграда.

Зрителната зала е проектирана като мултифункционално пространство за провеждане на два основни типа мероприятия:

спортни събития – локални, национални и международни състезания по: баскетбол, волейбол,

на зрителната зала, следвано от нейната функция, над обслужващата сградата част (зрителното фоайе).

КОНСТРУКЦИЯТА Относително нетрадиционната форма на сградата, както и големите подпорни разстояния предопределиха

проектиране конструкцията като сериозно предизвикателство, с което се справихме

направление (по оста на гредата), а напречно преместването му е ограничено. По този начин хоризонталният разпор от дъгата в надлъжно направление изтича в обтегача, без да претоварва стоманобетонната конструкция. Параметрите на еластомерните лагери са подбрани така, че да могат

да предадат хоризонталното усилие от земетръс от покривната конструкция на стоманобетонните опори, както и да ограничат хоризонталното преместване в рамките на допустимите.

Носещата конструкция над фоайетата, обслужващите помещения и трибуните е монолитен стоманобетон, а за зрителната зала - стоманена конструкция, стъпващата върху стоманобетона.

Покривното покритие се състои от профилирана поцинкована LT ламарина,

акустични пана, влияещи на оптималното време на

реверберация, разбираемостта на говора и структурата на отраженията. Също така е заложена и озвучителна система за незабравимо звуково усещане при провеждане на концерти.

Осветлението на залата удовлетворява сложния комплекс от различни специфични изисквания –осветеност, равномерност, ограничение на заслепяването, цветопредаване.

Чрез ОВК инсталациите е осигурен температурен, въздушен и хигиенен комфорт. Определящо при пожарната безопасност бе броят посетителите и тяхната евакуационна сигурност.

изградим такава зала. Днес тя вече е факт и няма да скрия, че съм много щастлив. Вярвам, че целият

комплекс ще се превърне в истинско спортно и

културно средище. 8.5 млн. лева са средствата, които получихме

като целева субсидия от правителството на г-н

Борисов през 2016 г. С първоначалната сума от

500 000 лева премахнахме старите сгради, някои от които бяха на по сто години, и почистихме терена. Строителството започна в началото

на 2017 г. Залата беше изградена за по-малко от

година и половина. За оборудване и обзавеждане на

залата общината е обявила обществени поръчки за малко над 250 000 лева. Поискахме от архитектите и строителите

да проектират и да изградят многофункционално съоръжение. Залата отговаря на изискванията

на спортните федерации за провеждане на локални, национални и международни състезания по баскетбол, волейбол, хандбал, тежка атлетика, тенис, борба, бокс, художествена гимнастика, както и за организиране на конференции, концерти, изложби и изложения. В нея са обособени няколко зони – за зрители, за специални гости, спортно-тренировъчен блок, за журналисти, коментатори и зона за техническо обслужване

на сградата. Общият брой места на трибуните е 1500, в това число и за хора с увреждания, а максималният й капацитет е 2300 места.

Изграден е автомобилен паркинг с общо 350 паркоместа.

"Арена Шумен" е успешен пример за конверсия

на бивш военен терен. Какви инвестиции влага общината за инфраструктурното

му изграждане? Теренът на входа на Шумен върху съборените казарми с вече отпаднало

за да се улесни достъпът до залата. Подновява се и канализационната мрежа по ул. „Перуника“, която е много стара. Подменя се и старото улично

осветление по ул. „Марица“ с нови осветителни стълбове и енергоспестяващи лампи. Изградени

са нови тротоари, изцяло нова улица, която

свързва ул. „Софийско шосе“ с ул. „Перуника“. Направена е автоматична поливна система, засадени са много храсти и над 130 дръвчета в комплекса. За период от две години общината ще вложи общо близо 3.340 млн. лв. в нови

инфраструктурни проекти

инвестиционни проекти, които ще се реализират в тази нова

оборудването и обзавеждането на залата бяха ангажирани и местни фирми. Това е още един плюс от осъществяването на този проект.

Изграждането на такова мащабно съоръжение дава възможности за развитие и на местния

бизнес.

Много е важно всъщност да кажа, че имаме ясна визия за целия комплекс. Общината продаде

няколко парцела, върху които в проекта сме

предвидили да се изградят открити спортни

игрища, открит плувен басейн и хотел. Идеята

ни е да създадем максимално добри условия на

спортистите за тренировки, за почивка, за нощувки, както и за забавления на гостите и т.н.

е решена като монолитна, гредова, стоманобетонна носеща конструкция, върху която стъпва стоманен покрив. Самото изграждане на конструктивния скелет на сградата се изпълни в условията на прекомерно високи температури, което наложи и промяна в организацията на работния процес в много кратък период. Друго непредвидено обстоятелство бяха продължителните и обилни валежи, които се изсипаха в района и наложиха спиране на строителството на обекта.

Но така или иначе

обслужване, както и за специализирани

автомобили за спешна медицинска помощ. Проектирани и изградени са два асансьора.

Стационарните посетителски места в залата са 1500 бр. с възможност за увеличаване с 800 бр.

подвижни места, които ще се разполагат върху

игралното поле по време на концерти и други

масови мероприятия.

На ниво терен с достъпност до съседните съществуващи и проектни улици са изградени 285

бр. паркоместа в съответствие с изискванията

на нормативната уредба в страната.

Залата разполага с ВИП ложи – 3 бр. помещения за 24 души, още 4 ВИП зали на ниво кота 0, помещения за оператори (има възможност за излъчване на живо), помещения за журналисти

и коментатори, зала за пресконференции, помещение за допинг контрол, помещение за медицинска помощ, шест съблекални, помещения за треньори и съдии, складови помещения. Залата разполага и с няколко помещения

с метална подконструкция, закрепена към стоманобетонната конструкция на сградата.

Същата е съставена от стоманени хоризонтални

и вертикални елементи, изпълнени от студено формовани кутиеобразни елементи, които освен

поддържаща функция за външната фасадна

облицовка гарантират и разпределянето на

ветровото натоварване върху основната носеща конструкция.

За постигане на максимален ефект в

архитектурно отношение и едновременно с това енергийна ефективност е приложена схема на послоен монтаж с финишна облицовка от алуминиеви ламели. Остъкляването е решено с окачена фасада.

осигуряване на пълен комфорт за залата е предвидена самостоятелна система за

отопление и охлаждане, като са монтирани две покривни климатични централи Rooftop, тип WSM CE/B 0352, с оползотворяване на

енергията и газов топлообменник. За главното фоайе е предвидено въздушно отопление

посредством две самостоятелни системи

с 4 топловъздушни апарата с топлоносител гореща вода с температура 80/60°С, осигурявана

от два стенни газови кондензационни котела.

За предотвратяване свободен достъп на

Как се разви проектът във времето и бюджета? Реализацията на проекта се

осъществи при пълен инженеринг, като

основните преимущества тук бяха ясната

цел и отговорност от самото начало, както и

цялостната концепция за по-добрата координация

през целия процес на изпълнение. Но, както при всички значими обекти, при изготвянето на проекта и при

външен въздух през вратите на фоайетата са предвидени електрически топловъздушни завеси.

За поддържане на параметрите на микроклимата

в останалите помещения са проектирани локални климатични сплит и мултисплит системи.

Какво беше взаимодействието на "Джи Пи Груп" с другите участници в строителноинвестиционния процес? Изключително важно за успешната реализацията на един проект

от общо 41 участници, които продължиха в представянето си на финала. Това са проф. д-р арх. Милан Джурич – председател на Съюза на архитектите в Сърбия, арх. Мартин Пановски –председател на Асоциацията на архитектите в Македония, арх. Астрид Никсха – председател на Асоциацията на архитектите

спрямо зрителната

че по проект пространството е замислено като столова с кухня, които впоследствие се преустройват в актовата зала. Единственият

тази причина в проекта е търсена максимална флексибилност на пространството, която позволява трансформация на залата в социален хъб, форум за дебати, учебен център, работилница, театрална и кинозала, зала за презентации, столова.

СЪЩНОСТ НА ПРОЕКТА В обхвата на интериорния проект попадат зрителното и сценичното пространство, както и фоайето пред актовата зала. В зрителната зала са изградени амфитеатрален форум, компютърен кът за самоинициирано знание, в който е заложена платформата за самообучение "Кан Академия", и свободна зона. Последната може да се преаранжира в зрителна зала със седящи места, работен кът с мобилни маси,

WHAT’S UP ARCHITECTURE

архитекти", "Никонсулт", "Новиза", арх. Димитър Младенов, проф д-р арх. инж. Пеньо Столаров, "Никифоров студио", арх. Тодор Булев, "Архитектурно-инженерен състав", арх. Иван Василев. Отличените проекти за Вторичен градски център, зона "Централна гара

WHAT'S UP ARCHITECTURE

пространство Подобряване на имиджа чрез инвестиции в публична градска среда и парковете Пешеходно свързване на територията с центъра и зоните на север

Създаване на "дестинация" със ситуирането

в рамките на позволените параметри, без физическо и визуално претоварване Създаване на "дестинация" с разполагане на знакови за града обекти - концертна зала, център за събития, дизайнерски хотели, обществен парк, иновативни

на фините прахови частици и замърсяването на въздуха,

управление на дъждовните води, по-добра енергийна

ефективност, интегрирани с архитектурата

Респект към традициите и ценностите на града -

използване на традиционното квартално застрояване за

центъра на София и запазване на гледките към Витоша от

ключовите пешеходни

на

сега хората са под земята, а колите са

отгоре, ние сменяме местата им. По този начин най-напред осигуряваме

безпроблемна връзка с градски транспортнапример в момента от нивото на трамвая

пътниците влизат под земята, за да се качат после отново във вестибюла на гарата. В същото време, като изкараме хората на повърхността, те ще се чувстват по-сигурни, поддръжката ще

бъде по-лесна, ще бъде светло, няма да мирише, ще се осъществят най-кратките пътища и това ще подобри функционирането на самата гара. За да стигнат до коловозите, хората ще преминават

директно през вестибюла на гарата. Това ще

пешеходно

в зоната? Ние предлагаме един реалистичен подход - във

да

Централна гара с подходящ функционален микскултурни, търговски, офис и жилищни, така че да има критична маса от обитатели и ползватели. Отделно предлагаме да се направят дестинации с обекти с общоградско значение, които да променят трайно имиджа на района - функции със значение за целия град за

- с автомобилен

тунел плюс пешеходен надлез - мост и парк. От

другата страна на линиите имаме една уникална

сграда - старият жп завод - невероятен паметник

на индустриалната архитектура, изключително

подходящ за център за съвременно изкуство и

култура.

От северната страна на жп линията могат да

бъдат създадени временни локации с клубове,

дискотеки, които да работят денонощно и няма

на кого да пречат, защото районът не е жилищен.

Това е начин зоната да се оживи с млади хора, които да я посещават и ползват - по примера на BETON HALA в Белград, плюс изграждане на временни структури за творчески индустрии, спортни обекти, експериментални индустрии, градско земеделие, така че районът да бъде

направен атрактивен за младите и креативни хора - по примера на Берлин с индустриалните

зони край реката. На следващия етап вече ще могат да бъдат привлечени частните

инвестиции. Най-важна е инфраструктурата, която трябва да бъде удобна за хората.

Какви са реалните перспективи за развитие на зоната - какво предстои? Очакваме разговори с главния архитект и Столичната община за реализацията на този план. Логично е общината да предложи план-програма за изпълнението на конкретните проекти, включени в тази

концепция - първо да се намерят положителните

и добри решения във всички проекти, за да бъде изработена обща стратегия за развитие на територията, обвързана с генерален план, интегриращ

ТЕРИТОРИЯТА

Целта на конкурса беше да променим облика на територията, която се слави с най-добра транспортна

обезпеченост, но и със занемарена, пуста и несигурна градска среда. Зданието на Централна жп гара беше реконструирано, разполага със спортна зала, която за съжаление не е търсена - за това място липсва критерият "безопасност на територията". Територията е маргинализирана, вечер е пуста и необезопасена. 5000 кв.м на „Пазари Възраждане“ под земята стоят неизползвани, магазините са празни и с решетки, за да бъдат опазени. Провали се възможността за пробив на бул. „Христо Ботев“ под Централна гара преди ремонта й. Цените на

имотите са доста по-ниски от тези в южните територии. Инвестиционният интерес към териториите

PRODUCTS AND TECHNOLOGIES

200 МОДЕРНИТЕ ХОТЕЛСКИ ПРОСТРАНСТВА

ПЕТЪР КАЛОЯНОВ

БЪЛГАРСКАТА КОМПАНИЯ "ТЕХНОГИПС

ПРО" ПРОИЗВЕЖДА СТРОИТЕЛНИ

МАТЕРИАЛИ ЗА ВОДЕЩИ ХОТЕЛИ В ЕВРОПА

ВЪЗМОЖНОСТИ ЗА ДИЗАЙН

ПЛАМЕН МАРТИНОВ

се трансформират в зависимост от сезона. Това са някои от характеристиките на съвременния ваканционен хотел. Инвеститорите все повече се стремят да предложат модерни туристически услуги на световно ниво:

затворените ваканционни комплекси осигуряват всички

магазини и др. С развитието на бизнеса и технологиите следваните стандарти

стават все по-високи, добрият дизайн се превръща в задължителна част от проекта, а нестандартните решения са честа практика - басейн на покрива или джакузи на терасата, душ-кабина с парна

баня ефекти, мини кухненски бокс и др. СПА центровете стават по-големи, с повече услуги и терапии, озеленяването е все

по-пищно, а красивата фасада с модерни

придава

стойност

сграден мениджмънт. Това коментират от Schneider Electric, като предлагат своето решение от пълна гама IP базирани продукти Connected products. Интеграцията спестява част от необходимите хардуерни компоненти и дава на крайния клиент свободата да експериментира с различни софтуерни платформи с едно и също устройство. Хотелските Widget приложения дават навременна информация за ОВиК, осветление,

на достъпа, видеонаблюдение, сигнално-охранителна техника и др.

В ТЪРСЕНЕ НА ВСЕ ПО-ИЗИСКАНО ПРЕЖИВЯВАНЕ

Тенденция към разширяване на кръга от клиенти, които търсят все по-изискано хотелско настаняване, констатират от "АлуКьонигЩал" - представител на висококачествените системи за остъкляване Schueco, Jansen и слънцезащита Warema. Трендът се наблюдава

както при ново строителство, така и при реконструкции

на съществуващи хотели на топ локации с потенциал

за привличане на платежоспособни гости. Увеличава се

инж. Венелин Касабов, "КА Дизайн студио". Проектът "Къща в стая" е отличен с трета награда в категория "Баня във ваканционен хотел" в 14-ото издание на конкурса "Ideal

Standard Баня на годината". Почивка, планина, хотелска стая, усещането за малка планинска къща е пренесено

от 10 години успяхме да се установим като водеща марка в България и да развием

дейността на компанията в 18 различни държави в Европа.

Всичко това постигнахме в години на дълбока

и тавани, които са съобразени с най-високите стандарти за строителство и отговарят на най-актуалните изисквания. Продуктовото ни портфолио включва както стандартни гипсокартонени плоскости, така и специални технически плоскости –влагоустойчиви, пожарозащитни, акустични, плоскости устойчиви на метеорологични условия за фасади. Допълнително произвеждаме всички необходими гипсови смеси за залепване, фугиране

на традиционните методи. Предизвикателството пред нас е да разработим

максимално опростени и лесни за изпълнение решения, които да гарантират високи показатели за огнезащита, акустичен комфорт, устойчивост на влага и удар. Освен това разработваме системи, които са лесни за деконструиране и могат след приключване на полезния си живот да бъдат демонтирани и върнати обратно за рециклиране и използване

Предизвикателството пред всички хотелиери е не само

увеличават броя на хотелите си и да разрастват бизнеса си, но и да създават изключителни сгради, които са проектирани с цел да отговорят и надминат световните стандарти, особено в области като акустика, пожарна безопасност и дълготрайност, като в същото време

изграждането им е по-бързо и по-ефективно, в рамките на строг бюджет. Всяка такава сграда трябва да

конструкция от метални профили в

комбинация с монтираните гипсокартонени плоскости

създават идеално гладка повърхност, готова за декорация само няколко часа след монтажа. Леките преградни стени

и окачени тавани позволяват всички инсталации да бъдат деликатно скрити. Заменяйки старите, традиционни зидарски методи с изключителна ефективност, сухото строителство осигурява най–високи показатели в ключови

(метална конструкция, гипсокартонени плоскости, негорима изолация и фиксиращи елементи) са проектирани и тествани да работят

ARCHVIEW GRADINARSKА FROM DESIGN TO REALITY

жилищни, обществени и промишлени обекти. Авторският надзор през

Арх. Ваяна Градинарска: Като водещ проектант на студио, занимаващо се с редица реновации и новопроектирани хотели и ваканционни комплекси, установявам една положителна тенденция и стремеж на хотелиерите за повишаване на качеството и условията на менажираните от тях комплекси.

Туроператори и хотелиери започнаха да преосмислят посоката на развитие на родния туризъм. За щастие ние, проектантите, получаваме все по предизвикателни задания и изисквания. Архитектурата и интериорът следват

вече международните тенденции, а не копират масовата нефункционалност и кичозна естетика отпреди 10 години. Собствениците осъзнаха,

като инвеститорски контрол на общите части на хотел РИЛА

iHOTEL

или веригата, които се допълват от плановете на инвеститора. Българските ваканционни хотели работят активно 4 месеца, а мечтите на техните собственици са те да приемат клиенти целогодишно, или поне пролет и есен, и дейността да бъде разнообразена с различни видове туризъм - конгресен, балнео-, исторически, в зависимост от предпоставките. Предлаганите от туроператорите модели обикновено са за all inclusive и нямат отношение към дейността извън сезона, която изисква допълнителни съоръжения като конферентен

блок. В България обаче определено има недостиг на

конферентни хотели. За годишните събития на КАБ

например се търсят хотели със зали за над 400 души, които се броят на пръсти. Другите направления са СПА и културен туризъм, които да осигурят допълнително натоварване с

клиенти.

Това означава, че проектирането трябва

Да, гъвкавостта трябва да бъде осигурена от инвеститор и проектант. Тенденцията за по-голяма флексибилност и за удължаване на сезона се засилва от няколко години. Един от новите ни хотели е с много

гъвкава планировка, с разнообразни възможности за преконфигуриране на пространствата, например с мобилни

стени и прегради, като в едно обслужващо пространство има възможност за няколко функции - хранене, конферентни цели, презентации, културна програма.

Оскъпява ли се проектът от тази

многофункционалност? Многофункционалността зависи от локацията, от микса от функции, от инвестицията и

начина на управление. Промените на функциите често се случват в рамките на самото проектиране. Целогодишното функциониране води до по-скъпи конкретни решения и по-сложни инсталации, например за осветление, ОВК, управление. Как ще

"Техноджим" е водеща компания за доставка на

висококачествени уелнес решения за хотели, ваканционни и

апартаментни комплекси, фитнес центрове, голф комплекси и частни клиенти. Ексклузивният дизайн, иновативни технологии, перфектно качество и 30-годишният опит превръщат компанията в предпочитан партньор на найпрестижните хотелски вериги по целия свят.

КОНЦЕПЦИЯТА WELLCOME WELLNESS

излиза извън рамките на традиционната хотелска фитнес зала. Тя предлага на гостите

технология,

избора на марка. "Техноджим" създават първата облачно

навсякъде, където има такъв тип оборудване. Това е

изисквания за комфорт, обслужване, дизайн и

иновативност. Интересуват се от нововъведения не само в

общите помещения, но и в стаята, където неразделна част

от помещението е банята.

Хотелиерите на всяка цена искат да удовлетворят очакванията на своите клиенти, като същевременно,

всички тези фактори, които стоят зад успеха на хотелския бизнес, Ideal Standard със своята експертиза, партньорство и качество на продуктите може да покрие и най-високите стандарти на професионалистите. В продължение на десетилетия Ideal Standard е новатор в индустрията и разработва иновативни материали, технологии, механизми за пестена на вода, системи за повисоко

при

Evo са с нова, лесна за използване бутон-технология, която

дава възможност за бърз избор на режим на разпръскване

ПРОСТРАНСТВОТО, НАРЕЧЕНО БАНЯ

АРХ. БОРЯНА АНДОНОВА ИНЖ. ВЕНЕЛИН КАСАБОВ КА ДИЗАЙН СТУДИО

Проектът "Къща в стая" беше отличен

но

сигурни прегради, позволяващи преминаването на светлина от основното помещение към пространството в банята. Интериорното осветление е решено по начин, който позволява различни сценарии на осветяване на

архитектурното пространство. Безопасността и лесната хигиена са от съществено значение, както и спестяването

на вода и енергия. Материалите и оборудването са

съобразени с изискванията и нуждите на хотелската баня.

Богатият избор на санитарна керамика и арматура

предлага неизчерпаеми и непреходни решения, които внасят нов живот в банята. Съвкупността от висококачествени материали и технологии, майсторски адаптирани в банята, преобразяват обикновеното санитарно помещение в кът за релакс, разкрасяване и тонизиране.

Biodit – водещ производител на биометрични продукти, системи и решения за сигурност, и "Солид 55" – лидерът в производството на блиндирани врати, представиха уникално решение за сигурност за дома - EasyLock. Това е първата по рода си врата с биометрично заключване, която предоставя високи технологии, съчетани в практично и сигурно решение за всеки дом.

ЗАРАЖДАНЕТО НА ЕДНО ПАРТНЬОРСТВО Партньорството между Biodit и "Солид 55" се ражда както повечето хубави неща - случайно. Управителят на "Солид 55" Христофор Христов е привърженик на новите технологии и един от клиентите на Biodit с инсталирана биометрична система за автомобилна

“Партньорство от този род се осъществява за пръв път в България. Вярвам, че българските производители

трябва да се подкрепяме и да работим за по-качествени

продукти и услуги. Това е един добър знак за новата вълна

в предприемачеството у нас”, споделя изпълнителният

директор на Biodit Юлиан Софрониев. "Солид 55" е българска фирма с близо 30-годишна

история, предлагаща продукти на световния пазар с фокус

върху сигурността, заключващите системи и дизайна.

Тенденциите в производството на врати са свързани с

електромеханичните заключващи системи. “Постоянният ни стремеж да предлагаме нови и

иновативни решения на нашите клиенти ни вдъхнови да потърсим партньор в проект като този. Вярваме, че за да бъдем успешни,

хотел "Парадайс Блу"

комплекс

комплекси” на националния конкурс “Сграда на годината България 2017”. Изправени пред предизвикателствата на изключително кратките срокове за проектиране и строителство, прилагането на нови технологични и екологични системни решения и материали, водещите проектанти от „Проектантско бюро Албена“ ООД решиха да заложат на системите "Кнауф" в обекта. Инвестиционната програма на възложителя, насочена

малка конструктивна височина; малко тегло.

Перфорираните гипсови плоскости Cleaneo Akustik са намерили приложение в предстенните

стените в малката конферентна зала. С тях се постига съвършена акустика независимо от геометрията и функцията на помещението. Акустичните плоскости

на зеолита, който се съдържа в ядрото им. За изграждане на вътрешните стени на уелнес центъра и закрития басейн

Aquapanel Cement Board Indoor, която

Aquapanel Cement Board Outdoor,

Маре" в кк Златни пясъци или "Аква Парадайз" в Равда, които "Пайп Систем" реализира успешно, предизвикателствата са свързани най-вече със срока на изпълнение. Обикновено при подобни проекти е важно

за кратък срок да бъде изпълнена цялата инсталация, и то с високо качество. При луксозните градски хотели

предизвикателствата произлизат от последващата

експлоатация на сградите. Разбира се, и тук е важно

инсталациите да

изпълнени с

качество

най-детайлните елементи като фитинги или вентили.

Механизмът на моделиране наподобява този, който

използваме в реалния свят – първоначално се определят

елементите и се залагат характеристиките, които

притежават, след това разгръщаме етапите на изпълнение,

като се достига до финалната визия на един завършен

проект. Всеки виртуален обект, създаден по този начин, е дигитален прототип на реалния, притежаващ всички

негови параметри. Получените модели могат да се ползват за изчисления, симулации, анализи и доклади. Залагаме на функционалността на BIM, защото тя ни позволява да предвиждаме в един ранен етап всички възможни ситуации на обекта. Също така анализираме разходите за материали, труд, графика за изпълнение на строежа, топлинния товар на сградата, дори очакваните разходи за поддръжка. При

традиционното проектиране голяма част от времето е

посветена на конструктивната документация. Постоянно се

правят промени, корекции, актуализации и забележки, чрез BIM

технологията всички документи са събрани на едно място, а

промените са записани и контролирани.

Ценови ли е пазарът? Какво е съотношението ценакачество?

Разбира се, че пазарът е ценови, независимо от категорията, за която е предназначен хотелът. В

крайна сметка се търси най-доброто съотношение цена – качество. В съответствие с потребностите на

в "Пайп Систем" основната ни цел е да предложим най-доброто

участието ни в проекта им. Държим да им предложим оптимизации още

какво още да направим по отношение на качеството на проектите и връзката им с реалното изпълнение. Нашата задача е да направим един проект максимално изчистен и ефективен, да направим приемлив бюджет и

го изпълним качествено. На нашите клиенти предлагаме 10-годишна гаранция на изпълнените инсталации, като с това заявяваме своя дълготраен ангажимент към тях. “Пайп Систем” в партньорство с “Дженерали застраховане” АД допълнително подсигурява

ДЕНИЦА

CRYSTAL SPA & WELLNESS

ефект архитекти, дизайнери и СПА експерти влагат не само собствено въображение, но и актуалните технологии и иновации. В нашата работа като представители на Klafs и други водещи

решения, валидни в световен мащаб, съобразявайки

на всичките ни сетива. Разгръщането на СПА индустрията

диктува задълбочен поглед върху планирането и дизайна на

подобен тип пространства. В съвременното развитие на

бизнеса бих се фокусирала върху разработването на така

наречените тихи СПА пространства. Това са обособените

кътове, в които не се допускат мобилни устройства и

разговори между посетителите. Световните примери в това

отношение вече успешно функционират в Америка. Европа

бързо се адаптира към разпространената тенденция на

рекреативни пространства, в които подобно на индийските и будистки храмове цари тишина и спокойствие,

Киркова.

от

За

www.crystalspa.eu

от злонамерени действия. Дамаските и текстилни материали трябва да бъдат негорими, предвижда се

пожароустойчивост на вратите към стаите и

евакуационни стълби съобразно нормативните

изисквания. При висока степен на риск се

въвеждат допълнителни изисквания като

бронирани стъкла, бетонни елементи, блокиращи достъпа на автомобили, различни степени на

противопожарната служба. Контролни модули и детектори следят за течове на вода

и в случай на необходимост автоматично се спира захранването.

Видеоаналитичните функции и лицевото разпознаване навлизат бързо в хотелската практика и използването им позволява

проследяването на движението на определен човек по критерии като цвят на дрехата например. Internet оf Things технологиите в една

иновативна сграда дават възможност за пълна

автоматизация почти без човешка намеса.

Управлението на осветление, щори, климатизация, качество на въздуха или нивото на шума се

извършва ефективно и оптимално благодарение на инсталираните сензори, коментира казва Биляна Попова, ръководител „Сигурност и автоматизация“, "Телелинк

ВИСОКОТЕХНОЛОГИЧЕН

Може ли да представим основните технологични насоки и системи в сградния сектор, където е експертизата на "Телелинк"? Ние можем да предложим комплексни решения, включващи абсолютно всички системи, свързани със сигурност, комуникация и комфорт в една сграда независимо от предназначението й – офис сграда, летище, гара, спортна зала. Като интегратор работим с различни технологии и

клиенти възможно най-оптималното решение спрямо техните конкретни нужди. Характерно за компанията е, че

приоритетно се стремим да дефинираме реалните проблеми при всеки проект и търсим

мениджмънт, интерактивна телевизионна система за гостите на хотела, система

управление на хотелските стаи, аудио-визуални системи, паркинг система и система

на поставените изисквания и същевременно да бъде интегрирана в

цялостната платформа на хотела. Гостите на "Хаят Риджънси" ще могат да се възползват

от високоскоростен безжичен интернет, интерактивна

телевизия със специализирани менюта, Digital Signage

дисплеи за извеждане на информация за събития и промоции,

организирани събития в балната зала със специализирано

озвучаване и визуализация и много други. Като по-интересно може да бъде посочено решението

за отчитане присъствието на гост в хотелската стая

по вторични признаци, без да е необходимо поставяне на

картата в определено за целта място, което е обичайният

подход. Системата за управление на хотелските стаи ще осигури тази функционалност, като същевременно ще отговаря за необходимото енергоспестяване и за

задействането на автоматизирани сценарии при влизане

на гост в стаята. Допълнителни улеснения за гостите

чрез системата за интерактивна

- OPERA.

Какво е значението на системната интеграция и на

комплексните решения в сектора? Интегрираните решения вече стават все по-търсени. Самият пазар налага

нуждата от такива решения. В световен мащаб всички

виждаме на какво сме

усеща, когато пътува, посещава концерти или пък просто се

посетители в сградата от работещите в нея. Internet Of Things технологиите също започват да се

на улицата, на полето. В една умна сграда се очаква, че всичко ще бъде автоматизирано и работещо почти без човешка намеса. В днешно време управляването на осветлението, щорите, климатизацията, качеството на въздуха или дори нивото на шума в

сграда

става

много по-интелигентен начин, базирайки се на сензори, които могат да следят, общо взето, почти всичко.

цена

предимства. Всички знаем за съотношението 30 на 70, показващо съотношението на разходите за построяване на една сграда към разходите за експлоатация за 30-годишен период. Системите, с които работим, са от доказани производители и работят по-устойчиво и много години без дефекти, освен това имат много повече функционалности и са доста по-лесни за поддръжка. Системите трябва да могат да работят 24 часа 7 дни в седмицата безотказно, защото са жизненоважни за функционирането на една сграда и точно заради това не трябва да се

SCHNEIDER ELECTRIC CONNECTED PRODUCTS

устройства на всяко ниво.

гама продукти за реализирането им – Connected products. Наименованието им идва не само поради възможността за интеграция, тъй като тя е използвана от доста години, чрез различните видове протоколи, а защото нашите Connected products стават

за

Затова Schneider Electric усилено инвестира в свои приложения и продукти, които

ЕФЕКТИВНОСТ,

И БЕЗОПАСНОСТ В СЪВРЕМЕННИТЕ

СГРАДИ

лоялността на доволните клиенти

на нови такива. Предизвикателствата

инвеститорите, собствениците и управителите на хотелски сгради са свързани с осигуряване на комфортна среда, сигурност на гостите и персонала,

технологии" на Siemens предоставя съвременни, усъвършенствани, надеждни и комплексни решения. Чрез персонализираните хотелски решения на направление "Сградни технологии" се постигат значителни икономии на

осветеността, слънцезащитата, достъпа до стаята от едно единствено място - мобилно устройство или стаен панел. Допуска се използването на предварително зададени сценарии. Също така все повече се изисква и интеграция на аудио-/видеосистемите към стайното управление. Същите изисквания са валидни и за друг аспект в съвременните хотели, а именно конферентните зали, предвид факта,

Тук следва да добавим нуждата от управление на тяхното резервиране

Сигурността и

околната среда са фактор, който влияе върху спокойното

пребиваване на гостите, репутацията

възникване на

и светлинна сигнализация в стаите и поетапна евакуация

(ОВК),

стаен

слънцезащита, електрозахранване, кухни и асансьори, инсталации за басейни и др. Интегрират се и се наблюдават системи за пожарна безопасност и сигурност като: пожароизвестяване,

www.siemens.bg/bt www.siemens.com/buildingtechnologies #CreatingPerfectPlaces

конкурс „Сграда на годината 2013“ в категория "Ваканционни

комплекси".

ХОТЕЛ "САНКТ ПЕТЕРБУРГ"

Парк-хотел „Санкт Петербург“ е най-високият модерен

комплекс в град Пловдив и предлага уникални гледки

към река Марица и градския център. Поради факта, че

емблематичният

Schüco FW 50+.

услуги; енергийни спестявания с гарантиран резултат

съоръжения и инсталации.

положителни резултати след реализирането на проекта са постигане на 10% икономия на енергията, подобри оценки и сертификати за енергийната

ПАЗАРИ И

ИНВЕСТИЦИОННА

MARKETS AND INVESTMENTS

258

година отбеляза умерен растеж (2.5%), което допринесе благоприятно за хотелиерския бизнес. Рекордните нива на пътуване накараха хотелските вериги да търсят нови места за инвестиции. Една от най-големите хотелски вериги в света – Hyatt, отваря 2 нови хотела в Европа. Nish Palas в Истанбул

на международните пътувания и чуждестранните туристи хотелиерите

бизнес. Така накратко може да се обобщи хотелският пазар

започнати два нови хотела под международни брандове в луксозния сегмент – Hyatt Regency и Marriott, отвори нов Premier Best Western, а Intercontinental замени Radisson Blu срещу парламента. Извън общите за региона фактори ръстът

ускоряване на растежа по тези показатели спрямо предходната година. Очаквано, най-сериозно покачване на цените

през 2017 г. отбелязаха 4- и 5-звездните

хотели в центъра на София, които в масовия

случай са първи избор на гостите по време на европейското председателство. През последните

години част от тях преминаха и през цялостно

Източник: Cushman & Wakefield Forton

поредица срещи на високо равнище, семинари и

конференции. В дългосрочен план позитивният

ефект се очаква от популяризирането на

София като дестинация за бизнес пътувания и

туризъм. Липсата на работещо българско бюро за конферентен туризъм, което да разгърне потенциала на страната като MICE дестинация, обаче прави много хотелиери скептични

относно дългосрочния ефект от европейското председателство в тази посока. Председателството

Източник: Cushman & Wakefield Forton

заетостта тази година, но този тренд едва ли

ще продължи в средносрочен план.

Възходящото развитие на пазара от

последните години обаче доведе до ръст на инвестициите в нови проекти в София, включително на такива, опериращи под световни

брандове. Сред примерите са споменатите вече

Hyatt Regency и Marriott, съвместният проект под

брандовете Novotel/Ibis, както и строителството

на Hampton by Hilton в центъра на София.

Българските вериги също са активни на пазара – НИКМИ е на път да добави нов 5-звезден хотел към портфолиото си с Millennium Center. Предстои

реновирането на придобити

и планираните хотели в тази

категория ще добавят близо 990 нови стаи, което е близо 70% ръст спрямо сегашната база. Това в

комбинация с очакваното забавяне на пазара прави

инвеститорите и мениджърите по-предпазливи.

Много от тях смятат, че в 5-звездната

категория няма място за проекти извън вече

обявените и започнати, други виждат ниша в средния ценови клас и алтернативни сегменти като апартаментите под управление (serviced apartments).

Интересът към сделки с готови активи традиционно идва основно от български купувачи, които

ПРЕЖИВЯВАНИЯТА

TAKUYA AOYAMA is a vicepresident "Development and AcquisitionsEurope, Africa and Middle East" at Hyatt International. He is responsible also for the russian market. From 2003 to 2008 mr. Aoyama is vicepresident "Development and Acquisitions - Japan, Korea and Micronesia"at Starwood hotels & Rersorts.

на тази година ще покаже подобни стойности на повишение. Събитие като председателството на Съвета на Европа определено помага за това. В миналото проблемът беше, че в България търсенето не беше достатъчно. Това, което виждаме в момента, е, че обемът се повишава и

започнахме да правим изчисления, които показват възходящ тренд. Средната годишна печалба на хотелите в София от една стая е 80 евро. Когато нивото на запълняемост

на хотелските стаи в столицата достигне 70% или 80%, тогава ще има и повишение в печалбите. В момента

София е с 65% запълняемост. За сравнение - в Букурещ и Будапеща процентът на запълняемост е 85. Това означава, че хотелите там са

Since, you are a highly experienced hospitality professional and, given Hyatt’s regional exposure what is your opinion about the current situation in the hospitality industry in SEE and So a particularly? Where are the gaps and where is the potential? The good news is that the marketing is growing. The number of visitors to Bulgaria was 8,2 million in 2017. Which is 16% increase over the previous year. Serbia had 13% growth, and Romania 10%. More people are coming to the region and that will reflect on how hotels perform. The occupancy data shows that 2017 compared to 2016 marks 15% increase. I think the 1 quarter this year represented similar growth – although this year you have special event, the EU presidency. The problem in the past was that demand was not growing enough. So what we see now is volume coming in and hotels also started pushing rates. Sofia is still a low-rated market –roughly speaking, 80 euro per room average. But when occupancy reaches 70% or 80% - Sofia, by the way, is about 65% - then the prices would go up. For example, in Bucharest and Budapest the occupancy is 85%. That means they are almost always full. When you are full you can manage rates better. When we come to Sofia we will try to be the leader in terms of rates, and we hope that the occupancy will be high as well. Generally speaking, the hospitality sector in this city needs to continue improving the physical product and things like guest experience and consistency of service to justify higher rates.

Given the business environment, how are your regional assets performing? Tell us more about the main success factors? Generally they follow the market trend. Our property in Istanbul suffered when the market went down due to instability and it bounced back. Belgrade has been stable. We manage this hotel since 1990, and the hotel is still working very well. The challenge for Belgrade is how the market is going to absorb the new additions. Few years Radisson came, Hilton just opened and the question is: Is there going to be enough demand?

пазара. Работата на хотела ни в Истанбул намаля, когато туристическата активност в страната се срина, но след това се възстанови. Пазарът в Белград е стабилен. Там

управляваме хотел от 1990 г. и той все още работи добре. Предизвикателството там

търсене.

Кои са основните двигатели на

Tell us more about the major demand drivers for the local hotel industry and what should be done for it to become more successful? In a country like Bulgaria which is not a major financial center or a major producer of industrial goods, corporate demand can be rather limited. As a matter of fact, I read that many multinationals consider Poland, Turkey, Russia and Romania as core markets, and Bulgaria does not feature there. So we need to work hard to gain presence in this segment of business. On the other hand, the economy is growing at about 3% annually, and it has much space for growth. For instance, GDP per capita for Bulgaria is something like 8,000 euros, whereas Romania’s is over 10,000 euros – but everybody has the aspiration to earn more, live better and do new things, and that will create so much opportunities. There will be more domestic and regional tourism demand. I think Bulgarian tourism stakeholders has the possibility to work together and package experience which is really authentic, and you have channels such as social media to promote the destination. I also think it worthwhile for countries in the region to think about pooling resources to market and promote destinations together- although I admit this is not likely to be easy to say the least.

Hyatt Regency Sofia a is now under development – what was the rationale behind the decision to enter So a, what are your plans and expectations about the performance of the project? The decision to come to a market depends on having a good project, and a good project means financially sound, good location good sized and good local partner. And we found one such project here in

подходящ размер и да имаме местен партньор. Ние намерихме всичко това в София. Вярваме, че Hyatt Regency Sofia ще бъде най-добрият хотел в града, когато бъде отворен. Задачата на нашата компания е да сме представени на първо място в столиците на Европейския съюз. Искаме да сме в Букурещ, София, Загреб и т.н.

Бихте ли дали повече информация около проекта ви в София? Кога ще се открие и какъв е моделът на

управление? Плановете са Hyatt Regency да отвори врати

през последната четвърт на 2019 г. Археологическите

находки забавиха малко изпълнението, но проектът

продължава. Хотелът принадлежи на „Тера тур сървис“, нашата задача е да управляваме техния бизнес чрез договор за управление.

Когато говорим за договор за управление, кои са

особеностите, които сте взели под внимание, и на какъв

от проекта го направихте? Искаме

е безопасността.

Препоръчваме на собствениците на хотели специалисти във

въпросните области, които познават продуктите ни и които сме одобрили. Този процес се случва по време на разработката на даден проект.

Каква група посетители искате да привлечете в Hyatt Sofia? Колко гъвкави може да бъдете спрямо привличането на различни групи клиенти и какви са финансовите ви

прогнози? Насочили сме се към привличането на клиенти, които идват за бизнес или почивка в София, от Западна Европа, Северна Америка, Гърция, Израел и т.н. Около 60% от приходите трябва да дойдат от настаняване. Останалите

се очаква да дойдат от конференции и други подобни

Sofia. We believe that Hyatt Regency Sofia will be the best product in town when it opens. As a company we have to be in the capital cities of the European Union. We would like to be in Bucharest, we’d like to be in Sofia, we would like to be in Zagreb etc.

Tell us more details about the project? Number of rooms, facilities, value of investment, how is the process going and when to expect the opening of the hotel? I believe we are looking to open Hyatt Regency Sofia in the Q4 of 2019. The discovery of archaeological site delayed the schedule a bit but the project is back on track. The hotel will be owned by Terra Tour Service and Hyatt will come as a manager of the business under the management agreement.

When we talk about management contract, tell is about the requirements that were taken into consideration by the developers, and at what stage of the project? We would expect our hotel owners to follow our design standards, which include MEP and Fire and Life Safety. Actually, I find it really surprising that many people still underestimate the importance of Fire and Life Safety. We try to ensure compliance with standards by asking owners to select specialists, such as interior designers and Fire and Life Safety consultants, who know our products well and who are approved by us. This should happen as soon as possible in the development.

One of the most important factors is the target group of customers. Which are they for Hyatt Regency and what is the forecast for the hotel development? Major customers will be business and leisure travelers from Western Europe, North America, Greece, Israel etc. Most probably the rooms business would account for about 60% of the hotel’s revenues, the rest coming from food and beverage, meetings and events. Hyatt feels very strongly about successful F&B and there will be a lot of emphasis on this at Regency Sofia. There is quite an active F&B scene in the hotel’s neighborhood and if would be great if we manage to attract part of that crowd to the hotel.

There are different types of operational structure (leasing, franchise and license). Why have you chosen management contract for your project in So a? What is the operation model in your other locations in the SEE? Hyatt Regency Sofia is management agreement. As I said earlier this is a business model where the investor builds and owns the hotel but doesn’t want to manage it and deal with all sorts of issues which come with operation. At Hyatt, we love managing hotels, and we’d continue to pursue management agreements in the SEE region. I happen to believe that management contract is the best way to attract and promote local talents as well, and it is a very important matter for me and for us as a company. For instance, we have Serbian colleagues in senior positions thanks to our Belgrade property, and we’d love to do the same with Bulgarian associates here. I feel that under franchise model, we lose this direct link with the local market and local talent pool, which makes franchise deals bit difficult for me personally. Having said this, there are instances – let’s say a small hotel in a secondary city - where it does not make sense for us to manage, in which case it would be rational and logical to go for franchising. But we will consider franchising very selectively.

One of the biggest challenges for the hospitality industry are the human resources. How are you dealing with the attracting, training and retaining a good team of professionals?

Everybody will tell you that the human resources became a huge issue. Especially in low wage environment in a relatively low wage industry. It is natural that people from the region wants to move to Western Europe and earn more, and we need to do a better job at attracting and retaining people. We will work together with “Tera tour service” to find talent here and we’d do our best to train them and promote them. We’d also bring colleagues from other Hyatt properties to help. As I already mentioned, we’d love to have Bulgarian associates join us here in Sofia and then move within our system and get promoted.

целия процес.

Липсата на персонал е едно от основните

предизвикателства не само за хотелския бранш, но и за

икономиката като цяло. Как успявате да привлечете,

обучите и създадете добър екип от професионалисти?

Всеки ще ви каже, че намирането на подходящи хора е трудна задача. Особено в сфера, в която заплащането е по-ниско.

Нормално е хората от региона да искат да работят в

Западна Европа и да печелят повече. Трябва да привлечем и

да задържим служителите. Работим с „Тера тур сървис“, за

да намерим служители. Ние ще ги обучим, а също така и ще

докараме хора, които преди това са работили за Hyatt. Както

казах, много ще се радвам българи да работят при нас и да се

изкачват по професионалната стълбица при нас.

HENNING KRIPPENDORFF

COO OF ROSSLYN HOTELS GROUP, PRESIDENT OF SKAL INTERNATIONAL SOFIA

високия клас

клиенти? Имаме нужда и от двете. Повечето от хотелите се

управляват по някакъв начин семейно и нямат професионално

минало. Те печелят и губят от симпатии или грешки в

обслужването. Това го има в цяла София. Има и хотели като

нашия (Central Pаrk Hotel - бел. ред.), които имат професионално минало. С повечето колеги имаме опит в съвместната работа, затова можем да допринесем за бранша с нашите умения и знания. Разбира се, преустройството на хотелите след закупуването им е нужно най-вече заради възрастта на сградите. Българският пазар трябва да бъде много по-активен и трябва да има много повече сътрудничество между всички в индустрията. За съжаление в София

От ваша гледна точка кой е най-добрият модел за растеж на

на Европейския съюз, увеличението на полетите на нискотарифните авиокомпании влияят положително

на хотелиерския бизнес. Това са фактори, които могат да

бъдат използвани. Защото хората казват: „Приходите ви ще спаднат след края на европейското председателство.“

Но това не е вярно. София и България трябва да бъдат във водещите заглавия. Хората започват да осъзнават, че освен черноморското крайбрежие в България има много повече. За жалост маркетингът и рекламата никога

властите например. Никога.

Пазарът зависи почти на 100% от маркетинга на

авиокомпаниите.

Онлайн мненията също играят важна роля. Хората дават

положителни отзиви за София, след като са пътували тук. Давам пример с група британски младежи. Те обикалят

баровете в София и носят приходи на нас, хотелиерите, но носят и приходи

Мr. Krippendorff, you are a professional with great experience in the hospitality business worldwide and in Bulgaria. According to you what is the market atmosphere of the city hotels in Sofia? Where are the cracks and where is the potential at this moment? The product variety which you have to invest in European countries, talking about service department, talking about design budget hotels and all this kind of elements we don't have them. We have classic hotels, we have a couple of branded hotels, we have international branded hotels. But to fill up the city has destinations that are not discovered.

So you see the potential in segmentation of the market and you need more middle to high class service. We need both. More of the hotels are kind of family run and don’t have professional background. They are winning and losing through sympathy or lack of service. We have this all over town. Then you have hotels like ours, which have professional background. Most of my colleagues have experience working together. So we can contribute here by putting a group which can provide services. Of course the refurbishment of the hotels after they are purchased and because they are at the age you have to make such thing. But as I said then you are missing the design budget hotel like motels. And service apartments. This kind of elements are covered only by private initiatives but the professional background is still not there. We must became much more active market and to make much more collaboration with the entire hospitality industry. Speaking of Sofia and Bulgaria it does not exist.

Which is from your perspective the best way for market to grow, except the segmentation. Different kind of initiatives like the EU presidency this year or the budget airline companies which came? What else? This are factors which can be used. Because people say “Yes, you will drop after the EU presidency.”But this is not true. Sofia and Bulgaria must be much more in the headlines. The people begin to realize that beside the Black sea coast there is much more. So the city marketing which has never been initiated by the municipality. Ever. The market became dependable from the 100% marketing by the airlines. The online opinions are also important. The people are giving positive feedback for Sofia after travelling here. For example a group of British bachelors. They are killing every bar in Sofia. But they bring revenue for us in terms of accommodation and they bring revenue for the bars. Sofia developed a culture. In the past you would go to particular places. And I’m not talking about historic places. I’m talking about restaurants and cafes. And meanwhile from here it doesn’t take more than 15 minutes to go to attractive places. 15 years ago a waiter would tell you “Please don’t bother me” and you have to smile to the receptionist for the check-in hoping you can get a reaction. That has completely turned around. It’s amazing. It’s selfeducation. It’s mixture of young people coming home from studying abroad. They are not top professionals but they are really welcoming you as a guest.

So the accommodation service is a factor? Yes. What we need is the industry working together. But it’s not the job of the hotel industry to create an image of the destination, but it’s contribution. When I talk about Sofia I always compare it to other capitals in Eastern Europe – Zagreb, Belgrade. The difference is that they have masterplans, they have country masterplans. For example Serbia agreed for a masterplan in 2007.

Where is your hotel group positioned and which is target group you want to attract? It’s the middle-upper class. Typically 4 star

за бизнес или конференции, но също така и за туризъм. Особено през лятото. По време на Възкресение и Рождество много хора търсят къде да почиват. Хотелите

градят рейтинги и имидж най-вече в booking.com и tripadvisor.

Това е особено важно. Посетителят, който е дошъл на почивка

при теб, веднага след като се прибере, пише коментар в един

от въпросните сайтове. Следващият, който иска да дойде на почивка в България, ще избере в кой хотел да отседне

благодарение на преживяванията на предишните гости. Това е

важно и хубаво за нашия бизнес.

През 2017 г. вашата компания придоби два 4-звездни хотела. Този, в който сме в момента (Central Park Нotelбел. ред.) и „Тракия“. Как се подготвихте за тези сделки? И

имате ли планове за по-нататъшни придобивания? Самата

инвестиция включваше самото придобиване и привеждането

на хотела в по-добро състояние. Понякога мениджмънтът, който е управлявал преди нас, иска да спести пари, което се отразява на самото състояние на хотела.

Това означава ли, че сте инвестицията ви е с дългосрочна

перспектива? Да. Така е. В хотелския бизнес много рядко може да видите някой, който да влага пари за краткосрочни проекти.

Колкото по въпроса ви за бъдещи придобивания, обичаме да смесваме различните хотелски сегменти. Например хотелът ни във Варна (хотел "Димят" - бел. ред.). Много хора си мислят, че заради близостта до морето повечето ни гости са дошли на почивка. Това не е точно така. Много от посетителите ни

идват по бизнес. Това търсим ние. Както туристи, дошли на почивка, така и гости, които идват по работа.

Инвеститорите като вас търсят ли активи, които не са

управлявани добре, за да ги развият след придобиването? Не,

product. I’m not referring to Bulgarian categorization.

So it’s a business traveler oriented together with the weekend break tourists? We have very interesting market mix. It really depends of the location of the hotel. In Thracia for example we have very strong leisure group and market demand. Here we had to increase it and we did it. We are not having just the typical business and conference guests but also the leisure segment. Especially now during the summer time. During Easter and Christmas a lot of people are looking for vacations. The hotels have an image, through booking. com or tripadvisor. You create an image and when this image goes to leisure traveler the city visitor, the country visitor takes a car and moves around. That’s good.

In 2017 your company acquired two 4-star hotels. The one we are in and Thrakia. What were you considering before the deals and are you looking for further expansion? We wanted to see some factors as a clue for the return of our investment: The acquisition itself and the investment to get the hotel in shape. Sometimes the management before us wanted to save some money so we had security issues. These were our main expenses.

This means you are a long term investor? Yes. Long term. In the hotel business it is very rare to see someone making such thing as a short term investment.

And what about a further expansion. Do you have plans to make more investments in city hotels or why not in vacation hotels? Well we like to mix. If you look Varna for example no one sees that we have a lot business guests. Some of them stay for a long term. In summertime sometimes we don’t have enough space for the leisure demand. This is a mix. This mix makes hotels interesting. This is what we look for. We look for locations. We need business and also leisure visitors.

So you diversify your hotels? Yes. We have to see it long term. We have to see the tendency. And my colleagues are very good at this.

Was there enough choice of investment product for an asset? I was not part of the team at that time. There was no interest in the market, the ownership was changing.

Generally you are looking for assets that are not performing very well or were not managed very well? No, Central Park was managed well but it came a moment that the owners wanted to sell it. In Thracia we had foreign tenant and that hotel was managed in a very particular way. We started refurbishments especially in the public areas. Then in the rooms we have completely new beds and we are preparing new internal design for some of the rooms. A normal cycle. We made all the refreshments which were necessary. I wouldn’t fix any price for refurbishment. Here I have much more infrastructure in other hotel we don’t have it because we don’t need it. We are serving breakfasts and we are serving lunches and dinners which are produced here for the conferences in our other hotels. We do stuff exchange too.

Other investors are looking for the best formula to find the best model to realize the costs. We make that kind of calculation very often for our clients. And every time it was different. Once we had our numbers we went back to the investor and say: “Look if your strategy is to have this and this hotel, here are the expenses which are in front

Разкажете повече за индикаторите по отношение на хотелите, които управлявате? В момента това е конфиденциална информация. Но когато инвеститор ни зададе подобен въпрос, ние правим проучване на пазара. Основно в booking.com, което е така наречената мръсна калкулация. Тя не

е точна, но ни дава представа каква е посоката на развитие.

Кои са предизвикателствата пред процесите на

управление на хотелите? Всички сме изправени пред

предизвикателството да привлечем млади хора да работят

в хотелиерския бизнес, защото в началото няма много пари,

а има доста работа. Но така са започнали всички. За щастие хората тук са професионалисти. Те имат опит.

Колко души работят в екипа ви? Мениджмънтът е от 4 души, а общо сме 16. В началото не ни се

of you.” But it was different every time. Sometimes you have to change the concrete. The operational part is easier. The maximum which you might have to do is to replace 50% of the kitchen. You might have more expenses at some point but the profit will be bigger. If you want to save money and have bad kitchen, this will not be good for your hotel. That’s why sometimes the cheapest way becomes the most expensive. In Varna for example 2 years ago we made completely new elevators. I was not working in the company at this time, but our clients refused to leave the hotel. They said: “Do what you want, but we stay”. So our guests used the panoramic elevator and the service lift. They were fine with it.

So are you seeking for new assets? Yes, we are looking. And if we found something good for our portfolio we are going into the serious part.

And what about the indicators? What are the main indicators for the hotels you are operating? RevPar, ADR, are they performing by plan. At the moment it is confidential. But as we do when some investor comes to us and asks a question, we go in booking.com and make the so called “Dirty calculation”. We make reverse calculating and see what way it is going. But this is not serious calculation.

What are the challenges in front of the hotel management processes? We all face the challenge to bring the young people to work in hospitality because in the beginning it is not much money and a lot of work. But that’s how everyone start it. Fortunately the people here are professionals. They have experience.

числата. Често таксата за управление на хотел е прекалено висока за собствениците. В наше време това не е удачният вариант. Преди 10 години българският пазар не беше готов за пристигането на

големите вериги. Но сега има нови мениджъри, които правят това възможно. Таксата за управление би била в следното съотношение: 3:3:10. Това ще рече 3% от годишния приход, 3%

How many people are working in your team? The management team is 4 and overall there are 160 people. They were already here. We didn’t have to do a lot of replacements. Although people don’t like the replacements most of them stayed. The mindset of the people is like that: “If there is replacement this is bad”even it is actually good for them. Also the operating costs are changing and people are looking for reasonable salaries.

How emerging is the market here? In Sofia Intercontinental are purchasing a hotel this year. Hyatt and Marriot are also coming in the Bulgarian market. Altogether the market is accomplished. So if you want to make a new hotel, you really have to have a good idea.

Which is the best operational structure for this kind of assets. Are you going to for a kind of license operations contract or something else? We made a rebranding. All of our 3 hotels are under the brand “Rosslyn hotels”. Which is operating only here.

If someone else wants you to operate their hotel, are you going to agree? It depends on the numbers. Often the tax for the owner of the hotel is too big to hire someone to operate his hotel. Today it’s not always the best way. 10 years ago the Bulgarian hospitality market was not ready for the big brands to come. But now there are new managers which make that possible. The tax would be 3:3:10. 3% on the revenue, 3% marketing, 10% from the GOP (gross operating profit). No one agrees on that anymore. If I’m on the greenfield and I want to make a positioning then it makes sense to look at all the

същото както в Белград. В България инициативата за

провеждане на подобни конференции идва от индустрията, а не от Министерството

конференции се провеждат в България, но още повече в Белград. Каква е причината? Липсата на бюро за конгреси. А за това ти трябват само двама души, една кола и общ бюджет от

200 хиляди евро. Те участват на световни конференции и представят града на света. И след време приходите идват. Но е трудно. Един от моите приятели е директор на такова бюро и веднъж ми каза: „През първата година ми беше трудно

да обясня какво точно правя. През втората, когато хората ме виждаха, се усмихваха,

brands and to talk to them. But if you have a hotel like ours, with already have reasonable occupancy and average rate then the franchise cost is so high that the return of investment is not there.

What is the proportion of the revenue? There are conferences here but most of the profit comes from the accommodation. When the international brands bring you budgets during the discussion of the franchise agreement then in a setup like here, they see 60% profit from accommodation and 40% from all the other services. We are in the area of 70% to 30%. Which is also ok.

Is Sofia a conference location from external organizations? It’s growing. It’s happening like in Belgrade several years ago. It comes from industry itself and not from the ministry of tourism for example. A number of conferences came down in Sofia and they multiplied in Belgrade. What was the reason? The lack of convention bureau. 2 people, one car, total budget 200 000 euros. They participate in global conferences and present the city to the world. And after some time the profit will come. But it’s hard. A friend of mine which is a director of such a bureau said to me one time: “In my first year at work it was hard to explain to the people what I was doing. The second year when people saw me they started smiling at me. And in the third year there were a huge number of membership applications for the bureau.”

ANGELO ZUCCALA GENERAL MANAGER INTERCONTINENTAL SOFIA

ANGELO ZUCCALA has more than 15 years of experience in the hotel industry. He managed several hotels from the InterContinental chain in Cannes, Hurghada, Malta, Frankfurt and Bucharest.

за по-нататъшното развитие на сегмента, свързан с луксозен начин на живот. През следващите години водещи световни вериги също планират стъпването си на българския пазар с най-високия клас брандове от

портфолиото си. Уверени сме, че луксозният сегмент тепърва ще разгръща потенциала си, и то не само с фокус

на бизнес пътуванията, но и увеличавайки броя гости,

пътуващи за почивка и удоволствие.

Какви са основните двигатели за повишено търсене в хотелиерската индустрия в България? Първият важен фактор за подема на хотелиерската индустрия е икономическото развитие на страната. Брутният

вътрешен продукт на България отбелязва

развиващите се в света. Благоприятната среда привлича

много чуждестранни компании, а бизнес клиентите са едни от основните посетители на градски хотели като

InterContinental Sofia.

Вторият фактор е увеличаването на броя директни

полети, особено на нискотарифни компании, което води до неоспорим ръст на броя чуждестранни туристи.

Резултатите са особено осезаеми – за първите 7 месеца

от 2017 г. 3.75 млн. пътници са пътували до летище София, което се равнява на 42% ръст на годишна база. Третият важен фактор е, че

се наблюдават сериозни притеснения, свързани със сигурността, което води до засилено търсене на нови

дестинации както за пътуващите по бизнес, така и

Since, you are a highly experienced hospitality professional and, given Intercontinental’s regional exposure what is your opinion about the current situation in the hospitality industry in SEE and Sofia particularly? Where are the gaps and where is the potential? The hospitality industry in Bulgaria is extremely dynamic and marking steady growth rates in the recent years. These trends are supported by the business environment and the availability of more flights directly to the capital. The market and demand growth provide all necessary prerequisites for InterContinental Sofia to not only find its niche in the market but also to support the development of the luxury segment in the country. Looking at the plans for the next couple of years we are seeing unprecedented concentration of major hotel brands entering the market with their highest category brands. Considering these developments, we are confident that the luxury segment will continue to grow not only with business guests but also leisure customers. InterContinental naturally supports this trend as we are actively promoting the destination among our 100+ million loyal customers through the IHG Rewards Club. Sofia is also a market where more International brands have potential to operate in budget, upscale and lifestyle boutique segments as not many hotels are part of international chains.

Which are the major demand drivers for the local hotel industry? What should be done for it to become more successful? The first significant factor for the development of the hotel industry is the positive state of the economy. The GDP is marking a steady growth of 3.6% in the second quarter of 2017. Moreover, the region of Central and Eastern Europe is currently one of the fastest growing in the world. Economic revival leads to a drop in unemployment and an increase in income, which makes people feel more relaxed and spend more money. Also, the economic boom in Bulgaria attracts more foreign businessmen who are the main clients of the city hotels.

The second major reason for the good performance of the hotels (both urban and resorts) is the expansion of low-cost airlines, which leads to the growth of foreign tourists. The results are particularly visible at Sofia Airport. For the first 7 months of 2017, 3.75 million passengers travelled to Sofia Airport, an increase of 42% on an annual basis.

There is an increasing trend in Western capitals regarding security concerns which results in search of safe and new destinations for business and leisure travellers, which put Sofia on the map as an attractive and safe place.

Intercontinental Sofia is your newest project in Bulgaria – what was the rationale behind the decision to enter Sofia, what are your plans and expectations about the performance of the project? We always strive to provide to guests access to the most enriching destinations throughout the world. Bulgaria is an amazing place that can offer travellers unique and memorable experiences.

Naturally, we have looked at the macroeconomic factors that define the positive trends in the industry such as the availability of capital, growing GDP, decreasing unemployment and enhanced accessibility with direct flights from Western Europe. For city hotels the importance of the business environment cannot be overstated. As Sofia is a growing outsourcing hub and an attractive start-up destination we saw a major opportunity in the luxury hotel segment. On the other hand, the region itself is becoming a trendy destination in the leisure luxury travel segment and as such we are confident that our efforts to promote Sofia as Eastern Europe's 'hidden gem'

столицата като луксозна дестинация на международно ниво. InterContinental Sofia е перлата на луксозните хотели в София и предоставя обслужване от най-висок клас.

Бихте ли ни разказали в детайли за проекта – колко стаи има, каква инвестиция е изисквал, как протича процесът? Хотелът беше изцяло реновиран – стаите, апартаментите, общите пространства и работните

места за служителите, всички конферентни зали бяха ремонтирани. Също така беше изградено ново крило, което осигури 54 допълнителни стаи за настаняване.

Разработихме и специален салон InterContinental Club Lounge, който предоставя на гостите единствено по рода си

за българския пазар обслужване. Проект от този мащаб

предполага значителна инвестиция на време, усилия и

финансови средства.

В момента InterContinental Sofia разполага със 194 стаи,

предлагащи просторен дизайн и елегантен

разработихме

вдъхновена от

индивидуалността на българската култура – Floret Social Lounge and Bar. Floret събира както гости на хотела, така и местни кулинарни ентусиасти.

Какви са плановете на компанията за по-нататъшно разрастване на българския пазар? Настоящият фокус на IHG е върху позициониране на брандове му в найатрактивните пазари и сегменти по света. Предвид икономическото развитие

on international level will position it firmly on the map of luxury travellers. We expect to become the leading luxury hotel in Sofia's market, providing high end services and memorable experiences.

Would you please provide some figures about the project? Number of rooms, facilities, value of investment, how is the process going and when to expect the opening of the hotel? The hotel underwent complete renovation of all guest rooms and suites, public areas and employee spaces as well as refurbishment of the conference rooms. The building was also expanded to include a new wing, accommodating 54 additional guest rooms. . We have also introduced Club InterContinental Lounge that provides to guests unique to the market premium treatment. Project of this size involves significant investment of time, efforts and financial assets.

InterContinental Sofia offers 194 rooms and suites that deliver elegant décor inspired by the destination with contemporary flair and full range of modern facilities. We also provide a dedicated event floor and 5 multifunctional meeting rooms for accommodating diverse size of events for up to 230 delegates Further, we developed an innovative and original restaurant & bar concept - Floret Social Lounge and Bar that appeals to both local and international culinary enthusiasts.

What about the plans for further expansion in Bulgaria? IHG's current focus is on growth in attractive markets in high opportunity segments. Given the current positive development of Bulgaria and growing interest in the destination and culture towards the country it becomes a more favourable environment for investments. Currently there are no specific projects and announcements, but we will keep you updated when we have any news.

Which is the target group of customers that Intercontinental Sofia is going to approach? How flexible will you be in attracting different groups of customers? The InterContinental brand serves the affluent travellers that want to experience the destination in an authentic and enriching way and are looking for truly memorable experiences. Their understanding of luxury is focused on the discreet delivery and personal attitude which we deliver throughout all 194 hotels worldwide. Our service delivery is inspired by the uniqueness of each destination and we have captured this in Sofia with our excellent team of Concierges that provide unmatched insight into the beauty of this amazing destination.

What are the advantages and challenges between the different types of operational structure (leasing, franchise, license) and why have you chosen management contract for your project in Sofia? What is the operation model in your other locations in the SEE? IHG operates the hotels in its portfolio in three different ways – as a franchisor, a manager and on an owned and leased basis. We focus on the mainstream, upscale and luxury segments of the hotel industry and have a targeted portfolio of brands individually tailored to meet guests’ needs and occasions.

When implementing a management contract, such as in the case of InterContinental Sofia, Galaxy Investment Group is an investor in the project and the hotel is managed by IHG. This provides us with the base to build strong and successful team and ensure our clients receive consistent and high-end services.

Franchisees want to be in business for themselves but not by themselves. Our franchisees can brand their hotel with one of our well-known and popular brands, and benefit from a powerful

чрез три основни модела – договор за франчайз, договор

широко портфолио от хотели, като за всеки отделен се

избира най-удачният начин на управление в зависимост от

целевата група. При договор за управление, какъвто е случаят с

InterContinental Sofia, Galaxy Investment Group e инвеститор по

проекта и хотелът е управляван от IHG. Нашата задача е да

изградим силен и успешен екип и да

на

на IHG най-високия стандарт на обслужване, който са

свикнали да получават. От друга страна, за франчайз собствениците пък е важно да влязат в бизнеса, но не

на IHG и се възползват както от добрата репутация и широка разпознаваемост, така и от мащабната програма

лоялни клиенти IHG Rewards Club. Компанията предоставя

бизнеса и

loyalty programme and strong reservation system. We also provide a comprehensive set of tools such as revenue management and marketing programmes to drive business and new demand. Since 2003 we have completed the sale of almost 200 hotels as part of our move to an asset-light business model. In a few instances, we do still own hotels through recyclable investments in order to drive the growth of our brands and expand our presence in key markets.

Human resources are one of the main challenges not only in the hospitality industry but in the general business environment: How will you manage to attract, train and retain a good team of professionals? As part of the InterContinental Hotels Group (IHG), one of the world's largest hotel operators, we leverage the reputation of ‘Aon Global Best Employer’ accredited by Aon Hewitt Corporation. On the other hand, we have the opportunity to use the resources IHG provides to attract the right talents. With well-established policies and practices in the field of talent management, we offer a variety of career development opportunities for our employees, both locally and globally - in any one of the 5,667 hotels. We provide various trainings for the successful introduction of new employees and we constantly support the development and professional growth of our colleagues.

стимулират търсенето. От 2003 г. като част от усилията

да разшири присъствието си на ключови пазари.

Човешкият капитал е едно от най-големите предизвикателства не само за хотелиерската индустрия, но като цяло за бизнеса. Как планирате да привлечете, обучите и запазите добър екип от

професионалисти?

Като част от InterContinental Hotels Group, една от найголемите хотелски вериги в световен мащаб, разполагаме с репутацията на компания, акредитирана от HR лидера Aon Hewitt с титла Aon Global Best Employer. Вярваме, че в основата на успеха на IHG стоят служителите,

размер на инвестицията е 25

млн. евро. Изграждането на обекти в района на

централната градска част, и по-специално в

зоната на новия делови център, е под специален

надзор поради евентуалното наличие на

археологическо наследство. Промените в ЗУТ и

ЗУЗСО предвиждат одобрението на Столичния

общински съвет.

В момента имаме забавяне на одобрението

на проекта поради изчакване съгласуването

на Проект за обемно-устройствено проучване

със специфични правила и нормативи в

Министерство на културата за сградите с лице

към булевард "Тодор Александров".

Едно от най-важните неща за успешен хотелски бизнес е локацията на хотела.

на Novotel Sofia работихме с водещ хотелски

консултант.

че в нашия случай на локацията на бул. "Цариградско шосе" e логично да има хотел

4 звезди, който е между 150 и 200 стаи. Втората част на договора с консултанта беше да ни

свържат с хотелски оператор. Сведохме избора си до няколко варианта: Accor, Hilton, Marriott и Radisson. Спряхме се на Accor и сключихме договор за управление с продължителност 20 години плюс

опция за още две продължения по 10 години. Ние

покрихме техническите им изисквания. В крайна сметка хотелът под бранда Novotel се получи със 178 стаи. Средната му запълняемост през

миналата година беше над 70%, което го прави

изключително успешен.

Какво мислите

България следва световните тенденции.

Обичайните трендове не ни подминават, смятам, че се предлагат все по-добри услуги и продукти.

Ние бяхме едни от първите, които се обърнахме към международни оператори, а в момента в

България започнаха да навлизат още от тях.

Какви са бъдещите ви инвестиционни планове? Над яз. "Искър", между Самоков и

София, сме закупили 2000 декара земеделска земя.

През септември 2017 г. влезе в сила подробен

устройствен план и започна активната работа

по развитието на проекта. Амбицията ни е да предложим алтернатива на тренда хората да се тъпчат в големия

принципи за свобода

Желанието ни

да създадем място, което не искаш и нямаш нужда да напускаш, защото се чувстваш добре и можеш да изживееш това, което си решил. Най-вече това се отнася за децата – искаме те да имат детство, „както едно време“. Ако трябва да сме поконкретни, проектът включва голф игрище, хотел, офисен и търговски район, паркови пространства и жилищна зона с около 1000 жилищни единици.

Качеството на живот е различно от

стандарта на живот. Ние искаме да допринесем за повишаване на качеството на живот на хората. Това включва спокойствие, време за общуване, близост до природата, чист въздух, възможност за спорт и отдих. Това е причината аз да живея от 25 години в Самоков и всеки ден да пътувам до столицата.

нови пазари и ниши. В съвременния свят не може вече да се разчита само на основния традиционен туристически продукт. Трябва да се прилагат нови и различни подходи, които да развиват конкурентоспособността на комплексите ни в Банско и Пампорово в дългосрочен план. Положителен

ни в планинските курорти се реализират от туристически оператори. Директните записвания представляват малко над 10%. Резервациите

през онлайн порталите са около 40%. В морските курорти резервациите от туроператори и агенции достигат 75%. Изключително сме щастливи, че благодарение на

положените усилия на екипа на Green Life Resorts тази

година получихме престижна награда от Global Review Index, която е базирана на отзивите от клиентите ни в онлайн пространството.

Какво е съотношението между българи и чужденци, които посещават хотелите ви? В Банско и Пампорово преобладават чуждестранните туристи. Българските туристи представляват 15%. Клиентите в Банско са найчесто от Гърция и Румъния. Посещения има и

Сърбия, Турция, Македония и Великобритания.

граждани

В Пампорово профилът на клиентите е по-различен, като възрастовата граница е малко по-висока. Основните посетители са от България, Турция, Молдова, Румъния, Русия

и Македония.

Туристите в Созопол през настоящия летен сезон са основно българи

над 65%. Лек спад се наблюдава при руски

говорещите туристи въпреки ръста им през 2017 г. Причина за това е възвърналият се интерес към дестинациите Турция, Египет, Тунис и Мароко, заради

Западна Европа.

беше средната заетост и средната доходност

и автентична атмосфера на стария град,

и множество плажни барове, ресторанти, дискотеки и водни атракциони в новия град, което го разпознава като дестинация, подходяща за всички възрастови групи.

Какви са бъдещите ви инвестиционни планове? Планираме разширение на хотелския ни комплекс в Созопол. Успешното реализиране на апартаментите в Green Life Beach Resort Sozopol и високата заетост, която постигаме, ни дават възможност за развитие и разрастване на базата, както и да изграждаме

гости, както и на балнеокомплекс. По-голяма част от

гостите на комплексите са член-кооператори и

организирани групи, които пътуват с цел почивка

или провеждане на мероприятия на море, планина, в града. Наши партньори са големи туроператори, с които работим успешно в продължение на

години. По-малък е процентът на индивидуалните

пътувания, които са предимно семейства

или приятели, а за градските хотели - бизнес пътуващите.

Какво е съотношението между българи и чужденци, които посещават хотелите

ви? Съотношението е различно за всеки от

комплексите и зависи от локацията и типа туризъм.

Хотел КООП, гр. София, привлича 92% чуждестранни туристи. Морските хотели "КООП - Китен", гр. Китен, "Мелса КООП", гр. Несебър и "Странджа", кк Златни пясъци, също привличат по-висок процентът чужденци.

Планинските обекти "КООП Рожен", обл.

Смолян, "Релакс КООП", с. Вонеща вода, и "Къщи за

гости КООП", гр. Добринище, привличат повече

български туристи. При хотелски комплекс "Интелкооп", гр. Пловдив, гостите също са

предимно от страната.

Балнеокомплекс "Здраве", гр. Банкя, работи по

програми на Националната здравноосигурителна

каса и Националния осигурителен институт.

Поради това се настаняват предимно българи,

но през последните няколко години неговите

балнеоложки услуги се ползват все по-активно и

от чуждестранни граждани.

Каква беше средната запълняемост и средната доходност от стая през последната година? За целогодишните градски комплекси

комплексите, ние инвестираме и в развитие и обучение на персонала. Изграждането на екип от личности с различен стил, които могат да се учат и допълват един друг, е предпоставка за ефективното реализиране на предлаганите услуги.

Кои са клиентските сегменти, които се таргетират от вас? Основен сегмент са членкооператорите и притежатели на клиентска

карта КООП. Обектите са предпочитано място от работещи в кооперативните съюзи

и кооперации както за провеждане на работни срещи и мероприятия, така и за индивидуални почивки.

сегменти,

се таргетират, са различни

като предлагат

възможност за конферентен и културен туризъм.

В морските кооперативни хотели основни сегменти са семейства с деца, които търсят

комфортна почивка и незабравима ваканция.

При планинските комплекси таргетираме

организирани групи и индивидуални туристи, които пътуват с цел почивка или тиймбилдинг.

Балнеокомплексът е ориентиран както към хора със специфични хронични заболявания, така

и към здрави и активно работещи, които имат

потребност от пълноценна почивка в съчетание с подходяща за тях рехабилитация.

ИНФРАСТРУКТУРА INFRASTRUCTURE 296

Emirates, Etihad Airways, Quatar Airways, Turkish

от 14 през 2012 г. до 24 през 2017 г.

Тези резултати трябва да се разглеждат като част от

промени, случващи се както в управлението на

така и в пазарното поведение

връзки, докато преди 10 години делът им е едва 13%. Постигнатият ръст от 175% за периода 2007 - 2017 г. е при намаление на предлаганите директни полети от традиционните авиолинии с 8%. За същия период найголямо увеличение – над 24%, на предлаганите дестинации

на пътниците, реклами и др.

РАЗВИТИЕТО В БЪЛГАРИЯ - ВЪВ ФОКУСА Е ЛЕТИЩЕ

за

повече от ден), докато средно за гражданите на ЕС

беше лукс. Относителният дял на въздушния транспорт в общия брой

e около 0.3% средногодишно. Като

основни причини за този свръхнисък дял

и фактът, че този вид транспорт

приложим основно в сегментите

полет е извършен на 8 ноември 1927 г. по маршрут София - Варна - Русе, а от 1930 г. вече има международни полети до България, обслужвани от „Сидна“ (по-късно „Ер Франс“). Първите български граждански летища са край София (Божурище и Враждебна) и край Бургас (с. Сарафово). Летището във Варна, край Аксаково, е от времето на соца

2014 г. – 7 795 374 брой пътници

2015 г. – 7 887 669 брой пътници

2016 г. – 9 579 379 брой пътници

2017 г. – 11 478 859 брой пътници.

Само на летище София през изминалата година обслужените пътници са почти шест милиона и половина (6 486 883), което е много сериозен ръст на годишна база от 30,4 %. По отношение на броя на пътниците, превозени по вътрешни въздушни линии, също се забелязва трайна

БУМЪТ В РАЗВИТИЕТО НА

възлагането му на концесия.

Летищата в България показват много бърз растеж през

последната година от десетилетието 2007 - 2016, сочи

анализ от октомври 2016 г. на anna.aero, сайт за новини и

анализи на авиокомпаниите и летищата, който посвети на

България повече от 10 публикации в края на 2016 г. На 25 април 2016 г. летище София отпразнува старта на ежедневните услуги до Лондон (Станстед) с RyanAir, в началото на април

7.6 МЛРД. ЛВ.

Летище София се състои от Терминал 1 и

Терминал 2 (от 2006 г. ) с общ капацитет 4.4

млн. пътници годишно, база на "Лухтханза

Техник София" (от 2007 г.), хангар на WizzAir от юни 2018 г., нова летищна кула от 2012

Терминал 2 приема от 60% до 70% от

седмично на основното летище в Дубай, а Wizz Air предлага два пъти на седмица полети до „Дубай ал Мактум“.

НОВАТА КОНЦЕСИОННА ПРОЦЕДУРА Прогнозираната cтoйнocт нa ĸoнцecиятa нa лeтищe Coфия e за нaд 7.6 млрд. лeвa. Срокът й е 420 месеца или 35 години, а бъдещият концесионер на аерогарата ще трябва да построи трети терминал. Това става ясно от oбявлeниeто на процедурата нa Министерството на тpaнcпopтa, информационните технологии и съобщенията, публикувано в Official Journal на Европейския съюз (Държавния вестник на ЕС) на 5 юли т.г.

Концесията на летището ще е от смесен вид (на основание

обща площ 99 340 кв.м, стойност 145 млн. евро, допълнителна галерия, дълга 200 м

ГОДИШЕН КАПАЦИТЕТ НА ТЕРМИНАЛ 2 2.6 млн. пътници годишно РАЗШИРЕНИЕ НА ТЕРМИНАЛ 2 2013 г. за 12 млн. евро

ЛЕТИЩНА КУЛА (НОВА, ОТ 2012 Г.)

височина 50 м

ОБСЛУЖЕНИ ПЪТНИЦИ

ПРЕЗ 2017 Г. 6 490 096 души

концесията на летище

на анализите на Световната банка в сътрудничество с Европейската банка за възстановяване и развитие, подчертават от Министерството на транспорта, информационните технологии и съобщенията. Изводите и препоръките от посочените анализи са залегнали в тези документи. На 27 юни Mиниcтepcĸият cъвeт разреши новото oтĸpивaнe на концесионната процедура за летище София. В хода на подготвителните действия са изготвени

МИНИСТЪР НА ТРАНСПОРТА, ИНФОРМАЦИОННИТЕ ТЕХНОЛОГИИ И СЪОБЩЕНИЯТА

инфраструктура. Ако се реализира концесията на Летище София с параметрите, които са зададени в момента, това ще е най-голямата сделка, осъществявана в България. Очакваната сума, предложена от участника, ще е не по-малка от 15 млн. лв. като концесионна такса годишно или 10%

такси. Не е налице текучество на персонала на „Летище София“ ЕАД - в момента в дружеството работят 2 327 човека, напомнят от МТИТС.

КОНЦЕСИЯТА И РЕФОРМИТЕ В БДЖ Целта на настоящата концесия на летище София, напомнят от МТИТС и изброяват част от ползите, да допринесе за ефикасно и ефективно управление на летище София; прилагане на

БДЖ“ ЕАД по облигационния заем е в размер на приблизително 103 млн. лв. (главница и лихви), като към момента се водят преговори, за да се договорят отстъпки от кредиторите за намаляване на наказателните лихвите по заема. Одобрената от Европейската комисия държавна помощ е в размер 224 млн. лева. Средствата ще бъдат отпуснати от бюджета като безлихвен

ВЛАДИМИР РАПОНДЖИЕВ

ИЗПЪЛНИТЕЛЕН ДИРЕКТОР НА „ЛЕТИЩЕ СОФИЯ“ ЕАД

Г-н Рапонджиев, какви са показателите

на летище София за първите 5 месеца на

годината? Отбелязва ли се ръст, каква е тенденцията? В периода от началото на

годината до края на май 2018 се наблюдава ръст

и по трите критерия – самолетодвижения,

пътникопоток, карго. В сравнение със същия

период на миналата година броят на превозените

пътници е със 7.43% по-голям, или 2 755 105 пътници.

пистова система на летище София? Към настоящия момент е достатъчна, тъй като дължината на пистата позволява кацането както на малки бизнес самолети, така и на най-големия

пътнически самолет "Еърбъс А380". Пистата

дава възможност за осъществяването на 22 самолетодвижения на час. Аеронавигационното

й оборудване осигурява възможност за кацане в условия на намалена видимост при категория IIIB по стандарти на ИКАО.

7.6% повече пътници, отколкото през същия месец от миналата година, като са били обслужени над 600 хил. пътници. През Терминал 2 са преминали 60% от пътуващите, а през Терминал 1 – 40%. Общият брой на пътувалите по редовни международни линии се е увеличил с над 34 хил.

Най-голям принос за това имат авиокомпании flydubai, LOT, Tarom и Wizz Air, които бележат двуцифрен ръст в броя на превозените пътници по редовни линии през април 2018 г. Това се дължи на увеличените полетни предложения по

нови и вече обслужвани маршрути от/до летище София. Пътуващите с чартърни полети през изминалия месец са нараснали двойно заради великденските празници. Найпредпочитаните туристически дестинации за периода са били Анталия, Хургада и Санторини. Тенденцията всъщност е от февруари, когато ръстът е 3.7% (общо 473 242 пътници),

а през март той е 7.8% (556 088), като съотношението

между пътниците на Терминал 2 и Терминал 1 се запазва (Т2:Т1

АВИОКОМПАНИИ, РЪСТ НА ТРАФИКА 10%

"Фрапорт Туин Стар Еърпорт Мениджмънт" е концесионер на морските летища Варна и Бургас от 2006 г. за 35 години. Предвижда 62 инвестиционни

проекта в периода 2018 - 2020 г. През 2019-2020 г. предстои разширяване

TUI Airways

Ryanair Sun, Thomas Cook и TUI Airways 8 нови авиолинии са планирани за Варна: „Победа“, SUNDAIR GmbH, Brussles Airlines, Transavia Airlines, Corendon Airlines Europe, SkyEurope Airlines Hungary, Wings of Lebanon и Aircompany Armenia. Новите дестинации от Варна са 6: Касел в Германия (SUNDAIR GmbH), Залцбург в Австрия (Bulgarian Air Charter), Бирмингам във Великобритания (Thomas Cook Airlines UK), Харстад в Норвегия (Thomas Cook Airlines Scandinavia), Лион във Франция (Travel Service) и Кайро в

Египет (Bulgarian Air Charter).

За Бургас новите авиолинии са 8: Ryanair, "Аерофлот", Dart Airlines, Ryanair Sun, Blue Bird Airways, SкyEurope Airlines Hungary, Lufthansa и El Al Israel Airlines Ltd. Новите дестинации са 14: Мюнхен Меминген и Дюселдорф Везе в Германия (Ryanair), Милано Бергамо в Италия (Ryanair), Лвов в Украйна (Dart Airlines), Ротердам и Маастрихт в Холандия (Corendon Dutch Airlines), Лодз и Шимани в Полша (Enter Air & Small Planet Airlines), Лил във Франция (Small Planet Airlines), Йоребру и Норкьопинг в Швеция (BH Air), Вааса във Финландия (BH Air), Бейрут в Ливан (BH Air) и Техеран в Иран (BH Air). „Фрапорт Туин Стар Еърпорт Мениджмънт“ АД

продължава да води преговори за нови авиолинии и маршрути. „Ние се вслушваме в клиентите си и знаем, че директни полети до Испания са много желани, както често ни се напомня

повече от две години, а с Ryanair около година.

по черноморските летища.“

КОНЦЕНДЕНТЪТ Концесията на морските

вече 12-а година, съобщават от МТИТС. Основните и косвени цели на концесията се

ЕДНА ПИСТА дължина 2500 м, ширина 45 м, с 2 ръкава по 5 м всеки

ТЕРМИНАЛИ 2, оперира само Терминал 2

ТЕРМИНАЛ 2 РЗП 18 162 кв.м

ГОДИШЕН КАПАЦИТЕТ НА ТЕРМИНАЛ 2 2.4 млн. пътници

ОПЕРИРА 24 часа, без слотове

САМОЛЕТОДВИЖЕНИЯ близо 15 000 за 2016 г.

ПОЛЕТИ до 116 дестинации в 40 държави през 2017 г.

През 2017 г. от летище Варна са извършени полети до 116

дестинации в 40 държави. На летището са обслужени 1 970

700 пътници, което показва ръст от 16.64%. Най-много

пътници са пристигнали от Германия – 510 740, следвани от България (250 700), Русия (213 936), Полша (159 280) и

Великобритания (136 038). Най-голям ръст се забелязва сред

пътуващите от България (82%) и Чехия (71%). За излитащите

в Германия, Литва, Финландия, Чехия, Италия, Гърция, Белгия, Испания, Кипър, Холандия и Хърватия.

Варна

ремонтът на стойност 7 450 000 лв. на пътеката за рулиране „Алфа“, дълга 800 м, и тя вече ще

През 2017 г. от летище Бургас са извършени полети до 153 дестинации в 43 държави. Броят на регистрираните пътници е 2 982 339, което сочи ръст от 3.59%.

Нарастването на пътниците се дължи главно на

туристическата индустрия. Най-много пътници са

пристигнали от Русия – 660 284, следвани от Великобритания (448 692), Германия (398 620), Полша (319 023) и Чехия (262 839). Най-голям ръст се забелязва сред

(20%)

е туристопотокът през последните три години и от началото на концесионния договор от 2006 г. Откъде са туристите? Как се разпределя пътникопотокът?

Как се справяте със сезонността на морските летища

- как се решава такъв проблем? В момента най-големите

пазари за Варна и Бургас са Русия, Германия, Обединеното

кралство и Полша. Очаква се спад на руските туристи, а броят на пътниците от другите три държави ще

продължава да нараства. Също така ние продължаваме да

наблюдаваме силен ръст на полския и чешкия пазар. Една от основните ни цели е да превърнем Черноморския

регион в международна дестинация за четири сезона, така че да, ние работим за удължаване на сезона и увеличаване

на целогодишния трафик. Отворени сме към преговори с авиокомпаниите относно маркетинговата подкрепа, която да сподели риска, поет от тях извън пиковия сезон.

Каква е инвестиционната ви програма за 2018-2020 за

двете летища? На каква стойност е тя за всяко от тях

и

инвестиционен проект е разширяването и рехабилитацията на перона на всяко от летищата – това е зоната, в която се паркират, обслужват и зареждат самолетите. Тази

инвестиция ще оптимизира пространството и ще подобри капацитета и ефективността на нашите черноморски

летища.

Споменахте, че до 2027 г. ще инвестирате още 256 млн. лв. в летищата Бургас и

12.32 млн. лв. през

ИНВЕСТИЦИИ ЗА

В момента на летище Пловдив се изпълняват редовни полети на Ryanair по четири въздушни линиидо Лондон, Брюксел, Франкфурт-Хан и МиланоБергамо. Превозваните пътници са 155 000 годишно.

да реализира инвестиции в обекта в размер на 79 083 000 евро. Средствата са за ремонт, поддържане и рехабилитация на съществуващата инфраструктура, както и изграждане на нови съоръжения. Представители на консорциума между HNA Group и „Пловдив

Еърпорт Инвест“ обявиха, че тяхната цел е превръщане

на летище Пловдив в хъб с пътнически и карго терминали.

Плановете предвиждат през аеропорта да минават по 1 млн.

пътници на година и по 50 хил. тона товари. Предвижда се да се открие линия между Пловдив и Китай три пъти седмично -

два пътнически полета и един товарен.

HNA Group e една от най-големите корпорации в

световен мащаб, като миналата година влезе в топ 100 на Fortune Global Companies. Към момента разполага с приблизително $145 милиарда активи, над $90 милиарда приходи годишно и над 410 000 служители по цял свят.

Дейностите на компанията са в различни сфери, като основно са съсредоточени в авиацията, технологиите, туризма, финансите, иновациите и логистиката. "Хайнан Груп" управлява 14 авиокомпании с над 1250 самолета, като

на концесия на летище Пловдив бе открита на 16 януари 2017 г. На 18 май 2017 г. бяха отворени получените оферти от три участника: ДЗЗД „Силк роуд

ПИСТА

една

ДЪЛЖИНА НА ПИСТАТА 2450 м, асфалтобетон, което

излитане и кацане на самолети от категория код D ПЕРОН 220 дължина, 140 м ширина, асфалтобетон, 3 перонни стоянки, настилката на перона е подновена през 2008 г.

ПЪТЕКА ЗА РУЛИРАНЕ А с ширина 20 м

България и отстои на равни разстояния от големите административни центрове София, Варна, Русе, Пловдив, Стара Загора, Плевен, Бургас. Изградено е в непосредствена

близост (12 км) до старата българска столица Велико

Търново. Летище Горна Оряховица е лицензиран летищен

оператор, извършващ наземно администриране и надзор, обслужване на пътници, багажи, товари и поща, на

въздухоплавателни средства на перон, обслужване с горива и масла.

След неколкократни опити за публично-частно

партньорство летище Горна Оряховица беше концесионирано през януари 2016 г. за 35 години. (Втората

процедура за концесиониране на летището стартира през юли 2015 г.) Договорът с избрания консорциум „Гражданско

Горна Оряховица”, учреден

летището, изграждане на допълнителна

план

развитие

рулиране, ремонт, разширяване

удължаване на пистата, изграждане на карго терминал и разпределителен център, изграждане на ремонтна база за самолети, на логистичен център и на център за подготовка на пилоти. Сградата на терминала ще бъде ремонтирана по изискванията на Шенген. През март 2017 г. концесионерът на летище Горна Оряховица внесе в общинската администрация искане да купи

ЛЕТИЩЕ

ЕДИНСТВЕНОТО

Летище Русе е гражданско летище за вътрешен и

международен транспорт. Разположено e на 17 км от Русе

в близост до с. Щръклево. Построено е като военно и от

началото на 70-те години на ХХ век се използва съвместно

и от гражданската авиация до 1999 г. В този период са

изградени приемната сграда, перонът и други съоръжения.

Министерството на транспорта, информационните технологии и съобщенията, решение на Министерския съвет от 2006 г. отрежда на летището международен статут. През февруари 2015 г. община Русе придоби 100% от капитала на „Летище Русе“ ЕООД, което още през следващата година получи лиценз за летателна площадка за малки самолети. То притежава пътнически терминал, като има всички предпоставки за

концесионен опит, показват ръст на трафика от 10 и 40 процента. ЗАГРЕБ

Летището се планира да бъде най-голямото в света, със 150 млн. пътници годишен капацитет. Строителството на трето летище в Истанбул се налага

поради липса на капацитет в съществуващите две в Истанбул - "Ататюрк" в европейската част и "Сабиха Гьокчен"

в азиатската част на града. Търгът за строителство на

третото летище на Истанбул се провежда през май 2013

г. и предвижда концесионирането му с 25-годишен договор за експлоатация след изграждането на съоръжението.

Спечелено е от обединение от турските компании Gengir, Kolin, Limak, Mapa, Kalyon. Стойността на процедурата е

27.2 млрд. долара. Meгaпpoeĸтът ce изгpaждa oт мaй 2015 г., откриването на първия етап с 3 писти и обслужване на

110 самолета е предвидено за 29 октомври 2018 г. - 80% oт строителните работи вeчe са завършени. Когато бъде напълно завършено с площ 8 млн. кв.м и 6 писти и 4 терминала, третото летище на Истанбул ще бъде нaй-гoлямoтo в cвeтa с капацитет от 150 млн. пътници годишно. Общата стойност на строителството е около 7 млрд. евро. Проектът е на Ріnіnfаrіnа и AECOM (іgаіrроrt.соm). Πpoeĸтът тpябвa дa бъдe oĸoнчaтeлнo зaвъpшeн дo 2030 г. Тoгaва лeтищeтo щe paзпoлaгa c 4 тepминaлa c жп линия мeждy тяx, 6 пиcти, пepoни зa 500 caмoлeтa c oбщa плoщ 6.5 млн. ĸв.м, външeн и вътpeшeн пapĸинг c ĸaпaцитeт 70 000 aвтoмoбилa. Aepoпopтът щe oбcлyжвa 350 дecтинaции пo цял cвят.

2\ МЕЖДУНАРОДНО ЛЕТИЩЕ "АНРИ КОАНДА", БУКУРЕЩ Това е най-натовареното международно летище в Румъния, разположено е на 16.5 км северозападно от Букурещ, в рамките на град Отопени, и от май 2004 г. се казва Международно летище Букурещ Отопени. То е основният хъб на ТАРОМ –националният превозвач на Румъния, и Tiriac Air, както и на

нискотарифните Air Bucharest, Blue Air, Wizz Air. Управлява се от националната компания "Летище Букурещ С.А.".

3\ МЕЖДУНАРОДНО ЛЕТИЩЕ „НИКОЛА ТЕСЛА“, БЕЛГРАД

Международно летище „Никола Тесла“, Белград, е най-голямото летище

6\ TIRANA INTERNATIONAL AIRPORT NËNË TEREZA,

4\ ATHENS INTERNATIONAL

5\ THESSALONIKI AIRPORT MAKEDONIA,

след Zagreb Airport. Заради увеличаващия се брой на туристите разширяването

8\ FRANJO TUĐMAN AIRPORT,

е в периода 2013 - 2017 г. Концесията

324 млн. евро, от които 236 млн. евро за изграждането на терминала и 88 млн. евро за опериране на летището.

9\ ЛЕТИЩЕТО В ПРИЩИНА, КОСОВО е с концесионер турската компания Limak.

10\ АЕРОГАРАТА НА О. РОДОС е на „Фрапорт“.

11\ АЕРОПОРТЪТ НА О. КОРФУ е с концесионер Copelouzos Group, в който участва „Фрапорт“. На „Фрапорт“ са и останалите 12 островни летища на Гърция.

12\ ЗА ЛЕТИЩЕ СОФИЯ отново стартира концесионна процедура.

13\, 14\ ЛЕТИЩАТА ВЪВ ВАРНА И БУРГАС вече 10 години са с оператор "Фрапорт".

15\ ЗА ЛЕТИЩЕ ПЛОВДИВ е избран концесионер.

16\ ЛЕТИЩЕТО В ЛЮБЛЯНА, СЛОВЕНИЯ

17\ ЛЕТИЩЕТО В СКОПИЕ

Марката Bobcat е позната в целия свят с изобретяването на

минитоварача. Това става преди точно 60 години в Северна Дакота, САЩ, от компанията, предшественик на BobcatMelroe Manufacturing Company. През последните 60 години в Bobcat са извършени много промени, но ангажиментът на компанията да предлага висококачествени иновативни и прецизни машини е непроменен. Един на всеки два продадени челни минитоварача е Bobcat. Гамата от челни товарачи, включваща както модели с колела, така и с вериги, продължава да доминира на пазара. Опциите за съчетаване с редица прикачни устройства дават възможност да се отговори на нуждите на всеки конкретен клиент. Bobcat също така предлага в портфолиото си пълна гама от мини

и телескопични товарачи, отговарящи на същите

Bobcat

Bobcat въвежда системата X-Change през 1996 г., която позволява на операторите на

прикачени устройства. През 1998 г. Bobcat пуска на пазара товарачите от серия G със сериозен фокус върху комфорта на оператора. Новите кабини са оборудвани с климатик, увеличено е мястото на подлакътниците, подобрени са седалките и оборудването. Новата хидравлична система Power Bob-Tach предоставя на операторите лукса да сменят приставките с натискането на един бутон.

През 2003 г. в Добриш, Чехия, е създаден Центърът за разработване на продукти за Bobcat - Европа.

Продажбата на компанията Bobcat на Doosan Infracore е обявена през юли 2007 г. Bobcat има над 170 дилъра в Европа, Близкия изток и Африка.

През 2014 г. се правят специални лимитирани модификации на S650 и T650, с които се отбелязва

Bobcat

THE CITY ACADEMY

Финалът на "Академия ГРАДЪТ" събра над 200 студенти,

млади инженери и архитекти, официални гости, партньори и

журналисти на изложбата на над 120-те проекта, участвали в „Академия ГРАДЪТ 2018". Две гостуващи изложби на Фондация “Америка за България“: “ Училища на бъдещето“, която

показва как трансформацията в мисленето и практиките ни води до нуждата да променяме и образователната среда,

и „Епископската Базилика и римското мозаечно наследство на Филипопол“, с която България кандидатства за вписване в листата на ЮНЕСКО за световното културно наследство също бяха част от програмата. Акцент в събитието беше и дискусията на живо между участниците, класирани в ТОП 3 по съответните категории, и авторитетното жури. Така коментарите

спецификите на всеки проект, достигнаха директно до авторите

и към победителите в тазгодишното издание на конкурса

на Фондация „Америка за България“, и г-н Владимир Житенски, зам.председател на Камарата на строителите в България. През

инженерни проекти. Наградата за инженерен проект в най-оспорваната категория - "ГРАДЪТ – Градска среда и инфраструктура", връчи лично проф. д-р инж. Стоян Братоев, председател на УС на "Метрополитен" ЕАД, София.

През тази година университетите - партньори на "Академия ГРАДЪТ", са Университетът за архитектура, строителство и геодезия, Висше строително училище "Любен Каравелов", Лесотехническият университет, Нов български университет, Минно-геоложки университет „Св. Иван Рилски”, Варненски свободен университет, Politecnico di Milano, UCL- The Bartlett School of Architecture, Technische Universität Berlin, Hochschule Anhalt, Universidad de Alcalá de Henares. СГСАГ „Христо Ботев”, София, също традиционно е партньор на инициативата. Конкурсите, част от „Академия ГРАДЪТ 2018", се реализират с подкрепата на ексклузивния партньор на

инициативата Фондация „Америка за България“, златните спонсори на инициативата GP Group и COOP, както и с

подкрепата на Aurubis Bulgaria, ORT, Alukönigstahl и Planex.

Тази година наградите в „Академия ГРАДЪТ“ са както

парични, така и лятна или зимна ваканция за двама, клиентска карта за пазаруване с отстъпка в магазините от търговска верига COOP и включване в стажантска програма и две първи

своя професионален и житейски опит в най-важния

ЗА БЪЛГАРИЯ“

АРХ. НИКОЛАЙ ТРАЙКОВ ДИРЕКТОР „ПРОЕКТИРАНЕ И СТРОИТЕЛСТВО“ ВЪВ ФОНДАЦИЯ „АМЕРИКА ЗА БЪЛГАРИЯ“

съвети как да постигнат целите, които си бяха поставили. Иновациите, които тези проекти подкрепят, са свързани с преподаване по по-интересен и мотивиращ за учениците начин. В новите учебни пространства учителите и учениците

и резултатите от „Академия ГРАДЪТ 2017“ за

трансформацията на 22 000 квадратни метра и

65 стаи от детските отделения на „Пирогов“. С

партньори като ИКЕА, УниКредит Булбанк, HP и още много други те бяха преобразени в приказна

и гостоприемна среда за малките пациенти

и техните семейства, а също и за лекарите и

медицинските специалисти, които работят там. Николай Трайков: Конкурсът миналата

година протече успешно. С проекти се включиха

над 50 архитекти, дизайнери и студенти, от

които получихме много интересни идеи. Заедно

с екипа на „Пирогов“ решихме да използвахме

някои от тях при реализацията на проекта и

сме удовлетворени от крайния резултат. Най-

важното е, че лекарите и пациентите останаха доволни от промяната. Новата по-приветлива среда влияе на мотивацията за работа, а децата и техните семейства се чувстват по-спокойни.

Фондация „Америка за България“ подкрепя конкурса за проекти в областта на културноисторическото наследство към „Академия ГРАДЪТ 2018“. Защо тази тема е толкова важна за вас? Н.Ш.: Мисията на Фондация „Америка за България“ е да подпомага укрепването на

динамичен частен сектор в страната, а „Културно

наследство и туризъм“ е една от шестте

области, в които финансираме проекти. Както

в световен мащаб, така и в България обектите

на културно-историческото наследство

привличат туристи от страната и от чужбина,

които носят финансови приходи за местните

общности – хотели, ресторанти, магазинчета за сувенири и много други. Уважението, подкрепата

и показването в пълния блясък на това, което

прави България уникална – нейната култура и историческо наследство, е важна част от нашата

ще отвори едни нов културен център, включващ експозиционна сграда и ново публично

пространство с площад, който ще допринесе за разширяването на централната пешеходна

градска част и експонирането на археологията по най-подходящия начин.

Наскоро открихте обновения кампус на

най-старата американска образователна

институция извън пределите на САЩ – Американския колеж в София. Моля, разкажете ни малко повече за този проект. Н.Ш.: Американският колеж е образователна институция с

традиции и неизменно едно от най-добрите училища в България според резултатите от външно оценяване и матури и реализацията на неговите възпитаници, с

което много се гордеем. Затова сметнахме за

буквално преди седмици и сме много доволни от

крайния резултат. Новата среда ще допринесе

обучението,

на бъдещето“ въплъщава

визията на Фондация „Америка за България“ за

образование – на световно ниво чрез смислено използване на новите технологии и методи на

преподаване. От 2009 до 2018 г. Фондация „Америка за България“ е инвестирала 9.4 милиона лева в 85 училища в цялата страна за създаване на лаборатории по природоматематически науки, информационни технологии

чуждоезиково обучение, мултифункционални пространства, актови зали, места за отдих и екипни занимания, земеделски и фермерски центрове, както и кабинети по приложни изкуства. Приносът на училищата

пространства и функции. Съвременното училище включва мултифункционални пространства, променящи се в зависимост от

нуждите на учебния процес. Те са устойчиви, лесни за поддръжка, с

ИЗГРАЖДАНЕТО

на интернет допринасят активно

за повишения интерес на младите хора към нея. В същото време пренасищането на трудовия

пазар от архитекти създава все по-големи трудности за професионална реализация.

Много често в желанието си да стартират

своята професионална кариера в авторитетни

архитектурни бюра младите специалисти

работят за почти никакво или дори без заплащане.

След няколкомесечна работа талантливите

лесно биват оценявани и преминават през

първото сито в кариерата си. Голяма част от

начинаещите млади архитекти обаче се изправят

пред друг съществен проблем – разминаването

на теория и практика. липсата на добри „учители” в практиката за разлика от миналото

прекъсва приемствеността и предаването

на майсторски умения между поколенията.

от студентската скамейка едно измамно усещане за компенсиране на този проблем.

Също така, сляпото прилагане на материали

и технологии без познаване на особеностите им в дълбочина – често срещана практика при много от действащите архитекти, също води до

некачествен архитектурен продукт. За съжаление

все още има инвеститори, които използват

или се възползват от неопитността на млади архитекти с цел спестяване на средства още от

фазата на проектиране.

Какви са предимствата за стартиране на кариера, трупане на опит и професионална реализация в България днес? От гледна точка на архитектура и дизайн за един средностатистически млад архитект шансът да

бъде забелязан и оценен в България и не само е поголям,

да

с

и натрупването на опит на новата ни строителноинвестиционна индустрия. За това подобрение са отговорни и всички фирми в строителния бранш, представители на доказани в световен мащаб брандове и реализиращи на българския пазар без компромис продукти и технологии с добавена стойност.

Кои са големите проекти, по които работи вашата компания в момента, и включвате

ли и как младите специалисти и стажанти

в тях? В момента като доставчик участваме

в изграждането на достатъчен брой сгради с различно предназначение. Офис сгради като

Ellipse center, Sofia office center, “Бизнес сграда 15”

в "София бизнес парк", Rich hills, Advance business center, Sibiz technology center - Пловдив, хотелски сгради като „Санкт Петербург”- Пловдив, „Вероника” и „Мираж” в курорта Слънчев ден, хотелски комплекс „Мирамар” в Обзор, Hayatt Hotel в София, жилищни комплекси с еднофамилни

къщи като „Форест парк”, Vitosha garden в София, многофамилни сгради в премиум сегмента като Sofia Luxury House, Galeria Vitosha и City Home, индустриални сгради като Multivac, JYSK

– София. В процес на изграждане е и една много

предизвикателна наша разработка – остъкленият

покрив на парламента.

Наемането на най-различни позиции в

нашата компания на няколко току-що завършили

университета специалисти в последните две

години ясно говори за отношението ни към

младите хора. От опит смятам, че изграждането на добър професионалист в компанията ни трае

между

Какви са

предизвикателства пред младите

в съвременната професионална среда и развитието на индустрията у нас и в чужбина?

Развитието на човечеството към едно мултикултурно, информационно неограничено, постоянно иновационно актуализиращо се общество изисква от младите хора

по-бърза адаптация, търсещ и самоусъвършенстващ се

подход към професията, стремеж към собствено личностно израстване. Едно от най-големите предизвикателства пред младите, посветили се на призванието на архитекта или урбаниста, е да успеят да претворят мечтата, визията за

конкретен проект в икономически

отвсякъде, могат да участват в международни конкурси, могат да се обучават онлайн. В тази връзка бих посъветвал тези, които са в началото на своята кариера, ежедневно да полагат усилия за своето професионално развитие, да са търсещи и любопитни, да бъдат активни и да се поставят в конкурсна среда в проекти като "Академия Градът". Те трябва да са

доказване на таланта и качествата си. Здравословно в професионален

ще бъдат напълно финансово обезпечени. Ако обаче бъдат верни на своя стил и призванието си, логично идва

и хотелски проекти като MOXY§Residence Inn, Амстердам, Холандия,

Какви са основните предизвикателства пред младите

специалисти в съвременната професионална среда и развитието на индустрията у нас и в чужбина?

в областта на строителството, архитектурата и

урбанистиката. Младите специалисти трябва да бъдат креативни, да умеят да представят работата си, също и навременно да се запознават и следят тенденциите в сферата в тази особено конкурентна среда. Задачата им да

преплетат знанията и идеите си

за всеки, който иска и търси такова. Няма по-голямо предимство от това да твориш в собствената си държава. Познавайки средата, ти знаеш как да решиш проблемите

дали ни харесва или не, без значение как сме образовани или как сме практикували в

миналото.

В този предизвикателен нов свят изглежда, че университетът се опитва да се справи с промените на едро,

умения, както и култивиране на лидери. Въпросът за начина, по който обучаваме нашите архитекти, дизайнери, инженери за бъдещето, е разделящ. С бързото усъвършенстване на способностите на нашата технология, новите носители на виртуална реалност, роботика и изкуствен интелект се променя архитектурната професия на фундаментално ниво. Това създава въпроса дали архитектурната

за "неизвестно" бъдеще на професията. За да се справят с

променящите се ситуации на бъдещето, е необходимо да

вдъхновяваме интелектуалното любопитство преди всичко в младите хора.

Всички тези промени ни накараха за трета поредна

година да тестваме у нас една нова практика на преподаване и работа в екип на студентите.

Форматът ИСУ бе проведен от 27.10 до 3.11.2017 г. в УАСГ под патронажа

от добрите международни практики в академичните среди.

интересните лектори, на

за скъпото отделено време в името на по-доброто образование, близо до реалната практика, на колегите от журито, които спонтанно пожелаха да уважат труда и амбицията на младите хора, и на нашите спонсори, без които нямаше да се състои този формат. Благодарим

“Софпроект-ОГП“, ръководител на екипа “Визия за София“, участвал във финалното журиране на проектите и

презентациите

В моите очи образованието, което е еднопосочен процес на предаване на знания от по-опитния към понеопитния, е лошо образование. Подоброто образование е свързано

със създаването на условия и

стимулирането на личностното развитие и обогатяване в разнообразни аспекти. ИСУ е действие в посоката на по-доброто образование. Работилницата разчита на личната мотивация на студентите, нещо, което трябва да бъде подкрепяно и

насърчавано. Тя поставя студентите

в една непозната, но всъщност много

близка до реалността ситуация - тази

на работата в мултидисциплинарна

група от непознати. Може би в

началото е плашещо и объркващо, но пък такива (първоначално)

дискомфортни ситуации каляват и

развиват. Програмата е направена така, че да насърчава критичния поглед

и мисленето на студентите, а не съобразяването (и наизустяването)

с мнението на по-опитния. И ги учи, че правенето на грешки е нещо, което може да е полезно за тяхното развитие. И накрая в резултат на

това излизат на преден план тези, които са се организирали по-добре, които са проучили по-точно, които са мислили по-критично. Тоест студентите научават, че трудът и интелектът всъщност могат да са от

полза. ИСУ е модел, който ми се иска

да видя приложен по-често, в повече университети, с повече студенти.

Има различни поводи, които те

отвеждат до УАСГ, но определено ИСУ 2017 е сред най-добрите. Минаваш през бариерата на паркинга и попадаш в студио ПРОЖЕКТИРАНЕ. Зелените на цвят инсталации в интериора

сигнализират, че всичко е възможно и предстои ново приключение. Кипи творческа атмосфера от сутрин до късно вечер. Големи маси, големи екипи, големи идеи и всичко се случва само за няколко дни. Всеки, който избяга от ежедневната си програма и се потопи в уъркшопа, не съжалява, а очаква следващото издание с нетърпение. И най-големия комплимент е, че студентите решават да повторят участието си в програмата отново и отново. Задачата тази

със

задачата в срок. Интензивна програма, обучителни лекции от практиката, вълнуваща работа и всеки участва с

катедра "Обществени сгради",

Turn static files into dynamic content formats.

Create a flipbook
Issuu converts static files into: digital portfolios, online yearbooks, online catalogs, digital photo albums and more. Sign up and create your flipbook.