Can Laurena

Page 1

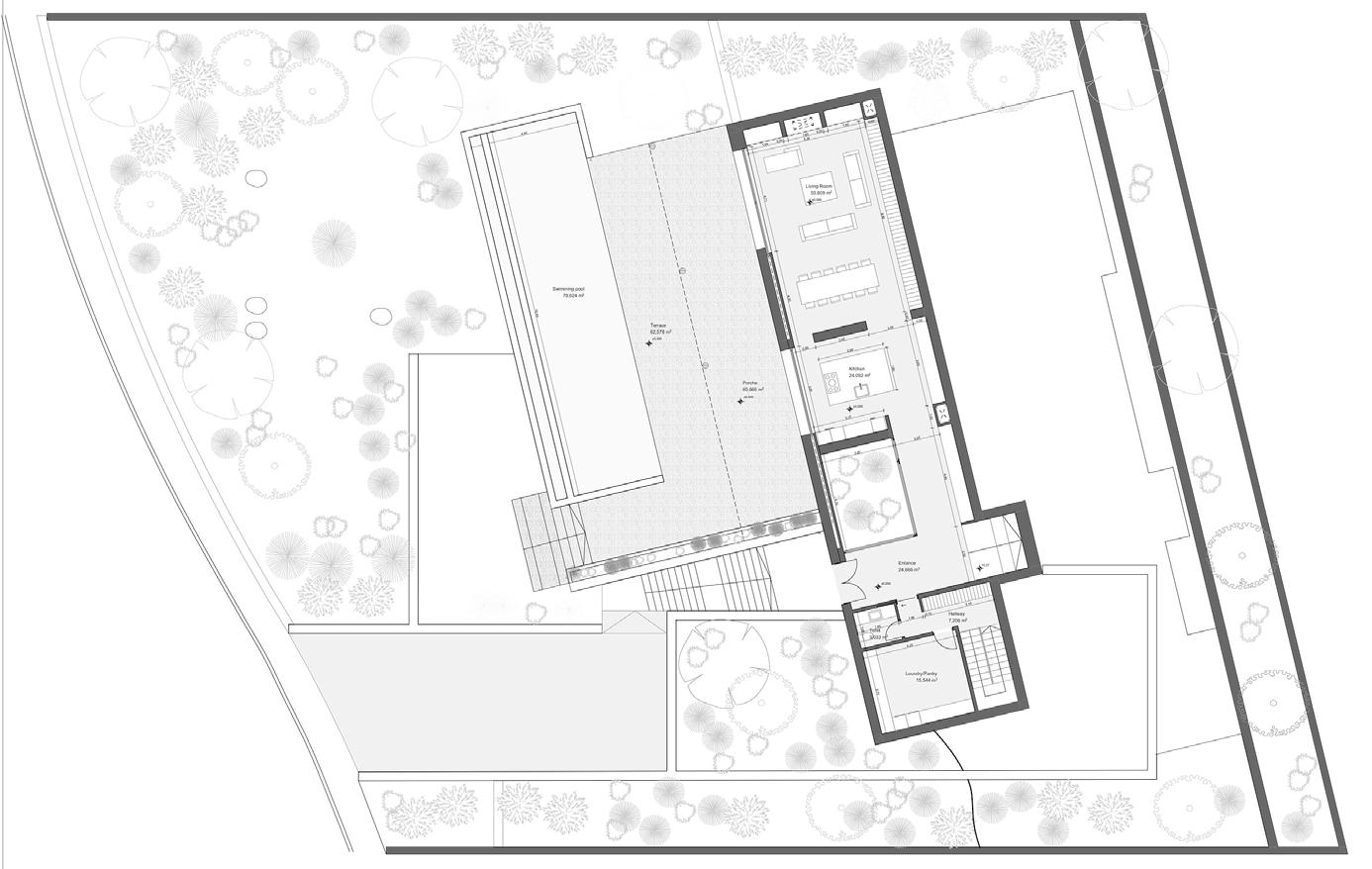
Can Laurena

5 bedrooms · 6 bathrooms

Plot

Building

Ground floor

1.700 m²

437,93 m²

Living room & dining area

Open plan kitchen x1 Toilet Laundry

1st Floor Basement

1 x Masterbedrooms en-suite with private terrace

4 x Double bedrooms en-suite with terrace access Parking

Can Montaña Project

Infrastructure
Location San Miguel Port View Sea views 1.701 m2 734,99 m2 Plot PROJECT DETAILS Built area Built area pool 58,02 m2 Total Built area 793.01 m2 Useful interior house 420,35 m2 Useful interior basement 122,98 m2 Total useful interior 543,33 m2 Useful exterior area 416,72 m2 Useful pool area 48,18 m2 Total useful exterior 464,90 m2 Electricity Main red/solar panels Agua Main red/ rain water cistern Layout Ground floor, 1st floor, lower floor/garage Bedrooms total 6 Bathrooms total 6,5 Distribution 1 x Masterbedroom 5 x Double bedrooms
General water General electricity

Turn static files into dynamic content formats.

Create a flipbook
Issuu converts static files into: digital portfolios, online yearbooks, online catalogs, digital photo albums and more. Sign up and create your flipbook.