





Nestled along the pristine shores of the Atlantic Ocean, this extraordinary 2-acre property offers a once-in-a-lifetime opportunity to own a piece of Sullivan's Island history. With over 250 feet of coveted ocean frontage and direct beach access, this compound presents a unique and unparalleled setting for luxurious seaside living.
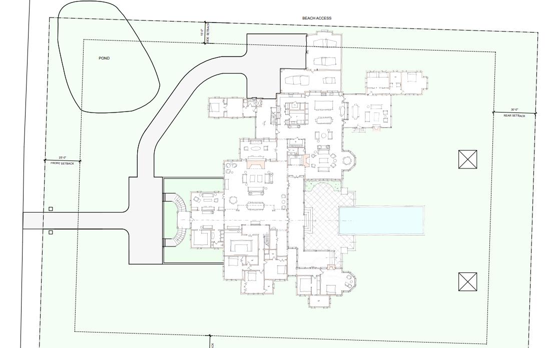
Steeped in history, the property includes a 1930's clubhouse (formally known as the Sand Dunes Club) ripe for transformation into a stunning single-family residence, the only allowable use for this parcel per the Town of Sullivan’s Island The property includes the historic beachfront venue, swimming pool, and direct beach access With one of the largest building footprints on any barrier island East of the Cooper, the property allows for nearly 10,000 square feet of living space Artistic renderings have been completed by renowned Charleston firm, Beau Clowney Architects, to help you envision the possibilities, including a 7-bedroom bespoke residence marrying historic charm with effortless Lowcountry living
The location is also ideal Situated within walking distance of Sullivan's Island's beloved restaurants and boutique shops, you can enjoy all the island has to offer You are also mere minutes from Mt Pleasant and less than 10 miles from the historic charm of downtown Charleston
* Information gathered from United States Census Bureau
Sullivan’s Island Commercial District: 0 6 miles (13 minute walk)
Shem Creek: 4 9 miles (12 minute drive)
Historic Downtown Charleston: 9 2 miles (17 minute drive)
The Battery: 11 2 miles (22 minute drive)
Charleston City Market: 10 5 miles (20 minute drive)
Daniel Island: 11 9 miles (18 minute drive)
Signature Aviation Charleston: 19 1 miles (24 minute drive)
Atlantic Aviation Charleston: 18 6 miles (26 minute drive)