









Welcome to the 2025 Homes on Parade! This is our signature event, and it is always fun to drive around our region and tour the homes. This year I want to highlight our mission statement:
The Builders Association of North Central Indiana (BANCI) serves, advances and protects the welfare of the building industry by providing safe and affordable housing for Indiana residents. We are a diverse organization in membership and leadership covering all aspects of the building industry, and I am proud of how we contribute to our local community. Just this year, we were able to award seven scholarships, totaling $7,000, to students pursuing education in a construction related career. Our golf committee raised enough money to give donation checks to the school nurse in twentytwo local elementary schools. Those funds directly impact the lives of children in our community. In the parade this year we are showcasing another nonprofit doing great things in our community, Habitat for Humanity. By touring their home in
Hello and welcome to the 2025 Builder’s Association of North Central Indiana annual “Homes on Parade”.
This is the 47th anniversary of the Builders Association of North Central Indiana-BANCI and the 38th Homes on Parade. We hope you enjoy our eight beautiful home entries this year.
We have six amazing new construction entries this year built by our very talented Builder members: Ideal Construction, JayH Construction LLC, Renewal Homes LLC, Coplen Construction Inc, and High Ridge Homes & Renovations.
There is also one home remodel entry from T.L. Jackson Construction Inc and a “Home under Construction” entered by Habitat for Humanity of Kosciusko County.
A new category that has been added this year is a Developer’s category. We have two entries this year, The Oaks presented by Wacky 2 Properties & Park Ridge South presented by Granite Ridge Builders that are indicated on the map with their logo and are available for drive-throughs.
Mentone, you will learn about their mission and program for building with each homeowner and community support from countless groups and individuals.
It is a privilege to be able to tour each home. Please be sure to thank the builders and the homeowners who opened up their homes to us all. This event would not be possible without the countless hours of hard work of our committee and member volunteers or without our Parade sponsors: First Federal Savings Bank, Kosciusko Connect and Superior Garage Door. Special thanks go to our Executive Director team of Kim McKibbin and Jackie Wyatt for planning and organizing the event! Thank you for attending the Homes on Parade and supporting the Builders Association of North Central Indiana.
Sincerely,
Thomas Burnworth
To vote for the 2025 People’s Choice Award one must visit all 7 completed parade entries to get each home’s “unique” stamp to vote, as well as register and be eligible for this year’s door prize of a Kenwood fire table. Home Under Construction and the Development are not required to vote or to enter for the door prize.
There are three ways to purchase tickets this year. They can be purchased online at www.buildnci.com, at the first house that you choose to tour, or at our office located at 523 S Buffalo Street, Warsaw, IN 46580.
Builders Association of North Central Indiana continues to support our local community and the building industry with our “Build Your Future”
2025 President BANCI Board of Directors Kim &
building trades programs. The Builders Association has a Scholarship program that is offered to our Marshall, Fulton, Kosciusko & Whitley County schools for students that are pursuing a future in the building industry. Did you know the average age of an electrician and plumber is currently 59 years old? This is why our “Build Your Future” program is so vital to our industry.
I’d like to thank all our builders, associates, homeowners, sponsors and committee members for their continued support and dedication ensuring the 38th annual Homes on Parade event continues again this year.
We have a complete listing of our members on the Builders Association of North Central Indiana website located at www.buildnci.com. All of our members comply with the strict building codes and regulations at the local, state and national levels.
History & Mission Statement:
The Builders Association of North Central Indiana was founded in 1978 as a not-for-profit trade association to serve and protect the welfare of the building industry by providing safe and affordable housing for Indiana residents. The Association educates and promotes members, supports the community and provides opportunities for youth within the building industry.
The Association continues to be a viable, indispensable and visible community asset with strong political participation in issues that affect affordable housing in our industry.
Thank you for spending your weekend of September 19-21 touring our amazing 38th Homes on Parade.
The Builders Association of North Central Indiana (BANCI) is a trade organization representing Indiana home building, remodeling and light commercial construction industry. The BANCI Scholarship program has been developed to assist students studying construction technology or a related construction field.
Parents: Jason & Sara Hill
Attending: Trine University
Major: Civil Engineering
Parents: JC & Mindy Stookey
Attending: Trine University
Major: Civil Engineering
Parents: Ben & Dani Barkey
Attending: Ball State University
Major: Architecture
Wawasee High School
Parents: Clay & Mindy Brooks
Attending: Indiana State University
Major: Interior Architecture
Parents: Deric & Heidie Ransbottom
Attending: Ball State University
Major: Architecture
Parents: Dave & Mandy Bailey
Attending: Ball State University
Major: Architecture
Parents: Jay & Sara Marker
Attending: Trine University
Major: Mechanical Engineering
$1,49900 Kenwood and Brooks Rectangular Chat Height Gas Fire Pit Table
To be eligible for the table drawing, visit all seven of the completed Homes on Parade entries, have your ticket marked at each home and then fill out your name, phone number and email address on the ticket and drop the ticket off at the last home you visit.
Habitat for Humanity of Kosciusko County
3970 Corridor Drive Warsaw, IN 46582 (574) 269-4104
ben@kosciuskohabitat.org www.kosciuskohabitat.org
Habitat
We believe in the power of homeownership to change lives. Habitat for Humanity is a nonprofit organization that helps local, low-income families build and buy their own home. Families in the program work sweat equity hours on their build site; attend financial literacy and homeownership classes; save a down payment; and purchase their Habitat home with a 0% interest mortgage. Habitat families go on to live healthier lives, build more wealth and vote more often. Their children experience fewer allergies and have higher grades and graduation rates. Learn more at kosciuskohabitat.org/impact.
TYPE 1-Story
TOTAL FINISHED SQ. FT. 1,536 BEDROOMS 5
BATHROOMS 2
GARAGE
None
HOME DESIGNED BY Diana Lefever Creech, AIA, NCARB
405 N Franklin Street, Mentone, IN 46539
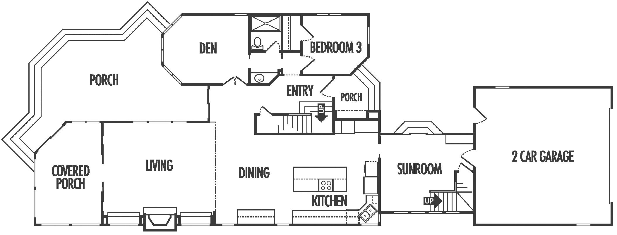
This home features a modern, ADA-adaptable design with an open-concept living/kitchen/dining space, 5 bedrooms with closets, 2 baths and a utility room all within 1,536 sq. ft. It is built on a 4-ft. crawl space to allow for ample below-grade
storage and storm shelter space, and to keep mechanicals out of sight. An outdoor shed is included for storage of lawn equipment. Practical and efficient, it’s designed for a local family of six in need of a safe, affordable home.
Ideal Construction Co., based in Warsaw, IN, has been building quality structures since 1972. Ideal has grown into a trusted name in Northern Indiana for over 50 years. Specializing in residential, agricultural, post-frame, and church buildings, Ideal combines craftsmanship, integrity, and experience into every project. From custom homes to functional farm buildings and community churches, Ideal Construction is committed to delivering lasting value and exceptional service. With deep roots in the region and a reputation built on trust, Ideal continues to shape the landscape of Northern Indiana - one building at a time. PRE-SOLD
HOME DESIGNED BY CTG Associates
HOME DECORATED BY Homeowner
LANDSCAPING BY Fouce Scapes
Fri 4–8 PM | Sat & Sun 12–5 PM
Experience the trusted quality of Granite Ridge Builders in the newest section of the area’s most desirable neighborhoods—Park Ridge South.
For a limited time, enjoy up to $20,000 off move-in-ready homes making homeownership easier than ever.
• Spacious lots starting at $72,900
• Move-in-ready homes starting at $369,900
• Peaceful cul-de-sacs and scenic pond views
• Special financing options available
• Modern finishes & quality craftsmanship
• Minutes from schools, shopping and dining
H FRAMING LUMBER & PLYWOODS
H TREATED LUMBER & AZEK DECK ACCESSORIES
H ROOFING PRODUCTS
H ANDERSEN WINDOWS & DOORS
H MASONITE FIBERGLASS ENTRANCE DOORS
H CERTAINTEED RESTORATION VINYL SIDING
H ARMSTRONG CEILING TILE
H KITCHEN CABINETS & BATHROOM VANITIES FROM KRAFTMAID AND MERILLAT
H INTERIOR DOORS & TRIM
H FIBERGLASS TUBS & SHOWERS
H NICKEL GAP & BARNWOOD SIDING
H STEEL CULVERT & PLASTIC FIELD TILE
H FIBERGLASS INSULATION
H PLUS SEVERAL LINES OF NAME BRAND HARDWARE
Ideal Construction Co., based in Warsaw, IN, has been building quality structures since 1972. Ideal has grown into a trusted name in Northern Indiana for over 50 years. Specializing in residential, agricultural, post-frame, and church buildings, Ideal combines craftsmanship, integrity, and experience into every project. From custom homes to functional farm buildings and community churches, Ideal Construction is committed to delivering lasting value and exceptional service. With deep roots in the region and a reputation built on trust, Ideal continues to shape the landscape of Northern Indiana - one building at a time.
74 EMS C27 C1 Lane, Warsaw, IN 46582
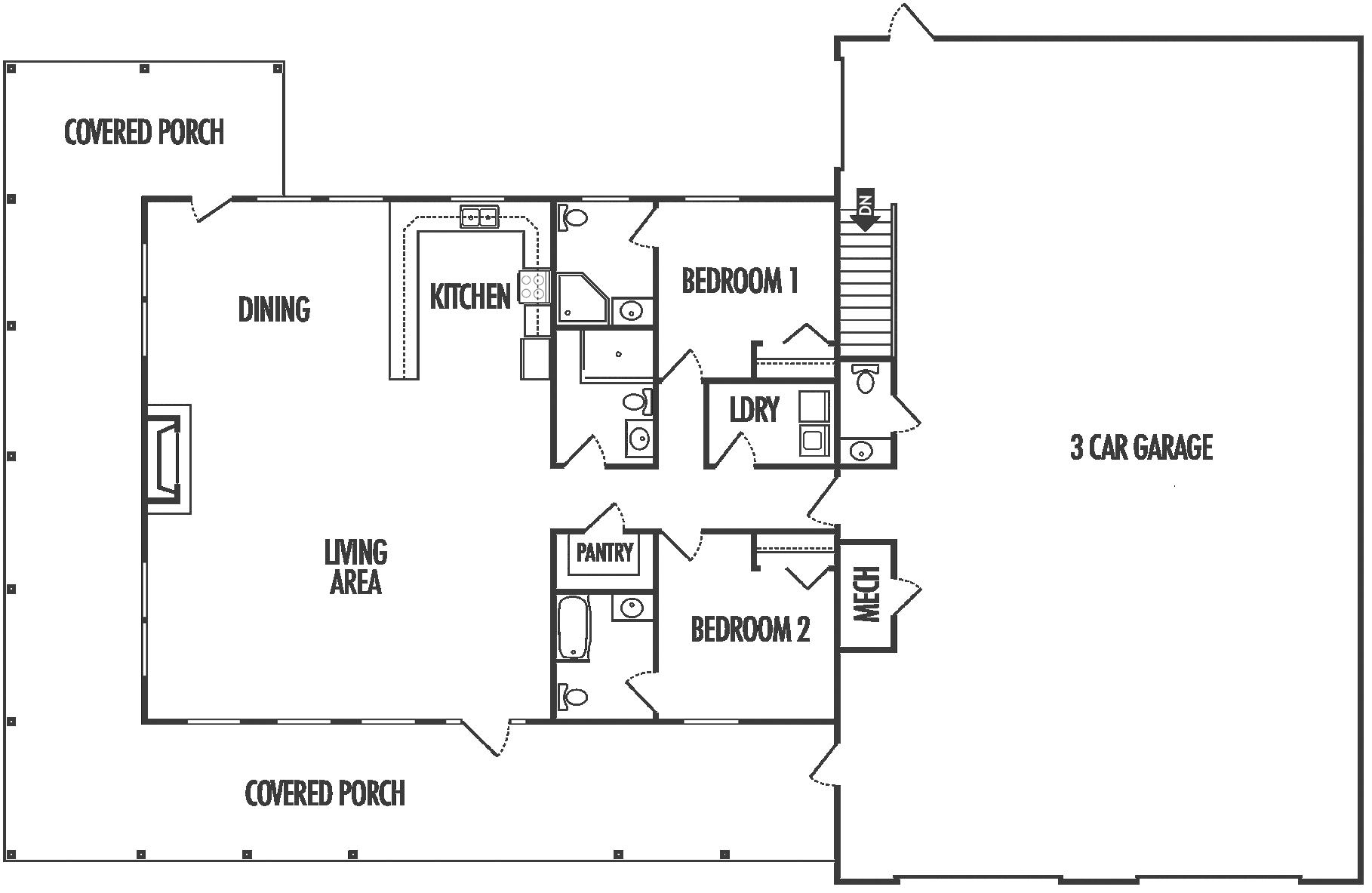
The brand-new home built at 74 EMS C27 C1 Ln, Warsaw, IN by High Ridge Homes & Renovations is positioned on the corner of Chapman Lake and the channel with over 100 linear feet of seawall with stunning views from sunrise to sunset. The gray siding with the stone veneer gives the house a clean, modern look. The symmetrical window design and gable roof contribute to the contemporary lake house vibe. The interior ceiling is vaulted, maximizing the natural light and visual space. The kitchen includes crisp white cabinets with shaker doors, quartz countertops and chevron pattern backsplash.
High Ridge Homes & Renovations was started in October 2022 as a fully operational design/ build construction company. Our business is built on a foundation of quality, reliability and customer satisfaction. We specialize in residential and commercial projects including new construction, renovations and custom builds. With a skilled team and years of experience, we deliver exceptional results on time and within budget. Every project is handled with care, from planning and design to final execution, ensuring craftsmanship and attention to detail at every step. Trust us to build spaces that are functional, durable, and designed to inspire.
HOME DESIGNED BY AccuCad Drafting Service, Inc.
HOME DECORATED BY Homeowner
LANDSCAPING BY Dave’s Lawnscape
Now available Waterfront: and Overlook lots in The Oaks. The building lots offer magnificent views nestled within The Oaks community. These building sites are a rare opportunity to build your dream home on Lake Tippecanoe Indiana’s deepest natural all-sports lake. These generously sized lots come with dedicated dock space and private access to Shelter Cove a se
protected inlet ideal for swimming paddleboarding, and launching you boat. Find us between Renewal Homes and Coplen Construction on your Parade map
(574) 527-2233 renewalhomes@comcast.net www.renewalhomesllc.com Renewal Homes
5996 N 450 E, Leesburg, IN 46538 - “Wake & Lake”
Renewal Homes welcomes you to the “Wake & Lake” 2025 parade house.
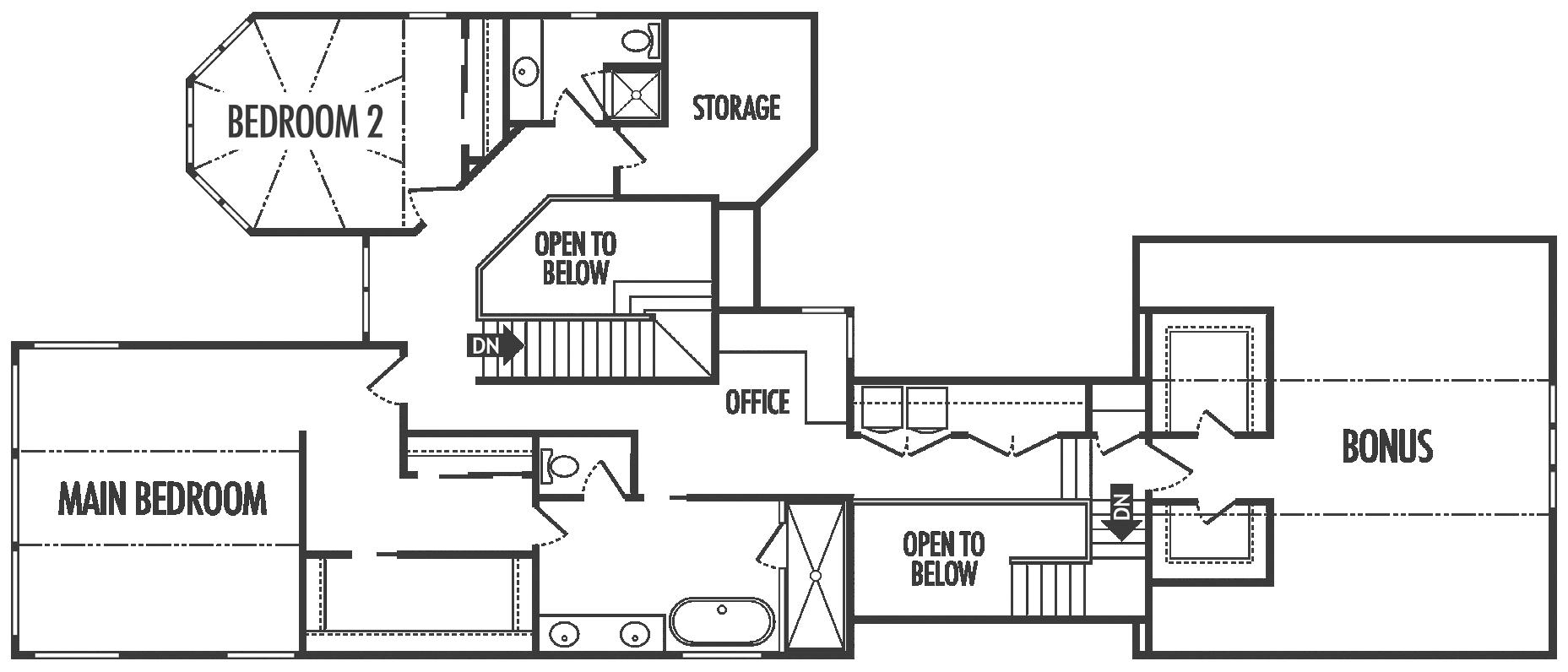
This lakeside haven is personally designed for summer joy with family and friends. Set on a sandy beach, this east facing home features expansive windows that capture breathtaking sunrise views over the lake. Designed for connection and relaxation, this shoreline home has a spacious patio and second floor deck that blends comfort and natural beauty offering inviting gatherings, from morning coffee to evening drinks by the water. With over 3,000 square feet of living space this open-concept design balances functionality with aesthetic appeal, creating a flow that feels intuitive and welcoming. The kitchen is a chef’s dream with topof-the-line appliances, custom cabinetry and an expansive solid surface countertop. Other enhancing features include a high ceiling, beam accented, Great Room adorned with a fireplace and barn doors leading to a den.
Renewal Homes, LLC is a design / build company, meaning that we can handle the building process from design through completion of the project. We want to hear the hopes and expectations of your future home so we can help you think through the options and make sure your home is not simply custom, but personalized.
Whether a remodel project, a first time build or a retirement home our goal is to create homes that are inspiring, beautiful, efficient and functional, reflecting your values of providing a place of safety, love and unity.
We strive to do this within the context of exceptional quality, financial integrity, and environmental stewardship. When we accomplish all of this, we believe that your future is improved…that life is renewed.
HOME DESIGNED BY AccuCAD Drafting Service, Inc.
HOME DECORATED BY Krista Lynn Design
LANDSCAPING BY Vivid Scenery
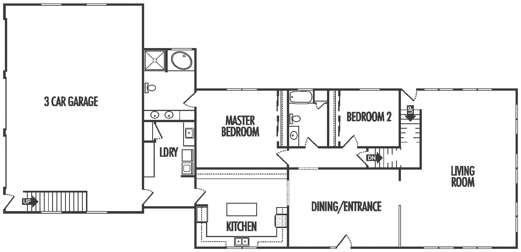
Coplen Construction, Inc. has been a leader in construction in the North Central Indiana area for more than 45 years. Our mission is to offer the most knowledgeable and professional services in the construction industry to our customers, which will provide our building projects with the best quality, craftsmanship and value completed on time and in budget. Our office provides a full range of construction services to make the building process an enjoyable experience. The president of our company and the project manager hold National Home Builders designations such as GMB (Grand Master Builder) and CGB (Certified Graduate Builder). These National and State designations recognize our company as a leader in the industry. Along with this knowledge and experience we offer a design staff, interior decorating consultant, licensed plumbers, onsite construction managers and laborers. Our company specializes in Custom Homes, Light Commercial Construction and Remodeling.
Come in and meet our professional staff and let us design/build your next project.
SPEED PRO
$79. 95 per month
Never question whether your internet is fast enough again. This superior connection delivers strong Wi-Fi, even when everyone is online. Built for gaming, streaming, remote work, and more. STREAMER
$64. 95 per month
$ 49. 95 per month
The perfect plan if you need your connection to be on its game at all times. Great for streaming your favorite shows and movies on multiple devices.
Check email, browse the internet, and shop online with ease using this simple, reliable connection. Not recommended for streaming or households that have multiple devices and users.
T.L. Jackson is a prestigious and established company known for its unparalleled craftsmanship, attention to detail, and commitment to excellence. A thirdgeneration custom home builder with over 50 years of construction experience, T.L. Jackson has a rich history of creating beautiful homes tailored to their clients’ unique preferences and lifestyles. T.L. Jackson has cultivated their expertise over the generations, ensuring that each project is a masterpiece of design and functionality. Their reputation for delivering exceptional quality, innovative design solutions, and superior client service sets them apart as a leader in the luxury home building industry. These qualities make T.L. Jackson a top choice for discerning clients seeking a truly exceptional living experience.
HOME DESIGNED BY TL Jackson Construction/ Kim Arbogast Designs
HOME DECORATED BY Kim Arbogast Designs
• Gigabit speeds so
• Lag-free gaming and crystal-clear video calls
• Equal upload and download speeds
• Stay connected across all your smart devices
• Scalable plans for growing teams
• Remotely backup and stream multiple video security cameras
• Upload and download large files in seconds
• Access cloud services without lag or latency
INCREASE IN GRADUATION RATE FOR STUDENTS ENROLLED IN CTE CLASSES COMPARED TO TRADITIONAL STUDENTS.
Builders Association of North Central Indiana is proud that EVERY BUILDER MEMBER of our Association has adopted and committed to the Quality Assurance Builder Standards. The Indiana Quality Assurance Builder Standards manual will be provided to every customer by their Builder at the time the contract is signed for each new residential home construction and/or sizeable residential home remodeling project ($5,000 or more) undertaken by the Builder. Hire a Builder Member dedicated to following the Quality Assurance Builder Standards: We proudly present our Quality Assurance Builder Members:
Blueprint Construction
Bob Buescher Homes, Inc.
Buhrt Builders, Inc.
Caliber Designs, LLC
Classic Builders
Coplen Construction, Inc.
D & J Roofing and Construction
Granite Ridge Builders, Inc.
Harter Custom Construction
Ideal Builders
Ideal Construction Company
Inglenook LLC
JayH Construction, LLC
Milestone Construction, Inc.
Miller Brothers Builders, Inc.
Millwood Roofing & Construction
R W Kidd Construction
Reliance Construction, Inc.
Renewal Homes LLC
Robinson Construction, Inc.
Rochester Homes, Inc.
Shrock Construction
Signature Building & Design, LLC
Skyline Builders
T.L. Jackson Construction, Inc.
Timber Rock Construction, LLC
White Oaks Construction, Inc.
Certified Aging-in-Place Specialist (CAPS)
If you’re like the majority of Americans over the age of 45, you want to continue living in a familiar environment throughout your maturing years. Or maybe you’re considering moving a parent into your home. According to the AARP, older home owners overwhelmingly prefer to age in place, which means living in your home safely, independently and comfortably, regardless of age or ability level. To age-in-place, you will probably need to modify your house as you mature to increase access and safety. Modifications may range from the installation of bathroom grab bars and adjusting countertop height to the creation of first floor bedrooms and the installation of private elevators. CAPS professionals have been taught the strategies and techniques for designing and building aesthetically pleasing, barrier-free living environments. CAPS graduates pledge to uphold a code of ethics and are required to maintain their designation by attending continuing education programs and participating in community service.
The Certified Graduate Builder (CGB) has sharpened his business management skills to better understand today’s home building industry. The CGB is focused on effective management in the office and on the job site, examining all stages of new home construction and is trained in scheduling, estimating, job cost procedures, accounting principles and basic contract law. The CGB is dedicated to his craft and to growing his business – and that is evident by their commitment to continuing education.
The ultimate symbol of the building professional, the Graduate Master Builder (GMB) designation is for experienced builders only. Builders must have the CGB designation or the CGR designation with five years of building experience, or 10 years of building experience and successful completion of three CGB/CGR courses before beginning GMB training. GMB undergo in-depth instruction geared for experienced building professionals, which provide a more complete knowledge of all facets of the home building industry; providing clients with the best of home building, customer service and advanced construction techniques.
The GMR allows CGRs to attain further recognition for educational excellence and longevity in the remodeling industry. This program is designed to be the master level of the current CGR designation. Qualifications include 15 years remodeling experience, completion of 5 required courses, and having an active CGR for 5 years or active CR (Certified Remodeler) from NARI (National Association Remodeling Industry) for 10 years. Homeowners seek GMRs because they know that these are remodelers who know how to run a successful business, keep up with current design and style trends and listen well to their clients.
(CGR) CGR is the mark of professionalism for remodeling contractors. Remodelers with at least five years of experience in the industry can apply for the Certified Graduate Remodeler (CGR) designation. Courses in the CGR curriculum are designed to emphasize business and project management skills as the key to a successful remodeling operation by teaching builders job cost procedures, accounting principles and basic contract law. When you hire a CGR, you know you’re hiring a trained professional.
Certified Green Professional (CGP)
The CGP designation recognizes builders, remodelers and other industry professionals who are formally trained to incorporate green and sustainable building principles into homes without driving up the cost of construction. Builders with the CGP designation are educated in green building practices that focus on energy conservation, lowered water consumption, and responsible use of materials that enable homeowners to reduce operating costs, qualify for tax incentives, meet government regulations and increase their property’s marketability. Going Green just makes sense!
Master Certified Green Professional (Master CGP)
The Master Certified Green Professional (Master CGP) designation comprises an even more in-depth study of green building science and methods. Builders with this designation are more deeply trained in building science techniques for the high-performance home. The Master CGP builds on the Certified Green Professional (CGP) designation; expanding into the mechanics of green building.
B & B Home Builders, LLC
Brett Garner Goshen (574) 238-4238
Blake Harris Construction
Blake & Apryl Harris Pierceton (574) 551-0260
Blue Skies Renovations, LLC
Kristian Eicher Atwood (574) 333-6297
Blueprint Construction
Michael Haitt Rochester (574) 224-2583
Bob Buescher Homes, Inc.
Logan Buescher Fort Wayne (260) 490-3355
Buhrt Builders, Inc.
Matt Buhrt Syracuse (574) 457-3431
Caliber Designs, LLC
Karen White and Jason Meck North Webster (574) 376-0457
Classic Builders, Inc.
Ben Champoux Syracuse (574) 457-5401
Coplen Construction, Inc.
Douglas Harvey Warsaw (574) 269-1673
D & J Roofing and Construction
John Borkholder Nappanee (574) 773-0494
DR Horton-IN, LLC
Charlie Griese Fort Wayne (260) 490-4131
Granite Ridge Builders, Inc.
Luke Hoffman Fort Wayne (260) 490-1417
Harter Custom Construction
Brett Harter Leesburg (574) 265-6637
High Ridge Homes & Renovations, LLC
Lucas Britton Warsaw (574) 326-5185
Ideal Builders
Kim Davis Decatur (260) 724-9131
Ideal Construction Company
Andy Hostetler Warsaw (574) 267-4721
Inglenook, LLC
Daniel Schlatter Warsaw (574) 265-1327
JayH Construction, LLC
Aaron Miller Etna Green (574) 453-7938
Lewis Construction
Bryan Lewis Rochester (574) 835-1892
Milestone Construction, Inc.
Thomas Burnworth Syracuse (574) 457-0255
Miller Brothers Builders, Inc.
Bradley Plett Goshen (574) 533-8602
Millwood Roofing & Construction
Marlin Miller Milford (574) 269-3099
Northfield Enterprises, Inc.
Larry Coplen Warsaw (574) 269-1673
Reliance Construction, Inc.
Sam Beachy Nappanee (574) 773-4308
All members of the BANCI are also members of the State and National Associations.
Renewal Homes, LLC
Wendell Miller Warsaw (574) 527-2233
Robinson Construction, Inc.
Mark Glova Warsaw (574) 267-8814
Robinson Construction & Design
Brent Robinson North Webster (574) 551-8237
Rochester Homes, Inc.
Alex Berlin Rochester (574) 224-7320
RW Kidd Construction
John Kidd Warsaw (574) 529-0520
Shrock Construction, Inc.
Gable Shrock Ligonier (574) 457-6037
Signature Building & Design, LLC
David Johnson Winona Lake (574) 268-2400
Skyline Builders
Tim Merchant Warsaw (574) 268-2444
T.L. Jackson Construction
Bruce Jackson Syracuse (574) 457-5417
Timber Rock Construction, LLC
Tyler Miller Warsaw (574) 527-7219
Wacky 2 Premier Properties, LLC
Jim Anderson Westfield (317) 439-9836
White Oaks Construction, Inc.
Chris Bornman Cromwell (260) 856-4950
Windsor Homes
Rob Wacker and Nick Hoeffel Fort Wayne (260) 490-1302
1st Source Bank
Cathy Duttlinger Warsaw (740) 235-2885
ABC Supply
Richard Neff Goshen (574) 642-3196
Abrams Consulting Firm
Kim Abrams Culver (630) 746-5595
Advanced Solar
John Moorman Warsaw (574) 227-2801
AirTite Insulation, LLC
Reed Martin Shipshewana (574) 825-5271
Alpha Building Center
Travis Speicher Nappanee (574) 773-7787
Artizan Flooring
Amber Hensley Plymouth (574) 540-2184
Ayr Custom Cabinetry
Troy Glaser Nappanee (574) 773-7973
Big C Lumber
Rob Springer Cromwell (260) 856-2152
Bin There Dump That Michiana
Ronald Lee Argos (574) 892-5554
Blue River Digital
Nick Prentice Warsaw (574) 404-9576
Bobcat of Warsaw
Andrew Schmidt Warsaw (574) 267-8651
Brouwers Carpet & Furniture
Jennifer Brouwer Warsaw (574) 267-8054
Builders Mart
Tom Ness Warsaw (574) 267-8836
Cable Bullet
Chris Manduka Warsaw (574) 393-9941
Camden Foundation Technologies
Bernadene Boggs Warsaw (574) 594-2497
Carey Excavation & Construction, Inc.
Jeff Carey Warsaw (574) 269-2245
Carpet Depot
Bailey Ness Winona Lake (574) 269-3191
Carter Lumber-Plymouth
Matt Lombard
Plymouth (574) 936-9636
Centurion Exteriors
Brad Kosier
Fort Wayne (260) 298-6776
Coldwell Banker Real Estate Group
Natalie Brookins
Warsaw (574) 286-3600
Colliers Commercial Services
Christopher Gaby Warsaw (574) 269-3393
Colorbilt Painting, LLC
Matt Podlesak Plymouth (574) 780-8056
Community Insurance Partners
Gina Cesaretti Warsaw (574) 267-2181
Core Residential Service
Steve Searles
Warsaw (260) 901-9641
Cornerstone Moulding, Inc.
Darryl Yoder Bremen (574) 546-4249
Cottage Watchman
DIV. EF Rhoades & Sons
Rachael Rhoades
Pierceton (574) 594-2685
Crossroads Bank
Rob Spencer Warsaw (574) 306-4497
Culligan Water Conditioning of Warsaw
Hunter Bradford Warsaw (574) 267-7471
Epic Insurance Midwest
Scot Wolf Goshen (574) 533-0573
Equity Roofing, Inc.
Darrell Bontrager Goshen (574) 207-4655
Everwise Credit Union
Ricardo Scarlett Warsaw (574) 269-4487
EXP Realty
Billie Shively Warsaw (574) 527-1533
Fidelity National Title
Shelly Avery Warsaw (574) 268-0065
First Federal Savings Bank-Huntington
Ryan Hurd Warsaw (574) 376-2575
First Federal Savings Bank-Plymouth
Joel Girten Plymouth (574) 936-8953
First Federal Savings Bank-Rochester
Julia Moore Leesburg (574) 453-1096
FlowTech Plumbing and Heating
Michelle Mohler Columbia City (260) 248-2021
Fouce Scapes, Inc.
Don Fouce Claypool (574) 527-4684
G & R Siding, Roofing & Windows
Gary Richard Warsaw (574) 527-5551
GFL Environmental
Dawn Sterba Fort Wayne (260) 755-9224
Glen’s Diamond Tile, LLC
Glen Farmwald Nappanee (574) 354-8903
Habitat for Humanity of Kosciusko County
Ben Logan Warsaw (574) 269-4104
Heritage Cabinetry
Floyd Eash Ligonier (260) 856-2727
HOMELIVING Places & Spaces
Karen Johnson Milford (574) 596-0169
Hometown Mortgage @ Cardinal Financial
Laurie Tatich Goshen (574) 293-5626
Horizon Landscapes, LLC
Matt Tracy Pierceton (574) 551-0962
Hundt Concrete, LLC
Jason Hundt Plymouth (574) 936-9866
Integrity Roofing
David Miller Warsaw (574) 319-0467
Interra Credit Union
Jessica Denton Goshen (574) 534-2506
J & N Stone, Inc.
Jack Lengacher Jr. Wakarusa (574) 862-4251
J & S Flooring
Joseph Beachy Milford (574) 773-2673
J Lane Flooring & Design
Jamie Lane Thompson Warsaw (574) 269-6230
J Miller Cabinet Co. Inc.
Justin Norris Columbia City (260) 691-2032
Joy Cleaning & Home Services, LLC
Jessica Marroquin Warsaw (574) 268-8663
KC Recycling Depot
Thomas Ganser Warsaw (574) 372-3087
Kendall Lighting Center
Jenny Kreft Fort Wayne (260) 483-8820
Keough & Sons Electric, LLC
Tom Keough Warsaw (574) 551-5702
Knepp Sand & Stone
Blake Shortill New Paris (574) 831-4949
Kosciusko Chamber of Commerce
Rob Parker Warsaw (574) 267-6311x6
Kosciusko Connect, LLC
Curt Barkey Warsaw (574) 267-6331
Kosciusko REMC
Tim Landrigan Warsaw (574) 269-4237
Kozon Plumbing & Heating
Brandy Kozon-Hatfield Cromwell (260) 856-2225
Kuert Concrete, Inc.
John Montgomery South Bend (574) 232-9911
Lake City Bank Kirtus Murray Warsaw (574) 371-9298
Lake City Rental
Aaron Kosins Warsaw (574) 267-5445
Leatherman Supply
John H. McCarty III Goshen (574) 533-0597
Legacy Wood Creations, LLC
Andrew Miller Syracuse (574) 354-7613
Live Oak Electric, LLC
Steve Ulery Culver (574) 842-4776
Lowe’s, Inc.-Plymouth
Jorge Arauz Plymouth (574) 935-6500
LT Siding Window & Door
Dee Lowe Warsaw (574) 527-1738
M & D Electrical Solutions, LLC
Dana Day and Derrick Day North Manchester (574) 551-5412
Marshall County REMC
Noami Podlesak Plymouth (574) 936-3161
Masterpiece Metal Roofing
Larry Schlabaugh LaGrange (260) 463-2675
McGowan Insurance Group
Byron Kauffman Warsaw (574) 267-6183
Meridian Title
Heather King Warsaw (574) 268-6300
Mid-City Supply
Joyce Watkins Warsaw (574) 267-3693
Mike’s Garage Door
Cassie Harren Leesburg (574) 453-4368
Millennium Sounds
John Doxsee Fort Wayne (260) 436-0003
Miller Door & Trim
Dean Howard Goshen (574) 533-8141
Miller’s Building Supply
Doug Stuckey Goshen (574) 534-3973
Momper Insulation, Inc.
Shad Stahlman Fort Wayne (260) 432-7543
NTH Productions, LLC
Noah Hutton Warsaw (574) 551-1952
Nu-Wood by Jasper Plastics
Randy Miller Syracuse (574) 457-2062
O’Neils Glass
Kim Sheehan Fort Wayne (260) 426-0755
Ozinga Ready Mix Concrete, Inc.
Paul Winkle Plymouth (574) 936-2136
Pella Windows & Doors of Northern Indiana
Seth Freed Mishawaka (574) 243-9014
Phend & Brown
Harrigan Williams Milford (574) 658-4166
Prince Land Surveying, LLC
Ryan Prince Winona Lake (574) 549-3029
Pro IT Solutions
Alex Carder Wakarusa (574) 862-0021
Pro Tech Panel & Truss
Shane Varga Bremen (574) 281-9080
Quality Window & Door
Tavis Amundson Elkhart (574) 862-1613
Rabb/Kinetico Water Systems
Adam Clemens Warsaw (574) 267-3853
Ransbottom Excavating and Trucking, Inc.
Deric Ransbottom Claypool (574) 566-2403
Ruoff Mortgage
Sonia Gunderson Warsaw (574) 268-9033
Rural 1st
Sean Carpenter South Bend (574) 291-1277
Safe-Way Garage Doors, LLC
Aaron Metzger Columbia City (260) 244-3789
Schrock Masonry
Marlon Schrock Nappanee (574) 773-5405
Solar Energy Systems, LLC
Keith Steidley Nappanee (574) 773-0546
Stryker Lawn Service
Chris Thompson Warsaw (209) 787-9537
Superior Garage Door Service, LLC
Kevin Hall Leesburg (574) 551-7835
Surf Internet
Jordan Holzwart Elkhart (574) 532-2714
Syracuse Glass, LLC
Mike Myers Syracuse (574) 457-5516
The DeHayes Group
Greg Gerbers Fort Wayne (260) 969-1317
Van’s Home Center
Dustin Parker Auburn (260) 927-8267
Veritas Professional Development
Matt Goebel Winona Lake (765) 760-2198
Warsaw Custom Cabinets
Tim Mundinger Warsaw (574) 267-5794
Warsaw Masonry
Brian Stichter Warsaw (574) 267-2825
WRSW 107.3
Baylen Hite Warsaw (574) 372-3064
Zeeland Lumber Supply
Brian Antonides Mishawaka (574) 522-6453