BANI 2025 Builders Parade

Page 1


Haven on Pearl” 539 Pearl Beach Drive, Coldwater Lake Coldwater, MI 49036

Homes

Hangout at Lake James” 3565 N. Bay View Road, Lake James Angola, IN 46703 Bob Buescher Homes

Four Seasons Design & Remodeling

Haven” 3825 W. Sycamore Beach Road, Crooked Lake Angola, IN 46703

by JICI

Place”

N. Terrace Boulevard Angola, IN 46703

letter from the president

Welcome to the 2025 Builders Parade, brought to you by BANI - The Builders Association of Northeast Indiana! We welcome you to tour our event, showcasing 4 outstanding homes. These homes represent some of the finest builders in our area showing you a glimpse of what is new and exciting!

Each entry offers unique architectural ideas, one of a kind interior design, modern innovations, and custom details to entice you to take the plunge and build your dream home or remodel your existing home. Be sure to recognize all the fine craftsmanship, architecture and artistry that our Builder and our Associate Members put into each home to bring them alive.

A special thank you goes out to our Sponsors that every year help make this event possible:

Our Major Sponsor this year is Homes by

JICI, Inc. Our “Complete the Tour” Sponsor is “Bob Buescher Homes”, our “People’s Choice” Sponsor is “Pella Windows and Doors”. Thank you again for your continued support of our Association and in helping to make our events successful.

A full listing of our members can be found on our website buildneindiana.com. Check out our Upcoming Events, our Builders Standards — the level of Quality Assurance Standards we require our Builder Members to follow OR link informative articles from NAHB (National Association of Home Builders) and IBA (Indiana Builders Association).

We know the Builders Parade would not be a success if not for you, the folks that attend this event! We’d like to thank you all for taking the time to enjoy our tour. To support that thought, we offer our “Complete the Tour” Contest every year. All you have to do to participate is tour each home, get your

“Complete the Tour” ticket punched at each home and then drop the completed ticket in the last home you tour. It’s that easy! Winner is awarded $500 cash.

Thanks again to all who attend and support the Builders Association of Northeast Indiana.

Bob Buescher Team

Building dreams is our primary motivation! These dreams started over 45 years ago when Bob began his career as a framer. Now with over 2,000 homes under our belt and a staff of 25 employees, we are blessed to still be creating those dreams. We look to continue that tradition well in to the future with Bob’s sons Austin and Logan well entrenched in the business.

Many of our subcontractors, suppliers and employees have been team members since day one. We appreciate their service and dedication in building quality into every home and Bob would like to thank all of them for their loyalty and continued commitment to building dreams for all of our homeowners who have trusted us to build as well. The entire staff is dedicated to making sure the building process is stressfree for you and your family, and that your home is delivered on time.

Bob Buescher Homes has a satellite office conveniently located to serve the Steuben and Southern Michigan clients. You can visit us at 1250 N. 200 W. in Angola or call us at 260-668-7667. Additionally, you may visit us on the web at bobbuescherhomes.com. Thank you.

NEW BUILD

The Haven on Pearl

539 Pearl Beach Drive

Coldwater Lake Coldwater, MI 49036

Welcome to “The Haven on Pearl” – a lakeside sanctuary of curated craftsmanship and contemporary elegance.

This 2,755 square-foot retreat is Bob Buescher Homes’ 2025 BANI Parade of Homes entry – a stunning collaboration between builder and homeowner that brings well-considered design and personal vision to life. Step through the front door into a space where every detail speaks to both form and function. Following a thoughtfully located laundry room on your right, the striking powder bath greets you – a custom 12” quartz apron vanity and backsplash, floating shelf, and fluted tile accent wall that captures the homeowner’s contemporary style. To your left, the main-level primary suite awaits, with an attached bath that features a sleek glass and tile shower with a striking full-length niche. Down the hall, the staircase will draw your attention as you enter the heart of the home: a light-filled great room and stunning kitchen adorned with suede quartz countertops, a timeless combination of painted and stained cabinetry, and a bold oversized vent hood – all perfectly framing the covered patio and lakefront view. Upstairs, a second primary suite with a generous walk-incloset, three additional bedrooms, two full baths, and a bonus room with a view of the water await.

Thank you for taking the time to tour The Haven on Pearl – we hope to see you soon to begin designing the home of your dreams.

Star Homes Inc. has been building custom homes since 1960, blending old-world craftsmanship with forward-thinking design—a combination made possible by over 60 years of homebuilding experience and proven leadership. With a longstanding tradition of excellence, Star Homes integrates modern three-dimensional design into every project. The company has earned a trusted reputation for quality and stability, consistently delivering outstanding results across generations and changing market conditions. Whether it’s a custom lake home, home addition, remodel, carriage house or a garage project, Star Homes will create “The Perfect Place To Call Home.”

Overdrive Hangout at Lake James

Welcome to the Ultimate Lakefront Hangout. This exceptional carriage house blends the charm of a luxury barndominium with modern versatility—an ideal haven for car enthusiasts and entertainers alike. Once an outdated backlot garage, the space has been completely reimagined into a stunning retreat designed for relaxation, fun, and style. Inside, you’ll find a thoughtfully designed recreational area, a high-end kitchen perfect for culinary gatherings, and a lively karaoke lounge that sets the tone for unforgettable evenings. Whether you’re hosting friends or unwinding in your own private getaway, this one-of-a-kind lake home offers the perfect blend of comfort, creativity, and sophistication.

201 W. Harcourt Road Angola, IN 46703

260-665-2772 craftsman-design.com

Four Seasons Design & Remodeling’s staff of designers, project managers and craftsmen can guide you through your home remodeling or custom new construction project from initial design through finish punch lists. Our extensive portfolio of projects contains countless homes throughout our northeast Indiana and southern Michigan region. Whether you are looking for interior remodeling, exterior remodeling, addition construction, or one-of-a-kind new construction, we can help you create the space of your dreams!

With a staff consisting of a Builders Association Life Director, NARI Certified Remodeler, Certified Aging in Place Specialist, NAHB Young Professional Award Winner, Professional Remodeler Magazine Forty Under 40, Kitchen & Bath Business Magazine Editorial Advisory Board Member, NKBA Thirty Under 30, decades of experience, and a dedicated selection Design Center, we are equipped to deliver beautiful, successful projects. Four Seasons Design & Remodeling looks forward to talking to you about your next project!

BUILD

Hoosier Haven

3825 W. Sycamore Beach Road

Crooked Lake

Angola, IN 46703

Welcome to the Hoosier Haven on beautiful Crooked Lake. As you walk into this amazing home, you will be greeted by breathtaking views of the water which become the backdrop for the details and craftsmanship of this home.

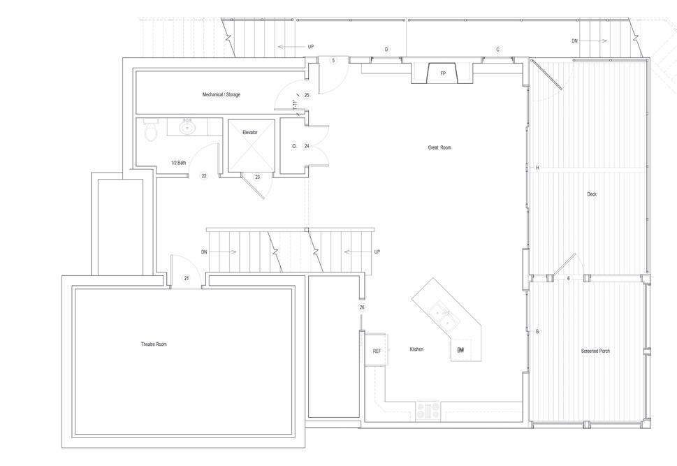
The main level boasts a large laundry area with coffee bar, a full guest bath, home office/guest room and a lovely master bedroom with en-suite. A wall of windows on the lake side of this level provides year-round views of the lake, while the screened patio from the Master bedroom with bed swing and TV has become an oasis for the homeowner in the summer months.

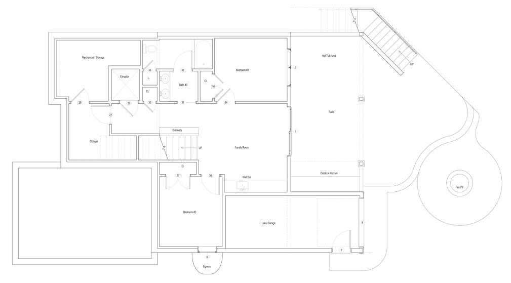
The lower level is the heart of the home. An open concept kitchen and living room with a cozy fireplace and floor-to-ceiling windows offers a place for everyone to come together and enjoy each other. A few steps down the hall you will be introduced to their state-of-the-art theater room by a custom wall mural. Crimson, black and white set the tone for this incredible space.

The lake level with wet bar, guest bedrooms, gaming area and full guest bath is a visitor’s dream. Walk out to a gorgeous outdoor living space including kitchen, gas fire pit, hot tub and raised bar, all on the water’s edge. This house is set up mindfully for a family to enjoy lake life in Steuben County; add in an elevator, heated driveway, low maintenance materials and lakeside storage and it becomes perfection!

Lou Salge

For 46 years, Homes by JICI has been building custom homes in Northeast Indiana. This longevity in the home building industry is the result of our commitment to quality construction and impeccable customer service. Homes by JICI incorporates into every home an attention to detail that is unsurpassed in the industry.

When we are given an opportunity to be a part of something as personal as building someone’s home, we are inspired by that. We respect every component of trust that went into that decision. Turning a dream into the reality of a home that exceeds the vision our homeowners brought to us is a goal we strive to attain each and every time. Providing our customers with a home that includes their wants and needs is important. Providing a long-term relationship with our customers, and assisting them every step of the way, is even more important. To end up with a home that reflects our customers’ character and personality, and reflects who they are and how they live… is our passion! Whether it’s a first home, a vacation home, or a retirement home, this is how we build, every time!

NEW BUILD

Terrace Place

Terrace

Terrace Place Apartments offers the perfect solution for your ideal place. With our exceptional amenities, spacious layouts, and prime location, Terrace Place Apartments truly stands out as the best choice for those seeking a new place!

Our friendly, on-site staff will make sure your Place is well-kept and welcoming. As a property that is meticulously maintained and managed, you will find living at Terrace Place to be a lifestyle that provides comfort and peace of mind.

Terrace Place is conveniently located in Angola, IN off of US 20 and just seconds away from I-69. Its convenient location and quality finishes make it the ideal apartment complex for those looking to live in a well-maintained and secure apartment community. Boasting both 1-bedroom and 2-bedroom options, while also being pet-friendly, provides a little something for everyone that is looking for apartment-style living. Newly constructed and recently opened to the public for leasing, Terrace Place Apartments provides residents with the opportunity to be the first to live in their apartment and enjoy all the new and fresh amenities that it has to offer.

Terrace Place features quartz countertops, stainless steel appliances and luxury vinyl plank flooring coupled with a tenant-friendly lease that includes many of the utilities in order to conveniently eliminate extra hassle!

If you are looking to call Steuben County home, this is the Place for you!

Ken Wilson

BUILD YOUR DREAM HOME

Turn static files into dynamic content formats.

Create a flipbook
Issuu converts static files into: digital portfolios, online yearbooks, online catalogs, digital photo albums and more. Sign up and create your flipbook.