






Navigation Homes is very proud of winning another Gold at this year’s Registered Master Builder Awards and we are excited to be in the top 100 Awards. These awards show just how much thought goes into each home we build from both a design and functionality point of view.
We are not just experts when it comes to building a specific style of home, we are experts at building homes in all styles for all lifestyles and budgets.
There’s something for everyone at Navigation Homes. Managing Director Nathan Hall sees these award wins as recognition for the entire Navigation Homes team and its ongoing commitment to building homes clients love to live in.
We offer a 10-year Registered Master Build Guarantee, so rest assured your biggest asset is in
the best hands. We also offer a 365-day maintenance period from the day you move in and a 50 year Structural Warranty so you can build with confidence and Peace of Mind that your home will stand the test of time.
At Navigation Homes our beautiful homes are designed to celebrate you. Therefore we continually strive to create innovative awardwinning homes which help you make the most of your home and lifestyle you live.
Navigation Homes is a family centric business that maintained fantastic communication, provided weekly updates through their app, and most of all listened and adapted to our needs throughout the build. The house was built to the same high standard and finishing we saw in their Showhomes. Being Master Builders, it was also very easy to follow-up with them to get tweaks and minor touch-ups sorted, even months after completion. Thanks for the amazing home and friendship
Navigation Homes Counties
— Jonathan
Hi everyone, it’s my first morning waking up in the new house and I couldn’t be happier, thank you all for our amazing, beautiful home!
— Emma
Nothing less than COLORSTEEL® - designed, tested and approved to stand up to New Zealand’s unique environments and become a part of them. Reflecting a connection to the natural world around us, while protecting us from it, at its most extreme.
Discover the ideal solution for your project at colorsteel.co.nz
building developments, housing and infrastructure, as well as information for those looking to renovate and landscape, this annual publication is intended to bridge the gap between home dreams and dream homes.
Despite monumental challenges, the past year has seen growth continue in Franklin, with burgeoning housing developments, public buildings and other amenities all completed or under construction. In addition to continued growth at such subdivisions as Paerata Rise and epic plans steaming ahead in Drury, new homes have become commonplace locally.
Due to the Auckland Unitary Plan (and other initiatives), we’ve been building up as well as out, resulting in many more townhouses and apartment buildings in our main centres. It seems as though, regardless of pandemics, wars and the supply chain issues they may cause, everyone still needs a roof over their head and Franklin is where many are choosing to settle.
Looking ahead, we’re also expecting the greatly expanding number of local homes to be serviced by
new transport links, healthcare facilities and much more throughout 2022, 2023 and beyond, all intended to ensure our growing community has everything it needs to live well and prosper.
In the meantime, for those looking to build or buy homes, Design & Build is on hand to help as we explore what’s on offer and where. In addition, this publication covers some of the latest design trends, indoors and out, from ceiling to floor, including snapshots of furnishings which may help make your house a home.
Expected to inform locals – and those thinking of making Franklin their home too – this magazine also features experts, from tradespeople to major developers, who share their advice and expertise.
So, where can you buy a house or land? How do you lay the foundations for a stunning new refurbishment of a loved older home? And, which local specialists can really nail the job when it comes to building any abode, from a little cottage in the country to a great palatial estate? All these questions and more should be answered on the following pages.
14 Home & garden events
15 Pukekohe: country town growing up!
16 Housing on the ‘up & up’?
18 Urban spread set to stall?
24 Transport: moving stories
29 Housing: ‘burb blurbs
33 Property prices: what goes up... and down
38 Bank of mum & dad
Open homes: your home, their castle?
Local masters nail awards
Have do-ups done their dash?
Building costs: a materials world
‘gold rush’: a plan to fail?
tank talk
‘Pan’ plans: off grid, on radar
Books
Finishing touches: paint perfect!
colours shine through
Eyes on wool
Out of Europe
frames: a buying guide
Kitchen lighting
Franklin gardeners
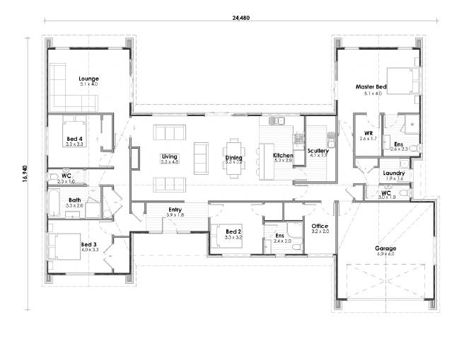
This striking 280sqm home features four bedrooms, open plan kitchen, dining and living areas. It incorporates an internal gas fire, featuring floating oak shelving on either side, under lit with LED lights. A private lounge with custom oak shelving and an extensive cellar and fridge create a real ‘wow’ factor. Off the entertainment space, an automated louvre
roof covers an exterior lounge area with a built-in fire and Weber barbeque. The benchtop is constructed in schist panels (an entertainer’s dream) with the kitchen overlooking extensive landscaped gardens.
O ice: 13 Massey Avenue, Pukekohe.
Mon to Fri | 8:30am -
Paerata Rise Showhome : 7 Winstone House Road, Paerata.
Mon to Sun | 12pm - 4pm
Auranga Showhome : 6 Ahunga Road, Karaka.
Mon to Sun | 12pm - 4pm
Even a little DIY can be downright dangerous if we don’t play it safe. Fortunately, COUNTIES ENERGY has some top tips for staying safe when working near electrical equipment/infrastructure.
Ifyou’re considering repairing your roof or spouting, painting, water blasting, tree trimming or scaffolding, look up for overhead power lines before you begin.
And, don’t forget to check for powerlines when moving boats ahead of summer. In these cases (and more) it might pay to apply for a free, temporary disconnection for your home when working near overhead service lines.
People working around any Counties Energy electrical equipment, must apply for a Close Approach Consent if they’re intending to work within four metres of overhead lines, excavating within five metres of a power pole or within 12 metres of a tower or pylon.
Despite your best efforts, if you do hit an electricity cable or overhead
Call us immediately on 0800 100 202, and call 111 if an ambulance is required
Treat the cable or overhead line as live – move well clear, back at least 10 metres
Evacuate the immediate area
If you are in a machine, stay there
If you are at serious risk from another hazard, such as fire, and must leave the machine, move well clear. Do not touch metal surfaces, or the machine and ground at the same time
Leave the damaged cables exposed for us to fix
In the event of an electric shock, don’t touch the person or animal affected until you are certain the source of electricity has been removed
Whether we’re in the market to build, renovate, decorate or even reinvigorate our home and gardens, we’re in luck when it comes to expos, shows and festivals, including these events planned for the months ahead.
November 12-13, locations vary Featuring gardens from throughout the Franklin region, this event takes ramblers on quite the wild ride as they glean inspiration from dedicated, green-fingered locals. Visit www.franklinhospice.org.nz for details about all the gardens on show.
November 12-13, from 10am, Eventfinda Stadium, Wairau Valley, North Shore
Many Aucklanders are familiar with the concept of ‘green means go’, but when stuck in a line of traffic, green can mean ‘maybe next time’! Although this show has now been re-homed north of the Harbour Bridge, it’s focus on sustainable living is still sure to attract Frankliners keen to go green. Details via www.gogreenexpo.co.nz.
November 26-27, locations vary, Auckland Postponed last year, this biennial event showcases work by some of New Zealand’s most celebrated landscape gardeners and designers. The Auckland Garden DesignFest is intended to impress. Those who require landscaping services, and only the best will do, will soon see why our city’s most fashionable addresses often feature. More information can be found at www.gardendesignfest.co.nz.
2022-2023
March 5-7 & October 2-4, Spark Arena, Mahuhu Crescent, Parnell
Rather than concentrate on the homes we live in, these seasonal fairs put interior design to the fore. While the next event shines a spotlight on autumn, we’ll also have the opportunity to discover new season trends come spring. See www.giftfairs.co.nz for details.
June 23-25, Vodafone Events Centre, Great South Road, Manukau
Where eastern and southern Auckland intersect, the Vodafone Events Centre is a hub for suburban and semi-rural Auckland. Focused on locals, including residents, tradespeople and suppliers, this show is also accessible to homeowners from further afield too. More information at www.aucklandsouthhomeshow.co.nz.
October 5-8, from 10am, Claudelands Events Centre, Cnr Brooklyn Rd and Heaphy Tce, Hamilton
Some events may be closer to home, but the Waikato Home & Garden Show is one that’s well worth taking to the road to experience. While many of its smaller exhibitors may ply their trade across the Waikato only, this
event attracts professionals with nationwide coverage, and inspiration is (of course!) universal. Details can be found at www.waikatohomeshow.co.nz.
Including inner-city apartment dwellers, suburbanites and farmers and growers, Auckland’s inhabitants are a most diverse bunch when it comes to the places we live and the lifestyles we enjoy. With everything from seminars to product displays, new technology to age-old professions, The Auckland Home Show sees Aucklanders converge during this marquee event. Unfortunately, due to issues regarding its intended venue (Auckland Showgrounds), this event has been postponed. However, organisers are hopeful it will still go ahead some time in 2023. For additional information see www.aucklandhomeshow.co.nz.
Usually held in late October (at the PIA Centre, Pukekohe) this event is part home show, part community celebration. Featuring a wide range of local businesses involved in the building, design and renovation game, it’s as much about how we live as about the homes we call our own. For more information visit www.franklinhomeshow.co.nz.
Those who fail to plan may as well plan to fail. Although the details regarding expansions to Pukekohe’s town centre may still be subject to change, the big picture appears to reveal big changes ahead for this once small town.
designed to ‘drag shoppers’ into Pukekohe is unfolding. Intended to make the town centre an urban hub for residents in surrounding rural areas and other smaller communities in the Franklin region, plans under the Pukekohe Masterplan appear to be well and truly on track.
“We’re growing because people want to live in a place that still has that country feel, but we can’t pretend we aren’t changing,” Andy Baker (Franklin Ward Councillor’) confirmed. “Our population will nearly double over the next 20 years so now’s the time to plan for the changes needed to make our town even better.”
New leisure facilities, roading, wider footpaths, upgrades to shop fronts and the
local markets, improved parking and more are all on the agenda for Auckland Council’s urban regeneration agency, Eke Panuku.
Some parts of the plan are already underway, including the new health hub on Manukau Road at the site for the former council offices. However, changes will not come all at once; according to Eke Panuku’s Richard Davison, the plan is intended to be realised in stages to minimise disruption.
“Change could only happen gradually, and things must be done with growth in mind. The plan balances many factors but is just a starting point, not something set in stone. We listened to feedback around the trial, and we will do again.”
Other proposals include an Edinburgh Street development, improved access to town
via a laneway from a renewed Franklin: The Centre, while also creating a dining district. Developing ‘community spaces’ near Roulston Park and a Hall Lane to Stadium Drive overbridge to access the town centre are also on the cards.
Auckland Transport has purchased spaces in the Farmers building, but the plan may still impact parking availability.
“We’re working to make access easier so locals, including workers, can park near the centre of town. But we also know some locals want better cycle and walking access,” Mr Davison added. “There will always be parking for those who need it and providing it to support businesses is part of our plan.”
More information is accessible via www.ekepanuku.co.nz/Pukekohe.
Savingour most productive soil requires developers to look elsewhere and this could mean our local towns grow up rather than out. As a result of changes to housing rules, suburbs across the ‘Super City’ (including Pukekohe and Papakura) are becoming home to more multilevel apartment buildings.
Although greater intensification in our region’s suburbs and towns should help alleviate urban sprawl, heat retention caused by dense housing can impact farmers and growers in surrounding rural areas. So, should exceptions be made for Franklin?
“No, I don’t believe so,” outgoing Auckland Deputy Mayor and Orere local, Bill Cashmore, said. “There is a very real market for more
affordable quality homes in Papakura and Pukekohe. [Reducing heat retention] is all about the design, making allowances to minimise shading, wind tunnels and open space buffers between urban/rural interface.
“Urban intensification can be done well and there are plenty of good examples. Quality terraced housing and apartments can, if well designed, deliver good amenity and quality of life for residents. And, access to quality public transport is a key factor.”
Allowing for more housing at ‘greater heights and density’, the National Policy Statement on Urban Development (NPS-UD) permits construction of buildings of six storeys (or more) within walking distance (between 800 and 1,200 metres) of railway stations and
express busways. In addition, housing up to three-storeys in height can be built across most suburbs without resource consent.
Franklin Ward Councillor, Andy Baker, believes legislation necessitating urban growth is not all it could be.
“I understand how people will be anxious about the prospect of this type of change, particularly as it is a [central] government decision and is forcing councils into an approach that is pretty blunt and idealistic,” he stated. “I am not a fan of a ‘one size fits all approach’; there needs to be the ability to have exceptions to rules where necessary.”
Additional, up-to-date information is accessible via www.environment.govt.nz and www.aucklandcouncil.govt.nz.
Once a feared foe of nefarious types, Jonathan Ziesler is now more accustomed to welcoming locals home.
Former police sergeant, Jonathan (Jono) Ziesler, has long served on the local beat. “During more than 12 years with Counties Manukau Police – the last five here in Franklin – I saw firsthand just how important our homes are to us all, especially when investigating burglaries,” the local Ray White agent says.
“While assisting people impacted by crime was fulfilling, helping people find a place to call home has become most rewarding too.”
Investigative skills can definitely come in handy when finding the right property for buyers, he confirms.
“I know the area like the back of my hand and not just because of my years in policing – I’ve lived my entire life in Franklin. From buying, selling, renting, building and renovating multiple homes over the years, moving (on average) every 18 months, I’ve built up quite a lot of insight into our local communities.”
Jono’s biggest move began when starting a family with his wife, Sarah, for whom real estate was already a passion.
“We now have two sons, Connor and James, and we’re building our dream home in Patumahoe. It really has been a labour of love, but we’re in no great rush. Working seven days a week to ensure our clients benefit from outstanding service and their desired outcome – whether buying or selling – remains a major commitment.”
This commitment is reflected in Jono Ziesler Real Estate claiming Elite status within the Ray White group as one of the network’s top 100 agents (from 2866) nationwide.
Because buying a home is often the biggest investment any of us will make, having someone in our corner with wellhoned communication skills, who’s also intimately aware of the stresses involved, can be a huge asset.
“I know how to relate to people and, through my own experiences, I’ve become well aware of the difference good (or bad) service can make,” Jono adds. “Having said that, there’s no substitute for honesty, integrity, a strong work ethic and only making promises I know I can keep.”
Over recent years, Franklin has become home to numerous new subdivisions. However, protecting the region’s most productive land remains essential in feeding a growing population locally and much further afield.
While politicians (local and national) appear to recognise the importance of retaining ‘the most’ productive land, exactly what this constitutes has remained elusive. Fortunately, such definitions may not be too far off thanks to the recent ‘National Policy Statement for Highly Productive Land (NPS-HPL)’.
“The National Policy Statement will greatly improve how we protect highlyproductive land from inappropriate subdivision, use and development,”
Environment Minister, David Parker, confirmed in September 2022. “We need to house our people and to feed them too. Our cities and towns need to grow but not at the expense of the land that’s best suited to grow our food.”
Although the specifics will still take time to clarify, local councils will be tasked with mapping out highly productive land under the policy statement, Damien O’Connor (Minister for Rural Communities and Agriculture) contends.
“Over the last 20 years, about 35,000 hectares of our highly productive land has been carved up for urban or rural residential development, while 170,000 hectares of this land has been converted to lifestyle blocks. Once land is built on, it can
no longer be used to grow food and fibre,” he said. “[The NPS-HPL will] enhance protection giving farmers, growers, and other food producers certainty into the future and provide greater economic security.”
Nadine Tunley from Horticulture NZ appears optimistic that, finally, talk will turn into action. However, she warns the NPSHPL is just a first (although important) step to ensuring growers can continue to meet increasing demand.
“HortNZ has advocated for nearly a decade for government policy that recognises the importance of our best soils and ensures that they are prioritised for what they are best for: producing healthy vegetables and fruit.”
jonathan.ziesler@raywhite.com
"He was very good. Knowledgeable. No over promising. Has patience to explain why he thinks things and explain terminology. Reliable and seemed to care." Peter
"Easy to communicate with and he keeps you well informed. He listens to what you want." Michael
Mention this ad when you list with me & you will receive a $250 voucher of your choosing upon going unconditional OR refer me to a friend, and you and your friend will receive a $250 voucher each upon sale.
* T&C’s apply
AtCato Bolam we work with a large range of clients, from first time developers and investors through to large scale development experts. The most common first question on new projects is: “what can I do with the site?” There are many things to consider and, in most cases, many different options available. Whether you want to build your dream house, add a minor dwelling, develop your back yard, or take on a much larger development project, we are here to help you from feasibility to completion.
With 50 years’ experience in land and property development, 100+ experienced professionals, and services across planning, surveying, engineering, architecture and environmental, we offer the expertise to maximise the potential of your land. Working with us gives you greater control and flexibility through the duration of your project.
Our process generally begins with a development feasibility and concept option analysis. This is one of the most important phases of work as it tests the potential of the site, assesses available options and, most importantly, helps you determine if a development is likely to be feasible and meet your needs.
The first step is looking at the planning rules that will apply to the site. In Auckland, this has recently gone through a major change (‘Plan Change 78’) with the introduction of the government-mandated medium density housing standards (MDRS) which allow up to three storey development through expanding the Mixed Housing Urban Zone across a significant part of Auckland. Some new standards have ‘immediate effect’ – i.e. up to three dwellings complying with the MDRS are possible where the development meets all the relevant standards. Four or
more units complying with the MDRS may also be possible, however the old zoning will still need to be considered.
Waikato District Council has recently gone through a major change (Proposed Waikato District Plan – Appeals Version) with the introduction of medium density residential zones. A variation to these rules (Variation 3) has been notified to enable development within Tuakau, Pokeno, Huntly and Ngaruawahia to comply with the MDRS.
The recent rule changes make it important to understand the planning implications for your site and proposed development. Our planners are here to help you.
With more relaxed rules, there are now more development options available to consider. It also makes the process of determining what sort of development is best for you that much more important as not every option will be feasible or profitable.
During feasibility / concept design, we take a holistic approach that utilises our in-
house architectural, planning, surveying, and engineering expertise to assess constraints (physical and infrastructural) and provide options to address them, review the zoning and identify any council requirements. We create a concept design that obtains the best development potential for your site. We may be asked to work around an existing house or consider relocation of the house to create increased development potential on the balance site. We consider how different housing types may work on the site and note the importance to understand the local market, which may drive the type of housing that should be investigated.
This feasibility / concept design phase is the most important phase of work as it will identify the potential development yield for your property and provide a concept option analysis.
Contact our Cato Bolam team to begin exploring the opportunities for developing your property.
Thereare homes, houses and then there are Abodes. Although cofounder of Abode Design + Build, Patrick Preisig, says the company tackles a wide range of projects, they all have one thing in common.
“We build every home from scratch and manage projects from start to finish,” he says. “Some companies build from a range of set plans, but we have found people prefer not to have the ‘same again’, favouring homes that suit their specific land, lifestyles, and budget. We deliver consistent, quality solutions every single time.”
The Karaka-based Abode team has been kept on its toes of late as more and more people choose to set down roots in Franklin and the wider area, but increased demand has not seen the company resort to production line thinking.
“Rather than stretch our team, we focus on a manageable number of builds at a time. This way we can be sure every project is achieved to the highest of standards with the utmost care and attention. Every home we build is a reflection of our workmanship, so every one of them needs to be our best.”
Working in partnership with his cofounder, Stephen Tordeich, Patrick leads an experienced team of tradespeople able to adapt to projects of almost any scale.
“There’s no limit really. We have completed builds anywhere from a cosy 70 sqm unit to as
big as a 780sqm country house on a sprawling lifestyle property,” Patrick confirms.
Abode is no real estate agency but having friends in the right places is certainly of benefit.
“We do not sell sections or offer home and land packages, but we do have our fingers on the pulse with extensive contacts in local real estate. Once you’ve found the right piece of land, that is when we step in to design and build a bespoke home for you that is the perfect fit for your chosen section.”
In addition to new builds, Abode Design +
Build is a master of the craft when it comes to home extensions, removing old structures and building new.
“Whether you are looking to add extra rooms or take your house back to its bare bones so it can be completely transformed, we can help.”
Whatever the scale or nature of a project, each begins with a free consultation, Patrick adds. “Visit our website or give us a call. We’ll be happy to give you a tour of our showhome –a solid example of our workmanship.”
Fromancient Egypt to modern Franklin, transport routes have always formed an essential part of where people choose to build their homes. Over the past year, various transport projects (including those mentioned below) have been underway or reached their destination.
Commuters expecting to hop on a train at Pukekohe station are in for a long wait – until 2024 at least. Diesel trains have ceased rolling between Pukekohe and Papakura, however work to electrify the line is set to ensure faster services are ‘on the line’ in future.
Although Auckland began ‘going electric’ in 2015, it wasn’t until August 2022 that work to electrify lines connecting the network’s southern-most stretch began. All going well, this section is expected to be operational again from late 2024. Until then, Auckland Transport is extending the 394 bus service as a replacement. In addition, buses will replace trains on the southern and eastern sections of the network from early 2023 with wider improvements across the board expected to increase services.
Redevelopment of the Pukekohe station also underway, and three new stations are being added locally: Paerata, Drury and Ngakoroa (located in western Drury West).
Politicians may often be accused of giving the public the ‘run around’, however Minister of Transport, Michael Wood, was (ironically) straight to the point with comments
concerning the opening of the Glenbrook roundabout.
“The roundabout is a future-proofing project and is expected to be used by more than 21,000 vehicles a day,” he said. “It has also made this route significantly safer, by reducing speed and eliminating a dangerous turn that large trucks previously had to navigate on the former SH22/Glenbrook Road intersection.”
Weighing in at $16.9 million, construction of the roundabout took place from March 2021 until May 2022.
Previously one of the main routes connecting Pukekohe with Auckland, State Highway 22 has experienced steady growth in traffic, especially since the first residents settled into the Paerata Rise housing development in 2017. The NZ Transport Association (Waka Kotahi) estimates up to 25,000 vehicles a day use SH22 with traffic increasing as the local population grows.
Fortunately, the Glenbrook roundabout is not the only roading improvement on the agenda for SH22, with median barriers and lane widening also planned by NZTA.
“We’re expecting significant urban development in the area – from Drury and the Southern Motorway as far south as Pukekohe,” Mr Wood added. “To support future growth, government is working with Auckland Transport on planning staged upgrades along SH22 to improve safety, provide walking and cycling connections and better access for public transport, freight and general traffic to support current and future residents.”
Linking two of New Zealand’s largest cities, completion of the Waikato Expressway is a ‘milestone moment’, Michael Wood, believes.
“This road connects Auckland to the agriculture and business centres of the Waikato and will improve economic growth and productivity in the region. This is one of the country’s best roads.”
Mr Wood’s comments came at the opening of the Hamilton stage of the expressway in July 2022; work on the earliest sections began in the 1990s.
“The full 102km Waikato Expressway will reduce travel times between Auckland and Tirau by 35 minutes for approximately 20,000 vehicles a day,” the Minister of Transport added. “It’s terrific to see the last 22-kilometre piece of the Expressway falling into place.”
Linking with the Waikato Expressway, upgrades to widen the Southern Motorway (to three lanes in each direction) between Papakura and Drury are also underway with a new bridge open to traffic since June 2022.
Lower speed limits on local roads (both proposed and already implemented) have been met with ire from Franklin Ward Councillor, Andy Baker.
“We are concerned that an urban lens is being put on speed limits when many of our roads are rural,” he said in mid-2022, while serving as Franklin Local Board chair. “Speed changes shouldn’t be made without visits to roads, because making decisions based on desktop analysis isn’t enough.”
While the local board is backing moves to reduce speed limits outside schools across Franklin to 40kph, Auckland Council needs to stop, look and listen before reducing limits on rural roads under its ‘Vision Zero’ speed management plan, Mr Baker believes.
“Part of our feedback has been that no limit should be reduced by more than
20km/h without consideration of other safety measures like re-engineering, maintenance solutions, or without local demand demonstrated via consultation.
“Auckland is a varied region with both urban and rural considerations. Government’s requirement might envisage generic principles, but we would urge Auckland Transport to take a balanced, and potentially bespoke, approach.”
With a long history in the building industry, the Signature Homes team is passionate about delivering quality, personalised service, as co-owner, Debbie Garland, confirms:
While Waka Kotahi (NZ Transport) forges ahead with planned improvements to arterial roads in the Drury area, developers have been picking up the pace as a number of pathways take shape.
“The next stage of construction will see the milestone completion of new transport infrastructure for thousands of residents in the Drury area,” Drury South Crossing CEO, Stephen Hughes, confirmed. “It will provide safe access for children wanting to walk or cycle to school, as well as allowing commuters to use a range of modes of transport and connect with public transport networks in Drury Village to make their way further north for work or study.”
When complete, the network will provide a major route from north to south, with access to 90ha of public recreation areas including 17km of walking and cycling pathways. The final stage of the multi-million-dollar network is expected to be completed in March 2023.
One of the many benefits of building with Signature Homes, is that all the nuts and bolts are taken care of so you can relax and be confident your build is in good hands from start to finish. We deliver on time, on budget, with no nasty surprises, and we offer one of New Zealand’s most comprehensive, fixed price building guarantees.
Whether you have your dream home well planned out or you’re just starting out, our team of experts will help you create
a space that’s perfectly in tune with your lifestyle and budget. When you choose to design and build a new home with us, you will have full control at every stage of the process – from bedroom sizes and extra storage spaces right through to colours, cladding and fittings.
If you’ve been thinking about building but you’re unsure where to start, a new home consultation would be ideal for you. Simply contact Signature Homes Papakura & Franklin on 0800 828 822 to start your new home journey today.
Debbie and Murray Garland Ph 0800 828 822 | www.signature.co.nz
FromBeachlands in the north, to the northern Waikato in the south, housing developments have been popping up at a frenetic during recent years. In addition to major new suburbs –some becoming communities in their own right – smaller subdivisions in and around established towns are helping ensure there are plenty of places to call home here in Franklin.
With our region now a hive of activity with regards to new residential areas, we provide some quick snapshots to capture a little of the buzz behind the business of building.
Located right next to the Southern Motorway, Drury South Crossing is taking shape. An epic development (which has featured in previous editions of Design & Build), this project is intended to be home to large industrial and commercial areas as well as public amenities, parks, reserves and, of course, housing. Located on its southern edge, Hunua Views (in particular) is on course to house new residents.
Years ago, the only locals to ‘Rise ‘n’ Shine’ down the back paddocks of Wesley College were the likes of Jonah Lomu; today, the Rise ‘n’ Shine Cafe (located on Jonah Lomu Drive) has become the centre of a new community. Already a major region for suburban living, there is more to come with development extending to State Highway 22 in the north as well as further additions gathering steam to the east.
Once a sleepy ice cream stop for those
travelling between Auckland and Hamilton, Pokeno has become a major Franklin community. Now home to almost 6,000 people (as of August 2022) and its own supermarket, the town is liable to expand further. According to the Waikato District Council, new residential areas are expected to be added, to the northwest, southwest and even to the east of State Highway 1. Some new homes will be built in the next few years, others within the next few decades, but in either case Pokeno is definitely on the grow!
Although it is a little outside our region, this development is (in a way) more in keeping with a style typical of Franklin’s love of lifestyle living. Located east of Flat Bush (alongside the Fairburn subdivision) and west of Brookby, the Bremner Ridge development is set to feature 360 sections including 60 lifestyle lots.
Once a small town (more or less) on the outskirts of Pukekohe, Patumahoe is growing fast! Including Patumahoe Hill – billed as
a small community with a large spirit –subdivisions on in area of the region’s rural fringes promise living that’s a little bit country, but still within easy reach of Pukekohe.
When Joseph Clark became one of the first European farmers to set down roots on the southern shores of the Manukau Harbour, he may well have imagined that, one day, the area would become a popular seaside holiday spot. However, Clarks Beach is set to become so much more thanks to new housing developments. Covering (approximately) 50 hectares, Clarks Beach Waterfront Estate is intended to welcome even more who do, indeed, love to live beside the seaside.
Thanks, in no small way, to New Zealand Bloodstock’s Karaka Sales Centre, this Franklin community has accelerated at speed. Located close to the Southern Motorway, Karaka Lakes and Karaka Harbourside have become popular spots. Now, the adjacent Pararekau Island is set to deliver an added level of luxury living just a short ride from Karaka.
It may seem half a ‘super city’ away, but Beachlands was part of the former Franklin District. Expected to include coastal boardwalks, playgrounds, parks, shops and schools to augment 255 hectares of new housing (approximately 3000 homes in total), Beachlands South could soon become much more than the sleepy seaside town it once was. Although planning is in the (relatively) early stages, this development is set to begin its rise with open days planned for December 2022.
When looking for their dream home, the client wanted a house that stood out from your ‘standard family home’ and was inspired by the Versatile lifestyle range. They utilised the Parnell plan from the lifestyle range and customised it to their needs. Various revisions were made to the plan, and nothing was ever too difficult for the Pukekohe team.
The home is comfortable and functional for the needs of the young family, and one that lends itself to be an ‘easy entertainer’ when family and friends come round.
As Kiwis, we’re lucky to live in one of the most beautiful places on earth. And, when it comes to building your new home, our stunning landscape represents the ultimate canvas upon which to create your masterpiece.
From the orientation to the sun to the indoor/ outdoor flow, from capitalising on your view to making the most of any existing flora and fauna, everything we do considers your surroundings and how you can make the most of them.
42 Hitchen Road, Pokeno
Build
Versatile
Ifnecessity is the mother of invention, uncertainty is a killer of markets. In previous editions of our Design & Build Franklin annual, we’ve been able to offer reasonably ‘on the level’ forecasts for house prices for the year ahead; this time it’s more a case of up in the air.
Fuelled (in part) by rising interest rates (designed to offset inflation), property prices have dropped across the country after years of increases. However, some buyers (facing inflation and shortages of building supplies) appear reluctant to commit to purchasing homes. While price is important to buyers, affordability is crucial.
“As interest rates have increased, and credit is harder to attain, the housing market is firmly in retreat following an exceptional period of growth,” CoreLogic’s Nick Goodall explained in October 2022. “Values increased 41 per cent over a 19-month period when the pandemic closed borders and fiscal and monetary stimulus drove a push to asset ownership.”
With regards to the Auckland market, Mr Goodall noted (as this issue was finalised) signs that the rate of price falls was set to stabilise but he could not confirm that we had turned a corner.
“Despite the rate of decline easing in September, it’s probably too early to suggest the housing market has moved through the worst of the downturn,” he added. “That said, as long as unemployment remains low, the market is likely to be in an orderly correction rather than outright slump.”
Heading into summer 2022, Jen Baird from REINZ (Real Estate Institute NZ) stated:
“Following an exceptional period of growth last year, spurred by government stimulus and closed borders seeing Kiwis invest locally, the property market is moderating. Owner occupiers remain a strong buyer pool and agents in some areas report seeing more first home buyers in the market, enticed by easing prices and less competition. However, property prices are still unaffordable to many, particularly in larger hubs, such as Auckland and Wellington.”
Although expert opinion appears (somewhat) divided regarding the specifics, uncertainty can’t last forever and a ‘new normal’ should become established in the property markets; there must be an end to any tunnel, even if we’re not sure whether
we can yet see the light.
Up to date real estate market statistics are accessible online at www.corelogic.co.nz as well as via www.reinz.co.nz.
Compact and low maintenance, yet luxurious and spacious with all the modcons, Landmark Homes Auckland South-East Showhome offers the best of both worlds.
Designed with the future in mind, this sophisticated and stylish duplex – based on Landmark Homes’ Rangitoto house plan – is situated in the thriving community of Paerata Rise. Conveniently close to Auckland city, yet with the charm of a relaxed country village, Paerata Rise is the ideal location for those seeking a welcoming community atmosphere.
“We wanted to create a solution for multi-generational living,” says Auckland South-East franchise owner Michael Walters. “We saw a gap in the market dedicated to designs suited to a range of needs and ages — whether they are downsizing or looking to create space for visiting children and grandchildren — this design fits these needs.”
From EV chargers installed in the double-car garage, external ramps for easy wheelchair access and internal lifts, this is a space that will function for years to come. For eager motorhome travellers, there’s plenty of parking space and the luxury of being able to ‘lock up and leave’ with the security that your belongings are safe within the community.
Delivering on strong street appeal, the Showhome’s variation and play of materials is certainly eye-catching. The modern cuboid form is bordered with vertical
Lunawood weatherboards in a sophisticated grey tone, which complements the horizontal Stria cladding, painted in white.
On either side of the duplex, walls of double-height concrete bricks anchor the building to the site. Above the front entrance, timber screening softens the space.
“This concrete brick continues into the interior of the home. It reduces the transmission of sound between units, ensuring privacy for the homeowners and resisting any fire damage,” Michael explains.
As you enter the home, you’re welcomed into a light and airy foyer. The exterior colour and material palette are repeated indoors, creating a sense of cohesion and calm. Stylish wallpaper mimics the hue of the opposite wall’s concrete brick, while the carpeted stairs’ timber balustrade echoes the screening outside the front door. Tiled flooring provides luxury underfoot, guiding you towards the downstairs living area. Here, a central living room serves two bedrooms. Sliding glass doors open to the deck, capturing views of the park beyond, an extension of your backyard to share with the local community. An Airbnb, a guest room, a space for noisy teenagers? That’s up to you. This lower level has been carefully designed with multi-purpose contemporary living in mind.
Head to the second storey, by stairs or the lift, to the living area which is filled with light thanks to generous floor-to-ceiling windows stretching the width of the space.
“This living space is fitted out to host a party of people but to also feel comfortable for a couple. The sense of space is increased with the 12m2 deck, which overlooks the community park beyond.” Orientated north-west, this space is ideal for watching the sun go down over the neighbourhood.
On this upper level, the kitchen is truly the heart of the home. The light and bright palette is broken up with timber cabinetry and stainless steel appliances. Storage is plentiful with the addition of the scullery (which keeps the mess at bay), and floating timber shelves to display cookbooks and decor
The main bedroom features a walk-through wardrobe, keeping the main space neat and uncluttered. The ensuite is fitted with a large tiled shower and vanity, providing ample space for independent living.
“The duplex design has been successful in producing a seamless connection with the neighbourhood thanks to carefully considered use of materials, colour and layout,” says Michael. “The added features included to future-proof this home means the homeowner will be able to enjoy it for years to come – that’s really special!”
The Landmark Homes Paerata Rise Showhome is now open and ready to inspire your own retreat. To view, call in to 1 Heaphy Lane, Paerata Rise, Thursday - Sunday from 11.00am - 3.00pm, or contact us on 0800 62 88 59 or 09 294 6411 today to make an appointment.
Or visit our Clevedon Showhome 167 Monument Road, Clevedon Open Saturday-Sunday 11.00am - 3.00pm
Alternatively, contact us at our Office 22 West Street, Pukekohe Open Monday-Friday 8.30 - 5.00pm
major falls in property prices, rising interest rates and financial pressures from inflation could still ensure this trend continues for some time yet.
AlthoughNew Zealand’s banks are, for the most part, Australian owned, when it comes to bankrolling new home buyers one of the largest lenders really is a ‘mom and pop’ operation. Unfortunately, however, not all parents have the wherewithal to give their offspring a foot up on the property ladder.
“The overwhelming majority of parents [surveyed] either offered to or were happy to help get their children on the property ladder. There is recognition that a first home purchase isn’t as straightforward as it was 20 years ago, which is why many parents are so willing to help,” Gemma Rasmussen, from Consumer NZ asserts.
“The role of ‘the Bank of Mum and Dad’ is more pivotal in the first home buying process but it also means that we’re seeing a greater social divide of who gets to buy a first home and who does not.”
Although Consumer NZ’s research (conducted in 2022) was undertaken before
In addition, as many parents need to dip into their retirement savings, a poorer, aging population and/or a younger generation unable to support their retirement through ‘bricks and mortar’ could prove costly across the board in future.
“Our research found that more than half of New Zealanders who don’t own property consider themselves to be locked out. The most common issue cited is that the deposit goalpost keeps shifting,” Ms Rasmussen added.
“We’ve reached a point where it’s no longer enough to do all the right things to buy your first home – to get a job with a good income, save furiously and cut back on the nice-to-haves.”
no place like home!
However, when taking our houses to market, it can be so easy to attempt to sell our houses rather than present homes for others to make their own. So, to help present our homes in the best possible light, we’ve prepared a few handy tips.
• PERSONALLY SPEAKING: We should avoid stark, blank canvases (which may seem sterile and uninviting) but it is important homes aren’t too ‘up close and personal’ either. Those most likely to buy will be people like you, who might connect with a few family photos on the walls but, unless they are a little too much like you, a wall festooned with photos of Elvis could see them ‘leave the building’ rather quickly.
• A CASE FOR SPACE: We all ‘come with baggage’, so ridding rooms of everything that isn’t nailed down will make it harder for people to imagine themselves living there. That said, too many possessions out in the open can make buyers feel claustrophobic and give the impression that the property lacks storage. The right balance of just enough in the right places should be the goal.
• CAN YOU FIX IT? Anything that should work should be in working order. Little things, such as a dripping tap, can make all the
difference if they add up alongside other concerns buyers have with regards to a property. We may not be able to change the fact that the children next door are rowdy, but we should be able to change a washer.
• MAINTAIN! A little elbow grease goes a long way, greasy kitchen surfaces not so much! While dusting, vacuuming and other general cleaning tasks may be as routine as trimming hedges or mowing lawns, buyers tend to be aspirational, expecting higher than usual standards. Professional cleaners or gardeners may not be needed before every open home, but they can (at least) bring our properties up to a showroom condition, indoors or out, which we may then easily maintain.
• GREAT RENOVATIONS: Major renovations can pay off or become a money pit. Some buyers may be looking for fixer-uppers or even to knock the block off by completely redeveloping the site. So, before embarking on any reno’, do your homework and prepare a budget as this will improve the chances of getting more back than you put in. At the very least, it should improve the likelihood of a quicker sale.
• GET REAL: Local real estate professionals know how to sell local houses – pretty straight forward when you think about it! With an understanding of what buyers tend to look for in their specific region, right down to any given street, good agents will connect all the dots, offering more detailed guidance.
• SET THE STAGE: So, armed with the tips above, we have every aspect covered? No, of course we don’t! General guides are handy, but because both the devil and angels can reside in the details, engaging a professional house stager will, most often, prove a savvy investment rather than an extra cost. More than providing furniture (including the heavy lifting), stagers will deliver those finishing touches, from filling homes with the scent of fresh baking to reminding us that funeral flowers might give the wrong impression.
Keen to buy your first house? Go ask your father!
Whetheryou’re looking to build a home of your own or an investment property, it pays to invest in the talents of such experts as Chris Lowe and Jason Roper from Highmark Homes Franklin.
“When building with us, you are in the hands of a genuinely caring team dedicated to achieving our customers’ goals,” Chris says. “To us, you and your new home are our priority. We are hands-on, which allows us to be more accessible and attentive to your needs.”
By providing a full ‘design and build’ service, working from established plans or delivering home and land packages, the Highmark Homes Franklin team covers all bases with each home constructed to the most exacting standards.
“We have an amazing range of new home plans to select from, and if you’d like to make even the smallest of changes to suit your lifestyle, tastes or section, we’ll happily work with you to customise any plan.”
While no two building projects are ever the same, Chris, Jason and their team have completed a vast range of homes over the years, winning numerous Master Builder awards.
“With every home we really do build on our experience,” Chris and Jason affirm. “We’ve worked on building sites for more than 20 years so we are well ‘at home’ with the wide range of challenges new builds can present. From the outset the knowledge we’ve gained enables us to ensure our customers are in great hands.”
Because a new build is a huge investment, it can be easy to be swayed by price.
“Don’t let yourselves be trapped by ‘sales talk’ and into believing the lowest price is the
best price,” Chris warns. “In these tricky times, building has become very challenging. For this reason, we offer a fixed price build contract and will not pass on any price increases once you have signed your Master Build Contract. Our extensive build addendum will outline all build inclusions while being clear and easy to understand.”
In addition, Highmark Homes provides a 10-year Master Builders’ guarantee on all new builds.
“As owner and director, I take pride in being the builder of all of our new homes,” Jason adds. “You’ll be working with veteran builders from the outset of the project right up
until we hand you your keys. With an ‘open door policy’, we’re on site and easy to contact from our first meeting to discuss your new home build. And, because there is no greater proof of quality than satisfied customers, we’ll be pleased to put you in touch with some very happy homeowners on request to discover why they made the right move by choosing us.”
Rise’s Frame Homes drew focus and an effort by another local building company was right up the judge’s street (Lane, actually!) when accolades were granted in the northern section of the 2022 Registered Master Builders House of the Year competition.
Among other honours, Waiau Pa-based Harrison Lane claimed the regional Supreme Award for House of the Year (Under $1 million) for a Karaka cracker, while Frame
Homes secured the New Home (up to $500,000) category award and a Gold Award for modern family home in Paerata Rise.
However, these two companies (their winning homes pictured) were not the only locals to chalk up category wins and medals – a complete list visit is available via www.houseoftheyear.co.nz.
As Design & Build hit the streets, National House of the Year 2022 winners were yet to be confirmed; they will be online from late November.
Twenty-first Century buyers may tend to favour ‘done-ups’ as opposed to ‘do-ups’ as the once red hot property market cools.
“Houses that need little doing to them are, arguably, more popular than ever as Kiwis are increasingly concerned about taking on additional costs and stress in such times of uncertainty,” Tim Kearins from real estate company, Century 21, asserts.
“When the market was hot, houses needing plenty of work were getting
snapped up regardless. Now, with the market cooling, buyers are more wary of the added stress a do-up presents.”
While buyers may be more inclined to renovate other rooms, it’s especially important to ensure kitchens and bathrooms will not require they become mired in too much work, Mr Kearins says.
“Plenty of buyers now don’t want to ‘go there’ given the ongoing cost pressures and delays in and around the building sector. If a property is up to speed, it’s a real selling
advantage in this environment.”
However, those able to draw on extra assistance – such as through mate’s rates from tradespeople or family with cash on hand – are ensuring there remains a market for houses requiring some work, he adds.
“It is a good time for a cash buyer to snap up a do-up, particularly if they have the required time and money to invest. Then, when the market inevitably bounces back, they’ll have a gem which will deliver some good capital gain.”
caused by shortages of building materials and consenting overload may well have seen many give up on new home ownership. However, Franklin based Searle Group has been rising to the occasion helping people gain a first step, or take that next step, on the property ladder.
While the company has specialised in residential property development and property investment, purchasing greenfield sites to develop into subdivisions, Searle is now also providing completed house and land packages.
“We seek opportunities in niche areas with unique aspects and points of difference, relating to their locations, views or other X factors that all engender trust and confidence in their projects,” director, Anthony Searle, says. “But we are well aware that it has become difficult for many people to afford to rent and build or pay their mortgage while they build as timelines often stretch out. For this reason, the completed homes we now provide give buyers surety as they avoid the potential to double up on expenses while houses are being completed.”
Among the group’s more recent projects are homes built by another widely respected construction firm, Navigation Homes, in the Patumahoe Hill and new Patty Lane (off Carter Road) subdivisions. These homes (a mix of spec’ homes and some retained for Searle Group’s own rental portfolio) are set for completion in mid-2023.
“These are four-bedroom (or more) homes of around 200sqm (or greater) in size, with some including two master bedrooms,”
Anthony confirms. “This makes them ideal for large or extended families. However, as we offer a number of designs options, they’re not a case of ‘one size fits all.’”
The Patumahoe Hill subdivision features 76 sections built during two stages. Construction is well under way for the first stage with stage two following close behind. The sections are generous in size, ranging from 720 to more than 2000 sqm.
“The location, being close to Pukekohe and not too far from the city, makes Patumahoe Hill a highly attractive area. And, it has plenty of local amenities including two local rural schools, a childcare centre, cafe, bakery, hair salons, a Four Square, a restaurant and more,” Anthony says.
“This subdivision proves that people can still attain that all-too-Kiwi quarter acre dream. In fact, due to the lockdowns, even more people really value the prospect of having their own piece of land than ever before.”
One of the largest (if not the largest) land developers working in the Patumahoe area, Searle Group expects to deliver more than 300 residential lots in the Patumahoe area by the time the Carter Road and Patty Lane additions are complete.
And, Anthony’s team is planning to prove the jewel in the crown at subdivisions in Pukekohe. Lot sizes measure approximately 1000sqm.
“With views of Pukekohe, the new 18-lot subdivision on Kitchener Road (including our spec’ homes) is sure to attract buyers with sections snapped up quickly.
Fortunately, we have another project in Pukekohe, on Foy
Road, in the process of obtaining resource consent with earthworks expected to start in October.”
A lifestyle subdivision offering (including an estimated 65 blocks of 2500sqm or more) in the Runciman area is also in the planning stages and Searle Group is working through engineering and zoning changes on a consented 75-lot subdivision in nearby Te Kauwhata.
What’s more, Anthony says projects extend well beyond our region, including one in Coromandel with 100 residential lots of approximately 500-900sqm, and even as far afield as the South Island.
“The 57 residential lot subdivision at Chatterton River Estate, Hanmer Springs, is quite the attractive prospect for locals who may be looking to move further afield. It’s within walking distance of the Hanmer township and backs onto a riverbed with reserves and walking tracks. We have spec’ homes in progress and section sizes will range from around 600-1500sqm.”
Established by Anthony’s parents, Stuart and Vivien, in 1971, the Searle Group team now also includes Anthony’s sister, Leanne, as well as a select squad of loyal staff, external contractors and consultants.
“When people are ready to take the next step, we are there to help them move into their first house or move up the property ladder into their next dream home,” Anthony adds. “As a 100 per cent New Zealand family owned and operated company, we have a vested interest in being part of the process that helps Kiwis into home ownership.”
Buildinga partnership at the wicket requires perseverance, trust, communication and, of course, skill.
A former professional cricketer, Grant Robinson knows the value of teamwork in hammering home a win.
“Whether you’re playing cricket or renovating, designing or building homes, it’s essential to work together as a team,” the G.J. Gardner Homes’ Franklin franchisee says. “And, everyone likes a winning record – with 100% completion rate, GJ’s has finished every home we’ve started across the company, right through to handing keys to the new owners.”
Originally from Gisborne, Grant played professional cricket for Northern Districts and in the UK forming many successful partnerships at the crease along the way. However, he says his most productive partnership developed after he hung up his bat.
“Along with my wife, Anna, I fell in love with renovating and building homes and we’ve renovated numerous houses,” he says. “The secret to our success is how well we work together. Even our children (Liam and Penny) have joined the team; growing up around construction sites they’re never shy about putting their two cents in!”
In September 2022, Grant joined the G.J. Gardner Homes’ team, taking the reins of the fast-growing Franklin franchise.
“I was attracted by GJ’s trusted reputation, longevity in the industry and the support it offers,” Grant explains.
“But, above all, it was the level of integrity at head office and among other franchisees that really sealed the deal.”
Although Grant benefits from the assistance of a nationwide network, each project requires unique planning and focus.
“Building can be complex and challenging
as no two projects are ever the same. Every one of our homes is designed and customised for its specific environment – from the direction of the sun to nearby landmarks and more – as well as the individual lifestyles of residents,” Grant explains.
“In Franklin, we have a diverse range of typologies and physical environmental cues from which we take inspiration while delivering everything from smaller urban homes and apartments to large country houses for expansive lifestyle properties.”
The quality of GJ’s workmanship, however,
is a consistent factor, as made apparent through showhomes nationwide. Among other projects, Grant and team are developing a new showhome, set for completion mid-2023, in Paerata Rise.
“It will showcase modern, future-proofed, energy efficient living across its four bedroom, two level design. We love our showhomes – we have another already constructed in Paerata Rise and Pokeno – because they give our customers the opportunity to see, first hand, just what an expert team can create.”
Whether we’re renovating or building a new home, cost all comes down to brass tacks. While politicians are intervening to help shore up supply chain issues and address inflation, uncertainty is still prevalent.
InNew Zealand, houses are usually built of wood; in New Zealand, we grow a lot of trees. However, in New Zealand construction costs have been through the roof. Costs were continuing to rise as this edition of Design & Build was finalised.
“The latest Cordell Construction Cost Index (CCCI) clearly shows that it [is becoming] more expensive to build a ‘standard’ 200 sqm brick and tile, standalone house in New Zealand,” Kelvin Davidson from CoreLogic NZ said. “I wouldn’t be surprised to see the rate of construction cost accelerate further before it starts to ease up in 2023.”
Both the quarterly and annual indexed growth measures in index for the third quarter of 2022 exceeded records set three months earlier, he confirmed.
“One encouraging development has been the improvement in supply chain conditions, with plasterboard for example now much easier to find. This easing in cost growth will be very important in the longer term so developers and households aren’t dissuaded from taking the new-build path which critically assists in boosting overall housing supply.”
Released in August 2022, the Commerce Commission argued that greater competition across the building supplies’ market is required. In a draft report, it stated that:
‘The best options involve enabling the easier entry or expansion of key building supplies. In our view, there is scope to place greater emphasis on competition and innovation for key building supplies, without compromising the core objectives of the
building regulatory system.’
Dr Megan Woods (Minister for Building and Construction) agreed with assertations in the draft report that change is needed.
“New Zealand is facing the same global cost of living and inflation pressures as other countries and it is just not acceptable that such an important sector is not working as well as it could be,” she said in response to the Commerce Commission report.
“With good, affordable housing underpinning so many other social, economic and health outcomes… it’s vital consumers get the best deal.”
In addition to a ‘plasterboard taskforce’ and a review of building consents, government measures are in place. However these initiatives do not go far enough, The National Party’s Building and Construction spokesperson (and Port Waikato MP), Andrew Bayly, said.
“It is too difficult for offshore manufacturers and suppliers to gain approval to introduce new products into the New Zealand market – it takes too long and is too costly. This is a major barrier to entry. National wants to see meaningful reform that brings in new innovation and ultimately to see a reduction in costs that Kiwi homeowners face when building a home.”
The full Commerce Commission report is due for release in December 2022; the draft is accessible (in its entirety) by searching ‘building materials’ at www.comcom.govt.nz. To access regular updated property data from CoreLogic, visit www.corelogic.co.nz.
Building costs are rising, so can the ‘Plasterboard Taskforce’ save the day?
Whenit comes to low cost building materials, is the jig up with regards to putting up the GIB?
Although GIB (short for Gibraltar board) has been, in a manner of speaking, a ‘garden variety’ building material, shortages sent costs surging during 2022. In response, Minister for Building and Construction, Dr Woods, issued quite the prescription, launching the ‘Plasterboard Taskforce’.
“We know the supply shortage of plasterboard, as a result of GIB manufacturer, Winstone, not meeting demand for its product, has been very stressful for builders,” she said. “Bringing together construction, building consent, and supply chain experts in a taskforce to look at how to get more plasterboard into the hands of builders has been an excellent way for ramping up progress... and to test new initiatives.”
By seeking an expanded range of plasterboard products, the taskforce (comprising construction, building consent, and supply chain experts) appears to have managed to offset supply chain issues. However, its success will take time to measure.
“The Ministry of Building, Innovation and Employment (MBIE) has been making it easier to substitute alternative products if plans specified GIB, with its regular updates as new products are approved,” Dr Woods confirmed. “Taskforce members agreed that plasterboard constraints appear to be easing, and some larger developers have been able to get product into the country. I’ll continue to monitor this issue closely to ensure we are pulling every practical lever
As Franklin faces further development in future, an Aucklandbased architect has been drawing on the past for solutions.
slapdash, demand-driven town planning has, unfortunately, come to cause many issues worldwide. Conversely, politicians aren’t exactly adroit at rolling up their sleeves and building houses. However, the twain may still meet, Patrick Sloan from Sloan Architects contends.
“There are so many areas ripe for positive change – policy advisory, national design initiatives, deeper engagement on climate change and a wider elevation of design awareness,” he says. “What we need is visionary thinking and design leadership that looks decades into the future – this would come from a government architect.”
It may sound like a novel approach, but Mr Sloan is suggesting a ‘back to the future’ approach; until it was disestablished 20 years ago, New Zealand’s Ministry of Works and Development employed a government architect. This role involved advising government on all aspects of architecture, building and urban planning. The United Kingdom employs a national head of architecture and the majority of Australian states also have government architects on the books.
Over recent years, Auckland has expanded both out and up, with Franklin becoming home to various, large scale subdivisions and, due to changes to housing laws and regulations, more multistorey apartments in its urban areas.
Unless measures (such as the employment of a government architect) are baked into the process, we could see unfettered intensification, Mr Sloan warns. “We will see the start of an urban ‘gold rush’, with property developers able to take advantage of new housing density rules. The ability to intensify vertically in suburban areas could see sites
that may have been previously uneconomic to develop become viable to a developer.”
Such fast and furious development could also result in substandard buildings, he adds.
“At the same time, record costs for building materials, and rising interest rates will incentivise developers to build at speed and to maximise profit. The risk is that we will see substandard developments proceed that make little or no contribution to the neighbourhoods and communities that we all live in. Developerdriven work that looks for the fastest way to the finish line and the pursuit of profit [may result in various] design outcomes generated on a spreadsheet as opposed to resulting from a thoughtful and engaged design process.”
During a career of more than 30 years, Mr Sloan (currently based in Mount Eden) has been involved in mixed-use and residential projects from Beijing, Jakarta, Mumbai and Tokyo to Auckland. Lessons from overseas must be employed as Auckland expands,
he believes, allowing for a more measured approach less likely to encroach on prime growing land, the loss of heritage buildings and overall quality of life.
“There are some truly innovative ways of developing residential communities that are no longer purely about the realisation of profit –models where people and communities come first. Promoting a kind of fearless disruption of the ‘business as usual’ approach to urban development, alongside a reinvention of the way we grow our cities, could also fall within the remit of the government architect,” Mr Sloan advises.
“It’s all about a more thoughtful and sophisticated design process, more checks and balances for developers and an acknowledgement of the obligations we all have to do things well. The last thing we want in our rush to resolve the housing crisis is to create a legacy of design issues for future generations.”
As Auckland grows both out and up, A1 Homes is keeping pace, proving one of the most trusted building companies in the region.
Thepandemic has taught us all many things, but one lesson stands out for Wayne and Sharon Snellgrove, owner-operators of A1 Homes South Auckland.
“There’s no place like home!” Wayne laughs. “I think we’ve all realised how vital it is that we love the homes we live in and they’re designed for our lifestyles.”
Covering the southern and eastern Auckland areas, Wayne and team can create everything from suburban homes to townhouses and even splendid abodes on sprawling lifestyle properties.
A1 Homes South Auckland’s showhome (12 Harriet Johnston Drive – a four-bedroom, two-bathroom beauty), provides an ideal example of the workmanship on offer.
“This home really shines through in the details. From floor to ceiling, it’s intended to help you gain inspiration and assurance of the quality we offer as standard,” says Wayne. “Having said that, we engage top designers and qualified local contractors, so we can design and build any home of any size or shape.”
As a registered Master Builder, A1 Homes South Auckland offers a 10 Year Master Build Guarantee on all projects, and Wayne (personally) draws on more than 20 years’ experience in the construction industry.
“I’m a plumber by trade, engineer by qualification, having worked on everything from residential and commercial housing development and structural concreting to civil engineering projects – I’ve even been involved in large scale infrastructure projects, including the recently completed Glenbrook roundabout. Delivering optimum results on time and on budget is vital for multimillion dollar projects but it’s just as important when building a family home.”
No matter the scale or nature of the project, Wayne and team are quick to get down to brass tacks right from the start.
“The first step is, simply, give us a call or come see us – the pandemic has given us a renewed appreciation for personalised human contact! – we’ll start by discussing and understanding your needs. From there, we’ll be with you every step of the way.”
In New Homes:
» Full Build Construction (Built on-site)
» Kitset – Supply Options (You Build It)
Homes (Built off-site)
Your Plans - Our Plans - You Dream It, We Build It
in:
Design
Construction
Care
Contact: Showhome: Open: Wayne Snellgrove: 027 500 2615 12 Harriet Johnston Drive, Tues to Fri 10am – 3pm e: sales.sthakld@a1homes.co.nz
Saturday By Appointment
Specialising in helping clients understand all aspects of design, layout, ergonomics and more, Design to Renovate provides options suited to residential and commercial properties.
Planningis everything in the construction process for both new homes or renovation projects, Design to Renovate’s owner, Kim Reiche, says.
“From property owners to tradespeople and everyone in between, all parties need to have a common, easy to visualise format so they can fully understand requirements and establish pricing. Our designs assist people in comparing apples with apples as not all quotes and project goals are ever the same.”
Leading multi award-winning design companies and with 20 years’ experience in New Zealand, 30 years internationally, Kim has long been on trend when it comes to design and renovations. However, the times they are a-changing, she confirms.
“We’ve seen an overwhelming need for design in the renovation market for homes, retail and hospitality. Previously, I’ve concentrated on design through to managing builds but there are so many brilliant tradespeople in Franklin that we felt a change of focus was needed,” she says.
“While we are more than happy to help with project management, when required, our main focus is on the design process, dealing with ergonomics, finishes and collating specifications and documentation. This leaves other experts to complete the building work,
providing better transparency through the quoting and build process.”
This special focus allows Kim and her team to play to their strengths.
“We are equipped to deal with councils, engineers, surveyors and a raft of tradespeople, while identifying any red flags along the way to creating an achievable vision, finding solutions to any problems and preparing clients with all the tools they will need for a successful build stage,” she says. “We also develop a ‘scope of works and finishes’ schedule to ensure builders understand every detail, reducing room for errors.”
Over the years, Kim and her experienced team have become well accustomed to cutting their cloth to suit while providing solutions for poor designs.
“Because older homes were built without modern insulation and heating, layouts are very different to today’s new builds. These houses tended to have numerous smaller rooms, accessed by long hallways, fewer multi-use spaces, less natural light, and required high traffic areas. The idea was to close off the most well used spaces to heat them more efficiently,” Kim explains. “Permitted by the development of louvres, polycarbonate sheeting, modern heating and other innovations, balancing indoor/outdoor
flow has become a major aspect of modern design over the last 15-20 years.”
However, the pandemic ushered in new layout requirements causing designers to take a whole new direction.
“Then there was the (dare I say it?) ‘Covid effect’. Families large and small spent so much time at home which revealed the need for better use of space to suit our movements, both within the home and from the inside to outdoor areas,” Kim adds. “This has increased the importance of consultation with experienced designers who will appreciate clients’ varied needs, their spaces and the construction of their homes – all at the design stage – to ensure design dreams can be delivered.”
To see how Kim and her team can fulfil the potential of any home or commercial premises, visit www.designtorenovate.co.nz.
bespoke, quality, unique, affordable – all watchwords for Precision Homes when planning or building, the company’s owner, Andrew Butts, confirms.
With the help of his team, Andrew has been building award winning, custom homes in the Franklin area for more than 20 years. During this time the team has also built a reputation for quality customer service, working closely with clients to establish and meet their specific requirements.
“You spend nearly every day in your home, so you want it to have the right fit for you and your family,” Andrew says. “Each individual and each family will have varied ways in which they live, so we will work with you right from the start to establish your wants and needs and then design a home to suit you and your land, creating a home designed and built just for you.”
Striving to make what can be a challenging process fun and as stress free as possible along the way, Precision Homes’ ‘in house’ team works to match Andrew’s drive to
produce beautiful, high-quality homes with an exacting attention to detail.
Adding to the team, the company draws on the support of expert subcontractors.
“Our network of subcontractors has been handpicked based on their reliability, workmanship and the pride they show in ensuring they are just as determined to deliver first class results at every stage and with every aspect. Their expertise and commitment definitely do add to our ability to build homes of the highest quality.”
Numerous gold awards and category wins as well as other honours in the prestigious Master Builders House of the Year Competition, and further accolades, are a testament to these high standards.
With builds completed throughout the wider Franklin region and beyond, the scope of Precision Homes’ work is vast and varied. From small urban homes to large sprawling country estates, they cover all bases. Many of the company’s latest developments feature at Paerata Rise.
“We’re proud to have been a Build Partner
with Paerata Rise since its opening in 2018. We have already constructed an array of stunning homes throughout the subdivision with many more to come,” Andrew says.
“Our showhome, (5 Winstone House Road) is a good example, so if you are considering building a new home, head down for a healthy dose of inspiration and to get a better idea of see what could be possible when building with Precision Homes.”
The company is also set to complete another shining example of their skills on Paerata Rise’s Te Rata Boulevard. However, Precision Homes is not limited to this subdivision with the range and scale of the company’s work on display throughout the Franklin region.
“A little inspiration goes a long way, but it’s important to remember that we do not mass produce houses!” Andrew laughs.
“Instead, Precision Homes are intended to be built to suit our customers’ varying lifestyles and budgets. Expert workmanship is standard, but we take a bespoke approach to every project.”
Pridein quality workmanship underpins the philosophy behind many a local home.
“We gain great satisfaction from knowing that every detail, right down to the last nail, meets with our most exacting standards,” Stroud Homes Pokeno, Pukekohe builder, Mike Wilson, says. “And, the appreciation shown by our new homeowners is always extremely rewarding.”
Mike may lead a dedicated team, but he does so from the front. Locally born and raised, he’s followed in his father’s footsteps, working on commercial and residential projects as well as home extensions and renovations.
“I started out on the tools when I was 16,” he confirms. “My dad was absolutely passionate about attention to detail as well as honesty and making sure that every new build was conducted as smoothly as possible. I’ve now been in this industry for many years, but every lesson I’ve learnt along the way can be linked back to these basic principles.”
Today, new builds are Mike’s stock and
trade, assisting with everything from bespoke designs to complete home and land packages.
By joining Stroud Homes, Mike says he is still able to offer locally focused, one-to-one service but he now benefits from the backing of a nationwide network.
“While we can build based on a customer’s plans, Stroud Homes has a range of tried and
tested, award-winning plans to choose from,” he confirms.
“These are supported by quotes allowing clients to fully understand the cost of building a home right from the start and provide an added degree of certainty that we will complete our work on time and on budget.”
Just one example of Stroud Homes’ workmanship is their new showhome situated at 111 Mclarin Road Glenbrook.
“Based on the highly popular Rimu 204 design, this 3-4 bedroom home features a large kitchen and media room with clever utilisation of space,” Mike adds.
“Of course, we can tailor any design to suit our customers’ requirements.”
Whether designing from scratch or purchasing a home and land package, the first step is to contact Mike and his team.
“We’ll be pleased to discuss your needs and begin working on a plan to bring your dream home to fruition.”
Phone 027 633 4508 www.stroudhomes.co.nz
Thereis a vast array of external facades available in the market place with weatherboard and brick being the most common.
More and more often, when driving around, people are seeing a greater level of external plaster facades which, from our point of view, is fantastic, and equally for the diversity in sub-divisions.
Over the years, development and technology for external facade or cladding systems has changed. This change was driven by issues related across the construction industry including design and architecture, construction practices, product performance, trade co-ordination and workmanship.
For the past 15 plus years external plaster façades/claddings have been required to be installed over a cavity. This is also the case with brick veneer and weatherboard.
The cavity method of construction provides robustness and redundancy should moisture enter through the outside skin of the façade.
Plaster façade systems vary considerably
not only in terms of the products used, but also the level of workmanship applied by the tradesperson.
Our façade systems require registered building practitioner installation, in turn we only supply our licensed and registered contractors
as the very minimum prerequisite.
This ensures accuracy and responsibility to the contractor who has applied the system.
Alongside this, Resene Construction Systems partners with its contractor network and provides its own documented and
Our Onsite Quality Assurance programme was introduced more than 15 years ago to provide surety of system installation. It was, and is, a dynamic and innovative approach for the construction sector.
As with most things we do as a Resene Group business – this programme sets the benchmark for the industry, giving protection to both the reputation of our products and most importantly to our clients’ most important investment – their home.
Selection of your external plaster façade can be challenging. The three premium options in the current market are our INTEGRA aac lightweight concrete, XTHERM Insulated façade, or Plaster over Masonry block or brick.
INTEGRA aac lightweight concrete façade – AAC (Autoclaved Aerated Concrete)
is a lightweight concrete panel fixed over a cavity including our full flashing suite, and a lamina of hand applied coatings that is complete through to the finished Resene colour coats. This system provides impact resistance, acoustic benefits and has a solid feel even though it is fixed over timber framing.
XTHERM Insulated Façade – An external insulation system that provides a complete thermal envelope with our exclusive XTHERM high density insulation panels. Insulating the outside wall face is considered the best location for insulation as there are minimal ‘thermal breaks’ when compared to ’in wall’ insulation. If you are looking for excellent thermal performance to keep you cool in summer and warm in winter then this is the system for you.
XTHERM and INTEGRA plaster facade systems are complete supply and install solutions. Once the framing, building underlay and windows are installed your registered plastering professional undertakes the complete system installation all they way
through to the Resene coloured finish coats.
This process saves time and money during the construction process, and provides a full service and support system for the life of the installed system.
At Resene Construction Systems we complement the skill and craft of plastering with our Rockcote Artisan interior finishes, all based on natural materials from Rockcote and coloured in your favorite Resene colours.
Have confidence knowing that the products and systems we supply for your project have been tested, made and supplied in New Zealand by a division of the Resene Group of companies.
Call 0800 50 70 40 to discover what we do and how we can assist you with your next project. www.reseneconstruction.co.nz
Every homeowner wants to enjoy a feeling of pride and comfort when driving up to their home not just for the first time, but every time. And, that’s exactly what the team at Homes by Nest works hard to create – even the name reflects that sense of warmth and snugness which envelops homeowners when they walk through the front door into their very own living space.
Created by Bru and Linda Goldfinch over the past couple of years, Homes By Nest is built on their belief that a team effort of appreciated sub-contractors and suppliers will deliver nothing but top quality, long-lasting family homes with features which continue to please year after year.
“Our end goal is for clients to enjoy their family home as much as we enjoy ours,” Linda says. “We want them to be completely satisfied in their decision to build with Homes By Nest and to be absolutely delighted with the home we give them,”
After spending 12 years as a new home consultant with various building companies throughout Papakura, Franklin and Christchurch, Linda says she and Bru were given the opportunity to purchase a building company franchise in Christchurch.
“However, with a change of circumstances, we made the decision to create Homes By Nest within our local stamping ground of Papakura and Franklin.
“Being locals, and having operated in this area for a long time, the decision was easy especially as we had already built up excellent contacts in the construction world, many of whom we consider good friends.”
Today Bru and Linda are enthusiastic about the sub-contractors and suppliers who work alongside them.
Their company tagline – Premium Service – Personalised Solutions – Fair Price – reflects their dedication to excellence in every quarter from initial consultation through to planning, construction, price, timeliness and more.
“We carefully consider everyone who is involved in the build project and genuinely believe that happy subbies and suppliers will ensure onsite energy is positively charged. Subsequently, the only possible outcome is the delivery of a ‘happy’, well built, long-lasting family home,” Bru says.
With Bru the first point of call for any query,
whether it be meeting for an initial consult, or going through the final home check, all queries are met with complete professionalism and expertise.
“Having Linda on hand to bounce off ideas, clients benefit from a close knit team where communication is key.”
With an eye for décor and accessories, Linda also works alongside Picturebook Interiors for the all important interior design and colour schemes to finish each home with individual and personalised style.
“These days new homeowners look for that special ingredient; they don’t want the ‘same old’ anymore,” she says. “Therefore, from the outset, we are intent on helping clients to get their dream home; a home which is set apart from others. We don’t believe their years of hard work should come down to the ordinary.”
Once a build project is entrusted to Homes by Nest, Bru and Linda agree it is always a pleasure to take time to talk through exactly what it is the client wants in a home and why the choice to build from scratch.
“The building of a new home should never be a chore, done properly the process should be great fun and hugely satisfying,” the pair contends. “We will ensure our customers have
an enjoyable home build experience by mixing fun and professionalism. We fully engage with them throughout.
“So, if you are seeking a new home and have the time to talk, we have the time to listen. We look forward to hearing your ideas and priorities for a build, and to using our expertise to bring it all together, keeping within budget and ensuring the highest standard of finish.
“We take the responsibility of building every new home very seriously; we promise to relieve clients of stress and ensure they have fun along the way to becoming new homeowners.”
Top quality cladding and roofing ensures our homes can be dressed to impress, as LAURA CLARK from Colorsteel® explains.
Wellthought out cladding and roofing choices will set the tone for the design style of any home, capturing our imaginations before we even step inside. A great place to start is at the top with Colorsteel. Protecting the places Kiwis live work and play for more than 40 years, this local brand is manufactured right here in Franklin by New Zealand Steel.
As the saying goes: you shouldn’t judge a book by its cover. But when it comes to the architectural aesthetic of your home, the exterior cladding and roofing are a pretty clear indicator of the design style that lies beyond the front door. When carefully chosen, these materials can provide insight and visual clues about the look and feel of the house in its entirety, as well as ensuring cohesion between the interior and exterior of the home.
A great way to begin with any design project is by collecting ideas on a mood board. Although many of the best ideas have already been hatched, it’s okay to copy them, or they may provide springboards for new ways of thinking. Begin by browsing architecture magazines and home websites, bookmarking and screenshotting images that appeal along the way.
Make the most of supplier samples. When making colour selections, you can’t beat the real thing! That’s why Colorsteel offers free samples delivered direct to the door. Collecting physical examples of materials, can help us gather the colours and textures
we love and compare against other elements in the project.
Here are few simple tips to keep in mind when comparing your options:
• View samples in natural light. Colours can look very different under artificial lighting so it’s best to take samples outside. Also, view samples at different times of the day to reveal more as to how light levels can alter our perception of colours.
• Consider the finish. New Colorsteel Matte uses micro wrinkle technology to diffuse light, creating a unique, lustred surface and a soft textured look. This reveals the true tone and depth of colour not usually seen in other finishes.
• Bear in mind that your chosen profile
will also impact the overall look, lines and shadowing. For a more thorough understanding of profiles, and how they interact with colours, try the roof visualiser tool at colorsteel.co.nz or speak to your Colorsteel supplier. In addition, full sized product sheets in a variety of different profiles are on display at Colorsteel’s showrooms at Home Ideas, in Parnell. Finally, don’t worry if your mood board seems to have a lot of variety, or if samples come across as a mishmash of styles, because architects and designers can help you to narrow the options down. The important thing is you’ve taken the time to put some thought in before embarking on a rewarding and exciting design journey.
speaks volumes about Grant Mackay and his business TotalBuild which has specialised in custom-building dream homes around Franklin since 1995.
“We have a team of suppliers and subcontractors who know how to put together a home for clients with impeccable taste and our constant aim is to meet the needs of qualityconscious home buyers who appreciate a high standard of workmanship,” Grant says.
In the current climate of shortages, planning is critical. Advance planning is critical to maintaining project flow.
“For our side and our subcontractors, using management software allows us to plan well.
“For our clients, online access keeps them in touch and well informed during the construction of their home.”
Whether you are at home, at work, on the road, or on holiday, TotalBuild puts information at your fingertips about selections, financial decisions, questions, documents, photos, and more – all this plus the reassurance of a Masterbuild 10-Year Home Guarantee!
Perhaps you have ideas, or some plans ready for your next home. Wherever you are in the process, talk to us about how to bring them to life in a home that’s built to last.
becoming a case of feast or famine, floods or droughts and neither is ideal when living on the land. Thankfully, despite the pressures of climate change, Luke Parker’s family has been able to help us adapt, whatever Mother Nature throws at us.
“Since my grandfather established the business, as RF Parker & Sons, more than 50 years ago, we’ve been focused on serving customers in our community with effective water management solutions – that’s just as true today as then,” says Luke. “So, while you can never really depend on the weather, you can depend on us to deliver a wide range of water-related services.”
In wake of joining the expansive Think Water group in 2011 (becoming Think Water Pukekohe), the business has gone from strength to strength. In fact, it’s ‘pumping’, Luke (the team’s operations’ manager) confirms. “As Franklin locals, we definitely understand the needs of customers here in our community. However, we’re also able to pass savings on to them due to our access to a vast network comprising more
than 50 independently owned, like-minded companies.”
From swimming and spa pool products to water tanks, pumping, irrigation, water treatment and filtration systems, if water runs through, over or around it, Think Water has it covered. “Water is the lifeblood of farm businesses and they can grind to a halt, resulting in costly downtime, should a single pump fail, for example,” Luke says. “At Think Water Pukekohe, our job is to keep that lifeblood pumping through first class products and expert installation backed by comprehensive servicing.”
The climate may change but the basic fact that water is needed, where it’s needed, yearround hasn’t. In contrast, the technology at Think Water’s disposal has come a long way.
“These days, the products involved are much more sophisticated. Our Grundfos and Davey Pumps are great examples of this; they provide faster, more reliable flow, while minimising energy usage in the process.”
Preventative maintenance is essential in saving time, money and grief with any type
of water system, Luke advises.
“Because even the best products can’t last forever, we’ve found that a pint of prevention is worth a gallon of cure. Our engineers can assess any system of any scale and provide all necessary servicing or repairs whenever they’re required.
“This is where we really come into our element; we’re experts on water solutions so our customers don’t have to be!”
Whatever our specific needs, a quick call to the Think Water Pukekohe team is an essential part of ‘going with the flow’.
“All customers need do is give us a call,” Luke adds. “We’ll be happy to discuss their needs, from sales right through to installation and servicing.”
Storm water flows are unregulated so knowing how much or how little you will get is virtually impossible. Large rain events challenge designers’ calculations and result in flow constraints as water under the pressure of gravity, heads to low lying areas.
Property owners expect their drainage systems to work perfectly. They want reliability and safe well-constructed systems by which all water is carried away without a hitch. This is where good design from stormwater engineers comes into play.
Implementing these designs is the job of drainage professionals such as Drains.co Ltd.
The company has successfully operated its headquarters (office, workshop, storage facilities and transport fleet) in South Auckland for more than 25 years, providing residential drainage services to clients throughout the greater Auckland region, Franklin, northern Waikato and the Hauraki Plains.
Director, Graeme Garchow believes getting sound advice and design work early on is bound to prevent problems down the track.
“It really is best to ensure installation of anything, from water tanks to storm water or sanitary wastewater systems, is done properly at the outset,” he says. “The last thing anyone wants is a new home spoiled – or soiled – when such systems back up and let you down.”
Experts in providing new drainage in urban and rural districts, Drains.co is focused on ensuring property owners know and understand the best options available to them so they can make informed decisions as to what is needed to best meet their lifestyle and property needs.
Furthermore, as one of New Zealand’s most established residential drainage companies, it successfully completes waste
water and storm water requirements for more than 600 houses every year using the latest technology, equipment and systems.
But who among laymen know what to look for in a drainage system? Not a lot of people, so here is some advice from the Drains.co team:
In towns and urban areas there is more focus on rain water harvesting for non-potable uses such as watering the garden or washing the car.
Almost all new designs in the Auckland region are coming out with water tanks for retention (reuse), and detention to reduce peak stormwater flows into waterways.
Current council practice may require greater use of soak pits and recharge pits for replenishing ground water resources.
In rural situations, water tank overflows are required and some sort of storm water detention.
These flows are directed to soakage trenches or outfall structures to prevent scouring and to reduce peak flows which lead to floods after heavy rain events.
With water quality taking more importance nationally, silt control is of primary concern. Councils today are focusing on more silt trapping devices to keep waterways clean and to control pollution in waterways from the likes of plastic waste.
Of course, all drainage devices require care or they cease to work so home owners need to undertake maintenance on a regular basis.
Remember: Gutters need regular cleaning. Water tanks should be pumped out and
cleaned every few years; silt traps, soak pits, and detention tanks need cleaning too. Ignore them at your peril and discover the adverse effects when the first big storms of winter arrive.
All this adds cost to the initial purchase and annual maintenance bill so be aware when investigating what services are available.
More homes are facing decentralised waste water in new subdivisions and will require either waste water treatment systems or pressure sewer pump stations.
These items, when cared for and functioning well, add value to the home enabling a healthy, safe environment for families to live in and enjoy their desired lifestyle.
When ignored, they become an unsanitary risk to families and the environment, so keep on top of things by scheduling regular maintenance checks.
Drains.co
cnr Quarry & Great South Rds, Drury Phone 09 294 8109
Email: info@drains.co.nz or visit www.drains.co.nz
Come winter time just about everyone is focused on rain and stormwater, either disposing of it or reducing its impact.
“It really is best to ensure installation of anything, from water tanks to storm water or sanitary wastewater systems, is done properly at the outset.”
The Aquor House Hydrant is the ultimate, ‘ no compromise’ hose tap; easy to use, durable, eco friendly, and better looking than anything on the market
The Aquor New Zealand hose tap range incorporates the best of form meets function
the
hen we picture our dream home, the thought of where to put ugly brass hose taps can feel more like a nightmare. With the Aquor House Hydrant night sweats are a thing of the past!
With sleek simplicity and innovative design features the Aquor range makes accessing your outdoor water hassle-free and easy on the eyes.
No more fumbling with a hard-to-turn-on tap. No more wrestling with an impossible-to-turn-off brass eye-sore. The Aquor House Hydrant boasts a simple push-and-twist connection, making it a breeze to use for all ages.
The Aquor design philosophy of creating products that are easy to use and built to last means the House Hydrant has only one moving part, a single stainless steel operating rod, this simplicity carries on with the innovative design using water pressure to close drip tight, working with nature for a maintenance free experience.
With its roots deep in the marine industry, creating the patented marine deckwash outlet in 1999, Aquor’s focus on superior engineering high-quality materials has flowed through to their House Hydrant range, launched in 2014. The hydrant body is made from lead-free marine grade 316L stainless steel giving it durability to stand the test of and ensuring the hydrant is safe for drinking water. The internal are Viton o-rings commonly used in aerospace and automotive applications, renowned for their long lifetimes and resistance to wear.
With Aquor’s attention to detail they didn’t stop at a near indestructible hydrant, the Aquor hose connectors are molded from Delrin Acetal Resin, a heavy duty, engineering grade plastic, UV protected and strong enough to be driven over by a car and keep working!
The Aquor House Hydrant is the ultimate “no compromise” hose easy to use, durable, eco-friendly and better looking than anything the market.
Rain Bird is the world’s largest manufacturer of irrigation technology, leading the industry with innovative systems designed to conserve water and maximize efficiency.
At the heart of Rain Bird’s passion for water conservation lies a commitment to the design and manufacture of high-quality products and The Intelligent Use of WaterTM
Water is the earths most precious resource and it is estimated by 2025, two-thirds of the world’s population may face water shortages.
Agriculture irrigation accounts for 70% of water use worldwide. Unfortunately due to inefficiencies in the current irrigation systems a large percentage of water is wasted.
Approximately 160 litres of water per person, per day could be recycled in New Zealand. This water could be used for other purposes such as irrigation.
Selecting low-water-use grasses and native plants combined with a well designed irrigation system can save as much as 60% of your current outdoor water use.
Rain Bird is the world’s largest manufacturer of irrigation technology, leading the industry with innovative systems designed to conserve water and maximize efficiency.
One outdated sprinkler system can waste millions of litres yearly. Through the use of intelligent irrigation you can save 1000s of litres per year saving both water and money.
A rain sensor communicates with your controller about rainfall levels. If enough rain has fallen, then the sensor will tell the timer to skip the next watering cycle.
A well designed Rain Bird irrigation system can reduce your irrigation water consumption by as much as 30%
ONLY 3% OF THE WORLDS WATER IS DRINKABLE
For more information on the Hydroflow range visit hydroflow.co.nz or scan the qr code.
New Zealanders use approximately 227 LITRES OF WATER per person, per day
In New Zealand the average monthly cost for water $452 based on 200,000 litres per year
connected to household plumbing, or for household use, they are less likely to be necessary when collecting rainwater for plants or animals, for example.
Drawing water from roofs, even smaller rainwater butts, barrels and the like can harvest anything from a few hundred to a few thousand litres. However, various considerations apply, such as:
• Do I need a filter and/or a pump?
• Will I need to channel the overflow?
• Will the tank require a support structure?
• Do I still need a council consent?
Before investing in collecting ‘pennies from heaven’, it pays to ensure money won’t simply go down the drain.
consents may still be required when installing rainwater tanks
• Will I be connecting the rain tank to an irrigation system?
For detailed advice from Auckland Council search ‘rainwater collection’ at www.aucklandcouncil.govt.nz. And, ‘tankfully’, Franklin is well served by specialists in water collection and application, so be sure to ask the experts.
It may be uncouth but suggesting visitors ‘follow their nose’ when asked where the privy is located can be an effective method. Although locating our region’s septic tanks has been a little more complicated, it appears as though Auckland Council’s Healthy Waters team is satisfied with its efforts.
“By giving us accurate and consistent information within hours of an inspection [of septic tanks], our system will go a long way to help us reduce public health risks from wastewater and improve our water quality,” Lizzie Johnson from Healthy Waters explains.
Under the Auckland Unitary Plan, owners of septic tanks must provide regular inspection records verifying their wastewater systems
are in satisfactory working condition.
Efforts to log all locations using septic tanks has been a Herculean effort, taking Healthy Waters and Proactive Compliance teams two years. In total 45,000 properties were identified; property owners were then advised of their obligations.
From 2022 on, contractors who clean and inspect septic tanks will automatically update records by using a new app.
“This system will have a huge impact on our beaches and streams and on people’s health,” Ms Johnson added. “It gives us more confidence septic tanks are being properly maintained and if they don’t meet safety standards, we can act more quickly to ensure they’re fixed.”
Playingit cool in summer or staying cosy in winter is not just a matter of comfort. Due to new government regulations, the wrong choice in windows and frames could cost homeowners dearly.
“To ensure Kiwi homes are healthy homes, new standards [in effect from November 1, 2022] mean Low ‘E’ glass is essential in new builds or even when replacing windows,” Robert Brown from Franklin Aluminium advises. “This type of glass is especially good when it comes to regulating temperature.”
In addition, from November 2023, thermal frames will also become mandatory in new homes and with regards to replacements.
Fortunately, Robert (who has almost 40 years’ experience in the industry) and his team specialise in providing thermally efficient windows and frames designed to meet (or even exceed) all government regulations.
“From Low ‘E’ glass (especially when combined with our ThermalHEART system), to state-of-the-art UPVC frames, which can equal aluminium in terms of thermal protection, we have the right solutions for any home.”
Thermal efficiency has become more important than ever, but future-proofing when building or replacing windows is important too.
“Precisely which products people choose depends on how they’ll be used – from windows that may rarely be opened to bi-fold doors, more often open than closed during summer, for example. But it’s also a matter of taste and budget too. If you’re looking to sell, you may go for options with wider appeal, or think more about your own lifestyle and preferences if planning to stay.”
during those cold winter months.”
Through a combination of customerfocused, individual service and cutting-edge machinery, experience and a comprehensive product range, Franklin Aluminium continues to provide effective, stylish solutions.
At Franklin Aluminium we pride ourselves on our top-notch service and comprehensive product offering. We also have one of the most modern and extensive showrooms in Pukekohe.
Especially in summer, Franklin Aluminium (and the First brand) are in step with modern living through its floor-to-ceiling windows as well as sliding and bi-fold doors.
“With such a wide range of products, and because people’s requirements can differ greatly, it’s well worth taking a look at our website (www.franklinfirst.co.nz) or visiting our showroom (4 Alpito Place, Pukekohe) for some inspiration,” Robert adds.
At Franklin Aluminium we pride ourselves on our top-notch service and comprehensive product offering. We also have one of the most modern and extensive showrooms in Pukekohe.
At Franklin Aluminium we pride ourselves on our top-notch service and comprehensive product offering. We also have one of the most modern and extensive showrooms in Pukekohe.
Our customers have the choice of a range of mainstream residential windows and doors, as well as our other ranges like our Metro Series and the APL Architectural Series.
“Because big back yards aren’t as common as they used to be, we’ve found large windows and sliding or folding glass doors to be increasingly popular while also adding value to customers’ homes,” Robert says. “Not only do these give the impression of added space, they also provide improved access so we can better utilise outdoor areas. Thanks to the latest technology, we can ensure these doors and windows won’t leak heat during the evening and (particularly)
“Or simply give us a call (09 238 8828) and we’ll be happy to discuss your preferences and offer expert advice concerning the options best suited to you, your home and your lifestyle.”
Decades of experience Modern showroom
Our customers have the choice of a range of mainstream residential windows and doors, as well as our other ranges like our Metro Series and the APL Architectural Series.
Our customers have the choice of a range of mainstream residential windows and doors, as well as our other ranges like our Metro Series and the APL Architectural Series.
• Decades of experience
• Decades of experience
• Modern showroom
• Modern showroom
ThermalHEART product available Residential & Metro displays
• ThermalHEART product available
• ThermalHEART product available
• Residential & Metro displays
• Residential & Metro displays
We are always keen to talk, and provide a quote
• We are always keen to talk, and provide a quote
• We are always keen to talk, and provide a quote
PH 09 238 8828
PH 09 238 8828
At Franklin Aluminium we pride ourselves on our top-notch service and comprehensive product offering. We also have one of the most modern and extensive showrooms in Pukekohe.
franklinfirst.co.nz
franklinfirst.co.nz
Our customers have the choice of a range of mainstream residential windows and doors, as well as our other ranges like our Metro Series and the APL Architectural Series.
At Franklin Aluminium we pride ourselves on our top-notch service and comprehensive product offering. We also have one of the most modern and extensive showrooms in Pukekohe.
At Franklin Aluminium we pride ourselves on our top-notch service and comprehensive product offering. We also have one of the most modern and extensive showrooms in Pukekohe.
Our customers have the choice of a range of mainstream residential windows and doors, as well as our other ranges like our Metro Series and the APL Architectural Series.
Our customers have the choice of a range of mainstream residential windows and doors, as well as our other ranges like our Metro Series and the APL Architectural Series.
Modern showroom
Decades of experience
of experience
Proudlocal owners of Tilyard Plumbing, Josh and Samantha Tilyard, are taking their business to the next level. Their dad, fondly known to many as Kimbo, started the business back in 1989. After purchasing the company, Josh and Samantha have expanded it into three divisions focusing on new builds, drainage, and maintenance. The company has invested significantly in expanding its scope of services, which comprises plumbing, drainage and gas fitting, Josh explains.
“By separating the business into dedicated divisions, each can be operated to the highest of standards, maintaining solid quality control
and ensuring no detail is overlooked. We take the same approach when it comes to our team – we don’t just look for capable, reliable and trustworthy people, we look for strong values and the right fit to represent us.”
When building a new home, engaging the right builder is a significant decision, one that can impact the entire process. Comparatively, if plumbing can be seen as the circulatory system of a home, it makes sense to employ plumbing experts too.
“Tilyard Plumbing works with major building companies and individual builders across Auckland and Waikato for a good reason – they trust us to provide comprehensive
and reliable solutions for all plumbing, gas fitting and drainage requirements.” Josh says, “Good, old fashioned, word of mouth recommendations are crucial; if you do a great job, you will always be spoken of fondly around summer barbecue tables! We are big believers in ‘you get back what you put in’, which is why we put a significant amount of effort into ensuring the culture in our team is the best in the industry.”
Visit www.tilyardplumbing.co.nz for details regarding Tilyard’s full range of services. However, because every project is different, Josh and team will be happy to discuss your individual requirements.
Located from the winterless north to the chilly south, the gardens showcased in this book reveal how diverse New Zealand’s growing conditions are. In addition to striking photos, this book also includes the stories behind the gardens and their gardeners as well as hints and tips for developing native paradises, natural larders and more.
Juliet Nicholas & Sue Alison: In the Company of Gardeners | RRP $55 | RHNZ Godwit
We may build our dream homes piece by piece, but inspiration often comes by first exploring what’s on offer, page by page. To help readers define the shapes of things to come, we have complied a few notes on some notable tomes about homes and gardens here in New Zealand and further afield.
Investing in bricks and mortar used to be one of the most tangible gambles of all. However, as property markets fluctuate, with bubbles and busts, many ordinary people have shied away from real estate leaving it to the experts. In this book, successful investor, Nichole Lewis, shares her secrets regarding how to negotiate the common (and uncommon) pitfalls, with real life case studies and proven formulas designed to help average people ensure the market works for them.
Nichole Lewis: Property Quadrants | RRP $29.95 | Best Seller Publishing
From native havens to exotic wonderlands, both private and public gardens are showcased in this book. In addition to an extensive range of photos by Juliet Nicholas, New Zealand Gardens to Visit also features detailed information to give readers a thorough understanding of what lies behind a wide range of garden gates. This book is ideal book for novice gardeners and green-fingered veterans alike.
Juliet Nicholas & Rosemary Barraclough: New Zealand Gardens to Visit | RRP $55 | RHNZ Godwit
From Shackleton’s Antarctic huts to some of New Zealand’s most marvellous mansions, Jane Ussher has captured many a remarkable room. In addition to Jane’s stunning photos, Rooms also includes text by John Walsh, providing even more insight into how we live as well as where Kiwis call home.
Women have been behind the design of some remarkable structures worldwide, but there is a glass ceiling that still needs to be shattered. This book (by leading women architects) shares the stories of female architects and their contributions, despite barriers, made in a maledominated profession.
New Zealand’s coastline is a haven for holiday homes we well as family abodes. Not just a showcase of these properties themselves but also offering insights into the lives of those who call them home (or home away from home), this book captures an iconic slice of the Kiwi way of life.
Catherine Foster turns away from New Zealand’s grandest seaside abodes to focus on 20 smaller homes, from Northland to Southland. Complete with descriptions, design notes, plans, illustrations and photos, this book provides more than just a snapshot about how we live when getting away from it all.
Inspired design features throughout New Zealand’s capital, as this book reveals. Not only does this book serve to offer a guide to some of Wellington’s most notable structures, we need not leave home to glean some of the secrets behind masterfully created buildings.
What stories lie behind the front doors of some of New Zealand’s most unusual buildings? In Who Lived There?, Nicola McCloy answers this question. With the addition of Jane King’s photos as well as historic shots, this book showcases personality both inside and out.
Foralmost 12 years, Mitre 10 MEGA Pukekohe has been helping locals bring their home and garden projects to life. Whether we’re building a deck, establishing a vegetable garden or renovating a kitchen, the Pukekohe team draws on their expertise and personal experience to help customers ‘get it done right’.
The Pukekohe store today offers a wide range of shopping and payment options. Customers can buy online, choosing from home delivery or to ‘click and collect’. Payment options include Afterpay, so we can shop now and pay later, through Farmlands, or with longer-term finance options such as GEM Visa and Q Card.
For trade customers, Smartmate Charge is a flexible, on account solution to get the job done, wherever customers are based. Tradies can work with their local Mitre 10 MEGA Pukekohe Trade team to manage accounts and business needs, purchase goods in any Mitre 10 store nationwide and have them charged back to their Pukekohe store account.
Offering a free design service, Kiwi-made cabinetry and a 15 year warranty on cabinetry, the team at Mitre 10 MEGA Pukekohe can help us achieve our desired look, from understated to expressive. A new kitchen should have enough storage, but there are plenty of clever options to help create a place for everything. A diverse range of appliances are also on offer, intended to suit varied kitchen designs while meeting numerous cooking requirements.
Designed to bring style, convenience and functionality to bathrooms or laundry spaces, the extensive range of tapware, vanities, showers, baths and laundry tubs at Mitre 10
Lighting is often about more than just illuminating an area, it can be used to create subtle ambience or accenting, while bolder lighting choices may become design features in themselves. The range on offer in store includes interior and exterior solutions, such as strip lighting, pendants, downlights, and a comprehensive selection of bulbs.
The right flooring can transform the look and feel of a home. Mitre 10 MEGA Pukekohe has tiles, vinyl, laminate, timber and bamboo flooring options from which to choose.
Selecting the most fitting colour for any home can be quite daunting but this local store’s paint experts help pick out shades to bring spaces to life, while its paint tinting service means almost any colour match is possible. Preparation coats, brushes and rollers, adhesives, sealants and more are also available.
Enjoy the Kiwi summer with any of the store’s outdoor dining and lounge settings, which come in a selection of mixed materials including modern aluminium and glass, concrete and timber.
Choose new season styles and on-trend accessories, outdoor heating solutions and barbecues from top brands such as Weber and Masport.
Mitre 10 MEGA Pukekohe’s garden centre –a finalist in Mitre 10’s 2022 Garden Centre of the Year awards – is packed with plants to suit any landscape or garden style. It also provides everything needed to maintain gardens and outdoor areas, including pest and disease control, fertiliser, lawn care products and tools.
Get all the essentials for projects large or small, ranging from timber, plywood and cement through to panelling and wallboards, doors and insulation. And, don’t forget to ask the store’s experts for helpful advice.
When choosing paint, picking the perfect finish is just as important as overall colour selection. Here are a few points to consider so we can ensure those finishing touches won’t let us down.
The type of paint finish applied will dictate how it will look on the surface and how much light it will reflect. Because finish designations (such velvet, platinum, satin or pearl) will vary depending on the paint manufacturer, it’s essential to also ask about the sheen of the product before purchase.
In addition, selecting the right finish can depend on how the room is used and the nature of the surfaces.
Consider matte and satin finishes for consistent and elegant results. However, keep in mind the fact that matte finishes aren’t as easy to clean as some other options. If easy
cleaning is a high priority, pearl and semigloss finishes are more suitable options.
Shiny and glossy finishes are the optimum selection for high maintenance rooms, especially those requiring an extra level of moisture resistance. For areas in these rooms that need occasional polishing, choose a semi-gloss finish.
Matte finish is most suitable for ceilings. If applied evenly, it is ideal for hiding any imperfections.
Velvet, satin, semi-gloss and gloss finishes are ideal for woodwork and mouldings as
well as wooden doors. While some wooden surfaces won’t require regular cleaning, well-used areas will, so an ‘easy clean’ option (such as semi-gloss) is often the best choice.
458 Karaka Road, Karaka P: 021 264 8432
E: info@interiorsetc.co.nz
www.interiorsetc.co.nz
Retail Store Open Wednesday to Sunday 10am to 4pm
INTERIOR DESIGNER
Rachael Buxton of interiors.etc is a qualified and experienced interior designer. Rachael is a furnishing specialist and draws on a wealth of professional experience and knowledge to be able to competently assist you with all aspects of the interior design process; from selection of window treatments, furniture, colours, wallpapers, kitchen and bathroom planning and specification, to exterior cladding and colours, to flooring, lighting, and art procurement. Rachael works with ease with varying budgets and decorating styles.
Rachael is UK qualified and attained a distinction pass with the London City and Guilds studying interior design. She has 24 years of professional experience working primarily within the residential interior design industry. Rachael’s work has been extensively published in New Zealand and overseas.
Rachael warmly invites you to meet her at her retail store and design studio (interiors.etc) located within the Old Karaka Church at 458 Karaka Road.
Goodbalance can ensure we stay on trend with renovations year-round, the Dulux Colour Forecast for 2023 suggests.
“We have all reacted to the upheavals of the last couple of years in different ways – some people crave lightness and whimsy, whilst others seek order and reassurance,” Bree Leech from Dulux says. “The three palettes in the Forecast reflect these differing needs, allowing you to create beautiful living spaces that reflect where you are in your life’s journey.”
The three palettes follow the themes of balance, connect and revive. Predominantly, these themes are warm and nurturing with nature continuing to be a key driver. And, she adds, they recognise the growing trend of sustainability in interior design in general.
“We’re reframing our relationship with material things – it’s no longer enough that a piece is beautiful, it needs to earn its place in our homes. As a result, there continues to be a renewed interest in the handcrafted and pieces with a story to tell.”
• To introduce colour, try painting the skirting boards or architraves in your living room, the edge of a door, the back of a bookshelf, a bedhead in your child’s room, or breathe new life into an old lamp base, chair or front door with a coat of paint. You’ll find that colour really makes a house a home – once you get started with paint colours, you’ll never look back!
• Before you start painting, it’s crucial (when selecting colours for walls or soft furnishings) to consider other fixtures and fittings in your space that can’t be
changed easily – these may include carpet, tiles, laminate or stone surfaces, and/or curtains and blinds. Be sure that all of these will work with the new colour(s) chosen.
• For colour surety, simply order A4 colour swatches or sample pots, available from www.dulux.co.nz, in your chosen colours – view these colours in your home’s natural light conditions. Alternatively, Dulux has an online colour advice team and a colour design service for those seeking a design professional to assist in curating their space.
Wool fell out of favour with their parents and
but millennials appear to be taking a ‘back to the future’ approach when it comes to carpets. An increased appreciation of sustainability seems to be behind the results of a survey commissioned by carpet producer, Bremworth.
“Historically, cost has been a key differentiator in the local market,” Greg Smith from Bremworth says. “However, that was before there was widespread recognition of the environmental impact synthetic or plastic products will create for current and future generations.”
Tracking perceptions over the past three years, the study found wool is recognised as ‘environmentally friendly’ by 77 per cent and ‘sustainable’ by 69% of respondents surveyed. In addition, wool is believed to be healthier (by 66%),
more fire resistant (60%) and more allergy friendly (45%) than synthetic alternatives.
New Zealand’s wool product exports (mostly carpet) have fallen by 44% over the past six years, Mr Smith says, but forecasts indicate export revenue is poised to increase.
“We recognise that if we can’t educate domestic consumers on the benefits of wool in a country where it is produced effectively, we will have little chance of growing our offshore markets, [but] the research has shown us that the industry is making significant advances on this front every year.”
Should Kiwis continue to favour wool, it could fuel a worldwide resurgence.
“From the research we know that
home are now in the millennial age bracket,” Mr Smith adds.
“This is a market segment looking to wool for a range of reasons that weren’t priorities for the generations that preceded them.”
Whether we consider them avant-garde or downright odd, furniture and other homeware designs from Europe continue to cause a splash on the world stage. While most of the products and ranges featured below are not usually found in New Zealand stores, orders can be placed online.
WILD CHILD: It might not be PC to refer to children as ‘little monkeys’ but they’re not exactly tame; in a way, that’s definitely a good thing too!
From their ‘top of the hops’ Mr Bunny and ‘roaringly’ popular Dino beds to rugs and other animal-themed ‘creature comforts’, Portugalbased Circu takes us on a wild ride.
Details via: www.circu.net.
RED, WHITE AND... GREEN: Repurposing is not just for environmentalists and certain inhabitants of Wimbledon Common any longer. As Studiododici’s Barrel 12 range shows, even the most mundane industrial items can open up a world of trendy ideas.
Featuring cabinets, poufs, sinks and more, this range is the brainchild of Italian architect and designer, Francesca Cutini. Each piece is handcrafted using recycled barrels and items can be produced by commission.
Details via: www.barrel12.com.
STICKING POINTS: Tricky decorations are quite the treat when it comes to Halloween, but they can prove a fright if they’re still hanging around by Christmas, for example. Although Wallsauce’s murals help set the atmosphere for any occasion, they are ‘peel and stick’ so they can be quickly applied then, just as easily, removed and stored.
What’s more, we can let our imaginations run wild as Wallsauce can create murals to order based on any high quality image, even our own photos, making them ideal for birthdays too.
Details via: www.wallsauce.com.
PET PROJECTS: French poodles woof ‘ooh la la’, princely King Charles spaniels have a throne of their own and even weary old English sheepdogs in need of a well-earned rest are flocking home to Hommes! The ACH Collection from Hommes Studio has been turning heads in Europe as pampered pooches expect the best in opulent pet beds.
Providing a level of comfort suited to the most loved ‘fur babies’, these beds are designed to be hard-wearing with removable, washable covers. What’s more, they are produced from vegan leather, without using harmful chemicals.
No ordinary mats for our mates, these ACH Collection designs have been devised to work in harmony with interior design schemes, making them contemporary art pieces as well as practical perches for lucky pups.
In addition to beds, the range includes pet bowls, with designs ranging from functional to funky – or should that be punky?
Of course coddled cats could (theoretically) make use of these products too but that’s a different ‘tail’ altogether.
Details via: www.achcollection.com.
WHALE WAYS: Laengsel (from Denmark) has landed quite the catch with its Orka (aka orca) desk and chair. Based on a Scandinavian concept, ‘orka’ means having the drive, determination and physical or mental energy to take on a task. So, although it’d be rather hard to land an actual white whale from a desk, one could write a great novel at such a novel perch.
Whether this desk (and matching chair) can encourage us to be more productive or not, it is an aesthetically pleasing, striking piece of furniture which plays with light and shade.
The Orka desk can be produced using birch, beech, ash or oak plywood, although not (for good reason) driftwood!
Details via: www.laengsel.dk.
CRAIC-ING ON: The luck of the Irish is well known, but the light of the Irish shines (somewhat) less bright. So, in efforts to change that, some ingenious designers have switched on their thinking caps and come up with dazzling lighting fixtures.
Mullan Ceramics’ range appears to be worth its weight in (pots of) gold. And yet, they are not produced at an emerald city somewhere over the rainbow – or even at the end of one. Instead, these stylish lamps have been devised, designed and created in the Emerald Isle.
Inspired by the heritage and colours of Ireland’s Mullan village, the range is: “tactile and unique with a visually attractive texture,” Mullan Ceramic ceramicist, Stephen Kieran, says. “It’s difficult to walk past a piece without wanting to hold it.”
Details via: www.mullanlighting.com or www.mullanceramics.com.
Inaddition to providing the comfort needed for a good night’s sleep, bed frames help prolong the life of mattresses and box springs. Before we hit the shops, there are a few choices to take into account:
1. TYPE – Wood and metal bed frames may require the addition of a box spring to support a mattress. With some models, mattresses can be placed directly onto the frame. Alternatives to box springs include frames
with a slat system or platform-type bases.
2. HEIGHT – Choose the height of a bed base according to individual preferences and needs. If it’s not adjustable, be sure to consider the dimensions of the mattress in order to better appreciate how high the bed will be. However, bed legs can often be adjusted to varying heights. If more storage space is required, opt for an elevated base or a bed frame featuring built-in compartments.
3. STYLE – Whether we prefer wood, metal or a quilted fabric finish, it’s important to select the right colour and shade to match other elements in the room. It’s much easier to choose a bed to fit the room than to redesign the room to match the bed! Headboards can also add (or detract) from design visions.
Finally, consult the specialists. Franklin is well served by experts at local furniture stores who are ready to help us find that ‘dream’ bed.
company with a proud history, Carlielle Kitchens is committed to designing and manufacturing some of the highest quality kitchens in Franklin and throughout greater Auckland. Established in 1996, the McMiken family has built a loyal and close-knit team of 20 staff, each handpicked based on their areas of expertise.
“Our reputation means everything to us,” says the company’s general manager, Doug McMiken. “As a long-established family business, we have been helping homeowners realise their many and varied kitchen dreams for almost 30 years. Every member of our driven team of professionals is committed to providing an exceptional customer experience from inspiration right through to installation.”
For new customers Carlielle Kitchens offers free, informal meetings with veteran, award winning designers.
“We’ll chat about projects, key features, budgets and timings,” Doug confirms. “This ensures we develop a comprehensive
understanding, a full picture, including the client’s ideas, objectives and other specific requirements, so we can make sure we deliver a new kitchen suited to their lifestyle.”
Carlielle Kitchens’ talented designers are fully qualified in interior and spatial design and able to work across a broad spectrum of
styles, from traditional to contemporary and everything in between, Doug advises.
The company has also developed an exclusive range of cabinet and door products.
“Our on-site cabinetry manufacturing workshop is state of the art. Our new kitchens, bathrooms, and laundries are all intended to last longer with cabinetry systems designed to outperform others on the market today. Combined with our in-house design team, this helps set us apart from the competition.”
In addition, a 20-year guarantee covers products and workmanship with quoted prices guaranteed for six months.
“In these uncertain times of supply chain issues and skyrocketing costs, we’ve found these guarantees offer our valued clients even more peace of mind,” Doug adds. “When you deal with us, you can be sure that we will deliver on our promises.”
Call Carlielle Kitchens on 09 238 5222 to arrange a consultation, visit www.carliellekitchens.co.nz, or stop by the showroom at 138 Manukau Rd, Pukekohe.
Kitchens are the engine rooms of our homes, but they’re also communal spaces often used for entertaining, so both should be considered in order to make the right light choices.
Whethercooking up a storm to feed the troops or relaxing with good company, kitchens play a dual role. The type of fittings and fixtures we should employ will depend on where they’re located and the purpose they serve.
Ambient lighting isn’t right for workspaces, but it is powerful enough to light up an entire room. Recessed lights are a timeless choice
and, as they have a low profile, they will compliment any kitchen design. Alternatively, opt for conventional ceiling fixtures or track lights which can be easily repositioned.
In contrast, task lighting will brighten specific areas. Pendant lights can be perfect when hanging over a kitchen island or sink, for example. Best paired with recessed lighting to avoid visual clutter, task lighting focuses
on function, but stylish options (from the traditional to the avant-garde) are available.
For specific workspaces, under-cabinet lighting is ideal. These fixtures are (practically) invisible and their effect is less distracting as their light won’t create shadows.
For more advice regarding fixtures and fittings, speak to local lighting specialists who will be sure to ‘enlighten’ you further.
starts at home. However, before we can dip our toes into our own piece of paradise, enjoying the waters of a top-of-the-line swimming pool, it pays to consult an expert such as Nigel Donaldson from Donaldson Pools.
“If you’re training for the Olympics, or planning to host the neighbourhood over summer, we can help, but smaller projects are no problem for our expert team either,” he says. “Our pools can be created in any shape or size, so they are suitable for sections of any dimensions. Because we don’t supply ‘off the shelf’, we can design and construct a pool that will accentuate, rather than dominate, the site.”
Working with customers to appreciate their many and varied visions and lifestyles, Nigel and his team have been behind the construction of pools, large and small, throughout the greater Franklin region.
People may be deeply dippy about pools during summer – and for good reason! – but the added value they bring to a home never goes out of style.
“Especially if you’ve been stuck in traffic or in the office, or the aircon is on the fritz, jumping into your own pool is the ideal way to cool off. We’ve been installing pools for more than 30 years (and because of this we can
work fast), but we’re always booked up well in advance of summer, so it pays to plan ahead.”
Working year-round, Nigel and his team begin with structural drawings, managing the entire process and confirming dates for work to begin as soon as council permits have been approved. Most projects can be completed within 8-10 weeks after breaking ground.
Made from reinforced spray concrete, Donaldson’s pools are designed to last, no matter what the environment throws at them.
“From black pools with exposed pebble floors, black marble plaster walls and dark tile bands on the waterlines, to white marble or New Zealand Pebble Plaster, in a range of colours, we use top quality materials,” Nigel says. “Functionality is important when cooling
off in summer, but style is a must so that, even during winter, pools can form the centrepiece of a beautiful backyard, a place to relax, unwind and reflect on life.”
The first step towards developing our own oasis at home need not require jumping in with both feet, Nigel adds.
“Just take a look – for inspiration as much as anything else – at our website (donaldsonpools.co.nz), then give us a call and we’ll work with you from there.”
“We’ve been installing pools for more than 30 years (and because of this we can work fast), but we’re always booked up well in advance of summer, so it pays to plan ahead.”