


Picturesque 4-acre parcel of land with a meandering stream and magical, pastoral views in coveted rural Greenwood Village. This land is a rare find in the Villages, popular for charming neighborhoods, premiere schools and beautiful land. Please bring your most selective Buyer to tour this idyllic building site. Country living near the city, just 30 minutes to downtown Denver and 10 minutes to the Tech Center!
The Seller is the principal at Emerson Bailey Collection, recognized as one of Denver’s finest interior design firms. She has pinpointed the ideal location for new home placement to capture the best light and views of the meadow and creek.
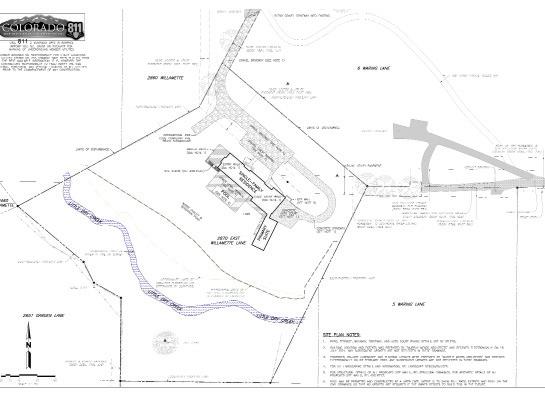
The topography of the building envelope is uniquely perfect for a home designed with a lower level that walks out to the pool, meadow and creek. Of course, the Buyer is free to design what they wish, however the Seller will share her Stamped Architectural plans, renders and inspiration for a Belgian contemporary home and guest house, designed by noted Houston firm Murphy Mears Architects. These plans have gone through full building development phases for permitting by Greenwood Village.
The Seller will also provide helpful, basic reports necessary to begin the building process, including soils and drainage studies, Tri-County septic design approvals and HVAC design to accompany the full set of stamped construction drawings.
This hidden gem of a neighborhood is zoned for a minimum of 2.5 acre lots, accessed via gravel roads, dotted with impressive architecture, horses and artists too. It is an easy stroll or trot to the wonderful Highline Canal Trail and just a quick drive to Trader Joes, restaurants, movies and shops.
Building an extraordinary home involves gathering the most exceptional team of architects, design professionals, contractors and crafts people who are informed and united in their vision for a superb end product. Upon purchase of this land, Susan Weiss (founder Emerson Bailey Collection) is available on a contract basis to work with the buyer, guiding them through the design and building process from start to finish. Whatever home the buyer imagines to build, Susan will offer design perspective, guidance and oversite. For more property info, visuals on the most recent E|B Collection home, as well as additional renderings of the home designed for the Willamette site, visit willamettelane.com.
Please be in touch to schedule a private tour of this enchanting property. The listing brokers are happy to arrange a visit to the E|B Collection Studio so potential buyers can experience first hand the quality and inspired design that defines E|B Collection homes.
• List Price: $2,850,000
• Lot Size: 3.97 acres
• Water: Denver Water
• Sewer: Septic
• Horses: 8 are allowed
• Schools: Littleton 6
• No Home Owner’s Association
• Primary Structure Setbacks:
• Front 100 ft; Back 100 ft; Both Sides 50 ft
• Accessory Structure Setbacks:
• Front 100 ft; Back 50 ft; Both Sides 25 ft
• Building Height:
• 30 feet Maximum
• Building Restrictions:
• One Primary Structure with Accessory Structures are allowed.
• 3,600 square feet of accessory structures are allowed in any and all of the following: Garages, Barns, Pool House, Guest Houses given they are for temporary use or for someone who works on the property.
• Please note, there are 3 ditches on the property required as test pits for the septic field.