
ACADEMIA NACIONAL DE ARQUITECTURA
CAPÍTULO ESTADO DE VERACRUZ
LA ARQUITECTURA COMO DISEÑO DE INTERIORES EN LA OBRA DE
JOEL OLIVARES RUIZ
Directorio ANAEV
Academia Nacional de Arquitectura Capítulo Estado de Veracruz
Rafael Pardo Ramos
Presidente
Joel Olivares Ruiz
Secretario
Carlos Caballero Lazzeri
Alfonso Ramírez Pulido
Enrique Sánchez Pugliesse Consejo Académico
Jorge Flores Martínez Cronista

La Arquitectura como Diseño de Inteiores en la obra de Edgar Marín
Autor
Joel Olivares Ruiz
Abril, 2024
Coordinación Editorial
Alejandra Palmeros Montúfar
Diseño y diagramación
María Elisa Gayosso Rodríguez
Universidad Gestalt de Diseño
Av. 1 de mayo 113. Col. Obrero Campesina
Xalapa, Veracruz; México C.P. 91020
www.gestalt.edu.mx

ACADEMIA NACIONAL DE ARQUITECTURA
CAPÍTULO ESTADO DE VERACRUZ
JOEL OLIVARES RUIZ


La evolución del paradigma del Moderno en la segunda mitad del siglo XX se ve cuestionada en la parte esencial, que es la materialidad y permanencia, conceptos que han acompañado a la Arquitectura desde su origen. Este cuestionamiento se produce cuando por fin se logra una organización a nivel internacional a través del CIAM, y su proclama: la Carta de Atenas hacia la planificación de las ciudades desde el urbanismo, liderada por un personaje relevante por su aportación al movimiento Moderno desde los años 20 –Le Corbusier– y el grupo Team X, conformado por jóvenes académicos. Su proclama fue en el sentido de humanizar las ciudades, quitarles la escala de los automóviles, ante la visión norteamericana. Aunque se decantaron por el urbanismo de los multifamiliares sociales en lugar de la casa unifamiliar social fabricada con un modelo, enfatizando de que cada familia y cada persona tiene maneras distintas de habitar, lo que promovieron es la idea de una ciudad integrada en usos mixtos tipo aldea, con espacios de uso público para la integración social.
Este evento golpeó emocionalmente a Le Corbusier quien dejó la presidencia y desapareció el CIAM, pero caló en varios grupos que interpretaron de otra manera la planificación, con la prospéctica, esto es, la visualización del futuro probable.
El mismo Peter Smithson propone la casa del futuro de un solo espacio habitable, en lugar de habitaciones, lo que ahora se llama loft, utilizando tecnología ligera y versátil para hacer cambios para crecer y decrecer. La respuesta a esa nueva proclama genera tres grupos que nacen en 1960: Archigram en Londres, la Arquitectura Metabólica en Japón y Robert Venturi en Filadelfia. Él mismo Le Corbusier hace una interpretación de este enfoque en la Casa Museo de Zúrich, su última obra 1963.
Tanto Metabolistas como Archigram es mirar al futuro desde el punto de vista disruptivo contra la construcción y planificación normalizada, que ha sido el cáncer en el crecimiento desordenado de las ciudades contemporáneas. La síntesis de su propuesta es alcanzar el desarrollo de la tecnología; algo que es diferente al Moderno al abrazar la tecnología normalizada materialista, en lugar de la ligera o alternativa. Es otra manera de interpretar las propuestas arquitectónicas de Le Corbusier con la concentración de las ciudades con los multifamiliares y los edificios rascacielos, con tecnologías e iconos que no existían cuando se inició el siglo XX, que es la era espacial. Por ello la ruptura de la materialidad y la propiedad permanente, ante una sociedad después de la guerra donde hay que rehabilitar y crecer de manera industrial. Por ello las propuestas de diseño van a desmaterializar la arquitectura con la tecnología ligera y a lo que se llega es la arquitectura primitiva de las tiendas desmontables, con tecnología industrializada, la planta libre, por el espacio abierto, el concepto de cápsula y la tecnología modular, conceptos visualizados de manera gráfica y aplicaciones a la cápsula lunar.
La desmaterialización la podemos ver en esta propuesta de colocar una superficie como piel o doble fachada con un significado de coexistencia en el entorno urbano pero en el interior un campo donde están disgregados las áreas y servicios de manera individual y evolutivo.
Hay antecedentes que pasaron desapercibidos como la obra de Rietveld, en la casa Schröeder y la propuesta de dos modelos de casa metálica. En el caso de Le Corbusier, en 1963 empieza la construcción de la Casa-Museo de Zúrich donde utiliza el modelo de Chandigarh 1950, hecha en concreto para traducirla al metal. Lo interesante es la separación del techo para dejar la construcción libre, modular, fabricada con paneles metálicos y elementos estructurales industrializados (ángulos extruidos de dos pulgadas) ensamblados con pernos. Al plantearse este modelo, la interpretación cambia, como una arquitectura como Diseño de Interiores, por la tecnología ligera, por la transitorialidad y la fácil adaptación y lo más importante el enfatizar concepto escenográfico de la Arquitectura. Como consecuencia, al evitar el urbanismo planificado, aparece la traducción del concepto de interiores al exterior, primero como jardinería para después ser el landscape o paisaje urbano.
La arquitectura de Interiores como tipología tiene su nacimiento a partir de esta época, como fusión de dos disciplinas: la Arquitectura enfocada a construir los edificios con un enfoque tecnológico estructural con espacios interiores vacíos, y la Arquitectura como interiores considerada complementaria, como la adaptación a un uso con los acabados y el amueblado, sobre todo en los edificios comerciales. Con esta fusión, la visión de la Arquitectura como interiores es, como lo planteó Walter Gropius en su libro Hacia una Arquitectura Integral, la fusión de la Arquitectura con el Diseño Industrial y el Gráfico en Bauhaus. Por supuesto que tiene antecedentes, en la oficina de W. Gropius, en el Stand para feria, con Mies Van der Rohe, en la casa experimental y el Pabellón de Barcelona, al igual que en el Constructivismo Ruso con el pabellón para la Feria Universal en París de El Lissitzky, la Shöeder-house y la casa prefabricada de G. Rietveld.
El desarrollo de este tipo de arquitectura aparece en áreas como hotelería, gastronomía, espectáculos recreativos, ferias, desde las comerciales con un stand hasta las las Ferias Universales, dado su enfoque escenográfico, tecnología ligera y de materiales industrializados. Lo interesante como aportación es el énfasis en el Diseño.
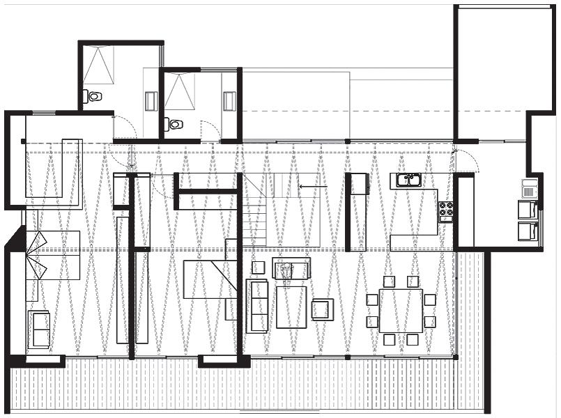
Un ejemplo que nos ilustra la diferencia de la Arquitectura y de la Arquitectura como interiores es la casa Yanakacho en Japón. En esta obra se maneja la planta libre. La cocina es el espacio social y la escalera denota la movilidad de las áreas fuera de los esquemas tradicionales. La doble piel o fachada falsa delimita el espacio exterior del terreno haciéndolo interior o de transición y la forma de la arquitectura en el entorno urbano es minimalista como arquitectura del silencio.



LA OBRA DE EDGAR MARÍN



En la obra de Edgar Marín podemos encontrar como antecedente conceptual a Richard Neutra, arquitecto vienés que trabajó con F. L. Wright, de donde se nota en su arquitectura el concepto de orgánico. Sintetiza con Mies la incorporación de la estructura metálica con tubulares y los amplios espacios. El paisaje forma parte de la afinidad con Wright por su antecedente de haber trabajado en Zúrich antes de llegar a Chicago, con el jardinero paisajista Gustav Ammann.
El desarrollo de la obra de Neutra, en la zona de California, a diferencia de la tecnología normativa norteamericana de madera con el modelo victoriano inglés, fue al introducir a la manera de Mies, las estructuras metálicas, emplazando su obra en el paisaje. Para Enrique Murillo era un referente. De hecho su primera obra –La Pérgola– tiene el mismo sentido: un gran espacio zonificado con una sola cubierta de madera y lámina.


DEPARTAMENTO STOUMEN
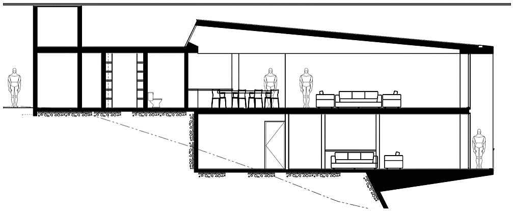
En el departamento Stoumen se puede observar el énfasis en la arquitectura como interiores: un solo espacio a doble altura con mezzanine. Se percibe que es una adaptación en un segundo piso y lo que explota es la dimensión del espacio, dejando en la parte de abajo del mezzanine la cocina, separada ésta con una mampara que no llega al piso para denotar la transitoriedad y ligereza de la mampara metálica. La estructura que la contiene es de tubulares ligeros. El espacio se agranda por el grande tragaluz cenital. El uso de la madera en el techo y en el piso lo hace cálido; la estructura portante es elemental, se aleja de las armaduras. La solución, además de escenográfica, es para no cargar la losa de entrepiso.




CASA DEL ÁRBOL
Esta obra se encuentra en un fraccionamiento privado cerca de Coatepec, en zona rural. Aquí se aplica la búsqueda de hacer una casa a partir de una estructura metálica con IPRs y cubierta de madera. Totalmente separada del terreno, permite el aire fresco y evita la humedad del suelo. Claramente respeta los árboles para sembrar la casa, incorporándolos a la composición, con el sentido orgánico de Richard Neutra. Los grandes volados y la ampliación de la estructura en los laterales, hacen una composición muy dinámica y espacial, donde la cubierta pasa a un segundo plano, denotando la composición con planos verticales y horizontales. La estructura del techo es de madera y triplay. La manguetería es mínima y pasa desapercibida al no tener divisiones, solo vidrio, lo que le otorga transparencia interior y exterior: por fuera se ve ligera y por dentro se apropia del paisaje hacia el interior.
La calidad de la obra se percibe madura en el manejo de los conceptos, el respeto a la naturaleza, la tecnología desarrollada, lo compacta que es y de la integración al sitio.
En el interior luce bien la cubierta. Es la arquitectura la protagonista, por lo que requiere pocos muebles. Las divisiones son mamparas estructuradas.
Es una casa pequeña, pero se ve majestuosa. La privacidad de este fraccionamiento de pocos y grandes lotes es lo que se aprovecha para dejarla sin protecciones contra robo o miradas de extraños.


