





Estudiante en la carrera de Arquitectura, con habilidades para la organización creatividad e innovación
Manteniendo el interés de desarrollo de áreas, además de el desarrollo diseño ilustrativo editorial
Me gusta trabajar en equipo considero que las mejores ideas surgen con empeño y disciplina
• Actividad que hacia en la tarde era ir a clases de baile, en la cual empece desde los 6 años hasta los
• Prácticante de la tipografía
• Decoradora de fiesta en mis tiempos libres junto mi hermana Yanine
En esta primera actividad fue realizar nuestras tarjetas de presentación que tuvieran diferentes estilos pero siempre respetando nuestros gustos Donde mostré mi estilo y mi presentación para dar una buena impresión, además de que mi trabajo es de excelente calidad
En esta actividad aprendimos a utilizar diferentes técnicas de el manejo de power point para hacer mejoras en presentaciones y imágenes.
En esta parte diseñamos un lámina sobre algún proyecto en la cual aplicamos las técnicas aprendidas anteriormente de power point Tenía que tener composición, formato y diseño
La laina tiene que tener el contenido adecuado, las letras que sean llamativas pero que vayan de acuerdo a tu diseño y por último no saturar
La actividad de las portadas fue realizar a partir de una imagen hacerla ilustrativa para hacerla más dinámica, más presentable y más creativa con la finalidad de utilizar esta técnica en portadas de revista
En esta actividad era desarrollar una revista de arquitectos mexicanos, siempre manteniendo un diseño conjunto que estén integrados, en la cual presentamos obras famosas por cada arquitecto
recrear la casa cascada a partir de una imagen, el programa de Autocad para realizarla de tal las herramientas de Autocad y sacamos las vista realidad.
La casa cascada del ejercicio anterior la utilizamos para ambientar, en la cual tuvimos que aprender sobre el manejo de photoshop donde insertamos vegetación, el suelo y el cielo para hacerlo más realista
Por otra parte, mejoramos la calidad de la imagen sacada de photoshop para hacerla más presentable y más real, basandonos del ajuste de filtro y dandole luces, contraste o dándole sombreado
cual era crear la recámara que te gustaría acuerdo a mi estilo y gusto
esta actividad fue el desarrollar la recámara de mis sueños más realista cual debíamos pared, luces, realistas de o el diseño realmente lo
En esta actividad fue la creación de un manual a partir de los aprendizajes obtenidos en este semestre sobre las técnicas y programas utilizados, en la cual desarrollarlo para cualquier persona que no tenga conocimientos sobre esto pudiera realizar o utilizar estas técnicas y programas.
forma del objeto esta actividad era soltar la creatividad para potencialmente
actividad se nos indico crear una cinta infinita cinta espacial, en la cual debíamos respetar la forma cubo sin que sea un cubo como tal Esto intenta mediante un elemento físico una mayor integración en la composición arquitectónica
El diseño de la galería stand a base de encadenamiento y pertenencia
El kinder es un trabajo realizado con la finalidad de representar los diferentes tipos de espacios haciendo un conjunto integrador, en la cual trabajaría con el casillero de huevo para desarrollar la creatividad de manejar diversos materiales aunque sea inusuales
actividad se planeó el desarrollo de un puente a un plano seriado, en la cual se tenía que basar en elemento como: el agua, el aire, el fuego y la tierra proyecto me tocó desarrollar el concepto del aire, de guíe de la ala de un pájaro porque representaba el del aire
Este proyecto lo que se trata es reflejar mediante el String Art una sensación al verlo, lo cual tenía que reflejarse mediante la forma en como sería, el enhilado que fuera innovador y no convencional, y por último el uso de los colores que vaya de acuerdo a la sensación que quieras causar
En esta actividad fue desarrollar habilidades de levantados para hacerlo volumétricamente partiendo de el alzado del String Art En cual, tendrías que explotar tu creatividad para formar una volumetría que tuviera el mismo diseño del string ART
La clínica veterinaria fue una actividad elegimos un logo para partir a realizarla volumetría, en la cual tuve que tener la creatividad de repartir los espacios y que tuviera funcionamiento correcto
La surgió de inspiración del estilo de arquitecto asignado, en la cual trate de reflejar el estilo casa, en la cual tuviera un espacio para comer, al aire libre
desarrollo de la celosía composición entre el edificio juego con las sombras
con sólidos intersectados,donde edificio y la celosía sombras que se proyectaban
En esta actividad, se realizo una superficie reglada con procedimientos para obtenerla..
En esta actividad, se nos pidio realizar una sombrilla para un espacio abierto como un parque.
En esta actividad, se nos pidio realizar para la entrada de unas privadas, empezó modelando en autocad sketch up para darle un criterio de
En esta actividad, se nos pidio generar unas modelado de gradas para un estadio o campo olimpico, en la cual se inicio modelando en autocad para despues darle su reflejo de como se vería
esta actividad, se nos pidio generar
En esta actividad realizamos un ejercicio sobre la forma correcta de imprimir a escala, además de la utilización del pie de página para indicar información
En la actividad, aprendimos como realizar una impresión con un relleno de color texturas, ademas que se puede aplicar un grosor de línea diferente y el acotamiento dandole formato para hacerlo más presentable
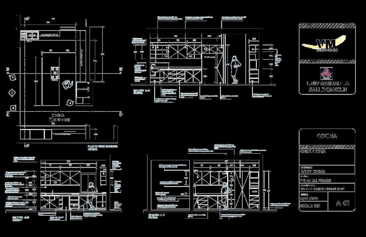
de diseño de cocina en la cual se tomo en consideración las modulación correcta de cajones distribución del mobiliario
En esta actividad se planteo modelando en autocad estilo
En esta actividad, se nos pidio generar unos modelados de juegos para un niño, en la cual se realiza un recorrido el niño pueda disfrutar de distintas opciones de juego
En esta actividad se nos pidio crear un tretapodo
esta actividad, se nos pidio realizar una cubierta con pequeñas y tenga la funcionalidad de cubrirnos
En esta actividad realizamos a partir de una repetitivo en la cual la forma se mantiene largo
En esta actividad se genero un humanoide a partir del análisis de un humano para lo cual se geometrizo para generarlo.
Dedico esta tesis a mis padres y a mis profesoras Ellos me dieron la base para poder llegar a ser quien soy ahora, quienes fueron mi principal fuente de apoyo y aliento cuando lo necesitaba. Gracias a mis padres por ser los principales motores de mis sueños, gracias a ellos por siempre confiar en mí, creer en mí y en mis expectativas, gracias a mi madre por siempre a acompañarme en cada una de las agotadoras y largas noches de estudio, agotadoras noches donde la llegada de sus cafés y su compañía era para mí como agua en el desierto; gracias a mi padre por siempre desear lo mejor para mí y luchar para que lo tuviera, a mi maestras Arq Miriam y Arq. Fernanda por cada palabra que fueron mi guía en el transcurso de la carrera y de mi vida.