Window and Facade Magazine Middle East (Jan-Feb 2020)

Page 1


FACE TO FACE

RSP

EFFECTIVE CURTAIN WALLS FOR LONGER LIFE OF BUILDINGS

Discussion on the design trends and material choices for curtain walls

Volume 3 | Issue 3 January - February 2021

INDUSTRY SPEAKS

Frank Goudman

Export Sales Director, RENSON

System solutions for every building type

Sustainable solutions for every building.

To g e ther wi t h o ur n e t w ork o f partners, a rchi t ec t s , s pecifier s an d in v e s t ors , Schüco d e li v ers t ail o r e d pr o duct s fo r n e w b uil d s and r e n ovat i o ns, de signe d t o m e e t in d ivi d u a l u s er n e e d s in all clim a te z o nes . E v e r y one in v ol v ed is s up po r te d with a co mp reh e nsi v e rang e of se rv ic e s a t e v e ry s t ag e of t h e c o n s tructi o n proces s W ind o w s , door s a n d f açad e s o lu t ions fro m Schüc o m e e t the highest requir e ments i n terms of design, comfort and security, whilst simultaneously reducing CO2 www.schueco.ae

PREFACE

Dear Readers,

There is no doubt that the curtain walls are one of the most pivotal development in today’s architectural world. Curtain wall systems have advanced to become more visually pleasing, complex and the symbols of the modern cities. Every curtain application is tailored to meet the specific needs of the engineering considerations, thermal performance, and nuances of the architectural design-intent. Curtains walls provide the durability, high-performance, energy efficiency as well as the aesthetics to the building envelope. The right design methods and installation of curtain wall is necessary for high-thermal performance, acoustics and water tightness. There are a lots of benefits that can be achieved by using right material, appropriate design criteria and correct installation methods. Failure in any of these factors leads to failure of curtain wall systems.

In this edition’s cover story, we interviewed the industry experts to share their thoughts, suggestions and key learnings on the topic of “Curtain Walls”. There are a few other articles on the latest trends and technologies in curtain walls systems. This edition also presents a project featuring innovating façade technology, interviews, news and product write-up.

The new initiative we took 4 months back by introducing a first digital platform for façade & fenestration industry – connecting architects, builders, consultants, developers, engineers globally, is growing rapidly. There are 1500+ industry professionals have joined the platform and more than 30 brands have partnered with us till now and it will continue to increase. You can also become the part of the WFM virtual community, just go the link: https://bit.ly/3cKXWHH and signup for the platform by filling basic required details.

Send your feedback and suggestions to editorial@wfmmedia.com. Keep supporting us.

8

21

The UAE Approach to Mitigate Façade Fire Risk in Tall Buildings

Faimeen F. Shah, Managing Director, Vortex Fire

CW & Window Façade Design Criteria Guideline

BIM + Curtain Walls = Better Collaboration and Performance

Juan Tena Florez, Regional Digital Design Manager, KEO International Consultants

Effective Curtain Walls for Longer Life of Buildings

Industry Speaks

Interview with Frank Goudman, Export Sales Director, RENSON

Discussion on the design trends and material choices for curtain walls 42 Face to Face

Interview with Ralf Steinhauer, Director - Middle-East & North Africa, RSP

Project Watch: LLFP Meydan School, Dubai - by Dorsch Gruppe - Middle East

Product Watch: Yale Launches Linus®, a Smart Lock with the Perfect

Abdullah Bani Awwad, Project Director, Rataal Aluminium & Steel Company Front Cover Courtesy: Dorsch Gruppe - Middle East Back Cover Courtesy: Priedemann FZCO, UAE

Subscription

Please use BOLD / CAPITAL LETTERS ONLY

Mr/Ms:

Designation: Company: Address1: Address 2: VAT Reg. No

City: _______________________ Pin Code: _______________ State: Tel: ___________________________________ Fax: _____________________________________

Mobile: _________________________________ Email: ___________________________________

Payment Details: Cash / Cheque / Digital __________________________________________________

How strongly will you recommend this magazine to someone on a scale of 1 to 10: Year (6 issues) 300 AED

 Please use bold & capital letters only  The mode of payment should be via Cash / Cheque / Digital favouring F and F Middle East FZ- LLC P  lease write your name and address on the back of the cheque

 Orders once placed will not  Please allow a minimum of 4 weeks to process the order

Subscribe to Window & Facade Magazine Middle East by completing the form and sending it to F and F Middle East FZ- LLC For further queries write to: kapil@wfmmedia.com be terminated or transferred

FIRE SAFETY

The UAE Approach to Mitigate Façade Fire Risk in Tall Buildings

About the Author:

Faimeen F. Shah is a Chartered Professional Engineer (Fire Safety) and Fellow with The Institution of Engineers Australia. He has been in the fire safety industry for over 20 years, offering expertise in fire safety consultancy, complex fire engineering analysis, and project execution. He is currently the Managing Director and founder at Vortex Fire and has previously worked with reputable multi-disciplinary engineering consultancies and fire testing organisations. Faimeen helps developers and designers to prepare bespoke fire safety strategies to enhance life safety, protect property, improve business continuity, and reduce environmental impact. He contributes to many standards code committees such as NFPA, SFPE, and ASTM.

BACKGROUND

There have been numerous fires involving buildings with combustible cladding not just in the United Arab Emirates (UAE) but internationally. In most cases, the extent of damage to the building has been significant, and unfortunately in a few instances, there has been the loss of life.

The consequences of such fires are extensive where occupants are displaced and need to seek alternative accommodation. There can also be disputes over the rebuilding costs and who is responsible especially where buildings have multiple owners and tenants. Insurance companies are getting more aware of such risks and may refuse to provide cover or raise premiums substantially due to the increased fire risk.

THE UAE FIRE AND LIFE SAFETY CODE OF PRACTICE

The applicable building fire code in the UAE is the “UAE Fire and Life Safety Code of Practice” which is developed by the UAE General Headquarters of Civil Defence. This code was originally released in 2011 and was primarily based on NFPA codes and standards as well as local practices. It did not contain any specific requirements on façades, however, where the code was silent on any fire safety aspect reference was normally made to relevant NFPA codes and standards.

Between 2012 to 2014, additional Annexures was released which contained guidance and additional requirements for façade systems. The code was updated in 2017 and more recently in 2018 to include specific requirements for each type of façade system.

The current 2018 edition of the UAE Fire and Life Safety Code of Practice has specific requirements for façade fire assessment and inspections. It requires façade design to be reviewed by a competent, qualified and approved fire consultant before any installation of façade at the site.

Recent history of façade fires in United Arab Emirates
Façade fires can lead to extensive damage and significant life safety risk

QUALIFICATION AND LICENSING

The technical qualification and registration are essential to verify the competency and to ensure the individual or organisation is competent, qualified, licensed, and can be accountable for the design and installation of the façade assembly.

As per the UAE Fire and Life Safety Code of Practice the minimum requirements are as follows:

• Cladding supplier must be registered and licensed with Civil Defence

• Cladding system must be tested and certified by an accredited testing and certification body

• Cladding system must be registered and licensed with Civil Defence

• Fire consultant reviewing the façade design and inspecting the façade installations must be registered and licensed with Civil Defence (i.e. House of Expertise)

• Façade installer must be registered and licensed with Civil Defence

• Façade installer must be trained and certified by the cladding system supplier

FAÇADE DESIGN REVIEW

A façade fire assessment report is required to be submitted by the House of Expertise to Civil Defence ideally prior to any installation of façade

onsite. This report outlines the façade assembly proposed for the development and incorporates the system schematics. Some of the key components of this report include:

• Description of the building including occupancy type, height, stakeholder’s details, etc.

• Building elevation highlighting the different types of façade systems and the extent of each on the building façade.

• Workshop drawings and schematics of the different façade systems indicating the various components that form part of the system.

• Reaction to fire test: each component of the façade to be fire tested (exposed without the skin).

• Full-scale assembly test: the complete façade assembly system to be fire tested.

• Spandrel separation: vertical (minimum 915 mm) or horizontal (minimum 760 mm) 1-hour fire-resistance-rated spandrel separation is required for buildings more than 15 m in height, even in fire sprinkler protected building.

• Perimeter fire barrier: certified and listed system to be provided at the slab edge.

• Cavity fire barrier: to be provided at each floor level within the void space between the cladding and primary substrate and around façade openings (e.g. windows).

Summary of façade fire assessment and inspection process in UAE
Documentation collection
Building permit
Civil Defence NOC
Periodic façade inspections by approved fire consultany (HOE)
Façade Fire Assessment Report by approved fire consultany (HOE)
Civil Defence final inspection

The UAE Fire and Life Safety Code of Practice have specific small- and full-scale fire testing requirements for various type of cladding systems. It provides options for testing to American, British and European standards with minimum acceptance criteria depending on occupant and building classifications. Any deviations from the tested, certified, and the listed system requires an Engineering Judgement (EJ) by an accredited testing and certification body.

Undertaking letters from all the relevant stakeholders are required to be provided to confirm the system performance, design and installation will be as per the UAE Fire and Life Safety Code of Practice.

FAÇADE FIELD VERIFICATION

Once the façade fire assessment report is approved by Civil Defence and installation of façade commences at the site; field inspections must be undertaken at every 20% interval as a minimum to verify the façade installation. This applies to the façade assembly including the cavity fire barriers where provided.

The perimeter fire barriers are required to be inspected as per ASTM E2393 Standard Practice for On-Site Inspection of Installed Fire Resistive Joint Systems and Perimeter Fire Barriers (i.e. 1 destructive test for every 152 linear meters.

The inspection is to verify the as-built condition against the approved façade fire assessment report. If there are any deviations this must be highlighted and may need rectification works or resubmission of the façade fire assessment report to the local Civil Defence.

The House of Expertise undertaking the field inspections shall be accredited to ISO 17020 Conformity assessment - Requirements for the operation of various types of bodies performing an inspection as an independent third-party special inspection agency.

WAY FORWARD

The understanding of façade fires and risk is evolving, and we must continuously learn and improve our knowledge on this subject.

The current approach in UAE to mitigate façade fire risk in tall buildings is applicable for new construction. It has been progressively

updated over the last 10 years with the latest developments, new fire test standards, and lessons learned from façade fires locally and internationally.

The UAE Fire and Life Safety Code of Practice currently provides the most comprehensive prescriptive guidance on the façade fire performance internationally. It can be considered as the minimum benchmark for prescriptive compliance. Some of the key benefits of this prescriptive compliance approach are:

• Easy to apply and review the façade fire performance which makes the approvals process much smoother.

• Façade fire assessments are consistent and not generally subject to interpretation.

• The process does not just consider design review but extends to field verification to confirm the as-built condition is no different from the approved design.

• Minimum competency and qualification requirements are clearly outlined for each stakeholder, including their roles and responsibilities.

• Responsibility for a compliant façade assembly design and installation is shared by all the stakeholders including consultants, contractors, cladding system supplier, fire consultant (House of Expertise), etc.

At this stage, the UAE Fire and Life Safety Code of Practice does not consider existing buildings. It would be beneficial to introduce a mechanism to assess existing building cladding. Further, the Code currently does not have provisions for assessing or including any new or innovative materials or façade systems.

Compliance with the prescriptive provisions does not mean a façade fire will not happen. However, prescriptive compliance does reduce the likelihood of façade fires to the scale experienced with The Address Downtown (Dubai), The Marina Torch (Dubai), and Grenfell Tower (London).

For a holistic approach, it is recommended to undertake a façade fire risk assessment in addition to prescriptive compliance to understand the specific fire and life safety risks for each building.

FAÇADE DESIGN

CW

& Window Façade Design

Criteria Guideline

About the Author:

Abdullah Bani Awwad

Abdullah Bani Awwad is a PMP certified project management, Master degree in Industrial Engineering from Jordan University of Science & Technology. He has been leading many successful projects in UAE and KSA during his +15-year-experience. Quality and safety are his motto during the journey of teaching and industry which he moved between. Right now, he is leading Ajdan-Rise Tower /Khobar one of the most prestigious seafront buildings in Saudi Arabia.

Façade is an elegant component that shows unique architectural aesthetics of the building as well as plays a critical role in thermal/energy performance and occupants’ comfort, health, and productivity where it reduces undesirable external factors such as rain, heat, storms, and noise, and utilises favourable factors such as light, air, and sun. To achieve the desirable and intended purpose of façade, criteria should be considered as follows:

AIR TIGHTNESS

It is one of the intrinsic building envelope function which can be defined as the resistance of inward or outward air leakage through unintentional openings in the envelope. Airtight envelope has several pros in thermal efficiency and comfort which affect substantially in energy savings and HVAC equipment capacities as well. The mold because of moisture could be reduced especially in coastal regions if the façade achieves airtightness standard.

The airtightness of buildings would be affected by wind load which is determined based on the location and direction of the building, its height,

and purpose of use. In the case of clustered high-rise buildings, the wind tunnel effect must be considered to avoid a negative impact on air leakage and structural failure and stability too.

To achieve the specific level of airtightness that has been determined by the façade designer, a tested and certified aluminium CW/window system which matches the specific one should be chosen.

A performance mockup test is also strongly required to check the integrity of all components together before construction where performance mockup unit, including all components with proper terminations, could be performed at the attested laboratory in order to ensure achieving the specific air permeability level.

WATER TIGHTNESS

It is another important function of the building envelope that might cause a dire façade failure in case it happens. It can be defined as the resistance to the passage of water through a façade under specified conditions.

Water might cause a gradually degrading in building

Ajdan Rise TowerKhobar/KSA
Water tightness

material and build-up on walls may also damage and reduce the quality of insulation. Perhaps the most alarming and recent development has been the outbreak of toxic mold growth within walls and the dangers to public health. So, the façade system should be sealed with the right compatible and consistent material where its integrity is really crucial.

The tested and certified aluminium system has a significant role in order to prevent water ingress as well as the best practice of fabrication and installation. A performance mockup test is required to know the root causes of potential leakage areas and create fabrication and installation procedures accordingly which must be verified regularly to secure the intended result.

STRUCTURAL BEHAVIOUR & WIND RESISTANCE

No doubt that façade should withstand in front of climatic conditions especially wind load without fail.

KSA national flag project
Wind behaviour

Although a curtain wall is a non-load-bearing exterior wall cladding where it transfers its dead loads and lateral wind loads to the main building structure through brackets connected at floors through anchor bolts. The curtain wall components should resist the wind load without passing the specified maximum deflection and permanent deformation level even when safety load is applied.

It is well known that maximum wind velocities, and consequently design wind loads, vary not only with geographic location but also with height

above the ground. Also, the nature of the building’s surroundings, suburban character, or dense urban building, are more important influences on wind action. These factors should be programed and analysed to determine the structural properties of adequate framing members as well as the thickness of glass.

PROVISION FOR MOVEMENT

No building is a static thng and movements constantly take place between its components. These movements are caused by temperature

Perimeter fire barrier detail

changes, wind actions, gravity forces, and deformations or displacements in the building frame which could not be disregard in the designing and execution stage to prevent dire consequences.

These movements are usually accommodated by a proper joint design which is the secret of a functionally successful curtain wall. So, designing and detailing of joints are the most critical aspect of CW design.

THERMAL AND ENERGY

Façade must ensure the optimal thermal and energy performance which reflects a positive environmental and air conditioning cost impact

as well as occupants’ comfort and better mood. They are mainly impacted by design strategies such as building orientation, climate, window-towall ratio, and glazing type and characteristics which wise consideration will reduce the amount of needed cooling/heating energy, heat loss/gain, and the emission of carbon dioxide.

It is one of the most components which dramatically affects thermal insulation and lowenergy consumption in glass selection. It positively impacts light, solar, and heat transmittance which affects significantly building users’ satisfaction and energy bill. So, glass attributes and specifications such as shading coefficient, solar absorptance, solar direct reflectance, solar heat gain coefficient, ultraviolet transmittance

Wind pressure load distribution - Khobar/KSA

percentage, U-value, visible light transmittance percentage and recycled content should be all considered during its selection process.

ACOUSTIC INSULATION

Soundproofing is one of the recent requirements in our life due to the increasing concern with noise pollution. It is the ability of material or element to reduce sound transmission and is measured over a range of frequencies. So, the CW façade system should eliminate, or at least mitigate sound transfer.

It is known that careful selection of glass can be essential to minimise noise level and meet its requirements. Sound insulation of glass can be improved by increasing the thickness of the pane, increasing the gap between the panes in IGU, and using laminated glass.

HUMAN-LIFE SAFETY AND SECURITY

Human is the most valuable assets ever and his safety and security should be maintained and sustained. Fire and smoke are extremely hazardous which might be happened and all façade stakeholders should be aware of how to design and apply a proper system to save human lives

and secure evacuation of all tenants. I strongly believe that fire engineer should be in an early stage of designing to determine requirements, standards and best practice of this field due to high importance of it.

Fire spreads primarily in the curtain wall through the chimney effect, where fire moves upward through gaps between the floor slab and the curtain wall, and the leapfrog effect where flames break the glass and move from outside vertically between the storey. So, perimeter firestop and spandrel glass enough height will prevent these effects.

Anti-burglar, bullet, and blast resistance are also very important aspects for some special application buildings and façade design should use a proper system to achieve these intended purposes.

In conclusion, a building façade is being aesthetically pleasing as well as playing a vital role in energy efficiency and linking exterior building design with interior one. To secure the optimal output of a façade, the aforementioned design criteria should be considered and applied in best practice under façade engineer supervision.

Railway stationRiyadh/KSA

BIM & CURTAIN WALLS

BIM + Curtain Walls = Better Collaboration and Performance

About the Author:

Juan Tena Florez

Regional Digital Design Manager, KEO International Consultants

Juan Tena Florez is the Senior Digital Design Manager (M.Arch) with 16 years of professional experience (7 years in Middle East). He has extensive experience in BIM implementation, strategic planning, standardization of processes in line with ISO 19650 standards and parametric-digital design delivery (Revit, Dynamo, Navisworks, Rhino and 3DS Max). He is always up-to-date and researching about other digital design technologies like VR, AR, MR, AI, ML, 3D printing, drones, point cloud, generative design, automation, digital twins, etc. He has extensive knowledge and experience working with ISO 19650 (leading KEO to be certified by BSI) and US (AIA-LOD Forum) BIM standards. He has extensive experience delivering large and mega scale projects of multiple uses for private and public sector clients.

Building Information Modelling (BIM) is the use of a shared digital representation of a built asset to facilitate design, construction and operation processes to form a reliable basis for decisions as per the ISO-19650 Part 1 definition.

The advantages that the BIM process and tools bring to asset owners, architects, engineers, project managers and constructors are extensive, they can explore and analyse the planned asset internally and externally before one sod of earth is turned. Master plans, infrastructure, buildings and landscape assets and the drawings produced to materialise its ideas, can be sometimes difficult to read, analyse and understand to make the appropriate decisions during the lifecycle of the asset.

3D visualisation, including virtual reality and augmented reality, of a project, allows users to see the project in a more natural environment, regardless of the professional background. Clash detection and 3D coordination bring greater quality and more effective collaboration during design and construction. Linking projects to the construction programs provides an ability to virtually see the projects construction, past, present and future.

All of these outcomes and others not mentioned combined, provide a better environment for

all project stakeholders which encourages more in-depth collaboration, communication and information exchange to achieve an informed decision-making process.

The BIM technological process brings about the following main advantages and benefits:

• BIM visualisation enables a better understanding of the proposed design

• Consistent and integrated information

• Fewer changes in the construction phase

• In-depth energy analysis and building performance

• Multidisciplinary collaboration and efficient design and leaner construction

• Reduction of Request for Information (RFI’s)

• Less errors and omissions in the design process

• Elimination of abortive work

• Reduced risk of increased costs and change control

• Smoother transition to operations and facility management

Consistent and integrated information reviewed on a cloud viewer

BIM is about more discipline and not more work, providing the correct information at the correct time, doing the work once, doing it right and enabling those downstream to use the information effectively and efficiently saving time and costs with less waste being created.

DESIGN ITERATIONS AND PRODUCTION

In every project, there are multiple iterations throughout the design process in order to achieve the desired outcome and to provide different design options to the asset owner. BIM authoring tools can assist to make that workflow more efficient, faster and providing more insights to evaluate them accordingly. Based on the understanding of working on a 3D parametric model which can be accessed simultaneously by multiple users, it can be created several options within minutes without losing any of the options designed and with the ability to compare and analyse them to make informed decisions.

Given that the production of the drawings is extracted from the 3D model developed, any changes or updates done in the geometry

or information attached to the elements, the drawings will automatically update the contents providing consistency and quality assurance to the information produced, as well as an increased speed of production and elimination of abortive work.

Dynamo daylight optimization study by Jalal Semaan
High rise tower complex geometry modeling

COMPLEX GEOMETRIES

Some of the projects we can find in the Middle East are unique and challenging at the same time, in terms of the complexity of their geometry or scale. Using advanced BIM authoring tools, as well as visual programing tools, like Dynamo or Grasshopper, the development of this complex or large-scale façade and curtain walls geometries is simplified and can be achieved in less time, effort and with more consistency and quality.

That is achieved due to the nature of working not only with geometry but with data as well, which will drive the creation of parametric elements that can be easily updated and provide a quick interaction during the design process.

We cannot, therefore, think of being able to be efficient and responsive, without using BIM authoring tools to achieve better and more sustainable curtain wall systems throughout the project lifecycle and as the outcome.

Energy analysis and building performance study

COORDINATION AND COLLABORATION

Similarly to any other stakeholder involved in the project lifecycle, façade engineering is one of the building components which needs coordination with other parties like architects for space planning and code compliance, or structural engineers to coordinate the loads and location of elements, or MEP engineers to arrange openings or other features required to ensure correct compliance with MEP equipment location and ventilation needs, or with sustainability in order to ensure that the energy consumption and other standards requirements are met.

Given all of the above stakeholders involved, it is critical to communicate and coordinate effectively. BIM processes ensure that the coordination is

effective and there is a communication exchange workflow using a common data environment, which will be the single source of truth for all the data exchanged.

The 3D coordination of the design is enhanced as teams works collaboratively using a shared model which is checked and approved by other task teams involved so that the Façade model can be developed referencing other disciplines models. As new iterations of the shared models are produced, a federated model is created in order to aggregate all the 3D models into a combined model and to perform a clash detection to automatically detect elements clashing with each other based on a set of rules agreed and defined.

QUANTIFICATION-COST ANALYSIS AND PLANNING AND SEQUENCING

BIM authoring tools are live information database. Information on quantities can be utilised for evaluating the embodied carbon within the proposed components. Different concepts can be compared to an early design stage. Populated BIM libraries, with suppliers’ information, can be used to evaluate overall buildings’ materials environmental aspects, rather than on component by component basis. BIM libraries can also be used for reducing construction waste, by evaluating which systems could be manufactured off-site within a controlled environment.

BIM can work in parallel with market available computational project management tools. Such

Creating Curtain Wall options during design iteration
Coordination and collaboration in complex geometries

tools have capabilities in allowing extraction of time variables for the construction of various building elements. This combination of time and component information can be used to improve the operations on site and to reduce the overall energy use on active sites and optimisation of waste management by applying just in time principles.

OPTIMISATION OR RANDOMISATION WITH GENERATIVE DESIGN

We can define generative design as a collaborative design process between people and technology. During this workflow, the user defines the design parameters and the hardware produces design

studies (alternatives), evaluates them against quantifiable goals set by the user, improves the studies by using results from previous ones and feedback from the user, and ranks the results based on how well they achieve the user’s original objectives.

Therefore, using the generative design we could set for example, as objective to maximise the number of typical curtain wall panels, or to optimise the curtain wall shades orientation, or to minimise the energy consumption based on certain constraints, the use cases are endless and the limit is the level of optimisation required.

Other use cases, for using visual programing, which is the engine behind the generative design, is to randomise the position of curtain wall panels or to position a different panel type based on an attractor point. All of these different cases could be used as well for analysis and to make informed decisions despite being randomised.

ENERGY ANALYSIS AND BUILDING PERFORMANCE

In the AEC industry, we are all committed to improve and optimise the environmental

Large scale façade modeling and documentation
Panels randomization for lighting studies

conditions, design, reduction of waste, undertaking carbon accounting and supporting operations, among others. BIM tools can be used as a live platform where teams are working in parallel to optimise the design and provide time and cost benefits to any project, regardless of their scale or complexity.

BIM tools allow us to quickly implement design changes to be assessed against various environmental parameters to achieve your sustainability goals and reporting requirements. Commercial software in thermal energy simulation, energy consumption assessment, assessment of environmental conditions and computational fluid dynamics are commonly used as part of the design development process.

You will discover intuitive, outcome-driven insight into energy and environmental optimisation, from design to operation with the BIM parametric modelling capabilities, which can be used for the examination of various concepts of the design, modelled faster and more efficient. Real-time feedback can be visualised and interacted with

key performance indicators, factors, and ranges to help make better design decisions.

Using daylighting analysis, we can simulate, calculate, and visualise key daylighting metrics, like daylight autonomy and annual sunlight exposure. Also, we could analyse the total building heating and cooling load calculations.

Curtain Wall Panels optimization study
Complex curtain wall geometry modeling

COVER STORY

Effective Curtain Walls for Longer Life of Buildings

A curtain wall is a nonstructural exterior covering of a building that is connected to the frame and used to withstand the effects of environmental elements that includes wind, rain, etc. For the better performance of the façade of the buildings, it is very important to carefully study the curtain wall during the design stage to take into consideration all of the performance criteria such as air and water tightness. The selection of the right material and the design elements for the curtain wall are very critical to give longer life to the building.

We interviewed a few top names from the Middle-East’s façade industry to know more about effective curtain walling. Here are experts' views and some trips that should be followed.

THE KEY ELEMENTS OF CURTAIN WALLING SYSTEMS

Douglas Sum, Partner and Co-Owner, Heroes Architects and Engineers, believes that the key elements of the curtain wall system, or the definition of façade, is the 'Barriers on the outer skin of a building, for separating interior space from the exterior environment. “Although people might immediately think of glass, aluminium as the key elements of the curtain wall system, I would consider all of the components inside the curtain wall system indeed serves the same purpose - to confine a space from the (severe) external environment”, he adds.

Susanna Noureddine, Associate Façade Consultant, Ramboll explains, every good curtain wall system has to be designed considering five key elements: safety, quality, cost, aesthetics, and constructability. All of these elements are very much linked with each other to achieve the desired outcome. Safety and constructability are aspects we do not compromise. Unfortunately, we have seen and heard it often enough that cladding and glass panels are falling; a fire erupted over entire elevations, and that buildings become uninhabitable due to poor construction. In brief, quality is part of these two aspects.

She adds, aesthetics and costs are, to a certain extent, flexible factors. Value engineering and cost-cutting are often brutally left out in the aesthetics of the building. Materials are either replicated or entirely replaced by ‘cheaper’ usually aluminium panels or a render finish. There is a particular benefit for most of the projects, but often this compromises the architectural intent. Quality is also associated with indoor comfort. The better the thermal performance of the curtain wall, the better your indoor comfort. The Shading Coefficient and U-Values are decisive and will increase the cost of aesthetics and quality.

Miguel Fernandez, Senior Façade Consultant, AESG mentions, “We tend to think that glazing and profiles are the key elements of a curtain wall system, however, we should not underestimate the importance of other elements like gaskets or fixing accessories, the correct design of these elements is truly a key part of assuring the required performance of the whole system. Gaskets are in great part the responsible parts for the air and water tightness of the curtain wall. Inside that category of accessories, the design of the curtain wall brackets is of key importance to avoid installation problems, brackets design should be able to accommodate the construction tolerances and the differential movements”.

KEY CHARACTERS OF A WELL-DESIGNED CURTAIN WALL

Sum says, follow up with the point above, a suitable barrier is a welldesign curtain wall. He recommends using the metaphor of 'shopping for a winter jacket' to define a right curtain wall - what is in your mind when you need to buy a jacket for hiking in the snow? He believes, it must keep you warm (thermal performance); fit your body so you can move freely (allow movement); not make you feel sweaty (breathable but not air leaking); scratchable (structural safety and durability); not burn when you are closed to a campfire (non-combustible); look nice and meet your style (aesthetic); and most importantly, buy it when the store is in a sale (cheap)!

“True to the motto ‘form follows function, a well-designed curtain wall is only as good as its functions. I cannot think of any other building

Susanna Noureddine Associate Façade Consultant, Ramboll
Miguel Fernandez Senior Façade Consultant, AESG
Douglas Sum Partner and Co-Owner, Heroes Architects and Engineers
Unitise panel installation

energy resources and ensuring we are protected from weather, noise, and other external factors. A well-designed envelope is not only important for our comfort, but it is also equally responsible for the heating and cooling loads we spend and the overall energy consumption.

component that is as decisive for human comfort and energy resources”, says Susanna. According to the IEA (International Energy Agency) “the buildings and buildings construction sectors combined are responsible for over one-third of global final energy consumption and nearly 40% of total direct and indirect CO2 emissions.” Adding the fact that we are spending more than 80% of our life-time indoors, the building envelope or “protective skin” plays the major role in reducing

Characteristics of a Well-Designed Curtain Wall

• Performance: This is the basic function of a curtain wall, separate the interior of the building for the external conditions.

• Versatility: A well-designed curtain wall should be suitable for different conditions, buildings, and provide a variety of solutions to the different scenarios.

• Well-designed accessories: A well-designed curtain wall should incorporate accessories such as brie solei or louvers in a seamless way, which means without compromising the performance of the system.

• Installation: The design of a curtain wall should always consider the installation, panels, and brackets should be designed to ease the installation process at the site.

Susanna adds, “Considering these facts, I would change the question to a well-designed building envelope. A curtain wall system is usually pre-tested. We know the current performance standards the regional market offers, but how good is a curtain wall when the interface to the superstructure is faulty? How good is the interface when other trades are lacking coordination resulting in leakage and air infiltration? The interfaces to other building components are often neglected, thus we may split a well-designed envelope into two stages: design phase and installation. In summary, I would say a well-designed envelope is the understanding and incorporating assembly and installation processes on and off-site between different trades”.

THE ROLE OF GLASS IN CURTAIN WALL SYSTEMS

According to Sum, as a barrier, glass is not ideal because it does not fit the well-design curtain wall's characters. Consider it has a high thermal transmittance value (compare to a solid wall), it is brittle, not breathable, and is not safe when it breaks! However, as human beings, we still need glass on our curtain walls badly as our instinct wants us to connect to the external environment! You will soon feel uncomfortable if you are inside a concrete box, even though it has an excellent interior decoration. Therefore, as a façade specialist, our role is to make glass be on the curtain wall (to let the occupant connecting back to the environment), but at the same time design it to be a suitable barrier - yes, it is challenging but leave it to us!

According to Susanna, glass is undoubtedly one of the main components of curtain walling. It carries almost all the key aspects in its processing: safety, aesthetics, and thermal. Costs are mainly driven by the glass type and its required performance. One of them is the solar control coating which gives the glass its colour and shade. Reflectivity, internal and external as well as light transmission depend on this coating. Aesthetically, the quality of the glass processing gives the building façade the ultimate touch.

This image is often the sad reality we see around the world. Renown system suppliers offer their best performing aluminium systems in airtight and water resistance but lose their technical values when interfaces are not equally good performing

Many of you may have noticed distortion in the one or the other skyscraper caused by the process when the glass is heat-treated, she adds. Another important consideration is the glass’s internal reflection which is often least prioritised. We noticed a trend from architects and developers requesting to reduce the ‘glass’ internal reflections to enjoy views and sceneries, especially at night. We tend to recommend a glass coating internal reflection lower than 15%. We understand this is tough to achieve, especially when other coating requirements are prioritised. Nevertheless, our Industry Partners are doing their best to invent new coatings to meet market demands. The essential factor of the glass, however, is safety; it serves as a falling from height protection and human impact from the inside; on the other hand, we have to consider the post breakage behaviour of the different glass types and the usage on higher elevations, eg. glass pieces falling on pedestrian ways or roads.

According to Fernandez, glass is the main boundary material between the inside and the outside of a curtain wall, glass gives the possibility to see what is outside, provides natural light, and separate from the weather elements, it also gives us thermal comfort or privacy when required. Apart from all these factors, the glass is also used as a way to express an architectural intent, an idea, or even an economical status. Glass fabricators in the last decades have provided a great range of glazing solutions that can combine performance and aesthetics in such way that the possibilities are almost infinite. Another relevant contribution of glass is its contribution to sustainability glass can help to reduce energy consumption and even produce energy by itself.

THE ADVANTAGES OF UNITISED CURTAIN WALL

There are a lot of advantages of using unitised curtain walls, especially for highrise buildings. Sum believes that lots of people already pointed out most of them, such as faster production and installation, allows differential movements, etc. All the fabrication and assembly operations are in a controlled environment. You have fewer people working on-site, and all of their activities happen on the floor slab - working on a cradle hanging outside a building is not required. “As safety matters to me and we are all responsible for our families, using a unitised curtain wall system to provide a safe working environment for our colleagues is the key advantage that I appreciate very much” he adds.

Susanna notes that the considerable advantage of unitised curtain walls is the efficiency of repetitive units and their installation. Once an assembly process is optimised off-site, the time saved on-site is significantly higher than a stick construction. Another decisive factor is the higher quality assurance due to fewer interfaces and workmanship on-site. Working at heights is moved to the inside of the building slab, and interior wall assemblies can be easily integrated. She prefers the unitised curtain wall rather than stick constructions because of these reasons. Of course, it will always be the first discussion if a stick curtain wall is equally suitable, especially when it comes to building movement joints. A unitised system is better in accommodating movement joints and is more flexible in that regard.

Fernandez believes that the concept of a unitised

Electrochromic glass
Kinetic façade

curtain wall rest of the pre-assembly of the main components of a façade at a controlled facility, this is already a great advantage by itself, with the assembly in a controlled environment the quality of any product increases substantially the same applies to the curtain wall, the different components of the curtain wall arrive at the facilities after a previous QA/QC process that reduces the possibilities of defects and mistakes on the assembly. Continuous quality checks are performed during the curtain wall assembly to ensure the performance and quality of the final product.

He adds, the preassembly of curtain wall units allows developing more complex and performing curtain walls such as “active walls of close cavity façades” with improved performance.

One of the most evident advantages of the unitised curtain wall is the speed and ease

of installation, typically a unitised system is installed around the same floor this gives the chance to the other parties to work on the inside of the buildings during the installation of the façade, this facilitates all the other works like MEP or internal linings. An important advantage, that sometimes is not considered, is the capacity of a unitised curtain wall to absorb the building movements, this becomes a crucial factor for High Rise building construction where building movements are considerable.

THE PARAMETERS FOR DESIGNING A CURTAIN WALL SYSTEM FOR A BUILDING

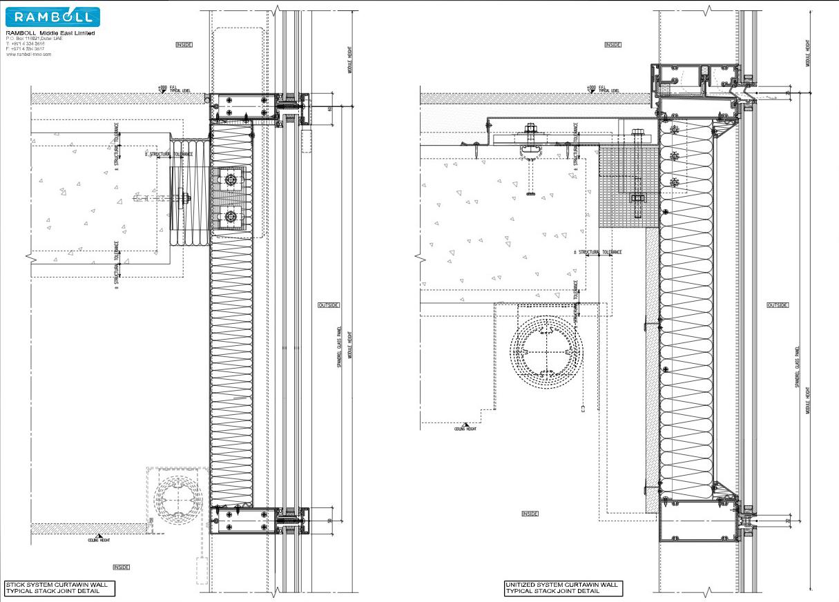
“As I mentioned above, you think of the parameters of how you select a winter jacketthen you will not be too far away from getting a good curtain wall system”, says Sum. There are indeed a few more interesting parameters they worth to think:

Image
Courtesy: Ramboll
Unitised curtain wall vs stick curtain wall stack joint principle

• Lightening protection: The curtain wall shall protect occupants against lightning strikes and not get an electric shock.

• Acoustic: You can have a peaceful room by isolating highway and party noises from your neighbours.

• Maintenance: Components that might break during their life span should be designed as accessible and replaceable.

• Warranty: Go back to the supplier and repair it when something goes wrong!

Fernandez explains that there are several categories that need to be considered for the correct design of a Curtain Wall System:

• Structural: Loads will define the size and thickness of the curtain wall profiles, glazing, or other cladding materials, typically to be considered are the wind load, dead load, and Live load among others.

• Geometry: Shape and modulation of the façade will also affect the design of the profiles and glass, easily we can think about the differences between straight and curved panels, modulation will affect the loads that the curtain wall needs to support.

• Aesthetics: Colour of profiles and glass appearance along with added accessories such fins, blinds, decorative screens, and so on.

• Performance: The performance parameters are a driving factor onto the curtain wall design,

thermal performance (typically known as U-value) or water and airtightness will have key importance in the design of the systems.

• Fabrication/Logistics: Supply of materials and facility condition are fundamental factors on the success of the curtain wall design, the proper supply chain ensuring the quality of the received materials in place and time along with a well-implemented QA/QC system is of massive importance to deliver a good product.

• Site/Installation: Getting a good product to the site will not be enough to ensure the final success of the curtain wall, an experienced site installation team is necessary to achieve the final goal of a well-designed Curtain Wall.

THERMAL PERFORMANCE OF CURTAIN WALL SYSTEM

Sum points out that thermal performance is one of the essential criteria in the current curtain wall system design, considering energy saving and sustainability is one of the hottest topics that we cannot ignore. Glass panels generally have better thermal performance, the next challenge is to provide an excellent thermal break aluminium system to offer an excellent insulated façade.

Susanna explains that the thermal performance of a curtain wall should be adjusted to its climate conditions. The trend is often to adopt the U-value of colder countries to tropical or as we have it here in the United Arab Emirates (UAE) hot and arid weather. The U-Value originated from the energy transfer through building materials from a high density of molecules to a lower density. The second rule of thermodynamics applies to this theory. It is an ongoing debate on how it changes the performance when cooling loads are calculated to keep the heat outside. Tropical countries usually have a temperate difference of ~10 degrees Celsius between interior and exterior while here in the UAE, we are fighting with around 25 temperature differences. The same is applicable in cold countries where the temperature delta reaches up to 30 degrees C. Tropical climate does not require a strict U-Value and high shading coefficient. What we like to do before we set the standards for a curtain wall performance is to look around the existing buildings and traditional architecture. It is not a secret to survive in harsh climate conditions. Human beings have adopted their living standards.

Unitise bracket

In the Gulf Region, shading devices like Mashrabiyas, vertical fins, and small window openings are present in older building designs. Today, we try to adopt these principles with different materials and glass coating technologies to allow for higher design freedom, Susanna adds. In tropical countries, windows and terraces are often shed with big and wide cantilevered canopies or roof extensions. The ultimate water and sun protection in one. At the same time, cold countries open their south façades to gain heat from the winter sun.

Fernandez stresses sustainability. He says it is a key focus these days, building construction and the façade, in particular, cannot be indifferent to this, curtain wall design has to contribute to this important goal. Here is where the thermal performance of the curtain wall takes its part.

The thermal performance of a curtain wall is defined by its U-value, this measure indicates the energy transmitted through the curtain wall, the lower the U-value the more efficient is the thermal performance of the curtain wall. U-values requirements are clearly stated on the Energy consumption regulations the available façade technologies allow for improved U-values to achieve higher sustainability goals such as the zero-emissions buildings.

THE CHALLENGES ASSOCIATED WITH CURTAIN WALL SYSTEMS

“There are many challenges in many aspects (technical, commercial, site coordination… etc.), but I can immediately think of the client's expectation management. Our clients, especially in this region, are pushing the curtain wall system to be better, faster, and cheaper. While the industry is pushing our edges every day to make ourselves beyond the boundaries, we need to manage the client expectation and make it 'slightly' more realistic - and we have to do that: don't give fake promises to your client” says Sum.

According to Susanna, the biggest challenge that is faced by a consultant is convincing the client for the best performance and the best suitable system of a curtain wall design which may exceed the investment cost but has a higher return. These figures are not tangible at the first moment; however, we see that better quality is a long-term investment. Historically, the construction pressure has been enormous to finish projects on time or ridiculously planned site programme where installation quality has been the most significant compromise. This is tangible now with the many requests we receive for operational and unfinished buildings where the

Thermal calculation

curtain wall leaks water and air. This, she believes, is one of the biggest challenges associated with curtain walls and their precise installation period. This convention of understanding this longterm damage for the developers’ protection and money-saving escalates quickly to long and indepth discussions.

Fernandez points out that energy efficiency is one of the main challenges for the façade industry and the design of the curtain walls, in particular, there are several strategies implemented to achieve a better energy performance, we can classify them into two main groups, active measures like PV glass panels or Bio-energy façades that can produce energy by themselves and the passive measures like low-E glass coatings or the use of triple insulated glass units to reduce the U-value, other alternatives are the shadings like the ones mounted on kinetic façades or the design of active curtain walls where the stack effect is used to improve the thermal performance.

THE MOST COMMON TYPES OF FAILURES IN CURTAIN WALL SECTIONS

According to Sum, the most common types of failure are air/water leakage through the curtain wall systems. If the system is tested, then the design should be fine overall, and remain potential issues may come from fabrication and (most likely) installation. That is why having skillful labour and a professional supervision team is very important to have a successful curtain wall package.

Susanna opines that the right alignment of

the weather membrane and the allowance for tolerances and movement of a bracket is something we have to reject on 90% of our site visits. The design drawings and approved shop drawings do not reflect the actual site conditions and therefore adjustments to slabs and brackets are nearly always the case. Thankfully it is spotted in the early stages and rectification can happen accordingly.

Fernandez explains, in many other fields, the devil is in the details, a typical curtain wall wins just spandrel panels, and vision glass will be very robust and unlikely to present failures if it has been fabricated and installed as per the industry standards. When the requirements of the curtain wall design are higher due to the building complexity or the required performance is when failures can appear if the design has not been done carefully.

Common types of failures are the ones related to the performance of the curtain wall like air/ water leakages due to penetrations on the seals or incorrect installation and the ones related to the building movements and tolerances where the curtain wall cannot accommodate the building movements like sway or drift.

THE LATEST TECHNOLOGIES IN CURTAIN WALL SYSTEMS

There are a lot of new technologies to curtain wall system development. But it is my interest (and we are working on it very well right now) - we are combining the entire design flow (from concept to shop drawings to fabrication) into a single model, says Sum. “The 'traditional' BIM model contains many building information. However, in our curtain wall industry, the model is neither describing the geometry precisely nor detail enough to produce fabrication drawings; we regard it as just for “entertainment” only. Thanks to our core programming team's coding capability, we make the script to describe the building geometry and then apply all the details and fabrication data into the model - the fabrication data is then automatically generated from the script. Using this method, we are significantly saving a lot of time in fabrication drawing preparation and eliminate human errors - we call it FIM: Fabrication Information Management, he explains.

According to Susanna, the latest trend is dominated by these two materials - hand glass treatment and building automation. It is good to

Site installation of a curtain wall profile with inadequate surface and support Image Courtesy:
Ramboll

PARAMETERS THAT DECIDE THE SUCCESS OF A CURTAIN WALL

Curtain walls, just other projects, need everything to be well done to be claimed as a curtain wall's success. But if any single parameters that we mentioned before are failing or could not meet the expected performance, it is a total failure, says Sum. It is just a jigsaw puzzle, you need all the puzzles putting together to have complete work. Missing any single piece, although it is tiny, is incomplete and should be regarded as a failure.

see that end-users and owners are aware of the comfort and the sustainability aspect of a curtain wall design. The push towards automation and better performing building envelopes are initiated by local authorities and the more prominent presence of sustainability experts. “I would call it a trend – a positive one – where clients request building simulations with different scenarios to choose the best options. Parametric modelling makes this easy to run other options and compare the results. Our team has been involved in many discussions where cooling loads and shading designs were presented with a wide acceptance to increase the building envelope's performance”.

The desire to integrate façade openings or adjust the room daylight and shading conditions via smart devices is becoming famous. We see a drive towards changing glass transparency, especially for private residences – the coatings on the glass allow the interior's darkening without external or internal blinds. It is a significant change evolving and consulting our clients with the latest trends and possibilities.

We can consider two main trends regarding the latest technologies applied to the design of curtain walls, the first trend is the use of new materials and the other is the use of parametric tools for the design and fabrication of the curtain walls, says Fernandez. As new materials, we can mention the use of composite materials such as carbon fiber or GRP profiles, electrochromic glass, or compacted stone claddings. Parametric design has opened a whole new world of design possibilities allowing the curtain wall designers to come across an architectural design that was not possible 20 years ago.

“In summary, I would say that performance is only given by its proper function, adoption of local market conditions, consideration of site installation processes, and the ability to allow flexibility within the design process to react faster to changes”, says Susanna. Coming back to the introduction statement with the ‘Form follows function, façade consultants should adopt the statement ‘Performance follows function’. The curtain wall performs only in its designed purposes. Functions are something that is fabricated, assembled, installed, and maintained for its purpose. To give an example think of your car or smartphone - they will only perform at their best when all of the components are functioning together and well maintained - long road trips will be enjoyed comfortably without breakdowns.

Fernandez explains, for a successful design of a curtain wall some factors are essential at the different project stages, during the design stage, the knowledge and use of the latest technologies such as parametric design BIM integration are key for the success of the project, a strong technical team is a great asset for a curtain wall design. During the fabrication stage, a well-implemented QA/QC process is completely necessary to achieve the required level of quality for a curtain wall. Finally, during the installation of the curtain wall, counting with an experienced site team and the proper management will ensure the success of the curtain wall.

THE CRITERIA TO SELECT BETWEEN STICK AND UNITISED SYSTEMS

Sum stresses on two most important criteria to choose between stick and unitised systems:

• Do the panels are highly repetitive and can be done massively in the factory? - If yes, go for using the unitised system

Sabic Headquarters, Al-Jubail, Saudi Arabia

• Does the panel need to allow big differential movement between supports? If yes, go for using the unitised system.

A decision between both is often not easy. It depends on architectural design and how complex and high a project is. The main criteria are based on the design pattern and the location of the building. In Europe, towers are often designed as unitised because the workmanship is a higher cost than in this region, says Susanna. Weather and site conditions are the main drivers. Another factor in planning is the repetitiveness of the surface. Are balcony slabs or setbacks in the building complicating the reach and the installation? Are the assumed building movements possible with a stick construction and is structural glazing a requirement? These initial questions will narrow down the options to further evaluate cost impacts and efficiency. The project's location is vital to understand whether a qualified installer and factories are at a reasonable distance to provide technical expertise.

On-site and off-site assemblies have both their advantages and disadvantages. Building changes can be accommodated within a stick system onsite that is easier than a unitised panel. Once the panel is assembled brackets and slabs have to be accurate in the designed position to receive the pre-assembled bracket while a stick profile can be adjusted. Generally, for a continuous application spanning over several floors, a unitised system is the preferred choice.

According to Fernandez, there are several considerations to take when selecting between a stick and a unitised curtain wall, the more common ones are the following:

• Budget: There is a difference in cost between Stick and unitised, this is typically reflected in low budget projects where the stick system has this advantage versus the unitise, this price difference is getting reduced by the implementation of new technologies that expedite the design and fabrication process.

• Building configuration and shape: As commented before the shape and size of a building can determine the type of curtain wall to be installed, for example, a unitised system will have much more of an advantage on a high rise building with a large level of repetition, otherwise, a stick system will be more suitable for a podium with a complex design and low level of repetition.

• Performance: There are considerably better performance and quality levels of a unitised system versus a Stick system that relies on the site workmanship for the correct installation, is expected a higher number of failures on a Stick system compared with a unitise one.

• Time constraints: For some projects, it is important to have material installed on-site as soon as possible due to time and commercial reasons, that gives an advantage to the stick system cause normally they are “by the self” and the materials can be obtained faster, on the other hand, a unitise system will help to close floor by floor much faster and allow for other parties to work in the building interior.

He adds, all these factors have to be considered and analysed during the early stages of the design to choose the most suitable solution, as changes of systems at more advanced stages normally lead to a problematic and unsuccessful project.

Unitised curtain wall panels installation sequence
Stick construction installation sequence
“A Well-Designed Curtain Wall is the One that Connects All Points on the Magic Triangle of Cost, Quality, and Time”

What are the key elements of curtain walling systems?

The curtain wall system is a non-load-bearing façade system that usually consists of a lightweight frame structure with various types of infill panels. A common curtain wall consists of aluminium frames and glass infill. Aluminummullion and transom as profiles, mainly made of alloy, have good extrudability, high-quality finish, corrosion resistance and brackets normally with structural alloys. Glazing can be thermally performance and non-performance. It can vary from monolithic, laminated, insulated units of double or triple glazing.

What are the characters of a well-designed curtain wall?

In short, a well-designed curtain wall is the one that connects all points on the magic triangle of cost, quality, and time. When I say quality, it is in terms of performance, aesthetics, and its performance or longevity against design life. There are many parameters checkboxes, which vary in priority from project to project. Depending on what extend we can tick off the checkboxes, you can call it well-designed or otherwise.

The role of glass in curtain wall systems. The role of glass in façade is a major one. Glass plays the role of functionality along with aesthetics. It is so essential so that it carries the brand identity of the development.

Glass, compared to other building materials, has the unique property of transmitting light. The majority of the buildings consider their very basic function: natural daylighting. Glass has a key role

Glass compared to other building materials has the unique property of transmitting light

in controlling climatic thermal influences. It can maintain the internal ambience comfortable for the habitat by insulating the interior from external climatic conditions which depends on various climate regions. Glass can also be used as the structure itself, as implies in the frameless type façade system. Other functions can range from being fire resistant, sound insulation, burglar resistance, bullet, and even explosion resistant.

What are the advantages of a unitised curtain wall?

In general, the effectiveness of labour is much better in the factory than on the site. This makes the unitised system as favourable one in markets where the cost of labour is high. Since the facilities and nature of control are better in the factory, the quality of delivery tends to be more suitable for the unitised curtain wall. Of course, it has added advantages of accommodating larger movements and tolerances for building movement seismic movements and slab deflections, faster

installation- specifically on the highrise towers, minimum external access requirements, etc.

What are the parameters for designing a curtain wall system for a building?

There are many parameters, which varies in priority from project to project, like budget, geographical location, performance requirement, challenges on geometry, design life, integrating aspects of quality, fabrication, logistic and installation while designing, the potential of the market to source it locally, the skill level of the team, etc.

Like I said, depending upon what extent we are able to tick off the checkboxes, you can call it well-designed or otherwise.

The role of thermal performance of curtain wall system.

Each project has unique thermal performance depending on the location, HVAC requirements, and local codes. It applies mainly to the frame,

The advantage of UCW panels: Accommodating movements, tolerances and flexibility on cold bending, etc.

glazing, and other covering materials. The proposed system shall meet each project's energy values, such as overall U-value, glazing U-value, shading coefficient, light transmission, etc. It is also important to also consider that the system shall not have thermal bridging and should resist heat or cold flow into the building.

What are the challenges associated with curtain wall systems?

I think challenges vary from project to project. There are technical challenges that we will have possibilities of finding solutions. The most time-consuming problems are what we consider as the simple ones…you know like... avoiding thermal bridges which limit due to the limitation of spaces, ensure access to the interior part of the façade to ensure proper draining… accommodation of building movements, etc.

Many times, the contractors have special teams to install the façade in the lab for testing. But they are not a part of the fabrication or installation teams on the factory and site that causes reason for the failure

At present time, emerging new materials and technologies enable the façade industry to execute complex building façade design. With the architects' constant aim to push boundaries and a higher degree of customisation (oversize panels, compound geometries), it tends to increase difficulties in acquiring materials accompanied by a capacity for production. The installation process has also become more challenging and might pose a risk on quality and performance if not planned and guided well.

What are the most common types of failures in curtain wall sections?

Failures in curtain wall sections, if you mean the profile itself, are not that usual, unless there is a significant mismatch in the structural design.

But the common mistake that we see in the curtain wall is in terms of the system; there is a disconnect between the fabrication and

installation team to the one who designed the system... be it an in-house system or a system supplier. Hence the systems are not installed as instructed in the design manuals. We have observed well-designed systems failing just because of a lack of skill in application. Often the contractors have special teams to install the façade in the lab for testing, who are well trained on curtain wall execution. But they are not a part of the fabrication or installation teams on the factory and site. This causes the reason for the failure.

Another aspect is the testing time. The façade system test is usually not given enough significance. It is quite common to have testing done either halfway through the project or almost at the end of the project. Since nobody expects to strip down the executed façade at that stage, the testing outcome goes more in the direction of a middle way.

The fusion of customised computer coding with façade technical skills can bring wonders

Tell about the latest technologies in curtain wall systems.

If you talk about curtain wall system design itself, we have reached a good level of achievement. You may see some further fine-tuning through clever adjustments of gaskets, isolators, special springs, etc. With a constrained budget, façade contractors have their ways of adjusting the system as a cost reduction measure.

Apart from that, you may see smart engineering applications to construct slim or less visible joints or larger size panels, etc. somewhere.

There are technology adaptations as we come across geometrical complex façades. The fusion of customised computer coding with façade technical skills can bring wonders. We have done many projects using these technologies to supply the engineering for façade contractors which are extended from our earlier services of consultancy.

We have recently established a specific

department within our company to cater to such projects, called a digital twin.

You can also see the current focus more on passive and active energy-saving without much addition to the cost. We have developed such technology along with our industry partners and have applied it in a few projects, and we can see more demands on that.

What are the parameters that decide the success of a curtain wall? What are the factors that escalate the performance?

To answer your second question first, we do not think there is a necessity of escalating the performance. Curtain wall design needs to be optimised to meet the performance. That’s it.

Coming back to your first question, the main parameter that decides the success or failure, as our experience goes… is the allocation of sufficient budget for the execution of the façade. A compromised cost cannot be mistaken for a competitive cost. Projects are commercially

The ACT Facade: The air is sucked into the cavity, taking out the heated air in the cavity and by this enabling an interior sunshading with an appropriate g-value

driven; pushing the suppliers beyond a certain extent due to the competition, makes them take shortcuts. In such cases, successful curtain wall execution is difficult as the prime objective of the supplier becomes their existence.

Another matter that we have seen as beneficial in executing a successful curtain wall is... assigning the responsibilities to hands who can take the project all through till the end. We have seen cases where the responsibility is given to an entity for pre-contract assignments…. almost no involvement of specialists in the contracting phase… separate responsibility on contractors and another responsibility on controlling entity at the execution stage. The success rate is high when one entity is involved during earlier stages, the contract stage, and the same entity supports the manufacturers for executing the job. In such cases, we are acting as an eye of the investor. And hence success possibilities are high.

What are the criteria to select between stick and unitised systems?

Areas to be covered - Stick System is preferred for low to medium-rise buildings with non-complex shapes and features. On the other hand, unitised is preferred for high rise where a large volume of façade is required to be installed in continuity.

With readily built-up panels, installation time is faster compare to a conventional stick system. New buildings nowadays with a high degree of complexities (multi-plane, curves, double curves) tend to be pre-fabricated rather than cut on-site basis.

Overall performance of highrise buildings is subjected to higher wind loads, extreme weather protection, building movements, etc. Unitised panels are well suited to these conditions. These panels are typically built-in quality-controlled facilities to ensure performance once installed on the buildings. While conventional stick system may experience site failure, mainly due to poor workmanship during site installations. Tolerances are mostly designed during the Unitised System development stage to adapt to the building movements once the panels are in place.

A Stick System is a more economical option suitable for the majority of low to medium-rise buildings. It is less in material cost than a unitised curtain wall system but involves more labour and more installation time. High cost involved in providing external access means for installation. Unitised System is more expensive in material cost than stick system but involves less labour and less installation time. Unitised façades

Why the Middle East is ‘Hot’ for Renson INDUSTRY SPEAKS

Frank Goudman is a Belgian engineer in civil building graduating in 1988. Ever since he has been active in the aluminium industry. In the first years of his career, he was R&D manager for Reynaers Aluminium and as Export Director for Reynaers Aluminum, he has been developing new export markets in CE Europe, Middle East, Asia & Oceania since 1994. His first partners in the Middle East date back to 2003. Since 2012 Frank Goudman has been Export Sales Director at Renson, a Belgian family-owned company with 110 years’ experience in natural ventilation, sun protection, and outdoor living. For Renson, Frank Goudman is again developing the export markets.

In a conversation with Window & Façade Magazine, Frank Goudman talked about his journey in the industry, the offerings and achievements of their company, etc. Here are the excerpts…

Could you please share the journey of Renson with our readers?

Established in 1909, Renson is a Belgian family business that produces ventilation, outdoor living and sun protection solutions. The goal of the company is to create healthy spaces. In order to achieve that, Renson focusses on smart, innovative solutions and concepts. Renson’s story in the Middle-East started 8 years ago in 2013.

At first, the main focus was on outdoor living and solar shading for the residential market. Steadily, our brand gained visibility and we quickly went from the residential market to the high-rise buildings and hotel sector; not only were they interested in our sun protection solutions, but our ventilation solutions also grabbed their attention.

In the last couple of years, Dubai and Abu Dhabi, are amongst people’s favourite holiday destinations alongside the hub of global business and the importance of the Gulf region grew exponentially. This leads to a change in demands for the people who stay in these hotels. The clients are demanding more in terms of comfort, the arrival of the COVID19 pandemic has increased awareness of ventilation being essential for limiting the spreads of contagious

air particles has grown beyond limits. AC systems are everywhere in the Middle East region, but there is one big disadvantage. Aircon systems recirculate used air. So, if a person with the coronavirus sneezes or coughs, the AC spreads the contagious aerosols around the room. However, if you combine air conditioning with ventilation, you are ‘flushing’ space with healthy outside air, then the risk of spreading is up to 10 times lower than without ventilation. Of course, that didn’t go unnoticed in the hotel, where open a window is not a option, high-rise and commercial buildings market. We have met a lot of new, potential customers who came to us because they know that we offer the tools to create indoor living spaces in a natural way, that are both comfortable and healthy to live in.

What are the products you offer? List some of the benefits of your products?

I have already mentioned Renson’s outdoor living and sun protection products, but here I would like to focus on our window vents and performance louvres. Renson has over 50 years of expertise in this field. The company’s specialisation is to develop innovative, technical louvres for all kinds of applications. For the airport in Abu Dhabi for instance we developed sand-trap louvres (468 SA). Those louvres provided the building with healthy

Fixscreen® 100EVO on windows at Black Forest Apartments, Shanghai, China

air, but at the same time avoid sand being blown inside.

Besides performance louvres, we also offer technical window vents. For high-rise buildings, we have the InvisiVent Comfort, which is a landmark product in terms of flow rate, acoustic comfort, and energy consummation. The InvisiVent allows you to ventilate a building in a controlled way.

Another window vent that I would like to mention is the FireCatch. Since the Torch Tower and the Address Hotel fire outbreak in Downtown Dubai, fire safety has become a big issue in UAE. With the Renson FireCatch window vent, we offer the best of both worlds in terms of health and safety. FireCatch guarantees a maximum supply of fresh and healthy air and assures a fire resistance of 58 minutes. This window vent prevents the fire from spreading to other rooms. With almost an hour, people have enough time to flee the scene, and firefighters can take control of the fire.

Those technical louvres and the know-how to create them is unique for Renson. Our customers know if they have an issue, that they can come to talk to us. If the solution is not part of our broad louvres range, we can go for a custom design for them. The quality standard is guaranteed by the fact that all our products are BSRIA certified.

25th South Residence, Mumbai, India
Firecatch

Name some of the recent projects globally in which your products have been used. Please provide the details.

We have started in the outdoor living and sun protection market, we did projects, like the Retreat Palm, the IOI One and Only on the Palm Jumeirah, the Etihad Museum, Blue Water Islands, as well as countless residential realisations on The Palm, Al Barari, Arabian Ranches, etc.

Concerning the ventilation business, I have already mentioned the Abu Dhabi Airport project, for which we have developed customised sand-trap louvres. Another landmark project worth mentioning is the Plot 16 project in Moscow. This is a 300m high residential high-rise building, in which we installed THL100V louvres, to supply healthy air. From the outside, the louvres are practically invisible. In order to accomplish that, we have developed a special, customised perforated window profile.

Panorama City in Bratislava (SK) is another project that I am proud of. Together with the University of Bratislava, we developed a customised window vent (the T100V and AK80). The option to be able to close the ventilation channel from the inside was based on a sliding grille that was reduplicated to ensure it closes well regardless of whether there is under-or over-pressure. This adequate closure was necessary due to the significant height at which the window ventilation is located. The façade caps protect the window vent from incoming water.

Right now, in Mumbai, India, we are installing our window ventilation in the 25th South Residence, which is also a high-rise building with high-end apartments.

One and Only, Dubai, UAE
Panorama, Bratislava, Slovakia

Could you please tell our readers about your manufacturing facility and capacity? What standards and regulations do you follow?

We have a high-quality production standard. That is why we keep the manufacturing of our products in Belgium. In this way, we can keep thorough quality control, which results in highquality products. Certain product lines such as performances louvres, our sun-protection screens the Fixscreen are available for local assembly based on the known Renson quality. In this way, we can win in terms of logistics and service. For instance, the Renson Fixscreen is now being assembled in Dubai in cooperation with our partner Sater.

What are the major challenges and opportunities for your business in the Middle East?

As I mentioned before in this interview, and I know that it may sound absurd at first glance, but COVID-19 has truly expanded the possibilities of our ventilation products in the Middle East. It has truly brought new awareness towards the need for ventilation. We expect that this will grow even further.

Another hot topic in the region is saving energy. Our ventilation and sun protection solutions combine both. We create healthy environments, but without losing sight of the energy aspect.

By using combined natural techniques, such as ventilation and external sun protection, not only do we cut down on energy consumption, we take it one step further by actually avoiding overheating. We work in the same vein as our ancestors used to do with the use of wind towers and “Mashrabiya”. Renson advocates natural techniques to avoid overheating. Air-conditioning should only be used to eliminate excess heat. This focus on natural solutions plays a central role in our corporate philosophy.

What are your company’s plans for the near future? Do you have any expansion plans?

Right now, we have a growing number of local sales partners in Qatar, Bahrain, UAE, Kuwait and Saudi-Arabia, and for two years, we have a sales representative, who is located in Dubai. That is my colleague Mrs. Jamila Bouhsine. If the market evolves in the way we expect, then a regional office is one of the possibilities. We are very curious about what the Middle East has in store for us. It is a very promising market, and we are convinced that a lot of opportunities are coming in our direction.

Panorama, Bratislava, Slovakia
Residential villa, Dubai, UAE

FACE TO FACE

“RSP is all about Re-Imagining Design and Introducing New Ways for People to Enjoy Commonly Used Spaces”

About the Author:

Ralf Steinhauer has over 18 years of professional experience in Asia, Australia, the Middle East, and Europe and showcases extensive knowledge spanning from conceptual design through to project delivery. As an accomplished and inspiring leader, he has led his teams to the successful completion of a series of significant projects of varying sizes with broad experience in lifestyle, hospitality, educational and commercial projects. He asserts an all-rounded position that can only be conditioned by a well-balanced program of commercial practice, academia, and building. His continual dedication to ongoing knowledge, research, and the challenge of design methodologies is channeled via his commitment to lecturing at the departments of architecture at the Canadian University in Dubai. Ralf has repeatedly been included in the Top 40 Most Powerful Architects of the Middle East.

RSP is a well-known name in the architecture field. What makes you one of the leaders in the field? What is your key success mantra?

RSP has been successfully in operation for 65 years and managed to complete over 2,500 projects worldwide. When we set up the design studio in 2009 we brought with us the expertise, skill-set, and creativity of the RSP legacy combined with our talented team on the ground that adds the local know-how and individual talent. RSP has been a global leader in educational, hospitality, mixed-use, and master planning projects for decades thanks to the vast in-house talent pool and exceptional clients that continuously push the boundaries and help us to excel. Our mantra is very simple - 1. Understand the client brief 2. Produce a world-class design on time and budget 3. Deliver a sustainable and valueadding project to our client’s portfolio.

What are the milestones you have achieved to date?

We just celebrated 10 years in the MENA region with our office in Dubai. We successfully handed over projects like Al Rahji Bank

HQ in Riyadh, Khalifa University in Abu Dhabi, and Nakheel Mall in Dubai. RSP won numerous company and individual awards in the past few years recognising our contribution to the design and construction industry in the region.

What inspired you to become an architect?

My parents both are architects and my father successfully ran his office for over 35 years before retiring. I have early memories of doing homework in his office from where I observed his passion, his creativeness, and his eye for detail. I must have been 10 when I realised that this is what I want to do in my life- to continue the legacy of Steinhauer architects.

RSP has won many awards for its work. Could you please name some of them? Which project is close to your heart?

RSP has been fortunate to be recognised internationally globally for our projects abroad highlighting our efforts in sustainability and innovative buildings.

Locally, we are very proud to annually received

awards for projects and individuals in the company including me. In 2019 I was named Executive of the Year by MEC Awards and in the same year, we won Architectural Firm of the Year. In 2020, the monumental project Hindu Mandir bagged Project of the Year under Retail &Public Facilities category in MEC Awards and Concept of the Year for CID Awards.

Khalifa University was my first project at RSP and until today it is very close to my heart. I saw the project from design to completion and you get very attached through the process and the hard work you put in. It was a truly collaborative effort and success thanks to the university, our client, our design team, and later the contractor. Even years later when you walk down the internal spine you feel a sense of pride and happiness seeing it build and in use.

Could you please talk about your projects featuring very innovative and different kinds of façade and fenestration designs (in the Middle East)?

I was project director at the award-winning

Khalifa University where we opted for a double skin façade on the external skin facing the street to minimise the heat gain and help reduce the glare and the cooling load. A perforated veil façade acts as the outer skin with a gap for maintenance and cleaning on top of the curtain wall system. At one stage we looked at a kinetic façade responding to the sun path but it was not implemented due to budget constraints.

We have explored the best of the available façade solutions on the Nakheel Mall and Palm Tower projects in Dubai. Be it suspended glass facades spanning across 25 meters below the Monorail, to digital LED screen envelopes to low reflective cold-bent glass panels for the rooftop sky restaurant. This landmark project stands out due to its cutting-edge façade design.

For the Hindu Mandir, as the project is a building of cultural and spiritual significance, the façade design and material selection was a unique and

careful process. Metals such as gold, silver, copper, bronze, iron, and other alloys are traditionally used for different purposes such as the bells, flooring, the idols, and even the façade of the traditional temples. The reasoning behind the material selection was not only for the aesthetic or practicality but because it is believed that these metals absorb the earth’s magnetic waves and radiates them to the surroundings.

Therefore, we have used a bronze metal alloy material to reflect the cultural aspects of the project. This bronze metal alloy can be seen in two large portals which frame a view of the temple. This material is also integrated into a number of bronze Jalis throughout the façade design.

The patterns of the Jali are traditionally used throughout the construction of temples. The decorative screen in Hindu architecture forms a

perforated stone or latticed screen, usually with an ornamental pattern constructed through the use of calligraphy and geometry. Functionally, the jali helps in lowering the temperature by compressing the air through the holes. In the Mandir project bronze Jali walls, provided security and privacy while toying with light and shadow.

The Sarasvati River played an important role in Hinduism and is depicted throughout our project as a river of light that was created through the use of backlit stone. This key design feature creates a river of light that moves through the landscape and into the main building. The river of light forms part of the spiritual story of the temple.

How do you go about choosing the material of the façade and cladding?

The façade design is firstly influenced by the location, the climate, and building use. Once the

general massing is agreed we then look at the fenestration and the outer skin material. For us, sustainability plays a very important role so we want to ensure the materials chosen to fall under the highest category. Furthermore, safety and fire protection are elemental to façade design and essential to choosing the right product. Cost and availability in the market is another contributing factor but foremost as designers we are interested in the performance and the aesthetics of the façade.

According to you, where is the architectural segment is heading in the Middle East?

The pandemic has led to collective consciousness about how people interact and, as a result, design especially public spaces. Fortunately, our core belief in RSP has always been about reimagining design and introducing new ways for people to enjoy commonly used spaces.

However, the challenge was not only for existing and future designs but the construction industry

as a whole. We in RSP are hopeful and positive that there will be a recovery of the market this year. In particular, the mega-scale projects in KSA will help to restart the market and revive confidence for 2021 and the years ahead. Nevertheless, we are taking the opportunity to revisit our modus operandi in terms of technology, efficiency, and quality.

What are the major challenges in the architectural segment in the Middle East?

The global pandemic of 2020 is by far the most challenging circumstance that the entire design and construction industry is facing at the moment. We hope that the impact will be shorter and less severe than the global financial crisis of 2008.

What opportunities do you see for the architects in the region?

Visionary leaders in the region are still driving amazing opportunities for architectural companies in the MENA region. KSA is the main driver for sure but there will be opportunities as well in the UAE, Qatar, Kuwait, Bahrain, Oman, and also East/North Africa and our latest trading partner Israel.

What are your views on the future façade and fenestration technologies as well as materials?

Prefabricated and 3D printed materials/modules are already changing the aesthetic opportunities to express designers’ intent and bringing it to reality. Parametric design technology changed the forms, the buildability, and affordability of free forms. 3D printed modules will take this to another level and take the industry to a new limitless era in terms of design.

What is your advice for young and upcoming architects?

Never lose your dream and even in challenging times like right now use the time to enhance your skill sets and design talent. Perhaps utilise this time to further your education and obtain a master’s degree. Remember to always look beyond your drawing table. You must view a project holistically and once you define the massing and internal planning, spend enough time to study the façade design and remember to factor in the latest trends, technical developments, and newest products.

PROJECT WATCH

Symbolism through Diversity “Reflecting Cultures on a Bigger Canvas”

Bassel Omara

Lead Design Architect/ BIM Manager, Dorsch Gruppe - Middle East

About the Authors:

Bassel Omara is an award-winning architect, designer, and BIM Manager with global experience especially in North Africa and the Middle East. Today, his name is engraved within many of the region’s successful architectural works in addition to being nominated as Young Architect of the Year 2015 & 2016 and nominated as Architect of the Year 2019 over the Middle East region, winning many awards & honours nationally and internationally.

Ahmed Aglan Design Architect, Dorsch GruppeMiddle East

Ahmed Aglan is an accomplished design architect with over 4 years of experience in the UAE. He won the International Desert House competition 2019 for his project “The Tube House”, featured at Dubai’s RIBA Architecture Festival 2020.

Haridas Narvekar

Design Architect, Dorsch GruppeMiddle East

Haridas Narvekar is an architect, designer with global experience in India and the Middle East. He passed from Manipal University in 2015 with a Bachelor of Architecture. He has been working for more than 5 years with Middle East’s leading Engineering Consultancy and his portfolio includes a wide range of projects of hospitality, residential & commercial developments in the region.

Ixara Valerie T. Tapales

Design Architect, Dorsch GruppeMiddle East

Ixara Valerie T. Tapales is a passionate and innovative architect with over 5 years of experience in the Middle East. She received her Bachelor’s degree in Architecture from the University of San Agustin in 2015. Throughout her professional career, she has been working as a design architect in one of the leading and reputable engineering consultants.

Lycée Libanais Francophone Privé (LLFP) is a Lebanese school with a French system located in Dubai that combines different cultures in one place. Throughout human existence, symbols and texts inscribed on walls were the only ways of passing information to future generations. The project represents this act of teaching through a typographical screen on the educational blocks. This imitates the act of modern-day whiteboard education. The components of the screen constitute the basic unit of learning - “Alphabets”, “Numbers”, and “Symbols” of three countries, representing and reflecting the diversity in the cultures within the region. Moreover, it signifies the tectonic expression of architecture which in turn facilitates the educational mission of LLFP.

The school also is inspired by the strategic vision of Dubai’s climate-friendly and sustainable development. It inspires space users to learn while practicing every day-to-day movement of life.

Following the principles of French education, design development started by segregating the site between the age groups that led to the separation of building blocks. To ease circulation between the blocks, connection bridges were arranged on the first level which facilitated the movement of the staff members whose spaces were predominantly located on the first floor. These connection bridges, while easing the movement for both children and the teachers, break the monotony and provide interesting views with well lit up corridors. The spaces also synthesise natural light, control heat gain and provide natural ventilation into a campus organisation.

The centrally located open spaces in the school provide visual connections and opportunities for surveillance by the teachers on the students.

Giving a clean passage that compliments the purpose of the focal spine while overwhelming through the open spacious field.

Concrete exterior walls on the north and south elevations of the site are eminently treated to admit light, provide natural ventilation and frame views. An elegant curtain wall on the façade will allow a visual connection to the exterior of the school. Insulated walls, insulated roofs, use of efficient energy-rated equipment, efficient material selection, careful choice of landscape, reduced flow fixtures are some of the many salient features that add the project to the list of a few of the platinum rated school buildings in Dubai.

One of the fascinating features of the interior is using different colours that apply as the main design element. Shades of purple colour for the Kindergarten (Cycle 1) stimulate the part of the brain related to creativity and has a calming effect at the same time. Colours of yellow and orange are used for Cycle 2&3 to radiate warmth and happiness. This combination represents enthusiasm, energy, fascination, determination, attraction, encouragement, and stimulation. Shades of green for Cycle 4 provide positivity and stimulate thoughts of balance, growth, and restoration as it brings the refreshing sense of the natural world to mind. It also adds intensity, elegance and helps stimulate focus and creativity. Blue tones for Cycle 5 call to mind feelings of calmness or serenity. It is often described as peaceful, tranquil, secure, and orderly. It is great for evoking confidence and is associated with admirable qualities such as loyalty, trust, peace, and success.

Today, Lycée Libanais Francophone Privé (LLFP) is recognised by the Ministry of Education and France as one of the magnificent school designs

Cycle 4’s interior with the shades of green
Cycle 5’s interior with the shades of blue

that reflects the French and Lebanese consortium. Furthermore, proudly it has won the Sustainable Project of the Year at Middle East Consultant Awards 2020.

CONCEPT PHILOSOPHY

A school is an institution designed to provide learning spaces and a learning environment for the teaching of students (or “pupils”) under the direction of teachers.

The United Arab Emirates has a long history as an Arab State, and whilst it encompasses a mix of cultures and a diverse population, it is very international. The internationalisation here is positive and this was the basis of our inspiration.

The building takes into account that student’s behaviour and thinking are shaped by the physical environment they are in. The architecture has a significant impact on the student’s daily learning processes and is therefore designed for modern principles.

The design took the basic unit of learning “Alphabets & Numbers” which represent the phonemes of any spoken language it is used to write. The building façade has been provided with a screen, an iconic element that sets it apart from surrounding

buildings. The screen combines French, Arabic, English, Latin, numbers, symbols, and landmarks with variations in sizes and orientation. Moreover, these screens are strategically placed to provide shade and reduce solar heat gain on the buildings.

Simple masses and building blocks create visual harmony with the open spaces between masses yet segregating different ages of the students. The school accommodated all the functions of a modern international school and creates a safe environment for children to grow and learn.

SUSTAINABILITY

The school design embraced sustainability concepts and features that contributed to a considerable 37.25% performance enhancement in comparison to the baseline conditions. LLFP achieves Safat Platinum under the Al Safat Rating system. Featuring architectural screen in addition to other shading strategies such as strategic positioning of openings and campus-style setting of the building contributes to a significant 25% solar heat gain.

One of the most important aspects is that the design for the school understands the effect of seeking benefits from building orientation in the favourable solar direction. Solar orientation

Cycle 2&3’s interior with the shades of yellow & orange

reduces energy consumption in buildings through passive or active systems. Building orientation has been considered in a way that comforts the students, visitors, and other occupants. The predominant amount of glazing is placed in a direction between East and Northwest, i.e., at 155 degrees starting from East.

Dubai, being one of the emirates in the country with the 7th most globally competitive economy, is robustly moving towards sustainable and green initiatives. LLFP considered eco-elements such as - the use of Green Vehicles, which are in favour of zero carbon emissions, adaptation of native local species in the landscape contributing to

Screen module reflecting 3 different culture identities
The effect of the external screen on the interior light/heat gain

immediate and long term ecosystem, choice of paving material, and having shade on the paved surfaces to reduce the heat island effect on the site, the use of solar panels and solar water heating systems and LED lights for exterior and interior lights.

This prestigious development supports and reflects the adaptation of the goals of Dubai’s green building

Fact File

Project Name: LLFP Meydan School

Location: District 11, Dubai, UAE

Client: Lycée Libanais Francophone Privé (LLFP)

Company: Dorsch Gruppe - Middle East

Lead Design Architect: Bassel Omara

Design Team: Ahmed Aglan, Haridas Narvikar, Ixara Valerie Tapales

Other Consultants: N/A

Materials used for facade & fenestration: Concrete Blocks, Powdercoated Aluminum Sheet, DoubleGlazing Panels, Aluminium Fins, Plaster & Paint, Stone Cladding Commencement Date & Completion

Date: Construction Feb 2020 – Aug 2021

projects in reducing the carbon footprint, improve performance, rationalise energy consumption as a whole and represent a successful model of a sustainable economy. The design focuses on the proposed matrix of attaining Total Sustainable Solution (TSS). The intention is to materialise the key performance mandates for the buildings and site through a rigorous design approach which stems from fundamental considerations associated with climate moving on to passive and active strategies.

SCREEN SIMULATION

The main concept behind the screen is to reflect and symbolise the culture of the community where the school stand-in through a sustainable perspective. Dubai is a multicultural city with an Arabic taste where many residents tend to search for warm connections to their homes.

The front façade resembles a big whiteboard where messages can be written to celebrate certain occasions. With the option to change the 1 x 1m panel, letters can be arranged to present words or greetings to the public. This gives a dynamic feeling to the pedestrians in a joyful way. Since LLFP is a Lebanese school with a French education system in Arabic countries, what is more, convenient than celebrating the three dates important to Lebanon, France, and UAE?

LLFP’s façade tells the story and celebrates with the public through the front main elevation.

Screen simulation through various occasions

PRODUCT WATCH

Yale Launches Linus®, a Smart Lock with the Perfect Balance of Form and Function

The new Linus® Smart Lock from Yale allows its users to lock and unlock their door - no matter where they are. Powered by advanced software and the intuitive Yale Access mobile app, Linus® allows for keyless entry and gives its users the ability to see who comes and when, grant virtual guest keys, and check whether the door is open or closed.

The Linus® Smart Lock will make any door smart. Featuring state-of-the-art technology, the smart lock connects with leading smart home systems, voice assistants, and home share platforms for effortless door control and access management.

Recognized for its sleek, intelligent design and best-in-class materials at the prestigious Red Dot Awards, The European Product Design Awards, and The Ambient Awards at CES Las Vegas earlier in 2020, Linus® is a perfect starting point to the stylish and smart home of today.

“What truly sets Linus® apart from other smart locks on the market is 180 years of security expertise and innovation it has built-in. As well as its stunning presence, thanks to the perfect balance of form and

function”, says Kate Clark, Managing Director Yale EMEA.

“This means that consumers can enjoy true peace of mind knowing that they are using the latest security solution with brand new functionalities that will protect their home whilst fitting into any style and décor.

Designed with a stunning brushed metal finish, and in the choice of silver or black, the smart lock delivers added functionalities and ease of use, while still fitting stylish and modern homes.

Linus® can add both function and style to every house or apartment - a front door. For example, the auto-lock functionality can automatically lock the door when you leave for the day, either immediately after closing or after a set amount of time via the Yale Access mobile app. When you return home and walk up to your door, auto-lock will unlock it again thanks to geo-fencing, eliminating the need to fumble around with keys.

For more enquiries, email: yaleme@assaabloy.com

Linus® can add both function and style to every house or apartment - a front door
Yale Linus® black & silver units + bridge

Azizi Developments Appoints Studio N to Incorporate Façade Lighting at Creek Views

Azizi Developments has appointed Studio N - a lighting consultant, to incorporate façade lighting to enhance the architecture of Creek View I. The artistic lighting impression of the mixed-use landmark development will be strung from Al Khail Road and Oud Metha Road.

The lighting elements is expected to highlight the elevation and complement the appearance of Creek Views’ design. The elements will provide an unconventional, extraordinary glow to the building, while the subtle and minimalistic shine is expected

to give the frontage a touch of refined elegance.

Dubai’s Creek Views represents the city’s transition from a traditional, iconic past to a contemporary, reinvented future. Creek Views will feature an allinclusive health club, comprising a swimming pool, a fully equipped gym, a sauna, a steam room, as well as a serene outdoor yoga space.

Located in Dubai Healthcare City, Creek Views boasts panoramic views of the Dubai Creek and the Downtown Dubai skyline.

Foster + Partners Completes the Work on House of Wisdom Library in Sharjah, UAE

Foster + Partner’s House of Wisdom, a new library and cultural hub for the city of Sharjah in the United Arab Emirates, is now open for visitors.

The Sharjah Investment and Development Authority commissioned the building in part because UNESCO had selected the city to be the 2019 World Book Capital, an annual international festival promoting books and literacy that first kicked off in Madrid in 2001. (The 2021 title belongs to Tbilisi, Georgia, while Guadalajara, Mexico, will enjoy the bibliophilic honor next year.)

The project was first formally unveiled in April 2019 during the midst of Sharjah’s World Book Capital festivities and was slated for completion in 2020.

Given its arid location, the nearly 140,000-squarefoot concrete and steel building features plenty of passive cooling features. Inside, moveable bamboo screens can be opened up by visitors to maintain visual access to the garden or shut closed to

minimize glare. On the exterior, an almost 50-footwide cantilevered overhanging roof shields the façade from the hot sun, while perforated aluminum screens filter out light, even towards dusk. To create large, column-free floorplates, the architects designed four cores to support the roof, and two of the four cores contain staircases between the first and second floors.

Turn static files into dynamic content formats.

Create a flipbook
Issuu converts static files into: digital portfolios, online yearbooks, online catalogs, digital photo albums and more. Sign up and create your flipbook.