ETERNAL

Page 1


ARQUITECTA ANGÉLICA M. VILLACÍS

ETERNAL

Centro de reposo para el adulto mayor

La propuesta se centra en el diseño arquitectónico de un centro de reposo para adultos mayores en la parroquia Pishilata en Ambato, Ecuador, en respuesta al envejecimiento poblacional.

El proyecto tiene como objetivo crear espacios específicos para personas mayores de 60 años, aplicando principios de accesibilidad cognitiva, accesibilidad universal y bioclimatismo adaptativo, transformando el centro en un lugar significativo para la convivencia y la autoidentificación de los residentes.

Ecuador
Tungurahua
Ambato
Pishilata

CONCEPTUALIZACIÓN

El concepto se centra en el adulto mayor, quien es el usuario principal. El enfoque se desarrolla desde su ingreso al proyecto, donde se implementa un recorrido lineal diseñado para favorecer la movilidad articular y muscular.

PARTIDO URBANO - ARQUITECTÓNICO

Puesta del sol 18:26

Salida del sol 06:14

Trayecto del sol

Proyección trayecto solar

Orientación solar optima

Dirección del viento NO

Proyección de la dirección del viento

Circulación vehicular doble sentido

Posible Vía

Flujo vehicular bueno: Vía principal y secundarias

Topografía: superficie relativamente plana

Ejes principales (más notorios)

Eje prolongado

ESTRATEGIAS

Cruce

de ejes

Proyección de la dirección del viento

Proyección del trayecto solar

Eje vial

Orientación solar optima

Selección

de ejes

Proyección de la dirección del viento

Orientación solar optima

Creación de malla

Proyección de la dirección del viento Bioclimatismo

Orientación solar optima Malla

Diseño centrado en el usuario

Módulo: 0.6m x 0.6m Área: 0.36m2

OPERACIONES DE DISEÑO

ZONIFICACIÓN

RELACIONES ESPACIALES

APLICACIÓN DE ESTRATEGIAS

Mandarina Buganbilla Manzana Mollé

PLANOS

Recepción 4. Servicios higiénicos

4.1. S.h. Hombres 4.2. S.h. Mujeres 4.3. S.h. Personas con movilidad reducida 4.4. Ducha especial 4.5. S.h. del Personal

Working/Meeting al aire libre

Consultorio médico

Punto de pausa y Estación de enfermeros

Área de psicología

Área de fisioterapia

Taller ocupacional

Cuarto hidroneumático

Cuarto de máquinas

Cisterna

eléctrico

de pausa

25.Frigorífico 26. Alacena 27. Área de costura 28.Lavandería 29. Acceso secundario y de emergencia

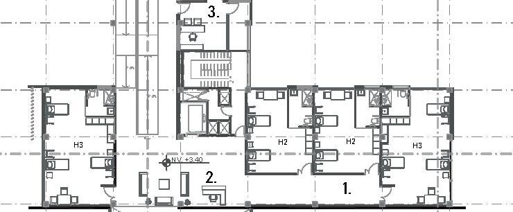
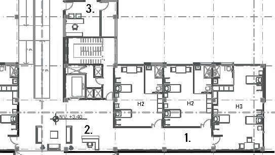
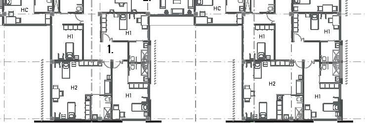
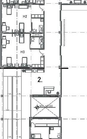
30. Montacargas 31.Habitaciones

HC Habitación cuidador H1 Habitación simple H2 Habitación 2 personas

32.Zonas de relajación y encuen

33.Área de ejercicios de bajo impacto

34.Área de ejercicios en grupo 35.Área de aprovisionamiento

0 m 10 m

0 m 10 m

0 m 10 m

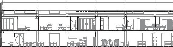
S eccione s

Planta Alta - NV. + 3.40 m

Fachada frontal

Fachada lateral drecha

Fachada lateral izquierda

Fachada posterior

Turn static files into dynamic content formats.

Create a flipbook
Issuu converts static files into: digital portfolios, online yearbooks, online catalogs, digital photo albums and more. Sign up and create your flipbook.