ARCHITECTURAL PORTFOLIO

Page 1


PORTFOLIO ARCHITECTURAL

Architect
ANGÉLICA M. VILLACÍS

¡Hi!

I’m Angélica Michelle Villacís Pérez, an architect graduated from the Technical University of Ambato. I’m 24 years old and currently live in Ambato city. I consider myself as a proactive and responsible person, who enjoys teamwork and sees challenges as opportunities to get the best out of myself.

I love self-taught learning, which has allowed me to constantly update and expand my knowledge. I have a great appreciation for hand drawing and a genuine interest in graphic representation, in 2D and 3D, which has led me to explore various digital tools with facility.

I am always willing to step out of my comfort zone, looking for new challenges that inspire me and contribute to my personal and professional growth.

+593 984374447

miangel1610@gmail.com

@a.villacís_arq.uta

Ambato, Ecuador

EDUCATION

Bachelor of Science

Rumiñahui Educational Unit 2018

Arquitecture

Technical University of Ambato 2024

WORK EXPERIENCE

Pre-professional internships

03/2022 - 05/2022

2D and 3D graphical representation of architectural spaces

NOVA MOBILIARIOS & IMPORTACIONES

Pre-professional internships

10/2022 - 01/2023

Architectural design and 2D and 3D graphic representation

NOVA MOBILIARIOS & IMPORTACIONES

LANGUAGES

Spanish: Native

English: C1 + Expertise

French: A2

INTERESTS

Interiordesignand昀椀nearts

3D modeling and visualization

SKILLS

TECHNICAL SKILLS

Software

Revit Illustrator

Archicad Indesign

Sketchup Of昀椀ce

V-ray Enscape

ArcGIS Pro Auto CAD Photoshop

Hand drawing

SOFT SKILLS

Communication

Creativity

Responsibility

Multitasking

Leadership

Group work

Respect

ETERNAL

Senior care and living center

BIRDIE

High-density building

ECOVIBE

Agro-tourism resort in El Triunfo - Patate

INTERIOR DESIGN

Children’s bedroom

Kitchen + breakfast nook

FURNITURE DESIGN

Walk-in closet

Kitchen furniture

Senior care and living center

ETERNAL

Senior care and living center

The proposal focuses on the architectural design of a rest center for older adults in the parish of Pishilata in Ambato, Ecuador, in response to the aging population.

The project aims to create speci昀椀c spaces for people over 60 years of age, applying principles of cognitive and universal accessibility as well as adaptive bioclimatism, transforming the center into a meaningful place for coexistence and self-identi昀椀cationoftheresidents.

Ecuador Tungurahua

Ambato
Pishilata
Pishilata Parish Plots Intervention lot

CONCEPTUALIZATION

The concept focuses on the elderly, who are the main users. The approach is developed from their entrytotheproject,where a linear route designed to promote joint and muscle mobility is implemented.

URBAN - ARCHITECTURAL STRATEGIES

Sunset 18:26

Sunrise 06:14

Solar path

Solar path projection

Optimal solar orientation

Wind direction NW

Wind direction projection

Two-way vehicular circulation

Possible pathway

Good vehicular flow: Main and secondary roads

Topography: relatively flat surface

Main axis (the most notorious)

Prolonged shaft

ADOPTED STRATEGIES

Axis crossover

Wind direction projection

Solar path projection

Road axis

Optimal solar orientation

Axis selection

Wind direction projection

Optimal solar orientation

Grid creation

Wind direction projection

Optimal solar orientation

Grid

IMPLEMENTATION OF STRATEGIES

LOW E double-pane glass on Northeast,
Heavy curtains that help
DoublepaneclearglassonNortheastfacade

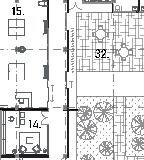
ARCHITECTURAL PLANS

Leyenda

1.Acceso principal

2.Estacionamiento

3.Recepción

4.Servicios higiénicos

4.1.S.h. Hombres

4.2.S.h. Mujeres

4.3.S.h. Personas con movilidad reducida

4.4.Ducha especial

4.5.S.h. del Personal

5.Sala de espera

6.Archivo

7.Administración médica

8.Administración financiera

9.Oficina general

10.Sala de reuniones

11.Working/Meeting al aire libre

12.Consultorio médico

13.Punto de pausa y Estación de enfermeros

14.Área de psicología

15.Área de fisioterapia

16.Taller ocupacional

17.Cuarto hidroneumático

18.Cuarto de máquinas

19.Cisterna

20.Cuarto eléctrico

21.Bodega

22.Punto de pausa

23.Comedor

24.Cocina

25.Frigorífico

26.Alacena

27.Área de costura

28.Lavandería

29.Acceso secundario y de emergencia

30.Montacargas

31.Habitaciones

HC Habitación cuidador

H1 Habitación simple H2 Habitación 2 personas

32.Zonas de relajación y encuen

33.Área de ejercicios de bajo impacto

34.Área de ejercicios en grupo

35.Área de aprovisionamiento

0 m10 m

0 m10 m

0 m10 m

Leyenda

1.Habitaciones

HC Habitación cuidador

H1 Habitación simple

H2 Habitación 2 personas

H3 Habitación 3 personas

2.Punto de pausa y estación d enfermeros

3.Consultorio médico

4.Punto de pausa

5.Sala de Tv

6.Montacargas

7.Zona de relajación y encuentro

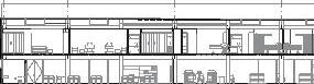
Fachada frontal

Front facade

Fachada lateral drecha

Right side facade

Fachada lateral izquierda

Left side facade

Rear facade

Fachada posterior

BIRDIE

High-density building

BIRDIE

High-density building

The project is proposed as an essential tool to promote the formation and growth of local businesses, thus encouraging the development of commercial activities and the promotion of the region’s typical gastronomy. In addition, the proposal considers, during the development of the building design, the inclusion of housing adapted for couples without children as well as for those with children or pets.

URBAN DIAGNOSIS - ANDIGLATA

Problems, causes and effects related to natural conditions, infrastructure and land use were identi昀椀ed. This analysis determined that there are a limited numberofvacantlots,insuf昀椀cientfacilities, and the development of low-rise buildings is concentrated in the lower areas of the topography.

AREA OF INTERVENTION

VEHICULAR FLOWS

The analysis of the roads reveals that the level of vehicular 昀氀ow is low, since most of the streets are secondary. In addition, the width of the sidewalks facilitates comfortable pedestrian circulation.

ACTIVITIES AND GAPS

There is a limited amount of physical gaps evidenced by the presence of disused and abandoned buildings. In addition, several recreational facilities are not used frequently, since the activities that take place there are usually limited to special events. Also, some 昀椀elds and parks lack adequate maintenance.

LOT SELECTION

Theselectionofthesiteisbasedonitscorner location, which improves the pro昀椀tability of the project by providing access to two secondary roads. In addition, the site stands out for its spaciousness on two of its fronts and for a slope that has been taken advantage of in the design of the project.

URBAN - ARCHITECTURAL STRATEGIES

Two-way vehicular circulation

As they are secondary roads, there is not much vehicular transit.

Possible way

Good vehicular flow

Secondary roads

Public space : Roads and sidewalks

Wind direction

Wind direction projection

Attractive natural visuals (view of the city and the Tungurahua volcano)

Topography - Terrain Slope

The topography of the terrain will help to achieve variation between the heights of the project and will benefit the perception of the visuals. 5m

ADOPTED STRATEGIES

Axis in relation to terrain tangent Axis crossover

Wind direction projection

Solar path projection

Main axes (the most notorious)

Axis selection

Main axes (the most notorious)

Auxiliary axis to obtain angles at 90 Axis in relation to terrain tangent

18:13

06:08

Solar path

Solar path projection

Main axes (the most notorious)

Axis in relation to terrain tangent

Creation of the grid of 5.4 m2 x 5.4 m2

Auxiliary axis to obtain angles at 90 Axis in relation to terrain tangent

Main axes (the most notorious)

to the city Road to the mountain

ZONIFICATION

ARCHITECTURAL

PLANS

LASFRUTAS

Residential zone

Communal zone

Commercial zone

LASMORAS

LASMORAS

SECCIÓN A'-A'
A’-A’
B’-B’

Front facade

Rear facade

FACHADA LATERAL DERECHA

Right side facade

Left side facade

FACHADA LATERAL IZQUIERDA

ECOVIBE

Agro - tourism resort

El triunfo - Patate

The project aims to solve the shortage of spaces and infrastructure needed to promote tourism in the parish of El Triunfo. This agricultural and livestock farming locality promotes activities such as environmentalcareandtourism,supported by adequate mobility and access to basic services that contribute to the quality of life of its population. For its development, factors such as climate, materiality and topography were analyzed; in addition, the endemic vegetation was studied to design a landscape within the limits of the land and the requirements for a mass plan with the essential spaces for the resort were de昀椀ned.

DEVELOPMENT

-User and environment needs

-Current survey of the space through a site analysis

-Compile site information to create strategies and design criteria to meet the needs of the area.

-To carry out a master plan and its possible zoning, taking into account the topography of the site.

-To elaborate plans, modeling, renderings and virtual tour that allows to visualize the results of the project.

Geographical location

TOPOGRAPHIC ANALYSIS

DEVELOPMENT OF THE PROJECT

PLATFORM 3

Potentialities:

• The topography provides greater control over the views and the space

• The distance from the avenue fosters a higher degree of privacy for its users.

PLATFORM 2

Potentialities:

• It is currently the area with the best qualities for agricultural activities.

PLATFORM 1

Potentialities:

• It has the most regular topography and the gentlest slope

• Its connection with the road, makes the implementation of more social areas more feasible.

• The regularity of the topography facilitates activities related to farm animals.

INTERIOR DESIGN

Children’s bedroom

INTERIOR DESIGN

Kitchen + breakfast nook

FURNITURE DESIGN Walk-in closet

¡Thank you!

Turn static files into dynamic content formats.

Create a flipbook
Issuu converts static files into: digital portfolios, online yearbooks, online catalogs, digital photo albums and more. Sign up and create your flipbook.