Dissertation_Beilei Yao

Page 1


PERPETUAL FLUX

Rethinking Prototypes of Collective Living for Migrant Communities in Chongqing

Flux, like endless bloodstreams, nourishes the intricate whole. People dwell, generations ebb and flow— spaces breathe, architecture pulses, shaped by perpetual flux......

PERPETUAL FLUX

Rethinking Prototypes of Collective Living for Migrant Communities in Chongqing

Beilei Yao

Architectural Association

MPhil in Architecture and Urban Design - Projective Cities

2023/2025

Cover sheet for submission 2024-2025

Programme: Projective Cities, Taught MPhil in Architecture and Urban Design

Name: Beilei Yao

Submission title: Perpetual Flux: Rethinking Prototypes of Collective Living for Migrant Communities in Chongqing

Course title: Dissertation

Course tutors: Platon lssaias, Hamed Khosravi, Anna Font Vacas

Declaration:

"I certiy that this piece of work is entirely mylour own and that any quotation or paraphrase from the published or unpublshed work ofothers is duly acknowledged."

Signature of Student:

Date: 21nd of March 2025

Dissertation submitted in partial fulfilment of the requirements of Taught Master of Philosophy in Architecture and Urban Design - Projective Cities

Table of Contents

Abstract

Introduction

Aims and Objectives

Research Questions

Chapter 1 Territorial Exodus

1.1 The Flux Corridor

1.2 The History of Exodus

1.3 The Three Gorges Resettlement Project Conclusion

Chapter 2 From Migrant Communities to Flux Society

2.1 Migrant Society and Migrant Community

2.2 Flux Society as a Context

2.3 The Dominant Existing Housing Typologies

Conclusion

Chapter 3 Flooded Towns and Lost Prototypes

3.1 Flooded Town

3.2 Front-Shop Back-House

3.3 Stilt House

Conclusion

Chapter 4 Design Strategies

4.1 Design Position and Methodology

4.2 Act 1: Living within the Tower

4.3 Act 2: Living within the Street

Bibliorgraphy

List of Figures

Abstract

Migration has been a persistent phenomenon throughout human history, continually shaping and being shaped by spatial conditions. As an enduring force of transformation, it interacts dynamically with the built environment. Historically, Chongqing’s development has been profoundly influenced by successive waves of migration along the Three Gorges Corridor, earning it the title of the "City of Migrants." The movement of people has been a critical driver of spatial development in Chongqing.

As China's urban development shifts from large-scale expansion to the optimisation of existing spaces, the focus has moved towards upgrading, retrofitting, and repurposing the existing housing stock. Against this backdrop, housing projects in Chongqing main city have struggled to accommodate large-scale internal migration, particularly in the wake of mass displacement caused by the Three Gorges Dam project. Amid rapid urbanisation and the commodification of housing, contemporary housing forms in these highdensity urban environments have largely lost their connection to the typologies of traditional migrant communities in the region.

This dissertation examines the two dominant housing types in Chongqing's main city and identifies that they have also not responded to the multigenerational cohabitation and unification of living and working space for migrant communities. In addition, these housing types are not in a position to construct an open migrant society that could have the capacity to attract more population. Therefore, in this research, migrant communities' housing typologies in the Three Gorges Corridor are referred to as "lost prototypes" and analysed critically in terms of the spatial logic and design of these two dimensions. Through this investigation, the thesis aims to propose design strategies for adapting existing housing types and cooperative frameworks, reinterpreting the potential for collective living within migrant communities.

Introduction

Chongqing, a city set deep in the mountainous regions of the upper reaches of the Yangtze River, has been shaped throughout centuries by movements of migration. From the Qing Dynasty's Huguang Tian Sichuan movement, to the War of Resistance wartime capital construction, and then the Third Front Construction after the founding of the People's Republic of China, migration has ever-strongly intertwined with the city's mountains and rivers, forming its distinctive spatial texture. The Three Gorges Corridor, as a key channel of population flow, not only carried the stories of tens of thousands of families' migration but has also witnessed towns rise and fall along its distance.

In such mountains and water landscapes, migrant livelihoods have depended on riverside towns. They are not fit into the general conception of rural village or urban centre, they are instead zones of transition, adapting with high flexibility to changes in state governance, population movements, market transition, and environmental needs. Migrants built stilt houses along riverbanks, raising their homes up above the water on wooden pilings. Within commercial corridors, they kept front-shop back house operations, forming an intricate network of settlements bound by commerce. However, history has relentlessly driven forward waves of change. The construction of the Three Gorges Dam led to the submergence of numerous riverside towns. The streets, docks, and communal housing typologies that once embodied the collective memory of migrant communities were drowned beneath the rising waters. In their place, state-led new towns and public affordable housing or relocation housing in urban centres emerged. Yet, these standardised architectural models, designed to accommodate displaced migrant populations, reveal a deep contradiction between the rigidity of space and the fluidity of everyday life.

The flexible dwelling models once adapted to the rhythms of the river have now been replaced by uniform housing units within reinforced concrete structures. The spatial choices available to immigrants have been significantly reduced, while the social ties of traditional migrant communities have gradually disintegrated within highly planned residential environments since the housing marketization reform. In contemporary Chongqing, public affordable housing, relocation housing, the high-rise towers are presently the dominant forms of housing among migrant residents. However, these housing forms lack sufficient flexibility, creating new problems of survival for migrants in urbanisation. Public low-cost housing, typically tower blocks of high density, stifles the multigenerational household way of life of migrant families and dissolves the linkage of living space with economic activity. At the same time, whereas business premises in resettlement housing estates are constructed to support livelihoods,

premises in resettlement housing estates are constructed to support livelihoods, they go unused due to economic downturns as well as tight planning rules, and do not enable the support of the economic networks of migrant communities.

In contrast, traditional migrant communities in the Three Gorges Corridor demonstrated greater spatial flexibility. Stilt houses were constructed in response to the mountainous terrain, with open corridors and shared courtyards fostering connections between households and neighbours. The front-shop back-house typology interwove commerce, residence, and social life, allowing economic activities to be closely integrated with daily living. Yet, these architectural forms have largely disappeared amidst waves of urban renewal. The once dynamic and diverse spatial logic has been replaced by standardised housing models, leaving migrant communities struggling with the alienation of everyday life within the rigid framework of modern urbanisation.

This thesis is rooted in the pressing challenges faced by migrant communities today. By taking a close look at the spatial structure, architectural typologies, and adaptive strategies of the riverside settlements along the Three Gorges Corridor, this study aims to find out how the spatial experience of the traditional migrant settlements can be applied to enhance existing housing systems in Chongqing. Contrary to the context of instantaneous urbanisation, the research tries to propose schemes of housing more suited to a mobile population in Chongqing main city. The methodology includes historical research, spatial mapping, typological analysis, and field research. Through an in-depth analysis of spatial arrangements in traditional migrant communities, the study will chart the boundaries of the existing housing system and attempt to develop a changing spatial paradigm—a paradigm not merely responding to migrant groups' mobility but also stitching together with the existing urban fabric.

Housing is not merely space; it is human movement, identity, and sociality. In contemporary urbanisation, the questions are immediate: how is it possible to make the space of housing escape becoming immovable? How is it possible to introduce flexibility in formulaic contexts? How can a new balance be found between the social construction of space and human mobility? The research attempts to provide new answers to these issues through a reinterpretation of the migrant communities' spatial rationality. In line with this perspective, it offers more adaptive and more resilient models for housing—models that allow the migrants not only to reactively adapt to urbanisation, but also to take control over the organisation of their built worlds.

Aims and Objectives:

The main purpose of this thesis is to investigate the typological transformation of migration communities within the Three Gorges Corridor, aiming to provide design strategies for enhancing the flexibility and adaptability of existing housing for communities living in Chongqing’s high-density urban environment.

Analyse the two dominant housing types occupied by migrant communities in Chongqing’s main city today:

1. Public Affordable Housing

2. Relocation Housing

Analyse the two lost prototypes of traditional migrant communities prior to the dam construction in the Three Gorges Corridor:

1. Front-Shop Back-House

2. Stilt House

Research Questions:

Disciplinary Question:

How can the study of both dominant existing housing typologies and lost prototypes of migrant communities along the Three Gorges Corridor contribute to improving the spatial and living conditions of contemporary migrants in Chongqing main city?

Typological Question:

How do dominant existing housing typologies and lost prototypes mediate the spatial experience and living patterns of migrant populations along the Three Gorges Corridor?

Urban Question:

In response to the rigidity of current housing typologies, how can lost prototypes be adapted and reinterpreted to foster new urban living patterns and spatial integration for migrant communities in Chongqing main city?

Chapter 1

Territorial Exodus

This chapter examines the waves of migration in Chongqing at different historical stages and their profound impact on spatial transformation. By analysing three major migration waves—the Huguang Filling Sichuan period, the War of Resistance against Japan, and the Third Front Construction period—each closely linked to the construction of the Three Gorges Dam, this chapter reveals how migration activities interacted with Chongqing’s spatial typologies and led to the formation of migrant communities as a stable architectural type for collective living.

Although it is currently around 20 years since the Three Gorges migrant resettlement scheme, urbanisation is a never-ending process. The role of the Three Gorges Corridor has more and more become one of no longer being a passive recipient of migrants and being rebuilt by them but of actively attracting new individuals. This transformation not only influenced the evolution of migrant community typologies but also made the hardness of housing forms in Chongqing's core urban area. Through historical analysis, this chapter provides an essential background for understanding the housing challenges faced by contemporary migrant communities in Chongqing and further explores how spatial production responds to the demands of population mobility.

Fig1.1
Clip from the movie Still Life. Still Life is a 2006 Chinese film directed by Jia Zhangke. Shot in the old village of Fengjie, a small town on the Yangtze River slowly being destroyed by the building of the Three Gorges Dam, Still Life tells the story of two people in search of their spouses. Fig1.1

1.The Three Gorges Dam, which began construction in 1994, integrates flood control, power generation, shipping, and water resource utilization. The largescale reservoir area formed by the construction of the Three Gorges Dam is called the Three Gorges Reservoir Area

2. Chongqing was designated as a municipality directly under the central government in 1997, making it one of China’s four municipalities alongside Beijing, Shanghai, and Tianjin. The Three Gorges Project was the direct reason for Chongqing’s elevation to a municipality, as the project required the resettlement of 1.31 million people, 85% of whom were relocated within the Chongqing region.

1.1 The Flux Corridor

A tranditional riverside town Gongtan Ancient Town has a history of more than 1,800 years. It is located at the confluence of the Wujiang River and the Apeng River, tributaries of the Yangtze River. Historically, it was a freight transit station in the Wujiang River Basin.

Chongqing is located in the upper reaches of the Yangtze River and serves as a key hub city in China’s central and western regions. The construction of the Three Gorges Dam1 led to the displacement of a large number of reservoir residents. As Chongqing’s main urban area and its surrounding districts are situated at the core of the Three Gorges Reservoir Region, the city undertook a significant role in resettling migrants. As a result, Chongqing was designated as a municipality2 directly under the central government, making it the only such municipality in western China.

The landscape of the Three Gorges is characterised by gorges, cliffs, and rivers, and Chongqing’s terrain similarly features typical mountainous and hilly characteristics, earning it the name Mountain City (Fig1.3). In this dissertation, the Three Gorges Corridor refers to the area within Chongqing Municipality that was directly affected by the dam construction project. The spatial focus is on the water and mountain environments along the Yangtze River, encompassing numerous cities, riverside towns and villages (Fig1.2).

Unlike the large-scale internal migration triggered by the Three Gorges Dam project, this corridor has historically experienced multiple migration waves from other regions of China due to various factors. These migration movements have continuously brought labour, skills, capital, and cultural influences to Chongqing over the centuries. The prosperity of river transport and frequent trade activities enabled many migrants to settle and make a living along the riverbanks. As a result, this corridor witnessed the development and flourishing of numerous riverside clusters (Fig 1.4), which strategically formed around resource production areas, transport and trade routes, and commercial hubs. Fundamentally, the Three Gorges Corridor has historically functioned not only as a hub for economic trade but also as a hub for population.

3. Chang zhen Changzhen has different names across various regions in China. For further reference, see Ren Fang, A Study on the Market Town Economy in the Ming and Qing Dynasties in the 20th Century, Historical Research No.5, 2001.

Among these, clusters of riverside towns are the most representative settlement type within the corridor and are closely linked to the past living environments of migrants who later moved to Chongqing’s main urban area. The traditional towns of the Three Gorges region correspond to the Chinese term changzhen3 , a term commonly used in Chongqing region to describe settlements that function between cities and rural areas, facilitating various commercial activities. The two characters chang and zhen reflect different aspects of these settlements: chang refers to markets primarily dedicated to commerce, while zhen refers to settlements that developed further with administrative functions and established trade networks. Compared with China's conventional rural settlements, the towns are products of the country's evolving socio-political institutions and

Fig1.4.
The Flux Corridor
Fig 1.2 The location of the Three Gorges Corridor and Chongqing main city in Chongqing municipality
Fig1.4 Gongtan ancient town in Chongqing region, 2022
Fig1.3 A photograph of Chongqing main city as a Mountain City

4.Chongqing was incorporated into Sichuan Province several times in the 20th century before becoming a municipality in 1997.

5.Quoted from: Yao, Qingshi, Research on Traditional Town's Spatial Environment Features and the Protection Strategies in Sichuan and Chongqing Areas, Chongqing University, 2015, p58

6. Grassroots market:

A grass market in historical Chinese context refers to an informal, often temporary marketplace that emerged spontaneously, typically in rural or peri-urban areas. These markets were characterized by their ad hoc nature, often held in open fields or along roadsides, where farmers and small-scale traders gathered to exchange agricultural products, handicrafts, and daily necessities. The term grass metaphorically signifies the informal and non-permanent setup, contrasting with established, regulated markets in urban centers. Grass markets played a crucial role in local economies, facilitating ruralurban exchange and supporting subsistence economies, particularly in pre-modern and early modern China.

and market economy. Accordingly, the Three Gorges Corridor towns are not simply spatial concentrations but rather complex economic and cultural systems developed over hundreds of years.

Taking this as a starting point, this dissertation argues that the riverside town is a particular spatial type in the Three Gorges Corridor, shaped in the aftermath of successive large-scale migration waves, resettlement and development of migratory groups, and their adaptation to Chongqing's unique landscape. It is the long-term development of migrant settlements before the urbanisation of Chongqing.

As a particular form of settlement, the riverside town played an important role to perform beyond economic functions, such as facilitation of trade, distribution of regional commodities, and labour and financial markets.It also served as a key space for social interaction, cultural activities, religious gatherings, and even as a medium for state-led political control in the Chongqing region. For instance, as Qingshi points out, throughout the development of traditional towns in the Sichuan-Chongqing4 region, successive central dynasties placed great emphasis on their governance. This is reflected not only in the requirement for local government approval for the establishment or abolition of markets and towns but also in the deployment of officials and even military garrisons. These measures were intended to exert control over the vast rural areas through the administrative management of towns5

The continuous influx of migrants has persistently shaped the development of town formations, driving the rapid transformation of early grassroots markets6 into more structured towns with commercial exchange at their core. Migrants from various regions across China settled and lived together in these spaces, which, over time, became new destinations for subsequent waves of migration. This collective living model differs from both rural settlements and urban forms, operating as a cooperative framework where commerce and trade serve as the primary links connecting diverse mobile populations.

7. Bangbang: Chongqing Bangbang is a unique occupational group in Chongqing. They use a bamboo stick and a rope as tools to perform physical labor and are responsible for handling goods in the city.

This fluid cooperative framework provided migrants with a wide range of livelihood opportunities, including water transport (boat tracker, boatmen), trade, construction, and temporary service industries (such as bangbang 7 labourers, Fig 1.5). These economic activities were influenced by market demand, seasonal changes in the Yangtze River, and the industrial structure of the towns. The constant influx of migrants not only sustained the economic operation of these settlements but also drove spatial transformation through infrastructure development and the expansion of trade networks. The ways in which migrants lived and worked were reflected in the adaptability of the built environment. Unlike rigid spatial models designed for permanent residence, migrant-formed spaces were inherently flexible and dynamic, allowing for rapid settlement, departure, and adaptation to changing economic conditions.

Thus, migrants were not only economic actors but also played a determining role in spatial morphology of towns through their domestic and productive

strategies. The versatility and elasticity introduced by migration also seeped beyond labor practices to deeply influence the spatial thinking of such settlements so that they could adapt and change on a constant basis in shifting socio-economic circumstances. Although traditional towns in the Three Gorges Corridor have been inundated with the building of the dam and will never be reconstructed again in the current high-density urban context, their spatial flexibility and adaptability remain especially relevant to the housing demands of modern-day migrants in Chongqing's main city.

This dissertation argues that migration has been a fundamental driver of spatial development in the Three Gorges Corridor and a key force in shaping its regional architectural typologies. The interaction between highly adaptable and flexible migrant settlement patterns and the constantly changing natural conditions of the corridor has resulted in a spatial condition that is neither entirely fixed nor entirely temporary but continuously responsive to socioeconomic and environmental changes. This dynamic relationship between mobility and settlement underpins a unique mode of spatial production"River-town-mountain8", one that has shaped the architectural type of riverside towns and the everyday experiences of their inhabitants.

The integration of migrant communities in the urban structure of towns reveals how adaptive building types respond to evolving population densities and economic exchanges. In essence, this dissertation determines the distinct spatial production processes that arise from the simultaneity of migrationdriven changes and location-specific pressures. For Lefebvre, "Space is not a passive container but a social product shaped by human activity."9 The spatial growth of the riverside towns in the Three Gorges Corridor reflects a form of vernacular resilience—one that is engendered by the necessity of inserting migration patterns into the idiosyncratic topographical environment of Chongqing. Unlike the hardened urban landscapes of today, these settlements developed through ongoing spatial negotiations and produced a hybrid architectural type that cannot be pinned down to fixed categories. Instead, they are an ongoing continuum between commercial, domestic, and social uses.

Lastly, the Three Gorges Corridor is an example of a spatial production model in which migrants are both drivers of the economy and agents of spatial transformation. Building of the Three Gorges Dam, as the state-led infrastructure project that it was, caused the highest migration wave in nearly three decades along this corridor and significantly impacted Chongqing's main urban zone in housing conditions. This top-down, state-driven displacement reordered the spatial organisation of the corridor and has ongoing effects on contemporary housing trends. The development of riverbank towns demonstrates that Chinese domestic migration is not an isolated occurrence but an endemic phenomenon that has characterized regional settlement for centuries. By tracing the migrant populations that once made up such riverside towns, this dissertation reconsiders Chongqing main city area's rigid typologies of structures, challenging China's current practice of stability and immobility in housing.

8. A diagram of the "River-townmountai" Spatial structure, drawn by author.
9. Lefebvre, H. (1991). The Production of Space Blackwell Publishers.
Fig1.6 A photograph of Chongqing’s main city taken from Chaotianmen Bridge
Fig1.5 Chongqing bangbang

11.Geographic ties refer to social connections formed through spatial proximity, highlighting the role of location in shaping interactions.

Occupational ties arise from work or economic activities, emphasising the influence of professional identity on social networks.

1.2 The History of Exodus

Chongqing, shaped by a number of large-scale migration waves throughout history, is widely referred to as the City of Migrants. Through this extended historical process, the shaping of migrant settlements not only reflects the migrants' adaptation to the complex landform of the Three Gorges but also optimises land use and makes it easier for migrant groups to move through space organisation. Architecturally and urbanistically, these areas are not just residential places but rather, indeed, spaces of transition which accommodate both the economic and social integration problems of migrants. By having certain spatial types and functional configurations, they provide a foundation for adjustment to life at the new destination.

This part addresses three most significant historical migration waves in Chongqing before the Three Gorges Dam project: the Qing dynasty Huguang Filling Sichuan migration, the wartime capital construction during the War of Resistance against Japan, and the migration movements related to the Third Front Construction in the early years of the People's Republic of China. By investigating the spatial practice, residential form, and social organisation of migrants in different historical periods, this study illustrates how these migration waves have shaped Chongqing's settlement development and spatial development at different scales (Fig 1.7). This retrospective examination is significant in comprehending how the late 20th-century Three Gorges resettlement has influenced the Three Gorges Corridor and the present housing conditions of Chongqing main city.

1.2.1 Huguang Filling Sichuan during the Qing dynasty

The largest migration wave in this territory before the 20th century was known as the Huguang Filling Sichuan movement. Due to the drastic population decline in the Sichuan-Chongqing region caused by wars, natural disasters, and epidemics during the late Ming dynasty, the Qing government introduced incentive policies to encourage migration from other regions, particularly Huguang (present-day Hubei and Hunan province), to Sichuan. By the mid-tolate Kangxi reign10, more than one million migrants had settled in Sichuan.

With the large influx of external populations, traditional kinship-based social structures, which had sustained rural settlements in China, were no longer viable. Instead, new social organisations based on geographic and occupational ties11 became the dominant structure in the Chongqing region. Due to significant linguistic and cultural differences between migrants and local residents, migrants required new ways to establish connections. These networks,

10. Mid-to-late Kangxi reign refers to the final years of the reign of the Kangxi Emperor (Aisin Gioro Xuanye), approximately from 1700 to 1722.
The History of Exodus
Fig1.7 Timeline of three important waves of migration in the Three Gorges Corridor
Fig 1.8 The landscape of Chongqing main city during the Qing Dynasty

Chongqing was opened as a treaty port in 1890 under the SinoBritish Trade Agreement, following the 1876 Chefoo Convention. It became the first inland treaty port in China, allowing British trade and consular presence, and marking a turning point in the city’s urban and economic development.

built on shared location and professional ties, became essential foundations for mutual support and collective resilience against risks.

The Huguang Filling Sichuan migration had a profound impact on the economic recovery and social development of the Sichuan-Chongqing region. The influx of migrants, along with the expansion of trade, significantly accelerated the growth of towns. By the late Qing dynasty, Chongqing’s urban landscape had taken shape, with a well-defined spatial layout. The city featured fortified walls, an intricate network of streets, and thriving commercial districts centred around Chaotianmen (Fig 1.8). Although this migration was primarily initiated by the Qing government, Chongqing’s strategic geographic location and rapidly expanding trade network further reinforced the movement, naturally attracting settlers.

With the continued influx of migrants and Chongqing’s official opening as a treaty port 12 in 1890, the region experienced rapid economic growth. Migrant communities—including landless farmers, itinerant traders, craftsmen, boatmen, and porters—mainly settled around the wharves. The spatial form of these settlements exhibited a hybrid architectural typology, where residential spaces were closely integrated with commercial establishments such as shops, restaurants, and workshops. This spatial configuration not only met the housing needs of migrants but also supported diverse economic activities, enabling them to balance livelihood and living within limited physical space. These clustered settlement patterns formed the earliest migrant communities in the Three Gorges Corridor, shaping a unique spatial structure through their adaptation to trade networks and household-based economies.

1.2.2 The wartime capital period during the Republic of China Government

After the full-scale outbreak of the War of Resistance Against Japan, Chongqing’s main urban area was designated as the wartime capital from 1937 to 1945 (Fig 1.9). This decision profoundly altered the city's modernisation process, accelerating urbanisation and population concentration under the pressures of war. As Xiaolu points out, moving, as an important daily behaviour and a part of everyday life, shaped social and personal relationships during wartime13. Thus, intense population mobility remained a central force in the spatial transformation of Chongqing.

As various industries in Chongqing’s main urban area rapidly expanded, the increase in employment opportunities attracted a large influx of people from different regions. At the same time, the threat of war forced even more individuals to seek refuge in the city. This process once again disrupted stable family structures. For example, young people from the Three Gorges Corridor and other regions became separated from their traditional family units, moving from private residences into collective spaces such as factories and dormitories, and integrating into the city’s public spaces (Fig 1.10). This shift again gave rise to diverse forms of social interaction and new modes of connection. The transformation in living arrangements not only altered individual spatial

12.
13. Quoted from: Wu,Xiaoliu, Urban Development and Everyday Life of Ordinary Labourers in Wartime Chongqing: 1937-1945, The University of Queensland in 2016,p68
Fig 1.9 Street scenes in Chongqing during the war
The History of Exodus
Fig1.10 Descending passage on the southern side of Chaotianmen, Chongqing main city1945
Fig1.11 The densely built "Wartime housing" area near Linjiangmen Wharf, Chongqing main city

experiences but also posed unprecedented challenges to Chongqing’s housing demand.

The sharp rise in population led to severe housing shortages in the city. To address the crisis, the Chongqing government established the Municipal Housing Construction Committee in the early 1940s, initiating large-scale construction of temporary war-time housing 14 ( kangjianfang, Fig 1.11) in urban areas, surrounding towns, and along major transport routes. Meanwhile, the government encouraged workplaces to build housing for their employees and supported private developers in residential construction, triggering the largest and most impactful wave of housing development in modern Chongqing. These housing policies were not only emergency measures for wartime needs but also laid the foundation for the city's housing system, influencing subsequent urban expansion and spatial development patterns.

During this period of housing construction, residential buildings in Chongqing’s main urban area were primarily divided into three categories: self-built housing for civilians, basic public housing, and terraced housing for employees of enterprises, government offices, and schools. The civilian housing sector mainly accommodated war refugees and factory workers, who settled around the wharves along the Yangtze and Jialing Rivers. Since the government only designated land without imposing strict planning regulations, residents constructed homes using traditional methods. Among these, the stilt house 15 emerged as a typical architectural type, built with bamboo and timber structures to adapt to the mountainous terrain and allow for rapid assembly. This architectural form not only continued the characteristics of Qing-era migrant communities but also reflected the spontaneous urban development of wartime Chongqing.

At the same time, the surge in population stimulated commercial prosperity, with the number of shops in Chongqing’s urban area rising to over 20,000, covering a wide range of industries, trade guilds, and inns (Fig 1.12). The development of migrant communities was closely linked to this commercial expansion. For example, many residents of stilt houses were highly mobile migrants. This mobility was not only reflected in the temporary nature of their residence but also in the uncertainty of household size and occupation. Thus, migrant communities were not merely a representation of residential space but also a fundamental component of social organisation as a City of Migrants.

As the wartime capital, Chongqing’s urban form evolved under the combined forces of war and commercial demand. Benefiting from its geographical advantage as both an inland centre and a river transport hub, privately built structures far outnumbered government-led projects in terms of both scale and typology. This resulted in the emergence of distinct regional architectural forms, such as stilt house. Moreover, this collaborative architectural evolution, driven by both bottom-up and top-down processes, reflects the indispensable role of migrant communities as an integral part of the urban fabric, laying the foundation for the city's future development.

15. Stilt house (Diaojiaolou)
Stilt house is rectangular or square wooden structures built in the ganlan (stilted) architectural style, supported by elevated wooden pillars or stilts.
14. War-time housing
During the war, many temporary houses of various sizes built in Chongqing and its suburbs were called "war-time housing" or "anti-Japanese war houses" by immigrants.
A Stilt House in old Wanglong gate of Chongqing main city (Destroyed), Quoted from Shao Junyi, Chongqing "Diaojiaolou" Vernacular Dwellings.
The History of Exodus
Fig1.12

16. The People's Republic of China (PRC) was founded in 1949, marking the beginning of a socialist state under the leadership of the Communist Party. Since then, the PRC has undergone rapid industrialisation, urbanisation, and economic reforms, significantly shaping migration patterns, urban development, and spatial transformations across the country.

1.2.3 The Third Front Construction period during People’s Republic of China

17.The Third Front regions were inland areas designated for large-scale industrial and military development during the 1960s and 1970s to strengthen national defence.

18. Danwei Danwei refers to the work unit system in China, which functioned as both an employer and a social organisation, providing housing, healthcare, and other services to employees. It played a central role in urban life during the planned economy era (Bray, 2005), shaping spatial and social structures in Chinese cities.

In the 1960s, during the Third Front Construction period following the founding of the People’s Republic of China16, the government launched largescale infrastructure projects in defence, technology, industry, and transportation across the Third Front regions17. As the largest central city in these regions, Chongqing was designated by the central government as a key base for the military industry. A large number of workers and their families from China’s coastal regions migrated to Chongqing, following the relocation of factories, danwei 18 , and state-owned enterprises. As Yujie points out, this large-scale migration was both an opportunity for the restructuring of Chongqing’s industrial system—establishing its modern industrial layout and solidifying its role as a key industrial city in the upper reaches of the Yangtze River and the second major migration wave since the founding of the People’s Republic, leading to another shift in Chongqing’s population structure19

Since 1958, the government had gained direct control over migration20, marking the end of the period of free population movement that had existed since 1949. The dual urban-rural hukou system21 was formally established, effectively dividing the population into two distinct categories —urban and rural hukou — with significant differences in social status and resource allocation. Under the Third Front Construction policy, the government systematically relocated factories, workers, government officials, and their families from the coastal regions to inland areas, and from cities to rural regions, forming the primary migration pattern of this period. The allocation of hukou was centrally managed, and it was only after the economic reforms of the late 20th century that the rigid urban-rural divide in the hukou system began to dissolve.

19. Quoted from:Li, Yujie. Migration and the Leapfrog Development of Chongqing’s Urbanisation, Journal of Yangtze Normal University 33, no. 3 (June 2017).

20.In 1958, the Standing Committee of the National People's Congress passed the Household Registration Regulations of the People's Republic of China. It stated that rural residents could only migrate to cities if they had proof of employment from the labour department, an admission letter from a school, or approval from the urban hukou registration authority.

Although hukou status was difficult to change, Chongqing’s main urban area, as the region’s economic centre, continued to attract internal migrants. For example, people from the Three Gorges Corridor frequently travelled to Chongqing’s urban core using the well-developed water transport system, with many ferry journeys completed within a single day. Beyond offering more employment opportunities, Chongqing functioned as a larger and more complex marketplace, with commercial activities filling its streets and alleys. Every third, sixth, and ninth day of the lunar month marked ganji 22 days (Fig 1.13), when people gathered to trade fresh vegetables, livestock, grains, bamboo, coal, and various other goods. At this stage, migration was no longer a large-scale crossregional exodus, but rather an adaptive form of mobility and cooperation within the steady process of China’s industrialisation and urbanisation.

Migration at this stage was no longer solely driven by political directives or state policies but was increasingly shaped by the growing connections between urban and rural areas within the region. Economic networks, infrastructure conditions, market demands, and industrial restructuring collectively influenced mobility patterns. As the economic core of the region, Chongqing’s urban form was continuously reshaped by this internal migration. Streets (Fig 1.14), markets, and docks became crucial nodes for migrant integration and trade networks,

intertwining livelihood strategies with the spontaneous evolution of urban space.

This dissertation argues that the development of Chongqing, particularly the Three Gorges Corridor, has been profoundly shaped by migration waves. At different historical stages, migration not only influenced the spatial structure of the city but also drove the evolution of architectural typologies. Migrant communities were not merely places of residence; they functioned as complex spaces integrating production, commerce, and social interaction, demonstrating a high degree of adaptability and autonomy.

Furthermore, as socio-economic structures evolved, the spatial dynamics of the Three Gorges Corridor gradually shifted from being shaped by migrant interactions to becoming an active tool for attracting new populations. Migration patterns also transformed—from large-scale, often involuntary crossregional displacement to more adaptive internal mobility. This shift not only influenced the evolution of architectural forms but also contributed to the increasing fragmentation of urban space, resulting in a unique fabric where state-planned developments coexisted with informal self-built environments, and formal and informal spaces intertwined.

Therefore, understanding migrant communities in Chongqing is not only about studying historical migration patterns but also about exploring how cities and towns, at different stages of development, respond to immigrants’ living patternsthrough spatial production.

21. Hukou system It's established in 1958, is China’s household registration system that classifies residents as urban or rural based on their place of registration. It restricts migration by tying access to social services, employment, and housing to one’s registered location, creating a long-standing urban-rural divide in resource distribution.

26. The term ganji refers to a very distinctive folk custom, which refers to people going to the market to do business or play. People can not only buy various daily necessities and agricultural products to meet their life needs, but also enjoy various entertainment activities, such as opera, acrobatics, etc.

Fig1.13 A photograph of street in Chongqing main city, around 1960s
Fig1.14 A series of photos depicting ganji scenes, around 1980s
Fig 1.15 The Three Gorges Dam

1.3 The Three Gorges Resettlement Project

In 1992, the central government officially approved the construction of the Three Gorges Dam (Fig 1.15), a 17-year project that was fully completed in 2009. The required water level for reservoir storage led to the submersion of eight towns, two cities, and most of the areas of 101 riverside settlements in Chongqing (Fig 1.16). As a result, the government initiated population relocation in 1993 and began the demolition of submerged towns and cities through controlled explosions in 2002 (Fig 1.17). According to Chongqing’s 2010 Resettlement Report a total of 1.138 million people were relocated over the 17year period27

Beyond those who were resettled in other regions of China, the main approach to internal resettlement within the Three Gorges Corridor was the expansion of Chongqing’s main urban area and the construction of new towns, most of which were built near the submerged settlements. This process was not only a direct consequence of the Three Gorges Project but also a significant factor in Chongqing’s designation as a municipality in 1997. The people in this region had long adapted to the spatial relationship with the Yangtze River and relied on it for their livelihoods. Their residential experiences were deeply embedded in the traditional riverside towns, which remained largely unurbanised and unmodernised, with spatial orders and density patterns distinct from contemporary cities.

However, the urbanisation-driven resettlement of migrants was not merely a physical relocation but a profound restructuring of the relationship between people and place. It marked a rupture and reconstruction of the embodied connection between individuals and space, redefining their spatial practices and lived experiences.

1.3.1 The Resettlement System of the Three Gorges Dam

To manage the large-scale displacement caused by the Three Gorges Dam project, the state established a specialised resettlement system, which provided a policy framework governing funding allocation, urban relocation, resettlement procedures, environmental protection, benefit distribution, and implementation management. However, in practice, this system failed to fully address the housing needs of displaced individuals, particularly concerning their spatial rights during the resettlement process.

The Regulations on the Resettlement for the Construction of the Three Gorges Project on the Yangtze River 28 further classified migrants into specific categories, defining

and after

The Three Gorges Resettlement Project
27.The dam resettlement project lasted not only 17 years from 1992 to 2009, but actually more than 20 years.
28. The Regulations on Resettlement for the Construction of the Three Gorges Project on the Yangtze River was promulgated by the State Council of China on February 21, 2001.
Fig1.16 Before
map comparison of flooded Fengij town (Top:1973, Bottm:2023)
The Three Gorges Resettlement Project
The Three Gorges Resettlement Project
Fig1.17 A series of photographs of towns that are about to be flooded after being demolished, around 2000s

defining different relocation methods and compensation standards. These classifications served as the organisational framework for implementing the resettlement programme. The regulations divided displaced populations into four categories:

1.Land-acquired migrants: Rural migrants who lost their farmland due to land requisition for new urban development and infrastructure projects and were relocated to urban areas.

2.Urban residents: Populations originally living in towns that were submerged and required relocation.

3.Rural migrants: Farmers whose agricultural land was submerged and who were relocated to urban areas, where they were resettled in secondary and tertiary industries.

4.Danwei migrants: Workers and staff relocated along with their entire danwei due to the displacement of enterprises and institutions.

Based on this classification system, the regulations established distinct compensation standards, relocation methods, and housing allocation mechanisms:

Danwei migrants were relocated by their respective work units under the "Four Unified" policy (unified site selection, unified planning, unified construction, and unified management), resulting in concentrated residential compounds in danwei courtyards. These units typically included government agencies, state monopolies, financial institutions, educational and cultural institutions, and state-owned enterprises. As organisations with significant resource integration capacity, these work units had greater access to social resources and were able to secure better living conditions during the relocation process.

Land-acquired migrants, urban residents, and rural migrants were resettled in government-designated resettlement zones, where housing was planned, constructed, and distributed by the state. Their housing was primarily obtained through governmentprovided demolition compensation, which could be used to purchase state-built resettlement housing or to buy property independently. However, the government strictly controlled the housing typologies, sizes, and construction costs, leaving individual migrants with very limited choices.

Within the urbanisation process, the relocation of danwei migrants was supported by strong institutional structures, ensuring that their housing was planned and developed in a systematic manner, often resulting in better living conditions and access to resources. In contrast, individual migrants29 lacked the same level of institutional support and were entirely dependent on governmentprovided standardised housing. They had little control over the type, size, or quality of their housing and often had to pay additional costs to secure a residence that met their household needs.

More significantly, the government, as the sole provider of housing for individual migrants, functioned only as a temporary resettlement authority within the state’s administrative framework. It did not assume long-term management responsibilities for the resettlement process. As a result, individual migrants were not integrated into the core system of urban development and social governance but remained outside the formal administrative structure as passive recipients of state-allocated resources. This institutional arrangement led to long-term marginalisation in terms of housing quality, living environment, and social inclusion.

At the macro level, the Three Gorges resettlement system established a standardised framework for relocation and compensation. However, in practice, the spatial allocation of resources was highly unequal. Danwei migrants, with their institutional and social advantages, secured higher-quality housing, whereas individual migrants, lacking organisational support, were placed at a disadvantage in terms of spatial autonomy, housing typology, and living conditions. This unequal housing system not only affected the quality of life for displaced populations but also deepened urban spatial fragmentation, shaping the long-term housing challenges faced by Three Gorges migrants in the process of urbanisation.

1.3.2 New Riverside Towns

As part of the Three Gorges resettlement programme within Chongqing’s jurisdiction, the government planned and constructed 28 new towns, approximately 20 of which were located near the Yangtze River. This strategic placement aimed to expedite the relocation process while maximising the use of riverside resources. However, these newly built towns were not simple replacements for the submerged settlements; instead, they were highly structured, functional spaces reconstructed under the logic of urbanisation, redefining the spatial form of migrant communities.

The government designed multiple resettlement communities within these new towns, attempting to replicate the spatial fabric and order of the submerged settlements. One of the most representative models was the shopfront housing community, a typology that emerged as a compromise to encourage individual migrants to accept relocation. The shopfront was not merely a component of the residence but was also assigned commercial value, serving as a form of economic compensation for displaced migrants. Since the housing resettlement policy did not directly address employment issues, the government introduced shopfront housing as a means of livelihood support, aiming to mitigate the economic decline caused by the dam project, which led to the relocation of factories, the submergence of farmland, and restrictions on fishing activities. By restructuring commercial relationships, shopfront housing sought to provide migrants with alternative sources of income.

The spatial logic of shopfront housing reflects a top-down urbanisation strategy, with a strong emphasis on functional zoning. All residential buildings in these communities were designed with ground-floor shopfronts facing the street, uniformly fitted with grey or blue aluminium roller shutters, forming a dense commercial corridor. The ground-floor layouts followed two primary models: the front-shop back-house arrangement, which integrated living and working spaces, and the pure commercial unit

This architectural typology can be traced back to traditional migrant communities in the Three Gorges Corridor, where commerce played a central role in shaping economic and social connections, linking migrants to the broader urban network. However, the government’s envisioned commercial

29. Individual migrants include landacquired migrants, urban residents, and rural migrants.

model did not unfold as expected. According to a field survey conducted in August 2024, a significant number of shopfronts in these riverside towns remain vacant or closed (Fig 1.18). Due to the weaker-than-anticipated economic development of the new towns, commercial activities failed to establish a sustainable market base. With rental costs nearly equal to operating expenses, shopfronts provided little financial benefit for migrants, leading many to abandon the new settlements and seek work in Chongqing’s main urban area to sustain their livelihoods.

What makes the Three Gorges migration unique is that displaced migrants were unable to return to their original homes. Meanwhile, China’s rapid urbanisation process further disrupted the architectural continuity between traditional and contemporary built environments in the Three Gorges Corridor. As riverside towns disappeared, the spatial organisation and transformation patterns of migrant communities were also submerged—both by the dam project and by the forces of modernisation. In the early 21st century, under the dual influence of national infrastructure projects and urbanisation, the spatial heritage shaped by past migration waves was replaced by new urban structures, losing its original social, economic, and cultural support systems.

The resettlement communities of these new riverside towns ultimately forced migrants to relocate to Chongqing’s main urban area. However, in the city centre, the architectural typologies of traditional migrant communities no longer align with the dominant housing models in today’s high-density urban environment. The state-led resettlement housing system prioritises functionality and standardisation, overlooking the continuity of migrants' previous residential patterns and livelihood strategies. As a result, migrants face severe limitations in terms of housing typologies, spatial flexibility, and lifestyle adaptation.

Although more than two decades have passed since the Three Gorges resettlement programme, the Three Gorges Corridor remains a highly dynamic migratory zone. At the same time, the Chongqing government continues to attract external populations to fuel a new phase of urbanisation. However, the current rigid housing system fails to accommodate both the realities of displaced migrants and the housing challenges brought by contemporary migration waves. This spatial and institutional misalignment has left migrant groups on the periphery of urban expansion, further exacerbating spatial fragmentation and the breakdown of social mobility.

The Three Gorges Resettlement Project
Fig1.18 The frontshop housing in resettlement community, Fengjie Town, 2024

Conclusion

Chongqing’s architectural form is the result of continuous migration waves, with its spatial development closely shaped by the interaction between population mobility and economic structures. This study demonstrates that migrants in the Three Gorges Corridor have not only been key drivers of socioeconomic change but also central agents in spatial production. At different historical stages, migration waves have created unique residential and livelihood patterns in response to the natural environment, leading to an architectural trajectory characterised by resilience and adaptability.

However, the migration wave triggered by the construction of the Three Gorges Dam differed significantly from previous ones, as it redefined the spatial patterns of migrants within a state-led urbanisation framework. The riverside towns, previously configured organically, were then replaced with standardized resettlement flats that enormously decreased migrants' spatial and economic flexibility. This transformation not only ruptured the continuity of customary architectural typologies but also intensified the marginalisation of the migrant community within the expanding city space. The shopfront housing estates planned by the government attempted to compensate for migrants' loss of livelihood with opportunities for working places, but under bad economic conditions and an underdeveloped market mechanism, these neighbourhoods ultimately failed their function. The majority of the migrants thus ended up in Chongqing main city, further placing pressure on the city's housing system.

Typologically, riverine towns of Chongqing are a class of settlement resultant from migration history that diverged from the conventionally defined city or countryside type. Hybrid locations such as these were defined by commerce, transit, and demands of mobile communities, and those forms of structures that served living and business ends tended to gather around piers, markets, and other master infrastructure. On the other hand, the resettlement flats for the migrants of Three Gorges were based on a highly standardised building type that totally ignored the spatial rationality of previous migrant community. The adherence to strict imitation of historical types went entirely against the dynamic flexibility of previous migrant communities.

This dissteration argues that migration is not only a driving force in Chongqing's spatial transformation but also a force determining architectural typologies' development. The interactive dynamic between migration and spatial production provides a decisive perspective on the narrowness of the current urban housing system and invites discussion on more adaptive and sustainable spatial strategies. The future development of housing in the central urban part of Chongqing cannot rest on rigid typological replication but must instead reimagine how migrant communities navigate and reshape everyday life within the parameters of contemporary housing spaces.

Fig1.19

Chapter 2

From Migrant Communities to Flux Society

The Three Gorges Corridor has historically fostered highly adaptive migrant communities, where spatial configurations continuously evolve in response to demographic and economic shifts. Unlike today’s rigid urban spaces, these communities develop through a bottom-up spatial logic, integrating housing, commerce, and public life within a flexible and adaptive framework.

In contemporary Chongqing, the hukou system has restricted migration for nearly half a century, and although policy reforms have facilitated greater mobility, structural barriers persist, leading to unstable housing patterns. This chapter examines two dominant housing typologies: public affordable housing and relocation housing. Through case studies, it explores how housing forms that "inherit" the characteristics of traditional migrant communities struggle to function within the constraints of today’s high-density urban environment.

Fig2.1
Shancheng Lane is located in the main city of Chongqing, connecting the upper and lower parts of the Yuzhong Peninsula. Since the Ming and Qing Dynasties, it has been a traditional residential area that has continued to the 21st century. The government renovated it between 2018 and 2021.
Fig 2.1

28. Chongqing Guide

Although the 1914 edition of Chongqing Guide was not widely promoted, Fu Chongju did not give up popularizing Chongqing. In 1917, the same year that Fu Chongju died, his Chongqing Street Map was published after adding color and ink to Chongqing Street Map. This map has a larger spatial scope and is still an important map for interpreting the urban history of Chongqing in the early years of the Republic of China.

2.1 Migrant Society and Migrant Community

The previous chapter described how Chongqing's urban development has been deeply rooted in continuous waves of migration. Historically, at least eight large-scale population movements have shaped the city’s social fabric, making migrants the dominant group within Chongqing’s society and influencing its spatial form and cultural identity. The unique geographical characteristics of the Three Gorges Corridor, being surrounded by mountains and traversed by mighty rivers, have made it a defensible strategic stronghold which was also the first preference destination for successive waves of immigrants. These immigrants, also as labour originating from diverse regions, brought with them unique languages, cultures, ways of life, so the resultant social structure was intricate in nature. This longer cultural integration has turned Chongqing into a paradigmatic migrant society, one in which social organisation, space production patterns, and typologies of buildings are highly flexible and movable.

As a spatial typology within a migrant society, the migrant community is not merely a residential enclave of migrants but a dynamic space constantly reconfiguring and adjusting itself to population movement, economic activities, and social networks. In these communities, spatial relations are structured around collective livelihood strategies. Unlike standardized urban space, the communities are not rigidly defined through urban planning or functional zoning. Instead, their spatial structure emerges from migrants' livelihood needs, social networks, and movement patterns. Housing, commercial activities, and public spaces are intricately interwoven, forming a spatial logic based on mixeduse development (Fig 2.2).

Guidebooks have historically provided new migrants with a readable framework for understanding Chongqing’s urban space. For instance, Fu Chongju published Chongqing Guide28 in 1914, offering detailed information on accommodation, restaurants, and urban infrastructure. Fu categorised Chongqing’s streets into three types: perpetually damp streets (“Four Seasons Wet Streets”), steep streets, and the busiest commercial streets. The term “Four Seasons Wet Streets” referred to streets that remained damp year-round due to the lack of a municipal water transportation system. Water vendors carried buckets from the Yangtze and Jialing Rivers, spilling water along their routes to meet the city’s daily water needs. Dampness thus became an inherent characteristic of these streets. This classification of urban streets not only reveals the daily lives and occupations of migrants but also highlights the significance of streets as the most critical and distinctive element of Chongqing’s urban space (Fig 2.3). The form and function of these streets were closely linked to the socio-economic activities of migrants, demonstrating how spatial production responded to the

Migrant Society and Migrant Community
Fig 2.2 A photograph of mixed used spaces, Chongqing main city, around 1990s
Fig 2.3 A detailed street map of Chongqing based on Fu Chongju's description of the streets in Chongqing
Fig 2.4 The cover of the 1937 edition of Chongqing Guide

the evolving residential narratives of migrants, reflecting their adaptation strategies and socio-economic interactions within the urban fabric.

By 1937, a revised version of Chongqing Guide, authored by Yang Shicai, further elaborated on the relationship between urban space and migrant life (Fig 2.4). The guide’s “Living” section provided rental advice to help new migrants familiarise themselves with housing options, alongside detailed information on waterway transport, shipping companies, warehousing facilities, and labour transport services. The evolving content of these guidebooks not only reflects the ongoing movement of migrants but also underscores Chongqing’s adaptability and inclusivity as a migrant society. The transformation of these texts can be seen as a record of the interactions between migrants and the city, illustrating how Chongqing continuously adjusted to population growth and shifting social demands through the circulation of information, spatial organisation, and infrastructure development.

Beyond guidebooks, the riverfront docks of the Three Gorges Corridor and the commercial zones extending from sloped areas into urban centres served as crucial sites where migrants accessed information and employment opportunities. These areas were not merely physical marketplaces but also key nodes in the formation of social networks. Migrants established trade guilds, regional associations, and industry alliances in these spaces, facilitating resource-sharing, mutual support, and integration into the local society (Fig 2.5). Through such collective collaboration, the social function of space was continuously reinforced, positioning migrants not only as the primary labour force but also as active agents in shaping the urban landscape.

Chongqing's natural environment and historical conditions completely controlled the characteristics of its migrant society. Unlike the Central Plains region deeply affected by Confucian patriarchal clan-based social orders, Chongqing was at the periphery of the feudal patriarchal order and therefore had a more liberated social structure with relatively more open hierarchies. This decentralized societal model built a freer, more levelled society in which migrants were drawing on trade and economic networks, rather than on kin ties, to establish social bonds. It was migrating family by family on an individual or small family level, hence defying traditional clan values and at the same time increasing the participation of trade guilds and industrial organisations within society. Therefore, migrants integrated into urban life by trade, shipping, and commerce rather than family line.

This openness in social structures directly influenced the spatial form of migrant communities. Self-built migrant housing in Chongqing, such as stilt houses, generally did not follow symmetrical layouts but instead adapted flexibly to topographical constraints. These architectural typologies served multiple functions, incorporating residential, commercial, and social spaces that continuously adjusted to residents’ evolving needs, resulting in highly adaptable spatial forms. Unlike rigid urban planning models, these migrant-driven housing forms reflect a bottom-up spatial logic generated by migrant communities. As

A General History of Chongqing states, “Chongqing is, at its core, a migrant society. Migrants dominated nearly all commercial activities, giving rise to unique social organisations.” Against this backdrop, the migrant community is not only a product of socio-economic forces but also a key agent in spatial production, with its architectul forms and spatial organisation embodying the mobility, livelihood strategies, and shifting social structures of migrants. The evolving residential narratives of migrants are inscribed in the built environment, demonstrating how spatial production continuously responds to migration patterns, economic shifts, and urban transformations.

Fig 2.5 Huguang Guild Hall was built in 1759 and expanded in 1846. It is a complex of buildings used for business guilds built by immigrants to Chongqing in the Qing Dynasty.
Currently, the Huguang Sichuan Immigration Museum is open here.

2.2 Flux Society as a Context

Chongqing’s social structure remains in constant flux, characterised by increasing population mobility, the reshaping of urban-rural relations, and the redefinition of migrant identities. As one of China’s largest municipalities29, Chongqing not only plays a crucial role in the country’s urbanisation strategy but also serves as a key site for observing contemporary migration trends. In the last several years, hukou system reforms, infrastructural growth, and industrial structural upgrading have all worked together to fundamentally enhance the city's capacity to absorb new populations. However, such a process is by no means a linear one but a process fraught with contradictions and tensions. While policy change opens up new spaces for migrant populations, the inertia of already established social institutions continues to generate difficulties in identity change and instability in residential patterns.

In this regard, the urbanisation of Chongqing is not merely an issue of physical space expansion but a profound restructuring of its social form. The lifestyle, residential strategies, and spatial adaptation mechanisms of migrant groups are strategic entry points to understanding ongoing urban transformations. The Three Gorges migrants and the spontaneous influx of rural labourers together form the primary population groups driving the city’s current demographic shifts. Their migration trajectories reflect the evolution of China’s economic development model while simultaneously shaping the urban landscape. This study explores whether the housing typologies within migrant communities could function as a mediating mechanism, balancing stability and fluidity in response to the reality of Chongqing as a flux society.

2.2.1

Since 1958, when the Chinese government formally took control of population migration, hukou has been inextricably linked to mobility. Broadly speaking, China’s household registration system can be divided into two phases: strict restriction and guided mobility.

Before the economic reforms of 1978, the hukou system was in its restrictive phase. It established a rigid urban-rural dual structure, preventing rural populations from moving into cities. The system categorised individuals as either “rural” or “urban” residents, effectively binding rural populations to agricultural land. Holding an urban hukou provided access to superior social welfare, employment opportunities, and public resources, creating a clear division between urban and rural populations and reinforcing new identity

Evolution of the Chongqing Hukou System and a New Wave of Urbanisation
29. Chongqing covers
Migrant Society and Migrant Community
Fig 2.5 Huguang Guild Hall in Chongqing main city

30. China's rural land reform began in the late 1970s, granting households land-use rights while maintaining collective ownership. This shift increased agricultural autonomy and later enabled land transfers, reshaping rural economies and spatial structures.

31.The reform is part of China's broader urbanization strategy to ease the increasingly severe ruralurban divide.

structures.

Following the economic reforms, the government recognised the necessity of a large rural labour force for urbanisation and gradually relaxed hukou restrictions. Concurrently, rural land reforms 30 released surplus labour, and under strong state policy guidance, these workers were directed into cities in need of external labour. In July 2014, the State Council announced a plan to eliminate the distinction between rural and non-rural hukou, aiming to settle around 100 million rural migrants and other long-term residents in urban areas by 202031. However, despite efforts to dismantle the rigid urban-rural divide, the fundamental challenge of migrants oscillating between rural and urban areas has persisted. Migrant family structures exhibit resilience, with the concept of “home” encompassing villages, towns, and urban centres.

32. Quoted from:

Weijie Hu, Why did Chongqing’s recent hukou reform fail A Chinese migrant workers’ perspective, Urban Geography,2023.

33. China's urbanisation rate refers to the proportion of the population residing in urban areas as a percentage of the total population. It reflects the country's demographic shift from rural to urban living, driven by economic development, industrialisation, and migration policies. Flux Society as

In response to these dynamics, Chongqing launched a comprehensive hukou reform as early as 2010, targeting an increase of 7 million urban residents by 2020, with a goal of raising the proportion of non-agricultural hukou holders to 60%. The plan aimed to concentrate 10 million urban residents in core districts, 6 million in county-level cities, and 3 million in small towns, fostering an integrated and equitable urban-rural population system. Unlike reforms in other cities, Chongqing’s policy uniquely allowed migrant workers who acquired an urban hukou to revert to their original rural hukou within three years. However, this reform ultimately failed. As weijie points that the primary reason for this failure was that the economic and social benefits of retaining a rural hukou far outweighed the advantages of urban hukou32.

Today, Chongqing, as China’s largest municipality, has a registered population of 32.56 million, over 20 million of whom are rural residents. On 31 July 2024, the State Council released the Five-Year Action Plan for a People-Centred New Urbanisation Strategy, outlining a new round of urbanisation with a target urbanisation rate33 of approximately 70%. By 2027, Chongqing’s core urban districts aim to surpass an 80% permanent population urbanisation rate, attracting more migrants into the city and driving the next phase of urban transformation.

2.2.2 Contemporary Migrant Groups in Chongqing

Two decades after the completion of the Three Gorges Dam and within the broader context of Chongqing’s urbanisation, this study categorises migrants into two primary groups (Fig 2.6):

The first group consists of individuals affected by the dam project and the slow economic development of newly established towns who have moved to Chongqing’s core urban areas along with their descendants. Most of them hold rural hukou and migrate intermittently between resettlement housing in new towns and the urban centre based on family and work needs. Many take up temporary employment in the city or assist their children with childcare, making them witnesses to the drastic spatial transformations of the Three Gorges

Fig 2.6 The diagram of the composition of immigrant groups

Corridor over the past thirty years. Their younger generation, in contrast, has settled permanently in Chongqing’s urban core.

The second group comprises voluntary migrants attracted by the economic prospects of Chongqing’s metropolitan region. As the leading municipality in Southwest China, Chongqing provides abundant employment opportunities. Simultaneously, its well-developed transportation infrastructure, expanding service sector, and rapid growth in logistics—creating demand for short-term labourers, couriers, and temporary workers—serve as strong pull factors for migration.

Chongqing’s urbanisation process and the spatial practices of migrant groups are deeply intertwined, resulting in a dynamic and complex social structure. Under the combined forces of policy guidance, market dynamics, and individual agency, migrant housing patterns exhibit both flexibility and uncertainty. While the government aims to create a more integrated urban system through hukou reform and spatial planning, real-world mobility remains fragmented, and structural tensions between urban and rural areas persist.Many well-preserved riverside towns have not been made available for migrants to live in; instead, after renovation and expansion, they have become tourist attractions (Fig 2.7).

In this process, space is not only a physical carrier accommodating migrants' lives but also serves as a key medium for mediating social relationships and shaping identity. However, the rapid pursuit of urbanisation has evidently led to architectural typologies becoming rigid, or to some extent alienated. The case of Chongqing not only reflects common issues in China’s urbanisation but also demonstrates the practical relationship between mobility and spatial production in the Three Gorges Corridor.

Flux Society as a Context
Fig 2.7 Gongtan ancient town, 2023

2.3 The Dominant Existing Housing Typologies

After the economic reforms, housing development in Chongqing has been redone from a state-organised system of welfare distribution to a marketoriented housing system. Urban housing prior to the 1990s, prior to the building of the Three Gorges Dam, was primarily provided by the danwei system, wherein state-owned enterprises and government bureaus were responsible for constructing and providing housing for their employees. This system offered a relatively stable and organized supply of housing but was dependent on state finance and was limited in its capacity to serve a growing urban population.

With the renovation of housing market reforms34, state-subsidized residential housing was gradually replaced by commercial property, stimulating rapid-track city development and mega-scale residential complexes. Evolution to a market system not only widened residential supply variety but also accelerated the city's spatial reconstitution. In order to face expanding population growth increment and rapid urbanisation, Chongqing’s core urban area gradually developed a variety of housing typologies, including high-density residential complexes, government-led affordable housing, and self-built housing in older districts.

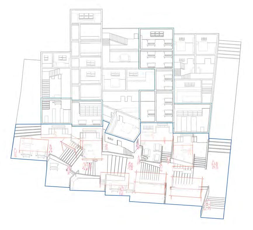
Today, Chongqing has a permanent population exceeding 32 million, with approximately 10 to 11 million residents in main city. Situated in the upper reaches of the Yangtze River, Chongqing’s main city is built on mountainous terrain, earning it the nickname “Mountain City.” This distinctive topography has had a profound impact on urban development patterns, significantly restricting the availability of flat land for construction. As a result, Chongqing has an exceptionally high land utilisation rate, making high-density development an inevitable trend. In this dense urban environment, high-rise residential buildings exceeding 30 storeys have become the dominant form of housing. Many residential areas are constructed along steep slopes, forming staggered architectural clusters. To adapt to the challenging terrain, some communities incorporate elevated platforms, terraced layouts, and multi-level pedestrian pathways, creating a unique form of vertical urbanism.

Among the various housing types in Chongqing, two dominant forms accommodate the migrant groups central to this study: public affordable housing and relocation housing. These housing types have emerged as critical components in the city’s effort to provide residential stability for its large migrant population. This section examines specific case studies to analyse the spatial characteristics and social implications of these two dominant housing types, investigating the extent to which they remain linked, or disconnected, from traditional forms of migrant settlements.

34. Housing market reform in China began in earnest in the late 1980s. Afterwards, housing became a commodity, reshaping urban landscapes and triggering profound social and spatial transformations across Chinese cities.
Fig 2.8 Chongqing city map with the highlight of the location of two cases.
Public Affordable Housing Minxinjiayuan
Relocation Housing Baixiangju

35. Before 2025, applicants for public affordable housing had to meet strict eligibility criteria. They were required to hold a local urban hukou for at least five years, be officially recognised by the local civil affairs department as belonging to a low-income or minimum-income household, and be verified by the local housing authority as having no other property registered under their name or their family members' names. Only those who met all these conditions were eligible to apply for PRH.

2.3.1 Public Affordable Housing

Chongqing was the first city in inland China to undertake large-scale public affordable housing construction and remains the city with the highest number of public affordable housing units. According to official data, Chongqing has built a total of 583,000 public affordable housing units, accommodating over 1.4 million residents. Both in terms of scale and the number of beneficiaries, Chongqing leads the nation. In 2025, the city will remove household registration restrictions for public affordable housing applications, granting agricultural hukou holders the same eligibility as urban residents35. This policy shift is largely enabled by Chongqing’s extensive public affordable housing stock, making it the first city in China to extend public affordable housing eligibility to the agricultural population.

Case Study: Minxinjiayuan

This dissertation selects Minxin Jiayuan (Fig 2.9), a public affordable housing project completed in 2012 in Chongqing’s main city, as a case study. As the city’s first public affordable housing project, its favourable location has contributed to its continued popularity, making it one of Chongqing’s most sought-after public affordable housing developments. Additionally, it exemplifies the typical high-rise tower typology commonly used for housing core families in large-scale residential projects across China.

Minxin Jiayuan is located in Chongqing’s Northern New District (Fig 2.8) and consists of modern high-rise elevator apartments ranging from 20 to 33 storeys. The total designed floor area is 1.08 million square metres. Construction began in 2010 and was completed in 2012. The development comprises 54 residential buildings (Fig. 2.10), providing approximately 17,700 housing units.

As shown in Fig. 2.11, the standard floor plan of the tower blocks accommodates 12 households per floor, with a compact spatial layout. The availability of communal space on each floor is highly limited, consisting mainly of corridors. There are no flexible, open spaces within the towers that facilitate interaction, shared activities, or the establishment of social connections among residents.

Each floor typically contains 12 units, categorised into four main types: studio apartments, one-bedroom apartments, and two-bedroom apartments (Fig. 2.12). However, the unit layouts fail to accommodate the needs of multi-generational migrant families. For instance, as illustrated in Fig. 2.13 (Type A), when older generations of migrants relocate from newly planned towns to Chongqing’s main city to live with their children, they often seek temporary jobs in the city before returning to their hometowns. During their stay, when two generations share a unit, the lack of privacy becomes a significant issue. In some layouts, for example, accessing the balcony requires passing through a bedroom, compromising spatial privacy and functionality.

Public Affordable Housing: Minxinjiayuan
Fig 2.9 A bird’s-eye view photography of MinxinJiayuan
Public Affordable Housing: Minxinjiayuan
Affordable Housing: Minxinjiayuan
Fig 2.11 The typical floor plan of a tower building in Minxinjiayuan
Fig 2.10 Site plan of minxinjiayuan
Housing: Minxinjiayuan
Housing: Minxinjiayuan
Fig 2.12
Details of the layout of each floor of one tower building n Minxinjiayuan
Fig 2.13 The layout of 4 types

2.3.2 Relocation Housing

In this dissertation, relocation housing refers to all residential projects in Chongqing’s main city that have involved the demolition of former migrant communities and their reconstruction either on-site or at a new location, from the city’s housing reform in the 1980s to the present.

Chongqing’s main urban area can be seen as the largest riverside town within the Three Gorges Corridor, where migrant communities exhibit a high degree of typological complexity and rapid transformation. To some extent, the housing typologies inherited from traditional migrant communities within relocation housing remain a significant and preferred form of residence for migrants in contemporary Chongqing.

Case Study: Baixiangju

Baixiangju is part of the Wanglongmen Complex (Fig 2.14), located on the wellknown Baixiang Street in Chongqing’s Yuzhong Peninsula (Fig. 2.8), adjacent to the river. The residential community currently houses approximately 590 households. The project was designed by Zhang Congzheng and other faculty members from the Department of Architecture at Chongqing Institute of Architecture and Engineering (now Chongqing University). Construction began in 1983 and was completed in 1993. Two years after its completion, the project was awarded First Prize for Outstanding Architecture in Chongqing. In 2018, it was recognised as one of Chongqing’s Top Ten New Scenic Spots in the Historic and Cultural Core Area. In recent years, social media promotion has transformed Baixiangju into a popular landmark in Chongqing.

There are two main reasons for selecting Baixiangju as a case study. First, the site of the Wanglongmen high-rise complex was originally Wanglongmen New Village, a war-time housing settlement built to accommodate migrants during Chongqing’s wartime capital period. Second, unlike standardised high-rise residential designs, Baixiangju adapts to Chongqing’s mountainous terrain and integrates unique public spaces, such as the “sky corridor”. Most importantly, it continues the spatial continuum of traditional migrant communities, where commercial, residential, and social functions are closely interwoven.

The Wanglongmen Complex (Fig. 2.15) consists of the original central corridorstyle building, six tower-style residential buildings, an L-shaped stepped highrise, the Baixiang Hotel, and a parking structure. Baixiangju specifically refers to the six buildings interconnected by sky corridor (Fig. 2.16). Although the originally planned lifts were not constructed due to various constraints, the architects addressed the site’s 38-metre elevation difference by organising entrances at three different heights through bridges, corridors, and rooftop pathways (Fig 2.17).

As shown in Fig. 2.18, the sky corridor connecting the six towers are linked

Relocation Housing: Baixiangju
Fig 2.14 Wanglongmen Residential Complex, completed in 1992
Relocation Housing: Baixiangju
Fig 2.15 The axonometric drawing of Wanglongmen complex
Fig 2.16 Sky corridor, Baixiangju

o each building’s stairwell, serving a dual function as both access routes to different floors and communal spaces. These walkways also connect to staircases and outdoor platforms at different elevation levels, forming a pedestrian circulation system within Baixiangju. Alongside this system, a variety of small retail shops, restaurants, and fresh produce markets are scattered (Fig 2.19). For many migrants, running these small businesses is a primary means of livelihood. However, the commercial activities also create conflicts with public life. For instance, residents often gather in the corridor to chat, play mahjong, or enjoy the sunlight. At the same time, shopfronts tend to spill over into the corridor space leading to discontent among other residents (Fig 2.20).

Moreover, the passageways, platforms, and staircases within Baixiangju are heavily utilised by residents for various informal activities, such as playing mahjong, gardening, or social gatherings. However, these spaces remain insufficient and highly constrained (Fig 2.20). This reflects the pressing need for adequate communal spaces in relocation housing within Chongqing’s highdensity urban environment, where migrants rely on these shared spaces to sustain collective living and foster social relationships.

The spatial dynamics of Baixiangju illustrate the ways in which relocation housing in Chongqing both inherits and adapts traditional migrant community structures. While the design incorporates sky corridor and multi-level access points to navigate the city's complex terrain, the lack of sufficient communal spaces remains a key limitation. The walkway system connects residential spaces with the larger urban fabric, while commercial spaces, to some extent, serve as a buffer zone between them. However, tensions between commercial expansion and public space usage reveal the challenges of balancing economic survival with collective urban life.

Relocation Housing: Baixiangju
Fig 2.17 Baixiangju within the Wanglongmen complex

Relocation Housing: Baixiangju Relocation Housing: Baixiangju

Fig 2.19 The diagram of the walkway system and commercial areas of Baixiangju
Space
Fig 2.18 The diagram of the walkway of the one building within Baixiangju
Relocation Housing: Baixiangju Relocation Housing: Baixiangju
Fig 2.20 Different communal spaces connected to the walkway system

Conclusion

Against the backdrop of this chapter’s discussion, Chongqing is actively adjusting policies and spatial planning to attract more migrants, supporting its ongoing urbanisation process. However, the existing housing system still presents structural challenges in meeting the actual needs of migrant populations. Through an analysis of public affordable housing and relocation housing, this study identifies two key housing demands among migrants and highlights the limitations of the dominant housing typologies.

Firstly, public affordable housing, as represented by Minxin Jiayuan, reflects the growing demand for multi-generational cohabitation among migrant families. As many migrants relocate in intergenerational units, their housing needs often extend beyond the standard nuclear family model. However, the existing highrise tower blocks lack sufficient flexibility and communal spaces, creating challenges in terms of privacy, social interaction, and the integration of family functions.

Secondly, relocation housing, exemplified by Baixiangju, reveals the demand for integrating living and working. Traditional migrant communities have long relied on commerce, shared spaces, and social networks to sustain economic activities. While Baixiangju’s spatial configuration partially continues this pattern, the unregulated spillover of commercial functions into public spaces has created conflicts, demonstrating that this housing model still struggles to fully accommodate the economic realities of migrants in Chongqing’s highdensity urban environment.

The emergence of these two housing demands suggests that the dominant housing typologies have failed to inherit the flexibility and adaptability of traditional migrant communities, leading to instability in migrant living patterns. At the same time, these findings reveal the potential for adapting existing housing through spatial modifications to better accommodate migrant lifestyles. This challenge extends beyond housing design, requiring broader adjustments in urban governance and spatial production mechanisms to create more responsive and sustainable housing solutions.

Fig 2.21 The axonometric drawing of the sky corridor

Chapter 3

Flooded Towns and Lost Prototypes

Building upon Chapter One’s analysis of riverside towns, this chapter explores migrant-driven spatial orders and architectural typologies in Chongqing. This chapter highlights two primary housing prototypes—the front-shop back-house and the stilt house—addressing multi-generational living and the integration of commerce and domesticity. Although now largely submerged, these typologies reflect historical adaptability valuable for contemporary urban strategies. The front-shop back-house integrates commercial activities with residential life, fostering vibrant communal interactions. In contrast, stilt houses respond practically to challenging terrains and limited resources, offering flexible, affordable housing that encourages communal life through shared spaces. Both typologies exemplify architectural responses to migrant needs, offering insights for current rigid housing types.

Fig 3.1 The last stilt house in Chongqing's main city, 2020

3.1 Flooded Town

Based on the study of riverside towns in the Three Gorges Corridor in Chapter One, this section analyses the spatial order and typology of a specific town through a redraw. Using the town of Ciqikou in Chongqing’s central urban area as an example (Fig 3.2), the analysis focuses on its plan, where the town is structured by linear or belt-like streets and alleys. Among these, the "commercial corridor" connecting the dock stands out as the most prominent spatial element. Different towns form distinct spatial orders of commercial corridors due to variations in geographical conditions and commercial culture. These corridors are not only closely linked to the production, consumption, and circulation of goods but also embedded in the residential narratives of migrant life.

Although migration inherently implies uncertainty and instability, the process of settlement within the corridor requires the creation of spatial anchors to ensure intergenerational continuity. This duality is reflected in the town’s spatial configuration, characterised by the linear arrangement of market streets, the clustering of trade-related dwellings, and the integration of shared public spaces that accommodate both transient and permanent populations. These spatial arrangements demonstrate the pragmatic strategies adopted by migrants to sustain their economic livelihoods while adapting to the physical constraints of the terrain.

For the following two reasons, this chapter will analyse the architectural typologies of riverside towns. First, Chongqing’s riverside towns are the result of centuries of migration and political transitions, reflecting a rich history of spatial development shaped by successive waves of migrants. The spatial types and orders within these towns embody the collective wisdom of generations of migrants and have become exemplary models of adaptability and flexibility in the region. The rigidity of current housing typologies needs to learn from and incorporate the flexibility and adaptability found in migrant communities

Second, as migrant communities disappear, towns are no longer merely physical spaces but have become cultural symbols and representations of spatial production. The rapid development of the Three Gorges Corridor has relied on waves of migration, and current government policies promoting a new phase of urbanisation indicate that future housing remains inherently connected to this spatial heritage.

This chapter will analyse two key typologies of traditional migrant communities, which can be regarded as prototypes: the stilt house and the front-shop back-

Flooded Town Fig 3.2
commercial corridor of the original plan of the Ciqikou Town before 1981, Chongqing main city

house. These typologies align with the two major housing demands for migrants discussed in Chapter 2—multi-generational co-living and working and living together. Since these typologies are now submerged beneath the river, they are referred to as lost prototypes.

Using the plan of Ciqikou as an example, stilt houses were primarily built along the riverside, while front-shop back-house typologies were distributed along the commercial corridor from the dock to the inner town (Fig 3.3). The stilt houses accommodated multiple migrant families from different regions, whereas the front-shop back-house typology housed migrants engaged in trade.

The following two sections will reconstruct these abstract prototypes into specific architectural representations based on information gathered from various sources, including literature and archival materials. These representations do not originate from a single real case but rather synthesise multiple cases with similar characteristics, forming a generalised model for analysis.

Flooded Town
Fig 3.3 The location of stilt house and front-shop back-house based on the original plan of the Ciqikou Town
Stilt House Front-Shop Back-House
Fig 3.4 Street scene, old Zhong town(flooded), around 1990s
Fig 3.5 Street scene, old Zhong town(flooded), around 1990s
Fig 3.7 The axonometric drawing of the front-shop back-house
Fig 3.6 Street scene, old Zhong town(flooded), around 1990s

3.2 Front-Shop Back-House

Front-Shop Back-House

The first prototype, the front-shop back-house, as illustrated in Fig 3.7, is taken from a segment of the commercial corridor. The spatial layout—formed by stairs, platforms of varying heights, shops, and residential areas—appears as if it has naturally emerged from the hillside. Its form is relatively free, shaped by the surrounding landscape, and represents the most vibrant area in the entire town. This "street," created by the commercial corridor and surrounding shops, integrates commercial, leisure, and residential functions, acting as a transitional space between the dock and other parts of the town.

The stepped street consisting of stairways and platforms serves not only as an essential route linking the dock but also as a space for daily life and commercial activities (Fig 3.8). Migrants operate various shops and workshops here, often combining commercial storefronts with residential spaces, typically arranged as front-shop back-house or shop-below and dwelling-above layouts (Fig 3.9). The axonometric section in Fig 3.10 illustrates the everyday condition of this street, where street activities frequently extend into the shops, and domestic life often spills out onto the street. Essentially, the street functions as a shared "living room" for the migrants residing here, becoming part of the broader scale of the town. It provides a place for social interaction among migrants, cultivating a sense of community and shared identity.

In summary, the front-shop back-house typology provided migrants, drawn to the Three Gorges Corridor by commercial opportunities, with an effective architectural form for living and working together. Its integrated spatial arrangement encouraged interaction between domestic life and business activities, strengthening communal relationships among migrants. The flexible and adaptive use of space also fostered a sense of collective identity within the community. Thus, this typology illustrates how architecture can respond practically and organically to migrants' economic needs and daily life.

Front-Shop Back-House

Front-Shop Back-House

Various Elements:

When the movable door panels are fully opened, the shop space becomes part of the street. At this time, the shop and the outdoor platform connected to it together form a transitional space between the immigrants' personal or family living space and the communal space.

Various Elements:

As a soft material, tents divide the space of the "street" in a flexible way. Together with furniture such as tables and chairs, they form a way to define the boundaries of the space, and form a staggered spatial order with platforms of different heights.

Fig 3.11
The different spatial orders formed by the various elements on the street
Fig 3.12
The different spatial orders formed by the various elements on the street

The second prototype discussed here is the stilt house, another typical architectural type found in riverside towns. Unlike the front-shop back-house typology closely tied to commercial activities, stilt houses primarily responded to migrants' urgent need for affordable and adaptable residential space. They emerged as practical solutions shaped by both limited resources and the challenging riverside terrain.

Because migrants newly arrived in the Three Gorges Corridor often faced unstable living conditions and limited economic resources, many chose to build stilt houses on slopes close to the riverbank as temporary dwellings (Fig 3.13). These stilt houses were closely related to the terrain, designed to be quickly dismantled and rebuilt in case of floods. When a stilt house was swept away by flooding, migrants rebuilt it at the same location, usually making it stronger than before. Year after year, despite frequent flooding from the Yangtze River, the stilt house gradually developed and improved as a migrant architectural type.

Stilt houses were usually built on steep cliffs, constructed using tied wooden frameworks. When the cliff length exceeded that of a single piece of timber, it was impractical to join multiple timbers together due to reduced rigidity and load-bearing capacity. In such cases, the “legs” of the stilt house leaned diagonally against the rock face, creating inclined supports (Fig 3.14). This design maximised the utilisation of steep slopes, saving flat land while remaining practical and efficient.

In riverside towns, stilt houses clustered densely near the town's dock, forming continuous rows along the riverside. Their interconnected frameworks provided mutual support, reducing the risk of collapse (Fig 3.15). In central Chongqing, most stilt houses were located along the Yangtze and Jialing rivers and were primarily used as residences. The stilt house typology formed rich spatial relationships with varied terrains, meeting the migrants' demands for adaptability and flexibility (Fig 3.16).

Additionally, unlike traditional Chinese architectural typologies influenced by Confucian hierarchy36 (such as spatial divisions based on social status or gender), stilt houses represent a freer and more flexible method of spatial organisation. Their design does not follow strict planning principles or prioritise uniformity and hierarchy. Instead, migrants could freely construct and adapt these spaces according to their own needs. However, stilt houses also had clear drawbacks, notably their cramped and crowded interiors (Fig 3.17). In central Chongqing, for example, a single stilt house might accommodate several families, each

3.3 Stilt House
Stilt House
Fig 3.13
Stilt houses on the riverside of Chongqing's main city
House
Fig 3.14 Different stilt houses adapted to different terrains
House
House
Fig 3.15 Lost prototpye: Stilt house in vertical
Fig 3.16 Lost prototpye: Stilt house in horizontal

typically occupying a room of only a few square metres—barely enough space for two beds, with almost no additional area for other activities (Fig 3.20).

The lifestyle represented by stilt houses is essentially a collective and communal one. In this thesis, this form of collective living is discussed through two spatial organisation types: vertical (Fig 3.18) and horizontal (Fig 3.19).

Firstly, in the vertical direction, the spatial arrangement of stilt houses varies depending on the slope and how the structure connects with the terrain. For example, entrances can be arranged differently: in some stilt houses, the main entry is located on the first floor, connecting directly with higher street levels. Internal staircases link different floors, which in turn connect to outdoor platforms at varying heights through diverse spatial configurations (Fig 3.21). At the same time, internal spatial organisation demonstrates exceptional adaptability and inclusivity. The limited indoor space and close proximity of families foster neighbourly relationships. Common spaces like shared corridors, movable ladders, and balconies frequently accommodate public activities. Residents of stilt houses often utilise these shared spaces flexibly according to their needs. Moreover, spaces such as shared corridors, movable ladders, and balconies regularly facilitate community interactions. Residents often adapt these spaces, along with movable elements like ladders and balconies, to extend their living areas (Fig 3.22).

Another scenario occurs when a cliff is connected to a flat area: four or five single stilt houses cluster horizontally around a courtyard (Fig 3.23). This courtyard acts as a collective space shared by several migrant families. It connects houses at different ground levels, stairs on slopes, and serves as a transitional area between living spaces and functional rooms such as kitchens and toilets (Fig 3.24). Meanwhile, each stilt house has a similar layout and spatial organisation, allowing changes in function to accommodate various configurations for collective living.

In summary, the stilt house typology is a practical architectural solution responding effectively to migrants’ needs for flexibility, affordability, and adaptability. Although it has clear disadvantages, it successfully meets the changing demands of migrant families. The shared spaces—such as courtyards, corridors, and balconies—encourage collective living and social interaction. This makes the stilt house a valuable prototype, reflecting the collective wisdom of multi-generational households living closely together.

Stilt House Stilt House
Slab
Flexible Balcony
Moveable Ladder and Door
Wall and Windows
Column, Roof and Other Structure
Fig 3.19 The vertical spatial configuration of the stilt house
Fig 3.18
Stilt House connects different entrances and exits of outdoor platforms at different heights
Fig 3.20 Horizontal spatial configuration of stilt houses

Conclusion

This chapter has examined the typologies of architecture and spatial stratification of towns along the rivers in the Three Gorges Corridor before the dam. Through the examination of commercial corridors, front-shop backhouse, and stilt house typologies, it can be seen that early migrant societies had extremely pragmatic strategies to address geographical and economic constraints. These typologies were effective in blurring residential, commercial, and communal uses, creating spaces that represented a balance between economic survival and social intercourse.

The front-shop back-house model made it easy to blend domesticity with commerce and support close communal relationships within the migrant community. On the other hand, stilt houses presented adaptive, cost-effective, and practical solutions to migrants' short-term housing needs in challenging landscapes and supported communal bonds through communal spaces. Though the prototypes are today underwater and physically destroyed, their basics remain applicable.

Contemporary housing typologies can learn much from the flexibility and collective intelligence in these old models. The migrant communities have shown that buildings do not have to be rigidly planned but can develop organically in response to changing social and economic requirements. Hence, these lost models are still full of lessons regarding contemporary urbanisation and upcoming architectural design work in the Three Gorges Corridor.

Fig 3.22 The axonometric view of the front-shop back house, a section taken from the commercial corridor

Chapter 4

Design Strategies

This chapter explores the tangible ways to topple inflexible housing typologies in Chongqing main city from migrant households and changing needs. Through repurposing time-tested spatial arrangements such as the front-shop back-house and the stilt house, the chapter embarks on flexible solutions befitting living in the high-density realities of contemporary life.

Fig 4.1 An old residential community in Yuzhong District in Chongqing main city

4.1 Design Postion and Methodology

This research originates from the need to rethink and challenge the rigidity of government-led dominant housing typologies in Chongqing, especially in response to the evolving demands of migrant residents. The design proposals developed here serve as a practical guide, enabling residents themselves to initiate and carry out adaptive spatial transformations. Through strategic spatial interventions, this thesis seeks to significantly improve living conditions by addressing two essential contemporary needs: multigenerational co-living and the integration of working and living spaces. The design position advocates for a resident-centred agency, providing flexible tools and methods that empower inhabitants to actively shape their living environments.

Methodology

The methodological framework of this research begins by systematically examining lost prototypes—traditional spatial typologies from the Three Gorges area, notably the stilt house and the front-shop back-house structures. The research proceeds in two acts to test whether the flexibility and adaptability inherent in these historical typologies remain applicable and effective within today’s urban context:

Act One critically revisits the stilt house prototype to explore horizontal and vertical reconfigurations within the existing rigid typology of high-density residential towers. Spatial interventions at Minxinjiayuan, a public affordable housing project in Chongqing, specifically address multigenerational living needs by introducing adaptable communal spaces within the original structural framework.

Act Two applies lessons from the front-shop back-house prototype to relocation housing at Baixiangju. It investigates how flexible spatial elements can mediate the dynamic interactions between commercial and residential spaces along pedestrian circulation paths. This act demonstrates how past spatial logics can inform contemporary urban living to reconcile conflicts and enhance social interaction.

Overall, this approach verifies whether historical spatial principles can provide meaningful and practical solutions for contemporary spatial and social challenges.

Fig 4.2 The diagram of the methodology
Fig 4.3 The high-density urban environment of central Chongqing
Fig 4.4 The high-density urban environment of central Chongqing

37. China's three-child policy was introduced in May 2021, allowing couples to have up to three children in response to declining birth rates and an ageing population. This policy followed the previous two-child policy (2016) and the long-standing one-child policy (1979–2015), marking a significant shift in the country’s family planning regulations.

4.2 Act 1: Living within the Tower

The first act responds to the dominant housing type in Chongqing's main city—the high-density residential tower. The type of "living within the tower" tests whether design strategies learned from the stilt house—a lost prototype explored earlier in the research—can effectively work within today's rigid tower typology, specifically catering for multigenerational migrant families.

Here, multigenerational living refers to households comprising two to three generations. The older generation once lived in riverside towns now submerged, and currently divides their time between Chongqing's main city and newly built towns in dam-related resettlement projects. The younger generation includes the migrants' children, other individuals who moved here for various reasons, and children born following China’s introduction of the three-child policy37 in 2021.

The test site is Minxinjiayuan, the first public affordable housing project in Chongqing, previously discussed as a case in Chapter 2. The design test retains the core and other load-bearing structures of one tower in Minxinjiayuan (Fig 4.5), reorganising the spatial layout horizontally and vertically to create new shared communal spaces.

Fig 4.5 The typical floor plan of a tower building in Minxinjiayuan
and

Test 1-1: Horizontally Shared Spaces

The first design test builds upon the existing structural framework, reconfiguring the horizontal spatial arrangement by integrating shared spaces between adjacent units on each floor. Each unit accommodates a multigenerational household of two to three generations, while the shared space functions as a communal kitchen and dining area or a shared family activity zone. This strategy seeks to balance privacy across different generations within a limited spatial footprint, while simultaneously enhancing flexibility and adaptability in use.

For example, drawing on the historical spatial principles of the stilt house prototype examined in Chapter 3 of this thesis, the yard—traditionally enclosed by several independent stilt houses (Fig 4.6 )—is reinterpreted within the tower typology as a shared space on each floor. Within this configuration, the living spaces of different generations are conceived as independent “houses”, fostering both spatial autonomy and intergenerational interaction.

Test 1-2: Vertically Shared Spaces

In the second design test, the vertical organisation of space is reconfigured by introducing internal staircases that connect units across three floors. This allows different generations to reside on separate levels, ensuring privacy, while the middle floor serves as a shared space for functions such as a communal kitchen and dining area. The staircases positioned within the intermediate gaps between adjacent large-family units are also shared, transforming the stairwell into an additional communal space. Unlike the public staircases within the tower core, these internal staircases enable a high degree of spatial flexibility for multigenerational households within a high-density tower typology.

Similarly, drawing on the historical spatial principles of the stilt house prototype examined in Chapter 3 of this thesis, multiple small households traditionally coexisted within a single stilt house (Fig 4.7), where spatial adaptability was achieved through the dynamic organisation of corridors, staircases, balconies, and outdoor platforms integrated with the terrain. This spatial logic informs the reconfiguration of high-rise living, enabling functional adaptability within a constrained footprint.

Fig 4.7 Stilt House
Fig 4.6 Stilt House in horizontal
Fig 4.8 The floor plan of horizontally shared spaces
Fig 4.9 Horizontally shared spaces between living spaces of different generations

Design Strategies for Horizontal Shared Spaces:

When reorganising the spatial layout of the tower horizontally, each floor gains eight additional shared spaces (Fig 4.9). These shared spaces operate at two different levels. The first level, positioned in the gap between two adjacent units, is shared by two families. The second level is shared among multiple generations within a single family and placed between rooms occupied by different generations inside each unit (Fig 4.10).

Each shared space is either connected to a balcony or is itself a balcony, providing more natural light to the collective living areas. Additionally, balconies function as transitional zones between shared and private spaces. New door positions help reorganise the spatial order, allowing residents to reach shared spaces directly from the limited corridor area around the core on each floor, or by passing through their own unit's living room.

This spatial arrangement not only provides collective living spaces for migrant families but also creates opportunities for connections between different families. When family structures change—for example, when a two-generation family expands to three generations—a three-bedroom unit can be subdivided into two smaller units through shared spaces (Fig 4.11). Based on this principle, migrant families can exchange their units—such as one-bedroom, twobedroom, or three-bedroom types—when the number of generations living together increases or decreases.

Fig 4.10 Horizontally shared spaces between living spaces of different generations.
Fig 4.11 Different ways of dividing non-shared space
Fig 4.12 The axonometric drawing of these shared spaces between two units

Design Strategies for Vertical Shared Spaces:

When vertically reconfiguring the tower-type space, the original layout of 12 units per floor is retained, with staircases introduced either within individual units or between two adjacent units (Fig 4.15). These stairs vertically link three identical units on different floors, forming a single-family dwelling. One possible arrangement is illustrated in the axonometric drawing of Type A (Fig 4.16): the top and bottom floors accommodate two generations, while the middle floor serves as a shared communal space, where a bedroom can be added or removed according to changes in family structure.

In addition, the staircase itself can function as a shared space between two families. For instance, as shown in the section-perspective drawing of Type B (Fig 4.17), the staircase connects to the balcony on the middle floor, accommodating various family activities. The height difference between the staircase landings and floor slabs enriches the spatial layering, providing greater flexibility for spatial use. Similar to the horizontal spatial organisation, this approach can adapt dynamically to evolving family structures. Moreover, staircases positioned at the same location can be interconnected, transforming the shared space between two families into a larger communal area suitable for interactions among multiple households.

Fig 4.13 The section-prespective drawing of the shared spaces between two units
Fig 4.14
Fig 4.16 The axonometric drawing of these shared spaces in type A unit
Fig 4.17 The section-prespective drawing of the shared spaces in type B unit

The first act critically revisits spatial principles learned from the traditional stilt house prototype and tests their applicability within Chongqing's existing highdensity tower typology. By integrating horizontal and vertical shared spaces strategically into the rigid structural framework, the design experiments aim to incorporate greater adaptability and flexibility. Horizontally, shared spaces between two units allow for multigenerational families to balance privacy with communal interaction and different types can be configured differently and can be used to manage changes in the family structure of multiple families, effectively repurposing the closed stilt house yards of tradition. Vertically, internal staircases connect between multiple floors, facilitating dynamic response to changing family compositions, with communal middle-floor space for accommodating common activities. Vertical arrangements also present opportunities not only for flexibility in individual family groups but also for greater communal contact between nearby families. Staggered landings of staircases also promote greater spatial layering, presenting more opportunities for varied spatial use. The experiments on Minxinjiayuan, a tower building in Chongqing, confirm that despite the inherent stiffness of high-rise residential buildings, careful spatial insertion can significantly boost flexibility to changing family needs. Such an observation highlights the latent potential of nominally rigid tower typologies when guided by spatial logics form lost prototypes. Last but not least, the experiment proposes reintroducing historical principles of dwelling into contemporary housing design as an effective solution to overcome problematics for multigenerational migrant families. Conclusion

Test 1-1: Horizontally Shared Spaces Test 1-2: Vertically Shared Spaces
Fig 4.18 The diagram of the organisation of shared spaces in two different directions

The second act responds to the second dominant housing type in Chongqing’s main city: relocation housing. “Living with the street” tests whether design strategies derived from the lost prototype of the front-shop back-house can create a buffer zone between working spaces and living spaces through walkways that link commercial and residential functions.

Here, working spaces refer to small businesses such as shops, restaurants, or workshops operated by migrants within relocation housing. Living spaces refer to the residences directly adjacent to these working spaces, as migrants often live beside or behind their workplaces. In relocation housing, pedestrian circulation elements such as corridors, staircases, and platforms continue to serve the traditional function of the street as seen in riverside towns. The idea of the "street" in this act aims to test how reconfiguring working and living spaces, together with their relationship to pedestrian circulation, can restore the street’s role from the "front-shop back-house" prototype as a dynamic social living room.

The test site selected is the sky corridor in Baixiangju, previously discussed in Chapter 2. Currently, the corridor faces conflicts over spatial allocation between shop operators and residents. While maintaining the existing building structure, flexible and adaptable elements are introduced to adjust the spatial organisation of the corridor. This design test seeks to achieve a more balanced and socially interactive environment, mediating between residents’ needs and commercial activities.

4.3 Act 2: Living within the Street
Fig 4.19 A photograph of Typical street scene in Chongqing's main city

Field Trip in Chongqing Main City:

In August 2024, I conducted field research in Chongqing, documenting the process with photographs. This research allowed me to re-examine the central urban area from a design perspective, specifically focusing on understanding the relationship between commercial and residential spaces in current relocation housing.

Chongqing is a city built along mountains, featuring steep slopes and complicated terrain. In times when transport was underdeveloped, walking naturally became the primary mode of mobility. Corridors, footpaths, and staircases connected different locations at varying elevations, enabling people and goods to move efficiently through the mountainous urban landscape. Even today, despite advanced transport infrastructure, pedestrians can still reach certain destinations in a few minutes via footpaths, while vehicles may require significant detours around the mountains. Underground passages and pedestrian overpasses are common, and high-rise buildings built along hillsides have created a unique urban phenomenon: streets can be accessed from different levels of the same building.

Various corridors, footpaths, and staircases guide residents towards their destinations (Fig 4.19). These pedestrian routes not only facilitate movement but also act as intermediaries linking residential spaces with other urban functions (Fig 4.20). Compared to other cities, these transitional spaces in Chongqing closely resemble the idea of a "street." They share the spatial continuity of living and commercial areas illustrated by the front-shop backhouse prototype. Small shops, restaurants, fruit and vegetable stalls can all be found along these pedestrian routes.

However, in the high-density urban environment, residential areas and other functional zones have gradually become separated. Consequently, spaces within relocation housing with street-like qualities face continuous pressure. Existing spatial typologies lack sufficient inclusivity and adaptability for these streets, leading to conflicts over space allocation among residents, business operators, and passers-by.

Finally, based on observations from the field research, three distinct spatial types were identified according to their different ways of connecting pedestrian and residential spaces: bridge, deck access, and terrace (Fig 4.21&4.22). In Baixiangju, selected as the site for the design tests, all three street types can be found (Fig 4.23&4.24).

Fig 4.20 A photograph of typical street scene in relocation housing in Chongqing's main city
Fig 4.21 The diagram of three "street" type
Fig 4.22 Some scenes within differents relocation housing in Chongqing main city
Bridge
Deck access
Terrace
Fig 4.23 Design test site, Baixiangju in Wanglongmen complex
Fig 4.24 The three "street" types within the Wanglongmen complex
Bridge
Deck access
Terrace
Fig 4.25 The floor plan of the sky corridor of the current situation
Fig 4.26 The floor plan of the sky corridor with the reconfigures spaces

Design Strategies for Living within the Street:

The design strategy draws inspiration from the highly flexible elements of doors and tents found in the 'front-shop back-house' prototype, rearranging the spatial boundaries and door dimensions of the shops within the sky corridor (Fig 4.26). Unnecessary walls have been removed, leaving only shop doors to separate the shops from the corridor. When all doors are fully open, the shops seamlessly become part of the corridor.

Additionally, the placement of doors is informed by studying how tents in the prototype use soft materials to define spaces flexibly. For instance, a shop with two interfaces facing the corridor can close the door on one side completely when residents are playing mahjong, sunbathing, or chatting in the corridor. Meanwhile, if someone needs to exit Baixiangju via internal staircases, they can pass through the shop and leave through another interface where the door remains open (Fig 4.27). Such a spatial arrangement separates active circulation from static activities, ensuring public activities in the corridor and shop functions do not interfere with each other, enabling flexible and adaptable spatial conditions at different times and days.

Conclusion

The second act critically revisits spatial principles derived from the traditional front-shop back-house prototype and assesses their applicability within Chongqing's prevalent relocation housing typology. By strategically reconfiguring corridors, staircases, and platforms, the design experiments explore the potential of these transitional spaces to mediate between commercial activities and residential life.

The design interventions at Baixiangju's sky corridor confirm that existing conflicts over space allocation can be alleviated through carefully planned spatial adjustments. Removing some walls and integrating flexible openings transforms previously rigid corridors into interactive and adaptable streetscapes. These spatial rearrangements not only resolve tensions between residents and business operators but also restore the social vitality characteristic of traditional street life. Furthermore, the varied typological applications of bridges, deck accesses, and terraces highlight the inherent adaptability of walkway circulation routes when informed by historical spatial logics. Ultimately, the test demonstrates that integrating traditional street-oriented principles learned from the frontshop back house into contemporary relocation housing can effectively enhance spatial inclusivity, adaptability, to prepare for accommodating more migrants and fostering social interaction, addressing challenges faced by relocation housing in Chongqing main city and .

Fig 4.28 The axonometric view of the sky corridor with flexible doors

Bibliorgraphy

Fei, Xiaotong. From the Soil. Tianjin: Tianjin People's Publishing House.

Hu, Weijie. "A Family-Based Approach to Public Rental Housing in Chongqing, China: A Perspective of Rural Migrant Households." The Town Planning Review, ahead-of-print (2022): 1–14.

Hu, Weijie. "Housing and Occupational Experiences of Rural Migrants Living in Public Rental Housing in Chongqing, China: Job Choice, Housing Location, and Mobility." International Development Planning Review, ahead-of-print (2022): 1–26.

Lary, Diana. "The PRC Reform Era, 1978 to the Present." In Chinese Migrations: The Movement of People, Goods, and Ideas Over Four Millennia, 155–170. Lanham, MD, 2012.

Lefebvre, Henri. The Production of Space. Oxford: Blackwell Publishers, 1991.

Li, Shiqiao, and Esther Lorenz. Typological Drift: Emerging Cities in China. 2021.

Li, Yujie. "Migration and the Leapfrog Development of Chongqing’s Urbanisation." Journal of Yangtze Normal University 33, no. 3 (June 2017).

Li, Zhuting and Ouyang Hua. "Several Solutions to Solve Immigrant Housing Problems in Chongqing During the Anti-Japanese War." Huzhuang Architecture (2014): 170.

Liu, Xudong. The Order of a Mobile Society. Beijing: Minzu University of China Press, 2016.

Loyalka, Michelle. Eating Bitterness: Stories from the Front Lines of China's Great Urban Migration. Berkeley: University of California Press, 2013.

Miller, Tom. China’s Urban Billion: The Story Behind the Biggest Migration in Human History. London: Zed Books, 2012.

Min, Jie. The Research on Spatial Evolutions of Rural

Settlements in a Typical Area of the Three Gorges Reservoir Area: A Case Study of Wanzhou, Chongqing. PhD diss., Southwest University of China, 2015.

Ren, Fang. "A Study on the Market Town Economy in the Ming and Qing Dynasties in the 20th Century." Historical Research, no. 5 (2001).

Saunders, Doug. Arrival City: The Final Migration and Our Next World. London: Windmill, 2011.

Shao, Junyi. "Chongqing ‘Diaojiaolou’ Vernacular Dwellings."

Trenti, Riccardo William. Internal Migration in China: Origins, Development, and Effects on the City of Chongqing. Master’s thesis, 2021.

Wallace, J. L. Cities and Stability: Urbanisation, Redistribution, and Regime Survival in China. New York: Oxford University Press, 2014.

Wang, Hao. A Study on Urban Housing Issues in Chongqing During the War of Resistance Against Japan Chongqing: Southwest University of China Press, 2019.

Wu, Xiaoliu. "Urban Development and Everyday Life of Ordinary Labourers in Wartime Chongqing: 1937–1945." PhD diss., The University of Queensland, 2016.

Xin, Tan. A Ten-Year Follow-up on the Construction of the Living Environment in the Three Gorges Reservoir Area: A Case Study of Wanzhou, the Central City of the Reservoir Area. Master’s thesis, Chongqing University, 2006.

Yao, Qingshi. Research on Traditional Town's Spatial Environment Features and the Protection Strategies in Sichuan and Chongqing Areas. Chongqing: Chongqing University, 2015.

Zhang, L. Strangers in the City: Reconfigurations of Space, Power, and Social Networks Within China’s Floating Population. Stanford: Stanford University Press, 2002.

Zhang, Mei. China’s Poor Regions: Rural-Urban Migration, Poverty, Economic Reform, and Urbanisation. Abingdon, Oxon: Taylor & Francis, 2014.

Zhang, Xiaoyin. Study on the Morphology Evolution of Traditional Residences of BaYu Based on the Impact of Immigration. Master’s thesis, Chongqing University, 2015.

Deng, Hongxun. Breaking Out of the Dual Structure: Migrant Workers, Urbanisation, and New Rural Construction. Beijing: China Development Press, 2006.

Jingjing, Liu. Study on Stilted Building and Its Culture in Chongqing. Master’s thesis, College of Architecture and Urban Planning, Chongqing University, November 2015.

Li, Yujie. "Migration and the Leapfrog Development of Chongqing’s Urbanisation." Master’s thesis, Chongqing Normal University, 2017.

Shang, Yuan. "Below the Standard Market: A Study of Dispersed Rural Settlement Patterns on the Chengdu Plain and Skinner’s Theory on Marketing Hierarchy." Chinese Studies in History 51, no. 4 (2018): 321–333. https://doi.org/10.1080/00094633.2018.1568078.

Zhao, Wanmin. Three Gorges Project and Human Settlement Construction. Beijing: China Architecture & Building Press, 1999, 206.

Zhao, W. M. "A Visiting Human Settlements of the World: Cognition of Spatial Place of Human Settlements." Journal of Human Settlements in West China 35, no. 1 (2020): 116–124.

Shi, Yaling, Ji Li, and Liang Xiao. "Discussion on SocioSpatial Changes and Integrated Protection of Major Immigrants Relocating Historic Towns: Taking Gongtan Ancient Town in Chongqing as an Example." Urban and Rural Planning, no. 2 (2023).

Zeng, Yi. "Changes in Family Structure in China: A Simulation Study." Population and Development Review 12, no. 4 (December 1986): 675–703. Published by Wiley

Wiley on behalf of the Population Council.

Liu, Xuan. Research on the Spatial Transformation and Construction Methods of Traditional Residential Streets, Courtyards, and Rooms in Sichuan and Chongqing Ancient Roads. PhD dissertation, Xi’an University of Architecture and Technology, 2019.

Zhang, Zhen. Study on the Spatial Structure of Streets in Three Gorges Towns. Master’s thesis, Chongqing University, 1999.

Lin, Xiaoli, Xueshuang Deng, and Dongqi Luo. "Formation and Solutions of ‘Facade Households’ Among Reservoir Migrants: A Case Study of the Three Gorges Reservoir Area in Chongqing." Tongfang Knowledge Network (Beijing) Technology Co., Ltd, 2015

Chapter 1

Fig 1.1 Clip from the movie Still Life.

Fig 1.2 By Author.

Fig 1.3 A photograph of Chongqing's main city as a Mountain City, Source: https://www.vcg.com/ creative/1411372488.html

Fig 1.4 Gongtan ancient town in Chongqing region, Source: http://m.lythw.com/gongtan/pic12288.html

Fig 1.5 Chongqing bangbang, Source:https:// www.xiaohongshu.com/explore/62a9658600000 00014019cdb?xsec_token=ABSvpD4fIzK-ZgTclAGbZpPqjQnJkYuFuIodq_XrQumM=&xsec_ source=pc_search&source=web_explore_feed

Fig 1.6 A photograph of Chongqing’s main city taken from Chaotianmen Bridge, Source: https://www.vcg. com/creative/1280186329

Fig 1.7 By Author.

Fig 1.8 The Map of Yu City, painted during the Qing Dynasty, is currently housed in the National Library of France.

Fig 1.9 Street scenes in Chongqing during the war, Source:https://kknews.cc/zh-my/history/vryp2na.html

Fig1.10 Descending passage on the southern side of Chaotianmen, Source: https://mp.weixin.qq.com/ s/77w2XJbskq6Yszi5FVuHRA

Fig1.11 The densely built Wartime housing area near Linjiangmen Wharf, Source: Li Zhuting, Several Solutions to Solve lmmigrant Housing Problems in Chongqing during the Anti-Japanese War, Huzhuang Architecture, p170, 2014

Fig 1.12 A photograph of a thriving commercial scene, Source: https://kknews.cc/zh-my/history/vryp2na. html_

Fig 1.13 A photograph of street in Chongqing main city, Source: https://mp.weixin.qq.com/s/tYTgofpf4gQ6o_jnWuWEg_

Fig 1.14 A series of photographs depicting ganji scenes, around 1980s, Source:_ https://mp.weixin.qq.com/s/ xbnFq5lCKXAR92jc_XaCDQ

Fig 1.15 The Three Gorges Dam, Source: https://www. vcg.com/

Fig 1.16 Before and after comparison of flooded Fengji town, Source: https://mp.weixin.qq.com/s/ thBAQlFIM731n0hBVafF-A

Fig1.17 A series of photographs of towns that are about to be flooded after being demolished, Source: Photograph by Wang Jingchun

Fig1.18 The frontshop housing in resettlement community, Fengjie Town, Source: Photograph by author

Fig1.19 By Author. Chapter 2

Fig 2.1 Shancheng Lane, Source: Rednote, Photograph by zhouzhou

Fig 2.2 A photograph of mixed used spaces, Source: WeChat Official Account

Fig 2.3 A detailed street map of Chongqing based on Fu Chongju's description of the streets in Chongqing, Source: Chongqing Archaeology WeChat Official Account

Fig 2.4 The cover of the 1937 edition of Chongqing Guide, Source: Chongqing Archaeology WeChat Official Account

Fig 2.5 Huguang Guild Hall, Source: Rednote, Photograph by chuantiantonghua

Fig 2.7 Gongtan ancient town, Source: VDG.com, ID:VCG21116223268

Fig 2.8 By Author.

Fig 2.9 A bird’s-eye view photograph of MinxinJiayuan Source: Baidu Pictures

Fig 2.10-Fig 2.13 By Author.

Fig 2.14 Wanglongmen Residential Complex Source: Chongqing Institute of Architecture and Engineering, (now Chongqing University) Teacher Architecture and Planning Design Portfolio

Fig2.15 By Author.

Fig2.16 Sky corridor in Baixiangju, Source: Rednote

Fig2.17-2.19 By Author.

Fig 2.20 Different communal spaces connected to the walkway system

Fig2.21 By Author.

Chapter 3

Fig 3.1 The last stilt house in Chongqing's main city, Source: VDG.com, VCG211376463197

Fig3.2-3.3 By Author.

Fig 3.4-3.6 Street scene, flooded old Zhong town, around 1990s, Source: Baidu Pictures

Fig 3.7-3.12 By Author.

Fig 3.13 Stilt houses on the riverside of Chongqing's main city, Source: Baidu Pictures

Fig 3.14 Different stilt houses adapted to different terrains, Source: Baidu Pictures and Clip from A Stiltes City, Chungking, China (1930)

Fig 3.15-3.22 By Author.

Chapter 4

Fig 4.1 An old residential community in Yuzhong District, Chongqing main city, Source: VDG. com,ID:VCG211337860356I

Fig 4.2 By Author.

Fig 4.3-4.4 The high-density urban environment of central Chongqing, Source: Photograph by harper

Fig 4.5-4.18 By Author.

Fig 4.19-4.20 Photographs of typical street scene in relocation housing in Chongqing's main city, Source: Photograph by harper

Fig 4.21 By Author.

Fig 4.22 Fig 4.22 Some scenes within different relocation housing in Chongqing main city, Source: Photograph by Author.

Fig 4.23 By Author.

Fig 4.24 The three "street" types within the Wanglongmen complex, Source: Baidu Pictures

Fig 4.25-4.28 By Author.

Acknowledgement

I am deeply grateful to the many people who supported me in completing this work on the stories of the Three Gorges Corridor. I would like to thank my parents, Rongli Yao and Xinqing Yan, and my dearest sister, Xixi, whom I hold closest to my heart, for their unwavering support throughout my life. I am also truly thankful to all the people I encountered during my field research in Chongqing—through them, I genuinely felt the deep affection and attachment they have for the city, and I am grateful for their generosity in sharing their lives with me.

A special thanks goes to my Projective Cities crew. Your endless support with language and writing, as well as your companionship through countless challenging moments, meant the world to me. Because of you—Projective Ladies—this journey has been one to treasure.

Most importantly, I would like to thank my mentors at Projective Cities. My deepest gratitude goes to Platon Issaias and Hamed Khosravi. Your consistent support, critical insight, and unconditional help over the past two years have been a continual source of motivation. I am also thankful to Roozbeh EliasAzar, Gristina Gamboa, and Daryan Knoblauch for your guidance and for helping me see London, Barcelona, and Berlin through a new lens. A heartfelt thanks to Anna Font Vacas, whose countless conversations with me over the past two years offered invaluable support in shaping my academic writing.

Lastly, I would like to thank all the friends and strangers who offered kindness and support during my two years in London. Their presence made a foreign land feel like home and left me with memories I will always hold dear.

This thesis is also dedicated to myself—seven years into the journey of studying architecture.

Architectural Association

MPhil in Architecture and Urban Design - Projective Cities

Turn static files into dynamic content formats.

Create a flipbook
Issuu converts static files into: digital portfolios, online yearbooks, online catalogs, digital photo albums and more. Sign up and create your flipbook.