Dissertation_Shuyan Gong

Page 1


Simulating Urbanity

From Malls to Collective Urban Life in Beijing

Shuyan Gong

Program: Projective Cities, Taught MPhil in Architecture and Urban Design

Student Name: Shuyan Gong

Dissertation Title: Simulating Urbanity / From Malls to Collective Urban Life in Beijing

Course Tutor: Platon Issaias

Hamed Khosravi

Anna Font Vacas

Roozbeh Elias-Azar

Cristina Gamboa

Daryan Knoblauch

MPhil in Architecture and Urban Design Projective Cities, 2023/2025

Architectural Association School of Architecture Graduate School

Declaration:

“I certify that this piece of work is entirely my/our own and that any quotation or paraphrase from the published or unpublished work of others is duly acknowledged.”

Shuyan Gong March, 2025

PREFACE

Before you is the Taught Master of Philosophy (MPhil) dissertation entitled ‘Simulating Urbanity- From Malls to Collective Urban Life in Beijing’. This dissertation was written to satisfy the graduation requirements of the Architecture and Urban Design- Projective Cities programme of Architectural Association School of Architecture. I was engaged from April 2024 to March 2025 in researching, analysing, designing, and writing this dissertation.

Throughout my previous architectural studies, I have noted a particular fascination with buildings that rely on circulation to shape spatial qualities amongst a number of typologies, and a curiosity about the wider historical and contextual advocates that have driven the development of architecture behind. Beijing's shopping malls were chosen as the subject of my research not only because I am familiar with their cultural context, but also because of the increasingly blurred boundaries between them and today's urban spaces. I learnt about the changing forms, scales, management patterns, and power structures of the malls through historical research and spatial analysis, and suggested test proposals suitable for the future public construction of the mega-volume city with a developmental perspective. In the process, I practised very solid research methods, effective analytical approaches and credible design derivations, and gained more academic experience. As a result, this dissertation brings me the historical vision capable of penetrating space and the habit of constant exploration.

ACKNOWLEDGEMENT

This dissertation would not be possible without the help from many people in the process. First and foremost I would like to pay tribute to Projective Cities staff. I express my deepest appreciation to my tutors Platon Issaias, Hamed Khosravi, and Anna Font Vacas, who provided academic guidance and invaluable support throughout my study process, fuelling my advancement and dissertation development. I would also like to thank Roozbeh Elias-Azar, Cristina Gamboa and Daryan Knoblauch, whose guidance helped me to develop a research-orientated mindset, laying the foundation for my work.

I would also like to thank my six amazing colleagues in the programme, whose support have been invaluable during challenging times. Additionally, I am grateful to the alumni of the previous years, whose insights and suggestions have greatly informed my research. I deeply appreciate my teachers, colleagues, and friends in Beijing, London and everywhere in the world who have inspired and supported me in countless ways. A special thanks to my mentor, Chief Architect Liu Miao, whose continuous encouragement has been a driving force on my academic path. Finally, my heartfelt gratitude goes to my family and my boyfriend, for their unconditional love, support, and companionship throughout this journey.

ABSTRACT

This dissertation explores the invention and application of the shopping mall typology in order to study the spatial evolution of malls in Beijing. The typology was first proposed by Austrian architect Victor Gruen in the 1950s, with the goal of creating enclosed retail spaces that simulate dense, multi-used urban life in suburban areas of the United States. The two functions of this invention are shaped and reinforced by two types of architectural elements, one that encourages users to linger and facilitates socialisation, such as open staircases, escalators and atriums, while the other enables consumer interventions through vision and mobility, such as transparent storefront windows and hidden logistical spaces. Their forms and effects are preserved as they are introduced into the urban environment, and become the main thread in this study of the transformation of Beijing’s shopping malls along the timeline.

Commercial activities in Beijing at the beginning of the city’s construction in the 1950s took place in state-owned markets and department stores, which were organised spontaneously and organically by the citizens and had a strong public dimension. However, during China’s reform and opening up period in the 1980s, changes in economic policy drove the introduction of western shopping forms into Beijing. The adaptation of mall spatial elements implanted a spatial management approach dominated by private interests, creating over-controlled consumer services and leading to a decline of the publicness of Beijing’s malls. This project responds to the privatisation of urban space with proposals that address the outdoor components of mall buildings and establish public co-responsibility and mutually beneficial collective living scenarios, aiming to restore the publicness of Beijing’s commerce as it once was.

By analysing and learning from interior architectural elements that shape the social attributes of the mall typology, such as vertical circulation and atrium, the project tests the instrumentality of these elements in the context of today’s shopping spaces in Beijing, including the outdoor system of overpasses and platforms, as existing materials for collective commercial design, aiming to form spatial organisations capable of shaping social aggregation. At the same time, learning from existing informal daily commercial activities, such as flea markets and food stalls, ensures that the new public program conforms to the urban territorial conditions of the Beijing city. By exteriorising the mall circulation in reverse, the project enhances the community cohesion and balance between multiple user identities, creating a collective urban living space that promotes public consumption and interaction.

INTRODUCTION

and its Socio-spatial Consequences in China, p.22. The University of Hong Kong,

Fig 1. Urban shopping scene in commercial pedestrian streets in Xintiandi, Shanghai, China, photo, 2008. In Shenjing HE, A Political Economy Analysis of Urban Redevelopment
2016.

Transformation of Urban Ownership

The transformation of shopping spaces in Beijing reflects broader shifts in urban governance, economic structures, and spatial privatisation, revealing a critical tension between commercialisation and public accessibility. This dissertation addresses the spatial evolution of Beijing’s shopping malls and its implications for urban publicness, and traces the evolution retail spaces from open marketplaces and state-controlled department stores to highly manages, privately owned commercial complexes. Through spatial analysis and historical research, this dissertation explores how these transformations have reconfigured the nature of public participation in commercial spaces, redistributing the power relations between state, private enterprise, and city consumers. In response to the growing privatisation of urban shopping malls, the project presents a design practice that revived the publicness of Beijing’s commercial environment by engaging with urban spatial conditions facilitating collective interaction. Through this approach, the project aims to reimagine shopping as a force for urban social life rather than a mechanism for private property rights to dominate consumers.

The increasing academic focus on shopping spaces as both functional and social entities has gained increasing attention in contemporary architectural discourse, reflecting their key role in shaping urban public life. The Harvard Design School Guide to Shopping, edited by Rem Koolhaas and his research team, provides a comprehensive exploration of this phenomenon, constitutes a substantive examination of the phenomenon, situating shopping in the position of architectural and urban transformation. The book argues that shopping is no longer confined to specialized shopping spaces but has invaded other urban activities, reshaping streets, transportations hubs, cultural institutions, and even educational and healthcare facilities[1]. This omnipresence of shopping reflects the shaping of contemporary urban planning by the commercial logic: atriums, escalators, circulation routes, and display strategies, once exclusive to shopping malls, now define the very fabric of urban spatial design.

As shopping becomes increasingly integrated into diverse urban spaces, its role as an organising principle for city life becomes more apparent. In this sense, retail spaces are not independent commercial areas but a part of a greater urban structure that organises movement, interaction, and identity construction. The retail spaces therefore now function as intermediaries between public and private realms, organising social interaction patterns, mobility, and spatial

[1] Leong, S.T., 2001. And then there was shopping. Harvard design school guide to shopping, pp.129-155.

[2] Xue, C.Q., Ma, L. and Hui, K.C., 2012. Indoor ‘Public’Space: A study of atria in mass transit railway (MTR) complexes of Hong Kong. Urban Design International, 17, pp.87-105.

[3] Sit, V.F., 1996. Soviet influence on urban planning in Beijing, 1949-1991. Town Planning Review, 67(4), p.457.

[4] Gruen, V., 2017. Shopping town: Designing the city in suburban America. U of Minnesota Press.

organisation[2]. The study categorises shopping as a principle of organisational urban form, examining the ways in which malls, department stores, and consumer-oriented public spaces have developed into forces that frame civic experience. By building on Koolhaas’s research, this dissertation contextualises Beijing’s retail transformations within a global discourse on the spatial implications of shopping and critically assesses how these developments have affected the city’s collective urban life.

Beijing’s unique political and economic trajectory makes the study of its commercial spatial transformation particularly important in a global context. Unlike most Western cities, in which retail environments developed through private market-based mechanisms, Beijing’s commercial history is highly interwoven with national and governmental planning. As the capital of China, its urban core (centred on the Forbidden City and surrounded by the Second Ring Road) has long been a site where economic and political agendas converge. After 1949 Beijing’s urban planning prioritised the modernisation of its core, while maintaining its symbolic role as a political and cultural centre[3]. The emergence of large-scale administrative and commercial developments, such as Wangfujing, is in line with the state’s ambition to build a modern urban identity. But it was not until the 1980s, when economic reforms with market orientation were started, that the retail environments in Beijing underwent a revolutionary transformation. The adoption of Western shopping mall typologies introduced new spatial strategies to enhance commercial profitability, transforming the relationship between public life and retail spaces[4]. Shopping malls, initially conceived as enclosed simulations of urban space, began to reshape the city’s spatial organisation, displacing traditional marketplaces and street-based commerce with controlled retail environments.

This shift marked the beginning of a broader process of spatial privatisation. The state retains ownership of land in China, however the commercialisation of commercial space through long-term leasing agreements and private investment has essentially reconstituted the urban retail environment. Shopping malls, originally conceived as public gathering spaces, gradually became privatised zones governed by commercial interests. This transition from publicly accessible urban spaces to privately owned commercial space reflects broader patterns of spatial privatisation found in global cities. In Beijing, however, this was particularly notable due to the rapid influx of foreign retail models and the

restructuring of state-owned enterprises. The displacement of traditional public markets, the introduction of high-end shopping districts, and the increasing segmentation of consumer spaces contributed to the erosion of the public attributes of shopping environments[5]

The privatisation of Beijing’s enclosed shopping spaces has changed the management model and ownership system of urban spaces. As Wang Yiming writes in Pseudo-Public Spaces in Chinese Shopping Malls, China’s malls have created a new pseudo-public urban space that operates under a private-sector governance structure where access and activities are regulated by private entities[6]. Unlike traditional public squares or marketplaces, which historically facilitated open and spontaneous social interactions, contemporary shopping malls impose a highly curated and controlled circulation. While this evolution of spatial form does enhance the richness of the urban experience, the architectural elements of these spaces, ranging from façades and display windows to circulation patterns and atriums, functions as an apparatus for consumer regulation, dictating movement, engagement, and visual exposure to commercial stimuli[7]. Koolhaas’s concept of “control space” in Predicting the Consumer, where architectural design is used to influence movement and interaction, is particularly relevant here. In Beijing, this manifests in the dominance of privately operated commercial zones where consumer behaviour is carefully choreographed to maximise profit at the cost of normal public life.

This dissertation examines critically examines the meaning of this transformation and proposes an alternative way to reintroduce publicness into Beijing’s commercial spaces. The methodology of this project locates Beijing’s commercial transformation in a broader architectural and urban conversation regarding consumption, public space, and space governance. Rather than considering consumption as a purely economic forces, the design considers its social potential as an urban infrastructure for city living, capable of fostering inclusive urban experiences. The project proposes a reconfiguration of shopping environments that prioritises autonomy, inclusivity and community engagement through spatial models that encourage interaction and participation. By examining present commercial interactions and urban retail patterns in Beijing, the research identifies spatial conditions for reclaiming publicity for contemporary shopping environments. The design concludes with a proposal for an urban construct that reinterprets the architectural principles of shopping malls to create an open, flexible, and collectively accountable basis for the organisation of urban life.

Wangfujing, the testing site for this design, embodies the potential of Beijing’s evolving commercial landscape. Ranked among the city centre’s most important consumer districts, Wangfujing represents both the successes and

[5] Wang, Y., 2019. Pseudo-public spaces in Chinese shopping malls: Rise, publicness and consequences Routledge.

[6] Bloch, P.H., Ridgway, N.M. and Dawson, S.A., 1994. The shopping mall as consumer habitat. Journal of retailing, 70(1), pp.23-42.

[7] Goss, J., 1993. The “magic of the mall”: an analysis of form, function, and meaning in the contemporary retail built environment. Annals of the association of American geographers, 83(1), pp.18-47.

the limitations of China’s urban commercialisation. This research investigates Wangfujing’s current urban conditions, through analysis of its compositional functionality, demographic patterning, and spatial characteristics in an effort to create a new model of public-oriented commercial design. By integrating social interaction and consumption into a coherent urban strategy, the project aims to realise a retail context that reinforces community urban living.

This approach not only counters the problem of ‘pseudo-public space’ in Beijing’s mall spaces but also revitalises the collective identity of Beijing’s urban core. The findings have implications beyond Beijing, offering a replicable framework that can be adapted to other cities experiencing similar tensions between commercialisation and publicness, in response to the challenges of privatising urban space globally. By redefining the relationship between commerce and collective urban identity, the research challenges conventional notions of shopping as a purely economic activity and instead positions it as a critical mechanism for shaping inclusive, participatory, and dynamic urban environments, demonstrating that architectural space adapts to the demands of a changing environment by rethinking its relationship with the city.

Research Method, Questions, Objectives, Aims and Structure

Research Method

Methodologically, the dissertation integrates historical analysis, typological study, and urban design strategies to formulate a new perspective on the role of shopping in city-making. This dissertation investigates three core topics using distinct research methods. The first examines the invention of contemporary shopping mall typology, focusing on Victor Gruen’s designs and their spatial organisation through archival research and technical drawings study. The second part examines the evolution of Beijing’s shopping centres, using a combination of historical research and spatial analysis to analyse their historical changes and spatial attributes. The third part explores urban consumer activities and environmental conditions in Beijing’s core area, relying on field research to understand the relationship between public commercial spaces and their urban environments. Together, these methods provide a comprehensive framework for analysing the interplay between mall typology, urban environments, and public life.

Research Questions

Typological Questions

• What are the key spatial elements that constitute the mall typology?

• How are these elements arranged or combined to interiorise urban life?

Urban Questions

• What are the differences between the attributes of mall space in suburban and urban environments?

• What are the characteristics of shopping malls in Beijing city centre before and after the introduction of the Western mall typology?

Disciplinary Question

• Could the shopping mall typology be extended and returned to the city to construct collective life, while reversing the private and public attributes of urban commercial space?

Objective

To observe the evolving spatial forms of Beijing’s commerce, focusing on the changes in spatial power triggered by the introduction of western mall typological spatial qualities through the application of architectural elements; and to learn from typological spatial organisations and existing forms of urban public activity, to create a new model of collective life in Beijing.

Aims

The project goes beyond the demotivation of the real economy caused by online shopping and focuses on forms of urban collective life combined with commercial activities, aiming to challenge the privatisation of urban mall space in Beijing, to reconstruct a public-driven power structure, to restore the original publicness of Beijing’s commerce, and to provide a sample of the global trend towards the commercialisation of urban space.

Dissertation Structure

This dissertation is divided into four chapters, the first three of which examine shopping mall architecture layer by layer, while the last chapter describes the design of collective urban life with Beijing as a testing ground. Chapter 1 investigates Victor Gruen’s concept of designing shopping mall typology and analyses cases from the 1950s to the 1960s, focusing on their architectural elements and the spatial qualities they characterise for enclosed malls. Chapter 2 explores the evolution of spatial forms of Beijing’s commerce in different economic contexts along the timeline, observing through spatial analysis the onset of privatisation in the 1980s and its subsequent gradual expansion, which explains the loss of publicness in Beijing’s malls today. Chapter 3 shifts the focus from indoor malls to outdoor urban commercial spaces, learning from existing urban spatial elements and forms of public activity combining consumption and socialisation in Beijing’s core urban areas as design references. Chapter 4 illustrates the connection between design and mall research, detailing a proposal for urban collective living aimed at restoring the publicness of Beijing’s commerce.

Chapter 1

SHOPPING MALL TYPOLOGY

This chapter historically selects three precedents of shopping malls designed by Victor Gruen in suburban United States as research objects, to observe the spatial qualities of mall typology from the perspective of spatial organisational genealogy. The chapter is divided into two parts: the first part resolves the background of mall typology’s invention from historical literature, and the second part analyses the spatial attributes of the mall typology by dismantling the architectural elements, and they provide preliminary information for the evolutionary study of Beijing’s shopping malls.

Fig 2. Garden Court At Southdale Centre, Minneapolis, Minnesota, photo, 1972. In Connie Wang, Why The Mallpocalypse Hasn't Come For The Mall Of America, 2017.

Library of Congress’s Prints and Photographs division

Fig 3. John L. Stoddard, the Graben towards the northwest, late 19th century, Gruen got the concept for the shopping centre from the dense pedestrian area. In the United States

[8] Hardwick, M.J., 2005. A Viennese refugee and the re-forming of American consumer society. Jahrbuch für Wirtschaftsgeschichte/ Economic History Yearbook, 46(2), pp.89-114.

1.1 Mall-to-City Simulation

Victor Gruen, an Austrian-born architect who emigrated to the United States, designed more than 50 shopping centres during his career, fundamentally influencing the development of the modern retail environment. From these, three key cases have been selected and analysed: Southdale Centre (1956), Randhurst Mall (1962) and Monroeville Mall (1969). Conceptually, the three malls span a long historical period, each reflecting a different social and economic context that shaped their design objectives. Spatially, their circulation designs represent different features of the street structure, but at the same time all share the overarching goal of placing urbanity in a suburban setting. This part examines the contextual reasoning and conceptual changes in Gruen’s design of the spatial organisation of the mall typology, which condenses the urban living and pedestrian conditions within the enclosed interior, and thus simulates the public attributes of the city.

Victor Gruen’s Design Concept

Victor Gruen (1903–1980) was an Austrian architect and urban theorist whose work fundamentally transformed the retail architecture of the mid-20th century. His development of the modern shopping mall typology was driven by both socio-economic conditions and architectural ambitions to recreate the social vibrancy of European urban life in the emerging American suburbs. Born and educated in Vienna, Gruen was deeply influenced by the city’s compact, walkable districts, where commerce, social life, and urban infrastructure coalesced within a dense spatial framework.[8] The typology he would later establish in the United States drew on these urban qualities, aiming to create enclosed, community-oriented environments that could simultaneously accommodate retail activities and collective social life. His contribution to retail architecture was prolific: between the 1940s and 1970s, Gruen and his firm were involved in the design of over fifty shopping malls across the United States, each embodying variations of his core spatial principles.

Gruen’s design philosophy emerged against the backdrop of post-war suburbanisation in the United States. Following the end of World War II, the country experienced unprecedented economic growth, accompanied by demographic shifts and urban expansion. Suburban communities proliferated, facilitated by infrastructure investments such as the Federal-Aid Highway Act of 1956 and mortgage support programmes that encouraged homeownership beyond urban centres. This suburban migration fragmented traditional patterns of public life; while city centres historically provided commercial and social

Fig 4. Kalamazoo Mall, nation’s first pedestrian mall, photo, opened in 1959, expressing Gruen’s design idea bringing together commerce, social life and urban infrastructure. In Kelly Gregg, Conceptualizing the pedestrian mall in post-war North America.
Fig 5. Fulton Mall, Fresno County, CA, drawing.From urban vehicular traffic to commercial pedestrianisation designed by Victor Gruen and Garret Eckbo in 1964.

Fig 6.1. Southdale Centre, Edina, Minnesota, masterplan, 1956. Reflecting Gruen’s desire to concentrate multifunctionality in shopping centres. In Hüseyin Tunçbilek, Gökmen Deniz, Assessment of the Malls In Terms of Comfort Condition for Consumers, 2020.

Fig 6.2. Southdale Centre, Edina, Minnesota, bird’s-eye view photography, 1956. The mall in a suburban context simulate urbanity indoors. From the PBS documentary “10 Buildings That Changed America,” WTTW Public Television, 2012.

[9] Mohl, R.A., 2001. Urban expressways and the racial restructuring of postwar American cities. Jahrbuch für Wirtschaftsgeschichte/Economic History Yearbook, 42(2), pp.89-104.

[10] Malherek, J., 2022. Free-Market Socialists. Adler, 19(20), pp.25-64.

[11] Malherek, J., 2019. Shopping Malls and Social Democracy: Victor Gruen’s Postwar Campaign for Conscientious Consumption in American Suburbia. Consumer Engineering, 1920s–1970s: Marketing between Expert Planning and Consumer Responsiveness, pp.79-98.

convergence, the new suburban landscapes prioritised private residential areas and car-dependent infrastructure.[9] Gruen recognised the resulting spatial void and sought to address it by introducing enclosed commercial complexes that replicated the qualities of urban public spaces.

Simultaneously, Cold War geopolitical concerns influenced architectural planning. The period was marked by anxieties regarding nuclear threats and civil defence strategies, prompting urban planners to consider decentralisation and enclosed structures as potential protective measures. Shopping malls, with their large, windowless walls and internalised layouts, were sometimes framed as secure environments for daily activities. Southdale Centre, the first fully enclosed, climate-controlled shopping mall in the world, exemplified this dual role as both a commercial facility and a potential model for self-sufficient suburban communities. Gruen envisioned Southdale as more than a retail hub; his original masterplan included residential buildings, schools, and medical centres arranged around the central mall.[10] Based on the Southdale prototype, Gruen refined his scheme to design the Randhurst Mall in Mount Prospect, Illinois and the Monroeville Mall near Pittsburgh, Pennsylvania.

While these three malls differ in their spatial configurations, they collectively illustrate Gruen’s consistent design objective: to reproduce the sensory, social, and navigational characteristics of traditional urban settings within enclosed, suburban retail environments. These early projects also laid the groundwork for the subsequent global proliferation of shopping malls, including their introduction to Beijing, where the typology intersected with distinct urban traditions and spatial practices.

Forms of Condensation

Victor Gruen’s mall designs demonstrate how architectural techniques can replicate the complexity and vibrancy of urban life within suburban interiors. By borrowing spatial qualities from traditional city streets—such as walkable corridors, centralised gathering spaces, and layered visual experiences— these malls aimed to recreate public life in environments otherwise dominated by private residences and automobile infrastructure.[11] Southdale Centre, Randhurst Mall, and Monroeville Mall exemplify this condensation of urbanity, each transforming familiar amenities of outdoor public life into controlled interiors. Their success in simulating urban qualities lies in their specific manipulation of scale, light, texture, and material to foster a sense of urban life.

Despite their differences in layout, the three malls share fundamental characteristics that contribute to this urban simulation. All three buildings’

Fig 6
Fig 7
Fig 6.3. Randhurst Mall, Mount Prospect, Illinois, photo of model with Victor Gruen (left) and George M. O'Neill, 1962. From Randhurst: Suburban Chicago’s Grandest Shopping Centre.
Fig 6.4. Monroeville Mall, Monroeville, Pennsylvania, bird’s-eye view photography, 1969. From Histories & Mysteries: The Age of Suburban Flight sparks new era of shopping Centres, malls.
Fig 7.1. Southdale Centre, Minnesota, 1956. Axonometric drawing, drawn by author.
Fig 7.2. Randhurst Mall, Illinois, 1962. Axonometric drawing, drawn by author.
Fig 7.3. Monroeville Mall, Pennsylvania, 1969. Axonometric drawing, drawn by author.
Fig 8.1. Southdale Centre, photo, 1986. The design indoorises the sensory dynamics of the city.
Photo by Larry Salzman/AP.

[12] Arnheim, R., 2008. Margaret Morse. Cultural Studies: An Anthology, p.366.

[13] Gregg, K., 2019. Conceptualizing the pedestrian mall in post-war North America and understanding its transatlantic transfer through the work and influence of Victor Gruen. Planning Perspectives

indoor environments are maintained at constant temperature, humidity and airflow by a centralised HVAC system, to create spaces where public interaction can take place year-round, regardless of seasonal variations. With atrium heights ranging from 12~17 metres, the glazed roof provides natural light reminiscent of an open plaza, diffusing daylight through the structural grid to simulate the atmospheric conditions of a pedestrianised street. Their prevalent corridor widths are maintained at 5 metres or more, to meet the need for social interaction and at the same time maintain sufficient circulation capacity. T he storefronts are ar ranged with transparent display windows along the circulation routes, encouraging continuous visual interaction and simulating the urban shopping street façade and the spatial logic that it represents. Within these parameters, Gruen’s malls translate the sensory dynamics of outdoor environments into interiors that function as social gatherings.[12]

The interior spatial design of the shopping malls reflects Gruen’s ambition to create what he described as an ‘urban island in a sea of car parks.’[13] Built in Edina, Minnesota, in 1956, the Southdale Centre’s glass-roofed natural light mimics the openness of a city square, evoking the visual interplay of an urban shopping street. The Randhurst Mall, designed by Gruen for Mount Prospect, Illinois in 1962, has a central landscaped atrium surrounded by corridors, as if urban thoroughfares converging on a civic centre. The Monroeville Mall, which opened around Pittsburgh, Pennsylvania, in 1969, creates a sense of shoppers traversing a multi-level urban centre.

Across these three malls, Gruen consistently sought to simulate the spatial qualities of public urban life within indoor environments. The combination of expansive atriums, daylight-filled corridors, climate control systems, and layered vertical circulation condensed the sensory and social experiences of outdoor streets into cohesive architectural forms. Through these configurations, Gruen interiorised urban life, providing suburban communities with artificial cityscapes that encouraged collective interaction while aligning with the economic imperatives of post-war retail development.

Circulation Characteristics

While Victor Gruen’s shopping malls share a consistent typological organisation through their corridor-based spatial frameworks, each of his three studied cases—Southdale Centre, Randhurst Mall, and Monroeville Mall— simulates distinct urban circulation characteristics. These differences reflect Gruen’s efforts to replicate specific qualities of public urban environments within enclosed retail spaces, drawing from the spatial logic of well-established European urban spaces known for their ability to support public life and col-

Fig 8.2. Southdale Centre, section, Comprehensive spatial organisation forming an interior urban life, 1956. Drawn by author.

9. The spatial elements of corridors constitute indoor pedestrian experiences for shoppers designed to condense urban circulation. Drawn by author.

Fig

[14] Gregg, K., 2023. Victor Gruen versus Jan Gehl–and the contemporary model of pedestrianization. Journal of Urban Design, 28(5), pp.471-488.

[15] Hardwick, M.J., 2015. Mall maker: Victor Gruen, architect of an American dream. University of Pennsylvania Press.

[16] Lien, B., 2005. The role of pavement in the perceived integration of plazas: An analysis of the paving designs of four Italian piazzas (Doctoral dissertation, Washington State University).

[17] Fenlon, I., 2012. Piazza San Marco: Theatre of the Senses, Market Place of the World. In Religion and the senses in early modern Europe (pp. 329-361). Brill.

Fig 10

11

lective activities.[14] As highlighted by Hardwick, Gruen’s work was profoundly influenced by his early experiences in Vienna, where pedestrian-friendly streets and vibrant public squares were fundamental to urban social life. Through spatial design, Gruen sought to transfer these urban attributes into suburban malls, re-creating the patterns of movement and gathering familiar to European cities within controlled commercial interiors.

Gruen employed circulation patterns reminiscent of prominent European precedents, ensuring that each mall captured distinct circulation characteristics modelled on the street and plaza configurations that defined urban public life. As detailed in Mall Maker: Victor Gruen, Architect of an American Dream, the spatial organisation of these malls was intentionally grounded in the principles of European urbanism, establishing shopping malls as both commercial hubs and social condensers.[15]

The circulation design of Southdale Centre demonstrates the outward extension of plaza-like space, directly inspired by the layout of Piazza San Marco in Venice. The Venetian square, renowned for its open, inviting spatial arrangement, features corridors that radiate from the central space, with pedestrian activity naturally drawn towards focal points such as St. Mark’s Basilica and the Campanile. Historical studies of the piazza, such as Gehl, note that the clarity of sightlines and the distribution of open-air activity zones contribute to its success as a vibrant public venue.[16]

12

13

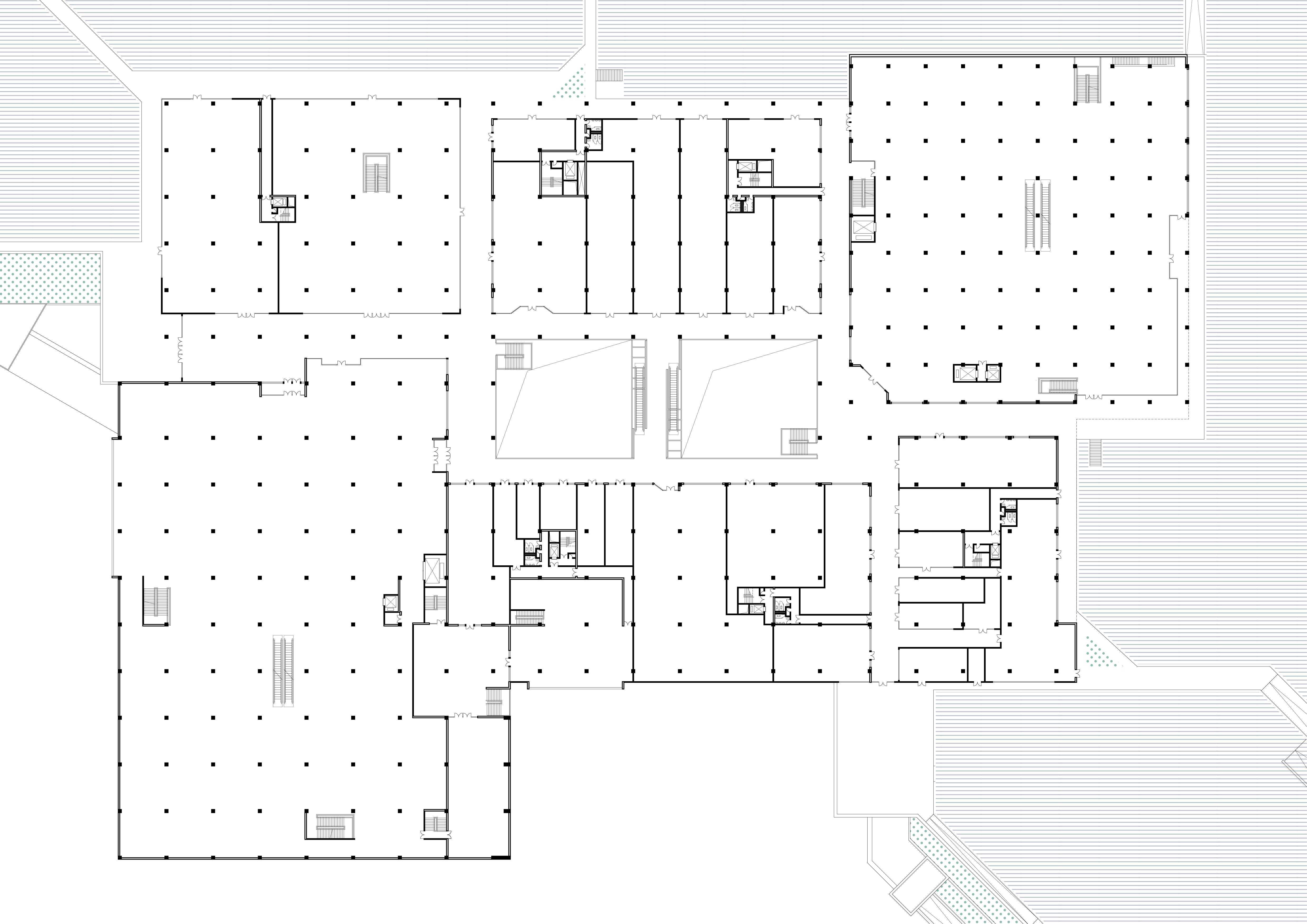
In designing Southdale Centre, Gruen replicated this logic. The layout of the shopping mall is centred on a rectangular atrium of approximately 61 metres in length and 23 metres in width, with corridors following the contours of the atrium to form a double-layered closed circulation loop, simulating the open boundaries of the Venetian plaza.[17] The east-west ones are 4.5 metres wide and the north-south ones are 9 metres wide, the same proportions as those of a pedestrianised commercial street. They are aligned up and down around the atrium of the two-storey mall hall and vertically interconnecting with each other by open staircases and escalators. A north-south bridge, 4 metres wide, is created at the centre of the first-floor cloister, which is flanked by escalators connecting to the indoor plaza on the ground floor. Extending outwards along the four sides of the atrium, the remaining main shopping corridors, which is lined with transparent windows of the shops and two department stores, Donaldsons and Daytons. The corridor is widened to varying degrees at the entrances and exits of the two department stores and the mall hall, creating a small open space that serves the same purpose as the atrium in encouraging people to linger and stimulating social activity.

Randhurst Mall introduced a different approach to circulation, adopt-

Fig 10. The circulation characteristics of Southdale Centre, Randhurst Mall and Monroeville Mall simulate three types of urban street structures. Drawn by author.
Fig 11. Piazza San Marco in Venice, Place Charles de Gaulle in Paris and Graben Street in Vienna. Three types of urban traffic models were used as a paradigm for Gruen’s design of three mall circulation structures.Image information from Google Earth intercepted by the author.
Fig 12.1. Southdale Centre, basement floor plan, 1956. Drawn by author.
Fig 12.2. Southdale Centre, lower floor plan, 1956. Drawn by author.
Fig 12.3. Southdale Centre, upper floor plan, 1956. Drawn by author.
Fig 13. Southdale Centre, garden court, 1956. Spatial status of the atrium, bridge, escalators, corridors and shops. In Jahna Peloquin, Southdale, the World’s First Shopping Mall, Celebrates 60 Years, 2016.
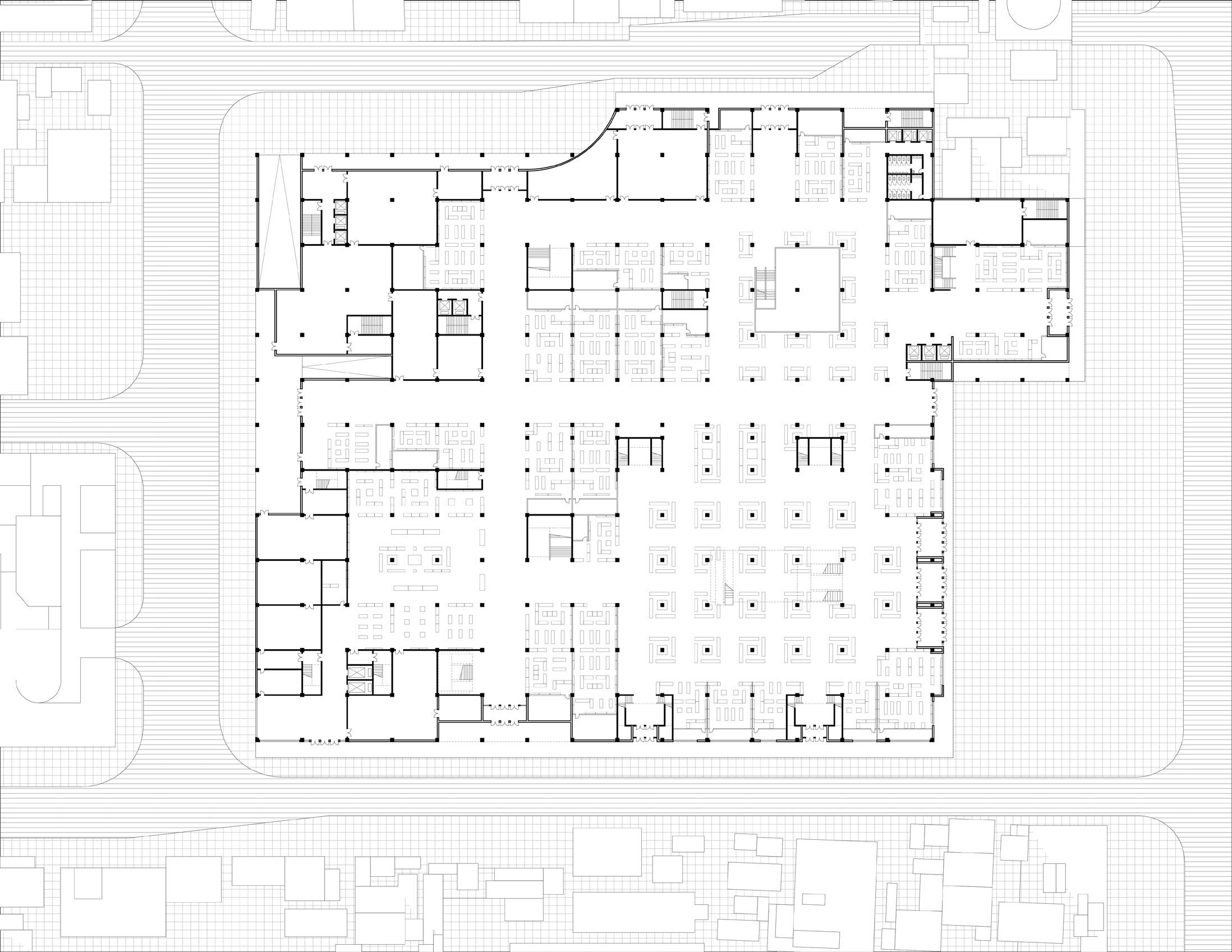
Fig 14.1. Randhurst Mall, upper floor plan, 1962. Drawn by author.
Fig 14.2. Randhurst Mall, lower floor plan, 1962. Drawn by author.
Fig 14.3. Randhurst Mall, basement floor plan, 1962. Drawn by author.

15.1.

level, professional

and

stairs connecting the levels,

Fig 15.2. Randhurst Mall, three-dimensional galleria consisting of two hexagonal platforms, 1962. In Robert Sharoff, Historic Illinois Mall Seeks New Life as Main St, 2011.
Fig
Randhurst Mall, Bazaar Level, Pavilion
terrace
open
1962. In Robert Sharoff, Historic Illinois Mall Seeks New Life as Main St, 2011.
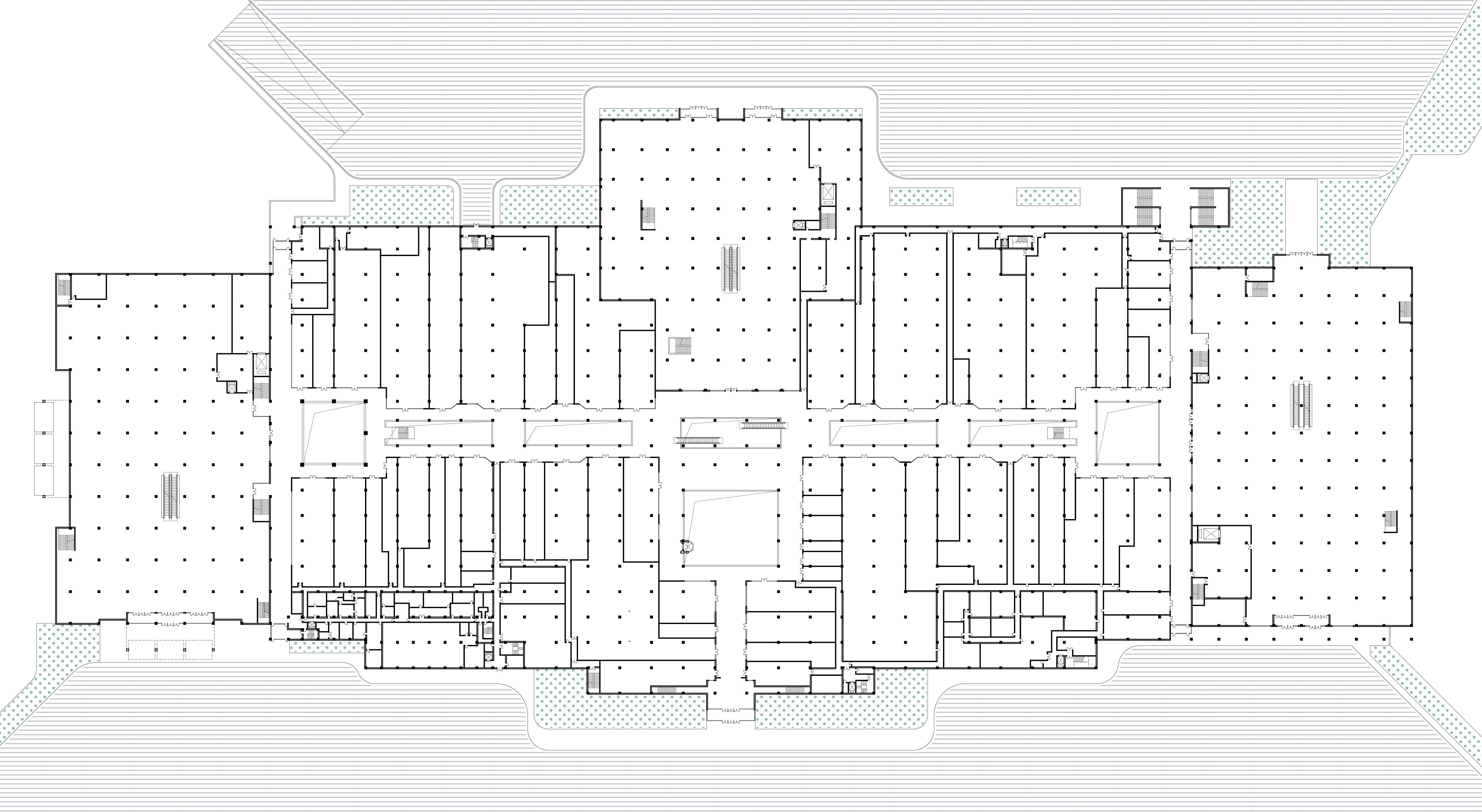
Fig 16.1. Monroeville Mall, upper floor plan, 1969. Drawn by author.
Fig 16.2. Monroeville Mall, lower floor plan, 1969. Drawn by author.

Fig 17. Monroeville Mall, ‘Ice Palace’ skating rink on the lower floor, 1969. Available at: https:// www.facebook.com/mckeesportmemories/# (Accessed: 17 November 2024).

[18] Gao, Z., 2019, November. Design strategies of the urban public space in the Franco-Chinese metropolitan cities of Paris and Dalian. In IOP Conference Series: Earth and Environmental Science (Vol. 376, No. 1, p. 012046). IOP Publishing.

[19] Peerbolte, G.T., 2011. Randhurst: Suburban Chicago’s Grandest Shopping Centre. Arcadia Publishing.

[20] Zapke, S., 2021. Performative urban spaces in medieval Vienna. In A Companion to Medieval Vienna (pp. 524-559). Brill.

14

ing a centralised layout inspired by the radial design of Place de la Concorde in Paris. The Concorde, as described by Noppen and Morisset, functions as a spatial node where multiple urban axes converge, providing a simultaneously hierarchical and accessible urban experience. The spatial clarity of the Parisian square ensures that its core remains visually connected to surrounding avenues, creating a cohesive sense of orientation despite the complexity of intersecting streets.[18]

Gruen applied similar principles to Randhurst’s interior. The overall form of the corridor consists of a triangular public event space in the centre that serves as a visual and social focal point for people gathering and landscaping, nested within a hexagonal sunken plaza called Bazaar Level, with a height difference of nearly one metre downwards and the triangular boundaries extruding the circulation space of the mall’s concourse. The similarly shaped Pavilion Level runs parallel to the sunken plaza above and is accessed by three open staircases perpendicular to the boundary of the triangular field, creating a three-dimensional Galleria as the core of public activity. The sloped sightlines, achieved through the sunken Bazaar Level and elevated Pavilion Level, mirrored the layered visibility of the Parisian space, ensuring that the plaza remained a reference point regardless of a visitor’s location within the mall.

15

16

The staircase continues up 1.8 metres to the remaining corridors, which radiate outwards like spokes on a wheel along three edges, with open views of the atrium on one side and shop windows on the other. These corridors are 4.8 metres wide and enlarge into a small entrance plaza in front of the three department store Wieboldt’s, The Fair, and Carson Pirie Scott, aligning with the three glazed windows on the rooftop of the building to form the three atriums. These three extensions continue past the atriums into a thin walkway that connects the entrances and exits to the mall hall. This spatial logic encouraged visitors to navigate towards the core, fostering social density and promoting visual engagement with the central commercial activities.[19]

Monroeville Mall demonstrates Gruen’s application of circulation principles derived from Vienna’s Graben, a historically significant street that balances the dynamics of movement and congregation. The Graben is characterised by its wide, linear layout, which accommodates high pedestrian flow while providing recessed areas for seating and small-scale interactions.[20] This spatial structure supports a dynamic balance between directed circulation and gathering, ensuring that the street remains socially vibrant despite its commercial intensity.

Gruen replicated this model within Monroeville Mall by designing a primary corridor that functions as the mall’s central spine. Secondary paths, equivalent to the Graben’s side streets, branched off perpendicularly, leading

Fig 18. Mall shopping scenario, illustration, interiorisation of urban life through the organisation of spatial patterns, 2022. Available at: https://mobile.x.com/OSaumarezSmith/status/1583138973966168079 (Accessed: 23 January 2025).

Fig 17 Fig 18

to less-frequented retail zones. Its circulation model features a 13.5-metre-wide corridor running horizontally through the mall hall. Vertical traffic elements directly connect the main walkways on the upper and lower levels at the two ends and middle of the main corridor, i.e., at the entrances to the three department stores Hornes, Penneys and Gimbels and to ‘Ice Palace’ skating rink, which are orthogonal to the corridor. The wide corridor is even widened at these three junctions, squeezing the display windows of the shops and department stores on either side back to form three small two-storey atriums. The atriums at each end of the corridor are 17 metres square and the one in the middle is 9 metres wide and 28 metres long, visually connecting the different floors while acting as the main gathering spot. More social amenities such as public seating, art sculptures, plants, and fountains are clustered along this walkway, condensing the operational use of the city’s public realm. Branching aisles split perpendicularly at the ends of the wide walkway on both sides, connecting the main entrances and exits of the mall hall. Other secondary walkways point to logistical spaces such as bathrooms and storage rooms, distinguished from the shopping corridor. These hierarchical pathways concentrated foot traffic in key areas, simulating the intensity of urban environments.

Together, these malls illustrate how Gruen implemented circulation patterns inspired by European urban spaces to generate an artificial urban experience within enclosed environments. The outwardly extending corridors of Southdale Centre emulate the open social dynamics of Venetian plazas, the radial organisation of Randhurst Mall echoes the spatial clarity of Parisian squares, and the hierarchical circulation of Monroeville Mall recalls the navigational logic of Viennese shopping streets. These spatial strategies demonstrate how Gruen used mall corridors not only as functional connectors but also as architectural devices to simulate the sensory and social experiences of city life within suburban retail complexes.

Car park serves as a transition area connecting the residences to the mall. From Victor Gruen. Arts and Architecture. Jan 1954, 15. Paul Rudolph

Fig 20. Southdale Centre, parking lots surround the mall, 1957. From The Life Images Collection.
Fig 19.

[21] Jackson, K.T., 1996. All the world’s a mall: Reflections on the social and economic consequences of the American shopping Centre. The American Historical Review, 101(4), pp.1111-1121.

[22] Rapoport, A., 1992. On cultural landscapes. Traditional Dwellings and Settlements Review, pp.33-47.

1.2

Architectural Elements Analysis

This part examines the architectural elements that constitute Victor Gruen’s shopping mall typology, evaluating their role in shaping the spatial qualities of suburban malls. By deconstructing these elements, this study observes how they facilitate the social and commercial attributes of the post-war retail environment in the United States. These elements fall into two distinct categories: those that encourage users to linger, fostering the mall as a place for social activity, and those that help private profitability increase willingness to spend through vision and mobility. Together, these elements define the architectural mechanisms through which Gruen’s malls simultaneously functioned as public gathering spaces and as instruments of consumer intervention.

Elements Providing Socialisation

The architectural elements that encourage public gathering and social engagement are central to the ability of Gruen’s shopping malls to simulate urban publicness. These elements—car parks, entrances, vertical circulation, and atriums—function collectively, shaping accessibility, movement, and interaction within the enclosed retail environment. Gruen’s typology intentionally integrates these spatial components to replicate the density and vibrancy of urban spaces, positioning the suburban mall as an artificial public realm.

The suburbanisation of post-war Untied States necessitated extensive parking infrastructure, reinforcing the separation between residential neighbourhoods and commercial centres. In contrast to traditional urban shopping streets, suburban malls required vast parking areas serve as transitional zones, linking private suburban homes to public retail spaces and fostering the social role of malls.[21] Southdale Centre exemplifies this shift, with its 5000-space parking lot encircling the mall to ensure that visitors arriving by car were guided towards shared space. By enabling accessibility and gathering, car parks function as extensions of the mall’s public realm.

The direct spatial relationship between entrances and car parks ensured a fluid transition from exterior suburban isolation to interior commercial collectivity, reinforcing the mall’s role as an enclosed public gathering space. Unlike the street-facing retail of traditional urban settings, Gruen’s malls featured multiple, evenly distributed entryways that channelled movement towards interior circulation networks. The transparent glass of these entrances further enhanced visual permeability, softening the threshold between exterior and interior spaces.[22] This strategic placement and design of entrances ensures accessibility and openness of the suburban malls, despite being enclosed commercial environments.

Fig 21. Southdale Centre, analysis of entrances as architectural element, 1956. Drawn by author.
Fig 22. Southdale Centre, transparent entrances on the lower floors blur the boundaries between interior and exterior. From the PBS documentary “10 Buildings That Changed America,” WTTW Public Television, 2012.
Fig 23.1. Southdale Centre, vertical circulation location in the corridor, 1956. Drawn by author. vertical
Fig 23.2. Southdale Centre, analysis of vertical circulation as architectural element, 1956. Drawn by author.
Fig 24. Southdale Centre, open stairs at the corner of the corridor connecting two levels of circulation, photo, 1956. From Merrys Postcards&Paper Collectibles-#98899B-INTERIOR-(#INT-620)

[23] Elvins, S., 2021. ‘A stairway that does its own climbing’: the department store escalator and the promises of modernity, 1900–1950. History of Retailing and Consumption, 7(1), pp.79-97.

[24] Hung, W.Y. and Chow, W.K., 2001. A review on architectural aspects of atrium buildings. Architectural Science Review, 44(3), pp.285-295.

[25] Yuan, Y., Liu, G., Dang, R., Lau, S.S.Y. and Qu, G., 2021. Architectural design and consumer experience: an investigation of shopping malls throughout the design process. Asia Pacific Journal of Marketing and Logistics, 33(9), pp.1934-1951.

Once inside, vertical circulation played a crucial role in structuring movement and fostering social engagement across multiple levels. Unlike traditional department stores, which relied on enclosed stairwells and isolated lifts, Gruen’s malls positioned open stairs and escalators as focal elements, ensuring that movement between floors remained visible and socially interactive. The emphasis on spatial continuity and visual connectivity created an experience akin to a layered urban street, where multiple levels of pedestrian activity were interwoven into a single, cohesive environment.[23] The stairs and escalators acted not only function as vertical circulation but as architectural devices that reinforced the perception of an interconnected public space.

The atrium was the most significant spatial element in reinforcing the mall’s public attributes, functioning as an enclosed reinterpretation of the traditional urban square. At Southdale Centre, the atrium was conceived as a landscaped social hub, incorporating seating areas, sculptures, and greenery to promote interaction. With upper-floor walkways overlooking the central void, Gruen ensured that the atrium became a three-dimensional social volume, where public life unfolded both horizontally and vertically. The diffusion of natural light through a large glass ceiling further enhanced the perception of openness, recreating the atmospheric conditions of pedestrianised city spaces. In this way, atrium simulated the civic role of urban plazas, consolidating its function as a place of social gathering rather than mere retail exchange.[24]

Elements Enhancing Profitability

While certain spatial elements in Gruen’s mall typology simulate urban life, others are designed to enhance consumer engagement and maximise profitability, ensuring that movement through the mall is visually and psychologically oriented towards consumption. These elements—glass display windows, concealed logistical areas, and branding-driven spatial continuity—operate as commercial guidance mechanisms, shaping the way users navigate and gaze the retail environment[25]. By strategically managing visibility and mobility, these elements create an immersive shopping experience that subtly manipulates consumer.

One of the most fundamental tools of commercial vision in Gruen’s typology is the glass display window. Storefronts are designed with large glass facades to ensure maximum visual exposure to merchandise, drawing consumers’ attention while maintaining simultaneous movement and browsing. In Southdale Centre, shops are arranged along primary corridors with transparent glass displays forming a continuous visual field, ensuring that passers-by remain engaged with retail imagery throughout their journey. Visual seduction through

Fig 25.1. Southdale Centre, atrium and vertical circulation location in the corridors of upper and lower floor, 1956. Drawn by author.
Fig 25.2. Southdale Centre, analysis of atrium as architectural element, 1956. Drawn by author.
Fig 26.1. Southdale Centre, atrium simulates the city plaza space to create a social life indoors, 1956. From Collection No. 5809, Box 58, American Heritage Centre, University of Wyoming.
Fig 26.2. Southdale Centre, atrium gathered the public for large-scale events, 1956. Photo courtesy Kenn Barry, KSTP-TV, via the Pavek Museum.
Fig 26.3. Southdale Centre, The food court was ‘outdoor themed’ and designed to look like European plazas, 1956. c. Minnesota Historical Society.
Fig 27. Randhurst Mall, atrium and vertical circulation location in the corridors of upper and lower floor, 1962. Drawn by author.

Fig 28.1. Randhurst Mall, From open stairs to sunken social event space, 1969. Available at: https://x.com/JoshLipnik/status/1261450273806942209 (Accessed: 2 December 2024).

28.2. Randhurst Mall, atrium space with seating, sculpture as infrastr ucture to facilitate socialising, 1962. From ‘If I couldn’t buy it at Randhurst, it didn’t need to be bought’.

Fig
Fig 29. Monroeville Mall, atrium and vertical circulation location in the corridors of upper and lower floor, 1969. Drawn by author.

30.1. Monroeville Mall, escalator in the middle atrium connects the social life on two levels, 1969. In Living Dead Museum rising again at Monroeville Mall, 2021.

Fig 30.2. Monroeville Mall, fountain view surrounded by shared seats in the large atrium at the end of the wide corridor, 1969. Source: https://uk.pinterest.com/pin/558376053776200228/.

Fig
Fig 31.1. Southdale Centre, shops’ display windows location in the corridors of upper and lower floor, 1956. Drawn by author.
Fig 31.2. Southdale Centre, analysis of shops’ display windows as architectural element, 1956. Drawn by author.
Fig 32. Southdale Centre, transparent windows that increase the visual contact area of commodities, 1956. From the PBS documentary “10 Buildings That Changed America,” WTTW Public Television, 2012.

[26] Sen, S., Block, L.G. and Chandran, S., 2002. Window displays and consumer shopping decisions. Journal of Retailing and Consumer services, 9(5), pp.277-290.

[27] Weiss, S.J. and Leong, S.T., 2001. Escalator. Project on the city, 2, pp.337-365.

[28] Kaplan, R.L., 2012. Between mass society and revolutionary praxis: The contradictions of Guy Debord’s Society of the Spectacle. European Journal of Cultural Studies, 15(4), pp.457-478.

storefront design is central to the commercialisation of pedestrian spaces, transforming shopping corridors into theatrical zones of consumer stimulation. [26] The uninterrupted display lines of Southdale reinforce the narrative of constant commercial engagement, turning mobility into a process of unconscious selection.

Beyond visual attraction, consumer behaviour is also influenced by the strategic concealment of non-commercial activities, ensuring that logistical spaces remain invisible to visitors. At Southdale, logistical operations occur in designated back-of-house zones, completely removed from the main circulation network. As The Harvard Guide to Shopping, the architectural exclusion of non-consumer activities is a defining characteristic of contemporary retail environments, reinforcing the idea that shopping malls are not merely transactional spaces but artificial worlds engineered for economic control. This erasure of logistical elements prevents any break in the illusion of retail idealism, ensuring that shoppers are continuously immersed in a highly curated retail environment.

Finally, Gruen’s malls use mobility as a branding strategy, using escalators as spatial devices to extend the shopping experience and ensure that consumers’ visual perceptions remains consistent across different floors and retail zones.[27] In Southdale, anchor stores such as Donaldson’s and Dayton’s strategically position escalators within their central retail zones, ensuring that movement across floors is not an interruption but a extension of the shopping process. Spatial elements that enhance consumer movement also serve to reinforce commodification, turning shopping malls into landscapes of perpetual consumption.[28]

Integrity of Spatial Organisation

The spatial organisation of Victor Gruen’s shopping malls is defined by the coexistence of two distinct yet interdependent architectural strategies: the first fosters social interaction by simulating urban publicness, while the second enhances commercial profitability through controlled visual and spatial manag ement.This duality not only characterises Gruen’s vision of the mall as an urban condenser but also illustrates how architectural elements are instrumentalised to serve both collective engagement and private commercial interest.

At the core of this interdependent spatial logic is the integration of circulation corridors, vertical transport, and atriums, which collectively reinforce the illusion of urban density. These features enable a continuous flow of users, encourage lingering, and establish focal points for interaction, thereby creating an enclosed version of urban public space. However, their ability to sustain social vibrancy is intricately connected to commercial imperatives. The relation-

Fig 33. Southdale Centre, comparison of logistics areas on upper, lower and basement floor, 1956. Drawn by author.
Fig 34. Southdale Centre, immersive shopping scenarios that exclude logistical space, 1956. From the PBS documentary “10 Buildings That Changed America,” WTTW Public Television, 2012.
Fig 35.1. Southdale Centre, boutique stores on upper, lower and basement floor, 1956. Drawn by author.
boutique stores
Fig 35.2. Southdale Centre, analysis of visual connectivity in boutiques, 1956. Drawn by author.
Fig 36. Monroeville Mall, viewpoint on an escalator coherent commercial picture, film footage, 1977. From George A. Romero, Dawn of the Dead, 1977.
Fig 37. Southdale Centre, collection of social and visual attributes architectural elements on upper and lower floors. Drawn by author.
Fig 38.1. Southdale Centre, two architectural purposes of Gruen’s mall: promoting social interaction and enhancing commercial profitability. Drawn by author.

First architectural purpose: promoting social interaction. In Steven Johnson, The strange, surprisingly radical roots of the shopping mall, 2016.

Fig 38.3. Second architectural purpose: enhancing commercial profitability. From c. Binns Ltd., Newcastle window display 1960.
Fig 38.2.

Fig 39. Collection of social and visual attributes architectural elements. Drawn by author.

[29] Csaba, F.F. and Askegaard, S., 1999. Malls and the Orchestration of the Shopping Experience In a Historical Perspective. Advances in Consumer Research, 26(1).

[30] Salter, C., 2017. Participation, Interaction, Atmosphere, Projection. The Routledge Companion to Scenography, New York and London: Routledge, p.164.

ship between movement and vision is precisely calibrated: as users navigate the mall’s corridors or ascend its vertical circulation spaces, they are constantly exposed to curated retail imagery.[29] As Banham highlights in Architecture of the Well-Tempered Environment, these infrastructural elements not only maintain user comfort but also serve an aesthetic and psychological function, ensuring that the shopping mall sustains a carefully curated experience of spatial and commercial immersion.[30]

The structural logic of Gruen’s typology, which integrates both public and commercially driven architectural mechanisms, becomes a framework for understanding the transformation of shopping spaces in Beijing. When the Western mall typology was introduced into Beijing’s retail landscape, it transferred not only spatial strategies but also their underlying power structures. As the study progresses to analyse Beijing’s malls, it becomes evident that this spatial shift not only redefined the commercial landscape but also altered the fundamental nature of social activities within retail environments.

Fig 39 Fig 40

by author.

Fig 40. Southdale Centre, socialisation and consumption activities take place in tightly controlled spaces. Drawn
Fig 41.1 Southdale Centre, axonometric drawing of the lower floor. Drawn by author.
Fig 41.2 Southdale Centre, axonometric drawing of the upper floor. Drawn by author.
Fig 41.3 Southdale Centre, axonometric drawing of the basement floor. Drawn by author.

Conclusion

Victor Gruen’s mall typology, invented in the 1950s, responded to the need for an artificial urbanity condensation in terms of architectural function in the suburban conditions of the United States at the time. The three typology cases, Southdale Centre, Randhurst Mall, and Monroeville Mall, span nearly two decades and continue Gruen’s design quest to recreate socially oriented outdoor experiences in enclosed, controlled indoor environments. The circulation structures of the three malls, while each simulating different street characteristics, rely on the same set of spatial organisational parameters to foster the sensory dynamics of the urban environment.

By deconstructing the mall typology, the study found that the architectural elements that shape its spatial qualities are categorised into socially attributed and visually attributed elements, which collaboratively constitute the two purposes served by suburban malls: community gathering and commercial profitability. However, the public and private power conflicts implicit in these two types of elements are only exposed when they are placed in an urban context, so the taxonomy of spatial elemental observations is based on the two problematic aspects of the typology when it is introduced into an urban context. For the effect of shaping public properties by providing socialisation, the public activity space inherent in the outdoor city reduces the necessity to gather the public indoors. For the effect of visual management from the perspective of private property rights, it privatises the mode of indoor shopping operation without balance, making private commercial profitability the driving force behind the evolution and development of urban malls. Therefore, the framework for analysing the architectural elements of the malls delivers a thread from the mall typology precedents, articulating a study of changes before and after the introduction of the Western mall typology to the Beijing malls.

Chapter 2

EVOLUTION OF BEIJING MALLS

This chapter explores the evolution of commercial spaces in Beijing along the timeline of the latter half of the 20th century and finds that the point of mutation is closely related to an attempt to import the spatial organisational model of Victor Gruen’s mall typology. The adaptation of the suburban mall typology to urban China was not a neutral architectural practice, but rather the introduction of a distinct approach to spatial governance by replicating architectural elements and learning from their spatial qualities, which disrupted the original ownership system of urban malls. The ability of the two types of elements to shape social and visual attributes for the space was continued in the Beijing malls, but the new private sector regulatory system made the original public mastery of commercial activities threatened by privatisation, and the past publicness of Beijing’s commerce was reduced along with the loss of the stateowned economic system.

Thus, mall research shifts in this chapter from purely spatial-level observations to a discussion of spatial power shifts. The notion of publicness discussed in the thesis changes from Gruen’s quest for the indoorisation of European urbanity to the autonomous rights granted to the public during China’s planned economy. This chapter is divided into two parts: the first part explores the drivers and outcomes of the evolving commercial space in Beijing within a historical context, while the second part analyses the specific formal changes and urban-architectural relationships brought about by the spatial privatisation.

Fig 42. Cultural Palace of Nationalities, Xicheng District, Beijing, photo, 1959. In Sovfoto/ Universal Images Group via Getty Images.
Fig 43. Beijing city centre shopping street, photo by Vladislav Mikosha, 1950. In Paul French, All the traditions lost after the Communists entered Beijing, 2023.

[31] Walder, A.G., 2017. China’s transitional economy: interpreting its significance. In Chinese Economic History Since 1949 (pp. 120-138). Brill.

[32] 章百家, 2021. 中国经济体制 的两次重大转型 经济导刊

2.1

Declining Publicness of Beijing Malls

This part examines the historical evolution of Beijing’s commercial spaces, tracing their transformation from the 1950s to the 2000s within the shifting framework of China’s economic policies and urban development strategies. The study contextualises these spatial changes within the broader trajectory of China’s economic system, illustrating how state-controlled commerce in the socialist era gradually transitioned into a market-driven economy under the influence of global economic liberalism. The introduction of Western retail models and commercial practices during the post-reform period accelerated the controlled situation of commercial spaces and restructured the relationship between the public’s autonomous rights and private property rights in Beijing’s shopping environment. Through the analysis of historical materials and case studies, this part demonstrates how the changing role of private commerce and foreign economic ideologies progressively diminished publicness in commercial spaces, altering both the special forms and social function of urban retail environments.

Economic Reform and Development in China

The evolution of Beijing’s shopping malls is deeply intertwined with the broader trajectory of China’s economic system, which underwent profound structural transformations over the latter half of the twentieth century. From the establishment of a centrally planned economy in the 1950s to the introduction of market-oriented reforms in the 1980s and the emergence of a globalised socialist market economy in the 2000s, the restructuring of economic policies directly influenced the development of commercial spaces[31]. As economic frameworks shifted, so too did the role of shopping malls in urban life, reflecting the changing priorities of state control, market liberalisation, and global integration.

Following the founding of the People’s Republic of China in 1949, the government implemented a centrally planned economic model to address economic underdevelopment and consolidate socialist governance. Under this system, private enterprises were gradually nationalised, and commerce was placed under state control through five-year economic plans that dictated production, distribution, and consumption. By 1956, private ownership had been almost entirely abolished, and commercial activity was reorganised into state-run enterprises, with retail limited to state-owned department stores and ration-based distribution systems[32]. During this period, shopping was conceived as a functional necessity and a tool for economic stability, and commercial spaces were

Fig 43 Fig 44
Fig 45. Fotoe, A Shanghai department store, China, photo, 1959. In Wei Huang, Chundan Song, Ritrarre la Cina, 2022.
Fig 44. Shanghai Yongan Department Store was registered as a ‘public-private partnership’ in 1955. In Hand over your property, 2019.

Fig 46. KFC opens in Beijing, photo, 1987. Source: https://wap.bjd.com.cn/ news/2023/01/06/10291635.shtml.

Fig 47. Nikolaj Potanin, View of Beijing, China, photo, 2012. Available at: https://www.flickr. com/photos/ahenobarbus/7844770140/(Accessed: 22 September 2024).

[33] Yeh, A.G., Yang, F.F. and Wang, J., 2015. Economic transition and urban transformation of China: The interplay of the state and the market. Urban Studies, 52(15), pp.2822-2848.

[34] Zhang, Y., 2017. Social class differences in consumption propensity in contemporary China–from survival-oriented consumption to developmentoriented consumption. The Journal of Chinese Sociology, 4, pp.1-23.

[35] Wang, S. and Jones, K., 2002. Retail structure of Beijing. Environment and Planning A, 34(10), pp.1785-1808.

[36] Wang, S., 2004. Internationalization of retailing in China. In The internationalisation of retailing in Asia (pp. 128-149). Routledge.

[37] Wang, E. and Chan, K.W., 2007. Store wars: Changing retail ownership in Beijing. Eurasian Geography and Economics, 48(5), pp.573-602.

standardised, prioritising economic efficiency over architectural innovation[33] Beijing, as the nation’s political and economic centre, became the prototype for state-controlled retail, with major department stores operating under strict regulation, and publicly oriented.

The late 1970s and 1980s saw a major ideological and economic shift as China embarked on a series of market-oriented reforms to address inefficiencies in the planned economy. The “reform and opening-up” policy, initiated in 1978, introduced a dual economic structure in which state planning coexisted with emerging market mechanisms. While key industries remained under state control, the commercial sector saw increasing decentralisation, allowing for private enterprises and foreign investment to gradually enter the urban economy[34]. The commercial environment in Beijing began to move away from its rigidly controlled structure, incorporating elements of market-driven competition. Economic liberalisation also introduced new financial models, as shopping centres began to operate under profit-driven leasing systems rather than direct state funding[35]. This period marked the initial exposure of Beijing’s commercial spaces to Western economic ideologies, paving the way for the importation of foreign retail models and architectural typologies.

By the early 2000s, China had transitioned into a socialist market economy, where state control remained but market forces played a dominant role in economic decision-making. Urbanisation accelerated, and joint-stock enterprises and multinational corporations became key players in shaping the commercial landscape[36]. This shift was particularly visible in Beijing, where large-scale urban redevelopment projects facilitated the rise of internationally influenced shopping malls. Global consumer culture became embedded in China’s economic aspirations, leading to the widespread adoption of Western-style retail complexes[37]. The introduction of global investment capital and branding strategies allowed shopping malls to develop into multi-functional urban complexes, blending commercial, cultural, and social functions. This period saw the full privatisation of commercial spaces, as shopping malls became highly curated consumer environments, aligning with the spatial logic of Western retail centres. The economic forces driving these transformations reflected China’s integration into global trade networks, solidifying shopping malls as symbols of modernisation and commercial liberalisation.

The Globalising Impact of Western Liberalism

The transformation of Beijing’s retail spaces in the late 20th century was shaped by the global expansion of Western economic liberalism, which influenced China’s economic restructuring and the introduction of market-driven

Fig 48. Southdale Centre, western retail formats introduced to Beijing malls. In Akiva Blander, AUSTRIANS IN AMERICA: How Transatlantic Exchange Shaped Modernist Architecture.
Fig 49. The interior of Parkview Green, Chaoyang District, from basic transactional needs to consumer engagement. In Jackchen, People Shopping In A Shopping Mall In Beijing.

[38] Irwin, D.A., 1996. The United States in a new global economy? A century's perspective. The American Economic Review, 86(2), pp.41-46.

[39] Puchala, D.J., 2005. World hegemony and the United Nations. International Studies Review, 7(4), pp.571-584.

[40] McCracken, G.D., 1990. Culture and consumption: New approaches to the symbolic character of consumer goods and activities (Vol. 1). Indiana University Press.

[41] Punter, J.V., 1990. The privatisation of the public realm. Planning Practice and Research, 5(3), pp.9-16.

commercial spaces. Throughout the post-war period, the United States emerged as a dominant global economic power, advocating for free-market policies that prioritised privatisation, deregulation, and foreign direct investment. These principles were institutionalised through global financial organisations such as the International Monetary Fund (IMF) and the World Bank, shaping economic strategies across the developing world[38]. Following China’s reform and opening-up in the 1980s, these economic models began to influence urban commercial development, facilitating the integration of Western retail structures into Beijing’s shopping landscape.

As China transitioned from a centrally planned economy to a market-oriented system, its engagement with global trade and investment accelerated. The expansion of multinational corporations and joint ventures led to the adoption of foreign retail strategies, gradually transforming Beijing’s commercial sector. Western liberal economic policies encouraged capital inflows, the establishment of joint-stock commercial enterprises, and the restructuring of domestic retail management systems, which collectively altered the operational framework of Beijing’s malls[39]. While state-owned department stores dominated the pre-reform era, shopping centres in the 1990s began to incorporate Western business models, branding strategies, and financial structures, reshaping the role of commercial spaces within the urban environment.

At the same time, consumerism emerged as a dominant social force in Western capitalist societies, redefining urban experiences, economic behaviours, and social identities. The post-war period in the United States witnessed an unprecedented expansion of mass consumption, with shopping evolving from a functional necessity to an aspirational, leisure-driven practice. As China opened its economy, Western consumerist principles permeated Beijing’s commercial spaces, fundamentally altering its retail landscape[40]. The importation of Western branding strategies, luxury consumption models, and experiential shopping environments marked a transition from state-controlled retail spaces to privatised consumer hubs. Shopping malls, which had previously functioned as distribution centres for essential goods, increasingly prioritised curated consumer experiences, aspirational branding, and spatial strategies that encouraged prolonged engagement. In Beijing’s retail transformation, shopping became less about fulfilling basic needs and more about navigating a commercial environment saturated with symbolic meaning and constructed desire[41].

By the early 2000s, Beijing’s shopping malls had fully assimilated globalised retail structures, aligning with Western models of commercial urbanism. The integration of large-scale branding, immersive retail atmospheres, and curated consumption experiences reinforced Western economic dominance within China’s commercial sphere, accelerating the privatisation of shopping environ-

Fig 48
Fig 49
Fig 50. From top to bottom: Dongan Market (1920s), Dashilan (1950s), and Dongan Market sales counter with public participation, 1970s. From Dunzhi Hu, 百年东安不了情, 2020.

[42] Liew, L., 2005. China's engagement with neo-liberalism: Path dependency, geography and party self-reinvention. The journal of development studies, 41(2), pp.331-352.

[43] Xu, M., 2024. The Making of Everyday Space of Publicness: Insights from a Mall in Beijing. Journal of Contemporary Ethnography, 53(6), pp.796-821.

[44] Zhu, J., 1999. The Transition of China's urban development: from plan-controlled to market-led. Bloomsbury Publishing USA.

ments[42]. This transformation did not merely reflect architectural adaptation but rather a fundamental shift in the social function of commercial spaces, which transitioned from publicly accessible markets into privatised institutions of controlled consumption.

The Spatial Transformation of Beijing Commerce

The evolution of Beijing’s commercial spaces from the 1950s to the 2000s reflects a continuous transformation in spatial organisation, consumer engagement, and the role of publicness in retail environments. As the economic policies outlined in the previous sections reshaped China’s commercial landscape, Beijing’s retail spaces responded with significant spatial and functional adaptations. This transformation followed a structured trajectory, beginning with open and self-directed shopping environments, then shifting towards privately managed spaces that imposed increasing control over consumer activity. The progressive privatisation of commercial space, driven by economic liberalisation and the introduction of Western retail models, led to the gradual reduction of public autonomy in retail environments, restricting the public’s ability to engage in self-determined shopping and social interactions.

In the 1950s and 1960s, Beijing’s retail landscape was shaped by the planned economy model, which prioritised state-controlled commerce and collective necessity. Traditional commercial spaces, such as Dashilan and Dong’an Market, functioned as public marketplaces, where consumers could freely navigate shopping streets, determine their own consumption patterns, and interact socially in an open, unregulated setting. The introduction of state-owned department stores, exemplified by the Beijing Department Store (1955), marked the beginning of large-scale commercial consolidation under government oversight. These spaces were spatially uniform, prioritising functionality over aesthetic appeal or experiential engagement, with standardised product displays and tightly regulated supply chains[43]. Consumers had minimal influence over retail interactions, and despite their accessibility, these spaces were not designed for flexible, consumer-driven experiences. However, public engagement remained strong due to the relative openness of these early commercial environments, where shoppers had agency in movement and transactional exchanges.

By the 1980s, China’s economic reforms introduced elements of market competition into the commercial sector, leading to the gradual restructuring of shopping environments. The transformation of Wangfujing Street into a retail hub symbolised the shift towards privately operated commercial spaces, where shopping malls no longer served purely as distribution centres but as profit-generating enterprises[44]. Escalators, small atriums, and rentable advertising

Fig 50
Fig 51. From top to bottom: Xiushui Street Market (1986), Xidan shopping mall (1990), Escalator transporting consumers in Xidan shopping mall (1992). In These Old Shopping Malls Hide Beijingers' Childhoods, 2022.
Fig 52. From top to bottom: Sete Shopping Centre (1992), Oriental Plaza (1999), shopping scene integrating entertainment and leisure functions, Beijing, photo, 1998. In Beijing's 27-year-old Saitech shopping centre to close in June, Beijing Daily, 2019.

Fig 53. Shin Kong Place, Chaoyang District, Beijing, 2007. Experiential shopping space with entertainment, catering and cultural programmes. Available at: http://www.goodhouse-design. com/case/14.html

[45] Li, H., 2016. Advertising and consumer culture in China. John Wiley & Sons.

[46] Lian, H. and Li, G., 2023. Correlation Analysis of Retail Space and Shopping Behaviour in a Commercial Street Based on Space Syntax: A Case of Shijiazhuang, China. Buildings, 13(11), p.2674.

[47] Wu, F., 1997. Urban restructuring in China’s emerging market economy: towards a framework for analysis. International Journal of Urban and Regional Research, 21(4), pp.640-663.

[48] Joy, A., Wang, J.J., Chan, T.S., Sherry Jr, J.F. and Cui, G., 2014. M (Art) worlds: consumer perceptions of how luxury brand stores become art institutions. Journal of Retailing, 90(3), pp.347364.

[49] Zukin, S., 2020. “The City That Lost Its Soul”: from Naked City: The Death and Life of Authentic Urban Places (2010). In The City Reader (pp. 161-171). Routledge.

façades became key spatial elements, aligning with Western-style retail environments that encouraged extended consumer engagement through visual and spatial stimuli[45]. Xidan Shopping Mall and Xiushui Street Market exemplified this transition, where private enterprises took control of retail management, introducing commercial strategies that prioritised profit-driven spatial organisation over unregulated public use. Publicness within these spaces was restructured under private ownership, limiting the public’s ability to freely determine their shopping and social activities.

The 1990s marked the expansion of Western-style shopping malls, with developments such as Beijing Lufthansa Centre and Sete Shopping Centre catering to affluent consumers and foreign residents. These malls introduced multi-level circulation, central atriums, and highly controlled spatial zoning, marking a significant departure from the fluid, open-ended commercial environments of previous decades. The construction of Oriental Plaza in 1999 further demonstrated the growing dominance of privately controlled retail complexes, where consumers were directed through curated shopping routes and immersive brand experiences[46]. Shopping spaces also started to integrate entertainment and leisure functions, responding to the changing role of consumption in urban life. High-end retailing became central to Beijing’s commercial development, reinforcing a stratified shopping environment that prioritised targeted consumer demographics over broad public accessibility.

By the 2000s, Beijing’s shopping environments had fully transitioned into privately managed urban retail complexes, mirroring global retail trends in consumer control and spatial organisation. The rise of Shin Kong Place and China World Mall exemplified the integration of entertainment, dining, and cultural programming into commercial settings, reinforcing shopping as a fully immersive and structured activity. These spaces featured expansive glass façades, vertical circulation systems, and digital advertising networks, shaping a hyper-curated retail atmosphere where every spatial interaction was deliberately designed to sustain consumer engagement[47]. While these commercial complexes provided new opportunities for social interaction and public events, the nature of these activities was fundamentally preconditioned by the economic priorities of mall operators, ensuring that all forms of engagement aligned with commercial imperatives. The reduction of publicness is evident in the way these spaces manage access, circulation, and interactions to maximise profit, leaving little room for unregulated communal activity[48].

The progressive transformation of Beijing’s shopping malls from open, state-controlled markets to highly curated, profit-driven commercial environments demonstrates the gradual erosion of unregulated public engagement in urban retail spaces[49]. Whereas early commercial environments allowed for

Fig 54. China World Trade Centre Tower III, Beijing’s first skyscraper, 2007. Source: wikimedia.

Fig 54 fluid consumer agency, the introduction of Western spatial models, branding strategies, and management structures has resulted in an increasingly controlled shopping experience, where consumer movement, purchasing decisions, and social interactions are subtly orchestrated to serve commercial objectives. The gradual loss of public self-determination in retail spaces mirrors the broader global trend of urban privatisation, excluding broader forms of public engagement.

0 20 50 100 km

Fig 55.2. Wangfujing shopping street, Dongcheng District, Beijing, 2001. Source: Into China Travel.
Fig 55.1. Wangfujing Commercial District on the map of Beijing. Source: europosters.

[50] Gaubatz, P., 2008. Commercial redevelopment and regional inequality in urban China: Xining’s Wangfujing?. Eurasian Geography and Economics, 49(2), pp.180-199.

[51] 董焱, 2009. 《日下旧闻考》 的成书缘起 文学与艺术 , (12), pp.51-52.

2.2 Privatisation of Beijing Malls

This part examines the transformation of the Wangfujing Department Store as a representative case study to illustrate the power changes that have taken place in the interior spaces of Beijing’s shopping malls over the past five decades after the 1950s under the influence of Western retail space regulation models. As one of the retail spaces in Beijing’s history covering the entire period of dramatic changes in the economic framework, Wangfujing’s evolution reflects a broader shift from a public marketplace to a private commercial institution. Through the gradual adoption of spatial elements derived from Victor Gruen’s shopping mall typology, the department store incorporated the spatial qualities of Western consumer places, reshaping its internal organisation, circulation patterns, and engagement with urban space. This part through the intergenerational spatial analysis of the Wangfujing Department Store indicates that the introduction of Western commercial planning and management tools has contributed to the privatisation of Beijing’s urban shopping malls, turning them into controlled environments where consumer activity is increasingly manipulated by private property rights, thus reducing the level of public autonomy within these spaces.

Historical Roots of Public Commerce in Wangfujing

Wangfujing, one of Beijing’s most historic commercial districts, has been shaping this city’s retail and social landscape for over seven centuries. Located at the heart of Beijing, it has long served as a public gathering space where economic transactions were embedded within dynamic forms of social interaction, affirming the capacity of urban outdoor environments to sustain publicness within consumer activities[50]. This historical precedent establishes the district as a case for examining the spatial transformations that shaped Beijing’s contemporary retail landscapes.

The Wangfujing district’s origins date back to the Yuan Dynasty (1271–1368), when the city‘s urban development was characterised by structured market systems that facilitated both trade and social engagement, where merchants sold vegetables and daily necessities to surrounding residents. During the Ming Dynasty (1368–1644), commercial activities introduced night markets and the Uman Market, where a wider variety of goods were traded. The market environment naturally fostered interactions between vendors and consumers, reinforcing the social vibrancy of Wangfujing[51]. Historical records, such as Ancient News of Imperial Capital, a book of the city stories from the Qing dynasty (1774), describe bustling public activities centred around these marketplaces, under-

10 30 60 km

56. Location changes of Wangfujing neighbourhood. In 程红菲, 北京王府井历史街区建

, 2022.

Fig
Location of Wangfujing Neighbourhood in Beijing
Jin Dynasty Yuan Dynasty
Ming Dynasty Qing Dynasty
0
Fig 57. Fruit stall on street in Beijing, Qing Dynasty, 1899. From benoitb, istockphoto illustration
ID: 1059735610, 2018.

0 5 10 20 km

Fig 58. Beijing city map, Yuan Dynasty. In 程红菲, 北京王府井历史街区建设发展研究, 2022.
The neighbourhood Wangfujing Street

0 5 10 20 km

Fig 59. Beijing city map, Ming Dynasty. In Weichang Kong, Dorina Pojani, Transit-oriented street design in Beijing, p. 388-410, 2017.
Fig 60. Jiang Qisheng, Crossing between East Chang’an Avenue and Wangfujing Street, photo, 1954. In Tiananmen and Chang’an Avenue in 1950s’, Xinhua News Agency.

[52] 程红菲, 2022. 北京王府井历 史街区建设发展研究 (Master's thesis, 北京建筑大学).

scoring the deep-rooted association between commerce and public engagement in the district.

Under the Qing Dynasty (1644–1912), Wangfujing evolved into a thriving residential and commercial hub. Initially designated as an aristocratic enclave for Eight Banners families, it was later allowed for the proliferation of shops, teahouses, and cultural venues. Theatres, tea houses, and literary clubs contributed to a flourishing civic life, demonstrating how Wangfujing’s commercial expansion was accompanied by a diversification of public activities. The Republican era (1912–1949) introduced modernisation and external influences into Wangfujing’s commercial framework. The district, renamed Morrison Street, saw the construction of hospitals, churches, and cinemas, integrating Western retail formats and institutional structures into the traditional urban fabric[52] Bookstores, public halls, and entertainment venues diversified the district’s functions, creating a retail environment where commerce was interwoven with cultural and intellectual engagement.

By the mid-20th century, Wangfujing has been Beijing’s premier retail district, and its core streets were converted into pedestrian streets in the late 20th century, further reinforcing the area’s function as a centre for economic transactions and social interaction. Wangfujing’s development illustrates how public demand for social gathering spaces shaped its commercial identity. The district’s long-standing public attribute, rooted in centuries of urban life, underscores the inherent ability of outdoor environments to support public engagement in consumer activities.

Relevance of the Mall to the City

The Wangfujing Department Store, evolving through its three distinct phases in the 1950s, 1990s, and 2000s. Its transformation reflects the growing pedestrian relationship between the mall and the urban environment, and the tendency for both to evolve into more hierarchical circulation spaces. The increased connectivity between the mall building and the city is indicative of Wangfujing Department Store’s desire, over the course of the last 50 years, to introduce urban socialisation and the public attributes it represents into its indoor consumption activities. The evolution of it serves as a microcosm of how Beijing’s commercial spaces transitioned towards Victor Gruen‘s enclosed mall typology, embedding urban circulation features within retail interiors.

In the 1950s, Wangfujing Department Store was a simple structure embedded within the dense historical fabric of Beijing. Its entrances were symmetrically distributed along three façades. The alignment of the main entrance

Fig 60
Fig 61
Fig 61. 李晞, Wangfujing Street, photo, 1956. Source: Beijing Daily.

[53] 吴晟, 1994. 王府井改建规划 的基本思路 北京规划建设 , (2), pp.35-39.

[54] 王德, 张照, 蔡嘉璐 and 朱玮, 2009. 北京王府井大街消费行 为的空间特征分析 人文地理 , 24(3), pp.27-31.

with the central axis of the plaza, ensuring accessibility from multiple directions and allowing shoppers to enter freely from adjacent streets. Internally, counters are dispersed, and circulation was undifferentiated and open-ended without a strong spatial hierarchy. Shoppers moved organically between display counters, and the absence of defined circulation pathways mirrored the unstructured movement patterns of outdoor markets. Circulation spaces were homogenous, with minimal distinction between shopping and ancillary pathways. At the same time the city’s traffic is relatively random, with buildings irregularly distributed throughout the city. The permeability of the façade allowed merchandise and commercial activity inside the store to be visible from the street, enhancing the integration of the interior and exterior. This configuration reflected a high degree of publicness, as shopping embedded in people’s everyday urban life.

By the 1990s, By the 1990s, with massive area expansion, the department store adopted a more structured internal layout, reflecting the growing influence of Western mall typology. The number of entrances increased, with new points of access strategically located to enhance connectivity with urban traffic arteries, indicating an increasing emphasis on interfacing with the city. The introduction of escalators and small atriums created vertical continuity, and the circulation began to show a hierarchical structure, with clear distinctions between primary and secondary pathways[53]. Major shopping pathways were orthogonally placed along the western and northern boundaries of the original department store building, creating a structured movement pattern. However, the façades of the building became less transparent, as the expansion of retail space towards the north and west enclosed what had previously been an open and publicly visible commercial environment. The addition of a basement car park in the northwest corner further indicated the transition towards a car-centric shopping model, aligning with Beijing’s increasing automobile ownership during this period.

By the 2000s, the Wangfujing Department Store had fully embraced the enclosed shopping mall typology, integrating its architectural elements that shaped the social attributes of the commercial space to enhance its profitability. Entrances were further rationalised, with the two main entrances on the east and west sides aligned with each other to create a more cohesive and directed shopping flow. Both the mall and the city’s circulation spaces became more hierarchical. The mall’s primary circulation routes became closely associated with atrium spaces, facilitating vertical and horizontal movement within a controlled spatial framework. The introduction of large-scale atriums, combined with open staircases, escalators, and lifts enclosed in transparent structures, facilitated enhanced visual connectivity across multiple floors, reinforcing the immersive nature of the consumer environment[54]. While these design strategies

0 10 20 30 m

Fig 62. Wangfujing Department Store, plan, 1955. Drawn by author.
Fig 63.2. Wangfujing Department Store, scattered counters, photo, 1955. In Dong Yiping, You have never seen such a Wangfujing, the largest commercial building was built here in the 1950s.
Fig 63.1. Wangfujing Department Store, transparent façade, photo, 1955. In Dong Yiping, You have never seen such a Wangfujing, the largest commercial building was built here in the 1950s.
Fig 64. Wangfujing Department Store, plan, 1997. Drawn by author.
Fig 65.2. Wangfujing Department Store, retail environmentphoto, 1999. Source: Beijing Daily.
Fig 65.1. Wangfujing Department Store, selling international products, photo, 1999. Source: Beijing Daily, 2022.
Fig 66. Wangfujing Department Store, plan, 2007. Drawn by author.
Fig 67.2. Wangfujing Department Store, south-east retail hall, photo, 2024. Source: Getty Images.
Fig 67.1. Wangfujing Department Store, looking north from the Hamleys shop in the south-west corner, photo, 2024. Source: Getty Images.

Drawn by author. 0 10 30 60 m

Fig 68.1. Circulation of the indoor Department Store and outdoor city was unstructured, 1955.
Fig 68.2. Circulation of the Department Store and outdoor city presented

Drawn by author. 0 10 30 60 m

68.3. Circulation of the Department Store and city maintained unified characters, 2007.

Fig

created an experiential continuity between the urban and mall environments increased spatial complexity, they also exemplified the growing privatisation of public life, as social interactions within the shopping mall were increasingly mediated by commercial interests.

The transformation of Wangfujing Department Store illustrates the consistent alignment between mall circulation patterns and urban movement networks. Over time, Beijing’s shopping environment gradually shifted towards an architectural model that internalised urban circulation and social activity by learning from Gruen’s sociable spatial elements. The Beijing mall can offer its specific circulation of shaping social activity and reproject it into the outdoor city, informing the design of collective life that reintegrates the public into urban consumer activity.

Exhibition Performance of Spatial Elements

The transformation of the Wangfujing department store reflects the way privatisation has reshaped the power mechanisms of Beijing’s shopping malls, embedding spatial regulatory approaches aimed at governing social and consumer activities. Following the adoption of the Western mall typology, spatial development increasingly prioritised private property rights, with private sector intervention diminishing chances for public autonomy. This shift is particularly evident in the adaptation of architectural elements with strong visual attributes, such as atriums, vertical traffic, façades, and retail zoning, in which the coordination of views and mobility becomes the basis for the restriction and regulation of consumption activities. These modifications reinforce pseudo-publicness, creating a retail environment in which access, visibility and circulation are strategically managed by private commercial interests.

The introduction and expansion of atriums exemplify how shopping malls strategically manipulated spatial experiences to sustain consumer engagement while reinforcing commercial control. In the 1990s, small-scale atriums were introduced, primarily serving as vertical visual connectors that enhanced product visibility and advertising performance. By the 2000s, these spaces expanded significantly, incorporating open staircases, escalators, and transparent lifts that structured consumer movement around a centralised visual focus, giving consumers full access to products and advertising across multiple floors. The atriums became active consumption zones, where promotional events and curated retail experiences blurred the boundaries between leisure and commerce.

Fig 69. From top to bottom: Wangfujing Department Store, architectural elements analysis of atrium on the ground floor, 1955, 1997, 2007. Drawn by author.
Fig 70. From top to bottom: Wangfujing Department Store, architectural elements analysis of vertical circulation on the ground floor, 1955, 1997, 2007. Drawn by author.
Fig 71. From top to bottom: Wangfujing Department Store, architectural elements analysis of hidden logistical spaces on the ground floor, 1955, 1997, 2007. Drawn by author.
Fig 72. From top to bottom: Wangfujing Department Store, architectural elements analysis of glass façade on the ground floor, 1955, 1997, 2007. Drawn by author.
transparent glass façade 0 10 30 60 m

Escalators and lifts are introduced at the same stage as the atrium elements to maximise exposure to the retail displays. These vertical transport elements were positioned to ensure that consumers were continuously exposed to commercial stimuli as they moved through the space. By the 2000s, escalators became the dominant mode of vertical circulation, while staircases were removed from public view, reserved only for staff and emergency use. Transparent lifts facing the atrium reinforced visual connectivity across multiple floors, ensuring that consumer attention remained within the curated retail environment.

The restructuring of logistics and retail management within the mall further emphasises how privatisation influenced spatial organisation. In the 1950s, logistical activities were centralised but still accessible, with storage and transport operations visible within the mall’s spatial framework. However, by the 1990s, storage areas became decentralised, hidden within individual shops to maintain the visual integrity of consumer spaces. This transition reduced the visibility of non-commercial activities, creating a spatial hierarchy where efficiency of use is temporal. By the 2000s, logistics spaces were fully isolated, with dedicated freight elevators and auxiliary circulation networks ensuring that back-of-house activities remained entirely detached from consumer pathways. Logistic and shopping circuits are mutually exclusive in time and space, switching their working status between opening and closing times of the day, with one occupied while the other is idle, resulting in central areas either wasted or very crowded.

The façade of the Wangfujing Department Store further illustrates how privatisation enhances the containment of consumer activity through visual intervention. In the 1950s, the department store’s primary façade was transparent. However, by the 1990s, façade expansions concealed the mall’s internal processes, transforming it into a self-contained commercial entity, where consumer activity was no longer directly visually connected to what was going on outside. This trend continued in the 21st century, with façades further optimised for commercial branding, replacing transparency with large-scale advertisements, and creating an enclosed and controlled shopping environment where the consumer’s eye is immersed in a man-made indoor environment and disconnected from the city outside.

Beyond the internal layout, the mall’s zoning strategy in the 2000s exemplified how commercial interests shaped consumer behaviour. Unlike in the 1950s, when retail activities were uniformly distributed across the space, the later iterations of the mall introduced functionally distinct commercial zones. Shops were grouped according to function, product type, and target demographic, increasing the likelihood of consumption by creating immersive retail

clusters. High-end brands were positioned in premium locations, reinforcing exclusivity, while entertainment and dining areas were placed strategically to extend consumer dwell time. This spatial segmentation, dictated by private commercial interests, further reduced the mall’s public accessibility, as consumer experiences were now determined by economic stratification rather than organic patterns of use.

Through the transformation of atriums, vertical circulation, façades, logistical spaces, and retail zoning, Wangfujing Department Store exemplifies the progressive privatisation of Beijing’s malls. These spatial elements collectively illustrate how private economic interests have shaped pseudo-publicness in consumer environments, diminishing public autonomy, inclusivity and temporality. The privatisation of Beijing’s malls, facilitated by the adoption of Western shopping typologies, in which private commercial forces increasingly dictate the route of public life, transforming the urban commerce from public-oriented retail environments into controlled consumption landscapes.

Fig 73
Fig 73.1. Wangfujing Department Store, ground floor, disassembled architectural elements, axonometric drawing, 1955. Drawn by author.
Fig 73.2. Wangfujing Department Store, ground floor, disassembled architectural elements, axonometric drawing, 1997. Drawn by author.
Fig 73.3. Wangfujing Department Store, ground floor, disassembled architectural elements, axonometric drawing, 2007. Drawn by author.
Fig 74.1. Wangfujing Department Store, ground floor, integral spatial organisation, axonometric drawing, 1955. Drawn by author.
Fig 74.2. Wangfujing Department Store, ground floor, integral spatial organisation, axonometric drawing, 1997. Drawn by author.
Fig 74.3. Wangfujing Department Store, ground floor, integral spatial organisation, axonometric drawing, 2007. Drawn by author.

The spatial evolution of Beijing’s shopping malls is consistent with the reform of China’s socio-economic framework, the influence of Western liberalism, and the adoption of global retailing practices. This intergenerational study demonstrates that following the introduction of Western retail forms, the new spatial governance approach was dominated by private interests, subverting the previous power mechanisms of Beijing’s commercial activities and diminishing public autonomy. Spatially, Beijing malls learnt from Victor Gruen’s mall typology by drawing on its architectural elements to shape the spatial qualities of social aggregation and visual control. Although this indeed enriched the social activities and commercial landscapes that were open to the public, it also symbolised the injection of private sector-regulated spatial means into the interior.

The privatisation of Beijing’s shopping malls has transformed them into ‘pseudo-public spaces’ that appear to be open to the public but are in fact regulated by the power of private property, reducing the publicness of Beijing’s commerce. In order to revive the public-dominated collective commerce that existed in the city 50 years ago, the project intends to break down the indoor-outdoor barriers created by private power to manipulate social and consumer activities. The design’s potential for recreating the publicness of urban commerce in outdoor urban spaces benefits from the Beijing urban environment’s innate strengths in shaping public engagement since time immemorial. At the same time the ever closer pedestrian relationship and circulation characteristics between Beijing’s mall buildings and urban spaces are confirmed in the spatial analyses in this chapter, thus underpinning the basic possibilities of the design. So the project starts from the perspective of shaping the form of the combination of collective urban life and commercial activities, and shifts from the observation of the changing indoor space of Beijing malls to the examination of the outdoor city, further exploring the actuality of contemporary urban space for hosting consumption and public life.

Chapter 3

SHOPPING IN URBAN CONTEXT

Although today’s Beijing malls still retain the spatial qualities of typological elements shaping public gatherings, layers of regulation from the private sector prevent these elements from fulfilling their function of cohesive public attributes in an enclosed and controlled indoor environment. Therefore, the project proposes to restore the publicness of urban commerce through addressing outdoor urban spaces and focusing on existing urban commerce. This chapter explores the current status of shopping as it transforms from a confined activity within malls to a more integrated function of urban public spaces, and explores the importance of providing a social life and uniting the identity of the user for the future development of the retail space. To highlight the potential of urban environments to enhance publicness while supporting consumer activity, this chapter searches for existing collective consumption sites and urban spatial elements that can enhance social aggregation, as examples of small-scale public co-benefits, while informing design strategies for urban collective living that combine commerce and socialisation. The chapter is divided into two parts, the first of which examines the integration of urban consumption spaces with public life from a theoretical perspective, while the second part investigates existing forms of collective activity in Beijing and identifies spatial elements and strategies for design interventions.

Fig 75. Sanlitun Shopping Precinct, Chaoyang District, Beijing, photo, 2021. Available at: https://www.skyscrapercity.com/threads/unique-beijing__北京 帝都气场.1312307/ page-167. (Accessed: 18th February 2025).

Fig 76. MVRDV, Markthal Rotterdam, ubiquitous shopping, photo, 2004. From Burcu Bilgiç, https://www.arkitera.com/proje/markthal-rotterdam/.

[55] Montgomery, J., 1998. Making a city: Urbanity, vitality and urban design. Journal of urban design, 3(1), pp.93-116.

[56] Shields, R., 1992. Lifestyle shopping (pp. 195-215). London: Routledge.

3.1 Theoretical Study of Urban Consumer Spaces

This part explores future trends in urban commerce with a forward-looking vision, providing theoretical support for the design of collective urban life. The contemporary urban landscape is increasingly shaped by the pervasive presence of consumption, extending beyond enclosed shopping malls into the broader fabric of city life. In architectural discourse, contemporary retail environments are seen as spatial frameworks for social interaction, experience-based engagement, and inclusive urban activity, a trend that explains the strategic positioning of commercial spaces to serve diverse and heterogeneous urban populations. These discussions give directional references for locating the existing structures and elements of urban publicness in Beijing, and establish a prerequisite framework for re-conceptualising consumption in public environments.

Shopping as a Life Model

As today’s social consciousness drives urban life to be increasingly determined by consumption, shopping has evolved from a transactional necessity to an omnipresent force shaping cities, architecture, and public life. No longer confined to designated retail environments, consumer activities permeate diverse urban functions, integrating into spaces such as airports, museums, hospitals, and educational institutions[55]. This phenomenon is analysed in the Harvard Graduate School of Design Shopping Guide, which highlights reconfiguration of urban life through retail-driven strategies, where the consumer content of public social activity is increasing. As Rem Koolhaas and his research team argue, the traditional model, whereby shopping takes place within the urban interior, has been reversed: today, the city itself is embedded within the logic of shopping. This transformation erodes the clear boundaries between public and private, physical and virtual, civic and commercial, ultimately producing what the research describes as the “blobification” of urban environments, resulting in retail dictates spatial hierarchies, user interactions, and economic agenda of cities.

Combining his observations of the flexibility, disorder and morphological instability of commercial space, Koolhaas proposes ‘blobification’ as a description of the architectural forms influenced by contemporary capitalism and consumer society. In the evolution of social ideologies, the historical enclosed shopping centre in suburban environments is dying, and retail-driven urban planning is becoming increasingly dominant, allowing for a more flexible integration of commercial space into the urban fabric[56]. It reflects the transforma-

Fig 77.1. Taikoo Li Sanlitun, Chaoyang District, Beijing, photo, 2008. Source: Swire Properties.

Fig 77.2. The Place (世贸天阶), Chaoyang District, Beijing, photo, 2006. Available at: https:// www.flickr.com/photos/globetrekimages/19055519311. (Accessed: 11st March 2025).

[57] Singh, H. and Prashar, S., 2013. Factors defining shopping experience: an analytical study of Dubai. Asian Journal of Business Research, 3(1).

[58] Verhoef, P.C., Noordhoff, C.S. and Sloot, L., 2023. Reflections and predictions on effects of COVID-19 pandemic on retailing. Journal of Service Management, 34(2), pp.274-293.

tion of space by consumer culture to make shopping an immersive and interactive experience, rather than just the completion of a transactional act. Shopping places have become more fluid and boundaryless, merging with urban spaces to form new arenas of public activity. In the global renewal of commercial spaces, more and more shopping malls are no longer enclosed buildings, but are integrated into their urban surroundings. In the global renewal of commercial spaces, more and more shopping malls are no longer enclosed buildings, but are integrated into their urban surroundings. For example, Dubai Mall is not just a mall, but contains multiple experiences such as an artificial lake, musical fountains, and an indoor ice-skating rink, making it an extension of urban entertainment[57]. This theory reveals that the ability of consumer activity to coalesce public life is the future direction of urban commercial space development, and gives impetus to the project of breaking down the boundaries between Beijing’s shopping malls and outdoor urban spaces and thus rebelling against the regulation of privatisation.

Given the ubiquity of consumption, cities must acknowledge shopping as an essential component of urban experience while ensuring that it does not diminish public life. Research on urban consumer spaces underscores the potential for commercial environments to support civic functions, provided they are designed to accommodate diverse forms of social engagement. Successful urban retail environments demonstrate that commercial and public interests need not be mutually exclusive—well-integrated retail streets and multi-functional districts can sustain economic vitality while fostering social inclusivity. However, as cities increasingly prioritise consumption-driven spaces, the challenge remains to balance commercial imperatives with the collective urban experience.

Consumption Designed for Public Engagement

Much of today’s research suggests that urban commercial design should rethink the way retail space operates within the urban fabric, shifting the focus from mere profitability to fostering collective interaction. The increasing prevalence and development of online shopping, changing consumer attitudes and the lasting impacts of social distancing measures due to the COVID-19 pandemic have fundamentally altered the trajectory of modern commercial space design[58]. As Ibrahim Ibrahim argues in Future-Ready Retail, the future of urban commerce must go beyond transactional spaces towards dynamic platforms and interactive environments that foster community engagement and experiential value. The natural human desire to come together has led to a growing need for social venues in today’s communities, so these retail spaces

Fig 78
Fig 77

https://www.arkitera.com/proje/markthal-rotterdam/.

Fig 78. MVRDV, Markthal Rotterdam, shopping experience that promotes community engagement, photo, 2004. From Burcu Bilgiç,

[59] Ibrahim, I., 2022. Future ready retail

[60] Zukin, S., 1998. Urban lifestyles: Diversity and standardisation in spaces of consumption. Urban studies, 35(5-6), pp.825-839.

prioritise human-centred design, incorporating wellness, entertainment and social elements to create immersive consumer experiences. As cities become increasingly consumer-orientated, the challenge is not only to maintain economic vitality, but also to enhance the consumer experience using digital technology and human-centred design to ensure that commercial spaces make a meaningful contribution to public life[59]

This challenge stems from the interplay between commercial profitability and the collective urban experience. While shopping centres have historically been designed as enclosed, controlled environments, the phenomenon of shopping’s transition to outdoor urban spaces has made public engagement increasingly important. Lisa Scharoun’s America at the Mall: The Cultural Role of a Retail Utopia underscores how retail environments, when strategically designed, can serve as platforms for urban interaction rather than isolated commercial enclaves[60]. Contemporary shopping streets, markets and mixed-use commercial districts can foster a sense of belonging and community by prioritising inclusivity, accessibility and adaptability through integrated and comprehensive spatial planning of digital and physical elements, encouraging consumers to engage in activities other than purchasing, and in turn facilitating multiple forms of public activity. Retail spaces can maintain commercial viability while reinforcing their social value, which paves the way for the dual objective of the design of collective urban life.

The relevance of this discourse in Beijing’s urban context is evident in the declining role of shopping streets and open-air commercial spaces as genuine public venues. As commercial developments have increasingly prioritised private-sector-regulated retail environments, urban consumption has become detached from its historically embedded social functions. The dominance of enclosed malls and branded retail complexes has further accelerated this shift, narrowing the opportunities for spontaneous consumer interactions. Addressing this issue requires a strategic reorientation of urban retail design, where consumption and public life coexist symbiotically. The project argues that integrating outdoor consumer spaces with social activities can restore urban publicness, repositioning consumption as a vehicle for collective connectivity.

City Commerce and Collective Identities

The integration of retail spaces into the urban fabric must prioritise their capacity to serve different societal groups and ensure the inclusiveness of the outdoor commercial environment as a public space. Contemporary urban commerce increasingly expected to accommodate a broad portrait of user identities and cater for the diverse social, economic and cultural needs of the urban

Fig 79.1. Taikoo Li Sanlitun, platforms for urban interaction, Chaoyang District, Beijing, photo, 2008. In Guide to Beijing Night Tours, 2023. Source: english.beijing.gov.cn

Fig 79.2. MVRDV, Markthal Rotterdam, shopping experience that promotes community engagement, photo, 2004. From Burcu Bilgiç, https://www.arkitera.com/proje/markthal-rotterdam/.

Fig 80. Aerial view of Wangfujing neighbourhood planning, 2000s. From 北京市城市规划设计 研究院 (Beijing Urban Planning and Design Institut)

[61] Francis, M., 2003. Urban open space: Designing for user needs Island Press.

[62] Jacobs, J., 2010. Dark age ahead: Author of the death and life of great American cities. Vintage Canada.

[63] Florida, R., 2002. The rise of the creative class. Brilliance Audio.

population[61]. As online shopping advances, urban retail environments evolve beyond their traditional role of facilitating transactions, and their ability to facilitate the participation of individuals of different age groups and socio-economic backgrounds becomes more crucial. Designing collective commercial activities that encompass multiple identities and thus enhance their social value is now the task of functional urban planning, replacing the previous planning approach of locating commercial spaces according to the spending power of the user.

Existing studies demonstrate that the success of urban retail spaces depends on their ability to respond to the contextual dynamics of their locations. Jane Jacobs, in The Death and Life of Great American Cities, highlights that mixed-use areas encourage social interaction by integrating commercial functions within diverse urban settings[62]. This principle remains relevant in contemporary urban design, where public-facing commercial environments can strengthen community cohesion and enhance inclusivity. Similarly, Richard Florida’s The Rise of the Creative Class emphasises the relationship between economic vibrancy and the social inclusion of urban spaces, demonstrating that retail environments appeal to a wide range of demographics when strategically integrated with cultural and recreational activities[63]. These insights suggest that thoughtfully designed consumption spaces can function as urban platforms that transcend class distinctions and cultivate broader community engagement.

For Beijing, the adaptation of commercial space to the needs of a diverse urban population is particularly important given the city’s economic transformation and socio-demographic compartmentalisation. For example, the historical evolution of Wangfujing exemplifies the process of commercial districts responding to the changing needs of their neighbouring communities. However, with an increasingly touristy commercial positioning, its accessibility to all levels of the community, such as local residents and workers, has diminished. Therefore, the project hopes that by designing consumer environments that integrate social functions and promote cross-demographic participation, urban commerce can be repositioned as a mechanism for collective urban life rather than a segregated consumer experience restoring the inclusiveness of commercial spaces in outdoor urban environments to ensure that they remain relevant to a wider cross-section of the society.

Fig 81. Wangfujing commercial pedestrian street, Dongcheng District, Beijing, 1999. In Lisa Nan, 62% Of Chinese Luxury Shoppers Are Buying At Home Vs. In European Capitals, 2023.

[64] Qiao, Z., Xu, X., Wu, F., Luo, W., Wang, F., Liu, L. and Sun, Z., 2017. Urban ventilation network model: A case study of the core zone of capital function in Beijing metropolitan area. Journal of Cleaner Production, 168, pp.526-535.

[65] Gan, G.H., 1990. Perspective of urban land use in Beijing. GeoJournal, 20, pp.359-364.

3.2 Urban Spatial Study of Beijing

This part transitions from the theoretical exploration of urban consumer spaces to an empirical analysis of Beijing’s commercial environment, establishing a practical foundation for design interventions. It examines the spatial and social dynamics of Wangfujing, focusing on its functional composition, demographic patterns, and the integration of public activities within its commercial framework. Additionally, this section analyses Beijing’s existing collective consumer activities, identifying public-oriented commercial spaces that foster social engagement. The study further evaluates the spatial elements within Beijing’s retail districts that contribute to public gathering, drawing comparisons with the social attributes qualities embedded in Gruen’s mall typology. This part serves to establish a repository of material that can be directly referenced for the design of urban collective living in Beijing from the perspective of spatial practice. Through this analysis, the study aims to identify the spatial conditions that can enhance urban publicness in a commercial setting, ensuring that collective commercial design can be attuned to the specific territorial characteristics of the city of Beijing, thus strengthening the practical feasibility of the design and the credibility of the test.

Functionalised Group Composition in Wangfujing

Wangfujing’s contemporary complexity stems from successive urban planning shifts over the last century. An early-20th-century transformation into a “modern” shopping street was followed by a mid-20th-century period of state-controlled commerce, and more recently by intensive late-20th-century redevelopment including major commercial projects and pedestrianisation[64] These changes have layered traditional Chinese urban fabric, early international influences, and socialist-era characteristics into the current built environment, helping to make Wangfujing as emblematic of Beijing as historic sites like the Forbidden City[65].

The functional composition of Wangfujing today reflects its role as a multifaceted urban environment, where commerce intersects with institutional, cultural, and residential functions. The district accommodates a range of commercial typologies, from large-scale department stores like Wangfujing Department Store and shopping complexes such as Oriental Plaza to independent specialty shops and historical markets. This diverse retail environment is complemented by cultural and institutional functions, including the Beijing East Cathedral, Beijing Union Hospital, and several high-end hotels, which serve international visitors, business travellers, and local residents alike. Additionally,

From: https://www.pumch.cn/en/introduction.html.

Fig 82.2. Beijing Union Hospital, Wangfujing, Beijing.
Fig 82.1. Grand Hyatt Beijing at Oriental Plaza, Wangfujing, Beijing. Photo by author, 2023.

Fig 83. Beijing apm and Wangfu Central mall, Wangfujing, Beijing. From: https://www.wfcentral. cn/en/index.php?m=content&c=index&a=lists&catid=42.

Fig 84. Beijing East Cathedral, Wangfujing, Beijing. Photo by author, 2023.

[66] Wang, F., He, J., Jiang, C. and Li, Y., 2018. Evolution of the commercial blocks in ancient Beijing city from the street network perspective. Journal of Geographical Sciences, 28, pp.845868.

[67] Wang, S., Zhang, J., Wang, F. and Dong, Y., 2023. How to achieve a balance between functional improvement and heritage conservation? A case study on the renewal of old Beijing city. Sustainable Cities and Society, 98, p.104790.

office spaces, government institutions, and mixed-use developments contribute to Wangfujing’s economic and administrative significance, reinforcing its status as a dynamic urban hub[66]. These interwoven functions make Wangfujing not just a retail destination but also a space where different user groups navigate and interact daily.

The rich functional mix of Wangfujing attracts a wide range of urban users and is a popular destination for tourists and locals alike. Tourists are drawn by the spectacle of shop displays, street sculptures, and the “living museum” quality of a historic market street updated for contemporary tastes[67]. Local Beijing residents, by contrast, more actively appropriate Wangfujing’s spaces as part of daily life, such as the impromptu square dance performances often seen on summer nights in front of the cathedral’s steps. Other demographics further enrich Wangfujing’s user profile. For instance, the thousands of office workers in the office buildings at Oriental Plaza contribute to a brisk weekday rhythm, spilling out at lunch hours and after work to eat and shop. Meanwhile, the retail staff and service employees of Wangfujing form a significant on-site community in their own right. These workers spend much of their day in the area and often engage with the street’s amenities during breaks, thus blurring workplace and public space.

This mix of users brings varying expectations and patterns of engagement with the space, reinforcing the need for urban commercial environments to accommodate multiple identities and social functions. The presence of both high-end retail and more accessible commercial offerings demonstrates how Wangfujing serves different economic groups, further supporting its potential as a testing ground for more inclusive, public-oriented urban commerce. Wangfujing’s demographic and functional complexity makes it an ideal site for exploring how design strategies can reintegrate public-led social engagement into commercial districts, using its existing user base to inform new spatial configurations.

Existing Commercial Interactions

The study of existing public commercial spaces in Beijing provides insights into how urban markets and street-based consumption activities foster collective urban life while serving diverse user needs. These commercial interactions thrive in open-air settings, allowing for spontaneous engagement, flexible use, and a more inclusive approach to urban commerce. A variety of markets and street-based retail environments across Beijing, including fresh produce markets, night markets, flea markets, and cultural bazaars, demonstrate the potential of outdoor consumption spaces to coalesce socialisation by integrating

Fig 85. Dongdan vegetable market, 1970s. From: http://www.obj.cc/thread-53209-1-1.html.

Fig 86. Dongsi Chaonei vegetable market, located at high-traffic urban intersections, and spontaneous social communication, 2020s. From: http://www.obj.cc/thread-53209-1-1.html.

Fig 87. Panjiayuan vintage market, where social exchanges, negotiations and cultural interactions are intertwined. Source: China Beijing Private Tour.

into the city’s pedestrian flows, where commercial transactions intersect with everyday public interactions.

Located in one of Beijing’s central districts, namely Dongcheng District, along with Wangfujing, traditional food markets, such as Dongsi Chaonei Vegetable Market, Dengshikou Huabao Vegetable Market, Wangfujing Sunshine Vegetable Market, and Hepingmen Vegetable Market, illustrate how commercial functions are embedded within the urban fabric. Located in residential or high-footfall areas, these markets serve as essential nodes for daily consumption while simultaneously facilitating daily socialisation among residents, office workers, and visitors by offering a wide range of necessities and speciality goods. Their adjacency to streets, plazas, or public transport hubs ensures visibility and accessibility, reinforcing their role as communal spaces.

Beyond food markets, Beijing’s night markets and informal commercial spaces provide additional perspectives on the integration of retail and public life. Spaces like Longfusi Night Market and Shichahai Cultural Market attract a mix of locals and tourists, offering a diverse range of goods, from food stalls to handcrafted cultural products. These environments extend retail beyond traditional daytime hours, prolonging public activity and fostering a more adaptable use of urban space. Flea markets, such as Panjiayuan Antique Market, similarly contribute to the informal commercial landscape, where consumption is intertwined with social exchange, negotiation, and cultural interaction. The presence of these markets in high-density, well-connected urban areas ensures that commerce remains a visible and participatory aspect of Beijing’s public realm.

The location of these commercial spaces at key pedestrian nodes, intersections, and street edges ensures a continuous influx of diverse users and helps sustain active consumer engagement. The project learnt about the siting methods used to incorporate public interaction in these informal consumption spaces, aiming to utilise the high-traffic areas of the Wangfujing area to create a public-driven commercial environment that reinforces the organic structure and publicness of Beijing’s urban commerce.

Urban Elements of Shopping Spaces

The outdoor environment of Beijing’s urban shopping is structured around several key spatial elements that utilise their ability to shape the spatial qualities of agglomeration in terms of mobility, facilitating the integration of social interaction and commercial participation, and can be used as existing urban materials in the design of collective urban life that combines consumption and sociability. These elements act as urban shopping spatial infrastructures that

Fig 88. Longfusi Market as informal consumption spaces, 1940s. In 日下旧闻考 (Ancient News of Imperial Capital). From: https://zhuanlan.zhihu.com/p/342015017.

From: https://zhuanlan.zhihu. com/p/342015017.

Fig 89. Urban outdoor social entertainment in old Beijing.

90. The

arcade’s distributed structure at the neighbourhood scale serves to direct pedestrian flow, the same as Beijing’s intersection. Drawn by author.

Fig
Parisian

[68] Taylor, N., 2009. Legibility and aesthetics in urban design. Journal of Urban design, 14(2), pp.189202.

[69] McNeill, D., 2011. Fine grain, global city: Jan Gehl, public space and commercial culture in central Sydney. Journal of urban design, 16(2), pp.161-178.

[70] Slater, D., 2002. Going shopping: markets, crowds and consumption. In Cultural reproduction (pp. 198-219). Routledge.

influence consumer flows, such as intersections and plazas, while enhancing urban connectivity, such as outdoor stairs, escalators and overpasses. Looking at the spatial characteristics of these elements from a global view of urban commercial space, it can be seen that the similar qualities of the Parisian arcade street illustrate the spatial perspective of these elements in facilitating the integration of commercial and public life in Beijing by arranging for the circulation of people and creating continuity of spatial experience respectively.

Intersections in retail districts serve as key nodes where pedestrian pathways converge, facilitating accessibility and guiding consumer movement. In high-density areas such as Wangfujing, intersections ensure that foot traffic is evenly distributed across commercial zones, keeping public spaces accessible to all groups[68]. The role of intersections in commercial districts is consistent with the historic function of the Parisian arcades, whose covered walkways directed urban pedestrian flows into carefully curated retail environments. The role of intersections in commercial districts aligns with the historical function of Parisian arcades, where covered passageways channeled urban movement into curated retail environments. Both act as spatial regulators, building consumer engagement by directing foot traffic to assigned urban areas. Meanwhile the urban plazas of the commercial districts receive these diverted flows as gathering spaces where consumption and social activity intersect. Their role in shaping public interaction is comparable to that of mall atriums, which facilitate leisure, cultural events, and informal social encounters[69]. In Beijing, plazas adjacent to major commercial hubs, such as Sanlitun Taikoo Li, serve as flexible urban spaces whose openness ensures that the retail space remains socially inclusive, caters to diverse users and promotes urban vitality. This structured flow reinforces the role of intersections and city squares in navigating people and experiencing urban commerce, informing the spatial type of the design screening test site.

Escalators and stairs in urban shopping areas have outlived their utilitarian purpose of vertical transport. Positioned at key nodes of urban circulation, they ensure that pedestrians are exposed to uninterrupted contact with the public amenities surrounding the urban mall. This characteristic is similar to the visual qualities of arcades, whose walkways keep people in motion interacting with product displays and commercial landscapes[70]. Similarly, vertical circulation tools increase the chances for pedestrians to engage in social activities while moving in three dimensions, and urban overpasses in high-density commercial districts horizontally connect these business-related public engagements, as well as providing alternatives to ground transport. For example, in Beijing’s Xidan commercial district, continuous elevated walkways connect major retail buildings, extending the shopping circulation serving a variety of con-

Fig 91.1. Passage de Panormas, Arcades that also connect neighbourhoods with Beijing’s urban vertical circulation and overpasses. Drawn by author.
Fig 91.2. Passage des Princes, Parisian arcades, gathering community exchanges while moving.
From: Mary Evans Picture Library.
Fig 92.1. Cross-scale spatial elements in mall and city. Drawn by author.

Fig 92.2. Xidan’s urban intersections and overpasses 1990s, creating three-dimensional socialisation, Xicheng District, Beijing. From: https://zhuanlan.zhihu.com/p/41388063.

Fig 93.1. Modular crossing bridge, Xidan commercial area, axonometric drawing, Xicheng District, Beijing. Drawn by author.

Fig 93.2. Xidan pedestrian overpass, the first pedestrian crossing bridge in Beijing, 1 July 1981. From: https://zhuanlan.zhihu.com/p/41388063.

Fig 93.3. Modular crossing bridge, Xidan commercial area, axonometric drawing, Xicheng District, Beijing. Drawn by author.
Fig 93.4. Continuous overpass platform with stairs and escalator, Xidan commercial district, Xicheng District, Beijing, 2020s. Source: dreamstime.
Fig 94. Pedestrian overpass systems connecting multi-purpose buildings everywhere, Hongkong, wide platforms can accommodate various public events, 2020s. In: Uniquely HK, 2025.

[71] Wekerle, G., 2000. From Eyes on the Street to Safe Cities [Speaking of Places]. Places, 13(1).

[72] Wan, S.W., 2007, April. The role of the skywalk system in the development of Hong Kong’s central business district. In Annual Meeting of the Association of American Geographers, San Francisco, United States.

Fig 93 Fig 94

sumer groups beyond the street level, creating highly inclusive pedestrian routes to maintain the continuity of the public interaction experience while providing elevated views of the cityscape[71]. In cities such as Hong Kong, overpasses have evolved into the most common components of the retail environment, linking malls, transit hubs, and office towers into multi-level shopping corridors[72]

The integration of vertical transport and overpasses reinforces the role of this three-dimensional circulation structure in connecting consumption and sociability nodes, maintaining the public engagement of urban commerce.

By analysing these four spatial elements in the outdoor spaces of Beijing’s urban commerce, intersections, plazas, vertical circulation and overpasses, it can be seen that these elements effectively incorporate the public life of the city into the dense retail activity, unite the various groups in the community and spatially enhance the connectivity of the comprehensive urban commercial experience that encompasses both consumption and social interaction. This provides practical advice for the design of new collective retail in Beijing, and further offers a direct contextual reference for site selection, positioning of mass socialisation, and design and optimisation of circulation frameworks.

Conclusion

Today shopping has permeated various urban functions, and the concept of consumption is increasingly converging on the urban experience shaped by commercial institutions. So the trend of contemporary urban commercial space is to incorporate more social interaction activities, so that the commercial space becomes a public participation platform that accommodates heterogeneous groups of various identities, ages, and classes in the community. Under such a vision of the time, Wangfujing in Beijing, as a core urban commercial district with extremely complex architectural functions from the 20th century to the present, has had remarkable results in shaping positive urban public activities with the aid of spatial structural circulation, and has served as an object of study and reference for the project.

As the design of Beijing’s collective life seeks to unite the multiple user identities of the community to create consumption and social activities that are self-organised and co-responsible, Wangfujing’s group composition gives an indication of the subjects of collective activity that need to be taken into account by the design, including local residents, students, tourists, and office, service, and sales workers. Existing informal commercial activities in Beijing’s Dongcheng District, including food markets, night markets, flea markets, and cultural bazaars, were then examined, and it was found that the public autonomy of these society-oriented and mutually beneficial exchanges fit with the design concept, and so they were considered for consumption activities that would enable the community as a whole to be self-sufficient.

Finally, by analysing the spatial elements of the outdoor environment of Beijing’s commercial districts for their capacity to enhance collective interaction in terms of circulation, the design identifies the intersection of Wangfujing as a testing site for the restoration of the publicness of Beijing’s commerce, and

the space of the city plaza as an outdoor ‘atrium-like space’ for the centralisation of social activities. At the same time, the circulation framework is designed to replicate the inclusiveness and cohesiveness of the urban overpasses and vertical circulation elements that link the multi-functional buildings on several floors. In order to provide a public life that meets the daily functional needs of a diverse group while also inspiring community vitality, this chapter provides a direct practical reference to ensure that the new form of communal living is contextualised within the urban territory of Beijing.

Chapter 4

URBAN COLLECTIVE OCCUPATION

In the analysis of shopping mall typology and the study of Beijing’s commerce evolution, the project observes the phenomenon of privatisation of mall spaces in Beijing, and criticises the ‘pseudo-public space’ that this spatial development has brought to the city, aiming at restoring the publicness of Beijing’s commerce. Furthermore, by learning from the structural spatial conditions of the outdoor commercial streets and informal public activities of today’s Beijing city, the design identifies the framework logic of the new activity space and the content of the filling activities, aiming to synthesise social and consumer activities that are in line with Beijing’s regional characteristics, and to establish a collective occupation of shared responsibility that unites the community and is autonomously managed by the social groups. Following a comprehensive understanding and analysis of historical mall precedents and the current state of urban commerce in Beijing, this chapter introduces the concept of collective commercial design and the content of urban spatial practices.

Fig 95. Designs for urban collective life, status one, Wangfujing, Beijing Drawn by author.

Deprivation of the public’s autonomy in privatised spaces

Segregation of social groups in commercial spaces

Polarisation of efficiency in use of urban space

Consumer services regulated by private sector

Autonomy

Inclusivity

Temporality

Fig 96. Key issues responded by design. Drawn by author.

4.1

Design Concept of Restoring Publicness

The design draws on the critical phenomena and learning material from the previous three research-based chapters. The mall typology invented by Victor Gruen in the 1950s used simulated urbanity as a spatial organising device to create two purposes for the suburban mall in the United States: to aggregate social activity and to spur commercial profitability. These two purposes are shaped and reinforced by two types of architectural elements: the first includes transparent entrances, open staircases, escalators, and atriums that vertically extend the volume of social activity, and the second includes continuous transparent window displays that show merchandise along the shopper’s movement, and hidden logistical spaces. During China’s reform and opening up period in the 1980s, when the Western mall typology was introduced to Beijing’s urban commerce, the forms and effects of both types of spatial elements were applied and preserved. However these architectural elements maintain the ability to output highly controlled interior spatial qualities and bring along with them a management approach regulated by the private sector into Beijing’s shopping malls. Although this evolution of spatial structure did increase the richness of social activities and the visual impact of merchandising, it also led to a shift in power in Beijing’s commerce.

Initially, Beijing’s commerce began to shift from outdoor markets to department stores in the 1950s, when shopping malls were regulated by the state, and business activities therein, including socialising and trading, were conducted consciously by the public in a process of mutual negotiation and discipline. At this time, Beijing’s commerce was built on a vibrant urban public environment and the gathering of people, with a strong sense of public autonomy. However, when Beijing’s indoor shopping malls introduced Gruen’s two types of architectural elements shaping social and visual aspects, they switched the initiative of the mall space by making private property rights the norm of spatial operation. This resulted in both social and consumer services being carried out under the supervision of the private sector, creating an over-controlled system of spatial power that led to a dramatic decline in the publicness of Beijing’s shopping malls. The privatisation of commercial spaces, which appear to be open to the public but are in fact regulated by private commercial interests, has turned Beijing’s commercial spaces into ‘pseudo-public spaces’. This controlled state of affairs continues today in the closed spaces of Beijing’s shopping malls.

This phenomenon is the main problem of the project’s critique and is broken down into three directions of explicit issues that are responded to one by one through the means of design. The first is the most obvious deprivation of public autonomy in privatised spaces: the role of the mall manager and shop

97. New circulation system learning from mall organisational model. Drawn by author.

Fig
atirum new circulation system

keeper as administrators of private institutions directs and interferes with the time, place, and access to social activities, replacing the user’s opportunity to organise public life on their own. The second is the division of social groups in the planning of commercial spaces: the architects of shopping malls, from the perspective of the profitability of private business, have defined the positioning of businesses according to the status and consumption level of the users, and in accordance with the logic of consumerism in modern society, which exacerbates the social division and creates an exclusiveness of the consumer spaces. The third is the polarisation of the efficient use of urban space: the consumption intensity pursued by private rights makes urban shopping malls extremely high or low footfall in space at different times, e.g. when there is low footfall, the commercial space in central cities is wasted; when there is high footfall, the shopping space is overloaded. These three critical tasks give rise to three characteristics that design needs to shape: autonomy, inclusivity, and temporality.

These specific contradictions brought about by privatisation make it unable for the spatial elements shaping public participation in Beijing’s commercial space to play their typological role in a closed space regulated by the private sector. Therefore, the design decision to break down the barriers between indoor and outdoor urban commercial spaces and put the space to be dealt with in the outdoor of Beijing’s commercial areas, where the ownership of the space belongs to the state according to China’s land laws, lays the foundation for the design goal of reclaiming the public power of the city’s commerce in the past. By learning from existing spatial elements in the outdoor urban spaces of commercial districts, such as overpasses and stairs, the design takes from Gruen’s invention of the mall typology the circulation model placed in the outdoor urban space, which is used to form spatial organisational conditions capable of shaping social gatherings. By learning from today’s informal urban commercial activities in Beijing, such as night markets, flea markets, and food vendors, the design derives new forms of urban consumption events that activate bottom-up business models of community self-sufficiency.

Fig 98
Fig 97
Fig 98.1. New social activities learning from existing daily informal shopping in central Beijing.
Drawn by author.
Fig 98.2. New social and consumer activities learning from existing daily informal shopping in central Beijing. Drawn by author.
Fig 99. Testing site: Wangfujing commercial area, multi-functional community, Dongcheng District, Beijing. Drawn by author. Residence

4.2 Design Operation of Collective Occupation

Today, Beijing’s enclosed indoor shopping malls are increasingly privatised, so the project aspires to restore the publicness of the city’s commercial sector as it once was. In order to critique and respond to the three issues raised by ‘pseudo-public space’, the new urban collective occupation tests the structure of public life in Beijing’s urban space in three dimensions: autonomy, inclusivity, and temporality. Specifically, the approach is to build a public space that combines community-operated and co-responsible consumption and social activities in the outdoor urban space of the mall building; to balance the differences in user identities by connecting multi-functional buildings at the community scale to increase the inclusiveness of public activities; and to propose variable activities to respond to the urban conditions of different time periods and to increase the spatial rationality of the strategy in Beijing’s central business district. This serves as an overarching goal guide for design operations to steer the direction of spatial practice.

The design of the new urban collective life is divided into the design of circulation spaces and the design of activity spaces. The co-operation between the two particularly highlights the relationship between the atrium, the cloisters and the public activities on the ground floor. The design for circulation spaces is to create multi-level corridors that reproduce the spatial organisational conditions of Gruen’s mall typology, bringing the spatial qualities of indoor spaces that shape public gatherings back to the outdoors. The design of the activities operates to conceive commercial and public life in accordance with the mixeduse demographics of the area and to enhance community solidarity.

An intersection in the Wangfujing area of Beijing was chosen as the testing site, as studies of commercial intersections have shown that they have the ability to direct and divert pedestrian flows to gathering areas. The design extracts the Wangfu Central Mall, Redia Residence, and Madison Hotel, which are located adjacent to the intersection, and connects them through a new corridor to change the circulation of the three buildings from the inside to the outside. At the same time, the multi-identity groups served by these functional buildings are used as test subjects as well as organisers of public events, including mall logistics staff, shoppers, local residents and foreigners. The diversity of people served by these multifunctional buildings is combined, which enhances the openness and inclusiveness of public activities.

Research on existing informal commercial activities in Beijing has shown that the location of venues at intersections and street edges ensures a constant influx of different users. Therefore, in addition to the original commercial activities provided by Wangfu Central, the design also sets up flea markets

Fig 100. Testing site: an intersection in Wangfujing, surrounded by Wangfu Central Mall, Redia Residence and Madison Hotel.. Drawn by author.
Fig 101. New corridor system changes circulation in three buildings. Drawn by author.
Fig 102. Designs for Beijing urban collective life, status two. Drawn by author.

and food stalls at the block entrances and on the ground floor of the cloisters in order to build up outdoor urban consumption activities, such as residents selling local cultural items to tourists or outsiders, enhancing the cohesion of the community and the balance of user identities. In addition, the plaza space is an urban scale ‘shopping mall atrium’ with the social attribute of shaping public gatherings, so the design decided to choose the courtyard surrounded by the three residential buildings of Redia Residence as the main concentration of social activities and other small square spaces to form a purely urban experience and recreational activities at different scales. For instance, the design places large terraces next to the residential buildings to provide programmes for children’s play, open-air gatherings, and art exhibitions, surrounded by tables and chairs necessary for board games and cultural handicraft exchanges to facilitate interaction between different groups. Basketball and badminton courts are placed in the south-west corner of the mall to complement the already existing ice-skating rink and to promote community liaison in sports. These activities can be self-organised and managed by users of the area with different identities, forming a network of solidarity for mutual benefit.

To allow the urban public space to be fully utilised throughout the day, the design is variable, arranging alternative possibilities for use according to the changing needs of users and their usage at different times of the day. At times of low footfall, social activities can be replaced with open-air cinemas, live performances, outdoor reading; consumer activities are replaced with night markets and al fresco dining. These activities can gather the public, attract consumption, and enhance the vitality of the space, while improving the ability of urban commercial spaces to build public life.

The Beijing collective living design enriches the connectivity and accessibility of public activities from the perspective of circulation by learning from the corridor structure of the shopping mall typology to create multi-level corridors, and by transforming the existing system of overpasses in the commercial space to connect the multifunctional buildings outdoors. Then, by learning from the content of Beijing’s existing informal daily transactions and their location relative to the city streets, new consumer and social activities are set up that are autonomously managed and disciplined by the community groups to shape a new form of collective occupation. The ultimate goal is to resist the current privatisation of commercial space and to reshape the publicness of Beijing’s commerce.

Fig 104
103

103.1. Daytime status, location of consumer activity in relation to strong circulation at intersections. Drawn by author.

Fig
Fig 103.2. Nighttime status, social activities are established in atrium-style plazas and corridors.
Drawn by author.

Fig 104.1. Spatial relationship between multi-level corridors and urban roadways. Drawn by author.

Fig 104.2. Daytime status courtyards with more circulation, abundant foot traffic, and consumer activity to stimulate public participation. Drawn by author.

Fig 104.3. Nighttime status of courtyards with less circulation, rich gathering interactions, and social activities to strengthen community solidarity. Drawn by author.

Conclusion

Fig 105. Beijing’s modern commercial landscape, 2008. Available at: https://www.skyscrapercity.com/threads/unique-beijing__北京 帝都气场.1312307/page-167. (Accessed: 18th February 2025).

This dissertation has examined the spatial transformation of Beijing’s commercial environments, revealing the increased privatisation of shopping space and its effects on urban public life. The research traced how the shopping mall type, originally developed by Victor Gruen to revive urban vitality in suburban areas, which has triggered a power shift in urban commerce in Beijing. Beijing’s commercial spaces were gradually restructured to serve private economic interests at the expense of their inclusiveness for collective urban engagement. By analysing this evolution from historical, spatial, and typological perspectives, this dissertation has shown how the application of Western retailing strategies contributed to Beijing’s shopping space losing its publicness and creating pseudo-public space that is nominally public but remains under private sector management.

A key finding of this study is that Beijing’s shopping environments have undergone a fundamental shift in governance. In the 1950s, retail spaces, whether markets or department stores, were an integral part of public life, serving as hubs for economic exchange and social interaction. These environments facilitated flexible, independent consumer experiences, where individuals and goods movement remained embedded in the open urban fabric of the city. However, as China’s economic reforms progressed in the 1980s, the rapid adoption of western shopping mall typologies came with a new level of spatial management, with consumer governance over public accessibility taking centre stage. The spatial strategies used in Beijing’s malls transformed shopping from a self-directed public activity into an experience dictated by private interests.

Despite the dominance of privatised commercial environments, this research has demonstrated that shopping environments still have the potential to serve as platforms for public life. The research findings suggest that commercial environments should prioritise inclusivity, accessibility, and collective engagement. By analysing urban spatial elements, such as marketplaces, pedestrian networks, and commercial streets, this study has identified opportunities for reintroducing public-oriented design strategies into Beijing’s commercial fabric. In response to these findings, the design proposal associated with this research reimagines urban shopping as a shared, public-led activity thereby reclaiming public ownership of commercial space.

The research primarily focused on the spatial attributes of commercial environments, examining how architectural typologies influence shopping and public engagement. However, the study did not extensively explore policy interventions or economic mechanisms that contribute to privatisation. A deeper investigation into regulatory frameworks, municipal land policies, and the financial models driving retail development could further strengthen the findings. Additionally, the research concentrated on large-scale commercial developments but did not address the role of smaller, community-driven retail spaces in shaping urban public life. Future studies could examine how bottom-up commercial initiatives, such as cooperative retail models, or digital-commerce-integrated urban spaces, contribute to more inclusive and flexible urban commercial landscapes.

Beyond the architectural implications, this research contributes to broader debates on urban governance and spatial equity. The findings suggest that shopping environments should be reconsidered as multi-functional public assets rather than merely spaces for consumer transactions. urban designers and policymakers should explore new spatial configurations that integrate commerce with social engagement, creating environments that encourage collective urban experiences rather than passive consumption. Current retail developments in Beijing and globally, often prioritise economic returns over public accessibility, leading to commerce that is exclusive. Municipal authorities and urban planner should consider strategies that support hybrid commercial-public spaces, such as financial incentives for community-driven retail projects, and the preservation of open-market typologies as essential components of urban life.

Several avenues for future research emerge from this study. First, a comparative analysis of commercial space privatisation in different urban contexts, for example, examining how European cities with high-street retail models balance commercial and public interests, could provide further insights into the consequences of retail space governance. Second, rather than accepting privatisation as an irreversible trend, this study suggests researching the potential of alternative commercial models, such as cooperative-run retail environments, pop-up commerce, or digitally integrated urban shopping networks, as mod-

els for public-led consumption spaces. As digital retail platforms, augmented reality, and interactive urban interfaces become increasingly prevalent, how might these tools be leveraged to reintroduce public agency into commercial environments? Can technology help counteract the effects of privatisation by enabling new forms of urban engagement in shopping spaces? Future studies could explore the integration of smart retail strategies, participatory urbanism, and digital placemaking to create more inclusive and dynamic shopping environments.

Ultimately, this research calls for a fundamental rethinking of how commercial spaces are designed, governed, and experienced. By advocating for a new model of public-led commerce, this study contributes to the broader architectural and urban discourse on reclaiming urban spaces for collective use. The challenges of urban privatisation are not confined to Beijing but are shared across global cities. Thus, the strategies proposed in this dissertation offer not only a framework for reintegrating publicness into Beijing’s commercial fabric but also a broader vision for creating more equitable, inclusive, and participatory urban environments worldwide.

LIST OF FIGURES

Fig 001. Urban shopping scene in commercial pedestrian streets in Xintiandi, Shanghai, China, photo, 2008.

Fig 002. Garden Cour t at Southdale Centre, Edina, Minneapolis, Minnesota, photo, 1972.

Fig 003. John L. Stoddard, the Graben towards the northwest, painting, late 19th century.

Fig 004. K alamazoo Mall, photo, 1959.

Fig 005. Fulton Mall, Fresno County, CA, drawing.

Fig 006.1 Southdale Centre, masterplan, 1956.

Fig 006.2 Southdale Centre, aerial photograph, 1956.

Fig 006.3 Randhurst Mall, Mount Prospect, Illinois, photo of model with Victor Gruen (left) and George M. O’Neill, 1962.

Fig 006.4 Monroeville Mall, Monroeville, Pennsylvania, aerial photograph, 1969.

Fig 007. Southdale Centre, Randhurst Mall, Monroeville Mall. Axonometric drawings, drawn by author.

Fig 008. Southdale Centre, photo, section drawing.

Fig 009. Spatial elements of corridors constitute indoor pedestrian experiences condensing urban circulation. Drawn by author.

Fig 010. T he circulation characteristics of Southdale Centre, Randhurst Mall and Monroeville Mall simulate three types of urban street structures. Drawn by author.

Fig 011. Piazza San Marco in Venice, Place Charles de Gaulle in Paris and Graben Street in Vienna.

Fig 012. Southdale Centre, floor plans. Drawn by author.

Fig 013. Southdale Centre, garden court, photo.

Fig 014. Randhurst Mall, floor plans. Drawn by author.

Fig 015. Randhurst Mall, three-dimensional g alleria, photo.

Fig 016. Monroeville Mall, floor plans. Drawn by author.

Fig 017. Monroeville Mall, ‘Ice Palace’ skating rink, photo.

Fig 018. Mall shopping scenario, illustration, 2022.

Fig 019. Car park next to the mall.

Fig 020. Southdale Centre, car parks, illustration, 1957.

Fig 021. Southdale Centre, analysis of entrances. Drawn by author.

Fig 022. Southdale Centre, transparent entrances, photo.

Fig 023. Southdale Centre, analysis of vertical circulation. Drawn by author.

Fig 024. Southdale Centre, open stairs, photo.

Fig 025. Southdale Centre, analysis of atrium. Drawn by author.

Fig 026. Southdale Centre, atrium, photos.

Fig 027. Randhurst Mall, analysis of atrium. Drawn by author.

Fig 028. Randhurst Mall, atrium, photos.

Fig 029. Monroeville Mall, analysis of atrium. Drawn by author.

Fig 030. Monroeville Mall, atrium, photos

Fig 031. Southdale Centre, analysis of shops’ display windows. Drawn by author.

Fig 032. Southdale Centre, shops’ display windows. photo.

Fig 033. Southdale Centre, analysis of logistics areas. Drawn by author.

Fig 034. Southdale Centre, hidden logistics areas. photo.

Fig 035. Southdale Centre, visual connectivity in boutique stores. Drawn by author.

Fig 036. Monroeville Mall, view point on an escalator coherent commercial picture, film footage, 1977.

Fig 037. Southdale Centre, collection of social and visual architectural elements. Drawn by author.

Fig 038. Southdale Centre, partly section drawing and photos, two architectural purposes.

Fig 039. Collection of social and visual attributes architectural elements. Drawn by author.

Fig 040. Southdale Centre, socialisation and consumption activities in controlled spaces, perspective section drawing.

Fig 041. Southdale Centre, axonometric drawings. Drawn by author.

Fig 042. Cultural Palace of Nationalities, Xicheng District, Beijing, photo, 1959.

Fig 043. Beijing city centre shopping street, photo, 1950.

Fig 044. Shanghai Yongan Department Store, 1955.

Fig 045. A Shanghai de partment store, China, photo, 1959.

Fig 046. First KFC opens in Beijing, photo, 1987.

Fig 047. View of Beijing, China, photo, 2012.

Fig 048. Southdale Centre, western retail formats.

Fig 049. Parkview Green, Chaoyang District, Beijing.

Fig 050. Dong an Market (1920s), Dashilan (1950s), and Dongan Market interior sales counter (1970s).

Fig 051. Xiushui Street Market (1986), Xidan mall (1990), Escalator in Xidan mall (1992).

Fig 052. Sete Shopping Centre (1992), Oriental Plaza (1999), shopping scene integrating entertainment and leisure functions, Beijing, photo, 1998.

Fig 053. Shin Kong Place, Chaoyang District, Beijing, 2007.

Fig 054. China World Trade Center Tower III, 2007.

Fig 055. Wangfujing Commercial District, map and photo, Beijing, 2001.

Fig 056. Location changes of Wangfujing neighbourhood.

Fig 057. Fruit stall on street in Beijing, Qing Dynasty, illustration, 1899.

Fig 058. Beijing city map, Yuan Dynasty.

Fig 059. Beijing city map, Ming Dynasty.

Fig 060. Crossing between East Chang’an Avenue and Wangfujing Street, photo, 1954.

Fig 061. Wangfujing Street, photo, 1956.

Fig 062. Wangfujing Department Store, plan, 1955. Drawn by author.

Fig 063. Wangfujing Department Store, scattered counters, photo, 1955.

Fig 064. Wangfujing Department Store, plan, 1997. Drawn by author.

Fig 065. Wangfujing Department Store, retail environmentphoto, 1999.

Fig 066. Wangfujing Department Store, plan, 2007. Drawn by author.

Fig 067. Wangfujing Department Store, retail hall, photo, 2024.

Fig 068. Circulation of the indoor Department Store and

outdoor city, 1955, 1997, 2007. Drawn by author.

Fig 069. Wangfujing Department Store, architectural elements analysis of atrium on the ground floor, 1955, 1997, 2007. Drawn by author.

Fig 070. Wangfujing Department Store, architectural elements analysis of vertical circulation on the ground floor, 1955, 1997, 2007. Drawn by author.

Fig 071. Wangfujing Department Store, architectural elements analysis of hidden logistical spaces on the ground floor, 1955, 1997, 2007. Drawn by author.

Fig 072. Wangfujing Department Store, architectural elements analysis of glass façade on the ground floor, 1955, 1997, 2007. Drawn by author.

Fig 073. Wangfujing Department Store, ground floor, disassembled architectural elements, axonometric drawing, 1955, 1997, 2007. Drawn by author.

Fig 074. Wangfujing Department Store, ground floor, integral spatial organisation, axonometric drawing, 1955, 1997, 2007. Drawn by author.

Fig 075. Sanlitun Shopping Precinct, Chaoyang District, Beijing, photo, 2021.

Fig 076. MVRDV, Markthal Rotterdam, ubiquitous shopping, photo, 2004.

Fig 077. Taikoo Li Sanlitun and The Place (世贸天阶), Chaoyang District, Beijing, photo, 2000s.

Fig 078. MVRDV, Markthal Rotterdam, shopping experience, photo, 2004.

Fig 079. Taikoo Li Sanlitun, platforms for urban interaction, Chaoyang District, Beijing, photo, 2008.

Fig 080. Aerial view of Wangfujing neighbourhood planning, Beijing, 2000s.

Fig 081. Wangfujing commercial pedestrian street, Dongcheng District, Beijing, 1999.

Fig 082. Grand Hyatt Beijing at Oriental Plaza and Beijing Union Hospital, Wangfujing, Beijing. Photo by author, 2023.

Fig 083. Beijing apm and Wangfu Central mall, Wangfujing, Beijing.

Fig 084. Beijing East Cathedral, Wangfujing, Beijing. Photo by author, 2023.

Fig 085. Dongdan vegetable market, 1970s.

Fig 086. Dongsi Chaonei vegetable market, 2020s.

Fig 087. Panjiayuan vintage market, 2020s.

Fig 088. Longfusi Market, 1940s.

Fig 089. Outdoor social enter tainment in old Beijing.

Fig 090. T he Parisian arcade’s distributed structure. Drawn by author.

Fig 091.1 Passage de Panormas, plan, Drawn by author.

Fig 091.2 Passage des Princes, illustration.

Fig 092.1 Cross-scale spatial elements in mall and city. Drawn by author.

Fig 092.2 Xidan’s urban intersections and overpasses 1990s, photo, Xicheng District, Beijing.

Fig 093.1-3 Modular crossing bridg e, Xidan commercial area, axonometric drawing and photo, Beijing.

Fig 093.4 Continuous overpass platform with stairs and escalator, Xidan commercial district, 2020s.

Fig 094. Pedestrian overpass systems, Hongkong, 2020s.

Fig 095. Designs for urban collective life, status one, Wangfujing, Beijing. Drawn by author.

Fig 096. Key issues responded by design.

Fig 097. New circulation system lear ning from mall organisational model. Drawn by author.

Fig 098. New social and consumer activities learning from existing daily informal shopping in central Beijing.

Fig 099. Testing site: Wangfujing commercial area, multi-functional community. Drawn by author.

Fig 100. Testing site: an intersection in Wangfujing, surrounded by Wangfu Central Mall, Redia Residence and Madison Hotel. Drawn by author.

Fig 101. New cor ridor system changes circulation in three buildings. Drawn by author.

Fig 102. Designs for Beijing urban collective life, status

two. Drawn by author.

Fig 103. Daytime and nighttime status. Drawn by author.

Fig 104.1 Spatial relationship between multi-level corridors and urban roadways, scene effect drawing. Drawn by author.

Fig 104.2 Daytime status courtyards, scene effect drawing.

Fig 104.3 Nighttime status of courtyards, scene effect drawing.

Fig 105. Beijing’s modern commercial landscape, 2008.

BIBLIOGRAPHY

Arnheim, R., 2008. Margaret Morse. Cultural Studies: An Anthology, p.366

Bloch, P.H., Ridgway, N.M. and Dawson, S.A., 1994. The shopping mall as consumer habitat. Journal of retailing, 70(1), pp.23-42.

Csaba, F.F. and Askegaard, S., 1999. Malls and the Orchestration of the Shopping Experience In a Historical Perspective. Advances in Consumer Research, 26(1).

Elvins, S., 2021. ‘A stairway that does its own climbing’: the department store escalator and the promises of modernity, 1900–1950. History of Retailing and Consumption, 7(1), pp.7997.

Fenlon, I., 2012. Piazza San Marco: Theatre of the Senses, Market Place of the World. In Religion and the senses in early modern Europe (pp. 329-361). Brill.

Florida, R., 2002. The rise of the creative class. Brilliance Audio.

Francis, M., 2003. Urban open space: Designing for user needs Island Press.

Gan, G.H., 1990. Perspective of urban land use in Beijing. GeoJournal, 20, pp.359-364.

Gao, Z., 2019, November. Design strategies of the urban public space in the Franco-Chinese metropolitan cities of Paris and Dalian. In IOP Conference Series: Earth and Environmental Science (Vol. 376, No. 1, p. 012046). IOP Publishing.

Gaubatz, P., 2008. Commercial redevelopment and regional inequality in urban China: Xining’s Wangfujing?. Eurasian Geography and Economics, 49(2), pp.180-199.

Goss, J., 1993. The “magic of the mall”: an analysis of form, function, and meaning in the contemporary retail built environment. Annals of the association of American geographers, 83(1), pp.18-47.

Gregg, K., 2019. Conceptualizing the pedestrian mall in

post-war North America and understanding its transatlantic transfer through the work and influence of Victor Gruen. Planning Perspectives.

Gregg, K., 2023. Victor Gruen versus Jan Gehl–and the contemporary model of pedestrianization. Journal of Urban Design, 28(5), pp.471-488.

Gruen, V., 2017. Shopping town: Designing the city in suburban America. U of Minnesota Press.

Hardwick, M.J., 2005. A Viennese refugee and the re-forming of American consumer society. Jahrbuch für Wirtschaftsgeschichte/Economic History Yearbook, 46(2), pp.89-114.

Hardwick, M.J., 2015. Mall maker: Victor Gruen, architect of an American dream. University of Pennsylvania Press.

Hung, W.Y. and Chow, W.K., 2001. A review on architectural aspects of atrium buildings. Architectural Science Review, 44(3), pp.285-295.

Ibrahim, I., 2022. Future ready retail

Irwin, D.A., 1996. The United States in a new global economy? A century’s perspective. The American Economic Review, 86(2), pp.41-46.

Jackson, K.T., 1996. All the world’s a mall: Reflections on the social and economic consequences of the American shopping center. The American Historical Review, 101(4), pp.1111-1121.

Jacobs, J., 2010. Dark age ahead: Author of the death and life of great American cities. Vintage Canada.

Joy, A., Wang, J.J., Chan, T.S., Sherry Jr, J.F. and Cui, G., 2014. M (Art) worlds: consumer perceptions of how luxury brand stores become art institutions. Journal of Retailing, 90(3), pp.347-364.

Kaplan, R.L., 2012. Between mass society and revolutionary praxis: The contradictions of Guy Debord’s Society of the

Spectacle. European Journal of Cultural Studies, 15(4), pp.457478.

Leong, S.T., 2001. And then there was shopping. Harvard design school guide to shopping, pp.129-155.

Li, H., 2016. Advertising and consumer culture in China. John Wiley & Sons.

Lian, H. and Li, G., 2023. Correlation Analysis of Retail Space and Shopping Behaviour in a Commercial Street Based on Space Syntax: A Case of Shijiazhuang, China. Buildings, 13(11), p.2674.

Lien, B., 2005. The role of pavement in the perceived integration of plazas: An analysis of the paving designs of four Italian piazzas (Doctoral dissertation, Washington State University).

Liew, L., 2005. China’s engagement with neo-liberalism: Path dependency, geography and party self-reinvention. The journal of development studies, 41(2), pp.331-352.

Malherek, J., 2019. Shopping Malls and Social Democracy: Victor Gruen’s Postwar Campaign for Conscientious Consumption in American Suburbia. Consumer Engineering, 1920s–1970s: Marketing between Expert Planning and Consumer Responsiveness, pp.79-98.

Malherek, J., 2022. Free-Market Socialists. Adler, 19(20), pp.25-64.

McCracken, G.D., 1990. Culture and consumption: New approaches to the symbolic character of consumer goods and activities (Vol. 1). Indiana University Press.

McNeill, D., 2011. Fine grain, global city: Jan Gehl, public space and commercial culture in central Sydney. Journal of urban design, 16(2), pp.161-178.

Mohl, R.A., 2001. Urban expressways and the racial restructuring of postwar American cities. Jahrbuch für Wirtschaftsgeschichte/Economic History Yearbook, 42(2), pp.89-104.

Montgomery, J., 1998. Making a city: Urbanity, vitality and urban design. Journal of urban design, 3(1), pp.93-116.

Peerbolte, G.T., 2011. Randhurst: Suburban Chicago’s Grandest Shopping Center. Arcadia Publishing.

Puchala, D.J., 2005. World hegemony and the United Nations. International Studies Review, 7(4), pp.571-584.

Punter, J.V., 1990. The privatisation of the public realm. Planning Practice and Research, 5(3), pp.9-16.

Qiao, Z., Xu, X., Wu, F., Luo, W., Wang, F., Liu, L. and Sun, Z., 2017. Urban ventilation network model: A case study of the core zone of capital function in Beijing metropolitan area. Journal of Cleaner Production, 168, pp.526-535.

Rapoport, A., 1992. On cultural landscapes. Traditional Dwellings and Settlements Review, pp.33-47.

Salter, C., 2017. Participation, Interaction, Atmosphere, Projection. The Routledge Companion to Scenography, New York and London: Routledge, p.164.

Sen, S., Block, L.G. and Chandran, S., 2002. Window displays and consumer shopping decisions. Journal of Retailing and Consumer services, 9(5), pp.277-290.

Shields, R., 1992. Lifestyle shopping (pp. 195-215). London: Routledge.

Singh, H. and Prashar, S., 2013. Factors defining shopping experience: an analytical study of Dubai. Asian Journal of Business Research, 3(1).

Sit, V.F., 1996. Soviet influence on urban planning in Beijing, 1949-1991. Town Planning Review, 67(4), p.457.

Slater, D., 2002. Going shopping: markets, crowds and consumption. In Cultural reproduction (pp. 198-219). Routledge.

Taylor, N., 2009. Legibility and aesthetics in urban design. Journal of Urban design, 14(2), pp.189-202.

Verhoef, P.C., Noordhoff, C.S. and Sloot, L., 2023. Reflections and predictions on effects of COVID-19 pandemic on retailing. Journal of Service Management, 34(2), pp.274-293.

Walder, A.G., 2017. China’s transitional economy: interpreting its significance. In Chinese Economic History Since 1949 (pp. 120-138). Brill.

Wan, S.W., 2007, April. The role of the skywalk system in the development of Hong Kong’s central business district. In Annual Meeting of the Association of American Geographers, San Francisco, United States.

Wang, E. and Chan, K.W., 2007. Store wars: Changing retail ownership in Beijing. Eurasian Geography and Economics, 48(5), pp.573-602.

Wang, F., He, J., Jiang, C. and Li, Y., 2018. Evolution of the commercial blocks in ancient Beijing city from the street network perspective. Journal of Geographical Sciences, 28, pp.845-868.

Wang, S. and Jones, K., 2002. Retail structure of Beijing. Environment and Planning A, 34(10), pp.1785-1808.

Wang, S., 2004. Internationalization of retailing in China. In The internationalisation of retailing in Asia (pp. 128-149). Routledge.

Wang, S., Zhang, J., Wang, F. and Dong, Y., 2023. How to achieve a balance between functional improvement and heritage conservation? A case study on the renewal of old Beijing city. Sustainable Cities and Society, 98, p.104790.

Wang, Y., 2019. Pseudo-public spaces in Chinese shopping malls: Rise, publicness and consequences. Routledge.

Weiss, S.J. and Leong, S.T., 2001. Escalator. Project on the city, 2, pp.337-365.

Wekerle, G., 2000. From Eyes on the Street to Safe Cities [Speaking of Places]. Places, 13(1).

Wu, F., 1997. Urban restructuring in China’s emerging market economy: towards a framework for analysis. International Journal of Urban and Regional Research, 21(4), pp.640-663.

Xu, M., 2024. The Making of Everyday Space of Publicness: Insights from a Mall in Beijing. Journal of Contemporary Ethnography, 53(6), pp.796-821.

Xue, C.Q., Ma, L. and Hui, K.C., 2012. Indoor ‘Public’Space: A study of atria in mass transit railway (MTR)

complexes of Hong Kong. Urban Design International, 17, pp.87-105.

Yeh, A.G., Yang, F.F. and Wang, J., 2015. Economic transition and urban transformation of China: The interplay of the state and the market. Urban Studies, 52(15), pp.28222848.

Yuan, Y., Liu, G., Dang, R., Lau, S.S.Y. and Qu, G., 2021. Architectural design and consumer experience: an investigation of shopping malls throughout the design process. Asia Pacific Journal of Marketing and Logistics, 33(9), pp.1934-1951.

Zapke, S., 2021. Performative urban spaces in medieval Vienna. In A Companion to Medieval Vienna (pp. 524-559). Brill.

Zhang, Y., 2017. Social class differences in consumption propensity in contemporary China–from survival-oriented consumption to development-oriented consumption. The Journal of Chinese Sociology, 4, pp.1-23.

Zhu, J., 1999. The Transition of China's urban development: from plan-controlled to market-led. Bloomsbury Publishing USA.

Zukin, S., 1998. Urban lifestyles: Diversity and standardisation in spaces of consumption. Urban studies, 35(5-6), pp.825-839.

Zukin, S., 2020. “The City That Lost Its Soul”: from Naked City: The Death and Life of Authentic Urban Places (2010). In The City Reader (pp. 161-171). Routledge.

程红菲, 2022. 北京王府井历史街区建设发展研究 (Master's thesis, 北京建筑大学).

董焱, 2009. 《日下旧闻考》 的成书缘起. 文学与艺术 , (12), pp.51-52.

王德, 张照, 蔡嘉璐 and 朱玮, 2009. 北京王府井大街消 费行为的空间特征分析 人文地理, 24(3), pp.27-31.

吴晟, 1994. 王府井改建规划的基本思路 北京规划建 设 , (2), pp.35-39.

章百家, 2021. 中国经济体制的两次重大转型. 经济导 刊 .

Taught Master of Philosophy in Architecture and Urban Design: Projective Cities

Architectural Association School of Architecture

Shuyan Gong
Shuyan Gong 2025, London

Turn static files into dynamic content formats.

Create a flipbook
Issuu converts static files into: digital portfolios, online yearbooks, online catalogs, digital photo albums and more. Sign up and create your flipbook.