Emmy_Jansen - Betekenisvolle leegte

Page 1


BETEKENISVOLLE LEEGTE

Herbestemmingvanagrarischerfgoedalsruimtelijkantwoordopdemografischetransities

Emmy Jansen

Emmy Jansen

Em_14@live.nl/studioJNSN@outlook.com

Master Architectuur | jaar 4

Academie van Bouwkunt Amsterdam 2023-2025

Commissie

Bart van der Salm (mentor)

Karin Peeters

Wouter Loomans

Examen comissie

Jan Richard Kikkert

Marcel van der Lubbe

ONDERZOEKENANALYSE

00. Onderwerp

01. Probleemstelling

Argrarische ontwikkelingen

Afnameboerenenleegstand

Demografische ontwikkelingen

Vergrijzing

Ontgroeningdorpen

Huishoudensverdunning

Financiële ontwikkelingen

Betaalbaarheid

Woningtekort

Dorpentop

Conclusieprobleemvaststelling|onderzoeksvraag

02. Woningtypologie | voor eenpersoonshuishoudens

02a. Dorpse architectuur

02b. Woningtypologieën | voor eenpersoonshuishoudens

Conclusiewoningtypologie

03. Case-study dorpen

Sauwerd, Groningen

Haarle, Overijssel

Gulpen, Limburg

Conclusiecase-study

04. Case-study erven

Kruishaarweg 2

Haarlerveldweg 6-8

Haarlerveldweg 2a

Conclusieerven

05. Waarde analyse

05a. Landschapsanalyse | waarde omgeving

05b. Erfanalyse | waarde landschap en architectuur

Conclusieruimtelijkeordeningerf

ONTWERP

06. Concept | Ma

Landschapsarchitectuur

Architectuur

Interieur

07. Ontwerp

07a. Landschapsarchitectuur

07b. Architectuur

07c. Interieur

08. Haalbaarheidsonderzoek

Hoe werkt het?

Antwoord op ontwerpvraag Dankwoord

COLLECTIVITEIT

WONEN

LEEFBAARHEID

BOERENERF

EENPERSOONSHUISHOUDENS

BUURTSCHAPPEN

MIENSKIP

SOCIALE COHESIE

KLEINE KERN

DORPEN

UUTHUUSKES

NOABERSCHAP

ONS-KENT-ONS-GEVOEL

ONDERZOEK EN ANALYSE

Onderwerp

Een onuitgesproken probleem in mijn vrienden- en familiekringen is het vinden van een woning in hun geboortedorp. Ik zeg onuitgesproken probleem omdat het normaal lijkt geworden dat jonge mensen vertrekken uit hun geboortedorp om in de steden te gaan wonen. Maar willen zij dit zelf wel? En wat zijn de gevolgen voor de dorpen wanneer zij wegtrekken? Is het überhaupt mogelijk om te blijven wonen? Waar liggen de kansen?

Momenteel zijn er diverse ontwikkelingen op het gebied van demografie, geografie, agrarischgebiedenfinancieelgebieddieallemaalgevolgenhebbenvoordeleefbaarheid van dorpen. In dit afstudeerproject wil ik deze problemen in kaart brengen en vertalen in een ruimtelijke en architectonische kans die kan helpen om de leefbaarheid in de kleine kernen te verbeteren.

01. Probleemstelling

Momenteel zijn er verschillende ontwikkelingen gaande in Nederland. Voor dit afstudeerproject zijn een paar van deze ontwikkelingen belangrijk om verder te onderzoeken:

- Argrarische ontwikkelingen

- afname boeren en leegstand

- Demografische ontwikkelingen

- vergrijzing

- ontgroening van dorpen

- huishoudensverdunning

- Financiële ontwikkelingen

- betaalbaarheid

- woningtekort

- Dorpentop

Deze thema’s hebben ieder hun eigen gevolgen en vinden soms raakvlakken met elkaar.

Hierdoor ontstaat een beter beeld waar de problemen liggen en waar de kansen zijn.

Diverse ontwikkelingen zijn van invloed op de leefbaarheid in Nederland, maar vooral op het platteland.

Land-entuinbouwbedrijveninNederland jaar aantal 1971 178.620 2023 50.900(voorlopigecijfers)

bron:ProvincieNoord-Brabant

ONDERZOEK EN ANALYSE

Agrarische ontwikkelingen | Afname boeren en leegstand

Elke dag hoor je wel weer iets op het nieuws over de agrarische sector. De stikstof problematiek dwingt steeds meer boeren om te stoppen met hun werkzaamheden. Hierdoor komen steeds meer schuren leeg te staan. In de nieuwsberichten gaat het dan ook vaak over de stikstofregeling, de boerenprotesten of het uitkopen van boeren, maar ook over de toename in criminaliteit doordat oude en leegstaande schuren worden ingezet als drugslab door criminelen. Het is vrij lastig om in kaart te brengen hoeveel boerderijen in totaal in deze omstandigheden verkeren. Onderzoek van de gemeente Berkelland geeft echter wel een beeld van deze situatie. Zij zijn langsgegaan bij alle boeren bedrijven in hun gemeente en zijn erachter gekomen dat nog maar 43% van de bezochte erven nog een gezond draaiend bedrijf was. Bij de rest was sprake van een vermindering of beëindiging.

Veel gemeenten zijn daarom op zoek naar oplossingen voor leegstaande schuren. Zij hebben hier de rood-voor-rood regeling voor bedacht. Dit houdt in dat je op een financieel aantrekkelijke manier vervallen stallen en gebouwen laat slopen en tegelijkertijd een bouwkavel voor een nieuwe woning aanvraagt. Dit gaat vooral over gebouwen die landschapsontsierend zijn en een agrarische functie hebben of hebben gehad. Per gemeente verschilt het hoe de regeling heet, maar ze gaan uit van hetzelfde principe. De belangrijkste eis in zo’n regeling is dat het erf passend blijft in zijn omgeving.

Daarnaast biedt het aanpakken van de leegstaande schuren ook kansen. Er is een kans om oude vervallen schuren af te breken zodat er ruimte ontstaat voor het landschap of ze zouden vervangen kunnen worden voor een architectonisch gebouw wat esthetische en functionele waarde toevoegt aan het erf.

*bijlage) het stappenplan van Buitenkansen Overijssle hoe het proces van de rood-voorrood regeling in zijn werk kan gaan.

bron: CBS/leeftijdsverdeling/ouderen

Inwoners 65 jaar of ouder per gemeente

Demografische ontwikkelingen | Vergrijzing

De bevolking in Nederland is geleidelijk aan het vergrijzen. In de tabel is een duidelijke stijging te zien. In 1950 was de grijze druk in Nederland nog 14%. In 2000 was dit al gestegen naar 21,9%. Afgelopen jaar, 2023, was de grijze druk al 34%, wat betekent dat er op elke 65-plusser 3 mensen de werkzame leeftijd (20-65 jaar) hebben. De prognose is dat dit rond 2070 op 48,7% zit.

Op de kaarten hier links is vooral langs de oostgrens van Nederland de vergrijzing goed te zien. De prognose is dat dit aantal alleen maar zal toenemen. De percentages verschillen sterk per gemeente. Een gemeente vergrijst onder andere wanneer jongeren wegtrekken voor werk of opleiding naar een grotere stad. Het gevolg hiervan is dat er niet alleen meer ouderen overblijven, maar ook minder kinderen in de dorpen geboren worden. Dit zorgt onder andere voor een snellere toename in de vergrijzing van de dorpen.

Krimpregio’s

• Noordoost-Friesland

• Het Hogeland

• Eemsdelta

• Oost-Groningen

• Achterhoek

• Zeeuws-Vlaanderen

• Weselijke Mijnstreek

• Parkstad Limburg

• Maastricht-Mergelland

ONDERZOEK EN ANALYSE

Demografische ontwikkelingen | ontgroening

dorpen

De vergrijzing en ontgroening in de dorpen aan de oostelijke randen van Nederland is ookterugtezienopdekaartenhiernaast.Dezekaartengevendebevolkingsontwikkeling weer per gemeente tussen 2021 en 2035. Er is gemiddeld vooral een krimp te zien in deze gebieden. Dit worden ook wel krimpregio’s genoemd. In het westen en het midden van het land is vooral een sterke groei te zien.

Veel jongeren trekken naar de grote steden om daar te wonen en werken. Hierdoor ontstaat ontgroening in de dorpen. Als resultaat van deze ontgroening verdwijnen vooral veel kleine basisscholen uit de dorpen. Er worden minder kinderen geboren die naar de scholen gaan. Naast scholen verdwijnen er ook andere (publieke) voorzieningen. Dit is het resultaat van onder andere een terugtrekkende overheid, een aantal algemene maatschappelijke en demografische ontwikkelingen, verandering in economie en technologie, toegenomen mobiliteit en de vergroting van de actieradius van plattelandsbewoners hebben geleid tot een ruimtelijke schaalvergroting die al meer dan een halve eeuw speelt.

Daarnaast houden veel (alleenstaande) ouderen woningen ‘bezet’ omdat ze nergens anders naartoe kunnen. De doorstroom wordt hierdoor gestaakt. Niet alleen starters zouden weer in het dorp willen wonen, maar ook de jonge alleenstaanden van tussen de 20 en 30 jaar oud, die graag in de buurt bij vrienden en familie willen (blijven) wonen in het dorp waar ze zijn opgegroeid. Of hier een bedrijf zijn gestart. Het probleem is alleen dat er weinig tot geen woningen in het dorp beschikbaar zijnenalszeeralzijnisdatteduurvooreenalleenverdiener.Ditisnietalleeneenprobleem in dorpen, maar ook in de steden. Meestal verdienen eenpersoonshuishoudens ook te veel voor een sociale huurwoning, als er al een in het dorp te vinden is. Dit maakt de drempel om weer in je ouderlijk dorp te gaan wonen of op jezelf te gaan wonen groter.

Dit zijn een paar oorzaken die zorgen voor de ontgroening in dorpen en krimp in regio’s.

bron: CBS

Eenpersoonshoudens Overige huishoudens

bron: CBS

huishoudens Nederland 2006 (bron: CBS)
huishoudens Nederland 2050 (bron: CBS)

ONDERZOEK EN ANALYSE

Demografische ontwikkelingen | huishoudensverdunning

Erzijneenpaartrendsaanhetontwikkelenopdemografischgebieddiegevolgenhebben voor de toekomst van Nederland. Eerder werd al de vergrijzing met daartegenover de ontgroening in dorpen door wegtrekkende jongeren genoemd, daarnaast is er ook een groeiende bevolking als gevolg door o.a. migratie en een verdunning van de huishoudens wat zorgt voor een toename in het algemene aantal huishoudens en in het bijzonder de eenpersoonshuishoudens.

De laatste is ook een gevolg van de vergrijzingen. Hierdoor bestaan veel eenpersoonshuishoudens uit ouderen die zijn achtergebleven na het overlijden van hun partner. De eerstvolgende leeftijdscategorie van eenpersoonshuishoudens zijn jonge mensen tussen de 18 en 30 jaar. Een reden hiervoor is dat zij in deze fase hun ouderlijk huis verlaten en op zoek gaan naar een eigen woning. Niet iedereen gaat gelijk al samenwonen. Sommigen kiezen er ook voor om eerst alleen te wonen. Daarnaast heb je ook veel andere soorten eenpersoonshuishoudens: weduwen, gescheiden koppels, mensen die er bewust voor kiezen alleen te zijn, expats, etc.

Het CBS heeft een prognose gesteld waarin staat dat ze verwachten dat in 2050 zo’n 44% van alle huishoudens uit eenpersoonshuishoudens bestaat.

Om deze doelgroep goed te kunnen huisvesten betekent dat dat er wellicht een andere benadering zou moeten komen in woningtypologie.

Financiële ontwikkelingen |

betaalbaarheid

Hoezithetmetde betaalbaarheid?Ishetmogelijkvoorjongeeenpersoonshuishoudens om een woning te kopen? Volgens het CBS is het gemiddelde inkomen van iemand tot 25 jaar €15.000,- per jaar.

Iemand van 25-35 jaar verdient gemiddeld €31.900,- per jaar. Volgens DUO leende 45% van het hoger onderwijs in 2021 €489,- p/m voor hun studie, dus ca. €500,- per maand.

Met die gegevens in acht nemende is het interessant om uit te zoeken of het mogelijk is om als jong eenpersoonshuishouden een woning te kopen. Dit verschilt natuurlijk per persoon, daarom wordt het gemiddelde genomen.

Bij veel hypotheek adviseurs kan je je hypotheek berekenen. Bij de Hypotheek Visie komen de volgende resultaten uit de berekening met bovenstaande gegevens:

Bruto jaarinkomen €15.000

Leeftijd 25 jaar

Koop je het huis met een partner? Nee

Heb je financiële verplichtingen? Studieschuld, €500,-

Maximale hypotheek

€46.739,-

Bruto jaarinkomen €31.900

Leeftijd 35 jaar

Koop je het huis met een partner? Nee

Heb je financiële verplichtingen? nee

Maximale hypotheek

€135.864,-

Financiële ontwikkelingen | woningtekort

Op dit moment leven we in een tijd van crisis. Vooral op de woningmarkt is het een drama. Voor veel mensen is het erg lastig om een (koop)woning te vinden en dit heeft te maken met verschillende factoren. De woningen die er zijn worden voor onbetaalbare prijs op de markt aangeboden. Het bouwen van nieuwbouw woningen komt ook niet van de grond door de dure bouwmaterialen, stikstof-crisis, te weinig bouw- en gemeentepersoneel en dit is slechts een fractie van de problemen. Er is teveel vraag en te weinig aanbod. Maar hoe zit dit nu eigenlijk? Waar komt deze enorme vraag ineens vandaan en wie zijn deze kopers nu eigenlijk?

Een conclusie is onder andere het grote onevenwicht in vraag en aanbod. De prijzen worden overal opgevoerd, er wordt flink overboden en woningen worden ingezet als verdienmodel in plaats van te voorzien in een basisbehoefte. Voor starters is dit een onmogelijke situatie, laat staan voor mensen die alleen op zoek zijn naar een woning. In een opinie stuk van Hans-Hugo Smit wordt ingegaan op de Regionale bevolkingsen huishoudensprognose van 2019 tot 2050. Hierin claimt ook hij dat er twee bekende trends sterk aan het voortzetten zijn. Een van die trends is de ontvolking en vergrijzing van perifere gebieden. Een andere trend is de sterke groei van steden. Binnen deze trends zie je vooral de onbetaalbaarheid op de woningmarkt en problemen in de provinciale ouderenzorg. Wat deze trends gemeen hebben is het groeiende aandeel in eenpersoonshuishoudens. Hij komt met het statement dat eenpersoonshuishoudens de stad duur maken. Ze drijven de woningmarkt op. Als een eenpersoonshuishouden uit 4 personen zou bestaan, zou de druk op de woningmarkt met zo’n 75% afnemen. Dit laat dus weer zien dat er een disbalans is in vraag en aanbod. Teveel vraag, te weinig aanbod. Het aanbod dat er wel is, is vaak veel te groot voor één persoon.

In de podcast van de Amsterdamse vastgoedweek van VG Visie praten Danielle Gans en Joram Roozen ook over dit probleem. Zij werken bij de bank en delen hun visie over wat ze dagelijks meemaken. Zij zien vooral de rente en de inflatie omhoog gaan. Ook zien zij hierdoor een trend ontstaan wat voor drukte zorgt op de vastgoedmarkt. Ze noemen hoe zij denken hoe men er in de toekomst mee om zou kunnen gaan. Zij spreken van het bevorderen van sociale cohesie. Om dit te bereiken moeten er meer woningen komen die bestaan uit co-living met centrale functies. Een woonsituatie waarin met diverse functies dicht bij elkaar plaatst. Zij noemen als voorbeeld Republica van Marc Koehler Architects. Hierin staat de combinatie van wonen, werken en recreëren centraal.

Dorpentop

15 juni 2023 was ik aanwezig bij de Nationale DorpenTop, georganiseerd door de RegioBank. Het doel van deze bijeenkomst, nu voor de 4e keer gehouden, is om uiteindelijk een regiominister aan te stellen in de Tweede Kamer die luistert en iets doet aan de grote problemen die zich afspelen in de regio’s en dorpen. Tijdens de Dorpentop kwam ook sterk naar voren met welke problemen de dorpen te maken hebben en deze sloten aan bij alle onderwerpen die hiervoor behandeld zijn. In groepjes (die bestonden uit professionals of geïnteresseerden uit het vakgebied en omgeving) met verschillende onderwerpen hebben we de problemen in kaart gebracht. Zelf was ik aangesloten bij het groepje ‘Wonen waar je hart ligt’, met als hoofdvraag: “Wat hebben inwoners nodig om in het dorp te kunnen blijven wonen, ongeacht de leeftijd?”

Deze dag bevestigde voor mij het beeld wat ik al had en hier startte mijn fascinatie en drive om met mijn ontwerpkracht te onderzoeken welke mogelijkheden er zijn om in dorpen toch betaalbare huisvesting voor jongeren te realiseren.

Conclusie probleemvaststelling | onderzoeksvraag

Samenvattend kan je stellen dat er op dit moment diverse ontwikkelingen zijn op verschillende onderzoeks gebieden zowel in Nederland als in de dorpen of op het platteland:

EENPERSOONSHUISHOUDENS neemt toe.

ONTGROENING in dorpen.

VERGRIJZING neemt toe.

LEEGSTAND in schuren op de erven.

AFNAMELEEFBAARHEID dorp.

Hierdoor kom ik op de volgende onderzoeksvraag:

Opwelkemanierkaneennieuwe,toekomstbestendigewoningtypologievoor eenpersoonshuishoudensophetplattelandbijdragenaanhetvergotenvande leefbaarheidindedorpenendeherinneringvanheterfbehouden?

Nu de onderzoeksvraag is vastgesteld en de recente ontwikkelingen in kaart zijn gebracht, zie ik waar de kansen liggen in dit project. Door de afname in de agrarische sector is er een toenemende leegstand in de schuren op de erven rondom de dorpen.

De rood-voor-rood-regeling zet zich al in om oplossingen te creëren. Ik zie hier ook een kans om op deze plekken woningen voor de jonge eenpersoonshuishoudens te ontwerpen die graag in het dorp willen (blijven) wonen en wil onderzoeken wat de meest passende woningtypologie (op deze erven) is. Ik zal daarom eerst onderzoeken welke typologieën voornamelijk in de dorpen toegepast worden. Daarnaast onderzoek ik bestaande woningtypologieën voor eenpersoonshuishoudens die veelal worden toegepast in steden en uiteindelijk op basis van deze vergaarde informatie, zal ik een nieuwe vorm ontwerpen. Niet alleen het terugbrengen van jonge mensen naar het dorp gaat zorgen voor een toename van de leefbaarheid. Een van de redenen dat jonge mensen vertrekken is de afname van voorzieningen. Door de jonge mensen passende huisvesting te bieden in het dorp en in combinatie daarvan diverse voorzieningen kleinschalig opnieuw te introduceren, hoop ik dat de ontgroening vermindert en dat de leefbaarheid weer zal vergroten.

Dorpse architectuur

02a. Woningtypologieën | dorpse architectuur

In een dorp vind je soms andere woningtypologieën dan in de stad. Een paar redenen hiervoor zijn de korrelgrootte, schaalverschillen, identiteit van de plek, landschapsstructuren, DNA van de stad of het dorp, erfgoed en de sociaal en maatschappelijke situatie. Het dorp heeft hierdoor vaak ook eigen kenmerkende architectuur. In de zoektocht naar de juiste woningtypologie voor eenpersoonshuishoudens zal ik daarom analyseren welke woonvormen passend zijn in of rondom een dorp. Het is voor te stellen dat vooral meervoudige woonvormen geschikt zullen zijn voor deze analyse. Een paar van deze vormen zijn:

• Erfwonen

• Hofwonen

• Binnenstraatje

• Buurschap

• Parkwonen

ART-UR, een platform voor architectuur en ruimte, focust zich op het uitoefenen van impact op de kwaliteit van de gebouwde omgeving in dorpen en kleine steden.

Recent hebben zij een boek uitgebracht, een toolbox, voor dorpse architectuur. Hierin spreken zij over de diverse vormen van architectuur in een dorp. Hier volgen een paar voorbeelden uit deze toolbox die interessant zouden kunnen zijn voor dit project.

Project: DeErven,DeHeerd&DeHofstee

Architect: PauwertArchitectuur.

Plaats: Veghel

Aantal: 61woningen

eigen parkeerplek, maar ook collectieve parkeerlpek

private achtertuin, collectief hof

collectieve moestuin
stimuleert interactie tussen buren

ONDERZOEK EN

Erfwonen

Meerderewoningen aantal woningen verschiltperproject prijs collectief collectief

meerpersoons huishouden 3lagen maximale hoogte

Een traditioneel erf is eigenlijk een vorm van een kleine nederzetting wat bestaat uit een boerderij met bijgebouwen en centraal een gemeenschappelijke ruimte. Het is een opkomend concept, bijvoorbeeld in de vorm van CPO ontwikkeling wanneer een groep mensen er samen voor kiest een stuk grond te kopen en hier samen te ontwikkelen. In de hedendaagse woonprojecten is dit concept vaak een autoluwe plek met speelruimte voor de kinderen in het centrum en hieromheen de woningen gevouwen. De woningen zijn meestal een à twee verdiepingen met soms een dakverdieping.

Voordelen:

+ autoluw

+ veel groen en water

+ gemeenschappelijke binnentuin

+ veilige speelplek voor kinderen

+ sociale interactie

+ ontstaan van buurtschap

+ eigen voordeur

+ grondgebonden woningen

Nadelen:

- Minder privacy

Project: DorpWilsele-Putkapel

Architect: RE-ST

Plaats: Wilsele-Putkapel(B)

Aantal: 36woningen

doorzonwoningen

1-3 slaapkamer appartementen

collectieve buitenruimte

gedeeltelijk inpandige balkons voor privacy, maar ook zon

ondergronds parkeren

ONDERZOEK EN

Hofwonen

Meerderewoningen aantal woningen verschiltperproject prijs collectief individueel/collectief

een-atweepersoons huishouden 3lagen maximale hoogte

Hofwonen is een erg oud concept wat stamt uit de middeleeuwen en het woord ‘hof’ staat voor het bezit van de heer. Het lijkt erg op erfwonen, alleen is het nog iets meer besloten. In Nederland wordt er onderscheid gemaakt tussen verschillende soorten hoven: liefdadigheidshofjes, exploitatie- of arbeidershofjes en sociale woningbouwhofjes. Een hofje bestaat uit allemaal kleine woningen en werd vroeger vooral gebruikt door alleenstaande oude en arme vrouwen. Dit werd mogelijk gemaakt door regenten omdat er destijds nog geen pensioensregeling was. Het binnenhof werd vaak gebruikt voor het wassen van kleding en tegenwoordige context dient het vooral als binnentuin. Vaak zijn er maar een of twee ingangen naar het hof om een veilig gevoel te creëren. Ook in dorpen komen deze concepten af en toe nog voor. Meestal in de dorpskernen, dicht bij een kerk. Dat is ook in dit project het geval.

Voordelen:

+ autoluw

+ veel groen

+ collectieve binnentuin

+ veilige speelplek voor kinderen

+ sociale interactie

+ twee commerciële ruimtes

Nadelen:

- minder privacy dan met eigen tuin

Project: CTL,socialewoningen

Architect: Ura

Plaats: Lokeren(B)

Aantal: 17woningen

collectiviteit en nabijheid door schikking van gebouwen

toegankelijke entree binnenstraat

veilige binnenstraat om te spelen of voor bijvoorbeeld het organiseren van buurtactiviteiten om de sociale cohesie te simuleren

Binnenstraatje

Meerderewoningen aantal woningen verschiltperproject prijs collectief individueel/collectief

een-atweepersoons huishouden 2a3lagen maximale hoogte

Binnenstraatjestaatvooralvoorwonenlangseensteegofbinnenstraatje.Tegenwoordig wordt het ook vaak ingezet om een woonblok te hertekenen tussen twee hoofdstraten. Dit biedt ook de mogelijkheid om een autoluwe verbinding te creëren. Hierdoor ontstaat tegelijkertijd een soort plein tussen de woningen waar auto’s hooguit te gast zijn en waar kinderen kunnen spelen. Er ontstaat hierdoor ook een informele relatie tussen voordeur en straat. Interactie met buren wordt hierdoor ook gestimuleerd

Voordelen:

+ autoluwe verbinding

+ veilige speelplek voor kinderen

+ sociale interactie gestimuleerd

+ informele relatie tussen voordeur en straat

+ geluidswerend tussen bebouwing

Nadelen:

- niet voor de deur parkeren

- voordeuren relatief dicht bij elkaar.

- minder ruimte voor groen

Project: BuurschapdeBlokskens

Architect: HCVA

Plaats: Zandhoven(B)

Aantal: 13woningen

collectiviteit en nabijheid door schikking van gebouwen

begane grondverdieping

architectuur draagt bij aan verbinding gebouwen

Buurschap

Meerderewoningen aantal woningen verschiltperproject prijs collectief individueel/collectief

een-atweepersoons huishouden 2a3lagen maximale hoogte

Buurschap is afgeleid van buurtschappen, welke vroeger ontstonden doordat mensen enkele gebouwen, boerderijen en huizen die dicht bij elkaar stonden een naam gaven. Tegenwoordig wordt vooral de toenadering onder bewoners geambieerd in de vorm van bijvoorbeeld co-housing (delen van een woning), maar dit is vaak ook terug te zien in woonzorgprojecten. Er wordt gestreeft naar nabijheid en collectiviteit. Vooral de schikking van de gebouwen en de architectuur maken dit streven mogelijk. Het gaat dus vooral om verbondenheid met je buren en de collectiviteit.

Voordelen:

+ collectiviteit en nabijheid

+ gevoel van veiligheid

+ parkeren op terrein

+ eigen voordeur

Nadelen:

- voordeuren relatief dicht bij elkaar

Project: PPS

Architect: AIDarchitecten

Plaats: Malle(B)

Aantal: 7woonblokkenmet3a4lagen

verbinding bestaande beeldbepalende architectuur

Groene ‘long’ als uitgangspunt

publieke voorzieningen open ruimte

publieke functies begane grond

ONDERZOEK

Parkwonen

Meerderewoningen aantal woningen verschiltperproject prijs collectief individueel/collectief

een-atweepersoons huishouden 4lagen maximale hoogte

In het ontwerp voor parkwonen wordt eerst gekeken naar de groene ruimte. Deze open ruimte vormt de long van het ontwerp. De plek voor ontmoeting tussen de dorpsbewoners. Hierna is de architectuur vrij in te vullen. Van rijwoningen tot vrijstaande woningen. De architectuur vormt zich dan om deze groene open ruimte.

In dit project is ook eerst gekeken naar de publieke voorzieningen die het gemeenschapsleven ten goede komen. Zo is er een ontmoetingscentrum, bibliotheek met vergaderlokalen voor verenigingen, commerciële ruimten, kinderdagopvang en een jeugdcomplex. Deze functies zijn gegroepeerd rond pleinen, parkjes en een grote groene open ruimte. Dit alles om de gemeenschap te stimuleren en de bestaande architectuur te verbinden. Daarna werden hier nog woningen ontworpen voor uiteenlopende gezinssamenstellingen om de sociale diversiteit te vergroten.

Voordelen:

+ ontworpen vanuit openbare verbindende buitenruimte

+ verbindende architectuur

+ veel groen

+ mogelijkheid om dorp klimaatbestendiger te maken

+ verbetering van de kern

+ mogelijkheden om publieke voorzieningen toe te voegen voor het dorp

Nadelen:

- niet voor de deur parkeren

- waarschijnlijk plausibeler op grotere schaal zoals appartementen

Conclusie dorpse architectuur

Veel van bovenstaande meervoudige woonvormen zijn vooral gericht op het stimuleren van de sociale cohesie onderling. De woningen zijn dankzij de plaatsing, vorming en grootte zo geschikt dat ze met elkaar gaan communiceren. Als het nou gaat om een hofwoning of parkwonen, al deze woonvormen zijn verbonden met elkaar middels een open(bare) ruimte. De invulling van deze open ruimte is vaak gemeenschappelijk en komt tot uiting in bijvoorbeeld een groene structuur, speelplek, moestuin, etc. In ieder geval een functie met als doel: verbinden.

Daarnaast speelt veiligheid ook een belangrijke rol. Deze gemeenschappelijke ruimtes creëren ook het gevoel van veiligheid, als gevolg van de collectiviteit.

Opvallend is ook de hoogte van deze projecten. Om het gevoel van een gemeenschap te behouden is het ook belangrijk om het aantal inwoners per woonvorm beperkt te houden. Zo blijft de drempel tot interactie laag, wat soms ook nodig is om sociale cohesie onderling te stimuleren.

ONDERZOEK EN ANALYSE

02b. Woningtypologieën | voor

eenpersoonshuishoudens

De (ruimte) behoefte van eenpersoonshuishoudens is door de loop der jaren op verschillende manieren vertaald en heeft hierdoor de volgende woonvormen opgeleverd:

• HAT-woning(HuisvestingAlleenstaandenenTweepersoonshuishoudens) | koop of huur

• Jongerenwoningen | huur/sociale huur

• prefab modulebouw/ tiny house/studio’s | koop of huur

• CPO projecten | koop (met een groep huishoudens gezamenlijk woningen/woonwijken bouwen)

• Deelwonen/co-living/friendswoning | huur/sociale huur

• Flexibele houtbouw | koop of huur

Woonvormen die hier niet tussenstaan zijn hospita en op kamers gaan. Dit zijn geen speciaal ontworpen vormen voor deze doelgroep, maar is vaak een keuze van een pandeigenaar of bewoner die zijn of haar woning ter beschikking stelt voor het huisvesten van studenten. Daarnaast zijn er veel woningcorporaties die het als hun maatschappelijke taak zien om deze doelgroep te huisvesten, bijvoorbeeld via jongerenwoningen. Dit onderdeel wordt vaak ook met gemeente afgesproken in jaarlijkse afspraken onderling.

Vanwege de grotere veranderingen rondom huishoudens, met name de eenpersoonshuishoudens, is het verstandig om deze typologieën te onderzoeken. Dezetypologieënkomenvooralveelindegroterestudentensteden,maarhoezitdatin dedorpenenophetplatteland?Hoortermisschienookeennieuwetypologiebij?Een combinatie van sommigen van deze ideeën, in combinatie met dorpse architectuur, zou uitkomst kunnen bieden voor de dorpen in Nederland.

Project: DeJakobaSocialHousing

Architect: Studioninedots

Plaats: Amsterdam

Aantal: 135studioappartementen

Oppervlakte: gemiddeld46m2 woningen|ca.10.000m2

slim materiaalgebruik zorgt voor esthetische uitstraling

verschillende groottes door curving

sociale huur studio

Plattegrond appartement begane grond

gezamenlijke tuin wordt omarmd door curve in gebouw

eigen balkon

ONDERZOEK EN ANALYSE

HAT-woning

20-60m2

schaal woning/m2 verschiltperproject prijs individueel individueel/collectief een-atweepersoons huishouden

Wat is een HAT-woning? Een HAT-woning staat afgekort voor ‘Huisvesting Alleenstaanden en Tweepersoonshuishoudens’. Het wordt ook wel de van Dam-eenheid genoemd, omdat de nota in 1975 werd ingevoerd door Marcel van Dam. Hoe ziet een HAT-woning eruit? Dit zijn woningen gerealiseerd voor een- en tweepersoonshuishoudens. Er was in de jaren ‘80 een groot woningnood probleem met eentekortaanwoonruimte.Indietijdzijnongeveer77.000vandezewoningengebouwd.

Het is een kleine woning met een woonkamer met open keuken, badkamer met toilet en vaak een aparte slaapkamer. Van 1975 tot 1995 konden deze woningen worden gebouwd met een subsidie vanuit de overheid. Tegenwoordig hebben deze woningen een andere naam gekregen, zoals een studio, een- of tweekamer appartement of een maissonnettewoning.

Het grote voordeel van deze woning is een eigen voordeur. Mocht je in aanmerking komen, dan heb je hierdoor recht op huurtoeslag en dus ook huurbescherming.

Voordelen:

+ ingericht op een- en tweepersoonshuishoudens

+ eigen voordeur per wooneenheid

+ kale huurprijs is lager dan bij eengezinswoningen en appartementen

+ meeste woningen vallen onder huurtoeslaggrens, vaak sociale huurwoning

Nadelen:

- werd vooral gebouwd via een subsidie, die is opgeschort in 1995.

- beperkt aantal m2

- keuken en woonkamer combinatie kan voor geurtjes zorgen

- bij gezinsuitbreiding is woning te klein.

Project: Young

Architect: MarliesRohmer

Plaats: Oosterheem,Zoetermeer

Aantal: 125socialehuurappartementen

Oppervlakte: ca.50m2

delfste stoepbeschut gevoel door overstek gemeenschappelijke tuin en dakterras

flexibel bouwsysteem (demontabele wand)

frans balkon in elke woning

gelet op schaalgevoel door gebouw op te breken (4 woningen per blok), hierdoor wordt interactie aan voordeur gestimuleert

Plattegrond gebouw 1 2 3 4

Plattegrond appartement

ONDERZOEK EN

Jongerenwoningen

verschiltperproject schaal woning/m2 verschiltperproject prijs collectief individueel/collectief een-atweepersoons huishouden

De laatste tijd worden er in de randsteden ook steeds meer jongerenwoningen ontwikkeld. Dit is een socialehuurwoning die alleen wordt verhuurd aan jongeren tussende18en27jaar en dit wordt meestal beheerd door woningcorporaties. Je mag hier vaak maximaal 5 jaar huren voordat je moet doorstromen. Ook zit er meestal een voorrangregeling aan vast die geldt per stad. Dit bemoeilijkt de kans om een woning te vinden voor deze doelgroep.

De woningen zijn meestal niet erg groot en er zijn soms ook gemeenschappelijke ruimtes te vinden.

Voordelen:

+ als je een woning hebt bemachtigd, zit je sowieso voor 5 jaar goed. + goedkoop; woning past bij je inkomen

+ soms eigen voordeur

Nadelen:

- lange inschrijftijd/wachttijd

- zitten vele eisen aan vast, geen uitzonderingen

- het nadeel van deze woningen is dat ze vaak op grotere schaal worden ontwikkeld om zoveel mogelijk studenten/jongeren te huisvesten. Hierdoor zijn ze vaak minder geschikt in een dorp.

Project: NorthOrleans

Architect: seARCH

Plaats: Amsterdam

Aantal: 120studioappartementen

Oppervlakte: totaal4850m2 |25m2 perwoning

gezamenlijke binnentuin

modules aan galerijontsluiting

20 units over 6 verdiepingen

functionele plint met: hoofdingang met concierge, postvakken, fietsenstalling, wasserette, gezamenlijke woonkamer en horeca

vollediggemeubileerd (op maat gemaakt) met inklapbaar bed

eigen balkon

ONDERZOEK EN ANALYSE

prefab modulebouw/tiny house

meestal20-30m2 schaal woning/m2 goedkoop prijsindicatie individueel individueel/collectief een-atweepersoons huishouden

Tegenwoordig zie je steeds meer tiny houses ontstaan. Mensen willen kleiner wonen en ‘terug naar de basis’. Daarnaast wordt tijdens de woningcrisis ook steeds vaker gezocht naar een snellere manier van bouwen. Zo komen deze prefab modulaire woningen tot stand. Deze modules worden geprefabriceerd in de fabriek en kunnen zo overal neergezet worden of zelfs gestapeld. Het is snel en efficiënt en wordt vaak ingezet als tijdelijke huisvesting voor studenten en expats. Een nadeel is dat het vaak tijdelijke woningen zijn en dat ze geen toegevoegde waarde hebben voor de buurt. Vaak blijven ze ook langer staan dan de bedoeling was en is ‘tijdelijk’ niet meer ter sprake. Gelukkig zijn architecten steeds vaker op zoek naar een manier om modulaire woningbouw toe te passen op een esthetische en meer definitieve manier waarbij echt nagedacht wordt over de architectonische en stedenbouwkundige waarde waarbij de modules slechts een klein onderdeel zijn van het geheel.

Voordelen:

+ circulair/duurzaam te bouwen + massaproductie toepasbaar

+ soms eigen voordeur

Nadelen:

- intentie van deze woningen is ‘tijdelijke oplossing voor woningnood’. Vaak blijven ze veel langer staan waardoor de omgevingskwaliteit wordt aangetast

- laagdrempelige stedenbouwkundige en landschappelijke kwaliteit

- zelfde bouwvoorschriften als traditionele woningen

- ontwerpvrijheid beperkt

Project: GroeneMient

Architect: Architektenkombinatie&FrançoisVerhoevenArchitect Plaats: DenHaag

Aantal: 33woningen

Oppervlakte: onbekend

collectieve buitenruimte zonder scheidingen

ondanks verschillende wensen en eisen bewoners toch eenheid

energieneutraal dankzij: zonnepanelen, collectoren, warmtepompen en warmte terugwin-systemen.

combinatie van natuurlijke materialen, als leisteen en hout, vormt samen een eenheid

CPO-project

verschiltperproject schaal woning/m2

verschiltperproject prijs collectief individueel/collectief

verschiltperproject huishouden

Een concept wat steeds vaker voorkomt is het CPO-project wat staat voor Collectief

Particulier Opdrachtgeverschap is een vorm van projectontwikkeling waarbij toekomstige bewoners gezamenlijk opdrachtgever zijn voor hun eigen (nieuwbouw) project.

Voordelen:

+ geen tussenkomst van marktpartij, hierdoor kan de woning tegen kostprijs worden gebouwd.

+ door collectief in te kopen (badkamers, keukens, etc.) kan je schaalvoordelen krijgen, dus kostenbesparend.

+ bepaalt met je buren en architect buitenkant, ontwerpt je eigen woning.

Nadelen:

- je draagt de lasten, omdat er geen projectontwikkelaar tussen zit

- verantwoordelijk voor risico’s als vereniging

Project: 2Peer

Architect: LEVSarchitecten

Plaats: Cruqiuseiland,Amsterdam

Aantal: 24friendsappartementen

Oppervlakte: 70-105m2 (20-25m2perwoon-slaapkamer)

gedeeld

Plattegrond appartement

eigen woon-slaapkamer 20-25 m2 met eigen badkamer

schuivende louvres vormen dynamisch gevelbeeld en bieden privacy

2- en 3-kamer appartementen gedeelde woonkeuken en buitenruimte

Plattegrond gebouw

Friendswoning/deelwonen/co-living

verschiltperproject schaal woning/m2 verschiltperproject prijs collectief individueel/collectief een-atweepersoons huishouden

Erwordtsteedsmeergepraatoverco-livingoffriendswoningen.Eenconceptwatvroeger eigenlijk ook al veel toegepast werd. Het verschil in co-living en friendswoningen is dat er bij co-living meer faciliteiten gedeeld worden zoals een wasserette, grote gezamenlijke keuken, gezamenlijke werkruimtes, etc.

Voordelen:

+ voorzieningen delen: keuken, wasmachines, enz. Hierdoor goedkoper leven

+ eenzaamheid neemt af

+ eigen badkamer en eigen slaapkamer

+ eigen voordeur, gedeeld met huisgenoot

+ individuele ruimtes en collectieve ruimtes.

Nadelen:

- minder privacy

- vaak op grotere schaal uitgevoerd

Project: LaanvandeVrede

Architect: DeZwarteHond

Plaats: Groningen

Aantal: flexibel

Oppervlakte: 35.305m2 BVO(flexibelindeelbaar)|woningen:46m2/69m2/92m2/125m2

Corridorontsluiting

Galerijontsluiting

46m2 - 1,5 persoon

ca. 13 m2 per grid

30,5 m2/p

Corridorontsluiting

Galerijontsluiting

Grid 3,6x3,6m > vrijheid in opzet &

Flexibele houtbouw

verschiltperproject schaal woning/m2

verschiltperproject prijs collectief individueel/collectief een-atweepersoons huishouden

Architectenbureau De Zwarte hond is ook altijd aan het ontwerpen naar nieuwe plattegronden, passend bij de gebruiker. Voor een woningbouw project in groningen hebben zij gekomen voor een houten draagstructuur. De basisconstructie bestaat uit een grid van 3,6x3,6 meter van kruisvormige houten elementen. Dit maakt het erg flexibel en biedt veel vrijheid om woningen, ontsluitingen en ruimtes aan elkaar te schakelen. De woningen zijn erg toekomstgericht omdat de opzet eenvoudig aan te passen is aan nieuwe woonbehoeftes.

Voordelen:

+ flexibel in te delen voor diverse huishoudens

+ eigen voordeur

+ individuele ruimtes en collectieve ruimtes.

+ flexibele en duurzame bouw

Nadelen:

- Is vooral geschikt voor grootschalige toepassingen en zal misschien minder geschikt zijn in een dorp

ruimtevoorprivacy in de gebouwen

ruimtevoorprivacy buitenruimtes achter woning zorgen voor privacy

verbondenheidmiddelstussenruimte de ruimte tussen de gebouwen biedt collectiviteit en sociale cohesie (speelplek,groenestructuur,moestuin)

verbindingtussengebouwen verbindingen maken tussen de gebouwen zorgt voor uitnodigen tot interactie

ontstaaninteractie door plaatsing architectuur

veiligheid door plaatsing architectuur

schaal, architectuur en korrelgrootte vinden een middenweg

ONDERZOEK EN ANALYSE

Conclusie | woningtypologieën & dorpse architectuur

Er is gekeken naar dorpse architectuur voor meervoudig wonen en er is onderzocht welke woningtypologieën er al ontwikkeld zijn voor een- of tweepersoonshuishoudens. Er zijn nu een paar referentieprojecten onder de loep genomen, maar er zijn natuurlijk nog veel meer voorbeelden te vinden. Het doel van dit onderzoek is vooral het kijken naar overeenkomsten en verschillen, slimme oplossingen, kijken waar ruimte is voor verbetering en achterhalen welke typologie en woonvorm, zowel in dorpse architectuur als plattegronden, het meest geschikt zou zijn om een invulling te krijgen op het platteland. Of kan de conclusie ook zijn dat het juist vraagt om een hele andere aanpak?

Vanuitdedorpsearchitectuurkandeconclusiegetrokkenwordendathetbijmeervoudige woonvormen vooral gaat om de verbinding en collectiviteit. Zowel tussen de gebouwen, als de bewoners. Dit samenspel zal bijdragen aan de toename van de sociale cohesie onderling. Het gevoel van een gemeenschap, mienskip, wat zo’n belangrijke term in de dorpen is leidend. Zo ook het gevoel van noaberschap. Vooral de open ruimtes rondom de gebouwen zullen een belangrijke rol gaan spelen in het uiteindelijke ontwerp.

Vanuitdewoningtypologieëndietotnutoezijnontwikkeltvooreenpersoonshuishoudens, speelt ook de collectiviteit een belangrijke rol. Er is vaak plek voor privacy, een eigen plekje, maar er worden ook voorzieningen gedeelt met anderen. Dit wordt vaak gedaan om ontmoeting en interactie te stimuleren. Wel hebben alle woningen vaak een eigen voordeur.

Beiden hebben een aantal overeenkomsten. Het opvallendste verschil is de schaal en korrelgrootte. De typologieën voor eenpersoonshuishoudens zijn vaak ontwikkeld voor grote steden om grote hoeveelheden studenten te huisvesten. Binnen de dorpen is deze schaal vaak wat kleiner en geldt het ons-kent-ons gevoel sterker. Voor het ontwerpen van een nieuwe woningtypologie zal hier dus rekening mee gehouden moeten worden.

Krimpregio’s

• Noordoost-Friesland

• Het Hogeland

• Eemsdelta

• Oost-Groningen

• Achterhoek

• Zeeuws-Vlaanderen

• Weselijke Mijnstreek

• Parkstad Limburg

• Maastricht-Mergelland

ONDERZOEK EN ANALYSE

03. Case-study dorpen

Zoals te zien is op de kaarten in de voorgaande studie zijn de grootste problemen met betrekking tot leegloop en vergrijzing terug te zien aan de oostelijke rand van Nederland. In een volgende studie wil ik inzoomen op deze gebieden en drie dorpen gebruiken als case study om te zien wat voor een problemen ontstaan, hoe en wat de gevolgen daarvan zijn. Hierdoor krijg ik inzicht in de volgende stappen.

Om met een voorstel voor een concept te kunnen komen is het belangrijk om te onderzoeken of het uiteindelijke ontwerpidee geschikt zal zijn voor elke locatie.

Daarom zijn er drie dorpen gekozen met ieder hun eigen problemen en/of kansen.

Een opsomming van de gekozen dorpen.

Naam dorp: Sauwerd,Groningen

Reden keuze: Krimpgemeenteenvergrijzing

Naam dorp: Haarle,Overijssel

Reden keuze: Woningnoodenleegloop

Naam dorp: Gulpen,Limburg

Reden keuze: Krimpregio,vergrijzing

Hiernaast is een schema te zien van alle leeftijdscategorieën. Dit laat het verschil zien in de verdeling in leeftijd tussen de steden en dorpen. Ook is in de tabel eronder te zien dat er sinds 1950 een toename is geweest in het aantal ouderen en een afame in het aantal jonge mensen.

Inwoners naar leeftijd bron: CBS/allecijfers

Kaart dorpskern Sauwerd

1. Sauwerd , Groningen

Groningen provincie HetHogeland gemeente

296 hectare

1.135(anno2023) inwoners

498 huishoudens

2,8 gem. inwoners per woning 31% eenpersoonshuishoudens

De rijksoverheid heeft 9 krimpregio’s aangewezen. Een daarvan is ‘Het hogeland’. In deze regio ligt het dorp Sauwerd. Hier hebben zij te maken heeft met onder andere vergrijzing en leegloop in het dorp onder de jongen mensen. Hierdoor neemt ook het aantal voorzieningen af. Samen met de dorpsgemeenschap houden ze bijvoorbeeld de supermarkt draaiende.

Tussen2005en2019wasereenafnamevaninwonerstezienvan10%volgensonderzoek van de NOS.

Op het schema hiernaast is ook duidelijk het verschil in leeftijd te zien. Opvallend zijn de categoriën 25-45 jaar en 65+ in het gemiddelde van Nederland in vergelijking met Sauwerd. Zo valt op dat het nagenoeg dezelfde cijfers zijn, echter precies andersom. Gemiddeld is 1 op de 4 inwoners tussen de 25 en 45 met daarnaast 1 op de 5 65+

VOORZIENINGEN

supermarkt en kapper kerk

huisarts en buurtcentrum school schoonheidsalon sportclub begraafplaats bloemist haven zorgboerderij/winkel/ontmoetingsplek theehuis

INFRASTRUCTUUR/OV

Sauwerd heeft een treinstation met 1 halte en buslijn met 1 halte. De eerste grote stad die dicht bij het dorp te vinden is, is Groningen, op zo’n 11 kilometer afstand.

ONDERZOEK

Sauwerd

BOERDERIJEN

Binnen een straal van 2 kilometer, gemeten vanuit het hart van het dorp, zijn relatief gemiddeld boerderijen te vinden rondom Sauwerd. Sauwerd kent 102 bedrijven. 8 bedrijven van dit aantal zaten in 2022 in de sector LBV (landbouw, bosbouw en visserij), dat is 7,8%. Dit aantal is redelijk constant gebleven sinds 2013.

WONINGKENMERKEN

Het grootste deel van Sauwerd is bewoond. Opvallend is ook dat het grootste gedeelte in het dorp koopwoningen zijn en dat er erg weinig huurwoningen zijn. Dit bied voor jonge eenpersoonshuishoudens ook weinig kans om ertussen te komen omdat zij vaak niet genoeg verdienen voor een koopwoning.

Inwoners naar leeftijd bron: CBS/allecijfers

Kaart dorpskern Haarle

2. Haarle, Overijssel

Overijssel provincie

Hellendoorn gemeente

4.005 hectare

2.095(anno2023) inwoners

840 huishoudens

2,5 gem. inwoners per woning 25% eenpersoonshuishoudens

Haarle is een esdorp aan de westzijde van de heuvelrug. Haarle heeft te maken met een leegloop in het dorp, maar heeft tegelijkertijd ook een woningtekort. Dit komt vooral doordat veel starters en jonge mensen uit huis gaan om op zichzelf te wonen, maar vervolgens geen woning kunnen vinden en dus als gevolg het dorp verlaten om ergens anders hun leven op te bouwen. Bijna 1 op de 4 mensen die in Haarle woont is 65+. In 2013 kende Haarle 2.165 inwoners. In 2023 waren dit er nog 2.095. Dat is een afname van 3,23% in 10 jaar.

VOORZIENINGEN

dierenarts | dierensalon winkel | industrieterrein

B&B | hotel | camping school

kerk | begraafplaats | uitvaart

bibliotheek

sportclub (voetbal/manege/handbal/tennis) buurthuis restaurant supermarkt huisarts kapper

ca.Zwolle 35km

Raalte

ca. 10 km

Deventerca.21km

Station Nijverdal ca. 6 km

INFRASTRUCTUUR/OV

Haarle heeft geen treinstation. Het dichtstbijzijnde station is in Nijverdal en dat ligt ongeveer 6 km van Haarle vandaan. Je kan hier de bus naartoe nemen.

Haarle heeft 3 bushaltes, waarvan 1 in het dorpscentrum en 2 dicht bij de N35.

ONDERZOEK EN ANALYSE

BOERDERIJEN

Binnen een straal van 2 kilometer, gemeten vanuit het hart van het dorp, zijn relatief veel boerderijen te vinden rondom Haarle. Haarle kent 195 bedrijven. 70 bedrijven van dit aantal zaten in 2022 in de sector LBV (landbouw, bosbouw en visserij), dat is 35,9%. Dit aantal is redelijk constant gebleven sinds 2013.

Wanneer dit aantal zal afnemen in de toekomst door alle problemen waar boeren nu mee te maken hebben zullen veel schuren leeg komen te staan. Het zijn deze schuren die kansen en ruimte bieden voor nieuwe woningen en functies.

WONINGKENMERKEN

Er is een groot aandeel in vrijstaande woningen in Haarle. 4 op de 5 woningen zijn gebouwd voor 2000 en 9 op de 10 woningen zijn eengezinswoningen. Er zijn huurcorporaties aanwezig, maar het grootse deel van de woningen zijn koopwoningen.

Haarle
Sauwerd
Kaart dorpskern Gulpen

3. Gulpen, Limburg

Limburg provincie

Gulpen-Wittem gemeente

1.633 hectare

3.963(anno2023) inwoners

1.939 huishoudens

2 gem. inwoners per woning 38% eenpersoonshuishoudens

Gulpen is een dorp in de gemeente Gulpen-Wittem en telt ongeveer 4000 inwoners. Dit zijn meer inwoners dan tot nu toe in Haarle en Sauwerd. 38% van deze inwoners bestaat uit eenpersoonshuishoudens. Als je kijkt naar het leeftijdsschema op de linker pagina is het niet geheel onlogisch om ervan uit te gaan dat een groot deel van deze eenpersoonshuishoudens alleenstaande ouderen zijn. Het percentage 65+-ers is 34%. Het aantal jonge mensen is aardig minder dan het gemiddelde van Nederland in vergelijking met de andere dorpen.

Opvallend zijn de vele hotels, bed&breakfasts en vakantiehuizen in Gulpen. Het dorp draait vooral op toerisme. Desondanks dat er weinig jonge mensen in Gulpen wonen, zijnerweltweescholen,meerderewinkels,horecavoorzieningenensportclubstevinden.

VOORZIENINGEN

winkels en horeca kerk/begraafplaats huisarts school buurtcentrum/gemeentehuis sportclub ziekenhuis

hotel/B&B/vakantiepark/waterpark bierbrouwerij zorgcentrum/ziekenhuis

INFRASTRUCTUUR/OV

Het dorp Gulpen heeft meerdere bushaltes met verbindingen diverse kanten op naar andere dorpen. Echter loopt er alleen een lijn op de hoofdweg. Er is geen treinstation in Gulpen. De beste optie is om naar Maastricht te reizen en hier de trein te pakken.

ONDERZOEK

BOERDERIJEN

Binnen een straal van 2 kilometer, gemeten vanuit het hart van het dorp, zijn relatief gemiddeld boerderijen te vinden rondom Gulpen. Gulpen kent 510 bedrijven. 32 bedrijven van dit aantal zaten in 2022 in de sector LBV (landbouw, bosbouw en visserij), dat is 6,27%. Dit aantal is toegenomen sinds 2013, toen was het 2,9%.

Sauwerd - 496

WONINGKENMERKEN

Het percentage huur en koop is bijna gelijk verdeeld. Dit is heel anders in vergelijking met de andere dorpen, waar koopwoningen hoger in aantallen zijn. Ook zijn er aanzienlijk minder vrijstaande woningen ten opzichte van bijvoorbeeld Haarle en is er een veel hoger percentage in appartementen dan in de andere dorpen.

Gulpen

Conclusie onderzoek & analyse

Zoals blijkt uit alle drie de dorpen op ieder totaal verschillende locaties in Nederland, kampen ze toch allemaal met dezelfde problemen. Dit laat zien dat dit niet alleen een probleem is per dorp, regio of provincie, maar een probleem in heel Nederland.

Daarom zal mijn keuze vallen op een van de boederijen in een van de case-study dorpen en zal ik de diverse onderzochtte woontypologieën combineren tot een ideale woonsituatie voor eenpersoonshuishoudens op het platteland. Daarnaast ligt de uitdaging om de erven te verbinden met het dorp en zo naast de sociale cohesie op het erf zelf, dit ook in het dorp terug te krijgen.

Haarle

ONDERZOEK &

04. Case-study erven

In de vorige studie heb ik drie dorpen onderzocht die te maken hebben met vergrijzing en leegloop. Alledrie de dorpen ondervinden veelal dezelfde problemen, maar het ene dorp heeft meer kansen dan het andere dorp. Gulpen heeft een regionale functie waardoor het dorp andere doelen heeft dan Sauwerd of Haarle. Ik heb er nu voor gekozen om het dorp met de meeste potentie te kiezen voor mijn case-study, Haarle.

Haarle heeft in haar directe omgeving vele boerderijen. Dit biedt kansen op het vinden van het juiste erf om als case-study te gebruiken en verder te analyseren in dit project. Verder is de ligging van Haarle ook gunstig. Het is goed te benaderen vanuit omliggende dorpen en er is een goede verbinding door het dorp met het OV. Daarnaast heeft Haarle ook een diversiteit aan voorzieningen die interessant zijn voor jonge mensen, onder andere een breed aanbod op het gebied van sport. Een van de grotere problemen in Haarle is woningnood. Gezien de vele erven rondom Haarle en het schaarse aanbod in het dorp biedt Haarle daarom de beste kansen om woningen te creëren op deze erven.

Ten eerste onderzoek ik drie verschillende erven. Om dit woonconcept te laten werken zou het toepasbaar moeten zijn op elk erf. Ik heb de onderzochte erven bezocht en met de bewoners gepraat. Bijna alle bewoners die ik heb gesproken gaven aan bezig te zijn om iets te willen doen met hun lege schuren. Echter wil de gemeente niet meewerken of is het project te duur. Een van de bewoners vertelde mij dat veel boeren in de omgeving willen stoppen. Ze zei dat ze wilden stoppen omdat ze lastig gevallen worden door mensen die langsfietsen of wandelen in het gebied. Ook is een reden om te stoppen alle verschillende regels vanuit de overheid. Ze halen geen plezier meer uit het boeren. Daarnaast stoppen sommigen ook omdat ze te oud zijn en/of ze niemand hebben die de boerderij wil overnemen.

Er ligt een plan klaar van de gemeente Haarle om nieuwe woningen te bouwen, plan ‘De Grave’. Dit plan zal uitgevoerd worden in 2 gedeeltes, maar iemand buiten het dorp maakt bezwaar omdat het bouwverkeer langs zijn woning komt.

1930 bouwjaar woning

127m2 woning oppervlakte

45.827m2 perceeloppervlakte

1 adressen woonenindustrie fuctie

5 aantal gebouwen

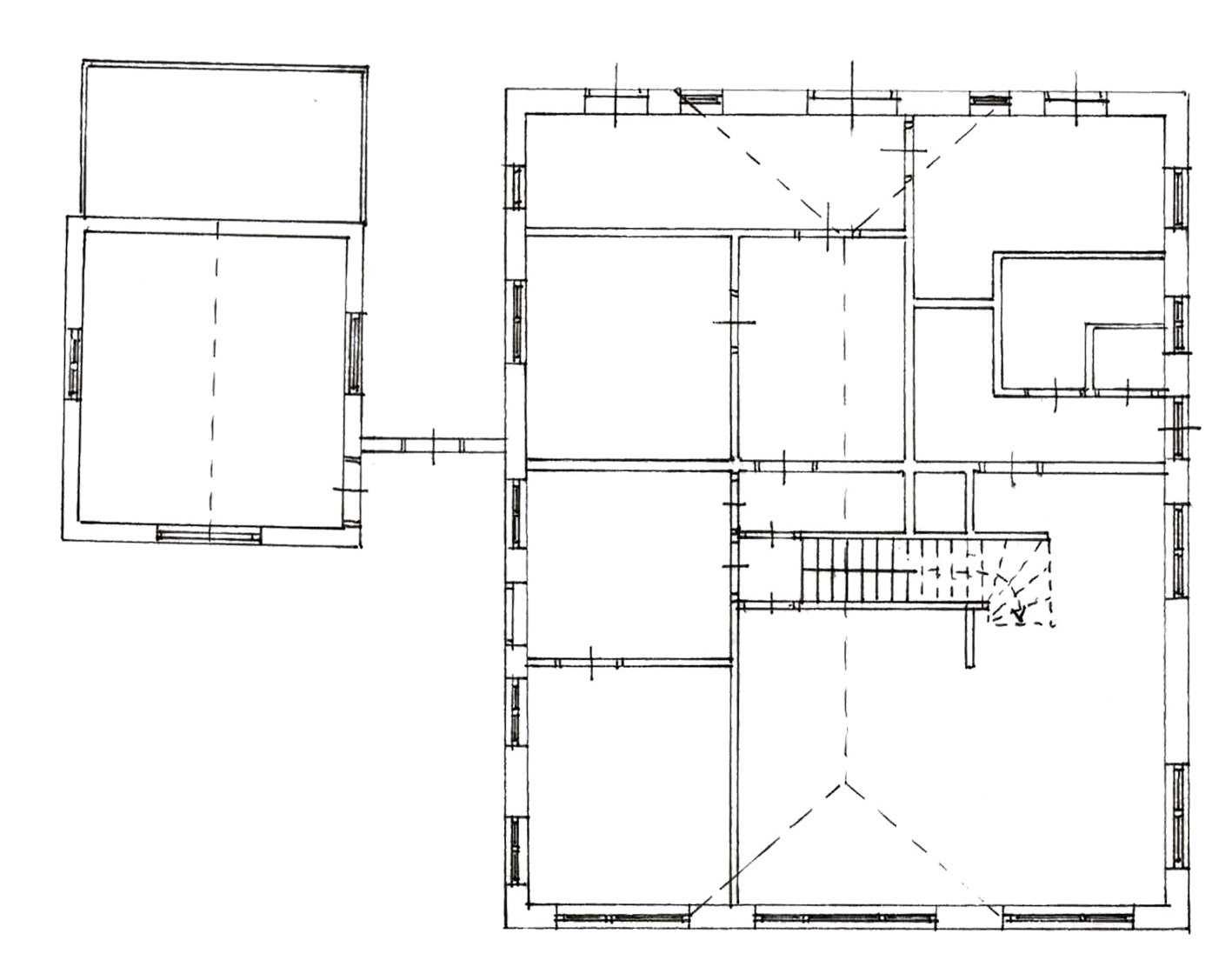
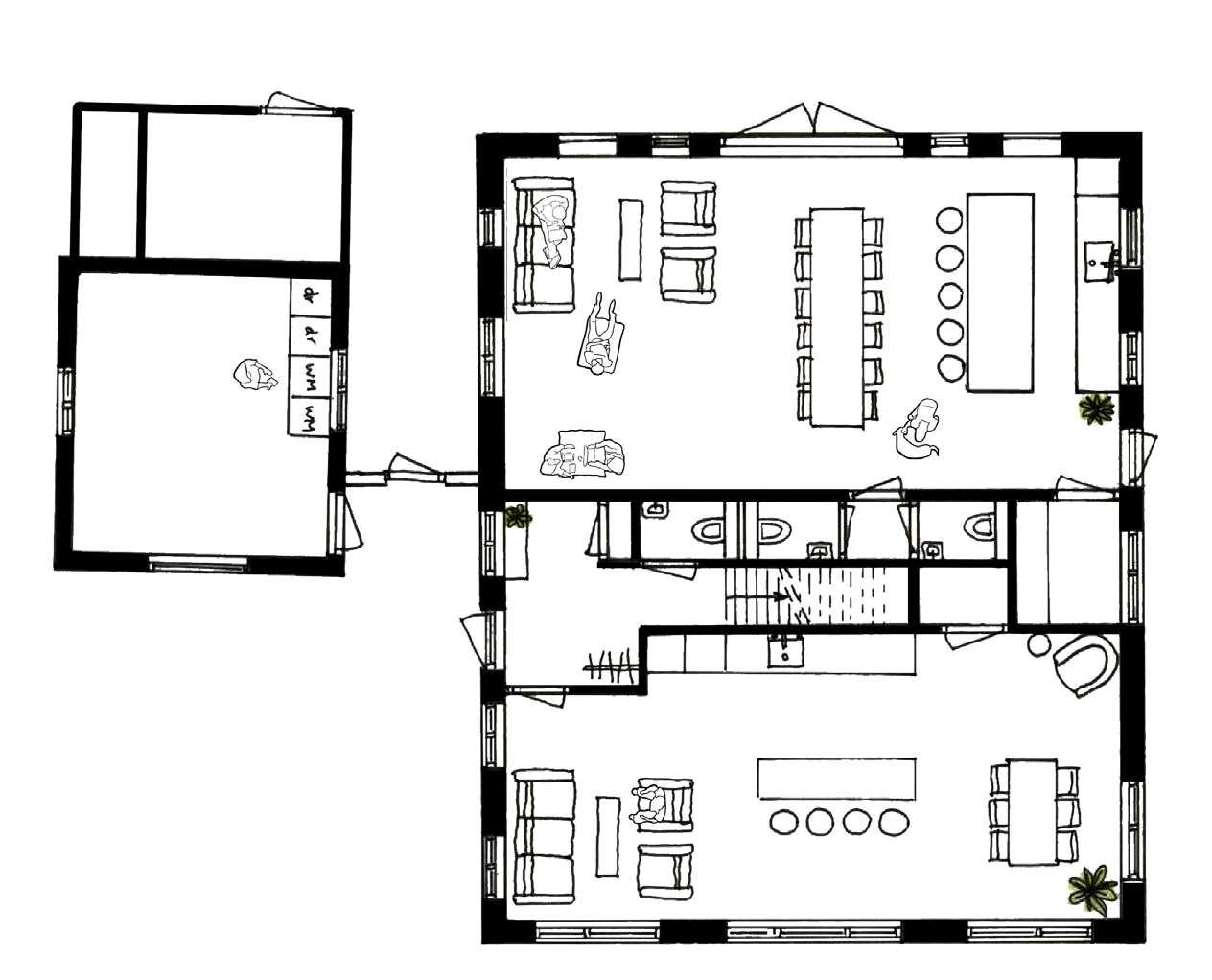
Kruishaarweg 2

Een ouder stel woont hier sinds 1973. Ze hielden koeien (40 stuks) en varkens(ca 300). In 2010 zijn ze over gegaan op jong vee. Dit hebben ze tot 2016 gedaan. Nu hebben ze 2 paarden en alleen kippen. Alle schuren staan leeg en dienen als opslag voor het dorp. Ze hebben d.m.v. de rood-voor-rood regeling geprobeerd een woning voor hun zoon te bouwen op het erf, maar de gemeente werkt niet mee en het is te duur. Ze moeten meer dan 1000 m2 sloopmeters hebben en dat hebben ze niet.

woning met berging

h= 8 m / h= 5 m

berging

h= 2,5 m

paardenschuur

h= 6 m

huidige woning en originele woonboerderij

ONDERZOEK EN ANALYSE

schuur

h= 4 m

schuur

h= 6m

WONINGEN,

schuren woning erf water

GROEN ERF

gras bomen heester bebouwing water

Kruishaarweg
Kruishaarweg
Kruishaarweg
Kruishaarweg

ONDERZOEK EN ANALYSE

opslag buiten

gevogelte weide wonen bebouwing bebouwing verhard erf weiland werken water water

Kruishaarweg
Kruishaarweg
Kruishaarweg
Kruishaarweg
ZONES ERF

1. opslag buurt/familie

2. oude machines/kippen

3. leegstaand/opslag buurt/2 paarden

in gebruik woning leegstaand water

VOORAANZICHT

Kruishaarweg
Kruishaarweg

1964 jaar bouw woning

112m2

oppervlakte woning (nr. 6)

71 m2 oppervlakte woning (nr. 8)

14.380 m2 hectare perceel

6 en 8 adressen

geen fuctie

10 aantal gebouwen

Haarlerveldweg 6-8

Eenvrouwwoontalleenopnummer6enverhuurtnummer8.Deschurenstaan al een paar jaar leeg en zijn vervallen. Van een van de schuren is recent het dak ingestort. Ze heeft geprobeerd om 8 woningen te bouwen op het erf en is hier al 5 jaar mee bezig maar de gemeente werkt niet mee. Haar zoon heeft de boerderij overgenomen aan Haarlerveldweg 2a.

schuur

h= 3,5 m

schuur (deels ingestort) met overkapping

h= 5 m

schuurtje

h= 1,10 m

ONDERZOEK EN ANALYSE

195519601964

huidige woning met schuur

overkapping

h= 4,5 m

schuur

h= 8 m

woning

h= 8 m

h= 3 m

WONINGEN, SCHUREN EN ERF

wittebroeksweg

GROEN ERF

wittebroeksweg

schuren woning erf water gras bomen heester bebouwing water

Haarlerveldweg
Haarlerveldweg

ONDERZOEK EN ANALYSE

Haarlerveldweg

wittebroeksweg

Haarlerveldweg

wittebroeksweg

opslag buiten

gevogelte weide wonen bebouwing bebouwing

verhard erf weiland werken water water

ZONES ERF

1. overkapping auto

2. opslag

3. voormalig varkens

in gebruik woning leegstaand water

VOORAANZICHT

Haarlerveldweg

ONDERZOEK EN

1927 jaarbouwwoning

112m2

oppervlaktewoning(nr.6)

71 m2 oppervlaktewoning(nr.8)

64.840 m2 hectareperceel

2a adressen geen fuctie

10 aantalgebouwen

Haarlerveldweg 2a

Hier woont een gezin met een varkensboerderij. Dit is de zoon van de vrouw die woont aan de Haarlerveldweg 6. Hij heeft de boerderij overgenomen van zijn ouders. Hij is van plan om te stoppen met het bedrijf door alle regels van de regering en omdat hij vaak lastig wordt gevallen door voorbijgangers. Ze hadden eerst ook ook koeien maar daar hadden ze geen plezier meer aan, ze houdennualleenvarkens

varkensschuur

h= 8 m

h= 7,5 m

varkensschuur

h= 6,5 m

schuur

h= 4 m

schuur

h= 4 m

ONDERZOEK

(lege) koeienstal

h= 8 m

h=6,5 m

schuur

h= 5 m 6 8

19631985192719701965199419691997

huidige woninghuidige woningvarkensschuur

h= 7 m

woning zonen boer

h= 6,5 m schuur

h= 6 m woning boer

WONINGEN, SCHUREN EN ERF

GROEN ERF

schuren woning erf water gras bomen heester bebouwing water

Haarlerveldweg
Raamsweg
Haarlerveldweg
Haarlerveldweg
Raamsweg
Haarlerveldweg

ONDERZOEK EN ANALYSE

VERHARD TERREIN EN WERKTERREIN

ZONES ERF

kippen cilo’s en opslag wonen bebouwing bebouwing verhard erf weiland werken water water

Haarlerveldweg
Raamsweg
Haarlerveldweg
Haarlerveldweg
Raamsweg
Haarlerveldweg

1. varkensschuur

2. opslag/kippen

3. koeienstal leegstaand water

in gebruik woning

VOORAANZICHT

Haarlerveldweg
Raamsweg
Haarlerveldweg

ONDERZOEK EN

DUIDELIJKE OPBOUW ERF

VEEL LEEGSTAND

DIVERSE BOUWJAREN

Haarlerveldweg
Haarlerveldweg

Conclusie case-study erven

Er zijn een paar conclusies te trekken uit het onderzoek naar de erven:

1. duidelijke opbouw erf

Bijna elk erf is opgebouwd op dezelfde manier. Hier zit een duidelijke structuur in wat een belangrijke rol kan gaan spelen in het nieuwe woonconcept straks. De woonboerderijen liggen vaak aan de weg. Hier ligt ook de private tuin omhoog die vaak goed onderhouden is. Dit is het visitekaartje van de boer. Hier is ook het meeste groen te vinden. Daar omheen gevouwen liggen de schuren, het werkgedeelte. Daar omheen ligt het weiland.

2. veel leegstand in schuren

Op alle erven die tot nu toe geanalyseerd zijn is veel leegstand terug te zien.

In Haarle was dit extra duidelijk en dit werd ook bevestigd door de bewoners die ik gesproken heb. De schuren dienen vaak ter opslag voor de buurt of voor eigen gebruik.

3. diverse bouwjaren

Opvallend is dat bijna geen een bouwwerk in hetzelfde jaar gebouwd was. De erven zijn door de jaren heen dus verder uitgebreid. De vraag is alleen of de oudere schuren ook weer gebruikt werden of dat er een nieuwe schuur is gekomen zonder de andere af te breken. De laatste keer dat er iets gebouwd is op een van de erven is in 1997, dat is 27 jaar geleden. Dat is de jongste schuur. Er werd dus continu bijgebouwd, maar niet afgebroken.

ONDERZOEK & ANALYSE

05a. Landschapsanalyse | waarde omgeving

Om de locatie beter te begrijpen is een landschappelijke analyse nodig van de omgeving.

Hierin kijk ik vooral naar de ontwikkeling van het gebied over de afgelopen 100 jaar, uit welk type grond bestaat het gebied, wat zijn de kernmerken van de omgeving (denk aan houtwallen, kamerlandschappen, hoogtes, boomsoorten, type architectuur, etc.) en wat is de waarde van het bestaande landschap.

Door dit in kaart te brengen krijg ik meer grip op het landschap, kan ik eventuele belangrijke vergeten historie terugbrengen en heb ik een solide verantwoording voor mijn keuzes in het ontwerp. Daarnaast zijn de resultaten van dit onderzoek en het toepassen van deze uitgangspunten in het ontwerp van belang voor de ruimtelijke kwaliteit en het behoudt hiervan voor de omgeving.

Kenmerken | 1920

• Veelwegen/zandpadentussen landgoederen

• weinigbebouwingen/ofclusters

• houtwallenalsafscheidingtussen akkers/percelen

• gemiddeldehoeveelheidbebossing tovheden

• ervenbestaanuitsolidaire gebouwenmetsterkeruimtelijke verwevenheidmetdehoutwallen

• hoofdwegvanafdemolenweg,via MeijerinkswegnaardeN35.

Kenmerken | 1935

• akkerwegenverdwenen/ privatiseringvanwegen

• toenamebebouwingenclusters: ontstaanlintbebouwing

• Afnamehoutwallen

• gemiddeldehoeveelheidbebossing tovheden

• ontstaanvanuiteenplanmatige ruilverkaveling

• eersteschaalvergrotinglandbouw: ontstaanmeerderegebouwenop heterf

Kenmerken | 1960

• akkerwegenverdwenen/ privatiseringvanwegen

• toenamebebouwingen clusters:ontstaanenuitbreiding lintbebouwing

• Afnamehoutwallen

• toenamebebossing

• nieuwehoofdroute

hoofdweg bebossing bebouwing wegen verhoging landschap clusters nieuwe hoofdweg projectlocatie

ONDERZOEK EN ANALYSE

Kenmerken | 1980

• akkerwegen verdwenen/ privatisering van wegen

• toename bebouwing en clusters: uitbreiding lintbebouwing

• weinig tot geen houtwallen

• toename bebossing

Kenmerken | 2022

• akkerwegen verdwenen/ privatisering van wegen

• toename bebouwing en clusters (vooral in grootte bebouwing en toevoeging woonwijk dorpscentrum)

• weinig tot geen houtwallen

• afname bebossing (wordt (recreatieve) heide)

Conclusie

Opvallend is de snelle afname in het aantal groene afscheidingen tussen de kavels. Veel houtwallen en singels zijn over de jaren verdwenen.

Daarnaast is het ook opvallend dat het aantal wegen met jaren is afgenomen waarbij veel informele paden tussen de erven onderling zijn verdwenen of geprivatiseerd. Bebouwing is steeds meer gaan clusteren rondom de hoofdverbindingen in de vorm van lintbebouwing. Dit bied ruimte voor uitbreiding van de landbouwgrond tussen de hoofdsctructuren en resulteert in verdwijning van de wegen.

Naast de landschappelijke veranderingen is door de toename van het aantal woningen in het dorp en de toename van bebouwing op de verschillende erven in het buitengebied het karakter van het gebied sterk veranderd.

Landschapsstructuur

De boeren erven liggen aan de grens van de Sallandse heuvelrug. De Sallandse heuvelrug is een heideontginningsbos rond 19001950. De landschapsstructuur bestaat uit kamerlandschappen met op de hoger gelegen stukken een esdorpenlandschap. De kamerlandschappen hebben akkers en besloten landbouwgebieden welke omringt worden door houtwallen en singels. De hoger gelegen gebieden bestaan voornamelijk uit zandgrond met heide en bosgebieden. Het landschap is een heideontginningslandschap.

Ruimtelijke kwaliteit clusters

Uit de vorige analyse is een toename te zien in het aantal clusters langs de linten. Om meer grip te krijgen op het gebied van de gekozen locatie (Kruishaarweg 2) heb ik een analyse gemaakt van de clusters uit de omgeving. Hierin bestudeer ik de ruimtelijke karakteristiek van de erven van deze clusters. Daarmee wil ik aansluiten op de kwaliteiten van de verschillende ruimten; het dorp, het lint en de boerenerven als ruimtelijk cluster. Ik doe dit door in te zoomen op de clusters in de landschappelijke

context en op de architectonische kenmerken van het erf en de boerderijen. Hiernaast volgt een reeks foto’s van alle architectuur van elk erf van de bovengenoemde clusters om eenbeter beeld te krijgen van de architectuur in de omgeving. Daarna volgt een stedenbouwkundige analyse waar meer wordt ingezoomd op de oriëntatie en opbouw van de erven.

ONDERZOEK EN ANALYSE

A1 | 1971
A3 | 1800 en achterste schuur 1955
A2 | 1935
B1 | 2006
B2 | 1975 (oudste schuur 1935)
C1 | 1980
B3 | 1960 /2000
C2 | 1930
D3 | 1935D4 | 2015
C3 | 1967
D1 | 1935
C4 | 1925
D2 | 1982

De architectuur laat bij de woonboerderijen vaak een zadeldak of wolfseinddak zien, vooral met donkere dakpannen en af en toe riet. Bruin/rood metselwerk met witte kozijnen en groene/donkerblauwe kleuraccenten in kozijnen, luiken en gevelbekleding. De bouwjaren lopen aardig uiteen. De meeste woningen liggen meer naar achter op het erf, wel straatgeoriënteerd, met een oprijlaan en een strak ontworpen voortuin met een variatie aan besnoeide heesters, kleine bomen, struiken en strak gemaaid gras. Er staan ook vaak bomen aan de weg rondom het erf, waar langs de weiland minder tot geen bomen staan.

D5 | 1990D6 | 1955
D7 | 1902
D9 | 1982
D8 | 1981

A | Meijerinksweg

1 | straatgeoriënteerd | 3 grote schuren | entree voorzijde | 1x inrit

2 | straatgeoriënteerd | 2 schuren | entree voorzijde | 3x inrit

3 | weilandgeoriënteerd | 2 schuren | entree voorzijde | 1x inrit

Toelichting

Elk cluster heeft minimaal 1 boerderij met meerdere (grote) schuren die ‘actief’ zijn in de argrarische sector. In hetzelfde cluster zijn ook ‘gewone’ vrijstaande woningen te vinden met een enkele schuur. De argrarische boerderijen hebben vaak meerdere entree’s, waarvan een voor het betreden van de woning, waar vaak de gasten ontvangen worden, en minimaal een andere inrit voor het werkverkeer naar het erf.

De meeste erven liggen aan de weg, welke vrijwel altijd rondom de woningen ‘versiert’ wordt met een paar hoge bomen, veelal t.b.v. beschutting en schaduw. De oudere erven

B | Molenweg

1 | straatgeoriënteerd | geen schuren | entree voorzijde | 1x inrit

2 | straatgeoriënteerd | 7 grote schuren | entree voorzijde | 2x inrit

3 | weilandgeoriënteerd | 2grote schuren | entree zijkant | 2x inrit

(voor 1900) liggen op hogere delen van het landschap. De historische boerderijen op deze erven staan veelal gedraaid in een losse setting een eindje van de weg. De relatief nieuwere erven zijn direct gekoppeld aan de weg. De bebouwing staat vaak haaks op de ontsluiting. Deze erven zijn karakteristiek voor de heideontginningen. De boerderijen zijn dus vaak straatgeoriënteerd met achter en/of naast de woning de schuren. De schuren zijn haaks op elkaar en op de woning georiënteerd. Vaak is er een iets grotere verharde tussenruimte in het midden van de bebouwing die representatief is en een breder pad die de bebouwing met elkaar verbind. De woning dient ter visitekaartje

C | Kruishaarweg

1 | deels straatgeoriënteerd | 1 schuur | entree ‘achterzijde’ | 2x inrit

2 | straatgeoriënteerd | 6 schuren | entree voorzijde | 1x inrit

3 | straatgeoriënteerd | 2 schuren | entree voorzijde | 1x inrit

4 | straatgeoriënteerd | 4 schuren | entree voorzijde | 1x inrit

van de boer en zo ook de aangelegen voortuin. De overgang van de erven naar het landschap gaat vaak middels een menselijke afscheiding in de vorm van paaltjes met hekken, sloten en hagen. Openheid is kenmerkend voor het ontginningslandschap. Dit geld ook voor rechtlijnigheid. Het slotenpatroon bepaalt het patroon van de onregelmatige blokvormige argrarische kavels.

Conclusie

Kenmerkend voor dit type landschap (heideontginning) en deze erven is de haaksheid en rechtlijnigheid langs de wegen. Hierbij

D | Molenweg-Meijrinksweg

1 | straatgeoriënteerd | 4 schuren | entree zijkant | 1x inrit

2 | straatgeoriënteerd | 2 schuren | entree zijkant | 3x inrit

3 | straatgeoriënteerd | 1 schuur | entree zijkant | 1x inrit

4 | straatgeoriënteerd | 6 schuren| entree voorzijde | 2x inrit

is de woning dus vaak straatgeorïenteerd en is de entree van de woning ook vaak aan de voorzijde te vinden. Bij boerderijen met eenargrarischefunctieisvaakde(extra)entreeookaandezijkant te vinden, dit is meestal functioneel. Dankzij deze analyse heb ik een beter inzicht in de erfopbouw en karaktereigenschappen van de erven van dit gebied. Hier kan ik uiteindelijk rekening mee houden bij het ontwerp van het erf aan de Kruishaarweg.

Waardering van het erf en de architectuur

Behoudt herinnering van het erf met oog op de toekomst

het transformeren van boerenerven die niet meer levensvatbaar zijn en geen toekomstperspectief hebben

Kruishaarweg
Kruishaarweg

ONDERZOEK & ANALYSE

05b. Erfanalyse | waardering landschap en architectuur

Nadat ik de waarde van de omgeving in kaart heb gebracht doe ik hetzelfde voor het erf. Het gaat vooral om het transformeren van boerenerven die niet meer levensvatbaar zijn en geen toekomstperspectief hebben.

Eerder in het onderzoek heb ik het erf aan de Kruishaarweg 2 al in kaart gebracht, maar in dit hoofdstuk ga ik hier nog iets dieper op in. Om in de toekomst een boerenerf te kunnen transformeren van een argrarische functie tot een woonfunctie zijn er een paar stappen nodig om ook woonkwaliteit te ontwikkelen. Zoals uit de ervenstudies is gebleken is elk erf anders, maar is er wel een terugkerende opbouw en zijn er elementen die vaak herhaalt worden.

In de volgende analyse kijk ik naar kenmerkende elementen in zowel het landschap als in de architectuur. Welke kleuren en materialen worden er gebruikt, hoe zijn de gebouwen georiënteerd, hoe werd het erf gebruikt, wat is de balans tussen verharding en vergroening op en rondom het erf, etc. Door dit scherp te hebben, per erf, wordt inzichtelijk gemaakt waar je mee te maken hebt en met welke elementen rekening gehouden moet worden tijdens het herwaarderen van het erf. Dit vormen de basiselementen van de uiteindelijke uitkomst van het ontwerp.

Waardekaart erfniveau

• Behoudt herinnering en waarde van het erf (toekomst gericht)

• Het herwaarderen en toekomst bestendig maken van het erf

• Erf gezond maken (asbest,schimmels en/of slijtage aanpakken)

• Ruimtelijke kwaliteit verbeteren (voor omgeving)

verharding

weilanderf

Kruishaarweg

hoofdontsluiting

voortuin erf (visitekaartje boer)

Kruishaarweg

entree weiland vanaf erf

Kruishaarweg
Kruishaarweg

ONDERZOEK EN ANALYSE

Waarderig van het bestaande landschap

HiervolgteenlandschappelijkewaarderingvanhetbestaandeerfaandeKruishaarweg

2. In de huidige situatie heeft de boer een deel van zijn weiland onderverhuurt aan de buren die nog actief zijn in de argrarische sector.

Indelegendaistezienwathetbestaandeerfgebiedisenwatalsweilandwordtgezien.

Opvallend is de rij met bomen (korte houtwallen), die de woonboerderij van wat schaduw voorzien. Zo ook de rij bomen midden in het weiland die een soort scheiding lijkt aan te duiden. Aan entree kant van het erf zijn nog een paar bomen te vinden, maar niet veel. Verder is het op het erf zelf vrij kaal en is er vooral verharding tussen de gebouwen in de vorm van klinkers.

Alle gebouwen zijn geplaatst rondom een soort binnenplein wat alles met elkaar verbind en welke ook dient als weg. Dit plein wordt ook gebruikt door de auto (er wordt op het erf geparkeerd onder de overkapping) of de werkvoertuigen.

De voortuin van de boer is groen en strak onderhouden. Dit dient als visitekaartje van deboer.Dekoeienschuurwaszogeplaatstdatdekoeiendirecttoeganghaddentothet weiland. Bijna het hele gebied dat als ‘erf’ wordt beschouwd is verhard en er is weinig ruimte voor groen op het erf zelf.

Het is vrij kaal en er is geen natuurlijke beschutting in de vorm van hagen of bomen. Hierdoor is er ook weinig schaduw. De woning van de buren is vrij dicht bij het erf en wordt afgeschermd door de boom die zij hebben en door de plaatsing van de bebouwing.

Als conclusie zou ik het binnenplein meer willen vergroenen en de gebouwen hierdoor ook meer met elkaar willen verbinden. Er mogen meer natuurlijke (en hogere) beschuttingen komen om wat fijne plekken te creëren. Het binnenplein gaat als een soort boulevard dienen, maar wordt tegelijkertijd ook de nieuwe voortuin van alle woningen.

Hoogtelijnen Kruishaarweg 2

Hiernaast is een hoogtekaart te zien van het projectgebied. Het erfligtaandevoetvandeSallandseHeuvelrug.Oponderstaande doorsnedes is te zien dat het weiland de heuvel oploopt. Het erf is net zoals de andere erven in de clusters rondom straatgeoriënteerd en ligt redelijk dicht bij de weg. De schuren staan haaks georiënteerd op de woonboerderij en een bredere verharde tussenruimte zorgt voor de verbinding tussen de bebouwing. Het is belangrijk om bij de herbestemming van het erf rekening te houden met deze tussenruimte en de nieuwe rol ervan. Doordat er een nieuwe functie wordt toegekend

aan het erf is het van belang om ook rekening te houden met bijkomende nieuwe factoren. Zo is het van belang dat er bij de woningen parkeerplaatsen komen, er rekening gehouden wordt met de privacybehoefte (zowel in het landschap als in de architectuur), er een juiste balans is tussen verharding en groenvoorziening, voldoende bergruimte naast toenemende woningen, bijpassende architectuur bij de rest van de omgeving en de ruimtelijke kwaliteit van het erf op zich. Daarnaast is het ook belangrijk om de eerdere conclusies van de opbouw van het erf in de omgeving mee te nemen in het nieuwe ontwerp.

bebossing aan kruishaarweg

toename hoogte door ligging voet Sallandse Heuvelrug Oude Deventerweg

Dit zijn foto’s van het gebied rondom de Kruishaarweg 2. Beeld 1, 2 en 6 zijn gemaakt vanuit de voortuin. Beeld 1 is georiënteerd op de rand van de Sallandse Heuvelrug. Je zit hier duidelijk de toenemende hoogte in de verte. Dit geld ook van beeld 4 en 5

welke aan de achterzijde van het erf zijn gemaakt. Opvallend is het groene en open karakter van deze omgeving en de bebosde omheining aan de rand. Aan de voorzijde is meer hoge begroeiing te vinden (langs de weg) waar aan de

achterzijde het meer open is. Dit is belangrijk om mee te nemen in het (landschaps)ontwerp.

Kruishaarweg
Kruishaarweg

Waardering van de bestaande architectuur

Veel boeren stoppen en de kans is groot dat ook veel boerderijen zullen verdwijnen. Dit is zonde en met een oog op de toekomst is dit ook een groot deel van cultuurhistorische waarde wat daarmee verloren gaat. Door nu hier al slim op in te spelen en het erf dusdanig her te bestemmen kan de herinnering van het erf grotendeels behouden worden. Het erf krijgt weliswaar een nieuwe functie maar zal nog veel elementen en vormen van de boerderij en erf laten zien.

Om de herbestemming van een erf te kunnen bepalen is het belangrijk om eerst een waardekaart te maken. Welke bebouwing is het waard te behouden en waar kan sloop plaatsvinden. Aan de hand van deze gegevens kunnen keuzes gemaakt worden.

Dit gaat uiteindelijk het ruimtelijke ontwerp bepalen. De inhoud van de waardekaart bestaat uit 4 onderdleen:

A. waardevol, volledig behoud ‘volledig behoud met herstel waar nodig, denk aan monumentale panden’

B. behoud, tot zekere hoogte

‘meeste elementen blijven bewaard, gedeeltelijke sloop waar nodig’

C. hergebruik

‘materialen of elementen kunnen worden gerecycled, grotendeels sloop’

D. sloop

‘geen waarde (meer), volledige sloop’

Een dergelijke toetsing zal uiteindelijk per erf uitgevoerd moeten worden. Vele schuren bevatten asbest, schimmel of slijtage en er is vaak al jaren niks meer aan gedaan, zeker niet wanneer een schuur leeg komt te staan. Ook is dit nodig voor de esthetische waarde van het erf. De meeste erven zijn over de jaren heen uitgebreid naar behoefte van de boer op dat moment. Hier komt niet altijd zorg voor esthetiek aan te pas. Om de bestaande bebouwing te kunnen herbestemmen tot een woonfunctie is het nodig om het erf zorgvuldig te herwaarderen.

1. woning boer

1930 bouwjaar

2 verdiepingen

123 m2 m2 vloeropp.

2 bewoners

woning (vroegere)functie

metselwerk materiaal

A waardering

Dit is het oudste gebouw op het erf. Het is het meest karakterisitek door de vorm van het dak, de gevelopeningen en de gevelmaterialen. De eigenaar is hier opgegroeid. Hij heeft daarna de boerderij overgenomen en is er gaan wonen samen met zijn vrouw en vier kinderen. De woning werd opgesplitst zodat zijn ouders er konden blijven wonen. De indeling werd hierop aangepast. De huidige bewoners wonen er nu nog met z’n tweeën en het interieur is weer aangepast naar hun behoeften. Op de verdiepingenzijn de slaapkamers en op de begane grond alle andere functies. De kant waar zijn ouders woonden is deels nog intact en maar gedeeltelijk in gebruik.

Het bouwjaar en het karakter van de woning geeft een historische waarde aan het erf en is het hoofdgebouw van het erf. Dit is het enige geïsoleerde gebouw op het erf met een woonfunctie. Aan de gevel zie je soms wat versleten delen (hoeken) en dat er op sommige momenten gesleuteld is aan de openingen (zie afbeelding linksboven).

Ondanks deze aanpassingen is het gebouw nog in dergelijke staat. Er zullen dus vooral (herstel)werkzaamheden gepleegd worden om het klaar te maken voor de toekomst.

De gevel van het gebouw bestaat uit rood metselwerk en witte voegen, de plint bestaat uitdonkerdermetselwerk.Karakteristiekeramenindegevelhebbeneenroedeverdeling en wit kozijn. De achterzijde had eerst een grote dubbelde deur, deze is door de jaren heen deels dichtgemetseld en vervangen voor een enkele deur, waarschijnlijk t.b.v. de splitsing. Het dak heeft een dakkapel richting het weiland.

ONDERZOEK EN ANALYSE

2. ‘kokhuuske’

1930 bouwjaar 2 verdiepingen

30 m2 m2 vloeropp. - bewoners

washok/kippenhok (vroegere)functie metselwerk materiaal A waardering

Vroeger heette dit het kokhuuske. Dit werd gebouwd om te koken zodat brandgevaar is het hoofdgebouw voorkomen werd. Later is dit het washok geworden. Dit is nu niet meer nodig en daarom heeft de bewoner besloten hier een soort klein museum van te maken.Hetstaatvolmetspullenvanvroeger,denkaloudestrijkijzers,oudgereedschap datophetlandwerdgebruikt,oudkookgerei,etc.Tegenhethuisjeaaniseenkippenhok gebouwd, welke niet meer in gebruik is.

Dit huisje komt uit hetzelfde jaar als de woning en is aan elkaar verbonden door een gemetseldemuurmeteendeur.Gezienhetbouwjaarishetgebouwnogingoedestaat. Afhankelijk van de nieuwe functie zal het gebouw wel geïsoleerd moeten worden. Het gebouw is met hetzelfde rode metselwerk gebouwd als de hoofdboerderij en voorzien van een zadeldak met een schoorsteen. Binnen staat nog een oude kachel. Ook dit gebouw heeft net als het hoofdgebouw witte raamkozijnen, groene deuren en donkergrijze dakpannen. Aan de achterzijde is een klein kippenhok te vinden met een gemetselde plint en houten afwerking, welke ook weer dezelfde groene kleur kent als de deuren. Hieraan is ook de brievenbus bevestigd. Dit hok staat nu leeg en de kippen zijn elder gehuisvest. Het gebouw krijgt ook weer een hogere waardering omdat het onderdeel is van het hoofdgebouw en ook een historische en karakteristieke waarde kent.

3. berging

1960 bouwjaar

1 verdiepingen

131 m2 m2 vloeropp. - bewoners

berging (vroegere)functie

kalkzandsteen/stuc/platen materiaal C waardering

Dezeschuurbestaatuittweeverschillendebergingen.Zehebbenbeidenookeenandere functie. Het ene deel diende ter opslag van voertuigen (gelegen aan de weg) en het andere deel diende. De berging had een dikkere wandopbouw en is meer gesloten en het andere deel eerst als dieren verblijfplaats en vervolgens als berging. Het linker deel bestaatalleenuiteendragendeconstructiemethiertegenaanplaatmateriaal,dienend als gevel- en dakafwerking. De constructie bestaat uit stalen spanten met houten gordingenertussenopvierkantebetonkolommen.Hetrechterdeelkenteengemetselde muur (welke van binnen gestuct is) en een slordige houten constructie.

De kwaliteit van de schuur is niet erg hoog. Er is veel aan gesleuteld en veranderd door de jaren heen en de meeste materialen zijn gedateerd, aan elkaar geknutseld en/ of verrot. De spanten zouden behouden kunnen blijven om de vorm van de schuur te behouden. Er is hier ruimte om te spelen met de nieuwe vorm en gevelbekleding.

jongvee stallen

varkensstallen entresol

jongvee stallen

constructie

kippenhok
hooizolder
houten

ONDERZOEK EN ANALYSE

4. oude varkensschuur

1965 bouwjaar

1 verdiepingen

437 m2 m2 vloeropp. kippen bewoners

varkensschuur/jongvee (vroegere)functie kalkzandsteen/stuc/platen materiaal B waardering

Vroeger was de functie van deze schuur de varkensschuur. Daarnaast werd hier ook een tijdje jongvee gehouden. Los van het vee diende het gebouw ook ter opslag van de werktuigen. Momenteel worden de kippen hier gehuisvest, in een klein gedeelte, en wordensommigedelenopengesteldvoorfamilieenkennissenteropslagofwerkruimte. Sommige scheidingswanden van waar vroeger de varkenshokken waren zijn gesloopt maar de meesten staan nog overeind. De varkensverblijven zaten onder een soort entresolverdieping. Op de entresolverdieping werd hooi opgeslagen. Dit is nog steeds terugtezieninhetplafondbijdeverblijvenwaarstukkenstrouitsteken.Inhetdeelwaar de voertuigen stonden is geen entresolverdieping en is het plafond hoger.

De constructie bestaat vooral uit houten kolommen, spanten en gordingen. De houten kolommen rusten op de betonnen scheidingswanden tussen de hokken. De entresolverdieping bestaat echter alleen uit houten planken, welke rusten op houten balken.Debuitengevelrondomhetvarkensverblijfbestaatuiteenkalkzandsteenwand metgevelbekleding.Onderdevarkensverblijveniseenmestkeldertevindenvanca1,80 m diepte.

Bij de herbestemming kan de houten constructie zoveel mogelijk behouden blijven met de footprint van het gebouw. Wellicht kunnen de bestaande varkensschotten hergebruikt worden, dienend als scheidingswanden.

oude gevel

lichtstraat

oude gevel

oude

beschimmelt en kapot

oude melkkuil
koeienstallen
oude melkruimte

ONDERZOEK EN ANALYSE

5.

oude koeienstal

1979 bouwjaar 1 verdiepingen

480 m2 m2 vloeropp. paarden bewoners

koeien schuur (vroegere)functie

kalkzandsteen/stuc/platen materiaal B waardering

Vroeger was dit de koeienschuur waar ongeveer 30 koeien verbleven en werden gemolken. Op dit moment verblijven er alleen twee paarden en dient het verder als opslagplaats voor buurtgenoten. Vroeger is er nog een stuk bij aangebouwd. Dit is terug te zien op de foto rechtsboven, hier zie je de oude buitengevel. Dit gebouw sluit het erf af. Aan de ene kant bied het daardoor geborgenheid en een duidelijke grens, aan de andere kant blokkeert het ook het uitzicht naar het weiland en zorgt het voor geslotenheid. De overgang naar het weiland aan de zuidzijde is hierdoor ook vrij hard. Het weiland grenst direct aan de schuur.

Aan de zijkanten waren de verblijven van de koeien met hieronder gierkelders die aan de voorkant uitmonden in een put. Deze gierkelders zijn nu afgedicht. De melkkuil in de achterruimte is dicht gegooit met beton. In de gevels zaten ook een soort geventileerde schotten om de ruimte te voorzien van frisse lucht (zie afbeelding rechts-midden). Wat eventueel een waardevol element zou kunnen zijn in deze schuur is de lichtstraat die de schuur van natuurlijk licht voorziet. De constructie van de schuur bestaat uit stalen spanten die een beukmaat hebben van ca 3,4m.

De spanten zouden kunnen worden hergebruikt. Ook de lichtstraat is iets om te behouden. Mocht dit niet meer in goede staat zijn dan zal het eventueel vervangen moeten worden. De mestkelder zou eventueel een nieuwe functie kunnen krijgen, voor eventueel water-, warmte- of energieopslag. Het gebouw zal sowieso een nieuwe (geïsoleerde)gevel en dak moeten krijgen wil het bewoonbaar worden.

ONDERZOEK EN ANALYSE

6. serre

na 2000 bouwjaar 1 verdiepingen

19,5 m2 m2 vloeropp. - bewoners

serre (vroegere)functie hout/glas materiaal D waardering

Deschoonzoonvandebewonersheeftdezeserrezelfgebouwd.Zokunnendebewoners elk seizoen ‘buiten’ zitten wanneer familie en vrienden op visite komen.

Hetbouwselisvrijnieuw,maarheeftverdergeenargrarischefunctie(gehad).Daarnaast heeft het geen cultuurhistorische waarde of karakteristieke eigenschappen voor het erf. Er kan overwogen worden om hem in zijn geheel te slopen. Dit biedt meer ruimte en kansen op het terrein. Ook creëert het meer uitzicht naar de omgeving wanneer het gesloopt wordt. Het bouwsel maakt verder ook geen onderdeel uit van het totale ensemble in kleuren, materialen en functies van de andere gebouwen.

relevante boom

doorkijk naar groen en georiënteerd op hoofdontsuiting

georiënteerd op hoofdontsuiting

opent naar oase van groen

en buren

relevante bomenpartij weinig afstand doorkijk naar groen

zicht op Sallandse Heuvelrug

kleur-, elementen- en materialen bord

vorige staldeur zichtbaar

terugkerend kozijn

Gevoel

Het gevoel dat je krijgt van een plek speelt ook een belangrijke rol in het uiteindelijke ontwerp. Waar komt dit gevoel vandaan? Wat zorgt ervoor dat je dit gevoel krijgt? Kan je dit ook sturen en ermee spelen in het ontwerp? Daarom deel ik graag het gevoel dat deze plek mij gaf.

“Gearriveerd op het erf bestuifde mij het gevoel dat ik aan de rand van Haarle was gekomen.DebebosderandenendehoogteveranderingaandevoetvandeSallandse heuvelbevestigdendit.Eenmaalopheterfwasdeopbouwvrijduidelijkenclean.De verhardingbrachtmijbijdebebouwing,warmenvriendelijkwasniethetgevoelwatper sebijmeopkwam.Terwijlikoverheterfliepwerdikverrastdoordegroenezichtlijnendie herenderkorttussendebebouwingverschenen.Daarwasderuimte.Eenmaalvoorbij debebouwingeenoasevangroen,zoveralshetoogkonreiken.Hetbegonavondte wordenendezonverscheenachterdewolkenvandaan.Zachtraaktezeafentoehet wijdverspreidegrasaanwatzorgdevooreenprachtiggroenkleurenpalet.Ikkreegeen nostalgisch,vrijenwarmgevoelvanbinnen.Voormijngevoelmochtikoveralkomen, maarheterfhieldmetochtegen.

Ikbetraddevarkensschuurenwaarikbuitenzo’nvrijgevoelkreeg,washethierbinnen en tegenovergestelde. Het verlaagde plafond, de weinige toetreding van daglicht en degesloten,donkereindelinggavenmijhetgevoeldatikopgeslotenzat.Tegelijkertijd gavendeschaarsezonnestralenmijookeengevoelvangeborgenheid.Hetwasklein enoverzichtelijk.

De koeienschuur was het tegenovergestelde van de varkenschuur. De lichtstraat verspreidoverdegeheledieptevanhetgebouwboodtvoldoendehoogte,ruimteen daglichtomeenruimtelijkgevoeltekrijgen.Hetwasalsofdelichtstraatmijnaarbuiten begeleidde,vaneenkillebetonnenwereld,naareenwereldvolgroenennatuur.Alseen uitnodiging.”

openingen volledige sloop kenmerkende bomen transitiezone tussen erf en weiland nieuwe zichtlijnen

Kruishaarweg
Kruishaarweg

Conclusie ruimtelijke ordening erf

Ditcluster bestaatuitvierboerderijenwaarvanertwee actiefzijn/waren inde agrarische sector. Het onderzochte erf aan de Kruishaarweg 2 is momenteel niet meer actief aan het boeren en heeft veel leegstand op het erf.

De bebouwing op het erf is geplaatst richting het verbindende binnenplein, welke ook de hoofdontsluiting van het erf vormt. De meest zuidelijke schuur sluit het erf af en hier gaat het erf direct over in weiland. Alle woonfuncties zijn naast elkaar te vinden aan de ene zijde van het plein met aangrensend de voortuin, waar de gebruiks- en agrarische functies zich aan de andere zijde bevinden, aangrenzend aan het weiland. De cultuurhistorische waarde van de woning is hoog en deze geeft ook karakter aan het erf. De schuren daarentegen bieden vooral karakter door de vorm, de kleuren en materialen, maar zijn minder geschikt voor het herbestemmen van woningen door de huidige staat en het vorige gebruik. Het is vooral belangrijk om de vormen te behouden en wellicht iets aan te passen om het ruimtelijke gebruik van het erf te verbeteren.

Momenteel heeft het erf een hard en gesloten karakter. Deze geslotenheid kan vooren nadelen hebben. Een voordeel is de geborgenheid en privacy, een nadeel is de verbinding met de omgeving die hierdoor weinig tot niet bestaat. Er is ook weinig tot geen groen op het erf zelf en door het gesloten karakter is er ook weinig zicht op het groen.

De transformatie van het erf tot wonen geeft kansen om het erf intiemer te maken, maar ook meer relatie met de omgeving te geven. Hierdoor wordt het erf een meer leefbare en fijne plek om te verblijven. De nu zo harde grens met het groen vraagt om vriendelijkere transities, waarin het groen meer in het erf overlopen. Ook is er meer behoefde aan hoger groen, t.b.v. schaduwen en het creëren van geborgen plekken. Doordat de functies van de bebouwing op het erf zullen veranderen, brengt dit ook verandering mee op ruimtelijk gebied. De bestaande voortuin zal zich bijvoorbeeld naar verplaatsen naar het middenplein, waardoor het middenplein een hele andere betekenis gaat krijgen. Dit zal een verbindende factor gaan worden voor de bewoners, een plek voor ontmoeting.

ruimte voor privacy in de gebouwen

ruimte voor privacy buitenruimtes achter woning zorgen voor privacy

verbondenheid middels tussenruimte de ruimte tussen de gebouwen biedt collectiviteit en sociale cohesie (speelplek,groenestructuur,moestuin)

verbinding tussen gebouwen verbindingen maken tussen de gebouwen zorgt voor uitnodigen tot interactie

ontstaan interactie door plaatsing architectuur

veiligheid door plaatsing architectuur

tempelpoort zonlicht/maanlicht

Ma is de kracht van de leegte. Het is de ruimte tussen dingen — zoals de stilte tussen woorden of de rust tussen gebouwen. Het geeft ademruimte, betekenis en balans. Zonder ma zou alles druk, vol en onrustig aanvoelen

06 | Ma

Om tot het concept te komen grijp ik terug naar de conclusies van de referentiestudies. Vanuit de dorpse architectuur was de conclusie dat verbinding en collectiviteit als belangrijkste kaders stellen, zowel tussen de gebouwen als de bewoners. Het gevoel van mienskip, noaberschap en sociale cohesie is leidend. In de referentiestudies zorgde vooral de negatieve ruimte tussen de gebouwen ervoor dat deze doelen nagestreefd konden worden omdat deze ruimtes de stimulans boden tot interactie doormiddel van bijvoorbeeld activiteiten of ontmoetingsplekken. In de conclusies van de woningtypologieën voor eenpersoonshuishoudens kwam ook naar voren dat deze voorzieningen zorgen voor collectiviteit onder de bewoners.

In dit ontwerp werk ik met de spanning tussen leegte en massa, oud en nieuw, structuur en invulling. De ruimte die ontstaat tussen de bestaande constructie en de nieuwe woningen is niet puur functioneel, maar draagt bij aan de beleving van het erf: als buffer, als overgang en als ademruimte.

Dit idee sluit aan bij het Japanse concept ma (間), dat draait om betekenisvolle leegte. Het is de ruimte die niet gevuld hoeft te worden, maar juist betekenis krijgt door wat eromheen staat. Zo ontstaat een spanningsveld dat rust geeft, oriëntatie biedt en de geschiedenis van de plek voelbaar maakt.

Ook op traditionele boerenerven in Nederland zijn dit soort ruimtelijke spanningen te vinden — denk aan het erf als open plek tussen de schuren, of de overgangen tussen binnen en buiten. Wat ik met het concept ma doe, is die kwaliteiten benoemen en bewust inzetten in de ontwerptaal van nu.

In dit ontwerp zie ik kansen om Ma toe te passen op verschillende schaalniveaus:

- Landschapsarchitectuur

- Architectuur

- Interieurarchitectuur

In elk onderdeel zal Ma haar rol op een andere manier vertonen, maar het doel blijft hetzelfde.

Op welke manier:

• Het weiland als betekenisvolle leegte

DebestaandekwaliteitvanhetNederlandselandschap. Deleegtevanhetweilandgeeftbetekenisaanwat eromheenstaatzoalsdeschuren,debomenrij,desloten

• Spanningszones tussen erf en landschap

Overgangentussenprivéenpubliek,verhardnaarzacht, beplantnaaropen.Doorzonesleegtehoudenwordtde overgangbenadrukt

• Doorkijken en zichtlijnen

Deleegtetussenvolumesofbeplantingisnietleeg,maar eenbewustkadervoorrustenperspectief

• Rustpunten in de routing

Hetpadkrijgtkrachtdoordemomentenwaarniks gebeurt.Hierdoorontstaatbeleving

• grote vlaktes, akkers, weiland

• strook gras tussen erfgrens en veld, open erfzone, sloot

• doorkijk tussen schuren, ‘venster’ tussen bomen

• bankje in een veld, route die even verbreed tot plein

Toepassing Ma: landschapsarchitectuur

Het weiland als betekenisvolle leegte.

In het Nederlandse agrarisch landschap is leegte niet zeldzaam — het is het landschap. Grote vlaktes, weilanden, akkers: op het eerste gezicht leeg, maar juist daarin ligt de kracht. Juist door deze lege vlaktes krijgt het water dat eromheen staat veel meer betekenis, zoals de erven met de bebouwing, de houtwallen en de akkers. Dit is dus al een bestaande kwaliteit in het ontwerp en deze kwaliteit wil ik versterken en extra respecteren in mijn ontwerp met de toepassing van Ma. Zowel in het omliggende weiland als op het erf zelf. Niet elk stuk landschap hoeft gevuld te worden.

Op het erf wil ik dit doen door het creëren van spanningzones. Er zijn op en rondom het erf vaak overgangen te vinden in de vorm van publiek vs privé, verhard vs zacht, beplant vs open, etc. De overgangzones hiertussen wil ik leeg laten om de overgang te benadrukken. Dit kan bijvoorbeeld door een open erfzone zonder beplanting of gewoon een strook gras, een erfgrens of een veld. Het kan ook een smalle doorgang tussen de heggen naar een open veld zijn. Dit verhoogt het contrast tussen wat komt en was en bouwt spanning op. De tussenruimte is een rustpunt in de overgang en zeker geen verloren ruimte. Ze maakt het landschap juist meer voelbaar en benadrukt de zones.

Zichtlijnen en doorkijken zijn cruciaal in een vlak landschap. Door het bewuste doorkijken tussen bijvoorbeeld twee schuren door naar de horizon of een houtwal in de verte onstaat er een bewust moment van ma waarin de blik kan rusten. Of juist een ‘venster’ tussen twee boomgroepen met het weiland als tussenruimte. Het ritme van een rij bomen biedt openingen en doorkijkjes. Dit kan ook in beplanting. hierdoor krijgt licht, wind of uitzicht de ruimte.

Een pauzemoment in het landschap kan ook heel letterlijk vertaald worden door bijvoorbeeld het plaatsen van een fysiekrustpunt, zoals een bankje aan een open veld. Of een pad wat zich even ontvouwt in een pleintje van gras of grind zonder objecten. Een stilteplek zonder verkeer of uitzicht waar je even tot jezelf kan komen. Waar je niets hoort of ziet, maar waar het ‘niets’ betekenis krijgt.

De open ruimtes rondom het erf functioneren als rustpunt, spanningsveld en visuele ademruimte. Niet door toevoeging, maar juist door terughoudendheid ontstaat beleving.

Op welke manier:

• Tussenruimte als spanningsveld tussen oud en nieuw

Detussenruimtewordteenbetekenisvolleleegtewaarin verledenentoekomstelkaaronmoetenzonderdirect conctact

• Overgangen tussen binnen en buiten

Deruimtetussenbinnenenbuitenwordtnietopgelost, maaruitgesponnen-waardoordeovergangvoelbaar enbetekenisvolwordt

• Ritme en herhaling met onderbreking

Delegeruimteinhetritmeisnetzobelangrijkalsde elementenzelf

• Licht en schaduw als ruimtelijk materiaal

Hetlichtmarkeertdeleegte-maaktzichtbaarwaternietis

• Materiële pauzes

Destilteinmateriaalgebruikversterktdeervaingvanrusten eenvoud.Denkaaneenovergangtussensteenenhoutmet eensmalleschaduwvoeg

• gevels terugleggen, bufferzones

• overstekken, veranda’s, serres of entrees als ademzone

• ritmiek elementen met onderbreking als pauze

• openingen hoog in gevel, licht bewust laten vallen tussen constructie en nieuwe woning

• overgangen in materaal

Toepassing Ma: architectuur

Het boerenerf is van oudsher een plek waar gebouwd volume en open ruimte samen een sterk geheel vormen. In de Japanse architectuur wordt dit principe omschreven met het woord ma: betekenisvolle leegte. Het concept van ma wordt dus eigenlijk al jaren ook toegepast in de Nederlandse cultuur van het boerenerf, zonder dat we er bewust een naam aan gaven.

In dit ontwerp wordt die verhouding opnieuw vormgegeven. Het idee is om de bestaande schuurconstructies te behouden als ruimtelijk kader. Dit komt ook voort uit de waardering van de architectuur. Daarnaast zal dit ook de herinnering vormen van de bestaande architectuur en dus ook de herinnering van het erf

Binnen deze structuren ontstaan nieuwe woningen, bewust terugliggend ten opzichte van de oorspronkelijke bouwlijnen. Hierdoor ontstaat een tussenruimte — een spanningsveld.

Deze zone vervult meerdere rollen: als buffer tussen oud en nieuw, als overgang tussen binnen en buiten, als rustpunt in het geheel en als ontmoetingszone voor de bewoners.

In deze context helpt het concept om die ogenschijnlijk lege ruimte juist als essentieel onderdeel van het erf te begrijpen.

• Ruimtelijke overgangen

overgangentussenruimtesalsmomentenvanrustof vertraging.Hierdoorwordenomliggendevolumesversterkt

• Bewuste leegte

leegtemaaktderestbetekenisvoller.Hetzorgtvoorbalansen ademruimte.Ditdooropenruimtestussenzonestoetepassen

• Licht en schaduw

hetspeltussenlichtendonkeraccentueertdeleegteenmaakt dietastbaar

• Akoestische rust

stiltelastegenhangenvanfunctioneelgeluid(spraak,koken, bewegen)indevormvaneenapartezone(leeshoekof overgangsruimte)enhetgebruikvanzachtematerialen

• Ritme en herhaling

herhalingindevormvanbalken,kolommenofinmeubels geeftritme.Detussenruimteswordenonderdeelvanhetritme encreërenspanning

• smalle doorgang tussen ruimtes, nis of bufferzone, verlaagde plafonds of vloerhoogtes

• lege hoek, wand zonder kunst of kasten, open ruimte tussen functionele ruimtes

• smalle lichtbundels in lege ruimtes, schaudwlijnen door halfopen structuren

• zachte materialen, aparte zones met stilte als functie

• balkstructuren met tussenruimte, herhalingen, zitplekken langs een wand

Toepassing Ma interieur

Er zijn een paar onderdelen waarin Ma toegepast kunnen worden in het interieur. Ik wil mij vooral focussen op de volgende onderdelen:

1. ruimtelijke overgangen

Overgangen tussen ruimtes hoeven niet per se te dienen als ‘snelle doorgangen’, maar kunnen juist een moment van rust of vertraging bieden. Dit kan bijvoorbeeld door een smalle doorgang toe te passen tussen twee grotere ruimtes, een nis of bufferzone toepassen voor je een ruimte betreedt of verlaagde plafonds of vloerverhogingen die de overgang voelbaar maken. Deleegteoftussenruimteversterktdeomliggende functiesenvolumes.

2. bewuste leegte

Het bewust onbenut houden van een ruimte. Geen meubels en decoratie maar puur alleen lucht, licht en stilte. Dit kan door bijvoorbeeld een lege hoek met enkel lichtinval, een muur zonder aankleding of een open ruimte tussen twee functionele zones, zoals tussen een keuken en eetruimte. De leegte maakt de rest betekenisvoller en zorgt voor ademruimte en balans.

3. licht en schaduw

Licht kan een bepaalde plek aanraken zodat de rest in de schaduw blijft, of een smalle lichtbundel in een verder lege ruimte. Het kan ook zitten in de schaduwlijnen die ontstaan door bijvoorbeeld een lamellenstructuur. Het is eigenlijk het spel tussen licht en donker die leegte accentueert en deze daardoor tastbaar maakt.

4. akoestische rust

MA is ook stilte, een pauze in tijd. Akoestische materialen kunnen helpen bij deze stilte. Het gaat hierbij dan om de toepassing van zachte materialen en stoffen. Dit gaat vooral om de verbetering van de akoestiek. Een andere manier is het creëren van stiltezones als een leeshoek, zitnis of overgangsruimte. De stilte dient als tegenhanger van functioneel geluid (bewegen, koken, spreken)

5. ritme en herhaling

Bij de herhaling van elementen (denk bijvoorbeeld aan balken, kolommen of een ontworpen tussenscherm) hebben juist deze tussenruimtes ook betekenis. Dit zit hem eigenlijk ook al in de constructie van de schuren en het ritme in de bestaande balken van de woning. Uiteindelijk wil ik dit ook toepassen op elemten in het interieur: tussen de kozijnen of in het ontwerpen van een scheidingselement.

07a. Ontwerp landschap

Het ontwerp van het landschap kan enorm bijdragen aan de kwaliteit van het erf, de architectuur op het erf en de directe omgeving. Zoals eerder omschreven in het concept zijn er veel manieren om het concept toe te passen op het landschap. Hierin focus ik mij vooral op de spanning tussen leegte en massa, oud en nieuw, structuur en invulling. De bestaande kwaliteit van het agrarische landschap in Nederland biedt een goede basis en goed uitgangspunt om op verder te ontwerpen.

In het landschapsontwerp rondom het erf wil ik mij vooral gaan focussen op het creëren van spanningzones, zichtlijnen, pauzemomenten in het landschap in de vorm van open ruimtes of fysieke rustpunten, de grens tussen verhard en groen, collectief en privé en vooral het versterken, vergroenen en verbeteren van het bestaande landschappelijke erf.

verhardingweilanderf

bestaande houtwallen

Kruishaarweg
Kruishaarweg
voortuin erf (visitekaartje boer)
entree weiland vanaf erf
hoofdontsluiting

Het bestaande landschap

• houtwallen rondom en in weiland

• op het erf weinig groen (behalve in voortuin)

• Veel verharding, voornamelijk verschillende klinkers

• bebouwing geplaatst rondom soort binnenplein (hier wordt ook geparkeerd)

• Naast bebouwing vri j kaal, weinig tot geen natuurlijke beschutting (in de vorm van hagen of bomen) hierdoor weinig schaduw

• oude koeienstal direct gelegen aan weiland

• buren vrij dichtbij gelegen

bestaande houtwallen

VERHARD TERREIN EN WERKTERREIN

Kruishaarweg opslag buiten gevogelte weide bebouwing verhard erf water

GROEN OMGEVING

Kruishaarweg gras bomen heester bebouwing water

Kruishaarweg
Kruishaarweg

verhard erf

groene omgeving

Op de beelden hiernaast wordt duidelijk dat het er op het erf zelf weinig groen te vinden is en veel bestrating.

Daartegenover staat dat de omgeving buiten het erf juist groen is. Doorkijkjes op het erf werpen een blik op de ‘groene buitenwereld’. Om een aangename woonplek te creëren is het goed om ook meer groen op het erf te introduceren.

openingen volledige sloop kenmerkende bomen transitiezone tussen erf en weiland/weg nieuwe zichtlijnen

Kruishaarweg
Kruishaarweg

Ingrepen

kansen

• erfintiemermaken,maarmetmeerrelatie metomgeving,hierdoorleefbaardereenfijne plekomtewonen

• vriendelijketransitiegrenzen:groenmeerin erftrekken

• behoefteaanhogergroen(t.b.v.schaduwen geborgenplekken)

• meerzichtlijnennaaromgeving,zonder geborgenheidaantetasten

Mogelijkheden functie weiland -ruilverkaveling/verkopen/verhuren -voedselbos -teruggevenaangemeente -boomgaard/pluktuin -wandelroute

bestaande situatie

Kruishaarweg
Kruishaarweg
Kruishaarweg
Kruishaarweg

bestaande situatie

nieuwe situatie

toevoegen bomengroep

toevoegen bomengroep

achtertuinen bewust leeg laten, verbinding weiland

bomengroep sluit erf af en geeft doorkijk behoud verharde hoofdontsluiting, duidelijke overgang verhard en zacht

toevoegen fruitbomen (pluktuin omgeving)

toevoegen van een kas, collectiviteit bewoners connectie met boer

toevoegen bomenrij, biedt zichtlijnen

achtertuinen bewust leeg laten, verbinding weiland

uitbreiden houtwallen, geeft extra doorkijk wandelpad toevoegen richting Oude Deventerweg behoud parkeren op het erf toevoegen van een moestuin, collectiviteit bewoners connectie met boer

07b. architectuur

Op het gebied van architectuur wil ik mij vooral gaan focussen op het creëren van spanningzones en zichtlijnen. Eerder heb ik waarde toegekend aan de bestaande architectuur op het erf. Als conclusie kwam eruit dat bij de meeste schuren voornamelijk de constructie behouden blijft. Deze open constructie biedt kansen om de open ruimte ertussen weer nieuwe invulling te geven. Door het concept Ma toe te passen ontstaat er op welke manier je ook invulling geeft een nieuw spanningsveld tussen verleden en heden binnen de bestaande constructie en de nieuwe toevoeging.

Deze ruimte vervult verschillende functies: het is een scheiding tussen oud en nieuw, een overgangszone van binnen naar buiten, een plek voor rust én een ontmoetingsplek voor bewoner

Op deze manier nodigt het ontwerp uit om de open ruimte niet als leegte te zien, maar juist als een wezenlijk onderdeel van het erf en zijn geschiedenis.

nieuwe bebouwing

progamma & functies

privé vs openbaar

privé collectief

programma

Privé woningen eenpersoonshuishoudens collectief sportruimte bergingen woningen postvakken energiehuisje/wasruimte woning boer logeerkamers gemeenschappelijke ruimte - keuken - woonkamer

‘privé’ zone woning collectief tussenruimte/verkeersruimte bufferzone

privé collectief openbaar

BESTAANDE CONSTRUCTIE BEHOUDEN

DAK VERVANGEN
NIEUWE MASSA TOEVOEGEN

eindeloze mogelijkheden

Door de bestaande constructie te behouden ontstaat er binnen het grid van de constructie een enorm breed scala aan mogelijkheden aan nieuwe invullingen.

Hierdoor kan je kiezen voor terugliggende gevels, rug-aan-rug woningen, een gecentreerde bebouwing, ander type ontsluiting d.m.v. bijvoorbeeld een hofje of plein en nog veel meer.

De stramienen van de constructie vormt een belangrijke peiler voor het ritme in de in te vullen architectuur en uiteindelijk ook de plattegronden.

Hiernaast een aantal mogelijkheden.

bouwprincipe

ontstaan nieuwe ruimtes

kansen creëren voor bv. ontmoeting

“leegte vol mogelijkheden”

ontstaan bufferzone

‘voortuinen’ en erf gaan vloeiend over in elkaar

hergebruik gierkuilen

kansen creëren voor duurzame oplossingen door bijvoorbeeld het water op te vangen en hergebruiken (bv toilet)

bestaande constructie (en vorm) behouden behoudt herinnering erf

dak opnieuw bekleden(waterdicht)

bv. verzinkte golfplaat of polycarbonaatplaat (voor lichttoetreding)

ontstaan nieuwe ruimtes

kansen creëren voor ontmoeting

“leegte vol mogelijkheden”

ontstaan bufferzone achtertuinen gaan over in weiland

op zichzelf staand geïsoleerd prefab bouwerk toevoegen

HSB

kleuren en materialen

Om het karakter en de herinnering van het erf te behouden zou ik graag bepaalde elementen terug laten komen of herintroduceren. Zoals het terugbrengen van een dakplaat, typerende kozijnen, gevelstructuren, kleuren en materialen, etc.

Betongevelsteen als gevelmateriaal en de groene verticale platen terug laten komen in de vorm van houten latten

De bestaande spanten hebben rode kleur door de menie afwerking. Doordat er meer groen geintroduceerd wordt op het erf, vond ik dit een te groot contrast opleveren (groen complementair aan rood) ook met het idee dat de constructie zihtbaar gaat worden in het ontwerp. Daarom heb ik ervoor gekozen om de groene kleur door te zetten die karakteristiek is voor het erf.

Terug laten komen van de bestaande kozijnen

bestaande situatieconcept

conceptnieuwe situatie

doorzicht naar Sallandse Heuvelrug tussen woning en boomgaard

bestaande situatieconcept

conceptnieuwe situatie

voorzijde berging en sportruimte

achterzijde berging en sportruimte

nieuwe situatie

overkapping: - nieuwe verzinkte dakplaat toevoegen - bestaande constructie hergebruiken

zitbank aan gevel overgangszone ontstaan spanningsveld kansen creëren voor bv. ontmoeting “betekenisvolle leegte”

natuurinclusief

nestkasten toevoegen; vleermuizen en vogels

Biobased dak, Rc > 10

- nestkasten

- EPDM, 1,5 mm

- PIR TR24, 120 mm

- dampremmende folie

- isovlas dakplaten, 265 mm - berken multiplex afwerking, 12 mm

Gevel biosbased HSB, Rc > 8

- leemstuc, 20 mm

- fermacell, 2x 12,5 mm

- HSB + thermohennep, 235 mm

- waterkerend dampopen vlies

- regelwerk thermisch gemodificeerd vuren, 2x42 mm

- planken gestoomd fraké fijn gezaagd, 18 mm

gierkelder mogelijke opslag watertank

overgangszone in woning tussen ruimtes

Gevel biosbased betonsteen, Rc > 8

- leemstuc, 20 mm

- fermacell, 2x 12,5

- HSB + thermohennep, 235 mm

- waterkerend dampopen vlies

- spou, 40 mm

- BIA betongevelsteen, 210x100x83 mm

overgangszone wonen naar landschap

voorzijde woningen kapschuur

achterzijde woningen kapschuur

doorzijk naar landschap

bestaande situatieconcept

overkapping: - nieuwe verzinkte dakplaat toevoegen - bestaande constructie hergebruiken - evt. nestkasten toevoegen; vleermuizen en vogels

constructie - bestaande constructie behouden - laten begroeien

overgangszone ontstaan spanningsveld kansen creëren voor bv. ontmoeting

“betekenisvolle leegte”

waterfilterhelofytenfilter

overgangszone water (creëert afstand tot badkamer)

natuurinclusief

- ruimte voor nestkasten tussen dak en constructie

daklicht - polycarbonaatplaat

woonruimte

overgangszone wintertuin

overgangszone wonen naar landschap

Biobased dak, Rc > 10 - nestkasten

- EPDM, 1,5 mm

- PIR TR24, 120 mm

- dampremmende folie

- isovlas dakplaten, 265 mm - berken multiplex afwerking, 12 mm

Gevel biosbased HSB, Rc > 8

- leemstuc, 20 mm

- fermacell, 2x 12,5 mm

- HSB + thermohennep, 235 mm

- waterkerend dampopen vlies

- regelwerk thermisch gemodificeerd vuren, 2x42 mm

- planken gestoomd fraké fijn gezaagd, 18 mm

Gevel biosbased betonsteen, Rc > 8

- leemstuc, 20 mm

- fermacell, 2x 12,5

- HSB + thermohennep, 235 mm

- waterkerend dampopen vlies - spou, 40 mm

- BIA betongevelsteen, 210x100x83 mm

voorzijde woningen koeienstal

achterzijde woningen koeienstal

doorzijk naar landschap

07c. interieur

Veel plattegronden gaan steeds van hetzelfde principe uit. Er wordt minder ontworpen vanuit de gebruiker, maar tegenwoordig wordt vaak een standaard plattegrond toegepast. Architectenbureau De Zwarte Hond heeft onderzoek gedaan naar woningplattegronden in hun pleidooi Out There #4. Een uitspraak van Peter Machiel Schaap in deze pleidooi over dit probleem: ‘Het is de hoogste tijd dat de plattegrond weer volwaardig onderdeel wordt van de ontwerpopgave. Bouwen is meer dan alleen een technishe opgave. Het gaat minstens zo hard om cultuur en duurzame kwaliteit.’

In dit afstudeerproject wil ik ook de plattegrond weer belangrijk maken in het ontwerp. Hierbij komt de vraag naar boven: ‘Wat is een interieur?’ Woont een eenpersoonshuishouden hetzelfde als een meerpersoonshuishouden en gebruiken zij hun interieur op dezelfde manier? Gezien het feit dat het aantal eenpersoonshuishoudens de komende jaren alleen maar toeneemt is het verstandig om de plattegronden onder de loep te nemen en te kijken naar de wensen en behoeftes om daarnaast vooral kwaliteit te behouden.

24 uur

24 uur | Wanneer voel jij je thuis?

Het is goed voor te stellen dat een woning minder gebruikt wordt door een eenpersoonshuishouden dan een meerpersoonshuishouden, gezien de kans groter is dat er altijd wel iemand thuis is in tegenstelling tot een eenpersoonshuishouden. Ik heb daarom 6 mensen gevraagd uit een eenpersoonshuishouden hoe hun gemiddelde 24 uur eruit zien. Hierdoor krijg ik een beter beeld hoe de woning gebruikt wordt en of de plattegrond zoals deze nu gebruikt wordt nog wel toekomstbestendig is.

Daarnaast heb ik dezelfde mensen ook gevraagd wanneer zij zich thuis voelen. Wat betekent thuis voor hun. Zijn dat hun spullen of is dat hun familie? Is het een stad of het dorp waar ze vandaan komen? Ik wil hierdoor vooral de prioriteiten in kaart brengen van mensen zodat dit aan kan sluiten bij hun ideale woning.

Zelf behoor ik ook tot deze doelgroep. Ik heb een paar jaar in Amsterdam gewoond en ondanks dat ik daar al mijn spullen om me heen had en een woning had, voelde ik mij er niet thuis. Uiteindelijk ben ik terugverhuisd naar de stad waar ik vandaan kwam, Zwolle, en daar voel ik mij wel thuis. Hier ligt mijn verleden, wonen mijn familie en vrienden en ben ik bekend. Voor mij is deze stad mijn thuis.

24 uur

24 uur

24 uur

Vrouw, 26 | Zwolle

16,7% thuis bezig

37,5% thuis om te slapen

45,8% niet thuis

Wat betekent thuis voor mij?

Thuis betekent voor mij een huis waar ik mij prettig voel. Een plek die je zelf gezellig hebt gemaakt met eigen spullen waar een herinnering aan zit. Thuis is een plek waar ik familie en vrienden zie, maar waar ik ook goed alleen kan zijn.

Vrouw, 26 | Hasselt

12,5% thuis bezig

34,4% thuis om te slapen

53,1% niet thuis

Wat betekent thuis voor mij?

‘thuis’ is voor mij vooral waar m’n familie is.

Vrouw, 26 | Utrecht

20,8% thuis bezig

35,4% thuis om te slapen

43,8% niet thuis

Wat betekent thuis voor mij?

Ik denk een gevoel van vertrouwen. Daar bedoel ik mee: je vertrouwde herinneringen, maar ook dat je de plek kent en je veilig voelt.

Man, 30 | Heino

14,6% thuis bezig

34,5% thuis om te slapen

50,9% niet thuis

Wat betekent thuis voor mij?

Thuis betekend voor mij een veilige omgeving

Man, 27 | Basel

10,4% thuis bezig

29,2% thuis om te slapen

60,4% niet thuis

Wat betekent thuis voor mij?

In het buitenland en op reis, is Zwitserland mijn thuis. Terwijl het ook de plek kan zijn waar ik verblijf. In wezen waar mijn bed is en ik me veilig/bewaakt voel. Op het werk of elders, het huis van mijn ouders/mijn woonplaats is voorlopig mijn thuis. Als ik eenmaal thuis ben, beschouw ik mijn kamer (mijn eigen vier muren met mijn bed en mijn persoonlijke bezittingen) als thuis. Het is mijn plaats van rust en stilte.

Man, 31 | Daarle

13,5% thuis bezig

26% thuis om te slapen

60,5% niet thuis

Wat betekent thuis voor mij?

Thuis is voor mij een plek waar je rustigbijkuntkomen en een plekje voor jezelf

gem. 33 % van de 24 h slapen

gem. 52 % van de 24 h niet thuis

gem. 15 % van de 24h functioneel thuis

klaarmaken werk ontbijten ontspanning (tv kijken)

huishouden studeren avond eten

klaarmaken bed

privé klaarmaken werk huishouden

klaarmaken bed

mogelijk collectief ontbijten ontspanning studeren avond eten functioneel thuis

de gescheiden ouderde groene vingers de zorger de gezondheidsgoeroehet feestbeest de workaholic de eenzame oudere de dierenvriend de gamer

0201030405060 70 80+

Conclusie voorstudie thuisvoelen

Ik heb een paar eenpersoonshuishoudens gevraagd wat thuisvoelen voor hun betekent. Voor velen is thuis een plek waar zij zich veilig en vertrouwd voelen. Waar ze zich kunnen terugtrekken en rust vinden. Daarnaast betekent thuis ook voor velen een plek waar hun familie is of waar vrienden in de buurt zijn.

Naast het gevoel van thuisvoelen was ik ook benieuwd naar hoe vaak een eenpersoonshuishouden nou daadwerkelijk thuis is. Om toekomstbestendige woningen te ontwerpen voor een bepaalde doelgroep is het ook belangrijk te weten wat hun behoefte is en wat er daadwerkelijk nodig is. Ik heb daarom een overzicht gemaakt en hier kwam als resultaat uit dat een gemiddeld eenpersoonshuishouden met een baan (die hadden de meesten uit mijn onderzoek)zo’n52%vande24uuropeendagnietthuiszijn.Daarnaastslapenze ook zo’n 33% (dus een derde) van deze 24 uur. Dit betekent dat je daardwerkelijk 15% van de dag functioneel thuis bent. Functies die hieronder vallen staan in het schema hiernaast. Deze functies zijn ook weer onder te verdelen in twee categorieën. Dat zijn privé en mogelijk collectief. Welke functies moet je echt thuis doen en wat kan mogelijk ook collectief gedaan worden. Nu dit inzichtelijk is geworden kan ik hier de plattegronden van de woningen op ontwerpen.

Ik heb daarnaast ook een paar persona’s bedacht die in deze woningen zouden kunnen wonen. Dit kunnen eenpersoonshuishoudens zijn van alle leeftijden.

De plattegrond van een woning zou net zo persoonlijk moeten zijn als de bewoner. Er moet daarom vrijheid zijn om de woning te gebruiken zoals de bewoner wilt. N.a.v. de referentiestudies heb ik een paar plattegronden uitgewerkt. Hierin is onderscheid gemaakt tussen friendswoningen (want ook eenpersoonshuishoudens kunnen samenwonen) en woningen voor een persoon.

een plek voor iemand die graag yoga beoefend of van huisdieren houdt. De wintertuin biedt uitkomst.

een plek voor een workaholic of iemand met groene vingers in de wintertuin

Deze woningen bestaan uit een enkel grid met 4 ruimtes. Er is een vaste ruimte (de badkamer) welke in verbinding staat met de gierkelder (helofytenfilter). Verder zijn de ruimtes vrij indeelbaar en dus flexibel. Het is ook mogelijk om bijvoorbeeld de keuken en woonkamer samen te voegen en de wand hier weg te halen.

slaapkamer aan voorzijde

slaapkamer aan achterzijde

Bij een friendswoning heb je opties nodig om de woning vrij in te delen. Hiernaast zijn twee varianten uitgewerkt in een plattegrond met een gridstructuur. Dit bied vrijheid aan de bewoner om de woning in te delen zoals ze willen passend bij de behoefte.

twee ouderen wonen samen

een alleenstaande ouder die af en toe een kind te logeren heeft

ELEMENTEN INTERIEUR

WANDBANK

wandbak gaat functioneel door hele woning

STERRENDAK

betekenisvolle leegt: hoogte geeft extra waarde aan daklicht

VASTE KERN

badkamer, slaapkamer, keuken en meterkast regenwaterwordthergebruiktintoilet

WINTERTUIN

spanningsveld tussen wonen en buiten

VASTE KERN

badkamer, slaapkamer, keuken en meterkast

VENSTERBANK

bank loopt door naar buiten

ruimtevoorinteractie

VERBONDEN WERKRUIMTE spanningsveld tussen wonen en buiten

SAMEN ETEN

bank loopt door naar buiten ruimtevoorinteractie

Afsluitend zou ik graag iets meer inzoomen op wat er nodig is om dit project werkbaar en plausibel te maken. Op de volgende pagina wordt daar iets meer op ingezoomd.

08. Haalbaarheidsonderzoek

Hoe werkt het?

Waar moet aan gedacht worden bij de uitvoering van dit project? Wie wordt de eigenaar van het erf en wat is er nodig om het duurzaam te maken en goedkoop?

• medewerking gemeente is vereist:

- het erf maakt een waardesprong (grondwaarde): van argrarische (bedrijfs) bestemming naar woonbestemming

• De beste vorm in dit geval is een wooncoörporatie (eigenaarschap). Zij verhuurt aan de bewoners, en is zelf verantwoordelijk. Voordelen hiervan zijn:

- langere investeringstermijn

- waarde blijft hetzelfde, dus je kan het goedkoop blijven aanbieden

- inzet VVE

- inkoopvoordeel (1 aannemer, schaalvoordeel, kwaliteit waarborgen)

- subsidies (10% belastingvoordeel als nieuwe eigenaar transformeert) per gemeente uitzoeken

• er is een mogelijkheid dat de boer op het erf bijft wonen. Dit betekent vooral dat er iets minder ruimte is voor andere voorzieningen. Tegelijkertijd geeft dit sympathie naar de boer toe en de boer heeft genoeg kennis om mensen op het erf dingen te leren van het boerenleven. Zij kunnen eventueel samen een voedselbos of B&B opzetten.

• deelconcept op het erf toepassen:

- mobiliteit (deelauto’s en deelfietsen)

- middelen delen (wasmachines, schoonmaakspullen, sportvoorzieningen, etc.)

• externe voorzieningen

- (logeer)kamers verhuren

- voedselbos/pluktuin introduceren (boomgaard/moestuin)

- wandelroute (drinkpunt)

Antwoord op ontwerpvraag

Op welke manier kan een nieuwe, toekomstbestendige woningtypologie voor eenpersoonshuishoudens op het platteland bijdragen aan het vergoten van de leefbaarheid in de dorpen en de herinnering van het erf behouden?

Het revitaliseren van leegstaande erven tot passende woningen die de herinnering van het erf behouden biedt het groeiende aantal eenpersoonshuishoudens mogelijkheden tot betaalbaar en toekomstbestendig wonen.

Door te kijken naar bestaande kwaliteiten in de architectuur en het landschap en deze te versterken wordt de kwaliteit van het erf verbeterd en blijft de herinnering van het erf behouden.

Door de (terug)komst van mensen in de dorpen doordat er nieuwe woningen ontstaan en het toevoegen van voorzieningen rondom deze woningen wordt de leefbaarheid in het dorp en de waarde van het erf vergroot.

Handleiding (toolbox) voor de toekomst

In de toekomst zou elk erf getransformeert kunnen worden. Om het werkbaar te kunnen maken moeten er eerst een paar stappen genomen worden:

• onderzoek locatie dorp (voorzieningen, behoeften, etc)

• omgevingsanalyse (kwaliteiten-, regels-, waarden- van het landschap)

• erf analyse

- waarde landschap

- waarde architectuur

• uitvoering: boer blijft of het erf wonen of niet. Welke voorzieningen kunnen toegevoegd worden t.b.v. het erf, de boer en de omgeving.

• toepassing concept: betekenisvolle leegte (spanningsvelden creëren)

Emmy Jansen

studioJNSN@outlook.com

Master architectuur

Academie van Bouwkunst

Amsterdamse hogeschool voor de kunsten

25-06-2025

Tekeningen/afbeeldingen/foto’s

Emmy Jansen (tenzij anders vermeld)

tekst:

Emmy Jansen (tenzij geciteerd)

© Copyright Emmy Jansen 2025

Alle rechten voorbehouden. Niets uit deze uitgave mag wordenverveelvoudigd,opegslagenineengeautomatiseerd gegevensbestand of openbaar worden gemaakt in enige vorm of op enige wijze, zonder voorafgaande schriftelijke toestemmingvandeauteur.

Dankwoord

Op deze laatste pagina wil ik graag iedereen bedanken die mij heeft geholpen met mijn afstudeerproject en tijdens mijn academieperiode. Dit waren geen makkelijke jaren.

Ik wil vooral mijn ouders en zusje ontzettend bedanken voor al hun hulp, liefde, doorzettingsvermogen en steun de afgelopen jaren. Zonder hun had ik het niet gekund.

Daarnaast ook al mijn vrienden en (oud)collega’s die mij geholpen hebben met sparren, maquettes maken, mentale ondersteuning, etc.

Alle werkgevers waar ik voor heb gewerkt de afgelopen jaren tijdens de academie en alles wat zij mij geleerd hebben.

En alle externen die mij hebben geholpen met input en informatie voor mijn afstuderen.

Voor mijn afstudeerproject wil ik graag in het bijzonder nog bedanken:

Mijn mentor, Bart van der Salm, voor alle sparsessies en mentale ondersteuning. Zonder jou was dit project niet geworden wat het nu is.

Mijn commissie voor hun hulp en tijd, ook buiten de CIE’s:

Karin Peeters

Wouter Loomans

De bewoners van Haarle die zo gastvrij waren mij te ontvangen op hun erf en in hun huis, met in het bijzonder Henk en Diny Albers (bewoners Kruishaarweg 2, Haarle).

Bijlagen

ìIk weet niet wat ik wil met mijn erf?î

1 gesprek

• verkennend gesprek met de erfcoach van de gemeente over een toekomst voor het erf

• bedrijf: stoppen of ontwikkelen

• gebouwen: sloop of nieuwe func�e(s)

• asbestsanering, duurzame energie, e.d.

• erfcoach begeleidt ook op het persoonlijke vlak: (zorgen over) financiën, omscholing, toekomstperspec�ef

1 gesprek

• verkennend gesprek met aanspreekpunt bij de gemeente

ìIk

heb al

een idee/droom.î

• gemeente gee� aan wat kan, wat moet, en wat vervolgstappen zijn

samen met erfcoach aan de slag

• checken bij gemeente: beleid(sthema’s), subsidiemogelijkheden

• alle op�es op de rij ze�en

• keuze(s) maken die passen bij erf én eigenaar

• zo nodig doorverwijzing naar aanvullend advies

• toets op financiële haalbaarheid

• informeren van omgeving

• een Plan van Aanpak opstellen

zelf aan de slag

• gemeente gee� lokale thema’s mee

• ini�a�efnemer betrekt omgeving bij ontwerp

• ini�a�efnemer laat financiële haalbaarheid toetsen

• ini�a�efnemer betrekt omgeving bij ontwerp

• ini�a�efnemer maakt eerste schets

wie nodig:

financieel, ruimtelijk adviseur, één aanspreekpunt binnen gemeente

2 principe

• ini�a�efnemer legt schets het erf aan

• gemeente voert beleidsanalyse

• samen balans opmaken

wie nodig: architect, bouwkundig adviesbureau

bouwplan uitwerken

• ini�a�efnemer stelt samen met architect sloop- & bouwplan op

• ini�a�efnemer doet sloopmelding

• ini�a�efnemer vraagt omgevingsvergunning aan

3 bestemmingsplanwijziging

• gemeente in ac�e

• plan komt ter visie

• gemeenteraad neemt een besluit

4 omgevingsver

• gemeente in

• vergunningsaanvraag

principeverzoek

schets of Plan van Aanpak voor gemeente voor beleidsanalyse op schets/PvA uit opmaken (ruimtelijke kwaliteit)

idee uitwerken

• ini�a�efnemer levert (in overleg met gemeente) water-, bodem-, geluids-, planschade onderzoeken aan

• ini�a�efnemer maakt beeldend inrich�ngsplan en werkt ruimtelijke kwaliteit ‘robuust’ uit

• ini�a�efnemer vraagt bestemmingsplanwijziging aan

wie nodig:

ervenconsulent, architect, of landschapsarchitect

Buitenkansen Overijssel

Stappenplan van idee tot realisatie.

De website Buitenkansen

Overijssel is opgericht voor mensen die met de rood voor rood-regeling aan de slag gaan om ze op weg te helpen en inzicht te geven in het proces dat ze tegemoet gaan.

jaar

vingsvergunning

5 slopen bouwen

aanplanten en inrichten

jaar

Voorzieningen

• wasserette

Hetteamvan KwartvoorRegioZwolle heeftzittenbrainstormenwelkefuncties een woongebouw voor eenpersoonshuishoudens zou moeten hebben. Dit zijn samengevoegd de resultaten van de verschillende teams.

• sportschool/bootcamp/fitness

• flexwerkplek (gedeeld/stilte)

• gedeelde multi-functionele ruimte (muziek,poolen,darten,gamen)

• kookstudio (inclusitef bestek etc.)/ buitenkeuken

• bioscoop

• (binnen)tuin/dakterras (moestuin)/ eigen buitenruimte (balkon)

• opslagruimte

• logeerruimte

• gedeelde apparaten/schoonmaak faciliteiten

• plek voor dieren

• wellness

• deelauto + deelfiets

• horeca voorzieningen (ook voor publiek)

• fysio/huisarts

• hobbyruimte of -schuur

• huismeester

Huis

• badkamer en apart toilet

• keuken

• slaapruimte apart (bedstee)

• flexibele werkplek

Sociale interactie

• app-hulpvraag voor bv zorg > huisdieren en planten

• periodieke activiteiten organiseren door vereniging

• taken verdelen

• meebeslissen/stemmen nieuwe huurders

• creditsysteem voor huren van voorzieningen d.m.v. een gezamenlijke app:

- klusjes gezamenlijke ruimte

- bijbetalen

- klusjes voor elkaar

• reserveren van ruimtes

Sociale cohesie creëren

In voorgaande voorbeelden kwam het vaak naar voren dat de verschillende woningtypologiën steeds vaker ook gefocust zijn op het creëren van sociale cohesie. Zo zijn in de plinten van de woongebouwen vaak diverse functies toegepast als een gezamenlijke multi-functionele ruimte, horecavoorzieningen, flex-werkruimtes of het inrichten van gezamenlijke buitenruimtes. Om individualisering onder eenpersoonshuishoudens tegen te gaan in een woongebouw bieden dit soort voorzieningen een uitkomst.

IkwerduitgenodigddooreengroepjongerenuitZwolle(kwartvoorregioZwolle), die werken aan de toekomst van deze stad, om een presentatie te geven over de ontwikkelingen rond eenpersoonshuishoudens en de toekomstige woningen. Samen hebben we een brainstormsessie gehad om te zien hoe zij de ideale woonsituatie voor eenpersoonshuishoudens voor zich zien.

Opvallend is vooral de bereidheid om veel te delen met elkaar. Ook opvallend was de keuze om verschillende functies waar je normaal voor zou reizen zoals een sportschool, bioscoop, wellness, dierenruimte, etcetera in hun woongebouw toe te voegen. Ze hebben dit geprobeert vorm te geven door te hun ideeën uit te werken met Lego en Sims.

De groep van kwart voor regio Zwolle ziet de connectie om de sociale cohesie tussen de eenpersoonshuishouden te verbeteren door dit soort functies dichter bij huis te brengen. Is dit de oplossing nu we meer naar een individuelere samenleving gaan? Het creëren van een soort kleinschalige Utopia’s, verdeeld over de steden waar alles meer regionaal geregeld wordt? Deze concepten zijn interessant, maar zijn ze ook te vertalen naar een woonconcept in een dorp?

Turn static files into dynamic content formats.

Create a flipbook
Issuu converts static files into: digital portfolios, online yearbooks, online catalogs, digital photo albums and more. Sign up and create your flipbook.