Verdwalen
afdwalen, de weg kwijtraken, desoriënteren, mislopen, verdolen 3 werkw.
gedesoriënteerd zijn in plaats en tijd 1
desoriëntatie: begrijpen van ruimtelijke organisatie en wayfindning is een uitdaging 2
moeite met zelf lokalizeren; waar ga ik heen? 2
1 (Feddersen & Lüdtke, 2014)
2 (JUDMH - Wayfinding And Urban Design From The Perspective Of People Living With Dementia, z.d.)
3 (Verdwalen - 5 Definities - Encyclo, z.d.)
De belevingswereld en problematiek
De ziekte dementie veroorzaakt een verandering in onze perceptie en informatie verwerking van de wereld om ons heen. De ziekte wordt gekenmerkt door vier fases, waarbij de wereld van een persoon met dementie steeds kleiner wordt (Interzorg, z.d.).
In de beginfase ontstaat er vrijwel alleen nog verwarring door het korte termijn geheugen, ook ontstaat er verwarring in plaats en tijd. Verder functioneert men zowel fysiek als mentaal goed. Dit neemt met de fases steeds verder af. Langzamerhand wordt men steeds hulpbehoevender, herinneringen verdwijnen, emoties kunnen minder goed of niet meer worden geuit en bekenden worden niet meer herkend. Zintuigen spelen een steeds essentiëlere rol in het begrijpen en beleven van de wereld om men heen.
Door de verwarring kan men zowel fysiek als mentaal verdwalen. Men raakt gedesoriënteerd in plaats en tijd. Dit speelt een belangrijke rol in het welzijn van de persoon met dementie, want het verdwalen zorgt voor frustraties en onrust.
Hoe de fases van dementie zich ontwikkelen in herinneringen, gedrag, oriëntatie en gedachten heb ik uitgesplitst aan de hand van het boek Hersenschimmen van J. Bernlef (1984). Hierin worden de gedachten en belevingswereld van de hoofdpersoon Maarten, die lijdt aan de ziekte dementie, door alle fases heen nauwkeurig beschreven.
Fase 1 voorstadium | bedreigde ik
In de eerste fase zijn er nog weinig veranderingen. Dementie kan worden opgemerkt door de aantasting van het kortetermijngeheugen. Er ontstaat vergeetachtigheid en verwarring in plaats en tijd, bijvoorbeeld midden in de nacht aan de keukentafel zitten.
Herinneringen van vroeger worden steeds vaker getriggerd door bekende objecten. Herinneringen dwalen af in gedachten en worden steeds vaker door de war gehaald. Een trigger van een herinnering kan maar zo zorgen voor afleiding tijdens een wandeling, waardoor men verdwaalt.
Tijdens een bekende wandeling wordt de wereld om men heen opgenomen. Alles maakt nog steeds indruk, zoals de verschillende soorten huizen, de beelden en de haven. Het bos, grindpad en de verranda zijn de bekende weg naar huis.
gedrag orientatie gedachten
verwarring in plaats en herinnering huis lijkt groter triggers herinneringen
Fase 2 beginstadium | verdwaalde ik
In de tweede fase ontstaan steeds meer waanbeelden en verwarring in tijd. Herinneringen moeten worden geordend, want die worden door elkaar gehaald. Er komen steeds meer herinneringen boven van de ouders en de kindertijd.
De meubels in de ruimte vertellen niet zo veel. Er staat een bed, dus dit is een slaapkamer. De piano van de pianolessen als kind vroeger wel!
Er ontstaat steeds meer oog voor detail, langzame beelden, sneeuwvlokken en houtnerven. Zijn partner wordt herkend aan haar stemgeluid.
Tijdens een bekende wandeling spelen de zintuigen een belangrijke rol in de herinnering en herkenning van de weg: de mossige geur van het bos, het geknars van het schelpenpad, de wind door het gras en de puntkap van het grijze huis.
gedrag orientatie gedachten waanbeelden in tijd en herinnering meubels in slaapkamer zeggen niets herinneringen ordenen persoon herkennen door stem
Fase 3 middenstadium | verborgen ik
In de derde fase raakt men steeds meer verzonken in gedachten. Er is geen besef van tijd of de wereld om men heen. Waar ben ik?
In huis gaat men van ruimte naar ruimte. Deur één, deur twee... bureau van papa!
In de herinneringen staan beelden van de ouders en de kindertijd centraal.
Men reageert voornamelijk op beweging en geluid. Routines bepalen de tijd van de dag. Omkleden en naar bed betekent dat het avond is. Wakker worden betekent dat het ochtend is. Wanneer dit niet op de passende momenten in de dag plaatst vindt, veroorzaakt dit nog meer verwarring.
Tijdens een wandeling roepen de prikkeling van zintuigen herinneringen en herkenningspunten op: de houten veranda, geknars van het schelpenpad en zoute lucht van de zee.
gedrag orientatie gedachten
verzonken in gedachten geen besef van wereld eromheen
van ruimte naar ruimte herkenning papa’s bureau!
omkleden + naar bed = avond wakker worden = ochtend reageren op geluid
Fase 4 eindstadium | verzonken ik
In de laatste fase is men compleet verzonken en herkent zichzelf in de spiegel zelfs niet meer. Men is verdwenen en reageert alleen op prikkels vanuit de omgeving, zoals bewegende stofjes in het licht, muziek en dansende mensen, vallende vlokken sneeuw en pijn door knijpen.
De ruimte vertelt niets meer. Betegelde ruimte... stoom... hoeveel deuren door...?
Tijdens een wandeling wordt men geleid door de zintuigen die de herinneringen en herkenningspunten triggeren...
mos geur van het bos, zoute lucht zee, wind door het gras, geknars van het schelpenpad, houten veranda... thuis?
... ook al is het niet de juiste route en raakt men verdwaald in het verkeerde huis. De zintuigelijke ervaring van de paden komt overeen, maar leiden niet naar huis.
gedrag
zichzelf niet herkennen verdwenen in gedachten
orientatie
gedachten
deuren door... hoeveel? betegelde ruimte...? hout = houvast reageren op geluid, licht, gevoel zintuigen
Herkenning en gedrag door prikkels
Uit het boek Hersenschimmen blijkt dat zintuigen door de fases heen steeds essentiëler worden, met name met betrekking tot het triggeren van herinneringen (Bernlef, 1984). Tot aan de laatste fase “herkent” Maarten, de hoofdpersoon, de weg naar huis door de bekende geluiden, geuren en bewegingen op het pad.
Prikkels triggeren niet alleen herinneren, maar ook gedrag van mensen met dementie. Het gedrag en gemoedstoestand kan op meerdere manier beïnvloed worden, waarbij de architectuur en inrichting van de fysieke omgeving een belangrijke rol speelt (Van Steenwinkel et al., 2012). Daarnaast spelen ook de dagindeling, de tijdsbesteding en de interactie een belangrijke rol. Bij een onjuiste dosering van prikkels, ontstaat onrust.
Bij dementie komt zowel onder- als overprikkeling voor (Van Der Plaats, z.d.). Beide veroorzaken onrust om hun eigen manier. Wanneer een persoon met dementie te weinig zintuigelijke prikkels te verwerken krijgt, bijvoorbeeld in een stille en lege ruimte, gaat men zelf prikkels maken door middel van lopen of roepen. Wanneer er te veel prikkels in een ruimte zijn, bijvoorbeeld onrustige medebewoners, geluid van de TV en geluiden van koken, dan veroorzaakt het onrust en frustraties. De omgeving, het gebouw, de hulpverleners en inrichting, veroorzaakt de gedragsproblemen. Mensen met dementie kunnen emoties, zoals onrust en frustraties, niet goed doseren en bedwingen. Deze worden, door zowel onder- als overprikkeling, geuit als impuls.
Prikkels zijn te verdelen in dynamische- en statische prikkels. Statische prikkels worden verwerkt door het rationeel denkende brein en zijn voor mensen met dementie moeilijker te verwerken. Statische prikkels zijn stilstaande en geruisloze beelden en objecten. Dynamische prikkels worden beter opgenomen door het brein. Dynamische prikkels zijn geluiden, geuren en alles wat beweegt, ook wel zintuigelijke prikkels.
In een gunstige omgeving ziet men minder ziekte verschijnselen. Een gunstige omgeving houdt in; een dosering aan prikkels, een veilige en geborgen plek, langzame bewegende beelden (dynamische prikkels), geen dwang, herkenbaar, dynamische prikkels passend bij de activiteit of moment op de dag, zelfstandigheid door heldere bewegwijzering en wandeling in de natuur.
Structuur, ritme en regelmaat
Ondanks dat de ziekte dementie zich typeert met verdwalen en desoriëntatie blijken er mogelijkheden te zijn om de bewoner met dementie zo lang mogelijk zelfstandigheid en kwaliteit van leven te bieden. Door in de vroege fase van de ziekte iedere keer dezelfde route te lopen en herkenningspunten te leren, worden deze nog lang in het ziekte proces herkend (JUDMH, z.d.). Dit biedt de zelfstandigheid om een rondje te kunnen lopen en verkleint de kans op verdwalen. Structuur, ritme en regelmaat geeft ruimte aan zelfstandigheid en eigenaarschap van de bewoner met dementie. Dit draagt, in gevolg, bij aan de zelfverzekerdheid en mentaal welzijn.
Onderzoek
Onderzoek
Wat is de schaal van een zorgomgeving voor bewoners met dementie? Welke type woningen zijn er reeds gerealiseerd? Wat is de verhouding van gedeelde ruimte tegenover privé ruimte? Welke functies zitten er onder het dak van het zorgcentrum? Tot waar is de vrijheid van de bewoners met dementie? Hoe wordt het toezicht georganiseerd? Wat is een comfortabele en overzichtelijke schaal voor de tuin? Hoe maak je twee verschillende belevingswerelden in een tuin?
Hierboven staan een aantal vragen, waarop ik referentieprojecten heb geanalyseerd. De conclusies vormen een onderbouwing en uitgangspunten voor het ontwerp.
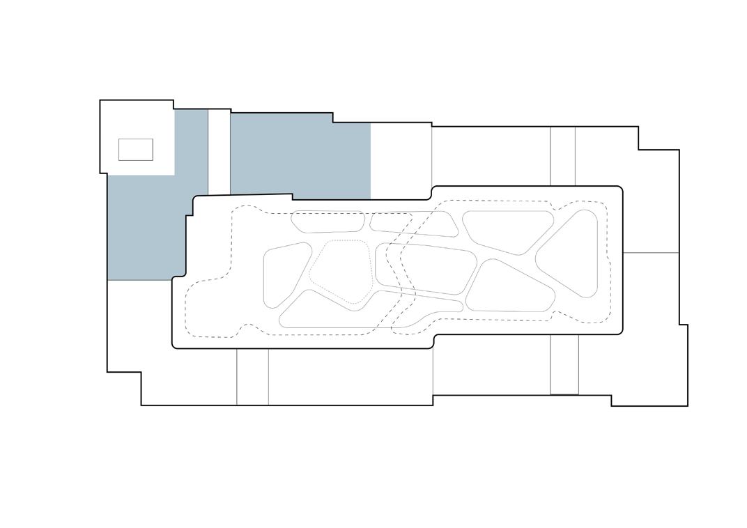
Almhouse Londen, Engeland
Oneindige gang
4 stijgpunten - einde van de gang
Type zorg: 24-uurs zorg in individuele zelfstandige woningen. in de stad. De bewoners hebben binnen het zorgcentrum alle vrijheid om te dwalen. De grens van vrijheid ligt bij de centrale entree. Aan de entree is een gezamelijke functie gekoppeld voor toezicht.
Aatal woningen: ca. 45 2-kamer appartementen 90 bewoners
Gedeelde functies per zorgafdeling of woongroep: - geen
Gemeenschappelijke functies: - café - kookschool - ambachtsruimte
Verhouding tussen gedeeld en privaat: 10/90
Ontwerp door Witherford Watson Mann Architects (Santos, 2024)
Situatie: waar ligt de grens tussen zorgomgeving en buitenwereld?
Ontsluiting en toezicht
Ontmoetingsruimte
Buitenruimte
Booghuys, België
Kern met vleugels
2 stijgpunten - 2 woongroepen (per verdieping)
Type zorg:
24-uurs zorgcentrum met woongroepen in de stad. De bewoners hebben de vrijheid om rond te lopen in de binnentuin van het zorgcentrum en het grote bouwblok. Hier is toezicht van buurtbewoners. Aan de entree van het zorgcentrum is een gemeenschappelijke functie gekoppeld, zodat er altijd toezicht is op de straat. Mochten de bewoners met dementie toch verdwalen, dan zijn zij terug te vinden met GPS trackers.
Aatal woningen:
27 1-kamer appartementen 3 woongroepen per woongroep 9 bewoners
Gedeelde functies per zorgafdeling of woongroep: - woonkamer - keuken
Gemeenschappelijke functies: - kapper - cafetaria
Verhouding tussen gedeeld en privaat: 30/70
Ontwerp door Archipelago (Kleinschalig Wonen en Zorgen in het Hart van de Stad, z.d.)
Situatie: waar ligt de grens tussen zorgomgeving en buitenwereld?
Ontsluiting en toezicht
Ontmoetingsruimte
Buitenruimte
Dorp van plein naar plein - 4 woongroepen
Type zorg:
24-uurs zorgcentrum in een woongemeenschap ontworpen als klein dorp. De bewoners hebben alle vrijheid om door het dorp te wandelen. De grens tussen het dorp en de openbare ruimte ligt bij de centrale entree. De centrale entree is gekoppeld aan gezamelijke functies, waardoor er toezicht is op de bewoners.
Aatal woningen:
30 1-kamer appartementen 4 clusters van 3 woongroepen ca. 6 bewoners per woongroep
Gedeelde functies per zorgafdeling of woongroep:
- woonkamer - keuken
Gemeenschappelijke functies:
- kapper
- cafetaria
- winkels
- muziek
- theater
Verhouding tussen gedeeld en privaat: 50/50
Alzheimer Village Dax, Frankrijk
Ontwerp door NORD Architects (Pintos, 2024)
Situatie: waar ligt de grens tussen zorgomgeving en buitenwereld?
Ontsluiting
Ontmoetingsruimte
Buitenruimte
Huis Perrekes, België
Woonhuis wonen en slapen gescheiden
Type zorg:
24-uurs zorg in een zorgomgeving ingericht als woonhuis. In deze zorgomgeving wordt het “normale” leven zo veel als mogelijk in stand gehouden. Bewoners helpen mee in het huishouden en alledaagse bezigheden. De bewoners hebben alle bewegingsvrijheid in de grote tuin.
Aatal woningen:
10 1-kamer appartementen 2 2-kamer appartementen 15 bewoners
Gedeelde functies per zorgafdeling of woongroep: - woonkamer - keuken - eetkamer - tuinkamer
- badkamer - muziekkapel
Gemeenschappelijke functies: - n.v.t.
Verhouding tussen gedeeld en privaat: 50/50
Ontwerp door NU architectuur atelier (Huis Perrekes, z.d.)
Situatie: waar ligt de grens tussen zorgomgeving en buitenwereld?
Ontsluiting toezicht
Ontmoetingsruimte
Buitenruimte
Conclusie typologieonderzoek
woonvormen
In het analyseren van alle typologiën zijn de woonvormen terug te brengen tot 3 varianten: zelfstandige appartementen, woongroepen met gedeelde huiskamers en woongroepen met grote gedeelde ruimte en een kleine privé slaapkamer.
verhouding gedeelde ruimte tot privé ruimte
De woonvorm staat in directe relatie met de verhouding gedeelde ruimte ten opzichte van privé ruimte. Waar veel gedeelde ruimte in het project wordt gerealiseerd, wordt ingeleverd op privé ruimte. Waar de privé ruimte groter is , is minder gedeelde ruimte aanwezig.
vrijheid en opendeurenbeleid in de stad
Het project Booghuys is een uitstekend voorbeeld van vrijheid voor bewoners met dementie in de stad. In dit project zijn geen gesloten deuren aanwezig. De bewoners hebben alle vrijheid, ook al ligt het zorgcentrum in het centrum van Leuven. Door meerdere lagen van sociale controle in het ontwerp mee te nemen (toezicht in de binnentuin, toezicht bij de centrale entree en toezicht op de straat), vermindert de kans op het verdwalen van de bewoners. Daarbij kan als extra verzekering een GPS-tracker worden gebruikt om de bewoners met dementie terug te vinden, mochten ze toch ongezien de benen hebben genomen.
Slatuinen, Amsterdam West
wilderige binnentuin oase van rust in de stad
Functie:
De slatuinen is een rust oase in de stad, waar educatie centraal staat. De tuin functioneert ook als schooltuin, waar kinderen kunnen leren over de natuur in de stad. Door de dichte begroeiiing en korte zichtlijnen is de route door de tuin een spannende ontdekkingstocht.
Belendende bebouwing: 5 bouwlagen
Aatal woningen: niet bekend
Spaarndammerhart, Amsterdam West
gezamelijke binnentuin rust en overzicht
Functie:
Het Spaarndammerhart is een binnentuin die wordt ontsloten door 3 poorten. De poorten zijn vriendelijk en uitnodigend, door de ruime maat, doorlopende pad en overzicht. Rondom de binnentuin bevinden zich de voordeuren van woningen. De tuin is overzichtelijk in zijn maat.
Belendende bebouwing: 5 / 3 bouwlagen
Aatal woningen: 78
Ontwerp door Korthtielens en Marcel Lok Architecten.
Buitenplaats Doornburgh
bloeiende kloostertuin rust en bezinning
Functie:
De binnentuin van het klooster wordt omsloten door een helder gestructureerde omloop. De tuin is gecentreerd rondom één boom, die de seizoenen van het jaar presenteert. De rest van de tuin is verdeeld in heldere vlakken en bloeiende beplanting. De tuin is overzichtelijk door de doorlopende zichtlijnen.
Belendende bebouwing: 1 / 2 bouwlagen
Aatal woningen: n.v.t.
Ontwerp door Dom Hans van der Laan en Jan de Jong.
Morland Mixite Capitale, Parijs (FR)
verassende ontdekkingstuin in de stad beschutting en rust
Functie:
De binnentuin van het Morland Mixite Capitale is een verassende binnentuin in het centrum van Parijs. Door het dichte beplantingsplan en de korte zichtlijnen, biedt de tuin beschutting en rust.
Belendende bebouwing: 6+ bouwlagen
Aatal woningen: n.v.t.
Ontwerp door David Chipperfield (Morland Mixité Capitale, z.d.)
Conclusie binnentuin
maat en schaal
De maat en schaal van de binnentuinen in het Spaarndammerhart en in de buitenplaat Doornburgh zijn overzichtelijk. Vanaf alle punten in de tuin is de overkant goed te zien. Deze maat is een uitgangspunt in het ontwerp om overzicht en rust te bieden aan bewoners met dementie.
overzicht en structuur
Door in het beplantingsplan van de binnentuin lage beplanting en geen belemmeringen in zichtlijnen op te nemen blijft de tuin overzichtelijk en gestructureerd.
dwalen en ontdekken
Door in het beplantingsplan van de binnentuin hoge beplanting en bomen op te nemen, worden zichtlijnen geblokkeerd. Door korte zichtlijnen te ontwerpen, ontstaat een moment van verassing en het gevoel van ontdekken. Je weet niet wat er verderop gebeurt. De bomen en hoge beplating geven tegelijkertijd beschutting en een geborgen gevoel.
Ruimtelijke randvoorwaarden
Ontwerpkaders dementie: ontwerpen van kamer tot stedelijke omgeving
Naar aanleiding van referentie onderzoek en literatuuronderzoek naar dementie zijn een aantal ruimtelijke ontwerpkaders gekomen die als richtlijnen dienen voor het ontwerp. Deze richtlijnen zijn afgestemd om een heldere en begrijpelijke omgeving voor mensen met dementie vormen, waarbij:
- men zich kan oriënteren ten opzichte van plaats en tijd - sociale interactie (en controle) wordt gestimuleerd - waardevolle dagbesteding kan plaatsvinden - betrokkenheid bij de stad en de directie omgeving wordt versterkt
De ontwerpkader heb invloed op alle schalen; van de kamer tot en met de stad. Op elke schaal is de beleving van dynamische prikkels (zintuigen), door middel van geluiden, geuren en alles wat beweegt, essentieel voor de beleving en herkenning van de omgeving voor een persoon met dementie in alle fases.
duidelijke overgang tussen ruimten en functies moeite met zien van contrasten
herkenning ruimte en functie onderscheid in materialisatie of vorm
ramen kaderen duidelijke onderscheid tussen binnen en buiten
Ruimte
Thuis
Veiligheid, geborgenheid en eigenaarsschap
visuele bereikbaarheid intuïtieve plattegrond
altijd zicht naar buiten, ook uit bed uitzicht in laatste fase
Groepsgrootte veilig en vrijheid: schaal en routing
rechte corridor zo min mogelijk verandering in richting
8-10 personen op een afdeling
benadrukken plek door contrast in kleur of vorm overzicht en oriëntatie daglicht helpt bij oriënteren in plaats en tijd
Gedeelde ruimte ontmoetingsmomenten en sociale controle
zintuigelijke ervaring (dynamische prikkels) passend bij ruimtefunctie gezicht naar activiteit onderdeel zijn van de omgeving
railing geeft veilig gevoel diversiteit aan ruimten dosering in prikkels en maat en schaal
herkenning woning persoonlijk element
herkenning woning of functie onderscheid in materialisatie of vorm
Voor de deur ontmoeting
sociale interactie sociale controle
Tuin
begeleiding en ontmoetingsmomenten
loopcircuit en oriëntatiepunten geluiden, geuren, licht en beweging
eenduidige en herkenbare architectuur simpel, eenvoud, maar herkenbaar
sociale interactie sociale controle
Gebouw
loopcircuit geluiden, geuren, licht en beweging
overprikkeling en afleiding omgevingsgeluiden
Omgeving
oriëntatie punten zintuigelijke prikkels of objecten
Verpleeghuis De Klinker
De Klinker is een bestaand verpleeghuis voor 24-uurs zorg voor mensen met dementie. Verpleeghuis is gelegen in de Borgerbuurt in het centrum van Amsterdam. De Borgerbuurt is enerzijds een rustige woonwijk, maar anderzijds rondom de Kinkerstraat een bruisende omgeving. Aangrenzend aan het verpleeghuis eindigt de Ten Katemarkt en bevindt zich het Ten Kateplein waar een speeltuin voor de kinderen uit de buurt te vinden is. Over de brug loopt met naar het WG-terrein, wat een bruisende omgeving is met kunst en culuur. De buurt kent een verscheidenheid aan functies; winkels, cultuur, kinderopvang en een basisschool met moestuin.
Omgeving:
Ten Katemarkt
De Ten Katemarkt is een bruisende markt die van maandag tot en met zaterdag plaatsvind op de Ten Katestraat. Op de markt is een verscheidenheid van marktkramen te vinden voor alle dagelijkse boodschappen, maar ook om een lekkere lunch te halen. De markt eindigt voor het Ten Kateplein en De Klinker, wat ervoor zorg dat de buurt rondom het Ten Kateplein rustig is. Er is weinig doorloop van bezoekers van de markt. Vanaf de markt is uitzicht op het zorggebouw “de Klinker”.
Beeldbank Stadsarchief Amsterdam
Beeldbank Stadsarchief Amsterdam
Geschiedenis Borgerbuurt
De buurt is van origine een volksbuurt voor de arbeiders uit de stad, net als bijvoorbeeld de Jordaan. In 1900 is de buurt gebouwd als onderdeel van de staduitbreiding. De buurt bestond uit de klassieke Amsterdamse arbeiderswoningen architectuur, zoals het straatbeeld nu nog is in bijvoorbeeld de Kinkerbuurt en de Jordaan. Door de woningnood werd de Borgerbuurt in de jaren 80 voor het grootste deel gesloopt en vervangen door de kenmerkende jaren 80 architectuur; veel baksteen, lagere verdiepingshoogte en een systematische bouwmethodiek.
De Klinker is één van deze gebouwen die nieuw werd gebouwd in de jaren 80. Het verpleeghuis is gevestigd in de helft van een gesloten bouwblok. De andere helft van het bouwblok zijn sociale huurwoningen van een woningcorporatie. De twee doelgroepen zijn totaal gescheiden van elkaar in gevelbeeld, typologie en functies.
Het huidige verpleeghuis
De Klinker functioneert als een huiskamer voor de buurt. Vanaf de straat is weinig zichtbaar van het bruisende buurthuis wat achter de dubbele sluisdeur te vinden is. In het buurthuis ontmoeten buurtbewoners elkaar van allerlei verschillende achtergronden en leeftijden. Dagelijks zijn er activiteiten en kijken de buren naar elkaar om.
Beeldbank Stadsarchief Amsterdam
Beeldbank Stadsarchief Amsterdam
Sociale cohesie
De sociale cohesie in het buurthuis doet denken aan de volksbuurt de Jordaan, waar de buurtbewoners naar elkaar om kijken. Daarbij blijkt uit een interview met de zorgmanager van de Klinker, dat het grootste gedeelte van de bewoners afstamt uit de Jordaan.
De Jordaan kenmerkt zich als de vroegere arbeidersbuurt en door de bewoners die aanspraak hebben met elkaar, buiten voor het huis (op de stoep) of hangend uit het raam, en zorgen zo voor elkaar. Sociale controle en zorgdragen voor elkaar staat bij deze gemeenschap hoog in het vaandel.
Met de wortels van de sociale cohesie op deze specifieke locatie, de uitloop naar de bruisende markt vanuit het gebouw, de plek centraal in de stad en de verbondenheid met de buurt, zie ik als ideale omstandigeheden als basis voor een alternatief zorgcentrum. Ik zie “de Klinker” als kans om te transformeren naar een zorgcentrum waar bewoners met dementie hun kwaliteit van leven (vrijheid en eigenaarschap) kunnen behouden in hun bekende omgeving middenin de stad.
diner thuis of in buurthuis
zorg
zorg
ontbijt thuis
alleen of met partner
lunch thuis, markt of buurthuis
zorg
Concept: Een nieuwe benadering van zorg
Huidige zorgsysteem
Om erachter te komen hoe het huidige zorgsysteem werkt, ben ik langs gegaan bij verschillende verpleeghuizen met een dementie-afdeling en heb ik zorgpersoneel kunnen interviewen. Het huidige zorgsysteem is momenteel zo ingericht dat mensen met dementie alleen worden opgenomen, als de zorgvraag voor de familie te groot wordt. Dit moment is meestal ergens tussen de midden- tot late fase van de ziekte. Het verblijf in het verpleeghuis is daardoor van korte duur en door het ver gevorderde stadium van de ziekte, kan men zich niet aanpassen en wennen aan zijn nieuwe thuis.
De basis van de zorg ligt bij drie vaste zorgmomenten op de dag die zorg verplegend personeel worden uitgevoerd: ochtend (opstaan), middag en avond (naar bed). Afhankelijk van het type verpleeghuis en de bezetting van personeel worden er tussentijds nog activiteiten georganiseerd.
Familie komt, naar eigen invulling, op bezoek. In de Klinker is de dementie-afdeling een aparte afdeling voor 8 bewoners. De familie kan op visite komen in het kleine appartement, wat een woonen slaapkamer ineen is met badkamer, of in de (relatief kleine) gezamenlijke woonkeuken. Mijn ervaring is dat dit niet de fijnste plekken zijn om als familie op bezoek te komen. Naast het buurthuis is er verder weinig ruimte voor familie bezoek.
(Project: Klinker, z.d.)
De Klinker: het verpleeghuis
De hoofdentree van de Klinker is gelegen aan het verlengde van de Ten Katemarkt. Van buitenaf valt er weinig te zien van wat er in het gebouw gebeurt. Via de dubbele sluisdeur kom je binnen in een verassend bruisend buurthuis. Onder de indruk van de drukte zoek ik naar een ontvangst of receptie. Er zitten mensen van allerlei verschillende achtergronden en leeftijden aan tafel met elkaar de dag door te spreken en te genieten van de muziek.
Tijdens de rondleiding blijkt dat het gebouw veel lange donkere gangen kent, wat typerend is voor veel van dit soort zorgtypologieën uit deze bouwtijd (jaren 80). De gangen voelen als een doolhof en desoriëntatie is een groot probleem, omdat er geen zicht is naar buiten en weinig referentiepunten zijn. Voor mensen met dementie werkt de desoriëntatie door de ruimtelijke vormgeving averechts in het ziekteproces. Er zijn weinig gedeelde ruimten en bewoners die niet makkelijk naar beneden (het buurthuis) komen, zitten alleen in hun kamers. Er is weinig te beleven en er zijn weinig prikkels, waardoor de bewoners meer last krijgen van de problematiek rondom de ziekte dementie; dwalen, agressie, etc.
Alle kamers zijn hetzelfde. Voor iedere bewoner. De zorg is ook voor vrijwel iedereen hetzelfde. De zorg komt op vaste tijdstippen op een dag. Er is geen onderscheid op basis van persoon of achtergrond van een bewoner. Voor bezoek is weinig ruimte. Familie komt op bezoek in het buurthuis of in de kleine kamer van de bewoners. Er is weinig ruimte voor intimiteit en privacy.
Passende woonvorm
Huis voor iedereen Functiemix
Huis voor de buurt
Ontmoeting en sociale controle
Een nieuwe benadering van zorg
Zorgen met elkaar. In het nieuwe verpleeghuis kan men blijven wonen in de vertrouwde omgeving in de stad.
Hoe de zorg hedendaags is ingericht, resulteert in een hoge werkdruk op het zorgpersoneel, zo blijkt uit interviews en uit de nieuwsberichten van de afgelopen jaren. Daarbij verliezen de bewoners met dementie, mede door de inrichting van het hedendaagse zorgsysteem, hun vrijheid en eigenaarschap. Er is te weinig personeel of te weinig tijd de sociale interactie en activiteit, naast de vaste zorgmomenten.
Het antwoord is om zowel de indeling van de zorg als de ontworpen leefomgeving te transformeren. Door de zorg te verdelen in formele en informele zorg in een woongemeenschap binnen één gebouw, kan de formele zorg worden ontlast, hebben de bewoners met dementie meer vrijheid, vermaak en sociale interactie en zijn de familie en buren onderdeel van het zorgsysteem. Door de buren onderdeel te maken van het zorgsysteem wordt er aanspraak gemaakt op de ingewortelde sociale cohesie van de buurt en wordt deze versterkt door de samenwerking en zorgvisie.
In het nieuwe zorgconcept kunnen de bewoners met dementie, alleen of samen met de partner, in een zo vroeg mogelijk stadium van de ziekte in het zorgcentrum komen wonen. De bewoners van het
zorgcentrum komen uit de directe omgeving. Door in een vroege fase van de ziekte te verhuizen, kunnen de bewoners met dementie nog goed wennen aan de nieuwe en toch bekende omgeving. Dit geeft houvast en herkenning, ook in de latere fases. De bewoner met dementie kiest een woning die bij hen past, waar men door alle fases van de ziekte heen kan blijven wonen. Tot het overlijden blijft de bewoner in het nieuwe thuis.
De zorg wordt geleverd in twee vormen: formele zorg door een aan het gebouw gekoppelde zorgorganisatie, en informele zorg door buren en familie. Door de zorgwoningen binnen het bouwblok te mixen met sociale huurwoningen, ontstaat een functiemix waarbij sociale controle wordt gestimuleerd. Daarbij dragen bewoners van de sociale huurwoning hun steentje bij met informele zorg.
De nieuwe woningen zijn afgestemd op de verschillende doelgroepen hun wensen en belangen. Niet iedere woning is hetzelfde, want ook niet ieder persoon is hetzelfde.
Het nieuwe zorgcentrum is onderdeel van de buurt, waarbij buurtbewoners worden betrokken in het nieuwe zorgcentrum. De buurt dient als vangnet voor de bewoners met dementie, waarbij bewustwording van de buurtbewoners centraal staat.
zorg
bezoek familie
diner thuis of in buurthuis
zorg
ontbijt thuis alleen of met partner
activiteit boodschappen wandelig kapper
lunch thuis, markt of buurthuis
activiteit buurthuis bibliotheek sporten
zorg

De formele zorg komt nog steeds drie maal per dag, maar wordt aangevuld door informele zorg van de bewoners van de sociale huurwoningen en familie. De buren helpen zijn het huishouden, met koken of komen voor gezelschap. In het begin van de ziekte heeft men nog een grote leefcirkel, kan men zelfstandig of met een buur naar de markt of een wandeling gaan maken in de buurt. Naar mate de fases vorderen, wordt de leefcirkel steeds kleiner en de zorgvraag steeds groter. De activiteiten zullen dichterbij huis plaatsvinden. Om ook de dagelijkse dingen te kunnen blijven doen, activiteit en ontmoeting te stimuleren in de latere fases is gezamenlijke ruimte en publiek toegankelijk programma toegevoegd dichtbij huis in het gebouw, zoals een bibliotheek waar de basisschoolkinderen ook komen, een openbare sportschool met fysio en wellness, moestuin, de kapper en het buurthuis. Deze functies zijn niet alleen wenselijk om dichtbij de bewoners met dementie te hebben, maar zijn ook een aanvulling op het huidige aanbod van functies in de buurt. Ook in de laatste fase, wanneer men vrijwel alleen in en rondom het huis kan blijven, zijn er mogelijkheden tot ontmoeting en activiteit, zoals op de leefgalerij, op het balkon of met bed en al naar de tuin.
Tijdens deze fase is er extra aandacht voor de familie en mantelzorgers. Er zijn logeerruimten om dichtbij de geliefde te blijven en met lotgenoten samen te komen. Middenin de tuin is een kleine intieme kapel voor rust en bezinning.
Leeftijd
Achtergrond
Eigendom woningen
Huishoudens
Migratie achtergrond
Woning soorten
(Borgerbuurt (Gemeente Amsterdam) in Cijfers en Grafieken (Bijgewerkt 2024!) | AlleCijfers.nl, 2024)
Demografie Borgerbuurt
De zorgwoningen voor mensen met dementie zijn in het nieuwe zorgconcept niet meer allemaal hetzelfde, want niet ieder persoon is hetzelfde. De bewoners van het zorgcentrum komen uit de directe omgeving. Uit de demografie van de Borgerbuurt en Amsterdam valt op dat de verhouding tussen autochtoon en mensen met een westersemigratieachtergrond (denk aan Turkse en Marrokaanse) bijna 50/50 verdeeld is. Dit deed mij beseffen dat al deze mensen andere wensen, eisen, normen en waarden hebben betreft hun manier van wonen en zorg die ze willen ontvangen.
woningkeus in mate van privacy type gezin
zelfstandig
groot bezoek huishouden
Woonvormen
Iedereen heeft andere wensen in mate van privacy; sommige mensen willen liever hun eigen appartement, waar andere mensen graag in een groep samenwonen. Op basis van de mate van privacy zitten er 3 type zorgwoningen in het zorgcentrum:
- Huishouden: Deze woonvorm is een zelfstandig appartement met een leefgalerij ter plaatsen van de voordeur. Deze woonvorm kent de grootste mate van privacy. Sociale controle en ontmoeting vind plaats op de galerij. Zorg komt aan huis, zo ook eventuele ondersteuning van informele zorg.
- Groot bezoek: Deze woonvorm is een woongroep voor de mensen die wel privacy wensen in hun woning, maar ook de ruimte willen hebben om bezoek te ontvangen. De verhouding tussen gezamenlijke ruimte en privé ruimte is 50/50. Er is een verscheidenheid aan gezamenlijke ruimte waar mens bezoek kan ontvangen, maar ook medebewoners kan ontmoeten.
- Huishouden: Deze woonvorm kent de meeste gezamenlijke ruimte. De privé ruimte (slaapkamer) is minimaal. De bewoners leven in een woongroep waarbij alle facetten van het huishouden aan bod komen. Samen koken, samen eten etc.
suggestieve gemiddelde dagindeling van de doelgroepen
zorgdementie mantelzorg starter student senioren kind
zorgmoment activiteit dagbesteding sociaal
senioren alleenstaande starter
student mantelzroger
Zorggemeenschap
Voor de informele zorg worden sociale huurwoningen gemixt in het gebouw. De bewoners die in het zorgcentrum gaan wonen dragen bewust bij aan de sociale controle en dragen zorg voor de medebewoners met dementie. De informele zorg bedraagt helpen met koken en helpen in het huishouden. Sociale activiteiten, zoals een rondje wandelen, boodschappen doen op de markt of meedoen met de pubquiz in het buurthuis vallen ook onder informele zorg.
Onder de sociale huurwoning vallen de volgende vier doelgroepen:
- Starter: De starter gaat ’s ochtends naar het werk en komt einde van de middag weer thuis. Voor het avondeten helpt de starter bij de zorgbewoners met koken of ze eten een hapje meer door de gezelligheid. In de avond gaat de starter sporten in de sportschool of drinkt een borrel in het buurthuis en maakt contact met de mede (zorg-)bewoners.
- Student: De student heeft overdag college’s die vaak niet dagvullend zijn. De studenten kunnen studeren in de bibliotheek in het gebouw, gaan sporten in de sportschool en maakt contact met mede (zorg) bewoners. De gaten in de dag worden opgevuld door het helpen bij de zorgbewoners met boodschappen en andere activiteiten. ’s Avonds helpt de student met koken en eet een hapje mee.
- Alleenstaande: De alleenstaande ouders hebben doordeweeks een druk leven met werken, kinderen ophalen van school, koken voor de kinderen en ze naar bed brengen. In het weekend gaan de kinderen bij de ouderen van de zorgwoningen op bezoek om spelletjes te spelen en verhalen te horen. De kinderen spelen in de speeltuin in de binnentuin en bieden vermaak voor de ouderen. In het weekend helpt de ouder met boodschappen doen en uitstapjes voor de bewoners met dementie
- Senioren: De senioren heeft overdag relatief veel vrije tijd. De gaten in de dag tussen de zorg in kunnen de senioren vullen door met de bewoners met dementie op stap te gaan, een spelletje te spelen, een boodschap te gaan doen of mee te gaan naar de kapper.
Ontwerp: een thuis in de stad voor mensen met dementie
Locatie
In de visie voor het nieuwe plan voor de tranformatie van het verpleeghuis “de Klinker”, wordt het nieuwe zorgcentrum meer betrokken in de buurt. Door de Ten Katemarkt te verlengen tot aan het WG-terrein, worden de twee stadsbuurten die nu afgescheiden zijn door een gracht gekoppeld. De markt, en de bruisende sfeer die dat met zich mee brengt, loopt daardoor langs het zorgcentrum, waar het voorheen stopte voor het buurthuis. Gevolg was dat het einde van de markt, ook het einde van de bruisende sfeer was.
De directe omgeving, de straten rondom het blok, zijn autoluw ingericht en de geparkeerde auto’s verdwijnen uit het straatbeeld. Dit is om de veiligheid voor de bewoners met dementie die een wandeling gaan maken te waarborgen én om het contact tussen het gebouw en de directe omgeving te versterken. Het autoverkeer wordt omgeleid en buurtbewoners komen te voet of met de fiets naar hun huis. Het zorgcentrum is ten alle tijde toegankelijk voor speciaal vervoer indien noodzakelijk. De straten zijn groen ingericht en nodigen uit tot verbinding en contact met buren. In de gevel van het gebouw is een zachte overgang naar de straat ontworpen. Waar het oude bouwblok veel anonimiteit kende, zijn er nu tuintjes en woningtoegangen te vinden. In de overgang tussen de woning en de straat is de ‘Jordaanse stoep’ in gedachten genomen. Het ontmoeten van de buren, zitten voor het huis op een bankje en kunnen hangen uit het raam. Het contact tussen de woning en de straat stimuleert de sociale controle.
Aan de marktzijde is een nieuwe actieve plint te vinden, door daar de publieke sportschool met fysio, kapper en buurthuis te situeren. Hier kunnen buurtbewoners elkaar ontmoeten. In het verlengde van de basisschool komt een bibliotheek in de plint. Ook daar kunnen de buurtbewoners en de schoolkinderen elkaar ontmoeten.
Bestaande situatie Borgerbuurt
Nieuwe situatie Borgerbuurt
basischool en kinderopvang
Beeldbank Stadsarchief Amsterdam
Bestaande bouw
Het bestaande gebouw ‘de Klinker’ is opgebouwd uit een beton tunnelconstructie met een metselwerk gevel. Het gebouw heeft momenteel 2 gebruikers: de zorginstelling en de woningcorporatie met sociale-huurwoningen. Hierdoor is het bouwblok zichtbaar in de gevel in 2 gedeeld: het grijs gekeimde metselwerk ter plaatse van het verpleeghuis en het rode metselwerk ter plaatsen van de sociale huurwoningen. Niet alleen de kleur, maar ook de gevelopeningen en de ontsluitingsvorm variëren door het bouwblok heen. Het oude verpleeghuis heeft repetitieve erkers als gevelopeningen en een corridor ontsluiting. De sociale huurwoningen hebben wisselende kleine gevelopeningen en 2 vormen van ontsluiting: portiek- en galerij ontsluiting.
Aanpak bestaand gebouw naar nieuw zorgcentrum
De huidige gevel voldoet niet aan de hedendaagse eisen en past tegelijkertijd niet bij de doelgroep: mensen met dementie. Doordat de gevel compleet verschillend van elkaar oogt aan de twee zijden van het bouwblok, is het gebouw voor de mensen met dementie moeilijk te herkennen. Uit het onderzoek en de ruimtelijke randvoorwaarden is gebleken, dat het voor de doelgroep het beste werkt als de gevel rondom het hele bouwblok uniform en herkenbaar is. Ook op verschillende afstanden en schaalniveaus. Om deze reden wordt de bestaande gevel vervangen.
Het casco is systematische beton tunnelbouw met een vrije hoogte per verdieping van 2,6m. De kwaliteit van dit specifieke bouwblok is de variatie aan beukmaten (4, 5,6 en 6 meter), door de verschillende doelgroepen die er gevestigd waren. Door het bestaande casco opnieuw te waarderen samen met de acceptabele vrije hoogte voor woningbouw, is het gebouw adaptief en goed te transformeren naar de nieuwe visie voor een alternatief zorgcentrum.
In het ontwerp voor het nieuwe zorgcentrum wordt het casco van het bestaande gebouw voor het grootste gedeelte behouden.
Bestaande typologie
Nieuwe typologie
De bestaande ontsluiting bestaat uit 3 typologieën: - corridor ter plaatse van het bestaand verpleeghuis - galerij-ontsluiting ter plaatse van de sociale huur - portiek-ontsluiting ter plaatse van de sociale huur
De 3 vormen van ontsluiting maken het bestaande bouwblok inefficiënt en zorgt ervoor dat het bouwblok als het ware uiteenvalt. De inefficiëntie zit in de ruimte wat wordt opgenomen door verkeersruimte; 2 hoeken van het gebouw bestaan alleen uit een trappenhuis. Door de 3 typologieën te vervangen door één typologie waarbij ontmoeting (en sociale controle) wordt gestimuleerd door middel van een (leef)galerij-ontsluiting, voelt het bouwblok als één geheel. De inefficiënte ontsluitings-hoeken worden gesloopt en vervangen door nieuwe woningen. De leefgalerij wordt organisch vormgegeven, als contradictie ten opzichte van het exterieur en belendende bebouwing. De contradictie is een herkenningspunt voor de mensen met dementie.
In Beeld: ouderenzorg instellingen in Nederland anno 2013’ van Boudewien van den
Berg en Anne Feikje Weidema (Bakkali, 2016)
De hoeken van het bouwblok zijn belangrijke ankerpunten voor de bewoners met dementie. Ankerpunten helpen mensen met dementie om; - ten eerste, het gebouw terug te vinden van een grote afstand - ten tweede, zich te oriënteren waar ze zijn ten opzichte van het bouwblok.
De vier hoeken worden nieuw ontworpen om als ankerpunt in de routing rondom het gebouw te dienen.
De bouwhoogte van het bestaande bouwblok is opgebouwd uit verschillend aantal verdiepingen. Het laagste deel (3 verdiepingen) op het noorden. Het hoogste deel van het bestaande bouwblok (5 verdiepingen) is op het zuiden. De binnentuin vangt hierdoor veel schaduw. Om zo veel mogelijk zon in de binnentuin te vangen, in het ontwerp van het nieuwe zorgcentrum, wordt de bouwhoogte van de zuidzijde verlaagd.
In het nieuwe zorgcentrum komen meer publieke functies. Om het nieuwe zorgcentrum realistisch en rendabel te maken, wordt het bouwblok verdicht. De verdichting geeft de mogelijkheid om meer woningen te creëren voor de toenoemende zorgvraag.
Dit gebeurt door middel van het toevoegen van een optopping (extra verdieping met woningen) aan de noord- en oostzijde. Deze zijden geven zo min mogelijk schaduwwerking in de tuin. Tegelijkertijd wordt de gevel aan de oost-zijde hierdoor een hoge stedelijke wand. Dit maakt een contrast in schaal ten opzichte van de Schoolmeesterstraat, wat helpt in de oriëntatie voor de bewoners met dementie.
De nieuwe gevel is ontworpen op uniformiteit en herkenbaarheid. In het ontwerp is om deze reden één kleur gebruikt om zowel van veraf als van dichtbij het nieuwe zorgcentrum te herkennen. Daarbij is de maat en schaal verhouding, repetitie, van de gevelopening door het gehele bouwblok terug te vinden. In de nieuwe gevel is een duidelijke plint toegevoegd. De plint verbindt het geheel samen.
Functiemix
Zoals benoemd in de visie op ‘een nieuwe benadering van de zorg’, wordt er naast de zorgwoningen en sociale huurwoningen extra programma aan het gebouw toegevoegd voor beleven door alle fases van de ziekte én sociale interactie met de buurt.
Aan de marktzijde is een actieve plint te vinden, door daar de publieke toegankelijke sportschool met fysio, kapper en buurthuis te situeren. Hier kunnen buurtbewoners elkaar ontmoeten. In het verlengde van de basisschool komt een bibliotheek in de plint. Daar kunnen de buurtbewoners en de schoolkinderen elkaar ontmoeten.
Verder zit er een moestuin en de bomenbrug op de eerste verdieping, een workshopruimte op de tweede verdieping en een dakterras op de derde verdieping. In de punt van de toren zitten logeerruimtes voor de mantelzorgers, waar familie in de laatste fase van de ziekte dichtbij de dierbare kan blijven. De logeerruimtes zijn vanuit het buurthuis te bereiken. Helemaal bovenin de punt is een huiskamer met uitzicht over de stad, waar mantelzorgers elkaar kunnen ontmoeten, verhalen kunnen delen en tot rust kunnen komen.
alleenstaand sociale huur
logeerkamer mantelzorg
student sociale huur
senioren (aanleun) starters alleenstaand sociale huur
zelfstandig zorg
huishouden zorg
groot bezoek zorg
Doelgroepenmix
De zorgwoningen zitten zo veel mogelijk dichtbij de binnentuin gesitueerd, op de begane grond of eerste verdieping. De sociale huurwoningen zitten over alle verdiepingen, zowel verticaal als horizontaal, gemixt door het gebouw heen. Ook op de begane grond en eerste verdieping. De mix van doelgroepen op de verdieping zorgt voor extra sociale controle.
Ontwerp: Fases van de ziekte
Architectuur: Route door de fases van de ziekte
Het zorgcomplex is ontworpen rondom de drie thema’s: - ontmoeting (vrijheid door sociale controle) - oriëntatie (ankerpunten) - wayfinding (prikkelen zintuigen).
Sociale controle, ankerpunten en het prikkelen van de zintuigen spelen een essentiële rol in het ontwerp, waardoor kwaliteit van leven (vrijheid en eigenaarschap) en veiligheid, zo lang als mogelijk gewaarborgd blijft.
Het prikkelen van de zintuigen gebeurt door verschil in tactiliteit en geluid van verschillende materialen, contrast in vorm en lichtinval (dynamische prikkels).
Het doel van de architectuur rondom deze drie thema’s, is dat de bewoner met dementie ten alle tijde zijn route naar huis kan herkennen. De routes zijn in de vroege fase van de ziekte anders dan de late fase. In de vroege fase is een belangrijke route van huis naar de markt en weer terug. Deze route wordt door de fases heen steeds korter.
Waar je eerst tot de markt kon lopen, kom je nu pas tot het buurthuis, daarna maar tot de tuin, tot de galerij tot uiteindelijk je niet meer je huis uit komt. Om op alle lagen en schalen in de architectuur uit te leggen wordt de lange route van de markt naar huis beschreven.
FASE 1 voorstadium - bedreigde ik
In het bouwblok zijn in de stedenbouwkundige schaal verschillende lagen en schalen aangebracht om het gebouw te kunnen herkennen. In de vroeg fase kan de bewoner met dementie nog goed een wandeling maken door de buurt, bijvoorbeeld naar de markt, het culturele WGterrein of naar de basisschool. Vanaf deze afstand moet het gebouw goed herkenbaar zijn, en terug te vinden zijn.
Suggestieve routes die ouderen in goede gezondheid kunnen bewandelen
Bellamybuurt
Borgerbuurt
WG-terrein
Cremerbuurt
Da Costabuurt
Kinkerstraat
Schoolmeesterstraat
WG-terrein
de Ten Katemarkt
Van veraf, bijvoorbeeld op de Ten Katemarkt, wordt het gebouw benaderd als uniform bouwblok. Het bouwblok is van alle zijden herkenbaar door de uniforme materiaal kleur, de repeterende maat en schaalverhouding van gevelopeningen en de verbindende plint. Toch zijn alle hoeken anders, dit helpt bij de oriëntatie waar je ten opzichte van het bouwblok bent.
Vanaf
Herkenningspunten
Locatie
De hoek boven het buurthuis, aan het einde van de markt, is het belangrijkste ankerpunt. De hoek is ontworpen als spits toelopende toren die vanuit verschillende kanten uit de buurt en op grotere afstand duidelijke herkenbaar is door zijn kleur en vorm en zich onderscheid van de belendende bebouwing.
Vanaf de Ten Katemarkt
Herkenningspunten
Locatie
FASE 2 beginstadium - verdwaalde ik
In de tweede fase neemt de zelfstandigheid af. De leefcirkel wordt steeds kleiner en beperkt zich tot rondom de directe omgeving van het gebouw.
Gevel straatzijde
De gevel is vanuit stedenbouwkundig oogpunt ontworpen als één geheel door de repetitieve maat en schaalverhouding van ramen, de uniforme kleur- en materiaalkeuze (baksteen), de verbindende plint en de optopping die de gebouwdelen verbind. Hierdoor is het gebouw alzijdig herkenbaar op alle verschillende schaalniveau’s; vanaf de markt tot aan wanneer je voor het gebouw staat. Wanneer men een rondje rondom het gebouw loopt, lijkt iedere zijde op elkaar, dus te behoren tot hetzelfde gebouw.
oost gevel - Ten Katemarkt
entree bloeiende tuin
Rondje om het gebouw
In de plint is een overgang ontworpen tussen openbare straat en de woningen. Ter plaatse van de woningen zijn balkontuintjes op straat niveau. Dit brengt levendigheid in het straatbeeld en tegelijkertijd sociale controle. Ter plaatse van de publieke functies, zijn bankjes in de gevel ontworpen. Hier kunnen de buurtbewoners elkaar ontmoeten en zitten en uitrusten tijdens een wandeling.
entree speeltuin
buurthuis
kapper sport & fysio
noord gevel
gevel - Schoolmeesterstraat
entree speeltuin
Schoolmeesterstraat
Ten Katemarkt buurthuis
Schoolmeesterstraat
bibliotheek
entree bloeiende tuin
bibliotheek
Ten Katemarkt
Rondje om het gebouw
Naast de toren zijn de overige hoeken ook herkenbaar in vorm of verschijning bij benadering van het gebouw. Bij een rondje om het gebouw, kan met zich oriënteren door middel van de vier hoeken die ontworpen zijn als landmark. Deze landmarks kan men leren, herkennen en onthouden.
De toren is het eerste herkenningspunt. Deze is extravert ten opzicht van de bouwmassa, door zijn publieke functie, en stijgt boven de massa uit.
De volgende hoek is het einde van de markt, waar zich een plek markeert waar mensen kunnen zitten en een broodje eten. De inwaartse hoek is contrasterend in vorm, wat herkenbaar is, en sluit aan op de stedenbouwkundige context. De volgende hoek is de bibliotheek, welke ook door zijn publieke functie, extravert is ten opzichte van het bouwvolume. De hoek is herkenbaar door zijn functie. De laatste hoek is de hoek bij de grote bestaande boom. Deze inwaartse hoek omarmt de boom en is op zichzelf daarmee herkenbaar als landmark.
1. Buurthuis ankerpunt toren, publieke functie uitwaardse hoek
3. Bestaande boom woningen inwaardse hoek
Bibliotheek publieke functie uitwaardse hoek
4.
2. Einde Ten Katemarkt woningen inwaardse hoek
Oriëntatie ten opzichte van bouwblok
Aan de Ten Katemarkt, de noordzijde, is het bestaande volume opgetopt met woningen. Deze zijde vormt de stedelijke wand. De bebouwing is hoger, waardoor dit ook een buffer vormt voor het geluid vanaf de Ten Katemarkt naar de binnentuin. In de Schoolmeesterstraat, de zuidzijde, is de bebouwing van het bouwblok laagbouw. De Schoolmeesterstraat krijgt hierdoor een kleinere schaal van een rustige straat. Door de laagbouw valt er ook zo veel mogelijk zonlicht in de binnentuin. Het verschil in schaal en sfeer helpt bij de oriëntatie waar men zich bevindt ten opzichte van het bouwblok.


De gevels aan de straatzijde zijn in rood baksteen en rood beton gematerialiseerd. Van een afstand oogt dit als één geheel en is herkenbaar door de kleur. Bij benadering van het gebouw is het onderscheid in materialisatie te voelen ter plaatse van de publieke functies en de woningen. De optopping is ontworpen in hout en geeft een hint naar de vormgeving en sfeer in de binnentuin. De structuur van de optopping volgt het ritme en structuur van de leefgalerij in de binnentuin, maar sluit ook aan in vorm op de hoekige kaders van de context.
Ten Kateplein
Herkenningspunten
Locatie
Oriëntatie ten opzichte van functie
Bij de publieke functies, het buurthuis, de kapper, de fysio met sportschool en wellnes en de bibliotheek is gepolijst beton toegepast in de gevel, wat zijdezacht voelt. De gevelafwerking is ontworpen in organische vormen, wat contrasteert ten opzichte van de woningen. Het contrast in vorm draagt ook bij aan de herkenning van functie.
plint publieke functies: kapper, sport & fysio en bibliotheek
Plint publieke functies
Gepolijst beton en organische vormen in de gevel.
Herkenningspunten
Locatie
balkon-tuin in plint ter plaatse van woning
Oriëntatie ten opzichte van functie
Ter plaatse van de woningen is metselwerk toegepast, wat ruw en korrelig voelt. De betonnen plint loopt visueel wel nog door, maar laag bij de grond. Dit zit niet op tast hoogte. De twee materialen hebben een verschil in tactiliteit wat de zintuigen prikkelt en helpt in de herkenning en oriëntatie.
Vrijheid en sociale controle
De poort is de hoofdroute tussen de Ten Katemarkt en de binnenwereld van het bouwblok. De bewoners met dementie nemen deze route naar de markt. De poort is aangrenzend aan het buurthuis, wat zorgt voor sociale controle. Mocht er iemand echt verdwalen, dan is daar vanuit het buurthuis en de entree toezicht op.
Poort naar binnentuin
Om de poort prettig en uitnodigende sfeer te geven is er een doorlopend en begeleidend pad mee ontworpen. De poort heeft een prettige breedtehoogte verhouding, zodat er zo veel mogelijk zonlicht naar binnenvalt. Vanuit de Ten Katemarkt naar de binnentuin loop je ten alle tijde naar het licht toe en je ziet wat er aan de andere kant van de poort is.
Herkenningspunten
Locatie
Overzicht en routing
Ontdekken en routing
Rustmomenten
FASE 3 middenstadium - verborgen ik
In de derde fase wordt de leefcirkel nog kleiner. De bewoners met dementie zullen zich voornamelijk in de binnentuin, in de publieke functies of op de leefgalerij begeven.
De binnentuin bestaat uit twee delen omarmt door een omloop; de leefgalerij. De twee delen van de tuin hebben twee verschillende sferen waarop men zich kan oriënteren. De tuin kent heldere zichtlijnen tussen de verschillende entree’s van het bouwblok. De tuin heeft een duidelijke zichtlijn en pad lopen tussen het buurthuis en de bibliotheek. De paden rondom de binnentuin zijn gematerialiseerd uit betontegels.
De subpaden in de tuin zijn ontworpen om te kunnen dwalen. Door korte zichtlijnen blijven de wandelingen verassend. In iedere korte zichtlijn is de mogelijkheid om te zitten en te rusten. De dwaalpaden zijn gematerialiseerd uit schelpen, welke kraken als je daaroverheen loopt. Deze zintuigelijke ervaring is herkenbaar.
poort Ten Katemarkt speeltuin reuring
buurthuis
alleenstaande starters
huishouden student
Oriëntatie in de binnentuin
Aan de zijde van de poort, de markt en het buurthuis is een terras en speeltuin voor kinderen. Dit deel van de tuin is herkenbaar door zijn reuring. De tuin wordt verdeeld in twee door de met bomen omringde loopbrug op de eerste verdieping van de galerij. De andere zijde van de tuin is een rustigere intieme plek omringd met bomen een planten. Hier staat ook de kapel waar men tot rust en bezinning kan komen. Beide tuinen hebben een andere belevingswereld wat de zintuigen prikkelt en herkenbaar is.
De binnenwereld in de binnentuin is met organische vormen ontworpen als contradictie tegen de harde belijning van de omliggende context. De groene binnenwereld in de tuin versterkt dit contrast door de bloeiende oase die uitnodigt tot contact en verbinding.
Reuring van de speeltuin.
Speeltuin
Referentie: natuurlijke speelelementen in tuin (Gillespies, z.d.)
Referentie: natuurlijke speelelementen in binnentuin (Afotw, 2022)
Locatie
Bloeiende tuin
Rust en beschutting van de bomen en zintuigelijke prikkeling van de bloeiende planten.
Referentie: bloeiende, geurende beplanting
Locatie
Referentie: binnentuin Morland Mixite Capitale, Parijs
De kapel dient ter rust en bezinning. De kapel is een kleine ruimte omringd met planten in de bloeiende tuin. De ruimte is om even op adem te komen of om juist verbinding met elkaar aan te gaan.
Kapel
Routing en sociale controle
Ontsluiting en routing
Het gebouw heeft vier ontsluitingskernen (entree’s) welke elk twee woonvormen faciliteren. De ontsluiting kernen hebben een formele entree aan de straatzijde die voornamelijk dient voor familie en bezoek. De bewoners zullen de kernen benaderen vanuit de binnentuin.
Oriëntatie door materialisatie
De ontsluitingskernen zijn ieder herkenbaar door zijn unieke materialisatie die op iedere verdieping anders wordt gedetailleerd. Een bewoner met dementie herkent en herinnert op deze manier bij welk trappenhuis hij of zij zijn woning kan vinden en op welke verdieping hij woont. De entree’s aan de markt zijde zijn hoog over twee verdiepingen en de entree’s aan de Schoolmeesterstraat zijn laag en intiem over één verdieping. De materialisatie is zichtbaar en voelbaar in de gevel, het interieur en loopt door in de balustrade en de binnenkant van de galerij, zodat de bewoner ook op de galerij kan herkennen waar hij is.
entree oost-gevel poort | speeltuin-zijde | gepolijst beton
entree oost-gevel | bloeiende tuin-zijde | glazuurd baksteen
entree west-gevel | speeltuin-zijde | uitgewassen beton
entree west-gevel | bloeiende tuin-zijde | keramieke tegels
nieuwe gevel hsb contructie houten latten gevelafwerking
houten latten vloerafwerking ter plaatsen van woningen
nieuwe galerij zelfdragende houten contructie ter plaatsen van woningen: houten vloerafwerking overig: beton vloerafwerking
balkon ter plaatsen van entree binnenzijde galerij afwerking passend bij entree tactiliteit t.b.v. oriëntatie materialisatie loopt door in handgreep railing over complete galerij
nieuwe lichtgewicht opbouw hsb constructie en houten latten gevelafwerking
kolom en liggers ter verdeling gewicht opbouw op bestaande constructie bestaande beton constructie
ter plaatsen van balkon bevestiging met isokorf systeem verankerd in bestaande betonvloer
nieuwe gevel hsb contructie metselwerk gevelafwerking
Ontmoetingsmomenten
Het balkon en de leefgalerij
Ter plaatse van ieder trappenhuis is in het ontwerp ontmoeting en sociale controle gestimuleerd voor de veiligheid van de bewoners met dementie te waarborgen. Voor de lift is een bankje waar men kan zitten en elkaar kan ontmoeten. Op de verdiepingen zijn voor de entree van een trappenhuis balkons waar de buren elkaar kunnen ontmoeten en een praatje kunnen maken. De balkons zijn verspringend ten opzichte van elkaar ontworpen, zodat er zowel horizontaal als verticaal sociale controle kan plaatsvinden.
De leefgalerij omarmt de bloeiende binnentuin en weerspiegelt ritme en structuur. Bij de trappenhuizen is de vloerafwerking, net als in de binnentuin, beton. Ter plaatse van woning entree’s veranderd de materialisatie van de vloer van beton naar hout. De zintuiglijke ervaring en prikkels veranderd daarbij ook van voetstappen van doffe tikkende voetstappen naar het geluid van krakend hout. De gevelafwerking van de woningen is ook gematerialiseerd in hout. Hout voelt en ruikt warm wat het gevoel van een woning weerspiegelt. De galerij is bij iedere woonvorm net anders vormgegeven. De voordeuren zijn per doelgroep herkenbaar. De galerij en de ruimte voor de deur dient als ontmoetingsplek voor buren, en plek om ook in de latere fase naar buiten te gaan en een plek voor sociale controle.
De leefgalerij
Ontmoeting op het balkon voor het trappenhuis. Materialisatie van het trappenhuis loopt door in de binnenzijde van de galerij en over de handrailing.
Locatie
De moestuin
Naarmate fase 3 zich vordert, wordt de leefcirkel van de bewoners met dementie steeds kleiner. Om deze reden zijn ook op de verdieping verschillende activiteiten te beleven. Bovenop het buurthuis is een kleine moestuin waar de bewoners groente en kruiden kunnen verbouwen en buurtbewoners kunnen ontmoeten.
De bomenbrug
Om het rondje rondom de galerij niet te groot te maken, is op de eerste verdieping een brug geïntroduceerd. Deze brug loopt tussen de bomen door van de binnentuin en is een zintuigelijke ervaring door de geuren, kleuren en het geluid van de bladeren. Op de brug zijn twee plekken waar men kan zitten en rusten.
De daktuin
Op de derde verdieping is een daktuin. De daktuin is voor iedereen toegankelijk, maar zal voornamelijk gebruikt worden door de sociale huurbewoners. Dat biedt ze de mogelijkheid om zich soms even terug te trekken van de zorgomgeving.
FASE 4 eindstadium - verzonken ik
In de laatste fase is de leefcirkel vrijwel beperkt tot aan huis, of zelf tot alleen het bed. Alleen zintuigelijke prikkels dringen nog tot hen door. De mogelijkheid om deze prikkels nog steeds te ontvangen in de beperkte leefcirkel, biedt ook in de laatste fase nog kwaliteit van leven.
De woonvormen
De woning is de plek waar men in de laatste fase de meeste tijd doorbrengt. Iedere woonvorm is uniek en herkenbaar. Iedere woonvorm heeft zijn eigen herkenbare voordeur. Je eigen woning kan bij iedere woonvorm worden herkend door een persoonlijk element in de vitrine naast de voordeur. Bij de zelfstandige woningen heb je je woning gelijk gevonden, maar bij de woonvormen huishouden en groot bezoek moet de privéruimte nog gezocht worden. Deze is te herkennen aan de gezamenlijke ruimte gepositioneerd tegenover de privéruimte.
Elke woonvorm is adaptief ontworpen met en centrale kern, zodat deze toekomst bestendig is. Deze centrale kern dient ook als hart van het huis waar de keuken is. De keuken fungeert als “klok”. Wanneer men ’s ochtend de geur van koffie ruikt, dan weet de bewoner met dementie dat het ochtend is. Bij de geur van avondeten geldt hetzelfde.
Alle woningen zijn ontworpen op intergrale toegankelijkheid, net als de rest van het woongebouw. De volledige woning en galerij zijn geheel rolstoeltoegankelijk.
De positie van de ruimtes binnenin de woning zijn “logisch”. Vanuit de woonkamer en slaapkamer is altijd zicht op de badkamer, zodat deze makkelijk toegankelijk is en de bewoner met dementie niet hoeft te zoeken. De ramen in de woning hebben een borstwering, zodat deze te herkennen zijn als raam en niet als deur, toch is de borstwering laag genoeg om vanuit bed goed uitzicht te hebben over de stad. De zorgwoningen zijn ten alle tijde met de privé ruimte op de stad gericht, zodat ook in de laatste fase de bewoner met dementie zintuigelijke prikkels tot zicht krijgt. De stad werkt als een levend schilderij in de allerlaatste fase.
In Beeld: ouderenzorg instellingen in Nederland anno 2013’ van Boudewien van den Berg en Anne Feikje Weidema (Bakkali, 2016)
Zelfstandige woningen
De zelfstandige woningen zijn ontworpen in de 5,6 meter en de 6 meter beukmaat van het bestaande stramien. De woning heeft een eigen entree aangrenzend aan de leefgalerij en is geheel zelfstandig ingericht. De inrichting van de social huurwoning en zorgwoning zijn gespiegeld ten opzichte van elkaar ten behoeve van sociale controle (sociale huur) en uitzicht over de stad (zorgwoning).
Zorgwoning: zelfstandig
De zelfstandige zorgwoningen zijn in vorm gelijk aan de sociale huurwoningen. Bij iedere voordeur is plaats om een persoonlijk element te positioneren in het venster, zodat de bewoner met dementie zijn huis kan herkennen.
Locatie
Zorgwoning: zelfstandig
oppervlak: ca. 60 m²
De keuken in het hart van het huis. De badkamer is centraal gelegen en is bereikbaar uit de slaap- en woonkamer. De woonkamer is gericht op de stad. De slaapkamer is gericht naar de galerij. Voor de slaapkamer op de galerij zit een vide, om de privacy van de bewoner te waarborgen.
zorg zelfstandig mantelzorg zorg huishouden
De woning is adaptief en flexibel naar mate van de wens van het gebruik in te richten. In de laatste fase kan de slaapkamer verplaatsen naar de stad-zijde.
alleenstaand starters senioren
Sociale huurwoning
De sociale huurwoning heeft een bankje voor de gevel op de galerij, waar de buren elkaar kunnen ontmoeten en een praatje kunnen maken.
Locatie
Woongroep groot bezoek
De woongroep groot bezoek is ontworpen in de 5,6 meter en de 6 meter beukmaat van het bestaande stramien. Je komt de woongroep binnen via de centrale entree, in het hart, waar ook de keuken te vinden is. De woongroep heeft ongeveer 5 woningen en verschillende vormen van gezamelijke ruimtes.
Zorgwoning: groot bezoek
Het groot bezoek heeft een centrale entree. Naast de voordeur is een venster, waar een persoonlijk element van de bewoner wordt geplaatst. De bewoner herkent hierdoor zijn woongroep. Daarbij zijn de gevelopeningen en kleuren van de woongroep uniek ten opzichte van de andere woonvormen.
Locatie
Zorgwoning: groot bezoek
oppervlak: ca. 40 m²
De woning is gepositioneerd naar de stad-zijde, zodat de bewoner ook in de laatste fase een bewegend uitzicht heeft. De woning beschikt over een woonslaapkamer met eigen badkamer en keuken. De woning is herkenbaar door de unieke gezamelijke ruimte die aan de woning grenst.
zelfstandig mantelzorg
zorg huishouden
alleenstaand starters
senioren
Zorgwoning: huishouden
Het huishouden heeft een centrale entree. Naast de voordeur is een venster, waar een persoonlijk element van de bewoner wordt geplaatst. De bewoner herkent hierdoor zijn woongroep. Daarbij zijn de gevelopeningen en kleuren van de woongroep uniek ten opzichte van de andere woonvormen. Naast de entree is een terras grenzend aan de galerij, zodat ook in de laatste fase de bewoner nog naar buiten kan.
Locatie
Zorgwoning: huishouden zorg huishouden zorg zelfstandig mantelzorg zorg huishouden
oppervlak: ca. 25 m²
De woning is gepositioneerd naar de stad-zijde, zodat de bewoner ook in de laatste fase een bewegend uitzicht heeft. De woning beschikt over een slaapkamer met eigen badkamer. Alle overige ruimten die behoren tot een huis worden gedeeld. De woning is herkenbaar door de unieke gezamelijke ruimte die aan de woning grenst.
student alleenstaand starters senioren
Sociale huurwoningen: student
oppervlak: ca. 25m²
De studentenwoningen zijn ontworpen in de 4 meter beuk van het bestaande stramien. De 5 woningen worden ontsloten door één centrale entree. De woningen aan de galerij-zijde hebben een vide voor de gevel langs om de privacy van de studenten te waarbrogen.
student alleenstaand starters senioren
De woning bestaat uit een studio met klein keukenblok en een eigen badkamer.
Locatie
mantelzorg
Logeerruimten: matelzorgers
oppervlak: ca. 20m²
De logeerruimte voor de mantelzorger zijn ontworpen in de punt van de toren. De ruimten zijn te bereiken vanuit de kern in het buurthuis. Iedere verdieping heeft een gezamelijke woonkamer met uitzicht over de stad, waar mantelzorgers elkaar kunnen ontmoeten. De logeerruimtes hebben een slaapkamer met eigen badkamer.
Bovenin het puntje van de toren is een woonkamer met groot venster in de gevel die uitzicht biedt over de stad. Deze plek in bedoeld om tot rust te komen en gedachten de delen met mede-mantelzorgers.
senioren
Locatie
Eerste verdieping
Tweede verdieping
Derde verdieping
Vierde verdieping
Vijfde verdieping
Zesde, zevende en achtste verdieping
Slotwoord
Met mijn afstudeerproject ‘samen wonen, samen zorgen’ heb ik geprobeerd te laten zien dat goede zorg begint bij de omgeving waarin we leven. Mensen met dementie verdienen meer dan een functionele zorgplek — zij verdienen een thuis, waarin zij zo lang mogelijk zichzelf kunnen blijven. Een thuis die in verbinding staat met hun omgeving, hun herinneringen en hun naasten in alle fases van de ziekte. Ik heb aangetoond hoe architectuur kan bijdragen aan een kwalitatieve, vrije en inclusieve zorgomgeving. De aanleiding voor dit onderzoek is tweeledig; zowel vanuit persoonlijke motivatie als de maatschappelijke urgentie heb ik gekozen om mij te focussen op het ontwerpen van een fijne omgeving voor mensen met dementie in de stad.
Dit onderzoek heeft de onderzoeksvraag beantwoord hoe we bestaande zorggebouwen kunnen transformeren tot een waardevolle, toekomstbestendige woonomgeving voor mensen met dementie, midden in de stad. Aan de hand van het typische jaren 80 verpleeghuis “De Klinker” in de Borgerbuurt in Amsterdam, is onderzocht hoe architectuur, zorg en sociale cohesie kunnen samenkomen in een modern zorgcentrum. In dit nieuwe zorgcentrum staan vrijheid, eigenaarschap en zintuiglijke beleving centraal door het gehele ziekteproces heen.
De transformatie van De Klinker laat zien dat sloop niet altijd de oplossing is. Door bestaande gebouwen opnieuw te waarderen en in te zetten voor maatschappelijke vraagstukken, kunnen we bouwen aan een meer inclusieve en duurzame stad. Een stad waarin zorg, wonen en sociale cohesie hand in hand gaan.
Het ontwerp voor nieuwe zorgcentrum laat zien dat door de optimalisatie en waardering van het bestaande gebouw door middel het adaptief hergebruiken van het casco, het verdichten van het bouwvolume en het optimaliseren van de typologie. Dit resulteert in een plek voor ontmoeting en sociale controle, transformatie een duurzame oplossing is voor de problematiek van de huidige verpleeghuizen. Door de toevoeging van de nieuwe benadering van zorg, waarbij formele zorg wordt aangevuld door informele zorg van buurtbewoners uit de woongemeenschap in het zorgcentrum, wordt de druk op de zorg ontlast.
Daarbij zorgen de 3 kernthema’s ontmoeting, oriëntatie en wayfinding, voor een betere perceptie van de verschillende ruimtes en worden de zintuigen gestimuleerd door de materialisatie en vormgeving. Dit alles komt samen om de bewoners zo veel mogelijk het gevoel van zelfstandigheid te geven, waardoor zij tot aan de laatste fase van de ziekte vrijheid en kwaliteit van leven kunnen ervaren.
Mijn persoonlijke ervaring met de ziekte en de verschillende vormen van onderzoek heeft dit project gevormd en verdiept. Het heeft mij niet alleen als ontwerper, maar ook als mens laten inzien hoe groot de impact is van architectuur op ons welzijn. Ik hoop met dit project een bijdrage te leveren aan een bredere discussie over hoe we willen omgaan met ouder worden, met kwaliteit van leven — en vooral: hoe we willen zorgen voor elkaar.
Alzheimer Nederland. (2021). Factsheet cijfers en feiten over dementie. Geraadpleegd op 16 maart 2023, van https://www.alzheimer-nederland.nl/factsheet-cijfers-en- feiten-overdementie
Bernlef, J. (1984). Hersenschimmen. Querido.
Centraal Bureau voor de Statistiek. (z.d.). Ouderen. Centraal Bureau Voor de Statistiek. https://www.cbs.nl/nl-nl/visualisaties/dashboard-bevolking/leeftijd/ouderen
Dagmarsminde. (z.d.). Dagmarsminde. https://www.dagmarsminde.dk/
Feddersen, E., & Lüdtke, I. (2014). lost in space: Architecture and Dementia. Birkhäuser.
Grootenhout. (2025, 17 januari). Begin en visie » Zorg voor mensen met dementie » Grootenhout. Hartley Car Care. https://www.grootenhout.nl/begin-en-visie/
Interzorg. (z.d.). Vier fasen van ik-beleving bij dementie - Interzorg Drenthe. https://www. interzorg.nl/onze-ondersteuning/ouderen-met-dementie/over-dementie/vier-fasen-vanik-beleving
JPND. (2023, 20 april). Wat? - JPND Neurodegenerative Disease Research. JPND Neurodegenerative Disease Research. https://neurodegenerationresearch.eu/nl/wat-is-eenneurodegeneratieve-aandoening/
JUDMH - Wayfinding and urban design from the perspective of people living with dementia. (z.d.). Centre For Urban Design And Mental Health. https://www. urbandesignmentalhealth.com/journal-7-wayfinding.html
Marquardt, G. & VENDomE gRoup, llC. (2011). Wayfinding for People With Dementia: The Role of Architectural Design. In HERD (Vol. 4, Nummer 2, pp. 22–41) [Journal-article]. https:// alzheimer-architecture.nl/wp-content/uploads/2012/10/Wayfinding-for-People-WithDementia_HS.pdf
Toebes, T. (2021). VerpleegThuis: Wat ik leer van mijn huisgenoten met dementie. Singel Uitgeverijen.
Toebes, T., & De Jong, J. (2023). Een wereld te winnen: Mijn internationale zoektocht naar een andere kijk op dementie. Singel Uitgeverijen.
Van Der Plaats, A. (z.d.). DE WONDERE WERELD VAN DE DEMENTIE (Bob Verbraek, Red.). https://www.innovatiekringdementie.nl/files/downloads/De_wondere_wereld_van_ dementie_nw.pdf
Van Steenwinkel, I., Van Audenhove, C., & Heylighen, A. (2012). Spatial Clues for Orientation: Architectural Design Meets People with Dementia. In Designing Inclusive Systems (pp. 227–236). Springer-Verlag. https://doi.org/10.1007/978-1-4471-2867-0-23
Van Steenwinkel, I., Van Audenhove, C., & Heylighen, A. (2017). Insights into living with dementia: Five implications for architectural design. In KU Leuven, Proceedings of Arch173rd International Conference on Architecture, Research, Care, Health.
Verdwalen - 5 definities - Encyclo. (z.d.). https://www.encyclo.nl/begrip/verdwalen
Zorgkaart Nederland. (z.d.) Verpleeghuizen en verzorgingshuizen Amsterdam. Geraadpleegd op 8 mei 2023, van https:// www.zorgkaartnederland.nl/
Persoonlijke communicatie; interviews bij diverse verpleeghuizen
Beeldmateriaal
Afotw. (2022, 15 februari). afotw. Tumblr. https://afotw.tumblr.com/post/676248707216392192
Bakkali, H. T. (2016, 9 juni). Verlangen we straks terug naar de verzorgingshuizen van nu? De Correspondent. https://decorrespondent.nl/4701/verlangen-we-straks-terug-naar-deverzorgingshuizen-van-nu/ebbabe3c-bcd8-0d58-0838-eb39d3193068
Beeldbank Gemeente Amsterdam. https://archief.amsterdam/ beeldbank/?mode=gallery&view=horizontal&sort=random%7B1745184882072%7D%20asc
Dagmarsminde. (z.d.). Dagmarsminde. https://www.dagmarsminde.dk/
Gillespies. (z.d.). Housing Design Award for South Gardens - News - Gillespies. Gillespies. https://www.gillespies.co.uk/stories/housing-design-award-for-south-gardens?
Grootenhout. (2025, 17 januari). Begin en visie » Zorg voor mensen met dementie » Grootenhout. Hartley Car Care. https://www.grootenhout.nl/begin-en-visie/
Huis Perrekes. (z.d.). https://www.nuarchitectuuratelier.com/project/huis-perrekes/
Kleinschalig wonen en zorgen in het hart van de stad. (z.d.). Archipelago. https:// archipelago.be/nl/projecten/kleinschalig-wonen-en-zorgen-in-het-hart-van-de-stad/
Morland mixité capitale. (z.d.). https://davidchipperfield.com/projects/morland
Pintos, P. (2024, 26 juni). Alzheimers Village / NORD Architects. ArchDaily. https://www. archdaily.com/973948/alzheimers-villa-nord-architects
Project: Klinker. (z.d.). https://www.prosmandewit.nl/wonen-met-zorg/project-klinker
Santos, S. (2024, 21 november). Witherford Watson Mann’s Central London Almshouse Promotes Sociability for the Elderly. ArchDaily. https://www.archdaily.com/780345/centrallondon-almshouse-promotes-sociability-for-the-elderly
Sint Jakob, de Roomse Burcht aan de Plantage Middenlaan - Vereniging vrienden van de Amsterdamse binnenstad. (z.d.). https:// www.amsterdamsebinnenstad.nl/binnenstad/259/ sint-jakob.html