


Bij het jaarlijks carnavalsfeest wordt symbolisch en traditioneel de sleutel van het stadshuis overhandigd aan de heersende Hoogheid. Stel u eens voor dat de stadssleutel van het deeldorp niet wordt teruggeven en dat we de pincode van het alarm veranderen, dat zou nog eens een goede mop zijn.
We stellen u voor: dorpsraadvoorzitter Rens van Rijckevorsel wordt de eerste president a.i. van onze nieuwe volksrepubliek MeerselDreef; cafébaas Bud is eerste minister, want je moet het geloofwaardig kunnen uitleggen; pater-gardiaan Kenny Brack is hoofd van de zedenpolitie en bakent de fatsoensgrenzen af; brandweerman op rust Eugène Bogers staat in voor de bewaking van de landsgrens en zorgt voor een nieuwe voorpost calamiteiten (in het gesloten café Moskes); de leden van Fanfare voor Eer en Deugd zijn de eerste patriotten van de Revolutionaire Garde, ze hebben immers al een battledress. De verwarrende postnummers 2321 en 2328 schaffen we af met onmiddellijke ingang, de landcode op de auto is voortaan MD en het dorpsblaadje De Stuw het nieuwe staatsblad. De eerste vrije verkiezingen komen er op 13 oktober 2024. Slechts één lijst mag opkomen, wie de meeste stemmen heeft, wordt de nieuwe president.
Buurgemeente Alphen-Chaam steunt openlijkonze patriottische gevoelens, verleent in eerste plaats financiële steun aan “de Noordhoek van Vlaanderen” maar bekijkt wat verder nodig is in de toekomst. Voorlopig nog afwachtend, de situatie wordt wel nauwlettend in het oog gehouden. Samenwerking is niet uitgesloten.
We vervangen de christelijke, socialistische, liberale en andere mutualiteiten door OHRA, CZ Direct of Zilveren Kruis. KBC bank, Dexia en Fortis ruilen we in voor RABO Bank of ABN-AMRO Bank. Voetballen doen we (al) bij RKVV GESTA (Galder en Strijbeek Ten Aanval), zwemmen terug in de Markrivier, gymnastiek in speeltuin De Zevenster en hardlopen op het fietspad langs de Mark. Basisschool ’t Dreefke krijgt middelbaar onderwijs.
En verder: de regering confisqueert het kasteel ‘Villa Rommens’ van oud-burgermeester Glenisson als het nieuwe republiekshuis, straatnaam Dreef wordt De Nieuwe Vrijheid, het Mariapark krijgt een kerkhof en strooiweide voor de autochtonen, de Mark diepen we uit tot aan de ijzeren brug voor transport over water, de Meerselmolen wordt weer in gebruik genomen (eigen graan eerst), brouwerij De Kroon van de familie Schrickx wordt heropgebouwd, het Amphia in Breda
wordt ons nieuw ziekenhuis en er komt een gsm zendmast op de Paterswielparking. De blauw-witte vlag van de republiek zal trots in alle weersomstandigheden wapperen naar de vier windstreken en al wat daar tussen ligt.
Geen republiek zonder nationale feestdag, die valt samen met de jaarlijkse kermis op de tweede zondag van juli, gevolgd door kermisspelen op maandag en dinsdag, de na-kermis op de derde zondag herstellen we in ere.
Dit alles zal uitgebreid besproken worden tussen pot en pint op de jaarlijkse carnavalsdagen van CV de Maerkratten van Meersel-Dreef en Galder voor Aswoensdag, waarbij de carnavalsgroet (de vingertoppen van de rechterhand naar de linkerslaap) uitbundig ten tonele wordt gebracht, al roepend ‘ad fundum’, en eindigend met barstende hoofdpijn in het ochtendgloren.
Na carnaval (begin van de vastentijd, feitelijk een Tournée Minérale maand dus) volgen grappendag 1 april, verder Maai-Mei-Niet met twee verlengde weekends dit jaar. Prompt staat de zomer weer voor de deur, jawel met Dreef Kermis. 2023 wordt dus prachtig hier, de republiek Meersel-Dreef is onder constructie. “We stele de show” en groeten u: “ALAAF” bij de optocht van 19 februari. (JJ)
MINDERHOUT - Jan Stoffels en Lizette Paulussen, twee handen op één buik en met een groot hart voor hun bedrijf met tuinmachines in het centrum van Minderhout. “Onze Stanny is nu zaakvoerder, maar ik denk dat wij er elke week nog vijftig uren meedraaien.”, zegt Jan. Achter zijn guitige lach gaat een man schuil die veel heeft meegemaakt en die heel goed weet wat hij wil. Hij vertelt honderduit over de kwajongensstreken in zijn jeugd, de lent van het boerenpaard, de bonnetjes in de vastentijd, de dwaaltocht naar de haven, omgekieperde bedden in de kazerne, voetbalplezier en levenslange gildekriebels... En dat verhaal voert ons vanuit het Looi, over Hesco, tot in de oude melkerij van Minderhout.
Jan is afkomstig “AF” Meer, en hij zegt het met klem. “Ik ben geboren op 28 januari 1947, net na de oorlog. Mijn vader was een gemiddelde Kempense boer, ik was de oudste van de vier zonen. De boerderij stond in het kleinste gehucht van Meer, het Looi, waar in die tijd een tiental boerderijen stonden. In de gevel staan de initialen J.S. nog, die verwijzen naar mijn grootvader. Vroeger stond er een prachtige Vlaamse schuur, maar die is spijtig genoeg verdwenen.”
De roots van Lizette liggen in Meerle, maar ze werd op 2 september 1953 geboren in Merksplas. “Jan kwam er op onze trouw pas achter dat mijn achternaam Paulussen was. Hij ging er altijd van uit dat het Pauwels was, zoals wel meer mensen hier in de streek. Van Merksplas verhuisden we naar Hoogstraten. Ik werkte bij Hesco in Meer en zo zijn we mekaar tegengekomen.”
“Ik had een zorgeloze, maar een harde jeugd.”, zegt Jan. “Op het Looi woonden hard
werkende mensen, die een vrij gesloten gemeenschap vormden. Als er miserie was, stonden ze altijd voor mekaar klaar. Zo vertelde mijn vader over de dag dat een V1 de boerderij van de familie Vervoort trof. In de wijde omgeving waren alle daken van de boerderijen af gevlogen, bij ons niet. Omdat we de dichtstbijzijnde boerderij waren met een dak, werden de slachtoffers in onze woning opgebaard. Drie mensen kwamen bij die inslag om. Het verhaal maakte een diepe indruk op ons.”
“Als ik naar de film over de Witte van Zichem keek, zag ik veel gelijkenissen met mijn jeugd. Ja, wij begrepen niet waarom je een zwembroek nodig had en in de zomer kon je
ons dus naakt zwemmend in de Mark vinden. Dat water was helder en zuiver. Er was zelfs een mosselbank aan de Trommelberg, in de buurt van de Zandberg. Maar dat naaktzwemmen was niet naar de zin van de veldwachter, Tuur Eelen. We kregen een serieuze uitbrander. Veertien dagen later zagen we hem van ver aankomen en sloegen we op de vlucht, want zwembroeken hadden we natuurlijk nog niet. We verstopten ons in een hooischuur. Na een tijd kwamen we weer tevoorschijn en lagen al onze kleren op een grote hoop… Eén van de oudere jongens van de groep ging naar de handelsschool en bracht twintig versleten turnbroekskes mee. Dat was voor Tuur ook goed en het zwemmen kon vanaf toen dus ongestoord doorgaan.”
Voor de jongens van het Looi was de natuur hun speeltuin. “Vissen heb ik nooit gedaan, daar had ik het geduld niet voor. Maar vogels roven wel. Ik ben verschillende keren uit een boom gevallen. Een keer ben ik goed weggekomen. Bij het roven van een eksternest braken de bovenste takken af en ben ik met het hele zootje op mijn rug in een diepe gracht terechtgekomen, niet ver van twee weipalen. Toen heb ik geluk gehad”, zegt Jan.
Als twaalfjarige werd Jan ingeschakeld in het werk op de boerderij. “Onze vader was het beu om schadeclaims te betalen als gevolg van ons kattekwaad. Hij ging er van uit dat als we moesten werken, we geen tijd meer zouden hebben om allerlei deugnieterij uit te halen. Als oudste van de zonen werd ik in de vakantie aangesteld als voerman. Ik moest al het werk met het paard doen. Haver en koren pikken, ploegen, eggen …"
Jan werd er vrij handig in. Zo slaagde hij erin bij het pikken van haver met één hand het paard te mennen en met de andere de schoven recht te zetten. “Rapen moesten gezaaid worden voor 15 augustus, dat was zo’n zekerheid waar je niet naast kon. Ik moest hard werken om de akker klaar te leggen. Mijn vader droeg
Alle daken van de boerderijen waren er af
Wij begrepen niet waarom je een zwembroek nodig had
me op aan het einde van de twintigste rij het paard telkens even te laten rusten. Ik moest dan met de schup aan het keerpunt alles fatsoeneren. Rusten voor mij was niet zo belangrijk. Maar dat het paard rust kreeg, was zeker zo belangrijk. Het paard was in die tijd voor de boeren van onschatbare waarde.”
“We hadden een goed werkpaard, maar het paard had een plasticfobie. Plastic was in die tijd amper bekend. Maar toen ik bij bakker Faes in het dorp een akkerke aan het ploegen was ritselde er plots wat plastiek aan de zijkant van het perceel. Het paard pakte een schrik en sloeg met de ploeg erachteraan op hol, door de bakkerij en zo het dorp in. De vonken sloegen uit de ploeg die uiteindelijk loskwam. Voor mij was dat geen prettige boodschap om mee thuis te komen. ‘Je moet de lent voortaan wat beter vasthouden!’, luidde het verdict. Een tijd later kwam ik van school thuis en bleek mijn vader met een hersenschudding in bed te liggen. Bleek dat het paard opnieuw geschrokken was van ritselend plastiek. Het sloeg op hol met onze vader op de bok van de beerkist. Resultaat: alles aan diggelen en vader met een hersenschudding in bed. Ik heb toen gezegd: ‘Vader, ge moet de lent voortaan wat beter vasthouden...’ Het voorval betekende wel het einde voor ons paard. We moesten op zoek naar een ander.”
Jan had een haat-liefde-verhouding met de geestelijke overheid. “Ik heb goede pastoors gekend, maar heb ook mogen ondervinden dat eerlijkheid soms ver zoek was. En daar kan ik niet tegen. In de vastenperiode moesten we
elke dag naar de mis. We kregen dan bonnetjes die we op een kruis konden kleven. Alle bonnetjes hadden we, behalve één. Die dag was het heel slecht weer en de kinderen die in de uithoeken woonden (Looi, Mosten, Maxburg, …) lukten er niet in om naar de mis te komen. Maar omdat die kinderen daardoor een bonnetje misten, kregen ze met Pasen geen prijs. Een jaar later zat er weer een dag tussen dat het geen weer was om een hond door te sturen. Ik zei: ‘Nu gaan we, want nu zullen er prijzen te winnen zijn.’ We stonden er, mijn broers en ik. Zelfs de nonnekes waren er toen niet. Maar de pastoor kwam op het einde van de rit met de melding dat er dat jaar geen prijzen zouden worden uitgedeeld...”
Bij pastoor Naveau in Maxburg moesten de plechtige communicanten op retraite. “Op de laatste dag van die retraite stelde mijn kameraad Gust Goetschalckx, alias de ‘Schel’, voor om een pint te gaan drinken. Ik had geen geld. We dronken dus samen uit één pint. In de 11u-mis moesten we ter communie gaan. Maar je moest nuchter zijn en alcohol was helemaal uit den boze. Het resultaat was dat onderpastoorke zei dat we ons communie niet mochten doen. Voor Gust was dat een ramp, want ze hadden daar alles al in orde gebracht voor een heel groot feest. Dat zou dus niet doorgaan. Ik zweeg thuis. Twee dagen voor de plechtige communie bleek dat we die toch mochten doen, voor mij was er geen vuiltje aan de lucht. Maar bij Gust ging het feest niet door.”
Van pastoorke Aerts heeft Jan wel een pas-
sage uit zijn preek onthouden. “Dat was een brave die pastoor. Met Meer Kermis stond hij op de preekstoel en verkondigde hij met grote stelligheid dat zijn parochianen moesten drinken als de beesten. ‘Die stoppen ook als ze genoeg hebben’, voegde hij er fijntjes aan toe. Ik denk niet dat die preek opgedrongen werd vanuit het bisdom...”
“Mijn vader wilde dat ik boer zou worden, maar ik zag dat niet zitten. Ik wilde een vak leren en koos voor automechanica. Na vijf jaar op de vakschool behaalde ik mijn diploma. Jos Bevers was onze praktijkleraar automechanica. Het was een heel goede leraar, die ons met hart en ziel alle kneepjes van het
“Na vijf jaar op de vakschool behaalde ik mijn diploma.”
We mochten ons communie niet doen
vak aanleerde. De perfectie nastreven leerden we bij Mil Van Beeck. Dat is nog altijd een crack. Die maakt kruisbogen van A tot Z, alles doet hij zelf.”
Het kattenkwaad was Jan evenwel niet verleerd en hij deed vooral waar hij goesting in had. “Op mijn veertiende kocht ik een Zundapp (brommer) bij Sooi Tilburgs, voor 500 frank. Ik had dat geld verdiend door aardbeien te gaan plukken. Maar thuis mochten ze dat niet weten. Ik verstopte de brommer onder het hooi. ‘s Zondags als ze gingen schoven (rusten na het eten) of als ze thuis weg waren ging ik met mijn brommer rijden. Dat blijven voor mij van de gelukkigste momenten uit mijn leven. In die tijd waren er bijna geen auto’s en ook brommers reden er niet veel rond. Dus lang duurde het niet voor ze het ook bij ons te weten kwamen.”
Met zijn brommer is Jan een keer op de vlucht geslagen toen hij merkte dat de gendarmes hem in de gaten kregen. “Dat werd toen een achtervolging door het dorp tot ik aan een schuur kwam. Ik verstopte mijn brommer in een diepe gracht, niet zichtbaar vanop de weg en haastte me naar de schuur. Met een grote omweg langs de Zandberg ben ik dan na een paar uur naar huis gegaan om pas de volgende dag mijn brommer weer te gaan halen.”
In de kerk zette Jan op de achterste gelederen een florerend handeltje op in brommers. “Een beetje zoals de Farizeeërs. Maar toen dat uitkwam kreeg ik van de pastoor de boodschap dat ik niet meer welkom was in de kerk. Maar er waren er die meer lawaai maakten dan ik”, verzekert Jan ons.
Na het behalen van zijn diploma deed Jan veel moeite om aan werk te geraken. Dat viel niet mee, veel auto’s waren er in die tijd niet en in de Noorderkempen was al helemaal geen industrie. Hij kon beginnen als magazijnier in een garage in Meer. “Maar de ver-
loning viel dik tegen. Ik verdiende vijftien frank per uur en ben onmiddellijk op zoek gegaan naar ander werk. Ik klopte aan bij pastoor Van Reusel. Tijdens zijn godsdienstlessen had hij vroeger aangegeven dat hij veel contacten had in de Antwerpse haven. Hij nam onmiddellijk contact op met de familie Van Marcke, eigenaars van rederij Flandria. Ik kon er een week later starten als onderhoudsmechanieker.”
“De eerste werkdag verliep dramatisch. Ik vertrok ‘s morgens om halfzes. In Merksem dacht ik dat ik er wel zou zijn. Dat bleek een vergissing. En al stappend heb ik al mijn moed bijeengeschraapt om een Antwerpenaar aan te spreken. Ik bleek op het Kiel te zitten, nog heel ver van de rederij. Een tram nemen durfde ik niet en dan ben ik ‘t Scheld maar gevolgd, dan zou ik er automatisch geraken… Het was ondertussen tien uur en ik dacht dat ik al op mijn eerste werkdag buiten zou liggen. Maar dat viel mee.”
“Het mentaliteitsverschil tussen de stad, haven en het landelijke Meer was gigantisch. Dat vroeg wel wat aanpassing. In de winter moest ik matrozen aansturen, maar ik kreeg van die mannen niets gedaan. Met geen stok vooruit te krijgen. Tot ik er op aangeven van een collega een pint mee ging drinken op vrijdagavond, nadien kreeg ik er alles van gedaan. Vanuit de rederij moest ik ook drie maanden op de Boelwerf in Temse gaan werken. Dat was helemaal een ramp. Op een bepaald moment had ik geen bus meer naar huis. Toen mocht ik op La Pérouse blijven slapen. Dat was luxe, eten was er genoeg. La Pérouse was een 4-sterren-restaurantboot, gebouwd op de Flandria 16.”
“In Antwerpen heb ik veel geleerd. Ik zag er allerlei gerechten die ik in de verste verte niet kende, ik zag er ook voor het eerste gekleurde mensen en omdat we werkplaatsen hadden op het Sint Annastrand kreeg ik ook zonnebadende juffrouwen te zien. Mensen die in de zon gingen liggen en niet veel textiel aan hadden... Dat waren straffe verhalen die ik in Meer gretig aan de toog vertelde maar die niemand geloofde.”
De afstand naar de haven in Antwerpen was groot, de werkuren heel onregelmatig. Jan klopte opnieuw aan bij pastoor Van Reusel. Na bemiddeling kon hij bij een garage in Borgerhout gaan werken waar legervoertuigen werden gerepareerd in opdracht van defensie. “Daar heb ik veel geleerd. Je kreeg er 80 tot 100 uren om grote herstellingen uit te voeren. Alle kneepjes van het vak kreeg ik er in de vingers en dat kwam heel goed van pas toen ik mijn legerdienst moest gaan doen.”
Via contacten bij het leger kwam Jan in Leopoldsburg in de garage terecht. Na een week moest hij op rapport komen. “We hadden bij wijze van tegenreactie de bedden van de boefers omgekieperd en door toeval was daardoor de garnizoenstrompet beschadigd. De volgende morgen weerklonk geen trompetgeschal, maar de uitbrander nadien maakte minstens evenveel lawaai. Gelukkig bleek al snel dat ik door mijn ervaring in Borgerhout maar de helft van de tijd nodig had om her-
stellingen uit te voeren. Na vier weken moest ik dus een tweede keer op rapport komen om uit te leggen hoe dat kwam. Over de truukjes die ik leerde in Borgerhout zweeg ik in alle talen. Eigenlijk maakte ik me daardoor onmisbaar en had ik daar tenslotte de tijd van mijn leven.”
“Van de gelegenheid maakte ik ook gebruik om iets aan mijn tandpijn te doen. Zestien tanden moesten getrokken worden. Om te herstellen mocht ik naar huis. Maar ik wilde niet naar huis, want dan moest ik rapen plukken. De kolonel heeft me dan een permissie gegeven om veertien dagen gemalen biefstuk te eten. Dat werd speciaal voor mij bereid. Op “Konterket” waren er in die tijd ook heel veel soldatencafés met welluidende namen, zo had je Mie Poep, maar ook Den IJzer en Ponde-
rosa. De laatste maanden mocht ik in de revisie gaan werken, normaal was dat enkel voor ‘boefers’. Ook daar heb ik enorm veel kunnen bijleren. We reviseerden er onder andere de oude Pattontanks. Onderdelen hadden we genoeg omdat het Amerikaanse leger na de oorlog enorm grote stocks had achtergelaten.”
De verplaatsing naar Leopoldsburg maakte Jan met zijn brommer. “Ik heb kou gehad, maar ik hield vol. Ik had immers geld nodig want dat was altijd op, en dat verdiende ik door mijn brommer te verhuren voor 50 frank per dag. Voor benzine moesten we zelf zorgen. Ik zocht alles uit om aan geld te geraken. Zo zamelde ik alle glazen flesjes in na een pauze. Voor elk glazen flesje kreeg ik een frank.”
Bij het leger werd Jan ook geconfronteerd met miserie. “We hebben er twee van mijn kameraden moeten begraven, waaronder mijn beste kameraad Rik Oomen. Ook af Meer. De andere was een legerkameraad uit Gent. Dat maakte ook een diepe indruk op mij.”
Op het einde van ‘den troep’ werd aan Jan gevraagd of hij niet wilde blijven. “Ik mocht direct sergeant worden als ik zou blijven. Maar dat heb ik toch geweigerd omdat ik dichter bij huis wilde zijn.”
Na de legerdienst verzeilde Jan terug in Meer en moest hij opnieuw op zoek naar werk. “Het eerste jaar werkte ik bij een firma die landbouwmachines herstelde, gasstoven verkocht en putboringen uitvoerde. Ik werkte ook drie maanden bij Elektro Bols in Meer. Maar ik had een advertentie gelezen over een vacature bij Hesco. Ik mocht er direct beginnen met het herstellen van tuinbouwmachines zoals motorvernevelaars, frezen- en motorcultoren, mini-tractoren, kettingzaagmachines… Daar
werkte Lizette ook als dienstmeid, zij was trouwens familie van Hessels. Ik was nog single, en het was liefde op het eerste gezicht. Na drie jaar verkering zijn we getrouwd. In februari 2024 zal dat vijftig jaar geleden zijn!”
Een jaar na hun huwelijk kregen ze de vraag of ze de machinezaak niet wilden overnemen. “Die keuze was snel gemaakt”, zegt Jan. “Een locatie vinden in Meer was moeilijker en ondertussen was onze dochter Els al geboren. Tot de oude melkerij in Minderhout te koop werd aangeboden in twee koopdagen. Naar de eerste stuurde ik nonkel Sus om te gaan luisteren. Die had er verstand van, want hij was roeper op de koopdagen in Meer. Ik was overtuigd van de goede locatie, maar op de eerste koopdag werd er al 500 000 frank geboden. Op de tweede koopdag bleek er nog iemand geïnteresseerd. Het was mijn plan om ineens 50 000 euro bij te bieden om er dan ineens mee klaar te zijn. Maar zo ging het helemaal niet. Ik moest tot ver over het bedrag gaan dat ik in mijn hoofd had. De mensen zeiden allemaal dat het veel te duur gekocht was en dat ik al op voorhand failliet zou zijn.”
Jan en Lizette begonnen met de afbraak van de oude melkerij. “We hebben daarbij heel veel steun gehad van de familie en van de gemeente Minderhout. De schoorsteen werd steen per steen afgebroken door een firma. Dat kostte ons nog eens 20 000 frank. Maar na de opruim hadden we wel honderdduizend gekuiste stenen. De gemeente Minderhout had tachtig camions steenpuin weggereden. In de hete zomer van 1976 hebben we het werkhuis gebouwd. Veel te warm was het
toen. Ik had er een magneetthermometer hangen en die wees 40°C aan. Eigenlijk was dat niet verantwoord. In oktober van dat jaar ben ik als zelfstandige begonnen, klanten vinden was echt geen probleem. Vooreerst had ik het cliënteel van de machineafdeling van Hesco, maar ook andere mensen vonden de weg naar ons bedrijf vrij snel. De tijd zat wellicht wat mee omdat iedereen in die tijd een grasmachine begon te kopen.”
“Personeel hadden we nog niet. Vele jaren werkten we alle dagen, ook op zondag. Dat bleef duren tot mijn schoonvader op 52-jarige leeftijd aan kanker overleed, bovendien was ook mijn moeder veertien dagen voordien overleden. Toen zijn we 6/7de gaan werken. Ondanks de crisisjaren in de jaren tachtig floreerde de zaak. We kregen vooral grote naambekendheid door de handelsbeurzen in de Veiling van Hoogstraten. Een aantal jaren geleden hebben we de zaak overgegeven aan onze Stanny. Twee jaar geleden hebben we er ons uit teruggetrokken. Maar we blijven de zaak wel nauw mee opvolgen en je vindt ons praktisch elke dag in de winkel of het werkhuis. Ik doe de baan en Lizette staat in de winkel.”
Jan en Lizette werkten hard en werden daar ook voor beloond. “We zijn zo ook in de gelegenheid gesteld om een aantal buitenlandse reizen te maken. Die werden aangeboden door de firma’s.” Zo bracht Jan een bezoek aan Japan, samen met Lizette reisde hij ook naar Amerika, Mallorca, Tunesië, Egypte.... “De terugreis vanuit Tunesië zullen we niet licht vergeten. Het onweerde en er waren grote luchtzakken tijdens de vlucht. Het cabinepersoneel was in de verste verte niet te bekennen en er was lichte paniek in het vliegtuig. Toen we er doorheen waren, kwam
het cabinepersoneel weer tevoorschijn met het zweet op hun gezicht. Het was duidelijk dat het ook voor hen helse momenten waren geweest. Nadien hebben we een aantal jaren niet meer gevlogen, en nu verkiezen we onze mobilhome om uitstapjes te maken. Liefst ook niet te ver en met de beide voeten op de grond.”
Vanaf zijn zestiende had Jan heel wat hobby’s. De schutter in hem is altijd gebleven, maar in zijn jonge jaren hield hij zich graag bezig met cafésport. “Ik ben een fervente tafelvoetbalspeler geweest in het café bij Arnold Van Aperen, Zaal Victoria. Onze ploeg heette ‘de Jodekkers’. En ik speelde biljart bij Jan Faes in café De Welkom. Die club heette toen toepasselijk en origineel ‘Krijt op tijd’.”
den. Het patrimonium wordt nu bewaard door de Sint-Jorisgilde (kruisboog) van Meer. De grond wordt verhuurd aan de stad Hoogstraten.”
Jan was daarnaast een fervent voetballer. “Ik doorliep alle reeksen bij FC Meer en later sjotte ik ook nog bij de caféploeg van ‘t Fortuin. We hadden gouden jaren, vlak na de oorlog. Ik speelde een tijd in dezelfde ploeg als Fons Bastijns, die na FC Meer ook nog voetbalde voor Racing White en Club Brugge. Fons kon goed voetballen, en is op dezelfde dag geboren als ik. Spijtig genoeg is hij ons veel te vroeg ontvallen. Toen Fons begraven werd heb ik terstond mijn pensioen aangevraagd. Zijn overlijden deed me beseffen dat het leven niet eindig is en dat je niet te lang mag wachten om er samen van te genieten.” “Ik bleef lang bij FC Meer, uiteindelijk eindigde ik mijn carrière daar door vijf jaar bij de reserven te voetballen. Ik was kapitein van de ploeg maar werd ingezet voor allerhande werk. Ik zorgde voor de krijtlijnen, moest de documenten invullen voor de scheidsrechter omdat onze afgevaardigde niet goed meer zag en ik maakte ook de ploegopstelling, … Daar heb ik echt wel veel deugd aan beleefd.”
Uiteindelijk werd Jan dan toch weer schutter, zij het met de kruisboog. “De Meerse gildekriebels zaten er nog steeds en werden flink aangewakkerd toen via een uitwisseling een Zweedse volksdansgroep kwam optreden in Minderhout. Iemand van de Minderhoutse gilde trok me aan mijn mouw met de vraag of dat niks voor mij was. Ik ging in op de uitnodiging om eens te komen kijken. Vanaf het moment dat ze me een kruisboog in de handen duwden, was ik vertrokken. De gilde beleefde hoogdagen nadat we ons eigen gildelokaal konden openen.”
Maar ik was in mijn jonge jaren ook handboogschutter. “Ons gildelokaal hadden we in ‘t Fortuin bij Jos Herijgers. Uiteindelijk was ik de laatste schutter. Ik heb veel moeite moeten doen om het patrimonium van onze gilde te redden. Uiteindelijk heb ik de 16de-eeuwse koningsschilden kunnen vrijwaren, maar spijtig genoeg zijn er ook zaken verdwenen. Onze handbooggilde was ook eigenaar van een stuk (bouw)grond. Er werden pogingen ondernomen om die grond in het geniep te verkopen, daar heb ik in allerlaatste instantie een stokje voor kunnen steken. De Sint-Sebastiaansgilde, dat is de naam van de handbooggilde, is eigenlijk een slapende gilde gewor-
“Ik kreeg de vraag of ik koning wilde worden, en ben daar graag op ingegaan. In 1992 schoot ik de hoofdvogel af en werd ik voor zes jaar koning. Er kwam een tweede en een derde termijn en uiteindelijk ben ik keizer geworden. Dat was een primeur, het gebeurde nooit eerder in onze gilde. We hebben mooie dingen kunnen realiseren en kunnen meemaken met onze gilde. Een hoogtepunt was zeker de Keizerviering, samen met mijn Keizerin Lizette. Enkele jaren later werden de Keizers en Hoofdmannen van ons verbond ontvangen door Carl Philipp van Salm-Salm, in de waterburcht in Anholt. Hij is een afstammeling van de graven de Lalaing die de Hoogstraatse gilden hun rechten gaf.”
Jan en Lizette startten met hun bedrijf in oktober 1976. De klemtoon lag toen al op de
Uiteindelijk was ik de laatste handboogschutter
verkoop en de daaraan gekoppelde service van tuin- en tuinbouwmachines. Ze hebben het bedrijf altijd samen gerund. Lizette: “Ik combineerde het met het huishouden en de opvoeding van onze twee kinderen, Els en Stanny.
“Maar ons Lizette stond haar mannetje,” voegt Jan er trots aan toe. “Ze heeft talloze nieuwe grasmaaiers geassembleerd, nam het aanscherpen van de kettingzagen altijd voor haar rekening en staat tot op heden nog altijd in voor de verkoop van de tuinmachines. Ikzelf hou me nu nog vooral bezig met het thuis leveren van het materiaal, nieuwe en herstelde machines.”
De laatste jaren evolueerde het bedrijf van een tweemanszaak naar een klein familiebedrijf. “Onze Stanny is zaakvoerder, Els en onze schoondochter staan in voor de boekhouding. Daarnaast zijn er nog vijf medewerkers die instaan voor de herstellingen.”
“We houden de evolutie in onze sector nauwlettend in de gaten. Zo is er de laatste jaren
Een van de reizen die de firma’s aanboden, voerde naar Japan.
een sterke verandering op het vlak van aandrijving van de motoren. Steeds meer machines worden nu uitgerust met batterijen als krachtbron.”
Feit is dat zowel de professionele land- en
tuinbouwer als de hobbyisten allemaal de weg vonden naar het bedrijf in Minderhout. “Ons cliënteel komt vooral uit de onmiddellijke omgeving, maar we merken dat we ook meer en meer cliënteel uit andere gemeenten en uit Nederland aantrekken.” Sterk werk dus. (ao)
Een zittende wip is veel leuker dan een staande, dacht Jan, en hij bladblies zichzelf de hoogte in.
HOOGSTRATEN - In ons decembernummer hadden we het al over de impact van de financiële crisis op lokale besturen. Hoe het echt gesteld is met de Hoogstraatse stadskas, moest later die maand blijken. Tijdens de commissie financiën en de gemeenteraad werd de aanpassing van het meerjarenplan 2020-2025 behandeld, waarin de voorziene inkomsten en uitgaven voor de volgende drie jaar werden vastgelegd.
Personeelskosten stijgen met 2,7 miljoen euro, energie kost 5,5 miljoen extra, goederen en diensten worden 2,7 miljoen duurder. En tel daar gerust nog een goeie 4 miljoen bij, want de stad voorziet in haar meerjarenplan over de komende drie jaren een kostenstijging van maar liefst 15 miljoen euro. Het college en het managementteam moesten dan ook op zoek naar manieren om het budget weer in evenwicht te krijgen.
Zo’n bedrag trek je natuurlijk niet recht met een maatregel of twee. Het stadsbestuur bespaart, spreidt investeringen over een langere periode en verhoogt de inkomsten. In een vorig nummer hadden we het al over de ingeperkte branduren van de openbare verlichting. De volgende jaren zal de stad ook nog besparen op materiaal, projecten en vakantiejobs. Het budget voor de bibliotheek verlaagt bijvoorbeeld met 65.000 euro, de groendienst en de Mosten moeten samen 40.000 euro besparen op jobstudenten.
Een aantal geplande aanwervingen wordt voorlopig uitgesteld. De stad spreidt de renovatie van de Sint-Katharinakerk over een langere periode, net als de heraanleg van de Gelmelstraat en de geplande ondergrondse parking of huur van parkingpockets in Hoogstraten-centrum. Ook het fietspad Hoogeind
- Meersel-Dreef zal tegen 2025 nog niet gerealiseerd worden: er wordt voorlopig enkel budget voorzien voor de aankoop van de gronden.
Om extra inkomsten te vinden, verhoogt de stad onder andere het inschrijfgeld voor kunstacademie IKO en de toegangsprijzen voor De Mosten. Dat zou 52.000 euro moeten opleveren. En hoewel de algemene belastingen op hetzelfde tarief blijven, rekent het bestuur wel op 155.000 euro extra inkomsten uit de onroerende voorheffing, onder andere door de recente uitbreiding van industriezone De Kluis en enkele grote woningprojecten. Daarnaast voert de stad twee nieuwe heffingen in die de stadskas jaarlijks met 400.000 euro zouden moeten spijzen, waarover verderop meer.
In de hele evenwichtsoefening slaagt het bestuur er zelfs in om voor een aantal projecten
extra geld vrij te maken. Zo werd 430.000 euro voorzien voor meerkosten aan het bouwproject voor jeugdlokalen aan Den Dijk en 1 miljoen euro voor heraanleg van de Hinnenboomstraat, waar werken aan hoogspanning en riolering de kans bieden om meteen ook de slechte staat van de klinkerverharding aan te pakken. In Minderhout voorziet de stad 91.000 euro om een stuk grond aan te kopen van woonmaatschappij De Ark: destijds werden de kavels tijdelijk ingericht als speelveld en nu krijgt men de kans om het drukbezochte pleintje definitief veilig te stellen.
Raadslid Herman Snoeys (Hoogstraten Leeft) kijkt terug op een rustige commissie financiën en bedankt de financieel directeur en zijn medewerkers voor de zware inspanning van de afgelopen weken. Hij is blij dat er ondanks de grote uitdagingen niet gekozen is voor de botte bijl. De eigen werking van het stadsbestuur werd kritisch bekeken en inwoners en personeel werden zo veel mogelijk gevrijwaard.
Het bestuur maakt 91.000 euro vrij voor de aankoop van het speelpleintje in de Treslong (Minderhout).
Raadslid en voormalig schepen van financiën Marc Haseldonckx (CD&V) ziet de zaken net iets anders. “Dat de Hoogstraatse financiën zich in zwaar weer bevinden, is een open deur intrappen,” stelt Haseldonckx. “Dat is niet enkel te wijten aan indexaties. De personeelskosten zijn uit de hand gelopen, ook omdat er de laatste jaren veel aanwervingen zijn geweest bij de stadsdiensten. Ze stijgen van 20,9 miljoen in 2018 naar 32,1 miljoen in 2025, dat zijn indrukwekkende cijfers. Er zijn langdurige erfpachten afgesloten voor de sportsite en de Pax, samen goed voor 81.000 euro per jaar. Voor de parkeerpockets wordt nog eens 200.000 per jaar voorzien, 27 jaar lang. En dan zijn er nog de meerkosten aan investeringsprojecten, die ook niet allemaal aan de
inflatie te wijten zijn: meer dan 945.000 euro extra voor de sportsite, 620.000 euro voor Den Dijk en 524.000 euro voor het Slot.”
“Er wordt enkel geprobeerd de legislatuur zonder kleerscheuren uit te doen, maar het financiële plaatje stopt dan natuurlijk niet. Dit bestuur heeft beslissingen genomen die druk zullen blijven geven op de uitgaven. Projecten worden verschoven naar de volgende legislatuur en er zullen nog noden opduiken: zal daarvoor voldoende budget zijn? De raming voor de nieuwbouw van de brandweer is al van 6 naar 10 miljoen gegaan, en er is nog geen steen gelegd. Het dossier van het nieuw politiekantoor moet nog opgestart worden. Over de nieuwe projecten van deze legislatuur, het overgedimensioneerde cultuurhuis en de ondergrondse parking, blijft het stil.”
Marc Haseldonckx (CD&V)
“Dit meerjarenplan is knip- en plakwerk, patchwerk,” vervolgt Haseldonckx. “Er wordt geschaafd, verschoven en niet-aangeworven. Er komen nieuwe belastingen die aan de burger zullen worden doorgerekend, nadat men al een belasting had ingevoerd op tweede verblijven, leegstand, verkrotting en brandstofslangen. Dit bestuur had grootse investeringsplannen, the sky was the limit, de kas zat vol en men rekende zich rijk. De vorige legislatuur hadden we 28 miljoen euro opgebouwd. Op het einde van deze legislatuur blijft daar 2,45 miljoen van over. En dat bedrag zit vrijwel geheel vast in het grondfonds. Dit plan ontbeert structurele ingrepen en de kas is opgesoupeerd.”
Raadslid Maarten Leemans (Anders) is het met Haseldonckx eens dat dit bestuur geen gebrek aan ambities verweten kon worden. “Onze politieke visie verschilt, waardoor we het niet altijd eens zijn met de genomen keuzes. Maar dit meerjarenplan is gewoon het niet-opnemen van budgettaire verantwoordelijkheid. Kosten worden doorgeschoven naar de volgende bestuursploegen. Er dringt zich een structurele denkoefening op om exploitatiekosten te verminderen, maar die oefening is niet gemaakt. De gekozen ingrepen lijken de weg van de minste weerstand te volgen: besparen op de bibliotheek, groenonderhoud, jobstudenten in de Mosten, verhogen van prijzen voor de Mosten en IKO. En toen dat niet
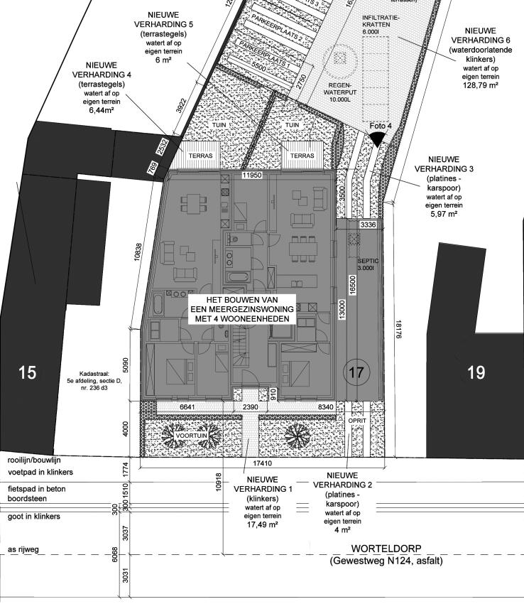
Er komt een nieuwe belasting op groepswoningbouw en meergezinswoningen (appartementen): 2.500 euro per wooneenheid die vanaf 2023 vergund wordt.
voldoende bleek, werden nog twee bedenkelijke belastingen toegevoegd.”
“De reserves zijn opgebruikt op het einde van de legislatuur. Zo kunnen we de gemeentelijke financiën niet gezond houden. Ik zal even in mijn glazen bol kijken: het volgende bestuur zal niets anders kunnen doen dan de belastingen verhogen.”
de vorige legislatuur ook al op, maar gebeurden toen niet.”
Het resultaat van de stemming over de aanpassing van het meerjarenplan laat zich raden: meerderheidspartijen Hoogstraten Leeft en NVA stemmen voor, de oppositie van CD&V en Anders stemt tegen.
Burgemeester Marc Van Aperen nuanceert. “We zitten allemaal in een crisis, dat is geen gevolg van het beleid van de stad, wel van de internationale toestand en de stijging van de energieprijzen. We hebben elke euro moeten omdraaien bij deze aanpassing van het meerjarenplan. Alle pistes werden onderzocht en we hebben ons daarbij sterker gefocust op onze kerntaken. Extra inkomsten halen we bij de sterkste schouders. We hebben de rekening laten kloppen en er zit nog voldoende geld in de portemonnee, al zal dat geen 30 miljoen zijn zoals voordien. We hebben gezorgd dat er geen naakte ontslagen zijn, omdat we voor onze dienstverlening goede en gemotiveerde medewerkers nodig hebben, terwijl er steeds meer taken naar het lokaal bestuur geschoven worden. Aanwervingen drongen zich tijdens
Over de bijdrage van de stad aan de politieen hulpverleningszone was dan weer weinig discussie, hoewel het toch om een flinke hap uit het budget gaat. Hoogstraten voorziet dit jaar 2,6 miljoen euro voor de politiezone en 1,8 miljoen voor de brandweer. Het totaalbedrag ligt maar liefst 1,4 miljoen euro hoger dan in 2022. Eén reden daarvoor is dat ook bij de zones alle kosten sterk gestegen zijn door de hoge inflatie, maar raadsleden Marc Haseldonckx (CD&V) en Fons Jacobs (Anders) wijzen erop dat er meer aan de hand is. De politieraad koos er vorig jaar voor om alle reserves op te gebruiken, waardoor de bijdrage voor 2022 eenmalig lager lag. In vergelijking met 2021 stijgen de uitgaven echter ook met 1,1 miljoen euro.
Burgemeester Marc Van Aperen laat weten dat ook binnen de politiezone inspanningen zijn gedaan om te besparen. De gestegen kosten voor de brandweer zijn te wijten aan toegenomen personeelskosten, maar bijvoorbeeld ook aan extra kosten voor ICT, onderzoeken naar PFAS-vervuiling door blusschuim en een aantal projecten. De zone heeft daarnaast ladderwagens sneller besteld
dan
The sky was the limit, de kas zat vol en men rekende zich rijk
Het volgende bestuur zal niets anders kunnen doen dan de belastingen verhogen Maarten Leemans (Anders)
Klopt het dat Hoogstraten nu zo’n sterke weerslag voelt van de gestegen personeelskosten omdat het personeelsbestand de laatste jaren zo sterk is gegroeid? De gemeente- en stadsmonitor leert ons dat er in 2021 398 mensen aan het werk waren voor gemeente en OCMW, goed voor 280 voltijdse equivalenten (VTE). Dat waren 10 VTE meer dan in 2018. Waren er in 2018 12,7 VTE aan de slag per 1000 inwoners, dan waren dat er 13 in 2021: een kleine stijging van 2,4%.
Ter vergelijking: in gelijkaardige gemeenten daalde dat cijfer in dezelfde periode met 9,8% naar 11,9 VTE per 1000 inwoners.
Het personeelsbestand van Hoogstraten groeide dus inderdaad lichtjes aan in een periode waarin vergelijkbare gemeenten net minder personeel tewerkstelden. Al moet je natuurlijk ook altijd nagaan waarvoor die medewerkers worden ingezet: voor meer dienstverlening aan de burgers is vaak ook meer personeel nodig.
En is de kas leeg aan het einde van de legislatuur, zoals raadslid Marc Haseldonckx beweert? De volgende bestuursploeg gaat begin 2025 aan de slag. Op dat moment is er volgens het meerjarenplan inderdaad een ‘beschikbaar budgettair resultaat’ van 2,45 miljoen euro. In het grondfonds, dat gereserveerd is voor de realisatie van sociale wooninitiatieven, zit in december
2022 2,24 miljoen euro. Als dat bedrag niet verandert, dan heeft het bestuur begin 2025 dus inderdaad vrijwel geen vrije gelden ter beschikking voor zaken die nu nog niet voorzien zijn in het meerjarenplan.
De sterke daling van het beschikbaar budgettair resultaat, van 30,3 miljoen eind 2019 naar 2,45 miljoen eind 2024, komt echter vooral door de grote tekorten van 19,7 miljoen in 2022 en 13,4 miljoen in 2024. In 2025, het laatste jaar van dit meerjarenplan, zou het jaarlijkse tekort weer omgebogen moeten zijn naar een overschot van 3,86 miljoen. Het meerjarenplan eindigt daardoor met een beschikbaar budgettair resultaat van 6,25 miljoen euro.
gepland, om zo’n 700.000 euro meerkosten te vermijden. De personeelsuitgaven zullen de volgende jaren nog stijgen door de verdere versterking van de beroepsbrandweermannen. “Ik ben het met jullie eens dat het een zware boterham blijft om te verteren,” vertelt de burgemeester. “Maar ik denk toch dat het verantwoord is om in veiligheid te investeren.”
Eerst het goede nieuws: de gemeentelijke belastingvoeten blijven ongewijzigd: de aanvullende personenbelasting blijft op 6%, de opcentiemen op de onroerende voorheffing op 882. Beide tarieven zijn en blijven trouwens redelijk laag: in vergelijkbare gemeenten liggen ze gemiddeld op 7,1% en 992 opcentiemen.
Ook wat andere gemeentebelastingen betreft, is Hoogstraten relatief bescheiden: vergelijkbare gemeenten haalden in 2021 gemiddeld 129,50 euro extra op per inwoner, in Hoogstraten was dat 98,31 euro. Mogelijk heeft dat het stadsbestuur geïnspireerd om eens te kijken waar er nog extra inkomsten te halen vielen om het budget weer in evenwicht te brengen. Tijdens de gemeenteraad werden immers twee nieuwe belastingen voorgesteld: één op nieuwe appartementen en groepswoningbouw en één op masten en pylonen.
Wie vanaf 2023 een omgevingsvergunning krijgt voor een groter bouwproject let best even op: de stad voert een belasting in van 2.500 euro per wooneenheid. De belasting geldt voor meergezinswoningen - zeg maar appartementen - en voor projecten van
groepswoningbouw, wat omschreven wordt als ‘het gelijktijdig oprichten van meerdere woningen die een samenhangend geheel vormen’. Voor de vergunning van een gebouw met 10 appartementen betaal je dus 25.000 euro, net als voor een verkaveling waarop iemand 10 koopwoningen realiseert.
Als reden voor deze belasting vermeldt het stadsbestuur de blijvende bevolkingstoename en stijgende verstedelijkingsdruk, waardoor de nood groeit aan kwaliteitsvolle publieke ruimte en gemeenschapsvoorzieningen zoals kinderopvang, onderwijs, vrijetijdsbeleid, zorg en afvalverwerking. Bovendien wil Hoogstraten een overaanbod vermijden van steeds dezelfde vormen van bouwprojecten,
waardoor ‘de ruimtelijke realiteit afwijkt van het karakter en de gewenste schaalgrootte van de bestaande leefomgeving van Hoogstraten’. Ook de mobiliteit en de leefbaarheid lijden onder deze vormen van verdichting, en de omgeving verhardt steeds meer ‘omdat voor dit soort projecten vaak waardevolle gebouwen, landschappelijke elementen of open ruimte verdwijnen’. Het bestuur zegt deze projecten niet te willen verbieden, maar wel ontraden door de hogere maatschappelijke kost en druk die ze meebrengen voor de stad te vertalen in een belasting.
De stad raamt de inkomsten voor 2023 op 300.000 euro en gaat dus alvast uit van 120 bijkomende woningen.
De nieuwbouw voor jeugdlokalen op Den Dijk is al flink gevorderd. Voor de meerkosten is 430.000 euro vrijgemaakt.
Raadslid Ward Baets (CD&V) vindt de nieuwe belasting moeilijk te rijmen met het sleutelwoord “verdichting” dat hij bij de opmaak van het nieuwe beleidsplan ruimte altijd hoort. Bovendien gelooft hij niet dat een belasting de juiste manier is om het ruimtelijke beleid te sturen. “In het verleden hadden we een nota waarin zones afgebakend werden waarin we wel of geen vergunning voor appartementen zouden afleveren. Dat was een informeel instrument waarmee we toch bepaalde sturing konden geven. Die nota wordt momenteel niet meer gebruikt. In het beleidsplan ruimte lijken bovendien nog wel andere instrumenten mogelijk om verdichting te kanaliseren en te sturen. Onze fractie is geen voorstander van deze belasting omdat die er enkel op gericht is om extra middelen te genereren, terwijl de burger de dupe wordt aangezien de meerkost gewoon doorgerekend zal worden aan de koper of de huurder.”
Raadslid Fons Jacobs (Anders) sluit zich grotendeels aan bij de bezwaren van Ward Baets. “Na Hoogstraten meer dan 20 jaar overgeleverd te hebben aan projectontwikkelaars en verkavelaars, die hier een prachtige speeltuin kregen om hun bouwlusten bot te vieren, zegt men nu dat ze ook wel een beetje mogen bijdragen voor de extra kosten die ze met zich meebrengen. Die liggen echt niet wakker van 2.500 euro die uiteindelijk door de koper betaald zal worden. Deze belasting zal geen enkel effect hebben op het aantal appartementen en dient enkel om de kas te spijzen. Vroegere lasten vloeiden nog naar het grondfonds, maar dit wordt gewoon gebruikt om de lopende kosten te betalen.”
“Wij noemen dit een schaamtebelasting, omdat het bestuur zich zo ver heeft laten leiden en misleiden door verkavelaars en projectontwikkelaars. Wat echt nodig is, is een
woningstop om eens goed te kijken naar de echte woonnoden. En als dat niet kan, dan moeten we de taal gebruiken die ook deze mensen gebruiken: die van het grote geld. Er zal pas effect zijn als je 15 tot 20% van de verkoopprijs naar de stadskas laat komen, wat ongeveer de werkelijke maatschappelijke kost zal zijn, en die dan inzet voor betaalbare huisvesting voor onze eigen inwoners. We moeten ons schamen voor ons woon- en bouwbeleid, dit schaamlapje zal daar niets aan veranderen.”
Schepen Roger Van Aperen (N-VA) weet niet waarom hij beschaamd zou moeten zijn als inwoner van Hoogstraten. “Dit reglement is gebaseerd op dat van een aantal andere gemeenten. Het bestuur is niet tegen verdichting, maar stelt vast dat de appartementenbouw en groepswoningbouw exponentieel stijgen. Wij zijn fier om een dergelijke belasting nu te kunnen invoeren omdat het te ver gaat. We moeten niet beschaamd zijn om dat te zeggen. We willen niet stoppen met verdichten, maar alstublieft, niet te eenzijdig.”
“Wat onze eigen burger betreft: als je als inwoner bij wijze van spreken samen met je kinderen een project realiseert van drie wooneenheden, dan moet je niks betalen.” De schepen herhaalt dit nog een keer, omdat vanuit de oppositiebanken verwonderd wordt gereageerd: “Er is duidelijk afgesproken dat dit niet aan de eigen burger mag raken.” De schepen kan dit echter nergens terugvinden in het reglement. CD&V merkt dat er wat aan de hand is en stelt daarop voor om het reglement dan
vandaag maar niet ter stemming te leggen. De fractie betwijfelt bovendien of het mogelijk is om een uitzondering te maken voor inwoners van Hoogstraten. De fractie Anders herhaalt daarop meteen de suggestie om de tarieven bij een herziening dan meteen ook te passen naar 15 tot 20% van de verkoopprijs.
Wanneer schepen Van Aperen zich akkoord verklaart om het belastingreglement dan maar in te trekken, komt burgemeester Marc Van Aperen tussen. “Ik denk dat er sprake is van een misverstandje, kunnen we de vergadering even schorsen?” De meerderheid trekt zich terug voor overleg en laat de oppositie verbouwereerd achter. Niet zonder reden: de nieuwe belasting is immers opgenomen in de aanpassing van het meerjarenplan die tijdens dezelfde gemeenteraad wordt voorgelegd. Zonder belastingreglement kan dus ook het meerjarenplan niet zomaar goedgekeurd worden en dreigt het stadsbestuur zonder uitvoerbaar budget te vallen vanaf januari.
Na de pauze neemt schepen Roger Van Aperen het woord en probeert het voorbeeld dat hij gaf te verduidelijken: “Als ik een perceel grond heb, ik verkavel dat en geef elk van mijn twee kinderen een stuk en zij realiseren daar een woning op, dan betalen zij daar geen
A DHUIS
De meerkost zal gewoon doorgerekend worden aan de koper of de huurder Ward Baets (CD&V)
We moeten de taal gebruiken die ook deze mensen gebruiken: die van het grote geld Fons Jacobs (Anders)
Ik denk dat er sprake is van een misverstandje Marc Van Aperen (Hoogstraten Leeft)
belasting op. Als iemand die drie kavels op hetzelfde moment bebouwt en verkoopt, dan betaalt hij daar wel op.” Dat betekent nog niet dat wie van Hoogstraten is een vrijstelling zou krijgen, klinkt het vanuit de oppositie. “Als ik mijn huis verbouw tot twee woonentiteiten voor mijn kinderen, dan betaal ik ook twee keer 2.500 euro,” geeft Marc Haseldonckx als voorbeeld. “En als ik uit kostenoverwegingen tegelijkertijd drie woningen wil bouwen voor mijn kinderen zonder eerst te verkavelen, dan betaal ik ook,” vult raadslid Hilde Vermeiren (CD&V) aan. “Het klopt dus zeker niet dat je vrijgesteld bent als je van Hoogstraten bent of iets bouwt voor je kinderen.” Schepen Van Aperen neemt daarop weer het woord en zegt dat hij zich vergist heeft. Hij wil het reglement toch graag ter stemming brengen.
stemming voor. CD&V en Anders stemmen tegen, de meerderheidspartijen keuren goed.
De andere nieuwe belasting wordt geheven op ‘masten, pylonen en andere draagconstructies met een hoogte van minimaal 15 meter boven het maaiveld’ en bedraagt 5.000 euro per constructie. Met een 100.000 euro per jaar aan inkomsten rekent de stad dus op 20 zulke masten.
De reden die de stad aanhaalt om masten en pylonen te belasten is dat ze ‘als landschapsverstorend ervaren worden en hinder meebrengen voor de lokale bevolking’. Masten en pylonen voor openbare verlichting, voor verlichting van sport- en recreatieterreinen, voor veiligheidsdiensten en constructies die eigendom zijn van de stad of van een intercommunale waaraan de stad deelneemt, zijn vrijgesteld.
Opvallend is dat Hoogstraten in 2021 nog het Lokaal energie- en klimaatpact ondertekende, waarin het bestuur zich onder andere engageerde om geen heffing in te voeren op windmolens en om bestaande belastingen af te bouwen tegen ten laatste 2025. Toch blijkt uit de discussie tijdens de gemeenteraad dat het net de windmolens zijn die het bestuur viseert.
De oppositie heeft dan ook haar bedenkingen bij deze nieuwe belasting. Raadslid Ward Baets (CD&V) haalt aan dat energiekosten in de toekomst zeker niet zullen afnemen en dat het dan ook niet aangewezen is om belastingen te heffen op de uitbouw van duurzame energie. Bovendien vindt hij het vreemd dat zaken zoals het uitzicht op de windmolens en de hinder als argument worden gebruikt, terwijl die ook al tijdens het verlenen van de vergunning worden afgewogen. Daarnaast stelt
Raadslid Tinne Rombouts (CD&V) betreurt dat het bestuur naar andere gemeenten kijkt voor recepten voor nieuwe belastingen, zonder zelf een eigen visie uit te bouwen. “Er zijn ook andere voorbeelden, ik denk aan Ravels en Kasterlee, die hun belastingen verlagen. Misschien is dat een beter voorbeeld. Er was een tijd waarin tenminste Hoogstraten Leeft geen pestbelastingen wou, maar nu zien we ze wel op appartementen en straks nog op masten en pylonen. Ik heb u gehoord als schepen van financiën: er moet extra geld in het laatje komen. Maar hier gaat het wel degelijk om ruimtelijke ordening, want men wil appartementsbouw ontraden. Denken we echt dat dit gaat helpen? Zuinig ruimtegebruik is de opdracht vandaag en daar heeft Vlaanderen zijn werk gedaan: de gemeenten krijgen instrumenten in handen om niet te ontraden maar effectief beleid te voeren, door te bepalen waar appartementsbouw kan en waar niet, waar we welke woningbouw willen. Waarom kiest Hoogstraten voor financiën en ontraden, en gaat men niet aan het stuur zitten? Waar is de uitdaging van dit bestuur om betaalbaar wonen te realiseren? Dat gaan we niet doen met extra belastingen.”
In de gemeenteraad ontstaat nog een pittige discussie over het beleidsplan ruimte, de appartementennota die niet meer wordt gebruikt en de vraag of er nu al dan niet ‘een wildgroei aan appartementen’ is in Hoogstraten. Voorzitter Gert Van den Bogaert besluit de discussie en legt het belastingreglement ter
hij zich de vraag of het raadzaam is om windmolens te belasten waaraan gemeente of inwoners zelf ook financieel participeren.
€ 40.000.000
€ 25.000.000
Ook raadslid Maarten Leemans (Anders) wijst op de vraag vanuit Vlaanderen om ten laatste tegen 2025 geen belastingen meer te heffen op windmolens. Bovendien vindt hij het vreemd dat de stad enerzijds de telecomoperatoren vraagt om de ontvangst in Wortel en Meersel-Dreef te verbeteren, terwijl ze diezelfde bedrijven nu extra gaat belasten voor elke gsm-mast.
Schepen Roger Van Aperen antwoordt dat hij voorstander is van duurzame energie, maar dat het opvallend is hoe de stad vaak een negatief advies geeft voor de vergunning van een windmolen, waarna die door de provincie toch vergund wordt. “Trop is teveel, het spel staat meer dan vol genoeg”, vindt hij. “De Vlaamse vraag om geen belastingen te heffen is bekend, daarom geldt dit belastingreglement ook maar tot 2025.” Schepen Jef Vissers vult aan dat het bestuur vóór duurzaamheid is, maar dat de stad graag een graantje meepikt omdat ze ervan uitgaat dat door de hoge energieprijzen nu abnormale winsten worden gemaakt met windmolens, die deels mogen terugvloeien naar de burgers via de gemeentekas. Raadslid Marc Haseldonckx (CD&V) betwijfelt of dat lukt, omdat die bedrijven de meerkost gewoon zullen doorrekenen aan de eindgebruiker. Hij ziet de belasting enkel als een manier om het meerjarenplan in evenwicht te krijgen en vraagt zich af wat er dan na 2025 moet gebeuren wanneer de inkomsten wegvallen.
€ 10.000.000
-€ 500.000
“Ik luister graag naar Radio Valencia,” vertelt raadslid Tinne Rombouts (CD&V). “Voor zo’n lokale radiozender is het niet evident om de financiering rond te krijgen. Het lijkt me duidelijk dat het hier niet om woekerwinsten gaat en dat deze belasting dus ook mensen in problemen gaat brengen.”
-€ 20.000.000
202020212022202320242025
De uitgaven voor de politie- en hulpverleningszone (brandweer) stijgen in 2023 naar 4,4 miljoen euro.
“Radio Valencia en andere zenders zaten zeker niet in de doelgroep van dit reglement,” komt burgemeester Van Aperen tussen. “Maar ze vallen wél onder dit reglement,” stelt Rombouts vast. “Je bent misschien uitgegaan van 20 welbepaalde masten, maar dat staat zo niet in het reglement,” stelt ook Haseldonckx vast. Het nieuwe belastingreglement wordt meerderheid tegen oppositie goedgekeurd.
De gemeenteraad kreeg nog twee aanpassingen van reglementen voorgelegd waarover stevig gedebatteerd werd. Het voorstel was om de ‘toelagen aan instellingen voor gehandicapten’, zoals dat destijds nog genoemd werd, te vervangen door een jaarlijkse toelage van 50 euro per Hoogstraats kind aan de instellingen voor bijzonder onderwijs. Het budget dat daardoor vrijkomt, wordt gebruikt voor een nieuwe toelage aan onthaalouders en crèches.
“Het was een moeilijke evenwichtsoefening,” zegt schepen Faye Van Impe (N-VA). “We schrappen de toelage aan de instellingen, die daar vaak in de algemene middelen verdwijnt en waarvan het niet meteen duidelijk is wat de return voor de inwoners van Hoogstraten is. Aan de toelage die ouders van kinderen met een handicap krijgen wordt niet geraakt. We hebben gekozen om te schuiven in de budgetten om tegemoet te komen aan de noden omtrent de opvang van baby’s en peuters.”
De oppositiepartijen zijn het niet eens met die redenering. “Er wordt gesteld dat de toelage voor het bijzonder onderwijs behouden blijft omdat de budgetten daar beperkt zijn,” reageert raadslid Tinne Rombouts (CD&V). “Denkt u dat dat voor de instellingen voor mensen met een handicap niet het geval is? Deze toelage werd destijds ingevoerd omdat wij in Hoogstraten zelf geen instelling hebben en dat we dus instellingen wilden ondersteunen die mensen uit onze gemeente opvangen. Wij staan zeker achter de grote maatschappelijke uitdaging om de opvang van baby’s en peuters te versterken, maar daar kan je ook andere middelen voor gebruiken, zonder die weg te nemen van deze doelgroep.”
“Dit is enkel een bezuiniging,” stelt raadslid Fons Jacobs (Anders). “Ofwel hebben die instellingen deze financiering nodig, ofwel hebben wij twintig jaar geld uitgegeven zonder te weten wat ze daarmee doen en of ze dat wel nodig hebben. Ik denk dat dat geld goed besteed is. We moeten niet besparen op de zwakste mensen in onze samenleving. Hoe kunnen we hen anders nog recht in de ogen kijken?”
Daarnaast schrapt het bestuur een specifieke financiële ondersteuning aan groepsopvang De Vlindertjes, die in 2017 werd opgestart als antwoord op het tekort aan kinderopvang voor baby’s en peuters in Hoogstraten. Omdat De Vlindertjes ook plaatsen vrij houdt voor cliënten van het OCMW en omdat de huurprijs van
Trop is teveel, het spel staat meer dan vol genoeg
Roger Van Aperen (N-VA)
De telecomoperatoren extra belasten voor elke gsm-mast?
Maarten Leemans (Anders)
de locatie destijds een belangrijke drempel vormde om de opvang te starten, gaf het lokaal bestuur 3 jaar lang een tussenkomst van 400 euro per maand. Die ondersteuning werd nog met een jaar verlengd, maar loopt nu af en wordt vervangen door een bedrag per opvangplaats voor alle initiatieven in Hoogstraten. Daarvoor wordt dus ook het budget gebruikt dat vroeger naar de instellingen voor mensen met een handicap ging.
De oppositiepartijen zijn blij dat opvanginitiatieven financieel ondersteund zullen worden, maar gaan niet akkoord om daarvoor andere toelagen te schrappen. De tussenkomst in de huur was bovendien wel degelijk verantwoord, stellen raadsleden Maarten Leemans (Anders) en Tinne Rombouts (CD&V). De Vlindertjes hield op vraag van het OCMW een aantal plekken vrij, met de financiële risico’s vandien. De onthaalouders zagen hun droom dan ook in rook opgaan toen ze in de loop van 2022 hoorden dat de overeenkomst niet meer verlengd zou worden. Later bleek dat ze opvang zouden kunnen organiseren in het nieuwe Gastenhuys. “Maar die locatie hadden we destijds voorzien als extra opvangplaatsen,” merkt Rombouts op. “Ik betreur dat ze nu waarschijnlijk gewoon gebruikt worden voor een verhuis van een bestaand opvanginitiatief.”
“Het dossier van de Vlindertjes komt misschien later nog naar de raad, maar op dit moment stellen we enkel een objectief systeem voor om opvangplaatsen te ondersteunen, met impulsen voor sociale plaatsen en samenwer-
king via het lokaal loket kinderopvang. We koppelen ons beleid daarmee aan doelstellingen en niet aan de ondersteuning van één bepaalde locatie,” besluit Van Impe. “Van de noodplekken die De Vlindertjes vrij hield werd overigens ook maar zelden gebruik gemaakt.”
Oppositiepartij Anders had nog een extra agendapunt toegevoegd aan de raad van december. “We weten dat er een meer dan een ernstig personeelstekort is in het woonzorgcentrum,” licht raadslid Fons Jacobs toe. “In afwachting dat er 8 voltijdse zorgkundigen en één hoofdverpleegkundige kunnen worden aangesteld, ziet het bestuur zich genoodzaakt in eerste instantie een opnamestop in te voeren voor 10 bedden. Als we weten dat er momenteel meer dan 140 kandidaten op de wachtlijst staan, waarvan meer dan 60 met een zwaarder zorgprofiel, dan is dit hemeltergend.” Anders dringt aan op overleg met het bestuur, personeel en vakbonden om na te gaan wat de precieze oorzaken zijn en wat er verder nog speelt bij het personeel.
Schepen van woonzorg Roger Van Aperen (NVA) deelt de bezorgdheid en somt op welke inspanningen al geleverd zijn om de vacatures zo snel mogelijk ingevuld te krijgen. “Vraag aan iedereen om mensen aan te brengen, want dit is inderdaad een crisis,” besluit hij. Net als de rest van het college staat hij open voor overleg.
Ook raadslid en Vlaams parlementslid Tinne Rombouts (CD&V) vindt de situatie problematisch en wil betrokken blijven bij verder overleg. “De uitdaging is natuurlijk ruimer, het is overal in de zorg een uitdaging om personeel te vinden. Maar tegelijkertijd zitten ook wij in Hoogstraten met een specifieke situatie met specifieke knelpunten. Als er kan-
didaten zijn, is het zaak die ook te behouden in een sterk team.”
“Dit probleem houdt mij echt wakker,” besluit burgemeester Van Aperen. Hij richt zich tot Tinne Rombouts: “Ik hoop dat je dit verhaal met evenveel passie overbrengt aan de bevoegde Vlaamse ministers, want dit probleem stelt zich inderdaad in alle zorginstellingen.”
Raadslid Pim Van der Linden (Hoogstraten Leeft) deelde aan het einde van de zitting mee dat het zijn laatste gemeenteraad was. Niet alleen maakt zijn job bij defensie het moeilijk om alle vergaderingen bij te wonen, hij heeft ook een huis gekocht buiten de gemeente en mag vanaf zijn verhuis dus niet meer zetelen in Hoogstraten. Van der Linden bedankt zijn partij nog voor de steun die hij de afgelopen jaren kreeg, sinds hij als achttienjarige "vrij onverwacht in die vreemde wereld sukkelde na de verkiezingen". Vanaf januari wordt hij vervangen door Koen Van Leuven, die ook in 2020 en in de vorige legislatuur al een tijdlang raadslid was. (TW)
Van Aperen (N-VA)
MEERSEL-DREEF - Deze maand is Klein Eyssel onder Meersel-Dreef aan de beurt. Het bestaat uit een stukje straat van ongeveer 800 meter en een betonnen zijstraat die een rondje maakt en weer terug uitkomt op de hoofdstraat Klein Eyssel onder Meerle. Het andere gedeelte van Klein Eyssel onder Meerle van kruispunt Strijbeek-Strijbeekseweg (in de volksmond Cleirens) tot aan de Kampweg vormde al in oktober 2021 nr. 429 het onderwerp van deze rubriek door de gewaardeerde collega van Meerle.
Het Klein Eyssel van Meersel-Dreef situeert zich dus vanaf de Markbrug (volgens kaart Vandermaelen van 1846-1854 bij het Sluyse Weel) bij de watermolen tot aan de oude Kampweg. Op de Ferraris-kaart van 1777 spreekt men reeds van “Clyn Eyssel”, een klein landbouwgehucht.
In de middeleeuwse akten is er meestal sprake van "Eyssel" (1458), vanaf de late middeleeuwen wordt er een onderscheid gemaakt tussen Groot Eyssel en Klein Eyssel, waarbij Groot Eyssel onder Meerle ten zuiden ligt van Klein Eyssel.
Mogelijke toponymische verklaringen zijn de afleiding van het Germaanse "aina" en "sali" wat "eenzaam huis" betekent of de afleiding van "eussel", een plaats waar voorraad is voor mens en vee, land en weide dus.
De verbindingsweg tussen beide huidige deeldorpen slingerde toen doorheen de akkers in plaats van de rechtlijnige straat van nu. We trokken er op uit en belden aan bij enkele bewoners.
Op nummer 31wonen Johan Oomen (57 jaar) en zijn echtgenote Ilse Verbaeten (52 jaar). Bekenden voor mij, en dus kom ik gewoon via de achterdeur naar binnen zoals dat vroeger altijd op ‘den buiten’ de gewoonte was. Na hun huwelijk in 1992 zijn zij onmiddellijk hier komen wonen, in 1999 werden hun tweelingdochters Iris en Lisa geboren, die ook nog thuis wonen.
“Mijn ouders Jef Oomen en Nelly Jacobs woonden eerst aan de overkant in de boerderij van veehandelaar Dolf De Meester, ofwel ‘Dolf van Rieten’, want vader werkte voor hem,” vertelt Jos. “Toen ik vier was, ben ik samen met mijn broers Drej, Jos en Guy en zus Ingrid naar hier verhuisd, met paard en kar, want onze ouders hadden hier dit huis gebouwd. Maar in 1988 is plotseling onze vader, toen 59 jaar, aan een hartaderbreuk overleden toen hij op de akker van onze zus Ingrid in Meerle aan het werken was.
In 1991 hebben we mijn ouderlijk huis kunnen kopen en in 1992 zijn we getrouwd. Later in 2005 hebben we het huis wel nog verbouwd tot wat het nu is.”
Johan Oomen en Ilse Verbaeten “Als kleine ben ik hier nog aangereden…”
Het koppel geniet van een heel mooi tuinzicht, is het hier ook fijn wonen? “Het is hier goed wonen, maar de straat zelf is te smal. De nieuwe fietssuggestiestroken zijn beter dan niks, maar dat is toch niet alles. Er komt hier veel zwaar verkeer langs - bussen, vrachtwagens en landbouwtractoren - en als die elkaar moeten kruisen, rijden ze de bermen kapot. Er is enkele jaren geleden dan wel nieuwe asfalt gelegd, maar die gaten in de bermen naast de weg zijn niet verdwenen.
In de zomer van 1970 ben ik hier als kleine zelfs op straat aangereden geweest door een verpleegster uit Meerle. De brouwer aan huis, ene Rinus, was bij ons thuis aan het leveren, mijn moeder was augurken aan het plukken en wij braambessen aan de overkant van 't straat. Veel verkeer kenden wij toen nog niet. Ik heb van dat ongeval wel een flink litteken aan overgehouden.
Er is sprake van dat er fietspaden zouden gaan komen en ook riolering, tenminste dat zeggen ze toch. Als ik zie wat ik aan gemeentebelasting betaal op mijn onroerende voorheffing, dan vraag ik me toch af wat ze ermee doen… Ze mogen onmiddellijk mijn heg en mijn brievenbus hebben, als ze er maar werk van maken. Die brievenbus zelf wordt wel eens gefotografeerd voor fietszoektochten, dat is wel grappig.”
Of het koppel hier altijd wil blijven wonen, is lang niet zeker. “We hebben voorlopig nog geen verhuisplannen, maar we wonen te ver afgelegen van de winkels, en zowel het huis als de tuin worden in de toekomst te groot. Het gebuurte is ook niet meer het gebuurte van vroeger. We hebben wel fantastische jaren
gekend met de kermisspelen op Dreef. Maar veel mensen in de straat ken ik nu niet meer. En de dochters zijn ook niet van plan om hier te blijven wonen. We zien wel wat de toekomst brengt.”
woont met echtgenote Chris Huybrechts (49 jaar) en dochter Nele (18 jaar). Jos is geboren en getogen op deze plaats. Echtgenote Chris is een echte ‘Mjeelse’, zij komt van Groot Eyssel, dochter van Frans Huybrechts en Maria Mertens. Dochter Nele studeert ondertussen communicatie wetenschappen in Leuven.
Jos is van opleiding timmerman maar werkt bij Agentschap Natuur en Bos; Chris werkt bij het Wit-Gele Kruis. Hij ging indertijd wel naar Meerle naar de school maar de doop en de communies was in Meersel-Dreef, omdat zij onder de kapelanij van de Paters vielen.
Wat hen hier bracht? “Mijn grootouders van moeders kant mochten van de familie Dupret de boerderij pachten, maar zij moesten wel van het wild afblijven, dat zal wel niet zonder reden zijn bedongen. Daarna hebben mijn ouders Adriaan Sprangers en Dina Kustermans de pacht van haar ouders verder kunnen zetten, en uiteindelijk heb ik dit hier kunnen kopen.
Deze oude hoevewoning huisnummer 26 met verschillende bijgebouwen situeert zich op de hoek met de Kampweg. Ik ben aangekomen bij Jos Sprangers (54 jaar), die hier samen
“Tijdens de verbouwing zijn we op een blauwe hardsteen gestuit met inscriptie M.D. 1771.”
Mijn ouders hadden koeien en tuinbouw, zoals je dat vroeger veel zag. Zij zijn bij hun pensioen verhuisd, ik heb dit kunnen kopen van de fam. Guy Dupret en dan heb ik hier nog twee-drie jaar alleen gewoond tot dat ik in 1998 ben getrouwd. Gedurende de verbouwing hebben we tijdelijk in het kleine bakkershuisje gewoond. Tijdens deze verbouwing zijn we ook op een blauwe hardsteen gestuit met inscriptie M.D. 1771, op deze manier weten we dus hoe oud de gebouwen zijn. De afkorting M.D. zou staan voor Marcel Dupret. Bij de verbouwing zagen we overigens ook al dat er verschillende stenen en funderingen waren, zodat ik zeker niet de eerste was die het huis verbouwde.”
Doordat ze iets verder van de straat zitten, lijkt het rustig wonen. “Dat is zo, ons huis ligt op 30 meter van de straat, dus we zitten goed, heel rustig. Maar het is niet meer zoals vroeger, toen we met de go-cars zonder gevaar op
Jos Sprangers en Chris Huybrechts “De zandpaden van vroeger…”
“Het huis en de tuin worden in de toekomst te groot, en het gebuurte is ook niet meer het gebuurte van vroeger.”
“Ik blijf hier wonen zolang ik kan, dus een verhuis is totaal nog niet aan de orde.”
straat konden rijden. Nu passeert er elk uur een lijnbus, dus dat is toch wel hoorbaar, veel vrachtwagens ook. Het vervoer is allemaal groter geworden.
Veel is er aan de straat in de loop der jaren niet veranderd, gelukkig is de bovengrondse elektriciteitsleiding wel ondergronds gebracht. De zandpaden van vroeger zijn natuurlijk veranderd in betonbanen door de ruilverkaveling. Er wordt toch ook wel veel gefietst. Een drietal jaren gelden is hier nog een buitenlandse plukker verongelukt, waarschijnlijk vluchtmisdrijf. Een lijnbus kon in het duister de man, die op straat lag, nog net
vermijden maar botste bij het uitwijken ook nog eens tegen een andere auto.”
En wat met de rioleringsplannen? “Ikzelf heb bij de bouw een kleinschalige zuiveringsinstallatie met beluchting moeten aanleggen, dus voor mij is er geen probleem. Maar aan de gebouwen en de grote tuin is er veel onderhoud en werk, gelukkig heb ik er nog altijd zin in, het mag toch niet gaan tegen steken. Ik blijf hier dus wonen zolang ik kan, een verhuis is totaal nog niet aan de orde. Als onze dochter hier zou willen blijven wonen, dan is dat toch de vierde generatie, dat zou mooi zijn.” (JJ)
Al jaren lang ijverde de dorpsraad van Meersel-Dreef, en bovenal de bewoners van Klein Eyssel zelf, voor een fietspad langsheen deze straat. Eigenlijk zou het niet meer dan logisch zijn, twee deeldorpen moeten toch minstens met één vrij liggende fietspad met elkaar verbonden zijn, en bij voorkeur zelfs twee afzonderlijke fietspaden.
Op de openbare vergadering van de dorpsraad van 26 maart 2022, zei burgemeester Marc Van Aperen (Hoogstraten Leeft) dat er op Klein Eyssel ook riolering zal worden aangelegd, gepaard met de aanleg van ofwel één ofwel twee vrij liggende fietspaden. De juiste timing blijft moeilijk want er zullen grondverwervingen moeten gebeuren en dat kost natuurlijk tijd, soms ook nog eens gekoppeld aan gerechtelijke procedures. Vermoedelijk wordt dit dus 2027.
Ondertussen heeft de stad als tussentijdse oplossing fietssuggestiestroken laten schilderen op Klein Eyssel op het traject Klein Eyssel vanaf de kruising met Groot Eyssel tot aan de school Dreef-Kapelweg (50 km-zone). Tot aan het kruispunt Strijbeek-Strijbeekseweg is dit niet toegestaan omdat dit een 70-km zone is. (JJ)
Lichtmis
als de eerste toverhazelaar bloeit en luidruchtige duiven hun eerste vrijages oefenen als koolmezen geduldig wachten aan de voedertafel en de padden roekeloos oversteken dan roepen mensenkinderen luidkeels om PANNENKOEKEN goudgeel gebakken geurigheid met krakend krokante korst overgoten met glanzende kandijsiroop een genot dat roept om NOG marleen
HOOGSTRATEN - “Ik ben vorige zondag verjaard en 65 geworden.” En direct voegt hij er aan toe: “ Gij zijt van ’49 hé ?” Dit is Líu ten voeten uit. Met een minzame glimlach én met een fenomenaal geheugen voor namen en familiebanden. Al 34 jaar is hij dé Chinees van Hoogstraten, aan het einde van de maand trekt hij definitief de deur van het restaurant ‘Emperor's Garden’ achter zich dicht.
Het is 1989 wanneer Líu samen met zijn oudere broer in Hoogstraten een Chinees restaurant opent aan de Lodewijck De Konincklaan. Het krijgt de naam Emperor’s Garden en wordt met veel luister zelfs door de burgemeester ingehuldigd. Het zal uitgroeien tot een fel gesmaakt restaurant waar Liu uitgroeit tot de charmante gastheer, bijgestaan door zijn echtgenote Chi Fong en zijn schoonzus. Zijn broer trekt zich terug in de keuken en van achter de potten en de pannen blijft hij voor de Hoogstratenaren een nobele onbekende.
Líu, die eigenlijk als voornaam Kit Kau heeft, ontpopt zich tot een onvolprezen zaakvoerder die oog heeft voor elk detail en alle bezoekers op zijn interne harde schijf opslaat. De twee vrouwen schuiven geruisloos door het restaurant en serveren met vlugge handen de talrijke
Chinese rijstschotels, Tjaptjoi ‘s, nasi’s, runderlapjes, loempia’s, en andere grote garnalen. Terwijl de gasten het zich laten welgevallen schuiven anderen aan voor de afhaalmaaltijden. De zaak draait schitterend en Líu ziet dat het goed is.
En zo gaat het jaren aan een stuk tot 2016. Líu’s broer wordt 65 en gaat op pensioen. Líu is dan 58 en heeft nog wel wat jaren voor de boeg. Hij besluit het restaurant te verkopen en vindt een Chinese vrouw uit Antwerpen die de zaak overneemt. Zij zal voortaan de keuken doen en Líu blijft op zijn vertrouwde stek, de bediening in het restaurant. Hij is en blijft het uithangbord van Emperor's Garden. Maar voortaan zal alles relaxter gaan, de stress is
weg maar het plezier van de contacten met alle bekende klanten blijft.
Corona gooit echter heel wat roet in het eten en het restaurant moet verscheidene periodes dicht. Líu zal bijna een jaar thuis in EttenLeur verblijven en het gemis van Hoogstraten laat zich voelen. De terugkeer doet hem deugd, maar op zondag 8 januari 2023 valt het doek. Hij wordt 65 en begint af te tellen naar het einde van de maand. Dinsdag 31 januari 2023 ruimt Líu in de late uurtjes de laatste tafel en trekt daarna de deur van Emperor's Garden achter zich dicht. 34 jaar Hoogstraten, het is mooi geweest. Maar die avond zal wellicht voor hem onvergetelijk worden. Heel wat vaste klanten hebben al speciaal gereserveerd voor zijn laatste acte de présence.
Líu kijkt met veel plezier terug op die 34 jaar in Hoogstraten. “Er zijn er weinig die het zo lang volhouden” zei hij ons een viertal jaar geleden toen wij hem interviewden voor onze rubriek ‘Welkom in Hoogstraten’. “Maar ik heb ook veel geluk gehad en heb dit werk heel graag gedaan. Ik ben altijd positief ingesteld en dan krijg je ook heel plezante reacties van de mensen terug. Ik heb dus veel fijne herinneringen aan Hoogstraten en aan de mensen hier. Hoogstraten is een gezellig stadje. Maar eigenlijk heb ik er niet echt gewoond. Ik werkte hier, deed wel mijn inkopen in Hoogstraten, maar officieel woonde ik Nederland, in Etten-Leur.
Vroeger verbleef ik 5 dagen van de week in Hoogstraten maar de laatste 10 jaar dat ik zelfstandig was, van 2006 tot 2016, was ik wel alle dagen hier. Binnenkort kom ik enkel nog voor mijn plezier naar Hoogstraten. Ik ga genieten in Etten-Leur en van mijn familie. Mijn zoon en dochter hebben alle twee goed gestudeerd en een master in de Economie behaald. Zij hebben alle twee een goede job en intussen is zelfs een tweede kleinkind op komst. Verder hoop ik binnenkort eindelijk nog eens terug op reis te gaan naar Hong Kong . Met de corona is het nu al drie jaar geleden dat ik er geweest ben. Voordien gingen wij elk jaar voor ongeveer 1 maand naar ginder.”
Dat hij uitkijkt naar deze reis is niet moeilijk te begrijpen. Líu Kit Kau is immers geboren in een klein dorpje in Hong Kong, de toenmalige Britse kroonkolonie. Opmerkelijk was dat praktisch alle inwoners van dat dorp de achternaam Líu hadden. Onze Líu is pas drie
maanden oud wanneer vader alleen naar Nederland vertrekt. Jaren later zullen sporadisch de moeder en de vier kinderen afzonderlijk hem achterna reizen.
Vader begint een Chinees restaurant in EttenLeur en ook andere familieleden starten een gelijkaardig restaurant in Nederland op. Líu en zijn broer hebben hier ook wel zin in, maar de concurrentie is intussen te groot geworden. En zo trekken zij de grens over en vinden in Hoogstraten hun gedroomde plek. Geleidelijk aan wordt ‘de Chinees’ een begrip in Hoogstraten.
Vader en moeder zijn intussen gestorven, één broer en een zus wonen in Nederland en de andere broer in Hong Kong. Elk jaar was het een blij weerzien met tal van familieleden in
Hong Kong maar intussen is het weeral drie jaar gelden wegens de strenge maatregelen tegen het coronavirus. Binnenkort is het dus eindelijk weer zover.
Al is er intussen al veel veranderd in wat nu een deel van de Volksrepubliek China is. In 1997 werd Hong Kong officieel door het Verenigd Koninkrijk overgedragen aan China. Massale straatprotesten tegen het autoritair bewind met strenge censuur en harde repressie werden dagdagelijkse kost. En nu de coronamaatregelen teruggeschroefd werden steekt in China het virus terug de kop op. Het wordt dus dubbel uitkijken voor Líu en Chi Fong. Maar net zoals Hong Kong blijft ook Hoogstraten voorgoed in hun hart. Het restaurant Emperor's Garden blijft ook zonder hen verder bestaan. (jh)
MINDERHOUT - Rosette Servaes (1946) wikt en weegt haar woorden. Aarzelend maar weloverwogen. Ze spreekt een andere taal, ziet de dingen ook anders. Rosette klaagt nooit, ze klaagt aan. Ze schrijft het allemaal neer. Poëzie, haar grote liefde, verlost haar van de kwelgeesten, de demonen. Maar evengoed schrijft ze over de ontzagwekkende kleinigheden in het leven, over het rustgevende, het mooie dat dreigt te verdwijnen of de wreedheid in elke natuur. Is dat niet een metafoor van het leven? En, heel belangrijk, “Rosette heeft altijd gelijk,” dat knipoogt tenminste toch haar man Renaat.
Rosette wordt in 1946 als oudste kind geboren in de Vondelstede in Meerle, “de boerderij waar mijn moeder toen woonde”. Na haar worden er nog 4 kinderen geboren. “Ik heb drie jaar op ‘Jal’ gewoond. Maar Heerle is voor mij nog steeds een beetje thuiskomen. Ik ben dan ook blij dat de prachtige hoeve op dit ogenblik wordt gerestaureerd en ik meen dat het op termijn een B&B gaat worden.”
In Hoogstraten kent iedereen haar als de dochter van de garde. Samen met Renaat Van der Vloedt woont ze in de mooie art-deco woning “Zonnelust” in de Van Aertselaerstraat. Renaat is afkomstig uit Arendonk. Dat hoor je onmiddellijk aan het ‘grellig guuwd’ dialect. Het gezin heeft 4 kinderen. Gust is bijna 50, is vrachtwagenchauffeur en woont in Rijkevorsel. Ook Yolande woont in Rijkevorsel, ze is er 37 jaar, master in de filosofie en werkt in Antwerpen. De 48-jarige Marieke studeerde Politieke en Sociale Wetenschappen, woont in Wilrijk en werkt voor het Rode Kruis. Liesbeth (43), woont in Hemiksem en is coördinator in het onderwijs.
“Mijn vader, Gust Servaes, was een bekend figuur. Hij was garde, de veldwachter…” zegt Rosette, “…en een plantrekker,” vult Renaat aan. “Hij werd opgeroepen om zijn dienstplicht te doen. Bij de medische keuring deed hij alsof hij niemand verstond. Hij hield de dokters voor dat hij doof was. En hij werd dan ook afgekeurd.”
Rosette: “Doof of niet. Mijn vader was afkomstig uit Minderhout. Zij hadden een boerderij, de Borselhoeve, in de buurt van de Aveve-winkel. De boerderij werd in het begin van de oorlog plat gebombardeerd. Hij liet zich afkeuren bij het leger omdat zijn aanwezigheid nodig was voor de heropbouw van de boerderij. Niet voor lang echter, want in 1960 werd de hoeve definitief afgebroken. De kinderen werden in de volksmond ‘die van de beusloef’ genoemd.”
Het leven op de beusloef was hard. “Mijn vader verloor een broer Jaak aan een blindedarmontsteking op de leeftijd van 27 jaar en nog een zus Roosje door de Spaanse griep. Er zijn daar harde klappen gevallen in dat gezin. Maar zoals gezegd was mijn vader de veldwachter, de garde zoals hij door velen werd genoemd. Hij is veel te vroeg gestorven, dat was in 1978. Hij was toen slechts 63 jaar. Als veldwachter had hij een lokaal ter beschikking in het oude stadhuis in Hoogstraten. Het is afgebroken om plaats te maken voor de glazen overgang van het oude naar het nieuwe gebouw.
Maar de mensen kwamen toen evengoed bij ons thuis om raad en daad. Het was allemaal niet zo officieel als nu. Mensen kwamen bij ons aan de deur en vroegen dan advies aan mijn vader omdat ze hun paspoort waren verloren. Hij keek hen dan aan en zei : ‘Ga nog maar eens goed zoeken thuis’.”
“Wij woonden toen rechtover ‘de Wachtzaal’ aan het Van Aertselaerplein. Je had het mooie art deco-huis van oorlogsburgemeester Piet Gommers. Dan had je het huis van Liesbeth Hofkens. Twee huizen verder woonden wij. In dat huis van Piet Gommers woonde toen dokter Bastiaens, hij is ook nog burgemeester geweest.
Na de lagere school ben ik onmiddellijk op internaat gegaan bij de nonnen in Vorselaar. En daarna nog twee jaar internaat voor mijn regentaat. Dat maakte toch wel dat ik acht jaar uit Hoogstraten weg ben geweest. Uitgaan deden we soms als we thuis waren in het weekend. Dat deden we in de Grafiek in Kasterlee of in de Diept in Wortel. Soms gingen we al eens naar het Zegeplein in Turnhout. Renaat heb ik leren kennen bij Leonie Tackx. Die had een klein caféetje, met achteraan een platen kot, op de grens van Minderhout en Meerle. Daar werd het
“In Hoogstraten kent iedereen mij als de dochter van de garde.” (foto Jozef Servaes)
bier nog met een kan uit de kelder gehaald. Stoelen stonden aan de kant en er lag nog zand op de vloer. Achteraan in dat platen kot vond regelmatig een studentenbal plaats.”
Renaat: “Ik ben geen danser, maar ik dacht ik moet dat toch eens één keer in mijn leven gedaan hebben. En dan heb ik Rosette gaan halen, met mijn mond vol tanden, en van het één kwam het ander.” Het was een ontmoeting die bij haar een fameuze klik gaf. “Hij zei tegen mij : ‘Dit is een maanhorloge’! Ik vond Renaat meteen ne pronte kerel. Galant en charmant.”
Renaat: “Wist ik veel dat ik met een dichteres zou trouwen…”
Maar het schoolleven duurt niet eeuwig. “Terug thuis zei ons vader dat ik nu maar
‘Er is een
Er is een huis gesloopt waarlangs konijnen liepen en eekhoorntjes die piepen wat op wat brood gehoopt
een huis met mooie muren met ramen achterin en voorin de vitrine ik zeg: de morgenvuren
want ’s morgens zon erop en ’s avonds schemering in rood nu zijn de ramen, vensters dood ik hoor gerommel en geklop
er werd een huis gesloopt nog jong, pas veertig jaren. En nooit nog te bewaren. Ik had het zo verhoopt.
Er komt een ander op ’t perceel. En hoog. En wit. En groot. Het is de nieuwe mens die bood. Hij heeft het geld en veel te veel.
Ook bomen moesten neer en af. Zo kon hij ’t zonnetje steeds zien. Is dat verzinsel nu zo kien? Die struiken, bomen, neer als straf?
Straks rijst er een kasteel in de straat. Hoog, wit. En proper toe? Op stenen daar staat echt geen maat. Ik ben dat moe. Nu moe. Straks moe.
Rosette Servaeswerk moest gaan zoeken. We hadden thuis geen telefoon, dus ging ik aankloppen bij pastoorke Van Reusel die er wel één had. Hij woonde met zijn Hongaarse meid in de pastorij van het begijnhof. Als je tegen de meid moest uitleggen waarvoor je kwam, dan was de tijd al half om.
Overigens zijn alle kinderen van de garde in het onderwijs gestapt. Ons Maria was onderwijzeres, zij is spijtig genoeg vier jaar geleden gestorven. Lucia is ook voor onderwijzeres gegaan, onze Jos voor regent en ons Clara voor kleuterleidster. Mijn eerste lesopdracht was in Bonheiden, daar ben ik één jaar gebleven. Daarna nog even bij Atlas Copco in Antwerpen. En ja, ik heb ook nog een tijdje gewerkt bij de Standaard Boekhandel in de Huidevetterstraat in Antwerpen. Daar moest ik niets anders doen dan enveloppen dicht plakken.”
“Een blik, een wenk, een woord: deze wijze woorden heb ik nog van een oude kloosterzuster meegekregen en dat is me altijd bij gebleven. Ik heb er ook altijd gebruik van gemaakt. Want tijdens je onderwijsopdracht krijg je natuurlijk te maken met tucht. Maar dat ging me eigenlijk goed af, altijd met het getalletje ‘3’ : de derde keer als ik roep is het prijs. Dat heb ik denkelijk voor een stuk ook van mijn vader in uniform. Duidelijk kunnen zeggen waarop het staat. Het komt me nog altijd van pas.
Mijn vader heeft ooit eens iemand opgesloten in zijn timmerkot achter ons huis. Die man was opgepakt wegens familiegeweld en werd
daar met handboeien vastgemaakt aan een paal van de werktafel…” Renaat zegt prompt: “Dat verhaal heb ik dikwijls moeten horen. Die man bleef zijn vrouw maar slaag geven. Ten einde raad werd de garde daarbij gehaald en die pakte hem op en die sloot hem een hele nacht op in zijn timmerkot…” Rosette weer: “En dan sloeg de garde regelmatig met een zware hamer op de tafel en riep: ‘en nu, leg het hier maar eens uit!’, en dan sloeg hij weer met de hamer op tafel, ‘en is dan nu plezant om hier te zitten?’, weer een hamerslag op tafel. Of het nu veel heeft uitgehaald of niet, in het timmerkot hebben we de man niet meer gezien.
Als veldwachter had hij veel contact met de gendarmen, en daar werd soms wel eens te-
De woning “Zonnelust”, Van Aertselaerstraat 55 te Hoogstraten werd in 1933 gebouwd in opdracht van ‘majoor’ Hapers - Druyts, naar een ontwerp van Marcel Rosiers. Deze woning was in haar oorspronkelijke vorm, één van de beste Art-deco woningen in Hoogstraten. Het gebruik van beton rond de ramen van de zware erker verwijst al naar de Nieuwe zakelijkheid die op komst is. Ondanks het feit dat een aantal kwetsbare, maar niet onherstelbare details in de loop der jaren verloren gingen, bleef het karakter van het huis, nu eigendom van de familie Van der Vloedt - Servaes, tot op de dag van vandaag bewaard.
veel gedronken. Als die samen kwamen werden er altijd plezante verhalen verteld. Ook met de veldwachters van de omliggende gemeenten werd er afgesproken. Elke gemeente had zijn veldwachter. In Wortel was dat Jef Sprangers, in Meer Tuurke Eelen, Jan Verheyen in Minderhout - die kon ook heel goed schilderen-, en Jef Janssens in Meerle, hij was een nonkel van mij. Ons moeder is ook een Janssens.”
“Uiteindelijk ben ik begonnen als regentes in de Klinkstraat. Dat was in die tijd een begrip, de straatnaam was genoeg om de school te duiden. Het was een beroepsschool in Turnhout die later is gefusioneerd met het H. Graf. Ik gaf daar Nederlands en Godsdienst.”
Renaat: “Heb jij ooit godsdienst gegeven?
Rosette: “Jawel Renaat, ik heb ooit echte godsdienst gegeven, eigenlijk van 1972 tot ik op pensioen ben gegaan, weliswaar met enkele, niet betaalde, onderbrekingen. Ik heb altijd les willen geven en deed dat ook altijd graag.”
Er was wel meer dat haar beroerde. “Al in de jaren zeventig werden de eerste tekenen zichtbaar van overconsumptie, milieuverloedering, nucleaire dreiging en bewapening. Met sympathisanten heb ik lang te
Hier liggen geen soldaten Maar jongens die goed konden timmeren Beenhouwers, profeten en onderwijzers. Ze speelden vroeger voetbal.
Hier liggen schilders, ramenwassers en dromers. Ze droomden om een eigen café en eethuis te beginnen. Ze namen vroeger centen mee naar hun café. Later hun lief die nu alleen moet gaan.
Hier liggen geen soldaten maar herders. En boeren. Metsers en heel jonge ministers. En bankbedienden. Winkeliers, tuinmannen, schrijvers. En veel vaders. Van nu en later.
Hier slapen kinderen van zeventien. Hier slapen schouders en lieve jukbeenderen. Hier slapen misschien drie echte soldaten. Misschien vier.
Rosette Servaesmidden van de Vrijheid gestaan om te protesteren tegen de raketten. Op de middag!
Ik heb dat protest willen vertalen in een politiek engagement. Eerst bij Fusiebelangen, daarna bij Agalev. Ik heb de hoffelijkheden maar vooral de onhoffelijkheden in de Hoogstraatse dorpspolitiek gehoord en gezien én inzicht gekregen in het politieke spel. Dat was misschien wel nodig, anders zou ik naïef zijn gebleven. Politiek is een heel ernstig iets. Dat wordt nogal eens vergeten, vooral door politici. Er was in dat milieu een beetje veel ernst, maar vooral een gebrek aan humor.”
“Ik weet goed dat ik in mijn leven bepaalde mensen heb gekwetst. Maar nooit met opzet. Ik zegde dat vroeger ook tegen mijn leerlingen : ‘Niemand staat boven u of onder u. Iedereen is belangrijk, iedereen’. Ik heb dat zelf goed kunnen toepassen in mijn schoolopdracht. Er voor zorgen dat ik mijn zeg kon doen, maar dat ook de leerlingen de ruimte kregen om hun ding te zeggen. En altijd weer met het cijfertje 3, zoals ik eerder al zei : drie kwartier les en het laatste kwartier de vrijheid geven aan de leerlingen om iets te doen zolang het maar met de school te maken had. Op die manier kreeg ik ook een beter inzicht in de verhoudingen tussen de leerlingen onderling.
Nooit heb ik moeten gaan klagen bij de directie over tuchtproblemen of andere zaken. Enkel in het laatste jaar dat ik les gaf had ik een klas die niet bereid was tot luisteren. Dat was echt niet te doen, ik kreeg daar geen grip op. Toen heb ik gedreigd: ofwel ik buiten ofwel die en die leerling. Toen gingen de ogen pas open voor de directie. Dat heeft dan geleid tot procedures. En ik hou van procedures als ze leiden tot resultaten.”
Een dans in een platen kot leidde naar het huwelijk van Rosette en Renaat.
“Maar om een lang verhaal kort te maken, de directie heeft ook de ouders ter verantwoording geroepen. Zo hoort dat. Zij hebben een grote taak te vervullen als het gaat om de opvoeding van hun kinderen. Soms laat dat wel eens te wensen over. Ook vandaag de dag, denk ik. Ik heb
“Ik geloof heel sterk dat iedereen creatief en scheppend kan zijn.” (foto Jozef Servaes)
dat zien toenemen, een algemene gemeenschapsgeest die ook doorsijpelt in alle lagen van ons onderwijs. Ik pleit hiermee niet voor een ouderwets onderwijssysteem. Het is ook maar een systeem en dat past zich aan. Maar ik geloof rotsvast in mijn regel van 3.
Er wordt op dit ogenblik veel te veel tijd gestoken in praten, praten en nog eens praten. Een lijn trekken, durven trekken en dan heb je nog de keuze tussen een volle lijn, een stippellijn en een golvende lijn. De aangenaamste lijn is de golvende lijn. (lacht)
Ik heb hier een boek van Kees van Kooten. In een bepaald hoofdstuk heeft hij het over reclameschilderwerken op zijgevels, begin 20ste eeuw in Frankrijk. Hij toont aan dat ook in die wereld de schilders zich moesten aanpassen aan de toen bestaande norm. Het was aanpassen of verdwijnen. Een Darwinistische visie. Maar zo ook met ons. Wij zijn geen onderdeel van het universum. Wij zijn het universum.”
Een rode draad door al wat Rosette deed, is haar eigenzinnige poëzie. “Wat is een leven zonder poëzie? Gedichten heb ik altijd geschreven. Dat zit er gewoon in bij mij. Ik heb heel veel ontzag voor woorden. Woorden hebben een voorgeschiedenis, die zijn ergens van gekomen. Een woord is nooit zomaar wat.
In ‘dichten’ zit het woord ‘dicht’. Dus dichten is voor mij twee dingen bij elkaar brengen. Dat zit in ieder van ons. Mensen zijn vaak te bescheiden om dit te erkennen. Maar ze kunnen het, ieder van ons. Ik geloof heel sterk dat iedereen creatief en scheppend kan zijn.”
Ook ver buiten Hoogstraten vond haar poëzie soms weerklank. Over het prachtige “Lommel” publiceerde wijlen Herman De Coninck ooit
een bijzonder lovend commentaar. Over hoe de ‘gelegenheidsdichter’ soms alle andere dichters ver achter zich laat.
Praten met de dichteres Rosette heeft geen einde, geen begin. Ze slingert tussen hoop en ontgoocheling, een leven vol goedheid en bewondering in lyrische rijmen. Een traag bewandeld pad, maar Rosette weet goed haar eigen richting te gaan. “En dat is geen klein ding in een mens zijn leven!” - aldus Felix Timmermans. (pm)
“Ik heb ook inzicht gekregen in het politieke spel. Dat was misschien wel nodig, anders zou ik naïef zijn gebleven.” (foto Jozef Servaes) W O O R D V A N D E M A A N D (22)
ze de show
Echtgenote van Liu
Wist niet dat hij met een dichteres zou trouwen
Wordt volgens Ward Baets doorgerekend aan de huurder
We gaan er regelmatig bij gluren (jc)
IJ’ is één vakje. Mail het woord uiterlijk dinsdag 14 februari door naar redactie@demaand.be en maak kans op een cadeaubon van Hoogstraten voor de waarde van 20 euro. Of stuur naar: De DE HOOGSTRAATSE MAAND, Begijnhof 26, 2320 Hoogstraten. Vergeet niet uw naam en adres te vermelden.
cadeaubon van € 20 gaat naar: Greet Sprangers, Het Lak 7, 2321 Meer
MEER - Op 26 november plantten vrijwilligers van Natuurpunt Markvallei 750 bomen en struiken aan op een pas verworven perceel in natuurgebied De Aschputten in Meer. Op die manier draagt de vereniging bij aan een mooier landschap, maar ook de strijd tegen de gevolgen van de klimaatverandering en voor de instandhouding van onze fauna en flora varen er wel bij. Ook elders in onze natuurgebieden is Natuurpunt volop aan het werk. En niet overal gaat het dan om bebossing, andere gebieden vragen soms om een ander beheer.
Voorzitter Bart Royens: “Hoe meer bomen we kappen, hoe meer CO2 er vrijkomt en hoe sneller de aarde opwarmt. Bomen planten is dus terecht populair! Ze zijn onze bondgenoot in de strijd tegen klimaatverandering. En iedereen lijkt daarvan doordrongen. Ook dieren hebben uiteraard nood aan bossen. Hun leefgebieden raken versnipperd en hierdoor wordt het lastig om voedsel en soortgenoten te vinden. Dus bomen planten om bossen te maken is dik in orde voor klimaat, voor fauna en voor flora. En daarom wil Natuurpunt ook inspanningen blijven leveren om bossen te beschermen en te creëren.”
Daar horen ook wel enkele kanttekeningen bij, vult Bart aan. “Niet alleen bossen zijn bondgenoten in onze strijd tegen klimaatverandering. Venen en beemden zijn dat ook. Concreet herstelden we het hoogveentje in Den Rooy in Meerle, vooral omdat het veen- en heidebiotoop onder grote druk staat. Daarvoor moesten naaldbomen wijken. Maar het veenherstel brengt uiteraard nieuw leven en een proces op gang dat uiteindelijk veel meer CO2 uit de lucht haalt dan de bomen die er stonden. Veen is eigenlijk een soort grond, waarin de plantendeeltjes maar half verteerd zijn. Hierdoor wordt de koolstof die in die planten zat, opgeslagen in de bodem en komt het niet in de atmosfeer terecht. Maar als het veen uitdroogt, komt al die CO2 in onze atmosfeer terecht. Door het te herstellen, kunnen we dit voorkomen en kunnen we uiteindelijk zelfs opnieuw koolstof uit de lucht halen.”
Om dit te verwezenlijken moet het veen nat staan. “Hiervoor brachten we de waterstand terug tot 10cm onder het maaiveld door lokale greppels en grachten te dempen. We activeren zo ook opnieuw de sponswerking van het veen. Het veen kan opnieuw water bufferen en zomerdroogte tegengaan, overstromingen worden voorkomen doordat het veen in de bodem het water opslorpt zoals een spons. Naast waterbuffering en koolstofopslag heeft veen nog veel meer nuttige functies zoals bescherming tegen erosie, waterzuivering, bodemvorming, biodiversiteit en nutriëntencyclus.”
“Bomen planten op percelen die andere potenties naar biotoopherstel hebben is niet altijd een goed idee. Voor sommige biotopen is het zelfs belangrijk dat bomen en struiken geen kans krijgen om er te groeien. En ook los daarvan is het aanplanten van een bos op een nutriëntenrijke bodem - aangerijkt door stikstof en fosfor - niet het beste idee. Dan creëer je een bomenakker met als ondergroei enkel brandnetels en bramen. Het duurt decennia vooraleer het bos zich kan vormen. In een dergelijke situatie is het eigenlijk beter om de bodem door beheer te laten verarmen en spontane verbossing te laten optreden.” Deze bevindingen zorgen binnen de beheerswerkgroep van Natuurpunt Markvallei voor gezonde discussies en maken dat enkel wanneer het duidelijk is dat bebossing een gewenste mogelijkheid is, overgegaan wordt tot het aanplanten van percelen of verbossing zijn werk te laten doen. “Het gaat dus iedere keer over weloverwogen beslissingen. Zoals
wel meer wordt gesteld: beheer is keuzes maken. En dat is niet altijd gemakkelijk. Kiezen is immers ook verliezen.”
De vereniging blijft inspanningen leveren om gronden aan te kopen om natuurgebieden en/of bossen te beschermen of te versterken. “Wie percelen te koop wil aanbieden of weet heeft van percelen die verkocht worden, melden dit best aan onze aankoper Jos Martens. In het begin van vorig jaar kon hij een perceel kopen langsheen het fietspad langs de Mark, in de Aschputten. In onze zoektocht naar percelen die beplant konden worden, leek ons dit wel een mogelijkheid. De Aschputten was oorspronkelijk een kleinschalig landbouwlandschap met houtkanten en heggen. Dus een aanplant was hier wel op zijn plaats.”
Jef Martens was de brenger van nog meer goed nieuws, zo blijkt. “Een tijd voordien benaderde Jef ons immers met het heuglijke nieuws dat hij zeventig jaar zou worden en een feestje zou geven. Jef wilde dat het geld voor de geschenken besteed zou worden aan een goed doel, en hij dacht daarbij nadrukkelijk aan Natuurpunt. Hij zou het leuk vinden als met ‘zijn’ geld bomen en struiken zouden aangeplant kunnen worden, maar ook met een financiële ondersteuning van de werking van Natuurpunt Markvallei kon hij wel leven. Dat kwam dus goed uit…”
Op 26 november kwamen Jef en een twintigtal vrijwilligers een handje toesteken bij het planten. Binnenkort wordt hier nog een rustbank geplaatst zodat voorbijgangers kunnen genieten van het opgroeiende bos en het mooie landschap. Die bank wordt geschonken door Dela. (ao)
Vrijwilligers plantten eind november 750 bomen en struiken aan in de Aschputten.
HOOGSTRATEN - Volop wintertijd. De bladeren zijn al lang gevallen, de wandelaars hebben hun dikke winterjassen en laarzen aangetrokken, de warme chocomelk dampt en kleine jeneverglasjes worden in één vloeiende beweging tot de bodem geledigd. Het is prachtig wandelen in Wortel-kolonie. En toch mis ik iets. De schapen zijn immers weer vertrokken en met hen de herder en die haast radar-gestuurde honden die de kudde bijeenhouden. Die bordercollie honden hebben mijn hart gestolen. Verschillende Hoogstratenaren hebben zulke hond en zijn gepassioneerd in het werk van het schapendrijven. Eén van hen, en niet de minste, is Gert Krols uit de Molenstraat in Hoogstraten.
Het was een warme zomerdag in Wortel-kolonie. Een kudde schapen graasde rustig onder de boomkruinen in een van de vele dreven van de kolonie. Ineens een schel fluitsignaal en uit het niets stormde plots een zwart-witte herdershond naar enkele afgedwaalde schapen en stuurde hen met volle overtuiging terug naar de kudde. Het lekkere malse gras van het hooiland aan de rand was even heel aanlokkelijk geweest. Maar dit was buiten de herder aan de overkant van de kudde en de snelle bordercollie aan de andere kant gerekend.
Alles terug naar af en de hond legde zich weer rustig neer. Zijn ogen weken echter geen moment van de schapen af. Deze taferelen hebben wij tientallen keren gezien en steeds
stonden wij met bewondering te kijken naar het werk van die honden maar vooral naar de haast vanzelfsprekende samenwerking tussen mens en dier, tussen herder en herdershond. Daar wilden wij wel meer van weten en dus klopten wij aan bij Hoogstratenaar Gert Krols, de voorzitter van de nationale Belgian Border Collie Club, gepassioneerd hondenliefhebber maar ook duvel doet al in zijn club.
“Ik ben opgegroeid in Minderhout maar heb de eerste twee jaar op het Begijnhof in Hoogstraten gewoond” vertelt ons Gert wanneer hij zich aan ons voorstelt. “Toen ik in de lagere school zat, zei ik altijd dat ik graag boer zou willen worden. Maar ik kom uit een burgergezin en dus was daar geen mogelijkheid voor. Toch heeft die interesse er bij mij altijd
ingezeten. Ik ben daarna naar Vito gegaan en heb er de afdeling Lassen gevolgd. Maar dat beroep heb ik niet uitgeoefend want ik ben al vlug bij De Lijn gaan werken als buschauffeur.
Die job doe ik nu nog altijd. Het gaf me de mogelijkheid om een stukje van mijn eerste liefde terug te vinden. Geen boer met koeien en varkens of kippen, maar schapen kweken en verzorgen in functie van mijn grote passie, de bordercollie hond.” En hiermee is Gert vertrokken voor een lange monoloog vol passie en inzet voor een hobby die voor hem als het ware een tweede voltijdse job geworden is.
“Ik zit evenveel tijd achter het stuur van mijn bus dan dat ik met mijn schapen en mijn honden bezig ben. Ik heb het geluk dat ik op de zogenaamde ‘gesplitste lijnen’ zit met vooral schoollijnen en woon-werk verkeer. Tussen die ritten in heb ik nogal veel vrije tijd en die benut ik bijna volledig voor mijn hobby die wel heel arbeidsintensief is. Ik woon in de Molenstraat vlak naast de Salm-Salmmolen. Daar is ook de officiële zetel van de BBCC, omdat ik de voorzitter ben.
Ik kan bijna van mijn bed in de bus stappen en andersom. Dat is wel heel gemakkelijk want er is heel wat werk in de club. Het gaat immers niet alleen over de honden, maar wij hebben met de club heel wat schapen die we gebruiken om de honden op te leren en mee te trainen.
Het is bij mij allemaal begonnen met een zoektocht naar een nieuwe hond. Ik heb eigenlijk altijd al honden gehad, van alle soorten wat. Toen ik op zeker moment zonder zat en op zoek was naar een nieuwe, raadden heel wat vrienden mij aan om een Maltezer te kopen. Maar dat zag ik niet zitten. Ik wilde iets actiefs, een hond die goed floreert in een gezin en vooral actief is. En dus koos ik voor een bordercollie. Niet omdat iedereen dat op dat moment zocht, maar vooral omdat ik wist dat het een slimme hond was en waarmee ik mij ook kon uitleven. En bovendien is het een hond die lang kan meegaan.
In eerste instantie ben ik dan gaan zoeken bij
een private kweker en daarna eens met een vriend met een bordercollie naar de hondenschool gaan kijken en toen wist ik het zeker. Dat is een hond voor mij. Die pup kostte wel wat geld en daarom vond ik het extra belangrijk om ermee naar de school te gaan. En zo is het verhaal bij mij begonnen.”
“Ik heb intussen al verschillende bordercollies gehad en de eerste was er een uit de ‘showlijn’. De volgende kwamen altijd uit de ‘werklijn’. Bij de bordercollies zijn dat eigenlijk de twee categorieën, maar dat wist ik in het begin nog niet. Maar wie iets van honden kent, ziet direct het verschil.
De collies uit de showlijn zijn zowat de honden die ge in het straatbeeld ziet. Die zijn schoon afgeborsteld, een beetje geblokter en met een kortere snuit en hier kan je verschillende kleuren in aantreffen. Dat zijn de meest ideale gezinshonden. Die worden vooral gekweekt op het esthetische maar ook op hun rustig karakter. Dat is wel belangrijk voor wedstrijden waarbij de hond heel rustig met zijn baas moet kunnen meelopen.
De honden uit de werklijnen zijn spichtiger omdat die gebouwd zijn op snelheid en op werken. Die honden worden veel gebruikt in Schotland, Wales, Ierland, ze moeten op korte tijd grote afstanden kunnen afleggen om schapen te gaan ophalen. Die zijn over het algemeen groter, staan hoog op hun poten en zijn ranker. Deze honden zijn meestal kortharig of half langharig tegenover de collies uit de
showlijn die langharig zijn.
De showhonden zijn niet zo neurotisch als de honden uit de werklijnen. Die laatsten zijn inderdaad zenuwachtiger en hebben heel veel nood aan beweging. Ze moeten hun bezigheid hebben en zijn daarom ook minder gezinshond, tenzij je ze genoeg werk kan geven. Dat hoeft daarom niet persé werken met schapen te zijn, dat kan van alles zijn. Als zij maar genoeg bezigheid hebben, zowel fysiek als psychisch. Die honden hebben dat echt nodig.”
“Wij werken nu in onze club, de Belgian Border Collie Club, waar ik de voorzitter van ben bijna uitsluitend met de honden uit de werklijn. Vroeger was dat anders. Toen waren we een grote club met meer dan 100 leden. We deden toen zowel gehoorzaamheidsparcours, show, agility (wendbaarheid), en tal van andere disciplines naast het schapendrijven.
Op zeker moment is de club versplinterd en heb ik de zaak overgenomen. Wij doen dus nu nog alleen de show voor de rasvereniging en het schapendrijven. De meeste van onze 70 huidige leden zijn bezig met het schapendrijven. Ik zou daar heel lang over kunnen vertellen. De meesten van ons begonnen vroeger met gehoorzaamheidsoefeningen: de hond laten meelopen, wandelen, bij u roepen, aan de voet laten zitten, afleggen, allerlei hindernissen laten nemen, enz.. Sommigen stopten er dan mee vanaf het moment dat de hond een beetje luisterde. Maar anderen gingen er mee verder vooral om aan wedstrijden in gehoorzaamheid mee te doen. Wij doen dat nu niet meer.”
“Wij zijn specifiek gericht op het schapendrijven en enkel en alleen met onze bordercollies. Wij krijgen regelmatig vragen van mensen met andere rashonden om ook een opleiding te krijgen, maar dat hebben we altijd afgehouden. Ik heb wel verstand van bordercollies maar niet van andere honden. En ik wil alles goed doen, dus begin ik daar ook niet aan. Wij willen onze leden een goede begeleiding geven.
En ge moet ook wel bedacht zijn voor je schapen en zorgen dat zij niet beschadigd worden door de scherpe tanden van de honden. Dat zijn uiteindelijk verre afstammelingen van de wolf en een schaap is altijd al een prooidier geweest. Wij hebben zelf een eigen kudde
Wij zijn specifiek gericht op het schapendrijven
schapen die we specifiek gebruiken om te werken met onze honden. Die schapen zijn eigendom van de vereniging en staan op mijn naam. Ik was altijd de man die de praktische zaken binnen de club regelde, zoals de schapen uitsorteren voor de kweek en selecteren om mee te werken.”
“Onze schapen staan allemaal in Vlimmeren, soms ook in Wechelderzande. Maar soms komen we ook in Meer en in Hoogstraten waar we begrazingsprojecten doen. Dan mogen we bij boeren een wei afspannen en daar het gras kort laten afgrazen, zodanig dat die boer dat al niet meer moet afmaaien vooraleer het nieuwe seizoen kan beginnen. Dat is dus een win-win situatie. Voor ons is dat een kostenbesparing op voedsel.
Wij hebben een 100-tal schapen waarvan we er een 30-tal gebruiken om mee te trainen. Andere verenigingen zoals de vzw Kemp die de begrazing doet in Wortel en Merksplas kolonie laten zich hiervoor betalen. Maar zij hebben natuurlijk veel meer schapen dan wij. Ik denk dat zij er in totaal wel 2 à 3000 schapen hebben waarvan er tussen 200 en 300 schapen in de kolonie actief zijn. Die herders en de vereniging worden betaald door Kempisch Landschap of de overheid. Wij moeten het vooral hebben van onze vrijwilligers.
Gert Krols met een deel van zijn kudde schapen en zijn twee bordercollies. Terwijl Gert even poseert voor de fotograaf verliezen de honden geen ogenblik de schapen uit het oog.
lijnen hebben het instinct van bij de geboorte, veel meer dan bij de collies uit de showlijnen. Ge moet ze natuurlijk nog wel verder opleiden. Wij testen die hondjes al als ze vier maanden zijn en dan selecteren we ze. Het enige wat je moet doen is dat hondje een beetje aanmoedigen en dan zie je direct wat er genetisch in zit. De extreem goeie hondjes lopen direct al rond de schapen en drijven die zo naar de baas. De andere goede lopen ook direct naar de schapen, maar lopen al eens tussendoor en drijven de schapen in een hoekje of tegen de draad en ‘parkeren’ de schapen zodanig dat wij die kunnen pakken. En dan pakken wij dat hondje op en zetten die weer ergens anders neer en beginnen wij rond de kudde te stappen zodat dat hondje ook mee rond de schapen draait. En zo leert hij de juiste positie kennen.
Er komt toch heel wat werk bij kijken. Denk maar aan de afspanning zetten op de grasvelden voor de begrazing, het winnen van hooi voor de winter, aanschaffen van voederbieten, de schapen scheren, in de winter het ijs van de drinkenbakken kappen, enz. Dan komt het boereninstinct bij mij naar boven. Van lasser ben ik een beetje een boerke geworden.”
“Onze schapen zijn Houtlandschapen, een beschermd ras. Het zijn echte natuurschapen of heideschapen. Zij staan altijd buiten. Ze kunnen wel onder een schuildak maar zij komen niet binnen in een stal. Ze zijn erg zelfredzaam en lammeren zonder hulp. Wij hebben het geluk dat die schapen ook wat geld opbrengen. We proberen enerzijds de kostprijs te drukken door de schapen bij boeren te laten grazen en anderzijds hebben wij onze ontvangsten van de wedstrijden en de beperkte lidgelden. Leden betalen 90 euro per jaar.
Ook bij wedstrijden kunnen wij wat geld ver-
dienen voor de club. Zo betaalt een hondeneigenaar 10 tot 15 euro om zijn wedstrijd met een hond te kunnen doen waarbij hij dan een vijftiental minuten op het veld staat. Je moet rekenen dat wij op een weekend toch een 100tal deelnemers hebben aan wedstrijden die we doen met onze eigen schapen. Die moeten wij dus niet gaan huren. Maar om altijd voldoende schapen te hebben bij de verschillende wedstrijden gedurende het jaar en de trainingen, moeten wij ook een selectie maken, welke schapen we wanneer laten dekken. Want dat zijn onze werkingsmiddelen die belangrijk zijn voor het voortbestaan van onze club. Als wij vroeger voor grote Europese kwalificatiewedstrijden schapen moesten huren bij de vzw Kemp dan betaalden wij al snel 2,5 euro per schaap en daarbij nog eens minstens een 600 euro voor transport.
De schapen gaan tot 8 jaar mee en worden dan verkocht, net zoals de rammen die niet voldoen voor ons. Elk jaar rijden we met de jonge rammen naar Puyenbroeck bij Wachtebeke waar ze gekeurd worden naar raskenmerken bij de Vereniging voor Levend Erfgoed. De rammen die goedgekeurd worden verkopen we als dekram en de rest gaat weg voor de slacht.”
“Bij de bordercollie zit schapendrijven in de genen. De meeste jonge honden uit de werk-
De schapen moeten zich altijd tussen de herder en de hond bevinden, om altijd controle over de kudde te hebben. Die jonge hondjes hebben de moeder niet nodig om dat te leren. Soms zijn er hondjes waar dat werkritme niet meer in zit en dan moeten de eigenaars eerder kiezen om er andere dingen mee te doen. Als de hondjes geschikt zijn voor het schapendrijven gaan de eigenaars er terug mee naar huis en krijgen ze richtlijnen van ons mee om ze wat gehoorzaamheidsoefeningen te geven, maar zonder overdrijving. Die honden moeten immers later op afstand kunnen werken. Als ze een maand of 7 zijn dan komt men er mee naar de club en dan beginnen de basisoefeningen met de schapen in een kraal waar ze niet weg kunnen. Dan leren we die honden te gaan liggen, terug te komen, links en rechts te lopen, enz.”
“Uiteindelijk komen we er toe dat de honden reageren en luisteren naar de fluitsignalen van de herder. Hiervoor worden speciaal platte herdersfluitjes gebruikt waarop je vanuit de keel moet leren blazen. Je moet eerst voor jezelf de fluitbevelen leren en je doet dat best als je alleen bent. De honden worden daar anders zot van. Die reageren daar heel fel op.
Wij volgen een stappenplan voor de opleiding van zo’n bordercollie. Eerst leer je de lichaamstaal. We wandelen rond de schapen en bewegen met onze armen in de richting waarheen we willen dat de hond zich beweegt. Als die beweging goed zit, dan zetten we daar een bevel op. Dan wordt het verbaal. Bijvoorbeeld linksom is ‘come by’ , rechtsom is ‘away’. En als dat allemaal goed zit dan kan je daar de fluittonen op gaan zetten. Dan zet je een fluitsignaal op een aangeleerd bevel voor die hond.
Fluitsignalen hebben het grote voordeel dat die ook tegen de wind en op afstand beter
Van lasser ben ik een beetje een boerke geworden
Bij de bordercollie zit dat schapendrijven in de genen
hoorbaar zijn en ook dat de stress in je stem minder merkbaar is. Een hond kan zo’n fluitsignaal heel ver opvangen, die hoort tot 7 maal beter dan wij. Die fluitjes zijn in oorsprong ontworpen voor de herders in de bergen. Die moeten vaak vanuit het dal de honden aansporen op de bergflanken. Fluitjes zijn in grote lijnen wel universeel maar toch heeft elke herder zowat zijn eigen taal en afspraken met zijn hond. Jij kan gerust je hond trainen met andere woorden dan de klassieke. Jij maakt in de opleiding de afspraak met je hond. Dit betekent dat voor jou. Zo zie je soms wel eens op wedstrijden dat het fluitsignaal bij een bepaalde herder ‘links’ betekent daar waar het bij mij ‘rechts’ betekent. Dus elke hond heeft maar één echte baas nodig.
Zo heb ik ook al wel eens een herder vervangen in Wortel-kolonie en dan neem ik mijn eigen honden mee. Ik kan niet werken met de honden van die andere herder. Dat kan problemen geven, bijvoorbeeld als die schapen op hol gaan, en dan weet je niet wat er kan gebeuren met wandelaars en kinderen in de geburen. Het zijn de honden die getraind zijn en niet de schapen. De schapen zijn wel gewend aan de honden.”
“Zoals ik al zei is het een heel arbeidsintensieve hobby. Ik heb zelf nog vier honden waarvan er twee actief zijn in het schapendrijven. Onlangs heb ik nog een pup gekocht die al mee mag gaan wandelen maar nog niet traint. Daarnaast is er de club met de trainingen, de organisatie van de wedstrijden, en al het werk met de schapen. Het laatste jaar heb ik hulp gekregen van een 4 à 5 mensen om mee te helpen bij het voederen. Voordien deed ik dat werk bijna volledig alleen en zat ik op zeker moment wat op mijn tandvlees. Ik dreigde opgebrand te geraken.
Toen heb ik duidelijk gesteld dat er volk moest bijkomen zoniet zou ik er mee stoppen. En toen heeft men in de club duidelijk beseft dat dit het einde van het verhaal zou zijn. Al onze vragen naar nieuwe bestuursleden of een nieuwe voorzitter was echter steeds een roepen in de woestijn. De mensen willen tegenwoordig niet meer die verantwoordelijkheid dragen en enkel hun hobby uitoefenen.”
“Voor een bordercollie is dit werk bij het schapendrijven een topsport, zowel fysiek als psychisch. Daarom wordt er ook specifiek op getraind. Er zijn eigenaars die extreem aan conditietraining doen met hun honden. Die laten hun honden meelopen met de fiets of de quad soms wel gedurende 2 uur. Bij ons zijn de honden maximum 30 minuten actief als we schapen moeten verzetten. Een training duurt bij ons tien minuten tot een kwartier.
Bij de echte herders in begrazingen op de Kalmthoutse Heide of in de Kolonie zijn de honden wel heel de dag actief maar moeten niet constant lopen. Dan moet de hond zich vooral positioneren. In Engeland op die grote terreinen werken die honden meestal een paar uren maar die herders hebben ook meer honden bij om te kunnen aflossen. Je moet ook veel tijd steken in je hond, want hoe meer je hem kunt laten werken, hoe beter hij ook wordt. Maar je moet natuurlijk ook wel heel correct zijn met je hond. Hoe je de hond behandelt thuis of op de wei moet in het verlengde liggen. Je kan je hond thuis niet alles toelaten, want dan luistert hij ook niet meer op de wei.”
“Wij zijn met een 70-tal leden in de club vanuit alle hoeken van het land. Zes ervan doen enkel mee aan de shows, maar alle anderen zijn schapendrijvers. Er zijn momenteel nog 4 leden uit Hoogstraten. De harde kern van onze club bestaat uit 20 à 30 mensen die elke week ter plaatse zijn en komen oefenen, in weer en wind. Als het regent trekken we ons regenpak en onze botten aan en we doen voort. Enkel in de
zomer als het heel warm is kunnen we dat de dieren en vooral de schapen niet aandoen en dan doen we zelf een terrasje.
Elk jaar komen er nieuwe mensen met een bordercollie om hem in de club te laten testen. Die honden zijn meestal tussen de vier maanden en 2,5 jaar. Als die testen positief uitvallen, vragen wij aan die eigenaars of ze het zien zitten om daar veel tijd en energie in te steken en pas dan kunnen zij lid worden van de club. Want het is vooral belangrijk dat je veel tijd steekt in de hond en hem ook correct opvoedt. Wij zijn zowat de enige club in België waar je les kan volgen met begeleiding. Wij zijn dé club voor bordercollies en dan specifiek voor het schapendrijven.”
“Toeschouwers zijn altijd welkom op onze wedstrijden of om eens te komen kijken op de club. Wij maken er echter geen reclame voor en vragen ook geen toegang. Maar buiten de deelnemers hebben we meestal weinig kijklustigen. In de zomer oefenen we altijd op maandag- en woensdagavond, in de wintermaanden is dat op zaterdag namiddag en zondagvoormiddag. En dat altijd op ons terrein, d’ Aeste Beemden in Vlimmeren.
De eerste trial van dit jaar vindt plaats in het weekend van 18 en 19 februari in Arendonk. Daar zijn de verantwoordelijken al weer minstens een maand zoet mee om alles vlot te laten verlopen. Denk maar aan het zoeken van een geschikt terrein, de installatie en verplaatsing van het materiaal, de catering, de inschrijvingen, vergunningen aanvragen, het vervoer van de schapen, enz.
Al wie wat meer wil weten over onze club, de BBCC, kan best een surfen naar onze website http://www.belgianbordercollieclub.be En wie weet krijg je ook nog zin om een bordercollie te houden en krijg je zelfs de microbe van het schapendrijven.” (jh)
Ook een bordercollie uit de werklijn kan een echte familiehond zijn, als je hem tenminste maar voldoende activiteit en beweging geeft. En nadien mag er gerust een pintje bij.
WORTEL - In 2012 brak Mai-Li door tot in de laatste ronde van Junior Eurosong. Mai-Li was toen 11 jaar. Als kind met een visuele beperking was ze zelfs torenhoog favoriet met haar song "Zo vrolijk was ik nooit". In de finale eindigde het voor haar, via de televoting mocht Fabian voor ons land naar Amsterdam. Na meer dan tien jaar zochten we Mai-Li weer op. Hoe zou het haar ondertussen vergaan?
“Ik denk nog regelmatig terug aan mijn avontuur bij Junior Eurosong,” zegt ze. “Het was een fijne periode met geweldige medekandidaten. Ook Jens Broes was toen bij de kandidaten in de eindronde. Vorig jaar hebben we nog eens een reünie gedaan en af en toe maken we nog contact via de groepchat. Dit vind ik echt zeer fijn. We hebben ten slotte toch een goed jaar alles met elkaar gedeeld en houden hier veel herinneringen aan over.”
Ze stelt het overigens prima, zo vernemen we. “Momenteel gaat het echt wel heel goed met mij. Het zingen staat even op een laag pitje, maar ik doe het nog altijd even graag. Ik volg op dit moment zangles in de richting jazzpop-rock en dat is écht mijn wekelijkse 'metime' momentje.”
Mai-Li is ook op andere terreinen actief. “Daarnaast ben ik ervaringsdeskundige bij Xinix. Dit is een organisatie die werkt rond het sensibiliseren van mensen met een visuele beperking in de maatschappij. We geven workshops rond verschillende thema’s aan scholen, bedrijven en allerlei andere groepen. Dit kan gaan van een workshop over hulpmiddelen of omgangstips, tot een ervaring in onze donkere ruimte. In deze donkere ruimte kunnen mensen aan den lijve ondervinden hoe het is om blind te zijn. Het is echt mijn passie om aan mensen te laten zien wat je allemaal nog wél kan wanneer je blind of slechtziend bent. De beleving en verwerking hiervan kan voor iedereen heel verschillend zijn.”
Haar beperking is evenmin een beletsel om sportief voor de dag te komen. “Ik ben ook erg veel bezig met ‘showdown’. Dit is een reflexsport voor blinden en slechtzienden. Sommige mensen vergelijken het wel eens met air-hockey of tafeltennis voor blinden of slechtzienden. Het wordt gespeeld aan een tafel met opstaande randen en een plexyscherm in het midden. Aan elke kant van de tafel zit er een gat dat als doel dienst doet. Aan beide kanten staat een speler die met be-
hulp van een paletje een balletje onder het plexyscherm moet slaan naar zijn tegenspeler. De tegenspeler moet op zijn beurt zijn doel verdedigen en proberen om ook doelpunten te scoren. Sinds dit jaar speel ik in eerste klasse in de Belgische competitie.
En verder speel ik momenteel ook nog torbal. Dat is een balsport voor blinden en slechtzienden en het wordt in teams van 3 personen gespeeld. Ik moet je overigens nog meegeven dat beide sporten ook door niet-blinden gespeeld kan worden. Mijn weekenden zitten tijdens het sportseizoen dus wel heel goed gevuld ☺!”
“Ik denk dat ik vandaag wel kan stellen dat ik gelukkig ben,” klinkt het onomwonden. “Mijn vriend, de sport en Xinix zorgen ervoor dat ik mij gewaardeerd voel als mens. Al heb ik in de afgelopen jaren ook moeilijkere periodes gehad. Op een gegeven ogenblik verkeerde ik in een zware burn-out en moest hierdoor mijn studies stopzetten. Daar heb ik tot op de dag van vandaag geen spijt van. Maar als ik was blijven doorgaan, vrees ik dat het heel anders had gelopen met mij.
Na een lang en moeilijk proces sta ik nu echter waar ik vandaag sta, en kan ik trots zijn op wat ik gerealiseerd heb in mijn leven. Ik hoop dan ook dat iedereen in 2023 mag doen waar je gelukkig van wordt in plaats van over je limieten te gaan om anderen te plezieren. Datgene doen waar je zelf gelukkig van wordt, dat is voor mij de sleutel tot geluk geweest!” (PM)
HOOGSTRATEN - Een van de eerste lokalen die in het nieuwe Gastenhuys in gebruik werden genomen was een ruimte met 3 nieuwe cash-automaten. Een bankkantoor was er nochtans niet te bespeuren. Het bleek één van de nieuwe CASH-punten te zijn van Batopin. Fijn, zou je als gebruiker kunnen denken, want daarmee kon je in Hoogstraten geld pinnen vanaf de Van Aertselaarstraat tot aan de Loenhoutseweg. Maar dat bleek een misvatting, want al snel daarna verdwenen de cashautomaten aan 4 grootbanken op de Vrijheid (Belfius, KBC, ING en BNP Paribas Fortis). Iets waar lang niet iedere burger vrolijk van wordt…
Uit de communicatie over de uitrol van het netwerk van Batopin leren we het volgende: “Een cashnetwerk in balans houdt rekening met waar mensen wonen en werken, waar ze cash gebruiken (winkelcentra, horeca, ...) en hoe ze zich verplaatsen (openbaar vervoer, wagen, fiets, te voet). De nieuwe CASH-punten van Batopin komen op plaatsen te staan, die door de burger worden aangevoeld als intuïtief de ‘juiste’ plek om cash af te halen of te storten. Kortom, het juiste aantal geldautomaten op de juiste plaatsen.
Deze nieuwe neutrale geldautomaten worden ‘Bancontact CASH-punten’ genoemd. Batopin heeft de licentie verkregen om het Bancontact-merk te gebruiken voor haar CASH-punten. ‘Naar de Bancontact geld afhalen’ is zo ingeburgerd in het dagelijkse leven en de alledaagse taal dat het een logische en evidente keuze was. De eerste Bancontact CASH-punten werden geopend op 22 september 2021. Dit nieuwe netwerk zal tegen eind 2024 volledig operationeel zijn.
De cash-punten zien er wat anders uit. Zo hebben ze geen logo van een bank meer. De automaten worden immers geplaatst en dagelijks beheerd door Batopin, een initiatief van Belfius, BNP Paribas Fortis, ING en KBC. Deze vier grootbanken hebben de krachten gebundeld om samen een netwerk van neutrale geldautomaten op te richten. Geen enkele automaat daarvan behoort nog tot slechts één bank.
Door samen neutrale geldautomaten te plaatsen, kunnen de banken die automaten niet alleen beter spreiden, volgens de werkelijke cashnoden en -gewoonten van de Belgen. De samenwerking laat ook toe om de infrastructuur voor geldafhalingen te vernieuwen en te moderniseren. De CASH-punten zijn bijvoorbeeld erg makkelijk toegankelijk, ook voor mensen met een beperking.
Concreet zal het Batopin-project ervoor zorgen dat 95% van de Belgen terechtkan bij een CASH-punt op minder dan 5 kilometer van
hun woonplaats hetgeen tevens door de Europese Centrale Bank (ECB) als leidraad wordt gehanteerd.”
Nogmaals, dat is dus wat het netwerk van onze banken hierover meedeelt.
Het onderliggende doel van de grootbanken is uiteraard besparen. Door samen te werken konden de banken de kosten inperken van de geldautomaten in hun eigen kantoren.
ren. Zeker voor ouderen is de aanwezigheid van een fysiek loket vaak een houvast. Niet iedereen is immers voor de volle honderd procent mee met de digitalisering en het gebruik van bankingapps. Voor het controleren van verrichtingen, het storten van geld, overschrijven etc., maken mensen nog graag gebruik van de automaten in de bankfilialen of het loket in de bankkantoren.
Okra, Testaankoop en Financité bonden op 30 november 2022 gezamenlijk de kat de bel aan met een persbericht dat aan duidelijkheid weinig te wensen overliet. Een andere klok dus, die we ook ongewijzigd citeren:
Al snel na het bekend raken van het Batopin plan waren er bedenkingen, en na de opening van de eerste Cash-punten kwamen er effectief klachten. Het systeem van verplaatsen van bankautomaten uit een bekend kantoor naar een locatie met neutrale automaten wordt door veel mensen als klantonvriendelijk erva-
“Het door de vier grootbanken (Belfius, BNP Paribas Fortis, ING en KBC) opgezette Batopin-project heeft als doel het beheer van de geldautomaten te fusioneren, wat gepaard gaat met een drastische vermindering van hun aantal. Het project beweert efficiënt te zijn door de geldautomaten beter over het hele grondgebied te verdelen. Voor Financité, Testaankoop en Okra is het belangrijkste gevolg vooral dat heel wat burgers geen toegang meer hebben tot een geldautomaat.
Veel mensen ervaren dit als klantonvriendelijk
Naast de fysieke toegankelijkheid, zijn de organisaties ook bezorgd over de kosten die banken in rekening kunnen brengen voor geldopnames bij Batopin-automaten. Op woensdag 23 november heeft minister van Economie, Pierre-Yves Dermagne, in de Kamercommissie aangegeven dat er een onderzoek loopt van de Belgische mededingingsautoriteit naar Batopin. ‘We zijn blij dat er een onderzoek wordt ingesteld naar aanleiding van de klacht die we hebben ingediend’, aldus Anne Fily, onderzoekster financiële inclusie bij Financité, ‘We hopen dat dit licht zal werpen op de grijze zones van dit project’.
Tegelijkertijd vragen Financité, Testaankoop en Okra de regering te werken aan een ambitieuze overeenkomst om de toegang tot contant geld voor de bevolking te blijven garanderen. ‘We vragen om verdere afschaffingen van geldautomaten te blokkeren en op zijn minst terug te keren naar het aantal geldautomaten op 31 december 2021. De belofte van een geldautomaat binnen 5 km voor 95% van de bevolking is volstrekt onvoldoende, zeker nu Batopin cijfers presenteert die rekening houden met automaten op ‘vogelvlucht’afstand.’
Om aan de verwachtingen van de bevolking te kunnen voldoen, stellen de organisaties voor dat het project de volgende doelstellingen cumulatief nastreeft:
• ten minste 95% van de bevolking moet binnen een straal van 2,5 kilometer (werkelijk aantal kilometers) toegang hebben tot een bankautomaat met een basisdienstverlening (geldopname, storting, …) en ten minste 98% van de bevolking binnen een straal van 5 kilometer.
• elke gemeente moet beschikken over een aantal automaten dat overeenkomt met ten minste één automaat per 1500 inwoners (bevolkingsdichtheid).
De plaats van het CASH-punt in ’t Gastenhuys lijkt ons niet helemaal in overeenstemming te zijn met de doelstelling van Batopin ‘op plaatsen die door de burger worden aangevoeld als intuïtief de ‘juiste’ plek om cash af te halen of te storten’. We zouden durven opperen dat het hier toch wat aan ‘de ene kant’ staat. Benieuwd naar hoe naar de nieuwe situatie in Hoogstraten gekeken wordt, hebben we een tijdje postgevat in het nieuwe cash-punt en spraken we er met een aantal gebruikers.
De commentaren liepen heel erg gelijk en benadrukten vooral de minpunten. Beperkte privacy wegens geen scherm tussen de automaten, geen afvalbakken zodat er altijd rommel op de grond ligt, alleen briefjes van 20 en 50 euro beschikbaar, soms wachtrijen, jongeren die er rondhangen (wachtend op de bus of schuilend voor regen en wind), heel beperkte parkeermogelijkheden (op een smalle parkeerstrook die ook nog eens gevaar voor de passerende fietsers oplevert!), onleesbare schermen omdat de zon er op schijnt, een ongelukkige ligging uit het echte centrum van Hoogstraten. Een gebruiker is ervan overtuigd dat dit de ideale plek is voor een ramkraak. ‘Wacht maar’, zei hij, ‘dat gaat niet lang duren’.
Oudere gebruikers vonden het vooral spijtig dat ze niet meer in hun vertrouwd bankkantoor, waar ze dikwijls al heel hun leven klant zijn, terecht kunnen om cash op te nemen. Ze moeten er nog wel zijn voor andere verrichtingen en dus kost het extra tijd en verplaatsing om cash mee te nemen. Of ze dan niet thuisbankieren? ‘Ach meneer, ik heb geeneens een computer. En met de automaat in de bank kan ik wel uit de voeten, en als het niet lukt kan ik het tenminste nog vragen. Als er hier wat misloopt, sta ik te blinken’.
Dat pinnen aan deze automaten ook kosten met zich kan brengen, bleken de gebruikers niet te weten. Wie enkel over een gratis ‘basisbankrekening’ beschikt betaalt 0,5 euro per verrichting.
ticiperen in Batopin krijgen we nog te horen dat hun cash-automaten verdwenen zijn, maar dat ze toch een ruime dienstverlening behouden voor hun cliënteel. Buiten BNP Paribas Fortis, dat zich van commentaar onthoudt, zeggen ze allen de evolutie toch wel te betreuren. Maar dat het een onomkeerbare evolutie is die past in het streven naar zo weinig mogelijk cash. En naar digitaal bankieren, al ervaren zij ook dat nog lang niet iedereen mee is. Alle kantoren blijven een automaat voor verrichtingen (uittreksels, overschrijvingen, …) ter beschikking houden in hun kantoren en een vrij ruime loketfunctie waar mensen hulp en informatie kunnen krijgen.
KBC Hoogstraten is momenteel wel gesloten voor verbouwingen, zodat klanten tijdelijk naar Rijkevorsel moeten, maar eind februari gaat het kantoor terug open. In de beveiligde zone komt een KBC-Touch en een loket voor hulp of voor doorverwijzing. Een afspraak is eenvoudig te maken.
Bij Belfius een gelijkaardig systeem: automaat voor verrichtingen, een open loket op maandagvoormiddag en donderdagnamiddag en een eenvoudig te regelen afspraak.
Bij gebrek aan een wet die de banken verplicht de toegang tot contant geld te garanderen, neemt het aantal geldautomaten dagelijks af, evenals het aantal bankkantoren. België kende in 2020 en 2021 meer dan één filiaalsluiting per dag. Hierdoor dreigt de digitale kloof nog groter te worden en daarom moet de regering onderhandelingen voeren die leiden tot een verplichting voor banken om de toegang tot een geldautomaat te garanderen. Als er geen aanvaardbaar en bindend akkoord komt, zal het nodig zijn snel over te gaan tot wetgeving.”
Een rondje bellen bij de Hoogstraatse bankkantoren leert dat de klachten hen bekend zijn, maar dat hun invloed op de gang van zaken beperkt is. ‘Onze klanten melden ons dat en wij geven het door aan Batopin en aan onze hoofdkantoren’ klinkt het bij KBC, Belfius en ING. BNP Paribas Fortis laat via de perswoordvoerder weten dat ze dat ook doen en dat we ons desgewenst verder kunnen wenden tot de woordvoerder van Batopin.
Tijdens onze belronde bij de banken die par-
Ook bij ING is er binnen de muren van het kantoor een internethoekje voor de klanten en een loket met alle voormiddagen een onthaalfunctie, waar de klant hulp kan krijgen mocht er bij zijn verrichtingen iets mislopen. ING, met een zelfstandig kantoorhouder, betreurt de gang van zaken die van bovenaf gestuurd wordt. Zij houden aan het nauwe contact met hun cliënteel, die ze graag een goede service willen blijven bieden. Als zelfstandige kunnen ze dat nog een beetje sturen, o.a. met de openingsuren. Ze begrijpen als geen andere dat ouderen het spijtig vinden dat ze nu geld moeten pinnen buiten de hen vertrouwde om-
geving van het kantoor waar ze al zo lang komen.
BNP-Paribas-Fortis heeft van maandag tot vrijdag elke voormiddag een bemand open loket en ruime mogelijkheden voor een afspraak.
Naast de eerder genoemde grootbanken, heeft Hoogstraten nog enkele andere banken en die hebben nog wel een eigen cashautomaat. Zij bevestigen niet betrokken te zijn bij Batopin en hebben geen indicaties dat het snel zal gebeuren. Ze blijven hun eigen cashautomaat vullen. We spreken dan over Argenta en Crelan. Ze merken uiteraard de wijzigingen door het CASH-punt, hun automaten worden veel frequenter gebruikt en moeten dus ook meer gevuld worden. De bij hen meest gehoorde commentaar is de ligging buiten het centrum en de gebrekkige parkeergelegenheid. En als er iets misloopt met de bankkaart kan men alleen bij het eigen kantoor terecht.
Bij Crelan is de cashautomaat wellicht minder bekend omdat die zich aan de achterzijde van het gebouw aan de Van Aertselaarstraat bevindt. Hij staat ook binnen de beveiligde zone die s’ avonds en ’s nachts afgesloten is. De ingang is achteraan omdat daar meer parkeergelegenheid is.
Zowel Argenta als Crelan hebben heel ruime openingsuren (alle weekdagen) en uiteraard kan alles op afspraak. Beide merken ze wel dat ze vooral oudere mensen aan het loket krijgen, de gemiddelde leeftijd is vrij hoog. Maar digitaal mee zijn is niet enkel een kwestie van leeftijd.
Nog slechts twee kerkdorpen hebben een bankkantoor. AXA in Meer en KBC in Meerle. Beiden hebben nog een eigen cashautomaat binnen de beveiligde zone van het kantoor.
Van KBC Meerle deed het gerucht de ronde dat het binnen korte tijd zou sluiten. Het wordt ons door KBC bevestigd, dat het de planning was om tegen einde maart 2023 het kantoor te sluiten, maar dat dit ondertussen is uitgesteld. Wellicht tot het einde van het jaar. Een nieuwe datum is nog niet vastgesteld, maar de klanten zullen tijdig verwittigd worden. Ondertussen blijven zowel de cash-automaat als de automaat voor verrichtingen operationeel. Het loket is nog 2 halve dagen per week open, vroeger was dat meer. “Met corona is daar een kentering in gekomen, meer mensen hebben toen noodgedwongen de stap naar digitaal bankieren gezet. Toch passeren er nog heel wat mensen, veelal ouderen. Maar er zijn nog zaken die niet digitaal kunnen. Zo kregen we rond oud en nieuw heel wat mensen over de vloer die kleingeld wensten voor de zangertjes en later
kregen we van de kinderen dat muntgeld terug binnen om te wisselen in briefjes of om op de spaarrekening te zetten. Je kan wel een cashloze wereld wensen, maar wij zien voor dit fenomeen niet 1,2,3 een digitale oplossing” (hartelijke lach).
AXA Meer zou het verdwijnen van de cashautomaat een stap terug in de dienstverlenging vinden. “Het vraagt meer werk, maar als zelfstandige kantoorhouder kunnen we daar nog zelf voor kiezen. We hebben er ook parkeergelegenheid bij. Ons loket is ook ruim open, we vinden nabijheid heel belangrijk. En ja, de generatie die niet digitaal is zal stilaan verdwijnen. Maar wij merken toch dat veel klanten vasthouden aan het contact van persoon tot persoon. En zo houden wij ook een vinger aan de pols.”
Het mag duidelijk zijn dat de cashloze maatschappij nog niet voor morgen is en een loketloos bankkantoor ook niet. De aanpak zal van bank tot bank blijven verschillen. En dat over het CASH-punt in ’t Gastenhuys het laatste woord nog niet gezegd of geschreven is, daar zijn wij van overtuigd. (jaf)
God gaf aan mij de legkaart van mijn leven Als stukjes speelgoed in een kinderhand. De doos met het voorbeeld heeft hij niet gegeven. Ik vind niet meer dan de hoekjes en de rand Daar binnen in zie ik alleen maar kleuren
MEERLE - Inline-skaten of skeeleren waren pakweg een kwarteeuw geleden bijzonder populair. Daar hoorde evenwel ook een ramp (een skateramp, wel te verstaan) bij - en die was er haast nergens. Zo ook in Meerle, waar een stel jongelui de stoute schoenen (pardon, skates) aantrok en een brief richtte aan het toenmalige stadsbestuur. Een foto uit de oude doos getuigt er nog van, het maakte ons curieus genoeg om uit te zoeken of het voor de jongeren van toen sindsdien nog allemaal op rolletjes loopt…
In (veel) vroegere tijden werd er gerolschaatst. Op ijzeren rolschaatsen die je kon laten meegroeien met je voet, met veters en een riempje om ze vast te maken, met een rubberen dop vooraan om te stoppen. Niet simpel om het onder de knie te krijgen, er kwamen veel valpartijen aan te pas voor het zover was. Vele jaren was er in dat rolschaatsen weinig tot geen evolutie. Tot in de jaren 80 van vorige eeuw het Inline-skaten verscheen. Het is een discipline in het hardrijden op de skate, een tak van de skatesport. De sport wordt meer gezien als een variant van het schaatsen op ijs.
Vanaf begin jaren negentig was dit in-line skaten ook bij ons bijzonder populair, vooral bij het jonge volkje. ‘Skeelers’ of ‘In-line skates’ stonden op menig verlanglijstje als cadeau voor verjaardagen, Sint-Niklaas, communie… Na school troepten ze samen op straten en pleintjes rond zelfgemaakte ‘rampen’ of ander toestellen om hun kunsten te oefenen. Zo ook in Meerle.
Probleem is dat voor deze vrijetijdbesteding een vlakke ondergrond een must is, waardoor de skaters toen, bij gebrek aan alternatieven, meestal midden op de straat opereerden. Wat tot conflicten met andere weggebruikers leidde. In grote steden verschenen de eerste skateparken, naar het model overgewaaid uit de Verenigde Staten, waar jongeren veilig hun kunsten konden oefenen met skeelers of skatebord, mekaar uitdagen, gewoon rondhangen. Er ontstond zelfs een hele subcultuur rond, met als voornaamste kenmerk de kleding. Oversized T-shirt, laaghangende broek, een hoodie en een pet met lange klep.
Helaas was van dergelijke plekken in Hoogstraten en de kerkdorpen nog geen spoor. Dat
vonden een aantal fervente skaters uit het 6e leerjaar uit Meerle heel spijtig. En dus schreven ze een brief naar de burgemeester. En daar schreven wij in ons blad toen, februari 1997, een stukje over met een foto van de toen 11 - 12 jarige skaters er bij. Je leest het hieronder, samen met de foto (boven) van toen.
Welgeteld 26 jaar later vroegen wij ons af wat er van die jonge snaken op de foto geworden is, waar ze terecht gekomen zijn wat ze zoal doen in het dagelijkse leven en, last but not least, of ze nog skaten!
Ze blijken veel gemeen te hebben: een druk beroepsleven, zorg voor huis, kinderen, weinig tijd voor hobby’s… Ze zijn geen van allen in Meerle blijven wonen en skaten doen ze ook niet meer. Maar ze zijn wel oké en kwamen graag eens kijken naar het skatepark waarvoor ze, lang geleden een aanzet gaven. Ziehier hun verhalen.
“De foto doet me instant denken aan de witte wijk en onze wijk. De wijkfeesten en chirokampen. De verjaardagsfuiven en .. ja ook onze skatemicrobe. Met Bauers of een Hollands merk waren we in ons sas. Zonder echte kleerscheuren (een paar gebroken armen en geschaafde ellebogen niet meegeteld) waag-
Christof Van Dun “Zonder echte kleerscheuren”
Meer dan een kwarteeuw later
den we ons op de straatklinkers. Dé uitlaatklep na een schooldag op de basisschool. Het jaar van de foto is het laatste jaar samen, daarna zouden onze wegen voor de meesten voorgoed zouden scheiden. De vakschool, Turnhout en 't Seminarie waren (zeker per skates) een brug te ver.
Als grote jongensschool, koos ik voor het Klein Seminarie. Een gedubbeld jaar en vele tentfuiven later, begon ik op m'n 19e aan m’n Bachelor Toegepaste Psychologie. Nog eens 10 jaar later stond ik te springen (en terug te skaten) met jongeren in Bijzondere Jeugdzorg in Merksem (houdt 3 middelste vingers omgekeerd naar voor).
Qua huisje-boompje-beesje scoor ik een welverdiende zes. :) Niet getrouwd of kinderen, wel een Antwerps huis in de stad. Voorlopig geen vriend en .. ahja wel een kat. De eerste van de zeven.
Toen de Antwerpse goesting over was, heb ik vorig jaar m'n pijlen naar het zuiden gericht. Ik vond een job in Lissabon bij Google Ads. Dat zijn die geliefde 5 seconden voor elke Youtube video. Ook de Search en Shopping ads volgen we mee op.
Hoewel de job en vooral de locatie hemels zijn, geniet ik hier vooral van de bruisende open samenleving, waar iedereen elkaar met een glimlach aanspreekt, er op straat salsa gedanst wordt en er in de supermarkten nog koffie wordt geschonken. Het heeft iets dorps en doet me denken aan die tijd van toen, de snoepjes bij Verbreuken, de warme choco van
de KLJ en optredens op de wijkfeesten of zeeklassen.
Hoe we telkens ergens weer op ons beginpunt terugkomen. Dat is toch een zaligheid. Laat die fancy fourties maar komen.”
Fret“Ik herinner me die foto nog, kende meteen ook nog de skaters die er op stonden. Jongens van mijn leerjaar in de basisschool van Meerle. Plezante bezigheid, dat samen skaten. Het vriendje van mijn zus, een grote gast dus, kon op die ramp halsbrekende sprongen maken waar we jaloers op waren.
Van de lagere school in Meerle ging ik naar het H. Graf-instituut in Turnhout. Eerst ASO en dan TSO, wiskunde en wetenschappen. Helaas lang onderweg naar school toen en daarnaast ook nog de IKO. Weinig tijd om te skaten dus. Mijn hobby werd sterrenkunde, ook spannend maar niet zo fysiek.
Na de middelbare school ging ik naar Gent Industriële wetenschappen studeren, industrieel ingenieur elektromechanica. Ik heb in Gent mijn draai gevonden en ben niet meer terug in Meerle komen wonen.
Na mijn studies kon ik direct aan de slag bij Jan De Nul, daarna werkte ik lange tijd voor Volvo Cars Gent als ingenieur/supervisor. Sedert begin vorig jaar ben ik aan de slag als
‘windturbine service technicus’ bij Vestas (windmolens) en bevind me dus regelmatig op grote hoogte.
In Gent vond ik mijn partner Taina; samen kochten en renoveerden we een huis in de volkswijk Meulenstede. Twee kinderen, Lars (5) en Loren (2) en regelmatig van wacht zijn voor mijn job, maken dat er momenteel weinig tijd blijft voor hobby’s. Af en toe wel nog een ritje met de koersfiets.
Nee, skaten is er dus niet meer bij, al zou ik het nog wel durven. Ik denk ik dat mijn skeelers en kniebeschermers thuis in Meerle nog wel op zolder liggen, maar vrees dat ze niet meer passen.”
“De foto kan ik mij niet meer herinneren, alleen de ramp herken ik nog vaag. Leuke bezigheid!
Na de lagere school ging naar de VITO in Hoogstraten en heb daar Elektriciteit gevolgd tot het 6e middelbaar. Daarna ging ik meteen aan het werk in die stiel. Maar ik heb deze job amper een paar maanden gedaan, het was niets voor mij. Ik ben iemand die graag buiten is, dus heb ik lange tijd in de groensector gewerkt: boomkwekerij, tuinonderhoud en aanleg. Sinds de zomer van 2018 werk ik bij Bpost als facteur.
Ik ben getrouwd met Annelies uit Loenhout en heb 2 kinderen: Laura, 11 jaar en Yannick, 9 jaar. Sinds 2010 wonen wij in Wortel. Mijn grootste hobby is triatlon, in juni ga ik voor mijn eerste Iron Man. In de zomer speel ik tennis. Daarnaast zit ik in het bestuur van KVNA Wortel en ik geef zwemles aan de recreanten van het Hoogstraatse Zwemteam.
Ik durf zeker nog te skaten, al zou dat niet meer zo soepel gaan als vroeger en zou het zonder jumps en dergelijke zijn.”
“Die foto: nostalgie en een zeer leuke tijd. Vanaf het middelbaar zijn we helaas allemaal onze eigen weg opgegaan. Maar we hebben op ons 30e nog wel een reünie georganiseerd voor het geboortejaar 1985. De meesten waren daar toen toch aanwezig en het is uitgedraaid op een goei feestje! Zeker iets wat we op ons 40 jaar opnieuw moeten doen.
Na de Vrije basisschool in Mjeel ging ik naar eerst naar het Klein Seminarie en daarna naar VITO - richting ICT. Daarna studeerde ik In-
Jasper
“Halsbrekende sprongen om jaloers op te zijn”
“Een helm zal nodig
genieur ICT in Antwerpen. Daar heb ik ook mijn beroep van gemaakt. Ik werk als zelfstandig freelance IT’er en in die hoedanigheid ben ik momenteel ICT-manager in een bedrijf. Samen met mijn partner Veerle en ons dochtertje Indi (1 jaar en 3 maand oud) wonen we in Hoogstraten.
Voor hobby’s is er nog weinig tijd. De dochter is nu de grootste hobby geworden. En nu en dan eens sporten als het uitkomt.
Of ik nog durf te skaten? Ik moet eerlijk zeggen, ik kon er toen ook al niet veel van. Durven misschien nog wel, maar een helm zal zeker nodig zijn. Ik heb wel mijn originele ‘Bauers’ nog van op de foto, wie weet voor mijn dochter later!”
“Wat een leuke verassing die foto! Ver terug in de tijd. Na de lagere school van Meerle heb ik mijn middelbare school op de Vito in Hoogstraten gedaan, waar ik uiteindelijk voor hout heb gekozen. Ik ben daarna ook onmiddellijk als schrijnwerker gaan werken en dat ben ik nog steeds bij MR Projects in Wechelderzande. Acht jaar geleden heb ik zelf een huis gezet in Rijkevorsel, waar ik ook zeer graag woon. Ik heb inmiddels ongeveer 5 jaar een vriend Bjorn waarmee ik hier dus samenwoon. Sinds 2 jaar heb ik ook een bedrijf opgericht in bijberoep als schrijnwerker, waardoor ik helaas heel weinig vrije tijd heb. Dus ook niet om te skaten...”
“De herinnering was wat ondergestoft, maar ik denk er toch met een glimlach aan terug.
Na mijn middelbare studies te hebben afgewerkt op het Klein Seminarie, heb ik communicatiewetenschappen gestudeerd aan de KU Leuven. Tijdens deze studentenjaren heb ik mijn vriendin Joke leren kennen. Nadat we afstudeerden, zijn we samen 'de wereld gaan verkennen' en hebben we een klein jaar in Australië rondgetrokken.
Daarna ben ik beginnen te werken voor Aldi, waar ik na 13 jaar nog steeds werk. Ik ben in het Antwerpse verantwoordelijk voor een vijftal Aldi filialen.
Eveneens sinds13 jaar wonen Joke en ik in Antwerpen. Eerst huurden we een appartement op het Zuid om vervolgens een huis te kopen in Berchem. Sinds anderhalf jaar zijn we verhuisd naar Borgerhout. Iets buiten het stadscentrum, maar met meer ruimte en groen. Joke en ik hebben inmiddels 3 kinderen: Rinus (12/6/2020), Boris en Martha (beide 7/12/2022).
Ik probeer in de zomer te fietsen en te tennissen, verder pik ik graag concertjes mee en speel ik zelf ook bescheiden wat gitaar. Skaten doe ik niet meer, dat zou ferm tegenvallen vrees ik. Ik probeer in de winter wel te gaan snowboarden en als de Belgische winter het toelaat te schaatsen/ijshockeyen (zoals onlangs nog). Maar ver raak ik momenteel in elk geval niet meer met de pasgeboren tweeling!”
Na de lagere school in Meerle trok ik naar het Klein Seminarie en deed er economie-moderne talen. Hierna studeerde ik productontwikkeling aan de Universiteit van Antwerpen. Tijdens deze periode heb ik ook nog een half jaar aan Politecnico di Milano gestudeerd in Milaan.
In 2015 ben ik getrouwd met An en we hebben twee kinderen: Kasper (5 jaar) en Daan (3 jaar). Sinds een viertal jaar wonen we in Sint-Jobin't-Goor.
Ik werk sinds kort bij Dovre in Weelde als Product Development Manager en ben verantwoordelijk voor de ontwikkeling van nieuwe producten in het gamma van Dovre en Ferleon.
Mijn job en kinderen slorpen veel tijd op, maar ik probeer twee keer per week op mijn koersfiets of gravelbike te kruipen. Op wieltjes heb ik al lang niet meer gestaan, maar telkens het hard genoeg vriest speel ik met mijn vrienden van vroeger steevast ijshockey. Onlangs hadden we nog eens het geluk om op het ijs te kunnen staan!” (jaf)
“Snowboarden
HOOGSTR ATEN - Ook in 2023 trakteert de cultuurraad alle cultuurliefhebbers en muziekfanaten op een muzikale avond met liveoptredens van Kim Konings, Jack & Wil, Bert Dufraing & Friends en de stadsdichter. Een gratis drankje kan er ook nog af. Plaats van gebeuren is ditmaal het LDC (vroegere parochiezaal) in het Klooster in Meer, en de aanvang is om 19.30 uur.
Het is van 2019 geleden dat er cultuurprijzen uitgereikt werden, en dit om de gekende reden. Vorig jaar op 1 april opende de cultuurraad de deuren van de Rabboenizaal (Gemeenschapscentrum) voor een gratis cultuur-
café met live optredens. Een kennismaking met de nieuwe stadsdichter zat er ook toen bij. Een geslaagde culturele mix, die dit jaar dus herhaald wordt.
- ‘Three drawers make a cabinet’ haalt het werk uit de kast van drie jonge kunstenaars die al tekenend verschillende thema’s verkennen.
van Dun als Michiel Van Thillo hebben nog als leerling op het IKO Hoogstraten gezeten en stellen nu enkele straten verder tentoon in het Stedelijk Museum.
De 27-jarige Hanna van Dun behaalde haar master in Illustratie aan het Sint Lucas Antwerpen. Als kunstenaar en illustrator verbeeldt ze haar verlangen naar eenvoud in werk dat vaak melancholisch gestemd is.
Voor haar reeks ‘Agrariër’ heeft ze zich laten inspireren door het werk van Constant Permeke. Sommigen kijken idealiserend en weinig genuanceerd terug op een vroegere tijd, de jonge kunstenares kijkt eerder kritisch terug op het werk van Permeke en zijn bele-
De cultuurraad hoopt op 4 februari heel wat enthousiaste cultuurvrienden te mogen ontvangen. De leden van de cultuurverenigingen en de Hoogstraatse burger weten alvast waar ze welkom zijn voor een gezellige avond! (ep)
ving van het agrarische leven. In Permekes tijd kon men het boerenleven nog zonder vervreemdende ‘filter’ beleven. Vandaag kan dat niet meer: wij lijken meer afgesloten van ons gevoel, leven vanuit ons hoofd en verlangen naar de eenvoud van de directe beleving die we niet langer hebben.
Vandaar dat Van Dun een ode brengt aan het simpele boerenleven door de blik van iemand uit het hier en nu die de verloren eenvoud beeldend probeert na te bootsen. Het concept achter de werken is bedacht, de vormgeving en de beeldtaal blijft eenvoudig maar is daardoor oppervlakkig. De nadruk ligt op het esthetisch-decoratieve.
Deze 26-jarige kunstenares is grafisch ontwerper en visueel kunstenaar. Ze is afgestudeerd als master in de grafische kunsten en educatieve master aan de Academie voor Schone Kunsten te Antwerpen.
In haar werk exploreert ze de wereld op een poëtische manier. Thema’s zoals spanningen en beweging zijn een grote inspiratie voor haar praktijk. Vertrekkend van haarzelf en haar omgeving portretteert ze mensen, plaatsen en gevoelens op een intieme manier.
Michiel is net zoals Amy ook 26 jaar oud. Hij studeerde af met een master in illustratie aan het Sint Lucas en een educatieve master aan de academie voor schone kunsten Antwerpen. Hij maakt vooral strips, prentenboeken en freelancewerk, en geeft daarnaast ook les in de beeldende kunsten op het IKO.
WORTEL - Bezoekerscentrum De Klapekster zal heel wat volk over de vloer krijgen de eerstkomende weken. De agenda van Natuurpunt Markvallei oogt immers goedgevuld. Zo zijn er klassiekers als een spelletjesavond en de koloniewandeling, verder ook een reisverslag, het grote vogelweekend, een lezing over de Elsakker en de vertoning van de succesvolle film over “Onze natuur’.
Op vrijdag 27 januari nemen Wim Verschraegen en Ingrid Brosens de aanwezigen mee op hun reis doorheen Scandinavië. “In 2019 reisden we doorheen Denemarken en Zuid Zweden. Het voorbije jaar namen we de boot naar Noorwegen om er de fjorden te bezoeken.", vertelt Wim. Foto’s en verhalen illustreren de schoonheid en verscheidenheid van deze drie landen. Van watervallen en gletsjers tot wandelende duinen en botsende zeeën, langs Vikingen en mijnen tot hoogvlaktes en ruige kusten met papegaaiduikers. De voordracht begint om 20 uur, de deuren van Bezoekerscentrum De Klapekster gaan open om 19.30 uur.
Michiel heeft een passie voor fantasy en sprookjes. Vooral in zijn prentenboeken leeft hij zich uit door overal kleurrijke details en leuke figuren in te steken. In zijn laatste zoekprentenboek ‘Is dit mijn kasteel?’ volg je een prins en prinses doorheen hun huizenjacht naar een nieuw kasteel. Elke prent is een nieuwe wereld vol fantasie met een haast kinderlijke verbeelding.
Hiernaast is Michiel ook erg geïnteresseerd in genderthema’s. Dit vertaalt zich soms in zijn prentenboeken, zoals bij ‘Niet Roze’,
maar dit staat nu ook centraal in zijn reeks illustraties ‘Lovely gays’. Hierin hermaakt hij romantische rococo schilderijen om een verheerlijking van homo-erotiek te tonen. Dit soort schilderijtjes hebben een frivool en kitsch karakter dat vaak geassocieerd wordt met queer-cultuur en queer-esthetiek, ook al tonen ze historisch gezien bijna uitsluitend hetero koppels. Hoe zouden deze schilderijen eruitzien met enkel holebimannen? Hoe ziet een droomwereld eruit waar homo’s gewoon openlijk van hun homo zijn kunnen genieten?
Praktisch: ‘Three drawers make a cabinet’, tentoonstelling tot 26 maart in het Stedelijk Museum, geopend van woensdag tot en met zondag van 14 tot 17 uur (fh)
Op 28 en 29 januari is er het Grote Vogelweekend. De bedoeling is dat zoveel mogelijk mensen in hun tuin de vogels tellen en doorgeven via de website. Op 29 januari staat beleving rond onze tuinvogels centraal in en rond het bezoekerscentrum. Je kan nestkasten timmeren, loeren door een vogelkijkwand, vogeltaarten kopen, pindaslingers maken en een lekkere pannenkoek verorberen tvv Expeditie Natuurpunt. Vanaf 13 uur kan je hier dus terecht voor een aangename gezinshappening, vanaf het middaguur al zijn er pannenkoeken.
Twee geheide klassiekers. Op 3 februari is er een spelletjesavond in samenwerking met de bib van Hoogstraten. Sfeer en gezelligheid staan centraal: een kaartje leggen, verschillende bordspelen vanaf 20 uur in het bezoekerscentrum.
De Koloniewandeling heeft plaats op zondag 19 februari. Deze gratis gegidste wandeling in Wortel Kolonie laat deelnemers kennis laten maken met de geschiedenis van het beschermde landschap en met de hier volop aanwezige natuur. Start aan De Klapekster om 14 uur. Info: gidsenwerkgroep@natuurpuntmarkvallei.be
"Ik zie, ik zie wat jij (nog) niet ziet!" De winter is nog volop in het land, toch bereidt de natuur zich al voor op de lente. Samen gaan we met een gids kan je op zondag 5 februari op ontdekkingstocht in het gebied Ekstergoor-Duivelskuil in Beerse. Er staat zelfs snuitige poëzie op het programma.
De coördinaten van de startplaats zijn 51.312426,6 - 4.803599 (hoek Klampovenstraat, Oostmalseweg in Beerse). Als het kan,
breng dan voor elke snuiter een kartonnen eierdoos voor 10 eitjes mee. De gids verklapt pas als je mee komt wandelen wat hiermee zal gebeuren. Start van de wandeling om 14 uur.
Boswachter Bart Hoeymans neemt op vrijdag 10 februari samen met Wim Verschraegen de Elsakker onder de loep. Dit relatief kleine gebied (160 ha) in het Noorden van Hoogstraten maakt, samen met de Strijbeekse heide en de Gouwberg, deel uit van een groter grensoverschrijdend natuurgebied van meer dan 500 ha. Na een korte inleiding over het ontstaan, de aanwezige biotopen en het gevoerde beheer maak je kennis met de rijke biodiversiteit van het gebied. "We hebben natuurlijk geen tijd om de meer dan 2000 geregistreerde soorten te bespreken, maar diverse kenmerkende ‘krenten in de pap’ zullen de revue passeren.", legt Bart uit. De voordracht begint om 20 uur en is gratis.
MINDERHOUT - Natuurpunt Markvallei is erin geslaagd om enkele sleutelpercelen aan te kopen in de zogenaamde “laars” in de Vallei van het Merkske. Het gaat om beekflankerende percelen, van groot belang omdat nu stroomopwaarts vanaf de ingang van de Halsche Beemden (Halschoor) alle percelen langs het Merkske in eigendom zijn van terreinbeheerders (Natuurpunt, Agentschap Natuur en Bos, Staatsbosbeheer). Dat stelt hen in staat om hydrologisch in te grijpen om de waterkwaliteit van het Merkske te verbeteren zonder het risico te lopen dat andere aanpalende eigenaars bezwaar zouden maken.
De “laars” is de naam die de terreinbeheer-
ders geven aan de smalle uitloper Belgisch grondgebied in oostelijke richting, verder Nederland in. De “hiel” van de laars bevindt zich ter hoogte van Baarle Brug en de “tip” ligt in de Kromme Hoek. De “laars” ligt als een schiereiland omgeven door Nederlands natuurgebied maar is grondgebied Baarle-Hertog.
In de Europese Kaderrichtlijn Water werd de verbetering van de waterkwaliteit vastgelegd met regels om de verslechtering van de toestand van rivieren, meren en grondwater een halt toe te roepen. Deze omvatten de bescherming van oppervlaktewater, grondwater, binnenwateren en overgangswater; herstel van de
De film “Onze Natuur” is een ambitieuze documentaire over de natuur in onze achtertuin. Prachtige verhalen over bekende en onbekende dieren die verwondering opwekken en de liefde en het respect voor onze natuur vergroten. Na het grote succes in de bioscoop organiseert Natuurpunt een eigen vertoning in De Klapekster op vrijdag 24 februari om 19.30 uur.
Boswachter Bart Hoeymans droeg overigens ook zijn steentje bij voor de film en zal zijn bijdrage toelichten. Om zeker te zijn van je plaats kan je inschrijven via de website van Natuurpunt Markvallei (ga naar "activiteiten"). De inkom bedraagt voor leden € 5, voor niet-leden € 7. Meteen nog een goede reden om lid te worden van Natuurpunt Markvallei! (ao)
ecosystemen in en rond waterlichamen; de vermindering van vervuiling; de garantie voor duurzaam watergebruik door particulieren en bedrijven.
Vlaanderen schoof de Vallei van het Merkske naar voor als speerpuntgebied om de hydrologische kwaliteit van het beekdal te verbeteren. Daarbij is een aantal ingrepen nodig met een impact op de algemene waterhuishouding. Al snel bleek dat niet alle partners in het gebied op één lijn zaten.
In 2018 werd onder impuls van het Maasbek-
Op stap met het hele gezin: "Ik zie, ik zie wat jij niet ziet!"© Senne Verschraegen
ken, de Provincie Antwerpen en het Waterschap Brabantse Delta gestart met een Integraal Waterproject (IWP) ‘het Merkske’ waarbij alle partners die actief zijn in het beekdal rond de tafel werden gebracht. Doel was om de waterkwaliteit van het Merkske tegen 2027 in orde te hebben. Natuurpunt Markvallei engageerde zich om zo snel mogelijk alle percelen in de laars te verwerven die vandaag nog in landbouwgebruik zijn. De bemesting heeft immers een zeer slechte invloed op de waterkwaliteit.
De aankopen van de bewuste percelen gebeurden in een constructief overleg en met goedkeuring van de landbouwers die hier actief zijn. De verwerving kwam pas de voorbije twee jaar echt op gang, mede onder de impuls van de Blue Deal van minister Zuhal Demir waarbij tijdelijk extra financiële ondersteuning werd gegeven.
Natuurpunt Markvallei realiseert zo haar gedurfd engagement in het kader van IWP Merkske (Integraal waterproject) en W.L.S.2.0 (Waterlandschap). Ongeveer 900 meter oever van het Merkske komt nu definitief in natuurbeheer. Een mijlpaal!
Het is belangrijk om water niet verloren te laten gaan, maar vast te houden in de grond want Vlaanderen kampt met een structureel watertekort. Er werden voordien heel wat natte gebieden ontwaterd en gedraineerd, zodat het water geen kans meer heeft om de grondwaterlagen aan te vullen. Nu we door de klimaatverandering meer extreme regenval kennen, is het meer dan ooit nodig om die regen te absorberen in de grondwaterlagen, zonder overstromingen elders te veroorzaken. In de Halsche Beemden en de laars zullen Na-
tuurpunt Markvallei en ANB ongeveer 40 ha natuur beheren. Het natuurbeheer van Natuurpunt Markvallei en het Agentschap Natuur en Bos leveren nu alvast een positieve bijdrage aan de verbetering van de waterkwaliteit van het Merkske in het natuurgebied. Dit zal ook fauna en flora ten goede komen.
Aankopen van percelen natuur is de beste manier om die noodzakelijke natuur te beschermen. Maar aankopen kosten veel geld. Natuurpunt Markvallei heeft daarvoor diep in haar beurs moeten tasten en zal nog veel pannenkoeken moeten verkopen om de restfinanciering rond te krijgen. Lid worden van de vereniging is dan ook heel belangrijk, daarnaast kan je het aankoopbeleid steunen door giften. Bedragen boven 40 euro zijn trouwens fiscaal aftrekbaar. Natuurpunt bezorgt je automatisch de nodige fiscale attesten. (ao)
HOOGSTRATEN - In een vorig nummer stonden we stil bij de basisscholen die vanaf september allemaal werken met een aanmeldingssysteem. Dat geldt nu ook voor de Hoogstraatse secundaire scholen: “Vanaf dit voorjaar werken ook zij met een aanmeldingssysteem, dit is toch een significante evolutie,” aldus Philippe D’Hulst, coördinerend directeur van scholengemeenschap Markdal. Hij wijst er meteen ook op dat niemand bang hoeft te zijn niet in de school van haar of zijn keuze terecht te kunnen.
Het systeem werkt in twee eenvoudige stappen. Tussen 27 maart en 21 april gaat de kandidaat-leerling naar de website van de school waar zij of hij wenst in te schrijven, klikt op de link naar het aanmeldingssysteem en vult
het document in. Na 21 april verstuurt de school dan de uitleg over de definitieve inschrijving.
In alle Hoogstraatse secundaire scholen zijn er overigens voldoende plaatsen. “Onze secundaire scholen hebben geen capaciteitsproblemen,” zegt D’Hulst, “met andere woorden: wie zich aanmeldt, is zeker van een plaatsje tenzij de leerling niet voldoet aan de wettelijke inschrijvingsvoorwaarden. We werken met een aanmeldingssysteem omdat we de focus van een inschrijving maximaal willen verleggen van het administratieve naar een grondige kennismaking met de nieuwe leerling en diens ouders. Omdat we geen maximumcapaciteit bepalen, spelen er in het secundair onderwijs ook geen voorrangsregels.”
Er zijn wel verschilpunten met het systeem voor de basisscholen: de data van de aanmeldingsperiodes voor basis- en secundair onderwijs lopen niet gelijk, zo heeft de wetgever bepaald. “Daarnaast werkt het basisonderwijs met 1 systeem voor alle scholen; in het secundair onderwijs heeft elke school een apart aanmeldingssysteem. Dit om te voorkomen dat ouders bevreesd zouden zijn dat het systeem hun kind toewijst aan een school die niet de school van hun keuze is.”
Meer info, bijvoorbeeld voor wie nog twijfelt tussen een keuze voor 1A of 1B, vindt iedereen in de school naar keuze. (mdl)
HOOGSTRATEN - Om tal van redenen wordt het voor sommige parochies moeilijk om nog zelfstandig verder te kunnen. Bisschop Johan Bonny riep acht jaar geleden de pastorale eenheden in het leven om over de grenzen van parochies heen samen te werken. Zo werden de parochies van Hoogstraten en Rijkevorsel uitgenodigd om binnen de Pastorale Eenheid Sint-Franciscus de grenzen tussen de verschillende parochies zoveel mogelijk te overstijgen. Op 16 februari is iedereen om 19.30 uur in zaal 't Markenhof (Koestraat 6, Minderhout) welkom om mee te denken over hoe dit kan groeien.
Er kan intenser worden samengewerkt op verschillende vlakken zoals vormselcatechese, zondagsvieringen, uitvaarten, doopsels en huwelijken. In Rijkevorsel leeft het initiatief om
de parochies Sint-Jozef en Sint-Willibrordus samen te voegen tot één parochie. In dezelfde zin wil het team van de pastorale eenheid bekijken of de samenvoeging van de parochies Sint-Jan Baptist Wortel, Sint-Clemens Minderhout en Sint-Katharina Hoogstraten kansen creëert voor een duurzame toekomst van de pastorale werking. Ook de kerk van het begijnhof wordt hierin betrokken.
Daartoe houdt Pastorale Eénheid Sint Franciscus een open beraad waarop iedereen die
zich betrokken voelt bij een van deze parochies, van harte welkom is. Coördinator Luc Vinkx, pastoor Bart Rombouts en procesbegeleider Steven De Schamphelaere, willen de aanwezigen informeren over de mogelijkheden en de gevolgen van een samenvoeging. Ze luisteren ook naar ieders vragen, ideeën, bedenkingen of bezorgdheden in dit verband. Afspraak dus op donderdagavond 16 februari in ’t Markenhof. Allen welkom! (rob)
HOOGSTR ATEN - De leden van de Ronde Tafel en Club 41 hebben deze zomer via een veiling geld ingezameld en vooraf chocoladepakketten verkocht, waarvan de opbrengsten integraal naar het goede doel zijn gegaan. Op woensdagavond 11 januari was het voor de beide serviceclubs eindelijk tijd om tijdens een nieuwjaarsreceptie de verschillende doelen een mooie cheque te geven om hun werking te ondersteunen.
De beide clubs groeperen een 40-tal gemotiveerde ondernemers uit Hoogstraten die zich, naast hun professionele leven, inzetten voor de gemeenschap. Het zijn jonge ondernemers die ook goede doelen steunen, waarbij ze een betrokken en geëngageerde visie op de mens en de maatschappij belichamen. Sociaal ondernemerschap versterkt de maatschappelijke cohesie, doorbreekt eenzaamheid en isolement. Via de financiële bijdrage dragen de clubs hun steentje bij om het leven van kwetsbare mensen beter, makkelijker en hoopvoller te maken.
De voorzitters van beide clubs zijn dan ook blij en trots dit te kunnen verwezenlijken, wat niet evident is na 2 jaar pandemie.
Volgende goede doelen mochten delen uit de pot van 25.000 euro die de Ronde Tafel en Club 41 bijeen brachten:
• Het Berrefonds wil een houvast zijn voor (groot)ouders, familie en vrienden op het moment dat hen het ondenkbare overkomt: het verlies van een kind.
• 't Ver-Zet-je Welzijnsschakel Hoogstraten VZW ondersteunt een 200-tal gezin in Hoogstraten die omwille van een tegenslag, werkloosheid, ziekte, financiële of familiale problemen, … uit de boot vallen. En zo zorgen zij ervoor dat mensen uit hun isolement worden gehaald en dat ze een volwaardige plaats krijgen in onze maatschappij.
• Stichting De Kleine Strijders zet zich in voor projecten in en rondom het ziekenhuis. Deze projecten veraangenamen het verblijf en de zorgervaring voor de betrokken kinderen en hun naasten zodat elk kind ook in
die omstandigheden kind kan zijn.
• Vzw Jeugdlokalen Hoogstraten zorgt voor nieuwe lokalen voor het bloeiende jeugdbewegingsleven in Hoogstraten.
• Terre Vivante is een organisatie gelinkt aan de Stad Hoogstraten, waarbij de lokale citrusteelt in Za-Kpota ondersteund wordt, met de nadruk op de participatie van de lokale mannen én vrouwen.
• “We Stand with Ukraine” zorgt via een directe connectie in Oekraïne, voor een optimale levering van hulpgoederen om de bevolking aldaar te ondersteunen. (jaf)
HOOGSTRATEN - De verhuis van de plaatselijke postdistributie naar Rijkevorsel leverde heel wat problemen op. Eerder dit jaar concentreerde Bpost haar activiteiten in de oude gebouwen van Aldi in de Ambachtstraat in Rijkevorsel. Postbodes uit Beerse, Rijkevorsel, Hoogstraten, Wuustwezel, Malle, Brecht en Merksplas vertrekken hun rondes voortaan vanuit dit distributiegebouw. Daar kwam nu ook Lille nog bij.
Heel wat postbodes hebben door deze ingreep hun overplaatsing aangevraagd naar andere aanpalende regio's, anderen dienden hun ontslag in. Naar verluidt ontstond er hierdoor een nijpend tekort aan postbodes, en dit in de drukste periode van het jaar. Nieuwe 'facteurs' werden in snel tempo opgeleid.
En dat leidt niet altijd tot een betere dienstverlening. Het zijn vooral de abonnees van kranten en tijdschriften die getroffen werden door dit tekort aan postbodes. Ook de postbedeling van de Hoogstraatse Maand liep niet van een leien dakje, zo bleek. Op termijn belooft Bpost beterschap. (PM)
HOOGSTRATEN - Het succesvolle VRT één programma ‘Restaurant Misverstand’, waarvan een tweede reeks afleveringen op stapel staan, gaf de vele kijkers een warme en respectvolle inkijk in de wereld van (jong)dementie. Dat is ook een goede zaak, vele families worden op een of andere manier immers geconfronteerd met vormen van dementie bij iemand die hen lief is. Dan leven er vaak nog heel wat vragen hierrond. De familiegroep brengt mensen samen en biedt misschien wel antwoorden op onbeantwoorde vragen…
Brenthe Graumans is voorzitter van de familiegroep regio Hoogstraten, ze is ook de referentiepersoon dementie binnen WZC Stede Akkers. De familiegroep dient ter ondersteuning van mantelzorgers van personen met dementie en komt in 2023 nog zesmaal samen. Eenieder die op welke manier dan ook met dementerenden geconfronteerd wordt, is welkom op een bijeenkomst.
De volgende data en thema’s voor dit jaar zijn vastgelegd:
• donderdag 2 februari van 19 tot 21 uur met als thema ‘Dementie en het dagelijks leven’;
• vrijdag 21 april van 14 tot 16 uur met als thema ‘Communiceren met en zonder woorden’;
• donderdag 13 juni 19 tot 21 uur met als thema ‘Zorgvolmacht’;
• vrijdag 22 september van 14 tot 16 uur met een getuigenis van mantelzorger Lucrece;
• donderdag 23 november van 19 tot 21 uur met als thema ‘Warme dementiezorg in de winter’;
• vrijdag 15 december wordt het jaar van 14 tot 16 uur afgesloten met ‘Babbels en bubbles’.
Alle bijeenkomsten vinden plaats in Stede Akkers. Meer info: Brenthe Graumans, Referentiepersoon dementie, WZC Stede Akkers, tel 03 340 16 00. (fh)
HOOGSTRATEN - Op zaterdag 25 februari organiseert vzw Het Convent haar eerste Begijnhofconcert met enkele bekende werken voor quatre-mains, uitgevoerd door Olivier Thienpont en Inge De Brakeleer.
Olivier Thienpont woont sedert 6 jaar in de schaduw van de begijnhofkerk en werd vorig jaar zelf erfpachter in het begijnhof. Tijdens zijn studies aan het Koninklijk Conservatorium van Antwerpen ontmoette hij collegapianiste Inge De Brakeleer. Ze vormden er een vast pianoduo, volgden masterclasses bij onder meer het gerenommeerde duo Tal & Groethuysen en speelden binnen het kader van de Masterproef hun eindexamen kamermuziek op twee vleugelpiano s. Hiervoor ontvingen ze de grootste onderscheiding.
De Post reorganiseert en concentreert zijn postdistributie voor onze regio in Rijkevorsel. Het postgebouw in de Gravin Elisabethlaan vond al een koper (zie ook het dorpsnieuws), de gewone dienstverlening wordt er vooralsnog verder gezet.
Op het programma staan enkele fantasierijke en zeer toegankelijke werken voor quatremains: de ‘Peer Gynt’ suite van E.Grieg, ‘Fantasie in f. Moll’ van F.Schubert en ‘De Moldau’ van B.Smetana. Deze bezetting krijgt u niet vaak te horen, wat van dit concert een unieke gelegenheid maakt om kennis te maken met het repertoire. Het oude orgel (1833) van de Begijnhofkerk zal ook aan bod komen bij het begin van het concert met enkele preludes van J.S.Bach uit: ‘Das Wohltemperierte Klavier’.
Praktisch: Begijnhofconcert op zaterdag 25 februari 2023 om 20 uur in de begijnhofkerk. Inkomkaarten bij Visit Hoogstraten 03/340 19 56 en via www.hetconvent.be (fh)
je denkt!
Het eerste blad waaraan
HOOGSTRATEN / MEER / WORTEL - Al enige tijd slaan Ste-Rosalia, Sint Jan Baptist, St Catharina de handen in elkaar om gezamenlijk een jeugdorkest te vormen. Dat loopt al maar beter, en zo begint de jeugdwerking van de Brassbands van Wortel en Meer en de fanfare van Hoogstraten met flinke ambitie aan een nieuw seizoen. Dit voorjaar staan er alvast drie concerten gepland.
Cindy Kranen geeft in Meer en Wortel de opleiding voor de Brassband. Maandags, direct na de school, kunnen de leerlingen in opleiding les volgen op hun eigen niveau. Zowel volwassenen als kinderen kunnen overigens deelnemen. “Vanaf de eerste les wordt er met een instrument gewerkt, theorie en instrument worden tegelijk aangeleerd. Een noot die op de notenbalk geleerd wordt, wordt dus in de praktijk gespeeld. Zo is de link tussen theorie en praktijk steeds aanwezig. De meeste beginners starten eerst op een kleiner instrument, maar het mag ook direct de normale afmeting zijn.” Er is een ruime keuze uit slagwerk,
trombone, euphonium, bariton, alt-hoorn, cornet en bugel.
Voor de leerlingen uit Hoogstraten hebben de lessen in de muziekschool plaats. Ook hier wordt direct met een instrument begonnen. Zodra de leerling voldoende muzikale vordering maakt, kan zij of hij aansluiten bij het jeugdorkest. Dat jeugdorkest oefent elke zondag van 18.30 tot 20 uur in de PAX.
Voor de activiteiten hoor je er al vanaf het begin bij. Naast de muziek zijn er voor de groep tot 18 jaar immers ook verschillende ontspannende activiteiten. Voor deze jeugdwerking is Ann Rombouts verantwoordelijk. “We willen graag de werking omhoog krikken. In Meer waren ze ermee begonnen om elke zomer een grotere activiteit te organiseren. Dat doen we nu ook regelmatig doorheen het jaar. Dit houdt het plezant en het creëert een groepsgevoel. Zo gaan we in juni op kamp, verder is er een Halloweentocht, een spelletjesnamiddag, een bosspel. En zopas
hadden we 7 januari een heel leuk bezoek aan de winterefteling.”
Voor de komende periode staan voor het jeugdorkest enkele belangrijke data gepland. Het gaat om optredens met publiek. Noteer de data dus alvast in de agenda. Op 11 maart is het jaarconcert in Wortel in zaal ’t Trefpunt. Een week later, op 18 maart volgt een jaarconcert in Meer Kunst en Volk. Op 22 april is er een ‘Celtic night’ in Hoogstraten in de Raboenizaal om 19.30 uur. Contactpersoon voor Hoogstraten is Luc Rombouts.
Stuk voor stuk warm aanbevolen om van de muziek te genieten, met het jeugdorkest kennis te komen maken én om te steunen, uiteraard. Wil je meer info over het jeugdorkest en haar werking, neem dan, contact op met Ann Rombouts (0472 728983) en Luc Rombouts (0479 780671) voor Hoogstraten. (ma)
De leden en begeleiders van het jeugdorkest begonnen januari met een geslaagde uitstap naar de winterefteling.
HOOGSTRATEN / WORTEL - De Wandelclub de Noorderkempen pakt op zondag 12 februari uit met haar 33ste Wintertocht. Dit keer gaat het traject langs de velden, weiden en bossen van Wortel en door de dreven van de Kolonie.
Je kan kiezen uit de afstanden 6-12-18-24-30 km. Vertrek en aankomst aan Parochiezaal Trefpunt, Poeleinde 2. Starten tussen 8 en 15
uur; de laatste aankomsttijd is voorzien rond 17 uur. Leden betalen € 1,5; voor niet-leden is dat € 3.
Info op: https://wandelclubdenoorderkempen.jimdofree.com/jaarprogramma/wintertocht-2020 of telefonisch Albert Van Bouwel 0477/93 79 85. (red)
HOOGSTRATEN - Vanaf februari worden de alleenstaande 75-plussers weer warm onthaald door stad Hoogstraten, de seniorenraad en seniorenverenigingen. Voor hen is er een ontmoetingsmoment met buurtbewoners in het lokaal dienstencentrum van Hoogstraten of Meer. Lichtpunt mag dus voortaan, na een onderbreking in de coronajaren, eindelijk weer voor een lichtpuntje zorgen.
De formule is ongewijzigd. Wie ervoor in aanmerking komt, wordt uitgenodigd voor een fijne middag in goed gezelschap. Er is een middagmaal met aansluitend de gelegenheid om na te praten met koffie en gebak.
Wie 75 jaar of ouder is én in het bevolkingsregister geregistreerd staat als alleenwonend, ontving in januari een uitnodiging per post. Omwille van het groot aantal deelnemers zijn er verschillende bijeenkomsten in het lokaal dienstencentrum van Meer of Hoogstraten.
Wie eind januari nog geen uitnodiging had ontvangen en wel aan de voorwaarden zou voldoen, neemt best contact op met een medewerker van de lokale dienstencentra. Dat kan telefonisch op 03 340 16 30, of via mail aan dienstencentrum@hoogstraten.be. (mdl)
HOOGSTR ATEN - De schrijfmarathon van Amnesty International werd andermaal een groot succes 119 mensen schreven samen 1.419 brieven of kaartjes om hun solidariteit te betonen met de 10 personen waarvoor men dit jaar actie voerde. Het aantal schrijvers was ongeveer gelijk, enkel het aantal brieven en kaartjes per schrijver was iets minder. Begrijpelijk overigens, de voorbije jaren had zowat iedereen extra veel (schrijf)tijd omwille van Corona.
De lokale organisatoren mochten vele nieuwe schrijvers en schrijfsters, van alle generaties verwelkomen en hopen dat ze ook in de toe-
komst op hen mogen rekenen. Ze blijven er terecht op wijzen dat deze actie levens kan veranderen. Uit het verleden weet men dat 1 op de 4 acties effectief resultaat oplevert: vervroegde vrijlating - doodstraf afgewend - wetgeving verbeterd - daders veroordeeld enz.
Amnesty dankt dus eenieder voor haar of zijn schrijfwerk, evenals de medewerkers van de Wereldwinkel en de bib voor de hulp bij de
HOOGSTRATEN - Monique Bol rondde haar eerste jaar af als stadsdichter en heeft nog een en ander in petto. Alvast een tipje van de poëtische sluier…
Het voorbije jaar zette ze zich ijverig aan de schrijftafel. Ze schreef gelegenheidsgedichten, een raamgedicht voor de bib in Meer en een ode aan de laatste Begijn. Ze stelde zichzelf en haar gedichten voor in het Cultuurcafé, op de koloniehappening Kom landlopen in Wortel en tijdens een lezing in de Klapekster. Ze droeg haar steentje bij aan Hoogstraten in Groenten en Bloemen en ze vertegenwoordigde het stadsdichterschap op een bijeenkomst in Lelystad. Samen met Daniel Billiet gaf ze in de gevangenis van Hoogstraten enkele druk bijgewoonde poëzieworkshops.
De stadsdichter heeft plannen genoeg voor het werkjaar 2023, maar wil de verrassing niet verprutsen en licht dus hooguit een tip van de sluier op. Ze treedt o.m. op in de kapel van Minderhout en tijdens het Cultuurcafé. Net voor de zomer krijgt ergens in de openbare
ruimte in Groot-Hoogstraten het poëzie- en kunstproject vorm, waarvoor ze eerder een oproep deed aan dichters. De geselecteerde inzenders kregen alvast een bericht. Tijdens de zomervakantie worden elke dag vijf ballen te water gelaten op de zwemvijver van de Mosten, op elke bal prijkt een gedicht zodat je tussen de poëzie kan zwemmen. Op de donkere dagen rond Allerheiligen zal een gedicht troost bieden op de kerkhoven. Als slotactiviteit wil ze jong en oud samenbrengen rond bekende gedichten (die mensen vaak nog uit het hoofd kennen).
Graag wilde ze Hoogstraten op de kaart zetten via een landelijke poëziewedstrijd. Zonder een handvol geëngageerde vrijwilligers zal dit niet lukken, helaas. Wel hoopt ze op een poëziewandeling, waarbij dichters voordragen op het wandelparcours.
Ook buiten het stadsdichterschap zit Monique overigens niet stil. Haar debuut “Er liggen twee holtes op je kussen” behaalde de top 20 in een wedstrijd om de mooiste titel van een dichtbundel. Samen met Daniel Billiet werkt
verdeling van de schrijfpakketjes. Speciale dank ook aan Jef Martens en Charel Huet, die zorgden voor een ontroerende en feestelijke muzikale afsluiter op woensdag 28 december. Er zijn maandelijkse schrijfmomenten in café Oud Hoogstraeten. Daar is iedereen welkom op de derde donderdag van de maand tussen 20 en 22 uur en elke vierde vrijdagnamiddag van 14 tot 16 uur.
Op de facebookpagina (amnesty international hoogstraten) kan je alles vinden over de werking en de lopende acties. (fh)
ze aan een boek met als werktitel “Bladerval in juli”, met daarin brieven, klimaatgedichten en schrijftips. (jaf)
HOOGSTRATEN - De bib slaat de handen in mekaar met Natuurpunt Markvallei voor een spelletjesnamiddag op 23 februari. Tijdens deze namiddag krijgt zowel klein als groot de gelegenheid om gezelschapsspelletjes te ontdekken. Vanaf 18u wordt er verder gespeeld zonder kinderen. De bibliotheek voorziet gezelschapsspelen, ook de deelnemers kunnen een eigen spel meebrengen.
Deze spelletjesnamiddag op donderdag 23 februari is van 14 tot 16 uur (kinderen) en van 18 tot 22 uur (volwassenen) - vooraf inschrijven verplicht aan de bibbalie of via hoogstraten.bibliotheek.be/uit-agenda.
Kinderen jonger dan 10 jaar worden door een volwassene begeleid.
Is de deur gesloten, gebruik dan de inleverbus. De bibliotheek van Hoogstraten beschikt nu immers over zulke bus voor het geval je de openingsuren van de bib uit het oog verliest en dringend uitgeleende materialen wil binnenbrengen. Je kan er alle bibmaterialen in deponeren, behalve gezelschapsspellen. Lever wel alleen het materiaal in dat je in die specifieke bib hebt opgehaald.
Om boetes te vermijden, moet je er rekening mee houden dat je boeken pas effectief gere-
gistreerd worden bij het eerstvolgende openingsmoment van de bibliotheek. Als je bijvoorbeeld op zaterdagavond een boek in een bus deponeert, verdwijnt dit materiaal pas in de loop van de daaropvolgende week van je bibpas.
Als de bib open is, lever je de geleende materialen nog steeds in als vroeger, dus aan de balie of via de zelfbediening. (jaf)
project Markdal vond plaats op 13 december in de Leeuwerik in Galder. Het waterschap presenteerde er de voorgenomen aanpassing op het Voorlopig Ontwerp (VO) voor het zuidelijke deel van het Markdal. In het bijzonder gaat de belangrijkste aanpassing over de ligging van de geplande meander bij de Nederlandse Markweg, die in het ontwerp verplaatst zal worden van de westzijde van de Bovenmark naar de oostzijde.
Ook grondeigenaars en ondernemers in het gebied krijgen de gelegenheid om met de medewerkers van het waterschap te verkennen wat de mogelijkheden zijn om mee te doen. Dit gebeurt in het kader van de inpassing in het Definitief Ontwerp (DO) dat voor het komende voorjaar wordt gepland en door het Waterschap ter inzage wordt gelegd.
GALDER - Het Markdal dankt zijn naam aan de Mark die door de weilanden ten zuiden van Breda stroomt. Dankzij de inzet van Natuurmonumenten heeft een deel van de Mark haar oorspronkelijke slingerende loop weer terug. Aan weerszijden van de beek groeien thans wilgen en elzen. Dit is ook het decor van een bijzonder proces. De bewoners en betrokkenen in het gebied hebben de afgelopen jaren immers zelf het heft in handen genomen om het gebied verder te verbeteren. De plannen hiertoe zijn voorbereid door een burgerinitiatief, georganiseerd in de Vereniging Markdal. In nauwe samenwerking met het waterschap en met veel enthousiasme en hard werken heeft dit geleid tot een Voorlopig Ontwerp (VO).
De ‘inloopbijeenkomst’ van het Waterschap Brabantse Delta voor het
Het concept van het aangepaste Voorlopig Ontwerp is nu al te bekijken op het informatieplatform via website: https//herinrichting-markdalrhk.hub.arcgis.com.
Geïnteresseerden kunnen ook per email contact opnemen via markdal@brabantsedelta.nl.
De planning voorziet dat het definitief ontwerp Markdal-Zuid en de start van de inspraakronde gebeurt in april 2023; het definitief plan en de start van de realisatie volgen al in september 2023, met oplevering in juli 2024. Dit wordt allicht zowel boven als onder de grens met de nodige nieuwsgierigheid gevolgd. Misschien wel een voorbeeld voor de verlenging van het fietspad langs de Mark in Meer richting Minderhout? (JJ)
RIJKEVORSEL - Op zaterdag 14 januari is de bekende Nederlandse componist, gitarist, zanger, tekstschrijver en producer George Kooymans gehuldigd als ereburger van Rijkevorsel. In het bijzijn van familie en vrienden ontving hij in het gemeentehuis het ereburgerschap in de vorm van een oorkonde. De huldiging werd o.m. opgeluisterd door een toespraak van Stanny Van Ostaeyen, één van zijn beste vrienden; Rik Ooms en Ed Maes van Desperated Company speelden enkele nummers uit het oeuvre van George Kooymans.
De 74-jarige Hagenaar woont al bijna vijftig jaar in Rijkevorsel. Hij is de oprichter van de nederbeatgroep The Golden Earrings, die als Golden Earring een imposante rist internationale hits scoorde als “Radar Love”, “Twilight Zone” en “When the Lady Smiles”. Kooymans zorgde als gitarist mede voor de muziek en teksten van de rockband en schreef ook voor andere artiesten. Vanaf 2016 vormde hij Vreemde Kostgangers met muzikale vrienden Henny Vrienten en Boudewijn de Groot.
Hier heeft hij ook zijn eigen studio, waarin heel wat albums van Golden Earring zijn opgenomen. Ook groepen als Herman Brood & His Wild Romance, The Wolf Banes en Gruppo Sportivo vonden de weg naar de opnamestudio, hij producete er o.m. ook het debuutalbum van de Nederlandse zangeres Anouk.
In 2021 werd bekend dat Kooymans lijdt aan de zenuw-spierziekte ALS, het betekende meteen het einde van Golden Earring. In juni 2022 bracht Kooymans nog wel het album ‘Mirage’ uit, samen met zijn Amerikaanse vriend Frank Carillo.
In onze buurgemeente vond hij destijds de rust terug die hij in Nederland niet meer had. Met zijn gezin heeft hij er zich volledig gesetteld, zijn kinderen liepen school in de regio, het echtpaar bouwde er een heuse vriendenkring op. Rijkevorsel is terecht fier op de verwezenlijkingen van hun dorpsgenoot, vandaar deze oorkonde en publieke erkenning als ereburger. (red)
www.demaand.be
REDACTIE A DRES
Begijnhof 27, 2320 Hoogstraten tel. 0472 97 12 87 redactie@demaand.be
DORPSNIEU WS
w Hoo g straten : Patrick Melis 0497 41 40 29 hoogstraten@demaand.be
w Meer :
Marcel Adriaensen tel. 03 315 90 40 meer@demaand.be
w Meerle :
Jan Fret tel. 03 315 88 54 meerle@demaand.be w Meersel-Dreef : Jef Jacobs tel. 03 315 73 64 meersel-dreef@demaand.be w Minderhou t : minderhout@demaand.be w Wortel : wortel@demaand.be
SPORTNIEUWS
Rob Brosens tel. 03 314 43 39 sport@demaand.be
Niet alle beeldmateriaal wordt ons met auteursgegevens overgemaakt. Neem contact op met de redactie voor eventuele rechten.
A DVERTENTIES
Jan Croes tel. 0477 66 11 60 advertenties@demaand.be
Emilia Horsten
Begijnhof 27 2320 Hoogstraten tel. 03 314 51 03 abonnementen@demaand.be administratie@demaand.be
Verantwoordelijke uitgever: F. Brosens, Begijnhof 27 2320 Hoogstraten
HOOGSTR ATEN - ‘Alfonsine Vandersmissen’, zoals de meeste mensen in Hoogstraten haar kennen, zal 6 december 2022 niet snel vergeten. Sinterklaas bracht haar die dag een virtueel verjaardagpakje met 100 kaarsjes. “Ze zetten ons op de wereld en we moeten er maar het beste van maken” lacht ze de aandacht weg. Het werden wel 100 bewogen jaren, met hard werken, heel wat tranen, maar ook op tijd en stond een felle lach. En met een onvergetelijk familiefeest werd de kers op een schitterende taart gelegd.
We zoeken haar op in het Woon-Zorgcentrum in blok B, een kamer op de bovenste verdieping. Vanuit het raam kijkt zij uit op ingang van de Heilig Bloedstraat. Het huis waar zij altijd gewoond heeft in deze straat is echter niet te zien. Toch voelt het uitzicht als een beetje thuiszijn. Tot vijf jaar geleden woonde zij hier nog in haar mooi landhuis met de huisnummer 16. De talrijke akkers en velden waarop hun tuinbouwbedrijf gevestigd was, zijn intussen al lang verdwenen. De herinnering aan de kersen- en kriekenbomen, de rode en zwarte bessenstruiken en de aardbeivelden zijn nooit meer weggegaan.
Het werd een hard leven voor Alfonsine Verdonck, want in september 1960 sloeg het noodlot toe. Haar echtgenoot Walram Vandersmissen stierf op 42-jarige leeftijd na een
lange ziekteperiode. Alfonsine, of Tinne zoals zij zich zelf liever noemt, bleef achter met 6 jonge kinderen. Zij zelf was toen 38 jaar, de oudste dochter Frieda 16 en het jongste kind amper 4 jaar. Maar het tuinbouwbedrijf moest voort en de zorg voor de 10.000 slachtkippen eiste heel wat energie en tijd op.
Ondanks het harde leven heeft ze haar goed humeur er niet bij verloren. Wanneer we haar opzoeken zijn de zonen Jef en Marc op bezoek en er wordt stevig wat gezwansd en afgelachen. Marc had zoals gebruikelijk weer wat lekkers uit zijn keuken meegebracht. En tussendoor leggen we de puzzel van Tinne Verdonck even in het juiste verband. En dat is niet zo moeilijk want haar geheugen heeft nog niet veel moeten inboeten en een beetje zelfspot maakt er een gezellige babbel van.
Tinne of Alfonsine Verdonck is afkomstig van Rijkevorsel waar ze op 6 december 1922 geboren wordt als tweede oudste in een gezin van 7 kinderen. Officieel heet zij Maria Catharina Alfonsina, maar iedereen in het dorp noemt haar Tinne. In Hoogstraten zullen wij ze later kennen als Alfonsine. Vader Jef Verdonck is postbode. Moeder Maria Brosens zorgt voor het huishouden, waarbij Tinne al vlug een handje meehelpt bij de opvoeding van de jongere kinderen.
Alfonsine (Tinne) Verdonck, nog steeds een frisse verschijning na 100 jaar wel en wee.
Tot haar 14 gaat ze naar school in Rijkevorsel, daarna leert ze snit en naad in de ‘coupe’ in Wortel. In de oorlogsjaren trekt ze wekelijks met enkele vriendinnen naar Hoogstraten om te volksdansen. Hier leert zij in 1942 Walram Vandersmissen uit Hoogstraten kennen. De familie Vandersmissen baat een Delhaizewinkel uit op de Vrijheid, waar later de Sparwinkel van Jos Lauryssen zal komen. De naam Delhaize zal de familie nog lang met zich meedragen.
Op 21 september1943 trouwen Tinne en Walram in intieme kring . Ze gaan inwonen in het ouderlijk huis van Vandersmissen. Samen starten zij een gemengd bedrijf op in de Heilig Bloedstraat met tuinbouw en het opkweken van slachtkippen.
Het gezin groeit met zes kinderen. Het zijn Frieda, Jef, May, Jan, Marc en Dirk. De zomermaanden zijn vooral drukke tijden in het tuinbouwbedrijf en er wordt heel wat over en weer gependeld tussen de aardbeivelden rond het huis en deze aan de Heikant in Merksplas, ‘de hei’ zoals met dat toen zei.
Maar dan wordt Walram erg ziek en sterft al op 42-jarige leeftijd. Het worden zware tijden voor Alfonsine die als jonge vrouw van 38 het bedrijf verder zal moeten runnen en een gezin van zes jonge kinderen moet beredderen. Gelukkig is er goed personeel op het tuinbouwbedrijf en hulp in het huishouden. Maar ook de kinderen zullen snel een deel van het werk op zich moeten nemen.
Maar ondanks de zware verantwoordelijkheid blijft Alfonsine niet bij de pakken zitten en wordt ook meer en meer actief in het verenigingsleven. Hier heeft ze wellicht de genen van haar vader meegekregen. Samen met een aantal andere jonge weduwen richt zij de weduwengroep op in Hoogstraten. Maandelijks komt de kerngroep samen voor een bezinning, een bespreking en een gezellig samenzijn. De daverende lach van Alfonsine steekt meestal boven alle andere uit. Vanuit deze kerngroep worden allerlei grotere activiteiten georganiseerd met een diner voor alle weduwen van Hoogstraten alsook regelmatig een daguitstap.
Daarnaast heeft ze ook mee de Hoogstraatse missiefeesten in ’t leven geroepen die jaarlijks plaatsvinden tijdens het weekend van Hoogstraten kermis, einde september. Bij deze missiefeesten wordt ook heel de familie Vandersmissen betrokken, haar schoonzoon Jan Bruyndonckx zal er de drijvende kracht van worden. Vele jaren lang is er haast een versmelting van het Missiefeest en de Weduwengroep.
te midden van haar kinderen en hun partners op het verjaardagsfeest in Vorselaar.
En Alfonsine, zij zag dat het goed was. Maar ook het Piuskoor kon op haar inzet en haar stem rekenen. Jarenlang was zij hier actief en draagt nu de titel van erelid.
Met veel plezier kijkt Alfonsine terug op de verschillende vieringen en gelukwensen voor haar 100-ste verjaardag. De kers op de taart
was zeker het groot familiefeest in het kasteel van Vorselaar. Met haar kinderen en partners, de 15 kleinkinderen en 15 achterkleinkinderen werd het een onvergetelijke dag. In gedachten zullen zeker haar echtgenoot Walram en haar zoon Jan, die in 2010 overleed, aanwezig geweest zijn.
Wij wensen haar in ieder geval nog enkele jaren goede en gezonde jaren toe! (jh)
Ook de 15 kleinkinderen genieten van het gezelschap van moemoe…
HOOGSTR ATEN - Deze zomer is het na lange tijd weer zover: na de afgelasting van de editie 2020 organiseren de Gelmelzwaaiers nu toch de 11de editie van het Internationaal Folklorefestival. Dit zal doorgaan in het weekend van 28-29-30 juli 2023 in het GC Hoogstraten, Rabboenizaal. Op zondag 30 juli zal er voor het stadhuis opgetreden worden. Er wordt nog onderhandeld met verschillende buitenlandse groepen om in Hoogstraten te komen dansen. Binnenkort meer nieuws daarover via de Facebookpagina en andere sociale media. Om een en ander mogelijk te maken, worden er nog
gastgezinnen gezocht. Al vanaf het eerste festival in 1990 worden de groepen immers te slapen gelegd bij gastgezinnen. Dat bleek overigens telkens weer een unieke belevenis waar mooie vriendschappen hun oorsprong vonden.
Ook voor deze editie zoeken de Gelmelzwaaiers naar gezinnen die hun woning willen openstellen voor enkele buitenlandse gasten. De groepen arriveren op donderdag 27 juli en blijven tot zondag (30/7) of maandag (31/7). Voor meer informatie kan u mailen naar gastgezin@gelmelzwaaiers.be. (jaf)
HOOGSTRATEN - Op de ijskoude zaterdagnamiddag van 19 december werd op het plein aan de Gravin Elisabethlaan de nieuwe kerststal ingehuldigd door de dorpsraad van Hoogstraten, het stadsbestuur en pastoor Bart Rombouts. Johan Peeters, voorzitter van de Hoogstraatse dorpsraad, was fier om deze kerststal aan de Hoogstraatse dorpsgemeenschap te mogen presenteren. Hij drukte daarbij zijn dank uit aan allen die dat mogelijk hebben gemaakt.
De nieuwe kerststal én kerstbeelden zijn 100% van Hoogstraatse makelij, lichtte Johan Peeters verder toe. Fons Van de Locht, tekende voor het ontwerp en volgde de werken op. De VITO-directie had het project mee opgenomen in het lessenpakket van houtbewerking 7de jaar. De leerlingen van het 7de jaar 22-23 houtbewerking, onder leiding van de leerkrachten Björn Strijbos en Luc Aernouts en technisch adviseur Gert Goetschalckx zorgden voor de realisatie van de kerststal.
Voor de materialen konden ze rekenen op de sponsors (Hubo, Houthandel Janssens, firma Vos, firma BMB Halschoor, Martens Electro en Interieur Mertens).
De beelden Maria, Jozef, kindje Jezus én de drie nieuwe beelden van onze drie koningen zijn vervaardigd door de Hoogstraatse kunstenaars Anja, Sil, Karel en Lief. Verder kon men rekenen op de inzet van heel wat leden van de dorpsraad en enkele andere vrijwilligers.
Na een woordje van de burgemeester kon pastoor Bart Rombouts de nieuwe stal inzegenen. De inhuldiging werd muzikaal opgeluisterd door het kinderkoor Vialta, dat daarmee z’n eerste openbaar optreden beleefde. Aansluitend bood de dorpsraad een drankje aan - met dank aan Marieke van Hair by M die voor de receptie zorgde via een anonieme sponsor. Er was gelukkig ook warme chocomelk! (jaf)
HOOGSTRATEN - Van een kerstsfeer kon je nauwelijks spreken in het winkelcentrum van Hoogstraten. Op de kerstshopping, het weekend voor kerstmis, was nauwelijks volk. Erger, er was ook helemaal geen kerstsfeer. Weinig animo bij de Hoogstraatse horeca, we telden welgeteld twee kraampjes om een warme drank te nuttigen. Geen zangkoor, en de vacature voor kerstman werd niet ingevuld.
Toenemende concurrentie doet natuurlijk ook geen deugd. Steeds meer privé-initiatieven trekken toeschouwers weg uit ons centrum. Zo werden er naast de traditionele kerstdrinken in onze fusiegemeenten ook evenementen ingericht op het terrein van Taeymans Coffee in Minderhout. Het was daar echt wel een drukte. “We hebben echt veel volk over de vloer gehad, dit krijgt zeker een vervolg bij de volgende kerst eind 2023,” aldus Jürgen Taeymans.
Ook verderop, aan het klooster op de Breda-
seweg, was er een knusse kerstmarkt. Dit was ongetwijfeld de meest sfeervolle kerstmarkt in Hoogstraten. Daar zorgde Ken Herrijgers voor. Ken organiseerde naast zijn alpaca-activiteiten voor het eerst een ‘winterborrel bij het nieuwe klooster.’ Ook hier daagde heel wat volk op, en ook dit krijgt een vervolg. “Het was koud maar toch kwamen heel wat mensen opdagen, volgende editie gaan we nog beter doen. Ik zie dat er voor zulke evenementen een publiek is.”
In de buurt trok vooral Turnhout veel toeschouwers met zijn kerstsalon. Ook Antwerpen en Breda lieten zich van hun beste kant zien. Het wordt hoog tijd dat het stadsbestuur van Hoogstraten de regie in eigen handen gaat nemen. Of misschien een taak voor de dorpsraad? Een oproep om plaatselijke verenigingen, ambachtslui, kunstenaars en middenstanders bijeen te brengen voor de organisatie van een gezellige Hoogstraatse kerstmarkt. (pm)
HOOGSTRATEN - Een kerstfeest voor iedereen? Een mooie kerstwens, die helaas niet altijd voor iedereen uitkomt. Wie er sedert 2010 alles aan doet om die wens voor velen werkelijkheid te maken zijn Welzijnsschakel ’t Ver-Zet-je, Buurtwerking (Sociaal huis - OCMW), De Toevlucht en VTI Spijker. Elk jaar slaan zij de handen in elkaar om op 24 december een gezellig samenzijn te organiseren voor wie eenzaam zou zijn en/of minder financiële mogelijkheden heeft.
Het feestelijke kerstmaal moet nauwelijks onderdoen voor een feestmenu in een goed restaurant. Een aperitiefje, de keuze uit 2 voorgerechten, 2 feestelijke soepen, 2 hoofdgerechten en een uitgebreid nagerechtenbuffet. En dat aan feestelijk gedekte tafels in een stemmig versierd restaurant van VTI Spijker. Voor het feestmaal spraken burgmeester Marc Van Aperen en pastoor Bart Rombouts een warm welkomstwoordje, na het eten was er animatie door Mr. Wanmanbando. Ruim 170 mensen beleefden zo een heel fijne namiddag en gingen met een gevulde maag en een warm gevoel naar huis.
Dat alles is mogelijk dank zijn een grote schare vrijwilligers. De twee steunpilaren waarop de organisatie van het feest leunt, zijn Guy Sannen en Jan Leemans. Guy is de zachte en vriendelijke meesterchef in de keuken die met zijn helpers ervoor zorgt dat heel het menu warm en op tijd op tafel komt. Daar zijn ze al vanaf de dag ervoor in alle vroegte mee bezig. Hij mag daarvoor gratis gebruik maken van de
professionele installaties van VTI Spijker. Jan is de ‘organisator’, die een groep van ruim 70 vrijwilligers verzamelt en aanstuurt, van bij de voorbereidingen tot de opruim op tweede kerstdag. Hij zorgt er ook voor dat al wat nodig is tijdig ter plaatste komt.
Een ruimere werkgroep komt enkele weken vooraf 4 tot 5 keer samen om alles tot in de kleinste details voor te bereiden. Guy levert de ideeën voor het menu. Alles wordt bereid met verse ingrediënten. Het team kan daarvoor rekenen op vele sponsors uit de Hoogstraatse handel die het grootste deel van deze ingrediënten gratis leveren. Ook de bakkerijafdeling van VTI doet een ruime inbreng, nl. het gebak voor het dessertbuffet.
Voor wat nog moet aangekocht worden, is er nog een sponsorbudget vanwege handelaars en particulieren. De oproep om een maaltijd te sponsoren kent gelukkig ruim respons. Vele mensen storten een bijdrage van 12 euro (de prijs van een maaltijd) tot zelfs 200 euro. Wat overschiet, gaat naar de werking van ’t Verzetje en De Toevlucht. Ook de overschotten van de bereidingen worden op professionele wijze verpakt en ingevroren, om de dagen nadien in de Feftig hun weg te vinden naar mensen die er niet bij konden zijn. Niets gaat verloren!
Het mag duidelijk zijn het initiatief heel ruim gedragen is door de Hoogstraatse gemeenschap en daar zijn de organisatoren heel dankbaar voor. Met velen goed doen maakt Kerstmis nog meer bijzonder. (jaf)
HOOGSTRATEN - Breedtegraad: 51.401391
Lengtegraad: 4.758379
Het was 18 december, koud, grijs en bewolkt. Ik ging kerstshoppen, wandelde van Minderhout naar Hoogstraten. Ondanks alle goede energievriendelijke raad van ons stadsbestuur waren alle kerstlichtjes op de Vrijheid aangestoken. Door het weinige volk dat er op straat te vinden was, kon ik heel goed zien waar ik liep. Ik wilde wat graag de Hoogstraatse kerststal bezoeken. Want sociale media, de regionale bladzijde van de nationale pers en alle hand- en spandiensten van onze inflatoire samenleving werden ingezet om ons allemaal te laten weten dat Hoogstraten een kerststal had.
En de plaats was goedgekozen: daar waar enkele jaren geleden een monumentale boom werd neergebliksemd in de tuin van wijlen vrederechter Alfred De Wilde, daar zou de sterre stil blijven staan. Zo krijgt deze stadstuin dan toch nog de allure van een heus stadsplein.
Met veel zwier werd een week eerder bij de inhuldiging het heilige water ingezet om een en ander een plechtigheid toe te kennen die het eigenlijk niet verdiende. Zo kreeg Hoogstraten… een zwaar van overheidswege gesubsidieerd tuinhuisje. Een door leerlingen van het Vito technisch knap in elkaar getimmerd hok. Over hen geen kwaad woord. Elke bout en vijs zal wel perfect in elkaar zitten. Elke plank behandeld met aangeleerd vakmanschap en voorzien van duurzame ecologische labels.
Maar het blijft een tuinhuis, niks meer of minder. Past wel in dit land van boer en tuinder. Zoals vele tuinhuizen was ook dit exemplaar opgeruimd en netjes. Geen dunne schapenschijt en ronddolende kippen, geen os noch ezel. Wel een bakje vol met stro, spaarzaam aangebracht, Mikado-style. Niks teveel, eerder veel te weinig. Met daarin een kerstkind. Er waren ook andere beelden, mooie artistieke gezichten en gewaden uit het Midden Oosten. Om een en ander nog een authentieke Kempische uitstraling mee te geven werden er wat kerstboompjes omheen gezet. Jong geoogst van een nieuw soort spar, de Pinus Hubo, een doe-het-zelver onder de kerstbomen.
Een 6 meter lange lichtdraad met daarin lampjes waarvan de gloed enkel kan dienen voor werkzaamheden in je kruipkelder, moesten voor enige kerstwarmte zorgen. Dit alles veilig afgesloten met nadarhekwerk, alsof één iemand ook maar de drang had om
HOOGSTRATEN - Het opstellen en afbreken van de kerststal in de Sint-Katharinakerk is elk jaar opnieuw een hele karwei. De zware delen van de kersstal werden opnieuw veilig opgeborgen in de kelder
dit alles van nabij te aanschouwen.
De dorpsraad van Hoogstraten betaalde voor dit tuinhuisje veel meer dan € 10.000. Er werden ook nog gulle sponsors gevonden om dit alles een beeldbepalende plaats te geven in ons dorp. Je koopt dit nochtans lokaal of online voor een prikje. Zelfs met een open loungeruimte. Kan je nog lekker een karbonaadje op de grill leggen. Of een borreltje?
Een Boerenjongens voor Jozef, met een krentje erin?
Enkele tientallen meters verder ledigt een argeloze burger zijn dozen met lege flessen in de glascontainer. Veel rood dit jaar, maar ook cava, zware fles. Veel gerinkel. Hoor, allen, hoor,… dat zijn de jinglebells, all the way.
Hoog in de lucht speelt Luc Dockx ‘Susa Nina’ op onze beiaard. Het is kerstmis in Hoogstraten. Ik stond erbij en ik keek er naar. Breek af, deze ingeduffelde plankenzooi, en recycleer. (pm)
van het stadhuis. 14 medewerkers waren bereid gevonden om de stal te demonteren en weg te bergen. Ze werden getrakteerd op een koffie en een stukje taart. (rob)
HOOGSTRATEN - Afgelopen november werd het postgebouw van Hoogstraten verkocht aan een Antwerpse investeerder. Het gaat om een ‘sales & rent back’ operatie, dat wil zeggen dat de overheid verkoopt en terug huurt. In Hoogstraten blijft de dienstverlening voorlopig aan de voorkant van het gebouw bestaan. Hoelang deze verplichting blijft gelden is voorlopig nog niet geweten. Achteraan zal er wellicht gebouwd worden. Hiervan zijn de plannen op dit ogenblik nog niet bekend. De verbouwingen binnen het postkantoor zijn ondertussen begonnen. (pm)
HOOGSTRATEN - Het verhaal van lederatelier Iep Deszign begint wanneer Ibi Szabo een lederen pijlenkoker maakt voor de Sint-Jorisgilde van Meerle. Het zou er niet bij blijven, inmiddels is het meer dan een voltijdse baan en op 1 februari opende Iep Deszign een ambachtelijk lederatelier op de Vrijheid.
Het succes van de bewuste pijlenkokers was het begin van een reeks workshops, die plaats vonden in het washok van Ibi in de Gelmelstraat, boven het Bagetje. Het washok werd een timmerruimte om gaatjes in het leer te slaan, voordat men alles met de hand in elkaar kon naaien tijdens de workshops die ’s avonds en in het weekend doorgingen aan de eettafel. Best gezellig voor Ibi en de tetterende dames die creatief bezig waren in huis, maar voor haar man iets minder ;-)…
Toen het leer zich bleef opstapelen en de wanden rond de eettafel van boven tot onder gevuld waren met tassen, moest er toch iets veranderen. Tijdens een vakantie werd beslist om op zoek te gaan naar een ander atelier, in de hoop dat men meer workshops kon geven en Ibi haar doordeweekse baan kon opzeggen. Dat laatste bleek niet zo’n probleem, maar in Hoogstraten als startende ondernemer iets betaalbaars vinden was een ander verhaal.
Een zoektocht bracht hen in ‘Den Ast’ van Flor en Marleen Verschueren. Een atelier, eigenlijk gelegen aan de Vrijheid, maar toegankelijk via een paadje in de Leemstraat. Het gevoel zat meteen goed. Dit zou het nieuwe atelier worden. Verstopt tussen appartementen maar heerlijk knus en gezellig. Een écht atelier, in het groen en in alle rust. Het perfecte pand om te kunnen starten, leren en groeien. Uiteindelijk kon Ibi van haar hobby haar beroep maken.
De Coronaperiode kon men overbruggen, wat zoals voor zovelen een behoorlijke uitdaging was.
Langzaam aan ging men uitkijken naar een groter pand. En na de 1000ste tas, die men begin oktober tijdens een workshop in elkaar zette, ging het plots snel.
In oktober startte men met een Crea Café. Op woensdagvoormiddag in Den Ast binnenspringen voor een babbel én werken aan een eigen projectje. Breien, werken met leer, borduren, zeefdrukken… Het atelier werd steeds
meer een creatieve ontmoetingsplek, waar de deelnemers met hun eigen creatieve project plaats konden nemen aan de stamtafel om creatief bezig te zijn. Men werkt er met stoeltjesgeld. Een plekje op een voor- of namiddag kost 15 euro.
Het succes van het Crea Café bracht opnieuw alles in een stroomversnelling. Door het enthousiasme van de dames durfde men de stap richting Vrijheid wagen. Na het bezoek aan enkele panden, werd het de zaak waar schoenen Pillot gevestigd was geweest, dat hetzelfde gevoel als het atelier in de Leemstraat opriep. Hier moet het lukken.
In het nieuwe pand ligt de focus nog steeds op de workshops voor het maken van lederen tassen. Maar er blijkt ook steeds meer behoefte te zijn aan een avondje ontspanning of een middagje gezellig samen, met een glaasje erbij.
Er komen wellicht ook kortere workshops en nieuwe initiatieven zoals workshops M-atelier uit Hoogstraten (keramiek), House Raccoon (terrazzo) en BobbinHood (zeefdrukken).
Helemaal nieuw is de shop. Het nieuwe atelier biedt vooraan immers een vitrine en winkelruimte. Dus ging men op zoek gaan naar een bijzonder assortiment. Naast accessoires van leer, vind je er producten van gerecycled glas, kandelaren van restijzer,… Het wordt een plek waar je unieke cadeaus met een verhaal kan vinden.
De voorkeur gaat daarbij naar vooral Belgi-
HOOGSTRATEN - Het is al voor het negende jaar dat Marleen De Vrij en haar drie koningen zingen voor het goede doel. Op zaterdag 7 januari kwamen we hen tegen op de Vrijheid.
De koningen waren dit keer Cis Van Aperen van café Buurman&Buurman, Toon Verheijen, regio-reporter van Het Laatste Nieuws, en Jurgen Renders van Blinky Blitz. Het geld dat ze bij elkaar zingen gaat naar jeugdbeweging de Slinger, die activiteiten organiseert voor kinderen met en zonder beperking. Op de foto herkennen we ook Thijs Brosens (van de Slinger), hij ging zaterdag een uurtje meezingen met dit viertal. (pm)
sche en Nederlandse leveranciers en die hun eigen merk versterken. Het gaat om producten die zoveel mogelijk van pure en natuurlijke materialen gemaakt zijn en zo min mogelijk schadelijke impact hebben op milieu, mens en dier.
“Buy it once, lasts a lifetime” - het is een leuze die Iep Deszign al een tijdje met zich meedraagt. Evenals “let’s make it personal”, wat je ‘personaliseert’, kan je koesteren.
Het atelier Iep Fabriek, Vrijheid 138 is open op woensdag en donderdag van 9 tot12 en van 14 tot 17.30 uur, op vrijdag van 14 tot 17:30 uur en op zaterdag van 10 tot 17 uur. (fh)
HOOGSTRATEN - De opbrengst van het matineeconcert dat het Piuskoor vorig jaar hield, gaat integraal naar ’t Ver-Zet-je. Op 12 januari overhandigde een terecht trotse koorvoorzitster Ann Van Delm een cheque ter waarde van € 1.500 aan Rita Roelen en Jan Leemans, bestuursleden van deze Hoogstraatse vereniging die zich inzet voor de strijd tegen kansarmoede. Met dit geld bieden ze concreet materiële ondersteuning aan de Oekraïense families die in Hoogstraten verblijven.
Ann Van Delm en Jan Leemans maken beiden deel uit van het Heilig Bloedcomité. Kort na het uitbreken van de oorlog in Oekraïne, gaf Jan tijdens een vergadering aan dat ’t Ver-Zetje zich wilde engageren voor steun aan Oekraïense families die naar Hoogstraten wilden komen. Hiervoor was dringende sponsoring nodig.
Daarop besliste het bestuur van het Piuskoor om de opbrengst van het matineeconcert van 26 juni 2022 integraal hiervoor af te staan. De opkomst voor het concert bleek overweldigend; er waren meer dan 300 toeschouwers. Uiteindelijk zou het een bedrag van € 1500 opleveren.
’t Ver-Zet-je besteedt dit geld nu o.a. voor hulp aan Oekraïense vluchtelingen bij de verhuis naar een definitieve woonplaats, en om de transportkosten van kleding naar Oekraïne
te financieren. De oproep in het voorjaar van 2022 om winterkledij te schenken werd immers massaal beantwoord. Ook nu nog ontvangt de Welzijnsschakel bijna dagelijks tweedehandskledij. Omdat de voorraad te groot werd om te verdelen via de kledingshop, besliste het bestuur om een deel hiervan te schenken aan de mensen in Oekraïne.
Dankzij de goede contacten met de Oekraï-
HOOGSTR ATEN - De jaarlijkse braderij op zondag 23 april is een gelegenheid om met je club of vereniging naar buiten te komen! Als vereniging krijg je de kans om een leuke activiteit of spel te organiseren. Laat het publiek kennismaken met je vereniging en schrijf zo snel mogelijk in. Alle verenigingen uit Wortel, Minderhout, Meer, Meerle en Meersel-Dreef zijn welkom. Het thema dit jaar is: "Hoogstraten Feest".
Zoals gezegd is deelname voor elke vereniging gratis. Stuur dus een mailtje naar info@beleefhoogstraten.be. Vermeld zeker de naam van de vereniging en het aantal m2 die jullie nodig hebben. Als ondersteuning is een beperkt aantal tenten en materialen vanuit de uitleendienst van de stad ter beschikking. Snel inschrijven is evenwel de boodschap... (pm)
ense gezinnen in Hoogstraten kon er al een lading kleding vertrekken naar de grens met Polen. Van daaruit is de kledij dan verder vervoerd naar Oekraïense families. ’t Ver-Zet-je is blij dat de hulp wel degelijk op de juiste plaats terechtkomt. Vandaar een herhaalde oproep doen om zowel winter- als zomerkledij te schenken, want binnen afzienbare tijd zal er een tweede lading richting Oekraïne vertrekken. (jl)
HOOGSTRATEN - Op 19 juli werd Emil geboren. Dit werd meteen het tweede Janssens viergeslacht in één jaar tijd voor Hoogstratenaar vovo Jos Janssens, 87 jaar.
Opa Frans Janssens is 61 jaar en woont in Kalmthout Achterbroek. Trotse papa Nathan Janssens (29 jaar) en kleine Emil Janssens hebben hun stekje in Kapellen. (jaf)
MEER - De winnaars van de Fun-reeks Heren +40 tijdens de Mostencross. We zien Anja Meyvis, geflankeerd door Frank (en niet Roel, zoals we vorige keer foutief in de uitslag vermeldden in onze rubriek ’Sport’) Mertens en Benny Mertens. Organisator Niels Koyen en schepen van sport Arnold Wittenberg vervolledigen het plaatje. (red)
MEER - 22 December waren we getuige van een merkwaardig verschijnsel boven Maxburg. Omstreeks half 7, de zon was dan al een tijdje onder, stond de horizon in lichter laaie. De wolken lichtten op in verschillende vlekken. De ene geel, de andere paars van kleur. En meteen dachten we aan de corona in Noorwegen, Lapland of Finland. Zou dit verschijnsel tot in onze contreien afgedaald zijn? Wat jammer dan voor die reizigers die daarvoor een dagenlange reis naar het noorden maken…
Die lucht boven Maxburg was best indrukwekkend en mooi. Maar is het wel de aurora? Of eerder iets onheilspellends, of goed nieuws brengend zo dicht bij kerstmis…? Dit vergezicht werd overigens van op den Aard genomen, in Minderhout dus, waar boom nog huis het zicht belemmert. Vrij zicht dus, tot aan de wolken boven Maxburg, in winderige en vochtige omstandigheden. Of dat een rol speelt? Ik wist het niet. Nieuwsgierig als we zijn moest dit uitgezocht worden.
Het antwoord was een beetje ontnuchterend. Aan de nieuwjaarstafel, waar verschillende inzichten en disciplines bij elkaar komen, was deze foto gespreksonderwerp. Blijkt de oorzaak van dit lichtverschijnsel het teveel aan elektriciteit te zijn. Ik kan mijn oren niet geloven. Te veel? En waarom betalen we ons dan blauw? Dat is een ander verhaal. Contract
is contract. De poen wordt wellicht ergens anders opgestreken.
Maar wat doe je met iets dat teveel is. Je gooit het weg, of probeert er toch nog iets nuttigs mee te doen. Zo ook hier. Het blijkt dat de tomaten- en paprikaserres overvloedig in het licht baden als de elektriciteitsprijs negatief wordt. Negatief wil hier zeggen, je krijgt geld erboven op. Als je maar veel verbruikt. En de kleur van het licht kan verschillen per doel of soort planten. Wil je ze strekken of wil je ze doen groeien, zijn het tomaten of zijn het pa-
prika’s. De tuinbouw maakt dus dankbaar gebruik van deze overdaad.
En zo kleuren de wolken boven Maxburg soms geel en paars. Dat gebeurt vooral als het hard waait en als er lage wolken hangen. Het licht spuit dan in overvloed door de ruiten van de serres naar boven. We genoten desalniettemin van het lichtspektakel alsof het de aurora was. Maar eigenlijk is het dus niks meer of minder dan een vorm van lichtvervuiling. Wel volledig gratis voor de toeschouwer! (ma)
De lucht boven Maxburg licht op alsof het de aurora van de Noorpool is. Maar is het dat wel?
MEER - Op 1 Januari nog feestvieren en 2 januari al op pad. De mensen van Proper Hoogstraten laten er duidelijk geen gras over groeien. Zoals altijd gaan ze de wegen langs op zoek naar zwerfafval dat er niet thuishoort. Heb je je misschien al eens afgevraagd hoe
het komt dat de wegbermen telkens weer schoongemaakt worden? Het is dankzij het goede werk van mensen als John de Lange en Tabla Elmelu van Proper Hoogstraten. Bedankt voor jullie goede werk, en dat van alle mooimakers van het team! (ma)
MEER - Het is alweer voorbij, dat nieuwjaarszingen. Maar wat een mooie traditie is dat toch! De opkomst is altijd voer voor gesprek. Het waren er dit jaar minder, hoor je her en der. Maar dat is niet overal zo. In het dorp was er een goede opkomst van zangers. Bij ons waren het er 180, zegt Toon, de uitbater van frituur Toon Frut. Zouden de gratis frietjes daar voor iets tussen zitten? De kinderen konden het in elk geval appreciëren. Gelukkig nieuwjaar! (ma)
MEER - Toneelkring 't Heidebloempje pakt uit met een voorjaarvoorstelling. Daar zaten we eerlijk gezegd al naar uit te kijken maar nu het concreet wordt, stijgt bij de toneelminnende Merenaar en ook bij liefhebbers ver buiten Meer de toneelgoesting. Wat we zoal mogen verwachten? “Met volle goesting” dus, en wel eind februari, begin maart.
Elk jaar na de feestdagen in januari wordt er in hotel "Met Volle Goesting" een kuurweek georganiseerd. Telkens komt dan hetzelfde groepje dames afzakken naar het hotel om er uitgebreid te kuren, te diëten en te genieten van de attenties van dokter Kurt De Naeyer. Deze slaagt er immers ieder jaar weer in om alle dames tevreden naar huis te laten vertrekken.
Dit keer zit er echter een haar in de boter, of beter een verloofde in het hotel. De anders zo strikt geplande afspraakjes lopen in het honderd. Klusjesman Frans doet zijn uiterste best om alle problemen op te lossen, ook die van de dokter, en maakt zo de verwarring nog completer. De vader van de verloofde, een Italiaans driftkikkertje, komt bovendien langs om zijn dochter in de gaten te houden, maar hij wordt per ongeluk aanzien voor een controleur. En verder is er nog de liefde, een barones die er niet van wil weten en een portier
die wel trek krijgt in een klusjesman. En hoe zit dat met die afhaalchinees?...
Er zijn voorstellingen in zaal voor Kunst en Volk, Meerseweg 3 op 24 - 25 februari en op 3 -4 maart. Het doek gaat open om 19.30 uur, de deuren zijn open vanaf 18.30 uur. Kaarten
zijn vanaf 1 februari online te bestellen via de website theidebloempje.be. Wij hebben er veel goesting in, u ook? Dan wensen we u alvast veel kijkgenot! (ma)
De ploeg die er ”Met Volle Goesting” tegenaan zal gaan. Plezier gegarandeerd.
MEER - Op zondag 5 februari organiseert OKRA Meer in de refter van de Meerpaal aan de Terbeeksestraat haar jaarlijkse pannenkoeken- en vlaaiendag.
Van 12.30 tot 18 uur kan je langskomen voor een kop koffie met een lekkere pannenkoek of een stukje vlaai, of voor een leuke babbel bij een frisse pint. Altijd goed voor een gezellige namiddag! (ma)
MEER - In 2021 was het, om de gekende reden, niet mogelijk een feestje te organiseren om de 60ste verjaardag te vieren. Maar van uitstel komt geen afstel: op zaterdag 10 december 2022 was het eindelijk zo ver: in ’t
Withofke in Minderhout kon het feest van de 60-jarigen uit Meer (geboortejaar 1961) doorgaan.
Er was lang naar uitgekeken dus, niet verwonderlijk dat het een aangenaam weerzien met
veel leuke ontmoetingen en fijne gesprekken werd. Het bijhorende hapje en drankje werden evenzeer gesmaakt. De afspraak voor een nieuwe bijeenkomst in 2026 werd alvast gemaakt! (jaf)
Stan
Luc
Vic
MEER - Op zoek naar “De slimste Mus ter wereld”. En dus was er de jaarlijkse Mussenakker-quiz, zoals de traditie het wil, werd georganiseerd door de winnende ploeg van het jaar voordien, 'Catanclan'. Die kwamen op de proppen met een origineel ‘Slimste Mus’ concept dat wel in de smaak leek te vallen bij de quizzers.
De quiz werd nog steeds in teams gespeeld, maar verder waren alle rondes à la 'De Slimste Mens ter Wereld' opgemaakt. De laatste ronde werd gespeeld door de twee teams die tot dan toe op plaats 1 en 2 stonden, met name 'Mussenakker A' en 'Is er een dokter in de zaal?'.
Zij werden naar het podium gevraagd en speelden een spel dat verliep zoals het finalespel van de tv quiz. Ze gebruikten de punten die ze doorheen de quiz hadden opgespaard nu als hun seconden en proberen telkens zoveel mogelijk antwoorden te geven om de tijd van de andere op nul te krijgen. Dat was gelukkig ook iets waar de andere teams met veel spanning naar bleven kijken.
Het ging nek aan nek, maar uiteindelijk gaf Niels Aerts het antwoord 'Lydia Protut' en 't was gebeurd... Met zelf nog 6 seconden over ging 'Is er een dokter in de zaal?' met de overwinning lopen. Naast de gebruikelijke bierprijzen kregen ze dit keer ook de toepasselijke prijs van het gezelschapsspel 'De Slimste Mens'. Om de cirkel rond te maken werd hen uiteraard gevraagd of ze de quiz volgend jaar wilden organiseren, waarop ze ja antwoorden. Een slim antwoord, niet? (ma)
MEERLE - Zin om je buik eens goed rond te eten zonder zelf aan de kookpotten te staan? Dat kan op zaterdag 18 maart. Dan serveren de meisjes van de Aspi’s en hun leiding van Chiro Sint-Lutgard Meerle ‘Ribbekes à Volonté’ in het lokaal van de Chiro op de Ulicotenseweg 2.
De Ribbekes à Volonté kosten 20 euro, een kinderportie 10 euro . Liever Stoofvlees à Volonté ? Dat kan aan 17,50 euro, een kinderportie aan 10 euro. Een koude schotel kan ook aan 15 euro. Je kan aanschuiven tussen 17 en 18 uur, tussen 18 en 19 uur of tussen 19 en 20 uur.
Inschrijven kan heel eenvoudig via bijgaande QR code. Smakelijk! (jaf)
MEER - In ons januarinummer stonden de warme bakkers centraal. In het gedeelte over bakker Jan Voeten uit Meer werd de naam van zijn moeder foutief vermeld. Dat is immers Julia Laurijssen, niet ‘Julia Gelee’ dus. “Vroeger zeiden de mensen wel eens ‘Zjuliejke’ tegen Julia en vermoedelijk is het daar eventjes fout gelopen,” signaleert iemand van de familie, “maar het is jammer dat haar achternaam in dit artikel ontbreekt, en een rechtzetting heeft ze, zelfs vijftien jaar na haar heengaan, toch wel verdiend…” (red)
MEERLE - Met enige vertraging zijn de afbraakwerken van de oude melkerij bijna voltooid. Reden van de vertraging was dat er een hoogspanningscabine moest worden omgebouwd en asbest moest worden gesaneerd.
Omdat de sociale Bouwmaatschappij De Noorderkempen momenteel geen bouwplannen op deze gronden heeft, gaat het stadbestuur trachten deze mooi in te richten. Een deel met intensief gemaaid gras en een deel met extensief gemaaid gras. Vlinder-, vogel- en bijvriendelijke struiken met intensief gemaaide paden ertussen en enige zitbanken. ‘Kortom, een aangename open ruimte waar het fijn vertoeven is voor jong en oud. In geval van nood kan deze ruimte ook gebruikt worden als overdruk parking,’ aldus Piet Van Bavel, schepen Stadsprojecten, Stadsontwikkeling & Patrimonium.
Als ’t goed is, zeggen we het ook. Graag zelfs. (jaf)
MEERLE- Het was verwacht, maar toch was het nog vrij ruw ontwaken op maandag 19 december. Vanaf ’s morgens klonk het geluid van schreeuwende zagen, van de freesmachine en van de kraan die de zware takken en stammen in containers lieten vallen. Tegen de middag, het moment waarop de bijgaande foto werd genomen, was de klus bijna geklaard. Waar de bomen ca. 38 jaar over gedaan hadden, was in enkele uren uitgewist.
Zoals gezegd wisten de bewoners dat de heraanleg van de straat er zat aan te komen. Enerzijds om te ontharden, anderzijds om de voetpaden goed te leggen en aan te passen aan de huidige normen. Op 12 oktober kregen we tijdens een informatievergadering in het stadhuis de plannen te zien en zowat alle bewoners waren daar present. Uiteraard waren er discussies, niet iedereen zat op dezelfde lijn. Het voornaamste twistpunt was of de bomen aan één kant van de straat zouden gerooid worden, zoals op de plannen aangegeven, of dat alle bomen weg moesten.
Op de morgen van de werken waren er dan ook bewoners verwonderd dat meteen alle bomen gerooid werden. Ze bevestigden dat er discussie was geweest, maar dat ze naar huis gekeerd waren in de overtuiging dat het plan zou uitgevoerd worden zoals gepresenteerd: de bomen en het voetpad langs één kant van de straat weg. Van een wijziging waren ze niet verder ingelicht.
Hierover bevraagd zegt schepen Piet Van Bavel ons het volgende: “Over de Dr.Gommersstraat kan ik zeer kort zijn. Het enige thema op de participatievergadering was ‘aub alle bomen weg’ wegens veel overlast. Hier was een algemene eensgezindheid over. Ik heb dan de nodige info opgevraagd en de bestaande bomen bleken inderdaad geen laanbomen. Deze worden nu door aangepaste bomen vervangen. Dat hier nu commotie over is zou me ten zeerste verbazen. Ik denk - gezien de sfeer die avond in de raadzaal - eerder collectieve opluchting.” De schepen beaamt wel dat aan de bewoners geen gewijzigd plan meer werd voorgelegd, want “op een gegeven moment moet je de knoop doorhakken.”
Naar wat we de dag van de kapping hoorden lag de zaak toch iets genuanceerder. Er was zeker geen unanimiteit, maar de roep om het kap-
pen van alle bomen klonk alleen luider. Er waren ook bewoners die graag een bomenrij gered hadden gezien. “De bomen zijn hier samen met ons gegroeid. En plots is dat vertrouwde zicht weg. Dat doet vreemd aan. En ja, bomen laten hun bladeren vallen en wortelopdruk vormt problemen voor voetpad en opritten. Maar is alles weg dan de enige oplossing? Volgroeide bomen hebben ook voordelen. Zoals schaduw, co2 opvang, koelte in de hete zomer, een mooi uitzicht…?”
Ondertussen zijn de werken aan de gang. Het plan voorziet nieuwe bomen aan één kant van de straat (de westkant), daar verdwijnt het voetpad. Aan de overzijde geen bomen, wel een voetpad en een haag om het pad van de rijweg te scheiden. Verder éénvormige opritten van 3,5 m breed! Hopelijk krijgen de nieuwe bomen de ruimte en kunnen ze snel groeien. (jaf)
Op 38 jaar gegroeid, op een halve dag geveld.
MEERLE - Dezelfde avond als de bewoners van de Dr. Gommersstraat kregen de bewoners van de Mgr. Eestermansstraat informatie over de heraanleg van het gedeelte tussen Ulicotenseweg en Heimeulenstraat. Daar worden (gelukkig) geen bomen gerooid, maar zou ook het voetpad aan één kant verdwijnen om te ontharden, dat aan de overkant zou verbreed en heraangelegd worden volgens de thans geldende normen. Daardoor zou de rijweg versmald worden en omwille daarvan zou éénrichtingsverkeer worden ingevoerd.
Over dat laatste rezen er onder de bewoners
vragen en was er aansluitend nogal wat te doen op de sociale media. Wist de gemeente hoeveel verkeer er passeerde en in welke richting? En wat zou de invloed van de nieuwe verkeersregel op de andere straten in de wijk zijn (Heimeulenstraat en Thornstraat)?
Dat was niet geweten en daarom werden eerst nog tellingen uitgevoerd. De resultaten daarvan maken dat de voor januari geplande heraanleg on hold gezet wordt. Schepen Van Bavel: “Deze pauzering van de werken heb ik zelf doorgevoerd. Graag zou ik het ontwerp herbekijken en tweerichtingsverkeer behou-
den. Echter zonder te bricoleren. De Heimeulenstraat is een belangrijke fietsroute voor de schoolkinderen in Meerle, daar extra verkeer naar toe trekken leek mij bij nader inzien niet wenselijk. We gaan dit mobiliteitsgewijs herbekijken. Hier zal zeker nog communicatie over komen.”
Logisch dat ingrijpen op het verkeer in één deel van een straat gevolgen heeft voor het verkeer in de andere straten van de wijk. Goed dus dat eerst het grotere plaatje van de mobiliteit grondig bekeken wordt. (jaf)
MEERLE - Op 7 januari verwelkomde voorzitter Toos de leden en vrijwilligers van Samana in de parochiezaal. Voor de gelegenheid werden er 3 Koningen gekozen, Jeanne van Bavel, Jan Michielsen en Toke Koyen waren de uitverkorenen. Een speciaal moment was ook toen de 100-jarige Keeske van den Ouweland even naar voren kwam om te vertellen over zijn Lourdesreis met Samana. Daar raakt hij niet over uitverteld!
Na een lekkere maaltijd was het tijd voor de ontspanning, gebracht door Eric Echelpoel. De mensen hebben goed gelachen met zijn optreden. Tussendoor was er koffie en thee met soesjes en mini-eclairs.
Eugeen Vermeeren had aangegeven dat hij na ruim 53 jaar wilde stoppen als vrijwilliger. Jarenlang is hij het gezicht geweest van Ziekenzorg Meerle. Zo nam hij o.m. deel aan vakanties, bezocht zieken in het ziekenhuis en in het rusthuis, was de bezieler van de CM tombola. Als dank voor zijn inzet kreeg hij een oorkonde en een bos bloemen voor echtgenote Josepha. De volgende ochtend kregen ze nog een ontbijtje thuis bezorgd.
Patrick Jordens vertelde nog over een inleefreis naar Nepal, vervolgens werden pakjes uitgedeeld. Een geslaagd Driekoningenfeest dus, met dank aan alle medewerkers! (gvb/jaf)
MEERLE - Drukke dagen voor jeugdhuis Den Dorpel: op 25 februari vieren ze met een “nonkels en tantekes” avond hun 15-jarige bestaan, daarnaast halen ze de kaarten weer boven voor hun aandeel in het kaartcriterium (waarbij vier verenigingen instaan voor een kaartavond).
Deze maand viert het jeugdhuis Den Dorpel dat ze 3 jaar in hun nieuw jeugdhuis zitten, evenals hun 15-jarige bestaan. Dat willen ze op 25 februari graag vieren met alle leden, maar ook met de andere generaties. Aan de leden wordt dus gevraagd die avond zeker hun mammie, pappie, nonkels en tantekes mee te brengen voor een leuke avond. Met DJ - muziek en videoclips van de 90's en de VB's (volwassen begeleiders) als tappers kan de avond niet meer stuk. Je leukste 90's outfit is uiteraard ook nog een meerwaarde. Iedereen welkom vanaf 20 uur.
Het jeugdhuis richt ook in 2023 weer zijn jaarlijkse kaartavonden in. Omdat ook andere Meerlese verenigingen kaartavonden organiseren, hebben ze samen een ‘criterium’ opgezet. ‘De kaartavonden van vier Meerlese verenigingen’.
Door deel te nemen aan kaartavonden van meerdere verenigingen maken kaarters kans op extra hoofdprijzen. Als je bij alle 4 de verenigingen 2 keer of meer komt kaarten, maak je kans op een extra prijs. De hoogste scores over 8 wedstrijden (de 2 beste bij elke vereniging) tellen. 1e prijs: € 100, 2e prijs € 60, 3e prijs € 40.
Wanneer? De kaartavonden van de Sint-Jorisgilde en KFC Meerle zijn helaas al gepasseerd, wie daar mee gekaart heeft komt alsnog in aanmerking voor de extra prjjzen. Verder wordt er gekaart in de Parochiezaal op vrijdag 3, 10 en 17 februari. En in JH Den Dorpel op vrijdag 3, 10 en 17 maart.
Overal is het inschrijven vanaf 19 uur, om 18.30 uur worden de kaarten een eerste keer gedeeld. (jaf)
Na meer dan 53 jaar vrijwilliger te zijn geweest kreeg Eugeen Vermeeren een oorkonde van Samana. Zijn echtgenote Josepha kreeg de bloemen.
MEERLE - Op zondag 15 januari, een droge dag in een kletsnatte periode, kwamen de bewoners van de Dalwijk op uitnodiging van het wijkbestuur samen om te klinken op het nieuwe jaar 2023. Naast gezellig samen zijn bracht het wijkbestuur Nieuwjaarswensen over en heette het ook de nieuwkomers in de wijk hartelijk welkom. Verder spraken ze de hoop uit dat weldra hun gekoesterd speelpleintje terug in orde zou gebracht worden door het stadsbestuur. Bijna een jaar geleden werd er een klimtuig weggehaald, met ongeduld wordt uitgekeken naar een nieuw - en daar hoeft geen studiebureau aan te pas komen, wat hen betreft.
In maart 2022 werd immers het grote klimtuig met glijbaan weggenomen omdat het defect was. Maar tot de dag van vandaag is het vergeefs wachten op een nieuw en dat is een groot gemis voor kinderen uit de wijk en voor de vele kleinkinderen die bij hun grooutouders in de wijk langs komen. Het is een geliefde bestemming om samen eens buiten te komen. Maar tot hiertoe helaas zonder glijbaan.
Wij vroegen aan het stadsbestuur naar de stand van zaken en kregen van schepen Van Bavel volgend uitgebreid antwoord. “Wij werken aan een Masterplan als instrument om de komende jaren op een structurele manier de kwaliteit en kwantiteit van de publieke ruimte in onze gemeente te verbeteren. Doel is een inspirerende spel-, sport- en ontmoetingsruimte voor jong en oud, een toegankelijke publieke ruimte die wordt gedragen door een groene basisstructuur, waarbij het landschappelijk waardevolle van de ruimte essentieel is. De publieke ruimte stimuleert de autonome mobiliteit en het uitwerken van een netwerk.
Daarmee willen we de gebruikers van het terrein mee ‘eigenaar’ maken en de inrichting afstemmen op de behoeftes. Een belangrijke onderdeel in dit traject zal een participatiemoment zijn: bevraging van de functies van de ruimte. Waarvoor gebruik je de ruimte nu, waarvoor wens je ze te gebruiken? Ze even-
tueel aanvullen met observaties. Daaruit moet de opmaak van een moodboard volgen op basis van referentiebeelden (beelden passen binnen het kader van het masterplan, zowel voor kinderen als voor volwassenen).
Specifiek voor deze locatie is er budget voorzien en wordt er een projectfiche opgemaakt. Helaas vraagt dit wel wat tijd. Maar ik ben er van overtuigd dat er een mooi eindresultaat zal zijn”.
Het is niet het beoogde eindresultaat dat het wijkbestuur in vraag stelt, wel waarom het allemaal zolang moet duren. Het pleintje, dat al vele jaren zijn dienst bewezen heeft, behoeft naar hun mening geen studiebureau voor de inrichting. “Zo groot is speeltuintje niet dat er een ontwerpbureau aan te pas moet komen. Het vertraagt gewoon het in orde brengen van de speeltuigen en een en ander wat fastoeneren. Het is heel lang wachten daarop. Onze wens: hopelijk dit jaar voor de zomer nog de nieuwe speeltuin,” aldus het wijkbestuur. (jaf)
MEERSEL-DREEF - Er zijn zo van die oude postkaarten die iedereen kent. Meestal staan er mensen op waarvan je niet weet wie het zijn. Eén van deze ruim bekende postkaarten situeert zich aan de grens tussen België en Nederland. Deze zwart-witte postkaart verscheen in kleur op facebook van ‘Vlaanderen in kleur’.
Stan Teuns schreef een interessante commentaar bij deze foto, die volgens hem te dateren is in 1931. Op de postkaart staat zijn moeder Mina (Wilhelmina) Nuijten, gehuwd met Frans Teuns, met haar oudste zoon, Jozef Teuns, de latere minderbroeder-kapucijn Pascal (° 30-5-1928 en + 10.06.2013). De foto werd genomen toen het bevriend echtpaar Steurs uit Antwerpen op bezoek was. De heer Steurs zelf staat op de foto met zijn auto, een bezienswaardigheid in die tijd. Wie de andere personen zijn is niet bekend, maar hoe dan ook is er toch al een beetje meer duidelijkheid voor ons aller nageslacht.
MEERSEL-DREEF - In ons maandblad van september 2022 werd de onleesbaarheid van het verkeersbord ‘voorrang van rechts’ in de Jan de Wysestraat aangehaald. Iemand moet
Een ‘In Memoriam’ van Pater Pascal Teuns kan je nalezen in de Hoogstraatse maand van
dit artikel ter harte genomen hebben, want er is ondertussen een nieuw bord aangebracht dat aan duidelijkheid niks te wensen overlaat. Of u effectief voorrang zal krijgen, is nog
juli-augustus 2013 (zomaar te raadplegen in ons digitale archief). (JJ)
maar de vraag, want zowel op de Dreef als op Heieinde-Meersel laat dit veel te wensen over. (JJ)
MEERSEL-DREEF - Carnaval hangt overal samen met een hele rist aan oude tradities. In Maerkrattenland (Galder, Strijbeek en Meersel-Dreef) is er maar één traditie: lak aan tradities. In dit mooie carnavalsland doen ze het graag wat anders.
De carnavalsoptocht van MeerselDreef naar Galder heeft dit jaar plaats op zondagnamiddag 19 februari. (JJ)
MEERSEL-DREEF - De Meersel-Dreefse afdeling van Ferm organiseert een infonamiddag over zorgplanning op 9 maart om 14 uur in de Boerenschuur, Dreef 38. De informatie zal worden verstrekt door een notarieel deskundige.
Iedereen is welkom, maar je moet wel inschrijven voor 1 maart via email aan geerts-jos@hotmail.com of e.hendrickx1@telenet.be. De kostprijs bedraagt 5 euro. Meer info ook op de site: www.notaris.be/zoeken/zorgvolmacht. (JJ)
WORTEL - Met meer dan 700 betalende deelnemers mogen de organisatoren van De Zwaantjes spreken van een succesvolle veldtoertocht. Het weer zat perfect op zaterdag 8 januari: amper wind, geen regen en zelfs regelmatig een streep zon.
De routes langs Merksplas- en Wortel-Kolonie, via Hal en de Gouverneursbossen naar de privédomeinen van Desta in Minderhout en langs Haldijk (Castelré) lagen er haast perfect bij. Voor fietsers uit de buurt redelijk bekend terrein, maar ook deelnemers ‘van verder weg’ waren duidelijk aangenaam verrast door de mooie route. Tussen pot en pint konden de sportievelingen lang napraten over deze veldtoertocht. (SK)
WORTEL - Op 7 november 2022 verwelkomden Hendrik Strobbe en Iete Luyckx hun dochtertje Renée. De kersverse ouders wonen samen met hun kleine meid in Wortel. Monic Kenis, woonachtig in Meer, werd een gelukkige oma en ook fiere overgrootmoeder Emelie Dams, die juist over de grens in Wernhout woont, is heel erg blij met het viergeslacht. (SK)
WORTEL - Op dit moment loopt er een bouwaanvraag voor het bouwen van vier appartementen op het perceel waar de woning Worteldorp 17 twee jaar geleden gesloopt werd. Bij bouwplannen kan er over smaak altijd wel getwist worden, maar dat geldt niet over de voorwaarde dat het volume van het vroegere gebouw gerespecteerd moet worden. Het dorpskarakter en het uitzicht van de Boomkens verdienen dat hier nauwlettend op wordt toegekeken!
Ooit stond er rechts naast het gemeentehuis (nu de bib) een eenvoudig gebouw. Links was er een café met boven de deur de vermelding ‘Sie van Ivo’ en rechts een kruidenierwinkel gekend als ‘bij Jeanne van Ivo’s’. Pakweg 50 jaar geleden werd de eigendom verkocht en verbouwd tot woning. De muren werden bepleisterd en het gebouw verloor zijn mooi gedetailleerd zichtbaar metselwerk en meteen ook zijn charme. Banaler kon haast niet.
Maar toen eind jaren ’90 het Agentschap Onroerend Erfgoed (Monumenten en Landschappen) hun ‘Inventaris van het waardevol bouwkundig erfgoed’ samen stelde, werd het gebouw daarin toch opgenomen. Niet omdat het op zich zo mooi was, maar uitdrukkelijk omwille van het volume en het sobere karakter van de dorpse architectuur.
In de bouwaanvraag die nu ingediend werd, wordt met het bovenstaande geen rekening gehouden. In de begeleidende nota is sprake van een ‘onbebouwd perceel’. De architect merkt terecht op dat het ‘erfgoedobject’ (de woning dus) geen erfgoedwaarde meer heeft. Nogal wiedes als het betrokken ‘object’ afgebroken is.
Het gebouw in zijn bestaande toestand mocht
met vier appartementen. De ambitie van Wortel om het meest 'dorpse' dorp te blijven staat op het spel.
trouwens gesloopt worden. Daarvoor leverde het stadsbestuur op 17 januari 2019 een sloopvergunning af. Aan de sloopvergunning waren echter voorwaarden verbonden. Het nieuw op te richten gebouw, zo lezen we ‘dient van identieke schaal en functie te zijn als het afgebroken gebouw’. In de Vlaamse Codex Ruimtelijke Ordening wordt het begrip schaal gelijk gesteld met het ruimtegebruik en de bouwdichtheid. Het zelfde volume dus. Met het ontwerp op zich is wellicht niets mis, al zal de ene het al mooier vinden dan de andere. Smaken verschillen nu eenmaal. Het loopt echter grondig fout als men het volume of de schaal bekijkt. De hoogte van de kroon-
lijst en de nok van het dak zijn wel even hoog als in het oorspronkelijke gebouw, maar daar blijft het bij.
Voor het bestaande gebouw werd een sloopvergunning afgeleverd.
De nieuwbouw moet echt geen kopie zijn van wat er ooit stond. Het mag best een eigentijds ontwerp zijn, zolang men het oorspronkelijk te behouden volume maar respecteert.
Het gesloopte gebouw was 14,30 meter breed, de nieuwbouw wordt 17,40 meter breed omdat men tot op de perceelsgrens bouwt. Op het gelijkvloers zijn twee appartementen, met rechts een overdekte inrit naar zes parkings en een berging achteraan. Door de extra oppervlakte boven de inrit zijn de twee wooneenheden op de bovenverdieping iets groter.
Niet alleen het volume van het gebouw is te groot. Waar in de beschrijving van het te behouden volume sprake is van twee dakkapellen, zijn dat in het ontwerp eerder breed opgetrokken gevelelementen.
Kortom, de sfeer en het karakter van wat men moest behouden is totaal anders dan in het voorliggende ontwerp. Het gaat om een vormgeving die te dominant is en die niet past bij de eenvoud van de architectuur bij De Boomkens.
Nieuwbouw hoeft echt geen reconstructie te zijn van de Vivo winkel van Jeanne van Ivo’s, integendeel. Het mag best een uitgesproken eigentijds ontwerp zijn, zo lang men het volume en de typologie maar respecteert.
Wortel heeft de ambitie om het groenste en het meest ‘dorpse’ dorp van de ruime regio te zijn en te blijven. Indien men dat dorpskarakter wil behouden is elke straat belangrijk. Maar op de eerste plaats zal men zeer voorzichtig en behoedzaam moeten omspringen met de plaatsen die Wortel maken tot wat Wortel is. Dan denken we al zeker aan de omgeving van de kerk en De Boomkens.
Eerst sloopt men een te behouden kleiner volume en spreek vervolgens van een onbebouwd perceel waarop men vier appartementen wil bouwen.
Als het bestuur het advies van de erfgoedcel en het afwegingskader van Stramien volgt, ligt de beslissing van het college voor de hand. (fh)
WORTEL - Sinds 23 december staat café De Nieuwe Buiten opnieuw te huur. Tot er een nieuwe uitbater opdaagt is het café nog enkel geopend voor de vaste groep biljarters en de wielertoeristen, die er verzamelden na hun fietstochten.
De uitbaatster Sylvia Stol stond er, soms geholpen door haar vriend Steve De Ruyter, welgeteld 3 jaar en 1 maand achter de tap. Daarna zocht ze andere oorden op. Ze had nochtans heel wat ervaring in de horeca, eerder werkte ze in een café-restaurant, een frituur en een café in Antwerpen. En voor ze naar Wortel verhuisde, werkte ze in het ambiancerestaurant Mask’ara in Borsbeek, gekend om zijn travestietenshows met diner. Hoe dan ook wacht het café nu dus op een uitbater die er hopelijk echt voor gaat. Nochtans heeft De Nieuwe Buiten verschillende troeven. Naast het bruine café is er ook een zaaltje, waar Wortel beslist nood aan heeft. (fh)
MINDERHOUT - Ferm zette het nieuwe jaar in met een gezellige wandeling. Vanuit Minderhout ging het via Castelré naar Hoogstraten, waar een tussenstop bij de kerststal uiteraard niet mocht ontbreken. In het woonzorgcentrum Stede Akkers bezochten ze de expositie van plaatselijke fotografen. Even wat bijbabbelen over wat ze gezien hadden met een kopje koffie, thee of iets fris. Hierna
werd de tocht richting Minderhout weer ingezet… Het was een door een bestuurslid mooi uitgestippelde wandeling, die de deelnemers toch nog naar minder bekende plekjes voerde. Voor herhaling vatbaar, zo werd gezegd.
Een blik in de toekomst leert dat Ferm Minderhout nog wat op het programma heeft staan: een 55+ bijeenkomst op 8 maart ’23
ism Avansa, met een lezing over “Hoe behoud ik mijn levenskwaliteit?”; een bowling avond, een crea powertex workshop en een bezoekje aan Taeymans.
Meer info over de activiteiten van Ferm? Stuur een mail naar: Fermminderhout@gmail.com of neem eens een kijkje op de Facebook pagina. (jaf)
MINDERHOUT -
startte het nieuwe jaar op 21 januari met een ledenborrel. Jong en oud kwamen gezellig bij elkaar in de parochiezaal van Minderhout voor een goed gevulde avond als start voor een zo mogelijk nog beter jaar… Dat houdt
onder meer in dat enkele leden van de vereniging de jaarlijkse carnavalstoet van ‘De Scharrel’ op 17 februari mee begeleiden.
Twee dagen later luistert de fanfaren de misviering op.
Op vrijdag 10 en zaterdag 11 maart brengen
ze het Lenteconcert met als thema ‘Met smaak!'. Een smaakvol en gevarieerd programma in zaal ’t Markenhof. De avonden starten om 19u30 stipt en eindigen wanneer de laatste de deur sluit. De inkom is vrij. Eenieder van harte welkom! (cn/red)
Het
Hoogstraten behaalde zijn eerste uitoverwinning van het seizoen op het veld van Mandel. Het deed dat met overtuiging, het werd 0 - 3. Tegen Luik werd voor de eerste keer een punt gehaald tegen een echte profploeg. Een paar overwinningen zouden toelaten om flink te stijgen in de rangschikking. Het siert hoe dan ook deze groep dat ze op geen enkel moment de kopjes hebben laten hangen. Met het herstelde vertrouwen lijkt een verlengd verblijf in 1ste amateur nog altijd mogelijk.
DHM: De eerste overwinning op verplaatsing is binnen. Was de overwinning in Mandel verdiend?
Frank Belmans: Deze overwinning in de zespuntenwedstrijd onderaan het klassement was dubbel en dik verdiend. We scoorden het openingsdoelpunt op het ideale moment en waren daarna de ganse wedstrijd heer en meester. Onze doelman heeft bij wijze van spreken geen bal moeten pakken. Door deze mooie en verdiende zege kon iedereen ook met een beter gevoel de winterbreak instappen.
DHM: In Gent kwam HVV opnieuw op voorsprong, maar er volgde toch een nederlaag. Waar ging het mis?
Met dezelfde instelling en grinta kwamen we ook in Gent op een ideaal moment op voorsprong. We vergaten daar echter om deze voorsprong verder uit te diepen in de eerste helft. We kwamen jammer genoeg slecht uit de kleedkamer waardoor we al heel snel de gelijkmaker moesten toestaan. Daarna speelden beide teams met open vizier vol voor de zege en was het snel duidelijk dat wie ging scoren ook ging winnen. En dan kwam jammer genoeg het verhaal van de heenronde weer boven, wij misten onze mogelijkheden en achteraan werd een foutje genadeloos afgestraft net voor tijd. 75 minuten waren we minstens de evenknie van AA Gent maar we moesten met lege handen de bus op en dat was ‘ne pijnlijke’.
DHM: Tegen competitieleider RFC Luik, werd een punt behaald. Nochtans kwam Luik op voorsprong. Al onze supporters die de wedstrijd tegen Luik gezien hebben, zullen beamen dat de spelers een prachtprestatie tegen de leider geleverd hebben. We hebben eindelijk voor de eerste keer dit seizoen eens ‘iets’ gehaald
tegen een profploeg en als we na 90 minuten de balans opmaken was dit puntje zeker niet onverdiend. Er zat zelfs meer in, want de beste kansen waren voor HVV maar doelpunten scoren is en blijft een belangrijke opgave in het spelletje. We schieten in het klassement wel niets op met dat puntje maar voor de moraal was dit toch een opsteker voor de spelersgroep.
DHM: HVV geeft de rode lantaarn door en speelt zeker niet als een geslagen ploeg. Hoe zie je het verdere verloop van deze zware competitie en een eventueel verlengd verblijf in de hoogste klasse amateur?
We moeten een kat een kat noemen en realistisch blijven. Van de laatste 5 competitiewedstrijden hebben we er slechts ééntje (onverdiend) verloren. De eerstkomende 2 matchen, op Antwerp U23 en thuis tegen Rupel Boom, zullen veelzeggend zijn voor de rest van de competitie. We gaan op korte termijn driepunters moeten pakken, anders wordt het een heel moeilijk verhaal om in deze zware reeks te blijven.
Ik hoop dan ook dat we met zijn allen keihard blijven verder werken en we de komende wedstrijden nog wat punten aan ons totaal kunnen toevoegen. Daarom via deze weg nog een warme oproep aan iedereen die HVV een warm hart toedraagt, kom onze jongens steunen, zorg in thuiswedstrijden dat we met 12 spelen, de spelers verdienen uw ‘support’!
Mandel United - Hoogstraten VV 0 - 3 Hoogstraten was duidelijk veel sterker dan de voorlaatste in de rangschikking. Toch moest het tot de 18de speeldag wachten om een eerste uitzege te behalen. Het deed dit met overtuiging: 3 - 0. Fallou Fall opende de score. Meeuwis en Lauwers schoten de 2de en de 3de binnen. De score had best nog hoger kunnen zijn.
Jong AA Gent - Hoogstraten 3 - 1 Topschutter Meeuwis, een centrale verdediger, mocht in de eerste helft zijn zoveelste strafschop nemen van het seizoen. Hij mist nooit, zodat HVV kon gaan rusten met een voorsprong. Kort na de rust maakte Igbokwe gelijk. In de 82ste minuut kwam Gent op voorsprong via dezelfde speler en een minuut later bracht Fofana zekerheid voor de thuisploeg.
Hoogstraten VV - RFC Luik 1 - 1 In de beginfase was de bal voor Luik. De talrijke voorzetten en corners werden telkens goed weggewerkt. De thuisploeg prikte geregeld en kwam aan de mooiste kansen. Budts schoot tweemaal net naast en een prachtig schot van Tilburgs werd uit de haak gehaald door doelman Debaty. Rust: 0 - 0. In de tweede helft kwam Bevers alleen voor de doelman maar kon niet scoren. Dat deed Luik wel. HVV rechtte de rug en zette de verdediging van Luik onder druk. Na een prima voorzet van Jouk Vermeeren kopte Fallou Fall heel mooi de gelijkmaker binnen. In de laatste 10 minuten kon het alle kanten op maar het bleef 1 - 1. (rob)
Zaterdag 4 februari 19.30
Thes Sport - Hoogstraten VV
Zaterdag 11 februari 20.00
Hoogstraten VV - Olympic Charleroi
Zaterdag 18 februari 20.00
KVK Ninove - Hoogstraten VV
Zaterdag 25 februari 19.30
Patro Eisden MM - Hoogstraten
Zaterdag 04 maart 20.00
Hoogstraten VV - FC Mandell United
De sportieve cel van HVV is al druk in de weer om een valabele kern samen te stellen voor het seizoen 2023-'24. Ruben Verheyen, de rechtsachter van de ploeg, heeft zijn contract bij de Rooikens met 2 seizoenen verlengd. Ruben is aan zijn derde seizoen bij rood-wit bezig, speelde tot op heden 57 officiële wedstrijden en scoorde in die drie seizoenen 2 competitiedoelpunten.
Ook Senne Van Dooren, centrale verdediger, zal de volgende 2 seizoenen de rood-witte kleuren verdedigen. Senne (°16.05.1997) is momenteel aan zijn vijfde seizoen bij de Rooikens bezig en verzamelde tot op heden 117 selecties. In zijn tweede seizoen bij de club werd hij uitgeroepen tot de meest verdienstelijke speler en ontving hij hiervoor de Gouden Schoen.
Niels Van de Vel
Niels Van de Vel is een 28-jarige polyvalente middenvelder, hij komt over van de buren. Hij speelde 3 seizoenen voor Zwarte Leeuw, voordien bij Vosselaar en Turnhout. Niels, die in Westmalle woont, tekende een overeenkomst voor 1 seizoen. (rob)
In de rangschikking is er weinig afscheiding tussen plaats 3 en plaats 12. Om in de top 5 te blijven moet Minderhout vol aan de bak.
DHM: Na 4 wedstrijden zonder overwinning werd het tegen Achterbroek opnieuw een driepunter. Dat zal deugd hebben gedaan.
Christian Vissers: Na 2 punten in 4 wedstrijden moesten we dringend oogsten en gelukkig deden we dat ook. Na de midweekse nederlaag in Gooreind, moesten we ons herpakken om mee te blijven draaien in de brede middenmoot. We wonnen verdiend van Achterbroek, weliswaar na een eigen doelpunt van de bezoekers. Het betere van het spel alsook de kansen waren voor ons, dus op deze zege
viel niets af te dingen.
DHM: De wedstrijd in Gooreind werd verloren.
Tegen Gooreind speelden we een inhaalmatch die we verdiend verloren. Nochtans leek er weinig aan de hand want de organisatie stond er nog wel. Een individuele fout zorgde voor de 1 - 0 en toen we daarna zelf de paal troffen en nog een penalty en een 2de tegengoal slikten, was het boeken dicht. Gooreind was dus wel de verdiende winnaar, onze kwaliteit aan de bal was ondermaats en daarnaast brachten we ook in balverlies te weinig.
DHM: Hoe kijk je naar de eerstvolgende derby tegen Meer? Tijd voor revanche? Een derby is altijd speciaal, zeker voor de spelers zelf. Na de thuisnederlaag zullen we proberen nu de punten mee te nemen, al zal Meer uiteraard ook de punten zelf willen thuishouden. Hopelijk zijn mijn spelers nu iets minder
Met een bijna volledige kern wil Kris Van De Sande met zijn ploeg blijven meedoen voor de prijzen. Hij trekt straks de deur achter zich dicht bij KFC Meer. Hij wil met mooie resultaten afscheid nemen.
DHM: Tegen Berchem was de tegenstrever te sterk. Tegen de leidersploeg werd met 4 - 0 verloren.
Kris Van De Sande: De tegenstander was inderdaad te sterk, maar 4 - 0 was wel een veel te hoge uitslag. Tegen de koploper in onze reeks gebeurde eigenlijk precies hetzelfde als eerder in een wedstrijd tegen Essen. We kregen een
onterechte penalty in de 1ste helft (bal tegen het lichaam van een speler en dan tegen de hand). Penalty en geel voor Seb Lauryssen. 5 minuten later maakte Seb een fout op een speler die een aanval aan het opzetten was met wel een terechte gele kaart tot gevolg. Dus moesten we noodgedwongen verder met 10 en dat al voor de rust. Dat is geen cadeautje en zeker niet tegen Berchem. We zijn blijven voetballen en zelfs met 10 lukte het aardig. Maar natuurlijk vallen er dan gaten waardoor de uitslag uiteindelijk 4 - 0 werd. Berchem is overigens een aangename ploeg om tegen te spelen, zij mogen van mij gerust kampioen spelen.
DHM: Januari werd goed ingezet met een
benomen door zenuwen en valt het deze keer goed uit voor ons. Laat ons hopen op een sportieve wedstrijd, waarin beide teams vol overgave het beste van zichzelf geven.
DHM: Daarna volgen 2 thuiswedstrijden. Wat verwacht je ervan?
In deze reeks mag je geen verwachtingen hebben blijkbaar. Er lijkt maar geen echte afscheiding te komen tussen plaats 3 tot en met 12. Binnenkort zal er ergens wel een gaatje komen en dan is het boodschap om mee te zijn, wat alleen maar kan door punten te halen. Die 2 thuiswedstrijden waarover je spreekt zijn tegen Pirates Deurne en Hoboken, 2 laagvliegers als je het klassement mag geloven. In de heenronde wonnen we slechts nipt op beide verplaatsingen en telkens pas in de slotfase. Gemakkelijk zal het niet worden, maar we mogen alleen tevreden zijn met 6 punten in die 2 wedstrijden.
overwinning tegen Deurne. Klopt, er komen belangrijke weken aan waar we punten moeten pakken om nog mee te doen voor de prijzen, waar ik nog altijd in geloof. We namen de wedstrijd direct in handen wat resulteerde in een mooi doelpunt van Adams. Deurne kwam dan op gelijke hoogte door een zeer licht toegekende vrije trap. Geen verwijt naar de scheidsrechter want hij stond er helemaal alleen voor. De tweede helft hebben we helemaal gedomineerd. Met de wind in de rug hebben we 45 minuten op de tegenstander hun helft gespeeld. Wat me ook deugd doet is dat we terug kansen afdwongen en dat één van onze spitsen terug de weg naar het doel heeft gevonden.
Het spreekt voor zich dat Minderhout revanche zal willen nemen. Ik kan me perfect inbeelden wat mijn collega in de andere kleedkamer zal zeggen. Nu zou ik toch graag op het einde van het seizoen, wanneer ik de deur achter me dichttrek, kunnen zeggen dat
we tweemaal de derby hebben gewonnen. Dit zijn natuurlijk de matchen waarvoor we het doen. Veel volk, veel ambiance en hopelijk veel enthousiasme op het veld. We zitten met een volledig fitte kern (excl. Wouter Laurijsen) dus als trainer is dat een luxe. Deze kern gaan we trouwens nodig hebben om punten te pakken de komende weken. Als we in de top
3 kunnen blijven, denk ik dat we het heel goed gedaan hebben. Een uitdaging voor mijn opvolger voor volgend seizoen, zou ik zeggen. Ik voel ook dat de spelers er nog altijd in geloven en dat ze alles zullen geven om ons doel te bereiken.
KVNA Wortel won begin dit jaar de inhaalwedstrijd bij Linda Olen en zet zijn uitstekende prestaties verder. Spijtig dat de reeks van 8 ongeslagen duels geen vervolg mocht kennen. Door de weersomstandigheden werden 2 wedstrijden op rij uitgesteld.
DHM: Januari werd goed ingezet met een overwinning bij de inhaalwedstrijd op het terrein van Linda Olen.
Piet Van Bavel: Onze wedstrijdaanpak is in grote lijnen reeds enkele seizoenen gebaseerd op dezelfde principes, richtlijnen en afspraken. Het omzetten in een positief resultaat is vaak afhankelijk van details maar zeker ook aan het intensief uitvoeren hiervan. Dit laatste wordt nu al heel het seizoen door heel onze ploeg gedisciplineerd uitgevoerd, en dat is natuurlijk het begin van alles. Daarnaast zijn wij uiteraard ook afhankelijk van het individuele vormpeil van de spelers. Dit heb je maar gedeeltelijk in de hand, het was dus na de winterstop even afwachten. Maar iedereen was op
de 1ste wedstrijd wel degelijk op de afspraak. Een plezante vaststelling en een goed resultaat tegen een moeilijke tegenstander.
DHM: De wedstrijd tegen Kasterlee werd verplaatst en de match in Flandria werd uitgesteld. Was het terrein onbespeelbaar? Thuis tegen Kasterlee was het terrein effectief niet deftig bespeelbaar. Het veld op Flandria leek er wel redelijk bij te liggen maar na een intensieve inspectie oordeelde de scheidsrechter toch anders. Verbazingwekkend was wel dat er ook een kunstgrasveld met gekeurde verlichting ter beschikking was maar dat onze tegenstander ons hierop niet wilde bekampen.
DHM: Wat zijn de verwachtingen voor de volgende wedstrijden?
We bekijken het week per week, te beginnen zondag thuis tegen Bouwel. Zij verkeren in acuut degradatiegevaar maar iedereen die iets met voetbal te maken heeft weet dat dit zeer gevaarlijke wedstrijden zijn. Mentaal en fysiek zijn we volgens mij klaar om de terugronde in te zetten. We willen zo lang mogelijk onze positieve flow vasthouden, maar we
gaan uiteraard ook nog wedstrijden verliezen. De kunst zal zijn om ook dan het hoofd recht te houden en het vertrouwen niet te laten aantasten. Ook niet wanneer we even in een mindere periode zouden terecht komen, want vroeg of laat gebeurt dat haast onvermijdelijk. Aan ons om dan onze wilskracht te tonen.
10 en 11 december
FC Ekeren - K Minderhout VV 4 - 4
K Achterbroek VV - KFC Meer 3 - 0
KFC Poppel - KVNA Wortel 1 - 3
K Meerle FC - SV Noorse 3 - 6 17 en 18 december
K Berchem Sport - KFC Meer 4 - 0
8 januari
KFC Linda Olen - KVNA Wortel 1 - 3
K Meerle FC - Excelsior Mariaburg 1 - 0 11 januari
K Gooreind VV - K Minderhout VV 2 - 0 14 en 15 januari
K Minderhout VV - K Achterbr. VV 1 - 0
KFC Meer - TOR Deurne Pirates B 3 - 1
KFC Flandria Ravels - KVNA Wortel Uitg. K Meerle FC - Horendonk FC 2 - 3
Zaterdag 4 februari 19.30
KFC Meer - Zandvliet Sport
Zondag 5 februari 15.00
K Minderhout VV - RVC Hoboken
Na een mooie overwinning tegen Mariaburg volgde een onverdiende nederlaag tegen Horendonk, dat kon scoren in de laatste minuten van de wedstrijd. Maar door de goede instelling van zijn ploeg kijkt trainer Lavrijsen de volgende wedstrijden positief tegemoet.
DHM: Horendonk, de 2de in de rangschikking, was net iets te sterk of zat er toch meer in voor jullie?
Wil Lavrijsen: Absoluut. We lagen zeker niet onder! De tegendoelpunten vielen erg ongelukkig en waren eigenlijk te voorkomen. Wel moesten we starten zonder 3 basisspelers en dat is voelbaar. Ondanks dat gemis hebben we het goed ingevuld en er een gelijkwaardige wedstrijd van gemaakt. We slikten nog een doelpunt in de voorlaatste minuut en dat was erg
zuur. Een gelijkspel had zeker verdiend geweest.
DHM: De eerste wedstrijd van het nieuwe jaar werd gewonnen tegen Mariaburg. Het werd een droge 1 - 0.
Na een moeizaam begin van 10 minuten pakten we de draad goed op en werden we de betere ploeg wat resulteerde in een doelpunt. In de 2e helft hebben we dan nog voldoende kansen gecreëerd om de wedstrijd in het slot te gooien, maar het bleef bij een toch mooie 1 - 0 overwinning.
DHM: Wat verwacht je van de volgende wedstrijden?
We zitten met 2 geblesseerden en een geschorste speler. Omdat de kern erg smal is zal het er dus niet gemakkelijker op worden. Maar ik ben positief gestemd over de instelling van deze groep. Het maakt dus dat ik met vertrouwen naar de volgende wedstrijden durf uit te kijken... (rob)
KVNA Wortel - KFC Linda Olen
Excelsior Mariaburg - K Meerle FC
Zaterdag 12 februari 15.00
Zandvliet Sport A - Minderhout VV FC Turk Sport - KFC Meer
KVC Oostmalle Sport - KVNA Wortel
K Meerle FC - KSK Ekeren
Zondag 19 februari 15.00
KVNA Wortel - KSK Kasterlee
Putte SK - K Meerle FC
Zaterdag 25 februari 19.30
KFC Meer - FC Merksem
Zondag 26 februari 15.00
K Minderhout VV - K Berchem Sport B
KFC Ezaart Sport - KVNA Wortel
KSV Wildert - K Meerle FC
Zaterdag 4 maart 19.00
FC Merksem - K Minderhout VV
Zondag 5 maart 15.00
KFC Berendrecht - KFC Meer
KVNA Wortel - SKS Herentals
K Meerle FC - KSOC Maria-ter-Heide
De Meerlese trainer tevreden over de instelling van zijn groep
halen en naar de volgende ronde door te stoten. In de volgende ronde treffen we een ploeg van hetzelfde niveau maar uit de andere reeks.
DHM: Tegen Geel in de beker van Antwerpen werd met 3 - 0 verloren. Waren zij te
Dries Helsen: Geel staat momenteel 5de in 1ste Nationale (de 2de hoogste reeks), een 3 - 0 nederlaag was dus eigenlijk een logisch resultaat voor een ploeg uit 2de provinciale. In de tweede set hebben we toch mooi stand gehouden tot 25 - 23. De andere sets was het verschil, logischerwijs, wel groter en waren we eigenlijk nooit in de running voor setwinst, al waren er wel enkele mooie momenten.
DHM: In de beker van Turnhout werd de maat genomen van Ravels. Winst in de beker na een 2 - 0 achterstand. Vertel. Die wedstrijd werd gespeeld de dag na de match tegen Geel. We begonnen echt zwak en met veel teveel vertrouwen in de goede afloop, daar wij een reeks hoger spelen. Maar Ravels ging er vol voor en kwam daarom verdiend op voorsprong. Gelukkig herpakten we ons net op tijd om toch de zege binnen te
DHM: Dames A is het jaar alweer goed ingezet met een overwinning tegen Bouwel. Het werd een mooie 3 - 0.
Dat klopt, het was een degelijke wedstrijd waarin we zelf weinig fouten maakten maar nog niet ons beste niveau haalden. Gelukkig speelden we een stabiel niveau en konden we profiteren van de wisselvalligheden bij onze tegenstander.
DHM: Vooraleer de leider in de competitie op bezoek komt moeten dames A nog 2 wedstrijden spelen tegen middenmoters. Wat verwacht je daarvan?
Het is een groot vraagteken hoe we de komende periode gaan beleven omdat het merendeel van de speelsters nu trainingen mist omwille van de examens. De gekwetste spelers uit de eerste ronde zijn wel weer van de partij, zij hebben wel nog wat trainingsachterstand. Ik vrees en hoop dat het vormpeil op die dag bepalend kan zijn en dat kan met deze groep wel eens twee kanten uit.
We blijven optimistisch en zijn toch van plan om onze huid duur te verkopen. Mochten we de twee wedstrijden voor de topper winnend afsluiten, beginnen we natuurlijk wel met een
gezonde dosis vertrouwen. De realiteit maakt dat ik toch eerder de wedstrijden wil afwachten voor ik al op 6 punten reken. (rob)
Beker van Antwerpen
NRG VC Geel - Gelvoc A 3 - 0 (25/17 25/23 25/13)
Beker van Turnhout
VC Ravels - Gelvoc A 2 - 3 (25/12 25/18 7/25 21/25 9/15)
Dames A - BOVOC Bouwel 3 - 0 (25/20 25/21 25/23)
Zaterdag 28 januari 14.00
Bravoc Ranst - Dames A
Zondag 5 februari
Amigos Zoersel - Dames A (Beker van Turnhout)
Zaterdag 11 februari 20.00
Dames A - Mortsel Volley
Zondag 19 februari 15.00
VC Tesla Lint - Dames A
Zaterdag 4 maart 20.00
Dames A - Amigos Zoersel
HOOGSTRATEN - Hoogstraten mag fier zijn op zijn sportlaureaten. Op 18 maart worden de vele sportieve successen in de kijker gezet. Wij blikken alvast vooruit naar de 15 ploegen die kans maken om uitgeroepen te worden tot sportploeg van het jaar 2022. De kandidaten voor sportman, sportvrouw, sporttiener en sportvereniging stellen we voor in een volgende editie.
Het B-team speelde kampioen in het 2de gewest Turnhout zonder één wedstrijd te verliezen. Ze waren ook verliezend finalist (2 - 3) voor de beker van Turnhout tegen een ploeg die uitkwam in een hogere reeks. In de aanloop van deze finale versloegen ze overigens verschillende ploegen die spelen in een hogere reeks.
De vriendengroep van Dames D bekroonden hun jaar met een kampioenstitel.
Deze dames speelden kampioen in 3de gewest Turnhout. Deze jonge ploeg kan nog enorm groeien en ze verloor geen enkele competitiewedstrijd.
Deze meisjes van Gelvoc kwamen voor het eerst uit in competitie. Ze behaalden meteen de titel in U11 regionaal beginners reeks 4.
Het Gelvocteam Dames A bekert verder. Tegen Ravels werd gewonnen met 2 - 3. Ook in de competitie werd het jaar goed ingezet. sterk?De jeugdige touwtrekkers van de Mertensmannen behaalden een 5de plaats op het Europees Kampioenschap voor de touwtrekjeugd (GENSB). Dat is voor jeugdtrekkers het hoogst haalbare. Er waren 24 deelnemende ploegen. Ze behaalden een 1ste plaats op het Belgisch Kampioenschap bij de U19 en een 2de plaats bij de U23
Vorig jaar heeft een combinatie van Mertensmannen en Jansen goud behaald op het WK. Dit jaar hebben de Mertensmannen met de hulp van 2 extra spelers hun eerste eigen medaille kunnen pakken. Op het WK 580 kg in Holten, Nederland, behaalden ze de bronzen medaille. Op het Belgisch Kampioenschap in Brecht wonnen ze goud in de categorie 640kg (premier class in het touwtrekken) en zilver bij de zestallen.
Jolijn Quirijnen behaalde de 4e plaats op de ranking voor dubbel dames reeks 10-30 punten van het Antwerps Gewest. Zij won samen met Dorien Bols het Antwerps Kampioenschap en samen werden ze later ook Belgisch Kampioen, een unieke prestatie.
Deze dames interclubploeg is zowel Provinciaal als Belgisch Kampioen geworden. Deze ploeg neemt al 15 jaar deel aan de Interclub en viel steeds net buiten de prijzen, maar nu is het dan eindelijk gelukt. Het niveau is dames 25/3. Ze hebben zeer veel wedstrijden gespeeld om deze titel te pakken, alle ploegleden moesten in topconditie zijn. Het is een unieke prestatie om zich tot Belgisch Kampioen te kronen.
Jongens U16
De jongens U16 speelden kampioen in de zomer/herfst competitie.
Meisjes U16
Spelplezier en sporten op niveau: het leverde het meisjeshockeyteam
U21
De U21 van Wortel werden kampioen in hun reeks seizoen 20212022. De meeste spelers zijn studenten, voor wie het in de week vaak moeilijk is om te trainen. Zij trainen vaak nog op vrijdagavond en blijven op deze manier toch aan sport doen.
Eerste
Het eerste elftal van HVV speelde kampioen in 2de afdeling Amateur met 70 punten (13 meer dan Eendracht Aalst, de 2de in de rangschikking). De ploeg scoorde het meeste doelpunten van de reeks nl. 70 (elke thuiswedstrijd was het doelpuntenkermis) en beschikte over de beste verdediging met slechts 22 tegendoelpunten. Hierdoor promoveerde de ploeg naar 1ste klasse Amateur, het hoogst haalbare voor een amateurclub. Zonder één enkele profspeler moet het dit seizoen opboksen tegen ploegen die bijna allemaal profspelers in hun kern hebben.
Het eerste elftal bestaat uit spelers die, op enkele uitzonderingen na, in de nabijheid van onze gemeente wonen. Nicolas Pauwels, Sieben en Witsen Meeusen, Maro Budts, Ruben Tilburgs, Joren Lenaerts, Wout Vandersmissen, Sem Druyts, Nick Bastiaensen, Dieter Bruyndonckx, Victor Vlayen, Bobby Oenen, Robbe Aerts, Ian Simons, Jouk Vermeeren, zijn allemaal kernspelers uit eigen opleiding die mochten aantreden in de competitie. Vooral Jouk Vermeeren en Sieben Meeusen werden elke wedstrijd geselecteerd, ook Nick Bastiaensen en Maro Budts braken dat seizoen door.
T2 en T3 Roy Muesen en Glenn Van der Linden wonen beiden in Hoogstraten net zoals ploegafgevaardigde Frank van den Broeck. Bij de medische staf zijn ook Mie Fleerackers en Naomi Goosenaerts inwoner van Hoogstraten, dat geldt ook voor voorzitter Dominiek Van den Bosch en zijn bestuursleden.
Deze ploeg die geregeld spelers levert aan het eerste elftal speelt tegen tegenstrevers van nationaal niveau. Het is ook dank zij deze getalenteerde voetballers dat het eerste elftal zulke mooie resultaten behaalde. Ook zij werden winnaars van hun competitie.
De ploeg speelde kampioen in het seizoen 2021-2022 tegen tegenstrevers van interprovinciaal niveau.
Ook de gewestelijke U17 droegen bij tot het meer dan geslaagde jaar van HVV. Zij behaalden de kampioenstitel in hun reeks.
8-tal
In het achttal van de Landelijke Rijverenigingen (LRV) pony's zijn er 3 niveaus, zijnde beginnelingen (B), licht (L) en midden (M). Het achttal van Ponyclub Sint Clemens werd Nationaal Kampioen in de klasse M.
Spelplezier en sporten op niveau: het leverde het meisjeshockeyteam U16 de titel op.
U16 de titel op.
De meisjesploeg deed daar niet voor onder, ook zij speelden kampioen in hun reeks tijdens de zomer/herfst reeks.
Binnen de Provincie Antwerpen wonnen zij elke wedstrijd waaraan zij deelnamen, inclusief het Provinciaal Kampioenschap in Koningshooikt op 11 september 2022. Op het Nationaal Kampioenschap (LRV bestaat in 5 Vlaamse Provincies) in Bassevelde werden zij op 25 september 2022 Nationaal Kampioen. (rob)
SAM VAN DIJCK
Ongeval / Brand / Ziekenwagen Administratie Brandweer 03 314 32 11
WIT-GELE KRUIS, 24 op 24 uur. Voor Hoogstraten en deelgemeenten: tel. 014 61 48 02
DE VOORZORG, 24/24 uur: 014 40 92 44
WACHTDIENST
Zelfstandige Thuisverpleegkundige Noorderkempen, 24/24 uur:tel 014 40 50 13
Zelfstandige verpleegkundigen
Adams Lieve 0479 43 53 89
Aernouts Anke 0479 34 68 03
Bartholomeeusen Liesbeth 0474 38 25 23
Bastijns Tine 0472 73 16 05
Bevers Lena 0493 15 16 65
Christianen Anke 0472 57 07 81
Christianen Sofie 0472 37 83 85
De Busser Edith 0477 17 58 06
de Jong Pascalle 0473 31 15 79
Dirks Els 0474 36 08 84
Geerts Inge 0478 64 81 61
Geerts Lia 0498 64 53 80
Jansen Laura 0474 60 89 06
Koyen Els 0476 43 07 55
Krols Anja 0495 23 02 43
Lambregts Linda 0476 94 31 15
Leys Nele 0499 29 77 86
Machielsen Kim 0477 81 27 61
Roefs Bianca 0493 02 04 19
Rombouts Kristel 0474 26 14 41
Rombouts Kristien 0477 04 41 40
Segers Nele 0494 92 32 27
Sempels Sabrina 0499 16 92 56
Spannenburg Anke 0478 38 96 94
Tomby Hella 0478 42 08 13
van Bavel Bowy 0497 15 92 09
Van Der Eycken Inne 0478 23 52 89
Van Dyck Silke 0492 06 60 69
Van Gastel Katrien 0468 12 64 26
Van Leuven Leen 0479 50 98 05
Van Loon Hanne 0476 24 98 66
Van Otten Heidi 0486 37 45 27
Verheyen Kathleen 0474 29 33 09
Begijnhof 27, 2320 Hoogstraten 0472 97 12 87 redactie@demaand.be DORPSNIEUWS SPORTNIEUWS 03 314 43 39 sport@demaand.be ADVERTENTIES 0477 66 11 60 advertenties@demaand.be ABONNEMENTEN 03 314 51 03 abonnementen@demaand.be
Zie blz. 50
Kruisblok bvba
12 - 2320 Hoogstraten - 0473 52 14
Antiek - Brocante - Verzamelobjecten - Snuisterijen
“Kris Voeten”
Koekhoven 5 Gsm. 0495 57 48 52 2310 Rijkevorsel Tel. 03 314 09 04 www.krisvoeten.be info@krisvoeten.be
Column . . . . . . . . . . . . . . . . . . . . . . . . . . . . . . . . . . . . 2
Duivel-doet-al Jan Stoffels 3 Vanuit het stadhuis 10 Klein Eyssel in De Maand . . . . . . . . . . . . . . . . . . 17 34 jaar Chinese keuken in Hoogstraten 20 Schone uren bij Rosette Servaes 23 Woord in De Maand . . . . . . . . . . . . . . . . . . . . . . . . 26
Bomen en struiken voor de Aschputten 27 De passie voor het schapendrijven 28 Hoe is het met Mai-Li De Raeymaeker . . . . . . 32 Onvrede over geldautomaten 33
De Meerlese skaters, 26 jaar later 37
DEZE MAAND . . . . . . . . . . . . . . . . . . . . . . . . . . . . . 40
DORPSNIEUWS - Hoogstraten 50
DORPSNIEUWS - Meer 57
DORPSNIEUWS - Meerle . . . . . . . . . . . . . . . . . . . . 60
DORPSNIEUWS - Meersel-Dreef 64
DORPSNIEUWS - Wortel . . . . . . . . . . . . . . . . . . . . 65
DORPSNIEUWS - Minderhout . . . . . . . . . . . . . . . 60
SPORT 69
Een halve eeuw geleden . . . . . . . . . . . . . . . . . . . 75 Wachtdiensten 76
De volgende uitgave van de DE HOOGSTRAATSE MAAND verschijnt op donderdag 2 maart Voor volgende editie alle KOPIJ ten laatste op DINSDAG 14 FEBRUARI redactie@demaand.be De redactie behoudt zich het recht voor om ingezonden teksten in te korten