DETAIL 10.2023 Fenster und Fassaden / Windows and Facades

Page 1

Denkmal frisch aufpoliert:

Torre Bizkaia in Bilbao

Facelift for a Monument:

Torre Bizkaia in Bilbao

Fenster und Fassaden Windows and Facades

Klimahülle aus Glasbausteinen: Forschungsgebäude in Zürich

Glass Block Climate Shell: Research Building in Zurich

10.2023

JETZT ANMELDEN

Klima-Forum

Architektur und Kreislaufwirtschaft

Referent:innen

Julian Weyer (C.F. Møller, Aarhus, Dänemark) Margit Sichrovsky (LXSY Architekten, Berlin)

Dirk E. Hebel (KIT-Fakultät für Architektur, Karlsruhe)

Podiumsdiskussion unter anderem mit Dr. Thomas Dienes (USM, Münsingen, Schweiz)

Moderation

Ort

Sandra Hofmeister (Chefredaktion Detail, München)

9. November 2023

16.00 – 19.00 Uhr, anschließend Get-Together

USM Showroom Hamburg, Esplanade 41, 20354 Hamburg

Kostenlose Teilnahme vor Ort oder online*

detail.de/klimaforum-hamburg sponsored by

Detail Klima-Forum
* Fortbildungspunkte sind bei verschiedenen Architektenkammern angefragt
Hauptsponsor und Gastgeber
2023

Was steckt hinter der Hülle?

What’s Behind the Facade?

Fassaden wird seit jeher viel abverlangt: Sie geben Gebäuden ein Gesicht, sind Klimahüllen und Bedeutungsträger. Darüber hinaus waren sie immer „Orte der öffentlichen Selbstreflexion in der Architektur“, wie es der Kunsthistoriker Wolfgang Kemp ausdrückt. Das klingt nach Nabelschau eines Berufsstands, ist jedoch unvermeidlich – vor allem dort, wo es um die Sanierung von Bestandsgebäuden geht, wo tradierte Baumaterialien in einen neuen Kontext gesetzt und überkommene Bauformen neuen Anforderungen gerecht werden sollen.

Zu welch fruchtbaren Ergebnissen das führen kann, zeigen die Beispiele in dieser Detail-Ausgabe. Wir dokumentieren die denkmalgerechte Sanierung zweier Bankhochhäuser in Bilbao und Düsseldorf, deren Fassadenbild und -hülle trotz des Funktionswandels der Gebäude detailgetreu wiederhergestellt wurden. Bei der Umnutzung eines Schlachthofs im tschechischen Ostrava zur Kunstgalerie überlagern sich die Abdrücke alter Fenster mit gigantischen neuen Fassadenöffnungen. Die zum Wohnhaus umgebaute Remise in Basel ist eine Reflexion über

Fenster als Raumerweiterung und über die skulpturalen Potenziale der Architektur. Am Forschungsgebäude

GLC der ETH Zürich findet der Glasbaustein, ein Relikt der Nachkriegsarchitektur, in einer zweischaligen Klimahülle zu neuen Ehren. Beim Holocaust-Museum in Melbourne umgibt ein Patchwork gläserner und tönerner Mauerziegel den historischen Giebel des Vorgängergebäudes. Und in Drammen bei Oslo begegnen wir einem Bürohaus mit eigentlich unspektakulärer Rasterfassade, die sich als Solarkraftwerk entpuppt.

All diese Gebäude bergen Überraschungen, die sich erst auf den zweiten Blick erschließen. Daher beschreiben wir nicht nur Entwurfskonzept und Entwurfsgenese, sondern zeigen auch die Konstruktion dieser alt-neuen Gebäudefassaden. So wie Sie das von Detail gewohnt sind.

Viel Spaß bei der Lektüre!

Facades have always had many roles to play. They give buildings a face, protect them from the elements, and convey meaning. As art historian Wolfgang Kemp describes, facades serve as “places of public selfreflection in architecture.” This might sound like selfindulgent naval gazing, but it is crucial – particularly when renovating existing structures, where traditional materials are integrated into new contexts and architectural forms must adapt to modern demands.

The examples presented in this issue highlight the merits of thoughtful facades. We document the meticulous restoration of two bank towers in Bilbao and Dusseldorf preserving the appearance and structure of the original facades despite functional changes. In the transformation of an old slaughterhouse in Ostrava into an art gallery, the vestiges of old windows merge with expansive new facade openings. A carriage house in Basel, now a home, demonstrates how windows can amplify both spatial dimensions and architecture’s sculptural potential. At ETH Zurich, the GLC research building features glass blocks that pay homage to postwar modernism while serving as part of a climate-responsive, double-skin facade. Melbourne’s Holocaust Museum frames the historical gable of its antecedent structure with a mosaic of glass and clay bricks. In Drammen near Oslo, an office building’s seemingly unremarkable facade astonishingly functions as a solar power generator. Each of these buildings blends old and new in ways that only become apparent on closer inspection. To reveal their hidden nuances, we elaborate on their design concepts and delve into the intricacies of their facade construction – providing the insight that readers have come to expect of Detail. Enjoy the issue!

Früher war alles einfacher: Historischer Fassadenschnitt des Düsseldorfer Commerzbank-Hochhauses. Den Umbau des Gebäudes dokumentieren wir ab Seite 78.

Things were simpler in the past: Section of the original facade of the Commerzbank highrise in Dusseldorf. Our documentation of the building’s conversion starts on page 78.

1 Editorial
Josef Gartner
zredaktion@detail.de

Magazin Reports

Sara Lindner, Natalie Eßig, Andrea Kustermann, Franziska

Das Innovationszentrum Texoversum in Reutlingen ist ein Gemeinschaftswerk von Allmannwappner, Architekten und Jan Knippers Ingenieure. Ein feines Gespinst aus Glas- und Kohlefasern umhüllt den Baukörper.

The Texoversum research and innovation centre in Reutlingen ist a joint project by Allmann wappner, Menges Scheffler Architekten, and Jan Knippers Ingenieure. The building is encased in a delicate web of glass and carbon fibre.

Kreisrunde Öffnungen prägen die umgebaute Remise von Buchner Bründler Architekten in Basel sowohl im Inneren als auch an den Fassaden.

The converted carriage house by Buchner Bründler Architekten in Basel features circular openings throughout the interior space and exterior facades.

10.2023 ∂ Inhalt Contents 2
04 Innovationshub für die Textilforschung Innovation Hub for Textile Research Interview Alan Organschi 08 Mit Holz bauen – aber anders Building with Wood – but Differently
Frank Kaltenbach
14 Research
versetzen Relocating Prefabricated Timber Homes 20 Neuerscheinungen, Termine New Publications, Events
Pichlmeier, Karl Pirker
Holzfertighäuser
Referenzen Products & References
Hildner 92 Beton auf CO2-Diät Concrete on a CO 2 Diet 98 Mauerwerk, Stein, Beton Masonry, Stone, Concrete 104 Fassaden Facades 1 Editorial 24 Impressum Imprint 88 Projektbeteiligte & Hersteller Project Teams & Suppliers 116 Contributors 04
Produkte &
Claudia
Brigida González
36 Maris Mezulis

Fenster und Fassaden Windows and Facades

Ergänzende Fotos, Pläne und Podcasts zu dieser Ausgabe haben wir auf unserer Website für Sie zusammengestellt.

Discover more photos, plans, and podcasts complementing the articles in this issue online:

detail.de/10-2023

Dokumentation Documentation

26Forschungsgebäude in Zürich (CH) Research Building in Zurich (CH)

Boltshauser Architekten

36 Wohnhaus Missionsstraße in Basel (CH)

Residential Building Missionsstrasse in Basel (CH)

Buchner Bründler Architekten

46 Bürogebäude Portalen bei Oslo (NO)

Portalen Office Building near Oslo (NO)

Lund+Slaatto Arkitekter

54 Kunstgalerie Plato in Ostrava (CZ) Plato Art Gallery in Ostrava (CZ) KWK Promes

62 Torre Bizkaia in Bilbao (ES) IDOM

70 Holocaust-Museum in Melbourne (AU)

Melbourne Holocaust Museum (AU)

Kerstin Thompson Architects

Technik Technology

Daniel Pfanner, Frank Tarazi, Andreas Dönhoff

78 Commerzbank-Hochhaus in Düsseldorf

Commerzbank High-Rise Building in Dusseldorf

Am 10. Oktober 2023

Expertengespräch zum Thema Fassaden statt. Hier geht es zur Anmeldung: Our expert talk on 10October is onthe topic of facades. Heldonline via Zoom inGerman: detail.de/roundtable

Die Glasbausteinfassade des Forschungsgebäudes von Boltshauser Architekten ist Blickfang und wichtiger Bestandteil des Klimakonzepts.

The glass block facade of the research building by Boltshauser Architekten is visually striking and anintegral part of theclimate control concept.

3 10.2023
26
Kuster Frey

Holocaust-Museum in Melbourne Melbourne Holocaust Museum

Kerstin Thompson Architects

Tragwerksplanung

Structural engineering: Adams Engineer

TGA-Planung, Akustik Services engineering, acoustics: Cundall

Fassadenplanung

Facade engineering: Inhabit

10.2023 ∂ Dokumentation Documentation 70
Leo Showell

Welche Architektur ist adäquat für ein Gebäude, das an die Gräuel des Nationalsozialismus erinnert? Beim HolocaustMuseum in Elsternwick, einem Vorort von Melbourne, machten Kerstin Thompson Architects Licht zu ihrem zentralen Entwurfsmotiv: Licht als Sinnbild der Bildung und Aufklärung für einen Neubau, den jährlich Hunderte von Schulklassen besuchen. Von außen ist das erst auf den zweiten Blick zu erkennen: Ein historisches Erkerfenster und eine mit Glas verschlossene Bogentür an der Ecke sind die einzigen größeren Öffnungen in der Straßenfassade. Den Rest der Fläche bedeckt ein Patchwork aus grauen Ziegeln und Glasbausteinen in unterschiedlichen Mauerwerksverbänden. Die Kombination alter und neuer Bausubstanz verweist auf die Geschichte des Museums: 1984

What is architecturally adequate for a building intended to memorialise the atrocities of the Nazi regime? For the Melbourne Holocaust Museum in the suburb of Elsternwick, Kerstin Thompson Architects chose light as the central motif of their design: Light as a symbol of education and understanding for a new building open to hundreds of annually visiting school groups. The exterior only reveals this at a second glance: An historic bay window and an arched doorway with fixed glazing near the building corner are the only larger openings along the street facade. The remaining surface consists of a patchwork of grey brick and glass brick arranged in different masonry bonds. The combination of new and old building fabric refers to the history of the museum: In 1984 it was founded by a private initiative in a former dispensary

Lageplan Maßstab 1:5000

Site plan scale 1:5,000

Neun unterschiedliche Mauerwerksverbände aus grauen und gläsernen Ziegeln gliedern die Straßenfassade. Darin wurde auch der Giebel des Vorgängerbaus integriert.

Nine different masonry bond types comprising grey and glass bricks structure the street facade. The gable end of the preceding building was integrated into it.

71 Kerstin Thompson Architects

wurde es auf Privatinitiative in einer ehemaligen Apotheke aus dem frühen 20. Jahrhundert gegründet. 1999 entstand daneben ein Erweiterungsbau nach Plänen von SJB Architects.

Für die jüngste Umstrukturierung hatte sich der Bauherr ein so ambitioniertes Raumprogramm vorgenommen, dass es in keinem der beiden Bestandsbauten sinnvoll unterzubringen war. Das Ergebnis: Abriss der meisten Gebäudeteile mit Ausnahme des historischen Giebels, des markanten Ecktürmchens und eines Stücks Seitenwand an der südöstlichen Gebäudeecke. Hinter dem scheinbar so homogenen Mauerwerk an der Straße verbirgt sich eine Vielzahl unterschiedlicher Räume und Wandkonstruktionen. In den unteren beiden Etagen sichern dicke Wände aus Betonfertigteilen und bewehrten Schalungssteinen das Haus vor

hall built in the early 20th century. In 1999 an addition was created according to plans by SJB Architects.

For the most recent redevelopment, the museum had formulated a functional program so ambitious that none of the existing structures were suitable of sensibly housing it. The outcome: demolition of most parts of the building, with the exception of the historic gable, the striking corner turret and part of the lateral wall along the southeastern building corner. The seemingly very homogeneous masonry brick wall facing the street conceals numerous different spaces and wall construction types. The first two levels are supported by thick walls consisting of prefabricated concrete elements and reinforced formwork blocks in order to protect the building from potential explosive attacks.

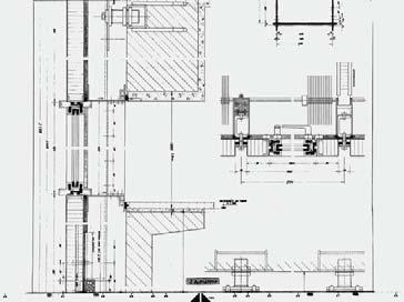
1716 16 13 14 15 10 4 4 109 11 8 7 12 5 2 1 23 a 4 a 6 10.2023 ∂ Dokumentation Documentation 72 Schnitt • Grundrisse Maßstab 1:500 1 Foyer 2 Vortragssaal 3 Bibliothek 4 Luftraum 5 Garage 6 Innenhof mit Section • Floor plans scale 1:500 1 Foyer 2 Lecture hall 3 Library 4 Void 5 Garage 6 Courtyard with Gedenkstätte 7 Dauerausstellung 8 Gedenkraum 9 Virtual-RealityInstallation 10 Terrasse 11 Wechselausstellungen memorial space 7 Permanent exhibition 8 Memorial room 9 Virtual reality installation 10 Terrace 11 Temporary exhibitions 12 Birkenhof 13 Tonstudio 14 Raum für Schulklassen 15 Kindermuseum 16 Büro 17 Archiv 12 Birch grove courtyard 13 Sound studio 14 Room for school groups 15 Children’s museum 16 Office 17 Archive Erdgeschoss Ground floor
2. Obergeschoss Second floor
First
aa
1. Obergeschoss floor

potenziellen Sprengstoffanschlägen. Weiter oben ist die Fassade überall dort, wo die Räume Tageslicht benötigen, zweischalig aus Ziegeln und Glasbausteinen. In den Ausstellungsräumen dagegen kombinierten die Architekten einschaliges Mauerwerk mit dahinter liegenden, leichten Ständerwänden.

In der Mitte des Hauses durchläuft eine hallenartige Erschließungszone die gesamte Gebäudetiefe. Richtung Straße öffnet sie sich zu einem Lichthof mit Birkenwald – eine für Australien exotische Baumart, die an Europa als Herkunftsregion der Holocaust-Überlebenden erinnern soll. Die Trennung zwischen Hof und Straßenraum bildet ein leichtes Mauerwerks-Screen, das nach oben hin zunehmend leichter wird. Ziegel und Glasbausteine sind im Wechsel auf Edelstahl-Gewindestangen aufgefä-

Further above, the facade comprises two layers of clay brick and glass brick wherever interiors require natural daylight. In the exhibition spaces, the architects combined single layer masonry brick with lightweight stud walls set behind them.

Along the middle of the building, a circulation space resembling a hall traverses its entire length. Towards the street, it leads to a courtyard with a birch grove – an exotic tree species for Australia, reminiscent of the European origins of the majority of Holocaust survivors. The separation between the courtyard and the streetscape consists of a lightweight masonry brick screen that seemingly becomes increasingly weightless from bottom to top. Alternating clay brick and

Die zentrale Eingangsund Erschließungshalle verläuft einmal längs durch das ganze Haus. Hier besteht die Wandverkleidung aus Eukalyptusholz.

The central foyer and circulation space extends across the entire length of the building. Here, the wall panelling consists of eucalypt wood.

73 Kerstin Thompson Architects
Baujahr Bestand Completion, existing building Fertigstellung Sanierung Completion, renovation Usable floor area U-Werte U values — Fassade Facade Dach Roof Fenster Windows Heiztechnik Heating technology Primärenergiebedarf Primary energy demand PV-Anlage PV array Fläche Area Leistung Power output Stromerzeugung Electricity yield 1918 2022 2845 m 2 W/m 2K 0,36 0,31 1,8 VRF-Klimasystem VRF heating and cooling system 53 kWh/m 2a (nur Heizen und Kühlen / Heating and cooling only) 160 m 2 31,3 kWp 5860 kWh/a
Derek Swalwell Leo Showell

Vertikalschnitt • Horizontalschnitte

Maßstab 1:20

R 200/200/6 mm

l 150/90/10 mm

3 Glasbaustein

230/110/76 mm

4 Ziegel

230/110/76 mm

5 Gewindestange

Edelstahl t 20 mm

6 Silikonhülse transluzent t 20,5 mm (innen)/ 40,5 mm

(außen)

R 200/200/12,5 mm

8 LED-Lichtband

9 Begrünung intensiv

Mulchschicht

5 0 mm

Tröpfchenbewässerung

Substratschicht

ca. 1000 mm

Geotextil

Drainageelement

3 0 mm

Dichtungsbahn

Estrich im Gefälle

Trennlage

Decke Stahlbeton

2 70 mm

10 Schiebetür:

VSG 2× 4 mm in

Aluminiumrahmen

R 150/100/6 mm

12 Schiebetor drei-

umblech gelocht

12,3 mm auf Stahlrahmen

Vertical section • Horizontal sections scale 1:20

1 200/200/6 mm steel SHS

2 150/90/10 mm steel angle

3 230/110/76 mm glass brick

4 230/110/76 mm

masonry brick

5 Ø 20 mm stainless steel threaded rod

6 Ø 20.5 mm (interior)/

40.5 mm (exterior) silicone sleeve, translucent

7 200/200/12.5 mm steel SHS

8 LED lighting strip

9 intensive greening

mulch layer

50 mm drip irrigation

ca. 1000 mm substrate layer geotextile

30 mm drainage element

sealant layer screed to falls separation layer

270 mm reinforced concrete slab

10 sliding door:

2× 4 mm laminated safety glass in aluminium frame

11 150/100/6 mm steel

RHS

12 triple leaf sliding gate, 12.3 mm perforated sheet aluminium on steel frame

1 2 3 4 5 6 7 8 9 10 11 12 13 14 15 d d 10.2023 ∂ Dokumentation Documentation 76
cc
Derek Swalwell

13 Deckenpaneel Aluminiumblech

gekantet 3 mm

l 200/120/13 mm

15 Bodenbelag Granitplatten 6 00/300/20 mm

Mörtelbett

10–20 mm

Trittschalldämmmatte 6 mm

Decke Stahlbeton

16 Isolierverglasung aus VSG 2× 6 mm mit Zwischenlage

Metallgewebe + SZR 12 mm + ESG

6 mm in PfostenRiegel-System

Aluminium R 200/200/9 mm mit Brandschutzverkleidung 20 mm

18 Wandaufbau

3. Obergeschoss:

Mauerwerk Ziegel

2 30/110/76 mm +

Glasbaustein

110/110/76 mm

Luftzwischenraum

80 mm

Mauerwerk Ziegel

2 30/110/76 mm +

Glasbaustein

110/110/76 mm

19 Wandaufbau

1. Obergeschoss:

Mauerwerk Ziegel

2 30/110/76 mm

Luftzwischenraum

4 0 mm

Fassadenbahn diffusionsoffen

Wärmedämmung

4 0 mm

Stahlbeton-Fertigteil 200 mm

Metallständer

9 2 mm dazwischen

Wärmedämmung

Mineralwolle

Gipskartonplatte

2× 13 mm

20 Isolierverglasung

opak aus VSG 2× 6 mm, Rückseite weiß emailliert, mit Zwischenlage Metallgewebe + SZR

12 mm + ESG 6 mm in Pfosten-RiegelSystem Aluminium

StahlbetonFertigteil

Unterkonstruktion

M etallständer

Gipskartonplatte

13 mm

21 Mauerwerk Scha-

lungsstein Beton b ewehrt 190 mm

Luftzwischenraum

3 0 mm

Fassadenbahn diffusionsoffen

Metallständer

9 2 mm dazwischen

Wärmedämmung

Mineralwolle

Gipskartonplatte

13 mm

22 Wandaufbau

Bestandsgebäude:

Außenputz

Mauerwerk

(Bestand) min.

230 mm max.

350 mm

Innenputz

13 3 mm custom folded aluminium ceiling panel

14 200/120/13 mm steel angle

15 600/300/20 mm granite tile 10–20 mm mortar bed

6 mm impact soundproofing reinforced concrete slab

16 insulation glazing:

2× 6 mm laminated safety glass + metal mesh inter layer + 12 mm cavity + 6 mm toughened glass, in aluminium mullion transom system

17 200/200/9 mm steel SHS column, with 20 mm fireproof cladding

18 3rd floor wall

construction:

230/110/76 mm

masonry brick + 110/110/76 mm glass brick

80 mm cavity

230/110/76 mm

masonry brick + 110/110/76 mm glass brick

19 1st floor wall

construction:

230/110/76 mm masonry brick

40 mm cavity

diffusion-open facade membrane 40 mm thermal insulation

200 mm prefabricated reinforced concrete element 92 mm metal stud inlaid mineral wool thermal insulation

2× 13 mm gypsum board

20 insulation spandrel glazing:

2× 6 mm laminated safety glass, rear white enamelled finish + metal mesh interlayer + 12 mm cavity + 6 mm toughened glass, in aluminium mullion transom system

prefabricated reinforced concrete element metal stud framing

13 mm gypsum board

21 190 mm concrete formwork block 30 mm cavity

diffusion-open facade membrane 92 mm metal stud inlaid mineral wool thermal insulation

13 mm gypsum board

22 existing building wall construction: exterior render min. 230 max. 350 mm masonry brick (existing) interior render

1617 18 4 5 6 2 b b c c 19 20 2122 17 b b c c 77 Kerstin Thompson Architects ee
dd

Transformation eines Pionierprojekts Transformation of a Pioneering Project

10.2023 ∂ Technik Technology 78
© Ralph Richter Photodesign Text: Daniel Pfanner, Frank Tarazi, Andreas Dönhoff

Nach langjährigem Leerstand wurde zwischen 2016 und 2021 eines der bedeutendsten Hochhäuser der deutschen Nachkriegsmoderne revitalisiert und in ein Hotel umgewandelt. Das zwölfgeschossige Gebäude entstand zwischen 1959 und 1962 nach Plänen von Paul Schneider-Esleben im Düsseldorfer Bankenviertel und ergänzte den deutschen Hauptsitz der Commerzbank. Im Jahr 1998 wurde es unter anderem aufgrund seiner aufgeständerten Rohbaukonstruktion und seiner innovativen Vorhangfassade unter Denkmalschutz gestellt. Letztere gilt als die erste in Elementen vorgefertigte Hochhausfassade in Deutschland. Im Jahr 2021 eröffnete die Hotelgruppe Ruby das Hotel Ruby Luna mit 206 Zimmern.

Architektur

Architecture: HPP Architekten

Tragwerksplanung

Structural engineering: Bollinger+Grohmann

Fassadenplanung

Facade engineering: Bollinger+Grohmann, Gartner

From 2016 to 2021, following many years of vacancy, one of the most important highrise buildings of German postwar modernism was revitalised and converted into a hotel. The twelve storey structure was built from 1959 to 1962 according to plans by Paul Schneider-Esleben in the banking district of Düsseldorf, complementing the German Commerzbank headquarters. In 1998 it was added to the historic preservation list, based on its raised shell construction and its innovative curtain wall facade. The latter is considered Germany’s first prefabricated element highrise facade. In 2021, the Ruby Group of hotels opened the Hotel Ruby Luna here with 206 suites.

Das frühere Düsseldorfer Commerzbank-Hochhaus besitzt die erste vorgefertigte Elementfassade in Deutschland. Bei der Umnutzung zum Hotel sollte ihr Erscheinungsbild unbedingt erhalten bleiben.

The former Commerzbank highrise building in Düsseldorf features Germa-

strictly maintaining the existing appearance.

Baukörper mit schwereloser Wirkung

Das in seiner Anfangszeit futuristisch anmutende Gebäude war von amerikanischen Vorbildern inspiriert und symbolisierte die Aufbruchstimmung des deutschen W irtschaftswunders. Wesentlich für seine Wirkung war neben der außergewöhnlichen Fassade die 6 m hohe, offene Erdgeschossebene unterhalb des eigentlichen Hochhausvolumens. Dieser Bereich war nicht nur frei zugänglich, sondern auch mit dem Auto befahrbar und beherbergte unter anderem den ersten Drive-in-Bankschalter Deutschlands. Zudem ermöglichte der Luftraum den freien Blick auf das spektakuläre Tragwerk des Punkthochhauses: Ein rund 1,80 m hoher und 5 m breiter Stahlbeton-Megaträger unter der Mittelachse des Hochhauses spannt über lediglich drei durchgehenden Sichtbeton-Scheibenstützen. Dieser Träger trägt den wesentlichen Anteil der Hochhauslasten. Von unten sichtbare, gevoutete Spannbetonträger kragen vom Mittelträger 5 m weit zu beiden Gebäudelängsseiten hin aus. Sie formen eine Art Tisch aus Stahlbeton, über dem die zwölf Obergeschosse zu schweben scheinen.

Der zentrale Mittelträger trägt außerdem die wesentlichen Lasten der zwölf Obergeschosse. Deren Stahlbetondecken lagern auf schlanken vorgespannten Querträgern auf, die jeweils von einem zentralen Stützenpaar 6 m weit zu beiden Gebäudelängsseiten auskragen. An den Fassaden konnte so auf jegliche Tragelemente verzichtet werden. Die Stützenpaare stehen über dem erwähnten zentralen Mittelträger. Gemeinsam mit

DANIEL PFANNER ist Partner im Ingenieurbüro Bollinger+ Groh mann in Frankfurt und Professor für konstruktiven Ingenieurbau an der Frankfurt Un iversity of Applied Sciences.

DANIEL PFANNER is partner in the engineering office of Bollinger+Grohmann in Frankfurt and Professor of Structural Engineering at the Frankfurt University of Applied Sciences.

FRANK TARAZI ist Projektleiter im Bereich Fassadenplanung bei Bollinger+ Grohmann.

FRANK TARAZI is project manager in the facade planning department at Bollinger+ Grohmann.

ANDREAS DÖNHOFF arbeitet als Projektingenieur im Bereich Tragwerksplanung bei Bollinger+Grohmann.

ANDREAS DÖNHOFF works as a project engineer in the structural engineering department at Bollinger+ Grohmann.

Seemingly weightless building volume

In its early years, the building displayed a futuristic appeal, inspired by American precursors. It symbolised the spirit of a new beginning during the postwar German economic miracle. The decisive aspects of this impression were the exceptional facade and the 6 m tall open ground floor level below the actual highrise volume. This area was not only accessible to the public, but also open to vehicular traffic and, among others, featured Germany’s first drive-in bank counter. Further, the vast ground floor space provided an unobstructed view of the spectacular load bearing structure of the skyscraper. The roughly 1.80 m tall and 5 m wide reinforced concrete megabeam below the central highrise axis spans across merely three continuous exposed concrete shear walls.

Visibly exposed, haunched prestressed concrete joists cantilever by 5 m from the central beam to both longitudinal facades. They form a reinforced concrete structure resembling a table above which the twelve upper floors seemingly float. The central beam also supports a significant amount of loads of the twelve upper floors. Their reinforced concrete slabs are placed on top of slender, prestressed lateral joists that cantilever by six metres to both building sides and are merely supported by a pair of central columns. This allowed completely omitting any load bearing elements along the facades. Together with the lateral joists, the column pairs form a twelve storey frame that ensures transverse stiffening of the highrise structure.

A further significant characteristic of the tall building is the structurally independent stairwell with

79 Commerzbank-Hochhaus in Düsseldorf Commerzbank Highrise Building in Düsseldorf

den Querträgern bilden sie zwölfgeschossige Stockwerksrahmen, die das Hochhaus in Querrichtung aussteifen.

Ein weiteres wesentliches Merkmal des Hochhauses ist das statisch freistehende Haupttreppenhaus mit seinen drei Aufzügen, das geschossweise nur durch zwischengehängte Stahlstege mit dem Hochhaus verbunden ist. Mit dem Stammsitz der Commerzbank auf der gegenüberliegenden Straßenseite war das Haus über eine heute noch bestehende gläserne Brücke verbunden.

Unauffällige, aber wesentliche Umbauten

Das Hochhaus wurde auf den Rohbau zurückgebaut, nach dem heutigen Stand der Technik revitalisiert und für die neue Nutzung als Hotel ertüchtigt. Eine der größten Herausforderungen war dabei der Zusammenschluss der Tiefgarage mit jenen der Nachbargebäude zur einer zusammenhängenden Quartiersgarage. Hierzu wurde ein Teil des Kellers unter dem Hof abgerissen und neu errichtet sowie das Stützenraster der Tiefgarage verändert, um den Parkraum zu optimieren. Dies zog unter anderem die Integration neuer, weit gespannter Betonbalken und zahlreiche weitere Verstärkungsmaßnahmen nach sich.

In den oberirdischen Geschossen führte die Unnutzung vom Bürohaus zum Hotel naturgemäß zu geänderten haustechnischen Anforderungen. Die wesentlich enger beieinander liegenden, vertikalen Leitungs- und Schachtführungen durch

its three elevators. It is connected to the main volume only by suspended steel bridges on each floor. The highrise is also linked to the former Commerzbank headquarters on the opposite side of the street by an existing glazed bridge.

Subtle, yet substantial renovations

The highrise building was stripped to the shell construction, rehabilitated according to the state of the art and retrofit for its new use as a hotel. One of the greatest challenges was connecting the below grade parking garage and those of the neighbouring buildings in order to create a coherent district parking facility. For this purpose, parts of the basement beneath the courtyard were demolished and built anew.

On the upper floors, the conversion from office to hotel use resulted in changed requirements for

During the renovation, it was enveloped in a glass facade in order to create a space for the hotel lobby.

building services. The vertical ducts and shafts needed to be placed at shorter distances while penetrating existing ceilings. Efficient realisation of this task was supported by early coordination between the structural and mechanical engineers.

The integration of a second emergency egress, complementing the existing stairwell in the access tower, resulted in a significant intervention in the structure in the southwest highrise corner. For this purpose, parts of the ceilings from the first floor to the roof were cut out of the existing building fabric. The existing edge beams were maintained. The structure also received significant reinforcement in the area of the roof. This became necessary, for one, due to the additional loads caused by the new roof terrace and the facade maintenance system. Integrating two new elevators further required extending the free standing stairwell tower in length by 9 m.

Existing facade inspired by aircraft construction

The anodised aluminium facade with its silvery sheen, produced by the Gartner company in Gundelfingen, turned the office tower into an exceptional landmark. It features what is considered Germany’s first completely prefabricated element facade. The altogether 600 facade elements, inspired by automotive construction, are each one storey tall and consist of a sandwich construction with an interior and exterior

10.2023 ∂ Technik Technology 80
Das Erdgeschoss war früher komplett offen. Bei der Sanierung erhielt es eine Glasfassade, um Platz für die Hotellobby zu schaffen.
aa

Das einst offene Erdgeschoss dient heute als Hotellobby. Hier lässt sich das eindrucksvolle Betontragwerk unverkleidet erleben.

The ground floor, formerly open, is now the hotel lobby. It allows experiencing the impressive exposed concrete load bearing structure.

a a 81 Commerzbank-Hochhaus in Düsseldorf Commerzbank Highrise Building in Düsseldorf
Obergeschoss Upper floor Erdgeschoss Ground floor Schnitt • Grundrisse Maßstab 1:600 Section • Floor plans scale 1:600 © Ralph Richter Photodesign

Fassaden Facades

Redaktion Editor:

Frei geformte Fläche Free-formed Surface

Die Aluminium-Glas-Konstruktion Grid-2-Shell von Schüco ermöglicht frei gewölbte Vorhangfassaden oder Lichtdächer mit oder ohne Structural Glazing. Bei dem System setzen sich die Flächen aus drei- und mehreckigen Rasterelementen mit projektspezifisch gefrästen 3D-Knotenelementen zusammen. Eine Unterkonstruktion ist nicht nötig. Die Konstruktion basiert auf einem selbsttragenden Stecksystem: Auf der Baustelle werden die auf 90 Grad zugeschnittenen Pfostenprofile an den vorgesehenen Positionen in die Knoten eingehängt und verschraubt. Dabei ist es auch möglich, die Fassade fließend in das Dach übergehen zu lassen. Mit dem System wurde etwa der Innenhof der Mirdif Avenue Mall in Dubai schwungvoll überdacht. Der Entwurf für das Einkaufszentrum stammt vom ortsansässigen Büro Sabat Architectural Consultancy. Die 1800 m2 große Dachfläche legt sich über einen hufeisenförmigen, nach Südosten geöffneten Baukörper. Dabei werden bis zu 25 m selbsttragend überspannt. An den Rändern wird die Konstruktion von 20 Baumstützen getragen. Das Planungsteam entschied sich dazu, den Großteil der Felder offen zu belassen. Dort, wo es nötig ist, sorgt die Textilbespannung Facid von Schüco für die Verschattung der Café-Terrassen.

z

The aluminium-glass construction Grid-2-Shell from Schüco e nables freely curved curtain walls or skylights with or without structural glazing. With the system, surfaces are composed of t riangular and polygonal grid elements with project-specific milled 3 D node elements. No substructure is needed. The construction i s based on a self-supporting plug-in system: At the construction site, the post profiles, cut to 9 0 degrees, are hung into the nodes at the designated positions and screwed in. This means th e facade can also transition smoothly into the roof. The system was used, for example, to g ive the internal courtyard of the Mirdif Avenue Mall in Dubai, de -

Mit dem selbsttragenden Stecksystem Grid2-Shell lassen sich mehrfach gekrümmte Fassaden- und Dach-

The self-supporting Grid-2-Shell plug-in system can be used to create multi-curved facades and roofs.

signed by local office Sabat Architectural Consultancy, a sweeping roof. The 1800 m 2 roof area is laid over a horseshoe-shaped building that is o pen to the south-east, with up to 25 metres spanned in a self-supporting manner. At the edges, the structure is supported by 20 tree-shaped supports. The design team decided to leave the majority of the fields open. Where necessary, Schüco’s Facid textile covering provides shade for the café terraces.

10.2023 ∂ Produkte & Referenzen Products & References 104
schueco.com
Tonnie Richard Wong/ Schüco International
Weitere Informationen
WThema
zum
Further information about the topic

Structural-Glazing Effekt Structural Glazing Effect

Die neue Generation des Schiebefenster-Systems Cero von Solarlux zeichnet sich durch eine noch schmalere Profilansicht aus. Bei Cero IV beträgt sie bei den senkrechten Profilleisten im Stulpbereich gerade einmal zwei Millimeter. Dieser Effekt wird durch die Ausführung mit Stufenglas erreicht: Die Glasscheibe auf der Außenseite überdeckt die vertikalen Profile fast vollständig. Die Ansichtshöhe der horizontalen Profile wurde auf 15 mm reduziert. Das Schiebefenster lässt sich barrierefrei ausführen und eignet sich für Flügelgrößen bis 12 m2, Glasstärken von 56 bis 58 mm und ein Flügelgewicht bis 1000kg. Glasfaserverstärkte Kunststoff-Materialien im Stulpbereich der thermisch getrennten Aluminium-Verbundprofile tragen laut Hersteller zu einem Uw-Wert von bis zu 0,8W/(m2K) bei.

zsolarlux.com

The new generation of the Cero sliding window system from Solarlux has even narrower profile w idths. In the case of Cero IV, the width is just 2 mm for the vertical profile strip in the double-vent area. This effect is achieved with stepped-edge glazing: The glass

pane on the outside almost completely covers the vertical profiles. The sightline height of the h orizontal profiles is reduced to 15 mm. The sliding window can be barrier-free and is suitable for sash sizes up to 12 m 2, glass thicknesses from 56 to 58 mm

and sash weights up to 1000 kg. According to the manufacturer, glass-fibre-reinforced plastic materials in the double-vent area of th e thermally-broken aluminium composite profiles contribute to a U w value of up to 0.8 W/(m 2K).

16:00 – 19:00

Uhr

Hybridveranstaltung im Showroom, Thurn-und-Taxis-Platz 6, 60313 Frankfurt am Main

Prof. Daniel Pfanner, Bollinger + Grohmann

Prof. Jörn P. Lass, ift Rosenheim

Ulf Gatzke-Yu, KSP Engel Frankfurt

Markus Krauss, Transsolar KlimaEngineering

Jakob Schoof, Stellv. Chefredakteur DETAIL

105 Fassaden Facades
Weitere Infos unter: detail.de/architektentag-2023
in Kooperation mit ARCHITEKTEN

Zeitschrift für Architektur + Baudetail Review of Architecture + Construction Details

ISSN 2627-2598

DETAIL Business Information GmbH

Messerschmittstraße 4, 80992 München Munich, Germany

Tel. +49 (0)89 381620-0 Fax: +49 (89) 381620-877 detail.de

Postanschrift

Postal Address:

Postfach PO Box: 500205, 80972 München Munich, Germany

Geschäftsführung

Managing Director:

Dr. Jürgen Wolf, Markus Wolf

Redaktion

Editorial:

Tel. +49 (0)89 381620-866 redaktion@detail.de editors@detail.de einsendungen@detail.de submissions@detail.de

Dr. Sandra Hofmeister (Chefredakteurin Editor-in-Chief, V.i.S.d.P., SaH), Jakob Schoof (stellvertretender Ch efredakteur Deputy Editor-inChief, JS), Sabine Drey (SD), Nora Good (NG), Valentina Grossmann, Claudia Hildner (CHI), Frank Kaltenbach (FK), Heike Kappelt ( HK), Julia Liese (JL), Peter Popp (PP), Edith Walter (EW), Heide Wessely (HW), Barbara Zettel (BZ), Martina Zwack (MZ), Julia Voitl (Praktikantin Intern), Luca Fober, Tim Petersen, Marlene Schwemer, Julia Voitl (Werkstudierende Student Trainees)

Assistenz

Editorial Assistants: Jasmin Rankl, Laura Traub

Produkte & Referenzen

Products & References: produkte@detail.de products@detail.de

Gestaltung Design:

strobo B M (Matthias Friederich, Julian von Klier, Monnier Ostermair) München Munich, Germany

CAD-Zeichnungen

CAD-Drawings:

Dejanira Ornelas Bitterer, Marion Griese, Barbara Kissinger, Martin Hämmel; Rana Aminian, Ralph Donhauser (Freie Mitarbeit Freelance Contributors)

Herstellung

Production, DTP: Peter Gensmantel (Leitung Manager ), Michael Georgi, Natalia Shelenina, Roswitha Siegler, Simone Soesters

dieser Ausgabe

Photographers of this issue: Jakub Certowicz, Ditz Fejer, Kuster Frey, Rory Gardiner, Josef Gartner, Inge Goertz-Bauer, Marcin Gola, Brigida González, Claus Graubner, Oliver Heinl, Peter Herzig, Marie Luisa Jünger, Nikolay Kazakov, Sara Lindner, Paul McGurk, Maris Mezulis, Aitor Ortiz, Franziska Pichlmeier, Karl Pirker, Tom Reindel, Ralph Richter Photodesign, Florian Selig, Jakob Schoof, David Sundberg/Esto, Derek Swalwell, Tonnie Richard Wong, Michael Young, Millie Yoshida

Autorinnen und Autoren dieser

Ausgabe Authors of this issue: Andreas Dönhoff, Natalie Eßig, Andrea Kustermann, Sarah Lindner, Daniel Pfanner, Franziska Pichlmeier, Karl Pirker, Frank Tarazi

Übersetzungen Translations: Mark Kammerbauer, Alisa Kotmair, Raymond Peat, Marc Selway

Director Sales & Events: Susanne Meier

Tel. +49 (0)89 381620-836

Anzeigendisposition

Advertisement Scheduling:

Elisabeth Plomitzer-Kanzler

Tel. +49 (0)89 381620-879

Anke Thaler

Tel. +49 (0)89-38 1620-868

Detail Events:

Tel. +49 (0)89 381620-836

Online: online@detail.de

Tanja Hiltenkamp, Patrick Lück

Director Marketing & Distribution: Lena Engel

Tel. +49-(0)89-381620-851

Alle CAD-Zeichnungen der Zeitschriftsind mit dem Programm Vectorworks® erstellt. All CAD drawings of the journal were produced with Vectorworks®.

Auslieferung an den Handel

Delivery to Trade:

DMV Der Medienvertrieb

Meßberg 1, 20086 Hamburg, Deutschland Germany

Repro Reprographics: Martin Härtl OHG,München Munich, Deutschland Germany

Druck Printing:

W. Kohlhammer Druckerei

Augsburger Straße 722 70329 Stuttgart Deutschland Germany

Auslandsversand über IMX

International distribution by IMX

Abonnementverwaltung und Adressänderungen

Subscriptions and Address Changes: VU.SOLUTIONS GmbH & Co. KG. Grosse Hub 10, 65344 Eltville, Deutschland Germany

Tel. +49 (0) 6123-9238-211

Fax: +49 (0) 6123-9238-212

Abonnentenkontakt

Subscriptions Contact: mail@detail.deoder or detailabo@vuservice.de

DETAIL erscheint 10× jährlich am

16. Januar/1.März/3. April/

2. Mai/1. Juni/17. Juli/1. September/

2. Oktober/2. November/

1. Dezember

DETAIL appears 10 times a year on

16 January/1 March/3 April/ 2May/

1 June/17 July/1 September/

2 October/2 November/1December

Bezugspreise Prices:

10 Ausgaben Issues

Jahresabonnement Classic

Annual Subscription Classic: €225/CHF315/ £180/US$302

Jahresabonnement Studierende

Annual Subscription Students: €120/CHF168/ £96/US$161

Einzelheft Single issue: €26,50/CHF37/£21/US$36

Alle Preise inkl. MwSt., falls zutreffend, und zzgl. Versandkosten.

Abonnements 6 Wochen vor Ablauf kündbar. Bei Abonnements für Studierende gilt: Studienbescheinigung erforderlich.

All prices incl. VAT, if applicable, and plus shipping costs. Proof of student status must be provided to obtain student rates.

Konto für Abonnementzahlungen

Bank details for subscriptions: Deutsche Bank München

BLZ 70070010 · Konto 193180700

IBAN: DE24700700100193180700

SWIFT: DEUTDEMM

Bei Nichtbelieferung ohne Verschulden des Verlages oder infolge vonStörungen des Arbeitsfriedens bestehen keine Ansprüche gegen denVerlag. No claims can be accepted for nondelivery resulting from industrial disputes or where not caused by an omission on the part of the publishers.

Zurzeit gilt Anzeigenpreisliste Nr.55 14044Exemplare + 2360Exemplare aus früheren Berichtszeiträumen. Current valid advertising rates are listed on Rate Card No. 55. Circulation 2nd Quarter 2023: 14,044 copies + 2360 copies from previous reporting periods.

Dieses Heft ist auf chlorfreigebleichtem Papier gedruckt. This journal is printed on chlorine-free bleached paper.

Alle Rechte vorbehalten. Nachdruck nur mit Genehmigung. Für Vollständigkeit und Richtigkeit aller Beiträge wird keine Gewähr übernommen.

All rights reserved. No liability is accepted for unsolicited manuscripts or p hotos. Reproduction only with permission. No guarantee can be given f or the completeness or correctness of the published contributions.

Die Beiträge in DETAIL sind urheberrechtlich geschützt. Eine Verwer tung d ieser Beiträge oder von Teilen davon (z.B.Zeichnungen) ist auch im Einzelfallnur in den Grenzen der gesetzlichen Bestimmungen des Urheberrechtsgesetzes in der jeweils geltenden Fassung zulässig. Sie ist grundsätzlich vergütungsliegen den Strafbestimmungen des Urheberrechts.

Any use of contributions in whole or in part (including drawings) is permitted solely within the terms of relevant copyright law and is subject to fee payment. Any contravention of these conditions will be subject to penalty

Cover 10.2023: Forschungsgebäude in Zürich Research Building in Zurich

Architekten Architecture: Boltshauser Architekten

Mehr Detail auf allen Kanälen

More Detail on all channels: zdetail.de/socialmedia

SPOTIFY Detail Podcast

LINKEDIN

Detail Business

PINTEREST Detail Magazine

FACEBOOK

Detail.de

INSTAGRAM detailmagazine

Teilen unserer Ausgabe liegen Beilagen nachstehender Firmen bei. Supplements from the following companies are included in parts of our issue.

architect@work, Kortrijk (BE) Gisoton, Aichstetten

Josko, Fenster und Türen, Andorf (AT)

Forschungsgebäude in Zürich Glass Block Climate Shell: Facelift for a Monument: Torre Bizkaia in Bilbao 10.2023 Fenster und Fassaden Windows and Facades 10.2023 ∂ Impressum Imprint 24

Turn static files into dynamic content formats.

Create a flipbook
Issuu converts static files into: digital portfolios, online yearbooks, online catalogs, digital photo albums and more. Sign up and create your flipbook.
DETAIL 10.2023 Fenster und Fassaden / Windows and Facades by DETAIL - Issuu