Golfhaven.nu


• 3 måneders depositum, 1 måneds forudbetalt husleje samt første måneds husleje betales ved underskrevet lejekontrakt.
• Lejeperiode: Ubegrænset.
• Opsigelsesvarsel: Uopsigelig i 6 måneder. Derefter 3 måneder.
• Lejestigning: Reguleres ifølge nettoprisindekset.
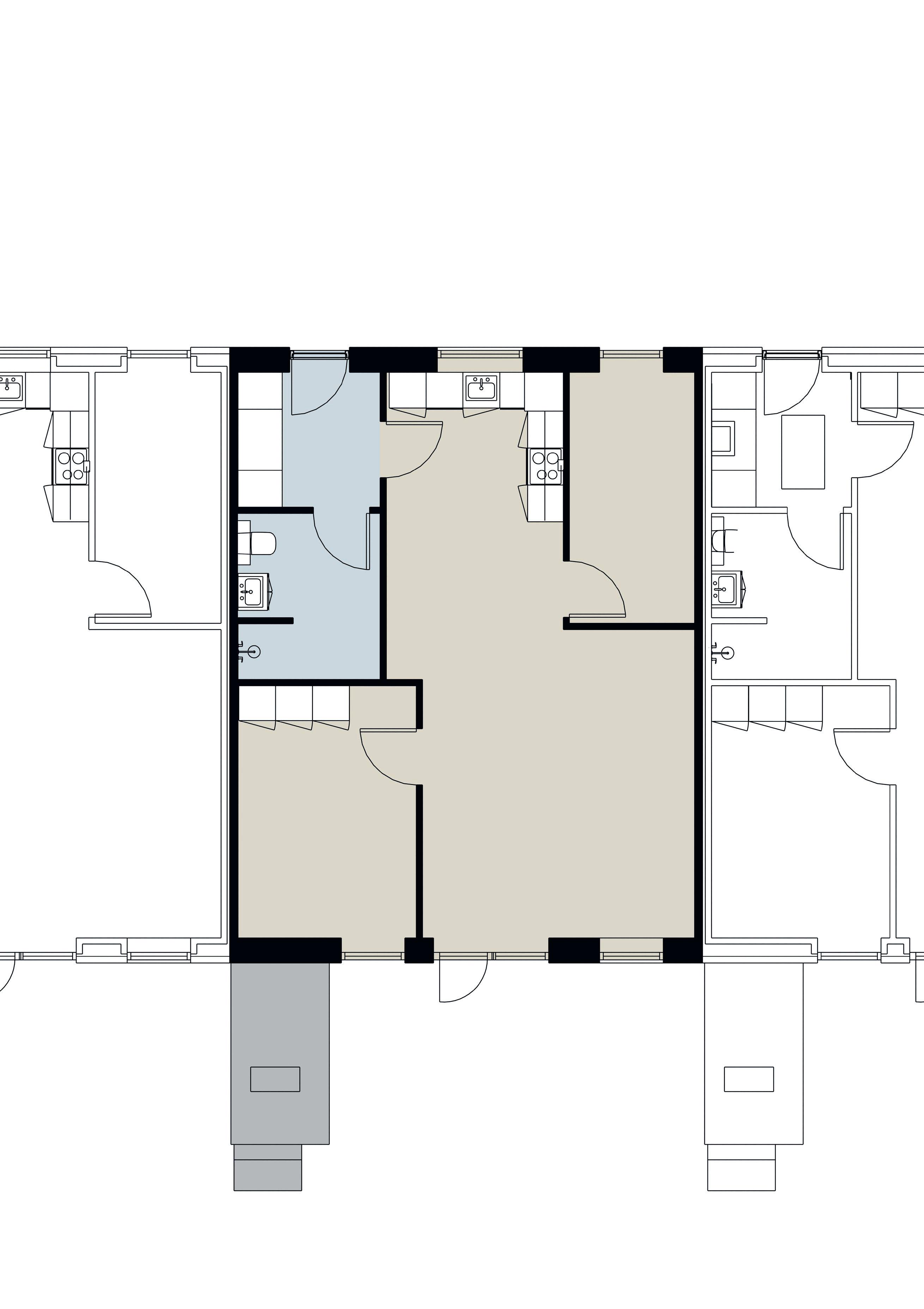
• Skur.
• Privat fliseterrasse og havestykke i forbindelse med bolig.
• Udendørs fællesarealer.
• Lejemålet er forberedt til fibernet, telefoni og kabel-TV.
• Forbrug betales af lejer direkte til udbyder, og lejer skal selv tilmelde sig som selvstændig bruger.
• Anerkendte hårde hvidevarer i køkken.
• Udfyld og underskriv reservationsblanketten, som skal sendes til ejendomsmægleren.
• Lejekontrakten underskrives digitalt med NemID, senest 2 dage efter modtagelsen af lejekontrakten.
• Betaling af opkrævningen jf. lejekontraktens §4, skal ske senest 5 dage efter modtagelse af lejekontrakten.
• Vand og spildevand betales aconto pr. måned.
• Varme betales direkte til forsyningsselskabet.
• El betales direkte til forsyningsselskabet, og lejer skal tilmelde sig som selvstændig bruger.
Det nye boligområde i Rønnede ligger lige op ad Rønnede Golfklubs grønne områder og har derfor fået navnet Golfhaven.
Golfhaven består af 32 skønne rækkehuse, som danner de perfekte rammer for familieog seniorlivet. Der kommer direkte udgang til en flisebelagt terrasse og havestykke med plads til hygge under åben himmel.
Boligerne med hhv. 3 og 4 værelser bliver 77-120 kvm. De bliver opført med gulvvarme i alle rum og er energioptimeret med luft til vand varmepumpe. Derudover bliver de opført med alt, hvad der hører til en moderne bolig.
De nye rækkehuse ligger med skøn udsigt til den grønne golfbane, som inviterer til en aktiv tur i den friske luft. Den hurtige forbindelse til motorvejen er et ekstra plus for dig, der ønsker et sted at bo, hvor du fx hurtigt kan komme til og fra København eller en tur sydpå. Tilmed ligger Camp Adventure, BonBon-Land og Gisselfeld lige i nærheden.
• Gulvvarme i alle rum.
• Moderne keramiske klinker i badeværelset.
• Køkken fra HTH.
• Privat terrasse og havestykke til alle boliger.
• På de tilhørende p-pladser er 4 pladser forberedt til ladestandere.
• Anerkendte hårde hvidevarer i køkken medfølger. Desuden er der forberedt til vaskemaskine og tørretumbler.
• Adgang til skur.
Du er blot 3 minutters kørsel fra Rønnede, 9 minutters kørsel fra Faxe og 21 minutters kørsel fra Næstved.
Skole og daginstitution i Rønnede findes i umiddelbar nærhed.
I nærheden af Golfhaven ligger både Camp Adventure, BonBon-land og Gisselfeld.