Tømrerboka
vg2 tømrer vg3 tømrerfaget
BOKMÅL
Lars-Christian Tryger Danielsen
Lars Einar Falao

vg2 tømrer vg3 tømrerfaget
BOKMÅL
Lars-Christian Tryger Danielsen
Lars Einar Falao
Bokmål
Lars-Christian Tryger Danielsen og Lars Einar FalaoCopyright © 2023 by Vigmostad & Bjørke AS
All Rights Reserved
1. utgave / 1. opplag 2023
ISBN: 978-82-11-04580-5
Grafisk produksjon: John Grieg, Bergen
Omslagsfoto: Eigil Rasmussen-Korsager
Design: Scandinavian Design Group
Alle tekniske tegninger © Anne Nord
Spørsmål om denne boken kan rettes til: Fagbokforlaget
Kanalveien 51
5068 Bergen
Tlf.: 55 38 88 00
e-post: fagbokforlaget@fagbokforlaget.no www.fagbokforlaget.no
Materialet er vernet etter åndsverkloven. Uten uttrykkelig samtykke er eksemplarfremstilling bare tillatt når det er hjemlet i lov eller avtale med Kopinor.
Vigmostad & Bjørke AS er Miljøfyrtårn-sertifisert, og bøkene er produsert i miljøsertifiserte trykkerier.
Denne læreboka er til deg som skal begynne din reise mot et svennebrev. Innholdet i boka er tilpasset undervisning på vg2 tømrer og vg3 tømrerfaget. Hensikten med verket er at du skal få en god innføring av hva faget innebærer og lære hva det praktiske arbeidet en tømrer utfører.
Tømrerboka er skrevet etter nye læreplaner, som kom etter fagfornyelsen i 2020. Boken er delt inn etter fagnavnene i vg2 tømrer, som vil bistå elever og lærere i undervisning. Vi vil at Tømrerboka vil hjelpe deg med å forstå teorien i klasserommet og fungere som et hjelpemiddel ute på byggeplassen.
Vi håper at alle som leser og bruker denne boka, kan møte læretiden med trygghet og motivasjon for veien videre.
Lars-Christian var initiativtaker for å skrive Tømrerboka og har vært en viktig pådriver i prosjektet. Lars Einar har med sin dyktige faglighet fått satt sitt pedagogiske preg i boka for å fremme god læring.
Vi til takke Fagbokforlaget for tillitten for at vi kunne skrive denne boka. En stor takk til illustratør Anne Nord og takk til Knut Ivar Edvardsen for faglige råd. Vi er dypt takknemlige for all støtte fra familie og kollegaer som vi har fått under skrivearbeidet.
Oslo, mars 2023
Lars-Christian Tryger Danielsen & Lars Einar FalaoDel 3 Materialegenskaper, varmeisolering og tetting
Tømrerfaget er et av de eldste og mest historierike håndverksfagene vi har her i Norden. En tømrer er en yrkesutøver som bygger og vedlikeholder hus og andre bygninger. Slik faget er i dag, har det blitt formet og utviklet over lang tid og i sammenheng med den teknologiske utviklingen. Dagens tømrer har mange og varierte oppgaver – alt fra rene monteringsoppgaver til forming og bearbeiding av treverk. Tømreren er med og skaper verdier i samfunnet gjennom å bygge og vedlikeholde bygninger. Den store variasjonen innenfor faget og det brede kunnskapsfeltet er noe av det som gjør tømrerfaget så interessant.
Tømrerfagets historie startet da vi begynte å bygge hus og hjem av trevirke. Tømreren utførte husbygging med en teknikk som heter laft. Det går ut på å sette trestokker tett oppå hverandre, og du må økse sammen hjørnene.
Etter hvert bygde tømreren hus ved å stable grove firkantede stokker som et skjelett, det vi kaller tungt bindingsverk. Mellom stokkene i bindingsverket ble det ofte murt igjen med murstein og mørtel.
I vikingtiden (ca. 800–1050) ble en tømrer kalt húsasmiðr eller bare smiðr (smed). En smed på den tiden jobbet med både tre og jern. Han var altså en allsidig håndverker; han kunne til og med bygge båter. Inventar og møbler kunne en tømrer også lage, men når møblene ble mer avanserte og detaljerte, oppsto snekkerfaget.
Fra 1400-tallet ble tømrerne omtalt som tømmermenn, de lagde trehus, kirker og båter. Båtbyggerfaget er blitt et eget fag, men blant mannskapet om bord på seilskuter heter de som reparerer skuta, fortsatt tømmermenn.
På 1920-tallet fant professor Andreas Bugge en mer moderne måte å bygge hus på etter at han hadde vært på en studietur i Amerika. Metoden besto av å bygge med lettere dimensjoner som bindingsverk. Olav Selvaag var en entreprenør som satte opp et moderne bolighus på Ekeberg i Oslo.
Ekeberghuset ble presentert som en moderne byggeteknikk i 1948. Interessen for den nye byggeteknikken skapte diskusjoner i byggebransjen og entusiasme hos publikum.
I etterkrigstiden var behovet stort for å bygge nye boliger, og det var også behov for mer effektiv bygging. Den nye konstruksjonen av bindingsverk var raskere og ble billigere for kunden.
Laug
De første laugene som vi skjenner til her i landet, oppsto på 1200-tallet i Bergen. Disse lukkede gruppene kjempet for å holde kvalitet og håndverkerens utvikling internt. Vi vet at laugene kunne være hemmelighetsfulle, med egne kodeord og ritualer. Laugstiden i Norge varte i hele 600 år, og laugene ble oppløst i 1869. Mange som bodde utenfor de store byene, var gode håndverkere, men de som hadde faget som fast jobb i en større by, trengte trygghet. De organiserte seg i laug, det vil si en forening som passet på at håndverkerens interesser ble ivaretatt.
Laugene ble i hovedsak styrt av mesterne innenfor det samme fagområdet. En viktig del av arbeidet var å utvikle en god fagopplæring. Laugene hadde også ansvar for å godkjenne nye mestere. Etter hvert oppsto behovet for både en arbeidstakerorganisasjon og en arbeidsgiverorganisasjon. Begge parter er i dag organisert i hver sin hovedorganisasjon: arbeidsgiverne i Næringslivets hovedorganisasjon (NHO) og arbeidstakerne i Landsorganisasjonen (LO). Som ansatt tømrer kan du bli medlem i LO. Det er frivillig å være fagorganisert. Det vil være naturlig for deg som tømrer å være medlem i Tømrer og Byggfagforeningen. Det er en fremtidsrettet forening med gamle og stolte tradisjoner som ble opprettet helt tilbake til 1885 i den hensikt å sikre rettighetene til fagorganiserte arbeidstakere. Du kan lese mer om hva denne foreningen tilbyr, på nettsiden www.byggfag.org.
I Tyskland er det en gammel håndverkstradisjon med røtter fra 1300-tallet som omtales som Wanderschaft von Gesellen. Denne tradisjonen kan ikke oversettes eller sammenliknes direkte med noen norsk tradisjon. Likevel kan vi tenke at denne tradisjonen er det som etter hvert kan sammenliknes med den norske læretiden som fører til et svennebrev og tittelen tømrersvenn.
En svenn skal ifølge tradisjonen «reise på faget», det vil si etter ferdig med læretid og svenneprøve. Svennen kan dra til andre land i Europa, eller minst 50 km fra hjemstedet.
«Die Waltz». Tyske tømrersvenner som er på ett års lang rundtur for å lære seg tradisjoner og teknikker.
Svennen må være ugift, gjeldfri og under 30 år. Vandringen varer i en minsteperiode på tre år og en dag. Svennene blir hyret av tømrerbedrifter i 4 måneder av gangen med betalt minstelønn.
Tradisjonen går ut på å tilegne seg så mye kunnskap og kompetanse som mulig. Fokuset er å lære andre byggeteknikker i andre land og skape nye relasjoner.
Dette er en tradisjon som holdes i hevd i enkelte land. I Norge har vi to møteplasser, Tromsø og Bergen, hvor reisende tømrersvenner kan møtes for å dele erfaringer og gi råd til nye svenner som er på reise eller «Die Waltz».
Dette er et yrkesopplæringssystem som praktiseres i land som Tyskland, Sveits, Østerrike og i deler av Italia, og som på norsk er å forstå som dobbelt opplæring.
Systemet kjennetegnes av læringsprosesser som gjennomføres på to arenaer: fagskole og bedrift. En fagskole kan sammenliknes med en yrkesskole. Som en forutsetning for denne opplæringen skal det skrives en yrkesopplæringskontrakt. Den praktiske opplæringen gjennomføres i bedrift. Den teoretiske delen gjennomføres på fagskolen. Dette er veldig likt det norske utdanningsløpet.
Sveits har stolte tradisjoner i å utdanne tømrere. Det litt spesielle er at i Sveits jobber tømreren stort sett bare med treverk og svært lite med andre bygningsmaterialer.
Det har tradisjonelt vært flest menn som har valgt tømreryrket, men nå er det stadig flere kvinner som utdanner seg som tømrersvenn.
Tømrerutdanningen i Norge består av en blanding av både teori og praksis. Som lærling kan du gå opp til svenneprøve når godkjent opplæring i tømrerfaget er gjennomført og du har fullført din læretid i en godkjent lærebedrift.
Når du som lærling har bestått svenneprøven, får du et svennebrev. Med et svennebrev i hånden kan du dokumentere at du har den kompetansen som er beskrevet i læreplanen for tømrerfaget.
Svenneprøven skal være en individuell prøve med likt omfang og lik vanskelighetsgrad for alle lærlinger. Svenneprøveoppgaven skal speile den opplæringen du som lærling har gjennomført.
Svenneprøven skal gjennomføres så nært læretidens slutt som mulig: tidligst to måneder før og senest to måneder etter læretidens utløp. Selv om svenneprøven avholdes før læretiden din er ferdig, må du likevel fullføre læretiden slik kontrakten sier, for å være kvalifisert til å få svennebrevet ditt. Dersom du som lærling ikke består svenneprøven på første forsøk, har du krav
En lærling utfører sitt svennestykke for Veidekke i Ny-Ålesund på Svalbard. Oppgaven gikk ut på å bygge vegger som ble isolert og kledd med fi nerplater, og å sette inn dør og vindu er. Hele prosjektet var å bygge nytt jordobservasjonsbygg for Kartverket.
på å få gjennomføre en ny svenneprøve. Det innebærer imidlertid at lærebedriften du gjennomførte læretiden i, ikke er pliktig til å gi deg opplæring mellom første og andre svenneprøve dersom læretiden er ferdig.
En svenneprøve varer oftest i en uke (5 arbeidsdager). Hvis du ikke består prøven, kan du avlegge en ny prøve etter 14 dager. Prøven bedømmes av to sensorer. De kontrollerer hvordan oppgaven er utformet, og gir karakterene «Bestått», «Bestått meget godt» eller «Ikke bestått».
Svenneprøven blir fulgt opp og vurdert av prøvenemnda. I prøvenemnda sitter det fagpersoner med lang fartstid i bransjen, og de har god kompetanse innenfor tømrerfaget. Det er prøvenemnda som har ansvaret for utformingen av oppgaven til svenneprøven. Lærebedriften og prøvenemnda skal sammen finne en passende oppgave til lærlingen. Alle mål i læreplan for vg3 Opplæring i bedrift kan være en del av prøven.
Prøvenemnda vil i vurderingsarbeidet legge vekt på ulike kriterier. I en svenneprøve må du vise at du klarer å planlegge og tilrettelegge ditt eget arbeid. Du som kandidat skal ha orden og ha det ryddig rundt om på arbeidsplassen. Du skal være selvstendig og klare å vurdere faglige løsninger som er teknisk godkjente etter lover og regler.
Veien for å utdanne seg til tømrer kan gjennomføres på flere måter. Den tradisjonelle veien er to år på skole og to år i bedrift. En annen variant er å gå første året på vg1 og deretter tre år i bedrift. For noen kan det være lettere å ta alle fire årene i bedrift, men uansett må fellesfag og eksamen gjennomføres.
Utdanningsløp for tømrerfaget
Det er mange måter å komme frem til et svennebrev
Vekslingsmodellen
1 år på videregående skole vg1 BA og 3 år i lærebedrift. Her veksler du mellom skole og bedrift. Teoridelen innebærer at du får undervisning i år 2–4 på skole i bolker på ca. 4–6 uker. Skoleundervisningen vil veksle mellom allmennteori, fagteori og praksis i skolens verkstedlokale.
Voksen lærling
Dette innebærer at du har gjennomført en eller annen form for videregående utdanning tidligere, for eksempel 3 år med allmennfag/studiespesialiserende eller 3 år på idrettslinje, eller at du startet på feil utdanning og slik har brukt opp retten til 3 års videregående opplæring.
Det vanlige vil da være å starte med et fradrag på 6 måneder av læretiden, som igjen betyr at det gjenstår 42 måneders læretid. Det innebærer at du da mangler yrkesteorien fra vg1 bygg og anlegg og vg2 tømrerfaget. Det innebærer også at du må opp til en tverrfaglig eksamen i yrkesteori før du kan gå opp til svenneprøven. Også med denne løsningen tilbyr opplæringskontoret et 150 timers eksamensforberedende kurs.
Mesterbrev
Det er flere måter å komme frem til et mesterbrev på, men den vanligste metoden er å ta svennebrev først. Når du som tømrersvenn har fått to års arbeidserfaring etter svenneprøven, melder du deg på mesterutdanningen. Dette er opplæring som oftest foregår på kveldstid over to år:
→ Første år lærer du om faglig ledelse, økonomi og markedsføring.
→ Andre år er mer faglig rettet mot standarder, prising og ansvar.
Dette er en utdanning som det er en stor fordel å ha, hvis du skal starte eller drive egen tømrerbedrift. Oppgavene til en tømrermester spenner vidt. Noen få eksempler på dette er planlegging og prosjektering av større nye hus og rehabilitering av eksisterende bygg, samt beregning av pris og kostnader. En daglig leder i en tømrerbedrift har ofte mesterutdanning.
Alle gode prosjekter innenfor tømrerfaget starter med god planlegging. For å kunne planlegge og prosjektere på en god måte må vi ha oversikt over faget og hvilke rammer som påvirker arbeidet vårt. Vi må vite hvilke lover, forskrifter og standarder som gjelder for prosjektet, så ikke vi bygger ulovlig eller feil. Vi må kunne beregne hvordan vi skal bygge trygt og sikkert, slik at bygget er trygt og solid, både når vi bygger og etter at det er ferdig. Når vi gjør dette riktig, får vi bygninger som tåler å brukes, og som tåler vær og vind i mange år fremover.
Kapittel 1
Et byggeprosjekt starter med en idé. Noen har et behov for å få noe bygd og har et ønske om hvordan det ferdige bygget skal se ut og fungere. For å komme frem til et godt resultat er vi avhengige av god planlegging og korrekt gjennomføring. Når vi følger de lovene og forskriftene som gjelder for arbeidet vårt, får vi et godt resultat. Vi har mange gode hjelpemidler for å gjøre prosjekteringen og planleggingen lettere. Utførelsen av selve jobben skjer ikke alltid helt som vi har planlagt, så det er viktig å kunne tilpasse seg og justere planene underveis.
Her ser vi hvordan søknadsprosessen kan se ut, steg for steg.
Et byggeprosjekt starter gjerne med en idé. Deretter starter planleggingsdelen for gjennomføring. Det er et ganske stort og omfattende arbeid. Prosjekteringen kan deles inn i de to områdene søknadsprosess og byggeprosess. Du skal nå bli kjent med hva disse to prosessene handler om.
Aller først kan det være nyttig å få en oversikt over hele prosessen fra idé til ferdig prosjekt. Direktoratet for byggkvalitet har utarbeidet en modell: 8 steg fra idé til ferdig søknad. Vi skal se nærmere på hva det innebærer.
Søknadsprosessen
Steg 1: Planer og bestemmelser
For å finne ut hva som er tillatt å bygge, må du sette deg inn i regler, planer og bestemmelser som gjelder for den aktuelle eiendommen. Selv om det kun er et lite byggeprosjekt, kan det nemlig ha store konsekvenser for omgivelsene.
Steg 2: Hvor stort kan det bygges?
Alle regulerte eiendommer har regler på hvor mye eller hvor stort, du kan bygge. Du må derfor sette deg godt inn i reguleringsbestemmelsene som gjelder eiendommen. Når du har fått oversikt over hva som er tillatt, kan du regne ut hva det er mulig å bygge.
For å planlegge hvor et hus skal stå, bruker vi et situasjonskart som er tilgjengelig hos kommunen. Kartet viser blant annet høyde på terreng, tomtegrenser og byggesoner.
Steg 3: Hva må du ta hensyn til?
Selv et lite byggeprosjekt kan som sagt ha store konsekvenser for omgivelsene. Du må derfor sette deg inn i alle regler, planer og bestemmelser for eiendommen. Naboeiendommer, spesielle naturområder og vassdrag kan for eksempel gi føringer på hva som er lov til å bygge.
Steg 4: Tegne og plassere byggverket
Det må lages tegninger som gjør det enkelt å forstå hvordan bygget skal se ut. Tegningene må være i målestokk, og de må være målsatte. Du trenger plantegninger som viser hvor de forskjellige rommene er tenkt, og hva de skal brukes til. Du trenger også snitttegninger som viser høyden på bygget, og hvordan bygget ser ut på langs og på tvers, dessuten fasadetegninger som viser alle sider av bygget. Det må tydelig fremgå hvordan terrenget vil se ut før og etter.
Steg 5: Orientere naboene
Når et byggeprosjekt krever søknad eller dispensasjon fra reguleringsplanen, må du sende et nabovarsel hvor du forteller naboene om planene dine. Naboliste bestiller du hos kommunen. Naboene har rett til å mene noe om prosjektet, de kan til og med protestere på at det skal bygges. Kommunen avgjør om
Fasadetegningen viser hvordan huset vil se ut. I en byggesøknad er det viktig med gode og forklarende tegninger.
protestene er relevante eller ikke. Kommunen bestemmer om det kan gis byggetillatelse.
Steg 6: Søknaden ferdigstilles og sendes inn
Det er viktig at søknaden er komplett når den sendes inn. Er søknaden mangelfull, vil den ikke bli behandlet og sendes i retur. Det er viktig å ikke holde tilbake opplysninger som er relevante for søknaden. Konsekvensen av dette er at et eventuelt vedtak fra kommunen er ugyldig. Det betyr at du må varsle naboene og søke på nytt.
Som du ser, er dette en krevende del av prosessen. Det er bakgrunnen for at det bør brukes et ansvarlig foretak til denne delen av en byggeprosess.
Steg 7: Godkjent søknad
Byggetillatelsen gjelder kun for nøyaktig det som er beskrevet i den godkjente søknaden. Byggetillatelsen gjelder i 3 år. Det betyr at du må sette i gang byggearbeidene i løpet av disse tre årene.
Steg
Når bygget er ferdig, må du søke kommunen om en ferdigattest. Først når ferdigattesten er godkjent, er det lov å ta i bruk bygningen. Når det søkes om ferdigattest, bekrefter du at det er bygd i henhold til den godkjente byggesøknaden og i tråd med plan og bygningslovens krav.
Meldeskjema for tiltak unntatt søknadsplikt. Melding om bygning eller tilbygg som er unntatt søknadsplikt
Dette skjemaet skal brukes for å melde fra til kommunen om at du har bygget et tilbygg eller en bygning som er unntatt søknadsplikt.
Kryss av for hva som skal meldes inn:
Tilbygg inntil 15 m2
Bygning mellom 15 - 50 m2
Underkategori (ett kryss):
Garasje eller uthus til bolig
Annen type bygning, beskriv:
Informasjon om eiendommen:
Eier:
Adresse:
Garasje eller uthus til fritidsbolig
Fiskeri- eller landbruksbygning
E-post: Telefon:
Gårdsnummer (du kan finne gårdsnummer ved å søke opp adresse på www.seeiendom.no)
Bruksnummer (du kan finne bruksnummer ved å søke opp adresse på www.seeiendom.no)
Festenummer (gjelder kun hvis festetomt):
Seksjonsnummer (gjelder kun hvis sameie):
Informasjon om bygningen eller tilbygget:
Bruksareal (BRA):
Innvending areal (areal innenfor ytterveggene)
m2 Dato for ferdigstillelse: (dd.mm.åååå)
Legg ved et kart hvor tilbygget eller bygningen er tegnet inn:
Slik gjør du:
Bruk et kartutsnitt over eiendommen for å tegne inn hvor bygningen eller tilbygget er plassert.
Kartet kan for eksempel være:
– et situasjonskart fra kommunen
– et kart fra kommunens nettside
– et kartutsnitt fra www.seeiendom.no
Vi anbefaler at du:
– tegner inn et omriss av bygningen eller tilbygget
– oppgir hvor mange meter det er fra bygningen/tilbygget til nabogrensa.
Kartet som viser plasseringen, sendes til kommunen sammen med dette meldingsskjemaet.
Byggherre (juridisk) er den som skal motta ytelser i forbindelse med bygg og anlegg. Byggherren kan også være betegnet som bestiller, kjøper eller oppdragsgiver. De to partene i en vanlig avtale om bygg- og anleggsarbeider er byggherre og entreprenør.
Sentral godkjenning er en frivillig kvalitetsordning som viser at en virksomhet oppfyller kravene til faglige kvalifikasjoner, kvalitetssikringsrutiner og seriøsitet. Godkjenningen blir gitt av Direktoratet for byggkvalitet.
En byggherre kan være en enkeltperson, et foretak eller en organisasjon. Byggherren er oppdragsgiver for en byggmester.
Plan og bygningsloven bruker betegnelsen tiltakshaver i stedet for byggherre. Byggherren (tiltakshaveren) har ansvaret overfor kommunen for at byggearbeidet utføres i samsvar med gjeldende lover, forskrifter og arealplaner.
En privatperson kan ta rollen som ansvarlig for søknader og samtidig være byggherre. Dette innebærer å ha ansvaret for søknader, prosjektering og kontroll av prosjektet. Men selve utførelsen skal gis til et firma som har kompetanse på de enkelte oppgavene i byggeprosjektet.
Byggherren (tiltakshaveren) eller hans eller hennes ansvarlige samarbeidspartnere har et annet ansvar for at bygget tilfredsstiller krav til energiforbruk, lydisolasjon, inneklima og personsikkerhet.
Alle tiltak som skal gjennomføres, gir best resultat når de er godt planlagt. Noen prosjekter blir ikke slik de er ønsket elle avtalt. Fellesnevner for denne type prosjekter er at de ikke er godt nok planlagt. Det er derfor viktig i alle arbeidsoppgaver å være nøyaktig i prosjekteringsfasen, planleggingsfasen og gjennomføringsfasen.
Med «tiltak» mener loven «oppføring, riving, endring, herunder fasadeendringer, endret bruk og andre tiltak knyttet til bygninger, konstruksjoner og anlegg».
Riktig planlegging og gjennomføring av byggeprosjekter er forankret i det som heter plan og bygningsloven.
Lovens formål
For deg som tømrer er det derfor viktig å vite om det du skal bygge, er meldepliktig, og hvordan du kan finne ut av det. Det er grunnen til at du som fagmann skal vite at det finnes en lov som regulerer nettopp dette.
Plan og bygningsloven bestemmer nemlig hvordan landets arealer skal brukes og reguleres. Arealplanlegging er viktig for at arealene i Norge skal bli brukt på en effektiv og rasjonell måte. Byggesaksregler inneholder bestemmelser om ansvarsforhold og søknader. Disse reglene har til hensikt å sikre at tiltak blir utført sikkert, forsvarlig og i samsvar med de til enhver tid gjeldende krav.
En oversikt over hvordan plan- og bygningsloven er bygd opp.
STAT
– Nasjonale forventninger til regional og kommunal planlegging
– Statlige planretningslinjer
– Statlige planbestemmelser
– Statlige arealplaner
– Forskrifter, rundskriv osv.
FYLKE
– Regional planstrategi
– Regional plan
– Regional delplan
– Regionale planbestemmelser
– Interkommunalt
plansamarbeid
KOMMUNE
– Kommunal planstrategi
– Kommuneplan
– samfunnsdel med handlingsprogram
– arealdel
– Kommunedelplan
– Områdereguleringsplan
– Detaljreguleringsplan
Plan og bygningsloven § 1-1. Lovens formål Loven skal fremme bærekraftig utvikling til beste for den enkelte, samfunnet og framtidige generasjoner. Planlegging etter loven skal bidra til å samordne statlige, regionale og kommunale oppgaver og gi grunnlag for vedtak om bruk og vern av ressurser. Byggesaksbehandling etter loven skal sikre at tiltak blir i samsvar med lov, forskrift og planvedtak. Det enkelte tiltak skal utføres forsvarlig. Planlegging og vedtak skal sikre åpenhet, forutsigbarhet og medvirkning for alle berørte interesser og myndigheter. Det skal legges vekt på langsiktige løsninger, og konsekvenser for miljø og samfunn skal beskrives. Prinsippet om universell utforming skal ivaretas i planleggingen og kravene til det enkelte byggetiltak. Det samme gjelder hensynet til barn og unges oppvekstvilkår og estetisk utforming av omgivelsene. For boliger skal prinsippet om universell utforming ivaretas gjennom krav til tilgjengelighet.1
1 https://lovdata.no/lov/2008062771
Hvis det skal settes inn et vindu på en vegg hvor det ikke er vindu fra før, må det søkes om godkjenning til kommunen. Naboer har rett til å mene om det passer, men hvis vinduet plasseres i henhold til reguleringsplanen og bestemmelser gjort av kommunen, kan ikke naboer få medhold i sin klage.
Loven stiller også enkelte materielle krav til byggverk og gir hjemmel til noe som heter Byggeteknisk forskrift som inneholder ytterligere krav. Loven gjelder alle typer aktiviteter og virksomheter knyttet til fast eiendom. Den gjelder for hele landet og for alle tiltak
Det er kommunens byggesaksavdeling som skal ha søknadene. Kommunen kan ha egne lokale regler som bestemmer hvor mye en eiendom kan bygges ut, og kan ha egne lokale regler for eksempelvis hvilke typer takvinkler, materialvalg og høyder som tillates. Dette kalles lokale reguleringsplaner.
Eksempel på et hyttefelt hvor den lokale reguleringsplanen har bestemt farge på veggene, takvinkler og type taktekking. Her ser vi hytter ved innsjøen Skardfoss, mellom Møsvatn og Rjukan, Tinn. Vestfold og Telemark, i fylket Telemark og Vestfold.
En entreprenør, arkitekt, håndverksbedrift eller selvbygger kan sende inn byggesøknader til kommunen for byggearbeidet som skal gjennomføres.
U-verdi, U (W/(m2K)), eller varmegjennomgangskoeffisient er et standardisert mål på hvor lett en bygningsdel slipper gjennom varme.
U-verdien for en bygningsdel forteller hvor mye varme som strømmer gjennom et areal på 1 m2 per tidsenhet og per grad temperaturforskjell mellom omgivelsene på hver side av bygningsdelen. Varmestrøm per tidsenhet måles i watt (W) og temperaturforskjellen måles i kelvin (1 K = 1 °C).
Universell utforming og uteområder som er tilrettelagt for personer med funksjonsnedsettelser, også fungerer godt for alle andre.
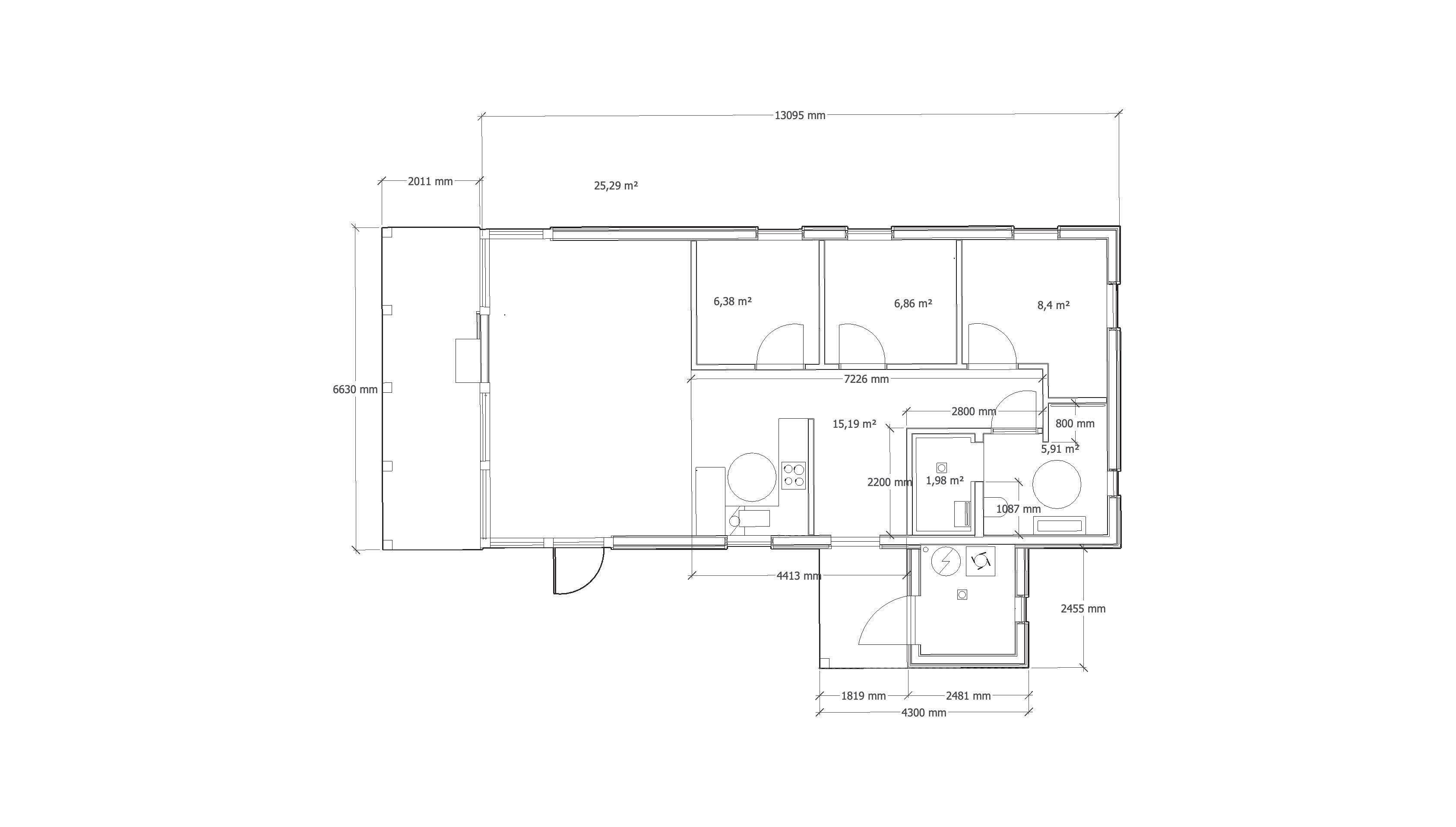
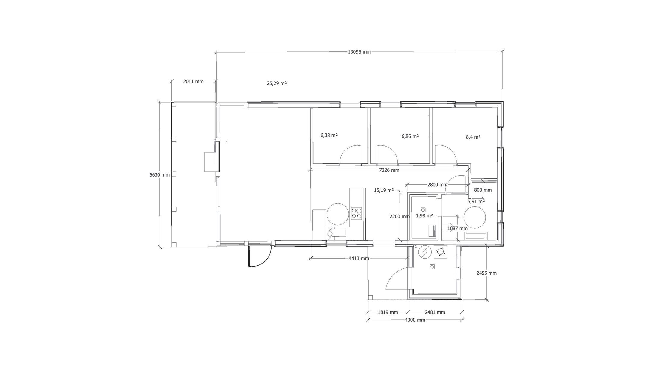
Her ser du et eksempel på en mål satt plantegning. Den gir deg en god oversikt over hvordan byggets areal er disponert. For eksempel kan du se hvilken vei dørene skal åpnes og hvor vinduer er plassert. Plantegnin gen gir også viktig informasjon om byggets universelle utforming. Er du i stand til å se hvor det er avmerket for funksjonell bruk av rullestol?
Denne forskriften omtales ofte som Teknisk forskrift eller TEK Forskriften beskrives med et tall som sier hvilket år den ble vedtatt, for eksempel TEK 17 som ble tatt i bruk 2017. Forskriftens hensikt er å sikre at alle tiltak planlegges, prosjekteres og utføres ut fra hensyn til god kvalitet og utforming. Den skal blant annet sikre at tekniske krav til HMS og energi oppfylles.
Teknisk forskrift er en mer konkret, detaljert utdypende og utfyllende beskrivelse av bestemmelsene i plan og bygningsloven.
Forskriften blir fornyet med noen års mellomrom. Kravene i den tekniske forskriften kan for eksempel bli endret som en konsekvens av nye forskningsresultater eller av annen kunnskap om energisparing og generell utforming.
Eksempel på krav i Teknisk forskrift:
→ Varmeisolasjon i gulv, yttervegger og tak skal ha en minste Uverdi. Denne verdien er bestemt av Teknisk forskrift.
→ Universell utforming er også bestemt fra TEK. I offentlige bygg skal det være tilpasset for funksjonshemmede, for eksempel brukere av rullestol og synshemmede.
I nybygg er det krav om å legge til rette for funksjonshemmede.
Her ser du et eksempel på hjelpelinjer som er montert på gulvet, for å gjøre det enklere for blinde og svaksynte å ta seg trygt frem.
Norsk Standard forkortes med bokstavene NS og er ikke et lovverk, men regler og bestemmelser for et produkt, en tjeneste eller en arbeidsprosess som fastsettes av Standard Norge. Det betyr i praksis at det ikke er lovbestemt å følge standardene. Det er altså frivillig om man ønsker å bruke standardene så sant det ikke er henvist til dem i lover og forskrifter eller kontrakter. Derimot vil det være fornuftig og riktig å bruke aktuelle standarder for å kvalitetssikre både avtaler og arbeidet som skal utføres, slik at det ikke blir dårligere enn den kvaliteten det henvises til, som altså kan forstås som en minimumskvalitet. Det er ingenting som sier at man ikke kan bygge med en høyere kvalitet enn det det er henvist til.
Alle norske standarder har en identifikasjon som består av en bokstavkode og et tall.
Bokstavkoden forteller hvordan standarden er utviklet
NS – Standard som er utviklet i Norge
NS-EN – Standard som er utviklet i Europa (CEN, European Committee for Standardization) og deretter fastsatt som Norsk Standard
NS-merke – dette er en varemerkebeskyttet merking som brukes for å vise at et gitt produkt er produsert i samsvar med Norsk Standard.
NS-merking kan kun benyttes når det er vist til en slik ordning i den aktuelle standarden.
NS-EN ISO – Standard som er utviklet internasjonalt (ISO, International Organization for Standardization) og deretter fastsatt som europeiske standard (CEN). Den kan også være utviklet parallelt i CEN og ISO og deretter fastsatt som Norsk Standard
NS-EN ISO/IEC – Standard som er utviklet internasjonalt (i samarbeid mellom ISO og IEC, International Electrotechnical Commission) og deretter fastsatt som europeisk standard (CEN). Den kan også være utviklet parallelt i CEN og ISO/IEC og deretter fastsatt som Norsk Standard
NS-INSTA (Internordisk Standardiseringssamarbeid) –Standard som er utviklet i et nordisk samarbeid og deretter fastsatt som Norsk Standard
NS-ISO – Standard som er utviklet internasjonalt (ISO), og som Norge har valgt å fastsette som Norsk Standard
I Norge har vi noen standardmål når det gjelder dører. Målene på dører og vinduer oppgis alltid med bredde x høyde. For eksempel: 90 mm x 210 mm.
Eksempel på en standard
Når vi bygger hus, bruker vi mange standarder. Standarder bestemmer alt fra kontrakter, dimensjoner og størrelser på materialer. Eksempelvis produseres dører etter standardstørrelser. Dette gir store besparelser fordi det gjør det enklere for tømreren å vite hvilke bredder og høyder som kan kjøpes på byggevarehandelen.
Norske standarder og løsningene til Byggforskserien fra SINTEF er nyttig dokumentasjon når materialer og arbeid skal dokumenteres. Det vi tømrere skal gi kunden, er trygghet på at tjenesten og kvaliteten er god.
Byggforskserien ble etablert i 1958 og er nå en del av SINTEF Community.
Byggforskserien fra SINTEF
Byggforskserien viser dokumenterte løsninger og anbefalinger for prosjektering, utførelse og vedlikehold av bygninger. Løsningene i Byggforskserien er forsket på og er godt dokumentert. Løsningene er godt utarbeidet og kan derfor brukes over hele landet, og de oppfyller kravene i Byggteknisk forskrift (TEK). På noen områder anbefaler Byggforskserien løsninger som er bedre enn minstekravene i lov og forskrifter. Det er ikke «forbudt» å bruke andre løsninger enn de som er vist
i serien, men da må man selv dokumentere at løsningene oppfyller lov og forskriftskrav.
Ved å bruke denne kan vi være trygge på at det vi bygger, er en god og sikker løsning. Mange tømrerfirmaer og skoler bruker Byggforskserien aktivt og abonnerer på serien for å få oppdaterte løsninger til enhver tid.
Alle typer prosjekter må i større eller mindre grad planlegges. Det er viktig å ha fokus på god struktur og orden. Gode rutiner for planlegging kommer med erfaring, men det finnes verktøy som kan hjelpe oss å strukturere arbeidet. Planlegging innenfor tømrerfaget innebærer å ha verktøy og materialer klart, og ha et overblikk over hvilke arbeidsoppgaver vi har i vente. Når vi jobber sammen med andre, er det viktig å gi alle muligheten til å komme med forslag på løsninger. Dette betyr at du skal ha gode evner til å lytte til andre og legge til rette for dem du arbeider sammen med. Det betyr at i tillegg til å planlegge eget arbeid skal du være i stand til å kontrollere helheten av prosjektet med andre deltakere.
En fremdriftsplan forteller oss hva som skal gjøres i løpet av en bestemt tid. Den hjelper oss med å planlegge når materialer skal være på plass, og viser oss når ulike håndverkere skal jobbe i prosjektet. Uansett hvor stort eller lite prosjektet er, er det viktig å ha en plan, slik at det er lettere å koordinere mellom ulike fagpersoner.
På neste side ser du et eksempel på hvordan en fremdriftsplan kan se ut:
Denne planen beskriver fremdriften på et nytt hus som skal bygges, og sier noe om de sentrale oppgavene som skal gjøres. Denne kan vi godt kalle en prosjektplan eller helhetsplan. For at en slik plan skal kunne fungere slik den er ment, må det lages delplaner. Slike planer kan være periodeplan, månedsplan, ukeplan eller noe så spesifikt som en dagsplan.
Du som tømrer vil ha stor nytte av at du er god til å planlegge. Du minsker faren for stress som følge av at du får dårlig tid.
Fremdriftsplan Ny Bolig
Vindtetting
Takstoler
Utvendig kledning
Isolering
Taktekking
Innvendig kledning
Elektriker
Innervegger
Fremdriftsplanen viser når ulike arbeidsoppgaver skal gjøres i et prosjekt. Uansett størrelse på prosjektet bør det lages en slik plan.
Prosjekt: Ny Bolig Navn:_______________________ Dato:______
Ref. Arbeidsoppgave Mandag Tirdag Onsdag Torsdag Fredag
Bygge yttervegg
Montere vindtett
Sløyfer og lekter
Montere Vinduer
Tetting med tape
Musebånd
Avfallshåndtering
Stillasbygging
Her er et eksempel på hvordan en ukeplan kan se ut.
En god plan gir deg og dine kollegaer en ryddig oversikt av hva som skal gjøres, og når ulike arbeidsoppgaver skal være ferdige. Fremdriftsplanen hjelper deg også med å koordinere når materialer må bestilles, hvilke verktøy du trenger, og om det er behov for stillas. Denne jobben er omfattende, og den vil kreve
mulig, er det viktig at trematerialer og andre byggevarer kommer
Trematerialer som leveres til byggeplassen.En material-liste vil sørge for god kontroll ved innkjøp av materiale. Trevirke bestilles i løpemeter eller kvadratmeter. Andre byggevarer omtales som stykk.
Evnen til å koordinere og planlegge innkjøp av materialer kommer selvfølgelig med erfaring. Men her er noen nyttige huskepunkter:
→ Tilrettelegge for å motta og lagre varene forsvarlig.
→ Beregne i god tid i forveien, og følge fremdriftsplanen.
→ Tenke økonomisk og bærekraftig, og unngå mange små leveringer.
En tømrerbedrift har ofte en avtale med en byggevarehandel, kalt proffkundeavtale. Det er ikke unormalt å ha avtaler med en eller flere leverandører av materialer og verktøy. Et proffkontor skal bistå med dokumentasjon av produkter og med beregninger av mengde og styrke og levere sertifiserte materialer.
Ved å velge en god og profesjonell leverandør fremstår du og ditt firma som en seriøs aktør innen byggebransjen.
Verktøy- og utstyrsliste for svenneprøve
Kandidatens navn: Oppstart:
Leder i prøvenemnda: Prøvested:
Når et arbeid er ferdig, er det viktig å overlevere riktig dokumentasjon på arbeidet. Ved nybygg og rehabilitering skal man gi kunden vedlikeholdsbeskrivelse av produkter som sluttkunden bruker.
Eksempel
Hvis du har lagt et nytt parkettgulv, så skal kunden vite hvordan det skal rengjøres. Hvis kunden for eksempel vasker med et såpemiddel som ikke skal benyttes, kan man ikke klage på at gulvet er dårlig, eller på kvaliteten av arbeidet som tømreren har levert.
FDVdokumentasjon er en sikkerhet for kunden og deg som utførende tømrer. Dokumentasjonen skal sikre at drift og vedlikehold lett kan oppsøkes ved overlevering av det nye bygget. Alle håndverksgruppene skal lage og overlevere beskrivelser og sanlegg. Alt skal oversendes til ansvarlig søker av prosjektet.
En byggdrifter utfører vedlikehold og kontroll ut fra FDV-dokumentasjonen.
Når du skal overlevere et nybygg eller har en utført håndverktjeneste, er det viktig at det du leverer fra deg, er et godt produkt. For å unngå feil eller mangler vil et kontrollskjema være et godt hjelpemiddel. Det finnes gode digitale løsninger for dette. Ved å bruke slike kvalitetskontrollskjemaer vil faren for feil, mangler og svinn av materialer reduseres.
Når arbeid utføres, og særlig der bygningsdeler blir skjult, er det smart å bruke sjekklister. Dette er punkter som du huker av etter hvert som du utfører arbeidet.
Digitalt KS-system på smarttelefon vil bidra til å effektivisere arbeidshverdagen.
Digitale verktøy kan være så mye. Det kan for eksempel være en PC, en mobiltelefon, et nettbrett eller et verktøy som en lasermåler. Slike enheter krever naturligvis riktig programvare.
Et naturlig spørsmål vil være hvilken nytte du som tømrer får ved bruk av denne typen verktøy.
Du kan fint gjøre hverdagen på byggeplassen forutsigbar og effektiv uten å bruke digital teknologi. Men fordelen med digitale verktøy vil være at det gir deg enda flere muligheter til å jobbe effektivt, med høyere kvalitet og ikke minst sikrere.
Det er mange programmer og digitale tjenester som kan bidra til å effektivisere planlegging, vise tegninger, sjekklister og føre avvik
Det har vært en enorm utvikling i bruken av digitale verktøy i byggebransjen. En viktig faktor er at det vil føre til færre feil, spesielt i prosjekteringen. Om du ser dette i et større perspektiv, gjelder det ikke bare deg og din byggeplass, men hele bransjen. Om du ser det i et enda større perspektiv, vil du oppleve at digitaliseringen gjør bransjen mer økonomisk bærekraftig og mer miljøvennlig. Resultatet er at alle i byggebransjen er med og bygger et mer miljøvennlig og bærekraftig samfunn.
Ulike tjenester tilbyr digitale løsninger hvor fremdriftsplan, sjekklister og bestillingsskjemaer er i samme program. Noen leverer også tjenester gjennom en app slik at du som er ute på en byggeplass, enkelt kan hente ut informasjon og legge inn informasjon.
Du skriver inn timer og det du har utført på hvert enkelt prosjekt, noe som gir bedriften et godt grunnlag for lønn og
fakturering. Det vil være enkelt for deg å sjekke ut og inn av byggeplasser, og det er i dag et offentlig krav at det foreligger digitale mannskapslister.
For deg som en kvalitetsbevisst tømrer er det viktig med ryddighet, og da er det praktisk å kunne logge uttak og bruk av både verktøy og materiell. Det er også praktisk å ha tilgang til alle sjekklister slik at de kan fylles ut på stedet og sendes inn kontinuerlig. Tilgang til oppdaterte tegninger og beskrivelser på et slikt medbrakt digitalt verktøy vil oppleves enkelt og trygt samtidig, som det er effektivt og bærekraftig. Det blir færre misforståelser og feil.
Informasjon som sendes inn fra en slik app, havner i et skybasert system som gjør at prosjektledere og andre i administrasjonen kan hente ut rapporter og grunnlag for både fremdrift, økonomi, lønn og fakturering.
Alt handler i grunnen om å gjennomføre prosjekter i henhold til krav om kvalitet, tid og til rett økonomi. For å kunne gjennomføre dette er man avhengig av riktig og oppdatert informasjon.
Du kan konkludere med at slik det var tidligere, kom denne informasjonen inn altfor sent og tok for lang tid å sammenfatte. Det førte til at det ble tatt gale beslutninger, og at beslutninger ble tatt for sent. Resultatet er at vi ved hjelp av dagens moderne systemer kan skape gode, trygge og sikre arbeidsplasser.
I denne boka vil du se mange ulike figurer og tegninger. For å lære hva som blir forklart, og se hvordan konstruksjoner er bygd, må du tyde og forstå tegninger.
Tegninger er en stor del av tømrerfaget, for de gir oss beskrivelser av hvordan huset skal se ut når det er ferdig.
Fasadetegninger viser hvordan huset skal se ut utvendig, høyder, antall etasjer og plassering av vinduer og dører.
Med en snitt-tegning ser vi inn i konstruksjonen. Hvis vi ser en snitttegning av en hel etasje, kan vi tyde høyden på veggene og plasseringen av bæringer.
Plantegninger viser rominndelinger sett ovenfra. Her ser vi hvor bærevegger og lettvegger skal stå, og hvor dørene skal plasseres.
Tegninger gir informasjon til alle håndverksgruppene som skal bygge på samme prosjekt. Vi skal tyde hvor rør og elektriske apparater og større installasjoner skal plasseres.
En plantegning viser inndelingen av lette og bærende vegger, samt ulike installasjoner som vask og toalett.
Disse figurene beskriver fra venstre varmtvannsbereder, vaskemaskin, oppvaskmaskin, platetopp, stekeovn og kjøleskap.
boligblokker og industribygg. Tegningene viser alle materialer og komponenter i bygget.
BIM er ment som kjernen i en samarbeidsmodell mellom de forskjellige yrkesutøvere, som for eksempel tømrere, elektrikere og rørleggere, samt byggdrifter og offentlige myndigheter både under selve byggeprosessen og senere gjennom hele bygningens levetid. Til og med ved eventuell rivning og gjenvinning av materialer vil BIM bidra til effektivisering.
BIM kan leses på ulike digitale verktøy. Her ser vi en som ser på 3D-tegning på et nettbrett.
Alle håndverksgruppene har tilgang til programmet ved å bruke en BIMkiosk. Men hvis du kun skal lese av enkle detaljer, kan du bruke mobiltelefon eller nettbrett.
Som en del av tømrerfaget må vi forklare og skissere enkle tekniske løsninger. For å vise hva vi skal konstruere, er det mest hensiktsmessig å bruke detaljerte skisser.
Med snitt-tegninger ser vi inn i konstruksjonen. Et snitt gir oss et detaljert bilde av alle delene sett fra ulike vinkler.
Plantegninger er å se ovenfra. Vi bruker ofte plantegninger for å vise inndeling av rom og vegger, samt bæring og plassering av skorstein og trapper.
Slik kan en BIM-kiosk se ut. Det er mulig for alle arbeidere på prosjektet å benytte denne.Modellering i BIM som viser bygnin gen i 3D.
Dette læreverket dekker den nye læreplanen for tømrerfaget vg2 og vg3 etter fagfornyelsen. Tømrerboka tar sikte på å gi eleven og læreren en god innføring i faget og skape forståelse for tømrerfagets kompleksitet, uten å virke overveldende. Læreverket består av en trykt bok samt nettressurs.
Tømrerboka dekker temaene konstruksjoner og klimaskall, vinduer, dører og innvendig arbeid, samt materialegenskaper varmeisolering og tetting. Boka dekker også kjernelementene i læreplanen grundig og de tverrfaglige temaene er godt belyste og innarbeidet i fagteksten. Fagstoffet er rikt illustrert og det er lagt vekt på å gi gode eksempler gjennom bilder og figurer.
Lars-Christian Tryger Danielsen har svennebrev i tømrerfaget og er utdannet yrkesfaglærer ved OsloMet. Til daglig jobber han ved Bjertnes videregående skole i Nittedal. Tryger Danielsen har bred erfaring fra tømrerbransjen.
Lars Einar Falao har mesterbrev og 25 års praktisk erfaring i tømrerfaget. Han har en mastergrad i yrkespedagogikk frå OsloMet og har 20 års erfaring som yrkesfaglærer. Til daglig jobber han som yrkesfaglærer ved Nesbru videregående skole og som lektor ved yrkesfaglærerutdanningen på OsloMet.
Begge forfatterne jobber ut ifra en praktisk pedagogisk tilnærming og brenner for å skape læringsglede hos elevene, noe denne boka bærer preg av.
ISBN 978-82-11-04580-5