Chesterland News 10-23-2024

Page 1


Halloween Trick or Treat

Residents wishing to have their homes visited are asked to leave a porch or outside light on. Children are asked to stop only at homes with lights on.

Chester Twp.: Oct. 31, 6-8 p.m.

Russell Twp.: Oct. 31, 6-8 p.m.

Obituaries pages 10

Police Blotter page 11

Classifieds page 12

SUBMITTED

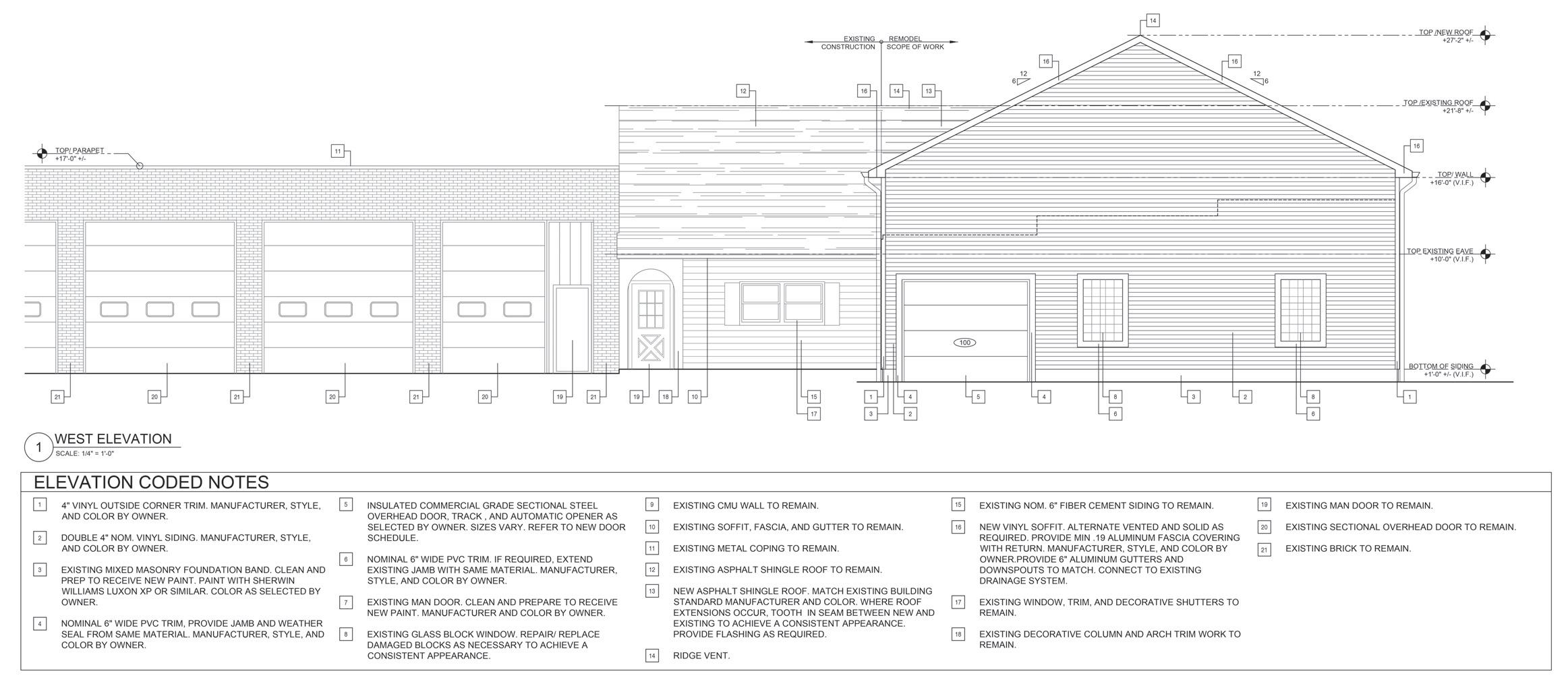
The bid for the new roof and renovation of the Chester Township Road Department garage was not approved at the township trustees meeting Oct. 17.

High Bid Delays Garage Project

The renovation of the Chester Township road garage was put on hold during a special meeting Oct. 17, said township Trustee Ken Radtke.

Chester Township Trustees

took no action on the single bid of about $548,000 from Martini Construction Company of Cleveland because it was “significantly higher” than the estimate they received in 2023 of about $300,000, Radtke said in a phone interview Oct. 18. Trustees advertised for bids to replace the flat roof of the existing

garage with a trussed roof, double the width of the bays and make electrical changes to the facility at 12701 Chillicothe Road near the town hall, he said.

The dimensions of the building won’t change, he said.

In other business, trustees created

See Garage • Page 8

Moreno Stops in Chester Township

ALLISON WILSON/KMG

U.S. Senate candidate Bernie Moreno (R-Westlake) addressed constituents gathered at the Bessie Benner Metzenbaum Center in Chester Township, Oct. 17, encouraging the crowd to get out and vote as soon as possible. Moreno is challenging incumbent U.S. Senator Sherrod Brown in the Nov. 5 general election.

Town Crier

Trunk or Treat

Oct. 23, 5:30 p.m.

Geauga County Sherriff’s Office will host its annual Trunk or Treat at 12450 Merritt Road, Chardon. The event is free.

To ensure every child leaves with a full bag of treats, candy donations for the event may be dropped off in the lobby during normal business hours. For more information, call Jackie Tryon 440-279-2070.

Food Pantry Open

Oct. 25, 10 a.m. to noon

The food pantry at the Chester Christian Center church is open to anyone in the community in need of food. One does not need to be a member of the church to attend.

The church is located at 11815 Chillicothe Road in Chester Township.

Free Community Dinner

Oct. 25, 5-6:30 p.m.

Mayfield United Methodist Church is hosting dinner at the church located at 7747 Mayfield Road in Chester Township. Carryout is available.

Tru Community Info Sessions

Oct. 26, 10 a.m.

Oct. 30, 7:30 p.m.

Tru Community, a new local non-profit with a mission to better the lives of uniquely-abled adults, is hosting day club information sessions. Anyone with an adult family member with special needs is invited to attend one of the day club sessions. Register at www.trucommunity.org or call 330-5778828 with questions.

Trick or Treat Street

Oct. 26, 5-7 p.m.

West Geauga Recreation Council (WGRC) is hosting its fourth annual Trick or Treat Street at the WGRC campgrounds, 8611 Cedar Road, Chester Township. The free event is open to the public. For information, visit wgrc.org.

Century Village Speaker Series

Oct. 27, 2-4 p.m.

Step into history as Carane Ladd, Linda Retych and Tina Nicolo present “Mourning

Clothes & Customs” at Century Village Auburn Church, 14653 East Park St., Burton. Cost is $5 per person. Children 6 and under are free. Call 440-834-1492 for information.

Sign Pickup

The Geauga County Republican Women’s Club will have signs available for pickup every Saturday and Sunday through Nov. 3 from 9 a.m. to 3 p.m. at 400 Water St, Chardon. For more information, contact Joanie Windnagel at 440-339-6894.

Community

Night

Oct. 29, 5 p.m.

Community Church of Chesterland, 11984 Caves Road, is hosting a free community night, which includes a chili dinner, crafts, games and a special screening of the documentary “The Brainwashing of My Dad” at 7:30 p.m. The event is free and open to the public; donations will be accepted. For information, call 440-729-7898.

Free Community Lunch

Oct. 30, 11 a.m. to 1 p.m.

All are welcome to attend a free community lunch presented by the Women’s League at St. Mark Lutheran Church, 11900 Chillicothe Road, Chester Township.

West Geauga Kiwanis Meetings

Tuesdays, 6:45 p.m.

West Geauga Kiwanis meets every Tuesday at the Chesterland Baptist Church, 12670 Chillicothe Road. Join for a free dinner and learn how Kiwanis serves local students and the community. Learn more at wgkiwanis.org.

LCGS Meeting

Oct. 31, 10 a.m.

The Lake County Genealogical Society (LCGS) will meet via Zoom. Following a brief business meeting, guest speaker Mary Huey, first vice president of LCGS, will present "Sharing Our Family History - An Idea Swap". Visit www.lcgsohio.org for more information and the invitation to the Zoom meeting. One does not need to be a member to attend the monthly meeting.

See Town Crier • Page 5

8389 Mayfield Road, Suite B5 Chesterland, Ohio 44026

Phone

FAX 440-729-8240 ads@karlovecmedia.com editor@karlovecmedia.com

Cassandra C. Shofar, News Editor Jamie A. Ward, Sports Editor Ann Wishart, Staff Reporter Allison Wilson, Staff Reporter Amy Patterson, Staff Reporter Regina Swinerton, Classifieds

Jeffrey B. Karlovec, Publisher John D. Karlovec, Editor Deadlines

• Editorial submissions are printed as space is available, at the publisher’s discretion, and may be edited for length, clarity and grammar. All submissions are due by noon on the Friday prior to the Wednesday publication date for consideration for that edition.

• Email all editorial submissions to editor@karlovecmedia.com.

• The space reservation deadline for paid advertisements in that week’s Chesterland News is 4 p.m. on the Thursday prior to publication. Late ads may be accepted at the discretion of management.

• Email advertising requests and questions to ads@karlovecmedia.com.

Circulation

• The Chesterland News is distributed for free to homes and businesses in Chester Township. It is mailed through the U.S. Postal Service.

• Copies are also available at rack locations within Chester township.

• Produced by the Chesterland News, LLC.

• In case of error, we will re-print that portion of an advertisement that was in error. Notification of error should be made within three days of published date.

• The Chesterland News, LLC assumes no responsibility of error contained in any pre-printed material delivered with the paper as an insertion therein.

• The Chesterland News, LLC reserves the right to reject or revise any advertisement or news item for publication. Letters to the Editor reflect the opinion of those signing them and not necessarily that of either the Chesterland News, LLC, its affiliates or its advertisers. All letters submitted are subject to editing, and none will be returned.

• The opinions and representations contained in advertisements are those of the advertiser. They have not been verified by the Chesterland News, LLC, nor should they be construed to represent the position or viewpoint of this newspaper or its publisher.

• Under no circumstances will any record filed in the county be suppressed at any time for anybody, except by order of court.

Help Support the Chesterland News and Local Journalism

The Chesterland News and newspaper journalism are critically important and essential in protecting the vibrant community in which we live.

The Chesterland News stitches the communities we serve together. From news to in-depth articles on topics that deeply affect the community, the Chesterland News strives to bring you complete coverage.

The cost of publishing this newspaper — editorial, printing, mailing and other production costs — is accomplished primarily through the support of generous advertisers. These advertisers are community leaders who understand the value of a stronglocal newspaper. We appreciate each and every one of them.

To help us continue to invest in the community, we invite readers to show their support through a voluntary newspaper

subscription. If you value strong community journalism, please consider helping us with a voluntary subscription. The amount is entirely up to you. Simply complete the subscription form in this edition or call 440729-7667 ext. 500.

For any donation of $45 or more, we’ll even toss in a free gift in appreciation:

1. FREE one-year online-only subscription to the Geauga County Maple Leaf, a six-time winner of Ohio Newspaper of theYear, OR

2. Five FREE 25-word classified ads over the next year.

As always, we greatly appreciate the support you give us, whether it’s financially or simply by continuing to be a loyal reader of the Chesterland News.

Clay Karlovec, Sales Representative Clinton Sestak, Sales Representative
Pamela J. Molnar, Production Supervisor
Karen S. Kaplan, Graphic Design Emma McGuire, Paginator

The Turkey Bowl, a West G Thanksgiving Tradition

The smell of pumpkin and cranberry is in the air which means one thing — the greatest of sports traditions, the West G Varsity Hockey Turkey Bowl, is back for its 23rd anniversary!

On Thanksgiving morning, the puck will drop at 10 a.m. sharp at Gilmour Rink. Doors open at 9 a.m..

This year’s match is even more exciting as a former West Geauga hockey star, Travis Wright, is now the head coach of the varsity team. The much-improved undergrads have confidently predicted a comeback win against the aging alumni!

Keeping with tradition, the ceremonial first puck will be dropped by West G principal, Ryan Patti, who was a star member

on the inaugural West G Hockey team, two decades ago!

Charlie Butters, longtime “voice of the Wolverines” will be on the microphone and Dick Maynard, a co-founder of the team and now in his mid-eighties, is hinting he may strap on his skates and take a shift or two!

Finally, in what has become a holiday tradition, former team mom, Linda Campbell, will belt out the National Anthem to kick the festivities off!

For those interested in playing, please reach out to Wayne Walters 4400-954-2479 or Bob Goehrke 440-759-0683.

For anyone interested in joining the West G Hockey team, please contact Coach Wright at 330-696-2113.

Geauga Park District

For more information and registration, contact the park district at 440-286-9516 or visit www.geaugaparkdistrict.org.

Holly Days Artisan Boutique

Nov. 1, 5-8 p.m.

Nov. 2, 10 a.m. to 4 p.m.

Browse a premier selection of nature-themed holiday decor and gifts for sale by regional artisans – the perfect opportunity to find unique, handmade items for everyone on one’s list at the West Woods Nature Center in Russell Township.

Forty vendors will be available to discover, including some under tents outside, so dress for the weather. The Mistletoe Market also features handmade gifts created by young artisans. Participating artisans are now listed on the park district website.

Top 10 Trails Hikes

Naturalists will be guiding monthly tours of the people’s choice Top 10 Trails.

The winners of Geauga Park District’s Top 10 Trails were unveiled at The Great Geauga County Fair and then posted on the park district website. Naturalists are programming monthly Sunday hikes of all 10, beginning with Headwaters Park’s Eagle Trail on Oct. 27 from 9-10:30 a.m.; The West Woods’ Ansel’s Cave Trail on Nov. 17 from 1-3 p.m.; and Welton’s Gorge’s Gorge Overlook Trail on Dec. 15 from 9-10:30 a.m. Registration is not required.

WG U10 Girls Recreation Soccer Team

SUBMITTED

The West Geauga U10 girls recreation soccer team went undefeated at 14-0 and won the WGRC soccer tournament championship at Eddy’s Fruit Farm. Head coach Rick Leasure wrote: I think this group deserves some recognition! Such a hard working and incredible group of girls!

Town Crier

from page 3

Young of Heart

Nov. 1, 11:30 a.m.

Geauga Young of Heart will meet at St. Anselm Church in Chester Township. Bring a brown bag lunch. Snacks and beverages are provided.

Speaker Ginnie Jescheling will talk about the Lake County fires, buried alive and a sniper on Christmas Eve.

The group will see “Conclave” at noon at the Aurora Atlas Movie Theater on Oct. 29. Then, on Nov. 13, the group is going to the Rivers Casino in Pittsburgh.

For more information on these trips, call Kimber at 440-668-3293 or Kit at 216543-4442.

Bloodmobile

Nov. 4, 12-6 p.m.

American Red Cross will host a blood drive at Geauga West Library, 13455 Chillicothe Road, Chester Township.

Visit RedCrossBlood.org or call 1-800733-2767 to make an appointment.

Gift of the Magi Boutique

Nov. 8 and 9

St. Mark Lutheran Church, 11900 Chillicothe Road in Chester Township, is hosting its annual Gift for the Magi Christmas boutique featuring quality gift items by juried artists and crafters.

The preview party is Friday from 7-8:30 p.m. Admission is $5, adults only. The boutique continues Saturday from 9 a.m. to 4 p.m. with free admission.

Join the Boutique Bounce by also stopping at St. Anselm Church in Chester Township and Old South Church in Kirtland. Pick up a card at the first stop and have it stamped at each show for a chance to win one of three grand prizes.

Call 440-729-1668 for more information or visit stmarkchester.org.

Christmas Boutique

Nov. 9, 9 a.m. to 4 p.m.

St. Anselm Women’s Guild’s annual Christmas Boutique will be held at St. Anselm School, 13013 Chillicothe Road, Chester Township. There will be handcrafted and unique items for holiday shopping as well as a snack bar, bake sale and prize raffle with many great prizes, including Browns tickets. For more information, call Shirley Chambers at 216-832-5158.

WGMB Parking Lot Concerts

Students had extra pep in their step and Wolverine spirit thanks to the West Geauga High School Marching Band who recently visited Westwood, Lindsey and West Geauga Middle schools. Students enjoyed the performance of several songs, including everyone’s favorite, the West G fight song. Elementary students had a chance to bang the drums with the drumline and dance with the Wolverettes. The WGMB did a wonderful job sharing their musical talent.

NHS Halloween Hangout

The West Geauga High School National Honor Society hosts its annual Halloween Hangout on Oct. 30 from 5–7 p.m. at West Geauga High School.

The event features fun games, trick or treating and haunted hallways. It is open to all families in the community to attend. Admission is free. Donations of new socks, gloves, hats, coats and toiletries are encouraged and appreciated.

doubles facts in math, wore double day crowns and ate Double Stuf Oreos.

Congratulations abounded at the Chester Township Trustees Oct. 3 meeting, with two police officers promoted, a new officer hired and a fireman awarded a medal.

The promotions of Andrew Centrackio and Matt Less to sergeants were first on the agenda.

Chester Police Chief Craig Young recalled Centrackio and Less being brought onto the force around the same time.

“These two gentlemen were sworn in together and now tonight, they’re being sworn in as sergeant together, which I think is pretty awesome,” he said.

Young called them the finest officers he’s worked with in his career.

“The character, the integrity, the profes-

Kleinrichert, who hails from Indiana, has two associates degrees and four and a half years in law enforcement experience. He has previously worked in Oak Harbor and the Lorain County Metroparks.

“I really feel like we lucked out when we found Chris,” Young said, noting his past agencies highly recommended him. “Really what gets me going and what got me excited about hiring Chris was his excitement. You know you hit it well and you’re hiring somebody who wants to be in a place when you can judge on

how excited they are to come work for you.”

Chester Chiefs Recognize Police, Fire at Trustees Meeting

who was unaware that the house was on fire,” Shaw recalled.

fighter paramedic Bobby Wolf, who received a medal of valor.

Chester Fire Chief William Shaw began with a reflection on Wolf’s character.

“Whether on-duty or not, firefighters don’t hesitate to stop and help, to jump in, at emergency situations. It’s in our blood to help people, whether we have the tools and equipment we normally work with or not,” he said. “Bobby Wolf is an excellent example of what a firefighter is.”

It was an incident Sept. 5 that ultimately garnered Wolf his award.

“While driving with his family to his daughter’s soccer practice, Bobby noticed a house on fire in Auburn Township. Bobby stopped, evaluated the situation and entered the home, finding a resident on the first floor,

Wolf got the resident to safety and was informed of another resident on the second floor, where the fire was, Shaw continued.

Wolf re-entered the home without protective equipment and went to the second floor, closing the door to the burning room and helping to limit the spread of fire.

When the Auburn Township Fire Department arrived, Wolf assisted in deploying fire hoses.

“Bobby exhibited bravery and courage that exemplifies the fire service, along with his training and experience, to achieve a successful outcome for the two residents,” Shaw said. “We congratulate Bobby Wolf for his actions and bestow upon him the Chester Township Fire Rescue medal of valor for heroic actions.”

Community Meetings

Listed are upcoming public meetings and executive sessions. These meeting notices are NOT legal notices.

Chester Township: Oct. 23, 7 a.m., Board of Trustees, special meeting to discuss zoning inspector update and advertising new position; Oct. 31, 4 p.m., Board of Trustees; Nov. 6, 7 p.m., Zoning Commission; Nov. 12, 7 p.m., Board of Zoning Appeals; Nov. 14, 6:30 p.m., Board of Trustees; Nov. 20, 7 p.m., Zoning Commission; Nov. 28, 6:30 p.m., Board of Trustees. All meetings are held at the Township Hall, 12701 Chillicothe Road, unless otherwise noted.

Holiday Boutique & Tea

Nov. 1, 9 a.m. to 5 p.m. Nov. 2, 9 a.m. to 2 p.m.

Russell Township: Oct. 23, 7 p.m., Zoning Commission; Nov. 7, 2 p.m., Board of Trustees; Nov. 18, 7 p.m., Board of Zoning Appeals; Nov. 20, 4 p.m. – Citizens’ Park District, 7 p.m. – Zoning Commission; Nov. 21, 7 p.m., Board of Trustees. All meetings are held at Russell Town Hall, 14890 Chillicothe Road, unless otherwise noted.

West Geauga BOE: Oct. 28, 6:30 p.m., regular meeting; Nov. 18, 7 p.m., regular meeting. All meetings are held at the BOE Community Room, 8615 Cedar Road, unless otherwise noted.

Chesterland Historical Village

Chesterland Historical Village hosts its annual holiday boutique and tea in the restored 1842 restored Tanner House filled with handcrafted gifts and Christmas decorations. Tea will be served in the parlor all day. The general store will be open and features the potting works of Eric Cogan.

Admission is free. The village is located on the corner of Caves and Mayfield roads in Chester Township.

Garage from page 1

capital project funds inside the township fire, police, road and general funds, as recommended by the Geauga County Auditor’s Office.

Trustees voted to place more than $52,000 in an account in the general fund, more than $138,000 in an account in the road fund, more than $43,000 in an account in the fire fund and more than $43,000 in an account in the police fund, according to the meeting agenda.

During this year’s Geauga County Budget Commission hearings, Auditor Chuck Walder strongly recommended trustees in all townships earmark monies within the four funds for capital improvements.

The commission has been critical of the amounts some townships have been carrying over from one year to another for projects that did not get done. The capital improvements funds should help resolve that ongoing issue, Walder said.

Radtke said the auditor and the Geauga County Prosecutor’s Office helped create the legislation needed for Thursday’s action.

Trustees also discussed how to comply with Ohio House Bill 47 that requires automated external defibrillators be accessible in all schools and parks, Radtke said. Making an AED available for emergency use in the public area would also expose it to vandalism or theft, he said, adding there is one at the town hall.

Kiwanis Helps with North Carolina Disaster Relief

Kiwanis Club of West Geauga is raising money to help the Asheville Kiwanis Club with disaster relief to assist those devastated by the recent hurricane and flooding that destroyed the local area. Help is needed. Please donate to The Asheville Kiwanis Club.

Make checks payable to Asheville Kiwan-

is Club and mail to PO BOX 17623, Asheville, NC 28816. In the memo line, put “Asheville Kiwanis Club disaster relief.”

Kiwanis members are volunteers; 100 percent of the donations will go to help the people in their communities.

Contact Mike Kilroy at 216-402-5341 with any questions.

Chester Commons Plaza Celebrates Halloween

SUBMITTED

More than 70 families stopped by to visit local businesses in Chester Commons Plaza for trick-or-treating fun on Oct. 17. Pictured is a snapshot of trick-or-treaters at the Luczkowski Agency.

Obituaries

Eleanor Mandau

Eleanor Mandau (nee Gleske), age 97, of Russell Township, passed away Oct. 11, 2024, after a short illness.

Eleanor was the beloved wife of the late Leslie Mandau. Devoted mother of Linda, Robert (Madelaine), and Richard (fiancé Carol). Loving grandmother of seven, great-grandmother of 16. Dear sister of Gus Gleske and Lillian Kochis and sister-in-law of Harry Hackett and Gerry Mandau.

Formerly an employee at Great Lakes Cheese.

Eleanor volunteered many years at the Orange Kiwanis Garage Sale.

NOV. 9

Visitation will be held at Gattozzi and Son Funeral Home, 12524 Chillicothe Road, Chester Township, on Thursday, Oct. 17, 2024, from 4-8 p.m.

Funeral service will be held at Valley Lutheran Church, 87 East Orange St., Chagrin Falls, on Friday, Oct. 18, 2024, at 11 a.m., with visitation one hour before the service at the church.

Interment at Riverview Cemetery in Russell Township.

In lieu of flowers, donate to Valley Lutheran Church.

Sandra Lee Stumpf

Sandra Lee Stumpf (nee Fuller), 72, of Chester Township, passed away on Saturday, Oct. 5, 2024, after a long battle with Alzheimer’s disease.

Sandy was born in East Cleveland on Jan. 6, 1952, to Miles and Irene Fuller. She grew up in Eastlake and graduated from Eastlake North High School in 1970.

Upon graduation, Sandy went on to pursue her dream of being a nurse and graduated from Marymount nursing school as a certified LPN. She worked in the Lake Hospital System as a labor and delivery nurse for 34 years.

Upon retirement from the hospital, Sandy became a licensed labor and postpartum doula.

Sandy met the love of her life, Gary Stumpf, in 1977 in a real life “Friends” scenario. What started as a group of friends who lived in the same apartment building eventually became Sandy and Gary dating in the spring of 1978, engaged that June and married April 28, 1979. The newlyweds moved out to Chesterland and raised their family of three children. Sandy found joy in

loving her grandchildren.

Sandy loved to camp and was a Girl Scout leader for 13 years. She was a member of Christ Presbyterian Church for almost 40 years where she served as a deacon, Sunday school and VBS teacher, supported missions including a mission trip to Oaxaca, Mexico, and in recent years volunteered in the food pantry.

Gary and Sandy are pescadores of the Tres Dias Cleveland community.

Sandy will always be remembered for her servant heart and compassion, and her love of taking care of others.

Sandy is survived by her husband of 45 years, Gary Stumpf; their three children, Andrea (Eric) Milnar, Steve (Christine) Stumpf and Jonathan (Michelle) Stumpf; grandchildren, Eli, Maveric, Colton, Xander, Alexa, Lydia, Kaden, and Sullivan; siblings Elaine Littlefield, Terry McLaughlin, Helen McKinney and Dale Banfield; and many nieces, nephews and friends.

She is preceded in death by her parents, Miles Fuller and Irene Tillis; siblings Lola Thompson, Gary Fuller, Micheal Fuller; and nephews Carl McLaughlin and Rusty Thompson.

Services were held at Christ Presbyterian Church, 12419 Chillicothe Road, Chesterland, on Oct. 12, 2024.

In lieu of flowers the family requests that donations be made to Christ Presbyterian Church (Food Pantry in the memo) or the Hospice of the Western Reserve.

Brandi

Brandi was a Rescue Village Ambassador. She was born Aug. 1, 2006, and passed away Oct. 8, 2024.

Brandi visited elementary schools teaching children all about dogs. She spent two weeks at Rescue Village's summer camp with children of families who were suffering from cancer. The children were “teaching” the dogs obedience and how to run the agility course.

She was a member of Therapy Dogs International and a Hillcrest Hospital Volunteer. She worked there 13 years, visiting patients of all kinds. She attended funerals of friends she visited regularly. For this Brandi received TDI’s Blue Ribbon of Remarkable Volunteer Achievement award. The TDI also awarded her "Canine good Citizen."

She will be terribly missed.

Volunteers Needed to Deliver Meals

The Geauga County Department on Aging is in need of Home Delivered Meal drivers in Newbury Township on Fridays. The meal routes start at the West Geauga Center, 8090 Cedar Road in Chester Township.

The Home Delivered Meal program delivers warm, nutritious lunches from 10:45 a.m. to 1 p.m., Monday through Friday, to homebound senior citizens in the community.

Area agencies, organizations, church

groups and individuals 18 years old or older, with a valid driver’s license, may volunteer. Training includes filing department on aging Home Delivered Meal volunteer paperwork and a short orientation about the program. Volunteers can deliver meals on a weekly, bi-weekly, monthly or as needed/substitute basis.

To sign up or for any questions, contact Nathan Gorton at 440-279-2138 or email at NGorton@co.geauga.oh.us.

Police Blotter

The following is a sampling of the calls handled by the Chester Township Police Department Oct. 1-15, 2024.

CITIZEN DISPUTE

Oct. 3

4:11 p.m., West Geauga Plaza Drive. Subjects accounts were closed. Upset bank cannot release the funds yet. Just verbal yelling at this time. Male told bank he will not leave without his money but corporate must release it. Male could be heard yelling in the background. Officers arrived on scene and spoke with male and banker. Male said he did not want to make a statement. Banker said no threats were made, just yelling. Bank requested male to be trespassed.

Oct. 7

8:47 a.m., County Line Road. Worker on scene will not leave. Homeowner has told them he does not want the project finished because they are not doing it right but the worker keeps showing up. Officers on scene. Homeowner stated she no longer wanted assistance and is working it out with business owner. Advised business owner in the future to leave property if told by homeowner. Stated he understood. Cleared without issue.

FOUND PROPERTY

Oct. 4

HARASSMENT

Oct. 5

6:38 p.m., Mayfield Road. Disgruntled customer keeps calling the store. Started yesterday. Male came into store, complained about pizza prices and walked out. Now the male has been calling nonstop. Hanging up quickly after the calls are answered. Roughly the past 20 minutes have gotten progressively worse.

RV PROBLEM

Oct. 12

5:52 p.m., Chillicothe Road. One quad white and one dirt bike, possibly red, riding all over the wetlands and on caller’s property. See report.

THEFT

Oct. 3

8:33 p.m., Opalocka Drive. Cash, frames, pictures, silverware and 20-pound dumbbell. Caller has an idea of who may have taken it. He just returned from vacation today. This was not a burglary. Caller will relay the story to officers when he gets there. See report.

TRAFFIC CRASH

Oct. 12

2:50 p.m., Mayfield Road. Unknown male turned in a found wallet on side of the road.

1:57 p.m., Caves Road. Caller states while she was at Patterson’s she did damage to another car. She left a note with all her information but wanted to speak with an officer. She has since left. See report.

Real Estate Transfers

Following is a list of area real estate transfers for the week of Oct. 7 and Oct. 15-17, 2024, provided as a public service by the Geauga County Auditor’s Office. Transfers may involve the sale of land only.

CHESTER TOWNSHIP

Jerome P. Flesher, 13140 Chillicothe Road, to Jerome A. Flesher, $8,800. (2.51 acres)

RUSSELL TOWNSHIP

Estate of James B. Davis, 14771 Hillbrook

Lane North, to Katie O. and Thomas C. Smith, $627,000. (2.32 acres)

Michael Novak (successor trustee), 7615 Hunters Hollow Trail, to Caroline E. Reider, $525,000. (5.28 acres)

Andrew and Chelsey Line, 8290 Music St., to Michael Gruse Jr. and Rebecca Inwood, $599,000. (8.32 acres)

George G. Head (TOD), 14060 W. Willard Road, to Michael J. and Diane M. Joyce, and Felix and Karen Marie Gruenewald, $266,000. (1.62 acres)

Now Hiring REPORTER

Join our group of weekly paid (a six-time winner of the Ohio News Media Association’s “Newspaper of the Year”) and biweekly TMC circulation community newspapers in GEAUGA COUNTY, OHIO.

We are seeking a full-time reporter to cover a variety of news topics, from school board and council meetings to feature stories and other community news. The ideal candidate should be able to meet deadlines, attend and cover events and meetings. Remote, hybrid and flexible working model available.

We are looking for someone who also possesses the following qualifications:

• A background in English or journalism.

• Experience and Geauga County ties preferred.

• Excellent writing, grammar and spelling skills.

• The ability to spot a news story that is relevant to our readers’ interests.

•A work style that is extremely detail oriented.

• Strong communication skills.

• Self-motivation: The reporter must be able to develop news stories and seek them out, as well as form relationships with news sources in the area and develop stories through these relationships.

This is a full-time position. Salary plus benefits package, including mileage reimbursement.

Please email your resume and examples of your writing for consideration to cassandra@karlovecmedia.com

AUTOS & PARTS

WANTED: Winter Storage for car in Chesterland area. Nov 1-May 1. $300 cash. 440-729-3382.

Snow Tires: (4) 215/60R16 (7.5/32nds depth) on 2013 Malibu alloy wheels. VGC w/caps, sensors. $550. Parkman. 440-548-5801. Also, 36x42 blue tarp, $60. 2008 Nissan Xterra: Nice, MUST SEE, 134k, Winter Ready, Well Maintained. Also, 2002 Harley Davidson Sportster: 10k, Great Shape. MAKE OFFERS 330-8583213.

FOR RENT

Chardon: small, cozy house, 2BR, 1BA, upstairs, attached utility room and single car garage, oil heat, rural setting. $1,100/mo. 440-286-3840.

FOR SALE

Two burial plots at Western Reserve Memorial Gardens with full package: 2 vaults, 2 caskets, dual memorial headstone; $7,400. 440-476-0706.

Full Electric Hospital Bed: rails, mattress and remote. Used for 3 days. ProBasics brand. $200. Call 440-3131411.

Bicycle: Classic English Racer 25.5” frame by famed English frame builder Colin Laing, Campy equipped with Campy tools, 1960’s vintage, like-new condition, really!!! $600. 440-548-2414.

Hitzer Coal Stove, GC, $750. Honda Generator: 5500 watts, $275. 440-636-6370. Also, New Dog House: light gray metal, $95.

Howard Rototiller: 42” wide, for compact tractor. Cat 1 three-point hitch. $1,800. 440-487-2955.

Ladder jacks $50. 12-foot expanding plank $100. Mantis Tiller $200. Hitch Carrier Tray $100. Hand-held electric leaf blower $50. 440-554-5731.

New white triple track storm windows: (7) 30-1/4 x 591/4, $125 each. 440-336-5044.

Oak Dinette Set: 48” round table, 24” leaf, 4 chairs, $350. Oak Dining Room Table: 60” long plus 24” leafs, $200. 440-286-3208.

FIREWOOD for sale: $150 per cord. 440-338-5201.

Classifieds

GARAGE/ESTATE SALES

Inventory Clean-out at Second Hand Treasures. 50% off EVERYthing! Thursday, Friday, Saturday. 9a-5p. 9098 Old St Road, Rt.608, Chardon.

PETS & ANIMALS

Kunekune piglets for sale. Born 7/25. AKKPS registered. Boars and gilts. Call or text 440-223-9023. For Sale: 8 little Banties; $2 each. Wanted: 1 American Rooster. 440-632-1505.

Barn homes needed for semi-feral cats, as their elderly caretaker is being evicted. All cats are being fixed & vaccinated. Rebecca 440-321-2485.

MISCELLANEOUS

FREE facts: vapes are cheaper now and more potent! And flavored to addict young people! Warn them now!

REAL ESTATE

Homes & Land Wanted: any condition or situation! Fast, friendly, local. Serving Geauga and surrounding counties. Text or call Wayne at 330-269-9595.

SERVICES

Albert’s Complete Tree Service: 45+yrs experience! Competent in all aspects of Arboriculture, Forestry and Land Clearing. Also, Firewood, Excavation and Sewer Work. Free Estimates. 440-687-5404.

Licensed Caregiver: will care for elderly or special needs individuals in Geauga County. 440-313-1804.

Joe Eicher doing roofing, siding, remodeling, cleanout houses, we do most anything. Call between 8a-4p, 440-813-4272. No answer, leave message.

Did you know Karlovec Media Group prints business cards? Prices start at only $30 for 500 (B&W, 1-sided, no bleed). Call 440-729-7667 or email ads@karlovecmedia.com.

Fix up your interior space this winter with Ed’s Painting: offering interior painting, plastering, wall paper removal; attic, basement, garage clean-outs. 216-323-6744. free estimate.

Driving for the Amish: will take you to work, school or other rides. Call Debbie 440-228-4760.

WANTED TO BUY

Old fishing tackle wanted: fishing lures (wood or plastic), mouse to bear traps, wooden duck decoys. Call Lee 440-313-8331.

Buying all Stanley Bailey planes. Call Karl at 440-8123392.

4-wheelers, 3-wheelers, dirt bikes, mini-bikes, go-carts, golf carts, gators, farm tractors/equipment, trailers, riding mowers, snowplows. Paying cash. 440-413-3119.

Turn static files into dynamic content formats.

Create a flipbook
Issuu converts static files into: digital portfolios, online yearbooks, online catalogs, digital photo albums and more. Sign up and create your flipbook.