

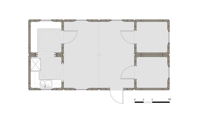
• 1 x 1 Single Shelter
• Power / lighting
• Wall AC / heater
Options
• Automatic Fire Sprinkler (NFPA 13D)
• Drywall+Painted Interior
• Cladding
• Deck / Stair/Ramp
• Solar Panels
• Furnishing / Appliances
• 1.5 x 1 Module Shelter
• Power / lighting
• Drywall+Painted Interior
• Wall AC / heater
Options
• Automatic Fire Sprinkler (NFPA 13D)
• Cladding
• Deck / Stair/Ramp
• Solar Panels
• Furnishing / Appliances
• 1.5 x 1 Module Interim Ensuite Unit
• Bedroom + Bathroom
• Power / lighting
• Drywall Finished Interior
• Wall AC / Heater
Options
• Automatic Fire Sprinkler (NFPA 13D)
• Cladding
• Deck / Stair/Ramp
• Solar Panels
• Furnishing / Appliances
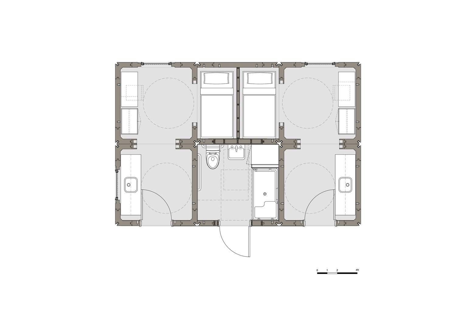
• 1.5 x 1 Module Interim Ensuite Unit
• Bedroom + Bathroom
• Power / lighting
• Drywall Finished Interior
• Wall AC / Heater
Options
• Automatic Fire Sprinkler (NFPA 13D)
• Cladding
• Deck / Stair/Ramp
• Solar Panels
• Furnishing / Appliances
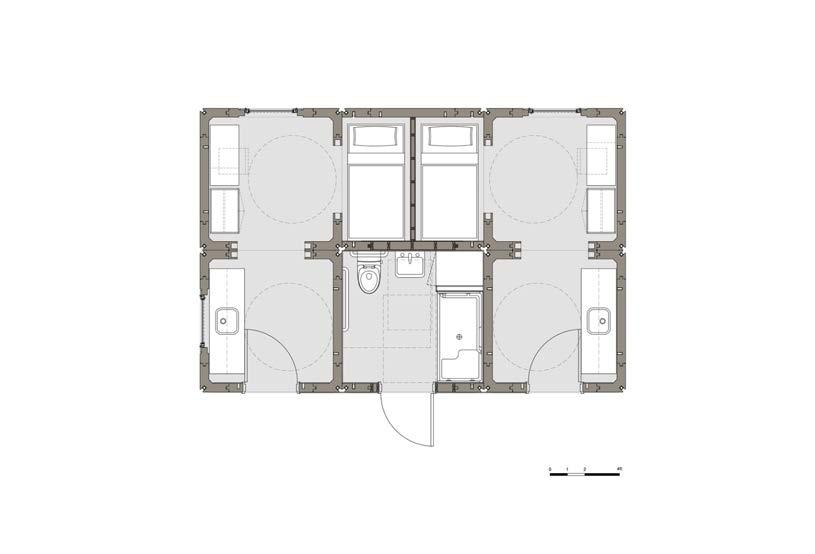
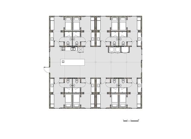
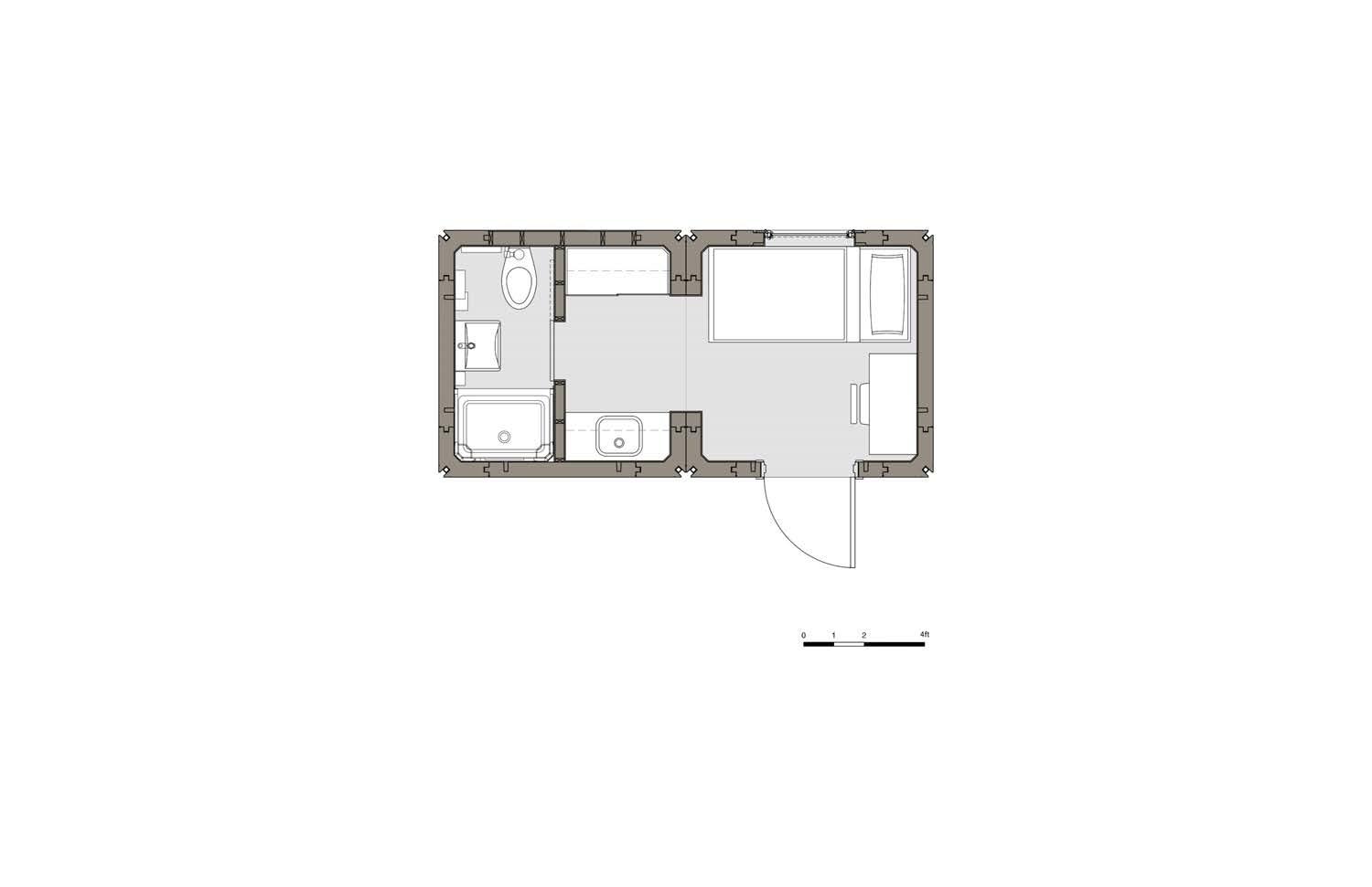
• 2 x 1 Module Interim Ensuite Unit
• Bedroom + Bathroom
• Kitchenette + Closet
• Drywall Finished Interior
• Full MEP System
• Automatic Fire Sprinkler (NFPA 13D)
Options
• Cladding
• Deck / Stair/Ramp
• Solar Panels
• Furnishings / Appliances
• 2 x 1 Module Interim Ensuite Unit
• Bedroom + Bathroom
• Kitchenette + Entry
• Drywall Finished Interior
• Full MEP System
• Automatic Fire Sprinkler (NFPA 13D)
Options
• Cladding
• Deck / Stair/Ramp
• Solar Panels
• Furnishings / Appliances
Efficiency Studio (200 SF/Unit)
• 1.5 x 2- Studio Unit
• Bedroom + Bathroom
• Kitchenette
• Drywall Finished Interior
• Full MEP System
• Automatic Fire Sprinkler (NFPA 13D)
Options
• Cladding
• Deck / Stair/Ramp
• Solar Panels
• Furnishings / Appliances
Efficiency Studio ADA (200 SF/Unit)
• 1.5 x 2- ADA Studio Unit
• Bedroom + Bathroom
• Kitchenette
• Drywall Finished Interior
• Full MEP System
• Automatic Fire Sprinkler (NFPA 13D)
Options
• Cladding
• Deck / Stair/Ramp
• Solar Panels
• Furnishings / Appliances
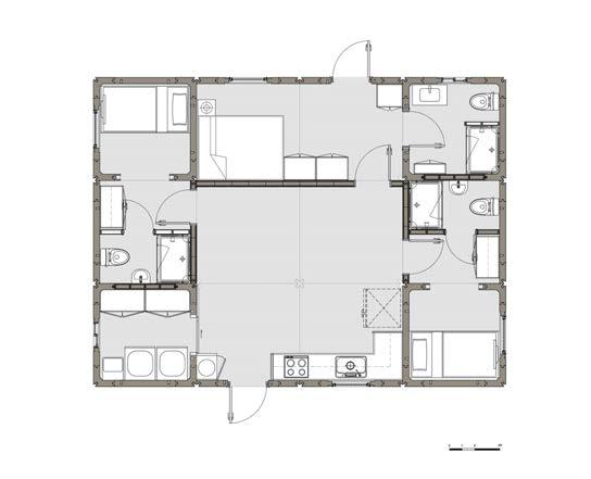
• 4 Module ADA 3-Bed Cluster
• 3 Bedrooms + Common
• Power / lighting
• Drywall Finished Interior
• Wall AC/ Heater
• Automatic Fire Sprinkler (NFPA 13D)
Options
• Porch / Deck
• Cladding
• Deck/ Stair/Ramp
• Solar Panels
• Furnishings/ Appliances
• 2 x 2 Studio Unit
• Bedroom + Bathroom
• Kitchenette
• Drywall Finished Interior
• Full MEP System
• Automatic Fire Sprinkler (NFPA 13D)
Options
• Cladding
• Deck / Stair/Ramp
• Solar Panels
• Furnishings / Appliances
• 3 x 2 Ensuite ADA Unit
• Bedroom
• ADA Bathroom
• Kitchenette
• Drywall Finished Interior
• Full MEP System
• Automatic Fire Sprinkler (NFPA 13D)
Options
• Porch / Deck
• Cladding
• Deck/ Stair/Ramp
• Solar Panels
• Furnishings/ Appliances
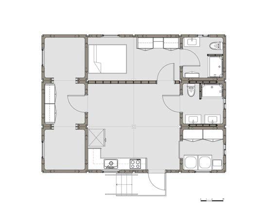
• 2.5 x 2- 2-Bedroom Unit
• 2 Bedrooms + Bathroom
• Kitchenette
• Drywall Finished Interior
• Full MEP System
• Automatic Fire Sprinkler (NFPA 13D)
Options
• Cladding
• Deck / Stair/Ramp
• Solar Panels
• Furnishings / Appliances
• 2.5 x 2- 1-Bedroom Unit
• Bedroom + Kid Zone + 2 Bathrooms
• Kitchenette
• Drywall Finished Interior
• Full MEP System
• Automatic Fire Sprinkler (NFPA 13D)
Options
• Cladding
• Deck / Stair/Ramp
• Solar Panels
• Furnishings / Appliances
• 4x3- 2-Bedroom Unit
• 2 Bedrooms + 2 Bathrooms
• Kitchen + Laundry
• Drywall Finished Interior
• Full MEP System
• Automatic Fire Sprinkler (NFPA 13D)
Options
• Cladding
• Deck / Stair/Ramp
• Solar Panels
• Furnishings / Appliances
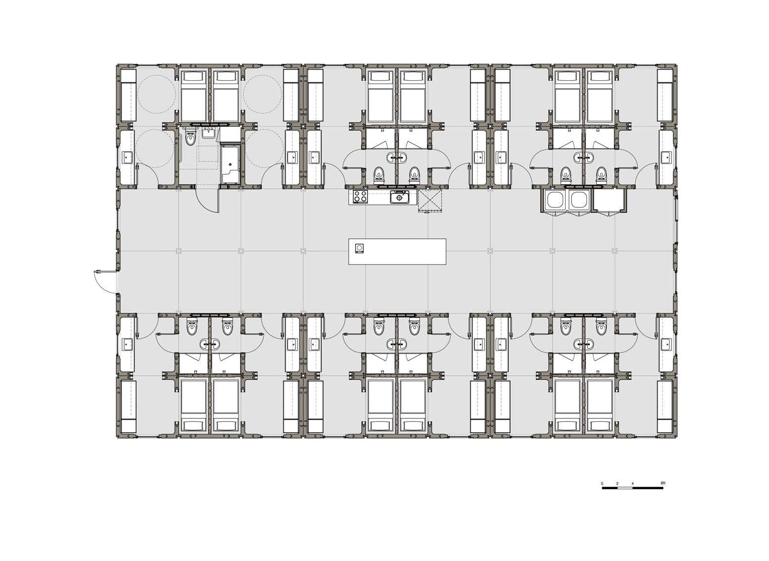
• 4x3- 3-Bedroom Unit
• 3 Bedrooms + 3 Bathrooms
• Kitchen + Laundry/Utility
• Drywall Finished Interior
• Full MEP System
• Automatic Fire Sprinkler (NFPA 13D)
Options
• Cladding
• Deck / Stair/Ramp
• Solar Panels
• Furnishings / Appliances
• 4x3- 3-Bedroom ADU Unit
• 3 Bedrooms + 2 Bathrooms
• Kitchen + Laundry/Utility
• Drywall Finished Interior
• Full MEP System
• Automatic Fire Sprinkler (NFPA 13D)
Options
• Cladding
• Deck / Stair/Ramp
• Solar Panels
• Furnishings / Appliances
6x3 Shared Housing (1,200 SF)
• 6x3- 4-Bedroom Unit
• 4 Bedrooms + 4 Bathrooms
• Living + Dining + Kitchen + Laundry/Utility
• Drywall Finished Interior
• Full MEP System
• Automatic Fire Sprinkler (NFPA 13D)
Options
• Cladding
• Deck / Stair/Ramp
• Solar Panels
• Furnishings / Appliances
6x3 Family Housing (1,200 SF)
• 6x3- 3-Bedroom Unit
• 3 Bedrooms + 3 Bathrooms
• Living + Dining + Kitchen + Laundry/Utility
• Drywall Finished Interior
• Full MEP System
• Automatic Fire Sprinkler (NFPA 13D)
Options
• Cladding
• Deck / Stair/Ramp
• Solar Panels
• Furnishings / Appliances
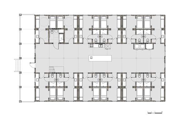
4x7 Shared Housing (1,867 SF)
• 4x7- 8-Bed Unit
• Bedrooms + Bathrooms
• Living + Dining + Kitchen + Laundry/Utility
+ Office
• Drywall Finished Interior
• Full MEP System
• Automatic Fire Sprinkler (NFPA 13D)
Options
• Cladding
• Deck / Stair/Ramp
• Solar Panels
• Furnishings / Appliances
6x6 Shared Housing (2,400 SF)
• 4x7- 8-Bed Unit
• 8 Bedrooms + 8 Bathrooms
• Living + Dining + Kitchen + Laundry/Utility
• Drywall Finished Interior
• Full MEP System
• Automatic Fire Sprinkler (NFPA 13D)
Options
• Cladding
• Deck / Stair/Ramp
• Solar Panels
• Furnishings / Appliances
6x9 Shared Housing (3,600 SF)
• 6x9- 12-Bedroom Unit
• 12 Bedrooms + 11 Bathrooms + 1 ADA
Bathroom
• Living + Dining + Kitchen + Laundry/Utility
• Drywall Finished Interior
• Full MEP System
• Automatic Fire Sprinkler (NFPA 13D)
Options
• Cladding
• Deck / Stair/Ramp
• Solar Panels
• Furnishings / Appliances
6x3 2 Story Shared Housing (2,400 SF)
• 6x3- 2 Story Unit
• 8 Bedrooms + 8 Bathrooms
• Living + Dining + Kitchen + Laundry/Utility
• Drywall Finished Interior
• Full MEP System
• Automatic Fire Sprinkler (NFPA 13D)
Options
• Cladding
• Deck / Stair/Ramp
• Solar Panels
• Furnishings / Appliances
6x9 2 Story Shared Housing (7,200 SF)
• 6x9- 2 Story Unit
• 24 Bedrooms + 22 Bathrooms + 2 ADA
Bathroom
• Living + Dining + Kitchen + Laundry/Utility
• Drywall Finished Interior
• Full MEP System
• Automatic Fire Sprinkler (NFPA 13D)
Options
• Cladding
• Deck / Stair/Ramp
• Solar Panels
• Furnishings / Appliances
Sanitation- Single Toilet/Shower (67 SF)
• 1 x 1 Sanitation Unit
• Full Toilet Shower Unit
• FRP Walls & Ceiling
Options
• Automatic Fire Sprinkler (NFPA 13D)
• Cladding
• Deck / Stair / Ramp
• Solar Panels
Sanitation- Single ADA Toilet (67 SF)
• 1 x 1 Sanitation Unit
• Toilet / Washbasin
• FRP Walls & Ceiling
Options
• Automatic Fire Sprinkler (NFPA 13D)
• Cladding
• Deck / Stair / Ramp
• Solar Panels
Sanitation- Triple ADA (200 SF)
• 3 x 1 Sanitation Unit
• 2 full Toilet Shower Unit
• 1 x ADA Bathroom
• FRP Walls & Ceiling Options
• Automatic Fire Sprinkler (NFPA 13D)
• Cladding
• Deck / Stair / Ramp
• Solar Panels
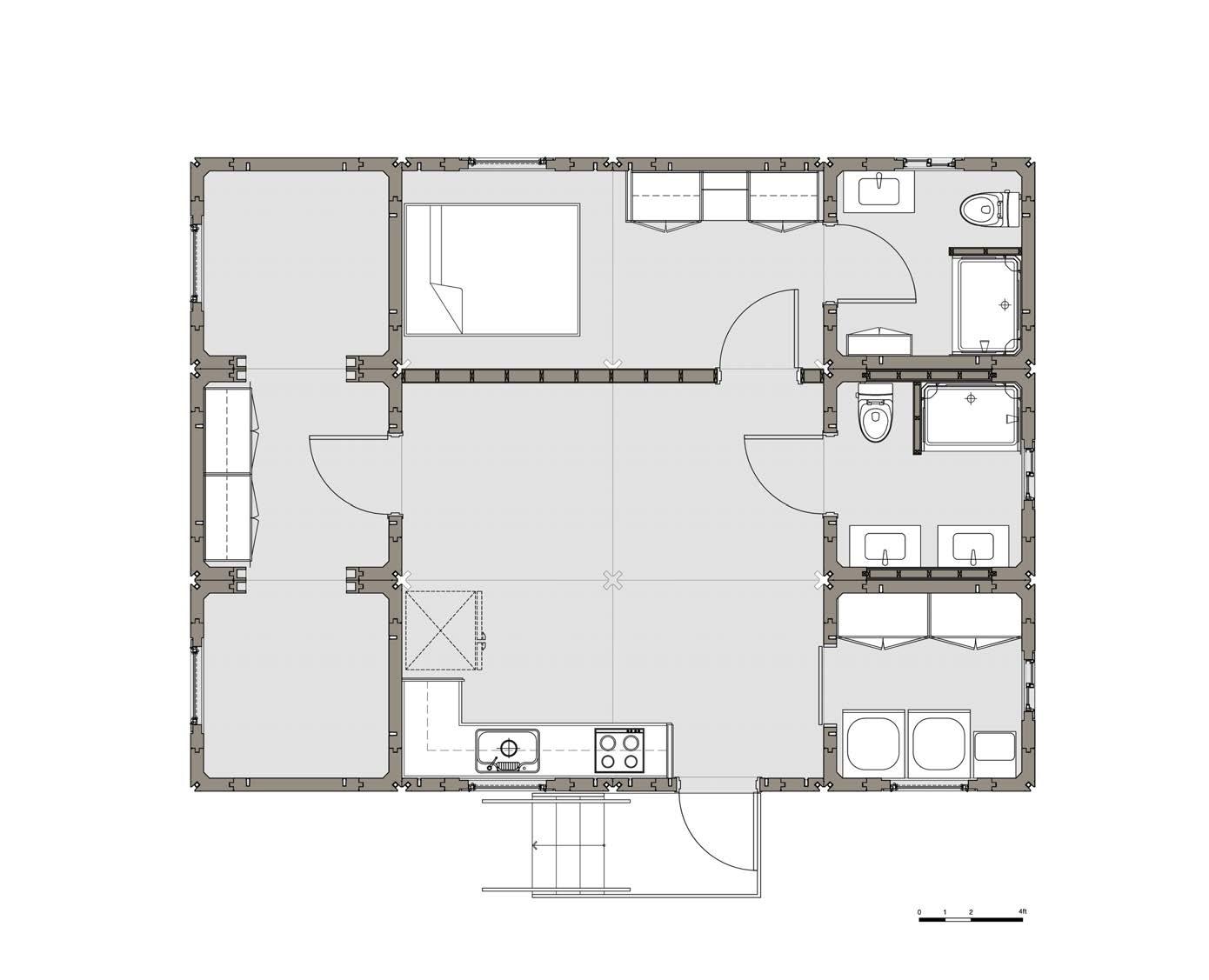
• 1 x 1 BKC Module to Connect with Bed Module
• Full Bathing Unit
• Kitchenette and Closet
• Drywall Finished Interior for Kitchen
• FRP Walls & Ceiling for Bathroom
• Full MEP System
Options
• Automatic Fire Sprinkler (NFPA 13D)
• Cladding
• Solar Panels
• Furnishings / Appliances
• 1 x 1 Double Bathing Unit to Connect with Bed Module
• Double Bathing Units
• FRP Walls & Ceiling
• Full MEP System
Options
• Automatic Fire Sprinkler (NFPA 13D)
• Cladding
• Solar Panels
• 8-Mod Utility and Sanitation Unit
• 5 Full Bathing Units
• 2 ADA Bathing Units
• Laundry and Utility
• FRP Walls & Ceiling
• Full MEP System
Options
• Automatic Fire Sprinkler (NFPA 13D)
• Cladding
• Deck / Stair / Ramp
• Solar Panels
• Furnishings / Appliances
ADA Utility/ Laundry Unit (67 SF)
• 1 x 1 ADA Laundry Unit
• Washing Machine / Dryer Shower Unit
• FRP Walls & Ceiling
Options
• Automatic Fire Sprinkler (NFPA 13D)
• Cladding
• Deck / Stair / Ramp
• Solar Panels
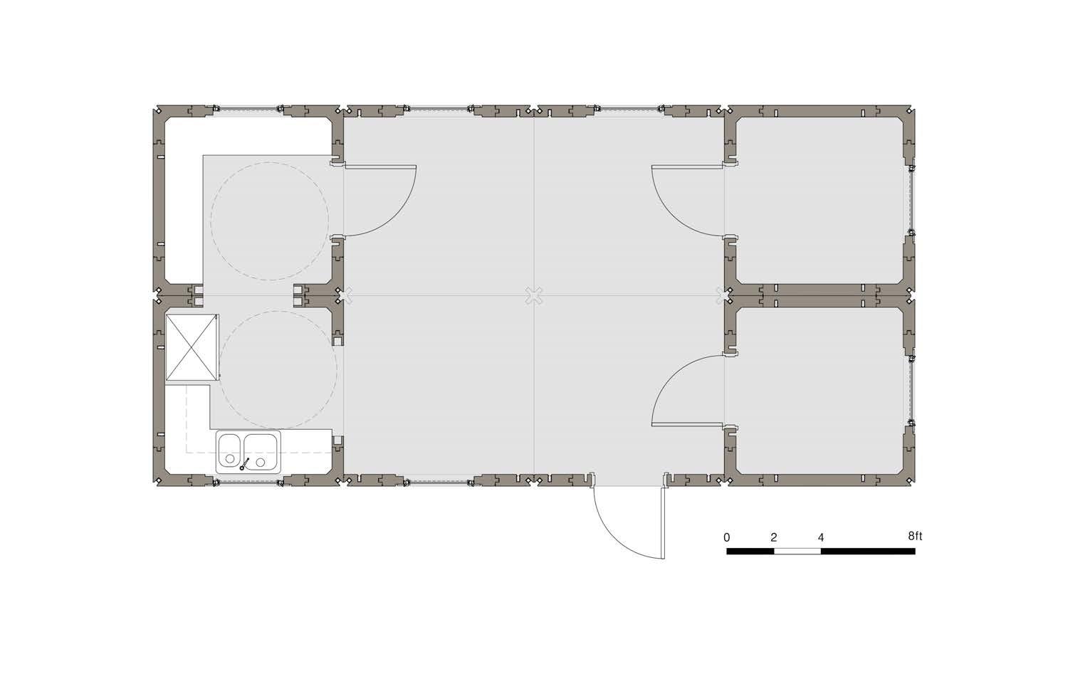
Utility Storage Unit (67 SF)
• 1 x 1 Mech / Storage Unit
• FRP Walls & Ceiling
Options
• Automatic Fire Sprinkler (NFPA 13D)
• Cladding
• Deck / Stair / Ramp
• Solar Panels
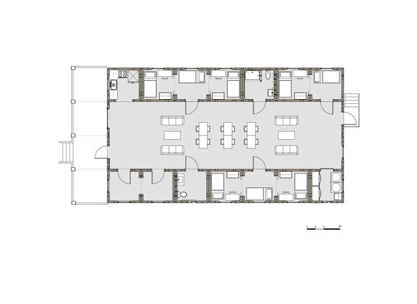
Support- Dining/Flex (533 SF/Unit)
• 4 x 2 Dining / Flex
• Dining + Office
• Prep Kitchen + Pantry/Storage
• Drywall Finished Interior
• Full MEP System
• Automatic Fire Sprinkler (NFPA 13D)
Options
• Cladding
• Deck / Stair/Ramp
• Solar Panels
• Furnishings / Appliances
Support- Office/ Admin (1,600 SF)
• 4 x 6 Dining / Flex
• Dining + Office + Bathroom
• Prep Kitchen + Pantry/Storage
• Drywall Finished Interior
• Full MEP System
• Automatic Fire Sprinkler (NFPA 13D)
Options
• Cladding
• Deck / Stair/Ramp
• Solar Panels
• Furnishings / Appliances
Support- Multi-Purpose (2,134 SF/Unit)
• 4 x 8 Dining / Flex
• Dining + Office + Bathroom
• Prep Kitchen + Pantry/Storage
• Drywall Finished Interior
• Full MEP System
• Automatic Fire Sprinkler (NFPA 13D)
Options
• Cladding
• Deck / Stair/Ramp
• Solar Panels
• Furnishings / Appliances
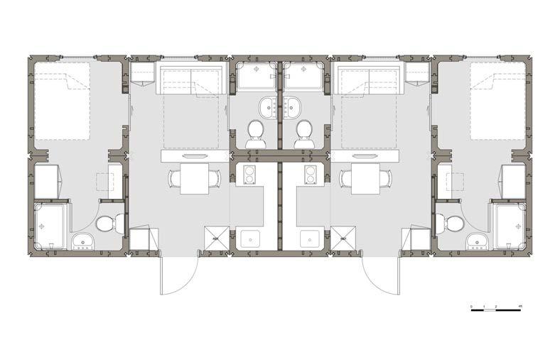
LIFEARK 3X1 SHELTER DOUBLE 100
LIFEARK 3X1 ENSUITE DOUBLE 100-1
LIFEARK 3X1 ENSUITE DOUBLE 100-2
LIFEARK 2X1 ENSUITE 133-2
STUDIO
4MT 3-BED SHELTER
LIFEARK 3X2 ENSUITE ADA STUDIO
BEDROOM
BEDROOM 2
WM/DRYER
BEDROOM 1
BEDROOM 2
BATH 1
BATH 3
BATH 2
BEDROOM 3
LAUNDRY/UTILITY
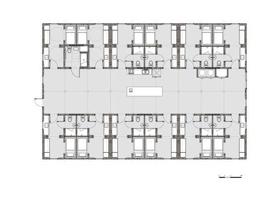
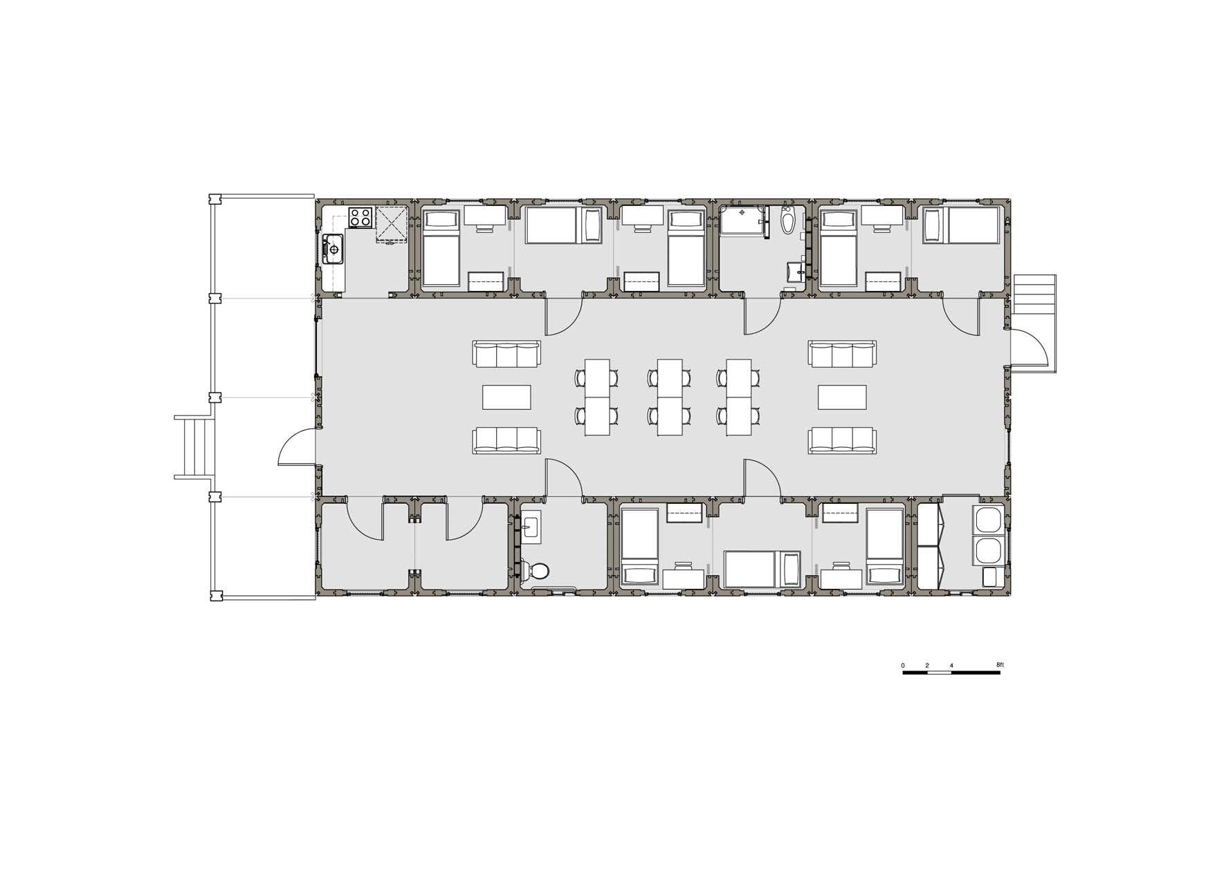
LIFEARK 4X3 SHARED HOUSING
LAUNDRY/UTILITY
BEDROOM 2
3
1
4
BEDROOM 3
BEDROOM 2
BATH 2 BATH 3
1
LIVING UTILITY/PANTRY
BEDROOM 1
KITCHEN PORCH
BEDROOM 2
2
BEDROOM 3
BEDROOM 1
BATH 1
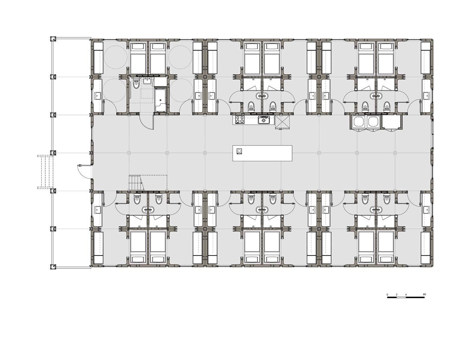
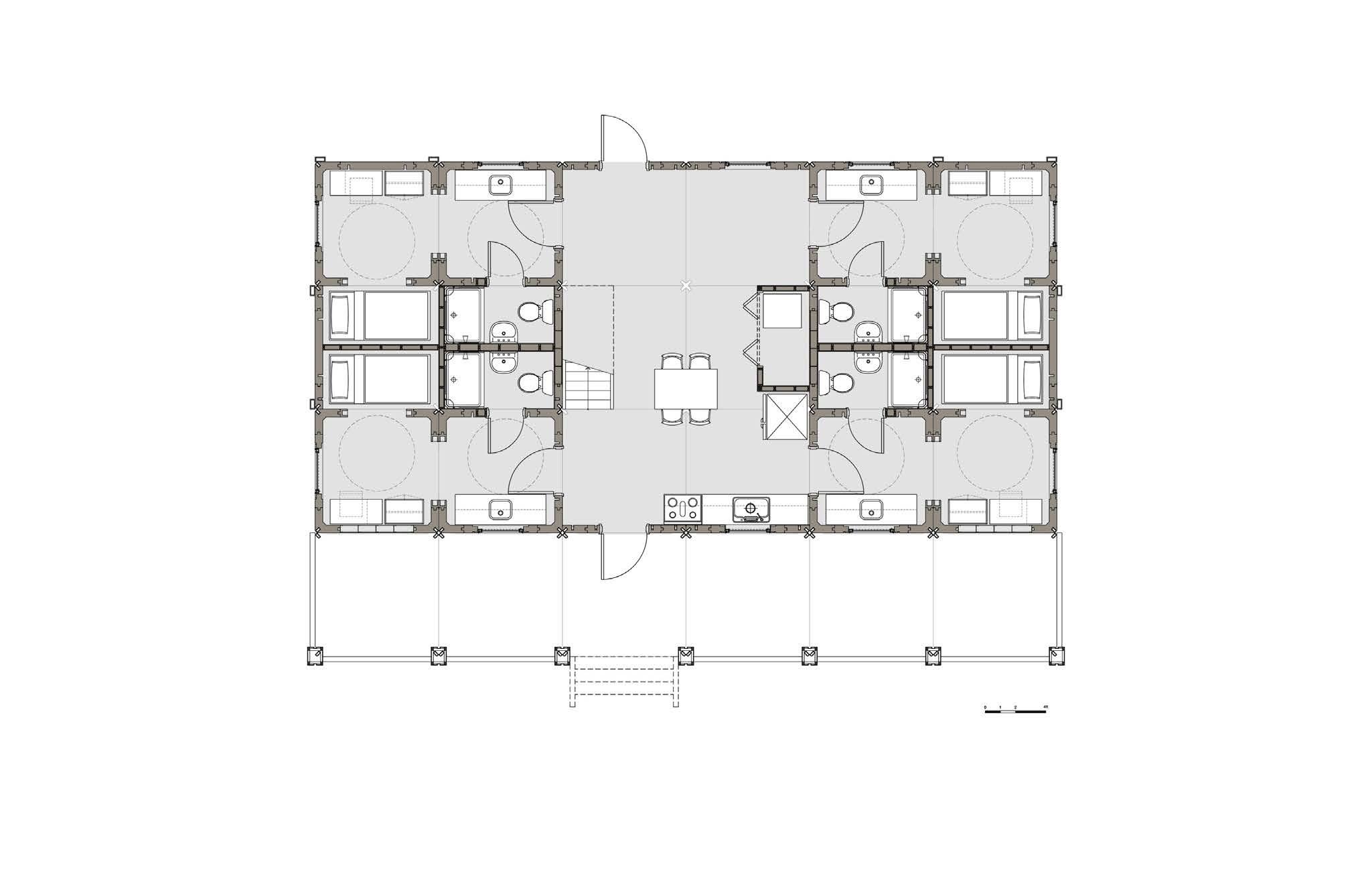
LIFEARK 4X7 SHARED HOUSING
BED 1
BED 2 BED 3 BED 4
BATH 1
BATH 2 BATH 3 BATH 4
BATH 8 BATH 7
BATH 6 BATH 5 LIVING KITCHEN
BED 8 BED 7 BED 6 BED 5
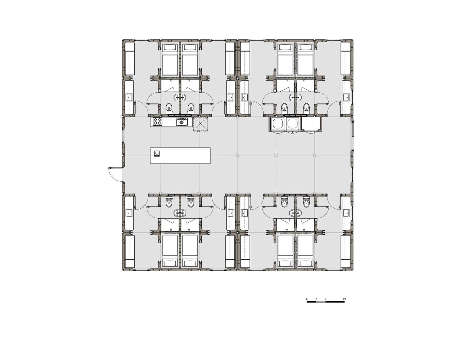
LIFEARK 6X6 SHARED HOUSING HCD MODEL LA6X6-A01-HL03-01F
BED 1
BATH 1 BED 2 BED 3 BED 4
5
BATH 10 BATH 9
6
BATH 8 BATH 7 BATH 6 BATH 5
BED 12 BED 11 BED 10 BED 9 BATH 2 BATH 3 BATH 4
BED 8 BED 7
LIFEARK 6X9 SHARED HOUSING
BEDROOM 2
BEDROOM 1 KITCHEN
3
4
PANTRY/ STORAGE
PREP-KITCHEN
DINING / FLEX
CHECK-IN
COMPUTER STATION
RESOURCE CENTER
SITTING AREA
ADMIN COUNTER
ADMIN OFFICE CASE MANAGEMENT/COUNSELING
PANTRY/STORAGE
MULTI-PURPOSE ROOM
MULTI-PURPOSE
PANTRY/STORAGE
MULTI-PURPOSE ROOM
LIFEARK 4X8 MULTI-PURPOSE