

• SINGLE MODULE UNIT
• POWER/LIGHT/FAN
• BED+DESK+CLOSET
• DOUBLE MODULE UNIT
• INDIVIDUAL BEDROOM +
• BATHROOM/KITCHENETTE
• FULL MEP SYSTEM
300 SF
• SINGLE FAMILY
• MULTI FAMILY
• ONE OR MULTI-STORY
• FULLY FINISHED
• FULL MEP SYSTEM
• FIRE SPRINKLER
• SINGLE 8X8 MIN COST MODULE UNIT
• EACH UNIT CAN BE ASSEMBLED IN LESS THAN AN HOUR READY TO BE OCCUPIED
• EASILY DISASSEMBLED AND RELOCATED
• EASILY TRANSPORTABLE ON FLATBED
• SIMPLE FOUNDATION SYSTEM
ALLOWS USE ON DIRT OR PARKING LOT
• HIGH THERMAL RESISTANCE
• FLEXIBLE LAYOUT FOR ODD SHAPED LOTS
• 3 X 1 DOUBLE FAMILY SHELTER UNIT
• PRIVATE LOCKABLE BEDROOM UNIT
• PRIVATE BATHROOM
• LIGHTING AND POWER OUTLET
• AIR CONDITIONER/ HEATER
• FIRE SPRINKLER
• COMMUNITY CLUSTERING
1.5 MODULE SHELTER UNIT
48 UNIT COMMUNITY CLUSTER
• FLEXIBLE INTERIM HOUSING
• 2X1 132 SF DOUBLE MODULE
• EACH UNIT WITH BATH & KITCHENETTE
• FULLY INTEGRATED MEP SYSTEM
• FIRE SPRINKLER
• FOR INDIVIDUAL OR FAMILY
• VARIETY OF COMMUNITY CLUSTERING
2 MODULE INTERIM UNIT
24 UNIT COMMUNITY CLUSTER
• FLEXIBLE INTERIM HOUSING
• 2X3 400 SF 6 MODULE UNIT
• EACH UNIT WITH BATH & KITCHENETTE
• FULLY INTEGRATED MEP SYSTEM
• FIRE SPRINKLER
• FOR INDIVIDUAL OR FAMILY
• VARIOUS COMMUNITY CLUSTERING CONFIGURATIONS
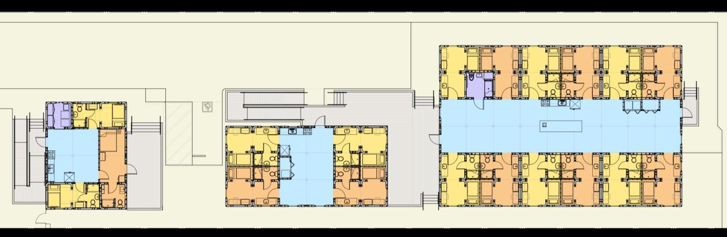
• 19 UNIT SHARED HOUSING
• COMMON AREA W/ SHARED LIVING, DINING AND KITCHEN
• OUTDOOR DECK
• FULLY FINISHED INTERIOR
• FULLY INTEGRATED MEP SYSTEM
• AUTOMATIC FIRE SPRINKLER
• 4 UNIT PER FLOOR STACKED
DUPLEX UNIT
• 4 BEDROOM 4 BATH PER FLOOR
• TOTAL 8 SHARED UNITS
• COMMON AREA W/ LIVING, DINING AND KITCHEN
• AUTOMATIC FIRE SPRINKLER
• FULLY INTEGRATED MEP SYSTEM
• OUTDOOR PORCH AND DECK
• LARGE SCALE MULTI
FAMILY PROJECTS
• SIDE BY SIDE MULTI STORY
INDIVIDUAL UNITS
• FULLY INTEGRATED MEP SYSTEM
• AUTOMATIC FIRE SPRINKLER
• FULLY FINISHED INTERIOR