Y4S1 - Melinda Kumala - Architecture Design Journal - NUS Architecture

Page 1

ACKNOWLEDGEMENTS

Mapping Transitions: Exploring Spatial Shifts as Substitute Urban Thresholds for Kampung Dwellers

Deepest gratitude to our studio tutor, Florian, for guiding us through the intricacies of our projects and facilitating our learning process. Additionally, to my studio mates whose collaboration and friendship have made this 13-week studio a memorable one.

This design journal documents the design process of the individual project aside from the initial case study and group research & masterplan. The journal illustrates the weekly progress of this studio.

2

PROJECT SUMMARY

Urban development in Indonesia often exacts a toll on kampung dwellers, frequently resulting in forced evictions, as evident in past masterplans. This displacement extends beyond physical relocation, contributing to the exacerbation of social and economic disparities. The project addresses this issue by proposing the creation of a transitional space to facilitate the integration of kampung dwellers into the developing urban area, primarily through education and empowerment initiatives.

The methodology employed involves mapping parameters related to programmatic connectivity and accessibility based on the types of activities and their perceived formality. This data is aggregated through a discrete assembly method, resulting in a transitional space that manipulates the layering of surfaces, volumes and ultimately, programmes. The architectural outcome is modular yet provides variations in spatial quality. This approach recognizes that the key to sustainable development lies in empowering individuals to navigate and thrive in their changing surroundings. Education becomes a pivotal component, acting as a catalyst for empowerment. Through workshops, skill development programs, and community-centric educational initiatives, the project aims to equip kampung dwellers with the tools necessary for active participation in the broader urban landscape.

In summary, the project seeks to address the inherent challenges in the urban development process in Indonesia by proposing a pragmatic solution. The focus on education and empowerment, coupled with a methodical mapping approach, aims to create a transitional space that not only bridges the physical gap but also fosters a sustainable and inclusive transition for the affected communities.

3 National University of Singapore | Master of Architecture

SITE OBSERVATIONS: BOUNDARY, HISTORY, WASTE MANAGEMENT, SOCIAL DIVIDE

Mapping Transitions: Exploring Spatial Shifts as Substitute Urban Thresholds for Kampung Dwellers

4

THE SITE AS A REMNANT OF COLONIALISM, PEOPLE AS MARKER OF INDEPENDENCE

5 National University of Singapore | Master of Architecture

SITE ANALYSIS: TYPOLOGICAL DIFFERENCES BETWEEN KAMPUNG AND SITE

Mapping Transitions: Exploring Spatial Shifts as Substitute Urban Thresholds for Kampung Dwellers

6

INITIAL MASSING STRATEGIES FOR A SUSTAINABLE EDUCATION MODEL

7 National University of Singapore | Master of Architecture

FURTHER BREAKDOWN OF EDUCATIONAL PROGRAMMATIC TYPES & CATEGORISATION

Target Demographic: 5-30 y.o.

Target Demographic: >10 y.o.

Academic Play [INFORMAL] [INFORMAL] [SEMI-FORMAL] Forum Classroom Hall [FORMAL] Technology [INFORMAL] [SEMI-FORMAL] Forum Classroom Hall [FORMAL]

Construction [INFORMAL] [SEMI-FORMAL] Co-Working Classroom

Target Demographic: >17 y.o.

Integrated Workshop [FORMAL]

Creative [INFORMAL] [SEMI-FORMAL] Co-Working Studio

Target

Integrated Workshop [FORMAL]

Home Economics

Mapping Transitions: Exploring Spatial Shifts as Substitute Urban Thresholds for Kampung Dwellers

[INFORMAL]

[SEMI-FORMAL] Forum Classroom

Integrated Workshop [FORMAL]

Target Demographic: >17 y.o. Central Lab [INFORMAL]

Target Demographic: >17 y.o.

Central Workshop

Target Demographic: 5-30 y.o.

[SEMI-FORMAL] Lab Trainng [INFORMAL]

[SEMI-FORMAL] Workshop Trainng

[INFORMAL] Small Business F&B Market

[INFORMAL]

[SEMI-FORMAL] Exhibition Hall

Open Theatre Gallery

[INFORMAL]

[INFORMAL] [FORMAL] Library Co-Working

8
Education Creative Home Economics Academic Technology Construction Central Atrium Resource Centre Market Gallery Creative Home Economics Academic Technology Construction Central Workshop Labs Atrium Atrium Cooking & Nutrition Family & Child Development Clothing & Textiles Health & Well-Being Formal Tuition Support Open Academic Courses Digital Literacy Manufacturing & Fabrication Professional Development Visual & Fine Arts Performing Arts Crafts & Artisanal Products Construction Skills Apprenticeships ~2000 sqm ~700 sqm ~1500 sqm ~800 sqm ~800 sqm ~1100 sqm ~1300 sqm ~800 sqm ~800 sqm ~800 sqm ~1100 sqm ~1000 sqm ~1000 sqm Academic Play [INFORMAL] [INFORMAL] [SEMI-FORMAL] Forum Classroom Hall [FORMAL] Technology [INFORMAL] [SEMI-FORMAL] Forum Classroom Hall [FORMAL] [INFORMAL] Co-Working Target Demographic: 5-30 y.o. Target Demographic: >10 y.o. Home Economics [INFORMAL] [SEMI-FORMAL] Forum Classroom Integrated Workshop [FORMAL] Target Demographic: >17 y.o. Central Lab [INFORMAL] [SEMI-FORMAL] Lab Trainng [INFORMAL] [SEMI-FORMAL] Workshop Trainng Target Demographic: >17 y.o. Central Workshop Target Demographic: 5-30 y.o. [INFORMAL] Small Business Market Types of Education Connectivity Between Programmatic Spaces 01 01C 01A 01B 02B 03B 04B 05B 03A 04A 02A 05A 06B 05B 04B 03B 03A 02B 01B 01B Main Programmatic Requirements Central Atrium Resource Centre Market Creative Home Economics Academic Technology Construction Central Workshop Labs Atrium Atrium ~2000 sqm ~700 sqm ~1500 sqm ~800 sqm ~800 sqm ~1100 sqm ~1300 sqm ~800 sqm ~800 sqm ~800 sqm ~1000 sqm ~1000 sqm
Demographic: >17 y.o.
Target Demographic:
All
Target Demographic: All
Resource Centre Target Demographic: All 01 01C 01B 02B 03B 04B 05B 03A 04A 05A 06B 05B 04B 03B 03A 03A
Main Programmatic Requirements
02B 01B 01B 01B 01C
9 National University of Singapore | Master of Architecture 01A_CENTRAL ATRIUM 01C_LIBRARY 03B_CONS 01B_CENTRAL WORKSHOP 02B_LABS 05B_ACADEMIC 06B_ATRIUM 04B_TECH 01A_MARKET 02A_GALLERY 05A_ATRIUM 04A_HEC 03A_CREATIVE Maximum Adj. Distance 10m Boundary Bleed: 20m [any lower results tend to be invalid] Entry Point: Middle of boundary, Set at Central Atrium Input Data: Connectivity map Surface area of each space. No. of Iteration ran: 10 (4 removed) Script Limitations: Area distribution strictly represented rectilinearly. Unable to control Length and Width *Results removed if there are >2 invalid programmatic spaces. [-] 06B Atrium located too far to the West. [-] 01A Central Atrium located too far South. [+] 01B Central Workshop nicely accessible by 04B and 03B. [+] 02B Labs nicely accessible by 04B and 03B. [+] Overall, space is distributed quite evenly from East to West. SELECTED: Change location of 06B Atrium, 01A Atrium Combine East area with Iteration 5 (for 04A, 05A, 02A and 03A) [-] Space distribution too centralised [-] 03B Construction invalid. [-] 06B Atrium located too far to the North West [-] 01A Central Atrium located too far South. 01A_CENTRAL ATRIUM 01C_LIBRARY 01B_CENTRAL WORKSHOP 02B_LABS 05B_ACADEMIC 06B_ATRIUM 04B_TECH 01A_MARKET 02A_GALLERY 05A_ATRIUM 04A_HEC 03A_CREATIVE 01A_CENTRAL ATRIUM 01C_LIBRARY 03B_CONS 01B_CENTRAL WORKSHOP 02B_LABS 05B_ACADEMIC 06B_ATRIUM 04B_TECH 01A_MARKET 02A_GALLERY 05A_ATRIUM 04A_HEC 03A_CREATIVE [-] 03B Construction invalid. [-] 06B Atrium located too far to the West. [-] 01A Central Atrium located too far South. [+] 04A HEC adjacent to 01A Market, while 02A Gallery adjacent to 03A Creative [-] 01C Library/ Resource Centre Invalid [-] [-] 06B Atrium located too far to the West. [+] 01B Central Workshop in between 04B Tech and 03B Cons [+] 05A Atrium located near kampung area while accessible by 04A HEC and 03A Creative [+] 04A HEC adjacent to 01A Market, while 02A Gallery adjacent to 03A Creative [-] 03B Construction invalid. [-] 06B Atrium located too far to the West. [-] 01A Central Atrium located too far South. Similar to Iteration 2. 01A_CENTRAL ATRIUM 01C_LIBRARY 01B_CENTRAL WORKSHOP 02B_LABS 05B_ACADEMIC 06B_ATRIUM 04B_TECH 01A_MARKET 02A_GALLERY 05A_ATRIUM 04A_HEC 03A_CREATIVE 01A_CENTRAL ATRIUM 03B_CONS 01B_CENTRAL WORKSHOP 02B_LABS 05B_ACADEMIC 06B_ATRIUM 04B_TECH 01A_MARKET 02A_GALLERY 05A_ATRIUM 04A_HEC 03A_CREATIVE 01A_CENTRAL ATRIUM 01C_LIBRARY 03B_CONS 01B_CENTRAL WORKSHOP 02B_LABS 05B_ACADEMIC 06B_ATRIUM 04B_TECH 01A_MARKET 02A_GALLERY 05A_ATRIUM 04A_HEC 03A_CREATIVE [-] 03B Construction invalid. [-] 06B Atrium located too far to the West. [-] 01A Central Atrium located too far South. [+] 04A HEC adjacent to 01A Market, while 02A Gallery adjacent to 03A Creative Similar to Iteration 3. Grasshopper Plugin Used: Magnetizing_FPG 2.0 for Rhino 7 https://www.food4rhino.com/en/app/magnetizing-floor-plan-generator Iterations Based on Connectivity and Surface Area Parameters [GH] Remarks Iterations 01 02 03 06 05 04 Synthesised Land Plots Building Density Space Distribution Program Formality Space Distribution Synthesised Variables 01A_CENTRAL ATRIUM 01C_LIBRARY 03B_CONS 01B_CENTRAL WORKSHOP 02B_LABS 05B_ACADEMIC 06B_ATRIUM 04B_TECH 01A_MARKET 02A_GALLERY 05A_ATRIUM 04A_HEC 03A_CREATIVE 01A_CENTRAL ATRIUM 01C_LIBRARY 03B_CONS 01B_CENTRAL WORKSHOP 02B_LABS 05B_ACADEMIC 06B_ATRIUM 04B_TECH 01A_MARKET 02A_GALLERY 05A_ATRIUM 04A_HEC 03A_CREATIVE DENSITY OF STRUCTURES DENSER SPARSER 01A_CENTRAL ATRIUM 01C_LIBRARY 03B_CONS 01B_CENTRAL WORKSHOP 02B_LABS 05B_ACADEMIC 06B_ATRIUM 04B_TECH 01A_MARKET 02A_GALLERY 05A_ATRIUM 04A_HEC 03A_CREATIVE FORMALITY OF PROGRAM FORMAL SEMI-FORMAL INFORMAL 01A_CENTRAL ATRIUM 01C_LIBRARY 03B_CONS 01B_CENTRAL WORKSHOP 02B_LABS 05B_ACADEMIC 06B_ATRIUM 04B_TECH 01A_MARKET 02A_GALLERY 05A_ATRIUM 04A_HEC 03A_CREATIVE FORMALITY OF PROGRAM FORMAL SEMI-FORMAL INFORMAL DENSITY OF STRUCTURES DENSER SPARSER LAND PLOTS DIVISION AND GENERAL TECTONICS STRATEGIES

ASSIGNING ACTIVITY TYPES WITH OPENNESS AND ACCESIBILITY THROUGH SURFACES

Structure Classification Based on Formality and Openness

Academic (1100 sqm)

Play Forum Classroom Lecture Hall [INFORMAL] openness visibility accessibility [INFORMAL] openness visibility accessibility [SEMI-FORMAL] openness visibility accessibility [FORMAL] openness visibility accessibility

Construction (900 sqm)

Co-Working Classroom Integrated Workshop [INFORMAL] openness visibility accessibility [SEMI-FORMAL] openness visibility accessibility [FORMAL] openness visibility accessibility

Central Lab (750 sqm)

Training Lab

Technology (900 sqm)

Forum Classroom Hall [INFORMAL] openness visibility accessibility [SEMI-FORMAL] openness visibility accessibility [FORMAL] openness visibility accessibility

[5x5x3]m / 25sqm [5x10x3]m / 50sqm [10x15x3]m / 150sqm [10x20x3]m / 200sqm

Creative (1300 sqm)

Co-Working Studio Integrated Workshop

[INFORMAL] openness visibility accessibility [SEMI-FORMAL] openness visibility accessibility [FORMAL] openness visibility accessibility

Home Economics (1100 sqm)

Forum Classroom Integrated Workshop

Mapping Transitions: Exploring Spatial Shifts as Substitute Urban Thresholds for Kampung Dwellers

10
[INFORMAL]
[SEMI-FORMAL]
[INFORMAL] [SEMI-FORMAL] [FORMAL]
x2 x3 x10 x1
50sqm
100sqm
25sqm x3 x6 x1
x3 x3 x10 [5x10x3]m [5x5x3]m x3 x3 [5x10x3]m [5x5x3]m [5x5x3]m x3 x3 x10 [5x10x3]m [5x5x3]m [5x5x3]m
[5x10x3]m /
[10x10x3]m /
[5x5x3]m /

[5x10x3]m [5x5x3]m

[INFORMAL] openness visibility accessibility

x3

[SEMI-FORMAL] openness visibility accessibility [FORMAL] openness visibility accessibility

Central Lab (750 sqm)

Training Lab

[INFORMAL] openness visibility accessibility [SEMI-FORMAL] openness visibility accessibility [FORMAL] openness visibility accessibility

Home Economics (1100 sqm)

[INFORMAL] openness visibility accessibility [SEMI-FORMAL] openness visibility accessibility [FORMAL] openness visibility accessibility

Forum Classroom Integrated Workshop [INFORMAL] openness visibility accessibility [SEMI-FORMAL] openness visibility accessibility

Central Workshop (750 sqm) Gallery (1100 sqm)

Training Workshop

[INFORMAL] openness visibility accessibility [SEMI-FORMAL] openness visibility accessibility

Market (1500 sqm)

F&B Small Business

[INFORMAL] openness visibility accessibility [SEMI-FORMAL] openness visibility accessibility

Open Theatre Exhibition Hall [INFORMAL] openness visibility accessibility [SEMI-FORMAL] openness visibility accessibility

Resource Centre (700 sqm)

Co-Working Library

[INFORMAL] openness visibility accessibility [SEMI-FORMAL] openness visibility accessibility

11 National University of Singapore | Master of Architecture
x3 x10
x3 x3
x3 x3 [5x10x3]m
x3 x3 [5x10x3]m
x3 x3 [5x10x3]m
x3 x3 [5x10x3]m
x3 x3 x10 [5x10x3]m
[5x10x3]m [5x5x3]m
[5x5x3]m
[5x5x3]m
[5x5x3]m
[5x5x3]m [5x5x3]m
[5x5x3]m [5x5x3]m

Mapping Transitions: Exploring Spatial Shifts as Substitute Urban Thresholds for Kampung Dwellers

12
Kampung Warehouse Section AA’ PLAY PLAY FORUM FORUM FORUM CLASSROOM CLASSROOM HALL Academic (1100 sqm) FORUM FORUM FORUM PLAY CLASSROOM HALL A A’ Central Lab (750 sqm) Kampung Warehouse Section AA’ Kampung Atrium TRAINING TRAINING TRAINING TRAINING LAB LAB LAB B B’ TRAINING TRAINING TRAINING TRAINING LAB LAB LAB
13 National University of Singapore | Master of Architecture Kampung Warehouse Section CC’ CLASSROOM Technology (900 sqm) FORUM COURTYARD FORUM CLASSROOM HALL C C’ Central Atrium (2000 sqm) CLASSROOM FORUM FORUM COURTYARD Kampung Warehouse Section CC’ RETAIL COURTYARD STAGE SITTING RETAIL RETAIL RETAIL Solid Obcstruct, Divert

INITIAL ABSTRACT MODULE MASSING

Mapping Transitions: Exploring Spatial Shifts as Substitute Urban Thresholds for Kampung Dwellers

14
15 National University of Singapore | Master of Architecture

STREET CONNECTIONS EXPLORATION: VORONOI DISTRIBUTION [UNUSED]

ACADEMIC

TECHNOLOGY CENTRAL LABS

ATRIUM WORKSHOP CONSTRUCTION

CENTRAL ATRIUM

ACADEMIC

01 SPORTS & PLAY [INFORMAL]

02 GROUP DISCUSSION [INFORMAL]

03 CLASSROOM LEARNING [SEMI-FORMAL]

04 HANDS-ON LEARNING [SEMI-FORMAL]

05 LECTURES & PRESENTATION [FORMAL]

CENTRAL LABS

06 CLASSROOM LEARNING [SEMI-FORMAL]

07 LABORATORY LEARNING [FORMAL]

TECHNOLOGY

08 GROUP DISCUSSION [INFORMAL]

09 CLASSROOM LEARNING SEMI-FORMAL]

10 COMPUTER-BASED LEARNING [SEMI-FORMAL]

11 LECTURES & PRESENTATION [FORMAL]

ATRIUM

12 SOCIAL [INFORMAL]

13 RETAIL [SEMI-FORMAL]

14 COMMUNITY INITIATIVE [SEMI-FORMAL]

15 AMPHITHEATRE [FORMAL]

CENTRAL WORKSHOP

16 CLASSROOM LEARNING [SEMI-FORMAL]

17 HANDS ON WORKSHOP [SEMI-FORMAL]

CONSTRUCTION

18 GROUP DISCUSSION [INFORMAL]

19 CLASSROOM LEARNING [SEMI-FORMAL]

20 HANDS-ON LEARNING [SEMI-FORMAL]

21 LECTURES & PRESENTATION [FORMAL]

CENTRAL ATRIUM

22 SOCIAL & PLAY [INFORMAL]

23 AMPHITHEATRE/ DISCUSSION [SEMI-FORMAL]

LIBRARY MARKET HEC ATRIUM

LIBRARY / RESOURCE CENTRE

24 OUTDOOR READING [INFORMAL]

25 INDDOR READING [SEMI-FORMAL]

MARKETPLACE

26 HAWKER DINING [INFORMAL]

27 PASAR [INFORMAL]

28 PASAR [INFORMAL]

29 PASAR [INFORMAL]

30 RETAIL [SEMI-FORMAL]

HOME ECONOMICS

33 SOCIAL & PLAY [INFORMAL]

32 AMPHITHEATRE/ DISCUSSION [FORMAL]

31 CLASSROOM LEARNING [SEMI-FORMAL]

34 HANDS-ON LEARNING [SEMI-FORMAL]

Mapping Transitions: Exploring Spatial Shifts as Substitute Urban Thresholds for Kampung Dwellers

CREATIVE

GALLERY

ATRIUM

35 SOCIAL & PLAY [INFORMAL]

36 COMMUNITY INITIATIVE [SEMI-FORMAL]

GALLERY

37 PERFORMANCE [SEMI-FORMAL]

38 EXHIBITION SPACE [FORMAL]

CREATIVE

39 COMMUNITY SPACE [INFORMAL]

40 SOCIAL & PLAY [INFORMAL]

41 VISUAL ARTS STUDIO [SEMI-FORMAL]

42 PERFORMING ARTS STD. [SEMI-FORMAL]

43 LECTURE & PRESENTATION [FORMAL]

16
01 02 03 04 05 06 07 08 09 10 11 12 13 14 15 16 17 18 19 20 21 22 23 24 25 26 27 28 29 30 31 32 33 34 35 36 37 38 39 40 41 42 43
Division Based on Activities Seed Point (Voronoi Distribution) Program Formality Space Distribution Cluster Demarcation
01A_CENTRAL ATRIUM 01C_LIBRARY 03B_CONS 01B_CENTRAL WORKSHOP 02B_LABS 05B_ACADEMIC 06B_ATRIUM 04B_TECH 01A_MARKET 02A_GALLERY 05A_ATRIUM 04A_HEC 03A_CREATIVE FORMALITY OF PROGRAM FORMAL SEMI-FORMAL INFORMAL

EXPLORATIONS OF DISTORTED GRIDS

17 National University of Singapore | Master of Architecture Regular 5x5 Grid Distorted Grid Based on Surface Boundary Distorted Grid Based on Surface Boundary 01 02 03 04 05 06 07 08 09 10 11 12 13 14 15 16 17 18 19 20 21 22 23 24 25 26 27 28 29 30 31 32 33 34 35 36 37 38 39 40 41 42 43 ACADEMIC TECHNOLOGY CENTRAL LABS ATRIUM WORKSHOP CONSTRUCTION CENTRAL ATRIUM LIBRARY MARKET HEC ATRIUM GALLERY CREATIVE 01 02 03 04 05 06 07 08 09 10 11 12 13 14 15 16 17 18 19 20 21 22 23 24 25 26 27 28 29 30 31 32 33 34 35 36 37 38 39 40 41 42 43 ACADEMIC TECHNOLOGY CENTRAL LABS ATRIUM WORKSHOP CONSTRUCTION CENTRAL ATRIUM LIBRARY MARKET HEC ATRIUM GALLERY CREATIVE 01 02 03 04 05 06 07 08 09 10 11 12 13 14 15 16 17 18 19 20 21 22 23 24 25 26 27 28 29 30 31 32 33 34 35 36 37 38 39 40 41 42 43 ACADEMIC TECHNOLOGY CENTRAL LABS ATRIUM WORKSHOP CONSTRUCTION CENTRAL ATRIUM LIBRARY MARKET HEC ATRIUM GALLERY CREATIVE

OVERALL ACTIVITY CONNECTIVITY

Mapping Transitions: Exploring Spatial Shifts as Substitute Urban Thresholds for Kampung Dwellers

18
SPORTS & PLAY GROUP DISCUSSION HANDS-ON LEARNING CLASSROOM LEARNING LECTURE & PRESENTATION ACADEMIC CLUSTER ACTIVITY TYPES & CONNECTIVITY INFORMAL SEMI-FORMAL FORMAL TECHNOLOGY CLUSTER ACTIVITY TYPES & CONNECTIVITY GROUP DISCUSSION CLASSROOM LEARNING LECTURE & PRESENTATION COMPUTER-BASED LEARNING SEMI-FORMAL FORMAL LAB LEARNING CLASSROOM LEARNING CENTRAL LABS ACTIVITY TYPES & CONNECTIVITY SEMI-FORMAL FORMAL APHITHEATRE / PERFORMANCE SOCIAL & PLAY CENTRAL ATRIUM ACTIVITY TYPES & CONNECTIVITY FORMAL WORKSHOP LEARNING CLASSROOM LEARNING CENTRAL WORKSHOP ACTIVITY TYPES & CONNECTIVITY SEMI-FORMAL FORMAL SPORTS & PLAY GROUP DISCUSSION HANDS-ON LEARNING CLASSROOM LEARNING LECTURE & PRESENTATION CONSTRUCTION CLUSTER ACTIVITY TYPES & CONNECTIVITY SEMI-FORMAL FORMAL APHITHEATRE PERFORMANCE SOCIAL & PLAY CENTRAL ATRIUM ACTIVITY TYPES & CONNECTIVITY MARKETPLACE ACTIVITY TYPES & CONNECTIVITY SITTING AREA HAWKER DINING MARKET RETAIL INFORMAL SEMI-FORMAL SPORTS & PLAY GROUP DISCUSSION HANDS-ON LEARNING CLASSROOM LEARNING LECTURE & PRESENTATION HOME ECONOMICS CLUSTER ACTIVITY TYPES & CONNECTIVITY INFORMAL SEMI-FORMAL FORMAL COMMUNITY SPACE SOCIAL PERFORMING ARTS STUDIO VISUAL ART STUDIO LECTURE & PRESENTATION CREATIVE CLUSTER ACTIVITY TYPES & CONNECTIVITY INFORMAL SEMI-FORMAL FORMAL APHITHEATRE PERFORMANCE SOCIAL & PLAY CENTRAL ATRIUM ACTIVITY TYPES & CONNECTIVITY SEMI-FORMAL FORMAL

ACTIVITY CONNECTIVITY MAP ON EACH CLUSTER TYPE

19 National University of Singapore | Master of Architecture SPORTS & PLAY GROUP DISCUSSION HANDS-ON LEARNING CLASSROOM LEARNING LECTURE & PRESENTATION ACADEMIC CLUSTER ACTIVITY TYPES & CONNECTIVITY TECHNOLOGY CLUSTER ACTIVITY TYPES & CONNECTIVITY INFORMAL SEMI-FORMAL FORMAL GROUP DISCUSSION CLASSROOM LEARNING LECTURE & PRESENTATION COMPUTER-BASED LEARNING INFORMAL SEMI-FORMAL FORMAL SPORTS & PLAY GROUP DISCUSSION HANDS-ON LEARNING CLASSROOM LEARNING LECTURE & PRESENTATION CONSTRUCTION CLUSTER ACTIVITY TYPES & CONNECTIVITY MARKETPLACE ACTIVITY TYPES CONNECTIVITY INFORMAL SEMI-FORMAL FORMAL SITTING AREA HAWKER DINING MARKET RETAIL INFORMAL SEMI-FORMAL LAB LEARNING CLASSROOM LEARNING CENTRAL LABS ACTIVITY TYPES CONNECTIVITY SEMI-FORMAL FORMAL WORKSHOP LEARNING CLASSROOM LEARNING CENTRAL WORKSHOP ACTIVITY TYPES CONNECTIVITY SEMI-FORMAL FORMAL APHITHEATRE PERFORMANCE SOCIAL & PLAY CENTRAL ATRIUM ACTIVITY TYPES CONNECTIVITY SEMI-FORMAL FORMAL SPORTS & PLAY GROUP DISCUSSION HANDS-ON LEARNING CLASSROOM LEARNING LECTURE & PRESENTATION HOME ECONOMICS CLUSTER ACTIVITY TYPES & CONNECTIVITY INFORMAL SEMI-FORMAL FORMAL COMMUNITY SPACE SOCIAL PERFORMING ARTS STUDIO VISUAL ART STUDIO LECTURE & PRESENTATION CREATIVE CLUSTER ACTIVITY TYPES & CONNECTIVITY INFORMAL SEMI-FORMAL FORMAL

AGGREGATION STRATEGIES: DISCRETE ASSEMBLY

Mapping Transitions: Exploring Spatial Shifts as Substitute Urban Thresholds for Kampung Dwellers Exploded Isometric

20
WAREHOUSE Iterations
Academic (1100 sqm) 01 Play 02 Open Space 03 Discussion 04 Open Lounge [INFORMAL] openness visibility accessibility [INFORMAL] openness visibility accessibility [INFORMAL] openness visibility accessibility [INFORMAL] openness visibility accessibility 05 Semi-Open Lounge [INFORMAL] openness visibility accessibility 06 Classroom 07 Classroom 08 Classroom 09 Lab [SEMI-FORMAL] openness visibility accessibility [SEMI-FORMAL] openness visibility accessibility [SEMI-FORMAL] openness visibility accessibility [FORMAL] openness visibility accessibility 09 Lab [FORMAL] openness visibility accessibility Sample Module Connection Sample Module Connection 1 1 3 1 1 1 2 2 2 2 3 2 3 2 3 1 3 1 2 3 Modules (Academic) Based on Structure & Activity Discrete Assemby of Parts Procedure 1. Modules 2. Rules Set 3. Initial Set 1,2,3 1,2,3 1,2,3 1,2,3 1,2,3 1,2,3 1,2,3 1,2,3 1,2,3 1,2,3 1,2,3 1,2,3 1,2,3 1,2,3 1,2,3 1,2,3 1,2,3 1,2,3 1,2,3 1,2,3 1,2,3 1,2,3 1,2,3 1,2,3 1,2,3 4. Observation 1,2,3 1,2,3 1,2,3 1,2,3 1,2,3 1,2,3 1,2,3 3 1,2,3 1,2,3 1,2,3 1,2,3 1,2,3 1,2,3 1,2,3 1,2,3 1,2,3 1,2,3 1,2,3 1,2,3 1,2,3 1,2,3 1,2,3 1,2,3 1,2,3 5. Propagation 1,2,3 1,2,3 2 1,2,3 1,2,3 1,2,3 3 3 3 1,2,3 1,2,3 1,2,3 1 1,2,3 1,2,3 1,2,3 1,2,3 1,2,3 1,2,3 1,2,3 1,2,3 1,2,3 1,2,3 1,2,3 1,2,3
Details KAMPUNG
Based on Connectivity and Surface Area Parameters [GH]

Discrete Assemby of Parts

Module Geometry

EXPLORATIONS OF OTHER DISTRIBUTION SYSTEMS

Other Self-Distribution System Explorations

Grid Settings

Module Definition

Geometry Solve

Module Merge Rule Sets

The growth of one cell is entirely dependent upon the already existing adjacent cell.

[+] Vastly different forms generated.

Failry easy based on different control seed point.

[+] Customisable height layers.

[-] Cellular automata has no end goal, simply an automated generation of form and distribution

Two attractor points placed on extreme left and right.

[+] Smooth transition from dense to sparse.

[-] No reason in terms of connectivity

[-] Unable to add layers above.

21 National University of Singapore | Master of Architecture
Cellular Automata Geometry Remarks
Geometry Attractor Gradient Pixels
Remarks
22
INIITAL RESULTANT FORM
Mapping Transitions: Exploring Spatial Shifts as Substitute Urban Thresholds for Kampung Dwellers

COMBINING SPACES, ROOF, ROOMS

23 National University of Singapore | Master of Architecture
WEST ELEVATION EAST ELEVATION SOUTH ELEVATION NORTH ELEVATION
24
Mapping Transitions: Exploring Spatial Shifts as Substitute Urban Thresholds for Kampung Dwellers ACADEMIC CLUSTER
25 National University of Singapore | Master of Architecture
26
Terrain Height Adjustment Based on Formality of Programmatic Space Terrain Height Adjustment Based on Formality of Programmatic Space Other Exploration [Similar Discrete Assembly of Modules, Above Ground Structure] 01A_CENTRAL ATRIUM 01C_LIBRARY 03B_CONS 01B_CENTRAL WORKSHOP 02B_LABS 05B_ACADEMIC 06B_ATRIUM 04B_TECH 01A_MARKET 02A_GALLERY 05A_ATRIUM 04A_HEC 03A_CREATIVE FORMALITY OF PROGRAM FORMAL SEMI-FORMAL INFORMAL ATTRACTOR POINT
STRATEGIES
Mapping Transitions: Exploring Spatial Shifts as Substitute Urban Thresholds for Kampung Dwellers
TERRAIN
27 National University of Singapore | Master of Architecture
28
Mapping Transitions: Exploring Spatial Shifts as Substitute Urban Thresholds for Kampung Dwellers
29 National University of Singapore | Master of Architecture

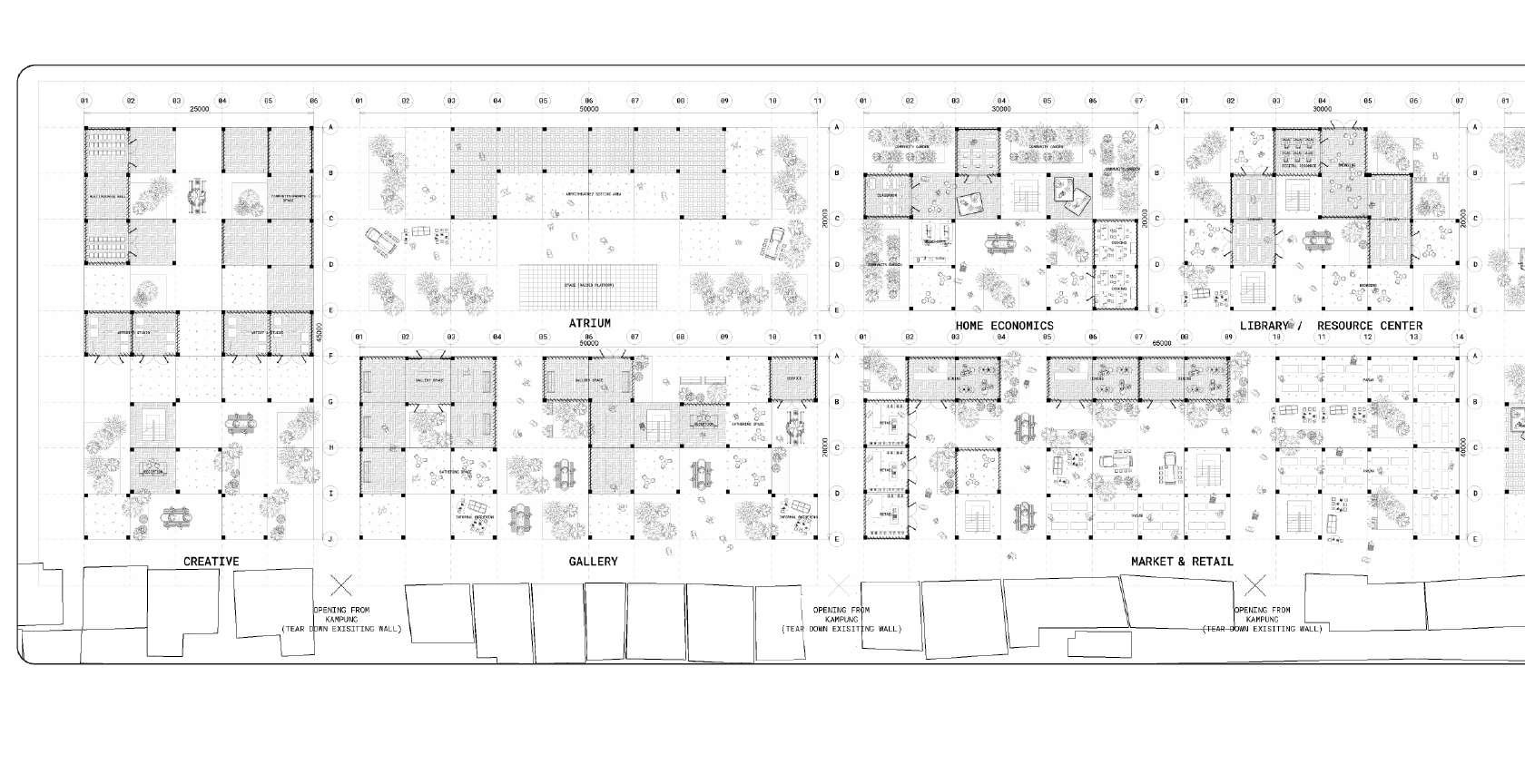
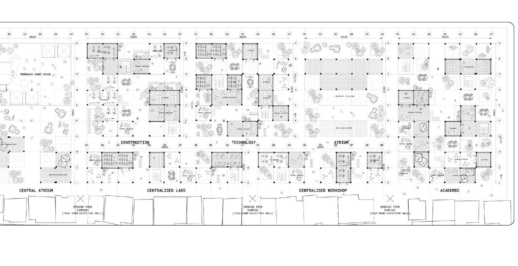
Mapping Transitions: Exploring Spatial Shifts as Substitute Urban Thresholds for Kampung Dwellers GROUND FLOOR PLAN

34
35 National University of Singapore | Master of Architecture
36
Mapping Transitions: Exploring Spatial Shifts as Substitute Urban Thresholds for Kampung Dwellers
37 National University of Singapore | Master of Architecture

Turn static files into dynamic content formats.

Create a flipbook
Issuu converts static files into: digital portfolios, online yearbooks, online catalogs, digital photo albums and more. Sign up and create your flipbook.