REVISTA AIA EDICIÓN 202

Page 1

Escanea nuestro codigo

CRISTALES - FACHADAS - PUERTAS AUTOMÁTICAS - BOXES DE BAÑO - PASAMANOS Y BARANDAS - TECHOS DE VIDRIOS - DIVISORIAS Y MAMPARAS - PARASOLES DE ALUMINIO - CIELO RASOS - REVESTIMIENTOS DE ALUMINIO

CARRERAS PRESENCIALES CARRERAS A DISTANCIA

24- ARQUITECTURA NACIONAL

VIVIENDA DE TIERRA LÍQUIDA OFICINA DE ARQUITECTURA X

58- AMBIENTE

CAPÍTULO IV PAISAJISMO EN LAS CIUDADES (CONT.) AMA

64- EVENTO

CONSTRUCTECNIA 2024

LA FERIA MÁS IMPORTANTE DEL SECTOR DE LA CONSTRUCCIÓN EN PARAGUAY

98- ENTREVISTA

AVANCES DE LA COSTANERA SUR PARA SU PROXIMA INAUGURACIÓN

SUMARIO STAFF

AGRADECIMIENTOS ESPECIALES

PREPARANDO CONSTRUCTECNIA 2024

Ingresamos a recta final donde los tiempos corren y nos acercamos a una nueva Constructecnia con el compromiso de mostrar en pleno al sector de la construcción a nivel local y las tendencias más importantes. Así también de convalidar la importancia que hoy tiene PARAGUAY, como epicentro del sector de la construcción en la región, donde se constituye en el polo de atracción más importante para grandes marcas e inversores de capital extranjero.

A decir de los especialistas, Paraguay será el país con mayor crecimiento en la región y sumado a ello sus ventajas competitivas tanto en aranceles como impuestos, hacen del país un escenario ideal para ejercer todo proyecto constructivo.

Así también, cabe destacar el importante impulso del sector privado al sumarse con su esfuerzo y sacrificio a la construcción de una tan anhelada infraestructura haciendo uso de toda herramienta financiera valida como las APP’S, ley de concesiones y otros que permiten ir sumando puntos y disminuir la enorme brecha de déficit que tenemos en materia de infraestructura.

Constructecnia, a decir de muchos, es la puerta al mercado paraguayo. Se constituye por el peso de los resultados durante tantos años, en la vidriera de presentación de las empresas y marcas que construyen en el mercado.

Quedemos expectantes. Porque seguramente, fiel al slogan, esta CONSTRUCTECNIA 2024, nos sorprenderá a todos.

Arq. Blas Amarilla | Arq. Ricardo Meyer | Arq. William Paats | Arq. Félix Toranzos |

Arq. Carlos Jimenez | Arq. Maria Luz Cubilla | Arq. Margita Kliewer | Arq. Curt Tippach

Arq. Pablo Ruggero | Arq. Aldo Cristaldo Kegler | Arq. Violeta Pérez |Arq. Paola Moure

Arq. Carlos Cabo de Vila| Ing. Paulo Yugovich | Ing. Miguel Stanischeski

Ing. Sergio E. Gavilán | Ing. César López Bosio | Instituto Superior de Arte.

PRODUCCIÓN GENERAL

Grupo Paraguay Eventos & Emprendimientos

Contactos: info@aia.com.py | info@paraguayeventos.com.py | revistaaiapy@gmail.com

Web: www.aia.com.py | Telefax: (595-981) 183 062 | Lambaré - Paraguay

La Revista AIA (Arquitectura, Ingeniería y Artes) es un producto registrado, con 12 ediciones anuales.

Los Textos y Artículos publicados son de exclusiva responsabilidad de sus autores.

Arquitectura | Ingeniería | Artes | Seguínos en redes

El Director.

Nº202

DIRECCIÓN GENERAL

Lic. Edgar Robinson

DIRECCIÓN EJECUTIVA

Sr. Felipe Velázquez Alén

ADMINISTRACIÓN

Sra. María René Dongo

Sr. Manuel Paniagua

revistaaia Revista Arquitectura, Ingeniería y Artes - AIA

13
Ensayo Horneros
NACIONAL
San Bernardino, Paraguay Bauen ARQ.
Fotografías
Darío Mereles
15 ARQUI TECTURA NACIONAL
Daniel Ojeda

“Allá, si el barro está blando, canta su gozo sincero. Yo quisiera ser hornero y hacer mi choza cantando.

Pues como su casa es centro de todo amor y destreza, la saca de su cabeza y el corazón pone adentro.

La trabaja en paja y barro, lindamente la trabaja, que en el barro y en la paja es arquitecto bizarro.”

“El Hornero”

Leopoldo Lugones “ ”

NACIONAL
ARQ.
“Para el hornero, construir es proteger”

Decía un renombrado ornitólogo cuando consultado sobre el estilo de vida de esta constructiva ave. En el mismo afán, las familias construyen sus casas, con el objetivo de crear un hogar en donde la vida se desarrolla. Un espacio para crecer y recibir a los miembros de la familia.

17 ARQUI TECTURA NACIONAL
ARQ. NACIONAL

ARQUI TECTURA NACIONAL

Con los dos volúmenes que emergen desde el terreno natural, se ejemplifica con claridad que la solidez volumétrica no es sinónimo de pesadez.

19

El dominio en el uso del tapial permite ver al proyecto y al paisaje como un todo, ya que gracias a la materialidad y su textura natural permiten una relación la cual la arquitectura está

totalmente adaptada al sitio y no transmite una sensación invasiva al contexto natural donde se implantan Los Horneros.

ARQ. NACIONAL

Con la materialidad, como el aluminio y el vidrio, se logra crear una atmósfera ligera tanto en fachada, como la sensación fenomenológica en el interior de ellas. Un par de volúmenes racionales, que albergan un programa predominantemente habitacional, los cuales en conjunto con elementos horizontales crean un lenguaje formal dinámico y a la vez, armonioso.

21 ARQUI TECTURA NACIONAL

En sus ambientes interiores, como resultado conjunto entre la materialidad alternativa, como lo es el tapial, y su orientación mencionada, posibilitan un microclima interno agradable y confort para los usuarios. También mencionar la

espacialidad y funcionalidad habitacional que albergan Los Horneros, permitiendo fluidez y dinamismo en sus recorridos entre ambas viviendas y su entorno natural, y paralelamente ofrece una percepción de refugio más íntimo y familiar.

ARQ. NACIONAL
23 ARQUI TECTURA NACIONAL
ARQ. NACIONAL

FICHA TÉCNICA

Nombre de la Obra: Ensayo Horneros

Ubicación: San Bernardino, Paraguay

Equipo de arquitectura: Bauen

Arquitectos principales: Arq. Aldo Cristaldo Kegler

Arq. José Cáceres

Otros participantes: Arq. Dina Agüero

Arq. Jaia Vida

Arq. Romina Irala

Arq. Saúl Acosta

Fotografía: Darío Mereles

Daniel Ojeda

Superficie: 466.80 m2

Año: 2022

Webgrafía: https://bauen.com.py/ proyectos/

25
ARQUI TECTURA NACIONAL
Vivienda de Tierra
Líquida
ARQ. NACIONAL
Fernando de la Mora, Paraguay Oficina de arquitectura X

L.C. 1920. Casas de hormigón líquido. Se echa desde arriba como llenaría una botella con cemento líquido. La casa se construye en 3 días. Sale del encofrado como una pieza de fundición. Pero uno se rebela ante procedimientos tan revolucionarios. ´´Hacia una Arquitectura´´

Le Corbusier.

27 ARQUI TECTURA NACIONAL

La construcción de un edificio es la materialización de una idea. La alquimia del tiempo transmuta los edificios, pero las ideas, estas son eternas. Le Corbusier había sembrado una idea que germinaría 100 años más tarde.

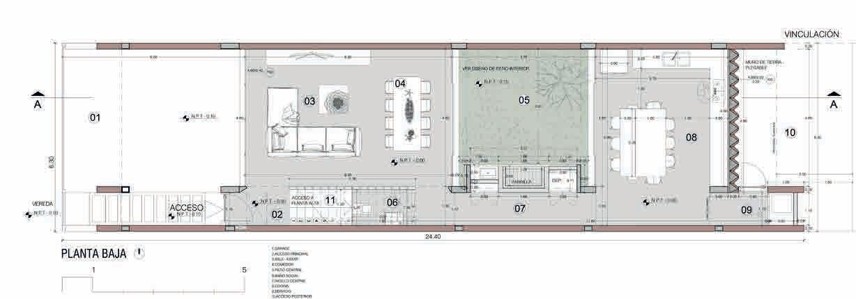
El proyecto se realiza en un lote de 6m de ancho y 25m de largo. El partido consiste en una vivienda con patio central que articula todos los espacios y resuelve la ventilación natural de los ambientes.

La casa se concibe como una caverna, con aberturas que parecen perforaciones en los muros dejando filtrar los rayos solares y entrever los espacios como tratamiento de arquitectura estereotómica, siendo la luz dibujada sobre los espacios en penumbras. En el interior la planta baja totalmente fluida y continua en planta libre, donde los espacios se definen interiormente solo a través de muros y recorridos como si de una cueva se tratase.

ARQ. NACIONAL
29 ARQUI TECTURA NACIONAL
ARQ. NACIONAL

Se materializa la construcción en suelo cemento vertido en encofrados, con paredes de 18cm, 15cm y 10cm de espesor. La técnica de vertir la tierra directamente como pieza de fundición supone la deconstrucción de su técnica hermana conocida como tapial o tierra apisonada.

Si bien el tapial posee prestaciones térmicas interesantes, los grandes espesores con que se construyen las mismas constituyen obstáculos para su empleo en zonas urbanas de dimensiones acotadas ya que en un lote angosto representaría una perdida fundamental de metros cuadrados, además del consumo excesivo de estabilizantes como el cemento y su elevado peso, lo que lo hace una técnica antieconómica en zonas urbanas en comparación de otras técnicas de construcción.

31
ARQUI TECTURA NACIONAL

La tierra vertida al poder ejecutarla con espesores reducidos posee menor consumo de material, se construye más rápido, son más livianas y ocupan menos espacio siendo totalmente adaptable a las ciudades como alternativa ecológica, económica yde buenas prestaciones térmicas.

La estructura se proyecta totalmente de hormigón armado, se diseña de manera eficiente a modo de reducir el consumo de los materiales, disminuyendo el impacto ambiental con respecto a las estructuras tradicionales. La estrategia adoptada, consiste en un esquema de vigas maestras a los lados que definen los espacios donde apoyan losas curvas de hormigón armado cuyas trayectorias siguen los diagramas de momento flector de las vigas, logrando trabajar solidariamente como mesas de compresión para los momentos positivos y negativos respectivamente.

Estas mesas de compresión reducen las secciones necesarias para las vigas y decrecen los espesores de losas a través del aumento de inercia generado por la curvatura, lo que conlleva un ahorro de 20% de hormigón y acero en comparación a una estructura convencional.

ARQ. NACIONAL
33 ARQUI TECTURA NACIONAL

Estas losas curvas parecieren como si se tratasen de un fluido de hormigón líquido. Representan la belleza de las formas que dibuja la gravedad.

La casa se materializa como una pieza de artesanía a gran escala, donde la tierra dirige la orquesta del espacio, fluido cuya morfología adquiere la de su recipiente, fraguando en paredes perforadas, lisas, sesgadas o pliegues de 10cm de espesor que se fugan al cielo. Como un cántaro construido con las manos, con la belleza de la tierra y el aroma a arcilla.

ARQ. NACIONAL
35 ARQUI TECTURA NACIONAL
ARQ. NACIONAL

FICHA TÉCNICA

Nombre de la Obra:

Vivienda de Tierra Liquida

Ubicación:

Fernando de la Mora

Arquitectos principales:

Arq. Nicole Jaquet

Arq. Felipe Ramirez Ilculese

Fotografía:

Leonardo Méndez

Daniel Ojeda

Superficie construida: 230m2

Área del terreno: 144m2

Año: 2020

37
ARQUI TECTURA NACIONAL

HORMIGÓN IMPERMEABLE

En este apartado se abarcará al hormigón impermeable, su utilización, sus ventajas, desventajas que puedan producir su utilización su composición, propiedades y el proceso de aplicación.

Se podría pensar que el hormigón impermeable es un elemento de hormigón en el que una de sus caras está en contacto con un líquido (agua) mientras que la cara opuesta permanece seca.

Esto en realidad no es el hormigón impermeable se puede tener un hormigonado con una permeabilidad muy alta en el que la cara opuesta a la que está en contacto con el agua permanece seca, debido a que tiene un espesor de varias decenas de metros.

Es decir, un caudal nulo o muy bajo de agua puede apenas atravesar un muro delgado de concreto de baja permeabilidad o el mismo caudal obtenerse con un muro muy grueso con un concreto de alta permeabilidad.

Se dice que un hormigón sin fisuras es “impermeable” si el volumen de agua que puede penetrar por un lado es menor que el volumen de agua que puede evaporarse por el otro lado. Se estima en la norma EN 206 / DIN 1048 el límite de penetración de agua para la impermeabilidad (e) en un hormigón de 50 mm.

Esto viene a decir que después de 5 centímetros el hormigón es impermeable, que va a depender de su composición y de su compacidad para llegar a considerarse impermeable completamente. Hablando de esto, sobre todo de la compacidad, hay que asegurarse de que el hormigón está bien ejecutado, y eso viene a ser, asegurarse de que está bien la mezcla arena cemento y agua, que los áridos son los correctos, que la temperatura de servicio ha sido la correcta, que ha tenido un vibrado según las recomendaciones de proyecto, la correcta disposición del armado de forma que evite la creación de vacíos y oquedades, y tantos factores que hacen inviable el poder garantizar una unidad de obra de hormigón armado ejecutado en obra.

Para ello existen los «remiendos» o soluciones que protegen mejor el muro. Tienen vital importancia las juntas de hormigonado, el tiempo que pasa entre los distintos vertidos, la clase del hormigón base con respecto del nuevo… que obligan a añadir más aditivos a la junta o a crear «venas» interiores al hormigonado en las cuales se «inyectará» resina o material hidroexpansivo.

INGENIERÍA

Existen 4 niveles de aceptación del paso de agua a través de, por ejemplo, un muro:

Nivel 1: Se toleran algunos refuerzos para las filtraciones y la humedad (grosor mínimo del muro: 150 mm.)

Nivel 2: No se tolera la penetración del agua, pero sí la del vapor de agua (grosor mínimo del muro: 200 mm.)

Nivel 3: Ambiente seco y ventilado (grosor mínimo del muro: 250 mm.)

Nivel 4: Ambiente completamente seco y ventilado (grosor mínimo del muro: 300 mm.)

Además de la protección de juntas de hormigonado y de la prevención a la hora de construir correctamente, existen aditivos que añadidos uniformemente y según las recomendaciones de los fabricantes mejoran la compacidad del hormigón y por tanto su impermeabilidad.

En la mezcla clásica, el hormigón no es 100% impermeable. La resistencia que tenga el hormigón al agua depende también de lo bien que se haya secado y endurecido. El hormigón fresco y húmedo es más susceptible de ser empapado de forma repetida que un hormigón ya completamente «acabado.

HORMIGÓN IMPERMEABLE

Consiste en un material de hormigón que es tratado previo a su vertimiento. Se le hace impermeable aplicándole agentes estabilizadores. Estos agentes, procuran que no haya huecos o grietas cuando el material seque, y en algunos casos, puede generar auto curación en el material.

Cuando se vierte el hormigón, los agentes estabilizadores toman su parte sellando el material, de tal manera, cuando éste seca, se encuentra impermeabilizado.

Generalmente, está compuesto de Sodio, el metal alcalino funciona como excelente repelente de agua. Al punto, que puede asegurar el sellado en casi 100%. Puede haber agentes estabilizadores a base de Aluminio (que funcionan como barrera).

Utilizarlo puede ayudar a prevenir problemas causados por la filtración. Al igual que representa un bajo consto en comparación con otros métodos.

39 INGENIERÍA

AGUA EN LA PASTA DE CEMENTO HIDRATADA

Agua química: Agua que es parte integral de los productos hidratados del cemento. No se pierde al secarse el cemento.

Agua de entre capas (zeolítica - absorción): Agua asociada con la estructura laminar de C-S-H. Retenida por fuerzas de Van der Waals. Se pierde bajo condiciones extremas de secado, (HR < 11%). Pasta de cemento reduce su volumen al perder esta agua.

Agua adsorbida: Agua adsorbida a la superficie de los sólidos por fuerzas físicas. Se pierde cuando HR < 30%. Su perdida genera importantes cambios de volumen.

Agua capilar: Agua presente en vacíos más grandes de 50 ź.

Agua de absorción: Rellena las porosidades del árido

UTILIDADES Y BENEFICIOS

El hormigón impermeable es una de las soluciones más eficaces para la protección contra el agua de lluvia en estructuras y revestimientos de hormigón. Este material se utiliza como alternativa a los sistemas tradicionales de revestimiento y construcción y para lugares en los que las grandes intervenciones constantes no son prácticas.

El hormigón se utiliza ampliamente en la construcción civil, y la resistencia es una de sus principales ventajas. Este material es más resistente en relación con otros sistemas de construcción y el más fácil de encontrar en el mercado.

Además, tiene una gran resistencia y permite el uso de aditivos de impermeabilización que aumentan la resistencia y la durabilidad de la estructura.

INGENIERÍA

La principal diferencia entre el hormigón convencional y el impermeable es la permeabilidad del material al agua. La primera es permeable y tiene características que permiten la penetración del agua a lo largo del tiempo, lo que la hace más susceptible a las manifestaciones patológicas. El segundo, en cambio, es un material menos permeable, que dificulta la penetración del agua con el tiempo. Cabe señalar que, en el caso del hormigón, cuanto mayor sea la compactación, mayor será la impermeabilidad, pero este resultado no puede conseguirse sin el uso de aditivos específicos.

El hormigón impermeable no sustituye al hormigón convencional en la construcción y cada tipo tiene características y funcionalidades diferentes, que deben respetarse en cada proyecto, según las necesidades estructurales.

PRODUCCIÓN DE HORMIGÓN IMPERMEABLE

Para fabricar el hormigón se realiza una mezcla de cemento, arena, agua, áridos gruesos y aditivos. Una vez listo, este material debe ser transportado o moldeado, en menos de 1:30 hs., salvo aditivos retardantes en tiempo caluroso. El proceso de curado del hormigón impermeable se realiza normalmente, como en el hormigón convencional.

El hormigón impermeable es indicado para lugares que recibirán alta incidencia de agua corriente y que requieren alta resistencia y bajo mantenimiento periódico, como revestimientos cementicios, pisos industriales de hormigón, pisos de hormigón atérmico, canchas deportivas, paredes prefabricadas, naves industriales, baldosas de hormigón. El proceso de impermeabilización de la superficie se produce cuando el hormigón se asocia con algunas capas de productos que repelen y no absorben el agua, como los hidrofugantes.

CÓMO SE USA EL HORMIGÓN IMPERMEABLE

El hormigón impermeable resalta por su versatilidad y resistencia al agua. Entre sus múltiples usos, se encuentran:

Sótanos y muros de contención: El hormigón protege eficientemente estos elementos contra la infiltración del agua y la humedad, reduciendo la necesidad de sistemas de drenaje perimetral y láminas impermeables. No obstante, eso no debería de ser sustitutivo de utilizar un buen sistema de drenaje en la edificación.

Depósitos, cisternas y estructuras de contención de agua: Perfecto para construir depósitos de agua, piscinas y otras estructuras similares, ya que proporciona una barrera eficiente contra la penetración del agua, incluso en situaciones donde el contacto con el agua es constante.

Construcciones en ambientes húmedos o mojados: En zonas con alta humedad o precipitaciones constantes, el hormigón impermeable se emplea en la edificación de estructuras y edificios, garantizando su durabilidad y resistencia al agua.

Pavimentos y suelos expuestos a la humedad: Este tipo de hormigón también es recomendable en la construcción de pavimentos y suelos, especialmente en áreas donde se requiere resistencia al agua y a la humedad, como garajes, almacenes y centros comerciales, y dónde el agua pueda penetrar por capilaridad.

41 INGENIERÍA

Al conocer el hormigón impermeable, es probable que los profesionales opten cada vez más por utilizar este material debido a sus numerosas ventajas en la construcción, especialmente en aquellos casos donde se requiere una protección efectiva contra la humedad, evitando así tratamientos adicionales.

Independientemente del material escogido, toda obra de ingeniería civil debe hacerse cargo de su relación con el agua.

En obras pequeñas o de gran envergadura en las que el hormigón es una excelente opción para levantar rápidamente sus estructuras, el agua puede ser contenida, separada de los espacios secos o conducida fácilmente, ya que su estructura microscópica permite que el líquido no lo atraviese fácilmente.

Pero los niveles de “impermeabilidad” del hormigón son tan amplios como los niveles de resistencia mecánica. De la misma forma que la resistencia mecánica, la permeabilidad del hormigón varía en dos órdenes de magnitud, existen hormigones cien veces más “impermeables” que otros.

La porosidad capilar en la imagen es del color negro y es el espacio no ocupado por los hidratos o componentes sólidos de la pasta. Al inicio de la hidratación los poros capilares se conectan tridimensionalmente entre sí, a medida que la hidratación progresa los poros capilares quedan aislados o desconectados.

Esta desconexión influye mucho en las propiedades de transporte de líquidos y gases a través de la pasta. La penetración de agua al interior del hormigón genera riesgos en la durabilidad y función de la estructura, incluso cuando no ha sido concebida para la contención del líquido. La penetración de agua es solo beneficiosa en ciertos casos, como el hormigón drenante. Para la mayoría de las aplicaciones en construcción de hormigón reforzado, la penetración del agua es un problema que puede comprometer el funcionamiento de la estructura.

INGENIERÍA

En las estructuras de hormigón destinadas a conducir o contener agua, el interés por tener un hormigón impermeable se concentra en no perder el líquido. Así mismo existen estructuras en las que se busca exactamente lo contrario, mantenerlas secas en el interior donde el agua no es deseable y deben permanecer estancas.

Para lograr estos objetivos se incorporan una serie de aditivos de alta tecnología; sustancias que aumentan la vida útil del hormigón reforzado y contribuyen a alcanzar el cometido de mantener el agua donde se ha previsto que permanezca o fluya. Estos pueden ser hidrofóbicos, bloqueadores líquidos, sólidos (talcos, arcillas, bentonitas, fillers activos etc.) y materiales cristalinos, o combinaciones de todas estas sustancias.

Ejemplo de aplicación y de ensayos de permeabilidad.

La porosidad capilar en la imagen es del color negro y es el espacio no ocupado por los hidratos o componentes sólidos de la pasta. Al inicio de la hidratación los poros capilares se conectan tridimensionalmente entre sí, a medida que la hidratación progresa los poros capilares quedan aislados o desconectados.

Esta desconexión influye mucho en las propiedades de transporte de líquidos y gases a través de la pasta. La penetración de agua al interior del hormigón genera riesgos en la durabilidad y función de la estructura, incluso cuando no ha sido concebida para la contención del líquido. La penetración de agua es solo beneficiosa en ciertos casos, como el hormigón drenante. Para la mayoría de las aplicaciones en construcción de hormigón reforzado, la penetración del agua es un problema que puede comprometer el funcionamiento de la estructura.

SELLADO DE HORMIGÓN PARA SUPERFICIES LISAS Y RESISTENTES AL AGUA.

Si se decide utilizar hormigón convencional para una nueva construcción o si ya se tiene una superficie de hormigón y se necesita hacer esta más resistente al agua, entonces el pulido del hormigón y el sellado es la mejor opción. Esto es debido a que los suelos de hormigón nuevos y existentes tienen una rugosidad microscópica en la superficie, que con el tiempo se desgasta y que dejarían de hacerlo si se lleva a cabo un pulido de hormigón.

Como se acaba de decir, cada día el hormigón se desgasta, esto genera problemas de polvo y hace que los poros se abran creando en la superficie espacios para que la suciedad, la humedad, los microorganismos y otras influencias dañinas penetren. Además, la silicificación y el sellado con la tecnología. Los productos utilizados penetran a centímetros de profundidad y endurecen la estructura hasta tal punto, que el hormigón ayuda a impermeabilizarse y en buena medida se hace resistente a los aceites y otros líquidos. Además, el desgaste y el desconchamiento termina siendo algo inusual. Los musgos, líquenes y algas no pueden asentarse y, por último, pero no menos importante, la limpieza es mucho más fácil.

43
INGENIERÍA

VENTAJAS.

Este hormigón es un 100% más resistente a cloruros que un hormigón normal. El índice de carbonatación que pueda sufrir el hormigón se ve reducido 4 veces para lograr una exitosa impermeabilidad, tiene un mejor acabado que la mayoría de los hormigones comunes y además una mejor textura en la superficie de este. En términos generales, este tipo de hormigón logra un 10% más de resistencia.

El hormigón impermeable reduce los mecanismos de corrosión dentro del hormigón, y esto conlleva a una mejora en la durabilidad estructural. En obras costeras y obras de conducción de aguas residuales, se logra una notable protección contra filtraciones de agua y corrosión, aunque sean entornos de alta exposición.

Porosidad reducida.

Reducción casi al 100% de la permeabilidad al vapor de agua y del agua en estado líquido. -Reducción de la contracción por secado. -Mantiene el agua afuera, o adentro, según requiera la estructura.

Reduce el costo y el tiempo de instalación.

Elimina el uso de productos sintéticos como membranas y otros a base de aceite (polietileno). -El hormigón impermeable reduce enormemente el desperdicio en el sitio.

Protege el acero de refuerzo contra la corrosión.

Les da a las estructuras de concreto una excelente resistencia al ataque de cloruros y sulfatos.

Conserva la pintura de las estructuras ya que no se caerán a causa de humedad.

Conserva en buenas condiciones los tendidos eléctricos internos proporcionando seguridad.Proporciona versatilidad debido a sus múltiples campos de uso.

Los químicos nocivos disueltos en el agua no pueden penetrar el hormigón impermeable para atacar los refuerzos. El agrietamiento por secado no puede ocurrir evitando la posibilidad de que exista tensión dentro de la estructura.

Mayor durabilidad e impermeabilidad: el hormigón convenientemente compactado retrasa el deterioro y carbonatación; a partir de fines de los ochenta se experimentó elaborando hormigón vibrado en un depósito de gas licuado, consiguiendo el primer HAC, consiguiendo una velocidad de ejecución del orden del 20% más rápido.

Alta resistencia: los hormigones de alta resistencia también pueden ser autocompactantes.

Compatible con armado de fibras, adición de colorantes, etc.

Menor contaminación acústica en la obra

DESVENTAJAS

Estricto control de dosificación: Uno de los inconvenientes en estos hormigones puede encontrarse en las dosificaciones según fabricantes, que debido a ciertas mínimas variaciones en los tenores de humedad en encofrados, pueden alterarlos; para evitarlo se recurre a moduladores de viscosidad, que controlan la segregación dando homogeneidad a la masa.

INGENIERÍA

Juntas frías posibles entre las amasadas si se descuida la continuidad en el vertido. Coste superior, entre un 15 a un 30% más que otros hormigones. Relación en la formulación de los aditivos, requiere dosificación muy controlada. Menor contaminación acústica en la obra.

CAMPOS DE USO DEL HORMIGÓN IMPERMEABLE

-Muros de contención y cimentaciones.

- Estructuras marinas

- Parques acuáticos.

-Trabajos de tratamiento de aguas residuales.

- Salas de plantas.

- Estaciones de servicio subterráneas.

-Áreas de almacenamiento de archivos.

- Túneles.

-Fachadas de hormigón.

Cualquier estructura de concreto que requiera durabilidad. Para las estructuras hechas de material de concreto, incluidos los lavabos blancos, el concreto no solo tiene tareas de carga de diseño estático, sino que también tiene la importante función de proporcionar sellado.

El hormigón impermeable es necesario en casi cualquier tipo de obra.

Incluso en la construcción de estructuras hechas de hormigón impermeable prefabricado también es posible

Extraído del libro:

Los Hormigones Especiales-Sabiendo cómo innovar en Concreto del Prof. Dr. Ing. Roberto Rojas Holden a ser lanzado el 23 de mayo de 2024 en el marco de Constructecnia 2024.

45
INGENIERÍA

Entrecruzados

…Bell atribuía a la mano un lugar privilegiado en la creación, y utilizó diversos experimentos para sostener que el cerebro recibe información más fiable del tacto de la mano que de las imágenes del ojo, que tan a menudo resultan ser apariencias falsas, engañosas… (Richard Sennett, La mano inteligente, en El artesano)

Con una llamativa doble operación sobre la imagen, William Paats trabaja algunos elementos que remiten a la naturaleza y la cultura. Dibujar determinados motivos, fuera o próximos a patrones de la estética textil- en este caso la del ahopoí-, bordar con hilo de algodón, sobre soportes pintados, ponen en escena un llamativo juego de referencias y metáforas cruzadas sostenidas sobre el enigma de valores ópticos y táctiles emergentes.

WILLIAM PAATS

Arquitecto – Artista visual

Nació en Coronel Oviedo en 1957. Arquitecto, artista visual y docente de arte. Arquitecto por la Universidad Nacional de Asunción 1984, realizó estudios de teoría, historia y talleres de arte en el Instituto de Arte-Idea dirigido por Olga Blinder de 1987 a 1992.

*
ARTE

Podemos suponer entonces que la estrategia prevé y busca trabajar en los límites de la expresión de lo pintado y dibujado como dimensión artística, en tanto el hilo refiere con sutileza al cosmos artesanal. En el caso que fuera, la propuesta deriva hacia conceptos y valores históricos culturales en los que se entrevé la vieja disputa entre arte y artesanía, meollo que aún destila en los feudos de la antropología.

En términos expresivos de la imagen, el color, rotundamente plano, es deudor de la tierra, el verde y el cielo: tres metáforas de la naturaleza deviniendo en cultura y cobijo socio histórico; mientras, una figura orgánica o geométrica tienta poéticamente con la línea y el hilo a patrones del mundo textil indo-colonial. Esta doble celebración de la forma del arte entrecruza su sentido en la hebra de hilo y la seducción de la línea como materialidad sublimada en el paisaje cromático.

Una mirada histórica nos advierte que las prácticas del arte contemporáneo son tributarias de la complejidad socio ambiental imperante: el flujo migratorio y el desborde de la imaginación; el disloque entre lo global y lo local; las penurias de la sostenibilidad ambiental y económica; la hipertrofia tecno-científica y la deriva impredecible del tiempo y el espacio determinan el arte y sus hacedores como entidades del desborde y la perplejidad. Por todo esto y más, la obra de arte hoy abreva en varias fuentes, apunta a prestamos y trasposiciones inquietantes, más que intertextual es abiertamente transgresora de formas alternativas, y muchas veces se ubica en los lindes del cinismo expresivo.

"Este panorama último, sin pretensión alguna de verdad, puede orientar, así parece, lo que plantea Paats en esta sugerente indagación de la forma visual del arte."

Carlos Sosa, junio de 2023

47
ARTE
ARTE
49 ARTE

CasaVerónica

Playa Poseidón — Pucusana, Perú Longhi Architects

ARQ. INTERNACIONAL

El deseo como arquitectos por encontrar un lenguaje "propio" partiendo de la aceptación de nuestro origen, que nos oriente a expresarnos con identidad, nos lleva a la búsqueda de una arquitectura Inca Contemporánea. Rescatando el legado pre-colombino basado en el respeto e integración a la naturaleza. Entender que la naturaleza es creación divina por lo tanto perfecta y aceptar la interpretación etimológica de la palabra "diseño" (signum = señal , divini = divino) como "el acto de tomar decisiones divinas" nos lleva a entender la enorme responsabilidad del arquitecto de ser el "guardián" del planeta.

51 ARQUI TECTURA INTER NACIONAL

ARQ.

En nuestro medio, resulta más difícil intentar ofrecer arquitectura peruana que arquitectura con tendencia foránea, complicándose el intento cuando muchas veces los encargos llegan con pedidos específicos de estilos ajenos a lo que tendría que ser en un contexto propio.

La casa Verónica fue una gran oportunidad para explorar esta búsqueda de 10 propio en un que más bien se relaciona mejor con el gusto internacional.

Concebida como Ia transformación y extensión de Ia naturaleza, como el encuentro feliz entre lo artificial y lo natural.

Así, una piscina de casi 40 metros de largo y una escalera de varios niveles son los elementos arquitectónico-paisajistas que permitieron Ia integración el lugar buscando siempre el equilibrio entre lo natural (la roca del lugar) y lo artificial representado la arquitectura misma, una composición volumétrica que podría interpretarse como Ia geometrización de Ia naturaleza del lugar.

Elementos iconográficos y escultóricos aparecen para lograr una estética desde la función que les toca, para iluminar y ventilar naturalmente y/o como generadores de mobiliario fijo en el interior.

INTERNACIONAL
53 ARQUI TECTURA INTER NACIONAL
0 1 5 0 1 5 0 1 5 ARQ. INTERNACIONAL

FICHA TÉCNICA

Nombre de la Obra:

Casa Verónica

Ubicación:

Playa Poseidón — Pucusana, Perú

Uso:

Casa de Playa

Estudio: Longhi Architects

Arquitectos principales:

Arq. Luis Longhi

Equipo de Proyecto:

Arq. Carla Tamariz

Arq. Christian Bottger

Construcción:

Arq. Hector Suasnabar

Fotografía:

Juan Solano

Superficie construida: 650m2

Área del terreno: 545m2

Año: 2012-2013

0 1 5 55 ARQUI TECTURA INTER NACIONAL

PUENTE HÉROES DEL CHACO

Un hito en la ingeniería paraguaya y un impulsor de nuevas inversiones.

La Ministra de Obras Públicas y Comunicaciones, Ing. Claudia Centurión, se refirió a la importancia de la inauguración del puente Héroes del Chaco, resaltando su significado como un hito en la ingeniería paraguaya.

Este proyecto, realizado por un consorcio de empresas paraguayas, marca una visión de largo plazo para el desarrollo de infraestructura en el país, siendo una muestra de continuidad más allá de los cambios de gobierno. Destacó la relevancia de las obras de infraestructura como políticas públicas de largo plazo y destacó que el puente ha generado un impacto positivo en el urbanismo y en la atracción de nuevas inversiones.

Además, la Ministra agregó que es de suma importancia cumplir los compromisos financieros con los contratistas para garantizar

la continuidad de las obras. En este sentido, mencionó que se ha logrado cancelar más del 90% de la deuda heredada, lo que permite avanzar en nuevos proyectos y desbloquear barreras financieras para las empresas contratistas.

La Ing. Centurión también habló sobre el proyecto de construcción del Gran Hospital en San Pedro, resaltando el compromiso del Ministerio de Obras Públicas en contribuir al desarrollo social a través de la construcción de infraestructura sanitaria. Además, informó sobre la próxima construcción de más de 1,500 viviendas en Pilar, financiadas con fondos sauditas, como parte de un proyecto integral de desarrollo urbano.

Por último, la titular del MOPC se refirió a la reactivación de la ley que impulsa el uso

Ing. Claudia Centurión Ministra de Obras Públicas y Comunicaciones

de pavimentos de hormigón rígido en las rutas, destacando la importancia de incorporar tecnología y nuevas técnicas de construcción para continuar en la senda del progreso y la innovación en el desarrollo de la infraestructura del país.

ENTREVISTA
57 ENTREVISTA

Más de 300 empresas inscriptas en el programa "Che Roga Porã"

Un total de 7,000 viviendas en proceso en todo el país.

El Ing. Juan Carlos Baruja, Ministro de Urbanismo Vivienda y Hábitat (MUVH) habló con respecto a los logros alcanzados durante los primeros 5 meses de su gestión.

Resaltó el éxito significativo en la construcción de viviendas sociales, triplicando los números alcanzados en administraciones

anteriores, con un total de 7,000 viviendas en proceso en todo el país. Este incremento ha generado empleo y un impacto financiero importante en las regiones, gracias a la adquisición de materiales y contratación de personal

Por otro lado, el titular del MUVH mencionó que el programa "Che Róga Porã" ofrece financiamiento a largo plazo para la clase trabajadora a tasas muy bajas. Con más de 300 empresas inscriptas para participar en la fase inicial, este programa ha generado una gran confianza en el sector constructivo y empresarial.

Además, celebró el avance en proyectos urbanísticos, como el desarrollo de viviendas en Chacarita Alta, que después de

Ing. Juan Carlos Baruja

Ministro de Urbanismo Vivienda y Hábitat (MUVH)

ENTREVISTA

un retraso significativo, finalmente ha avanzado con la firma de contratos y el inicio inminente de la obra.

.El Ministro expresó su satisfacción por el cumplimiento de estas metas, asegurando que se está trabajando en mantener altos estándares de calidad en las viviendas y en verificar la correcta utilización de los materiales mediante visitas periódicas a las obras en todo el país. Destacó la importancia de mantener la calidad y el tiempo de ejecución como prioridades para su gestión, asegurando que se continúe con el seguimiento cercano de los proyectos para garantizar su éxito.

59 ENTREVISTA
MEDIO AMBIENTE

Capítulo IV (continuación)

1. Paisajismo en Ciudades

El uso acertado de la vegetación requiere un equilibrio en la combinación de las especies y su introducción en el entorno construido, por lo que resulta imprescindible considerar que las especies son organismos vivos, dinámicos y en constante evolución. Algunas de las problemáticas que se hallan en el paisajismo de ciudades es que se encuentran con arbolados heredados, no ha existido una planificación específica respecto al tema, las ciudades se desarrollaron sin tener en cuenta el arbolado. En los proyectos arquitectónicos generalmente no se cuenta con un sistema de arborización en la obra y si en algún caso figura, no se cuenta con criterios técnicos para el mismo.

Cuando se decide plantar árboles es importante preguntarse el por qué y el beneficio que se desea obtener del árbol. Los árboles seleccionados en un medio urbano son el resultado de un proceso de selección y adaptación de especies, que han logrado resistir y sobrevivir a los agentes cambiantes de la ciudad. Se encuentran marcadas diferencias entre la selección de árboles en un medio urbano y la silvicultura rural tradicional, ya que los objetivos de la plantación de árboles, la ubicación, la configuración de plantaciones y la ordenación de los árboles no son iguales en las zonas urbanas que en las rurales.

Los aspectos más importantes para la selección de una especie están en función del servicio principal que se quiere y las características que ofrece cada árbol, además del impacto visual que cause.

Existe una necesidad de mejorar y perfeccionar la selección de especies de árboles en paisajismo urbano. Aún se mantiene la inadecuada selección de especies ya sea por gusto personal o por disponibilidad en los viveros municipales. Aún existe un gran desconocimiento popular sobre el comportamiento y requerimientos de las especies y un olvido de las especies nativas, omitidas por décadas en el paisajismo local.

Un punto muy importante que se puede observar en varios municipios es que el arbolado no compatibiliza con los espacios y tampoco cumple las funciones básicas que debiera cumplir. En muchos casos se recomendaría no plantar árboles, como por ejemplo bajo tendidos de alta tensión o en espacios muy estrechos entre acera y calzada. Paisajísticamente, estos espacios donde la siembra es incorrecta se ven afectados por la mala poda dejando al arbolado con deformaciones estructurales, problemas fitosanitarios, cortes reiterados de raíces, etc. Todo esto se considera daño al arbolado que ocasiona gastos económicos elevados, debido a la errada selección de especies o por plantar árboles en lugares inapropiados.

Para obtener los mejores beneficios según el proyecto de paisajismo que se desee desarrollar es recomendable poder contar con una proporción equilibrada entre especies caducas y siempreverdes, de manera a poder obtener los beneficios de ambas. Para el país, las especies siempre verdes en mayor proporción generará zonas sombrías y húmedas. Por lo tanto, al decidir se debe tener en cuenta dónde se desea crear sombra y si se desea que esté allí todo el año. Cada árbol posee una cantidad diferente de hojas (follaje) que regula la cantidad de luz que deja pasar. Además, en verano las hojas se posicionan de forma más vertical que en invierno, por lo tanto, la sombra será distinta en cada estación. Es importante que la relación entre sol/ sombra sea equilibrada para favorecer la permanencia de las personas en el espacio público.

61 MEDIO AMBIENTE AMA

3. Características naturales del Área Metropolitana de Asunción

2. Ciudades verdes

2.1. Recomendaciones de especies de plantas para edificios

El AMA es el área urbana más importante del país y tiene características propias de los ecosistemas urbanos, los cuales se encuentran determinados principalmente por las actividades humanas. Sin embargo, el ecosistema urbano del AMA se encuentra a su vez definido por las características naturales de los ecosistemas que la ocupaban en el pasado.

Para aumentar la sostenibilidad de las ciudades a largo plazo, la verticalización es un proceso necesario. El modelo de ciudades compactas de tipo mediterráneo, ciudades policéntricas y diversificadas, se impone en la nueva agenda verde urbana sobre el modelo de ciudades extendidas tipo americano donde existe segregación marcada de las zonas urbanas (residencial, centro económico, etc.).

Plantas repelentes y aromáticas

Por razones de interés público, para el ajardinamiento del AMA, habría que tomar muy en cuenta a las especies repelentes, por su utilidad para mantener al margen a los mosquitos vectores de enfermedades. Aquí la recomendación va directamente a las plantas más efectivas y salvo el cedrón (Aloysia citriodora), las demás son todas exóticas: cedrónkapi´i y citronela (Cymbopogon spp.), romero (Rosmarinus officinalis), ruda (Ruta chalepensis), eucalipto limón (Corymbia citriodora), albahaca (Ocimum basilicum), orégano (Origanum vulgare) y tomillo (Thymus vulgaris). Las plantas aromáticas exigen mucho sol y calor y la mayoría crece mejor en condiciones de aire seco.

El AMA está dentro de la ecorregión Litoral Central, que se caracteriza por tener una fuerte influencia del río Paraguay, sus llanuras de inundación y ecosistemas resultantes. Además, tiene ecosistemas y elementos que se encuentran en las ecorregiones vecinas: Chaco Húmedo, Ñeembucú y Selva Central. Es decir que, originariamente, el AMA, era un área de encuentro de una gran diversidad de ecosistemas diferentes, cada uno con sus características propias, pero inmersos en un paisaje de tipo mosaico natural, en donde también se incluían algunas áreas transicionales donde las especies de diferentes ecosistemas interactuaban, formando los ecotonos.

Setos no espinosos

En las ciudades muchas veces es necesario demarcar espacios, pudiéndose usar los setos vivos, por lo funcional y estético. Por suerte existen especies nativas que parecen tener cualidades especiales para estos fines, como por ejemplo la lantana (Lantana camara), el guapuru (Myrciaria trunciflora), el yvyra kamby (Sepastiania brasiliensis) (existe un ejemplo muy interesante en el Jardín Botánico de Asunción) y el guajayvi (Cordia trichotoma) (quizás no como “seto”, por su gran tamaño, pero sí para crear barreras verdes para la contaminación sonora y del aire, así como para hacer formas caprichosas y estéticas con un árbol nativo).

Este mosaico natural de ecosistemas integraba: bosques inundables y no inundables,

sabanas y matorrales inundables y no inundables, humedales temporales y permanentes. Estos ecosistemas formaban ecotonos, donde la vegetación dominante y su fisionomía estaban definidas principalmente por el tipo de suelo, la altura sobre el nivel del mar, la inundabilidad y la cercanía a una fuente de agua o del nivel freático. Es importante acotar aquí que en los cerros también juega un papel muy importante la posición, ya que los vientos (dominantes, cálidos o fríos, secos o húmedos) y la cantidad de insolación (mayor o menor) influyen en la composición de especies.

Estas formaciones naturales todavía pueden observarse en algunos lugares relictuales, pero con una fuerte presencia de leñosas pioneras y secundarias generalistas. De hecho, la cobertura arbórea espontánea actual del AMA está representada principalmente por especies pioneras y secundarias.

En el Jardín Botánico y Zoológico de Asunción se encuentra uno de los últimos remanentes de bosque nativo del AMA y en éste pueden verse algunas especies típicas de los bosques

Guía de Arborización Urbana para el Área Metropolitana de Asunción 26
MEDIO AMBIENTE

área de influencia del río Salado, ye especies de las sabanas hidromórficas

Es así como cada vez más debe pensarse en balcones, terrazas y jardines verticales para aportar verde y diversidad de vida. Para cualquiera de las tres opciones, las plantas a utilizar tienen que ser resistentes al estrés que provoca la vida en estos micro-hábitats urbanos, caracterizados por las corrientes de aire constantes, que impiden que el aire mantenga la humedad. Según dónde se coloquen, también pueden sufrir más fuertemente las consecuencias de la radiación solar, o de la acción física de los vientos y tormentas, así como de las heladas y de las olas de calor. Por eso, como regla general, las plantas más adecuadas para este tipo de micro-ecosistemas suelen tener algún tipo de adaptación a la evapotranspiración excesiva o al viento.

Setos espinosos - Cercos vivos

Una necesidad a veces es que estas demarcaciones sean infranqueables o difíciles de atravesar, para lo cual se pueden hacer cercos vivos de especies nativas con espinas, como por ejemplo la cangorosa (Monteverdia ilicifolia), la cina (Parkinsonia aculeata), el yvope (Gleditsia amorphoides) y los cactus espinosos con hojas del género Pereskia denominados comúnmente “amapola” por sus flores. Algo parecido se puede hacer con las especies nativas de Acacia. También se pueden hacer cercos de otros cactus espinosos, de los géneros Opuntia, Cereus, Brasiliopuntia y otros que tengan el tamaño adecuado. La tuna Cereus stenogosus, además de por su fácil plantación (por gajos), por su crecimiento vertical columnar

riparios de la cuenca del río Paraguay y Paraná como por ejemplo: taruma (Vitex megapotamica), yva povo (Melicoccus lepidopetalus), ñandypa guasu (Genipa americana); así como algunas de las especies leñosas típicas de los bosques estacionales más australes: kurupa´y kuru (Anadentanthera colubrina), jukyry vusu (Pisonia zapallo), yvyra ju (Albizia niopoides) junto a las más occidentales del Bosque Atlántico del Alto Paraná – BAAPA: inga´i (Inga marginata) pykasu rembi´u (Chrysophyllum marginatum); cedrillo (Trichilia palida). Además, se pueden observar leñosas del Chaco húmedo como el labón (Tabebuia nodosa) Coccoloba sp.; Capparis sp. y de los bosques-matorrales de las sabanas arboladas tatare (Chloroleucon tenuiflorum), ñanduvay (Prosopis affinis) sapirangy (Tabernaemontana catharinensis). Otra área que mantiene gran parte de su cobertura boscosa natural es el Cerro Lambaré, en donde dominan elementos del bosque estacional, principalmente el kurupa´y kuru (A. colubrina). Además, en el AMA existen todavía algunas formaciones naturales de leñosas en zonas inundables y riparias que mantienen algunas de las especies nativas locales, como por ejemplo el

Chaco húmedo, como los palmares day (Copernicia alba), junto con leñosas los humedales como jakare pito (Aporosella chacoensis), yvyra ne (Microlobius kurupika´y (Sapium haematospermum).

podría ser especial para crear cercos, plantando los gajos uno al lado del otro.

Muros y fachadas verdes

Para aumentar el confort térmico, en el AMA se utilizan principalmente plantas trepadoras exóticas para cubrir muros y fachadas, así como para pérgolas y parraleras, pero hay que tener en cuenta que también existen especies nativas que pueden ser usadas para esto mismo, como por ejemplo ysypo san juan (Pyrostegia venuta) y uña de gato (Dolichandra unguis-cati). Existen variedades de jardín mejoradas de ambas especies que florecen por más tiempo que las variedades silvestres, que se podrían aprovechar para esta función.

En la figura 4, que define las curvas vel, Asunción “la ciudad de las siete y otras áreas del AMA, aparecen como de una elevación natural sobre la de la llanura chaqueña del lado del río Paraguay. Algo parecido al paisajístico y geológico se ve al otro río denominado “Cerrito”, una colina fine las características naturales de de Benjamín Aceval, que suele interpretarse como “una isla de suelo más elevado, so, rojizo y con una cobertura vegetal racterísticas de la Selva Central, en de un mar de sabana inundable húmedo”.

Guía de Arborización Urbana para el Área Metropolitana
63 MEDIO AMBIENTE AMA

Floración y fructificación:

1. Agua´i Chrysophyllum gonocarpum (Mart. & Eichler) Engl.

Familia: Sapotaceae

Origen: Local y representativo en el AMA.

Sol/Sombra:

Es una especie que se adapta a semi-sombra y sombra.

Florece de octubre a febrero y fructifica de marzo a octubre. Posee frutos comestibles tanto para el ser humano como para la fauna.

Descripción: Árbol de porte mediano de 8 a 10 m de altura con crecimiento moderado. La copa es alargada, verde oscura y densa. Es una especie siempreverde. No posee ces superficiales ni espinas.

Observaciones ecológicas:

Sensible a las heladas:

No.

Sus flores son de color blanco-verdosas y sus frutos de color amarillo-anaranjado muy buscados por las aves. Tiene un sistema de látex bien desarrollado.

Especies nativas para arborización urbana

Usos varios:

Tiene uso medicinal.

Sol/Sombra:

1.

Floración y fructificación:

Zonas recomendadas para plantar de acuerdo con de suelo:

Florece de octubre a febrero y fructifica de marzo a octubre. Posee frutos tibles tanto para el ser humano como para la fauna.

Esta especie puede plantarse en zonas altas de suelo

Observaciones ecológicas:

Sus flores son de color blanco-verdosas y sus frutos de color amarillo-anaranja do muy buscados por las aves. Tiene un sistema de látex bien desarrollado.

Uso urbano:

Es una especie que se adapta a semi-sombra y sombra.

Agua´i Origen: Local y representativo en el AMA.

Origen: Local y representativo en el AMA.

1. Agua´i

Chrysophyllum gonocarpum (Mart. & Eichler) Engl.

Usos varios:

Tiene uso medicinal.

Sensible a las heladas:

Sol/Sombra:

Descripción: Árbol de porte mediano de 8 a 10 m de altura con crecimiento moderado.

No.

Es una especie que en ambientes urbanos proporciona ello puede ser plantada en parques, plazas, jardines cimiento de bosques urbanos, restauración de bosques como especie para bosques comestibles y como barrera

La copa es alargada, verde oscura y densa. Es una especie siempreverde. No posee raíces superficiales ni espinas.

Es una especie que se adapta a semi-sombra y sombra.

Descripción: Árbol de porte mediano de 8 a 10 m de altura con crecimiento moderado. La copa es alargada, verde oscura y densa. Es una especie siempreverde. No posee raíces superficiales ni espinas.

Familia: Sapotaceae

Floración y fructificación:

Uso urbano vial:

Sensible a las heladas:

No.

Florece de octubre a febrero y fructifica de marzo a octubre. Posee frutos comestibles tanto para el ser humano como para la fauna.

Zonas recomendadas para plantar de acuerdo con el tipo de topografía y tipo de suelo: Esta especie puede plantarse en zonas altas de suelo rojizo arenoso.

Uso urbano:

Sus flores son de color blanco-verdosas y sus frutos de color amarillo-anaranjado muy buscados por las aves. Tiene un sistema de látex bien desarrollado.

Floración y fructificación: Florece de octubre a febrero y fructifica de marzo a octubre. Posee frutos comestibles tanto para el ser humano como para la fauna.

Zonas recomendadas para plantar de acuerdo con el tipo de topografía de suelo:

Esta especie puede plantarse en zonas altas de suelo rojizo arenoso.

Apta para veredas de tamaño medio, veredas grandes chos, funcionando como conector verde. Por su gran plantar en lugares definitivos después de formado el a 5 años en un vivero especializado.

Uso urbano:

Poda:

Es una especie que en ambientes urbanos proporciona sombra todo el año por ello puede ser plantada en parques, plazas, jardines amplios. Útil para enriquecimiento de bosques urbanos, restauración de bosques protectores de cauces, como especie para bosques comestibles y como barrera rompe viento/sonido.

Es una especie que se adapta a semi-sombra y sombra.

Observaciones ecológicas: Sus flores son de color blanco-verdosas y sus frutos de color amarillo-anaranjado muy buscados por las aves. Tiene un sistema de látex bien desarrollado.

Es una especie que en ambientes urbanos proporciona sombra todo el año ello puede ser plantada en parques, plazas, jardines amplios. Útil para enrique cimiento de bosques urbanos, restauración de bosques protectores de como especie para bosques comestibles y como barrera rompe viento/sonido.

Uso urbano vial:

Uso urbano vial:

No posee ramificación colgante o semi-colgante, así tencialmente peligrosas. Puede realizarse poda de bién mantenerse fácilmente por debajo del cableado Segrega látex blanquecino al ser cortada.

Zonas recomendadas para plantar de acuerdo con el tipo de topografía y tipo Esta especie puede plantarse en zonas altas de suelo rojizo arenoso.

Usos varios: Tiene uso medicinal.

Dificultad del cuidado:

Apta para veredas de tamaño medio, veredas grandes y paseos centrales chos, funcionando como conector verde. Por su gran dimensión se recomienda plantar en lugares definitivos después de formado el plantín durante al menos a 5 años en un vivero especializado.

Apta para veredas de tamaño medio, veredas grandes y paseos centrales anchos, funcionando como conector verde. Por su gran dimensión se recomienda plantar en lugares definitivos después de formado el plantín durante al menos 3 a 5 años en un vivero especializado.

Es una especie que en ambientes urbanos proporciona sombra todo el año por ello puede ser plantada en parques, plazas, jardines amplios. Útil para enriquecimiento de bosques urbanos, restauración de bosques protectores de cauces, como especie para bosques comestibles y como barrera rompe viento/sonido.

Poda:

Zonas recomendadas para plantar de acuerdo con el tipo de topografía y tipo de suelo: Esta especie puede plantarse en zonas altas de suelo rojizo arenoso.

Medio a exigente. Necesita riego mínimo los primeros trasplante, riego indispensable durante el primer Debe realizarse la poda de mantenimiento correspondiente.

No posee ramificación colgante o semi-colgante, así como tampoco ramas tencialmente peligrosas. Puede realizarse poda de túneles de cableado bién mantenerse fácilmente por debajo del cableado mediante poda periódica. Segrega látex blanquecino al ser cortada.

No posee ramificación colgante o semi-colgante, así como tampoco ramas potencialmente peligrosas. Puede realizarse poda de túneles de cableado y también mantenerse fácilmente por debajo del cableado mediante poda periódica. Segrega látex blanquecino al ser cortada.

Dificultad del cuidado:

Apta para veredas de tamaño medio, veredas grandes y paseos centrales anchos, funcionando como conector verde. Por su gran dimensión se recomienda plantar en lugares definitivos después de formado el plantín durante al menos 3

Dificultad del cuidado:

No posee ramificación colgante o semi-colgante, así como tampoco ramas potencialmente peligrosas. Puede realizarse poda de túneles de cableado y también mantenerse fácilmente por debajo del cableado mediante poda periódica.

Segrega látex blanquecino al ser cortada.

Uso urbano vial: Apta para veredas de tamaño medio, veredas grandes y paseos centrales anchos, funcionando como conector verde. Por su gran dimensión se recomienda plantar en lugares definitivos después de formado el plantín durante al menos 3 a 5 años en un vivero especializado.

Medio a exigente. Necesita riego mínimo los primeros seis meses después trasplante, riego indispensable durante el primer año después del trasplante. Debe realizarse la poda de mantenimiento correspondiente.

Medio a exigente. Necesita riego mínimo los primeros seis meses después del trasplante, riego indispensable durante el primer año después del trasplante. Debe realizarse la poda de mantenimiento correspondiente.

Medio a exigente. Necesita riego mínimo los primeros seis meses después del trasplante, riego indispensable durante el primer año después del trasplante. Debe realizarse la poda de mantenimiento correspondiente.

Capítulo V
Guía de Arborización Urbana para el Área Metropolitana de Asunción
MEDIO AMBIENTE

colgante/semi-colgante, sin embargo, sus ramas no es recomendable realizar poda de túneles de calátex/resina al ser cortado. mínimo, los primeros seis meses después del trasplante. mantenimiento correspondiente.

2. Aratiku Origen: No es local en el AMA.

Árbol de porte pequeño de 3 a 6 m de altura con crecimiento moderado. La copa es redondeada y densa. Caducifolio. A veces de porte arbustivo. No posee raíces superficiales ni espinas.

Floración y fructificación: Florece de setiembre a diciembre y fructifica de diciembre a marzo. Posee frutos comestibles tanto para el humano como para la fauna local.

Observaciones ecológicas: Flores amarillentas al igual que los frutos. Su fruto es redondo, carnoso y bastante dulce.

* Este artículo continurá en ediciones posteriores de la Revista AIA

Fuente del artículo.

Sol/Sombra: Es una especie flexible que se adapta a pleno sol y semi-sombra.

Uso urbano: Útil para enriquecimiento de bosques urbanos y para bosques comestibles, así como también para restauración de bosques protectores de cauces.

MADES/PNUD/FMAM. 2019. Guía de Arborización Urbana para el Área Metropolitana de Asunción. Proyecto“Asunción Ciudad Verde de las Américas – Vías a la Sustentabilidad”. Asunción, Paraguay. 114 p.

81
81
y bastopografía y tipo arenocomestibles, así frutos reladesde ramas no de catrasplante.
65 MEDIO AMBIENTE AMA
EVENTO
EVENTO 67
EVENTO

Alveroni Doerksen

Gerente Comercial de Casa Climática

En la próxima edición de Constructecnia, Casa Climática SA presentará una variedad de productos, incluyendo ventanas y puertas de PVC, metal y madera para interior y exterior, así como hidromasajes y bañeras.

Alveroni Doerksen, Gerente Comercial de la empresa, destaca la novedad de sus productos en el mercado paraguayo, resaltando su aislamiento térmico y acústico, sellado contra polvo y agua, y el asesoramiento integral que ofrecen a los clientes. La empresa, especializada en aislamiento térmico, también ofrece servicios de planificación y construcción de viviendas, con planes de expansión.

Marcelo Páez

Gerente de Operaciones de Isolant Aislantes

Moderna empresa que fabrica láminas y tubos de espuma termoplástica, también fabrica y distribuye en nuestro país una amplia gama de aislantes mayormente aplicadas a la construcción.

Marcelo Páez, Gerente de Operaciones de Isolant Aislantes, anuncia que presentarán una línea de productos con terminaciones especiales y red incorporada, que ahorra hasta un 40% en mano de obra. Listos para colocar, estos aislantes 2 en 1 reducen el tiempo de instalación entre un 20% y un 40%, impactando positivamente en el costo total y reduciendo accidentes en altura en un 50%.

EVENTO 69

Ewald Dyck

Director Comercial de Dyck

En una entrevista para Constructecnia 2024, Ewald Dyck, Director Comercial de Dyck, destaca la presentación de aberturas de PVC Kömmerling, resaltando su durabilidad y eficiencia energética.

Se muestra optimista sobre el mercado paraguayo debido a la creciente demanda y tendencias de construcción. Enfatiza los beneficios técnicos y estéticos de sus productos, mientras reconoce desafíos logísticos por la importación de materia prima. Dyck, con una planta en J.E. Estigarribia, Caaguazú, destaca la importancia de mejorar la comunicación y las normativas para fortalecer el mercado.

César López

Gerente Superior de Marketing de VMA

VMA produce varillas de acero laminadas en caliente AP 500S, AP 420S, y varillas lisas de calidad A36. Algunas de las características de sus productos son la soldabilidad, la ductilidad en el doblado y la calidad.

César López, Gerente Superior de Marketing, señaló que la industria produce un commoditie, pero la innovación se encuentra principalmente en los procesos, los cuales constantemente experimentan mejoras a nivel tecnológico para optimizarlos. Este año obtuvieron la certificación ISO 9001. Además, implementaron el sistema de procesos SAP.

EVENTO

Lic. Cristian González

Gerente Comercial de Amanecer Pinturas

El Lic. Cristian González, Gerente Comercial de Amanecer Pinturas, destaca la nueva planta de látex de alta tecnología para el 2024. Presentan cemento quemado y otros revestimientos, con tonos minimalistas y personalización de colores.

Su línea "Deco" ofrece acabados mate, semibrillo y satinado, con tecnología de Nanopartículas de Cobre para protección contra bacterias y virus. Serán protagonistas en Constructecnia 2024, enfocados en proyectos de clientes y nuevos lanzamientos. Amanecer Pinturas, con 87 años de experiencia, destaca por su amplia cobertura nacional y compromiso con calidad y medio ambiente.

Jorge Alcaraz

Ejecutivo Comercial de CYPE Latinoamerica

Jorge Alcaraz, de CYPE Latinoamérica, destaca la presentación en Paraguay de la Versión 2025 de los programas de la empresa, con más de 40 años de experiencia en el sector. Resalta la eficiencia y calidad en construcción del mercado paraguayo y la positiva experiencia de CYPE en el país durante más de 20 años.

CYPE ofrece soluciones tecnológicas para el sector de la construcción y participará en Constructecnia 2024. Además, Presentarán mejoras en la interfaz del software y nuevas funcionalidades para facilitar el trabajo de los profesionales del área.

EVENTO 71

Giordania Tavares

CEO de Rayflex Postas Flexiveis

Giordania Tavares, CEO de Rayflex Portas Flexiveis, destaca el crecimiento del mercado en Paraguay y la demanda de innovación tecnológica.

La empresa presentará su puerta automática modelo RP en una feria próxima, la cual ofrece ahorros operativos y energéticos. Este producto ya está en uso en varios clientes en Paraguay y será exhibido durante el evento.

Guido De Salvo

Gerente de Marketing de H.Petersen

H.Petersen, representante de Caterpillar, ofrece respaldo y soporte técnico las 24 horas del día con un taller equipado y más de 90 técnicos.

Destacan por disponer de repuestos garantizados y servicios únicos en Paraguay, además de usar tecnología como Vision link para monitorear más de 600 equipos en tiempo real.

EVENTO

Ing. Juan Rivas

Gerente de Marketing de Luminotecnia

El Grupo Luminotecnia ofrece Generadores VCP, con potencias desde 7,5 KVA hasta 800 KVA, con tecnología de última generación y cabinas insonorizadas.

Según el Ing. Juan Rivas, el respaldo del Grupo y el servicio postventa son sus principales diferenciales. Destaca la importancia del asesoramiento técnico para dimensionar correctamente la potencia necesaria y garantizar la estabilidad eléctrica.

Carlos Cantero

Supervisor de Ventas de Comagro S.A.

Comagro S.A. ofrece marcas de generadores como Pramac para alta calidad y Hyundai, Wasko y Power Stream para opciones más económicas.

Carlos Cantero, supervisor de ventas, destaca el respaldo sólido, productos de calidad y visitas personalizadas para asesoramiento. Cantero enfatiza la importancia de analizar necesidades, espacio, nivel de ruido y condiciones ambientales al comprar un generador. Además, menciona beneficios en seguridad, productividad, evitar pérdidas y economía al contar con un generador.

EVENTO 73

Emilio Fernández

Gerente General de Italplast

Italplast presentará en Constructecnia sus últimas innovaciones en aberturas para techos gracias a su alianza con Velux. Emilio Fernández destaca la amplia gama de ventanas para techos inclinados y planos de Velux, con soluciones inteligentes como ventanas eléctricas o solares y accesorios como cortinas y persianas.

Fernández enfatiza la importancia de mejorar los estándares de construcción y sustentabilidad. Italplast ofrece productos de alta calidad y tecnología en aberturas verticales y horizontales, con énfasis en aislamiento térmico/acústico, durabilidad y alto nivel de terminaciones.

Luis Batista

Gerente de Pandolfo S.A.

Luis Batista, Gerente de Pandolfo SA, destaca los beneficios de invertir en Paraguay, como un mercado con gran potencial y una población laboral joven, junto con incentivos para atraer inversiones. Reconoce desafíos en fortalecer las vías de comunicación y ajustar las normativas para garantizar competencia equitativa y crecimiento continuo.

Pandolfo SA se prepara para la feria Constructecnia 2024, anticipando exhibir innovaciones tecnológicas y materiales sostenibles, reflejando así la recuperación y expansión del mercado.

EVENTO

Héctor Fretes

Gerente Comercial de Syopar

Syopar presentará en Constructecnia sus innovaciones en cámaras sépticas, destacando su potencial de crecimiento en Paraguay. Además de piscinas y tanques, ofrecen productos importados y electrodomésticos.

Héctor Fretes destaca la importancia de la feria para el posicionamiento de la empresa en el mercado de la construcción. Con más de 50 años de experiencia, Syopar ofrece soluciones en plásticos reforzados con fibra de vidrio para diversas industrias y hogares.

Heriberto Maggi

Gerente Comercial de FAPASISA

Fapasisa exhibirá productos innovadores de marcas internacionales en una próxima exposición, como rotomartillos de Einhell, maquinaria de Caterpillar, anclajes de ANCORA y QUIADSA, y equipos de soldadores italianos.

Heriberto Maggi resalta la inclusión de marcas como STARKPRO, STIHL, KARCHER y CHARBROIL. Destaca el crecimiento de las ferreterías como proveedores de soluciones para profesionales y hogares en Paraguay.

EVENTO 75

Francisco Falcón

Director de Britam S.A.

Fabián Giménez, Director de Britam S.A., destaca el enfoque en marcas líderes como Carrier y Midea en climatización, respaldado por un sólido servicio técnico y proyectos de instalación. La empresa es líder en climatización en Paraguay y participa activamente en eventos para mostrar las últimas tendencias y asesorar a profesionales de la construcción.

Giménez destaca el crecimiento continuo de la economía y la construcción en Paraguay, con perspectivas positivas para el futuro.

Ing. Jorge Méndez

Gerente General de CECON

Cecon posee una capacidad de producción de más de 1.000.000 de toneladas, una moderna planta de cal agrícola que genera 150.000 toneladas al año, y dos plantas de hormigón con tecnología de primer nivel.

Cecon apuesta a tecnología de punta, estándares internacionales en la eficiencia energética, mejores prácticas ambientales, equipo técnico de primer nivel y un plan integral de desarrollo social. Bajo la dirección del Ing. Jorge Méndez, se destaca en la producción de cemento, material de construcción de alta calidad, variedad de hormigones y cal agrícola.

EVENTO

Josué Borda

Gerente de Ventas de Importadora Colonial SRL

Importadora Colonial se prepara para presentar sus vinilos autoadhesivos IMPRIMAX, para la línea DECO. PISO, y COMUNICACIÓN VISUAL. Así también sus placas decorativas de PS de alto impacto.

En cuanto a innovaciones, Josué Borda, gerente de ventas de Importadora Colonial SRL, indicó que van a lanzar justamente sus placas decorativas, 7 diseños nuevos para línea de pisos y también pastillas con relieve autoadhesivas.

Todas las compras que se hagan en su stand en la expo van a tener 10% de descuento del precio de lista.

Marco Quintana

Gerente Comercial de Quivesa

Brindar soluciones en todo lo que respecta a movimiento y saneamiento del agua, es el objetivo principal de Quivesa. Este año, presentará toda una línea Smart, que implica monitoreo a través de teléfonos y el control de todo el sistema, de forma remota. Constructecnia será escenario de la presentación de sus productos.

Marco Quintana, gerente comercial de Quivesa, manifestó: “Contamos con todo lo que es la línea de bombas sumergibles, electrobombas sumergibles, bombas de empuje, todo ese tipo de equipamientos y lo que eso conlleva, como el tratamiento de agua.

EVENTO 77

El Grupo Olam SRL, destacada en el asesoramiento de licencias Microsoft y otras marcas, ofrece inteligencia artificial entre las innovaciones en herramientas tecnológicas utilizadas para optimizar el tiempo y reducir el trabajo manual en empresas.

En esta edición de Constructecnia, presentará la marca BricsCAD de Bricsys el cual representa de forma local. Es una herramienta de modelado y CAD profesionales, dirigido para diseñadores, creadores, ingenieros, arquitectos.

Vicente Cepeda Foster

Presentará en Constructecnia 2024 su nueva línea de negocios en Paraguay, que corresponde a aberturas de PVC, de fabricación propia. Además, innovaciones en tuberías, que permiten instalaciones más seguras y rápidas.

Presentarán también sus productos tradicionales que son los Caños de Polietileno para uso cloacal y pluvial, productos agrícolas y ganaderos. “También queremos aprovechar para presentar nuestra nueva línea de negocios en Paraguay, que corresponde a Aberturas de PVC, de fabricación propia y a precios muy competitivos”, manifestó Vicente Cepeda Foster, Gerente General.

Gerente de Productos de Olam Gerente General de Tehmco Paraguay S.A.
EVENTO

Osmar Lugo

Gerente de Tapé Ruvicha

Tapé Ruvicha apuesta a ofrecer productos innovadores que complementen lo que implica el universo de producción de sus clientes y responda a sus necesidades con el plus de ser amigable con la naturaleza.

“Esperamos contactar con clientes potenciales, tener contacto con empresas de nuestro rubro, segmento”, señaló Osmar Lugo, gerente de Tapé Ruvicha, sobre lo que esperan de esta edición de Constructecnia.

La firma se lanza en esta ocasión presentando lo que es Wega energy, iluminación solar, fotovoltaica, luminarias de calle, productos para el hogar, para el segmento industria.

Mariano Espinosa

Gerente General de Ital Vinil

Ital Vinil llega a la 24° edición de Constructecnia desde Argentina, con la más óptima variedad de productos, como empresa líder en fabricación de tuberías. Los visitantes podrán conocer todo sobre sus tuberías de PEAD (Polietileno de Alta Densidad), además de mallas de vallado y de advertencia.

“Buscamos permanentemente innovar en el campo de la fabricación de tuberías, nuevas tecnologías y materiales. La empresa lleva su acción comercial más allá de la mera entrega de los productos, encargándose también en el asesoramiento técnico y servicio de fusión en obra”, manifestó Mariano Espinosa, Gerente General de Ital Vinil.

EVENTO 79

Ing. Marcos García

Gerente General de Cielo Azul

Cielo Azul Cemento tiene plantas en Uruguay y 4 en Paraguay. Se destacan en dar atención personalizada con los clientes, atendiendo a la frase “a los paraguayos les gusta hacer negocios con los amigos”, señaló el Ing. Marcos García, Gerente General.

Estarán presentes en la 24° edición de Constructecnia, en la que van a exponer sobre sus innovaciones y proyectos de crecimiento para brindar una mejor atención al público. Recientemente realizaron inversiones para ofrecer un servicio de calidad, además de asesoramiento técnico.

Lic. Romina Arguello

Gerente Administrativo de Tosco-Piemontesa S.A.

Las aberturas con estilo y tecnología italiana, que se comercializan exitosamente en el exigente mercado europeo son de la Maderera Tosco -Piemontesa SA, que presentará en la 24° edición de Constructecnia, sus productos como corredizas, ventanas y puertas de madera, mosquiteros, con acusticidad y hermetismo.

Con basta experiencia en el mercado, calidad y profesionales calificados, los beneficios que los clientes pueden tener son servicios pos venta, garantía y por supuesto, calidad, según indicó la Lic. Romina Arguello, gerente administrativo de Tosco-Piemontesa S.A.

EVENTO

Jerónimo Rüedi

Director de Vault

Desde Argentina, llega Vault Accesos Inteligentes a la 24° edición de Constructecnia, en donde por primera vez contará con un stand en el que se explayará ante los visitantes, exponiendo sobre sus productos, reconocidos por su calidad, tecnología e innovación.

“La idea es ver posibilidades de hacer alianzas estratégicas con alguna empresa de Paraguay”, señaló Gerónimo Ruedi, Director de Vault. Entre sus productos se destacan las cerraduras electrónicas, cajas de seguridad, heladeras, minibares, interruptores de energía que permiten activar o desactivar la energía de la habitación, entre otros.

Ing. Guillermo Cáceres

Director de LUME Ingeniería

En una entrevista exclusiva con el Ing. Guillermo Cáceres, Director de Ingeniería Lume, se destaca la trayectoria de la empresa en prevención contra incendios en Paraguay.

Han liderado proyectos emblemáticos. Su compromiso con la capacitación constante y la calidad en el servicio los distingue en el mercado. Actualmente en proceso de obtener certificaciones ISO, continúan ofreciendo soluciones innovadoras y seguras para proteger vidas y activos.

EVENTO 81

Rubén Mujica

Director General de Steelcon

Steelcon, experta en estructuras metálicas y aberturas de PVC, ofrecen soluciones eficientes apostando por al tecnología. “Creemos que con tecnología se puede ofrecer soluciones constructivas sumamente efectivas y eso es lo que el equipo técnico de Steelcon permanentemente está buscando”, afirma Rubén Mujica, Director General.

Actualmente están desarrollando dos nuevos productos, dos soluciones constructivas que van a hacer que las empresas constructoras y empresas finales de Steelcon puedan lucirse en industrias, comercios o centros logísticos. En Constructecnia, prevén realizar promociones de todo lo que ofrecen en el mercado.

Ing. Eduardo Viedma Paoli

Presidente de Energía Alternativa S.A.

Energía Alternativa S.A. es una empresa paraguaya que está fuertemente comprometida con la ecología y la humanidad, por lo que provee productos y servicios amigables al medio ambiente, que puedan ser implementados a la vida diaria.

El Ing. Eduardo Viedma Paoli, presidente de Energía Alternativa SA, adelantó que cuentan con proyectos de gran envergadura en puerta, para los cuales tendrán el respaldo de marcas mundiales. En Constructecnia, darán a conocer lo más nuevo de sus productos.

EVENTO

Jeff Lovera

Director Comercial de EG del Sol Emprendimientos Inmobiliarios

EG del Sol Emprendimientos Inmobiliarios, presentará en Constructecnia su categoría “Clásica”, que consiste en viviendas de acceso económico de gran facilidad.

“Nuestra expectativa está en la implementación en lo que es la calidad constructiva, específicamente en lo que llamamos categoría Clásica, que son viviendas de acceso económico fácil. En eso se basa nuestra expectativa de llegar a más familias”, manifestó Jeff Lovera, director comercial de EG del Sol Emprendimientos Inmobiliarios.

Katherine Colombino

Gerente General de SSC SRL

SSC SRL Ofrece un servicio de Soporte de Servicios muy solicitado, incluso por clientes de la competencia. Sus principales rubros son la construcción, Metalurgicas, los laboratorios, farmacéuticas, distribuidoras y el rubro comercial.

En esta edición de Constructecina, presentarán las últimas innovaciones que desarrollaron para el rubro específico. Ofrecerán una atención especial a quienes visiten el stand, según adelantó Katherine Colombino, Gerente General.

EVENTO 83

Daniel Benítez

Ejecutivo Comercial ON

TK Elevadores ofrece servicio de mantenimiento preventivo mensual y asistencia técnica a todos los ascensores de su marca y ascensores de otras marcas según el pedido del cliente. Para el equipo de TK Elevadores, Constructecnia “es la feria mas importante del país y es importante estar en la mente de las personas”.

La firma tiene soluciones para el transporte vertical, soluciones para centros comerciales, para discapacitados, etc. “Queremos que la gente conozca en Constructecnia sobre nuestros productos, precios y asesoramiento”, añadió Daniel Benítez, ejecutivo comercial ON.

Fátima Cardozo

Encargada de Publicidad de Sider Agro

SiderAgro SA, es representante exclusivo de Resicolor Pinturas. La firma trabaja con una gran cantidad de marcas reconocidas y asesores de ventas en todo el país. En su primera vez en Constructecnia, su stand será escenario para demostrar al púbico todos sus productos, como complementos de esmaltes, pinturas acrílicas e industriales.

Se enfocarán en mostrar al público y clientes todas las novedades dentro de su gama de productos. “Vamos a tener capacitaciones, premios, así que le esperamos a todos en nuestro stand”, invitó Fátima Cardozo, encargada de Publicidad de SiderAgro.

EVENTO

Ing. Luciano Labriola

Director de IL Group

En su búsqueda de establecerse en el mercado paraguayo y sudamericano a través de Constructecnia, IL Group Constructora de Piscinas, presentará en su stand todas las innovaciones en sus productos.

“Queremos poder relacionarnos con empresarios de la construcción, posibles proveedores, y demás. El Paraguay está en un crecimiento de construcción muy alto y la idea es el relacionamiento con nacionales y extranjeros”, señaló el Ing. Luciano Labriola, director de IL Group.

Arq. Fernando Szmuc

Director de Baek Szmuc - BSC S.A.

Apostando en la inversión en Paraguay con la construcción de un edificio sobre la avenida Primer Presidente, BSC desembarca en Constructecnia 2024.

Se trata de una construcción con 4 niveles de residencia y 1 área común, con un concepto arquitectónico inspirado en el ave "Fragata", según explicó el Arq. Fernando Szmuc, Director Baek Szmuc - BSC S.A. Contarán con un stand en la 24° edición de Constructecnia, en donde expondrán sobre sus proyectos y más recientes innovaciones en el rubro.

EVENTO 85

Roberto Centurión

Gerente General de Tecnoservice S.A.

En Tecnoservice trabajan en el diseño de proyectos de climatización. Además del diseño de los proyectos, se encargan de la provisión de los equipos y la instalación de los mismos en obras residenciales, comerciales e industriales. Tecnoservice da al cliente el respaldo de trabajar con una empresa profesional que lo acompañará en todo el proceso con asesoramiento técnico.

Tecnoservice SA estará presente con su stand en la 24° edición de Constructecnia, muy cerca de sus clientes y potenciales nuevos clientes. “Vemos Constructecnia como una plataforma de negocios muy importante”, manifestó Roberto Centurión, Gerente General de Tecnoservice SA.

Fernando Patiño

Director Comercial de la Universidad UNIDA

La Universidad Unida estará exponiendo en Constructecnia sobre lo más nuevo en tecnología educativa. Expondrán sobre realidad aumentada, simuladores de vuelo, destiladora de cerveza digital, drones, robots, cartings solares, etc“Estamos seguros de que participar de esta feria nos dará aún más posicionamiento.

Queremos estar cada vez más cerca de los futuros estudiantes y estaremos exponiendo todos nuestros productos, servicios y principalmente los beneficios siendo estudiantes de nuestra casa de estudios”, manifestó Fernando Patiño, Director Comercial Universidad UNIDA.

EVENTO

JG DECOR PY se especializa en la creación de espacios exteriores funcionales y estéticamente atractivos, utilizando materiales innovadores como la Madera Plástica Ambiental. En Constructecnia, buscarán nuevas alianzas, llegar a más profesionales como arquitectos, ingenieros, además de reforzar y posicionarse mejor.

“Además de presentar nuestros nuevos productos, queremos capacitar a más personas, llegar a más personas. Les invitamos a todos a Constructecnia, vamos a esperarles en nuestro stand con novedades y obsequios”, indicó Jaime Benítez, CEO Fundador.

Portatec Puertas Automáticas ofrece soluciones en automatismo para puertas peatonales, accesos grandes. Son puertas con certificación internacional.

También están en el área hospitalaria con puertas herméticas y en el área industrial con puertas rápidas. “Vemos Constructecnia con muy buenos ojos para hacer nuevos contactos comerciales, dar a conocer nuestros productos, hacer nuevas amistades y estamos seguros de que nos va a dar mayor visibilidad en el mercado”, señaló Daniel Paredes, director de Portatec SA.

EVENTO 87

STEELCON Soluciones constructivas eficientes respaldadas por tecnología de vanguardia

Rubén Mujica, Director de SteelCon mencionó que la empresa fue fundada hace 5 años, motivada por el crecimiento del mercado paraguayo y la demanda de soluciones tecnológicas y eficientes en la industria de la construcción.

Enfatiza el compromiso que tienen para ofrecer soluciones constructivas eficientes respaldadas por tecnología de vanguardia, lo que ha ganado la confianza de grandes empresas como el Grupo Zuccolillo, Atlante, la Cooperativa Chortitzer y varias farmacéuticas, quienes han adoptado su tecnología para mejorar la calidad y eficiencia de sus productos.

Además, destaca el continuo desarrollo de nuevos productos y soluciones constructivas por parte del equipo técnico para garantizar que sus clientes cuenten con lo mejor que la industria tiene para ofrecer.

Por último, Mujica expresa su orgullo de pertenecer a una empresa paraguaya que emplea a más de 100 personas y se destaca por la calidad y el compromiso de su equipo profesional, tanto nacional como extranjero.

ENTREVISTA
89 ENTREVISTA
EVENTO
EVENTO 91

S&C Ingeniería 30 años de existencia

Eduardo Romero, Gerente General de S&C Ingeniería, se refiere al hecho de cumplir 30 años de existencia de la empresa en 2024. En este contexto, habla de la importancia de desarrollar actividades de capacitación continua para el personal técnico y comercial.

Así también, destaca la visita de representantes de la fábrica del sistema de detección de incendios "Detnov" de origen español, una marca representada por S&C Ingeniería. Esta colaboración incluye la capacitación del equipo técnico y comercial de la empresa en el uso y aplicación de estos sistemas.

Gerardo González, Director de Ventas para Latinoamérica, Brasil y el Caribe de la compañía Detnov, fue el encargado de llevar a cabo la mencionada capacitación. González enfatiza el compromiso de garantizar que el personal se encuentre altamente preparado para incorporar los productos de Detnov al mercado paraguayo.

Por último, Eduardo Romero resalta la responsabilidad que tiene S&C Ingeniería como empresa a la hora de trabajar directamente con fabricantes de varios países para ofrecer la mejor calidad y tecnología a sus clientes finales.

ENTREVISTA
93 ENTREVISTA

LINEAMIENTOS PARA EL DISEÑO DE BICISENDAS ÁREA

METROPOLITANA DE ASUNCIÓN

BICISENDAS

¿Porqué apuntar por una red de movilidad sostenible en el AMA? BICISENDAS

apuntar por una red de movilidad sostenible en el AMA? 56% de la población Urbana del país vive en el AMA

1.400.000 de personas ingresan en Asunción de forma diaria.

Distribuidos en

600.000 vehículos motorizados

2.400 buses

Ilustración 1. Situación actual del AMA. Fuente: Elaboración propia con datos de la INE, y de la Iniciativa de Ciudades Emergentes y Sustentables.

BICISENDAS 17 Limpio 100.471 MRA 100.161 Fdo. de la Mora 187.211 Lambaré 197.141 Ñemby 99.685 Villa Elisa 80.390 San Antonio 44.808 Asunción 512.112 Luque 355.178 San Lorenzo 331.449 Capiatá 240.550
¿Porqué

Beneficios de un sistema de movilidad ciclista para la vida urbana

La sensación de seguridad La cohesión social La seguridad vial

Más gente en la calle

Menor cantidad de robos

Dinamiza la economía

Equipara a la sociedad

Aumento en el acceso a servicios

Aumento en el acceso a oportunidades

Permite la intermodalidad de transportes

Permite la intermodalidad de transportes

Estrategias para mejorar la seguridad en la vía pública

Desde el diseño existen estrategias para reducir las velocidades de los vehículos y calmar el tráfico, además de elementos que aseguran la visibilidad de los ciclistas. En este punto, cabe destacar que este tipo de estrategias solo pueden ser aplicadas en vías de tránsito local con actividades a escala humana, y no así en las vías troncales y principales de alto tránsito.

Reductores de Velocidad

Reducción de anchos de la calzada en bocas de calle, reduce el radio de giro, obligando al conductor a reducir su velocidad, además de reducir la distancia del cruce peatonal y ciclista y mejora las condiciones de visibilidad.

Topes, son los conocidos como lomos de burro, que obligan al conductor a reducir la velocidad haciendo un alto antes de cruzarlos. Como efecto negativo, al iniciar la marcha los vehículos aumentan las emisiones a la atmósfera.

Intersecciones elevadas, cuando la franja peatonal se eleva a nivel de la vereda, lo que permite que los peatones sigan su trayecto sin necesidad de utilizar rampas.

Vados, son un tipo de lomo inverso, son bastante eficientescomo reductores de velocidad.

Como efecto negativo, al iniciar la marcha los vehículos aumentan las emisiones a la atmósfera.

Introducción 18 19 y reduce el riesgo de adquirir enfermedades de base relacionadas al sedentarismo y obesidad, que anualmente representa un gasto importante en la salud pública. MOVILIDAD CICLISTA velocidad, lo que contribuye considerablemente en la percepción de seguridad tanto de los ciclistas como de los peatones. Ilustración 2. Beneficios del ciclismo urbano Fuente: Elaboración propia. LA SENSACIÓN DE SEGURIDAD Menor cantidad de robos Mas gente en la calle Dinamiza la economía LA COHESIÓN SOCIAL Equipara a la sociedad Aumento en el acceso a servicios Aumento en el acceso a oportunidades LA SEGURIDAD VIAL Reduce siniestros de tránsito Permite la intermodalidad de transportes Beneficios para la vida urbana

BISENDAS EXISTENTES EN EL AMA

La longitud total de bicisendas actualmente implantadas en el AMA, a partir de los veintisiete casos registrados, asciende a 58 kilómetros. El municipio con mayor cantidad de kilómetros de bicisenda es Asunción con 36 km.

Bicisendas existentes en el AMA

Referencias

Bicisendas

6.1. Estudio del estado actual de bicisendas dentro del AMA

Del total de bicisendas:

Ilustración 5. Mapa de bicisendas existentes en el AMA Fuente: Elaboración propia con base a Open Street Maps, 2020.

12 están localizadas en Asunción:

6 en Luque

3 en Fernando de la Mora

1 en Villa Elisa

6

RELEVAMIENTO Y ANÁLISIS DE LAS BICISENDAS EXISTENTES

El estudio de las bicisendas del Área Metropolitana de Asunción fue realizado a partir de la combinación de datos primarios y secundarios. En este sentido, se ha solicitado información a los municipios del AMA, y adicionalmente se han realizados recorridos de reconocimiento.

El resultado del estudio describe una red implementada relativamente importante donde se han encontrado en total 27 bicisendas, las cuales fueron denominadas con el nombre propiamente otorgado por cada municipio.

Ciclovía Av. Santa Teresa, Ciclovía Av. Madame Lynch, Bicisenda Iturbe, Ciclovía Parque de la Salud, Ciclovía Boggiani, Bicisenda Costanera Norte 1 y 2, Ciclovía exterior del Parque Guasu, Circuito interno del Parque Guasu, Ciclovía del Parque Carlos Antonio López, la Ciclovía Ruy Díaz de Melgarejo, y Jardín Botánico.

Las cinco bicisendas de mayor extensión son las siguientes:

· Bicisenda 1, denominada “Ciclovía Luque - San Bernardino”: 10,4 km

Ciclovía exterior del Parque Ñu Guasu, Velódromo Dr. Venancio Castillo, Ciclovía interna del Parque Ñu Guasu - circuito, Ciclovía interna del Parque Ñu Guasu - interconexión, Ciclovía Acceso a Luque y la Ciclovía Luque - San Bernardino.

La longitud total de bicisendas actualmente implantadas en el AMA, a partir de los veinticinco casos registrados, asciende a 58 kilómetros. El municipio con mayor cantidad de kilómetros de bicisenda es Asunción con 36 km, seguido por Luque con 15 km.

2 en Mariano Roque Alonso

1 en San Lorenzo

2 en Capiatá:

· Bicisenda 2, denominada “Bicisenda Costanera Norte”: 6,79 km

Parque Ecológico Municipal Fernando de la Mora, Ciclovía Isla Po’i y Plaza 28 de Febrero.

Parque Villa Elisa.

Bicisenda Plaza Libertad, barrio San Francisco.

Ciclovía San Lorenzo.

· Bicisenda 3, denominada “Circuito interno del Parque Guasu Metropolitano”: 4,3 km

· Bicisenda 4, denominada “Ciclovía Boggiani”: 3,36 km

· Bicisenda 5, denominada “Madame Lynch”: 2,83 km

Ciclovía municipal de Capiatá, Ciclovía Capiatá - Areguá.

Los municipios de San Antonio, Limpio, Ñemby y Lambaré no cuentan con bicisendas implantadas.

BICISENDAS 97 31 Contextualización
Bomberos Voluntarios Parque Ñu Guasú Parque de la Salud Calle Isla Poi Parque Villa Elisa Avda. Madame Lynch Avda. Costanera Avda. Guido Boggiani Calle Iturbe Ciclovía Luque San Bernardino Barrio San Francisco Jardín Botánico Ciclovía San Lorenzo Ciclovía Capiatá - Areguá
30 Capítulo 01
Lineamientos para el diseño de bicisendas, Área Metropolitana de Asunción

Estilos de iluminación que siempre triunfan

La iluminación ocupa un rol protagónico en la decoración.

El correcto equilibrio entre estilo y funcionalidad, permite trasformar el modo en que un ambiente se percibe, haciendo posible realzar o atenuar la decoración e incluso intensificar el valor de los elementos decorativos (molduras, muebles, textiles, etc.).

En la actualidad existen muchísimas opciones de iluminación y la elección de la adecuada, depende del estilo que se quiere obtener en la habitación, de tu presupuesto del tamaño del que dispongas y sobre todo tus gustos personales.

Material extraido de:

"Estilos de iluminación que siempre triunfan"

Luminotecnia.com.py

DECORACIÓN
@luminotecniapy Luminotecnia

Estilo nórdico: Los materiales y formas naturales son protagonistas en el estilo nórdico, la simpleza y limpieza de sus formas ofrece sencillez y orden racional, tiene inspiración en formas orgánicas y toma elementos de la naturaleza para expresar su esencia. pequeños.

Estilo industrial: En este estilo, el color gris y los tonos metálicos, cobrizos, ferrosos antiguos son los protagonistas, tiene su inspiración en la Inglaterra de la Revolución Industrial, los que presupone la ausencia de luz natural, que se compensa con fuertes lámparas, potentes bombillas que generan un efecto de sombras y contrastes muy fuertes.

Estilo romántico: Este estilo tiene muchos seguidores entre los que gustan de lo anglosajón afrancesado. Iluminación dulce, cálida, exageradamente acogedora.

Estilo que generalmente se expresa con florituras, cristales y adornos.

Estilo rústico: Este estilo incorpora a su diseño piezas artesanales, para enriquecer el ambiente, maderas nobles, herramientas de antaño, por ejemplo todo lo que se puede forjar como antiguas cadenas, etc.

Estilo moderno: Este estilo pone énfasis en el diseño con curvas elegantes o dramáticos ángulos, la tendencia actual es que tenga acabados oscuros pero luces suaves, para plasmar un estilo individual y único en cada habitación, sin caer en lo convencional.

Estilo retro/vintage: Reproduce el estilo característico para introducir un aire elegante y a la vez eficientemente moderno. Ofrece una composición única de colores mezclados con un suave brillo para hacer cualquier habitación sea atemporal.

Estilo minimalista: La minimalista, se reduce a lo esencial sin elementos sobrantes, conservando solo lo necesario.

Un aspecto limpio y futurista con colores puros, formas geométricas puras y simples, precisas visual y funcionalmente.

3
7 1 ILUMINACIÓN 99
2
4 5 6

Avances de la Costanera Sur para su próxima inauguración

En una entrevista exclusiva con el Ingeniero Luis María González, Jefe de Obras de la Costanera Sur, se ha revelado el extenso alcance y la importancia de este proyecto urbano integral en Asunción.

González compartió detalles sobre cómo la Costanera Sur, con sus más de 8 kilómetros de extensión, está destinada a transformar el panorama urbano de la ciudad y mejorar significativamente la calidad de vida de sus habitantes.

Desde su concepción, la Costanera Sur fue diseñada con un enfoque holístico, que va más allá de ser simplemente una nueva vía de tránsito.

Además de agilizar los desplazamientos desde el sur hasta el centro de Asunción, el proyecto incluye una serie de elementos que buscan promover el bienestar de la comunidad. González destacó la presencia de amplias veredas, carriles exclusivos para bicicletas y un parque lineal de más de 1000 metros de longitud y 50 metros de ancho. Estos espacios están destinados a fomentar el contacto con la naturaleza, la práctica deportiva y el encuentro social, en línea con los principios de una ciudad más sostenible y amigable con el medio ambiente.

Ing. Luis María González Jefe de Obras de la Costanera Sur
ENTREVISTA
101 ENTREVISTA

La entrevista también enfatizó el potencial de la Costanera Sur para impulsar el turismo y la economía local, convirtiéndose en un destino atractivo tanto para residentes como para visitantes.

Con una oferta diversa de espacios de recreación, gastronomía y cultura, se espera que la Costanera Sur se convierta en un punto de encuentro y disfrute para toda la comunidad.

ENTREVISTA

Asimismo, el ingeniero resaltó el impacto positivo que tendrá la Costanera Sur en la movilidad urbana y la mitigación de problemas como la congestión vehicular y las inundaciones.

Con más de 14,000 vehículos previstos para transitar diariamente por esta vía, se espera una reducción significativa en los tiempos de viaje, así como una disminución en la presión sobre otras arterias principales de la ciudad.

Además, el proyecto incluye medidas de prevención de inundaciones, como la elevación del terreno y la implementación de un sistema de desagüe pluvial, que beneficiarán a barrios históricamente afectados por crecidas del río Paraguay.

103 ENTREVISTA

En resumen, la apertura de la Costanera Sur representa un hito significativo en el desarrollo urbano de Asunción, con el potencial de mejorar la calidad de vida de sus habitantes, promover la sostenibilidad y dinamizar la actividad económica de la ciudad.

Con un enfoque integral y una visión de futuro, este proyecto se erige como un ejemplo de cómo la planificación urbana puede contribuir al bienestar y la prosperidad de una comunidad.

ENTREVISTA
105 ENTREVISTA
ENTREVISTA
107 ENTREVISTA

Turn static files into dynamic content formats.

Create a flipbook
Issuu converts static files into: digital portfolios, online yearbooks, online catalogs, digital photo albums and more. Sign up and create your flipbook.