

2D, 3D. BIM , Civil , Topografía, Nube de puntos, y mucho más.
Digitalización: Abrazamos la digitalización en la arquitectura y planificación mediante el uso de tecnologías avanzadas. Estas herramientas nos permiten optimizar el diseño, mejorar la colaboración y aumentar la precisión en todas las fases del proyecto. Con ellas, podemos crear simulaciones detalladas y análisis predictivos, asegurando que nuestros proyectos sean eficientes, sostenibles y de alta calidad. La integración de la digitalización en nuestros procesos garantiza que estemos a la vanguardia de la innovación en la arquitectura contemporánea.
Nueva Urbanidad: Diseñamos para el futuro, creando entornos urbanos que promueven la comunidad, la conectividad y la caminabilidad. Nuestras soluciones urbanas innovadoras enfatizan desarrollos de uso mixto, espacios verdes e infraestructura inteligente, fomentando vecindarios vibrantes e inclusivos.
Priorizamos la sostenibilidad empleando materiales de construcción ecológicos, diseños energéticamente eficientes y fuentes de energía renovable. Nuestros proyectos aprovechan los recursos naturales para crear espacios que no solo son hermosos, sino también responsables con el medio ambiente,
El déficit habitacional en nuestro país es una realidad alarmante que afecta a miles de familias. Según datos preliminares del Instituto Nacional de Estadística (INE), el déficit cualitativo asciende a 1.000.000 de viviendas que requieren refacción, ampliación o remodelación, mientras que el déficit cuantitativo supera las 100,000 unidades habitacionales nuevas. Estos números, reflejan una problemática que necesita atención urgente y soluciones efectivas.
CONSTRUCTECNIA
LA FERIA MAS IMPORTANTA DEL SECTOR DE LA CONSTRUCCIÓN
La creciente necesidad de soluciones habitacionales, tanto en Asunción como en el área metropolitana, no puede ser ignorada. Cada año, más ciudadanos buscan oportunidades para acceder a una vivienda digna, enfrentando barreras económicas y de financiamiento que dificultan este proceso.
En cuanto al aspecto financiero, “Primera vivienda” y “Mi casa” lideran los préstamos fondeados a través de la Agencia Financiera de Desarrollo (AFD) y la entidad estima un crecimiento del 10 al 15% en su cartera de créditos de ese rubro en este 2024. Son créditos que van dirigidos a familias con ingresos medios, para financiar compra, construcción y refacción de unidades habitacionales. Ambos productos se otorgan a los particulares a través de los bancos, financieras y cooperativas, apuntan a reducir el déficit habitacional en el país.
Por otra parte, las medidas adoptadas por el Gobierno se ven plasmadas en el lanzamiento del programa “Che Róga Porã” que busca reducir gradualmente el déficit habitacional que afecta al país. Este programa pretende mejorar la accesibilidad a la vivienda con un enfoque en el financiamiento, ya que cuenta con una tasa de interés histórica del 6,5%, comparada con la tasa normal para primera vivienda del 7,9%.
En este contexto, la Expo-Feria Vivienda (a realizarse del 16 al 18 de agosto/2024) surge como una iniciativa crucial para enfrentar este desafío. Esta iniciativa se presenta como una plataforma que ofrece múltiples opciones habitacionales y que está dirigida a las personas que aún no poseen una vivienda propia. No solo permitirá a los interesados conocer las opciones disponibles de departamentos, casas, dúplex y monoambientes en zonas urbanas del país, sino que también facilitará el acceso a información y oportunidades de financiamiento adaptadas a sus necesidades.
El Director.
AGRADECIMIENTOS ESPECIALES
Arq. Blas Amarilla | Arq. Ricardo Meyer | Arq. William Paats | Arq. Félix Toranzos | Arq. Carlos Jimenez | Arq. Maria Luz Cubilla | Arq. Margita Kliewer | Arq. Curt Tippach
Arq. Pablo Ruggero | Arq. Aldo Cristaldo Kegler | Arq. Violeta Pérez |Arq. Paola Moure
Arq. Carlos Cabo de Vila| Ing. Paulo Yugovich | Ing. Miguel Stanischeski
Ing. Sergio E. Gavilán | Ing. César López Bosio | Instituto Superior de Arte. PRODUCCIÓN GENERAL Grupo Paraguay Eventos & Emprendimientos Contactos: info@aia.com.py | info@paraguayeventos.com.py | revistaaiapy@gmail.com Web: www.aia.com.py | Telefax: (595-981) 183 062 | Lambaré - Paraguay
La Revista AIA (Arquitectura, Ingeniería y Artes) es un producto registrado, con 12 ediciones anuales. Los Textos y Artículos publicados son de exclusiva responsabilidad de sus autores.
DIRECCIÓN GENERAL
Lic. Edgar Robinson DIRECCIÓN EJECUTIVA
Sr. Felipe Velázquez Alén ADMINISTRACIÓN
Sra. María René Dongo
Sr. Manuel Paniagua
Revista Arquitectura, Ingeniería y Artes - AIA
Asunción, Paraguay
Oficina de arquitectura - = + x -
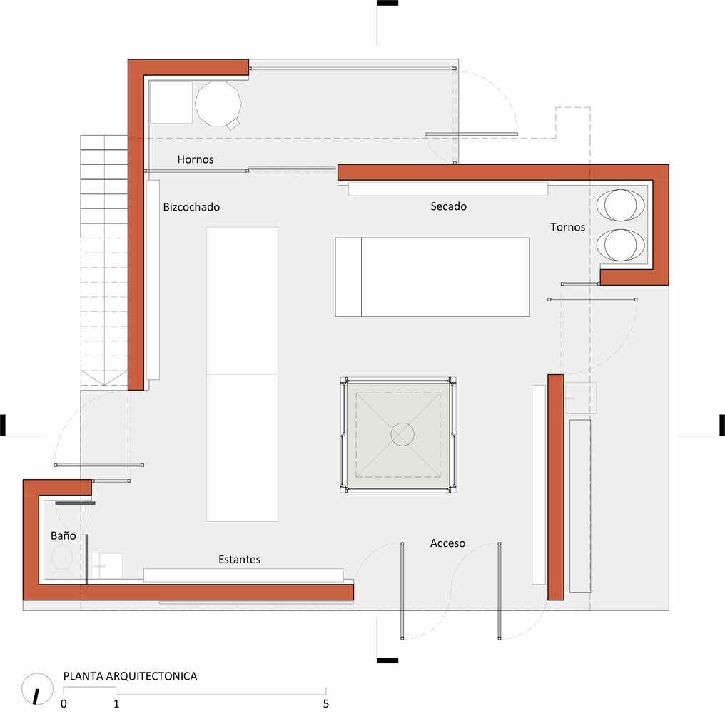
Un espacio donde naturaleza y tradición convergen. Inspirado en el hornero y con materiales locales, este proyecto reduce el impacto ambiental y celebra la creatividad en arcilla. Diseñado en armonía con su entorno, redefine arte y funcionalidad.
Aunque también se puede encontrar en Bolivia, Uruguay, Brasil y Argentina. Algunos lo conocen como Alonsito, casero, Tiluchi o Juan del barro, entre otros nombres.
Este Furnarius Rufus, su denominación científica, es atractivo por su porte, pero fundamentalmente por la forma en cómo hace su nido. El hornero posee una increíble destreza para el manejo del barro y los materiales para construir su hogar.
Se caracteriza por ser sumamente inquieto.
Tomando como referencia al hornero, nace la idea de construir un taller de cerámica utilizando los recursos del lugar, minimizando el transporte de material, reduciendo así los tiempos y el impacto energético de la obra.
Se utiliza la tapia (muros apisonados de tierra) como material principal.
Se aprovechó la excavación de una piscina en el mismo terreno, de donde se obtiene el material para construir los muros portantes del proyecto, pudiendo aprovechar el cien por ciento del volumen excavado en los muros de Tapia.
El proyecto se organiza en torno a un árbol de lapacho que brinda un patio central, solucionando las ventilaciones cruzadas y la iluminación natural. En la planta baja los muros de tapia organizan los espacios de uso del taller en un espacio integrado, pero a su vez sectorizado para los distintos procesos del manejo del trabajo en arcilla, actividad que se desarrolla en éste.
El proyecto se organiza en torno a un árbol de lapacho que brinda un patio central, solucionando las ventilaciones cruzadas y la iluminación natural.
En la planta baja los muros de tapia organizan los espacios de uso del taller en un espacio integrado, pero a su vez sectorizado para los distintos procesos del manejo del trabajo en arcilla, actividad que se desarrolla en éste.
Nombre de la Obra: Taller Cerámico Liza Crea
Ubicación: Asunción, Paraguay
Equipo de arquitectura: Oficina de Arquitectura = + x -
Fotografía: Renato Duria
Superficie: 98 m²
Año: 2023
Webgrafía: https://www.archdaily. cl/cl/1017137/tallerceramico-liza-crea-equalsplus-x
Asunción, Paraguay
Arquitecta Leticia Báez
Diseño y naturaleza se fusionan. Con un volumen horizontal que se abre hacia el jardín, esta vivienda combina ladrillo, madera, metal y vidrio para crear un ambiente lleno de luz natural.
Amplios ventanales y un tragaluz central conectan los espacios interiores con el exterior, redefiniendo la elegancia y la funcionalidad en cada rincón.
El proyecto está ubicado en un terreno en esquina, con una suave pendiente en el lado más largo. Se decidió colocar el frente hacia ese sector, para luego expandir visualmente el área social hacia el lateral, donde se ubicó el jardín, dirigiendo las vistas al espacio verde y los árboles existentes en esa esquina.
La vivienda se genera espacialmente a partir de un gran volumen marcadamente horizontal que es el nivel de la planta alta, apoyándose sobre una planta baja notoriamente hermética hacia el frente, como si fuera una gran base de ladrillo y madera, protegiendo la intimidad de la casa y haciendo alusión a esto. Hacia el jardín sin embargo, este lado se disuelve visualmente por completo por medio de unos paños vidriados corredizos que expanden la vista hacia una gran galería y el exterior. Algunos volúmenes más pequeños sobresalen en esa planta alta, generando un movimiento interesante con este juego volumétrico donde se combinan distintos materiales y acabados
para generar aún más contraste.
Un gran volumen en voladizo se extiende perpendicularmente hacia el jardín sobrepasando por encima la galería.
El objetivo general en esta vivienda fue crear una casa llena de luz natural, que tenga todas sus áreas sociales volcadas al jardín, y de alguna forma al sol, a través de un tragaluz circular sobre la entrada, buscando siempre esa relación e integración interior-exterior con los planos vidriados.
En la entrada principal que está casi a nivel de la vereda, se sube unos escalones para acceder al interior de la casa luego de pasar el hall. En esta planta baja el área social, sala y comedor, totalmente vidriados, se despliegan hacia el jardín, donde se ubica la piscina y el área de parrilla. El escritorio que está junto al acceso principal baja unos escalones, acompañando el desnivel del terreno.
La escalera principal se despliega holgadamente hacia la planta alta junto a una doble altura que rodea el acceso principal y puede ser visto desde la sala y comedor, ya que todo el ambiente social está integrado funcional y visualmente. Sobre este acceso está el tragaluz circular de vidrio que ilumina gran parte de la planta baja y el estar del segundo piso, balconeando hacia la doble altura ubicada junto a la escalera y el pasillo que va hacia los dormitorios.
En planta alta se ubica una sala de estar íntimo junto a la doble atura, además de tres dormitorios en suite, todos con amplias vistas y mucha luz natural.
Los materiales empleados se mezclan armónicamente creando un equilibrio entre la calidez del ladrillo y la madera, combinados con los materiales fríos como son el metal, cemento y vidrio, dándole un cierto aire industrial a esta vivienda. Varios elementos estructurales en esta casa son de metal, así como también las rejas y la baranda de escalera, pero sobre todo destacan unos elementos metálicos muy singulares que dan continuidad a varias ventanas finas marcadamente horizontales de la fachada, haciendo un efecto de desplazamiento e incluso sobresaliendo ligeramente de los volúmenes.
Nombre de la Obra:
Casa MB
Ubicación:
Asunción, Paraguay
Arquitecta a cargo: Leticia Báez
Superficie: 378 m2
Superficie construida: 333 m2
Año: 2019
Fotografías
Alejandro Arango y Luis Bernardo Cano
Diseñada para integrarse con el paisaje, esta vivienda sostenible se despliega en niveles y terrazas que ofrecen vistas espectaculares del valle. Con materiales exclusivos y tecnologías ecoamigables, Casa Cerrovento redefine el espacio doméstico, conectando la vida familiar con la naturaleza y la ciudad en una armonía perfecta.
Alejandro Restrepo-Montoya + Estudio Central
En medio de una topografía montañosa que mira el valle sobre el cual se localiza Medellín, esta vivienda se integra al paisaje natural a través de diferentes niveles, taludes y terrazas.
Acceder a la casa significa descubrirla a través de los recorridos de la topografía. Los primeros pasos permiten llegar a una planicie que se conforma mediante la configuración del terreno donde se localizan los estacionamientos vehiculares, la zona social y la zona de servicios. La plaza de llegada insinúa el acceso principal como el vacío resultante entre las geometrías de sus volúmenes. Un basamento en materiales rocosos que se pliega a la montaña, configura el muro de acceso que estructura la configuración del espacio interior en el primer nivel.
Este muro, que sirve como contención del terreno y como límite contra la topografía en el nivel de acceso, configura una sucesión de espacios orientados hacia las visuales sobre Medellín. En este recorrido, la arquitectura permite pasar desde el interior al exterior y reencontrar el paisaje lejano desde los espacios sociales.
En el nivel de acceso, entre el volumen de servicios y el estudio, una planta libre recibe las actividades sociales y se proyecta al exterior a través de una terraza para contemplar el paisaje. Esta terraza se extiende a una plataforma natural conformada con la intervención a la topografía original. Este basamento soporta los volúmenes superiores que contienen las zonas privadas. Es un balcón que permite el encuentro familiar y su mirada al paisaje lejano, conformado por la ciudad y sus montañas.
Una escalera plegada al lado del muro del acceso principal, conduce al segundo nivel, conformado por tres volúmenes que contienen los dormitorios de los hijos y de los padres, y un estudio en medio de ellos.
A través del recorrido por las escaleras, iluminadas naturalmente con los filtros y las texturas que provienen de una pérgola ubicada sobre ellas, se descubren los espacios del nivel superior. Estas escaleras conducen al volumen central del segundo nivel: una sala de reunión familiar que a su vez distribuye a los dormitorios.
En el segundo nivel, en los volúmenes sur y norte se localizan los dormitorios de los hijos y de los padres, respectivamente. Estos volúmenes funcionan como unos miradores, que prolongan su espacio interior hacia el exterior con balcones que miran al paisaje. La casa es un sistema de terrazas, como ojos puestos sobre la montaña, que miran a diferentes lugares del valle.
El pasillo que conecta los dormitorios, se comunica hacia el costado oriental con una nueva estancia al aire libre: un patio natural contenido entre el volumen construido y los taludes conformados en la configuración de su emplazamiento.
Esta casa es un sistema de espacios articulados por la topografía y por los recorridos a través de los diferentes niveles del espacio interior. Es el contraste entre la firmeza de un basamento sólido, pétreo, abierto en los remates de las circulaciones y en el frente, como un mirador cubierto para contemplar la ciudad. Sobre él las tres ventanas que observan la ciudad, permiten la conformación de patios, vacíos y miradores.
Tanto el basamento como los volúmenes superiores se construyeron con piezas de hormigón diseñadas especialmente para la casa, con tres diferentes medidas, para generar una textura que permita los contrastes Las piezas del basamento son de color gris oscuro y las de los volúmenes de las habitaciones son de color gris claro. Al interior, superficies conformadas por elementos lineales en madera, tamizan y filtran las luces naturales.
Esta casa se ha diseñado para que ella misma produzca la energía que requiere y para que capte, desde fuentes naturales, el agua para su funcionamiento cotidiano. Los diseños arquitectónicos han considerado un sistema de paneles solares que producen mensualmente cerca de 750 kilovatios, lo cual permite que la casa autoabastezca sus consumos eléctricos y que entregue al sistema local de energía unos 200 kilovatios por mes.
Un sistema de filtros hidrosanitarios localizados en el basamento están conectados con una fuente de agua ubicada en el lote. Los diseños arquitectónicos y técnicos han considerado un sistema que filtra y purifica el agua, abastece el consumo promedio mensual de 18 metros cúbicos y almacena el agua restante en tanques de reserva. Los diseños hidrosanitarios se han concebido también para reciclar el agua utilizada y
posteriormente abastecer el sistema de riegos en jardines, lavados de fachadas y pisos exteriores.
Estas ventanas hacia la ciudad, que emergen de una topografía que se interviene para articular la naturaleza y la arquitectura, conforman diferentes espacios para que las actividades familiares estén permanentemente relacionadas con las visuales, con la luz natural y con los recorridos exteriores e interiores. Es una propuesta para configurar el espacio doméstico como una relación permanente entre las actividades de sus habitantes, el entorno y la naturaleza.
Nombre de la Obra:
Casa Cerrovento
Ubicación:
Envigado, Antioquia
Equipo de arquitectura:
Alejandro Restrepo-Montoya + Estudio Central
Fotografía:
Alejandro Arango
Superficie: 450 m2
Arquitectos a cargo:
Alejandro Restrepo-Montoya
Daniel Zuluaga Londoño
Daniel Molina Gallego
Hernán Ruiz Buitrago
Inés Tapasco Morales
Año: 2023
MSC. MAURO GIULIANO SOTTILE (M.SC. CIVIL ENG.), ISSMGE, SAIG PRINCIPAL CONSULTANT, GEOTECHNICS
ALFREDO A. LOPEZ (CIVIL ENG.) PRINCIPAL CONSULTANT, GEOTECHNICS, SOIL MECHANICS
Los desarrollos inmobiliarios en las grandes de ciudades llevan a la necesidad de construcción de edificios en torre de gran altura y que usualmente deben contar con varios niveles de sótanos, lo cual implica una interacción con las edificaciones vecinas durante la etapa constructiva que puede generar riesgos y pérdidas económicas si no se realizan diseños adecuados.
A modo de ejemplo la ciudad de Asunción se destaca por emprender edificios que sobrepasan los 140 m de altura y tiene en cuenta a futuro emprendimientos que podrían superar los 200 m por lo que estas construcciones de gran porte interaccionaran profundamente con su entorno.
En estos casos las ingenierías deben tener en cuenta, al diseñarse varios niveles de sótano, el uso de software especializados en interacción suelo-estructuras o de modelación numérica mediante elementos finitos para evaluar el impacto en las construcciones vecinas, durante las etapas constructivas de la torre u obra de gran porte.
Ciudad de Asunción figura 1.
En estos casos las ingenierías deben tener en cuenta, al diseñarse varios niveles de sótano, el uso de software especializados en interacción suelo-estructuras o de modelación numérica mediante elementos finitos para evaluar el impacto en las construcciones vecinas, durante las etapas constructivas de la torre u obra de gran porte.
El uso adecuado de la modelación numérica permitirá definir las distintas etapas de excavación, disminuir riesgos de derrumbes, de levantamiento de fondo de excavación y usualmente una disminución de los volúmenes de submuración y sostenimiento que se traduce en economías respecto la aplicación de métodos convencionales de calculo mediante resortes aun con comportamiento elastoplástico.
Cuando los proyectos interactúen con condiciones de vecinos sensibles a las excavaciones, se debe evaluar la necesidad de adicionar al equipo interdisciplinario una opinión geotécnica experta en el uso de dichos softwares especializados en suelos.
La importancia de estos softwares, además de una optimización de las cantidades de obra es que permiten predecir con un alto grado de certeza el comportamiento de las bases o fundaciones vecinas bajo asentamientos y giros, vital para estimar un grado de daño a las mismas y las medidas de mitigación tempranas.
En los párrafos siguientes se compartirá brevemente algunas experiencias concretas en obras ya ejecutadas donde la aplicación del programa Plaxis 2/3D® permitió lograr un diseño optimizado, un adecuado nivel de seguridad y la evaluación de los desplazamientos en las fundaciones vecinas las cuales en algunos casos han debido ser intervenidas para garantizar riesgos mínimos y mantener la ecuación económica de la obra.
Se expondrá brevemente una excavación hasta 15m donde se interactúa con un rio subterráneo canalizado y grandes cloacas máximas, y se debió evaluar el grado de asentamientos en estas estructuras.
Se vera una excavación profunda en pleno centro de Buenos Aires hasta 20m de profundidad, rodeada de edificios y en la cual se debió estudiar modificaciones en proceso constructiva de bermas y troneras de hormigón armado con dimensiones muy por encima de las habituales.
Por último, se resumirá un cálculo mediante Plaxis 3D® aplicada a una platea pilotada de una torre de 27 pisos. Ejemplos de Plaxis 2/3D®
figura 2.
En el emprendimiento inmobiliario QIUB el proyecto consistió en una torre de 27 pisos y 5 subsuelos ubicada sobre Av. Juan B. Justo y Honduras, en la ciudad de Buenos Aires.
El predio con 280m de perímetro (ver Figura 1) y 15,2m de profundidad estaba limitado por diversos edificios algunos fundados con pilotes a 9m de profundidad y otros con bases directas, destacándose en la Av. J.B.Justo la canalización del rio subterráneo Maldonado y una cloaca máxima.
La contención lateral y las fases a excavar fueron diseñada mediante modelación numérica con Plaxis 2D.
El diseño permitió optimizar las dimensiones de los tabiques de hormigón armado y la longitud y carga de los anclajes, evaluando en cada fase de excavación los desplazamientos y giros de las estructuras vecinas, verificando que estos valores no superen los limites admisibles limitando riesgos y peligros.
Analizaremos en este resumen un corte, donde la excavación frente a un canal de hormigón de 2,5m de alto x 15 m de ancho (rio entubado Maldonado) y una cloaca máxima de 3,5m de diámetro, donde los asentamientos al pie del canal, evaluados mediante métodos numéricos, no superaron 8,32mm horizontales y 3,4mm verticales.
Obsérvese el micropilote dentro del submural avanzando fuera de la medianera para limitar asentamientos. Y la distribución de anclajes cercanos a las estructuras enterradas.
En la figura siguiente se extracta el resultado de los desplazamientos horizontales del submural en sus 15m y el asentamiento de la base izquierda del canal enterrado del Maldonado.
La aplicación en otros cortes permitió resolver excavaciones 6m por debajo de los pilotes de fundación de los edificios vecinos. La obra está en la actualidad en el piso 27 con un minimo de perturbaciones inducidas en las construcciones vecinas.
figura 4.
Corte típico de la excavación mostrando el canal Maldonado y la cloaca Máxima profunda.
5.
Desplazamientos evaluados al pie de la primer base del canal Maldonado máx. 3,44 mm.
Excavación profunda hasta 20m zona de barrio norte, Buenos aires.
El proyecto consistió en una excavación urbana profunda entre 17,5 y 20m de profundidad sobre un perímetro indicado en línea roja de más de 270m, sostenida por varas líneas de anclajes activos, con salidas por las calles Callao y MTde Alvear como se muestra en la figura 6
La metodología constructiva consistió en uan serie alternada de bermas de suelo y troneras para los tabiques de HA anclados, cuyas medidas promedios son del orden de 2,25 x 2,25m se aplicó a la mayoría de los 12 sectores de trabajos establecidos.
En las figuras 7 y 8 podemos ver que varios edificios medianeros quedaron sostenidos en dos caras, lo que implicó un gran desafío constructivo en consonancia con la ingeniería y un estricto control en la ejecución de los anclajes y un seguimiento de los desplazamientos del edificio a cota cero, donde los mismos no superaron los 12mm horizontales.
8.
MTAlvear 1743.
6.
Planta General predio América Pavilion.
7.
Excavación hasta 17,5m, notar edificios sostenidos con al menos 2 caras expuestas.
Un cambio en la planificación de la obra llevo a que se necesitase troneras de 2,25x4m de alto para el sector MTAlvear 1743, para diseñar esta nueva condición de los submurales se aplicó modelación numérica 2D para replicar el nuevo proceso de la excavación y sostenimiento para minimizar los daños en la calle de alto transito ni en el edificio vecino de 10 pisos.
La modelación vía Plaxis 2D permitió verificar la estabilidad de la excavación frente las nuevas dimensiones y validar el proceso constructivo solicitado con coeficientes de seguridad adecuados.
A provechando esta modificación se continuó aplicando modelación numérica Plaxis 3D® ahora para todo un predio vecino completo en Callao 1033, predio adquirido con posterioridad al inicio de esta obra y donde se debió modelar una geometría compleja, con distintos escenarios tanto en suelos como en geometría de vecinos en interacción con la excavación y obra en curso.
El cálculo permitió definir para el futuro una excavación segura, aplicando técnicas de anclajes activos a cables activos con barras, anclajes pasivos, micropilotes, todo dentro de un marco de limitar asentamientos y desplazamientos en las estructuras vecinas del nuevo predio.
Se estudió un proyecto de edificios de gran altura y un hospital ubicado en la ciudad de Córdoba, Argentina. El mismo consta de distintos niveles: i) el subsuelo se desarrolla hasta 6 m de profundad y abarcan un área aproxima de 50 m x 60m; su uso está destinado a estacionamientos; ii) a nivel del terreno, se prevé la construcción de oficinas que se desarrolla en un área aproximada de 15m x 30m ubicada en la parte central del predio; iii) por encima de las oficinas, se prevé la construcción de una torre central de más de 20 plantas para viviendas.
Por requerimiento estructural, los asentamientos diferenciales entre columnas adyacentes no deben superar los 10mm. Esto requirió realizar un análisis numérico de las deformaciones que contemplo la interacción suelo-estructura y las etapas constructivas; para ello se realizó un modelo numérico en Plaxis 3D a nivel de fundación.
En este punto fue absolutamente necesario utilizar modelos numéricos 3D para evaluar la interacción de las diferentes etapas constructivas junto con la evolución de las deformaciones en el tiempo y a largo plazo.
Modelación 3D: Se resume las etapas de
La Figura 1 ilustra las etapas constructivas que fueron modeladas:
Etapa inicial: se inicializa el modelo con un el terreno en su condición actual.
Excavación: se modela la excavación del subsuelo hasta cota -6 m.
Instalación de pilotes: se cambia el material de suelo a hormigón en el sector donde se instalan los cabezales y los pilotes (wish-in-place).
Cargas del estacionamiento/oficinas: se aplican las cargas correspondientes a la primera etapa
Carga de la torre: se aplican las cargas correspondientes a la segunda etapa diferida en el tiempo.
Etapas constructivas – Modelo 3D figura 9.
Un cambio en la planificación de la obra llevo a que se necesitase troneras de 2,25x4m de alto para el sector MTAlvear 1743, para diseñar esta nueva condición de los submurales se aplicó modelación numérica 2D para replicar el nuevo proceso de la excavación y sostenimiento para minimizar los daños en la calle de alto transito ni en el edificio vecino de 10 pisos.
La modelación vía Plaxis 2D permitió verificar la estabilidad de la excavación frente las nuevas dimensiones y validar el proceso constructivo solicitado con coeficientes de seguridad adecuados.
A provechando esta modificación se continuó aplicando modelación numérica Plaxis 3D® ahora para todo un predio vecino completo en Callao 1033, predio adquirido con posterioridad al inicio de esta obra y donde se debió modelar una geometría compleja, con distintos escenarios tanto en suelos como en geometría de vecinos en interacción con la excavación y obra en curso.
El cálculo permitió definir para el futuro una excavación segura, aplicando técnicas de anclajes activos a cables activos con barras, anclajes pasivos, micropilotes, todo dentro de un marco de limitar asentamientos y desplazamientos en las estructuras vecinas del nuevo predio.
Asentamientos (m)
Asentamientos sobre sección longitudinal figura 10. figura 11.
Segunda Etapa – Torre central
Un trabajo multidisciplinario, enfocado en analizar el diseño de las fundaciones mediante modelos numéricos permite optimizar cantidades de obra, limitar riesgos, establecer procesos constructivos y evaluar asentamientos y giros a lo largo de su vida útil.
En el caso de patologías permite tomar decisiones de confortamiento para restablecer el nivel de seguridad necesario.
En el caso de obras nuevas permite definir soluciones que incluyen las excavaciones tanto en lo relacionado con empujes horizontales como en levantamiento de fondo optimizando cantidades.
Nace en Coronel Oviedo, Paraguay en el año 1954. Vive en Asunción. Es artista visual y docente universitaria de arte en el ISA, FADA; UNA, tiene a su cargo la cátedra de Pintura.
Árbol mitológico, 2014 Acrílico y transferencia de fotografía sobre mdf.
Es licenciada en Artes Visuales por la misma Institución con postgrado en Didáctica Universitaria del Rectorado de la UNA. Dirige su propio Taller experimental Espacio Arte x Arte, cuyo enfoque didáctico favorece la capacidad perceptiva y expresiva. Inicia sus estudios de Arte en Villarrica en 1971, luego incursiona en la Pintura en Porcelana en el Brasil.
Cursa talleres orientados por Olga Blinder en el IDEA. Concurre a seminarios con Joâo Rossi y durante tres años, al de Identidades en Tránsito con Ticio Escobar. Participa de Workshops sobre Creatividad a cargo de Mr Douglas Walton en Arlington, Tx, USA. Incursiona en el Grabado bajo orientación de Carlo Spatuzza y en la Encáustica con Marilyn Jolly de dallas Tx, USA. Es docente de Arte desde el año 1981.
Expone su obra plástica, en forma individual y colectiva dentro y fuera del país desde el año 1981. En su propuesta plástica, destaca aspectos de culturas originarias, explorando, además de la Pintura, otros medios, como la Impresión Digital, la Fotografía, el Grabado, la Instalación y el Video Arte. Desarrolla un proyecto de pintura con los niños de la parcialidad Ache Guayaki de Puerto Barra, Alto Paraná. Ha publicado el libro:
Livio Abramo, su aporte a las Artes Visuales del Paraguay.
Con su producción pictórica y fotográfica ha recibido premios. Es actual copresidente de Gente de Arte, Asociación de Artistas Visuales del Paraguay y socia del Ojo Salvaje, Asociación de Fotógrafos Paraguayos.
Las más de 130 empresas nacionales y extranjeras que formaron parte de la 24 edición de Constructecnia resaltaron los lazos comerciales y las inversiones que se concretaron en la megaferia de la construcción que culminó este domingo. El evento cumplió con el objetivo de ser vitrina de la mano de obra paraguaya y ser nexo entre importantes referentes del sector, tanto de la región como de otro continente.
Tras cinco intensas jornadas, Constructecnia culminó con dos de sus eventos: la Feria de empleos y la final del Concurso Nacional de Pintores.
Los mismos aglutinaron a un importante número de participantes y público en general que se acercó hasta el Parque Olímpico del Comité Olímpico Paraguayo (COP) para conocer todo lo más innovador en productos, maquinarias, servicios y tecnología del sector de la construcción.
La apertura oficial de Constructecnia, junto a la inauguración oficial del Pabellón de Obras y el Pabellón de la Vivienda, contó con la participación del titular del Ministerio de Urbanismo, Vivienda y Hábitat (MUVH), Juan Carlos Baruja; el presidente del Comité
También se realizó un Reconocimiento a la CÁMARA VIAL PARAGUAYA – CAVIALPA, por su Invalorable Apoyo al Desarrollo del País durante estos 30 Años.
Olímpico Paraguayo (COP), Camilo Pérez; el presidente de la Cámara Paraguaya de la Construcción (Capaco), Ing. Guillermo Mas y el presidente de la Cámara Vial Paraguaya (Cavialpa), Ing. Paul Sarubbi.
La inauguración del Pabellón Industrial contó con la participación de la viceministra del Ministerio de Industria y Comercio (MIC), Lorena Méndez y el presidente de la Unión Industrial del Paraguay (UIP), Enrique Duarte.
En el Pabellón Internacional, estuvieron presentes la ministra de turismo Angie Duarte; Carlos Jorge Biedermann, Asociación del Cuerpo Consular; el viceministro embajador Víctor Verdún Bittar y Gustavo Giménez, viceministro de Micro, Pequeñas y Medianas Empresas.
Representantes de las más de 50 empresas extranjeras, de las cuales 25 fueron argentinas, otras chinas, brasileñas, alemanas y uruguayas, destacaron el crecimiento del sector de la construcción en Paraguay, la estabilidad económica y hasta la ubicación geográfica. También destacaron la oportunidad de negocios e inversiones que permitió Constructecnia, afirmando que cumplieron con sus objetivos de relacionamiento, cierre de negocios, captación de clientes, inversiones, y la posibilidad de hacer amigos comerciales.
Otros eventos que fue valorado por los asistentes fuero la Expo Vivienda, feria de empleos, con 120 vacancias de 9 empresas, la rueda de negocios, concurso de pintores, las charlas magistrales de expositores, la Noche APROCONS, el Panel Debate Pavimentos de Hormigón: Desafíos y oportunidades, entre otros.
En la rueda de negocios, participaron 23 empresas constructoras y estudios de arquitectura. Se concretaron más de 570 reuniones con expositores, con una proyección de negocios por 37 millones de dólares.
Constructecnia contó con la presencia de 25 empresas argentinas a través de la Agencia Argentina de Inversiones y Comercio Internacional, que valoraron la oportunidad que genera Constructecnia, para concretar negocios. La inauguración del Pabellón contó con la presencia del embajador argentino Guillermo Nielsen.
La Feria de Empleos reunió a 350 profesionales, es decir, estudiantes de carreras como ingeniería y arquitectura.
Se desarrolló con la participación de siete presidentes de gremios privados y del viceministro del Ministerio de Obras Públicas y Comunicaciones (MOPC). Los ejes centrales del debate giraron en torno a la capacitación técnica de los recursos humanos, la calidad de los proyectos, de las construcciones y de las fiscalizaciones, así como el financiamiento de las obras.
Participaron el Ing. Hugo Arce, viceministro de Obras (Ministerio de Obras Públicas y Comunicaciones – MOPC); Ing. Paul Sarubbi, presidente de la Cámara Vial Paraguaya (CAVIALPA); Ing. Guillermo Mas Duarte, presidente Cámara Paraguaya de la Industria de la Construcción (CAPACO); Ing. Amílcar Troche, presidente del Centro Paraguayo de Ingenieros (CPI); Ing. Hugo Florentín, presidente de la Asociación Paraguaya de Carreteras (APC), el Ing. Sergio Gavilán, presidente de Gavilán & Asociados, y el Ing. Roberto Rojas Holden, autor del libro “Los pavimentos de hormigón. Más que una alternativa”.
Entre las empresas extranjeras que participaron de Constructecnia, se destaca también la presentación de una delegación de 11 empresas chinas.
Representantes de las mismas también resaltaron las bondades de nuestro país, desde la estabilidad económica, como el trato cordial de los paraguayos.
Uno de los espacios más coloridos fue la galería de artes, en la que artistas paraguayos expusieron sus obras, hechas en varios tipos de materiales. De la exposición participaron artistas visuales y escultores reconocidos del país.
Artesanos locales también participaron demostrando sus trabajos en madera, tela, barro y cuero. Así también hubo trabajos en ñanduti, ao po´i y encaje ju.
Constructecnia se llevó a cabo del 22 al 26 de mayo en el Comité Olímpico Paraguayo y contó con la participación de más de 130 empresas nacionales y extranjeras, además de 800 marcas. En su 24° edición, Constructecnia contó con más de 25. 800 visitantes.
El martes 18 de junio se llevó a cabo la asamblea de constitución del BIM Forum Paraguay, cuya presidenta electa resultó la arquitecta Mónica Castellano.
El evento se llevó a cabo en la sede de la Cámara Paraguaya de la Construcción (Capaco) y contó con la presencia de autoridades del gremio, así como de la Asociación de Profesionales de la Construcción (Aprocons), gremios invitados, instituciones educativas, empresas que apoyan la iniciativa, entre otros.
La utilización de las herramientas tecnológicas en el sector de la construcción fue destacada como el futuro del sector. De la asamblea de constitución del BIM Forum Paraguay, impulsada por la Capaco y Aprocons, participaron:
El viceministro del Ministerio de Urbanismo, Vivienda y Hábitat (MUVH), Ing. Víctor Villasboa, en representación del Gobierno Nacional; el presidente de la Cámara Paraguaya de la Construcción (Capaco), Ing. Guillermo Mas; el presidente de la Asociación de Profesionales de la Construcción (Aprocons), Ing. Pablo Rivarola; el presidente del Centro Paraguayo de Ingenieros, Ing. Amílcar Troche; el presidente de la Asociación Paraguaya de Carreteras, Ing. Hugo Florentín; el presidente de la Cámara Paraguaya de Desarrolladores Inmobiliarios (CAPADEI), Ing. Raúl Constantino, el presidente de la Cámara Paraguaya de Consultores, Lic. Julio Esteban Mendoza, el presidente de la Cámara Paraguaya de la Industria del Hormigón Elaborado (CAPIHE), Ing. Enio Quevedo, el director de la Oficina de las Naciones Unidas de Servicios para Proyectos (UNOPS), Sr. Roberto Carrillo Castillo, el director de la Dirección de Proyectos Estratégicos (DIPE) del Ministerio de Obras Públicas y Comunicaciones (MOPC), Amílcar Guillen, el Director General del Servicio Nacional de Promoción Profesional - SNPP, José Cogliolo, el secretario técnico del Sistema Nacional de Formación y Capacitación Laboral - SINAFOCAL, Alfredo Mongelos, el presidente de la Cámara de Empresas Constructoras de Obras Electromecánicas - CECOEL, Gianmarco Felippo, entre otras autoridades que apoyan la creación del BIM Forum Paraguay.
De acuerdo al acta, el BIM Forum Paraguay, se crea con el objetivo de impulsar el desarrollo de un sector constructivo más innovador, eficiente y sostenible para el beneficio de toda la sociedad.
Además de la aprobación de los estatutos, el Consejo directivo quedó conformado de la siguiente manera: Presidenta: Arq. Mónica Castellano, Vicepresidente: Arq. Juan José González Cruz; Tesorero: José Joaquín Ferreira Ocampos; Pro tesorero María Montserrat Subirachs Centurión, Secretaria: Stephanie Giselle Bracho Velázquez, Pro secretario: Víctor Daniel Peña; Vocal titular 1: María Luz Gulino Torres, Vocal titular 2: Víctor Daniel Peña Chávez y Vocal titular 3: Diego Entel.
El Arq. Juan José González Cruz vicepresidente del BIM Forum Paraguay, se encargó de la lectura del acta, que mencionaba que la constitución de la Asociación BIM Forum Paraguay “responde a la creciente necesidad de generar un espacio dedicado a la promoción, desarrollo y adopción de la metodología BIM. Surge con el propósito de ser un referente nacional en el ámbito de la construcción digital fomentando la colaboración, el intercambio de conocimientos y la innovación tecnológica entre profesionales, empresas, instituciones educativas y organismos gubernamentales. Conscientes de la importancia y el impacto que tiene la implementación del BIM en la mejora del sector constructivo, la sostenibilidad y la eficiencia de los proyectos se comprometen en trabajar de manera conjunta para expandir la metodología”.
De acuerdo al Ing. Guillermo Mas, presidente de la Capaco, la implementación del BIM reduce los costos y minimiza los riesgos durante el ciclo de vida de un proyecto. “Nuestro anhelo es que el BIM Forum Paraguay se establezca como un espacio vital para el intercambio de conocimientos, ideas, experiencias y mejores prácticas. Por ello, reunimos hoy a líderes de la industria, académicos, profesionales, organismos internacionales y autoridades públicas para colaborar en la promoción del uso de BIM en nuestros proyectos nacionales, tanto privados como públicos. Este foro no solo fortalecerá nuestras capacidades técnicas, sino que también fomentará la innovación y la competitividad de nuestras empresas y profesionales del mercado”.
“Hicimos un llamado a todos los actores de nuestro rubro, desde desarrolladoras, estudios de arquitectura, a que podamos sentarnos y empezar a bajar línea para lo que va a ser el futuro de la construcción, porque como ya sabemos, las herramientas digitales ya forman parte de nuestro día a día en la construcción y ese es el único camino que nos queda a partir de ahora. Empezar a trabajar con la información que tenemos, ir acumulando información del BIM y con eso hacer construcciones más sustentables y más eficientes”, señaló la presidenta electa del BIM Forum Paraguay, Mónica Castellano.
El acto de constitución del BIM Forum Paraguay es una iniciativa de Capaco y Aprocons y contó con el gerenciamiento del Grupo Paraguay Eventos & Emprendimientos (GPEE).
“Voluntad política es lo primero que Paraguay necesita para comercializar su energía”, coincidieron Walfrido Ávila y Jorge Caliari, presidente y director de negociación y gestión de cartera de la empresa brasileña Tradener, durante la Conferencia Magistral “Comercialización de Energía en el Mercado Eléctrico del Brasil”, desarrollada en el Centro Paraguayo de Ingenieros CPI. Profesionales ingenieros y economistas reconocieron que Paraguay debe informarse y formarse mejor antes de entrar al negocio.
La conferencia magistral “Comercialización de Energía en el Mercado Eléctrico del Brasil”, estuvo organizada por el Centro
Paraguayo de Ingenieros (CPI) y el Instituto de Profesionales Paraguayos del Sector Eléctrico (IPPSE) en el marco de la primera la licitación de venta de energía paraguaya realizada por la Administración Nacional de Electricidad (ANDE). Del evento participaron profesionales ingenieros, presidentes de gremios de la construcción, energía y electricidad, además de economistas.
Una de las figuras destacadas fue la del expresidente del Paraguay, Ing. Juan Carlos Wasmosy (1993-1998), bajo cuyo gobierno se realizaron importantes negociaciones por la deuda de Itaipú.
Los profesionales presentes coincidieron en que a Paraguay aún le falta mucha información y formación antes de ingresar al negocio de la comercialización de energía.
Walfrido Ávila
presidente de la empresa brasileña Tradener, y conferencista principal del evento, tras su exposición, manifestó: “Somos pioneros en Brasil en esta área de comercialización y traer nuestros conocimientos es un placer. El ítem principal que es necesario es el entendimiento entre los países, que es un documento necesario para que este tipo de operación entre países sea real. El segundo ítem es que Paraguay esté dispuesto a vender, porque también podría estar dispuesto a comprar, que también es interesante. El tercer ítem, si se cumplen los dos anteriores, es ser útil para el consumidor paraguayo, para lo que es necesario un acuerdo entre los dos países vecinos”. “No hay desventajas en hacer un acuerdo entre los países que pueda propiciar a mejorar para hacer los desembolsos necesarios para la infraestructura y contar con eso para ir previniendo las necesidades que se pudiera tener. Paraguay debe iniciar los estudios de comercialización como un todo, y es importante saber lo que está sucediendo a su alrededor”, sostuvo.
A su vez, Jorge Caliari, director de negociación y gestión de cartera de la empresa brasileña Tradener, uno de los conferencistas, manifestó: “Me pareció muy interesante la importancia
que la gente le da a esto (la negociación). Brasil pasó por esto 30 años atrás y se puede ver en la gente que continúa latente. Se espera que, en este proceso de integración de todo el mercado sudamericano, la gente tenga oportunidad de hablar más sobre el negocio de la energía”.
El disertante dejó en claro las ventajas que tiene Paraguay cuando deja el monopolio y coloca otros agentes trabajando en el sector. “Uno multiplica la cantidad de personas empleadas, como en Houston (Estados Unidos), en donde hay más de 2.000 empresas de petróleo, por lo tanto, hay 2.000 presidentes de estas empresas, 2.000 secretarios, 2.000 choferes, etc. Todo eso da un estímulo muy grande a la economía. Entonces, la idea es que la pluralidad, cuanto más empresas haya interactuando en un mercado abierto, habrá mayor oportunidad de empleos, de expansión. La gente encontró eso en Brasil y fue una buena experiencia. Para eso es necesario voluntad política y crear las leyes para que eso funcione de manera correcta”, señaló.
“Paraguay tiene la ventaja de que ya vio lo que funcionó y lo que no funcionó en Brasil. Debe aplicar las experiencias y saber cómo aplicarla aquí, de acuerdo a las particularidades del país. Se deben hacer más eventos como este para ir compartiendo experiencias”, alentó.
Por su parte, el Ing. Pedro Domaniczky, superintendente de energía renovable de
Itaipú binacional, sostuvo: “Nos pareció muy apropiada esta conferencia, para que uno vaya entendiendo todo lo que es el esquema de comercialización de energía con el presidente de Tradener, que es una de las empresas con mayor experiencia en Brasil. Es importante compartir la experiencia de estos 30 años de comercialización de modo a ir dilucidando distintos procesos de interacción que pueda haber entre Paraguay y Brasil, en ese ámbito libre, privado y abierto de comercialización. Independiente de lo que sería el caso de Itaipú, que es una comercialización estatal, en el ámbito de un tratado binacional, en donde se tiene todo un marco jurídico y una estructuración financiera, de gobernanza, inclusive”, dijo.
“Esperamos que este tipo de actividades se repita y se intensifique en distintas áreas del país para que se vaya conociendo y divulgando alternativas, posibilidades y potencialidades de lo que es el mercado brasileño para la comercialización de energía del Paraguay”, añadió.
“Paraguay necesita abrir ese marco inicial, empezando por la voluntad política, para abrir esa línea y después cumplir los requisitos internacionales, siempre en función al precio y esa comercialización tan dinámica que constituye el mercado libre, que depende de la oscilación de precios, que varía hora a hora, dependiendo de pico, punta de carga y requerimiento en sí de mercado, que como vimos, es bastante dinámico”, finalizó.
“Entrar a improvisar puede tener costos muy sustanciables”
César Barreto, economista y exministro de Hacienda, señaló: “Este es un buen momento para hacer este tipo de conferencias que nos permita por lo menos empezar a considerar la implicancia de algo que pedimos hace tiempo, que es que Paraguay tenga la libre disponibilidad de su energía, pero que eso implica entrar a un mercado que es complejo y no podemos entrar a improvisar porque puede tener costos muy sustanciables para el país”.
“Por suerte hay un periodo hasta el 2027 en el que nos da tiempo para profundizar en esto y que haya mucha gente del sector público y privado que puedan empaparse y entender mejor del tema, para diseñar nuestra participación en ese mercado, para maximizar los beneficios y minimizar las pérdidas, porque es una oportunidad, pero las oportunidades también tienen riesgos y tenemos que estar capacitados para manejar ambas situaciones”, indicó.
“Hay que asesorarse bien, no podemos improvisar. La improvisación es la que debemos evitar porque es un recurso demasiado importante para el país, estamos hablando de millones de dólares en juego”, afirmó.
“Primeramente, participar del mercado brasileño tiene ciertas reglas, en especial para otros países. Hay que hacer acuerdos con Brasil específicamente en términos de comercialización de energía, algo que aparentemente no lo tenemos todavía. Necesitamos ese acuerdo previo. Este es un mercado complejo. En segundo lugar, no podemos ir a improvisar porque no tenemos gente preparada ni en la ANDE, y menos en otras instituciones que conozcan detalles del día a día de las operaciones de un mercado tan complejo como el que nos mostraron hoy. Debemos asesorarnos, porque si nos equivocamos en el primer paso, nos va a costar muy caro”, advirtió.
Tradener es un comerciante independiente de electricidad y gas natural, de origen brasileño. Fue el primer agente autorizado por la ANEEL para comercializar energía con consumidores y generadores libres, en el ambiente de libre contratación (ACL), y con distribuidoras, en el ambiente de contratación regulada (ACR).
Fue un evento del Centro Paraguayo de Ingenieros (CPI) y el Instituto de Profesionales Paraguayos del Sector Eléctrico (IPPSE), bajo el gerenciamiento del Grupo Paraguay Eventos y Emprendimientos (GPEE).
89
Una promesa de vivienda propia para las familias paraguayas
El Ing. Juan Carlos Baruja, Ministro del Ministerio de Urbanismo, Vivienda y Hábitat (MUVH), anunció con orgullo el lanzamiento del programa Che Róga Porã, una promesa de campaña del presidente Santiago Peña destinada a transformar el acceso a la vivienda en Paraguay. "El Presidente Peña tuvo la visión de cambiar radicalmente las reglas del mercado, con el objetivo de reducir las tasas de interés para que las familias paraguayas puedan acceder a una vivienda propia" sostuvo el titular del MUVH.
Así también, destacó la satisfacción de haber contribuido a esta promesa de campaña que permitirá a miles de familias paraguayas cumplir el sueño de tener su propia casa. Che Róga Porã es el resultado de un esfuerzo conjunto y trabajo en equipo, un principio constantemente promovido por el presidente. Este programa es un ejemplo de cómo se construyen políticas públicas sólidas a largo plazo, involucrando también al sector privado.
El Ministro resaltó la colaboración de los gremios de la construcción como la Capaco, Cavialpa, Capadei, Caprivi, el
Ing. Juan Carlos Baruja
Ministro del Ministerio de Urbanismo, Vivienda y Hábitat (MUVH)
Centro Paraguayo de Ingenieros y el Colegio de Arquitectos del Paraguay, así como la academia, quienes dedicaron innumerables horas a trabajar en esta política de Estado. También participaron instituciones clave como la Jefatura de Gabinete de la Presidencia, el Ministerio de Economía, el Banco Nacional de Fomento, el Banco Central del Paraguay, el MITIC y el Ministerio de Obras Públicas y Comunicaciones. La colaboración con la AFD y el sector privado fue crucial para generar este producto, Che Róga Porã.
El papel de la AFD fue especialmente destacado por su dinamismo, profesionalismo y rigurosidad, logrando una tasa histórica del 6.5%. Además, se aseguró un alto estándar de calidad, no solo en la construcción sino también en criterios urbanísticos, garantizando el acceso a los servicios básicos.
Baruja informó a la ciudadanía que los primeros 16 proyectos, con un total de 535 viviendas, están disponibles desde hoy. Estos proyectos han pasado un riguroso proceso de aprobación en el sector privado, requiriendo un acuerdo tripartito entre entidades fiduciarias, empresas aseguradoras y desarrolladoras, garantizando la viabilidad de cada proyecto. Más de 120 empresas participaron en la primera convocatoria del Ministerio de Urbanismo, Vivienda y Hábitat (MUVH) el año pasado y obtuvieron la habilitación para presentar sus proyectos, demostrando un gran interés en ser parte de esta política pública.
"El programa no solo aborda el problema de la vivienda para la clase media, históricamente desatendido, sino que también dinamiza la economía. La construcción de viviendas tiene un efecto multiplicador, generando empleo para profesionales como arquitectos, ingenieros, albañiles, plomeros, pintores, electricistas y vidrieros, además de muchas industrias y servicios que forman parte de la cadena de valor" alegó el Ministro.
Finalmente, el Ing. Baruja enfatizó que el valor de las políticas públicas se evalúa en función de los cambios positivos que logran en la vida de las personas. La decisión de elegir y comprar una casa es una de las más importantes para una familia, y este programa permitirá que muchas familias puedan ver crecer a sus hijos en su propio hogar, en lugar de una casa de alquiler.
Ing. Claudio Gustavo Rodríguez
Director de RH
El Ing. Claudio Gustavo Rodríguez, Director de la empresa RH se mostró entusiasta ante la instalación de un sistema semafórico en la salida de la Costanera Sur, sobre la avenida Perón. En una entrevista, destacó la importancia de estos nuevos equipos para la seguridad vial de Asunción.
"Cada cruce semafórico representa una señalización luminosa crucial en un cruce conflictivo. Trabajamos por la seguridad vial y estos equipos están equipados con controladores inteligentes que pueden ser centralizados y coordinados con otros cruces de la ciudad", afirmó Rodríguez.
El Director de RH mencionó que uno de los aspectos innovadores de esta instalación es el uso de ductos subterráneos, lo que permite reducir el cableado exterior y prever futuras instalaciones de iluminación y cableado eléctrico, embelleciendo la ciudad. "La instalación subterránea no solo mejora la estética urbana, sino que también prepara el terreno para una infraestructura más ordenada y segura", añadió.
RH, empresa líder en el mercado de semaforización y semáforos inteligentes, cuenta con cuatro áreas de servicios, entre ellas la ingeniería vial. Trabajan en señalización semafórica, vertical y horizontal, y en defensas metálicas. A su vez, siguen estándares de ingeniería para garantizar que una buena demarcación vial pueda salvar vidas.
El Ing. Rodríguez resaltó que la colocación de semáforos responde a criterios específicos como la siniestralidad vial, el volumen de vehículos y peatones. "La señalización no se instala al azar; si un cruce tiene semáforo, es porque es conflictivo y debe ser atendido con precaución. Los semáforos inteligentes que instalamos están diseñados para evitar encendidos simultáneos de luces verdes y pasar a modo intermitente en caso de fallos", explicó.
Por otro lado, alertó sobre la importancia de la calidad y la adecuada instalación de los equipos. "Es fundamental que estos sistemas sean instalados por empresas con solvencia técnica para evitar accidentes. Agradecemos al consorcio Costanera Sur por confiar en nosotros para este proyecto y esperamos seguir contribuyendo al desarrollo y progreso de nuestro país" concluyó el Ing. Claudio Gustavo Rodríguez, Director de RH.
Ing. Claudio Emanuel Rodríguez
Director de RH
Ing. Claudio Gustavo Rodríguez
Director de RH
En una entrevista reciente, los directores de RH, Claudio Emanuel Rodríguez y Claudio Gustavo Rodríguez, compartieron la visión, estrategias y expansión de la empresa, destacando su enfoque en la innovación y el compromiso con el desarrollo sostenible en Paraguay.
Expansión y Diversificación
RH, empresa especializada en publicidad y equipamiento urbano, ha evolucionado significativamente desde sus inicios. Claudio Emanuel Rodríguez explicó que la empresa se ha dedicado a incorporar una amplia gama de productos y servicios para adaptarse a las necesidades específicas de sus clientes. "Hemos implementado tecnología de medición de audiencia y Big Data para proporcionar métricas detalladas, lo que nos permite saber cuántas personas ven nuestra publicidad en cada punto," señaló.“Los pavimentos de hormigón. Más que una alternativa”.
Cuatro Áreas de Servicio
Claudio Gustavo Rodríguez detalló las cuatro áreas de servicio diferenciadas que maneja la empresa:
Agencia de Medios Publicitarios: Especializada en espacios publicitarios en el espacio público, como refugios para pasajeros.
Ingeniería Vial y Civil: Trabajan en señalización vertical y horizontal, semaforización y otros elementos de tráfico.
Consultoría: Realizan estudios de ingeniería de tráfico, impacto ambiental, análisis de circulación y planes de desarrollo territorial.
Unidad Comercial Industrial: Proveen productos y servicios especializados a industrias viales, asegurando un robusto servicio postventa y conocimiento del producto.
Presencia Nacional e Internacional
Actualmente, tienen presencia en 30 ciudades y ha trabajado en 50 ciudades a lo largo de su historia. Claudio Emanuel Rodríguez resaltó las perspectivas de crecimiento y expansión de la empresa a nivel nacional e internacional.
"Buscamos integrar nuevas tecnologías y oportunidades de mercado para satisfacer las demandas de las marcas no solo a nivel nacional, sino también regional y mundial," afirmó.
Claudio Gustavo Rodríguez enfatizó el compromiso de la empresa con el crecimiento sostenible y la profesionalización. "Estamos convencidos de que Paraguay alcanzará el grado de inversión y queremos contribuir a ese crecimiento de manera sólida y sostenible," señaló.
RH sigue demostrando que la innovación y el compromiso con la calidad y sostenibilidad son claves para su éxito continuo en el competitivo mercado de la publicidad y servicios viales en Paraguay.
En el lanzamiento de su libro "Las Alianzas Público-Privadas en el Paraguay", Facundo Salinas, presidente de FEPASA, ofreció una visión integral sobre este modelo colaborativo que está transformando la infraestructura del país. Durante la presentación, Salinas explicó la estructura del panel diseñado para el evento.
"La idea era integrar diferentes perspectivas clave", comenzó Salinas. "Por un lado, la visión económica de las alianzas público-privadas fue magistralmente abordada por el Ministro de Economía y Finanzas, Carlos Fernández Valdovinos, quien no solo tiene un profundo conocimiento del tema, sino que tam-bién trabajó estrechamente con nosotros en proyectos como la Ruta 2 y la Costanera Sur desde 2013", destacó.
Salinas también mencionó la importancia de la participación de la Ing. Claudia Centurión, Ministra de Obras Públicas y Comunicaciones (MOPC), quien contribuyó desde la óptica gubernamental en la estructuración de estos proyectos emblemáticos. "Fue crucial tener su perspectiva, no solo por su rol minis-terial, sino también por su experiencia directa en la implementación de estos proyectos estratégicos", añadió.
El panel también incluyó la voz del sector privado, representada por el Ing. Paul Sarubbi, Presidente de la Cámara Vial Paraguaya (CAVIALPA), quien según Salinas, "es el motor detrás de la ejecución efectiva de las alianzas público-privadas en Paraguay. Las empresas, al final del día, son las responsables de llevar adelante estas iniciativas con eficiencia y compromiso".
Facundo Salinas
Presidende de FERROCARRILES DEL PARAGUAY S.A. (FEPASA)
En cuanto al déficit de infraestructura, Salinas citó las cifras del Ministro Fernández Valdovinos, quien alertó sobre un déficit de 21 mil millones de dólares en infraestructura. "Las alianzas público-privadas son esenciales para reducir esta brecha. No es viable cerrarla únicamente con recursos públicos tradicionales o deuda típica. Necesitamos el aporte y la eficiencia del sector privado para lograrlo", enfatizó Salinas.
Al ser consultado sobre la necesidad de una mayor colaboración entre el sector público y
privado, Sali-nas respondió enfáticamente: "Sin duda, la sinergia entre ambos sectores es fundamental. El sector pú-blico establece las reglas y condiciones, mientras que el sector privado aporta la capacidad ejecutiva y la eficiencia necesaria para cumplir con los objetivos".
Finalmente, Salinas concluyó que el objetivo último de las alianzas público-privadas es mejorar la cali-dad de vida de todos los ciudadanos. "Es esencial que estas iniciativas sean rentables para el sector pri-vado, pero al mismo tiempo, deben garantizar servicios públicos de calidad y un desarrollo sostenible para el país", afirmó.
Con este enfoque integrador y orientado hacia resultados tangibles, Salinas destacó el papel transfor-mador que las alianzas públicoprivadas están jugando en el futuro de la infraestructura y el desarrollo económico de Paraguay.
Cuando hablamos de buen gusto, en Arquitectura y Diseño, lo más importante es que el tipo de iluminación se corresponda con la funcionalidad que queremos lograr.
La iluminación en general, nos permite lograr efectos y sensaciones únicas en los ambientes que diseñamos, por eso, debemos tener bien claros los conceptos.
En este sentido, hoy vamos a aprender sobre los colores y sus usos según los ambientes. Podemos decir que básicamente existen tres tipos de tonalidades que son medidas en grados Kelvin, por eso también hablamos de temperatura de la luz.
Cuando la medida se encuentra por debajo de 3.300 °K estamos hablando de una temperatura de color que nos va brindar un ambiente cálido, sin embargo, si hablamos de temperaturas superiores a los 5.000 °K el ambiente que estamos generando es un ambiente frío pero si la
temperatura de color se encuentra alrededor de los 4.000 °K nos encontramos ante un ambiente de color neutro.
Hasta acá, hemos definido los rangos de temperatura y el tipo de iluminación, pero, ¿para qué nos sirve cada una de ellas?, esa es la pregunta que debemos responder:
Luz cálida <3.300 °K, es el tipo de iluminación que necesitamos utilizar si queremos crear ambientes acogedores, espacios que vamos a compartir en familia y con amigos, como quinchos, comedores y galerías, lugares que utilizamos en momentos en los que buscamos relajarnos como el dormitorio.
Luz fría >5.000°K, se utiliza para crear ambientes más dinámicos, áreas donde se transita con frecuencia y se mantiene constante actividad como pasillos, escaleras, cocinas.
Luz neutra +-4.000 °K, se utiliza para crear ambientes en los que se necesite lograr un gran rendimiento laboral de las personas que lo utilizan, como oficinas, aulas, salas de estudio, lectura, así como también en comercios donde queremos resaltar mejor el color de los productos.
Hoy día en el mercado existen luminarias que permiten obtener estas diferentes tonalidades de color, y se hacen aún más funcionales en estos tiempos en los que debemos adaptar espacios de la casa, que antes utilizábamos como comedor o estar (luz cálida), y que hoy, en algunos momentos, debemos utilizarlos para el home office o las clases virtuales de los chicos (luz neutra).
La utilización correcta de las diferentes tonalidades de luz, es clave para ganar en calidad de vida.
Camila Santacruz
Product Manager de Iluminación de Luminotecnia
Llega una nueva edición de la Expo-Feria Vivienda, se desarrollará los días 16, 17 y 18 de agosto próximo, de 10:00 a 21:00, en el Centro de Eventos Fuente Shopping de Salemma, (Ruta Mcal. Estigarribia, Km 9,5San Lorenzo), con acceso libre y gratuito.
De acuerdo a datos preliminares del Instituto Nacional de Estadística (INE), el déficit habitacional en nuestro país, en lo que respecta a lo cualitativo, ronda las 1.000.000 viviendas, es decir casas que necesitan refacción, ampliación o remodelación; y en lo cuantitativo, más de 100.000, es decir, nuevas unidades. El director del INE, Iván Ojeda, aclaró que estos datos serán precisados con los resultados del censo de población y vivienda que se publicará en el segundo semestre de este año.
Precisamente, es una realidad que, con el paso de los años, crece el interés de la ciudadanía en buscar soluciones habitacionales tanto en Asunción como en el área metropolitana. Por ello, una nueva edición de la Expo-Feria Vivienda, llega para ofrecer múltiples opciones en cuanto a opciones habitacionales y financiación.
Este evento busca facilitar el acceso a la primera vivienda a personas con ingresos medios, que aún no cuentan con vivienda propia. En la ocasión, los interesados podrán conocer opciones disponibles de departamentos, casas, dúplex o monoambientes, situados en zonas urbanas del territorio nacional.
Están invitadas a participar de la ExpoFeria Vivienda desarrolladoras inscritas en el programa Che Róga Porã, socios de
la Cámara Paraguaya de la Industria de la Construcción (Capaco), Cámara Vial Paraguaya (Cavialpa), Cámara Paraguaya de la Primera Vivienda (Caprivi), Cámara Paraguaya de Desarrolladores Inmobiliarios del Paraguay (Capadei), entre otras.
Las desarrolladoras podrán mostrar su oferta de vivienda, podrán atraer clientes calificados y por supuesto, vender.
Esta edición de la Expo Vivienda se llevará a cabo en el Centro de Eventos Fuente Shopping de Salemma (Ruta Mcal. Estigarribia, Km 9,5 - San Lorenzo), teniendo en cuenta las óptimas características del lugar, ya que cuenta con amplio patio de comidas, cines, excelentes tiendas de marcas, fácil acceso (muchas líneas de transporte pasan frente mismo al local). También cuenta con un amplio estacionamiento y está estratégicamente ubicado para recibir a visitantes de Asunción y Gran Asunción, amplios salones de eventos climatizados y alfombrados. Un lugar excelente para toda la familia.
En ediciones anteriores, la Expo-Feria Vivienda se tuvo una asistencia masiva de más de 10.000 personas y se desarrolló con total éxito, respondiendo a las necesidades de las familias, especialmente.
La Expo-Feria Vivienda es un evento de Grupo Paraguay Eventos y Emprendimientos (GPEE).