azero 03

Page 1


unarivista

EdicomEdizioni

Zehnder:

tutto per un ambiente confortevole, sano ed energeticamente efficiente.

Zehnder Comfosystems: Sistemi per la ventilazione climatica

Zehnder Tecnosystems S.r.l. Campogalliano (MO)

Zehnder Radiatori: Radiatori e scaldasalviette.

Zehnder Group Italia S.r.l. Lallio (BG)

Zehnder Nest Systems: Sistemi per la climatizzazione radiante.

Nest Italia S.r.l. Vedelago (TV)

www.zehnder.it

Fresh Air
Aria esterna
Aria di mandata
Aria di ripresa Espulsione aria
Temperatura Rumore Pollini
Sostanze inquinanti nell’aria

LACERTIFICAZIONEPEREDIFICIAENERGIAQUASIZERO

GaiaBollini

SPOTPROGETTI

INTERVISTAA MARCO FILIPPI

MINIMALISTAESOSTENIBILE casasullaMorellaaCastelnovoSotto(RE)

UNACASAACONSUMOQUASIZEROINCLIMAMEDITERRANEO casaaBisceglie(BT)

INNOVAZIONEESOSTENIBILITÀLOWTECH AeropolisII,Bruxelles(B)

UFFICIOLTRELEZEROEMISSIONI PixelBuilding,Melbourne(AUS)

azero-rivistatrimestrale-anno2-n.03,aprile2012 RegistrazioneTribunaleGorizian.03/2011del29.7.2011 NumerodiiscrizionealROC:8147

ISSN2239-9445

direttore:responsabileFerdinandoGottard redazione:LaraBassi,GaiaBollini,LaraGariup

editore:EdicomEdizioni,Monfalcone(GO) redazioneeamministrazione:via1°Maggio117,34074Monfalcone(GO) tel.0481.484488,fax0481.485721

stampa:GraficheManzanesi,Manzano(UD) Stampatointeramentesucartaconaltocontenutodifibrericiclateselezionate prezzodicopertina15,00euro-abbonamento4numeri-Italia:50,00euro, Estero:100,00euro.Gliabbonamentipossonoiniziare,salvodiversaindicazione, dalprimonumeroraggiungibileinqualsiasiperiododell’anno distribuzioneinlibreria:JooDistribuzione,ViaF.Argelati35–Milano Èvietatalariproduzione,ancheparziale,diarticoli,disegniefotosenon espressamenteautorizzatadall’editore

copertina:AeropolisII,progettoArchitectesAssociés,foto:MarcDetiffe

INDAGINETERMOGRAFICAEDEFFICIENZAENERGETICA

FabioArmillotta,CarmelaPalmieri

MATERIALITRADIZIONALIETECNOLOGIEINNOVATIVEPERL’ISOLAMENTODELLECOPERTURE

MariaElisabettaRipamonti

PRODOTTI ISOLAMENTODELLECOPERTURE

LAPOMPADICALOREELETTRICANEGLIEDIFICIABASSOCONSUMOENERGETICO

LucaCeccotti

SISTEMI POMPEDICALORE

DETTAGLIDICANTIERE:NATURRESIDENCE DAHOAM

AnnamariaBelleri,RobertoLollini

prospettive_lacertificazioneCasaClima

GaiaBollini, architetto,consulenteenergeticoCasaClima

LACERTIFICAZIONE PEREDIFICIAENERGIA QUASIZERO

Daquestonumeroesaminiamoimaggioririferimentiprogettuali peredificinZEB,ilcuiiterfinalesfociainunacertificazione dellaprestazionevoluta.IniziamoconilProtocolloCasaClima, lacuivaliditàd’approccioèriconosciutaanchealivellonazionale.

Leattualipoliticheambientalistannoorientandofortementeil mondodellecostruzioniversoiltantoauspicatobassoimpatto, ponendoqualeobiettivofinaleil netzeroenergybuilding,l’edificioaenergiaquasizero.

Ilcapitolochesivuoleaprireèriferitoinveceaquellichesono, almomento,iriferimentimaggiormentericonosciutiquandosi vuolecertificarel’effettivobassoconsumodell’interventoprogettatoe/orealizzato.Inrealtà,comesicapiràmeglioinseguito,nonsitrattadisemplicisistemidicertificazione,madi veriepropriapprocciprogettuali,concretamentetesialrisparmioeall’efficienzaenergetica,lacuicorrettaconduzioneviene inultimabattutaattestataconriconoscimentoformale.

Unodiquesti,nonchéforseilpiùnotoalivellonazionale,èil marchiodiqualitàcostruttivaCasaClima,promossoegestito dall’AgenziaCasaClimadiBolzano,strutturapubblicachegestiscelacertificazionesecondoilprotocolloomonimo (www.agenziacasaclima.it).

Intalsensoèopportunofaresubitounaprecisazione:lacertificazionechescaturiscedauniterprogettualetesoalconseguimentodelmarchiodiqualitàCasaClimaèobbligatoriain provinciadiBolzanoevalequalelocalerecepimentodell’allora direttivaeuropea91/2002sull’efficienzaenergeticadegliedifici(oggisostituitadall’EPBD31/2010);essaèassolutamente

volontariafuoridaiconfinialtoatesini,fattaeccezioneperqueicomuniitalianichel’hanno adottataalivellodiregolamentoediliziocomelacittàdiFirenzeelaprovinciadiUdine,le qualihannoaderitoallafilosofiaCasaClima,costituendofilialilocalidell’agenzia(l’Agenziaperl’Energia-APEdelFriuliVeneziaGiuliael’AgenziaFiorentinaperl’Energia-AFEdi Firenze).Inognicaso,fuoridallaprovinciadiBolzano,lacertificazioneottenutainottemperanzaallostandardCasaClimanonsostituiscelacertificazioneenergetica(ACE)dovuta perleggeaisensideld.lgs.192/2005ess.mm.Inquesticasiessarappresentaunattestato diqualitàcostruttivaeprestazionale,poichélasuaconcessioneimplicachesianostati controllatiinmodospintoilimitidifabbisognonettodienergiaetuttalafaserealizzativa delprocessoedilizio.

L’assuntofondamentaleèchenoncisiaenergiapiù“verde”o“rinnovabile”diquellarisparmiata;ciòsignificachequantomaggioresaràilcontrollodelledispersionitermiche pertrasmissioneeventilazioneattraversol’involucro,tantominoresaràilfabbisognoenergeticodell’immobile(equindileemissionidiCO2 inatmosfera),intesoalnettodelleperditedegliimpiantiedellaproduzionediacquacaldasanitaria(ACS).Inragionediciòla classediappartenenzaèdefinita,diversamentedallostandardlegislativonazionale,dal solofabbisognonettoperriscaldamentoacaricodell’involucro

L’approccioprogettualenecessarioperraggiungerequesteprestazionièquellodell’edificio “aenergiaquasizero”,chehatrovatoperaltroproprionellafilosofiaCasaClimaunprimo momentodidiffusionealivellonazionale.

L’obiettivoèmassimizzarelaperformancedell’involucro(ossiaparetiesterne,superficivetrate,solaietetti),responsabiledellaquotapiùimportantediperditedicalore,ottimizzandodiconseguenzalesoluzioniimpiantisticheeminimizzandonegliimpatti.

Perraggiungerequestistandardèfondamentaleunapproccio progettualechefindall’iniziotengacontodialcuniprincipicardine:lacompattezzadell’edificio(perlimitarelesuperficidisperdentiversol’esterno),lamassimizzazionedelcontributo passivodelsolecomefonteluminosaedicalore(senzadimenticarnel’imprescindibilecontrollonelperiodoestivo),unisolamentoimportantedelleparetiesterne(spingendosia performancedellestesseanchebenmaggiorideiriferimenti normativinazionaliesemprericordandolaparticolaritàdel climaitalianoedellesueestaticalde),unaperfettatenutaall’ariaealventodituttol’involucro,l’adozionedifinestredal comportamentotermicocoerente(cercandosempreilgiusto equilibriotralimitazionedelladispersionetermica,capacitàdi sfruttamentopassivodelsoleininvernoeilcontrollodell’irraggiamentoestivo),l’eliminazioneoalmenoilcontrollodei pontitermici(lacuiinsidiositàaumentaconl’aumentaredella

performancedell’involucro).Tuttoquestoriportaauncontrollo progettualeedesecutivodelnodotecnologico;suquestopunto l’AgenziaCasaClimaponegrandeattenzione,siainfaseprogettualesiaesecutiva,attraversoilcontrollocheeffettuasulle pratichechelepervengonoemedianteverifiche,obbligatorie, condotteincantieredaisuoiauditori.

Lacertificazione,infatti,tesaall’ottenimentodelmarchiodi qualitàcostruttivaCasaClima(ossial’omonima“targhetta”), prevedecheinfaseistruttoriasiainviataall’Agenzia(possibilmenteprimadell’iniziolavori)unapraticaabbastanzacorposa cheinclude,fralealtrecose,siailcalcoloenergetico1 condotto perverificarelarispondenzadellaclasseincuisivuolericada l’opera,sialacosiddetta tavoladiprogetto.Inessa,oltreall’architettonicodelprogetto,conevidenziatiglielementistrutturali,l’identificazionedellediversesuperficidisperdenti (orizzontalieverticali)edelvolumeriscaldato,nonchélevarie

ClasseOro<10kWh/m2a

ClasseA<30kWh/m2a

ClasseB<50kWh/m2a

ClasseC<70kWh/m2a

LaclasseCèstatailprimostandarddiriferimentoallanascitadel protocollobolzanino.Oggièampiamentesuperatodall’imposizione dellaclasseBcomelivellominimoperlanuovacostruzione(siainprovinciadiBolzanosiaperlacertificazionefuoriprovincia). Inragionedellarelazionepercui1kWhequivalecircaa10m3 dimetanoo10ldigasolio,lesuddetteclassispessoindicano,rispettivamente,lacasada“1litro”,da3eda5“litri”;conciòsivuoleintendere chesonocostruzionicherichiedonosolo1,3o5“litri”digasolioo metricubidimetanoperesseremantenutea20°Cinterni(sempreal nettodelleperditelegateagliimpiantieallaproduzionediACS).

Fonte:CasaClima

ClasseOro ≤ 5kgCO2/m2a

ClasseA ≤ 10kgCO2/m2a

ClasseB ≤ 20kgCO2/m2a

ClasseC ≤ 30kgCO2/m2a

ClasseD ≤ 40kgCO2/m2a

ClasseE ≤ 75kgCO2/m2a

ClasseF ≤ 100kgCO2/m2a

ClasseG>100kgCO2/m2a

stratigrafieprogettate,devonoessereevidenziatiiprincipalinoditecnologicichecostituisconoelementodicriticitàoveroepropriopontetermico.Ognunodiessideveessereanalizzatoseparatamenteerisoltoconundettaglioesecutivoinscalaopportuna2.Seciònon fossesufficiente,gliufficitecnicidell’Agenziasollecitanoalreferenteenergeticodelprogetto(solitamente,manonnecessariamente,unconsulenteenergeticoCasaClimaoun espertoCasaClima,iscrittineirispettivielenchipredispostidall’Agenzia)successiveintegrazionie/overifiche.Alpari,qualoraquantoprevistononappaiaconforme,chiedonolacorrezionedell’eventualeerroreprogettuale-tecnologicoperproseguireconl’istruttoriadella pratica.

Duranteisopralluoghi(minimodue),l’auditoredell’Agenzia–nominatodallastessa–verificalarispondenzadelcostruitoconilprogettoinviato.L’itersiconcludeconunaverifica globaleeitestdicontrolloincantiere3.Ciòagaranziadell’utentefinale,effettivobeneficiariodellesceltefatte,perilqualel’ottenimentodellatarghettaCasaClima,marchiodi realequalitàcostruttiva,èprovadellabontàdellesceltearchitettoniche,tecnologichee impiantistichecondottedalprogettista.Unavoltaottenutalatarghetta,essaèaffissaall’ingressodell’edificio4

Perciòcheconcernel’ambitoimpiantistico,sonopreferitiisistemiadaltaefficienza,che fannousodifontirinnovabili,pensatieprogettatiadhocperilrealefabbisognodell’immobile.

IlprotocolloCasaClimaconteggiaancheilcontributodegliimpianti(riscaldamentoeACS), sebbenenonconcorranoalladeterminazionedellaclasseenergetica.Essisonocalcolati comebilancioglobaleinterminidiCO2 emessa.Anchetaleindice,espressoinkg/m2adiCO2 emessa,ècomunicatoattraversounaclassificazione(A,B,Cecc.).Essaserveperrendere chiaroeconfrontabilel’impattoenergeticocomplessivodell’interventorealizzato.Nonnecessariamentec’èequivalenzatralaclasseenergeticadell’involucroequellacomplessiva; essepossonorisultarediversesenzaalcunaimplicazionevalutativa.

AllafilosofiaCasaClima,inoltre,èriconducibile,amioavviso,l’introduzione,inItalia,della ventilazionemeccanicacontrollata(VMC),lacuiadozione,laddoveprevista,contribuiscead abbassaremoltoilfabbisognoenergetico(invirtùdelcontrolloeffettuatosulleperditedicaloreperventilazione)eainnalzarelasalubritàdegliambienticonfinati.Quandosivoglia raggiungereprestazionialdisottodei30kWh/m2a(ossiaclasseAoOro),èpressochéimpossibileprescinderedall’adozionediunimpiantodiVMCconrecuperatoredicalore.Una voltaminimizzateleperditedicalorepertrasmissione(cioèperconduzionetermicaattraversol’involucroopacoetrasparente),nonrimanealtroambitoincuiinterveniresenon quellodellariduzionedelleperditeperventilazione(inunedificiocorrettamenterealizzato dalpuntodivistadellatenutaall’ariaealventoessesonolegateainormaliricambid’aria). Inparalleloeinragionedellaconsapevolezzacheunbassoconsumoenergeticoèsolouna parte(seppurimprescindibile)diunapprocciopiùolisticochefadellacostruzioneecobiocompatibileilverocontributoallasostenibilità,ilgradinopiùalto(e“virtuoso”)tralecategorieCasaClimaè CasaClimaPiù,unmarchiorilasciatoaedificichesicontraddistinguono nonsoloperl’altorisparmioenergetico(minimolaclasseB),maancheperunatecnicadi costruzionecheutilizzamaterialiecologici,biocompatibiliesiavvaledifontirinnovabili.Ancorapiùpuntualeèlarecentecertificazione energeticaeambientale CasaClimanature;con essasimisural’impattoglobaledell’edificio(costruzioneegestione)attraversoimateriali scelti,ilcuipesoambientaleèrapportatoall’impattogeneratonell’arcodituttoillorociclo divita,“pesando”ilconsumodisuoloepremiandolagestioneintegratadell’acqua,orientataalimitarneilfabbisognodallarete.

Bassofabbisognoenergeticoperriscaldamento,controllocertoalivellodiprogettoedesecuzione,verificafinaleattraversotestdicantiere,indipendenzadell’entecertificatore:questi,insintesi,ifattorisalientichecaratterizzanoilmarchiodiqualitàcostruttivaCasaClima.

Nellapaginaaccanto, dueedificiCasaClima Goldplus:alcentro, l’edificioperuffici dellaNaturalBuilding aSanBiagiodiCallalta (TV);sotto,leresidenze LochbauraMerano(BZ).

CasaClimaPiù

Ilmarchiodiqualità CasaClimaPiù sibasasuunaseriedicriteri qualitativi,lacuiadozioneèobbligatoriaperilraggiungimento dellostandard.

>Fabbisognoenergetico<50kWh/m2a

>Utilizzodimaterialiecocompatibili,ossia:

•noninfissiinPVC

•nonisolantisintetici

•nonimpregnantichimiciperlegnoenonverniciconsolventi chimici

•nonlegnotropicale

>Riscaldamentoconfontirinnovabili

>Nienteutilizzodifontifossili

>Presenzadialmenounamisurafra:

•impiantofotovoltaico

•collettorisolariperprodurreacquacalda

•recuperoacquapiovana

•tettoverde

L’auspicioècheneltempoiprotocollilegatialla bioecocompatibilità diventinounaparte semprepiùimprescindibilediquestosistemadiautocontrolloetrasparenzaoperativa.

Note

1-Dalpuntodivistadelsoftwaredicalcoloèopportunaunariflessione.Essoinfattinasceedèunsistemadi calcoloorientatoallacertificazioneenergeticadiquantoprogettato;intalsensoè“viziato”dainevitabilisemplificazionilegateallanecessitàdiriproducibilitàdelrisultato,indipendentementedall’operatore.Nonèquindiun veroepropriosoftwarediprogettazione.Èstatalapraticacomunechehacreatoquesto misunderstanding,aprendo spessoapolemichesullaeccessivasemplicitàdelsistemadicalcolo.

2-Inragionediciòl’AgenziaCasaClimapredisponeperiodicamenteunaDirettivaTecnica(l’ultimaèdell’agosto 2011)cuibisognaconformarsisesidesideraraggiungerelacertificazioneequindiilmarchiodiqualitàCasaClima. Inessasonoriportateunaseriediindicazionigenerali(daglistrumentidicalcolodaadottarsiagliespletamenti burocraticinecessari,inclusiilimitidivaliditàdelprotocollo),lespecificheinterminididefinizionedell’involucroriscaldato,disuperficidisperdenti(qualisono,comedevonoesserecalcolateecc.),eventualisemplificazioni nelcasodigestionediambienticomeivaniscale,nonchéilimitiprestazionaliestividell’involucro(ombreggiamentiinclusi)ecc.Sempreladirettivaindicaqualisonoipiùcomunipuntidebolidell’edificio(pontitermicio nodiparticolari),indicandoaseguitodiqualiaccorgimentitecnico-progettualipossanoessereconsideratirisolti ocomunquesottocontrollo.Nellamedesimaotticariportaqualisonoirendimentidaconsiderarsiperisistemidi VMC.L’attualeallegatoCriportaulteriorispecificheperilconseguimentodellaclasseOro(casapassiva).

3-Aconclusionedellapraticabisognatrasmettereagliufficidell’Agenziatutteleschedetecnichedeimateriali impiegati,inclusalaparteimpiantistica,edeseguireilblowerdoortestfinale(secondoUNI13829).Aoggi,per l’ottenimentodellaClasseB,indipendentementedallatecnologiacostruttiva,ènecessariounesitodellaprovadi η50,lim =2/h±0,1.

4-LacertificazioneCasaClimaèsempreriferitaall’interoimmobile,nonall’unitàabitativasingola(eccettogli edificiunifamiliari).Sonodefinitespecificheadhocnelcasodiinterventiadestinazioned’usopromiscua(terziario eresidenziale).

Ilmarchiodiqualitàenergeticoeambientale CasaClimanature si basasudescrittoriditipoquantitativo.Sonoarticolatiintrearee dianalisiprincipali:

1.Valutazionefasedigestioneedificio(efficienzaenergetica)

2.Valutazionemateriali

3.Valutazionerisorseambientali(acquaesuolo)

Area1:Efficienzadell’involucro ≤ 50kWh/m2a(classeB)

EfficienzacomplessivaCO2 max20kg/m2a(classeB)

Usodifontirinnovabili

Area2:Utilizzomaterialidalpiùbassoimpattopossibile interminidi:

>energiagrigia

>poterediacidificazione(AP) >potenzialedieffettoserra(GWP) >durabilitàdelmateriale

Area3:Valutazioneecontrollodellerisorseambientaliquali acquaesuolo

>Acqua:provvedimentitecniciperladiminuzione delfabbisognoidrico

>Suolo:limitazionedell’impermeabilizzazione

Foto:PierreBoss
_06 _03
_01
Foto:IPESBolzano

_01. Realizzaticonunastrutturainlegnoprefabbricataisolataconpannellidifibradilegnoi4alloggidell’Istitutoper l’EdiliziaSocialedellaProvinciadiBolzanoconseguonoilsignificativotraguardodellacertificazioneCasaClimaGold(9 kWh/m 2 anno).Nell’edificiodiAldinosonostateinstallatefinestreaelevatorisparmioenergeticoconunvaloreditrasmittanzaUw =0,85W/m2K.Oltreall’impiantodiriscaldamento centralizzatoalimentatoapelletsèstatoinstallatoancheun impiantodiVMC. www.benedikter.biz

_02. Inauguratanelsettembre2011,laprimapiscinacoperta d’EuroparistrutturataecertificataPassivhaussitrovaaLünen (D).Unariqualificazione+nuovacostruzionenatadallacollaborazionetral’associazionedinuotodellacittà,ilPassivhaus InstitutdiDarmstadtelostudio“npstchobanvossarchitekten”.Lapiscinaècollegataalteleriscaldamentocomunaleper ilfabbisognodicalorementresullacoperturasonostatiinstallatipannellifotovoltaici. www.stadtwerke-luenen.de

_03. IlnuovostabilimentodiproduzionedellaRainbowaLoreto (AN)nasceconl’obiettivodiridurrealminimoleemissionidi CO2 assicurandoilmassimocomfortconl’utilizzodiavanzate tecnologieimpiantistiche.Unimpiantofotovoltaicointegratoin coperturada360kWgarantiscelaproduzionedienergiaelettricanecessariaallaclimatizzazionedell’edificioepermettedi evitarecirca200.000kg/annodiemissionidiCO2 (progettisti: arch.SergioBianchi,arch.ElisabettaStraffi).

_04. IlcorpocompattodiVillaAusserhoferaSanGiorgio(BZ) siaprecongrandisuperficidivetroversosud,persfruttareal megliogliapportisolariinvernali,mentred’estateunastrutturapensilericopertadiederaombreggial’edificio.Lafacciata nordèvolutamentechiusaperminimizzareledispersioni.Ilconsumoenergeticoèparia7,51kWh/m2a. www.renato-dalberto.it

_05. IlprimoedificioindustrialesvizzeroaottenerelacertificazioneLEEDPlatinumsitrovaaLosannaedèilCentroperl’innovazioneCerealPartnersWorldwidediGeneralMillseNestlé. Haunasuperficiedi10.200m2 eunconsumodienergiaridotto dipiùdel30%grazieanchealriscaldamentoavaporegenerato dairesiduidicaffèeallosfruttamentodelleacquediscioglimentodellenevidelleAlpiperilraffreddamento.

_06. DallacollaborazionetralostudioPollini+SmaniaArchitettieilgruppoperlaconsulenzaenergetica(arch.GiuliaZordan,GuntherGantioler,ing.MarcoMarcheluzzo)ènatoa VicenzaEnergyHouse,unedificiodiseiappartamentiilcuifabbisognoenergeticocertificatoèdi8kWh/m2 anno.Perlesue caratteristiche(apportiinterniesolari,grandeisolamento,elevatamassa,unefficientesistemaimpiantistico...)l’edificioha ricevutounpremiodiriconoscimentonell’edizione2011deiCasaClimaAwards.

Foto:LuigiFiletici
Foto:BädergesellschaftLünenmbH Foto:RenatoD’Alberto

INTERVISTAA MARCO FILIPPI

LEIÈCOORDINATOREDEL COMITATO TECNICO SOSTENIBILITÀE NET ZERO ENERGY BUILDINGS (NZEB) DELL’AICARR: QUALISONOGLIOBIETTIVI DIQUESTOGRUPPODILAVORO?

IlComitatoTecnicoSostenibilitàeZeroEnergyBuildingèun organoconsultivopermanentedell’AssociazioneItalianaCondizionamentodell’AriaRiscaldamentoRefrigerazione(AiCARR) chehailcompitoditrattareletematicherelativeagliaspetti prestazionali,progettuali,costruttiviemanutentiviriguardanti gliedificisostenibili,conparticolareriferimentoaquelliaconsumoenergeticonullooquasinullo.

InoccasionediMostraConvegnoExpocomfort(27marzo2012), ilComitatohaorganizzatounSeminariodiAggiornamentoTecnicointitolato“Introduzioneallasimulazionetermoenergetica dinamica”nellaconsapevolezzacheglistrumentidisimulazioneenergeticadinamicasonodivenutiindispensabiliperla progettazionedegliedificidelfuturoaenergianettaquasizero (nearlynetZeroEnergyBuilding)econl’intentodifornireai progettistilenozionidibaseperlacreazionedimodellienergeticidisistemiedificio-impiantidiclimatizzazione,sottolinearelepotenzialitàdeglistrumentidisponibiliecommentare

Ingegneremeccanico,professoreordinario pressoPolitecnicodiTorino,insegnaallaIFacoltà diArchitetturaedècoordinatoredelDottoratodiricerca “Innovazionetecnologicaperl’Ambientecostruito”. GuidailgruppodiricercaTEBE(TechnologyEnergyBuilding Environment),èstatopresidentedell’AICARRedèmembro delcomitatoscientificodelGreenBuildingCouncilItalia. criticamentegliesitidispecificicasidistudio. Inoccasionedell’eventoèstatopubblicatoilsecondovolume delleLineeGuidaAiCARRaventelostessotitolodelSeminario. Talevolume,curatoconmedaEnricoFabrizio,èunaguidaintroduttivaalleapplicazionidellasimulazioneenergeticadinamicadiedifici,impiantidiclimatizzazioneesistemienergetici aserviziodegliedifici;allasuaredazionehacontribuito,tragli altri,ilprofessorClarke,autoredellibro“Energysimulationin buildingdesign”edirettoredell’ESRU,ilcentrodiricercadel-

Building03dell’EnergyParkdiVimercate(MB):primointervento inItaliacertificatoLEEDPlatinum.ProgettoGarrettiAssociati, committenteSEGRO(fotografia:archivioSEGRO).

l’UniversitàdiStrathclydediGlasgowchehasviluppatoilsoftwareESP-r.

NelfuturodelleattivitàdelComitatovisonolaredazionediulterioriLineeGuidadedicaterispettivamentealmonitoraggio energeticoeambientaledegliedificiesistentieallesoluzioni impiantisticheadottabiliperl’ediliziaresidenzialeaenergia nettaquasizero,nonchélarealizzazionediunSeminarioitineranteintesoafarconosceregliaspettiessenzialideiprotocolli perlacertificazionedellacostruzionesostenibileeadibattere leimplicazionichetaliprotocollihannosullaprogettazioneimpiantistica.

Lastbutnotleast vacitatalapartecipazionedelComitatoalla TaskForcedellaREHVA(FederationofEuropeanHeating,VentilationandAirConditioningAssociations)su“ReferenceBuildingsforEnergyPerformanceandCost-OptimalAnalysis”,che hainiziatoIsuoilavorinelmarzodiquest’anno.

SECONDOLASUAATTIVITÀDIRICERCAEDIDIDATTICAQUALEPUÒESSERE LADEFINIZIONEDI NZEB?QUALISONOGLIELEMENTICHECARATTERIZZANO UN NZEB?CENESONOALCUNIPIÙIMPORTANTIDIALTRI?

UnNetZeroEnergyBuilding(NZEB)èunedificiocheèconnesso aunainfrastrutturaenergeticaterritoriale(reteelettrica,rete gas,teleriscaldamento...)eche,nell’arcotemporalediunanno solare,presentaunasommaalgebricadeiflussienergeticiin ingressoeinuscitadivalorepariazero

Sonoduelecaratteristicheimprescindibili:ladomandadienergiaestremamenteridottaelaproduzionedienergiainsitoda fontirinnovabili.

Certopotreipensaredirealizzareunedificioaenergianettazero anchesoddisfacendounanotevoledomandadienergiamedianteun’imponenteproduzionedienergiadafontirinnovabili insitoofuorisito(energia“verde”importata),maèevidente cheintaleipotesiilcostoglobale(costodiinvestimentopiù costodiesercizio)sarebbetutt’altrocheottimale.Dunqueun taleedificiononpuòessereconsideratounNZEB.

QUALÈILCONCEPTDELDESIGNENERGETICODIUN NZEB?

Nonvièmoltodadiresulpianodellesoluzionitecnicheadottabili;sonoinnumerevoligliarticolidirivistaeimanualiche raccontanocomecostruireunedificioabassoconsumoecome dotarlodiimpiantidiproduzionedell’energiadafontirinnovabili.Ritengodunquechelestrategieprogettualisianochiare neiterminiecheletecnologieedilizieeimpiantisticheadottabilisianooggidisponibilisulmercato...sarebbenoiosofarnequi unelenco.

Ritengochequidebbainveceesseresottolineatocheèl’approccioalprogettochedevecambiare:occorreattivareunprocessodiprogettazioneintegrataedotaretaleprocessodi strumentiBIM(BuildingIntegratedSimulation)persimulareil comportamentodinamicodeidiversisottosistemi,edilizieim-

piantistici,erealizzarel’accoppiamentoottimalefradiessi. Inparticolare,varicordatocheladomandadienergianonèmai insincroniaconl’offertae,sepursipuòottenereillororeciprocobilanciamentonell’arcodiunannosolare,mesepermese, giornopergiorno,oraperora,ciònonavvieneedèquindinecessarioilcorrettodimensionamentodegliaccumulienergetici elacorrettavalutazionedeifattoridicostoconnessiall’importazioneeall’esportazionedellediverseformedienergiaversole retienergeticheterritorialicuil’edificioèconnesso.

COMECONIUGAREPROGETTAZIONE NZEB ESOSTENIBILITÀ?

Unedificioaenergiaquasizerononèdiperséunedificiosostenibile,maèsullabuonastradaperdiventarlo.

Inaltreparole,ilcontenimentodelladomandadienergiaela produzionedienergiadafontienergeticherinnovabilisonocertamentedueelementiimportantinelquadrodiunastrategia intesaarealizzareunacostruzionesostenibile,manonsonogli unicielementichelacaratterizzano.Venesonoaltri,qualilecaratteristichedelsitosucuisicollocal’edificio,imaterialiimpiegatiperlacostruzione,laqualitàdegliambientiinterni,la riduzionedeiconsumidiacqua,lecorrettemodalitàdiesercizioecc.cheintervengononeldeterminareillivellodisostenibilitàdiunedificio.

IconcettiNZEBeSostenibilitàsonoquindideltuttoconiugabili,mailprimoèpartedelsecondoepuòancheessereadottatoinquantotale(confrontaladirettivaeuropeaEPBD Recast);ècomunqueauspicabilecheambedueiconcettidiventinoobiettiviimprescindibilidelfuturoprogettoedilizioe impiantistico.

QUANTOPESOHANNO, OINCIDONO, LEFONTIENERGETICHERINNOVABILI INUNEDIFICIOABASSISSIMOCONSUMOENERGETICO?

Dipende,oltrechedalclima,dalladestinazioned’usodell’edificioedallatipologiaedilizia.Inunedificioadestinazioneresidenzialedipiccoledimensionioinunodigrandidimensioni organizzatoconcaseaschiera(monoobifamiliari)lecoperture consentonol’inserimentodisignificativesuperficidipannelli solaritermiciofotovoltaiciel’impiegodipompedicaloread ariao,inclimipiùrigidi,geotermichepossonofacilmentecondurreallarealizzazionediunedificioaenergiazeroconunacoperturadel100%(nell’arcodell’annosolare)dituttala domanda,compresituttigliusielettriciobbligati(illuminazione,elettrodomestici,TVecc.).

Lostessorisultatononsipotràottenereperòperunedificioresidenzialemultifamiliareatorre,caratterizzatodaunlastrico solarerelativamentepiccolo,operunedificioadestinazione terziaria,caratterizzatodaunelevatoconsumodienergiaelettricaconnessoall’attivitàlavorativa,amenochesidecidadi nonconsiderarenelbilancioannualeilconsumodienergiaelettricageneratodirettamentedall’utente.

ALCUNIEDIFICIPROGETTATIECOSTRUITICOMEFABBRICATIAENERGIAZERO INSEGUITOAMONITORAGGIEFFETTUATIHANNODIMOSTRATODICONSUMARE PIÙDIQUELLOCHEPRODUCONO.QUESTADIFFERENZAÈDARICERCARSI SOLONELDIFFERENTEMODOD’USODELL’EDIFICIORISPETTOALLEPREVISIONI DIPROGETTO?

IlResearchStrategicPlan2010-2015diASHRAE(AmericanSocietyofHeating,RefrigeratingandAir-ConditioningEngineers) “NavigationforaSustainableFuture”riportacomeprimoobiettivolamassimizzazionedellaprestazioneenergeticarealedegli edificiedegliimpiantialloroservizioattraversounamaggiore comprensionedeifattoritecnici,economici,istituzionalie umanichecontribuisconoacreareladivergenzafraconsumi energeticicalcolatieconsumienergeticireali,essendoisecondispessomaggiorideiprimi,purinpresenzadicondizioni internepeggioridiquelleattese.

IfattoricheASHRAEidentificacomecriticipergliedificiesistentisono:

-lamancanzadiconoscenzasugliusidell’energiadapartedei proprietaridiimmobili,deigestoriedeglioperatori;

-lamancanzadiconoscenzasuiparametrichepossonoinfluiresullaprestazioneenergeticadell’edificiosenzapeggiorarnelafunzionalità;

-l’assenzadiadeguativaloridiriferimento(benchmark)peri diversiusifinalidell’energia;

-laprioritàdataainterventidicontenimentodeiconsumidi duratalimitataneltempopiuttostocheainterventiconbeneficialungotermine;

-ladifficoltàdicontrollodell’operatodelgestoredegliimpianti

dapartedelproprietariodell’immobile;

-lacarenzadistrumentidiagnosticidifacileeintuitivoimpiegoattiafacilitarel’individuazionedellecriticità; -ilbassoprofiloformativoelegrossolanemodalitàoperative deigestoridegliimpianti;

-ladifficoltà,dapartedeiproprietaridegliimmobili,nell’identificaregestorirealmentedotatidicapacitàeconoscenze; -lasottostimadell’importanzadisottoporreleinstallazionia periodicheverifichedifunzionalità(continualcommissioning) intesearidurrel’usodell’energiaeamigliorareleprestazioni dell’edificio; -lamancanzadiunsistematico feedback dapartedeglioccupantiriguardantelerealiprestazionidell’edificio. QuelliindicatidaASHRAEsonoaspettideltuttocondivisibilie trasferibilinellarealtàitaliana.Anchesealcunirichiedonoapprofondimentiascrivibilialcampodellaricercascientifica,la granpartediessirichiedonosoltantocodicidipraticaequindi meritanounariflessionedapartedituttiglienti,pubblicioprivati,proprietaridigrandipatrimoniimmobiliarioanchedisingoliedifici,cheintendonoattivarsiperattuareunastrategiadi contenimentodeiconsumienergetici. Coniricercatoricheoperanonell’ambitodell’International EnergyAgency(IEA)sultema“Totalenergyuseinbuildings” (Annex53)abbiamoindividuatoseigruppidifattoriinfluenzanti iconsumienergeticidiunedificio:ilclima;lecaratteristiche dell’edificio;lecaratteristichedeisistemiimpiantistici(impianti interniesistemienergetici);illivellodiqualitàdell’ambienteinternorichiesto;ilcomportamentodell’occupante;lemodalitàdi

Asinistra,schema dibilancioenergetico diunedificio(immagine trattadaREHVAJournal May2011).

Adestra,iseifattori cheinfluenzano iconsumienergetici diunedificio(Total energyuseinbuildingsAnnex53,International EnergyAgencyIEA).

conduzioneemanutenzionedeisistemiimpiantistici. Esaminandotalifattorineldettagliosicomprendechel’ottenimentodell’obiettivoNZEBinesercizionondipendesoltanto dallaqualitàdelprogettoedellarealizzazione,maanchedal comportamentodell’utenteedallemodalitàdigestione.L’obiettivodeveesserequindifortementecondivisodall’utenteo,nel casodistruttureausoterziario,dal facilitymanager

QUANTOPOSSONOESSEREATTENDIBILILEPREVISIONISIMULATERELATIVAMENTE AICONSUMIDIUNEDIFICIOCHESIPROPONEAENERGIAZERO?

Lasimulazionetermoenergeticadinamicavieneimpiegataper ladeterminazionedeicarichitermiciefrigoriferideivariambientiperilprogettodegliimpiantidiclimatizzazione,ladeterminazionedeiconsumienergetici,lecondizionidicomfort termicoediqualitàdell’ariaall’internodegliambienti,ilconsumoelettricoperilluminazioneartificiale,leproduzionienergetichedegliimpiantialimentatidafontienergetiche rinnovabili.Persoddisfareleesigenzedelprogettistasonodisponibilispecificisoftwaredicalcoloperogniambitodianalisi, maanchesoftwaredicalcolocompleticheconsentonodisvolgere,attraversol’impiegodiununicomodello,quasituttigli ambitidianalisisuddetti.

Isoftwaremaggiormenteutilizzati(ESP-r,EnergyPluseTRNSYS) sonooggistativalidatidaunestesoimpiegoalivellomondiale. Lamaggiorecriticitàdiimpiegoditalisoftwarerisiedenella competenzadichiliutilizza:nonèfacileintrodurrecorrettamenteidatidiinputetalvoltasiestrapolanoconleggerezzai risultatichesiottengonoinoutput.Peraumentarel’affidabilità deirisultatioccorrepuntaresullaformazionedeglioperatori.

QUANTOISOFTWAREDISPONIBILISULMERCATOPERLACERTIFICAZIONE ENERGETICAPOSSONOINCIDERESULLAPROGETTAZIONEDIEDIFICIO ABASSISSIMOCONSUMOENERGETICO?

Isoftwaredisponibilisulmercatopereffettuareicalcolidicertificazioneenergeticasonobasatisuuncalcoloinregime“quasi stazionario”checonsentedivalutareilfabbisognoenergetico mediomensile.Sonodunquestrumentidiorientamentoperindividuarelestrategieprogettualidaattuare,manonconsentono dianalizzareilsistemaincondizionidinamicheediaccoppiare correttamentedomandaeoffertadienergia.IlprotocolloLEED perlacertificazionedellasostenibilità,adesempio,metteadisposizione19crediti(su100)perl’ottenimentodiobiettividi contenimentodeiconsumienergeticirispettoaedificistandard, madei19creditineammettesolo3senonvieneutilizzatoun veroepropriosoftwaredisimulazioneenergeticadinamica.

QUANTOÈIMPORTANTELACERTIFICAZIONEENERGETICADIEDIFICIDIQUESTOTIPO? ComepraticatainItalia,laproceduradellacertificazioneenergeticanonhaalcunaefficacia,inquantovieneinterpretatada chineèsoggettocomeunaennesimaproceduraburocraticae, intotaleassenzadicontrollidapartedelleautoritàcompetenti, siproduconoattestazionidicertificazioneenergeticadiinfimo livelloqualitativoedeltuttoinutili,anchesolodalpuntodivista dellaformazionediun“catastoenergetico”delpatrimonioedilizioesistente.Permaneinoltreunanotevoleconfusionefrail “consumoenergeticocertificato”,cioèquellocheèdichiarato sulcertificatoenergetico(relativoaifabbisogniconnessicon unusostandarddell’edificio),eil“consumoenergeticoreale”, cioèquellochecorrispondeall’effettivoeserciziodell’immobile.

L’edificiosiproponecomeunariletturainchiavecontemporanea deiprincipicostruttividellearchitettureruralilocali, riassumendoalcontempoiconcetti-guidadiunapproccio bioclimaticoalprogetto.Un’architetturaminimalistafrutto diunariduzioneall’essenzialeediunaattentaintegrazione dellesoluzionipassiveeattiveperilsuofunzionamento.

MINIMALISTAESOSTENIBILE

L’edificiosicollocainuncontestofortementerurale,aimargini dellacampagnadiCastelnovoSotto,apochichilometridaReggioEmilia.Staccataparzialmentedalterrenoperproteggerla dallafaldaacquiferadisuperficie,laresidenzasiconnotacome un“progettodipaesaggio”realizzatomediantelari-costruzione,confilaridipioppiequerce,diprospettivedianticamemoriaelacombinazionedialcunicaratteridellecasecoloniche delluogo,comelospaziopassantenell’abitazioneperlaventilazione(“portamorta”),l’estensionedellacoperturaaprotezionedellemuratureverticali(“sportodigronda”)eilportico. Orientatadi18°versoovest,l’abitazionehaampievetratea sud,protetteinestatedalporticoedallepareticoibentatescorrevoli,mentreanord,versolastrada,piccolefinestreanastro inquadranoilpaesaggioeproteggonodaiventifreddiinvernali. Lefacciate,rivestiteconcappottoedelineatedalsistemaportico,siarticolanoinpienievuotiallaricercadiunrapportocon lagrandescaladelpaesaggiomentredavicinolasottiletrama

discanalaturedelmaterialedirivestimentolescomponeindiversepartizionichelediversecombinazionidatedaipannelli oscurantiscorrevolimoltiplicanoall’infinito.

L’accessocopertosullatoovestintroduceaunampiosoggiorno/pranzoadoppiaaltezzalecuidiversemodalitàdiaperturasottolineano,nelledifferentistagionieoredelgiorno,le articolazionivolumetricheinterneeilrapportospazio-paesaggioesterno.

Leproporzionideivolumiedeisingolielementisonostateattentamentedeterminateattraversolostudiodellageometriasolareeliminandodallacomposizioneognielementosuperfluo. Un’architetturaminimalistache,citandolamotivazionedella Menzionespeciale–Medagliad’argentoricevutaallaVIIedizionedelPremioInternazionaleArchitetturaSostenibile(2011), “racchiudeinsél’estremacomplessitànecessariaperl’ottimalefunzionamentoelacorrettaintegrazionedituttelenecessariesoluzionipassiveeattive”.

Progetto_arch.AndreaOliva,ReggioEmilia

Impiantifotovoltaici_p.i.SimoneBellini

Bioclimatica_ing.DavidZilioli

Direttoredeilavori_arch.AndreaOliva

Lavori_dicembre2008-dicembre2009

Superficiefondiaria_5.000m2

Superficieutile_167m2

Superficieverde_15.886m2

Soluzionibioclimatiche

Conunorientamentodi18°versoovestlacasasfruttaalmegliogliapportibioclimaticiche,pereffettodellageometriadel portico,delleampiesuperficivetrateasudedeglioscuramenti scorrevoli,consentonol’irraggiamentoininvernoelaprotezione dallaradiazionepomeridianainestate.Lostudiodelleassonometriesolarihapermessodivalutarel’incidenzadelsoleggiamentosull’involucroedidimensionareopportunamentele schermaturefissedeisettiverticali,deglisportiorizzontalie leschermaturemobiliconpannelliscorrevoli.

Dalpuntodivistatecnologico,l’impiantisticaintegrataconla domoticaconsenteunariduzionedeiconsumimedianteilcontrollodellatemperaturadeisingolilocali,lapredisposizionedel lavoroefficientedeigrandielettrodomestici,lospegnimento automaticodellelucineilocalivuoti,lagenerazionecontrollatadell’acquacaldasanitariaelaregolazionedeitempidi utilizzodeisingoliapparecchi.L’impiantodiriscaldamentoè utilizzapannelliradiantialimentatidaunacaldaiaacondensazionementrel’acquacaldasanitariaèintegratadacollettori solaripostisullacopertura.L’abitazioneèdotatadiunsistema meccanizzatodiventilazioneconrecuperodicalore.

Sopra,ilfrontenordsipresentamoltochiuso,conpoche aperturenastriformi,aprotezionedaiventiinvernali.

Legenda:1.ingressoprincipale;2.soggiorno/pranzo; 3.angolocottura;4.areagiocobimbi;5.lavanderia; 6.bagno;7.autorimessa;8.portico;9.vuotosulsoggiorno; 10.studio;11.cameradaletto;12.cameradaletto; 13.cameradaletto;14.bagno;15.cabinaarmadio.

piantadelpianoterra

piantadelpianosuperiore

sezionetrasversale

sezionelongitudinale

Strategiebioclimatiche:

•orientamentodell’edificiosecondol’asseeliotermico •protezionedaiventidominanti •usodelverdecomesistemaperlaregolazionedelmicroclima •tuteladallarisalitadiumiditàtramitesopraelevazioneeaerazionenaturale delpianoterra

•aperturecontrapposteperventilazionenaturale

•porticocomemitigatorebioclimaticoperilsoleestivo/invernale

Ilfrontesudconipannellioscurantiscorrevolicompletamenteapertiechiusi.

CARTADELSOLE LONGITUDINE44°48’

A21giugno B21lug-mag C21ago-apr D21set-mar E21ott-feb F21nov-gen G21dicembre

DIREZIONE VENTIPREVALENTI
ACQUAPIOVANA

INVOLUCRO

trasmittanzamediaelementicostruttivi paretiesterne, U=0,23W/m2K solaiocontroterra, U=0,23W/m2K copertura, U=0,16W/m2K serramenti, Uw =1,5W/m2K fabbisognodienergiaperriscaldamento, 1,46kWh/m2a

IMPIANTI

impiantosolaretermico 4,5m2

impiantofotovoltaico potenza5,81kW

Asinistrainalto, ildoppiovolume delsoggiorno. Alcentro,l’ingresso.

Dallacomposizione architettonica,siadegli esternichedegliinterni, èstatoeliminatoogni elementosuperfluo: un’architettura minimalistache favorisceilbuon funzionamento elacorretta integrazioneditutte lenecessariesoluzioni passiveeattive.

Tecnologiacostruttiva

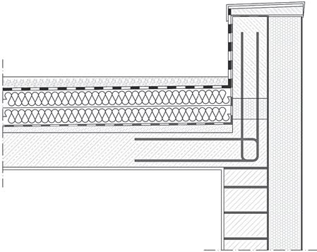
L’edificiohaunastrutturaamuriportanti,conconseguente minorepresenzadipontitermici,costituitadalaterizioporizzatodi38cmaccoppiatoaunisolamentoacappottodi10cm dispessoresullatoesterno.Isolaisonoinlaterocementocon cordoliesoletteincementoarmatoopportunamentecoibentateedisgiunte,lacoperturahaunostratodi22cmdiisolamentoeunmantoinparteinlamieraeinpartedrenante, collegatoaunsistemaperlaraccoltadell’acquapiovana. Iserramentisonoinlegnolamellareevetrocamerabassoemissivacongasargon.

Copertura (dall’estradosso) pannellisolari; ciotolo45/55; guainaimpermeabilizzante; massettocementizioinclinato(4cm); stratocoibente(14cm); solettaincementoarmato(16cm); cappottoesterno(5cm).

Infissi (dall’esterno) infissiscorrevoliconvetrocamerab/e congasargon; parapettoinvetrotemperato; pannelliscorrevolicoibentati(6cm).

Solaioversovanononriscaldato (dall’estradosso) pavimentazioneincementoresina(3mm); massettoinmagnesiaco(6cm); pannelloradiante(3,5cm); pannellocoibente(8cm); solaioinlaterocemento(24+4cm); intonaco(1,5cm).

Solaiocontroterra (dall’estradosso) massettoincementoconfiniturainresina(8cm); fondazioneincls(30cm); magrone(10cm); terrenovegetale.

Sullacoperturasonoinstallatipannellisolari(4,5m2) perlaproduzionediacquacaldasanitariaeunimpianto fotovoltaicodi5,7kW,parzialmenteintegratoaisensidelGSE. Perfavorirel’areazioneaipannellièstatalasciata unaintercapedined’aria.

L’isolamentodell’edificioègarantitodapannelliinEPS100 dispessorevariabiledagli8cmdellespalledellefinestre ai10cmdelcappottoesterno,oltreailateriziporizzatidi38cm posaticonmaltaisolante.

Lastrutturainmuraturaconorizzontamentiinlaterocemento garantisceinoltre,insiemeallacoibentazione,elevatainerzia termicaebuonivaloridisfasamento,contribuendo cosìalcomfortindoornelperiodoestivo.

Inalto,dueimmaginidella“sopraelevazione”dellacasarispettoalterreno. Questasoluzioneèstataadottataalfinedievitarel’umiditàdirisalitadalterreno, aggravatadallapresenzadifaldeacquiferesuperficiali.

Copertura (dall’estradosso)

lamieragraffatainalluminio6/10; barrieraalvapore; stratocoibente(20cm); solaioinlaterocemento(24+4cm); impiantodiaspirazionemeccanica forzataconrecuperodicalore.

Solaiointerpiano (dall’estradosso)

parquetlamellare(13mm); massettoinmagnesiaco(6cm); pannelloradiante(3,5cm); caldanaalleggerita(12/13cm); solaioinlaterocemento(24+4cm); impiantodiaspirazionemeccanica forzataconrecuperodicalore

Pareteesterna (dall’esterno) cappottoesterno(10cm); termolaterizio(38cm); intonaco(1,5cm).

Paretecontroterra (dall’estradosso) muroinclsarmato; guainaabottoneeimpermeabilizzazione; vespaio.

Dall’altoasinistra,insensoorario:imuridellafondazioneinc.a.; lamuraturaportanteinlaterizio;lacoibentazionedelcordolo interpianoconpannelliinfibradilegno;ilsolaioinlaterocemento delprimopiano;undettagliodell’angoloasud-ovest conipannellidirivestimentononancorarifiniti.

Unattentostudiobioclimaticoeunaprogettazionesecondo leregoleperlacasapassivainclimamediterraneo, unitamenteasceltetecnologicheeimpiantisticheorientate alrisparmioenergetico,hannopermessoaquestaabitazione diraggiungerel’autosufficienzaenergetica.

UNACASAACONSUMOQUASIZERO INCLIMAMEDITERRANEO

Inseritainunpaesaggiodallafortecaratterizzazionemediterraneaquestacasaunifamiliareèstataprogettatacomeuno spazioapertostrettamentelegatoallanaturachelocirconda; materialiecromatismisiconfondonoeallostessotemporisaltanonellanaturacircostanteel’ambientecostruitosiimmerge esilasciapenetraredallacampagna.

Ilvolumedell’edificio,articolatoalpianoterra,siricompattaa “L”alpianosuperiorecreandomaggioreriservatezzanellazona notte.Ilsegnonettodellacoperturametallicacheabbracciala scatoladivetrodell’arealivingsegnailfrontediingresso.Dal patiocentrale,ilcuoredelcomplesso,siaccedeallazona giorno,concepitacomeunopenspacevetratoconvistasulgiardino.Daquisidelineanoaltriambientididiverseampiezzeche siincrocianosenzaconfondersisinoacondurreaunascalaa vistacheaccompagnaallazonanotteallivellosuperiore.

Lacomplessaarticolazionespazialedelcostruitoèfruttodi

scelteprogettualifortementeinfluenzatedavalutazionidinaturabioclimaticapervalorizzarealcontemposiailcontributo solarechequellodeiventiprevalentinellazona.

Un’impostazioneprogettualericonoscibilenellaformadell’edificio,nelposizionamentodelleaperture,nell’ottimizzazionedell’illuminazioneedelsoleggiamentointuttelestagioninonché nellostudiodell’ombreggiamentoreciprocotralevariepartidel fabbricatoediquellodovutoallealberaturecircostanti. Ilbassissimofabbisognoenergeticoècopertototalmentedaun impiantoFVda5kWpchealimentalapompadicaloreariaaria,unicoimpiantoperilriscaldamento.Sièottenutocosìun edificioaconsumoenergeticozero,risultatopossibilegrazie allacoibentazioneconassolutaassenzadipontitermici,infissi altamenteisolanticontriplovetrobasso-emissivo,controllorigorosodellatenutaall’aria,VMCconrecuperatoredicaloread altaefficienzaeboilerdiproduzionediacsapompadicalore.

Latecnologiaedilizia

Ilsistemaportantedell’edificioèatelaioinc.a.contamponamentiinmattonetermicoporizzatodi35/40cmdotatiditagliagiuntoinPSEeconunisolamentoacappottoinsughero brunotostatodellospessoredi10cm.Gliintonaciinternied esterni,comeicollantieirasantiperilcappottoelefiniture, sonoabasedicalceidraulicaNHL.Stessaattenzioneperla sostenibilitàèstatapostanellasceltadelsistemadiverniciaturaall’acquaperlefinitureinterneenell’utilizzoesclusivamentedirovereeuropeoprovenientedariforestazioneperil parquetdellazonanotte.

Ilricorsoasistemicostruttivicaratterizzatidaunaridottatrasmittanzaedaunaelevatamassatermicahaconsentito,soprattuttoperleparetiesposteasudeaovest(oltrecheperle coperture),diraggiungereunnotevolesmorzamentoesfasamentotermicotemporale,fattoredistraordinariaimportanza datalazonaclimatica.Losfasamentotermicorelativoallapareteversol’esternoèdi16ore,quellodeltettopianodi18ore.

Progetto_arch.LeoPedone,arch.MassimoPedone, ing.PietroPedone,arch.AnnamariaPerruccio -StudioPedone,Bisceglie(BT)

Strutture_ing.PietroPedone

Impianti_ing.DomenicoDonvito,Massafra(TA)

Consulentienergetici_arch.SalvatorePaterno, arch.AntonioStragapede-TBZ,GravinainPuglia(BA)

Direttoredeilavori_arch.LeoPedone

Appaltatore_ PedoneWorkings.r.l.,Bisceglie(BT)

Superficiefondiaria_872m2

Superficieutile_188m2

Superficieverde_672m2

Volumelordoriscaldato_784,63m3

Volumenettoriscaldato_588,47m3

piantadelpianoterra
piantadelprimopiano
sezioneAA
sezioneBB
sezioneCC

Bioclimatica

L’accuratobilanciamentotralaprogettazionebioclimatica,la sceltadellestrategieenergeticheeimpiantisticheel’usodi materialiquantopiùtradizionalieprestazionaliconnotaquestaresidenzacome“casapassivamediterranea”,ingradonon solodiridurredrasticamenteilfabbisognotermico,maanche direcuperareenergia,utilizzandosiaiguadagnisolaripassivi, quantofontiesistemidiriscaldamentoeraffrescamentoad altorendimentoeconilminorimpattoambientale.L’applicazionedeiprincipidellabioclimaticahaportatoallaricercadell’orientamentoottimaledell’edificioattraversounostudio approfonditodeidiagrammisolariedelcorrettoposizionamentoedimensionamentodelleaperturesullefacciatealfine digarantireunaadeguataventilazionenaturale.Nelperiodo estivo,infatti,l’aperturadellefinestreanord-estpermettedi captarelafrescabrezzamarina,favorendocosìl’espulsione versol’altodell’ariacaldaericcadiCO2 grazieall’effettocaminogeneratodaitagliadoppiaaltezzadelsolaiointerpiano edallefinestreasuddelvanoscala.Nelperiodoinvernale,invece,lachiusuraermeticadelleapertureattival’impiantodi VMCconrecuperodicalorechegarantisceilnecessarioricambiod’ariainterno.

Inquestoedificioèstatol’utilizzatounveroepropriosistema passivodiriscaldamento:ilpadiglioneaovestcheospitailliving-roomèinteramentevetratoe,nelperiodoinvernale,consentemediantelacaptazionesolareelaconservazionedel calore,unnotevoleaccumulotermicoperl’interacasa.Lo stessopadiglione,nelperiodoestivo,èopportunamenteschermatodalfilaredi“gelsidafiore”afogliacaducapostolungo ilconfinedellaproprietà,laposizionedellealberatureèstata determinataattraversolostudiodeidiagrammisolari.Inquestomodosièridottalaradiazionesolaredirettasullavetrata mentreilcaloreresiduovienesmaltitoattraversol’evaporazionedell’acquachescorrenelpiccolocanalesottostante;questa,attintadaunpozzoipogeodiaccumulodelleacque meteoricheubicatosottoilpatio,èutilizzataancheperl’irrigazionedelgiardino.

Sopra,studiodelsoleggiamentoal21giugnoeal21dicembree,sotto,studiodellarelazione travegetazioneesoleggiamento.

Bisceglie:latitudine41°14'34''80N–longitudine16°30'18''72E 21giugno

ore10.00:Azimut117,6°-Elevazione60,1° ore12.00:Azimut184,7°-Elevazione72,8° ore15.00:Azimut259,8°-Elevazione47.7° 21dicembre

ore10.00:Azimut152,5°-Elevazione20,4° ore12.00:Azimut181,9°-Elevazione25,4° ore15.00:Azimut223,9°-Elevazione12.6°

LaplateadifondazioneisolataconXPS.Inelevazione,nelleparti nonacontattoconl’umiditàdelterreno,l’isolamentoinXPS èsostituitoconsugherobruno,icordolisonoimpermeabilizzati.

Solaiocontroterra(dall’interno) gresporcellanatoconcolla(1,5cm); massettoincls(5cm); XPSestruso(6cm); cappainclsarmato(5cm); frenovapore; massettoinclsarmato(10cm); casseromodulareinPPriciclato(40cm); magronearmato(10cm); terrenodifondazione.

DettaglioA sigillaturaesternainsiliconeacrilico; guarnizionetermoespandente; sigillaturainternainsiliconeperserramenti.

DettaglioB XPSestruso(6cm); traversoinpurenite(6x12cm); nastrobutilicoadesivopertenutaall’aria; sigillaturainternainsiliconeperserramenti; sigillaturaesternainsiliconeacrilico; sogliaesterna.

DettaglioA

cartermetallicotiporheinzink congocciolatoio; guainaimpermeabilizzante confrenovapore; pannelloOSB(1,8cm); sugheroespansobruno(6cm); materassinoacustico; staffaaLinacciaio; frenovapore; traviprimarieinacciaio(4x8cm); travettisecondariinacciaio(2x8cm); sugheroespansobruno(8cm); frenovapore; doppialastracartongesso.

DettaglioB

traversoinpurenite(6x10cm); nastrobutilicoadesivopertenutaall’aria; profilo Ω inacciaioperfissaggio traversainlegno; traversainlegnoconincassoperluci aled(2,5x5cm); travettosecondarioinacciaio(2x8cm);

Sotto,dall’alto:losporto dellacoperturadell’area livingvetrata:isolamento etenutaall’ariasono elementiprioritari; dettagliodell’attacco aterradelpadiglione vetrato.

materassinoacustico; fasciainOSB(1,8x15cm); guainaimpermeabilizzanteconfreno vaporefibrorinforzato.

DettaglioC

cartermetallicodirivestimento congocciolatoio; profiloinlegnosagomatoperfissaggio cartermetallico; nastrobutilicoadesivopertenutaall’aria; traversoinpurenite(6x8cm); scatolareinacciaio(4x8,5cm)saldato aprofiloaCinacciaio; sugheroespansobruno(4cm).

DettaglioD

lamad’acqua; impermeabilizzazioneconprimer bituminoso; massettoinclsconrete(5cm); XPSestruso(6cm); magronearmato(10cm); terrenodifondazione.

Dall’altoasinistra:l’impiantofotovoltaico;illocaletecnico conlamacchinadiventilazionemeccanica;tubazioni ebocchettedipresadellaventilazionemeccanicacontrollata.

INVOLUCRO

trasmittanzamediaelementicostruttivi paretiesterne, U=0,21W/m2K solaiocontroterra, U=0,25W/m2K copertura, U=0,20W/m2K superficitrasparenti, Uf =0,98W/m2K,Ug =1,1W/m2K emissionidiCO2 evitate, 10.004kg/anno

IMPIANTI

impiantodiventilazionemeccanica adoppioflussoconrecuperodicaloreadaltaefficienza pompadicalorearia/aria perriscaldamentoeraffrescamentoadaria abassatemperatura impiantofotovoltaico connessoinrete,integratoarchitettonicamentedi5kWp recuperodelleacquepiovane concisternainterratadi40.000lperirrigazione delgiardinocircostante predisposizionesolaretermico atubisottovuotointegrabilealboilerdiproduzionediACS deltipoapompadicalore

Copertura(dall’esterno) lastredibiogres(1,5cm); massettoinclsconrete(5cm); impermeabilizzazioneconprimer bituminoso; massettoinclsarmato(5cm); frenovapore; sugheroespansobruno(10cm); XPSestruso(6cm); frenovapore; massettoinclsarmatoinpendenza; solaioinlaterocemento(25cm); intonacointernoabasedicalce idraulicanaturale.

Solaiointerpiano(dall’intradosso) pavimentoinrovereprefinito verniciatoall’acqua; massettoinclsarmato; solaioinlaterocemento(25cm); intonacointernoabasedicalce idraulicanaturale.

Parete(dall’esterno) rivestimentomurale silossanico-elastomericorinforzato; rasantetraspiranteabasecalce idraulicanaturale(0,5cm); sugherobrunoespanso(10cm); blocchiinlateriziotermicoporizzato conlistellotagliagiunto emaltatermico-sismica(39/30cm); intonacoabasedicalce idraulicanaturale.

Dall’alto:duedettaglidellavelettadeltetto con leduetipologieisolamento(sughero brunoeXPS);lacoibentazioneacappotto conilsugherobrunoespanso elacoibentazionedelmuroversoilgarage.

UNACASAPASSIVA INCLIMAMEDITERRANEO 3domandea... LeoPedone-StudioPedone

Sotto,dall’alto:l’arearelaxeduevistedellazonaliving conlavetrataversoilgiardinoaovestequellaversoilpatio diingresso.

Cosaspingeunarchitettoaprogettarecasepassive/abassoconsumo energetico?

Pensiamochel’architettura,nellasuaautonomiaespressiva,debbasempredarerisposteconcreteaibisognidellasocietà.Comeprogettistisensibiliaitemidell’ecosostenibilitàilnostrostudioincentrasuquestila propriaattivitàdaormaiundecennio.

Partendodalleprimeesperienzeisolatedeglianni‘90edattraversorealizzazionidicomplessiresidenzialievolutiinbioarchitetturasiamogiunti adimporcilimitisemprepiùspinticomelaprogettazione,nel2007,di questacasapassivaperpoitrasferiretaleconfrontoallascalaurbana, avendoattualmenteincantiereunprogrammadirigenerazioneurbana con61abitazioniadenergiaquasizero.

Cosasignificaprogettareunedificioabassissimoconsumo energeticoinclimamediterraneoequalèilfuturodiquestiedifici?

Comeprogettisticrediamocheilprogettodiarchitetturapossiedaunadimensionepiùaltarispettoalsolocontrollodell’efficienzaenergeticae dellasostenibilitàecheancheirisultatipiùspintisipossanoraggiungere siaconlapadronanzadelletecnichecostruttivesiaconunasempremaggioreintegrazionetralediversecompetenzespecialistichechepartecipanoalprocessoprogettualeecostruttivo.

Ilprimoobiettivochecisiponenelprogettareunedificioabassissimo consumoenergeticoèridurreibisogni;ciòportadaunlatoallariscoperta dellamodernitànell’approcciobio-climaticodellearchitetturevernacolari,dovelescelte,inassenzadifontienergeticheditipoesogeno,erano massimizzate;dall’altroainnovareconintelligenza,datelenuovetecnologie,ilpatrimoniosecolaredellaculturadel“costruirearegolad’arte”. Nelfuturoprossimosiassisteràintuttal’areamediterraneaalladiffusionediedificisemprepiùefficientie“smart”equindipiùcontrollabilie gestibili.Rimarrannoinvecemaggioridifficoltàperilsettoredell’esistente,ambitoincuioccorreràlanciarenuovesfide.

Qualidifficoltàsiincontranonellaprogettazionediunedificiopassivo inclimamediterraneo?

Caldo-freddo,luce-ombra:ladifficoltànell’interpretarequestadicotomia diventalostimolonelprogettarearchitetturecheconsuminoenergiaquasi zeronelMediterraneo.

Laricercadegliaspettidaprivilegiarenell’impostazioneprogettualedi unacasapassivamediterraneaèsicuramentedifficiledovendobilanciare gliapportidelperiodoinvernaleequelliestivi.Questadifficoltàperò,se beninterpretata,crediamopossadiventareun“plus”checonsentasemprediincalanare,aprescinderedagliorientamentidettatidalsitoodall’urbanistica,icontributienergeticiditipopassivooattivo.

Conisuoiquasi7.400m2 èilpiùgrandeedificiopassivo perufficidelBenelux.L’enormeriduzionedeiconsumienergetici èstataottenutasenzaricorrereasoluzionitecnologichesofisticate ecostosegarantendocosìlaredditivitàdell’immobile(1.320euro ilprezzoametroquadro).Icostiaggiuntiviperrientrare nellostandardpassivosarannoammortizzatiinmenodi5anni.

INNOVAZIONEESOSTENIBILITÀ LOWTECH

Realizzatoinseguitoaunconcorsodiprogettazionebanditonel 2005,AeropolisIIèl’edificiopassivopiùgrandedelBelgio,dove èdiventatol’emblemadisvilupposostenibileeusopassivodell’energiainedilizia.Ilprogetto,fruttodiungruppodilavorointerattivo,èstatopensatofindalleprimefasisecondolinee guidabendefinite:compattezzavolumetrica,flessibilitàspaziale,grigliastrutturalechiaraeintellegibile,unapellesostenibile,efficienteefaciledamontare,ottimizzazionedelrapprto superficitrasparentieopache,impiantiadaltaefficienzaenergeticaeabassocontenutotecnologicoperilriscaldamentoeil raffrescamento,analisidelciclodivita.

L’edificiosisviluppaattornoaunpatiocentrale,fontediluce naturalepergliufficiinterniefulcrodelprogetto;attornoaesso siinnalzailcompattovolumetrapezoidaledelfabbricatocon unosvilupporidottodellefacciatechelimitalesuperficidisperdenti.Lasemplicitàdellastrutturaincalcestruzzoarmato, adeguatamentecoibentataesceltapersfruttarel’inerziater-

micadelmateriale,haconcessoaiprogettistigrandelibertà compositivaediadattamentodellospazio.Laflessibilità,infatti,èstataunacondizionediprogettoeunaspettoimportante dellasostenibilità:leparetiinternesonofacilmentesmontabili, sonostatievitatiicontrosoffittielesoluzionitecnicheadottate potrannoesseremantenuteancheincasodifuturilavoridi adattamentogarantendolivellidicomfortottimali.

Grazieallariduzionedelledispersionitermicheeaiguadagni passiviesternieinterni,gliambientihannounabassaesigenza diriscaldamentorendendopossibilemantenerelecondizionidi benesseretermoigrometricoprincipalmenteconl’impiantodi ventilazionemeccanicacontrollata(integratodaunsistema geotermico)mentreicarichitermiciestivivengonorimossicon laventilazionenotturna.Soluzionisempliciepococostose,che nonrichiedonoattenzioniparticolaridapartedegliutilizzatorie consentonodiridurrediunfattore10iconsumiperriscaldamentoeraffrescamentorispettoaiconsuetiimmobiliperuffici.

Lapelle

Lafacciataècostituitadaunmuro-cortinarealizzatoconmoduliprefabbricaticonossaturainlegnocertificatoFSC.Imodulisonoditretipi:unelementoopacodi90cmdilarghezza, unafinestrafissa,anch’essadi90cm,eunmodulocomposto daunafinestraparzialmenteapribileedaunelementoopaco da30cm.L’elementoopacoècostituitodaunastrutturain legno,coibentataconunpannellospesso15cmdischiumadi resinepolimeriche,agganciataaunalastradifibrocemento sullaqualeèmontataunalamieradialluminioperforatoeun vetrotraslucidobianco.Taleelemento,isolatoall’internoanche acusticamentemediante2cmdilanadiroccia,conferisceuna particolareprofonditàallasuperficiedelfabbricato,donaalla pelleesternauncoloregrigioperlabrillanterendendoilvolume, opacoal70%,trasparenteeluminoso. Latenutaall’ariaègarantitadaunamembranapostatrala lanadirocciaeilpannelloinschiuma. Lavetratadeimodulitrasparentièformatadauntriplovetro conschermaturasolareesterna.Infacciataladisposizionedei modulièstataprogettataperassicurareidoneecondizionidi lucenaturalenegliuffici:l’ufficiotipoprevedeunacombinazionedeitreelementilecuipartivetratecorrispondonoal22% dell’areadelpavimento.

Dettagliodelfissaggio dell’elemento semiopaco.

modulovetrata

modulosemiopaco

moduloopaco

Dettagliodelmodulo diparete:siriconoscono iltelaioinlegno agganciatoallalastra difibrocemento elastrutturaperforata inalluminio.

Posadeimoduli difacciata.

Sottodasinistrainsenso orario:l’ingresso dell’Aeropoliseilpatio centrale;itreelementi dellapelleesterna sonoriconoscibilianche dall’interno;ilpatio centralechegarantisce illuminazionenaturale ailocaliinterni.

Progetto_M.Desmedt,M.Lacour,S.Leribaux, D.vanCauwenberghe-ArchitectesAssociéssprl,Bruxelles(B)

Strutture_Setesco,Bruxelles(B)

Consulenzaenergetica_Cenergie,Bruxelles(B)

Facciate_Kyotec-BelgoMetal,Bruxelles(B) Appaltatore_JacquesDelensS.A.,Bruxelles(B); Vanderstraeten,Lummen(B)

Areaedificio_7.388m2 fuoriterrae2.702m2 nell’interrato

Areaverde_2.508m2

piantapianotipo

sezione1-1

Dall’alto:posadellapavimentazionesospesaperilpassaggio delletubazionidellaventilazione;impermeabilizzazione ecoibentazionedellastrutturacontroterra.

INVOLUCRO

trasmittanzamediaelementicostruttivi paretiesterne, U=0,122W/m2K solaiocontroterra, U=0,153W/m2K copertura, U=0,126W/m2K serramenti, Uw =0,82W/m2K

prestazionienergetiche peracquacalda, <1kWh/m2 anno perraffrescamentoestivo, 2,2kWh/m2 anno ventilazione, 2,1kWh/m2 anno emissionidiCO2 evitate, 451t/anno

IMPIANTI

VMC conrecuperodicalore(latenteedentalpico) econsondeambienteCO2 perricambioautomaticodiaria caldaiaagas 140kW

domotica

regolazionecentralizzataditendesolari(intensità, orientamentoealtezzadelsole,temperaturainterna), ditemperature,diaperturafinestreperilraffrescamento notturno,dellaluceartificiale(sensoridioccupazione efattorigiornalieri) recuperoacquapiovana percassettewc

Aspettieconomici

Ilcontenimentodeicostièstatounodegliobiettividelprogettorendendopossibilepergli ufficiunprezzodisoli1.320eurocircapermetroquadrato.

Lostudiocomparativodeicostidicostruzioneediquellilegatialconsumodienergiain fased’uso,raffrontandoilfabbricatodell’Aeropolisconunedificiostandarddieguali dimensioni,haevidenziatocheladifferenzadovutaallostandardpassivosarà ammortizzatain4,4anni.Ilrisparmioeconomico,calcolatosullabasedeiminoriconsumi dienergiarispettoaunedificiostandard,èdi47.898eurol’anno.Ledifferenzemaggiori, rilevabilinellacomparazionedeiconsumidienergiaprimaria,sonodovuteaiconsumidi gasperilriscaldamentoedielettricitàperilraffrescamentoestivoel’illuminazione.

Edificiopassivo

Investimenticomplementariperl’opera Investimentoimpianti

TOTALE

costoaggiuntivoedificiopassivo rispettoallostandard

Costoannualedienergia

Elettricità (raffrescamento)

Elettricità (ventilazione)

Elettricità (illuminazione)

Risparmioannuale edificiopassivo rispettoallostandard

Tempidiritornoeconomico edificio passivorispettoallostandard

euro919.566

euro3.042.767

euro3.962.333

euro210.676

Edificiopassivo

euro23.064

Edificiostandard

euro392.148

euro3.359.510

euro3.751.658

Edificiostandard

euro70.958

euro47.898

4,4anni

Dall’alto,lepresed’aria deipozzicanadesi, letubazioni diventilazione emacchine dipreriscaldamento epreraffrescamento dell’aria.

1.elevatoisolamento, tenutaall’aria,triplo vetro; 2.guadagniinterni; 3.venezianealamelle piccolearegolazione automatica; 4.illuminazioneadalta efficienzaconsensori dipresenza; 5.portatad’aria naturale; 6.aperturanotturna automatica; 7.slabcooling.

inverno-standardPassivhaus

estate(giorno)-climatizzazionepassiva

Riscaldamento eraffrescamento

Grazieallivellodiisolamentoeditenutaall’aria(n50=0,49 vol/h)delmurocortinailbisognonettodiriscaldamentoèstato ridottoa8kWh/m2 anno.Durantel’invernol’ariaesterna,prima diessereimmessaneilocali,vienepreriscaldatagrazie4pozzi canadesi(40mdilunghezzacontubididiam.70cm),mentre ilcaloredell’ariainuscita,aspirataattraversogriglieasoffitto, vienerecuperato.Visteleperditedicaloremoltolimitate,èstato sufficienteinstallareunacaldaiada140kWpergarantireuna temperaturacostantedi20°Cpertuttoilperiodoinvernale. Inestateilcomfortègarantitodalgrandeisolamentodellepareti,dalcontrollosolaregrazieallapresenzadischermature esterne,dalpozzocanadesecheraffreddal’ariadi5-10°Cela deumidificaedaisolairadianti.Dinotteunsistemadiraffreddamentonaturalevalorizzal’inerziadeisolaimassicciraffrescandoilocalielestruttureincementograzieall’apertura automaticadellefinestre;l’ariavieneinseguitoestrattaforzatamenteincopertura.Tuttociòsitraduceinrisparmiodi energiaelettrica:solo2kWhdienergiaelettricaperiventilatori(nightcoolingepozzicanadesi)invecedicirca27kWh/m2 annodiunsistema“classico”diariacondizionata. Nel2010,inpienoperiodocanicolare,ilministrodellaRegione diBruxellesEvelyneHuytebroeckhavisitatoeverificatoseun edificiodalvolumeimportantecomel’Aeropolispotessefornire unatemperaturaconfortevoleaifruitori,purnonutilizzandoun sistemadiraffrescamentoattivo(chiller).Sorpresa:afrontedi unatemperaturaesternadi31°C,all’internodegliufficidell’Aeropolislatemperaturaeracostantementedi24°C!

estate(notte)-ventilazionenotturna

IlPixelbuildingnonèsoloilprimoedificioperuffici carbonneutraldell’interaAustraliamaancheilpiùverde. Haraggiunto,infatti,ilpunteggiodi100nelsistema divalutazioneaustralianoGreenStar,ottenendolavalutazione di6stelle,lapiùaltadisponibileconilGBCAustralia.

UFFICIOLTRELEZEROEMISSIONI

L’edificioperufficiPixelBuildingèilprimoedificiorealizzatodi unazonadiriqualificazioneurbananelquartiereCarltonBrewerydiMelbourne.Uncommittenteilluminato,laGroconAustraliaConstructionandDevelopment,eunostudiodi architettura“greenthinking”hannorealizzatounedificiocheva oltrelerichiestedelsistemadivalutazioneambientaleGBCaustraliano,totalizzandononsoloilmassimopunteggiointuttele categoriemaaggiudicandosianche5puntidibonusperl’innovatività.Dalpuntodivistacostruttivo,imaterialiutilizzati sonoquantopiùpossibilediricicloeconunbassocontenutodi energiagrigia;perlapartestrutturaleèstatosviluppatouncalcestruzzoadhoc,ilPixelcrete,che,aparitàdiprestazionirispettoaunnormalecls,riduceallametàlaproduzionediCO 2 Lestruttureverticalihannounelevatolivellodiisolamentocosì comelepartitrasparenti.Iltettoverdeospitapannellifotovoltaicifissieainseguimentosolarenonchéturbineeolichead

asseverticale,soluzionitecnologichecherendonol’edificio energeticamenteautosufficiente.L’autosufficienzadelfabbricatoèraggiuntaanchedalpuntodivistaidrico,poichésiale acquemeteorichesiaquellerefluevengonoperlamaggiorparte depurateeriutilizzate,permettendocosìdinonincideresulfabbisognoidricoesullaretefognariaeriducendoalminimoilconsumodiacquapotabile.Aciòsiaggiungaunimpiantodi digestioneanaerobicacheconsentedisfruttarelaproduzionedi biogas,conseguenteaiprocessidinaturaledecomposizionedei rifiutidiwcecucina,comefonteenergeticaperlaproduzione diACS.Ilparticolarerivestimentoesterno–chericordaappunto ipixeldiun’immagine–èstatoaccuratamentestudiatoper schermarelepartivetratedall’eccessivoirraggiamentosolare econsentireilmassimofattoredilucediurna.Attualmenteil PixelBuildingèinfasedicertificazioneanchesecondoglistandardLEEDeBREEAM.

Sostenibilità

LasostenibilitàdicuisifaportavoceilPixelBuildingèa360° eriguardanonsolol’utilizzodimaterialiconunbassoimpatto ambientaleeassenzadiVOC,maèriscontrabileanchenelle scelteditipoimpiantisticoeurbanistico.Alfinediincentivare l’usodellabiciclettaedeimezzipubblici,ancheinprevisione diunariqualificazioneinsensosostenibiledituttoilquartiere diBrewery,èstatoridottoilnumerodeipostiautoprevistial pianointerratodell’edificio.

Pixelcrete

Undiscorsoapartemeritalospecialecalcestruzzoutilizzato perlepartistrutturalidelPixelBuilding(pilastri,pianointerrato,solai)eacuièstatodatoilnomePixelcrete.Sviluppato dallaGroconassiemea“BoralConcrete”,grandedittaproduttricedimaterialiperl’edilizia,dopo12mesidisperimentazioni sièraggiuntounrisultatonotevole:Pixelcreteutilizzail60%in menodicementorispettoaunclsnormaleeil100%dimaterialericiclatoperlapartedegliaggregati.Ilrisultatoècheoltre il92%delpesodiunmetrocubodiPixelcreteècostituitoda materialeindustrialericiclato/recuperato:ceneri,scoriegranularidaterradialtoforno,fumodisilice,aggregatirecuperati divariotipo,clsdirecuperodademolizioni.Ovviamente,ilprocessodiproduzionerichiedeuncontrolloseverodellaqualitàdi tuttiicomponentidellamiscela,poichéanchel’acquautilizzataèriciclata.LabassaimprontaecologicadelPixelcrete,calcolatatrail41%eil48,9%inmenorispettoaunamiscela analoga,risiedequindinelriusodimaterialediscartoenella bassaproduzionediCO2 infasedipreparazione(circalametà rispettoallaproduzionediunclscomune).L’invenzioneel’utilizzodelPixelcretehacontribuitoinmanieradeterminanteall’assegnazionedelle6stelledimeritodelGBCAustralia.

LepiantedelPixel Buildingaivaripiani sonostatepensatecome openspacesalfine diadattarsi,divolta involta,alleesigenze deifruitori.

Progetto_studio505,Melbourne(AUS)

Committente/appaltatore_Grocon,Melbourne(AUS)

Direttoredeilavori_GroconConstructors,Melbourne(AUS)

Consulentesostenibilità_UmowLai,Melbourne(AUS)

Strutture_VanDerMeerConsulting,Marknesse(NL)

Superficienetta_842m2

Superficielorda_1.136,4m2

piantadellacopertura

Nellapiantadella coperturasonovisibili lepartilasciateaverde, letreturbineeoliche (sullasinistra) ei3gruppidipannelli fotovoltaici ainseguimentosolare.

piantadelpianoterra
sezioneBB

Ildesigndell’edificio,soprattuttoilsuoparticolarerivestimento esterno,èstatostudiatoinmanieraestremamenteattenta attraversovarimodelli3Dperfornireilmassimodipenetrazione dilucenaturaleevitando,alcontempo,fenomeni diabbagliamentoesurriscaldamento. Leschermaturedellefinestresonofisse.

INVOLUCRO

trasmittanzamediaelementicostruttivi paretiesterne, U=0,56W/m2K copertura, U=0,31W/m2K serramenti, Uw =1,8W/m2K

prestazionienergetiche fabbisognoenergeticoperriscaldamento, 4,16kWh/m2anno fabbisognoenergeticoperACS, 1,05kWh/m2anno fabbisognoenergeticoperraffrescamento, 21,2kWh/m2anno emissionidiCO2 evitate, 28,7t/anno

IMPIANTI

VMC conrecuperodicaloreedistribuzionesottopavimento (UFAD-UnderfloorAirDistributionSystem) buildingautomation BuildingAutomationSystem(BAS)conaccessodaremoto pompadicaloreadassorbimentofunzionante conammoniaca fotovoltaico 30pannelliperunapotenzatotaledi215Wpdicui12 fissi(2gruppi)e18ainseguimentosolare(3gruppi) eolico 3turbineda1,5kWdipotenzaciascuna recuperoacquapiovana fitodepurazione trattamentodidigestioneanaerobicadelleacquenere

frontenord
fronteovest
fronteest

Ciclodelleacque,lorotrattamentoeriutilizzo

1.Iltettoverdeestensivoèpiantumatoconspecieautoctone, vienesfruttatoperlaraccoltadell’acquapiovana elasuafiltrazione.

2.Ilatinordeovestdell’edificiosonofornitidifioriere allefinestrechehannoladoppiafunzionedischermare (latoovest)dalsoleetrattareleacquegrigie.Questearrivano dalledocceedailavabiesonosottopostiaevotraspirazione neicanneti.Lepiante(cannetipichedegliambientimolto umidi- wetlands)agisconocomeunsistemadiscarico provvedendoaltrattamento“passivo”delleacquegrigie.

3.Stoccaggiodi25.000ldiacquapiovanachevienetrattata finoaraggiungereunlivellostandarddipotabilitàperrifornire lavabi,vasche,docceewc.

4.Filtrazionedelleacquepiovaneeimpiantoditrattamento perosmosi.

5.Acquenereinfognatura.

6.Rifiuticoncentratiperladigestioneanaerobicaproduconogas chevienesfruttatoper produrreacquacaldasanitariatramite unacaldaiapostasultetto.

7.Dairubinettidellacucinafuoriescesoloacquapotabile

8.Leacquegrigieprovenientidavascheedoccevengonodirette versolefiorierecontenentilepianteresponsabili dellafitodepurazioneattraversoilpavimentosopraelevato.

9.Gliscarichideiwcsonodeltiposottovuoto,conunbasso consumodiacqua.Essivengonoriempiticonl’acquapiovana trattata,mentregliscarichivengonoinviatialserbatoio delleacquenere.

ciclodelleacque,lorotrattamentoeriutilizzo

Tecnologiaintelligente

SullacoperturadelPixelBuildingsonostatiinstallatipannelli fotovoltaiciinpartefissieinparteainseguimentosolare,coadiuvati,nellaproduzionedienergiaelettricacherendel’edificioautosufficientedaquestopuntodivista,daturbineeoliche dinuovagenerazione,sviluppatedall’Universitàaustralianadi Bendigoeimpiegateperlaprimavoltainquestoedificio. Perilcomfortinterno,invece,èresponsabileunapompadicaloreadassorbimentodinuovatecnologiaperl’Australia,poichéilchillerutilizzal’ammoniacacomerefrigerante,senza produzionediozono.Unoscambiatoredicalorepreriscalda(o preraffresca)l’ariaesternaprimachevengaimmessanegli ambientiattraversoisolai;ogniutentepuòregolareautonomamenteilcomfortdallapropriapostazionedilavoro. Unprocessonaturaledi“depurazionenotturna”(nightpurging),unasortadifreecooling,permettediraffrescarenottetempotuttol’edificio,attraversofinestre“intelligenti”chesi apronoautomaticamenteeilcuifunzionamentoècomunque controllatodaunsofisticatosistemadiBuildingManagement.

Ventilazionemeccanicacontrollata

L’edificioèaeratoconil100%diariaesternadistribuitaattraversounsistemasottopavimento(UFAD-UnderfloorAirDistribution)dotatodispecialidiffusoriinseritinelpavimento sopraelevato.L’ariavienefornitaaunatemperaturasuperiore rispettoaquelladeisistemidiVMCconvenzionali,alfinediridurrelecorrenti.Questosistemaconsenteanchediavereun effettodiraffrescamentosimileaquellodatodaiconvenzionali sistemidiraffrescamento,condizionandosolamenteilvolume richiesto.Inquestocaso,lamaggiorpartedelcaricodiraffrescamentoèfornitadallalastradeisoffittiradianti,termicamenteattiva,riducendoilfabbisognodiariasupplementareper laventilazione.

Lecanalizzazionidell’impiantodiventilazioneperognipiano sonoinpraticaeliminateperchél’ariadirinnovodeilocali passaattraversolospaziodedicatosottoilpavimentosopraelevato.Questosistemagarantisceilrinnovodell’ariaindoor,rispettoaisistemiconvenzionali,conuncontrolloindividualedel livellodicomfort.

Dall’altoinsensoorario:un’immaginedicantiere;iltettoverdeestensivodelPixelBuilding conipannellifotovoltaiciainseguimentosolare(sullasinistradell’immagine,coperta daungruppodipannelliFV,siintravedeunadelleturbineeoliche);laposaall’intradosso delsolaiodelleserpentineutilizzateperilraffrescamentodegliambientitramiteacqua refrigerata.

Raffrescamento

1.Tettoverdeisolato

2.Solairaffreddatiperilraffrescamentodell’ambiente (perconvezioneeirraggiamento)

3.Finestreapribiliperraffrescamentonotturnodeisolai

4.Scambiatoredicalore:catturailcaloredall’ariaviziata perpre-riscaldareopre-raffrescarel’ariafrescainentrata

5.Pompadicaloreadassorbimentoadammoniaca.

6.L’acquarefrigeratavienedistribuitaatuttiipiani

7.Colonnemontantiraccolgonol’ariacaldaviziataespellendola all’esterno

8.L’ariaesternaprecondizionata,conl’ausiliodiventilatori, arrivanegliambientiattraversoisolai

schemadiraffrescamento

Riscaldamento

1.Tettoverdeisolato

2.Facciataisolataconvetridoppibassoemissivi

3.Ilcalorerecuperatodall’ariaviziataèutilizzato perpre-riscaldarel’ariafreddaesternanell’unità dicambiamento

4.Lapompadicaloreadassorbimentoadammoniaca riscaldal’ariachevienedistribuitaalivellodeisolai diognipiano

5.L’ariaesternaprecondizionata,conl’ausiliodiventilatori, arrivaaognisingolapostazionedilavoroattraversoisolai

6.L’ariaviziatavieneespulsaattraversocolonnemontanti discarico

schemadiriscaldamento

focuson_l’indaginetermografica

INDAGINETERMOGRAFICA EDEFFICIENZAENERGETICA

Unatecnicanoninvasivapercontrollarelacorretta esecuzionedell’involucrocheconsenteanchediindirizzare inmodomiratogliinterventidiriqualificazioneenergetica dell’esistente:normediriferimento,proceduredianalisi, reporteformazionedeglioperatori.

Intemadiefficienzaenergeticalatermografiaapplicataall’analisidegliedificièunutilestrumentodiindaginenoninvasiva,checonsentediottenereinformazioniutiliperverificare lacorrettaesecuzionedellacostruzione(collaudoenergetico)e diesaminarelostatodiunedificioesistente(auditenergetico), permettendodiindividuareelocalizzaredispersionienergetichedell’involucroedegliimpiantitermici,riconoscereiponti termici,evidenziareanomalietermicheecriticitàchedenuncianoproblematicheinattosull’edificio.Ilgrandevantaggiodi questometodoèlegatoalcaratteredinoninvasivitàeallaversatilitàdellatecnica,chevieneeseguitasenzacontattodiretto conl’oggettoesaminatoesenzainterferireconlenormalicon-

dizionidieserciziodell’immobile.L’analisitermograficaconsentedi:

-indirizzareinmodomiratogliinterventidiriqualificazioneenergetica,connotevolivantaggiancheditipoeconomico; -verificarelacorrettaesecuzionedeilavori,sianelcasodiriqualificazionechedinuovacostruzione;

-effettuaremonitoraggifinalizzatiallostudioneltempodiunsistemacostruttivo; -realizzareilcollaudoenergeticoperilrilasciodellacertificazioneenergeticadiunedificio. Conriferimentoaquest’ultimopuntobisognasottolineareche,purnonessendociunobbligo normativo,nellavalutazionedibilancioodicollaudoenergeticodegliedifici,lavalutazione deiparametrifondamentaliconanalisistrumentalistaassumendoun’importanzasempre piùrilevante1.Pertanto,sipuòaffermarechel’indaginetermografica,oltreapermettere unabuonaanalisi,puòconcorrereallaverificadeirisultatiprogettuali,esecutiviedicol-

Letermografiepubblicate inquestoarticolosonostate eseguiteconunatermocameraB620dellaFLIR consensibilitàtermicadi40 mKa30°Ceconrisoluzione 640x480pixel. Ilmaggiornumerodipixel elasensibilitàtermica dellastrumentazione influiscononotevolmente sullaqualitàeladefinizione diun’immagine,garantendo misurazionidellatemperatura piùprecise,particolarmente utiliperindividuare conesattezzaleanomalie termiche.Unarisoluzione di640x480pixelpermette dirilevarelatemperatura di307.200puntiinun’unica immagine,rendendopossibile analizzareconnotevole accuratezzaanchesuperfici digrandidimensioni. Lascaladitemperatura visualizzatainogni termogramma,riferendosi aun’analisiditipoqualitativo enonquantitativo,serve avalutareideltatermici, traareedellostessotermogrammaotraareeuguali relativeatermogrammi registratiintempidiversi.

laudodelleoperedinuovacostruzioneediriqualificazioneenergetica.

Infatti,icontrolliincantieresuimaterialiesullelavorazioni consentonodiavereunprimoriscontrosullaqualitàsostanziale dell’intervento.Laverificafinaleconl’ispezionetermografica permettepoidiindividuareeventualianomalietermichecausatedaunaposainoperapocoaccurata.Ledispersionidovute aipontitermici,almontaggiononcorrettodiserramentiodi altrielementiisolanti,possonoalterareinmodosignificativoi risultatideicalcoliinizialideterminandoconsumienergetici anchesensibilmentesuperioriaquantoprevisto,diminuendoil benessereambientale,favorendol’insorgeredicondensee muffe,vanificandoparzialmenteglisforzieconomicisostenuti ecompromettendoladuratadeglielementiedili.

Latermografia

Latermografiaèunatecnicadiindagineingradodirilevaree

rappresentarelatemperaturasuperficialetramitelamisurazionesenzacontattodellaradiazioneinfrarossaradiantediuna superficie.

Laradiazioneinfrarossahaunalunghezzad’ondacompresatra 0,7 µme1mmedèassociataalconcettodiradiazionetermica;tuttiicorpichesitrovanoaunatemperaturasuperiore allozeroassoluto(-273°C),infatti,emettonounaradiazione elettromagneticanelcampodell’infrarossoinfunzionedella propriatemperaturaedelvalorediemissività2

Latermocamerarileval’energiairradiataenedeterminaladistribuzionetermicasuperficiale,generandodelleimmagini, dettetermogrammi3,infalsocoloreoinbiancoenero,dovela sfumaturadicoloreolascaladigrigiosonocorrelatealladistribuzionedelletemperaturedeglioggettiesaminati,consentendodimisurareilvaloreditemperaturaassolutodiognipunto (pixel)dell’immagine4

Taletecnicaèutilizzataquandosivuoleispezionarelastrutturasuperficialeesub-superficialedeimateriali.Inprossimità

Neitermogrammiriportatiinquesteduepaginesonoevidentianomalietermicheincorrispondenzadellastrutturaportante (pontitermicistrutturalipuntuali)enellatamponaturadell’ultimopiano(pontitermicistrutturalidiffusi).

Inoltresinotaunanotevolevariazioneditemperaturasullasuperficiedelsolaiodicalpestiodell’ultimolivello.

Dallostudiodelladocumentazionediprogettoedaindaginipuntualiquantitative(endoscopia)sièrilevato chesuipilastri,sulletravi esulsolaiononèpresentealcuntipodimaterialeisolante.

diundifetto,infatti,ilcalorevieneassorbitoorilasciatocon modalitàevelocitàdifferentirispettoalcasodimaterialeperfettoodomogeneo.Pertantoèpossibileevidenziarelediscontinuitàpresentinell’oggettodaesaminareattraverso l’individuazionedizonechepresentanodelleanomalienelladistribuzionesuperficialedellatemperatura.

Lanaturasenzacontattodellatecnicaelapossibilitàdieffettuarerapidamenterilievi,anchesuareedinotevoledimensioni, rendonolatermografiaaraggiinfrarossimoltoutilenelsettore dell’edilizia.

Latermografianelsettoreedile

L’indaginetermograficainediliziaèunvalidostrumentoperil rilevamentodelleirregolaritàtermichedeicomponentichecostituisconounedificioechesitraduconoinvariazioniditemperaturasullesuperficidell’involucroesterno.Quindi,come prevedelanormaUNIEN13187:20005,ladistribuzionedella temperaturasuperficialepuòessereimpiegataperrilevareirregolaritàtermichedovuteadifettidiisolamento,umidità,infiltrazionid’arianeicomponenticostituentil’involucroesterno dell’edificio;tuttavia,èimportantesottolinearechetalenorma nonpuòessereapplicataperladeterminazionedellivellodi isolamentotermicoedellatenutaall’aria.

Lefasifondamentalidiun’indaginetermograficapossonoesseresintetizzatein:

a)rilievodelletemperaturesuperficialipresentisullaporzione diinvolucroediliziodaanalizzare;

b)verificadellapresenzadieventuali“anomalie”nelladistri-

buzionedellatemperaturasuperficiale; c)descrizionedeglieventualidifettidicostruzione(tipoeimportanza)presentiincorrispondenzadelleanomalietermiche rilevate.

Lanorma,neldescriverelaprocedurapereseguirel’indagine termograficadiunedificio,delineainmanieradettagliatale fasipropedeuticheall’acquisizionedeitermogrammi.

•Consultareladocumentazionedisponibilerelativaall’involucroediliziodaesaminare.Adesempio,larelazioneaifinidel contenimentodeiconsumienergeticièutileperladefinizione dellastratigrafiadelleparetisianellasezionecorrentesiain corrispondenzadeglielementistrutturali;fornendoci,inoltre, utiliinformazionisullaposizionedeiterminalidell’impiantodi riscaldamento/raffrescamento;ilprogettoarchitettonicoestrutturaleèutileperindividuarelaposizioneeledimensionidegli elementistrutturalichepotrebberorivelarsi“potenziali”ponti termici.

•Annotarel’orientamentodell’edificioedelleparetidaanalizzare.

•Stimarel’emissivitàdellesuperficidaesaminareinbaseai valoritabellatiosecondoprocedureappropriateprevistedalla normaISO18434.

•Misurare,primadell’iniziodell’analisi,letemperaturedell’ariaall’esternoeall’internoconaccuratezzadi±1°Ceregistrareleinformazionirelativeallecondizioniatmosferiche (nuvolosità,precipitazioni,umidità,vento).Neicasiincuiènecessarioconoscereladifferenzadipressionetral’internoe l’esternodell’involucro,siraccomandaunaprecisionedi±2Pa traillatosottoventoesopravventoperognipianodell’edificio.

Proceduradiun’indagine termografica (cfr.lafigura1 dellanormaUNIEN 13187:2000). Iriquadritratteggiati indicanoinformazioni supplementarisuggerite.

•Spegnere,primadellamisurazione,lesorgentidicalorechepossonointerferireconl’indagine(quandoèpossibile).

•Liberarelesuperficiinteressateallamisurazione(spostaremobiliequadriposizionati sulleparetidaanalizzare),avendocuradinongenerarefenomenitransitori.

•Nelcasoincuil’oggettodell’indaginesialavalutazionedieventualiinfiltrazionid’aria, ènecessariochetral’internoel’esternocisiaunadifferenzadipressionedialmeno5Pa, avendocuradieffettuarel’analisidallatoabassapressione6

Aquestopunto,dopoaverimpostatoiparametridellatermocamera7,èpossibileiniziare l’analisi,effettuandopreliminarmenteun’indaginedellasuperficiedaindagarenellasua totalità.Siprocede,quindi,all’acquisizionedeitermogrammidell’involucrodell’edificio. Perverificarecheunavariazionedellaradiazionenonvengainfluenzatadallatemperatura riflessadialtresuperfici,èopportunostudiarelasuperficiedaangolazionidiverse. Perstabilireseladistribuzionedelletemperaturesuperficialipresentadelleanomalie,la

Immaginiinalto:itermogrammiriguardanoilsolaiodiunastanzadiunappartamento alsecondopianodiunapalazzina.Neltermogrammaasinistraèevidenteun’anomaliatermica incorrispondenzadellasuperficieesternadelsolaio,causataallamancanzadiisolamento. Taledifettocostruttivo,nellastagioneinvernale,provocalaformazionedicondensa sulpavimentodellastanzacorrispondente.Infatti,ilrilievotermograficointerno(adestra) harilevatotemperaturemoltobasseincorrispondenzadellazonadelsolaiocheconfina conl’esterno.Pertaletipodivalutazione,volendoconoscereivaloriassoluti dellatemperaturesuperficiale,èstatonecessariostimareilvalorediemissivitàdelmateriale delpavimentoelatemperaturariflessa diquellazona.

Immagineadestra:latemperaturamediadelpannellodialluminioincrespatoèstatautilizzata perimpostareilvaloredellatemperaturariflessanellatermocamera(cfr.metodoindiretto inbaseallaNormaISO18434-1parteIII).

normaprevedelacomparazionedeitermogrammiottenuticon dei“termogrammidiriferimento”8 oconladistribuzioneprevedibiledellatemperaturasuperficiale.Taledistribuzioneèdeterminatainbaseaiparametriambientaliregistratialmomento dell’esameeallecaratteristichedell’involucroedilizioedegli impiantiscaturitadall’analisidelladocumentazioneprogettualedell’edificio,dacalcolitermiciodaaltreindaginiconoscitive.

Leanomalietermichepossonoessereconsideratedifettidicostruzionequandononpossonoesserespiegatedallecaratteristichefisico-tecnichedell’involucro,dall’effettodifontidicalore edallevariazionidell’emissività

Certitipididifettiproduconoformecaratteristichenell’immaginetermica:

-lamancanzadiisolamentoproducevariazioniditemperatura dalleformeregolariebendefinite; -leinfiltrazionid’aria,spessolocalizzateincorrispondenzadi giuntiecollegamenti,produconodelleformeirregolariconcontornifrastagliatiegrandivariazioniditemperatura; -lapresenzadiumiditàproducegeneralmenteunadistribuzionechiazzataediffusaconvariazioniditemperaturanon moltoelevate.

LanormaUNIEN13187:2000definisceduetipidiproveche differisconoprincipalmenteperquantoconcerneilresocontoe lapresentazionedeidati: -unaprova“completa”dautilizzareperilcontrollodellecaratteristicheglobalidegliedificidinuovacostruzioneoristrutturati; -unaprovasemplificatadautilizzare,peresempio,nellafase di“audit”nelcantierediunaristrutturazioneonelcontrollodi produzioneoaltreverifichediroutine.

Èimportanteevidenziarechenell’ambitodiunadiagnosienergetica,l’indaginetermograficapuòessereintegrataconprove ditipoquantitativoqualiadesempiotermoflussimetriaedendoscopia.Inquestocasolatermografiadiventautilissimanell’individuazionedeipuntiprecisidisondaggio,ottimizzando costietempidellafaseconoscitivadell’edificio.

Ilreporttermografico

Ilreportdiunaprovatermograficacompletadeveprevedere:

a)ladescrizionedell’indagine,datidelcommittenteeubicazionedell’edificiooggettodell’analisi;

b)ladescrizionedell’edificiosullabasedelladocumentazione progettuale;

c)ladescrizionedelletipologieedeimaterialidirivestimento dell’edificioconirelativivaloridiemissività;

d)l’orientamento,dariportaresuunapiantadell’edificio,euna descrizionedell’ambientecircostante(presenzadiedificiprospicienti,divegetazioneecc.);

e)lespecifichedellastrumentazioneimpiegata:produttore,modelloenumerodiserie9;

f)ladatael’oradellaprova;

g)latemperaturadell’ariaesternadurantelaprovaedurante le24oreprecedentiall’analisi(èsufficienteriportareivalori minimiemassimiosservati);

Sopra:itermogrammidiquestazonadell’involucro,effettuatiall’esternoeall’interno, rilevanoun’importanteanomaliatermicaincorrispondenzadeltelaiostrutturale cheèrisultatononisolatoesemplicementerivestitocontavelleinlaterizio. Neltermogrammaquisoprasileggonoanchelatraveeitravettiinc.a.delsolaio.

Sotto:iltermogrammadiquestazonadell’involucroesternorilevaanomalietermiche siaincorrispondenzadeltelaiostrutturalecheinun’areadellatamponaturaesterna. Aseguitodell’analisidelladocumentazionediprogettosièdedottocheinquell’area èstatoerroneamenteposatoilpannellodimaterialeisolante.

Neitermogrammi sonoevidenti anomalietermiche incorrispondenza dellastrutturaportante (pontitermicistrutturali puntuali).

h)ladescrizionedellecondizionidiirraggiamentosolare,osservatedurantele12oreprimadell’iniziodellaprovaedurante laprova;

j)l’annotazionedieventualiprecipitazioniedellavelocitàedirezionedelventodurantelaprova;

k)latemperaturadell’ariainternaeladifferenzaditemperatura dell’ariatrainternoedesterno,durantelaprova;

l)ladifferenzadipressionedell’ariatraillatosopravventoeil latosottoventoperognipiano(seritenutonecessario);

m)glialtrifattorichepotrebberocondizionareilrisultato,come adesempiorapidevariazionidellecondizionimeteorologiche;

n)l’indicazionedituttigliscostamentirispettoairequisitidi provarichiesti;

o)ladocumentazionefotograficaeglischizziplanimetricidell’edificioindicantileposizionideitermogrammi;

p)itermogrammiregistratidurantel’esame,conlascaladelle temperature10;l’indicazionedellaposizionedelleanomalietermiche,l’ubicazionedellaposizionedellatermocamerarispetto allazonaanalizzata,ladescrizionedell’anomaliatermicaeilconfrontoconzoneanaloghedell’involucroedilizioprivedianomalie; q)l’identificazionedellezoneesaminatedell’edificio; r)irisultatidell’analisiconladescrizionedeltipoedell’importanzadeglieventualidifettidicostruzioneriscontrati; s)irisultatidieventualialtreindaginiemisurazioni; t)ladataelafirma.

Nelresocontodellaprovasemplificatapossonoessereomesse leinformazionipresentialleletterec),d),e),g),h),j),o),p).

Note

1-NelDM26/06/2009alpunto4.2dell’allegatoAsilegge,inmeritoal“Metododicalcolosurilievodell’edificioostandard”:“Medianteproceduredirilievo, anchestrumentali,sull’edificioe/osuidispositiviimpiantistici…”,ealpunto 8,sempredell’allegatoA,silegge:“Ilsoggettocertificatore,nell’ambitodella suaattivitàdidiagnosi,verificaecontrollo,puòprocederealleispezioniedal collaudoenergeticodelleopere,avvalendosi,ovenecessario,ditecnichestrumentali.

2-Laquantitàdiradiazioneemessaèfunzionedellaquartapotenzadellatemperaturaassolutadiunoggettoedelvaloredellasuaemissività,comevienedefinitodallaLeggediStefanBoltzman.L’emissivitàèunaproprietàtipicadiogni materialediirradiareenergiaedèdefinitadalrapportotral’energiaemessa dall’oggettoequellaemessadauncorponerochesiaallastessatemperatura. Unverocorponeroavrebbeun ε =1mentrequalunqueoggettoreale(corpo grigio)ha0< ε <1.

3-Iltermogrammaèil“risultatodellaconversioneintemperaturadiunaopiù mapperadiometricheprodottedaunsistematermografico”(cfr.Normatecnica UNI10824-1:2000“Provenondistruttive.Termografiaall’infrarosso.Terminie definizioni”).

4-Letermocamereutilizzateperirilievinelsettoreedilesonodisolitosensibilialleondecompresenellabandaspettraletragli8ei14 µm(longwave), finestrainfrarossaincuil’assorbimentoatmosfericoemoltoridottoedèquindi massimal’energiaricevutadallatermocamera

5-Latermografianelsettoreedileèdisciplinatadalleseguentinormetecniche: -UNI9252:1988“Isolamentotermico.Rilievoeanalisiqualitativadelleirregolaritàtermichenegliinvolucri-degliedifici.Metododellatermografiaall’infrarosso”. -UNIEN13187:2000“Prestazionetermicadegliedifici.Rilevazionequalitativa delleirregolaritàtermichenegliinvolucriedilizi.Metodoall’infrarosso”(la normaUNIEN13187:2000puòessereconsideratal’aggiornamentodellanorma UNI9252:1988,poichécoincidonoquasiinteramente).

-UNI10824-1:2000“Provenondistruttive.Termografiaall’infrarosso.Termini

edefinizioni”.

6-Quandol’obbiettivodell’indagineèlamisurazionedellatenutaall’ariasiutilizzalaprovadi“blowerdoortest”secondoquantoprevistodallaUNIEN 13829:2002(vediRubenErlacher,“Misurazionedellatenutaall’aria.L’impermeabilitàdell’involucro”,in azero n.2,gennaio2012).

Unmetodo“domestico”pergenerareunasufficientedifferenzadipressionetra internoedesternoconsistenelchiuderetuttiiserramentiesterni,attivarela cappadellacucinae,sesonopresenti,altriventilatoridiespulsionedell’aria.

7-Ivaloridell’emissivitàdeimaterialichecaratterizzanolasuperficiedaindagareeivaloridellatemperaturariflessasonodinotevoleimportanzaquando ènecessariocalcolareleeffettivevariazionidellatemperaturasuperficiale.

8-Itermogrammidiriferimentopossonoessereprodottiinlaboratoriooessere ottenutidaprovesulcampoeffettuatesuedificireali.Itermogrammidiriferimentodovrebberoessereselezionatiinmododaassicurarechelastrutturarappresentataelecorrispondenticondizionidiprova,sianoilpiùpossibilesimili allastrutturainesameeall’ambientealmomentodell’esame(CfrappendiciA, BeCdellanorma).

9-Lecaratteristicheminimedellastrumentazionedautilizzarechelanorma richiedesonosoddisfattedallamaggiorpartedelletermocamereattualmente incommercio.

10-Dovendoeffettuareun’analisiditipoqualitativoenonquantitativo,lascala ditemperaturavisualizzatainognitermogrammaservesoloavalutareidelta termici,traareedellostessotermogrammaotraareeugualirelativeatermogrammiregistratiintempidiversi,manonaricavaremisureditemperatura.Per unacorrettainterpretazionedeitermogrammisarebbemoltoutileavereadisposizioneuninsiemedidatistorici,performareunarchiviodibasedautilizzarecomeconfrontoduranteilrilievoma,soprattutto,pertenereconto dell’evoluzioneneltempodeglischemitermicirilevati.

11-InItaliaglientiaccreditatipercertificareilpersonalePNDnelmetodotermograficosono:Rina,CICPND,IstitutoItalianodisaldatura,CertificationBureau. 12-Perilivelli1e2l’esameèditipopraticosecondounaprocedurasemplificata.Perillivello3l’Organismodicertificazionedàduepossibilità:superareunesamescrittooottemperareairequisitidiunsistemastrutturatoa punteggio.

L’indaginetermografica,dicuisoprasiriportano2termogrammi,èstataeffettuataperindividuareipuntidiinfiltrazioned’aria dellacoperturametallicadiunapiscina.

Daitermogrammi sirilevanoanomalie termiche incorrispondenza degliinfissi.L’attacco diquestiallamuratura èunpontetermico dinonfacilerisoluzione. Neltermogramma asinistrasinotache ilcassonetto dell’avvolgibile nonpresentaanomalie termiche,essendostato isolatotermicamente.

Laformazionediunoperatoretermografico

ConsiderandochelanormaUNIEN13187:2000nellaparteintroduttivaindicache“irisultatiottenuticonquestometododevonoessereinterpretatievalutatidapersonecheabbianoricevutounaformazionespecificaperquestoscopo”echeilmetodotermograficoè unaProvaNonDistruttiva(PND),sipuòritenereche,perirequisitiformatividiunoperatoretermografico,lanormadiriferimentosialaUNIEN473:2008“Qualificazioneecertificazionedelpersonaleaddettoalleprovenondistruttive.Principigenerali”.

TalenormaprevedeunaproceduradicertificazionericonosciutaalivelloCE,chedeveessererilasciataall’operatoretermograficodaunenteterzo11,conriferimentoatrelivellidi competenze:

Livello1

Unapersonacertificatadilivello1deveaverdimostratolacompetenzanecessariapereseguirePNDinbaseadistruzioniscritteosottolasupervisionedipersonaledilivello2e3.Il personaledilivello1puòessereautorizzatoa: -regolarel’apparecchiaturaPND; -eseguireleprovePND; -registrareeclassificareirisultatidelleproveinrelazioneacriteriscritti; -redigereunresocontodeirisultati.

Ilpersonalecertificatodilivello1nonpuòessereresponsabiledellasceltadelmetodoodella tecnicadautilizzareperlaprovaenonpuòvalutareirisultatidellaprova.

Livello2

Unapersonacertificatadilivello2deveaverdimostratolacompetenzanecessariapereseguirePNDinconformitàaprocedurestabiliteoriconosciute.Ilpersonaledilivello2,oltre aquantoprevistodallivello1puòessereautorizzatoa: -selezionarelatecnicaPDNinrelazionealmetododiprovadautilizzare; -definireimetodidiapplicazionedelmetododiprova; -tradurrelenormeelespecifichePNDinistruzioniPND; -regolareeverificareleregolazionidelleapparecchiature; -eseguireesovrintendereleproveetuttigliincarichidilivello1; -interpretareevalutareirisultatidellePND,inconformitàallenorme,aicodici eallespecifiche; -preparareistruzionePNDscritte; -fornireassistenzaalpersonaledilivello2e1; -organizzareeredigereirapportiPND. Livello3

Unapersonacertificatadilivello3deveaverdimostratolacompetenzanecessariapereseguireedirigerePND.Ilpersonaledilivello3,oltreaquantoprevistodallivello2può: -assumersilaresponsabilitàdiunlaboratoriodiprovaodiuncentrod’esame edelrelativopersonale; -stabilireeconvalidareistruzionieprocedurePND; -interpretarenorme,codici,specificheeprocedure; -stabilireimetodidiprova,leprocedureeleistruzioniPNDdautilizzare; -eseguireesovrintendereatuttigliincarichipropridilivello1e2; -guidarepersonaledilivelloinferioreal3. Ilpersonaledilivello3,seautorizzatodaunOrganismodiqualificazione,puòdirigereesovrintendereadesamidiqualificazionepercontodiquest’ultimo.

Peressereidoneoallacertificazione,ilcandidatodevesuperareilpertinenteesamediqualificazione,definitoinmaniera specificaperognimetodoelivello,edevesoddisfareirequisiti diaddestramento,esperienzanellePNDediacutezzavisiva, ancheinquestocasodifferenziatiperognimetodoelivello. TraimetodiPNDprevistidallaUNIEN473:2008nonèinserito ilmetodotermografico.Pertanto,perladefinizionedeirequisiti minimiperesamediqualificazione,addestramentoedesperienzabisognafareriferimentoallanormaISO9712:2005“Non destructivetesting–Qualificationandcertificationofpersonnel”.Talenormastabiliscecheladuratadellaformazioneedell’esperienzapossanoesseredefinitenelregolamentodell’ente accreditatoechepuòesserciunariduzionefinoal50%della duratadellaformazionepericandidatiinpossessodiadeguato titolodistudio(laureaodiplomadiistitutosuperioreinarea tecnica).I requisitiminimidiesperienza previstidallanorma perlaqualificazionesono:

-Livello1 → 3mesi

-Livello2 → 12mesi

-Livello3 → 30mesi

Perquantoriguardai requisitivisivi ilcandidatodevedimostrarediavereacutezzavisiva(questorequisitopuòesseresoddisfattoancheconl’usodilenti)eunavisionedeicolori sufficienteadistinguereedifferenziareilcontrastotraicolori utilizzatinellospecificometodoPNDincuisichiedelaqualificazione.

L’esameperlaqualificazione deilivelli1e2comprendeuna partegenerale(40domandecirca),unapartespecifica(30domandecirca)eunapartepratica.L’esamediqualificazioneper illivello3èilpiùcomplessoeprevedeancheunapartesulla scienzadeimateriali,unapartesullaconoscenzadibasedialtri 4metodieunapartesulmetodospecifico.

Ilperiodomassimodivaliditàdelcertificatodiqualificaèdi5 anni.Allascadenzadelprimoperiododivaliditàesuccessivamenteogni10anni,lacertificazionepuòessererinnovatadall’organismodicertificazioneperunnuovoperiododi5anni, dietropresentazionedi:

-refertoscrittodell’esamediacutezzavisiva; -documentazionechedimostridiaversvoltoinmodosoddisfacentel’attivitàdilavorosenzainterruzionisignificative. Allascadenzadiognisecondoperiododivalidità(ogni10anni) lacertificazionedeveessererinnovatadall’organismodicertificazione(ricertificazione)perunulterioreperiododi5annicon ilsuperamentodiunesame12,oltreaquantoprevistodallaproceduradirinnovo.

involucro_isolamentodellecoperture

MariaElisabettaRipamonti architetto,PresidenteOAPPCdiLecco

MATERIALITRADIZIONALI ETECNOLOGIEINNOVATIVE PERL’ISOLAMENTO DELLECOPERTURE

Isolarecontroilfreddo,proteggeredalcaldoedall’umidità: questoèciòchesirichiede,insintesi,aunacopertura. Quidiseguitounabreveanalisideimateriali edelletecnologieperindirizzareilprogettistaallascelta piùadatta.Conparticolareattenzioneallasostenibilità!

Lariduzionedeiconsumienergeticieillivellodiconoscenzae tecnologiaoggiraggiuntooffreampiepossibilitàdicontrasto aicambiamenticlimaticisenzaridurreilbenesseredell’uomo; consumaremenoeconsumaremegliosembraesserdivenutolo sloganpervivereabassaintensitàenergetica.

Comeperaltrepartidell’involucro,ancheesoprattuttoperlecopertureèimportantelacoibentazionetermicaelarisoluzione delledispersionigrazieall’eliminazionedeipontitermici.

Neiprimiduenumeridiazerosièillustratocomeperlefondazionieperleparetiperimetralisiapossibilefarusodidifferenti tipologied’isolamento.Inquestasedesiillustranometodidi coibentazioneefficaciperlarisoluzionedeipontitermiciincopertura,rimandandoaltesto Pontitermici:analisieipotesirisolutive (FlaccovioEditore,2011)permaggioridettagli.

Lacopertura,illimitesuperioredell’edificio,vededuedistinzioniprincipali:itettiafaldaolecoperturepianepiùomeno praticabili.

Perquantoconcerneiprimisifageneralmenteusodicoperture construtturaportanteinlegno,mentreperisecondi,sempre piùutilizzatipersceltestilistichecontemporanee,sipassadalle copertureprefabbricateaigiardinipensili.

Lavarietà,comeperleparetiperimetrali,èormainotevolee offreunventagliodiscelteadisposizionedeiprogettistiincontinuaevoluzione.

L’isolamentodellacoperturariducesialetrasmissioniinvernali versol’esternosiaquelleestiveversol’interno.Durantelastagioneestivaitetti,espostipiùdeglialtricomponentiedilizialla radiazionesolarediretta,senonopportunamenteisolati,contribuisconoinmanierasignificativaall’aumentodellatemperaturaall’internodegliambienticonfinati. Rispettoall’involucroverticale,peritettisiconsiglianoisolanti conmaggioredensitàebuonainerziatermicaalfinedievitare ilsurriscaldamentoestivo:atitolodiesempio,èpreferibileuna fibradilegnoall’EPS.

Importante,oltreallasceltadelmaterialecoibente,porreattenzionealsuoposizionamentoalfinedievitarepontitermici: incasoditettiinclinatisupportatidatraviinlegno,peresempio,èraccomandabileridurreipontitermiciposizionandoilmaterialeisolantetralastrutturaportanteeletegole. Perlecopertureincementoarmatoèpreferibileaumentarela massatermicaisolandodall’esterno. Inentrambiicasièindispensabileproteggereilmaterialecoi-

Variesempidiattaccodellacoperturainlegnoconlaparete verticale.Sonoevidentiglispessori“importanti”dell’isolamento.

Sotto,sezione-tipodiuntettoventilatoconrivestimentoesterno incoppieposizionamentodellabarrieraalvapore.

benteconmembraneimpermeabilieintrodurreunostratodi ventilazionesottoletegoleoicoppiingradodirimuoverel’energiatermicaimmagazzinatadallacopertura.

Affinchésottoilrivestimentoincoperturanonsiformicondensa ingradodideteriorarelastrutturadeltettoinpocotempo,nell’isolamentodelpianosuperioredell’edificioènecessarioinserireunabarrieraalvapore(sd >100)sottolostratoisolante versoillocalediabitazioneeunostratoimpermeabile(sd > 1000)sopra.

Posadell’isolante“asecco”traletravidellacopertura.

aerazione barrieraalvapore

Coperturaafalda

Incasodicoperturaafaldaconstrutturainlegno,lacombinazioned’isolamentotraipuntoniesopraipuntonidovrebbeessereutilizzatanellamaggiorpartedeicasidirifacimentodel tettosovrastanteunlocaleabitabile.Conlalanamineraleocon laschiumapoliuretanica(ounacombinazionedientrambe)si possonoproporrevariepossibilisovrastrutture.Nell’isolamento combinato,eseguitosiatraipuntonisiasoprailtetto,normalmentesidevegarantirecheimaterialiposizionatiall’esterno permettanoladiffusionedelvapore;lateralmenteèconsigliato unfrenoalvapore(vedifigurepagineprecedenti).

Nellasceltadell’isolanteènecessariotenercontodellecaratteristichedelmateriale;lamaggioredensitàdellafibradilegno rispettoadaltrimateriali,peresempio,larendeadattasiaper lacoibentazioneinvernalesiaperquellaestiva(tab.1).

Ipannelliinfibradilegno,prodotticoncapacitàcoibentedioriginenaturale,infatti,grazieallelorocaratteristichetermoacusticheemeccaniche,rispondonoavarieesigenze.Diessisi distinguelaproduzioneumida,lacuimassagarantisceunottimoisolamentodalcaldoestivoedalfreddoinvernalerimanendopermeabilealvaporeelaproduzionecheavvienelegando condellafibraleparticelledilegnovergine“asecco”.

Tragliisolantiamatricevegetalevisonopannelliinlanadi legnoflessibiliconottimaaderenzaaibordiseinserititrale travi,eccellentestabilitàneltempoeidealicomeisolantitermicieacustici.

Considerandoinoltrecheleesigenzedicoibentazionevariano infunzionedellecondizioniclimaticheincuisitroval’edificio, nelleregionianordl’attenzionemaggiorenellasceltadegliisolantiècorrelataaimesipiùfreddi,mentrenelsuddell’Italiala fibradilegnoconsenteun’ottimarispostaalleesigenzedidifesadalcaldo.Essa,infatti,grazieallasuadensitàpermettedi ottenereunmaggioresfasamentorispettoadaltrimaterialisinteticiefornisceunamigliorerispostadell’edificioalsurriscaldamentoestivo(veditabellealatoelasezionedellacopertura, inalto).

Imprescindibileèlarisoluzionedeipontitermicinellecoperturealfinedieliminareleinutiliedannosedispersionidicalore.Leimmaginidellapaginaafiancoinbassoillustrano comesiapossibiledarecontinuitàall’isolanteincorrispondenzadellaconnessionetraleparetiperimetralielacopertura dell’edificio.

Prodotti

Fibradilegno

Cellulosa

Lino

Lanadipecora

Lanadiroccia

Polistirene

Lanaminerale

Tabella1-Caratteristichedialcunitragliisolantipiùutilizzatiin edilizia.

Unasezione-tipo delnodoparete esterna/copertura inunedificio construtturaportante inlaterizioec.a.etetto inlegno:èbenevidente l’importanzadata all’isolamento dellapareteedeltetto.

Sopra,differenzaditemperaturaesterna;sotto,differenza ditemperaturainternagrazieall’utilizzodicoibentazione infibradilegno.

Tecnologiatradizionale-coperturatettogiardino(dall’estradosso): terrenodicoltivo; geotessuto; pannellistampatiperstoccaggioedrenaggioacqua; guainaimpermeabilizzanteesuperioreguainaantiradice; pannelliisolanticompatti; barrieraalvapore; massettodipendenza; solaioinlaterocemento; intonacointerno.

Coperturaaverdepensile

Dametodocostruttivodiantichetradizionilacoperturaverdesi ènotevolmenteaffinataperunutilizzoinepocamodernaalfine diarginareidannicausatidalladilaganteurbanizzazione.Ogni coperturacaratterizzatadallapresenzadiuninsediamentodi specievegetaliprivedeldirettocontattoconilterrenoeingrado diadattarsiesvilupparsinellediversecondizioniambientalisi definisce“averdepensile”.

ghiaiaU=0,25Wm2/K

60kg/m2 impermeabilizzazione

Sopra:sezionedicoperturapianaconghiaiainvetrocellulare.

Inassenzadiprecipitazioni:valore λ=0,08W/mK, valoreU=0,24W/m2K

Inpresenzadiprecipitazioni:valore λ=0,13W/mK, valoreU=0,39W/m2K

Questecopertureconsentonomitigazioniecompensazioniambientali,generanobenessereclimatico,siainternosiaesterno agliedifici,riduconoeffettinocivicomeilpropagarsidionde elettromagneticheedipolverisottili,limitanol’inquinamento sonoroequellodaanidridecarbonica.Lecopertureaverdepensileconsentonoancheunamigliorfruibilitàdispazialtrimenti persieunapiùefficaceprotezionedellemembraneimpermeabilizzantidegliedifici;ilvaloreesteticovadiparipassocon quellocommercialedegliimmobiligrazieallapossibilitàdirecuperodisuperficiinutilizzateresefruibiliepraticabiliperterrazziprivati,autorimesseinspazipubbliciogiardiniperla collettività.

Altrettantopositivo,oltreall’aspettodipercezionevisiva,èilrisparmioenergetico.Questasoluzione,infatti,migliorasensibilmentel’isolamentotermicodellacoperturariducendole dispersionidicaloreininvernoe,soprattutto,limitandoilsurriscaldamentoestivoconconseguentenotevoleriduzionedei consumiemigliorcomfortinternoagliedifici.Mentresuuna coperturatradizionaleletemperaturemassimeestivepossono

Dasinistra:

Tecnologiaasecco(legno):grondatettoconventilazionesempliceeisolamentointerpostoaitravetti-facciataventilatainlegno.

Tecnologiaasecco(legno):grondatettoconventilazionesempliceeisolamentosopraaitravetti-facciataventilatainlegno. Tecnologiaasecco(legno):arcarecciointermediotettoafaldeconventilazionesempliceeisolamentointerpostoaitravetti.

Esempidicoperturapianaconcoibentazioneinvetrocellulare(FonteNordtex).

raggiungeregli80°C,conuntettoverdesiaggiranoattornoai 25°Cgrazieaiprocessidievapo-traspirazionedellecoperture elariduzionedellaradiazionesolareincidentesugliedificiombreggiatidallavegetazione.

Altroaspettoimportantedeigiardinipensilièlacapacitàdiaccumulodelleacquemeteoriche,conunconseguenteritardodel tempodideflussoversoicollettoriurbanidovutoallentorilasciodelleacquedapartedelsubstratoedell’elementodrenante. Importanteèdefinireconcorrettezzailparametrodel“coefficientedideflusso(ψ)”inprogettoperdeterminarel’inerzia idricachepermetteunrallentamentoneltempodelleportate.Un talesistemaèanchediausilioallariduzionedeglieffettinegativicausatidaifrequentieviolentiagentiatmosferici. Infunzionedelgradodimanutenzionerichiestosidistinguono duetipologie,estensivaeintensiva.Laprimahaunridotto spessoredellostratocolturale(tragli8ei20cm),ècaratterizzatadabassispessoriepesi(tra70e250kg/m2),richiede unridottofabbisognonutritivo,interventidimanutenzioneminimiecostid’installazioneegestionecontenuti. Lacoperturaaverdeintensivo,invece,presupponeunamanutenzioneconfrequenzaelevata,regolariapportinutritivie un’assiduaalimentazioneidrica.Ilmaggiorcostod’installazioneedigestionediquestatipologiaèperòripagatodaimolti beneficichetalecoperturaèingradodiapportare.

Sonostratiprimariglielementiportanti,ditenuta,diprotezione meccanicaedall’azionedelleradici,glielementifiltranti,drenantiequellidiaccumuloidrico,lostratocolturaleequellodi vegetazione(vedidisegnoapag.57inalto).

Nelrispettoperl’ambienteevistalarichiestadiprodottiinteramentericiclabilienoninquinanti(nemmenoinfasedismaltimento),lacoibentazionedellecoperturepianepuòessere

sostituitadaunmaterialerelativamentenuovo,ilvetrocellulare.

Ipannelliinvetrocellularesonocompostidamilionidicelleermeticamentechiuse,noninvecchiano,sonoecologici,incombustibili,completamenteimpermeabili,indeformabilie costituisconounabarrieraalvapore.Ilvetrocellularesotto formadighiaiausatocomestratocostipatoèuncoibenteideale anchenellecoperturepianeeneigiardinipensili(vedidisegno apag.57eleimmaginiquisopra).

Coperturepiane

Perlecoperturepianelacontinuitàdell’isolamentosecondoil “principiodelpennarellorosso”–regolagrazieallaqualeun isolamentosenzainterruzioniattornoall’edificioeliminaledispersionicausatedaipontitermici–puòessereraggiuntautilizzando,peresempio,calcestruzzocellulare(λ =0,080W/mK) usatocomecollegamentotralacoibentazionedellacoperturae ilmaterialeisolantedellamuraturaperimetrale. Altropuntocriticoincoperturaèilsolaioappoggiatosulmuro perimetrale;perrisolvereilproblemaèpossibileapplicareun isolamentodialmeno10cm,conun λ di0,040W/mK,attorno alcordolo,estendendoloancheversol’alto(vediimmagineal centroapag.59,asinistra).

Incorrispondenzadeiparapettidiunacoperturapianasiconsiglial’usodielementicoibentiprefabbricatiingradodiconsentirecontinuitàdell’isolanteovviandoaipontitermici(vedi immagineinbassoapag.59,asinistra).

Anchenellatecnologiaaseccoinacciaioèpossibilerisolverei pontitermiciconuncorrettoposizionamentoeutilizzodeimateriali,comemostratoneidisegniapagina59,adestra.

Pontetermico inprossimità dellacoperturapiana.

Tecnologiacostruttivaasecco(acciaio),nodoparete copertura:grondaincassatatettoinalluminio, facciataventilata.

Risoluzionedelponte termicoconl’utilizzo delcalcestruzzo cellulare.

Elementocoibente portanteperl’isolamento delnodod’incastro traparapettoesolaio dellacoperturapiana.

Tecnologiacostruttivaasecco(acciaio),nodoparete copertura:tettopianononpraticabile,facciataventilata conrivestimentoinalluminio.

Tecnologiacostruttivaasecco(acciaio),copertura:gronda incassatatraduefaldedeltettoinalluminio.

Barriereradiantipercoperture

Allenostrelatitudini,inunagiornataestiva,letegoledeltetto possonoraggiungeretemperaturenotevoliacausadellaradiazionesolareincidentesudiesse;ilcaloresitrasmetteall’isolantesottostanteattraversoilriscaldamentodell’ariadi ventilazioneesoprattuttoattraversol’emissionediradiazione infrarossachecolpiscedirettamentel’isolante.

Sesottoletegolesiposizionaunmaterialeabassaemissione (comel’alluminio),ilcaloreemessoperradiazionedalletegole riscaldatedalsolesiriducefinoal97%e,diconseguenza,diminuisceilcaloresull’isolante,contribuendocosìamantenere piùfrescoilsottotetto.

Nellastagioneestival’utilizzodibarriereradiantipostesopralo stratodiventilazioneincoperturacontribuisceadabbassarela temperaturasottoilmanto.

Nelleimmaginialatosievidenzialadifferenzaditemperatura inprossimitàdell’isolante,inpresenzaomenodellabarrieraradiante.

Lebarriereradianti (sopra,unesempio) vengonopostesopra lostratodiventilazione alpostodelsecondo tavolato,conlafaccia riflettenterivoltaverso ilbasso.

Laloroparticolare strutturariescearidurre finoal95%ilcalore chevienetrasmesso dalle tegoleall’isolante sottostante (FonteNordtex).

Sopra,leimmagini evidenzianoladifferenza ditemperaturache sitrovainprossimità dell’isolanteinuncaso incuicisialabarriera radiante(33,4°C, asinistra)enelcaso incuinoncisia (51,5°C,adestra).

barrieraradiante

Adestra,immagini relativeall’isolamento dicopertureesistenti (FonteNordtex).

Coibentiperristrutturazioni

Negliultimianniilmercatodeimaterialiisolantisiènotevolmentesviluppato,grazieancheallaproduzionedicoibentiin gradodirispondereallerichiestepiùcomplessechesimanifestanoinunperiododirigenerazioneurbanaincuidivienesemprepiùimportanteristrutturareeriqualificareenergeticamente gliedificiesistenti.

Iridottispessorid’intervento,soprattuttoinimmobilidipregio, possonocondizionareunperfettoisolamento.Unesempio:i pannellisottovuoto,sigillatisenz’ariaconunprocessoproduttivoingradodifornireunaconduttivitàtermica λ =0,005 W/mK(ottovoltemaggiorerispettoaunnormalepannelloisolante)consentonoun’ottimacoibentazionedellecoperturein fasediristrutturazione.Inpratica,2cmdipannellosottovuoto, ilcuiinvolucroesternoinalluminioracchiudeunostratoinpoliestereche,asuavolta,contieneparticelledimineralepressato epostosottovuoto,hannolastessacapacitàcoibentedicirca 16cmdeitradizionaliisolanti(vediimmaginiquisotto).

Pannellisottovuoto. L’involucroesterno inalluminioracchiude unostratoinpoliestere contenenteparticelle dimineralepressato epostosottovuoto (FonteNordtex).

Idisegnidiquesto articolo,laddove nondiversamente specificato,sonotratti dallibro Pontitermici: analisiedipotesi risolutive,di M.ElisabettaRipamonti eFrancescoC.Dolce, FlaccovioEditore, Palermo2011.

prodotti_isolamentodellecoperture

LASTRADIVETROCELLULARE GLAPORPG700

isolanteadalteprestazioni

Descrizione. Lelastredivetrocellulare,invetroriciclatoal 100%dialtaqualità,sonocoibentanti,leggereeidoneeall’utilizzoinedilizia.Grazieallastrutturaacellulechiuselalastraèassolutamenteimpermeabileel’ariaracchiusanelle stessecelluleèallabasedelleproprietàdiisolamentodelmateriale,formandounabarrieraimpenetrabilealpassaggiodi acqua,vaporeegas.Lalastrasidistingueperlaresistenzaalla compressioneeperleproprietàignifughe.Leproprietàmeccaniche,infatti,rendonoilpannelloidoneoperibasamenti.Èdurevole,inodore,stabilealgeloesicurocontroinsettieroditori. Ilprodottoèinnocuoperlepersone,resistenteafunghiemuffe edèriutilizzabileericiclabile.Ambientalmentepreservalerisorseenergetichenaturali,nonrilasciaalcunaemissionedigas evieneprodottoconbassiconsumidienergia.

Coibentazionetettipiani(esempiodiimpiego):

1.Asfalto

2.Bitume

3.Selciatosulettodipietrisco

4.Ghiaia

5.FoglioinPE

6.Georetedrenante

7.Collantespecifico

8.Lastreinvetrocellulare

9.Collantespecifico

10.Solettaincalcestruzzo

11.Geotessuto

Formato 800x600mm

Spessore 40,60,80,100,120mm

Densità 130-150kg/m3

Resistenzaallacompressionemedia >800kPa(8kg/cm2)

Conduttivitàtermica λD 0,060W/mK

Capacitatermicaspecificac 850J/kgK

Fattorediresistenzaalvaporeµ infinito

Classedireazionealfuoco A1

Utilizzo. Lelastredivetrocellularevengonoapplicateperl’isolamentotermicodeitettipiani,ancheconpendenzeintegrate, edeitettiverdi,vistal’estremastabilitàdellaformael’assenza difenomenidiritiro,previamanodisottofondobituminosoe protezionedairaggiUV.Possonoessereutilizzateperlacoibentazionedelpavimentoperpavimenticaviedeipavimenti sopralaplateadifondazione,deiserbatoidiacquapotabilee deilocalisotterranei(lateralmente).Lemuratureconintercapedineelesolettepossonoessereisolateconilvetrocellulare, chesipuòusareancheperlacoibentazioneinternadiedifici sottotutelaartistica.

SISTEMATERMOISOLANTESOTTOTEGOLA ISOTEC®/ISOTECXL®

Formato 3900mmxlarghezzavariabileasecondadelpasso delmantoutilizzato

Spessore 60(ISOTEC®)/80/100/120mm

Densità 38kg/m3

Resistenzaacompressione 120kPa(al10%dideformazione)

Conduttivitàtermicadichiarata(λ) 0,024W/mK

Capacitatermicaspecifica(c) 1100J/kgK

Coefficientediffusionevapore(µ) infinito

Classediresistenzaalfuoco F

Assorbimentoacquaalungoperiodo 0,6%

BRIANZAPLASTICA

www.brianzaplastica.it

Descrizione. ISOTEC® èunsistemadiisolamentotermicoin poliuretanoespansorigidopercopertureafalde,progettatoper essereapplicatosianelcampodelrecuperoditettid’epocasia nellenuovecostruzioni.Ilpannelloèconformatoabattentieincastricontrappostichelorendonofacilmentemanovrabile,facilitandoneevelocizzandonelaposainquota.

ConipannelliISOTEC® sipossonorealizzarerapidamenteimpalcatiportanti,termoisolanti,impermeabilialleinfiltrazioni accidentalidelmantodicoperturae,graziealcorrentinoinacciaiozincatodicuisonodotati,microventilati.Questosistema richiedeilrispettodisempliciregolediinstallazioneeilrigoroso utilizzodegliaccessoridicompletamentoallaposa,indotazione.

IlnuovopannelloISOTECXL® mantienetuttelecaratteristiche delpannelloISOTEC® tradizionalemavieneaccoppiatoaun correntinodi4cm.L’evoluzionenonsilimitaall’aumentodella cameradiventilazioneperchégraziealnuovoprofilo,ISOTEC XL® trattieneperfettamenteletegoleeoffrelamassimagaranziadipedonabilitàancheinpresenzadipendenzedifalda moltoelevate.

Utilizzo. Ilsistemaèadattoperl’isolamentotermicodellecopertureconstrutturaafaldadiscontinuainferroolegno,coninterassesecondocarichiammissibili,eperfaldaconstruttura continua.Ilcorrentinoinacciaioconsenteunaventilazionedel tettoparia200cm2/mdigronda(nellaversioneISOTECXL®): questaventilazionegarantiscedurantelastagioneestivacondizioniottimalidibenesseretermoigrometrico,smaltendoilcaloretrasmessodalmantodicoperturaepermettendoininverno dismaltirel’umiditàineccesso,causadicondenseedimuffe.

prodotti_isolamentodellecoperture

COPERTURAAVERDEESTENSIVO

DakuEstensivo

sistemadiisolamentotermico

Descrizione. Iltettoverde,definitoverdepensileditipoestensivo,èunsistematecnicoperilrinverdimentodellecoperture chesicaratterizzaperleproprietàdiisolamentotermico,risparmioenergetico,spessoriridotti,pesicontenutieridottamanutenzione.Unacoperturaaverdeestensivo,oltrearidurreil fabbisognoenergeticodiuninvolucro,consentediaumentare l’inerziatermicadellacopertura,dicontenereledispersionitermichegiornaliereestagionali,diincrementareilcomfortinterno,dimigliorarel’isolamentoacusticoediproteggere meccanicamenteicomponentidellacopertura:fondamentaleè ancheilcontributoambientaledato,grazieallariduzionedell’inquinamentoatmosfericomedianteiltrattenimentodellepolverisottili,ilminoreffetto“isoladicalore”dovutoal raffrescamentodellecopertureelariduzionedelleacquereflue grazieall’elevataritenzioneidricadelsistema.

Lastratigrafiadelpacchettovedeunelementoprefabbricatoin polistireneespansosinterizzatocheformalabasedelsistema, svolgendolatriplicefunzionediprotezione,drenaggioeaccumuloidrico;ungeotessilefungedafiltroperleacquedelsubstratoedastabilizzatoredell’apparatoradicale;infineil substratovieneposatoperunospessoredi8cmeconsentelo sviluppodellavegetazione(sedum). Utilizzo. Lacoperturaaverdeestensivorappresentaunsistemaestremamenteconvenienteperridurreilfabbisognoenergeticodell’edificioedèparticolarmenteadattoallecoperturedi grandidimensioni,ancheperquellenonfacilmenteaccessibili, siapianecheinclinatefinoaca.25°.Lavegetazione,grazieal sistemadiaccumuloidrico,nonrichiedeirrigazioneedècompostadaunamisceladivarietàdi sedum definiteinbaseal contestospecificodell’areaclimaticadiintervento.

Spessore 16cm

Pesoasecco 75kg/m2

Pesosaturod’acqua 115kg/m2

Pendenzamassimasupporto 25%

Accumuloidrico 24l/m2 (pendenza3%)

Manutenzione minima

Impiantodiirrigazione nonnecessario

Calpestabilità solopermanutenzione

Coefficientedideflussomedioannuo 0,2

MEMBRANA DerbibriteNT®

Formato 10x1m

Spessore 3mm

Pesorotolo 34kg

Resistenzaatrazione 600N/50mm

Allungamentoarottura 5/5%

Resistenzaallalacerazione 350N

Stabilitàdimensionale ±0,3%

ResistenzaalfuocosecondolanormaEN13501-5 classificazione

BROOF(t1,t2,t3)

Riflettività 81%

Emissività 81%

SRI 100

Descrizione. DerbibriteNT®,membranaimpermeabileabase dibitumeibridoHCBcheleconferisceottimeproprietà,èuna membranacheriflettel’irraggiamentosolare.Inparticolare,durantelastagionecalda,quandorivestimentiscuriincopertura raggiungonoanchegli80°C,grazieallariflessionedelcalore DerbibriteNT® nonpermettedisuperarei40°Cincoperturae ciòsitraduceinunaminorquantitàdicaloreinentratanell’edificio.Rinforzataconun’armaturacompositaalvelodivetro epoliestereèimpregnataconuncoatingacrilicoaelevatacapacitàriflettente,lacuidurabilitàègarantitadallananotecnologiaEasyClean;questatecnologiaconsenteallamembrana dirimanerebiancaepulitaequindidiconservarelecaratteristicheriflettentichegarantiscononotevolirisparmienergetici, affidabilitàedurabilitàdellecomponentidellacopertura. Èunprodottochemiglioralaresadegliisolanti,eanchequella deipannellifotovoltaici,èresistentealfuoco,aigrassi,aifunghieall’erosione;èinoltrericiclabile.

Utilizzo. Lamembranavieneutilizzatacomeprodottoperil raffrescamentopassivodellecoperture,peragevolarel’azione coibentedegliisolantitermicieperglistratiafinire.Siapplica conilcollantesenzaVOCDERBIBONDNT.DerbibriteNT® èmunitodipellicolaautoadesivainsuperficie,grazieacuiilmanto rimaneperfettamentepulitoduranteilavoriechevienetoltaa finelavori.Lamembranahaancheinsuperficieunacimosaper ilsormontodi10cmsenzacoating,pervelocizzarelarealizzazionedeisormonti.

prodotti_isolamentodellecoperture

PANNELLOINEPSELEGNOCEMENTO

Pan.Ther.A.

isolantetermicoeacusticopercoperturaafalde

Formato 1080x600mm

Spessore 130mm

Massavolumica 155,70kg/m3

Conduttivitàtermicateorica*(λ) 0,0364W/mK

Trasmittanzapannello 0,27W/m2K

Capacitatermicaspecifica(c) 1864J/kgK

Isolamentoacustico 35dB

Sfasamentoondatermica >7h50’

*calcolatocomevaloredellaconduttanzaperlospessoredelpacchetto(130mm)

Descrizione. Pan.Ther.A.èunpannellostudiatoappositamentepertettiventilati,costituitodaduemateriali;laparte superioreècompostadapolistireneespansosinterizzatoarricchitodigrafite(Neopor®),materialechepossiedeunabuona capacitàdidiffusionealvaporeecheconsentealtettoditraspirare.Laparteinferioredelsistemaèformatadalanadi abetelegataemineralizzataconcementoPortland,materiale traspirante,resistenteall’acqua,algeloeall’umidità.L’accoppiamentodeiduepannellinonavvieneperincollaggio,matramiteperniinpolipropilenepassantichesvolgonounruolo fondamentalenellafasediancoraggioediventilazionedella coperturaincotto.IlpannelloinEPS,grazieallagrafite,assicuraaltettouncorrettoisolamentotermicoediconseguenza elevatirisparmidienergia:lasuasuperficieondulatacreadelle lineepreferenzialidiscorrimentodell’acquachevieneconvogliataversolagrondasenzaristagnare.Lalastrainferiorein legnocementoconferiscemassaalsistemaegliinterstiziche sicreanotralalanadilegnogarantisconounelevatoassorbimentoacustico.Inoltre,grazieaicomponentiabaionettainpolipropilene,ilmantodicoperturaèrialzatodicirca35mm rispettoalpannello,creandounflussod’ariasottocoppoche collaboraallosmaltimentodelcaloredairraggiamentod’estate eall’evacuazionedell’umiditàinterstizialed’inverno. Utilizzo. Ilpannellotermoacusticopersottocopposiutilizza perl’ancoraggio,l’aerazione,lacoibentazionetermoacusticae perl’impermeabilizzazionedellacoperturaincoppidacompletarsiconcolmoventilato.Laposa,graziealledimensionimaneggevolidelpannello,èrapidaeprecisaedèpossibilecon pendenzefinoal45%.

INDUSTRIECOTTOPOSSAGNO www.cottopossagno.com

Descrizione. IpannelliHofatex® TopThermrappresentanolo sviluppodelpannelloHofatex® Therm,dicuièstatamigliorata laresistenzaallacompressionerendendointalmodoilpannellopiùstabilenelleapplicazioniincoperturaenellepavimentazioni.Graziealleottimeprestazionitermichegarantisce protezionedalsurriscaldamentoestivo,attenuandol’ampiezza dell’ondatermicaeritardandolapropagazionedellastessa (sfasamento),oltrechel’isolamentotermicodurantelastagione fredda;offreinoltreunabuonaprotezioneacusticadarumori aereie,seutilizzatoapavimento,anchedarumoridacalpestio. Ilmaterialeèprodottodamateriaprimanaturaleerinnovabile medianteunprocessochenondanneggial’ambienteedèsicurodurantelefasidilavorazioneeposainopera.Ipannelli,

PANNELLOINFIBRADILEGNO

Hofatex® TopTherm

isolanteecologicoadalteprestazioni

chepossiedonolacertificazionebioedilerilasciatadall’Istituto perlabioediliziael’ecologiadiNorimberga,devonoesserestoccatiinlocaliprividiumidità,inposizioneorizzontaleeprotetti daeventualidanneggiamenti.Siutilizzanosiasustrutturein lateriziochestruttureinlegno,sonoprodottisecondolanorma DINEN13171,EN622esonocertificatianormaDIN4108-4. Utilizzo. IpannelliTopThermsiusanoperlacoibentazionetermicadellacoperturaetraletravidicopertura.Siutilizzanoindistintamentesianellenuovecostruzionichenegliedifici esistentidariqualificareerecuperare.Possonoessereancheutilizzatiperl’isolamentodellemuratureesterne,l’isolamentoin intercapedine,l’isolamentoacusticodellepavimentazioniecome isolamentoaggiuntivosel’isolamentopreesistenteèusurato.

_Datitecnici__________

Formato 600x2500mm

Spessore 20/40/60/80/100mm

Densità(ρ) 170kg/m3

Conducibilitàtermica(λ) 0,042W/mK

Resistenzaalpassaggiodelvapore(µ) 5

Capacitàtermicaspecifica(c) 2100J/kgK

Resistenzaallatrazione ≥ 7,5kPa

Resistenzaallacompressione ≥ 70kPa

Classediresistenzaalfuoco EuroclasseE(normaEN1350-1) Assorbimentodell’acqua ≤ 2,0kg/m2

prodotti_isolamentodellecoperture

MATERASSINOINLANA

EdilanaMAT30

isolanteadalteprestazioni

Descrizione. Ilmaterassinoèottenutodallalanadipecore biancheeneremediantecardaturainvelimoltosottiliesuccessivaagugliatura.Ilmaterassinopossiedealtopotereisolantepoichélaformaascagliedelpeloriesceaintrappolare moltaaria,mantenendotalecaratteristicaancheinpresenza diumiditàelevata.Lafibraregolaigroscopicamentel’ambiente: riesceadassorbirevaporeacqueofinoaunterzodelsuopeso senzabagnarsi,gonfiarsiomodificarsinellastruttura. Èignifuga,autoestinguente,nonfonde,nongocciola,carbonizzavelocemente,nondiffondelafiammae,grazieallaforma spiraliformeeuncinata,consentediabbatterel’inquinamento acustico,migliorandoanchelaqualitàdelsuono.

Adifferenzadellefibrevegetali,lalananecessitadiuntrattamentoprotettivo–disolitosalidiborochesedilavatidevono essereriapplicati–inquantopuòessereattaccatadaparassiti.Puòesserericiclata,previorinnovamentodeltrattamento protettivo,ecompostatasenonèstatatrattata.Laproduzione deimaterassinirichiedeunaquantitàdienergiarelativamente ridotta.

Utilizzo. Ilmaterassinovieneutilizzatoperl’isolamentotermicodellecopertureventilateenontralistelli.Vieneutilizzato anchenellemuratureperimetralieinterne,neisolai,neicontrosoffittieinintercapedine.

Formato(rotoli) 0,60x10m(surichiestalarghezza2m)

Spessore 3cm

Densità(ρ) 50,5kg/m3

Resistenzaalpassaggiodelvaporeacqueo(µ) 2,3

Conducibilitàtermica(λ) 0,0339W/mK

Tempodisfasamentoper12cmdimateriale 8-9h

Poterefonoisolante(Rw) 54dB

impianti_pompedicalore

LAPOMPADICALORE

ELETTRICANEGLIEDIFICI

ABASSOCONSUMO

ENERGETICO

L’importanzadiscegliere ungeneratoredicalore efficiente

Perottenereunedificioenergeticamenteefficienteènecessariorealizzareuninvolucrocaratterizzatodabassissimedispersionidienergiatermicaedingradodisfruttarealmassimogli apportienergeticigratuitidiorigineinternaedesterna.Questa condizionenonètuttaviasufficienteinquantoogniedificionecessitadiimpiantipergarantire,contemporaneamenteoalternativamente,iservizidiriscaldamentoediproduzione dell’acquacaldasanitaria.Gliimpiantichesvolgonoiduecompitiindicatirichiedonounacertaquantitàdienergia,cheviene definitaprimarianelcasodell’impiegodirettodiuncombustibile,oderivantedaunaconversionenelcasoincuisiautilizzata l’energiaelettrica.

Lanecessitàdianalizzaregliaspettienergeticiinediliziainterminidisistemaedificio-impiantoèbennotanelnostroPaese findaltempodell’emanazionedellaLegge10/1991.Attualmente,ilDPR59/2009edilDLgs311/2006,conseguentialrecepimentoinItaliadellaDirettivaEuropea2002/91/CE, impongono,neicasidinuoviedificiediristrutturazioniimportanti,laverificadeilimitiimpostialfabbisognodienergiaprimaria.Questoparametrodipende,oltrechedallecaratteristiche dell’involucroedallaventilazione,anchedall’efficienzadelsistemaimpiantisticorappresentatadalrendimentoglobale

Negliedificiaenergiaquasizerolepompedicalore offronounavalidaalternativaaisistemi diriscaldamentoacombustione. Comesceglierelamacchinapiùadatta ecomeutilizzarlanellenuovecostruzioni enelrecuperodegliedificiesistenti.

Accanto,pompa dicaloreadaria: componentidelsistema (Fonte:RotexGmbH).

Adestra,pompa

dicaloreadaria: unitàinternacompatta conaccumulatore dicalore (Fonte:RotexGmbH).

mediostagionale.Permassimizzarequestorendimentoènecessarioeffettuaredellescelteadeguateperquantoriguarda lecaratteristichedeisottosistemidiregolazione,distribuzione, emissioneeproduzionedelcalore.

Traletecnologiepiùefficienti,oggidisponibilicommercialmenteperlaproduzionedelcaloredestinatoalriscaldamento degliambientiedell’acquacaldasanitaria,visonolepompedi caloreelettricheidroniche,impiegabilicioèaserviziodiunimpiantodiriscaldamentoadacqua,elecaldaieagasacondensazionepremiscelateeconampiocampodimodulazionetrale potenzeminimaemassima.Nelprimocasolagenerazionedi energiatermicaavvienesfruttandounciclofrigorifero,mentre nelsecondocasosiutilizzalacombustione.

Laverificadelparametrodell’efficienzastagionaleèrichiesta ancheneicasidiedificiesistentisottopostiarilevantiristrutturazioniimpiantisticheediinstallazionedinuoviimpiantidiriscaldamentoinedificicheneeranoprivi.

Unimpulsoulteriorealladiffusionedeisistemidigenerazione delcaloreenergeticamenteefficientivienedalDLgsn.28/2011 che,inrecepimentodellaDirettiva2009/28/CEpromuovel’uso delleenergierinnovabili.Dal31maggio2012entrerannoinvigoregliobblighirelativiallacoperturadiunapercentualeim-

portantedelfabbisognotermicototalediunedificiomediante energiaprodottadafontirinnovabili;ilfabbisognotermicototaleconsiderasiailriscaldamentoel’acquacaldasanitaria cheilraffrescamento.Ilrequisitoessenzialeperottenere,senza troppisforzi,unabuonacoperturadelfabbisognoenergetico mediantefontirinnovabiliènaturalmentediminuireilpiùpossibilelaquantitàdienergianecessaria,equestopassaanche attraversol’utilizzodiungeneratoreadaltorendimento.Inoltre, inbasealcitatoDLgs3marzo2011,n.28,unapartedell’energiatermicaprodottadaunapompadicaloreèdaconsiderarsienergiadafontirinnovabili;inparticolare,èconsiderata talel’energiaaerotermica,geotermicaoidrotermicacatturata dallapompadicalore.Questaquantitàècalcolabileapplicando un’appositaformulariportatanelDecretostesso.Pertanto,è prevedibilechel’applicazionedellerecentidisposizionilegislativeportiadunamaggiorediffusionedeigeneratoriapompa dicalorenelnostroPaese.

Un’alternativaallacombustione

Ricavareenergiatermicadallacombustioneèilsistemapiùanticoperriscaldareunambiente,edancoraoggièilpiùutiliz-

zatonelnostroPaese.Nonsoloneicaminettienellestufe,ma anchenellecaldaie,laproduzionedelcaloretrasmessoall’aria oall’acquaavvienebruciandouncombustibilechepuòessere solido,comenelcasodellegno,gassosoquandoadessereimpiegatoèilmetanooilGPL,liquidosevienebruciatogasolio. L’efficienzamassimateoricadiunacaldaiatradizionaleèpari a1.Siraggiungerebbequestovalorenelcasoincuituttal’energiasviluppatanellacombustionevenissecedutaall’acquadell’impiantodiriscaldamento.Maquestonaturalmentenonè possibileinpraticaperchélacaldaia,comeognimacchina,è caratterizzatadaperditedienergia.

Unsistemaalternativoperricavarel’energiatermicaèprelevarladaunasorgentechepuòesserel’ariaesterna,ilterreno, unlago,ounafaldaacquifera.

Daparecchianniutilizziamoiclimatizzatoridurantel’estateper raffreddaregliufficieleabitazioni.Questemacchineasportanoilcaloredagliambientidaclimatizzareall’internodegli edificieloportanoall’esterno.Inquestomodo,togliendoilcalore,l’edificiosiraffredda,edilcaloreasportatovieneliberato all’esterno.Durantel’estatesaràcapitatoamoltidipassare neipressidell’unitàesternadiuncondizionatoreedessereinvestitidaunflussodiariapiuttostocalda:sitrattadelcalore chelamacchinahaprelevatodall’edificioincuièinstallata.

Lemacchinechesvolgonolafunzioneoppostarispettoaquella delcondizionatore,ovverochepermettonodiriscaldareilocali prelevandoilcaloredaunasorgenteesterna,sonolepompedi calore,chevengonocosìchiamateinquantoilcalorevieneidealmente“pompato”versol’interno(vedischemapag.70).

Ilprincipiodifunzionamentoèlostessosucuisibasailfrigorifero,cioèl’elettrodomesticochetuttiutilizziamoperconservareglialimenti:alfinediraffreddareloscompartodovesi trovailcibo,ilcaloredeveessereasportato,eperfarquesto vieneutilizzataunacertaquantitàdienergiaelettrica,necessariaperilfunzionamentodelcompressore.

Trovandosigeneralmenteincucina,ilfrigoriferocedeaquesto localeilcalorechehatoltoalpropriointerno.Osservandoilfenomenodalpuntodivistadichiabitaillocaleincuièinstallatol’elettrodomestico,sinotacheilfrigoriferoriscaldala cucinasiadurantel’invernocheinestate.Naturalmentechiacquistaunfrigoriferolofaconl’intentodiconservareglialimenti, noncertoconquellodiriscaldarelacucina.Perottenerequest’ultimorisultatoèinvecenecessariodotarsidiunapparecchiostudiatoperquestoscopo,chesiaquindiingradodifornire l’energiatermicaconlamaggioreefficienza.

L’energiaconsumatael’efficienza diunapompadicalore

Allostessomododiunoggettochelasciatoliberodaunacerta altezzacadealsuolo,innaturailcalorepassaspontaneamente

dauncorpochesitrovaadunacertatemperaturaversounaltro corpocaratterizzatodaunatemperaturapiùbassa.Perottenerel’effettooppostoènecessariofornireunacertaquantitàdi energiaalsistema.Lasorgenteesterna,dacuilapompadicalorepreleval’energiatermicadautilizzareperilriscaldamento, sitrovaadunatemperaturainferiorerispettoaquelladellocale dariscaldare.Pertanto,persvolgereilsuocompitolapompadi calorenecessitadienergia.Nelcasodellepompedicaloredicui trattiamoinquestoarticolo,èimpiegatal’energiaelettrica. All’attodiscegliereunapompadicaloreperilriscaldamentoè opportunoanalizzareconattenzionealcunedellesuecaratteristichetecniche.Innanzitutto,lapotenzatermicasviluppata deveesserecompatibileconquelladeilocalidariscaldare.In secondoluogo,aparitàdipotenzatermica,duemacchinediversepossonoessereconfrontatesullabasedellaloroefficienza.

Comeperogniapparecchiatura,l’efficienzaèdefinitadalrapportotral’effettoutileottenuto,cioèl’energiatermicafornita all’impiantodiriscaldamento,el’energiachedeveesserespesa perottenerequell’effettoutile.Nelnostrocaso,l’energiaspesa corrisponderàall’energiaelettricaconsumata.Ilcostruttore dellapompadicaloreesprimeillivellodiefficienzadellamacchinaconilparametroCOP(CoefficientOfPerformance)omediantel’EER(EnergyEfficiencyRatio).Unapompadicalorecon COPparia4saràingradodifornireunaquantitàdienergia termicapariaquattrovoltel’energiaelettricaconsumata.

Dalpuntodivistaeconomico,considerandoilsolocostodell’investimentoperacquistareilgeneratoredicalore,potrebbe sembrareforsepiùconvenienteriscaldareconunaresistenza elettrica.Maquestavalutazionesicapovolgeimmediatamente sesiconsiderailcostodigestionelegatoall’acquistodell’energia.Infatti,nelcasodellaresistenza,perogniunitàdi energiatermicaprodottaènecessarioimpiegareun’unitàdi energiaelettrica.Pertanto,questosistemadiriscaldamentoè quattrovoltepiùsvantaggiosorispettoadunapompadicalore conCOPparia4conilrisultatoche,inbrevissimotempo,èrecuperataladifferenzadelcostoinizialeavantaggiodell’utente chehasceltolapompadicalore.

Qualepompadicalore utilizzare?

Lepompedicaloreelettrichedisponibilisulmercatosidifferenzianoprincipalmenteperiltipodisorgentedacuiassorbono eacuicedonoilcalore.

Sichiamanoidronichelemacchinechecedonoilcaloreall’acquaepertantosonoadatteadesserecollegateadunsistema chepuòessere,adesempio,unimpiantoradianteapavimento, oaradiatori,oaventilconvettori.

Perquantoriguardainvecelasorgentedallaqualevieneprele-

Pompadicalore geotermica conscambiatore orizzontale

(Fonte:GeothermS.r.l.).

vatal’energiatermica,èpossibileutilizzareunamacchinache assorbeilcaloredall’aria,dall’acquaodalterrenopresentiall’esternodell’edificioriscaldato.Nelprimocasositratteràdi unapompadicalorearia/acqua,nelsecondocasodiunadel tipoacqua/acqua,enelterzocasodiunaterreno/acqua.

Pereffettuarelasceltapiùappropriataènecessariovalutare accuratamentemoltifattori,edèimpossibileprescinderedall’aiutodiunprofessionista.Indicativamente,èpossibileaffermarecheiprincipaliaspettidaprendereinconsiderazionesono legatiallecaratteristichedell’ambienteesterno,alleparticolari normevigentinelluogodiinstallazione,allecaratteristichedell’impiantodaalimentareedell’edificiodariscaldare.Inoltre,è necessarioeffettuareuncorrettobilanciotraicostiinizialiedi beneficiottenibiliinterminidimonetizzazionedelrisparmio energeticoconseguibile.Lecaratteristichedell’ambiente esternosonodaintendersiinterminidicondizioniclimatiche chesipresentanonell’arcodell’anno,dicaratteristichedelterreno,edell’eventualedisponibilitàdifalded’acquafacilmente raggiungibili.

Lemacchinearia/acquasonogeneralmentepiùeconomicherispettoaquelledialtrotipo.Essesfruttanocomesorgentel’aria esterna,cheèsempredisponibilemaèsoggettaafortivariazioniditemperaturaanchenell’arcodiunastessagiornata,e cheinfluenzanol’efficienzadellapompadicalore.Lemacchine piùmoderne,dotatediinverter,riesconoaregolareinmodoefficacelapotenzaerogataesonomenosensibilialleoscillazioni dellatemperaturaesternarispettoalleprimepompedicaloread aria,cheneeranosprovviste.

Unapompadicalorearia/acquacostituitadaun’unitàesterna

edunainterna,odaunsistemamonoblocco(vedifig.pag.71), puòessereilgeneratoredicaloreadattoancheperunappartamento,visteledimensionicontenuteeivaloridipotenzadisponibiliincommercio,perfettamentecombatibiliconle esigenzetermichediedificidiqualsiasidimensione.

L’acquadisuperficieodifaldaèun’alternativainteressanterispettoall’ariacomesorgenteesternainquantositrova,soprattuttonelcasodiunafalda,adunatemperaturapiùstabile nell’arcodell’anno.Gliimpianticheutilizzanoquestasoluzione sonogeneralmentesoggettiall’ottenimentodiautorizzazioniche hannol’obiettivodiproteggerel’ambientedauneventualeinquinamento,ancheditipotermico.Ilcostodiungeneratoredi questotipoègeneralmentepiùelevatorispettoaquellodiuna macchinaaria/acquaperlamaggiorecomplessitàimpiantisticaedipendedalleoperenecessarieperlacaptazionedelcaloredall’acqua.Pertanto,èmoltoimportanteeffettuare un’analisicosti/beneficiperverificarequandoilguadagnoin terminidiminoricostidigestioneconseguentiadun’efficienza stagionalemaggioreriesceabilanciareilmaggiorinvestimento iniziale.

Lepompedicaloredeltipoterreno/acquasfruttanolacapacità termicadelterreno,cheaccumulacaloredurantelastagione estivaemantieneunatemperaturapressochécostantedurante l’inverno,soprattuttoall’aumentaredellaprofondità. L’energiatermicavieneprelevatadalterrenopermezzodiuno scambiatoredicalorechepuòessereditipoorizzontale(vedi immagineinalto),costituitodatubazioniinmaterialeplastico interrateaunaprofonditàvariabileda0,8ma1,5m,oppure verticale(vedifigg.apag.74).Inquestocasoloscambiatore

puòessererealizzatomedianteperforazionididiametrovariabiletra100e150mmincuivengonoinseriteletubazioni (sondegeotermiche),ancheinquestocasorealizzateinmaterialeplastico.Leperforazionivengonosigillateconprodottispecificialfinedipreservarelefaldeacquifereemassimizzarelo scambiotermico.

Inognicaso,neitubichecostituisconoloscambiatoreviene fattocircolareunfluidocompostodaacquaeantigeloche,attraversouncollettoreacuisonocollegateletubazioni,vieneinviatoallapompadicalore.

Anchenelcasodiquestisistemi,ilcorrettodimensionamentoed un’accuratavalutazioneeconomicasonofondamentali:una parteimportantedelcostodell’impiantoèinfattideterminata dalledimensionidelloscambiatoreinterratoequestoparametrodipendedalledispersionitermichedell’edificiodariscaldare.

Un’ulterioretipologiadiscambiatoregeotermicoèquellocompatto,chenecessitadipochedecinedimetridiscavoepuòessereconvenientementeutilizzatonelcasodigiardinidipiccole dimensioni.Loscambiatoreègeneralmentecostituitodamoduliposizionatiacircaunmetrodallasuperficie.Isingolimodulivengonocollegatil’unoall’altromediantegiuntimeccanici osaldati(vediimmaginepag.75,inbassoadestra). Sonoanchedisponibilipompedicaloregeotermicheadespansionediretta.Inquestocaso,loscambiatoreorizzontaleèposizionatoaldisottodellasuperficiedelgiardinoaduna profonditàdicirca0,8m,edècostituitodatubazioniinrame rivestitedaunostratoprotettivodipolietilene.

Inquestitubicircola,anzichélamisceladiacquaeglicole,lo

stessofluidofrigorigenochepassanelcompressoreall’interno dellapompadicalore.Pertantononènecessarioloscambiatore dicaloreintermediocheèinvecepresenteneglialtritipidi pompedicalorefinoraillustrati(vediimmaginiapag.75,in alto).

Inalcunicasiquestosistemaèeconomicamentepiùconvenienterispettoadunapompadicaloregeotermicaascambiatoreorizzontaledeltipodescrittoprecedentemente.Ènecessario disporrediunasuperficieadibitaagiardino,espostaalsolein estate,diestensionepariaquelladeilocalidariscaldare. Generalmente,lepompedicaloreoggidisponibiliperilriscaldamentodegliambientidomesticiconsentonoanchelaproduzionedell’acquacaldasanitaria,espessosonointegrabilicon unimpiantosolaretermicochepermetteanchelosfruttamento dell’energiasolare.Ilvantaggiodiquestacombinazioneèlegatosoprattuttoallapossibilitàdiridurrel’impiegodellapompa dicalorepersoddisfarelerichiestelegateagliusisanitari(vedi disegnoapag.76).

Lapompadicalore negliimpiantimoderni

L’ideachestaallabasedellapompadicaloreètutt’altrocherecente:larealizzazionedeiprimiciclifrigoriferirisaleinfattial XIXsecolo,ancheselepompedicaloreperilriscaldamento degliambientiiniziaronoadiffondersiinmodosignificativodai primianni2000.

Negliultimiannisonostatifattinotevolipassiavantinellaproduzionedeicomponentichecostituisconolamacchina,conla

Asinistra,schema dellamodalità discambiotermico conilterrenoperuno scambiatoregeotermico verticale. 1.collettore;2.terreno; 3.ilcaloreceduto dalterrenoviene raccoltodalletubazioni; 4.tubazionidimandata; 5.tubazionidiritorno alcollettore.

Accanto,pompa dicaloregeotermica conscambiatore verticale(Fonte: GeothermS.r.l.).

Dasinistra:pompa dicaloregeotermica aespansionediretta–unitàinterna(Fonte: Sofath);pompadicalore geotermicaaespansione diretta–scambiatore esterno(Fonte:Gheo S.r.l.).

conseguenzadiunmiglioramentoconsiderevoledell’affidabilitàdiquestosistemadiriscaldamento.Inoltre,lenormativedi recenteemanateanchedallostatoitalianoalfinediminuirei consuminelriscaldamentoenelcondizionamentohannofatto sichegliedificisianopiùisolatitermicamente,conilrisultato chelaquantitàdicalorenecessariaperilcomfortènotevolmenteinferiorerispettoaquellarichiestadaedificicostruiti anchesolofinoadieciannifa

Anchel’impiantisticahacompiutounpassoinavantiimportante:moltospessonegliedificinuovigliimpiantiapavimento radiantehannopresoilpostodeitradizionaliradiatori,conil vantaggiodipoterutilizzareacquaabassatemperatura,prodottainmodopiùefficientedallapompadicalore(vediimmaginiapag.76,alcentroeinbasso).

Leprestazionidellamacchinaaumentanocoldiminuiredella differenzaditemperaturafralasorgentefreddaedilfluido caldo,esonoquindipiùelevatequandovieneabbinataconimpiantiabassatemperatura.Èpossibileperò,scegliendounappositotipodipompadicalore,alimentareancheimpiantidi riscaldamentoaradiatori.

Un’ulteriorespintaall’utilizzodellapompadicalorearrivadalla crescentediffusionediimpiantifotovoltaiciperlaproduzione dienergiaelettrica.Conquestisistemièpossibileprodurrein propriol’energiaelettricanecessaria,ottenendoancheunatariffaincentivantedalGestoredeiServiziEnergetici(GSE),che consenteunrapidoammortamentodelcostosostenutoperl’acquistoel’installazionedell’impiantofotovoltaico(vediboxa pag.77).

Lapompadicaloreèdiventatainmolticasiun’alternativain-

Pompadicalore geotermicacon scambiatorecompatto (Fonte:GeothermS.r.l.).

teressanteallatradizionalecaldaiaagasoagasolio. Conuncostodelmetanodi0,8 €/m3,unpoterecalorificodel gasparia9,5kWh/m3,ipotizzandodibruciareilgasconuna caldaiaarendimentounitario,eduncostodelchilowattoraelettricodi0,18 €,l’usodiunapompadicaloreèconvenienterispettoalgeneratoreacombustionequandolaprimahaunCOP maggioredi2,14.Conletecnologieattualmentedisponibilisul mercatoquestacondizioneèfacilmenteraggiungibile. Restadaverificare,alivellodipoliticaenergeticanazionale,la sostenibilitàdiunaconversionesulargascaladelriscaldamentoambientedalgasall’energiaelettrica.

L’usodellepompedicalore negliedificiesistenti

Anchenellaristrutturazionediimpiantitermiciinedificiesistentièpossibileimpiegarelepompedicalore.Lecaratteristichedelgeneratoredovrannoesserecompatibiliconquelle dell’impiantochesaràalimentato.Inparticolare,sel’impianto diriscaldamentoèdeltipoaradiatori,lapompadicaloredovrà produrreacquacaldaadunatemperaturadi70-80°C.Inoltre, sarànecessarioeffettuareun’accuratavalutazionedellapotenzatermicanecessariaperilriscaldamentodell’edificio. Ladiffusionedisoluzioniimpiantistichechevedonol’impiegodi pompedicaloreesonoadatteancheallaristrutturazioneha subitoun’impennatanegliultimianni.Questoèprobabilmente dovutoancheallesemprepiùnumeroseinstallazionidiimpianti fotovoltaicisuitettidegliedifici,edallapresenzadiincentivifiscaliperlariqualificazioneenergeticadiedificiesistentiriscaldati.Infatti,finoal31dicembre2012la“Legge Finanziaria”consenteladetrazionedalleimposteIRPEFdel 55%dellespesesostenuteperuninterventodisostituzionedi ungeneratoredicaloreesistenteconunapompadicaloreall’internodiunedificioprecedentementegiàdotatodiimpianto diriscaldamento.LecondizioniperpoterusufruirediquestoincentivofiscalesonoriportateneidocumentichedannoattuazioneallaLeggeFinanziariaenelDM19febbraio2007.In particolare,ènecessariochelapompadicaloreabbiaun’efficienzaalmenopariaquellariportatanegliallegatialdecreto stesso.Ilrisparmioenergeticoconseguenteall’utilizzodiungeneratoreefficiente,unitoall’incentivofiscalefasichel’investimentonellariqualificazioneenergeticasiaoggiunodegli impieghipiùredditizidelcapitale.

Asinistra,integrazione diimpiantosolare termicoepompa dicalorearia/acqua (Fonte:RotexGmbH).

Asinistra,dueimmagini diimpiantiradianti apavimento. Alcentro,Condominio LeonardoaVerona (archh.M.Rossaro, M.Vanella);sotto,Casa aVandoies-BZ(arch. MartinStauder).

Taletipodidistribuzione delcaloreè generalmentealimentato conacquaabassa temperaturachepuò essereprodotta daunapompadicalore.

Unesempiodiimpiantodiriscaldamento adacquaalimentatoconpompadicaloreelettrica

Nellafigurasottostanteèrappresentatoloschemadiprincipiodell’impiantodiriscaldamentoeproduzionediacquacaldasanitariarealizzatonelnuovoCentrodiAggregazione GiovaniledelComunediRagogna(UD)acuifannoriferimentolefotografiediquestapagina. Ilfluidotermovettorecircolantenell’impiantoèriscaldatodaunapompadicaloreelettrica deltipoaria/acquaconregolazioneadinverter.Ilcalorevieneprelevatodall’ambiente esternomediantel’unitàesterna(1) eportatoall’unitàinterna(2) checontieneanchegli organidisicurezzaedicircolazioneperilfunzionamentodelcircuitoprimariodiriscaldamento.Iterminalidiemissionedelcaloreneilocalidell’edificiosono pannelliradiantiapavimento(3),costituitidatubazioniinmaterialeplasticoannegateinunmassettodi calcestruzzoeisolatetermicamenteversoilbasso.Lasuperficiecomplessivadell’impianto radianteèdicirca230m2.Lapompadicalorehaunapotenzatermicanominaledi16kW efornisceenergiaancheaun accumulatore(4) dellacapacitàdi500litri,incuièimmerso unoscambiatoredicalorechevieneutilizzatoperlaproduzionerapidadiacquacaldasanitaria.Questomododiprodurrel’acquacaldaperusisanitariconsentedievitarel’accumulodell’acquaperlunghiperiodi,conilconseguentevantaggiodinonrichiedereciclidi igienizzazionedell’accumulatore.Ledimensionidelloscambiatoredicaloreimmersonel fluidocontenutonell’accumulatoresonotalidagarantirelafornituradiacquacaldari-

chiestadall’utenza.L’accumulatoreèpredispostoperilcollegamentoaunimpiantosolaretermicodicuièprevistal’installazione.Questoincrementeràulteriormentel’efficienza energeticacomplessivadelsistemaimpiantisticoequindi anchedell’edificio.

L’energiaelettricanecessariaalfunzionamentodellapompadi caloreèprodottadaun impiantofotovoltaico(5) compostoda 66pannelli,perunapotenzadipiccocomplessivaparia15,18 kW.L’impiantofotovoltaicoècollegatoalla reteelettricanazionaleinregimediscambiosulposto(6)

L’energiaelettricaprodottaalimentaancheunimpiantodiventilazionemeccanicacontrollataconrecuperodicalore,checonsentedielevareulteriormentel’efficienzaenergeticariducendo ledispersioniperventilazione.

Sopra,ilnuovoCentro diAggregazioneGiovaniledelComune diRagogna(UD). L’edificioèriscaldato interamentecon unimpiantoradiante apavimento,alimentato daunapompadicalore aria/acqua.L’energia elettricaèprodotta medianteunimpianto fotovoltaico.

Progettoarchitettonico: arch.MichelaCompassi

Progettoimpiantistico: ing.LucaCeccotti

Alcentro,vistadell’unità esternadellapompa dicalore.

Adestra,vista dell’impianto fotovoltaico.

Adestra,schema dell’impiantoapompa dicaloredelCentro diAggregazione GiovaniledelComune diRagogna(UD).

sistemi_pompedicalore

POMPADICALOREARIA-ACQUA

Sherpa

riscaldamento,raffrescamento,produzioneACS

Descrizione. Lapompadicalorearia-acquaSherpa,compatta,efficienteecompostadaduemoduli(ilmoduloidronico internoeilmotorecondensanteesterno)gestisceilriscaldamento,ilraffrescamentoelaproduzionediacquacaldasanitariafinoa60°C.PerognikWconsumatodienergiaelettrica, Sherpaèingradodiprodurre4kWdienergiatermicaeciòsignificacheil75%dell’energiaègratuita,rinnovabileepulita. Lamacchinaoperaconlagestionedellecurveclimatiche,una perilraffreddamentoeunaperilriscaldamento,variandola temperaturadell’impiantoinfunzionedellecondizioniclimaticheesterneeadeguandol’apportodicalorealfabbisognotermicodell’edificioalfinedimassimizzareilrisparmioenergetico.

Unsistemadicontrollo,estremamenteflessibileeconfigurabileattraversoilpannellofrontale,asecondadellastagionee dellarichiestadicaricotermico,regolalefrequenzedelmotore sullabasedelladifferenzatratemperaturadell’ambiente esternoetemperaturadimandatadell’acqua.

Sherpa,graziealleridottedimensioni,èlaprimapompadicaloreaincassoconvalvola3wperACSintegrata,chepuòessere inseritaneipensilistandarddacucinaminimizzandogliingombriestetici.

Componenti. SherpaèilcuoreeilmotorediHIS,unnuovosistemaaenergiarinnovabileutilepergestirelaclimatizzazione elaproduzionediacquacaldasanitariainunedificioresidenziale.Lapompadicalorevienequindiabbinataaventilradia-

_DatitecniciSherpa7__________

Dimensioniunitàinterna(lxhxp) 500x810x296mm

Peso(standard)unitàinterna 36kg

Dimensioniunitàesterna(lxhxp) 842x695x324mm

Peso(standard)unitàesterna 61kg

Capacitàtermicariscaldamento* 6,5kW COP 4,12

Capacitàtermicaraffreddamento** 6,8kW

E.E.R. 3,9

Rumorositàunitàinterna

Pressionesonora 30dB(A)

Potenzasonora 41dB(A)

Rumorositàunitàesterna

Pressionesonora 51/52dB(A)

Potenzasonora 65/65dB(A)

*Temperaturaacquauscita35°C-Temperaturaariaesterna7°C

**Temperaturaacquauscita18°C-Temperaturaariaesterna35°C

toriinverterconpannelloradiante,ingradodifunzionarea bassatemperatura,diriscaldareperirraggiamentoeraffrescareedeumidificareperventilazione;iventilradiatoriconsentonoallapompadicaloredilavorarecontemperaturepiùbasse ediconseguenzaconefficienzedifunzionamentopiùalteecon unrisparmioenergeticodel10%.Questatecnologiaradiante permettedimantenerelatemperaturaambientesenzaconsumo elettricoesenzarumore,costituisce,vistolospessorerisottodi 12,9cm,unelementodiarredoperlesueformeeperlascocca inmetalloealluminio.

POMPADICALOREARIA-ACQUA

riscaldamento,raffrescamento,produzioneACS

Descrizione. L’abbreviazioneHPSUderivadaHeatPumpSolar Unit,unsistemainpompadicaloreabbinabiledirettamenteai pannellisolari,chetrasformaincalorel’energiasolareinesauribileegratuitautilealriscaldamento:questoèilprincipioche caratterizzalaHPSU(sistemasolareinpompadicalore).Ilsistemaècompostodadueunità,unainternaeunaesterna. L’unitàinterna,oltrechedaunimpiantosolare,puòesserecoadiuvataanchedaaltrigeneratoritermici,qualicaldaieagasolioeagas,caldaieapelletocaminetticonscambiatoridicalore mediantefacilicollegamenti.Inquestomodolapompadicalore puòesseretrasformatarapidamenteinunacentraleibrida. L’unitàesternapermettediriscaldaregliambienti,traendodall’ariaambienteilcalorechevienepoiacquisitodalfluidotermovettorerefrigeranteetrasferitoall’ariainterna.Ilriscaldamento siattuaattraversolasuperficieradiantedelpavimento.

Lapompadicaloreutilizzalatecnologiainverterpermettendo diregolarelavelocitàdirotazionedelcompressore,chedeterminal’efficienzadellapompa,infunzionedelcaricotermico.Il sistemadiregolazione,postoall’internodell’unitàcompatta,è digitaleedifacileutilizzo.

Componenti. HPSUcompactintegrainunospazioridottissimo l’unitàinternadellapompadicaloreeilbollitoreastratifica-

DAIKINROTEX www.rotexitalia.it

zionesolare.HPSUcompact308occupaunasuperficiedibase disoli59x61cm,riunendoin0,36m2 l’interoimpiantodiriscaldamentoelaproduzionediacquacaldasanitaria.Vistoil ridottoingombro,lamacchinavieneutilizzatanonsolonelle nuoveedificazioni,maanchenelrecuperodelpatrimonioedilizioesistenteconsentendodimigliorarnelaclasseenergetica.La pompa,abbinataaunpavimentoradianteoalfan-coilHPconvector,assicurasiailriscaldamentocheilraffrescamento. Vantaggi. HPSUconsentediriscaldareeraffrescaretramite regolazioneelettronicadellatemperaturaambienteconprogrammiorarieconregolazionepersonalizzabiledellamandata. L’unitàèsilenziosaecompattaedèparticolarmenteefficiente grazieallafunzioneinterlinkchepermettelacomunicazionedirettatral’HPconvectorelapompadicaloreHPSU.

HPSUcompactunitàinterna6-8kW

Dimensioniesterne(lxhxp) 1810x615x595mm; Peso 94kg

HPSUcompactunitàesterna6kW

Dimensioniesterne(lxhxp) 735x825x300mm; Peso 57kg

Potenzariscaldantenominale(A7/W35) 6,1kW

COPnominale(A7/W35) 4,6

Potenzaraffrescantenominale(A7/W18) 5,1kW

Alimentazionefase 1~,230V,50Hz

Quantitàmezzorefrigerante(consegnato) 1,7kg

Pressionesonorariscaldamento(a10mdidistanza) 28dB(A)

Pressionesonoraraffrescamento(a10mdidistanza) 28dB(A)

Temperaturaesternaperriscaldamento -20°C/25°C

Temperaturaesternaperraffrescamento 10°C/43°C

TemperaturaesternaperACS -20°C/43°C

sistemi_pompedicalore

POMPADICALOREARIA-ACQUA

AcquainverterWRHC08001HCS riscaldamento,raffrescamento,produzioneACS

Descrizione. Acquainverterèunapompadicaloreinverterdi tiposplit-systemcheproduceacquacaldafinoa50°Cperil bagnoeilriscaldamentoanchecontemperatureesternedi-15 °Ceacquarefrigerataperilcondizionamentoda5a20°C. Unimpiantointegratoadalimentazioneelettricachesostituisce latradizionalecaldaiadomesticaeilcondizionatorerispondendoatutteleesigenzedicomfortsiaperambientifamiliari siaperambienticommercialisenzal’utilizzodicombustibili fossili.

Disponibileinunagammacompletadimodelli(finoa32combinazionipossibili),Acquainverterpuòessereutilizzatosiain progettidinuovarealizzazionesiainedificiristrutturati,con possibilitàdisoluzioniimpiantistichepersonalizzategraziealla consulenzaqualificatadeitecniciECATechnology,cheaiutano iprogettistiaindividuarelaconfigurazioneottimaleperogni installazione.

Inoltrenell’homepagedelsitoECATechnologyèadisposizione unsemplicesoftwareperlaconfigurazionedell’impiantoper scoprirel’Acquainverterchesiadattameglioall’esigenzediciascuncliente.

Acquainverterpuòessereintegratoconunimpiantofotovoltaico esolaretermicoingradodimassimizzarel’efficienzadelsistemaeilrisparmiopossibile,finoarealizzarelacompletaautonomiaenergeticadellacasa.

Componenti. AcquainvertermodelloWRHC08001HCSècompostodaun’unitàidronicamonobloccoconboilerintegratoda 150lto200lteununitàesternaDcinverter.

Ilbollitoreadaltastratificazionesituatoall’internodell’unità idronicaassicura,unavoltaaregime,l’erogazionecontinuadi acquacaldafinoall’80%dellacapacitàmassimadellostesso, mentrelatecnologiaDCHybridinvertergarantisceilcontrollo digitalesullapotenzatermicafornitadall’unitàinmododarenderepossibilel’adattamentodellacapacitàdiraffreddamento oriscaldamentoallerealicondizionioperativerichieste. L’interfacciadelpannellodicontrolloèstataprogettatainfunzionedellamassimafacilitàdiutilizzo,riducendolaprogrammazionediAcquainverterapochisemplicicomandi.

LagammaAcquainvertermonobloccosicompletaconilmodelloWRHC16004HCScheraggiungeunapotenzatermicanominaledi19,40kWinabbinamentoadueunitàesterne.

Dimensioniesterne(lxhxp) 705x1800x505mm

Potenzatermicanominale 9,70kW

COPapienoregime 3,88W/W

Assorbimentoelettriconominale(min-max) 0,80÷2,15kW

Potenzafrigoriferanominale 6,10kW

EERapienoregime 2,65W/W

Livellopressionesonora 57dB(A)

ECATECHNOLOGY www.ecatech.it

Descrizione. LanuovagammaMiraisipresentaconpotenza frigoriferanominaleda4a16kW.Atuttiimodellisonoabbinabilivariaccessoritracuilavalvolaa3vieperlaproduzione diacquaadusosanitario.Lacompattezzadelledimensioniela completezzadifunzioni–icomponentidell’impiantotermico, qualicircolatore,vasodiespansioneestrumentiperilcontrollo dellatemperatura,sonogiàintegratiall’internodellamacchina –nefannounsistemafaciledainstallare:èsufficientecollegareletubazioniidraulicheall’impianto.All’internodellafamigliaMirai,EmmetipresentainoltreSMIcheaivantaggidelle pompedicaloreInverterdellastessagammaaggiungeunsistemaditermoregolazioneambientecapacedigestiresistemi diriscaldamentoeraffrescamentoradianteel’interosistema

_Datitecnici__________

EH0611-DCconpannelliradianti

Dimensioniesterne(lxhxp) 908x821x350mm

Peso 61kg

Potenzatermicanominale* 5,80kW

COP* 4,20

Potenzaassorbita* 1,38kW

Potenzasonora* 62dB(A)

Potenzafrigoriferanominale** 7,00kW

Potenzaassorbita** 1,91kW

EERNominale** 3,66

ESSER 4,60

*TemperaturaAcqua30/35°CAria7°C

**TemperauraAcqua18/23°CAria35°C

EMMETI www.emmeti.com

POMPADICALOREARIA-ACQUA

riscaldamento,raffrescamento

direttamentedalcontrolloredellamacchina.Intalmodoviene aumentatal’efficienzadellamacchinaesemplificatoillavoro diinstallazionesiaidraulicocheelettrico.Infine,essendola gammaMiraidedicataalresidenziale,latipologiadialimentazioneelettricaediconsumiridotti,larendonocompatibilecon lenormalicondizionidifornituraelettricaprevistedalgestore. Vantaggi. Lafacilitàd’installazioneelaversatilitàdellamacchinachepuòoperarecontemperatureesternefinoa-20°Ce presentaunampioranged’impostazionedellatemperaturedi mandatadell’acqua(finoa60°C),larendonoidoneaallediversetipologied’impianto:sistemiradianti(riscaldanti/raffrescanti),unitàterminaliadaria(cassetteoventilconvettori), radiatoriabassatemperatura.Miraiinglobatuttiivantaggitipicidellarealizzazionediunimpiantotermicoconpompedicalore:lapossibilitàdiraffrescareeriscaldaregliambienticon un'unicaunità;maggioraffidabilitàdelprodottoneltempo;rispettodell’ambienteafrontedell’eliminazionetotaledelleemissionidirettediCO 2;assenzadioneripermanutenzione ordinaria,realizzazioned’impiantidiadduzionedelgas,discaricodeiprodottidicombustioneediconseguenzamaggiorsicurezza.

approfondimenti_dettaglidicantiere

NATURRESIDENCE DAHOAM Scena(BZ)

progettazione

ManuelBenedikter realizzazione 2009-2010

efficienzacomplessiva -24,27kWh/m2 anno fotografie

StudioBenedikter

www.dahoam.it

Involucroeaperturevetrate:nell’ultimoappuntamento dedicatoaquestoprogettofocalizziamol’attenzione sulraccordoserramento-sistemaacappotto, nodorilevanteperlariduzionedelledispersionienergetiche.

Serramenticonprestazionidacasapassivaposaticonscarsaattenzioneecuraportano l’edificioaperdereenergiaattraversolefessurecheinevitabilmentesicreano,provocando danniall’involucro.Perrealizzareedificiabassissimoconsumoenergetico,oaemissioni zero,èindispensabilenonsoloscegliereconcurailserramentopiùadatto,maancheprevedernelacorrettainstallazione,attraversounaprecisaeconsapevoledirezionedeilavori ingradodimettereafruttol’effettodell’isolamentoottenutodallacontinuitàdellacoibentazionedell’involucroedaiserramentiperformanti.

Oltreaciò,èindispensabileunaprotezioneestivadelleaperturevetrate,moltospessotrascurata,tuttaviamoltoimportantenellapianificazionediunaCasaClimaGold odiunaPassivhaus.Inparticolare,inquestoedificiosonostateusatedellevenezianeperlevetratee degliscorrevoliperibalconi;oltreaciò,aovesteasudlagrandesporgenzadelbalcone creaunaprotezionestaticaaggiuntivacontrol’irraggiamento.

CAPPOTTOEFALSOTELAIO

Ilfalsotelaioinlegno posatosututtiequattroilatidellaportafinestradeterminailtagliotermicotrapareteecappottoeaiutaagarantirelatenutaall’aria.Versol’internoquestaèdatadaunnastro, accoppiatoaunarete eapplicatoalfalsotelaio,chevienesuccessivamenteannegatonell’intonaco.Sullatoesternolatenutaal ventoealleintemperieèinveceraggiuntaconl’utilizzodiunangolare inPVCconreteporta-intonacotermosaldata .L’angolareinPVC faanchedariferimentopergliintonacatori.Nellafoto sivedonoi duetipidiisolantiutilizzatiperlazoccolatura(XPS)el’elevazionedel cappotto(EPScongrafite).

FALSOTELAIOETENUTA ALL’ARIA

Ilfalsotelaioinlegnodellaportafinestraèprogettatopernonpermettereilpassaggiodiariatraesternoeinterno.

Nellefoto èstatoeseguitol’intonacointernoelarasaturadelcappottoesterno.Èindispensabileeseguireancheunacostipaturatrala muraturaeilfalsotelaiopermigliorarelatenutatermoacusticadel serramento

Fondamentalel’ombreggiamentodelleaperturedellacasa.Nellafotografia èevidenziatoilcassonettototalmenteesternocheaccoglie letendefrangisolemotorizzate.

FALSOTELAIOECASSONETTI

Inpresenzadicassonettièfondamentaleassicurareunabuonacontinuitàdell’isolanteesternoelatenutaall’ariadellapartesuperioredel falsotelaio .Ilcassonettoesternoperlatendafrangisole,lacui aperturaperlamanutenzioneècompletamenteesterna ,èposato sulcappottoesterno;èevidentelospessoredell’isolantetraillato esternodelserramentoeilcassonettocheassicuralacontinuitàdella coibentazione,oltre cheunbuonrisultatoestetico

innovAzione_ilbilancioenergeticodiunNZEB

AnnamariaBelleri,RobertoLollini, IstitutoperleEnergieRinnovabili,EURACResearch

A SCUOLADI NET ZEBS

Monitoraggiodelbilancioenergetico

diunedificioNetZero

Ladirettiva2010/31/UE1 introduceunnuovotargetprestazionalepergliedifici,sianuovicheesistenti:ilpareggio(oquasi) dibilanciotraenergiautilizzata,oimportatadallarete,edenergiaprodotta,oesportataallarete.Ladirettivadàperòunadefinizionesoltantoqualitativaditalebilancio,lasciandoil compitoagliStatiMembrididareunadefinizionequantitativa fissandol’unitàdimisuradelbilancioeifattoridiconversione, gliusienergeticielefontidiapprovvigionamentodatenerein considerazionesullabasedelcontestonazionale2

LeattivitàdelTask40/Annex52“TowardsNetZeroEnergySolar Buildings”dell’AgenziaInternazionaleperl’Energia,cuiEURAC partecipa,intendonosviluppareunacomprensionecomune delladefinizionediNetZEBefornireunsupportoscientificoper guidarelesceltecheverrannointrodotteneiquadrilegislativi nazionali,evidenziandoleimplicazionisullesoluzioniprogettualieleattivitàeconomichecorrelate,nonchésull’efficacia delprovvedimentostesso.

LepossibiliaccezionidiNetZEBsonostatetradotteinmetodologiedicalcoloesonostatisviluppatistrumentiperlavalutazioneelacomparazionedidiversedefinizionidiNetZeroEnergy Building.IlbilanciodellascuoladiLaionèstatocalcolatosulla baseditrediversepossibilidefinizionidiNetZEB.

LascuoladiLaion:uncaso italianodiNetZEB

Anticipandoleprescrizionidelladirettiva2010/31/CE,secondo cuidal2019tuttigliedificipubblicidinuovacostruzionedovrannoessereaenergiazeroo“quasizero”,lascuoladiLaion (BZ)èunofraiprimiedificiitalianiarivendicarequestotitolo guadagnandosiunaposizionealivellointernazionalecomecaso

studioperilprogettodiricercaTask40/Annex52“TowardsNet ZeroEnergySolarBuildings”3 Lascuola,costruitanel2006eprogettatadallostudioarch.tv Trojer|Vonmetz|Architekten4,sidistingueperlasintesitraintegrazionenelpaesaggioeconcettoenergetico.

Lasuperficieutiledell’edificio,paria625m2,ospitaquattro auledidattiche,unlaboratorioeunasalapolifunzionalecheaccolgono40studenti.L’edificiohaformacompattaedèdisposto suduepiani:ilpianoseminterrato,arretratoerealizzatoinpietrasiunisceconilpianoterra,sporgentelungotuttoilperimetro.L’internoècaratterizzatodaunatriospazioso,illuminato daunlucernario,checollegaiduepiani.

Ilricorsoasoluzionipassiveperl’involucrohapermessodiridurreiconsumienergeticiinmanierataledapoterlicompensareconsistemiintegratidigenerazionedienergiadafonti rinnovabili,garantendoalcontempoilbenessereeilcomfort degliutenti.

Laformacompattadell’edificio,conunrapportoS/V=0,53m-1, minimizzalesuperficidisperdenti.L’involucro,datol’utilizzo prevalentenelperiodoinvernale,èstatocompletamenteisolato con20cmdipannellidischiumaminerale,trannecheincopertura,dovesonostatiapplicatipannelliinfibradilegnodi24 cmdispessore.Latrasmittanzatermicamediadell’involucro opacoèdiU=0,23W/m2K.

Permassimizzareiguadagnisolarieilluminarenaturalmente gliambientiinterni,ampievetratesonostaterealizzatesullato orientatoasud.ItriplivetririempiticongasArgoneitelaiin rovere,conunatrasmittanzatermicadi0,78W/m2K,garantisconoelevateprestazionidell’involucrotrasparente.

Laventilazionemeccanicacontrollataassicuraelevataqualità dell’ariaecomfortperglistudenti,mentreilpreriscaldamento

L’AccademiaEuropea diBolzano(EURAC) èuncentrodiricerca ediformazione, alcuiinternol’Istituto perleEnergie Rinnovabiliconduce attivitàdiricerca applicatanelcampo dell’energiasolare (sistemisolaritermici esistemifotovoltaici) edellagestione dell’energianegliedifici, inparticolareedifici abilancioenergetico nulloeretrofit energeticodelle costruzionistoriche.

Tuttiigraficieletabelle delleseguentipaginesono diproprietàdell’EURAC,mentre fotografieepiantedellascuola sonostatefornitedallostudio arch.tv(Trojer-Vonmetz Architetti)diTerlano(BZ).

geotermicoeunoscambiatorearia-ariaperilrecuperodelcaloreassicuranoottimeperformancesenergetiche.

L’ermeticitàdell’involucroèstatatestataattraversoilBlower DoorTestconunvaloren50=0.49h-1 inferiorealvalorerichiestoperunedificiopassivoparian50=0.60h-1 Grazieaquestesoluzioni,l’edificiorispondeaicriteridellacasa passivaedèstatocertificatocomeCasaClimaOroplus conun fabbisognoenergeticoperriscaldamentoinferiorea10 kWh/m2anno.

Unapompadicaloregeotermica(COP=4,5),operantecontre sondeprofonde50m,assistelaproduzionedeicollettorisolari termiciinstallatiinfacciata(18m2).Duranteilperiodoestivo, laproduzionedeicollettorisolarièutilizzataperrigenerareil terrenoinvistadelperiodoinvernale.Percoprirelarichiesta elettricadellapompadicalore,dellaventilazionemeccanicae delrestodeiconsumidell’edificio,unimpiantofotovoltaicodi 17kWpèintegratoincopertura.

CongliEnertourorganizzatidalTISinnovationpark5 èpossibile visitarelascuoladiLaionperconosceredavicinoletecnologie impiegateelestrategieenergeticheadottate(veditabella1a pag.90).

Fabbisognodiriscaldamento Fabbisognodiacquacaldasanitaria Consumielettricidellapompadicalore Consumiapparecchiatureelettriche Produzioneimpiantofotovoltaico

6.477kWh/m2anno

4.658kWh/m2anno

4.627kWh/m2anno

1.063kWh/m2anno

16.471kWh/m2anno

Tabella1.Risultatidellesimulazionicondotteinfasediprogetto conisoftwarePHPP(fabbisognieconsumi)econRetScreen (produzionedaimpiantofotovoltaico)6 perlascuoladiLaion.

Questionedibilancio

Lametodologiasviluppataperilcalcolodelbilancioprevede perognivettoreenergeticoiningressoeinuscitadall’edificio laconversioneattraversoopportunifattoridipesatura7.Ilbilancioèdatodalladifferenzatralasommadeivettorienergeticiesportati,convertitiinun’unicaunitàdimisura,elasomma deivettorienergeticiimportati,anch’essiconvertitinellastessa unitàdimisura.

∑iei we,i – ∑idi wd,i =E –D≥0 i=vettoreenergetico(elettricità,gas,biomassaecc.) ei =i-esimovettoreenergeticoesportato di =i-esimovettoreenergeticoimportato we,i =fattoredipesoperl’i-esimovettoreenergeticoesportato wd,i =fattoredipesoperl’i-esimovettoreenergeticoimportato E=energiaesportatapesata

D=energiaimportatapesata

Energiaimportataedesportatasonodatichepossonoesserericavatidalsemplicemonitoraggiodegliscambienergeticitraedificioerete.Traleattivitàincorsoall’internodelprogettoIEA-Task 40/Annex52vièanchelosviluppodiunaproceduradimonitoraggioperlaverificadelbilancioedelcomfortnegliedificiNZE.

Èimportantesottolinearechel’energiaesportataversolarete devetenercontodellaporzionediautoconsumodell’energiaprodotta,percuinontuttal’energiachesiproducepuòvenireimmessainrete.Allostessomodonontuttal’energiaconsumata ènecessariamenteimportatadallarete,poichéunapartepuò essereprodottainloco.

Infasediprogettazione,lavalutazione dell’energiaesportatae importatadallaretepuòessereeffettuatasolotramitesimulazionidinamichechepermettonodistimarelaquotadiautoconsumo.Unavoltachel’edificiovienerealizzato,energia generataedenergiaconsumatasonodaticheicomunicontatorisonoingradodifornire.

∑igi we,i – ∑ili wd,i =G –L≥0 i=vettoreenergetico(elettricità,gas,biomassaecc.) gi =generazionedell’i-esimovettoreenergetico li =consumodell’i-esimovettoreenergetico we,i =fattoredipesoperl’i-esimovettoreenergeticogenerato wd,i =fattoredipesoperl’i-esimovettoreenergeticoconsumato G=generazionepesata L=consumopesato

Usienergetici

Energiaimportata dallarete

Infrastruttura energetica Materie prime Energiaesportata dallarete Approvvigionamento energetico

Confini del sistema edificio

Metricadelbilancio efattoridipeso

Bilancio + -

Ladirettiva2010/31/UE imponedivalutare gliedificiinfunzione delbilanciotraquanto l’edificioconsuma oimportadallarete equantol’edificio produceoesporta allarete. Ivettorienergetici rappresentantiiflussi energeticiinentrata einuscitadall’edificio devonoessereconvertiti attraversodeifattori dipeso,dipendenti dall’infrastruttura energeticanazionale edallematerieprime, nell’unitàdimisura incuisidecide dicalcolareilbilancio. Fonte:Sartorietal., 2012.

Europa

OekoinventarefürEnergiesysteme -ETHZürich(1996)

Elettricità

Gasnaturale

Petrolio

Biomassa

PEI

CO2equi.

PEI

CO2equi. PEI

CO2equi. PEI

CO2equi.

3.31kWhepkWhel

617gCO2eqkWhel

1.36kWhepkWhel

277gCO2eqkWhel

1.35kWhepkWhel

330gCO2eqkWhel

1.09kWhepkWhel

14gCO2eqkWhel

Italia

2.18*kWhepkWhel

531**gCO2eqkWhel

1.00kWhepkWhel

1.00***kWhepkWhel

0.00***kWhepkWhel

Tabella2.FattoridiconversioneinenergiaprimariaedemissioniingCO2 equivalenticome definitialivelloeuropeoenazionale.

*AEEGdeliberaEEN3/08

**Ministerodell’ambienteedellatuteladelterritorioedelmare ***UNITS11300

Comegiàanticipato,percalcolareilbilancioinmanieracoerente,energiaimportataedesportataogenerazioneeconsumo diognivettoreenergetico,devonoessereconvertiteinun’unica unitàdimisuraintroducendodeifattoridipesoperognivettore energetico(vedifigurapaginaaccantoetab.2inquestapag.).

Ifattoridiconversionepossonodipenderedalcontestoeconomico-politico-geograficocomelosonoifattoridiconversionein energiaprimariaeinemissionidiCO2,maderivareancheda sceltepolitico-strategiche.

Ilvaloredeifattoridiconversionepuòfortementeinfluenzarele scelteprogettualialivellotecnologico-impiantisticoeripercuotersidiconseguenzasulleattivitàeconomichecorrelateesullo stockedilizio.

Adesempio,ivaloridelfattorediconversioneinenergiaprimariaperl’energiaelettricaindicatineglistandardeuropeie nazionalispingonoversosoluzioniprogettualicheconsentono unapprovvigionamentoenergeticoditipoelettricodafonterinnovabile,talechelaproduzioneeccedaiconsumi,anchedialtri vettorienergetici,ilcuipesoèsolitamenteinferiore.

Sipossonoutilizzarequestistrumentiperfavorirel’autoconsumo,neicasiincuilaretenonpuòesseresovraccaricata,piuttostochefavorirel’esportazionedovelareterichiedeenergia.In questocasosiadotterannofattoridipesoasimmetrici,ovvero fattoridiconversionedivaloridiversiperl’energiaimportata dallareteel’energiaesportataallarete.

LadefinizionediNetZEBdovrebbeespressamenteindicare qualiusienergeticivannoconsideratinelbilancioelalocalizzazionedegliimpiantidiapprovvigionamentoenergeticoedelle risorserinnovabilidacuil’energiaègenerata.Lacombinazione tralocalizzazionedegliimpiantidiapprovvigionamentoenergeticoedellerisorserinnovabilidacuil’energiaègeneratadà luogoadiverseopzionielasceltatraquestedipendedalcontestoeconomico-politico-geografico:

-produzioneonsitedarisorseonsite:l’introduzionediquesta opzionenelladefinizioneincentival’integrazionediimpiantisolariedeolicinell’involucro;

-produzioneonsitedarisorseoffsite:l’introduzionediquestaopzionenelladefinizioneammettesoluzioniconcaldaiaabiomassa; -produzioneoffsitedarisorseoffsite:l’introduzionediquesta opzionenelladefinizioneriducefortementelosforzoarchitettonicoetecnologicodell’edificiointesocomesistemaenergetico conbassifabbisognicopertiinmanieraefficienteilpiùpossi-

Sezioneschematicaconimpianti:

1-impiantofotovoltaicosullafaldasud(potenza:17,7kWp)

2-impiantosolaretermico(18m2)

3-impiantodiventilazionemeccanicacontrollata 4-impiantogeotermicocon3sondeverticalida50massociato apompadicalore

Consumoenergeticoannualedellascuola:9kWh/m2 planimetriaepianoterra

bileconfontienergeticherinnovabili.Casolimiteèquellodelle ZeroCarbonHomebritanniche,doveilterminepositivodelbilanciopuòessererappresentatodadiversesoluzioni(‘allowablesolutions’)fracuiinvestimentinellarealizzazionedi infrastruttureenergeticheinGranBretagnabasatesusistemi abasseozeroemissioni;

-produzioneoffsitedarisorseonsite:l’introduzionediquesta opzionenelladefinizioneammetteanchecasirariincuilabiomassa,oaltrafonterinnovabile,ottenutadascartidilavorazioneoaltro,vieneesportatainimpiantialdifuoridelconfine dell’edificio,chefornisconoenergiaallostesso(vedifiguraa destra).

Bilanciaconfronto

LascuoladiLaionscambiasolounvettoreenergeticoconla rete,ovveroenergiaelettrica.Laproduzioneavvieneon-site(impiantofotovoltaicoincopertura)darisorsereperibilion-site (sole).Laproduzionetermicadeicollettorisolarièconsiderata soltantoindirettamentenelbilanciocomeriduzionedelconsumoperriscaldamentoeacquacaldasanitaria,manoncomparenelterminepositivodelbilancioperchél’edificiononè collegatoaunaretediteleriscaldamentoenonscambiaenergiatermica.Diversitipidifattoridiconversionesonostatiipotizzatiperconfrontareibilanci:

-fattoridiconversionesimmetriciinenergiaprimaria,comeda

standardnazionale;

-fattoridiconversio neasimmetriciinenergiaprimaria,decisi strategicamenteperfavorirel’autoconsumo;

-fattoridiconversioneasimmetriciinenergiaprimaria,decisi strategicamenteperfavorirel’esportazione(veditab.egrafico sottostantenellapaginaaccanto,inalto).

Ifattoriasimmetricipesanodiversamenteunostessovettore energetico,inquestocasol’energiaelettrica,asecondache questosiaimportatooesportato.Questoportaifattoridipesaturaaesserevereepropriesceltestrategiche. Nelcasospecifico,considerandounfattorediconversioneper

Lacombinazione tralocalizzazione degliimpianti diapprovvigionamento energetico elalocalizzazione dellerisorserinnovabili generadiverseopzioni dicuisipuòdisporre perdefinireunedificio NetZeroindipendenza dalcontestoeconomicopolitico-geografico.

Produzione onsite

Fattoridiconversionedell’energiaelettrica simmetriciinenergiaprimaria asimmetriciinenergiaprimaria perfavorirel’autoconsumo asimmetriciinenergiaprimaria perfavorirel’esportazione

importata(wd)

2.18kWhepkWhel

7.63kWhepkWhel

3.27kWhepkWhel

esportata(wd)

2.18kWhepkWhel

2.18kWhepkWhel

6.54kWhepkWhel

Tabella3.Fattoridiconversionedell’energiaelettricautilizzatiperilconfrontodeibilanci.

Fattoridiconversione simmetrici inenergia primaria

Fattoridiconversione asimmetriciin energiaprimaria-autoconsumo fav

Fattoridiconversione asimmetriciin energiaprimaria-esportazionefa

Bilanciodell’edificiosullabasedeidatidiprogettazione econdiversitipidifattoridiconversione.Ilbilanciodell’edificio èrappresentatodaunpuntoaventecomeascissal’energia consumatadall’edificioecomeordinatal’energiagenerata. Entrambeleenergiesonoopportunamentepesateattraverso ifattoridiconversione.Seilpuntorappresentanteilbilancio sitrovasullabisettrice(lineatratteggiataverde),ovvero lagenerazionepesataèugualealconsumopesato,ilbilancio dell’edificioènullo.Seilpuntositrovanellametàdigrafico sopralabisettrice,ilbilancioèpositivo,ovverolagenerazione pesataèsuperiorealconsumopesato.

Viceversa,seipunticadononellametàdigraficosotto labisettrice,ilbilancioènegativo,ovveroilconsumopesato èsuperioreallagenerazionepesata.

l’energiaimportatamaggiorerispettoalfattorediconversione perl’energiaesportata,ilbilanciodellascuoladiLaionènegativoperchél’impiantofotovoltaicononèstatodimensionato sullabasedeiconsumieproducemoltopiùdelnecessario. Considerandoinveceunfattorediconversioneperl’energia esportatamaggiorerispettoalfattorediconversioneperl’energiaimportata,ilbilancioèpositivo.Nelcasofossefissatoun rangedivalorientroilqualeilbilanciodevestareperpotersidefinirenullooquasi,l’edificiopotrebbenonesserepiùdefinito NetZerooNearlyNetZero(vedifigg.pag.94).

Verificadelbilancioinfase diesercizio

Irequisitidiprestazioneenergeticasecondoladirettivaeuropea possonoesserevalutatisiainfasediprogettazionesiadurante l’usodell’edificio(AllegatoI).Finoralosviluppodeisistemidi certificazionedegliedificisièbasatosuidatidiprogettazione. Gliindicatoritipicamenteutilizzatisonoperlopiùespressione dellabontàdell’involucroovalutazionisulconsumodienergia primariarelativamenteausispecificiqualiriscaldamento, acquacaldasanitariaoraffrescamento.

D’altrapartelemisurediefficienzaenergetica,chesifannovia viapiùrestrittive,perrispondereaproblematicheambientali edeconomichesemprepiùpreoccupanti,elosviluppodimeccanismidiincentivazionesemprepiùcomplessipotrebberofar

levasullanecessitàdiverificarelerealiprestazionidiunedificionellafaseoperativa.Questocomporterebbelavalutazione dell’efficaciadellesoluzioniprogettualiimplementatee,ingenerale,anchedellestessestrategiepoliticheadottate,marenderebbenecessarial’installazionediopportunisistemidi monitoraggio.

LascuoladiLaionnonèdotatadiunsistemadimonitoraggio. Scambiandosoltantoilvettoreenergiaelettricaconlareteèfacilededurredalcontoenergialaquantitàdienergiaesportata eimportatadallarete.Ilbilancioannualepuòsubireimportanti variazionidurantelavitadell’edificioenonsemprepuòessere positivo.Perquestoèimportantespecificarenelladefinizione ancheperquantianniilbilanciodeveesserenulloopositivo. Sindalprimoannodioperativitàdell’edificio,lostudiodiIngegneriaBergmeister8 sioccupadellaraccoltadidatisulleprestazionienergetichedell’edificio.

Ilbilancioèstatocalcolatointerminidienergiaprimariapergli anni2006-2010utilizzandofattoridiconversionesimmetricie asimmetrici.Nonessendonel2006ancorainstallatol’impianto fotovoltaico,ilbilancioperquell’annoènegativo.Dallasuainstallazionenel2007,laproduzionedell’impiantofotovoltaicoè rimastaabbastanzacostante,mentreiconsumihannosubito importantioscillazioni(vedifig.paginaaccanto).

L’asimmetriadelbilanciopuòessereunutilestrumentoperfavorirealcunesceltetecnologico-impiantistiche.Poniamoad esempiochesivogliafavorirel’autoconsumodapartedell’edificiodell’energiaprodottainlocodall’impiantofotovoltaicoed evitarechelaretepossaesseresovraccaricatadallasovrapproduzionedell’impianto,prevenendosituazionidiblack-out elettrico.Dalgraficoinfiguradipag.95sinotacomeilbilancioannualecalcolatoconquestotipodifattoridiconversione puònonsemprerisultareverificato.

Sealcontrariosivolessefavorirel’esportazionedell’energia elettricaprodottainlocoperchéipicchidirichiestadell’energiasonoinquellazonamoltofrequenti,sidovràutilizzareun fattorediconversioneperl’energiaesportataallaretesuperiore aquelloperl’energiaimportatadallarete.Nelcasodellascuola diLaionquestoporterebbeaunbilanciodigranlungapositivo eilrequisitodibilancionullopotrebbenonessererispettato,se venissefissataunasogliapositivamassimaentrolaqualeil valoredelbilanciodeveattenersiaffinchél’edificiopossaessere consideratoNetZero.

Datimensilidiproduzioneeconsumielettrici,comecalcolatiinfasediprogettazione. Duranteilperiodoestivolagenerazioneeccededigranlungaiconsumielettricidell’edificio, esportandomoltopiùdiquantoimportadallarete.

Datimensilidiproduzioneeconsumitermici,comecalcolatiinfasediprogettazione. Nonessendol’edificioconnessoadunaretediteleriscaldamento,laproduzioneineccesso nelperiododiutilizzodell’edificiovienestoccata attraversounsistemadiaccumulo, mentrenelperiododellevacanzeestivelaproduzionedeicollettorisolarièutilizzata perrigenerareilterreno.

Riferimentibibliografici

1-EPBDrecast(2010),Directive2010/31/EUoftheEuropeanParliamentand oftheCouncilof19May2010ontheenergyperformanceofbuildings(recast), OfficialJournaloftheEuropeanUnion,18/06/2010.

2-NapolitanoA.,LolliniR.,BelleriA., ImplicazioniprogettualiperdiverseaccezionidiNearlyZeroEnergyBuilding,AICARR.-SAIE-Bologna,2011.

3-http://www.iea-shc.org/task40/

4-http://www.archtv.net/

5-http://www.enertour.bz.it/it

6-TroiA.,AvesaniS.,NapolitanoA.,VonmetzJ.,BergmeisterM., Solaractive schoolinLaion(Italy),ErstesSymposiumAktiv–Solarhaus,Krems,29th–30th Juni2009

7-SartoriI.,NapolitanoA.,VossK., NetZeroEnergybuildings:Aconsistentdefinitionframework,EnergyandBuildings,2012. 8-http://www.bergmeister.it/bm/

Confrontodeibilanci annualitraenergia esportataeimportata dellascuoladiLaion, calcolaticonfattori diconversione simmetrici easimmetrici. Ilbilanciodeicosti valutalaredditività dell’edificionellasua faseoperativa: èunbilanciotrailcosto dell’energiaprelevata dallarete,ilcosto dell’energiavenduta allareteedegliincentivi guadagnati dall’installazione dell’impianto fotovoltaico. L’investimentoiniziale nonvienepreso inconsiderazione.

Fattoridiconversione simmetrici in energia primaria

Fattoridiconversione asimmetrici in energia primaria-autoconsumo favorito

Fattoridiconversione asimmetrici in energia primaria-esportazione favorita

Bilanciocosti [euro/anno]

Turn static files into dynamic content formats.

Create a flipbook
Issuu converts static files into: digital portfolios, online yearbooks, online catalogs, digital photo albums and more. Sign up and create your flipbook.