azero 44

Page 1


14

4 Relazioni immersive

Studio Ecoarch

14 Turismo efficiente

Luca Pallu

28 Energia e armonia Manuel Faraon, evologica

38 Appartamento con vista

ARCADE Progettazione Integrata, Mario Bellavite

azero

rivista trimestrale – anno XIV n. 44, giugno 2024

Registrazione Tribunale Gorizia n. 03/2011 del 29.7.2011

Numero di iscrizione al ROC: 8147

ISSN 2239-9445

Direttore responsabile

Ferdinando Gottard

Redazione

Lara Bassi, Gaia Bollini

Editore EdicomEdizioni – Monfalcone (GO)

50 Protetta dalle ali Paolo Boni

60 L’anima del luogo

Paolo Ciacchini, Ester Riva

74 Architettura e Natura Marco Mauro, Giovanni Battista Comba

84 All’altezza delle fronde Stefano Pujatti, ELASTICOFarm

Redazione e amministrazione via 1° Maggio 117 – 34074 Monfalcone (GO) tel. 0481.484488 – fax 0481.485721 redazione@edicomedizioni.com www.azeroweb.com

Stampa

Grafiche Manzanesi – Manzano (UD)

Stampato su carta con alto contenuto di fibre riciclate selezionate

Prezzo di copertina 15,00 euro

Abbonamento

Italia (4 numeri): 50,00 euro

Estero (4 numeri): 100,00 euro

Gli abbonamenti possono iniziare, salvo diversa indicazione, dal primo numero raggiungibile in qualsiasi periodo dell’anno

È vietata la riproduzione, anche parziale, di articoli, disegni e foto se non espressamente autorizzata dall’editore

Copertina

Turismo efficiente, foto: ©Architettura & Ingegneria –Luca Pallu Architetto

Studio Ecoarch Relazioni immersive

Un’abitazione che dialoga con il paesaggio della sponda varesina del lago Maggiore e che, seguendo le ripide pendenze del lotto, quasi si incunea nel terreno. Privilegiando le viste sul panorama lacustre, la forma e la collocazione dei volumi e la disposizione spaziale della casa nascono quasi spontaneamente, integrandosi con le soluzioni per l’efficienza energetica il benessere e il comfort abitativo

Su un versante collinare rivolto a ovest verso le sponde del Lago Maggiore e verso la catena alpina, una nuova abitazione si adagia su una proprietà caratterizzata da un forte dislivello terrazzato, dove a monte si incontra il limitare di un’area boschiva, mentre a valle si distende l’intorno di un tessuto residenziale diffuso. La forma della casa è la sintesi delle molte professionalità coinvolte in questo progetto, in cui i desideri del committente, le possibilità normative, l’impegno dei progettisti nel restituire al paesaggio un edificio di qualità hanno concretizzato il programma dettagliato che richiedeva un soggiorno di grandi dimensioni, un belvedere, cinque camere e la piscina. Nonostante il terreno fosse piuttosto ampio, la collocazione della casa sul lotto è stata quasi obbligata, poiché la fascia edificabile era in realtà una porzione relativamente piccola, e la forte pendenza del terreno ha portato a slittare verso monte il volume della zona giorno generando, con questo semplice movimento, lo spazio necessario a formare il belvedere e la piscina. Quest’ultima sfrutta a sua volta la pendenza esistente in modo da essere

Photo © Marco
Reggi

totalmente incassata, quasi incastonata nel preciso volume del basamento, costituendo la copertura delle camere principali.

Casa PR, questo il nome dell’edificio, ha una pianta dall’impronta rettangolare ed è formata da due parti: il basamento, stereometrico e parzialmente incassato nel terreno, contraddistinto unicamente dai tagli delle aperture e delle finestre e destinato alla zona notte, e un volume più leggero, corrispondente alla zona giorno, appoggiato sul primo in posizione arretrata, individuato da ampie specchiature vetrate e sbalzi coperti.

La paletta dei materiali utilizzati è piuttosto ristretta:

Progetto architettonico

Studio Ecoarch, Varese

Strutture

ing. Andrea Meschini, Varese

Direttore dei lavori

arch. Mauro Rivolta – Studio Ecoarch, Varese

Consulente involucro e impianti

ing. Matteo Montagner, Varese

Appaltatore

Impresa Chinaglia, Laveno Mombello (VA)

Certificazione

• APE Lombardia – classe A4

lastre di gres porcellanato di grande dimensione, posate a corsi regolari, intonaci di tonalità molto chiara presenti al piano superiore, parti in ferro dei profili metallici dei serramenti, cristallo extra-chiaro dei parapetti e delle vetrate di generose dimensioni, acciaio inossidabile della lattoneria.

L’edificio è caratterizzato da elevate prestazioni energetiche e da un’impiantistica avanzata e, nonostante l’articolazione complessa dei volumi, ogni ponte termico è stato eliminato o corretto e l’isolamento del solido basamentale è stato concepito in modo da garantire una base di ancoraggio adeguata alle lastre del rivestimento.

Lavori 2019/2022

Superficie utile 300 m2

Indice prestazione energetica non rinnovabile EPgl, nren 17,95 kWh/m2 anno

Indice prestazione energetica rinnovabile EPgl, ren 56,29 kWh/m2 anno

Emissioni di CO2 3,99 kg/m2 anno

Scorcio della zona giorno dal belvedere antistante la piscina e veduta della casa da nord alla sera con la splendida vista sul lago.

Prospetto nord est

Prospetto nord ovest

Prospetto sud ovest

Planimetria
Piano -1
Piano terra
Sezione

Architettura e paesaggio

Quasi come un podio che si getta verso il lago Maggiore, la catena del Mottarone e la val d’Ossola, il volume del basamento che ospita la zona notte ha costituito, sin dalle prime fasi, il cuore del progetto, l’intenzione compositiva attorno alla quale è stato organizzato tutto lo spazio restante. Al di sopra, la piscina e la prima metà del belvedere relazionano in modo immersivo l’edificio con gli elementi del paesaggio e sono a loro volta incorniciati dallo sbalzo di cinque metri della copertura del volume del soggiorno che retrocede, fornendo anche un’adeguata proporzione. Lo slittamento fra zona notte e zona giorno riduce l’impatto visivo dei due piani dell’abitazione, che difficilmente sono percepiti contemporaneamente, se non da lontano. La reale consistenza dell’edificio si intuisce infatti da vicino, solo grazie al percorso pedonale che, inerpicandosi sulla collina, svela progressivamente l’articolazione volumetrica della casa. L’ingresso, posizionato sul retro, incide il fianco della collina generando un piccolo patio, al di sotto del quale, completamente interrati, trovano posto alcuni spazi tecnici. Il soggiorno è concepito in piena continuità con il belvedere: la connessione tra interno ed esterno è mediata da una sistema mobile di vetrate lunghe più di 12 metri, di cui una parte è fissa mentre il resto è dotato di 2 ante scorrevoli automatizzate, per un totale di 8 m di apertura completamente libera. Una fascia di frangisole metallici modula il passaggio fra il plafone della copertura e il chiarore del cielo, permettendo allo stesso tempo il controllo dell’irraggiamento solare estivo.

In questa pagina dall’alto a sinistra: le strutture della zona notte e dell’area living soprastante; la realizzazione della coibentazione esterna; l’impianto fotovoltaico in copertura; il passaggio impianti; il completamento degli interni con la rasatura delle lavorazioni a secco.

Solaio belvedere (A), dall’estradosso

- lastre in grès (20 mm)

- piedini regolabili (67 mm)

- poliurea a spruzzo (3 mm)

- massetto per pendenze (100 mm)

- isolamento in XPS (160 mm)

- platea (300 mm)

- terreno

Solaio piano giorno (B), dall’estradosso

- lastre in grès (7 mm)

- colla (3 mm)

- massetto autolivellante (40 mm)

- isolamento in XPS (100 + 80 mm)

- massetto in cemento cellulare (120 mm)

- platea di fondazione (300 mm)

- terreno

Dettaglio frangisole orizzontale

1 tubolare distanziatore di ancoraggio in acciaio zincato preverniciato (30x80 mm)

2 piastra distanziatrice in acciaio zincato preverniciato (sp. 5 mm)

3 piatto in acciaio zincato preverniciato (sp. 5 mm, h 200 mm)

4 viti a testa svasata in acciaio inox

5 elemento frangisole orizzontale

6 faretto incassato

Il rivestimento ceramico

Gran parte della casa – tutto il piano notte e alcuni volumi della zona giorno, sia esternamente sia all’interno, murature in elevazione e pavimentazioni – è rivestita con elementi ceramici. Il rivestimento in lastre di grès, posate in parte su piedini a realizzare un pavimento flottante e in parte mediante incollaggio, ha richiesto una progettazione esecutiva e una lavorazione in cantiere estremamente precise, al fine di raggiungere la continuità visiva tra fuori e dentro e la corrispondenza dimensionale, ove possibile, con le aperture vetrate. Ogni elemento della costruzione, infatti, è stato basato sul modulo del rivestimento.

Photo © Marco Reggi

Architetto Mauro Rivolta

Laureato in Architettura al Politecnico di Milano, Mauro Rivolta approfondisce le tecnologie bioclimatiche con ABITA (Centro Interuniversitario di Ricerca per l’Architettura Bioecologica e l’Innovazione Tecnologica per l’Ambiente) e segue il corso ANAB (Associazione Nazionale Architettura Bio-ecologica), diventando Tecnico Bioedile. Nel 2004 fonda Studio Ecoarch, in cui si occupa soprattutto di attività progettuale, sviluppando negli anni la ricerca architettonica insieme all’attività di studio dei temi della sostenibilità. L’idea di architettura è associata al desiderio di semplicità, luce, calore, natura, dove lo spazio ha un rapporto forte con l’ambiente esterno. Fanno parte del linguaggio dello studio tutti i materiali naturali che hanno nella semplicità, nella funzionalità, nel calore e nella bellezza le caratteristiche principali.

NM, Varese. Abitazione in legno altamente efficiente e bioecologica.

Casa BG, Varese. Casa prefabbricata in legno e in bioarchitettura.
Casa
Vista dalla zona giorno sulla piscina e sul lago con il belvedere rivestito di grès.
Photo © Marco Reggi
Photo © Carola Merello
Photo © Marco Reggi

Luca Pallu

Turismo efficiente

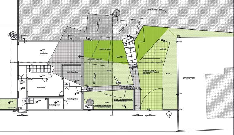
Sorto all’inizio degli anni ‘70, il complesso turistico Gran Gorraz è stato oggetto di un’importante operazione di riqualificazione energetica che ha visto coinvolti 4 degli 8 blocchi edilizi che lo costituiscono.

I lavori hanno interessato l’involucro, con un’adeguata coibentazione e il ripristino dello strato di tenuta all’acqua, mantenendo l’architettura originaria e garantendo una più efficace gestione futura

Iniziamo a conoscere questo progetto con una breve premessa storica che ci consentirà di dettagliare meglio tutti gli interventi di riqualificazione effettuati su questo rilevante polo turistico. Nel 1972, con progetto generale dell’arch. Laurent Chappis approvato dalla Regione Autonoma Valle d’Aosta, inizia lo sviluppo del complesso Grand Gorraz che è, ancor oggi, costituito da sette edifici residenziali e da una struttura alberghiera e che si estende linearmente lungo un pendio nella conca di Pila, con la strada e i parcheggi al proprio interno. Gran parte dei fabbricati sono integrati all’interno del profilo del terreno e le sezioni emergenti non superano i 12 m; in ogni porzione edilizia, due o tre blocchi scala servono unità abitative di diversa superficie – monolocali, alloggi duplex bilocali e trilocali – con zone giorno e notte poste a livelli differenti e affacciate sul paesaggio grazie a un piccolo terrazzo privato. La struttura portante degli edifici è in c.a. con elementi modulari e con solai a nervature incrociate a orditura triangolare per le grandi luci. Le superfici in c.a. sono lasciate a vista e il rivestimento esterno in scandole di legno è un rimando tattile ai circostanti boschi di conifere.

Nonostante le non proprio favorevoli condizioni climatiche dell’area (1.800 s.l.m.) e le opere di manutenzione limitate alla

sola sostituzione di porzioni di scandole ammalorate e al rifacimento degli strati impermeabili delle coperture piane e dei giardini pensili, il complesso residenziale di Pila si presentava, prima del processo di riqualificazione, in discrete condizioni, pur necessitando di interventi più organici. L’obiettivo era ridurre sensibilmente i consumi energetici e utilizzare tecnologie che minimizzassero la gestione futura così da consegnare alle generazioni future un’importante testimonianza di architettura contemporanea.

Oggetto del considerevole intervento sono stati alcuni

blocchi del complesso: G1-G2, dalla diversa conformazione planimetrica (G1: 4 livelli fuori terra ad assecondare l’orografia della valle; G2: 4 livelli fuori terra con terrazzamenti e porzioni di tetto giardino), strettamente legati fra loro e posizionati nella zona a monte; il blocco G7 di 4 livelli fuori terra dalla forma planimetrica a S che si adegua al profilo naturale del terreno; il G8 di 6 livelli che, primo edificio che si incontra salendo da Aosta e dove inizia il tunnel d’ingresso all’intero complesso, in pianta e in elevazione segue l’andamento originario della valle ed è stato il primo blocco riqualificato.

Progetto architettonico originario

arch. Laurent Chappis (progetto urbanistico); arch. Guido Radic – Servizio Costruzioni e Impianti –SCI (progetto architettonico)

Appaltatori originari

Cimolai, Pordenone; Lombardi & Briganti, Cesena; CMB Costruzione Meccaniche Braidesi, Bra (CN); Rodec

Progetto architettonico riqualificazione e D.L. arch. Luca Pallu, Aosta (AO)

Appaltatore della riqualificazione

Valdostana Impresa COstruzioni V.I.CO. S.r.l., Closallaz –Hône (AO)

Certificazione

• Classe B, Post intervento

Superficie utile

180.000 m3

Trasmittanza media pareti esterne 0,18 W/m2K

Trasmittanza media solaio contro terra 0,19 W/m2K

Trasmittanza media copertura 0,18 W/m2K

Trasmittanza media superfici trasparenti 0,98 W/m2K

Fabbisogno energia per riscaldamento 94,84 kWh/m2anno

In questa pagina, vista del complesso G1 verso monte. Alla pagina successiva: in alto, particolare della facciata del G1 che evidenzia la costruzione a paraboloide iperbolico; al centro, a sinistra, scorcio del blocco G7, appena completato, in cui si nota il giunto tagliafuoco della facciata ventilata; a destra e sotto, l’affaccio verso il monte del complesso G8 riqualificato.

Photo © Luca Pallu architetto

Le problematiche

A seguito di un rilievo plano-altimetrico mediante laser scanner, sono state verificate le volumetrie presenti ed estrapolate tutte le superfici per procedere alle successive fasi della progettazione della riqualificazione; parallelamente si è proceduto ad analizzare l’aspetto energetico facendo ampio uso della termografia. Tali rilievi hanno messo in evidenza come tutte le murature perimetrali fossero particolarmente problematiche, vista la struttura in c.a. da 15 cm rivestita solamente da scandole lignee. In particolare, i nodi tra parete e serramenti e le zone di transizione tra porzioni rivestite in scandole e quelle in calcestruzzo a vista, risultavano particolarmente rischiosi e contribuivano all’aumento delle spese di gestione e al progressivo degrado del complesso.

In seguito è stato sviluppato un modello tridimensionale della struttura a cui sono state applicate le stratigrafie e i ponti termici rilevati in loco. Questo processo ha permesso di analizzare il sistema edificio-impianto e di ricercare le maggiori criticità individuando conseguentemente le migliori soluzioni per gli interventi da realizzare.

Photo © Luca Pallu architetto
Photo © Luca Pallu architetto
Photo
© Luca Pallu architetto
Photo
© Luca Pallu architetto

Le facciate

Per ovviare al problema manutentivo delle scandole di rivestimento, comune a tutti i blocchi del complesso edilizio, è stata adottata la soluzione della parete ventilata che, da un lato, ha reso possibile isolare in modo adeguato le murature e, dall’altro, ha permesso di preservare nel tempo l’apparato ligneo, consentendo altresì una sostituzione puntuale delle scandole ammalorate senza intaccare lo strato di isolamento e di tenuta all’acqua.

Pertanto, sulla superficie esterna degli edifici sono stati applicati a secco pannelli coibenti in lana di vetro da 18 cm, al di sopra dei quali lo strato di rivestimento esterno, non aderente alla parete in c.a., forma un’intercapedine al cui interno la circolazione naturale dell’aria avviene per effetto del moto convettivo prodotto dalle aperture disposte alla base e alla sommità della facciata. Questo sottile strato di ventilazione favorisce, dopo gli eventi atmosferici, l’asciugatura delle scandole, agganciate direttamente al telaio metallico della facciata ventilata totalmente indipendente dallo strato di coibentazione termica, prevenendone il degrado.

Sono stati utilizzati, inoltre, materiali nanotecnologici particolarmente performanti dal punto di vista energetico, come l’aerogel, così da contenere gli spessori nei nodi problematici e al contempo mantenere inalterato l’aspetto architettonico originario dell’opera.

Facciata ventilata (A), dall’interno – corpo G1

- intonaco interno esistente a base cemento (10 mm)

- tavelloni in laterizio esistenti a taglio obliquo (250x1300x100 mm)

- intonaco esterno esistente a base cemento (10 mm)

- doppio strato membrana impermeabilizzante

- pannelli in lana di vetro (180 mm) rivestiti con velo vetro nero su un lato

- membrana impermeabile in PET composito, impermeabile e traspirante, sormonti sigillati con nastro adesivo acrilico, resistente all’acqua e ai raggi UV

- profilo in alluminio di supporto a facciata ventilata

- listelli correnti in abete (40x50 mm) per fissaggio scandole lignee

- scandole in larice a spacco fissate con graffe in acciaio inox

1 pannello XPS (80 mm)

2 pannello in compensato marino (13 mm)

3 lattoneria di completamento in alluminio colore Corten

4 listelli verticali in abete (40x50 mm) per ventilazione intercapedine e fissaggio lattoneria

5 parapetto in c.a. esistente

Facciata ventilata – corpo G8

1 lattoneria di completamento in alluminio colore Corten, con porzione forata per ventilazione facciata e gocciolatoio

2 serramenti in alluminio con rivestimento interno in legno e vetrocamera stratificato bassoemissivo

3 nastro sigillante butilico per punto chiodo nei fissaggi dei listelli di ventilazione

4 tavelloni in laterizio esistenti a taglio obliquo (250x700x60h mm)

5 isolamento per insufflaggio in lana minerale di vetro in formato fiocchi

6 muratura in laterizio a due teste esistente per sostegno tavelloni

7 muratura in laterizio a tre teste esistente

8 intonaco interno esistente a base cemento (10 mm)

9 solaio a piastra in c.a. esistente

10 pannelli rigidi di vetro cellulare spessore (80 mm)

11 lastra in cemento alleggerito fibrorinforzato (12,5 mm)

Facciata ventilata – corpo G7

1 staffa con sistema di interruzione ponte termico fissata con viti in acciaio inox

2 profili di supporto in alluminio per facciata ventilata (sezione a T: passo 4 metri; sezione a L: passo 56 cm)

3 tassello con calza in nylon

4 pannello isolante in aerogel (30 mm)

5 lattoneria di completamento in alluminio colore Corten, con porzione forata per ventilazione facciata e gocciolatoio

6 pannello in legno fenolico

7 pannello in XPS (40 mm)

8 intonaco interno esistente a base cemento (10 mm)

9 solaio a piastra in c.a. esistente (160 mm)

10 pavimentazione interna esistente

Le coperture e i terrazzi

Sono state riqualificate anche le coperture dei 4 blocchi oggetti di intervento mediante una duplice finitura: tetto giardino e con tavole a correre inchiodate, le quali forniscono una continuità materica con il rivestimento in scandole delle facciate ventilate.

In dettaglio, i tetti pensili sono stati completamente ristrutturati, rimuovendo gli strati di impermeabilizzazione, il drenaggio e il terreno, e sono stati coibentati, utilizzando anche nuovi materiali più performanti per quanto riguarda il drenaggio delle acque meteoriche e l’impermeabilizzazione. Tutto il pacchetto isolante e di tenuta è stato ricoperto da terreno vegetale, opportunamente vagliato e seminato per ricostituire il verde originario.

Anche i terrazzi che si aprono verso valle sono stati riqualificati e, analogamente per quanto avvenuto per i tetti verdi, è stato necessario asportare gli strati superiori, compresa la finitura in piastrelle cementizie fino alla struttura, ripristinare lo strato impermeabile

e posare uno strato coibente in materiale sintetico con caratteristiche di resistenza alle basse temperature. Al termine degli interventi gli unici elementi che si distinguono dal progetto originario sono i parapetti, che ora hanno un’altezza conforme alle norme vigenti.

Photo © Luca Pallu architetto
Photo © Luca Pallu architetto

Tetto giardino (A), dall’estradosso

- rinverdimento copertura pensile con specie autoctone

- terreno vegetale vagliato (media 500 mm)

- geocomposito drenante planare e geotessili per filtrazione e separazione (20 mm)

- isolante in XPS (160 mm)

- telo anti-radice in polietilene ad alta pressione

- doppio strato membrana impermeabilizzante

- massetto delle pendenze in c.a. esistente

- doppio strato membrana impermeabilizzante esistente

- solaio a piastra in c.a. esistente

1 sotto struttura in acciaio (100 mm)

2 isolante in XPS (160 mm)

3 lastra in cemento alleggerito fibrorinforzato (12,5 mm)

4 doppio strato membrana impermeabilizzante

5 isolante in XPS (80 mm)

6 pannello in compensato marino (13 mm)

7 telo PVC

8 lattoneria di completamento in alluminio colore Corten

9 listelli verticali in abete (40x50 mm) per ventilazione intercapedine e fissaggio lattoneria

10 lattoneria di completamento in alluminio colore Corten con porzione forata per ventilazione facciata e gocciolatoio

11 parapetto esistente

Il tunnel

Le porzioni abitative di fabbricato che insistono sul “tunnel” sono state opportunamente isolate all’intradosso del solaio con materiali che hanno permesso la lettura della geometria originaria senza alterarla. Sono stati impiegati pannelli realizzati su misura in polistirene espanso estruso ignifugo con bordi a incastro (160 mm) e rivestiti con doppia rasatura e interposta rete di armatura.

Le pareti verso il tunnel state coibentate con pannelli minerali a base di idrati di silicati di calcio dello spessore di 200 mm, successivamente rasati.

1 pannelli in XPS con bordi a incastro (160 mm)

2 intonaco esterno

Serramenti e terrazzi

In questa complessa operazione di riqualificazione, come prevedibile, anche i serramenti sono stati integralmente sostituiti mantenendo le aperture originarie, nonché le scansioni tra zone trasparenti e superfici opache. Gli infissi scelti sono del tipo legno-alluminio e dotati di triplo vetro e doppia camera, scelta che ha consentito l’accesso agli incentivi fiscali. Per rispettare il limite imposto dalla normativa vigente, è stato inoltre necessario modificare i profili oggi in commercio realizzando di fatto una nuova tipologia di serramento che è in fase di deposito industriale. Tutti i terrazzi sono stati coibentati e impemeabilizzati.

Terrazzo (A), dall’estradosso

- pavimento galleggiante in quadrotti (400x400x40 mm)

- tessuto non tessuto (strato filtrante)

- pannelli in XPS, bordi a incastro (160 mm)

- doppio strato membrana impermeabilizzante

- massetto delle pendenze in c.a. esistente

- solaio a piastra in c.a. esistente

- intonaco interno esistente a base cemento (10 mm)

1 soglia in pietra di Serizzo (30 mm)

2 pannello XPS, bordi a incastro (30 mm)

3 doppio strato membrana impermeabilizzante

4 serramenti in alluminio, rivestimento interno in legno massello, triplo vetro basso emissivo

5 muratura esistente

6 pannello XPS, bordi a incastro (80 mm)

7 blocco in cemento (150 mm)

8 getto di compensazione in c.a

9 foglio in polietilene

10 ghiaia

11 terreno vegetale vagliato, spessore medio (200 mm)

12 geocomposito drenante planare e geotessili per filtrazione e separazione (20 mm)

13 pannello XPS, bordi a incastro (160 mm)

14 telo anti-radice in polietilene ad alta pressione

15 pannello in compensato marino (13 mm)

16 lattoneria di completamento alluminio colore Corten

17 isolamento in lana di vetro (240 mm)

18 pannello rigido di vetro cellulare (80 mm)

19 lastra in cemento alleggerito fibrorinforzato (12,5 mm)

Photo © Luca Pallu architetto

Architetto Luca Pallu

Laureato al Politecnico di Torino nel 2009, l’architetto Luca Pallu svolge la sua professione ad Aosta nel suo studio “Architettura & Ingegneria”, operando inizialmente nella progettazione e direzione lavori inerenti l’edilizia residenziale privata; negli anni successivi l’attività si è ampliata a incarichi di progettazione e direzione lavori nel settore dei lavori pubblici. Attualmente lo studio offre studi di fattibilità alle progettazioni, direzione lavori e programmazione in diversi campi, proponendosi di rispondere alle attuali esigenze della progettazione, in linea con quanto stabilito dalla nuova Legge quadro sui Lavori Pubblici, e offrendo la propria professionalità sia alle esigenze delle opere pubbliche sia a quelle private nell’ambito di: architettura ed edilizia civile e industriale; viabilità, strade e opere d’arte (strade, ponti…); strutture di opere in c.a. e acciaio; architettura ed edilizia sanitaria; opere igieniche (acquedotti, fognature); coordinamento per la sicurezza nei cantieri.

Bed & Breakfast, Charvensod (AO). Demolizione e ricostruzione con ampliamento e ampio uso di FER.

Villa unifamiliare, Loc. Saumont – Aosta (AO). Casa passiva in X-lam con serra bioclimatica.
Photo © Luca Pallu architetto
Photo

Manuel Faraon evologica

Energia e armonia Sarmede

(TV)

Un dialogo costante tra prestazioni energetiche dell’involucro, impiantistica e architettura ha permesso di realizzare questa abitazione nella quale le scelte dei due committenti hanno contribuito alla piena riuscita del progetto. Innovazione e tradizione hanno dato vita a una casa dai volumi lineari e ben definiti, dove la progettazione attenta e l’accurata esecuzione in cantiere hanno creato ambienti di vita confortevoli e a basso consumo energetico

Dalla volontà dei committenti di avere una casa estremamente moderna e funzionale dal punto di vista delle prestazioni energetiche è nata casa JM, un’abitazione che nella sua espressione contemporanea riprende alcuni elementi tipici dell’architettura tradizionale del luogo.

Il primo passo nella stesura del progetto è stato l’orientare perfettamente sull’asse est ovest l’edificio, operazione resa possibile dalla conformazione del lotto, un’area rettangolare, slittando due dei tre volumi che compongono la casa da nord a sud. Ciò ha permesso di creare, in corrispondenza dell’ingresso, un portico che assume la duplice e peculiare funzione di proteggere le ampie finestre cielo-terra del soggiorno e della cucina dall’irraggiamento solare e di raccordare l’interno e l’esterno ampliando di fatto l’area living. Questo spazio all’aperto è inoltre sottolineato da una generosa apertura in copertura che lascia filtrare la luce solare grazie a un sistema regolabile di lamelle orientabili. Volutamente separato dal corpo di fabbrica principale della casa, il garage è collegato a essa mediante un passaggio coperto che si innesta sul portico.

Photo © Federico
Carretta PH

All’interno la disposizione degli spazi segue la buona regola di una crescente privacy, passando dalla zona filtro di ingresso, al soggiorno con la sala da pranzo e e con la cucina leggermente defilata per poi accedere alla zona notte. Quasi nascosti trovano spazio un piccolo servizio igienico per gli ospiti e una lavanderia che funge anche da vano tecnico ospitando tutto il sistema di riscaldamento e raffrescamento.

La piena riuscita di questa abitazione trova riscontro nel contributo della committenza che, particolarmente esigente e attenta, ha scelto finiture di pregio, disposte in modo sapiente e suggellate da componenti d’arredo e da corpi illuminanti particolarmente interessanti. Tutti i colori caldi della casa e dell’intorno sono stati scelti ricercando la massima armonia delle tonalità.

Progetto architettonico

arch. Manuel Faraon, Cordignano (TV)

Strutture

ing. Paolo Nardo, Godega di Sant’Urbano (TV)

Direttore dei lavori arch. Manuel Faraon

Consulente CasaClima geom. Kristian Mattiuz – evologica, Conegliano (TV)

Certificazione

• CasaClima A

Impianti progetti&co, Conegliano (TV)

Appaltatore evologica, Conegliano (TV)

Superficie lorda 168 m2

Trasmittanza media pareti esterne 0,13 W/m2 K

Trasmittanza media solaio contro terra 0,13 W/m2 K

Trasmittanza media copertura 0,21 W/m2 K

Trasmittanza media superfici trasparenti Ug 0,6 W/m2 K

Fabbisogno energia per riscaldamento 21kWh/m2 anno

Photo © Federico Carretta PH

Prospetto sud

Prospetto ovest

Prospetto est

Prospetto nord

La zona esterna riparata dall’ampia copertura piana diventa un’area dedicata al relax. Da notare anche le differenti finiture – intonaco e pietra – che dialogano armoniosamente tra di loro connettendo tradizione e contemporaneità.
Photo
© Federico Carretta PH
Piano terra

L’involucro

Dal punto di vista costruttivo l’abitazione è stata realizzata con struttura in pannelli massicci di legno, a partire da una platea isolata con doppio strato di materiale coibente, di cui 100 mm di XPS e PIR. Particolare cura è stata rivolta all’impermeabilizzazione in doppia guaina al fine di evitare risalite di umidità che potrebbero col tempo portare all’ammaloramento dell’ossatura lignea dell’edificio.

La struttura portante della casa è infatti in pannelli X-lam, ancorati e fissati su cordoli in cls, con una copertura in travi di legno sbiancate. L’isolamento con sistema a cappotto delle pareti è stato realizzato con uno spessore di 220 mm di lana di roccia, mentre sul tetto sono stati posati due strati di fibra di legno di diversa densità per garantire un adeguato sfasamento del pacchetto coibente.

Il portico esterno protegge adeguatamente le finestre della zona giorno ed è caratterizzato dai pilastri rivestiti in pietra ricostruita e dall’apertura centrale a lamelle regolabili, chiuse nella foto in alto. Il fronte nord si presenta compatto e con poche aperture per contenere le dispersioni termiche dell’involucro.

Photo © Federico
Carretta
PH
Photo © Federico Carretta
Photo

Copertura inclinata (A), dall’esterno

- manto copertura in coppi

- guaina bituminosa (4 mm)

- pannello OSB 3 (20mm)

- listelli per ventilazione (80x60 mm)

- striscia chiodo sotto listello ventilazione

- membrana impermeabile altamente traspirante

- pannello in fibra di legno 100 mm con interposti murali (80x100 mm)

- pannello in fibra di legno 100 mm con interposti murali (60x100 mm)

- schermo freno al vapore

- pannello OSB 3 (20mm)

- perline in abete maschio-femmina (20 mm)

- travetti a vista

Parete (B), dall’esterno

- rasatura con intonachino silosanico colorato

- lana di roccia (220 mm)

- pannello in X-lam (100 mm)

- vano portaimpianti (65 mm) con struttura metallica (50 mm) e isolamento in lana di roccia morbida (40 mm)

- doppia lastra cartongesso (12,5+ 12,5 mm)

- pittura traspirante

Solaio contro terra (C), dall’estradosso

- pavimento in legno (15 mm)

- massetto in calcestruzzo (50 mm)

- massetto alleggerito con cemento e granulato di EPS (135 mm)

- telo separatore e banda perimetrale

- pannello in XPS (100 mm)

- pannello in schiuma rigida (PIR) (100 mm)

- guaina bituminosa (4 mm)

- platea in c.a. (350 mm)

Nodo attacco tetto-parete su linea di gronda
Nodo

vedi stratigrafia lato interno

lato interno pendenza33%

vedi stratigrafia lato interno

lato interno pendenza33%

lato esterno lato esterno lato interno

lato interno

lato esterno lato esterno lato interno

lato interno

vedi stratigrafia

di gronda

vedi stratigrafia

lato interno

lato interno

Nodo dell’attacco tetto – parete su linea
con sporto (Disegni costruttivi ©evologica)
Nodo dell’attacco tetto – parete – tetto (Disegni costruttivi ©evologica)

Nelle immagini di cantiere di questa pagina: la posa del cappotto in lana di roccia e il controllo degli spessori dello stesso; il cambio di materiale isolante tra platea di fondazione (PIR), zoccolatura su cui sono fissate le pareti lignee (XPS) e il cappotto (lana di roccia); le fasi di rasatura della coibentazione esterna; il passaggio degli impianti a terra con la struttura in X-lam delle pareti non ancora tamponata dalla controparete e in travi e tavolato del tetto nella zona giorno; l’installazione del fotovoltaico integrato in copertura sulla falda a sud; un’immagine del Blower Door Test a struttura grezza.

Manuel Faraon, evologica

Gli impianti

Il sistema di riscaldamento e raffrescamento è costituito da una pompa di calore che consente a un’unica macchina di assolvere a tutte le funzioni di climatizzazione dell’abitazione e di produrre l’acqua calda sanitaria. Il sistema di ventilazione meccanica è inoltre dotato di filtri di ionizzazione che assicurano una costante sanificazione dei condotti e dell’aria di rinnovo immessa nell’edificio.

Il sistema di ionizzazione dell’aria immessa negli ambienti abitativi.

In questo modo negli ambienti confinati, l’aria pulita riduce il rischio di incorrere in patologie dovute a inquinanti che posso provenire dall’esterno o che sono prodotte dall’attività umana, quali ad esempio: particolato atmosferico, radon, spore, muffe, VOC, formaldeide, fumo di sigaretta, elementi liberati da prodotti per pulizie, cosmetici, ecc.

Laureato a Venezia nel 1996, l’arch. Manuel Faraon è un progettista molto versatile, dotato di forte curiosità e in costante aggiornamento grazie alla sua esperienza anche in campo estero e nel mondo del design. Dopo un attento ascolto delle esigenze e gusti della committenza, la sua impostazione progettuale si fonda su tre principi fondamentali: funzionalità, confort e bellezza. Che sia un paio di occhiali, una sedia, un ristorante o una casa, ogni disegno nasce da questi assiomi in perfetto equilibrio tra loro e in totale sintonia con il cliente.

Architetto Manuel Faraon evologica

Nata dall’esperienza di un’impresa costruttrice specializzata nell’architettura tradizionale, evologica da molti anni ha iniziato a dedicarsi alle abitazioni ecologiche, evolute e confortevoli, dove il materiale legno è protagonista del benessere indoor. L’azienda realizza edifici sartoriali e secondo le esigenze dei clienti, coniugando sicurezza e comfort dell’abitare con la certificazione CasaClima. Gli edifici, realizzati in X-lam, hanno un involucro ad alte prestazioni che consente di ridurre quasi a zero l’uso degli impianti di climatizzazione.

Il lungo passaggio coperto che porta alla zona d’ingresso con lo spazio esterno del portico che diventa prolungamento della zona giorno dell’abitazione.

Vista dalla zona cucina con affaccio sul portico esterno.

Photo © Federico Carretta PH

Progettazione Integrata Mario Bellavite Appartamento con vista

È possibile intervenire a cantiere già avviato, migliorando al tempo stesso l’aspetto architettonico e l’efficienza energetica di un’unità immobiliare in un palazzo in centro storico? La riqualificazione di questo appartamento è la dimostrazione che l’operazione è attuabile, se supportata da un progetto accurato il cui obiettivo è garantire comfort e benessere ai futuri utenti

Di fronte al balcone di Giulietta e Romeo a Verona, si trova un appartamento che può essere portato, a giusto titolo, come un pregevole esempio di progettazione sostenibile, grazie all’attenzione posta alla salubrità e all’efficienza energetica, sia per quanto concerne i materiali impiegati sia con riferimento alle peculiari soluzioni impiantistiche. Il progetto architettonico ed energetico ha avuto inizio a lavori avviati, con il cambio di proprietà, quando la copertura era già completata e i serramenti in alluminio a triplo vetro della zona altana installati. In tali circostanze la progettazione è stata finalizzata all’attualizzazione dell’oggetto architettonico sia dal punto di vista compositivo, sia in termini di proposta tecnologicamente avanzata, focalizzandosi sulla realizzazione di ambienti salubri e confortevoli al fine di garantire alti livelli di benessere e comfort. A livello distributivo le due unità immobiliari originarie sono state accorpate in un unico appartamento su più livelli: quello superiore, caratterizzato da una luminosa altana con adiacente terrazzo, ospita soggiorno e cucina; quello intermedio, caratte-

Photo
© Andrea Rinaldi fotografo

rizzato dalla presenza di una scala originale in pietra locale e adibito a studio/libreria, e quello inferiore, dove si trovano le camere da letto con i bagni di pertinenza, un bagno comune, ripostiglio e vani tecnici. Dal punto di vista energetico si è intervenuti in primis verificando le criticità presenti in cantiere attraverso la prova del Blower Door Test (metodo B), che ha evidenziato i problemi sulla tenuta degli infissi già posati e su alcuni punti della copertura in prossimità dei passaggi verticali. Le problematiche riscontrate

hanno richiesto diversi interventi per il ripristino della tenuta all’aria della copertura e, soprattutto, del nodo primario degli infissi, oltre alla ridefinizione ex-novo delle stratigrafie dell’involucro opaco. Per velocizzare le lavorazioni di riqualificazione dell’involucro, sono state impiegate tecnologie a secco con materiali naturali e soluzioni per il controllo della radiazione solare sulle partizioni vetrate, nei limiti della normativa, che non consentiva interventi esterni a causa della collocazione dell’immobile in centro storico.

Progetto architettonico

arch. Mario Bellavite – Arcade Progettazione Integrata, Verona

Strutture

ing. Mattia Sartori, Verona

Direttore dei lavori arch. Mario Bellavite

Consulenza energetica e impiantistica arch. Christian Negro Frer – Zeropositivo Architetti, Torino

Appaltatore

IM.COS, Verona

Superficie utile 146,00 m2

Trasmittanza media pareti esterne 0,21 W/m2K

Trasmittanza media copertura 0,21 W/m2K

Trasmittanza media superfici trasparenti 0,90 W/m2K

Fabbisogno energia per riscaldamento 10,41 W/m2K

Certificazione

• Biosafe

Piano zona notte
Piano altana

L’involucro

Le operazioni di efficientamento energetico sono state effettuate dall’interno, con tecnologie a secco che hanno privilegiato l’uso di materiali naturali: la posa a parete di pannelli di canapa di spessore variabile (da 60 a 150 mm) e l’applicazione di una guaina igrovariabile ermetica al fine garantire la corretta gestione del vapore. Sono state individuate soluzioni a secco anche per il pavimento della zona notte, con riempimento in granulato minerale, strato acustico in fibra di legno e lastra gesso-fibra per lo strato di supporto al parquet. Per rispettare le caratteristiche architettoniche dell’edificio, a livello di involucro è apparso fondamentale risolvere passivamente il tema del controllo della radiazione solare della zona altana, esposta per tutto il giorno alla luce del sole, con l’adozione di speciali pellicole a controllo solare applicate sulle partizioni vetrate. Nella zona notte sono stati installati serramenti in legno con triplo vetro basso emissivo.

il

quasi a

In alto,
piano dell’altana con la zona living visto dall’area cottura, caratterizzato da vetrate ad arco checonsentono un affaccio
360° sulla città scaligera. Sopra, l’ampio balcone esterno che guarda sui tetti della città al piano dell’altana.
Photo © Andrea Rinaldi fotografo
Photo © Andrea Rinaldi fotografo

Parete (A), dall’esterno

- finitura e muratura esistente

- isolante in canapa (30 mm), fissato e compresso dietro orditura metallica

- orditura metallica

- isolante in canapa (50 mm)

- lastra di finitura

Solaio contro vano riscaldato (B), dall’estradosso

- pavimento

- massetto a secco in gesso fibra con lastre battentate (25 mm)

- pannello isolante acustico in fibra di legno (22 mm)

- sottofondo a secco in argilla espansa (155 mm)

- solaio esistente

Copertura (C), dall’esterno

- manto esistente di copertura in tegole

- camera di ventilazione esistente –doppia orditura di listelli e controlistelli

- strato isolante esistente

- assito esistente (20 mm)

- travetti in legno esistenti (100 mm)

- nuovo isolamento in canapa flessibile

- sottostruttura metallica

- barriera igrovariabile

- lastra di finitura

1 serramento in abete triplo vetro basso emissivo

2 controparete isolante in canapa (50 mm) e lastra di finitura

3 serramento in legno/alluminio triplo vetro basso emissivo

4 pellicola per controllo solare su lucernario esistente

5 nuova struttura metallica con lastra di vetro temperato opalino per protezione lastra vetrata sottostante

Copertura esistente (A), dall’esterno

- manto di copertura in tegole

- camera di ventilazione – doppia orditura di listelli e controlistelli

- strato isolante

- assito (20 mm)

- travetti in legno (100 mm)

Parete (B), dalle esterno

- finitura e muratura esistente

- isolamento in canapa

- telo igrovariabile

- lastra di finitura

Solaio interpiano (C), dall’estradosso

- pavimento in seminato alla veneziana (10 mm)

- massetto autolivellante armato con rete metallica

- impianto di riscaldamento a pavimento

- pannello in polistirene bugnato per pavimento radiante

- isolante acustico in fibra di legno (22 mm)

- sottofondo a secco in granulato di argilla espansa (150 mm)

- cappa di ripartizione esistente in cls (50 mm)

- assito (25 mm)

- travetti in legno (120x160 mm)

Parete (D), dall’esterno

- finitura e muratura esistente

- isolante in canapa (30 mm), fissato e compresso dietro orditura metallica

- orditura metallica

- isolante in canapa (50 mm)

- lastra di finitura

1 diffusore lineare VMC mandata

2 controsoffitto pendinato in cartongesso

3 tramezza isolante con struttura metallica e cartongesso (25+50+25 mm)

4 serramento in abete triplo vetro basso emissivo

La salubrità indoor

Malesseri e specifiche patologie possono essere spesso associati alla qualità dell’aria interna all’unità abitativa, quotidianamente alterata da fattori inquinanti esterni e interni. Negli ambienti confinati si ritrovano, infatti, una serie di elementi provenienti dall’esterno, altri emessi dai materiali utilizzati per la costruzione, oltre all’esito delle attività metaboliche degli stessi abitanti. Gli involucri, oggi più che mai, sono caratterizzati da bassa permeabilità all’aria; se da un lato questa peculiarità favorisce la salubrità termo igrometrica, dall’altra essa tende a concentrare sostanze chimiche all’interno degli ambienti costruiti, fino a raggiungere livelli notevolmente più alti rispetto all’esterno. Per garantire in modo scientifico il rispetto dei più elevati standard di qualità dell’aria indoor si è valutato di aderire al protocollo di salubrità Biosafe, che prevede un’attenta analisi a progetto su materiali, finiture e impianti e una successiva campionatura dell’aria durante il cantiere per la verifica del rispetto dei limiti tossicologici definiti dal protocollo. Il risultato finale è stato ottimo, con un bassissimo livello di inquinanti rilevato, a conferma dell’eccellente lavoro svolto dalle maestranze in cantiere.

Il sistema impiantistico

Dal punto di vista impiantistico, scartato da subito il binomio classico caldaia a gas/condizionatore, è stata adottata una strategia tecnologicamente evoluta con pompa di calore.

A fronte di innumerevoli interferenze strutturali e vincoli dimensionali, l’installazione di un aggregato compatto ha permesso di contenere gli ingombri destinati alla centrale termica, integrando tutti i componenti nei vari mobili e controsoffitti e assicurando i più elevati standard di comfort indoor.

L’aggregato compatto, sistema all in one, è infatti in grado di garantire la climatizzazione invernale ed estiva, la ventilazione e la produzione sanitaria. Il sistema è completato da un’unità esterna che alimenta i circuiti radianti dei due livelli dell’appartamento sia d’estate sia d’inverno, oltre che da ventilconvettori canalizzati

e non, che contribuiscono alla climatizzazione del vano scala e al raffrescamento della zona altana nel periodo estivo. Nell’area notte l’umidità è gestita da una batteria idronica, installata sul canale di mandata della ventilazione.

Per limitare l’impatto visivo e ottenere la migliore soluzione estetica, ventilazione e climatizzazione ad aria sono state integrate in diffusori lineari al posto delle classiche bocchette assicurando al contempo il corretto bilanciamento delle portate mediante apposite valvole di regolazione poste in prossimità dei collettori. Sull’impianto di ventilazione è stato installato un sistema di sanificazione che assicura aria fresca e batteriologicamente pura all’interno degli ambienti.

A livello di produzione sanitaria i 180 litri dell’unità sono stati integrati da un ulteriore modulo da 270 litri.

A sinistra il vano scala e, a destra uno dei bagni dell’abitazione in cui si notano i diffusori lineari a soffitto per la ventilazione dei locali.
Photo
Mario Bellavite

Dall’alto, da sinistra verso destra: l’aggregato compatto; il modulo integrativo sanitario da 270 litri; le valvole per la regolazione di portata della ventilazione meccanica; l’unità esterna; uno dei ventilconvettori canalizzati nel controsoffitto; il collettore del sistema radiante con collettore alta-bassa temperatura; fresatura a pavimento per il riscaldamento radiante.

L’ingresso dell’abitazione.

Scorcio di uno spazio di disimpegno.
Il grande lucernario che illumina la scala interna.
Uno dei bagni con l’accurata scelta dei materiali e dei colori delle finiture.
Photo
Photo

ARCADE Progettazione Integrata e Zeropositivo Architetti

La parnership tra ARCADE Progettazione Integrata e Zeropositivo Architetti ha dato il via negli ultimi anni allo sviluppo di più progetti sostenibili a differente scala, accumunati dalla ricercata interazione tra architettura, efficienza e salubrità.

ARCADE Progettazione Integrata è uno studio di progettazione con sede a Verona che opera da oltre trent’anni nel campo dell’architettura e dell’interior design, coordinando a ogni livello attività di progettazione e di direzione lavori, forte di un’esperienza consolidata in tutti i settori dell’edilizia pubblica e privata. Lo studio propone ai propri clienti una linea progettuale caratterizzata da percorsi di ricerca innovativi, ideando concept originali fondati sull’idea che il design costituisca il luogo dell’incontro tra le cose e le persone.

ARCADE Progettazione Integrata crede nell’attualità dell’idea di una casa da abitare, uno spazio da vivere e condividere in cui la bellezza sia espressione di sostenibilità: da qui l’attenzione alla scelta dei materiali, tecnologie e processi costruttivi compatibili con il rispetto dell’ambiente. Zeropositivo Architetti è uno studio di progettazione con sede a Torino, specializzato nella ricerca del comfort abitativo e del benessere dell’uomo attraverso lo sviluppo di soluzioni edificio-impianto moderne e sostenibili. Si occupa della progettazione di edifici passivi e ad altissima efficienza energetica oltre a svolgere attività di consulenza energetica in tema di involucro e impianti in affiancamento a privati, immobiliari e professionisti.

Palazzo Ravasio, Verona. Riqualificazione architettonica ed energetica ad altissimo comfort indoor di palazzo con vincolo monumentale composto da 13 appartamenti.

Palazzo Nichesola, Verona. Riqualificazione architettonica ed energetica di un palazzo vincolato composto da 5 appartamenti.

Paolo Boni

Protetta dalle ali

Una casa in legno che raggiunge lo standard nZEB ed è stata così voluta dai committenti che desideravano un’abitazione non troppo grande, dall’architettura contemporanea ed efficiente energeticamente.

I progettisti sono riusciti a sviluppare il concept e le richieste, tenendo anche in particolar conto le viste sull’esterno e prediligendo ampie aperture vetrate, attentamente schermate, che illuminano gli spazi living dell’edificio

La villetta è stata realizzata su un piccolo lotto privato rispondendo alle richieste della committenza, ovvero avere una casa in legno prefabbricata, dalla superficie non troppo estesa (circa 100 m2) e da un’impronta architettonicamente moderna, contenendo al contempo i costi dei consumi energetici.

Vista la posizione del sito, inserito in un’area di espansione confinante con il territorio agricolo della pianura padana, e le contenute dimensioni richieste dai proprietari, il progettista ha scelto di sviluppare il volume su di un unico piano e di aprire l’abitazione il più possibile verso l’ambiente circostante.

Da tali presupposti ha preso vita anche la decisione di utilizzare una sezione verticale a falde inverse ad ali di gabbiamo; queste generano un compluvio centrale all’abitazione e, innalzandosi verso l’esterno, favoriscono la penetrazione in profondità della luce naturale negli ambienti interni.

La volontà di utilizzare la luce solare per creare una percezione interna di ariosità e movimento hanno indirizzato così il disegno verso questa soluzione volumetrica “anomala” che sembra aprirsi nell’accogliere la luce.

Photo © Paolo Boni

Per ottenere un edificio dalle prestazioni energetiche elevate, tutti gli isolamenti dell’involucro opaco sono ad alto spessore. A partire dalle fondamenta strutturali del tipo a platea calda, coibentate mediante la posa di un strato di ghiaia di vetro cellulare che ha anche lo scopo di realizzare un ottimo strato drenante. La struttura portante del fabbricato è a telaio di legno riempito con isolante in lana di roccia a bassa densità; esternamente è presente un isolamento a cappotto in fibra di roccia e internamente, a chiudere il pacchetto

parete, una classica controparete in cartongesso con coibentazione interposta. In copertura pannelli di lana di roccia ad alta densità e di grande spessore proteggono sia dal freddo invernale, sia dal calore estivo. Completa l’abitazione il sistema impiantistico che, per assicurare un’ottimale percezione di benessere, è costituito da un sistema riscaldante e raffrescante a pavimento e da un impianto di ventilazione meccanica controllata che gestisce e migliora la qualità dell’aria e il livello di comfort degli occupanti.

Progetto architettonico

arch. Paolo Boni – Studio NoBo, Carpenedolo (BS)

Strutture

Quattro & Partners s.r.l., Storo (TN)

Direttore dei lavori

arch. Paolo Boni

Impianti

ing. Lombardi Alessandro, Castenedolo (BS)

Appaltatore

Ciara Legnami, Lodrone (TN); Pippa Costruzioni, San Zeno di Montagna (VR)

Lavori

2020

Superficie utile 103 m2

Trasmittanza media pareti esterne 0,12 W/m2K

Trasmittanza media solaio contro terra

0,14 W/m2K

Trasmittanza media copertura

0,13 W/m2K

Trasmittanza media superfici trasparenti

0,85 W/m2K

Prestazione energetica globale 26,23 kWh/m2 anno

Certificazione

• NZEB Cened Lombardia

Dal lato dell’ingresso e della rimessa la casa si apre verso il territorio circostante.
Photo © Paolo
Boni
Sezione C
Sezione A
L’abitazione con l’arco alpino alle sue spalle.
Photo © Paolo Boni

Il tetto a falda inversa

Lavorando su una villetta di piccole dimensioni e a un unico piano, il rischio era quello di rendere semplice il volume senza riuscire a caratterizzarlo architettonicamente sia all’esterno sia, soprattutto, all’interno. Per tale motivo, dopo un’attenta analisi, il progettista ha deciso di proporre una soluzione con falde di copertura ad ali di gabbiano con compluvio centrale. Tale forma porta con sé sia aspetti positivi sia di criticità. Gli aspetti positivi riguardano la possibilità di lavorare con un volume che si apre verso l’esterno con facciate

alte e con inclinazioni di falda che danno la possibilità di portare in profondità la luce del giorno. Le criticità sono state costruttivamente risolte con una copertura completamente in lattoneria aggraffata a gancio drenante, la quale permette di creare una continuità di vasca ovviando ai problemi di possibili infiltrazioni future. La tipologia di lattoneria utilizzata ha, inoltre, la caratteristica di avere un aggancio a tenuta all’acqua con possibilità di sgancio e riaggancio futuro, così da consentire interventi di manutenzione anche dopo molto tempo dalla posa.

Photo © Paolo Boni
Photo
© Paolo Boni

Copertura inclinata (A), dall’esterno

- manto in lamiera aggraffata

- membrana impermeabile altamente traspirante

- pannello OSB 3 (18 mm)

- listelli distanziale (60x80 mm)

- doppio pannello in lana di roccia ad alta densità (120+120 mm)

- schermo freno al vapore con striscia puntochiodo dove forato

- assito a vista (25 mm) con irrigidimento di nastro forato metallico

- travetto a vista

Parete (B), dall’esterno

- rasatura (8 mm)

- isolante in lana di roccia (140 mm)

- pannello OSB 3 (18 mm)

- montanti telaio strutturale (120x100 mm) con isolante in lana di roccia morbida (120 mm)

- pannello OSB 3 (18 mm)

- montante in cartongesso (50 mm)

- lana di roccia compressa (50 mm)

- doppia lastra di cartongesso (12,5+12,5 mm)

Copertura (C), dall’esterno

- manto in lamiera aggraffata

- membrana impermeabile altamente traspirante

- pannello OSB 3 (18 mm)

- listelli distanziale (60x80 mm)

- schermo freno al vapore con striscia punto chiodo dove forato

- assito a vista (25 mm) con irrigidimento di nastro forato metallico

- travetto a vista

Solaio contro terra (D), dall’estradosso

- pavimento ceramico

- caldana per riscaldamento a pavimento

- caldana alleggerita copri impianti (120 mm)

- platea in cls

- ghiaia di vetro cellulare (300 mm)

Sezione C

1 trave radice in larice

2 banda adesiva bituminosa altamente resistente per l’impermeabilizzazione

3 guarnizione di tenuta

4 membrana bugnata

5 membrana bituminosa

6 ferramenta completa

7 nastro adesivo per sigillatura attacco a terra di parete

Parete veletta (A), dall’esterno - rasatura (8 mm) - isolante in lana di roccia (100 mm) - pannello OSB 3 (18 mm) - listello a sostegno struttura veletta 6 1 2 4 5 3 7

Sezione B
Sezione A

Nelle foto in questa pagina: l’isolamento in ghiaia di vetro cellulare della fondazione a platea; la struttura lignea quasi ultimata; dettagli della copertura in lamiera aggraffata; vista complessiva dell’abitazione.

La zona della cucina illuminata da una finestra orizzontale.

Scorcio del soggiorno con una delle vetrate a tutta altezza.
Photo
© Paolo Boni
Photo
© Paolo Boni

Architetto Paolo Boni

L’architetto Paolo Boni fonda lo Studio NoBo assieme al geom. Claudio Novelli, specializzandosi nella progettazione di edilizia pubblica e privata e realizzando edifici ad alta sostenibilità ambientale ed energetica.

I due soci sono esperti in progettazione bioecologica e in materiali e tecniche costruttive naturali, focalizzando in particolar modo l’attenzione sulle strutture in legno e sull’isolamento con balle di paglia e con lana di pecora, materiale, quest’ultimo, con cui lo studio sta realizzando in Sardegna un edificio oggetto di monitoraggio da parte dell’Università di Cagliari. L’architetto Boni è specializzato in Bioarchitettura e progettista Passivhaus.

L’area living.

Altri progetti
Villa, Cesate (MI) – Certificazione: Passivhaus Institut Darmstadt.
Abitazione, Desenzano del Garda (BS) – Certificazione: NZEB Cened Lombardia.
Paolo Boni
Photo © Paolo Boni

Paolo Ciacchini Ester Riva

L’anima del luogo

Calcinaia (PI)

Il recupero strutturale e la riqualificazione energetica di questo casolare degli anni Sessanta immerso in un’area boschiva hanno preservato lo spirito del luogo e il contesto naturale.

La cura del dettaglio e l’attenzione alla realizzazione in cantiere hanno dato vita a due unità abitative dalle linee essenziali nelle quali le soluzioni adotatte per il sistema edificio-impianto scompaiono alla vista senza pregiudicare il benessere abitativo

La riqualificazione e il recupero di questo fabbricato è la storia del rinnovamento di un vecchio casolare risalente agli anni Sessanta, custodito da un fitto bosco nella provincia di Pisa. Il fabbricato è costituito da due unità immobiliari termo-autonome e indipendenti in un’area non servita dalla rete pubblica del gas. L’intero processo di progettazione è stato caratterizzato dalla volontà di lasciare inalterata l’anima del luogo e la sensazione che la struttura crea nel suo contesto naturale, arricchendola però di comfort abitativo e di efficienza energetica, ottenuti combinando in modo armonioso un design minimale e un sistema edificio-impianto efficace e invisibile negli spazi interni. Per Casavaldi – questo il nome dell’abitazione – è stato innanzi tutto previsto un rinforzo strutturale nel suo complesso, effettuato attraverso un intervento di miglioramento sismico in grado di aumentare la classe di rischio sismico, e la riqualificazione energetica e impiantistica delle due unità immobiliari, realizzata mediante la totale coibentazione delle superfici opache, la sostituzione degli infissi e il rinnovamento degli

Photo © Chiara Meliani

impianti termici esistenti. Tutti gli interventi eseguiti sono stati possibili grazie ai benefici del Sisma Bonus e del Superbonus 110%.

Il miglioramento sismico è stato raggiunto grazie al consolidamento dei solai esistenti, l’inserimento di architravature al di sopra di ogni apertura, operazioni di ristillatura dei giunti, ammorsamenti, cuci e scuci e l’impiego di catene metalliche in sommità; interventi che favoriscono il comportamento scatolare dell’immobile inibendo i meccanismi di ribaltamento di piano.

Le scelte progettuali inerenti la riqualificazione energetica hanno previsto la posa di un isolamento termico a cappotto in lana di roccia dello spessore di 14 cm e di un isolamento termico della copertura ventilata con lana di vetro e fibra di legno mineralizzata. Il pacchetto coibente risulta altamente traspirante grazie all’impiego di freni al vapore e membrane traspiranti. Il risultato è stato quello di ottenere un elevato sfasamento termico della struttura, oltre a una ridotta trasmittanza termica. Al raggiungimento del benessere abitativo previsto dal progetto contribuiscono, inoltre, i differenti sistemi impiantisti adottati per le due unità abitative.

Progetto architettonico

geom. Paolo Ciacchini, Bientina (PI)

Strutture

ing. Ester Riva, Pontedera (PI) – ing. Marco Cinotti, Pisa

Direttore dei lavori

ing. Ester Riva; geom. Paolo Ciacchini

Progettazione impianti e isolamento termico

ing. Ester Riva e Luca Masini PhD, Pontedera (PI)

Appaltatore

EdilToscana s.r.l., Calcinaia (PI)

Impianti

G.S Impianti s.n.c. Calcinaia (PI)

Serramenti

Camoca Tecnologie costruttive s.r.l., Casciana Terme Lari (PI)

Superficie utile

237,20 m2

Trasmittanza media pareti esterne

0,252 W/m2 K

Trasmittanza media solaio contro terra

0,452 W/m2 K

Trasmittanza media copertura

0,165 W/m2 K

Trasmittanza media superfici trasparenti 1,2 W/m2 K

Fabbisogno energia per riscaldamento EPren

18,73 kWh/m2

Interni della zona giorno caratterizzati da colori chiari e da un carattere minimale.

Photo © Chiara Meliani
Photo © Chiara Meliani
Pianta piano terra
Pianta primo piano
Sezione DD
Sezione AA
Sezione BB
Sezione CC
Photo © Chiara Meliani
Photo
© Chiara Meliani
Paolo Ciacchini, Ester

Prospetto sud-ovest

Prospetto nord-est

Prospetto sud-est

Prospetto nord-ovest

Photo © Chiara Meliani
Photo
© Chiara Meliani
Photo
© Chiara Meliani
Photo
© Chiara Meliani
Photo
© Chiara Meliani
Paolo Ciacchini, Ester

Copertura (A), dall’esterno

- manto in tegole

- OSB con guaina impermeabilizzante

- listello di ventilazione (50x50 mm) con al di sotto nastro impermeabilizzante continuo al chiodo

- membrana impermeabile altamente traspirante

- isolante in lana di legno mineralizzata (75 mm)

- isolante in lana di vetro (140 mm)

- freno vapore

- malta di allettamento

- scempiato in mezzane

- travetto in legno massiccio esistente

1 battuta in legno di chiusura

2 polistirolo di riempimento

3 riempimento in cls alleggertito per fissaggio canale di gronda

4 griglia para passero

5 mezzane e malta di allettamento

6 travetto in legno per prolungamento gronda

7 isolamento in lana di roccia (140 mm) e fibra di legno mineralizzata (75 mm)

Nodo copertura
Le fasi di realizzazione della copertura ventilata: posa del freno vapore, isolante termico, membrana traspirante e camera di ventilazione.
Paolo Ciacchini, Ester Riva

Nodo copertura – sezione laterale

1 listello di chiusura in legno

2 tavola di protezione a supporto e protezione del cappotto

3 mezzana terminale tagliata a filo muro esterno laterale

4 nastro sigillante per fughe

5 morali (80x80 mm) in appoggio sul manto esistente in corrispondenza dei travetti esistenti

6 travetti esistenti (80x80 mm) di orditura secondaria

7 nastro monoadesivo acrilico resistente all’acqua, ai raggi UV e all’invecchiamento

Dal rilievo del fabbricato esistente e in particolare della copertura, come si nota dalla foto orizzontale qui sopra, i travetti esistenti avevano un interasse variabile da 37 a 40 cm. La mezzana esistente era in aggetto ed è stato necessario rifilarla al muro esterno prima della posa del telo traspirante.

Paolo Ciacchini, Ester

1 fascia perimetrale

2 massetto porta impianti (70 mm)

3 massetto per pavimento radiante pannello radiante (60 mm)

finitura drenante in pendenza

Nodo attacco a terra
Calcolo del ponte termico agli elementi finiti
Consolidamento dei solai lignei: armatura perimetrale e rete elettrosaldata.

1 fascia perimetrale

2 massetto porta impianti (100 mm)

3 massetto pavimento radiante

4 pannello radiante

5 barriera al vapore in PVC

6 soletta in cls alleggerito (40 mm)

Posa del cappotto in pannelli di lana di roccia, controllo dello spessore dell’isolante, posa dell’impianto radiante e della distribuzione del sistema di ventilazione meccanica controllata.
Nodo parete – solaio primo piano
Paolo Ciacchini, Ester Riva

Gli impianti

L’edificio è dotato di due sistemi impiantistici autonomi e differenti. Nella prima unità è stata installata una pompa di calore aria-acqua che alimenta il riscaldamento a pavimento radiante in abbinamento a un impianto di ventilazione meccanica controllata centralizzata.

Per la dotazione impiantistica della seconda unità abitativa si è preferita, invece, una caldaia a condensazione a GPL a servizio di un sistema di emissione a radiatori con unità singole di ventilazione meccanica controllata nei vari locali.

Ingegnere Ester Riva

Laureata in Ingegneria edile presso l’Università degli studi di Pisa e Consulente energetico CasaClima e Biosafe, l’ingegner Ester Riva assieme a Luca Masini, fisico, dal 2010 nel loro studio si occupano di progettazione di edifici a bassissimo consumo energetico e impiantistica. L’obiettivo del loro lavoro è quello di realizzare ambienti sostenibili attraverso un’attenta scelta dei materiali da costruzione e delle tecnologie impiantistiche, al fine di ridurre l’impatto ambientale dei progetti in un’ottica di risparmio di risorse. L’utilizzo di tecniche ecosostenibili e di materiali naturali è una costante, adattata caso per caso, cliente per cliente.

Altri progetti

Casa del Volontariato – Professoressa Deanna Buonomini, Maresca – San Marcello Piteglio (PT). Nuovo edificio in X-lam per la Pubblica Assistenza di Maresca. Prevista Certificazione CasaClima.

Edificio unifamiliare, Crespina Lorenzana (PI). Ristrutturazione con Sisma Bonus e riqualificazione e energetica.

Photo
© Chiara Meliani
Paolo Ciacchini, Ester Riva

Marco Mauro Giovanni Battista Comba Architettura e Natura

Peveragno (CN)

“Il nostro obiettivo era quello di ristrutturare il fabbricato posto all’interno di un giardino già esistente, da destinare a struttura ricettiva. Sfida intrigante e per nulla scontata visto il contesto delicato in cui si andava a intervenire: un’area verde da non snaturare e un edificio su più livelli e spazi ridotti in cui operare. Grazie alla perfetta sinergia tra progettisti e direttore dei lavori direi che il risultato è stato eccellente.” Andrea Tealdi, committente

Sulle colline di Peveragno, dirimpetto alla casa dei committenti, un piccolo fabbricato con porticato, inserito in un magnifico contesto pedemontano agreste, è rinato a nuova vita, dal punto di vista strutturale, architettonico ed energetico, grazie alla sua ristrutturazione e a un modesto ampliamento. Volontà della proprietà è stata infatti quella di ristrutturare l’edificio, maggiorandolo entro il volume architettonico delimitato dalla pantalera (il porticato) esistente, senza snaturare la stessa; ulteriore richiesta era quella di non deturpare con le necessarie lavorazioni l’area verde esistente a servizio dell’abitazione principale. La sfida dei progettisti è stata dunque quella di migliorare energeticamente e strutturalmente quanto già costruito e di realizzare l’ampliamento previsto senza danneggiare o modificare il tetto, frutto di un rifacimento eseguito qualche tempo addietro e già sufficientemente coibentato, mantenendo il più possibile, nella forma e funzionalità originaria il fabbricato oggetto di intervento. Strutturalmente la nuova porzione è stata realizzata in legno con

Photo © Marco
Mauro

sistema a telaio, tipologia stata scelta per la velocità di esecuzione e per lo scarso impatto delle operazioni di ristrutturazione sul contesto ambientale adiacente, ovvero i giardini esistenti. Ciò ha richiesto comunque la realizzazione di una strada di cantiere con un piazzale interno di manovra che, al termine dei lavori, mantenuti come “strada bianca” di accesso indipendente al fabbricato ristrutturato dopo essere stati consolidati e rifiniti con piestrisco di cava. A lavori ultimati gli esterni sono stati sistemati con il posizionamento di travi in castagno naturali in modo da poter creare dei piani inclinati di raccordo tra i vari livelli del giardino.

Particolare attenzione è stata riservata ai materiali, tutti

Seminterrato

Progettista e consulente energetico

arch. Marco Mauro, Boves (CN)

Strutture

arch. Giovanni Battista Comba, Villafalletto (CN)

Certificazione energetica geom. Andrea Mauro, Boves (CN)

Certificazione

• APE Piemonte, classe A4

naturali e in piena linea con i principi della bioarchitettura, scegliendo un cappotto in fibra di legno e in silicato di calcio, strutture in legno per i vari orizzontamenti e le pareti esterne, lastre di vetro cellulare (vetro riciclato) per la coibentazione dei solai controterra e intonaci interni ed esterni in calce naturale. Unica eccezione, i serramenti in materiale plastico con finitura “effetto legno”, scelti dalla committenza per una maggiore durata nel tempo e minore manutenzione.

Dal punto di vista energetico il fabbricato raggiunge di fatto l’autosufficienza ed è a pieno titolo un NZEB con un limitatissimo impiego di energia non rinnovabile.

Appaltatore

Edimonte snc di Davide Donadio e Davide Luciano, Montemale di Cuneo (CN)

Impianti termici

Franza Mauro Idraulico, Cuneo (CN)

Impianti FV, AC, CR

Silo srl, Cuneo (CN)

Impianti elettrici

Bruno Pellegrino, Cuneo (CN)

Posa serramenti esterni

Forgia snc – Saluzzo

Trasmittanza media pareti ampliamento

0,135 W/m2 K

Prestazione energetica globale del fabbricato EPgl,nren 1,42 kWh/m2 anno

Piano terra
Primo piano
Secondo piano
Sezione AA
Sezione BB
Marco Mauro, Giovanni Battista Comba
Photo © Marco Mauro

Le nuove strutture dei solai interni e del ballatoio e la struttura in legno dell’ampliamento.

L’ampliamento

L’ampliamento dell’edificio è stato realizzato mediante una struttura in legno a telaio con interposta fibra di legno (120 mm) e isolamento esterno in pannelli di fibra di legno di spessore 100 mm. Una controparete interna per il passaggio impianti, coibentata in lana di roccia e finita con lastre in cartongesso, chiude il pacchetto dell’involucro opaco.

Analisi agli elementi finiti sono state effettuate per verificare presenza di condensa superficiale e muffe, controllando anche le temperature nei punti particolarmente critici.

Nei due attestati è possibile notare il dato di prestazione energetica non rinnovabile del fabbricato prima dell’intervento di riqualificazione pari a 251,8249 kWh/m2 anno a fronte di un dato raggiunto post riqualificazione di Epgl,nren di 1,42 kWh/m2 anno.

Marco Mauro, Giovanni Battista Comba
Photo
Marco Mauro
Photo © Marco Mauro
Photo
Marco Mauro

Riqualificazione con rinforzo strutturale, isolamento termico e finiture della porzione esistente del fabbricato.

Verifica della condensa superficiale e isoterme corrispondenti.

Verifica della possibile formazione di muffa e isoterme corrispondente.

Nella pagina accanto, la struttura in legno dell’ampliamento, il cappotto in fibra di legno sulle pareti in legno e l’edificio dopo la riqualificazione.

Marco Mauro, Giovanni Battista Comba
Photo © Marco Mauro

Impianti

L’acqua calda sanitaria e il riscaldamento invernale sono assicurati da pompe di calore elettriche. La pompa per l’ACS, con potenza di 1,95 kW, è localizzata nel bagno al primo piano ed è dotata di un piccolo serbatoio di accumulo, mentre quella per il riscaldamento (8,5 kWt), del tipo aria/aria, fornisce energia a un sistema di ventilconvettori interni, posti nei vari locali e scelti per la rapidità nel portare gli ambienti alla temperatura desiderata. L’energia per il funzionamento di entrambi i sistemi è assicurata da due campi fotovoltaici da 7,29 kWp, instal-

lati sul tetto con esposizione sulle falde est e ovest per garantire la massima copertura. L’eccedenza di energia elettrica è immagazzinata in un sistema di accumulo a servizio della casa nelle ore notturne o per la ricarica di un veicolo elettrico.

Il ricambio d’aria è assicurato con un sistema di ventilazione meccanica controllata puntuale localizzato nelle varie camere e programmabile sia in serie sia individualmente. Tale scelta, rispetto a un impianto centralizzato, è stata dettata dalle difficoltà di portare le condutture dell’aria nei singoli locali.

Seminterrato

Nelle piante in rosso sono evidenziate le unità puntuali di ventilazione meccanica.

Piano terra
Primo piano
Secondo piano

Architetto Marco Mauro

Laureato in Architettura al Politecnico di Torino nel 1986, l’arch. Marco Mauro è Consulente energetico e ambientale, progettista ORO CasaClima, progettista Passivhaus, tecnico Biosafe e docente in molti corsi. L’obiettivo del suo studio è la progettazione integrata tra il gruppo di lavoro che affianca il cliente e fornire una soluzione a bassissimo consumo energetico e ottima qualità del vivere negli ambienti confinati. L’utilizzo di materiali riciclabili è uno tra gli elementi fondanti della sua progettazione che, assieme all’approccio integrato, permette di ridurre i i costi complessivi di un progetto.

Municipio, Pietraporzio (CN). Riqualificazione di edificio pubblico,

Edificio residenziale, Boves (CN). Riqualificazione, CasaClima R.

CasaClima R.
Vista del fronte della pantalera (il porticato) della casa completata.
Marco Mauro, Giovanni Battista Comba
Photo © Marco Mauro

Stefano Pujatti, ELASTICOFarm All’altezza delle fronde

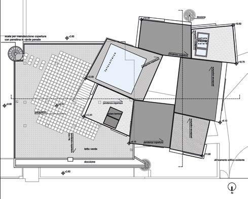
Stravolgere regole e criteri assodati per creare un edificio dall’architettura contemporanea ed efficiente dal punto di vista energetico. Potremo riassumere con questa frase la progettazione e la realizzazione di questa abitazione che si estende verso l’alto a cercare la luce, come gli alberi tra i quali si inserisce e si mimetizza, e che si sviluppa attorno a un vuoto centrale che ne costituisce il cuore

“The Hole with the House Around” nasce dalla rielaborazione di un fabbricato residenziale degli anni Settanta all’interno di un ampio parco privato; una casa che non è frutto dell’ampliamento dell’abitazione iniziale, ma lo sviluppo di un nuovo edificio indipendente. Alla casa si accede direttamente dal parco, tra gli alberi, attraverso una scala metallica, appesa e aperta, che descrive un corpo a sé stante. Nel salirla si scopre un paesaggio mutevole che accompagna alla quota della residenza con la vegetazione che penetra e avvolge gli ambienti di vita vissuta, trasformando anche lo spazio interno. La dimora, progettata per un giovane chef piemontese, si stacca da terra e si innalza all’altezza delle fronde, configurandosi come l’assemblaggio di corpi diversi attorno a un vuoto centrale, una corte che espande verso il cielo il cuore della casa e che è visibile – luminosa e verdeggiante – appena varcato l’ingresso. Pur insistendo sullo stesso lotto di terreno del fabbricato degli anni Settanta, il nuovo edificio segue dunque un suo personale sviluppo così da creare condizioni di esistenza alternative e un nuovo paesaggio, più vasto, aperto fino all’arco alpino che, nelle

Photo Anna Positano, Gaia Cambiaggi | Studio Campo

giornate più limpide, si percepisce nella sua maestosità. L’abitazione si spinge verso l’alto, per cercare il cielo e per riportarlo dentro l’architettura stessa, sospesa attraverso l’invenzione della corte vuota, un nucleo inaccessibile ma che, collegando tutti gli ambienti, contribuisce a espandere lo spazio domestico. Un tetto giardino a uso della nuova unità abitativa è stato realizzato demolendo la copertura del fabbricato esistente. La nuova struttura prefabbricata è in acciaio zincato e poggia su alti pilastri metallici a forcella e solo marginalmente sulla struttura di calcestruzzo della casa originaria. Sia i rivestimenti esterni sia le pareti murarie all’interno sono stati costruiti a secco.

L’isolamento termico e l’impiego di fonti energetiche rinnovabili contribuiscono in maniera rilevante all’alta efficienza energetica raggiunta dall’edificio.

La casa e l’edificio originario su cui cui parzialmente si appoggia sfruttandone anche il solaio per creare una terrazza giardino.

Progetto architettonico

ELASTICOFarm, Chieri (TO) – Budoia (PN)

Team di progetto

arch.tti Stefano Pujatti, Daniele Almondo, Valeria Brero, Serena Nano, Andrea Rosada

Progetto strutture

ing. Corrado Curti, Torino

Progetto impianti

ing. Pasquale Matarazzo, Chieri (TO); p.i. Bruno Marcon, Torino

Impresa

De Filippi Costruzioni

Superficie lotto di intervento

5.635 m2

Ampliamento 135 m2

Ristrutturazione 250 m2

Progetto febbraio 2015 – dicembre 2016 Lavori

febbraio 2017 – giugno 2022 (completamento luglio 2022)

Vista dell’abitazione dall’alto.
Photo Anna Positano, Gaia Cambiaggi | Studio Campo
Photo Anna Positano, Gaia Cambiaggi | Studio Campo

La distribuzione spaziale

Il progetto si confronta con l’edificio originario, modificandolo solo dove necessario e lasciando il più possibile inalterata la sua identità. Questo emerge, chiaro, nei disegni dai quali si nota come il progettista abbia coinvolto la preesistenza in una sorta di rapporto dialettico. La pianta

della nuova casa, infatti, si contrappone a quella originaria e, pur basata su una simile organizzazione di ambienti intorno a una distribuzione centrale, è dinamica, esplosa e si riorganizza intorno al vuoto centrale sul quale trova una sua stabilità e un suo provvisorio equilibrio.

Pianta primo piano
Pianta copertura
Pianta piano terra
Pianta seminterrato

Energia quasi zero

L’edificio esistente è stato ristrutturato e riqualificato energeticamente mediante la posa di un cappotto con finitura a intonaco, mentre per la nuova casa in struttura metallica a secco è stato scelto un isolamento poliuretanico applicato a spruzzo.

In copertura è presente un impianto fotovoltaico che copre le esigenze elettriche dell’abitazione e collettori solari per la produzione di ACS. Un sistema di raccolta delle acque meteoriche evita l’utilizzo di acqua potabile per l’irrigazione degli spazi verdi.

Prospetto nord

Prospetto sud

Prospetto ovest

L’abitazione da nord con i pilastri metallici che la sostengono.
La terrazza della zona pranzo, collegata da una scala al tetto giardino.
Vista dal parco della parte a sud a casa.
Photo Anna Positano, Gaia Cambiaggi | Studio Campo
Photo Anna Positano, Gaia Cambiaggi
Studio Campo
Photo Anna Positano, Gaia Cambiaggi
Studio Campo
La terrazza giardino ricavata dalla demolizione della copertura dell’edificio preesistente.
Sezione BB
Sezione AA
Photo Anna Positano, Gaia Cambiaggi
| Studio Campo
Vista da nord all’imbrunire.
Immagini del montaggio della struttura dell’ampliamento: dalla posa dei pilastri a forcella sino alla realizzazione dell’ossatura metallica della nuova casa.
Photo Anna Positano, Gaia Cambiaggi | Studio Campo

Vista assonometrica nord-ovest

Vista assonometrica nord-est

Vista assonometrica dal basso nord-ovest

Dal parco la scala esterna permette l’accesso diretto all’abitazione attraverso lo spazio della serra solare, apparendo lieve e leggera, quasi a non voler impattar sul terreno e a mimetizzarsi nel verde, abbarbicandosi attorno a uno dei pilastri a forcella che sostengono l’edificio. Le rampe, appese a pendini metallici, sono protette da una schermatura in lamiera forata di alluminio, che riprende matericamente la finitura in lamiera di alluminio ondulata della casa.

Photo Anna Positano, Gaia Cambiaggi Studio Campo
Photo Anna Positano, Gaia Cambiaggi Studio Campo
Photo Anna Positano, Gaia Cambiaggi Studio Campo

Vista tridimensionale di insieme

della struttura della scala

1 piastre di collegamento alla struttura di facciata

2 pendini per sospensione rampe

3 piastre per ancoraggio parapetti La serra solare all’ingresso dell’abitazione.

BLOCCO 1
BLOCCO 2
BLOCCO 3
BLOCCO 4
BLOCCO 5
Photo Anna Positano, Gaia Cambiaggi | Studio Campo

L’interno

Dallo spazio della serra solare all’ingresso si nota la corte attorno a cui si sviluppa l’impianto planimetrico dell’abitazione e dove tre betulle svettano alla ricerca della luce. Salendo pochi gradini sulla destra si accede al living che si dilata nella sala da pranzo; quest’ultima è direttamente collegata alla terrazza dalla quale si può scendere sul tetto giardino ricavato sulla copertura dell’edificio preesistente. Dalla sala da pranzo, con pochi gradini, si raggiunge la cucina, sita in una posizione ad angolo ed esposta a nord-est. Da

qui il proprietario, chef per passione e professione, domina il resto della casa, entrando in contatto visivo anche con la terrazza e il tetto giardino. Proseguendo ancora intorno alla corte in senso antiorario, si accede a un percorso che porta ad ambienti di servizio e alla zona notte, la quale, distribuendosi lungo il lato ovest della casa, si ricongiunge infine all’ingresso. Le pareti interne della casa sono state colorate in diverse tonalità di verde a suggerire un legame ideale con le fronde degli alberi.

Il living con affaccio sul vuoto centrale.
Il corridoio che porta alla zona dei servizi e notte.
Vista della zona pranzo dal living.

Architetto Stefano Pujatti ELASTICOFarm

ELASTICOFarm è lo studio di architettura di Stefano Pujatti e Alberto Del Maschio fondato nel 2005, con sede a Chieri (TO), Budoia (PN) e Toronto (Canada). La sezione Architettura è diretta dall’architetto Stefano Pujatti, che gestisce le sedi di Chieri e Toronto, e dall’architetto Alberto Del Maschio che gestisce la sede di Budoia. Un team di sei persone è responsabile dello sviluppo dei progetti, dalla fase concettuale alla fase di costruzione. Durante lo sviluppo dei progetti i diversi team si confrontano regolarmente con l’architetto Pujatti, mentre il referente per la parte esecutiva e tecnica è l’architetto Del Maschio. Supportato nella progettazione da urbanisti, paesaggisti, ingegneri strutturali, elettrici e meccanici, lighting designer e ingegneri acustici, lo Studio funge da punto di riferimento del progetto, riducendo gli sforzi del cliente, che viene aggiornato regolarmente e sistematicamente sullo stato di avanzamento dei lavori.

La zona cucina vista dall’area pranzo.
Altri progetti
Hotel 1301 Inn Slow Horse, Piancavallo (PN).
Stefano Pujatti,
Photo Anna Positano, Gaia Cambiaggi
| Studio Campo
Photo Jacopo Riccesi

back page – Oracoli

testi e matita di Michele De Beni

Turn static files into dynamic content formats.

Create a flipbook
Issuu converts static files into: digital portfolios, online yearbooks, online catalogs, digital photo albums and more. Sign up and create your flipbook.