azero 46

Page 1


4 Uno standard per la sostenibilità

Boffa Petrone & Partners

14 Un’aura d’oro

Deborah Scola

26 Energy (re)design Ecodesign

40 Riqualificazione low-tech

Elisa Mensa, Claudio Bosio

azero

rivista trimestrale – anno XV

n. 46, febbraio 2025

Registrazione Tribunale Gorizia n. 03/2011 del 29.7.2011

Numero di iscrizione al ROC: 8147

ISSN 2239-9445

Direttore responsabile

Ferdinando Gottard

Redazione

Lara Bassi, Gaia Bollini

Editore

EdicomEdizioni – Monfalcone (GO)

50 Tradizionalmente contemporanea tIPS Architects

60 Dopo 10 anni... Gianni Izzo

Redazione e amministrazione via 1° Maggio 117 – 34074 Monfalcone (GO) tel. 0481.484488 – fax 0481.485721 redazione@edicomedizioni.com www.azeroweb.com

Stampa

Grafiche Manzanesi – Manzano (UD)

Stampato su carta con alto contenuto di fibre riciclate selezionate

Prezzo di copertina 15,00 euro

Abbonamento

Italia (4 numeri): 50,00 euro Estero (4 numeri): 100,00 euro

Gli abbonamenti possono iniziare, salvo diversa indicazione, dal primo numero raggiungibile in qualsiasi periodo dell’anno

72 Collaborazione efficiente Federica Barazzutti

84 Ricostruire l’infanzia Wain Morehead Architects

È vietata la riproduzione, anche parziale, di articoli, disegni e foto se non espressamente autorizzata dall’editore

Copertina

Uno standard per la sostenibilità, foto: ©Piero Ottaviano

Boffa Petrone & Partners

Uno standard per la sostenibilità Torino

Insignito del Premio della Giuria ai CasaClima Awards 2024, Uptown Torino è la riqualificazione di un complesso residenziale a basso consumo energetico.

Il progetto di riqualificazione urbana risponde alle necessità abitative contemporanee con appartamenti, zone verdi comuni e aree per lo sport e dà risposta alle richieste di comfort, di risparmio delle risorse e di basso impatto ambientale

Il progetto di rigenerazione urbana, di recupero e di riconversione della struttura appartenuta all’ordine La Salle di Villa San Giuseppe, che dal 1972 ha ospitato studenti universitari, ha generato Uptown Torino, un complesso residenziale di quattro piani fuori terra e due interrati, immerso nel verde.

L’edificio oggi ospita 21 appartamenti e una serie di servizi, sia privati sia in cohousing, pensati per andare incontro alle esigenze abitative contemporanee; fra questi, l’area BBQ, un fridge sharing a disposizione di tutti gli inquilini, campi di padel e calcetto, oltre a un orto e a un frutteto. Ulteriore nota di originalità è la cantina vini privata dedicata agli abitanti.

Situato in una posizione panoramica, compresa tra Villa della Regina, la chiesa Gran Madre di Dio e il Monte dei Cappuccini, Uptown Torino si contraddistingue, dal punto di vista architettonico, per geometrie ben definite, aggetti e grandi vetrate verso nord e per una facciata rivestita da pannelli in fibra di legno riciclato al 99%; è inoltre impreziosito da aree verdi che favoriscono l’integrazione con il paesaggio circostante.

Con una superficie riscaldata di oltre 4.000 m2 ed emissioni ridotte di 5 volte rispetto a un edificio tradizionale, Uptown Torino, certificato CasaClima A, rappresenta dunque un nuovo standard nell’edilizia sostenibile, grazie alla sua capacità di integrare efficienza energetica e basso impatto ambientale. Realizzato dal Gruppo Building e firmato dallo studio Boffa Petrone & Partners, il complesso è stato selezionato tra 1.700 progetti certificati e si è aggiudicato il Premio della Giuria alla 22a edizione dei CasaClima Awards 2024, distinguendosi per aver coniugato in modo eccellente innovazione tecnologica, sostenibilità ambientale e comfort abitativo.

Il progetto, grazie alle sue caratteristiche di sostenibilità, ha beneficiato, inoltre, del sostegno di BPER Banca che ha strutturato un finanziamento green per supportare la realizzazione dell’iniziativa.

Scorcio del prospetto sud.

Progetto architettonico

Boffa Petrone & Partners, Torino

Strutture

Studio SI.Me.Te., Torino

Direttore dei Lavori

arch. Luca Sabino Petrone – Boffa Petrone & Partners, Torino

Consulente (termica)

arch. Massimo Carosso – Studio Carosso, Gassino Torinese (TO)

Acustica

ing. Franco Bertellino, Rivoli (TO)

Certificazione

• CasaClima A

Gli obiettivi

Essendo stato realizzato negli anni Sessanta, l’edificio presentava caratteristiche costruttive tipiche del periodo, ovvero una struttura portante in travi e pilastri in c.a., tamponamenti in muratura a cassa vuota, con differenti serramenti – alcuni in alluminio, altri in legno – e un impianto di riscaldamento a gas. La riqualificazione energetica del complesso ha dunque richiesto un’accurata e laboriosa progettazione che ha presentato inizialmente qualche difficoltà; scopriamone i motivi. Il progetto di retrofit, innanzitutto, è stato elaborato ad architettonico definito, dovendo rispettare quindi una serie di vincoli urbanistici e compositivi. Fin da subito la fattiva collaborazione tra i progettisti architettonici, strutturali, termotecnici e acustici ha cercato di coniugare la parte dell’involucro con quella impiantistica al fine di ottimizzare e garantire un’alta qualità costruttiva. L’obiettivo di partenza era il raggiungimento della classe R del protocollo CasaClima, visto che l’edificio sembrava in buon stato, e quindi sono state sviluppate le stratigrafie considerando la cassa vuota esistente e una parte dei solai. Tuttavia, durante i primi interventi di demolizione, si è constatato che le strutture erano sottodimensionate e non sarebbero state in grado di sopportare gli interventi previsti dal progetto. Si è pertanto effettuata una radicale demolizione dell’involucro, mantenendo solo le strutture portanti dei pilastri e dei solai e, di conseguenza, l’asticella energetica è stata alzata, ponendosi come obiettivo il raggiungimento della certificazione CasaClima A.

Impianti

Lauria Impianti, Settimo Torinese (TO); Impelectric, Rivoli (TO); Stiel Srl, Grugliasco (TO); Studio Petrozziello, Torino

Appaltatore

Building S.p.a., Torino – Milano

Superficie utile 3165 m2

Trasmittanza media pareti esterne 0,143 W/m2K

Trasmittanza media solaio contro terra 0,241 W/m2K

Trasmittanza media copertura 0,213 W/m2K

Trasmittanza media superfici trasparenti (infissi esterni) 1,05 W/m2K

Fabbisogno energia per riscaldamento 18 kWh/m2 anno

Photo © Piero Ottaviano

Prospetto sud

La splendida vista sulla città dal complesso residenziale.
Photo © Piero Ottaviano
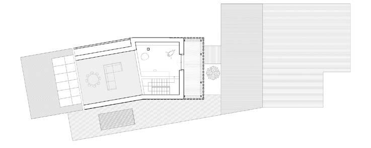
Pianta piano primo
Pianta piano secondo
Prospetto nord

La riqualificazione energetica

Prima di addentrarci nelle scelte energetiche effettuate, è necessario ricordare alcune peculiarità dell’edificio esistente che, in positivo e in negativo, ne hanno influenzato la riqualificazione. Innanzitutto il suo orientamento che, con la facciata principale completamente a nord e quella a sud quasi interamente coperta dalla collina nella stagione fredda, non ha permesso di sfruttare al meglio gli apporti solari. D’altro canto il fabbricato, essendo molto compatto, presentava un rapporto di forma S/V molto basso e quindi con poche superfici disperdenti. Il progetto di retrofit ha previsto l’isolamento dei solai controterra dei due piani interrati con vetro cellulare e delle pareti con pannelli in XPS sul lato interno così da garantire la continuità della coibentazione. La barriera al vapore, nastrata e sigillata, non è intaccata dal passaggio impianti, effettuato in controparete, isolata a sua volta. A eccezione di una piccola porzione non contro terra, anche tutti i solai del piano terreno e il piede dei pilastri esistenti sono stati isolati. Non conoscendo quali sarebbero state le ditte subappaltatrici, i tamponamenti delle pareti sono stati realizzati con blocchi di calcestruzzo aerato autoclavato, scelta dettata dalla loro facilità di posa e dalla garanzia della tenuta all’aria mediante rasatura; anche in questo caso gli impianti sono stati fatti passare in controparete. All’esterno è presente un isolamento in lana di roccia e la parete ventilata è agganciata alla muratura

tramite elementi di fissaggio a taglio termico. In corrispondenza dei balconi esistenti e non demoliti l’attenuazione del ponte termico è stata realizzata con isolamento all’intradosso e all’estradosso degli stessi. I nuovi balconi, invece, sono stati studiati assieme agli strutturisti in modo tale da avere solo pochi punti di ancoraggio alla struttura portante e da correggere il ponte termico risultante con la posa di uno strato isolante verso l’interno. Completano l’involucro le due coperture: una piana a tetto rovescio e una a falda con struttura in acciaio e legno, opportunamente coibentate per un migliore sfasamento. Grande attenzione è stata riservata anche alla posa dei serramenti con monoblocchi, ove possibile, o con elementi in purenite per assicurare continuità con l’isolamento esterno. La tenuta all’aria è stata progettata in studio, controllata in cantiere e verificata effettuando 8 Blower Door Test intermedi, oltre a 5 finali, per accertare la bontà delle lavorazioni, così da raggiungere valori da edificio passivo. È stata prevista in contratto anche una penale per le aziende posatrici e installatrici nel caso in cui i BDT non fossero stati superati, situazione non verificatasi. Ogni appartamento è dotato di ventilazione meccanica decentralizzata con climatizzazione gestita da una pompa di calore, riscaldamento a pavimento radiante e raffrescamento con ventilconvettori. Un impianto fotovoltaico da 28 kWp è installato in copertura.

L’affaccio verso la via pubblica a nord e la rampa di accesso al piano interrato a ovest.
Photo © Piero Ottaviano
Photo © Piero
Ottaviano
Scorcio del prospetto rivolto a mezzogiorno.
Photo
© Piero Ottaviano
Photo
© Piero Ottaviano
Photo
© Piero Ottaviano
Photo
© Piero Ottaviano

Copertura inclinata-parete

Copertura inclinata (B) dall’esterno

- copertura in lamiera di alluminio

- tavolato (25 mm)

- listello di ventilazione (50 mm)

- telo traspirante

- isolante in fibra di legno (20+20 mm)

- tavolato (25 mm)

- cellulosa (240 mm)

- pannello con facce in fibra di legno e interno in particelle di legno agglomerate (13 mm)

- freno vapore

- cartongesso con struttura in alluminio (50 mm)

1 lamiera microforata

2 gronda

3 doppia lastra in fibrocemento

4 fascia forata per ventilazione

5 rivestimento in lamiera

Copertura piana-parete

Copertura piana (A) dall’esterno

- rivestimento metallico

- guaina traspirante

- tavolato porta lamiera

- listelli di abete (70x50 mm)

- guaina traspirante

- isolamento in fibra di legno (20+20 mm)

- struttura in travi di acciaio e legno (40x240mm) con isolamento in cellulosa

- freno vapore

- pannello con facce in fibra di legno e interno in particelle di legno agglomerate (13 mm)

- finitura interna

1 fascia forata per ventilazione

Membrana impermeabilizzante; isolamento del solaio piano con XPS; struttura del tetto inclinato in travi di acciaio e legno coibentata con cellulosa; rivestimento in cartongesso; barriera al vapore; strato isolante esterno in fibra di legno; strato isolato tra muratura e pluviale; telo traspirante e listelli di ventilazione; rivestimento esterno.
Boffa Petrone

Sezione orizzontale parete-finestra

Parete esterna (C) dall’esterno

- rivestimento facciata in legno

- sotto struttura per facciata ventilata

- telo di tenuta al vento

- pannello in lana di roccia (160 mm)

- rasatura

- blocchi in c.a.a. (300 mm)

1 serramento

2 monoblocco

3 imbotte in metallo

- contro parete interna isolata con lana di roccia (50 mm) e doppia lastra di cartongesso

Posa dei monoblocchi; nastrature per la tenuta all’aria; isolamento sotto soglia; frangisole.

Boffa Petrone & Partners

Boffa Petrone & Partners è una società di professionisti che si occupa di progettazione, project management e direzioni lavori. La forza dello studio è lo spirito di squadra, frutto di un approccio passionale al lavoro, dove ognuno è parte integrante del processo e protagonista del prodotto finito. Lo studio di progettazione è completo, autonomo in ogni aspetto, in perpetua supervisione dei problemi del cantiere e capace di rispondere alle esigenze progettuali più diverse, compresi studi di fattibilità e simulazioni virtuali. L’attività è dedicata alla progettazione di edifici residenziali e commerciali a grande, media e piccola scala sia nel nuovo sia nella riqualificazione e dell’interior design, di coordinamento sicurezza e di produzione di elaborati esecutivi.

Domus Lascaris a Torino (2020). Ristrutturazione di complesso edilizio a basso consumo energetico. Casa Andromeda a Cesana Torinese (2019-2020). Ristrutturazione e ampliamento di edificio residenziale.

Uptown Torino all’imbrunire.
Photo © Piero Ottaviano
Photo

Deborah Scola

Un’aura d’oro

Milano

Site in un’area ex industriale nella zona nord est di Milano, le residenze Aura Homes si contraddistinguono per sostenibilità e ridotti consumi energetici, certificati dall’ottenimento della classe CasaClima Gold, per le soluzioni impiantistiche innovative e per l’attenzione agli aspetti sociali, con una piccola piazza e spazi verdi a uso pubblico e una quota di appartamenti a canone concordato

Il complesso residenziale Aura Homes trova fondamento in una filosofia progettuale ben precisa, che pone particolare accento anche alle problematiche sociali, volte a una migliore sensibilizzazione sull’uso razionale dell’energia da combustibili fossili e l’utilizzo di fonti rinnovabili disponibili.

Realizzate con standard costruttivi a basso impatto energetico e secondo il protocollo CasaClima, le residenze Aura Homes sono formate da due blocchi edilizi a L, composti da un piano interrato con 42 box e da 5 e 6 piani fuori terra che accolgono 26 appartamenti. Sono inoltre presenti la lavanderia e aree fitness a uso comune, alimentate dall’impianto fotovoltaico. Il 20,4% della superficie totale è stato dato in locazione a canone concordato con il Comune di Milano, promuovendo così una soluzione abitativa di alta qualità e accessibile a tutti.

Per realizzare un’architettura sostenibile e ottenere la certificazione Casa Clima Gold, sono stati progettati un involucro opaco e trasparente particolarmente prestanti e un’impiantistica efficiente e autonoma.

La struttura è a telaio di tipo misto in calcestruzzo armato e acciaio con solette piene, tamponamenti in laterizio e isolamen-

La conformazione a L dei due volumi che compongono il complesso edilizio con il giardino interno.

to in lana minerale; i serramenti sono a triplo vetro e l’installazione degli ombreggiamenti con sistemi filtranti è stata effettuata mediante un sistema monoblocco coibentato.

La configurazione impiantistica dell’edificio ha

Progetto architettonico e D.L.

arch. Deborah Scola, Milano

Strutture

ing. Maurizio Colombo, Milano

Acustica

ing. Davide Parolo, Varese

Impianti e Consulente CasaClima

ing. Cristian Bassani, Bergamo

Appaltatore

Impresa Ziliani Srl, Milano

Fine lavori

2023

Trasmittanza media pareti esterne

0,123 W/m2 K

Trasmittanza media copertura

0,09 W/m2 K

Trasmittanza media superfici trasparenti

0,90 W/m2 K

Certificazione

• CasaClima Gold

contemplato l’installazione di impianti innovativi e autonomi costituiti da aggregati compatti, nati per le limitate esigenze degli edifici passivi, così da garantire la completa climatizzazione invernale ed estiva con la sola ventilazione meccanica; nel sistema è stata integrata anche la produzione di acqua calda sanitaria che, in particolare nel periodo estivo, risulta quasi gratuita. Non è stato previsto l’impianto di adduzione gas per la cottura dei cibi.

La riqualificazione e valorizzazione dell’area di progetto sono state completate dalla realizzazione di un giardino interno privato, un giardino esterno asservito a uso pubblico e una piccola piazza pubblica, collegati nelle ore diurne; essi creano un unico spazio fruibile dai cittadini, con luoghi di sosta dotati di panchine in muratura circolari e alberi.

In conclusione, architettura avanzata, efficienza energetica e una forte componente sociale in questo progetto forniscono una risposta certa alle problematiche ambientali odierne e future, incoraggiando comportamenti virtuosi per uno stile di vita ecologico.

L’affaccio di Aura Homes verso la via pubblica.
Photo
© Filippo
Podestà

Scorci e dettagli dei due edifici residenziali.

Pianta piano terra
Pianta piano tipo

Prospetto giardino privato a uso pubblico

Prospetto via Palmanova

Prospetto giardino interno

Prospetto via Flumendosa
Photo
© Filippo Podestà
Photo
© Filippo Podestà

Dettaglio grondaia (1)

Ultimo solaio (A) dall’estradosso

- piastrelle in grès (20 mm)

- intercapedine fortemente ventilata (60 mm)

- impermeabilizzazione bituminosa

- poliuretano espanso rigido con velo di vetro bitumato (100 mm)

- poliuretano espanso rigido (100 mm)

- barriera al vapore

- soletta in c.a. (270 mm)

- intercapedine non ventilata (60 mm)

- lana di roccia (80 mm)

- lastra di cartongesso (10 mm) e rasatura

Dettaglio loggia su copertura (2)

Solaio loggia (B) dall’estradosso

- piastrelle in grès (20 mm)

- impermeabilizzazione bituminosa

- poliuretano espanso rigido (100 +100 mm)

- barriera al vapore

- massetto ripartitore in cls con rete (80 mm)

- soletta in c.a. (270 mm)

- lana di roccia (80 mm) e intonaco di finitura

- lastra di cartongesso (10 mm) e rasatura

monoblocco frangisole coibentato

calcestruzzo armato

isolamento plastico duro

pannello in EPS grigio (100 mm)

Solaio di copertura e realizzazione della scala interna degli attici.

1 isolamento in EPS grigio pedenziato

2 isolamento in EPS grigio (80 mm)

3 isolamento in lana di roccia (150 mm)

Dettaglio lesena orizzontale (3)

Solaio interpiano (C) dall’estradosso

- pavimento in ceramica (20 mm)

- sottofondo in cemento magro (65 mm)

- tappetino acustico (6 mm)

- soletta in c.a. (270 mm)

- intercapedine non ventilata (40+40 mm)

- lana di roccia (60 mm) - lastra di cartongesso (10 mm) e rasatura

Parete esterna (D) dall’esterno

- intonaco di finitura (5 mm)

- isolamento in lana di roccia (200 mm)

- intonaco di calce e sabbia (15 mm)

- muratura in blocco Poroton (200 mm)

- intonaco di calce e sabbia (15 mm)

- intercapedine non ventilata (20 mm)

- isolamento in lana di roccia (80 mm)

- doppia lastra di cartongesso (25 mm) e rasatura

Dettaglio loggia (4)

Solaio loggia (E) dall’estradosso - pavimentazione in grès - sabbia e cemento - doppia guaina bituminosa - sabbia e cemento

- soletta in c.a.

- isolamento in lana di roccia (140 mm)

- finitura esterna

del

sulle facciate e dell’isolamento sulle pareti delle logge.

Posa
cappotto

Dettaglio lesena primo piano (5)

Parete esterna (F) dall’esterno

- intonaco di finitura (15 mm)

- isolamento in lana di roccia (160 mm)

- intonaco di calce e sabbia (15 mm)

- blocco pieno (138 mm)

- intonaco di calce e cemento (15 mm)

- intercapedine non ventilata (20 mm)

- isolamento in lana di roccia (40 mm)

- doppia lastra di cartongesso (25 mm) e rasatura

1 soglia in grès

Dettaglio trave piano terra (6)

Solaio piano terra (G) dall’estradosso

- piastrelle in ceramica (15 mm)

- massetto ripartitore in cls con rete (50 mm)

- isolamento acustico (6 mm)

- poliuretano espanso a celle chiuse (30 mm)

- soletta in cls armato (250 mm)

- lana di roccia (140 mm)

- finitura (5 mm)

1 calcestruzzo armato

2 calcestruzzo

3 doppia guaina bituminosa

4 cappa protettiva in calcestruzzo, tessuto non tessuto e cellophan

5 terreno di riporto

6 guaina di protezione di pannello in EPS

7 pannello in XPS per taglio termico

Isolamento e rivestimento dei pilastri e completamento di una delle piazze.

Impiantistica innovativa

Per realizzare un’architettura sostenibile e ottenere la certificazione CasaClima Gold, la configurazione impiantistica è autonoma con utilizzo di macchine innovative; l’installazione, infatti, degli aggregati compatti, nati per le limitate esigenze degli edifici passivi o nZEB, ha garantito la completa climatizzazione invernale ed estiva con la sola ventilazione meccanica, integrando la produzione di acqua calda sanitaria.

Questa soluzione ha consentito:

• l’ottimizzazione della potenza delle pompe di calore;

• migliori rendimenti di C.O.P. con minor potenza utile nominale;

• una migliore modularità alle basse potenze e, di conseguenza, minori consumi energetici (anche negli

impianti di distribuzione per ACS e riscaldamento),

• migliori prestazioni generali in funzione dei reali fabbisogni dell’unità abitativa,

• maggiori contributi dalle fonti rinnovabili,

• minori emissioni di CO2 e nessun costo fisso di gestione.

I condotti relativi alla presa dell’aria esterna e all’estrazione dell’aria interna esausta sono stati previsti in copertura. Sempre in copertura sono posizionati, oltre ai camini atti a contenere le suddette condutture, gli scambiatori per il pre-temperamento geotermico dell’aria, che avviene mediante acqua di falda e che determina l’aumento delle prestazioni delle pompe di calore e una sensibile riduzione dei consumi energetici.

Tubazioni degli impianti di ventilazione in un appartamento e nell’area fitness e i tubi all’intradosso del solaio.
Interno dell’area fitness.
La scala di uno degli attici.
Photo
© Filippo Podestà
Photo
© Filippo Podestà

Architetto Deborah Scola

Libera professionista dal 1998, l’architetto Deborah Scola si dedica alla progettazione architettonica, alla progettazione di interni ed esterni, di luoghi urbani, alla ristrutturazione e al risanamento conservativo di edifici esistenti. Fin dall’esperienza universitaria, l’architetto si è occupata di problemi relativi all’immagine della città e al suo rapporto con il micro ambiente sia in ambito storico sia nella ricerca di materiali tradizionali, di innovazione tecnologica e di sostenibilità.

Ha progettato complessi residenziali, laboratori, uffici e interventi di ampliamento all’interno di contesti industriali; ha riqualificato e rivalorizzato spazi pubblici e ha eseguito interventi di manutenzione ordinaria e straordinaria su facciate sottoposte a vincolo storico, artistico, architettonico e a vincolo di tutela e salvaguardia. Con il Progetto Aura Homes ha partecipato ai CasaClima Awards 2024.

Edificio residenziale a Milano, 2008. Risanamento conservativo con cambio di destinazione d’uso (da produttivo a residenziale).

Ecodesign Energy (re)design

Cavriago (RE)

Un riferimento per future riqualificazioni energetiche: questo è il condominio Edil Parco, i cui interventi sull’involucro opaco e trasparente e parzialmente sugli impianti hanno permesso di ridurre significativamente il fabbisogno di energia, con conseguenti risparmi dei consumi e diminuzione delle emissioni in atmosfera.

Il ragguardevole risultato è stato raggiunto attraverso un approccio tecnico rigoroso e una visione d’insieme nella progettazione degli interventi

Costruito nel 1976 a Cavriago (RE), il condominio Edil Parco era l’espressione del tipico edificio residenziale multipiano dell’epoca del boom edilizio, con prestazioni energetiche scadenti e consumi elevati.

Il complesso, composto da 19 unità immobiliari distribuite su più livelli, presentava una superficie utile riscaldata di 1.422,54 m2 e un volume lordo riscaldato di 5.193,47 m3.

Lo stato di fatto era caratterizzato da un involucro edilizio con scarso isolamento termico, serramenti poco performanti e impianti termici autonomi di vecchia generazione. Le pareti perimetrali, realizzate in muratura laterizia non coibentata, rivelavano una trasmittanza termica di 0,913 W/m2K, ben lontana dagli standard attuali, i solai verso spazi non riscaldati (autorimesse e sottotetto) avevano valori di trasmittanza compresi tra 1,255 e 1,310 W/m2K, mentre i serramenti originali in legno con vetrocamera raggiungevano valori di trasmittanza tra 2,677 e 3,216 W/m2K. L’analisi termografica preliminare aveva inoltre

evidenziato numerosi ponti termici in corrispondenza dei solai interpiano, dei balconi a sbalzo e dei telai dei serramenti, con conseguenti dispersioni termiche localizzate e rischio di formazione di condensa e muffe. Gli impianti di riscaldamento autonomi, costituiti prevalentemente da caldaie standard installate negli anni ‘90 e primi anni 2000, avevano rendimenti globali stagionali molto bassi.

La certificazione energetica ante operam collocava il fabbricato in classe energetica D, con un indice di prestazione energetica globale non rinnovabile EPgl,nren di 165,47 kWh/m2 anno. Il fabbisogno di energia termica utile per il riscaldamento EPH,nd risultava di 97,70 kWh/m2 anno e i consumi annui si attestavano

sui 22.473 m3 di gas naturale e 6.356 kWh di energia elettrica.

La strategia di riqualificazione è stata sviluppata con l’obiettivo di raggiungere un miglioramento di cinque classi energetiche, ben oltre il requisito minimo del salto di due classi necessario per accedere alle detrazioni fiscali del Superbonus 110%.

L’intervento è stato concepito come una riqualificazione energetica dell’involucro edilizio, combinata con la sostituzione degli impianti termici esistenti. Il progetto ha previsto la posa di un sistema a cappotto ad alte prestazioni, di nuovi serramenti con elementi a elevato isolamento termico e l’installazione di schermature per il controllo degli apporti solari estivi.

L’edificio dopo l’intervento di riqualificazione visto dal cortile.

Progetto architettonico, Impianti e D.L. architettonica e strutturale

arch. Enrico Baschieri – Ecodesign s.r.l., Scandiano (RE)

Strutture

arch. Enrico Baschieri, ing. Stefano Paterlini – Ecodesign s.r.l.

Affidatario generale

Iren Smart Solutions s.p.a., Reggio Emilia

Impresa esecutrice

SEL Costruzioni s.r.l., Sestri Levante (GE)

Infissi

Nagà s.r.l., La Valle (BZ)

Cassonetti e schermature

Mimik s.r.l., Fidenza (PR)

Impianti

Tecno Calor Energie s.r.l., Scandiano (RE)

Superficie utile

1.440,21 m2

Trasmittanza media pareti esterne 0,098 – 0,132 W/m2K

Trasmittanza media solaio su vani non riscaldati 0,213 W/m2K

Trasmittanza media copertura 0,135 W/m2K

Trasmittanza media serramento 0,77 – 0,88 W/m2K

Indice di prestazione energetica EPgl,nren 52,07 kWh/m2 anno

Emissioni CO2 5,13 kg/m2 anno

Photo © Fabio
Boni
Photo © Fabio Boni
Vista renderizzata. Il cantiere finito.
Photo © Fabio Boni
Piano terra Piano tipo
Piano attico Sottotetto

L’analisi dell’irraggiamento solare

Il condominio è composto da tre edifici in linea, disposti a L intorno a un piccolo parco. Al piano interrato trovano posto le cantine e al piano terra i garage e le sale condominiali fredde; i livelli superiori ospitano le unità abitative. Due dei tre corpi di fabbrica del complesso edilizio si elevano per quattro piani fuori terra, mente quello centrale ha solo tre piani fuori terra; i corpi sono caratterizzati da diversi orientamenti dei prospetti e da una rotazione di 28° verso sud-ovest rispetto all’asse nord-sud. L’attenta analisi dell’irraggiamento solare, così da poterlo sfruttare come apporto passivo nel progetto di

riqualificazione, ha messo in evidenza il modo in cui i diversi orientamenti delle facciate godono, o meno, dell’irraggiamento stesso. Come è facilmente intuibile, gli affacci a sud verso il parco hanno il miglior orientamento, penalizzante però per le facciate a nord-est, sul lato dei garage. Un ulteriore studio dell’esposizione termica delle superfici degli alloggi ha evidenziato che le dispersioni degli appartamenti isolati sono dovute a ventilazione e infiltrazioni e sono quantificabili al 60% delle perdite totali. Queste indagini sono risultate fondamentali per la redazione degli interventi di riqualificazione.

Studio dell’esposizione termica delle superfici degli alloggi. Dall’alto, da sinistra a destra: cantine interrate e vani scala, garage e sale condominiali fredde, appartamenti del primo piano, appartamenti del secondo piano, appartamenti del terzo piano e sottotetto civico 3, sottotetti civici 1 e 5.

Controterra Interna Altra UI Esterna
Analisi dell’irraggiamento solare sulle facciate di Edil Parco. Coperture, lato parco, lato sud-est, lato nord-est e lato garage.

L’efficientamento dell’involucro

Il principale intervento di riqualificazione ha riguardato l’isolamento termico delle pareti verticali attraverso un sistema a cappotto realizzato con pannelli in EPS additivato con grafite dello spessore di 24-28 cm.

La scelta del materiale isolante è stata determinata dall’ottimo rapporto costo/prestazioni e dalla conducibilità termica particolarmente bassa (λ=0,031 W/mK).

Lo spessore considerevole dell’isolante ha permesso di raggiungere una trasmittanza termica finale delle pareti di 0,098-0,132 W/m2K, con una riduzione dell’85% rispetto allo stato di fatto, e di ridisegnare le facciate degli edifici, attualizzandole.

Particolare attenzione è stata posta al trattamento dei ponti termici: i pannelli isolanti sono stati posati con continuità in corrispondenza dei solai interpiano e dei balconi, questi ultimi isolati anche all’intradosso con uno strato di 10 cm di EPS additivato con grafite. Per il solaio verso le autorimesse si è scelto e applicato un sistema di isolamento all’intradosso con pannelli di EPS grafitato da 12 cm, raggiungendo una trasmittanza di 0,213 W/m2K.

La copertura dell’edificio, costituita da un solaio piano verso il sottotetto non riscaldato, è stata isolata all’estradosso con 24 cm di lana di roccia (λ=0,036 W/mK), portando la trasmittanza a 0,135 W/m2K. La scelta della lana di roccia per la copertura è stata dettata dalle migliori prestazioni in termini di isolamento acustico e protezione al fuoco.

Analisi agli elementi finiti delle pareti e verifica delle temperature superficiali.

Per quanto riguarda i serramenti, sono stati montati nuovi infissi in legno lamellare di abete con rivestimento esterno in alluminio e triplo vetro. I monoblocchi isolati e i cassonetti per gli avvolgibili e i frangisole sono stati inglobati nel cappotto.

Per migliorare il comfort estivo e ridurre i consumi per il raffrescamento, sono state installate schermature solari esterne costituite da tapparelle in alluminio coibentato con comando motorizzato. Le schermature sono state dimensionate per garantire un fattore di trasmissione solare totale gTot ≤ 0,35 quando la schermatura è abbassata.

La tenuta all’aria dell’involucro è stata notevolmente migliorata grazie a nastri e guarnizioni autoespandenti, sigillando il nodo serramento-parete e ponendo particolare attenzione ai punti di attraversamento dell’involucro (scarichi, sfiati, ecc.).

Vista del cortile interno prima e dopo l’intervento di riqualificazione.
Photo © Fabio Boni
Photo © Ecodesign

Impiantistica e controllo climatico

L’intervento impiantistico ha previsto la sostituzione di 16 caldaie autonome su 19 con nuovi generatori a condensazione di ultima generazione.

Le nuove caldaie, con potenza termica nominale di 24,7 kW, un rendimento a potenza nominale (40/30°C): 106% e rendimento al carico parziale del 30%: 108%, sono impiegate sia per il riscaldamento sia per la produzione di ACS. Ogni caldaia è dotata di centralina climatica con sonda di temperatura esterna per la modulazione della temperatura di mandata in funzione delle condizioni climatiche.

Il sistema di distribuzione esistente è stato mantenuto; tuttavia, sono state installate valvole termostatiche su tutti i radiatori per consentire una regolazione puntuale della temperatura nei singoli ambienti.

Redesign termico e di facciata del complesso abitativo.

I serramenti

In questo progetto sono stati installati nuovi infissi in legno lamellare di abete a 4 strati, con sezione 95x82 mm, rivestimento esterno in alluminio e triplo vetro basso emissivo con gas argon nell’intercapedine. Queste le loro caratteristiche prestazionali: trasmittanza termica del vetro U g pari a 0,50 W/m2K, trasmittanza termica del telaio Uf di 1,20 W/m2K, trasmittanza termica lineare del distanziatore Ψ g di 0,04 W/mK per una trasmittanza termica media del serramento U w uguale a 0,77-0,89 W/m2K. Il fattore solare g è di 0,50 e la trasmissione luminosa τv di 0,70. Per risolvere i problemi dovuti ai risvolti degli isolamenti sulle spallette dei fori finestra e sui davanzali e al fine di inserire facilmente degli ombreggianti, sono stati posti in opera sul piano esterno di facciata dei monoblocchi isolati. Questa scelta ha garantito lo smontaggio dei vecchi infissi solo al montaggio dei nuovi serramenti, ha garantito battute dotate di paraspigoli e rete per la posa del cappotto evitando di dover rompere e coibentare le stesse spallette e ha permesso di disaccoppiare soglie e davanzali, montando i nuovi elementi prima dell’intonacatura del cappotto, oltre oltre a cassonetti per avvolgibili e frangisole isolati e senza comunicazione con l’interno e zanzariere integrate.

Analisi agli elementi finiti nodo serramento-balcone –Verifica delle temperature superficiali.

Nodo serramento-balcone

1 purenite (75x100 mm)

2 soglia in pietra (30 mm)

3 architrave in laterocemento esistente

4 foro finestra esistente

5 aerogel (20 mm)

6 aerogel (10 mm)

7 massetto sabbia e cemento pendenziato (50 mm)

8 parapetto in c.a. esistente

9 EPS con grafite (100 mm)

10 EPS con grafite (40 mm)

11 copertina in lamiera preverniciata

12 angolare per spigoli con gocciolatoio e retina

Particolare della loggia

L’A-wert Test

Un approfondimento specifico è da riservare alla verifica alla permeabilità all’aria dei serramenti, valutata mediante l’A-wert Test. L’obiettivo dell’analisi, oltre a testare la qualità dell’installazione dei nuovi serramenti, è stato quello di verificare e misurare la permeabilità all’aria di un serramento installato nel 2019, un serramento installato indicativamente nel 1975 e un serramento installato nella fase di questa ristrutturazione. Vediamo come. Mediante un dispositivo composto da un telo a tenuta e un ventilatore, che genera un flusso d’aria nell’ambiente fino a raggiungere i valori di pressione previsti, è possibile misurare le dispersioni di aria di un serramento. Il dispositivo è collegato a un manometro digitale e a un computer che quantificano la portata d’aria generata. Sul serramento da misurare viene applicato un foglio in nylon a tenuta ermetica, dotato di un’apertura di ampiezza conosciuta. Durante la prova in opera, con il supporto di un termoanemometro, si rileva, per specifici punti critici, la velocità dell’aria correlata alla permeabilità dei giunti testati. Verificata la presenza di infiltrazioni legate alla tenuta dei serramenti e alla loro installazione, si valuta l’efficacia della posa e si stima la classe di tenuta all’aria del serramento installato, correlandole alle classi della UNI EN 12207.

Misurando, con apposito manometro, la differenza di pressione tra esterno e interno del nylon (ΔP finestra) e contemporaneamente quella tra interno nylon e interno casa (ΔP foro finestra) si stima la permeabilità all’aria dell’infisso e dei giunti presi in considerazione. Nello specifico caso sono stati raggiunti i seguenti risultati alla pressione di 50 Pa:

• finestra installata nel 2019 a 3 ante con montante fisso (una finestra a due ante e 1 finestra a 1 anta) e con superficie di 3,59 m2 e perimetro apribile di 11,50 m: tenuta all’aria 12,7 m3/h; tenuta all’aria sulla superficie 3,55 m3/h m2 (Classe 3 di permeabilità all’aria secondo UNI EN 12207);

• finestra installata nel 1975 a 3 ante con superficie di 3,59 m2: tenuta all’aria in condizione di utilizzo dei locali 930 m3/h, tenuta all’aria in condizione di utilizzo dei locali e serramento sigillato 750 m3/h, differenza tra i volumi imputabile alle infiltrazioni del sistema serramento campione 180 m3/h, stima della tenuta all’aria sulla superficie: 50,13 m3/h m2 (perdita che eccede la classe 1 di permeabilità all’aria secondo UNI EN 12207);

• finestra installata nel 2023/2024 a 2 ante, con superficie di 3,02 m2 e perimetro apribile di 9,620 m: tenuta all’aria 0,6 m3/h, tenuta all’aria sulla superficie 0,20 m3/h m2 (Classe 4 di permeabilità all’aria secondo UNI EN 12207).

Nodo copertura-solaio-parete

Copertura (A) dall’esterno

- manto di copertura in tegole portoghesi

- ventilazione con doppia orditura di listelli (50x40 mm)

- telo traspirante sd = 0,07 m

- lana di roccia (60 mm)

- freno al vapore sd > 2 m

- tavolato grezzo posato diagonalmente (25 mm)

- perlina in abete (19 mm)

- travetto in legno lamellare (100x200 mm)

Solaio verso vano non riscaldato (B) dall’estradosso

- pannello in OSB (15 mm)

- lana di roccia (120+120 mm)

- infralistellatura in morali d’abete (120x120 mm)

- guaina bituminosa

- malta cementizia fibrorinforzata livellante (20 mm)

- solaio laterocementizio esistente

- intonaco a calce e cemento esistente (10 mm)

1 canale di gronda in lamiera preverniciata

2 EPS con grafite (100 mm)

3 copertina in lamiera preverniciata

4 EPS con grafite (200 mm)

5 EPS con grafite (50 mm)

6 lastra in cemento fibrorinforzato (15 mm)

7 angolare per spigoli con gocciolatoio e retina

8 EPS con grafite (60 mm)

9 aerogel (20 mm)

della copertura esistente.

Analisi agli elementi finiti copertura – Verifica delle temperature superficiali.

Demolizione
Dettaglio di copertura
Demolizione del tetto, costruzione cordoli sottotetto; primo strato di isolamento del solaio tra listelli, secondo strato di isolamento continuo, tavolato in OSB; struttura portante del tetto in travi di legno lamellare; perlinatura e tavolato grezzo, pannello isolante, listelli di ventilazione e porta tegole.
Photo © Ecodesign
Photo © Ecodesign
Photo
Ecodesign
Photo
© Ecodesign
Photo
© Ecodesign
Photo
© Ecodesign
Photo
© Fabio Boni
Photo
© Fabio Boni

I risultati della riqualificazione

Il confronto tra lo stato di fatto e il post-intervento evidenzia miglioramenti significativi nelle prestazioni dell’involucro edilizio.

L’indice di prestazione energetica per il riscaldamento (EPH,nd) è passato da 97,70 kWh/m2anno a 16,30 kWh/m2anno, con una riduzione dell’83,3%. Questo dato è particolarmente significativo in quanto rappresenta la diminuzione del fabbisogno energetico utile dell’edificio, indipendentemente dall’efficienza degli impianti. Il nuovo coefficiente di trasmissione periodica Yie è 0,0040 W/m2K, partendo da 0,2805 W/m2K, e indica un eccellente controllo dell’inerzia termica.

Anche il rapporto S/V è stato ottimizzato – da 0,59 a 0,55 – e l’area solare equivalente per unità di superficie (Asol/Asup,utile) si è ridotta da 0,0431 a 0,0035, evidenziando un ottimale controllo degli apporti solari.

Le prove di permeabilità all’aria condotte sui serramenti hanno evidenziato un calo delle infiltrazioni d’aria del 99,6% rispetto agli infissi originali, con un conseguente drastico accrescimento del comfort abitativo e un forte decremento delle dispersioni per ventilazione.

L’intervento, pertanto, ha portato a riduzioni significative dei consumi energetici e delle emissioni. L’indice di prestazione energetica globale non rinnovabile (EPgl,nren) si è infatti abbassato da 165,47 kWh/m2anno a 51,42 kWh/m2anno, meno 68,9% rispetto a pre-riqualificazione, e ciò ha permesso all’edificio di raggiungere la classe A2 dalla classe energetica D di partenza. Sono stati ridimensionati i consumi di gas naturale, da 22.472,96 m3/ anno a 5.854,52 m3/anno, con un risparmio del 73,95% e con un impatto significativo sia in termini ambientali sia economici per i condomini.

Le emissioni di CO 2 sono limitate a 5,29 kg/m2anno da 16,66 kg/m2anno (- 68,24%), allineate con la riduzione dell’indice Epgl,nren, e il risparmio energetico totale di 122.746,89 kWh/anno è stato ottenuto attraverso diversi

interventi, ciascuno con un contributo specifico, ovvero:

• la sostituzione degli infissi ha contribuito a un risparmio di 31.003,64 kWh/anno, pari al 25,3% del risparmio totale, risultato ottenuto grazie all’installazione di serramenti con prestazioni termiche eccellenti e ottima tenuta all’aria;

• la posa di schermature solari ha portato a un risparmio di 3.702,13 kWh/anno, pari al 3,0% del totale; questo intervento, apparentemente marginale in termini energetici, contribuisce significativamente al comfort estivo;

• i lavori sull’involucro opaco hanno generato il risparmio più significativo, pari a 88.041,12 kWh/ anno (71,7% del totale) a conferma dell’importanza prioritaria dell’isolamento termico nelle riqualificazioni energetiche.

In conclusione, la riqualificazione energetica del condominio Edil Parco rappresenta un caso studio esemplare di come un approccio integrato alla riqualificazione energetica possa portare a risultati eccellenti. Dovendo ricercare i principali punti di forza del progetto, possiamo elencare:

• l’approccio sistemico che ha considerato tutti gli aspetti dell’efficienza energetica;

• l’attenzione alla qualità realizzativa, particolarmente evidente nei risultati delle prove di tenuta all’aria;

• il bilanciamento tra interventi sull’involucro e sugli impianti e l’ottimizzazione del comfort sia invernale sia estivo.

La riduzione del fabbisogno di energia primaria non rinnovabile, unita al miglioramento delle prestazioni dell’involucro, dimostra che è possibile trasformare edifici esistenti energivori in edifici ad alte prestazioni energetiche e il caso del condominio Edil Parco può quindi servire come riferimento per future riqualificazioni energetiche, evidenziando l’importanza di un approccio tecnico rigoroso e di una visione d’insieme nella progettazione degli interventi.

ecodesign

Ecodesign è una società di ingegneria che fornisce servizi di consulenza in materia di simulazione dinamica degli edifici, fluidodinamica, modellazione BIM, verifiche di ponti termici, verifiche di illuminazione e ventilazione naturale, termografia all’infrarosso e si occupa di ingegnerizzazione per la costruzione di edifici a energia zero, edifici passivi ed EnergyPlus, garantendo un’esecuzione del progetto attenta al dettaglio e affidabile nella scelta e posa in opera dei materiali.

Team leaders: Anne Friederike Goy, presidente, specializzata nella realizzazione di modelli virtuali, nella progettazione del verde, nelle tecniche della permacultura e nell’uso dei materiali e dei colori naturali, Enrico Baschieri, architetto direttore tecnico, si occupa della progettazione e realizzazione di case a energia zero e EnergyPlus, unendo le competenze progettuali alla pratica di cantiere, Marco Donadelli, architetto, specializzato nella modellazione energetica e gestione di progetti BIM.

Casa a energia zero a San Martino in Rio (RE), 2015-2018. Ristrutturazione con ampliamento in legno.

Casa a bassissimo consumo energetico a Montecchio (RE), 2022-2023. Demolizione e ricostruzione.

Photo
© Fabio Boni
Photo © Andrea Segliani

Elisa Mensa Claudio Bosio

Riqualificazione low-tech

Marene (CN)

La riqualificazione e il recupero di una villa del 1950 circa ha portato i progettisti a riflettere su quanto sia oggi fondamentale ristrutturare il patrimonio costruito senza snaturarne l’architettura. Una rilettura contemporanea degli elementi tipici dell’epoca ha dato vita a un edificio basato su un approccio low-tech che ricerca l’anima originaria della villa

Una villa di metà Novecento, immersa in un rigoglioso giardino dominato da un monumentale albero di cachi, è diventata il punto di partenza per una riflessione profonda sull’importanza del recupero del patrimonio edilizio esistente.

L’edificio rinnovato, che ospita sia uno studio professionale sia un’abitazione privata, si presenta, infatti, come una reinterpretazione contemporanea di elementi tipici dell’architettura degli anni ‘50.

La casa si sviluppa su tre livelli distinti: al piano terra trova spazio lo studio professionale, mentre i piani superiori accolgono la residenza. Questa suddivisione garantisce una separazione funzionale tra lavoro e vita privata, rispettando al contempo l’integrità dell’edificio.

Uno degli elementi centrali del progetto è stata la volontà di preservare la distribuzione “labirintica” originaria, arricchendola di un dialogo costante con l’esterno e, in particolare, con l’albero di cachi.

La scelta di liberare completamente la parete sud della villa ha permesso di valorizzare al massimo la presenza scenica dell’albero, visibile da tutta la zona giorno. Il cuore pulsante di questo

Mensa, Claudio Bosio

spazio è la cucina, collocata al centro e ispirata alle case dell’epoca di costruzione del fabbricato, sia per i materiali utilizzati sia per la configurazione compatta e funzionale. Accanto alla cucina, un bow-window prende il posto dell’antico balcone, offrendo uno spazio contemplativo e intimo, isolato e allo stesso tempo in continuità con gli altri ambienti.

La sala da pranzo e il soggiorno mantengono la loro autonomia funzionale, ma sono legati da un corridoio luminoso che corre lungo la parete sud, evocando la disposizione planimetrica originale.

L’intervento di adeguamento sismico ha offerto l’opportunità di recuperare il sottotetto, trasformandolo, almeno in parte, in una cameretta su due livelli progettata per accompagnare la crescita della figlia dei proprietari.

Ogni livello è pensato per una funzione specifica, la-

Stato di fatto e immagini della villa riqualificata inserita nel contesto del centro abitato.

Progetto architettonico e D.L. arch. Elisa Mensa in collaborazione con arch. Claudio Bosio –Fluido Arch, Marene (CN)

Strutture e Impianti ing. Giuseppe Alladio, Fossano (CN)

Appaltatore

Impresa edile Panero Fratelli Emanuele e Giacomo s.n.c., Marene (CN)

Superficie utile

245 m2

Trasmittanza media pareti esterne

0,208 W/m2K

Trasmittanza media solaio su locali freddi 0,149 W/m2K

Trasmittanza media copertura

0,203 W/m2K

Trasmittanza media superfici trasparenti 0,8 W/m2K

Fabbisogno energia per riscaldamento 51,14 kWh/m2anno

Photo © Andrea Segliani

1 autorimessa

ripostiglio

sciando però spazio alla flessibilità e al cambiamento. Questo progetto dimostra come un edificio del passato possa essere trasformato in uno spazio abitativo e lavorativo contemporaneo, senza rinunciare alla sua

anima originaria. La villa non è solo un esempio di recupero e reinterpretazione, ma anche una testimonianza di come l’architettura possa creare un dialogo armonioso tra memoria e innovazione.

Piano terreno
Photo © Andrea Segliani
Elisa Mensa, Claudio Bosio

La sostenibilità

Per questo progetto è stato adottato un approccio low tech. Si è data infatti più importanza a coibentazioni che fossero efficaci sia nel periodo estivo sia in quello invernale, ai sistemi di oscuramento e alla ventilazione naturale piuttosto che agli impianti tecnologici, abbracciando un approccio progettuale bioclimatico. Si è pertanto deciso di non inserire un impianto di ventilazione meccanica controllata e di conseguenza neppure

quello di raffrescamento. Un’attenta progettazione degli sporti della copertura, così da mantenere in ombra la facciata sud nei mesi estivi, sistemi oscuranti orientabili e il corretto posizionamento delle finestre sul tetto, abbinati al controllo domotico del loro funzionamento, consentono da soli di mantenere la casa fresca anche in estate, senza dover ricorrere a impianti sofisticati e bisognosi di costante manutenzione.

La scala tra la camera al primo piano e la camera nel sottotetto e viste della camera ricavata al piano mansardato.
Photo © Ramona Balaban
Photo © Ramona Balaban
Sezione trasversale
Prospetto sud
Prospetto ovest
Il soggiorno a doppia altezza; lo spazio libreria nella mansarda; il disimpegno; la cucina; il bow window.
Photo
© Ramona Balaban
Elisa Mensa, Claudio Bosio
Photo
© Ramona Balaban
Photo © Ramona Balaban
Photo © Ramona Balaban
Photo © Ramona Balaban

Solaio mansarda – 1° piano (C) dall’estradosso

- pavimento in gomma

- massetto fibrorinforzato con affogate tubazioni del riscaldamento a pavimento

- pannello isolante bugnato

- sottofondo alleggerito per impianti

- guaina impermeabilizzante

- tavolato in legno

- travi portanti in legno lamellare

- intercepedine d’aria

- controsoffitto in cartongesso appeso con sistema a cavetti

Solaio 1° piano-piano terra (D) dall’estradosso

- pavimento in gomma

- massetto fibrorinforzato con affogate tubazioni del riscaldamento a pavimento

- pannello isolante bugnato

- sottofondo alleggerito per impianti

- solaio in laterocemento pre-esistente

- lastra cartongesso incollata

Copertura inclinata (A) dall’esterno

- manto di copertura in tegole laterizie

- listello porta tegola

- listello trasversale in legno per intercapedine di ventilazione

- telo anti goccia

- pannello in fibra di legno mineralizzata

- coibentazione in lana di legno spessore (180 mm)

- guaina freno al vapore

- tavolato eseguito con perline maschiate con posa a effetto tavolato (20 mm)

- travi portanti in legno lamellare

Copertura inclinata (B) dall’esterno

- finestra da tetto

- imbotte in legno realizzato su disegno

- travi portanti in legno lamellare

Stato di fatto; demolizioni; rifacimento dei solai della mansarda e di copertura; coibentazione a cappotto in lana di roccia; impianti in corrispondenza del box cucina; supporti della scala per accedere alla mansarda dalla camera; lavori di completamento del piano mansardato.
Elisa Mensa, Claudio Bosio

Le soluzioni impiantistiche

Guidato dalla filosofia progettuale “low-tech” che permea l’intero progetto, anche l’approccio impiantistico è semplice ma efficiente e in armonia con il contesto e la struttura originaria. Come accennato, non è stato previsto un impianto di ventilazione meccanica controllata né uno di raffrescamento. Per contrastare il surriscaldamento estivo, il tetto è stato progettato con uno sporto adeguato a ombreggiare la facciata sud, mentre le pareti perimetrali e la copertura sono state coibentate rispettivamente con lana di roccia e fibra di legno al fine di garantire elevate prestazioni termiche in tutte le stagioni. La ventilazione naturale è ottimizzata da un sistema domotico che gestisce l’apertura motorizzata dei lucernari, sfruttando il principio dell’effetto camino per migliorare il comfort interno in modo efficiente ed ecologico. Per quanto riguarda l’impianto di riscaldamento e di produzione di acqua calda sanitaria si è scelto un sistema ibrido costituito da una caldaia a condensazione abbinata a una pompa di calore alimentata dall’impianto fotovoltaico integrato e posto in opera sulla falda rivolta a sud.

Le serpentine del riscaldamento a pavimento.
Il cuore impiantistico della villa.

Architetti Elisa Mensa e Claudio Bosio

Laureata in Architettura presso il Politecnico di Torino, l’arch. Elisa Mensa fonda nel 2012 FLUIDO ARCH

Architettura assieme all’arch. Claudio Bosio. Lo studio si occupa di progettazione architettonica a tutto tondo, progettazione di interni, direzione lavori con una particolare attitudine al recupero e alla riqualificazione energetica dell’esistente al fine di far dialogare il vecchio con il nuovo in modo armonico.

Fortemente convinti che la qualità architettonica sia un valido strumento per migliorare il benessere dell’uomo, gli architetti dedicano molto spazio alla ricerca tecnologica e formale, curando ogni dettaglio anche nel disegno di arredi e spazi interni, con particolare attenzione all’interpretazione delle necessità e dei desideri del cliente. La completa integrazione tra gli elementi di arredo e lo spazio architettonico è il punto di arrivo di ogni loro progetto.

Edificio unifamiliare a Savigliano (CN), 2018-2018. Ristrutturazione e progettrazione degli interni. Casa bifamiliare a Marene (CN), 20152017. Nuova costruzione.

I due bagni della casa.

Photo © Ramona Balaban
Photo © Ramona Balaban
Elisa Mensa, Claudio Bosio
Photo

tIPS Architects

Tradizionalmente contemporanea

Ispirata alla tradizionale architettura delle cascine cremasche, la nuova abitazione risponde alla richiesta dei committenti di spazi interni liberi e ampi, sviluppandosi in lunghezza e a livello del piano terreno. L’edificio è stato progettato secondo lo standard CasaClima, ponendo particolare attenzione alle coibentazioni e alla tenuta all’aria e all’acqua e utilizzando consapevolmente fonti energetiche rinnovabili

La richiesta principale da parte dei committenti, una famiglia di quattro persone, per la loro abitazione consisteva nel disporre liberamente di ampi spazi interni e, viste tali esigenze, gli architetti dello studio tIPS Architects hanno sviluppato l’impianto planimetrico della casa in lunghezza, così da assecondare anche le peculiarità geometriche del lotto. Tale geometria, tuttavia, è stata alterata intenzionalmente dalla piega in corrispondenza del soggiorno che crea una nuova e inattesa tensione tanto all’interno quanto all’esterno, chiudendo in tal modo la lunga prospettiva e realizzando un contesto più accogliente per l’utilizzo del portico e della piscina. Spazialmente la distribuzione interna scandisce il ritmo di questa manipolazione: la piega definisce, infatti, l’ambito della zona giorno, mentre il patio rappresenta una pausa che genera punti di vista inaspettati per traguardare i diversi locali interni attraverso l’esterno, accompagnando il passaggio alla zona notte. Pur esplicitamente contemporanea, la casa nella sua sezione

longitudinale è un chiaro riferimento alla tipologia della cascina cremasca di cui riprende l’impianto esterno e l’asimmetria delle falde; l’altezza generata da queste ultime diventa pertanto l’occasione per incastonare un soppalco destinato alla lettura e al relax, posto in equilibrio tra il soggiorno, sul quale si affaccia, e il terrazzo, ricavato come fosse un’apertura a tasca nella copertura e schermato dalla gelosia di mattoni rivolta verso il patio. Anche da qui è possibile traguardare i diversi locali interni attraverso l’esterno. Le grandi falde e l’impiego delle gelosie in laterizio stabiliscono, inoltre, un rapporto di continuità con la caratteristica tecnologia costruttiva tradizionale degli insediamenti rurali di questo territorio. L’abitazione insiste su due aree edificabili, comprese

Il

all’interno del piano attuativo residenziale, principalmente al piano terreno, suddiviso su due quote leggermente diverse, dovute alla presenza di un livello interrato, adibito in parte ad autorimessa e in parte a cantina e locali tecnici, posto al di sotto dell’area giorno. La distribuzione verticale tra i diversi livelli è garantita dalla scala, mentre un piccolo ascensore domestico mette in comunicazione il piano interrato con il piano terra. La relazione tra gli spazi interni e quelli esterni è garantita da un portico molto profondo rivolto verso sud che, dal soggiorno verso la piscina, riduce la profondità fino a “sporto di gronda” in prossimità della zona notte percorrendo l’intero perimetro dell’edificio. L’edificio è stato progettato nel rispetto dei criteri costruttivi CasaClima.

schermato dalla gelosia di mattoni e il portico in corrispondenza della zona giorno.

Progetto architettonico

arch.tti Paolo Capuano, Marco Venturelli, Andrea Sfogliarini –tIPS Architects, Crema (CR)

Strutture

ing. Monia Malatesta, Crema (CR)

Direttore dei lavori

arch. Paolo Capuano – tIPS Architects

Consulente termotecnico e CasaClima

arch. Giuseppe Cabini, Offanengo (CR)

Impianti

p.i. Roberto Vincenzi, Roè Volciano (BS)

Appaltatore

Impresa Edile Chizzoli, Trescore Cremasco (CR)

Certificazione

• Classe A4 – Regione Lombardia

Lavori 2019 – 2021

Superficie lotto 1.800 m2

Superficie abitazione 350 m2

Trasmittanza media pareti esterne 0,11 W/m2K

Trasmittanza media solaio contro terra 0,16 W/m2K

Trasmittanza media copertura 0,13 W/m2K

Trasmittanza media superfici trasparenti 0,90 W/m2K

Indice prestazione energetica non rinnovabile EPgl,nren 18,53 KWh/m2

Indice prestazione energetica rinnovabile EPgl,ren 60,30 Kwh/m2

Emissioni di CO2 4,12 kg/m2

terrazzo
Planimetria generale
Pianta piano terra
Pianta piano primo
Prospetto sud
Prospetto nord

L’affaccio verso la via pubblica a nord e la rampa di accesso al piano interrato a ovest.

Struttura, involucro e impianti

La tecnologia costruttiva impiegata nell’edificio è propedeutica alla realizzazione di un fabbricato dalle prestazioni energetiche elevate con nodi costruttivi e stratigrafie progettate conformemente al protocollo CasaClima. La casa ha struttura portante in calcestruzzo armato con fondazioni del tipo a platea e con i muri perimetrali del piano interrato e la relativa fondazione che sono parte del sistema di impermeabilizzazione “vasca bianca”. Le murature di tamponamento esterne sono realizzate con blocchi di calcestruzzo areato autoclavato dello spessore di 30 cm, mentre le pareti divisorie interne sono di due tipologie diverse, anche se i vari locali dell’abitazione sono suddivisi prevalentemente tramite tramezzi a secco, composti da lastre in cartongesso con interposto isolamento acustico in lana minerale.

I tetti a falda degli spazi abitati sono in legno a orditura unica, posata trasversalmente rispetto ai muri perimetrali, con manto di copertura in lamiera aggraffata color antracite. La copertura del portico a sud è invece sostenuta da un struttura primaria in carpenteria metallica e una secondaria in legno.

La coibentazione, infine, rappresenta il valore aggiunto che qualifica l’intervento ed è stata progettata in maniera tale da isolare l’intero involucro edilizio senza soluzione di continuità.

Dal punto di vista impiantistico la casa è dotata di riscaldamento radiante a pavimento e ventilazione meccanizzata in ogni locale, gestiti da un sistema domotico, oltre a un campo geotermico di preriscaldamento sotto fondazione e un impianto fotovoltaico in copertura.

Photo
© Daniele
Pavesi
Photo © Daniele
Pavesi

Il valore aggiunto della coibentazione

Come accennato alla pagina precedente, la coibentazione ha rappresentato un valore aggiunto per l’abitazione che è stata progettata secondo lo standard CasaClima.

In dettaglio: l’isolamento al di sotto delle platee di fondazione è in lastre di polistirene espanso estruso, caratterizzato da un’elevata resistenza a compressione e utilizzato anche per la coibentazione dei muri perimetrali del piano interrato.

Il sistema di isolamento termico a cappotto delle facciate, dello spessore pari a 22 cm, è stato realizzato tramite lastre di polistirene espanso sinterizzato contenente particelle di grafite, incollate sulle murature perimetrali in blocchi di c.a.a. con malta collante minerale.

Il ciclo di posa è stato completato da una rasatura con malta minerale armata con rete in fibra di vetro sulla quale è stato eseguito un intonaco di finitura con legante organico.

La copertura, invece, è isolata con pannelli in fibra di legno vergine per uno spessore complessivo di 30 cm. Le finiture esterne, oltre a quelle già previste dal sistema a cappotto, sono caratterizzate dall’impiego del laterizio faccia vista in tre diversi formati: il listello di rivestimento, il mezzo mattone e il mattone intero, utilizzati per la formazione di grigliati a “gelosia”.

Il piccolo patio che si forma tra la zona giorno e notte, uno scorcio dell’area dell’ingresso da nord e viste da sud dell’abitazione con la zona piscina.

Solaio contro terra (A) dall’estradosso

- parquet multistrato (20 mm)

- caldana (30+30 mm)

- pannello XPS per riscaldamento a pavimento (20 mm)

- cappa armata (50 mm)

- vespaio con iglù e passaggio impianti (200 mm)

- platea in c.a. (200 mm)

- foglio in PE

- membrana anti-radon

- magrone (100 mm)

- terreno

1 impermeabilizzante elastico bi-componente

2 pannello XPS (200 mm)

Il geotermico orizzontale di preriscaldamento, l’isolamento sotto platea, la predisposizione delle armature e la platea di fondazione.

Interno caldo
Esterno

Parete fuori terra (B) dall’interno

- intonaco (10 mm)

- parete in blocchi di calcestruzzo areato autoclavato (300 mm)

- colla (5 mm)

- pannelli in polistirene espanso sinterizzato grafitato (220 mm)

- rasatura

Parete contro terra (C) dall’interno

- intonaco (10 mm)

- parete in c.a. (250 mm)

- impermeabilizzante per ambienti sotto quota

- colla (5 mm)

- pannelli in polistirene espanso estruso (100+100 mm)

- membrana bugnata

1 impermeabilizzante elastico bi-componente

2 guaina bituminosa adesiva

L’isolamento dell’interrato, i tamponamenti in blocchi di calcestruzzo areato autoclavato, la posa del cappotto, il Blower Door Test.

Copertura (D) dall’esterno

- rivestimento di copertura in lamiera aggraffata su assito

- listelli di ventilazione (60 mm)

- telo traspirante

- pannello in fibra di legno (20 mm)

- pannello in fibra di legno (140+140 mm)

- freno vapore

- assito (20 mm)

- travature portanti in legno

1 correa in c.a. (250 mm)

2 pannello in XPS (50 mm)

L’isolamento della copertura in fibra di legno, l’installazione della finitura in lamiera aggraffata color antracite, ultimazione della copertura della zona giorno.
Interno caldo
Esterno

tIPS ARCHITECTS

Lo Studio tIPS ARCHITECTS viene fondato nel 2010 dagli architetti Paolo Capuano e Marco Venturelli e con l’arrivo nel 2014 dell’architetto Andrea Sfogliarini il team si completa definitivamente. L’attività degli architetti si focalizza su tematiche progettuali legate alle tipologie residenziali, terziarie/produttive e culturali nell’ambito delle nuove costruzioni, del restauro e del progetto del paesaggio. La progettazione viene sviluppata in tutte le sue fasi: dal concept ai dettagli esecutivi, con particolare attenzione all’impiego di soluzioni atte a garantire il contenimento dei consumi e la sostenibilità attraverso la ricerca e l’innovazione. I progetti dello studio sono stati pubblicati – e premiati – su siti web e riviste di settore. Nell’ambito degli incarichi pubblici lo studio ha ricevuto la menzione d’onore al Concorso per il progetto di realizzazione della nuova scuola media di Erbusco e si è aggiudicato la progettazione e la direzione lavori dell’intervento volto alla riqualificazione del Parco Ex-Pierina a Crema.

Boni Headquarter a Ripalta Cremasca (CR), 2014-2019. Nuovo comparto produttivo artigianale. Edificio residenziale a Lodi, 2020-2021. Restauro con efficientamento energetico di porzione di palazzo storico.

Vista dall’alto dell’abitazione.
Photo © Daniele Pavesi

Dopo 10 anni...

Chivasso (TO)

Certificata CasaClima Gold, ECO2house è stata progettata per minimizzare i consumi energetici e i costi di costruzione e per risparmiare risorse e materiali. A quasi 10 anni dalla sua costruzione e con una nuova immagine esterna, l’abitazione conferma, attraverso consumi e guadagni costantemente monitorati, che le scelte progettuali effettuate all’epoca dall’architetto e proprietario erano corrette

Nel 2016 su queste pagine veniva pubblicato un articolo dedicato alla realizzazione del progetto ECO2house, un’abitazione certificata CasaClima Gold che, per le scelte progettuali e costruttive effettuate dal progettista e proprietario, si poneva nel panorama dell’efficienza energetica come un modello da prendere a esempio. L’idea di partenza per la progettazione dell’edificio era stata quella di realizzare una casa ad alta efficienza energetica, passiva, che costasse come un edificio tradizionale. Questo concetto iniziale aveva portato allo studio e alla ricerca di metodi costruttivi e materiali più adatti al fine di ottimizzare le forniture, il loro approvvigionamento e la gestione dei costi. Tali obiettivi, uniti alla redazione di un progetto esecutivo coordinato e integrato, hanno portato a ridurre le tempistiche di cantiere – dallo scavo all’ingresso dei committenti in casa erano trascorsi solo 12 mesi – e a realizzare il fabbricato nel rispetto dei costi previsti, ovvero meno di 1.200 €/m2!

Il progetto, infatti, era stato guidato da principi di logica e di economia che avevano consentito la verifica di tutto il processo progettuale: dalla razionalizzazione dei volumi per generare un involucro privo di ponti termici, all’impiego di un sistema co-

struttivo in blocchi di calcestruzzo cellulare, materiale omogeneo che ha permesso di evitare rifiuti indifferenziati, poiché gli sfridi sono stati reimpiegati in altre lavorazioni, e di garantire pertanto un cantiere pulito e poco inquinante.

Prima di vedere quali sono stati i reali consumi della casa in quasi 10 anni di utilizzo, ricordiamo, qui e nelle pagine seguenti, alcune caratteristiche salienti. L’involucro, realizzato in c.a.a., è un solido isotropo, al quale sono state sottratte delle porzioni di volume per ottenere ambienti ideali, con componenti aggiuntivi, quali balconi e aggetti che non intaccano lo spazio riscaldato, garantendo continuità della coibentazione e l’eliminazione dei ponti termici. Le esigenze spaziali dei committenti sono state tradotte in un progetto

L’affaccio verso il giardino a sud e il fronte di ingresso.

Progetto architettonico, Strutture, D.L., Impianti e Consulente CasaClima arch. Gianni Izzo, Chivasso (TO)

Appaltatore

Rrokaj Admirin

Superficie utile 193, 40 m2

Certificazione

• CasaClima Gold

architettonico che si integra con quello strutturale, così da ottimizzare le quantità di materiale utilizzato e gli oneri costruttivi. Per preservare l’integrità dell’involucro, costituito da un unico materiale, il progettista ha previsto un cavedio per il passaggio di tutti gli impianti, effettuando un solo foro nel solaio; tutti i frutti degli impianti sono stati posti sulle pareti interne in cartongesso, soluzione che ha richiesto a priori un preciso studio della collocazione degli arredi. Dal punto di vista impiantistico ECO2house è dotata di un impianto di ventilazione meccanica controllata con recuperatore di calore per la climatizzazione invernale ed estiva e di una pompa di calore per la produzione di acqua calda sanitaria, entrambi alimentati dal fotovoltaico installato in copertura.

- piano interrato 82,60 m2

- piano terra 71,60 m2

- piano sottotetto 39,20 m2

Trasmittanza media pareti esterne 0,12 W/m2K

Trasmittanza media solaio contro terra 0,11 W/m2K

Trasmittanza media copertura 0,10 W/m2K

Trasmittanza media superfici trasparenti 0,85 W/m2K

Fabbisogno energia per riscaldamento 10,00 kW/m2 anno

La nuova facciata

Negli ultimi tempi ECO2house è stata oggetto di una serie di interventi che ne hanno modificato l’immagine originaria. Le facciate esterne sono state rifatte, con una serie di linee diagonali intersecantesi che disegnano forme sulle superfici e caratterizzano i prospetti. Una bussola in vetro e acciaio è stata costruita in adiacenza e davanti all’ingresso dell’abitazione, al fine di creare una zona “cuscinetto” tra l’esterno e l’interno riscaldato.

Il lieve portico, che ombreggiava e proteggeva dall’irraggiamento solare la grande apertura a sud della zona living, è stato chiuso da una vetrata, completamente apribile nella stagione estiva così da dilatare la zona giorno verso il nuovo patio esterno e il nuovo giardino. In inverno la grande vetrata è chiusa e crea un effetto serra che garantisce una riserva di aria riscaldata nelle giornate di sole, aria che è immagazzinata dall’edificio grazie alla tenuta dell’involucro.

Gianni Izzo

Prospetto nord

Prospetto sud

Prospetto est

Prospetto ovest

Pianta piano terra
Pianta piano seminterrato
Pianta piano sottotetto
Pianta copertura
Sezione AA
Sezione BB
Photo
Photo © Gianni Izzo
Photo © Gianni
Photo

L’involucro efficiente

L’involucro opaco dell’abitazione è stato realizzato con blocchi in calcestruzzo aerato autoclavato e cappotto in pannelli di calcio silicato. La fondazione in c.a. è coibentata in XPS; in c.a. sono anche i pilastri che sostengono il primo piano e il sottotetto. La rasatura del cappotto e l’intonaco sono stati forniti dalla stessa azienda produttrice dei blocchi per assicurare la coerenza materica e prestazionale del sistema costruttivo. I solai sono costituiti da

lastre semi-prefabbricate in calcestruzzo cellulare appoggiate su travi di acciaio REP, al fine di evitare casseforme. La copertura presenta un tavolato in OSB inchiodato alla struttura in travi di legno lamellare, incastrate nelle murature perimetrali, con una prima coibentazione in fibra di roccia tra le travi, un secondo strato al disopra del tavolato e teli traspiranti freno vapore opportunamente nastrati. I tramezzi interni sono in cartongesso, tranne la muratura principale dei bagni, realizzata in blocchi di c.a.a. per il fissaggio dei sanitari sospesi.

Nelle foto sotto, la fondazione e i pilastri in c.a. del seminterrato; le travi di acciaio REP; le lastre semi-prefabbricate in calcestruzzo cellulare; il volume della casa in completamento; dettaglio della muratura e del cappotto.

Energia rinnovabile

Per coprire il proprio fabbisogno energetico l’abitazione sfrutta energie rinnovabili. L’edificio, infatti, è gas-free e l’energia elettrica per il suo funzionamento proviene da un contatore della rete di 3 kW e da un impianto fotovoltaico di 3,5 kW, installato in copertura. Visti i fabbisogni di potenza di 2 kW e di energia di 10 kW/m2 anno per il riscaldamento, si è deciso di non installare un impianto di riscaldamento tradizionale all’interno dell’edificio; i 2 kW, necessari per rispettare i requisiti di legge sono soddisfatti dai termosifoni elettrici nei bagni e in soggiorno. Il calore per scaldare l’abitazione è garantito soprattutto dall’apporto solare gratuito, captato attraverso la grande vetrata orientata a sud protetta dalla nuova serra, e dal sistema di ventilazione meccanica controllata con recuperatore di calore entalpico. Una pompa di calore produce l’acqua calda sanitaria e il recupero delle acque piovane consente il loro riutilizzo per gli sciacquoni dei wc e per l’irrigazione del giardino. La distribuzione delle tubazioni degli impianti è concentrata verticalmente in un unico cavedio, dal locale tecnico nel seminterrato sino al primo piano.

Il cavedio e le contropareti dove passano le condutture impiantistiche; il serbatoio di accumulo delle acque piovane interrato in giardino; l’impianto fotovoltaico installato in copertura e la macchina della VMC con le tubazioni di mandata e di presa dell’aria esterna completamente coibentate.

Realizzazione della fondazione e posa della guaina di impermeabilizzazione; isolamento del solaio di fondazione in XPS; posa dei blocchi in calcestruzzo aerato autoclavato.

Parete contro terra (A) dall’esterno

- guaina bituminosa con risvolto

- isolamento in XPS (50 mm)

- muro di fondazione in c.a. (300 mm)

- isolamento in XPS (100 mm)

- intonaco interno

Solaio contro terra (B) dall’estradosso

- battuto in cls armato (100 mm)

- isolamento in XPS (100 mm)

- battuto in cls armato (120 mm)

- vespaio in ciottoli (400 mm)

- strato di pulizia (100 mm)

1 inserimento guaina bituminosa alla base della muratura in c.a.a.

2 scala autoportante in acciaio

Particolare dell’interrato

Copertura (C) dall’esterno

- lamiera in alluminio verniciata

- intercapedine ventilata (60 mm)

- telo traspirante e a tenuta

- pannello in lana di roccia (150 mm)

- pannello in lana di roccia (250 mm)

- freno a vapore

- pannello in OSB (30 mm)

Parete esterna (D) dall’esterno

- rasatura

- isolante termico in pannelli di calcio silicato (220 mm)

- muratura portante in c.a.a. (300 mm)

- intonaco interno (20 mm)

Solaio interpiano (E) dall’estradosso

- pavimentazione (20 mm)

- sottofondo pavimento (120 mm)

- solaio a lastre in c.a.a. (200 mm)

+ caldana (50 mm)

- intonaco interno (15 mm)

1 trave dormiente in legno

2 trave in legno (150x250 mm; interasse max 2.000 mm)

Nodo parete esterna – copertura – solaio interpiano

Il timpano di copertura con la sagomatura per l’appoggio delle travi in lamellare; il tavolato che chiude inferiormente il pacchetto tetto; i primi strati di isolamento in lana di roccia tra le travi; il secondo strato di isolamento al di sopra delle travi; telo di chiusura della copertura e posa dei supporti per il manto metallico.

ISOLANTE TERMICO Styrodur 3035CS sp. 30 cm
CALDANA CON RETE EL. sp. 7 cm
SOTTOFONDO PAVIMENTO sp. 8 cm
PAVIMENTO sp. 2 cm
INTONACO INTERNO sp. 2 cm
MURATURA PERIMETRALE Ytong Thermo sp. 30 cm
ISOLANTE TERMICO A CAPPOTTO Multipor sp. 22 cm
RASATURA
SOLAIO A LASTRE YTtong sp. 20 cm + 5 cm CALDANA

Costi e risparmi

Come già accennato, la casa è stata costruita nel 2014 a un costo inferiore ai 1.200 €/m2 e, tra tutte le spese sostenute, l’involucro è quello che ha richiesto il maggiore esborso, mentre gli impianti hanno avuto una minore incidenza. Visto il fabbisogno di potenza di riscaldamento di 2 kW e la scelta di avere un edificio gas free, è stato installato un impianto fotovoltaico da 3,5 kW con contratto di Scambio sul Posto. Pertanto, controllando tutte le bollette, dall’ingresso a oggi la casa ha avuto un costo medio annuo di gestione per tutte le spese di soli 524,68 €. Se facessimo un paragone con un edificio ricadente in classe A4, con la medesima superficie e sito nella stessa regione, vedremmo che ECO2house per la sola mancanza dell’allaccio alla rete del gas ha ottenuto un risparmio di oltre 1.000 €, richiesti per la gestione del

contatore (120,00 €/anno x 9 anni = 1.080,00 €). Il consumo di gas per il riscaldamento nella casa presa a confronto è supposto in 1.000 m3 all’anno che, stimando il prezzo del gas, compresi tutti gli oneri e l’IVA, a 1 €/m3, porta a un costo annuo di 1.000 €; moltiplicato per 9 anni, si ha un costo totale di 9.000 €.

A ciò si dovrebbero aggiungere anche le spese per la manutenzione della caldaia, qui non conteggiate. Tirando le somme, la sola mancanza dell’allaccio alla rete del gas ha permesso a ECO2house un risparmio di 10.000 €, utilizzati dall’architetto-committente per realizzare le migliorie architettoniche delle facciate, della bussola di ingresso, della serra e del giardino. Quindi una progettazione dettagliata, una direzione lavori accurata, un involucro estremamente prestante e pochi impianti efficienti garantiscono basse spese di gestione, anche a distanza di anni, oltre a un ottimo comfort interno.

L’ampio open space della zona living affacciata sul giardino.
Photo © Xella
Italia

Architetto Gianni Izzo

Laureato in Architettura al Politecnico di Torino, Gianni Izzo ha lavorato dal 1979 in uno studio di ingegneria e architettura occupandosi di progettazione e D.L. di edifici civili, industriali, commerciali, urbanistica e design. Nel 1992 apre il proprio studio dedicandosi soprattutto all’edilizia residenziale, con progetti di edifici e complessi immobiliari in Piemonte, Liguria e Vallle d’Aosta. La sensibilità verso le tematiche ambientali in edilizia lo portano a interessarsi all’architettura sostenibile e ad avvicinarsi agli edifici nZEB, diventando nel 2013 Consulente Energetico CasaClima; dal 2014 si occupa solo di edifici certificati CasaClima. Svoltge attività di divulgazione del concetto di qualità e certificazione CasaClima con l’organizzazione di convegni ed è l’ideatore del CasaClima Village all’interno della fiera Restructura di Torino. I suoi progetti sono stati pubblicati dalle riviste azero, CasaClima, Casa e Clima e sul libro “Casa come? CasaClima”.

Abitazione unifamiliare a Andezeno (TO). Nuova edificazione; certificazione CasaClima Gold in corso.

Villa storica a San Mauro T.se (TO). Riqualificazione ad alta efficienza energetica; certificazione CasaClima A in corso. Il progetto è pubblicato su azero 37.

Vista della zona giorno a doppia altezza con la grande vetrata che si apre sul patio e sul giardino.
Photo
Photo

Federica Barazzutti Collaborazione efficiente

San Daniele del Friuli (UD)

Questa abitazione nell’alta pianura friulana è stata progettata secondo il protocollo Passivhaus e costruita con struttura in legno e sistemi a secco. La casa si contraddistingue, oltre che per le elevate prestazioni energetiche, per l’ampio impiego dell’energia solare e per sistemi di riscaldamento di tipo passivo e attivo

Seguendo il protocollo Passivhaus, questa casa unifamiliare è stata pensata per giovarsi degli apporti passivi del Sole e per essere costruita il più possibile con materiali naturali. L’abitazione sorge su una platea di fondazione in c.a. e il suo involucro presenta una struttura portante in pannelli X-lam. L’isolamento a cappotto delle parti opache verticali e del tetto è stato effettuato mediante la posa di pannelli in fibra di legno di spessore compreso tra i 24 e i 28 cm. Vista la scelta del sistema costruttivo, anche i pacchetti del solaio controterra e del solaio interpiano sono realizzati con tecnologia costruttiva a secco, utilizzando massetti di argilla espansa e la coibentazione necessaria, chiusi da lastre in fibrogesso. I serramenti sono in legno-allumino, dotati di frangisole a schermare l’eccesso di apporto solare gratuito, in particolar modo durante il periodo estivo. All’interno i tamponamenti delle pareti portanti in legno e le tramezze non portanti sono in lastre di fibrogesso.

Molta attenzione è stata riservata anche alla scelta delle finiture, come legnami e pitture interne, per le quali si sono privilegiati materiali naturali con limitati trattamenti di tipo chimico.

All’esterno l’involucro presenta prevalentemente un rivestimento a intonaco, interrotto in alcune pareti da doghe orizzontali

L’ingresso della casa avviene da ovest e già da questo lato si nota la doppia finitura esterna in intonaco e doghe di legno.

in larice. Per preservare il più possibile la struttura lignea, il marciapiede esterno di finitura è stato realizzato con sistema a secco con, alla quota della platea di fondazione, una vasca drenante di ghiaione rullato, al di sopra della quale è stato posato un sistema dedicato di supporto delle doghe in legno di finitura.

La tenuta all’aria di tutto l’involucro ha rappresentato una parte cruciale del progetto al fine di raggiungere la certificazione Passivhaus e di assicurare le migliori condizioni della struttura lignea.

Particolare attenzione è stata posta all’esecuzione della parte impiantistica; come già accennato, sfruttando gli apporti solari gratuiti, la casa si giova di sistemi di riscaldamento di tipo passivo e attivo quali un sistema di VMC, una pompa di calore per la produzione dell’acqua calda sanitaria, un’integrazione per la climatizzazione, l’impianto fotovoltaico in copertura e un recupero dell’acqua piovana destinata a utilizzo sanitario. Inoltre, per l’impianto elettrico sono stati previsti sistemi di schermatura, così da limitare l’inquinamento autoprodotto di tipo elettrico e magnetico a bassa frequenza ed elettromagnetico ad alta frequenza.

Certificazione

• Passivhaus

Progetto architettonico e D.L.

arch. Federica Barazzutti, San Daniele del Friuli (UD)

Strutture

ing. Valentina Bertolutti – Studio Bertolutti Schneider, Pontebba (UD)

Consulenti

Zephir Passivhaus Italia, Pergine Valsugana (TN)

Impianti

F.lli Candusso Termoidraulica, Moruzzo (UD)

Appaltatore

Diemme Legno SNC, Pontebba (UD)

Lavori

2021-2022

Superficie utile 164 m2

Trasmittanza media pareti esterne 0,13 W/m2K

Trasmittanza media solaio contro terra 0,16 W/m2K

Trasmittanza media copertura 0,13 W/m2K

Trasmittanza media superfici trasparenti Uf 0,9 W/m2K; Ug 0,52 W/m2K

Fabbisogno energia per riscaldamento 12,53 kWh/m2 anno

Il sito di progetto

Il primo passo, e forse il più importante per la costruzione di questa casa, è stata la scelta del terreno adatto ad accoglierla. La volontà era infatti quella di trovare un lotto che permettesse di avere una buona esposizione a sud e, quindi, di poter progettare e controllare gli ombreggiamenti delle facciate.

Il terreno, che è stato poi individuato, ha soddisfatto tutte le caratteristiche ricercate e, anzi, ha permesso di ideare e dar vita a un fabbricato fortemente radicato e inserito nel contesto edilizio circostante. La casa è stata orientata secondo scelte progettuali ben definite, sfruttando al massimo gli apporti solari invernali mediante la realizzazione di grandi superfici finestrate a sud, più contenute a est e ovest e molto limitate a nord.

Il sito, inoltre, presenta una grande porzione di verde privato verso sud e questa peculiarità, dopo un primo periodo di vita all’interno del fabbricato, sta permettendo di studiare al meglio l’apporto che la vegetazione offre in termini di ombreggiamento dell’involucro. Grazie alla piantumazione di alberature a foglia caduca di tipo autoctono, il giardino supporta al meglio le schermature solari esterne delle superfici finestrate grazie alla mitigazione climatica che il verde è in grado di offrire.

Il prospetto sud dell’edificio con le grandi aperture, situate in corrispondenza della zona living, necessarie per poter sfruttare gli apporti solari gratuiti.

Photo © arch. Rachele Candusso
Photo
Rachele Candusso
Pianta primo piano
Prospetto sud
Pianta piano terra
Prospetto est
Prospetto ovest
Prospetto nord

Materiali e imprese

Fin dai primi approcci al progetto, un altro aspetto si è rivelato molto importante ed è strettamente legato alla qualità dei materiali da costruzione e alla volontà di lavorare con persone e realtà del territorio con l’obiettivo condiviso di dar vita a un edificio che, per molte di loro, era il primo fabbricato così efficiente dal punto di vista energetico.

Innanzitutto, come materiale da costruzione principale, si è optato per un sistema in pannelli di X-lam e, come posatore della struttura dell’edificio a grezzo avanzato, una ditta locale che è anche produttrice delle pannellature prefabbricate.

Dal punto di vista progettuale l’arch. Barazzutti ha fortemente voluto che all’interno fosse visibile la struttura, lasciando a vista diverse pareti in legno. Questa

decisione ha comportato una maggior attenzione nell’esecuzione delle soluzioni per la tenuta all’aria. La posa dei serramenti, sempre realizzati da un’azienda del territorio, è stata effettuata con la massima cura. La scelta progettuale di rivestire alcune pareti esterne in doghe di larice, con anche le relative imbotti per il sistema oscurante in frangisole, ha implicato una grande attenzione nella gestione degli isolamenti. Altrettanta cura è stata dedicata a tutti i materiali utilizzati internamente, quali il fibrogesso per i tamponamenti delle pareti e dei solai e l’argilla espansa per i sottofondi a secco.

Gli impianti, sistemi sempre molto delicati in edifici ad alte prestazioni energetiche come questa abitazione, sono stati realizzati con la massima precisione, accogliendo tutte le esigenze della direzione lavori a garanzia della buona riuscita di tutto l’intervento.

Sezione CC
La scala che collega i due piani dell’abitazione. Anche all’interno si susseguono superfici intonacate e in legno.
Sezione DD

Solaio terrazza su vano riscaldato (A) dall’estradosso

- guaina bituminosa

- membrana altamente traspirante monolitica

- fibra di legno (40 mm)

- listelli isolati in legno e fibra di legno (200x90 mm)

- fibra di legno (100+100 mm)

- membrana altamente traspirante monolitica

- solaio X-lam (160 mm)

Solaio interpiano (B) dall’estradosso

- parquet (15 mm)

- doppia lastra fibrogesso (12,5+12,5 mm)

- fibra di legno (40 mm)

- sottofondo in argilla espansa (120 mm)

- schermo freno al vapore impermeabile

- solaio X-lam (160 mm)

Solaio contro terra (C) dall’estradosso

- parquet (15 mm)

- doppia lastra fibrogesso (12,5+12,5 mm)

- sottofondo in argilla espansa (200 mm)

- XPS (120 mm)

- barriera anti-radon

- platea di fondazione (300 mm)

- magrone (100 mm)

1 listelli isolati in legno e fibra di legno (200x90 mm)

2 monoblocco isolato –sistema oscurante frangisole

3 serramento in legno alluminio

4 XPS (100+100+50 mm)

5 dormiente in larice

6 XPS (60+80 mm)

Cappotto in fibra di legno; serramenti triplo vetro; nastrature nelle uscite impiantistiche e nei nodi struttura verticale-copertura; tubazioni dell’impianto di ventilazione; massetti a secco; installazione dei frangisole; esecuzione del marciapiede galleggiante su vasca drenante di ghiaione.
Federica Barazzutti

Copertura e nodo parete-finestra

Copertura (D) dall’esterno - rivestimento

- sotto struttura per copertura

- listelli per camera di ventilazione

- impermeabilizzazione

- pannelli in fibra di legno (40 mm)

- pannelli in fibra di legno (200 mm)

- pannelli in X-lam (140 mm)

1 finestra triplo vetro

Parete (E) dall’esterno - rasatura (10 mm)

- pannelli in fibra di legno (40 mm)

- tenuta all’aria e al vento

- pannelli in fibra di legno (200 mm) - pannelli in X-lam (118 mm)

2 trave in lamellare GL24h (180x480 mm)

Analisi agli elementi finiti copertura e nodo paretefinestra. Verifica delle temperature superficiali.

Coibentazione in fibra di legno della copertura; impermeabilizzazione; nastrature e membrana impermeabilizzante altamente traspirante; realizzazione delle partizioni interne; la casa quasi completata.
Il living è caratterizzato dalla presenza del profilo della scala che sale al piano primo.
La parete che divide il living dall’area di ingresso.
Vista della zona giorno dalla cucina.
Photo © arch. Rachele Candusso
Photo © arch.
Rachele Candusso
Photo © arch. Rachele Candusso

Architetto Federica Barazzutti

Laureata in Progettazione dell’Architettura Sostenibile con una tesi sui protocolli energetico ambientali presso il Politecnico di Milano, l’arch. Federica Barazzutti segue prima i corsi CasaClima, diventando poi Certificatore Passivhaus e approfondendo il tema delle costruzioni in legno anche grazie ai corsi ARCA. Vista la formazione tecnica orientata alla sostenibilità ambientale ed energetica, si è dedicata alla libera professione concentrandosi sui temi del vivere sostenibile, dell’utilizzo di materiali naturali, dell’architettura quale insieme complesso di parti che dialogano tra loro. La visione dell’architettura è olistica, nel rispetto dell’ambiente e dell’uomo, una scelta che trova fondamento nel Vastu, antica scienza vedica, che l’architetto ha potuto approfondire e studiare affiancando un importante architetto indiano. Progettare il nuovo e riprogettare l’esistente le permettono di ricercare quell’equilibrio e quella armonia che connettono tutte le parti di un edificio, dal luogo che lo ospita, agli impianti, agli arredi e, chiaramente, alle persone che lo vivono.

Edificio unifamiliare a San Vito di Fagagna (UD), 2022. Demolizione e ricostruzione con struttura in legno. Casa unifamiliare a Rive D’Arcano (UD), 2023. Ristrutturazione edilizia.

Vista complessiva della zona giorno.
Scorcio dell’area pranzo e cucina.
Photo

Ricostruire l’infanzia

Demolire e ricostruire un edificio in standard passivo è sempre un’operazione che richiede attenzione e cura del dettaglio. Quando poi il progettista deve demolire e ricostruire la casa in cui ha trascorso l’infanzia per il nuovo proprietario dell’abitazione il progetto diventa difficile da affrontare emotivamente, ma allo stesso tempo una sfida, vista la volontà di realizzare una casa con un elevato grado di sostenibilità e di comfort

La storia che accompagna il progetto di questa casa, sita sulla Marina di Blackrock a Cork, è decisamente singolare e ha avuto inizio nel 2019 con una e-mail, nella quale il possibile committente chiedeva all’architetto John Morehead alcune informazioni sulla possibilità di progettare una casa passiva sullo stesso lotto che ospitava la casa d’infanzia dell’architetto stesso. Inizialmente Morehead pensò a uno scherzo di un conoscente, ma il messaggio proveniva da un costruttore di case di Londra, nativo di Cork, che assieme alla moglie aveva acquistato la casa nel 2018 per costruirne una nuova. Il lotto originario, infatti, era stato diviso in due parti nel 2005 e nella porzione libera l’architetto aveva progettato una nuova casa a basso consumo energetico per i genitori, mentre il vecchio edificio di mattoni, chiamato Leeward, che aveva visto crescere l’architetto, fu venduto, dopo alcuni anni di locazione. Accettare l’incarico per l’arch. Morehead, esperto progettista e Passivhaus Designer, non è stato facile; tuttavia le richieste dei committenti, che ben conoscevano lo standard Passivhaus e che desideravano un’abitazione sostenibile dall’ottimo comfort e qualità dell’aria interna, lo hanno convinto.

Inizialmente il team progettuale aveva preso in considerazione anche la riqualificazione di Leeward, ma il terreno su cui sorge il fabbricato si trova a meno di 20 metri dalla riva dell’estuario, soggetto alle maree, del fiume Lee, in una zona che, bonificata nel XIX secolo, potrebbe essere esposta a rischio di inondazione nei prossimi decenni. La casa, inoltre, aveva stanze piccole e soffitti bassi, ulteriori fattori che ne limitavano fortemente il potenziale di ristrutturazione. Pertanto, si è deciso di demolire l’abitazione e ricostruirla con un piano rialzato, una decisione emotivamente difficile per John Morehead.

La vista sulla foce del Lee a nord, il giardino soleggiato e riparato rivolto a sud e il mix eclettico di architettura vittoriana, edoardiana e Arts and Crafts della zona, che ricade in una Architectural Conservation Area, sono stati i punti cardine di un progetto realizzato secondo i principi

Progetto

Wain Morehead Architects Ltd., Cork (IE)

Perito estimatore

Richard Leonard & Associates, Limerick (IE)

Ingegneria

Horganlynch Consulting Engineers, Cork (IE)

Certificatore

MosArt | Excellence in Passive House, Wicklow – Rathnew (IE)

Costruttore

Lough Contractors Ltd.

Superficie lorda interna

267 m2

Trasmittanza media pareti esterne

0,102 W/m2K

Certificazione

• Passivhaus

• BER* A1

Passivhaus e per essere resiliente ai cambiamenti climatici e a basse emissioni di carbonio. La nuova abitazione si integra nel costruito senza modificare il giardino, ormai ben definito e maturo, e con il suo design discreto dialoga con il contesto storico, riprendendone alcuni dettagli: forme geometriche, materialità delle texture, un volume con rivestimento in legno a ovest con tetto a una falda in zinco e uno in mattoni con copertura piana.

Al fine di ridurre l’impatto sul sito e sulle abitazioni adiacenti, l’abitazione occupa quasi la stessa area del fabbricato originale (ha una superficie leggermente più grande).

Seguendo i principi Passivhaus, il prospetto a nord presenta poche aperture, scelta che garantisce anche la privacy visto che questo è l’affaccio sulla passeggiata lungo il fiume, e ampie finestre a sud che ottimizzano gli apporti solari e l’illuminazione naturale.

Trasmittanza media solaio controterra 0,071 W/m2K

Trasmittanza media copertura 0,17 W/m2K (tetto a falde); 0,081 W/m2K (tetto piano)

Trasmittanza media superfici trasparenti

0,92 W/m2K; 1,28 W/m2K (finestre da tetto)

Fabbisogno energia per riscaldamento 11,01 kWh/m2anno (dati climatici sito)

Carico di calore

8,69 W/m2 (dati climatici sito)

Energia primaria non rinnovabile 37,82 kWh/m2anno (dati climatici sito)

Carbonio incorporato 492 kg CO2e/m2

* BER – Building Energy Rating: è il sistema di certificazione vigente in Irlanda il quale fornisce al consumatore un’indicazione precisa delle prestazioni energetiche delle case, secondo quanto stabilito dall’Autorità irlandese per l’energia sostenibile (SEAI).

Alcune viste del cortile interno.
Photo © Wain Morehead Architects Ltd.
Photo © Wain Morehead Architects Ltd.
Photo © Wain Morehead Architects Ltd.

Un design a ciambella

Compositivamente il piano terra si avvolge attorno a un cortile centrale che, aperto sulla cucina/sala da pranzo, porta luce naturale in profondità negli spazi e offre viste di tutte le zone del piano. Il patio, caratterizzato dalla presenza di una betulla argentata, si trova in linea retta tra l’ingresso e la porta scorrevole posteriore, creando un asse di luce e vegetazione che attraversa tutta la casa. Sviluppandosi in verticale, in parte vetrato e in parte rivestito da doghe di larice, il patio sale fino al primo piano, dove sono ospitate la camera matrimoniale en-suite, una stanza flessibile che offre una sistemazione multiuso per i membri della famiglia multigenerazionale, una stanza che può essere utilizzata anche come camera da letto, quando necessario, e due terrazzi: il primo è rivolto verso la Marina ed è protetto da alette verticali in legno

che richiamano i balconi edoardiani finemente dettagliati che si possono vedere lungo il fiume; il secondo, molto ampio, si affaccia invece a sud ed è collegato attraverso una scala a chiocciola direttamente al giardino. Il cortile è dotato di porte scorrevoli in vetro con tripli vetri che, nelle giornate più calde, possono essere aperte e, insieme alle porte scorrevoli posteriori, consentono di rinfrescare naturalmente l’edificio.

Dal punto di vista di una casa passiva, questa disposizione planimetrica non ha certamente facilitato il lavoro, in quanto si è dovuto progettare e realizzare, oltre all’involucro esterno perimetrale, un altro involucro esterno inserito all’interno dello spazio riscaldato con, di conseguenza, maggiori superfici disperdenti e più giunzioni/connessioni da sigillare per garantirne la tenuta all’aria.

Piano terra rialzato
Piano primo

L’involucro

e gli impianti

La realizzazione della casa ha subito alcuni rallentamenti – Brexit, Covid e difficoltà nel trovare subappaltatori qualificati – ma l’edificio è stato completato con ottimi risultati.

La struttura del fabbricato è in legno ed è stata costruita da un’azienda la cui sede si trova a soli 15 km di distanza; le pareti, fondamentali per garantire un isolamento sufficiente a soddisfare lo standard Passivhaus, sono a doppio montante e coibentate con cellulosa, prodotta a meno di 3 km dal sito. Il piano terra, sollevato di 310 mm rispetto al livello precedente, poggia su un sistema di fondazioni con isolamento in EPS di produzione irlandese. Grande attenzione è stata riservata all’ermeticità dell’involucro ottenuta mediante l’impiego di pannelli OSB e membrane, opportunamente nastrati. Il risultato del Blower Door Test di 0,45 ricambi d’aria all’ora dimostra l’ottimo lavoro dell’impresa costruttrice, dato anche il numero di giunzioni e connessioni. La casa è riscaldata tramite pavimento radiante alimentato da una pompa di calore aria-acqua e una VMC con recupero di calore. L’arch. Morehead voleva assicurarsi che l’edificio fosse adatto a un clima caldo poiché non voleva installare un raffrescamento attivo, in quanto nel clima umido irlandese il raffrescamento meccanico può creare un potenziale rischio di con-

densa interstiziale, abbassando la temperatura delle superfici e innescando il punto di rugiada dove il vapore acqueo si condensa. E a Leeward, il team di progetto ha imparato a sue spese quanto possa essere subdola la condensa. Un esempio: quando si è notato che la soletta del solaio intermedio tardava ad asciugarsi, sono state inserite delle sonde di umidità per scoprirne il motivo e si è visto che la temperatura della soletta era inferiore a quella dell’aria circostante: il vapore acqueo si condensava sul lato inferiore, penetrando nell’isolamento in fibra di legno sottostante. Un problema che si è risolto facilmente accendendo il riscaldamento a pavimento, ma che avrebbe potuto essere più serio. È stata inserita, inoltre, un’unità di recupero del calore delle acque reflue, essenzialmente uno scambiatore di calore che recupera il calore dalle acque di scarico della doccia per riscaldare l’acqua di rete in entrata e l’alimentazione fredda al miscelatore della doccia stessa. L’impianto fotovoltaico, che potrà essere esteso sul tetto piano occidentale in futuro, assicura una produzione media annua di 1.979 kWh; sono stati installati anche due punti di ricarica per auto elettriche.

A fianco: l’affaccio a nord verso la Marina e sul cortile interno dal primo piano; parte dell’ampio terrazzo che guarda sul giardino; la scala a chiocciola che porta direttamente all’area verde a sud dal primo piano; il prospetto sud.

Prospetto Est
Prospetto Sud
Prospetto Nord
Prospetto Ovest
Photo
© Wain
Morehead Architects Ltd.
Photo
© Wain Morehead Architects Ltd.
Photo
© Wain Morehead Architects Ltd.
Photo
© Wain Morehead Architects Ltd.
Photo
© Wain Morehead Architects Ltd.

Nodo attacco a terra

Solaio piano terra (A) dall’estradosso

- pavimento in legno di latifoglia (15 mm)

- massetto con riscaldamento a pavimento (50 mm)

- pannello in poliuretano espanso rigido (90 mm)

- soletta in calcestruzzo da materiale riciclato al 70% (250/350 mm)

- membrana anti-radon

- pannello EPS (300 mm)

- sabbia

- strato di livellamento

- terreno

Parete esterna con rivestimento in mattoni (B) dall’esterno

- rivestimento in mattoni su pannelli di supporto in cemento-magnesio

- listello verticale in legno trattato (44x65 mm, passo 600 mm)

- membrana traspirante

- pannello in fibra di legno ad alta densità

- isolamento in cellulosa posato in opera (300 mm) tra montanti strutturali in legno

- pannello OSB strutturale nastrato

- listelli verticali in legno (45 mm) per controparete

- doppio strato di pannelli in gesso emidrato reidratato, additivato con fibre di vetro

1 rete para-insetti

2 finitura a calce su pannello portante in cemento

3 strato anti-umidità nastrato

4 scossalina in alluminio

5 collante bituminoso bicomponente, fibrorinforzato

6 pannello in cemento

7 tappetino protettivo alveolare

8 profilo semirigido in PE a protezione della struttura in legno

9 battiscopa in legno Tuliper

10 fascia perimetrale in sughero (10 mm)

Armatura delle fondazioni; fondazioni completate; posa del rivestimento in mattoni.

Parete esterna con rivestimento in legno (C) dall’esterno

- rivestimento in legno di larice a giunto aperto verticale (18 mm)

- controlistello in legno trattato (44x50 mm, passo 600 mm)

- listello verticale in legno trattato (44x50 mm, passo 600 mm)

- membrana traspirante per facciate, resistente ai raggi UV

- pannello in fibra di legno ad alta densità

- isolamento in cellulosa posato in opera (300 mm) tra montanti in legno

- pannello OSB strutturale nastrato

- listelli verticali in legno (45 mm) per controparete

- doppio strato di pannelli in gesso emidrato reidratato, additivato con fibre di vetro

1 nastro nero resistente a UV

2 rete anti-insetti

3 sigillatura tra telaio finestra e struttura parete in legno

4 membrana traspirante nastrata alla finestra

5 finestra triplo vetro

6 spalletta in larice

7 raccordo impermeabile

8 davanzale in alluminio

9 pannello isolante strutturale per finestre

10 davanzale interno in legno duro verniciato

11 pannello in fibra di legno ad alta densità

12 nastratura tra sistema supporto di finestra e struttura parete

La struttura in legno al piano terra e in corrispondenza del cortile interno e primo piano; nastrature dei serramenti all’esterno; davanzale e rivestimento in doghe verticali; vista della casa in ultimazione dal giardino.

1 nastro monoadesivo ad alta prestazione, impermeabile

2 supporto per grondaia in zinco

3 fascia di supporto in compensato marino

4 grondaia in lamiera zincata

5 scossalina in zinco

6 travetto superiore a supporto di trave di copertura

Nodo tetto a falda-parete

Copertura (D) dall’esterno

- finitura del tetto in zinco

- tavole di abete grezzo (125x25 mm)

- intercapedine ventilata con listelli trattati (50x50 mm, passo 400 mm)

- membrana traspirante sovrapposta ai bordi e nastrata

- struttura del tetto in legno a telaio con isolamento in cellulosa posato in opera

- pannello OSB strutturale nastrato

- listelli verticali in legno (45 mm) per controparete

- doppio strato di pannelli in gesso emidrato reidratato, additivato con fibre di vetro

Le soluzioni per la tenuta all’aria della copertura; l’isolamento del solaio interpiano con pannelli in fibra di legno; posa del rivestimento in lamiera di zinco aggraffata; il sistema radiante a pavimento e le tubazioni della VMC.

Il raffrescamento naturale

Come accennato, l’abitazione non presenta un sistema di raffrescamento attivo, ma si è adottata una ventilazione naturale con effetto camino, che è stata parte integrante del progetto e della configurazione della casa, al fine di mitigare ed evitare qualsiasi surriscaldamento.

La ventilazione naturale è integrata con l’apertura automatica delle finestre poste sul tetto in corrispondenza della torre di asciugatura della lavanderia e del mezzanino a doppia altezza, dove in futuro sarà possibile installare un ascensore. La torre di asciugatura della lavanderia è a doppia altezza per garantire anche un’asciugatura efficiente e discreta della biancheria, grazie all’estrazione della VMC con recupero di calore.

Il carbonio incorporato

Wain Morehead Architects hanno anche calcolato il carbonio incorporato dall’edificio, utilizzando una prima versione della nuova metodologia nazionale irlandese per la valutazione del carbonio nell’intero ciclo di vita di un fabbricato. Il sistema è in fase di sviluppo da parte dell’IGBC Irish Green Building Council nell’ambito del progetto Indicate che vede coinvolti enti ed esperti internazionali con l’obiettivo di creare un database nazionale di progetti tutti ideati secondo un’unica metodologia. L’ambito era conforme al quadro Level(s) dell’UE e il totale “dalla culla alla tomba” – from cradle to grave – è stato di 155 tonnellate di CO2e, ovvero 594 kg/m2. Poiché i dati sul carbonio incorporato a livello di prodotto sono attualmente più difficili da reperire per gli impianti meccanici, elettrici e idraulici, al momento lo strumento utilizza stime generiche per questi elementi, basate sul peso di ciascun tipo di materiale.

La costruzione della torre di asciugatura; il completamento della terrazza verso sud nel corpo con tetto piano; la realizzazione dei massetti.

L’illuminazione

Il team di progettazione ha riflettuto a lungo su come l’illuminazione naturale avrebbe interagito con lo spazio. Una buona illuminazione naturale, la luce che danza su oggetti e superfici, una buona ombreggiatura: tutto questo è molto importante e concorre a creare il giusto comfort per le persone che vivono in uno spazio confinato. Il modo in cui la luce naturale viene progettata non è solo sinonimo di risparmio energetico, ma anche di benessere. A Leeward la facciata sud è quella che presenta il maggior numero e le più grandi aperture vetrate, rivolte verso il giardino soleggiato, riparato e rigoglioso, dove lo spazio del living si dilata con la sua terrazza esterna. Al piano superiore, l’enfasi è stata posta sulla creazione di stanze utili e adattabili con ampie finestre affacciate a sud e con la terrazza al primo piano che, con vista sul giardino, è accessibile da due delle camere da letto. I committenti, coinvolti costantemente nel progetto, testimoniano come la luce sia particolarmente buona e che, grazie alle finestre a tutta altezza in molte stanze e al cortile interno, la casa ha un’atmosfera incantevole.

corridoio/disimpegno al primo piano.

Il
Uno scorcio della camera padronale.
Photo © Wain Morehead Architects Ltd.
Photo © Wain Morehead Architects Ltd.

Wain Morehead Architects

La progettazione olistica e a basso consumo energetico è sempre stata il pilastro di Wain Morehead Architects Ltd. Dal 1995, infatti, WMA realizza edifici a basso consumo energetico, con particolare attenzione alle prestazioni, al comfort e all’architettura ecologica. Superare i limiti per sviluppare soluzioni appropriate atte a integrare la sostenibilità tramite tecnologie nuove e comprovate e per ridurre i costi a lungo termine e aumentare i livelli di comfort è l’approccio dello studio, che così riduce significativamente anche l’impronta di carbonio dei suoi progetti. Per realizzare edifici confortevoli ed efficienti energeticamente, WMA si concentra su un approccio “fabric-first”, ovvero una costruzione con elevato isolamento, ermetica e priva di ponti termici. Lo studio utilizza lo standard e i principi Passivhaus/EnerPHit per caratterizzare i suoi progetti. John Morehead, laureato in Architettura nel 1986, dopo aver maturato esperienza lavorativa in Germania e Regno Unito, è diventato membro effettivo della RIAI nel 1991 e ha fondato il proprio studio nel 1993; nel 1995 si è fuso con Brian Wain formando Wain Morehead Architects Ltd. Morehead è

Certified European Passive House Designer dal 2010. Lo studio ha all’attivo 6 progetti Passivhaus certificati, tra cui il primo certificato a Cork nel 2011 e il primo progetto nazionale certificato Passivhaus Plus in Irlanda, oltre ad altri 2 progetti in fase di certificazione.

Kikilleen House a Cork (IE), 2016. Abitazione unifamiliare certificata Passivhaus.

West Cork Passivhaus a Cork City (IE), 2016. Abitazione unifamiliare certificata Passivhaus.

La cucina affacciata sul cortile interno.
Photo © Wain Morehead Architects Ltd.

back page – Zero&Fly Inc.

testi e matita di Michele De Beni

Turn static files into dynamic content formats.

Create a flipbook
Issuu converts static files into: digital portfolios, online yearbooks, online catalogs, digital photo albums and more. Sign up and create your flipbook.